| Похожие рефераты | Скачать .docx |
Курсовая работа: Допуски и посадка деталей
Содержание
Введение
1. Развитие международной организации по стандартизации
2. Взаимозаменяемость гладких соединений
2.1 Выбор и расчет посадок на все соединения узла по аналогии
2.2 Расчет и выбор посадок для подвижного соединения
2.3 Выбор средств измерения
3. Взаимозаменяемость стандартных измерений
3.1 Выбор и расчет посадок колец подшипников качения
3.2 Допуски и посадки шпоночных соединений
3.3 Допуски и посадки шлицевых соединений
3.4 Взаимозаменяемость резьбовых соединений
4. Расчет размерной цели
4.1 Расчет методом максимум-минимум
4.2 Вероятностный метод
Список литературы
Введение
Потребность в установлении и принятии правил появилось вместе с возникновением человеческого общества. Письменность, летоисчисления, система отчета, денежные единицы, единицы мер и весов – это первые шаги стандартизации.
Вместе с развитием производства развивалась стандартизация, способствуя в свою очередь более быстрому росту производственных сил. Использование обработанных камней строго определенного размера, позволило сооружать в Древнем Египте пирамиды, имеющие правильную форму. Камни массой нескольких тонн были настолько точно обработаны и так плотно прилегали друг к другу, что между ними и сейчас невозможно просунуть иголку. Стандартизированы были также детали катапульты. При этом размеры всех деталей зависят от одного главного параметра – длины стрелы, метаемой катапультой.
В кораблестроении с 1701 года указами Петра I и Сената были определены образы галер, якорей, предметов корабельного снаряжения и вооружения. Это способствовало более быстрому развитию соответствующих отечественных производств и позволило в короткий срок создать русский флот.
Дореволюционная Россия стандартов не имела. Иностранные фирмы, которым принадлежало множество предприятий, и иностранные специалисты не были заинтересованы в создании русских стандартов.
Кроме того, в России не было единства мер, крайне необходимого для развития стандартизации. В России одновременно действовали три системы мер: дюймовая, метрическая и оригинальная.
Цель дисциплины выработка у будущих инженеров знаний и практических навыков использования и соблюдения требований систем общетехнических стандартов, выполнения точности размеров и метрологического обеспечения при изготовлении, эксплуатации и ремонте сельхоз техники. Поэтому подготовка современного инженера включает освоение широкого цикла вопросов, связанных со стандартизацией, взаимозаменяемостью и техническими измерениями.
1. Развитие международной организации по стандартизации
Международная организация по стандартизации создана в 1946 г. двадцатью пятью нацмональными организациями по стандартизации. Фактически работа ее началась с 1947 г. СССР был одним из основателей организации, постоянным членом руководящих органов. Россия стала членом ИСО как правоприемник распавшегося государства.
При создании организации и выборе ее названия учитывалась необходимость того, чтобы аббревиатура наименования звучала одинаково на всех языках. Для этого было решено использовать греческое слово Международная организация по стандартизации имеет краткое название ISO (ИСО)
Сфера деятельности ИСО касается стандартизации во всех областях, кроме электротехники и электроники, относящихся к компетенции Международной электротехнической комиссии (МЭК). Некоторые виды работ выполняются совместными усилиями этих организаций. Кроме стандартизации ИСО занимается и проблемами сертификации.
ИСО определяет свои задачи следующим образом: содействие развитию стандартизации и смешанных видов деятельности в мире с целью обеспечения международного обмена товарами и услугами, а также развитие сотрудничества в интеллектуальной, научно-технической и экономической областях.
Основные объекты стандартизации и количество стандартов (в процентах от общего числа) характеризуют обширный диапазон интересов организации:
Машиностроение 29
Химия 13
Неметалические материалы 12
Руды и металлы 9
Информационная техника 8
Сельское хозяйство 8
Строительство 4
Специальная техника 3
Охрана здоровья и медицина 3
Основополагающие стандарты 3
Окружающая среда 3
Упаковка и транспортировка товаров 2
Остальные стандарты относятся к здравоохранению и медицине, охране окружающей среды. Вопросы информационной технологии, микропроцессорной техники – это объекты совместных разработок ИСО и МЭК. В последние годы ИСО уделяет много внимания стандартизации систем обеспечения качества.
Практическим результатом усилий в этих направлениях являются разработка и издание международных стандартов. При их разработке ИСО учитывает ожидание всех заинтересованных сторон – производителей продукции (услуг), потребителей, научно-технических и общественных организаций.
На сегодняшний день в состав ИСО входят 220 стран. Россию представляет Госстандарт РФ в качестве комитета – члена ИСО. Всего в составе ИСО более 80 комитетов – членов. Кроме комитетов – членов членство в ИСО может иметь статус членов – корреспондентов. Категория член – абонент введена для развивающихся стран. Комитеты – члены имеют право принимать участие в работе любого технического комитета ИСО, голосовать по проектам стандартов, избираться в состав Совета ИСО. Члены – корреспонденты (их 22) имеют право на получение информации о стандартах.
Сильные национальные организации в странах – членах ИСО являются опорой для ее функционирования, поэтому комитетами – членами принимаются только те организации, которые наилучшим образом отражают положение своей страны в области стандартизации и имеют значительный опыт, что требуется для эффективной работы по международной организации.
Стандартизации услуг в РФ было принято лишь в 1992 г., можно говорить о положительном продвижении в создании юридических основ для разработки требований.
2 Взаимозаменяемость гладких соединений
2.1 Выбор и расчет посадок на все соединения узла по аналогии
Задание: начертить сборочный чертеж узла, выявить и перечислить все основные соединения (кроме расчетных).
Сборочный чертеж содержит следующие соединения:
а) привертная крышка с отверстием для прохода вала, поз.5 – корпус редуктора, поз.3
б) привертная крышка с отверстием для прохода вала червяка, поз.7 – корпус редуктора, поз.3
в) привертная крышка без отверстия для прохода вала, поз.8 – корпус редуктора, поз.3
г) привертная крышка без отверстия для прохода вала, поз.1 – стакан подшипника качения, поз.2
д) дистанционное кольцо верхнее, поз. 6 – вал, поз. 9
е) дистанционное кольцо нижнее, поз. 4 – вал, поз. 9
ж) стакан подшипника качения, поз.2 – корпус редуктора, поз.6
Анализируя работу соединения крышка с отверстием для прохода вала – корпус редуктора, выбираем поле допуска отверстия Н7, исходя из экономической целесообразности, чтобы уменьшить номенклатуру обрабатывающих инструментов, т.к. мы обрабатываем с этой степенью точности посадочное место под наружное кольцо подшипника. Чтобы ограничить радиальное смещение привертной крышки, поле допуска центрирующей поверхности по стандарту ГОСТ 18512-73 задаем h8[4, с.102] Посадка![]()
Определим предельные размеры и натяги
![]()
![]()
![]()
![]()
![]()
![]()
Масштаб: 1мм=1мкм

Рисунок 2.1.1 – Схема расположения полей допусков соединения ![]()
Выбираем посадку для соединения «б». Исходя из тех же соображений, что и при выборе посадки для предыдущего соединеия, т.к. эти соединения однотипны, выбираем соединения посадку
[4, с. 102]
Так как данная посадка аналогична предыдущей, она будет иметь такую же схему расположения полей допусков и предельные размеры и наибольший и наименьший зазоры.
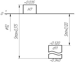
Выберем посадку для соединения «в». Единственное назначение привертной кромки без отверстия для прохода вала - закрыть отверстие в корпусной детали. Точное центрирование таких крышек по отверстию корпуса не требуется. Поэтому поле допуска центрирующей поверхности привертной кромки принимаем согласно [4, с. 102] d11. Поле допуска посадочного места под подшипник Н7
Посадка ![]()
Определяем предельные размеры:
Dmax = D+ES = 92 + 0.035 = 92.035 мм
Dmin = D+EI = 92 + 0 = 92 мм
dmax = d + es = 92 + (- 0.120) = 91.880 мм
dmin = d + ei = 92 + (- 0,340) = 91.660 мм
Определяем наибольший и наименьший зазаоры:
Smax = Dmax - dmin = 92.035 – 91.660 = 0.375 мм
Smin = Dmin - dmax = 92– 91.880 = 0.120 мм
Строим схему расположения полей допусков

Рисунок 2.1.2 – Схема расположения полей допусков посадки ![]()
Выберим посадку для соединения «г». Исходя из тех же соображений, что и при выборе посадки для предыдущего соединения, т.к. эти соединения однотипные, выберим для данного соединения посадку
[4, с. 102]
Так как данная посадка аналогична предыдущей, она будет иметь такую же схему расположения полей допусков, предельные зазоры и предельные размеры.
Выберим посадки для соединений «д» и «е» т.к. эти соединения одинаковые, то выбор посадок для них рассмотрим в одном пункте.
Анализируя работу этих соединений приходим к выводу, что поле допуска вала должно быть такое же, как и при посадке вала и внутреннего кольца подшипника – к6. Это упрощает шлифование поверхности вала и не увеличивает номенклатуру режущего и измерительного инструмента. Тогда по [4,с. 91] выбираем поле допуска отверстий колец Н9.
Посадка ![]()
Определяем предельные размеры:
Dmax = D+ES = 50 + 0,062 = 50,062 мм
Dmin = D+EI = 50 + 0 = 50 мм
dmax = d + es = 50 + 0.018 = 50.018 мм
dmin = d + ei = 50 + 0.002 = 50.002 мм
Определяем наибольшие зазоры и натяги:
Smax = Dmax - dmin = 50,062 – 50,002 = 0,060 мм
Nmax = dmax – Dmin = 50.018 – 50 = 0.018 мм
Построим схему расположения полей допусков:

Рисунок 2.1.3 – Схема расположения полей допусков посадки ![]()
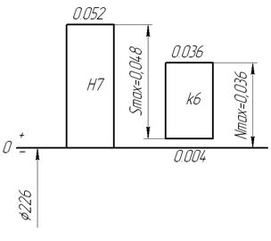
Выберем посадку для соединения «ж». Для легкости установления стаканов в корпусных деталях желательно применение посадок с зазором. Но тогда возможно их смещение в пределах зазоров, что вызывает изменение положения оси вращения вала и увеличение концентрации нагрузки. Поэтому в подобных соединениях зазоры нежелательны. В связи с этим в [4,с.95] рекомендуется применять следующие посадки для стаканов нерегулируемых в осевом направлении: Н7/к6; Н7/м6. Принимаем посадку Н7/к6.
Посадка ![]()
Определяем предельные размеры:
Dmax = D+ES = 226 + 0.052 = 226.052 мм
Dmin = D+EI = 226 + 0 = 226 мм
dmax = d + es = 226 + 0.036 = 226.036 мм
dmin = d + ei = 226 + 0.004 = 226.004 мм
Определяем наибольшие зазоры и натяги:
Smax = Dmax - dmin = 226,052 – 226,004 = 0,048 мм
Nmax = dmax – Dmin = 226,036 – 226 = 0,036 мм
Построим схему расположения допусков

Рисунок 2.1.4 – Схема расположения полей допусков соединения ![]()
2.2 Расчет и выбор посадок для подвижного соединения
Задание: по заданным исходным данным расчитать и подобрать посадку для подвижного соединения. В расчетах учесть влияние шероховатостей с описанием и необходимыми чертежами.
Исходные данные:
– номинальный диаметр соединения, м;
– длина соединения, м;
ω = 80 рад/с – угловая скорость;
η= 0,04 Па
c – абсолютная вязкость места при рабочей температуре;
g =
5 Па – среднее удельное давление в подшипнике;
RZD = 5.0 – шероховатость поверхности отверстия;
Rzd = 4.0 – шероховатость поверхности вала.
Характер и условие работы подвижных соединений разнообразны. Например, соединение шейка колесного вала – вкладыш: поршень-гильза.
Для основных типов подвижных соединений методика расчета зазора различна, поэтому для наиболее ответственных подвижных соединений машин и механизмов систему посадок выбирают на основе расчетов.

Рисунок 2.2.1 – Положение вала в соединении вал-отверстие в состоянии покоя и при вращении.
Как показано на рисунке 2.2.1 в состоянии покоя под действием силы тяжести вал находится в крайнем нижнем положении. При вращении силы трения увлекают смазку в узкую клинообразнйю щель между валами и отверстием. Под действием возникшего в клине давления при определенном соотношении размеров соединения, частоты вращения, вязкости смазки и давления, вал как бы выплывает опираясь на масляной клин и несколько смещается в сторону вращения.
Известно, что соотношение между величинами h и S в соединениях конечной длины вращается зависимостью [ 1, c. 206
66]
hS = (0.52
ωη/g)
ℓ/(dn + ℓ ). (2.1)
Где h- толщина масляного слоя в месте наибольшего сближения поверхностей валов и отверстия в рабочем состоянии, м ;
S – зазор между валом и отверстием в состоянии покоя, м ;
dn – полный диаметр соединения, м;
ω – угловая скорость, рад/с
η – абсолютная вязкость смазочного материала при рабочей температуре, Па
с;
g – среднее удельное давление в подшипнике, Па.
hS = (0.52
(0,05)2 80
0,04/6
105 )
ℓ/(0,05 + ℓ ) = 3081 мкм2
Также известно, что если при установившемся движении h = 0,25S, то коэффициент трения получается наименьшим, следовательно, и тепловой режим работы соединения будет наилучшим. Зная это, определим выгодный зазор по формуле [ 1, c. 207
67]
Sнаив. =
(2.2)
где Sнаив. – наивысший зазор, мкм;
h- толщина масляного слоя в месте наибольшего сближения поверхностей вала и отверстия в рабочем состоянии, м ;
Sнаив. =
= 111мкм
При расчете и выборе подвижных посадок, необходимо учитывать, что в процессе работы изнашиваются поверхности вала и отверстия., в результате чего зазор увеличивается.
При определенном темпе нарастания зазора и постоянном предельно допустимом зазоре долговечность соединения может быть увеличена за счет уменьшения начального зазора Sнач. Поэтому целесообразно первоначальный зазор уменьшить на сумму высот шероховатостей вала и отверстия, что обеспечит больший технический ресурс сопряжения. Учитывая, что в процессе приработки высота шероховатостей уменьшится на 0,7, т.к. считается, что в процессе приработки вследствие износа стираются выступы шероховатости вала и втулки на величину 0,7 ℓ7, первоначальный расчетный зазор, по которому следует выбирать посадку можно определить из выражения [ 1, c. 208
68].
Sрасч. = Sнач.- 1,4 (RZD + RZd ), (2.3)
где Sрасч. – расчетный зазор, мкм
Sрасч. = 111-1,4
(5 + 4) = 98,4 мкм.
По таблице [ 1, c. 353, п.VIII ] подбираем посадку, удовлетворяющую условию: Sср.ст.
Sрасч. (2.4)
где Sср.ст.
– средний зазор выбранной посадки, мкм;
Средний зазор определяется по формуле:
Sср.ст. = (Smax + Smin)/2 (2.5)
где Smax – максимальный зазор выбраной посадки, мкм;
Smin - минимальный зазор выбраной посадки, мкм;
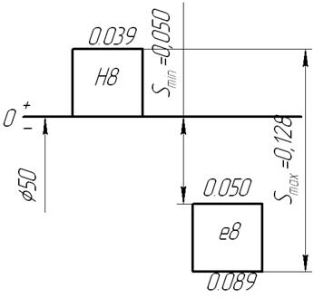
Такому условию отвечает посадка
50Н8/
у которой Smax = 128 мкм; Smin = 50 мкм; Sср.ст. = 89 мкм.
Выполним проверку правильности выбора посадки по наименьшей толщине масляного слоя [ 1, c. 208
69]
hmin = hS/(Smax+1.4(RZD + RZd)) (2.6)
где hmin – наименьшая толщина масляного слоя, мкм.
hmin =
мкм.
Чтобы избежать сухого трения, наименьшая толщина масляного слоя должна быть больше суммы высот шероховатостей вала и отверстия [ 1, c. 208
70].
hmin
RZD + RZd (2.7)
Условие выдерживается т.к. 21,9
, следовательно посадка выбрана правильно.
Принамаем посадку
50Н8/![]()
По [ 2 c. 411 т 24,4] определяем предельные отклонения
Производим расчет данной посадки:
Предельные отклонения для отверстия:
ES = 0.039 мм
EI = 0 мм
Допуск для отверстия: То = 0,039 мм
Предельные отклонения для вала:
еs = -0.050 мм
ei = -0.089 мм
Допуск для вала: Td = 0.039 мм
Вычислим предельные размеры отверстия и вала
Dmax = D + ES = 50 + 0.039 = 50.039 мм
Dmin = D + EI = 50 + 0 = 50 мм
dmax = d + es = 50 + (-0.050) = 49.950 мм
dmin = d + ei = 50 + (-0.0.89) = 49.911 мм
Определим наибольший и наименьший зазоры:
Smax = Dmax - dmin = 50.039 – 49.911 = 0.128 мм
Smin = Dmin - dmax = 50 – 49.950 = 0.050 мм

Рисунок 2.2.2 – Схема расположения полей допусков посадки ![]()
2.3 Выбор средств измерения
Задание: начертить рабочий чертеж детали, выбрать средства измерения для двух, трех основных размеров детали.
Исходные данные: начертить рабочий чертеж вала, выбрать средство измерения для размера вала под подшипники и внутреннего размера барабана.
Применение конкретных средств измерения зависит от многих факторов, масштаба производства, конструкции, материала деталей и точности изготовления.
Необходимо учитывать следующие метрологические показатели: пределы измерения прибора, приделы измерения шкалы прибора, точность прибора, предельные погрешности прибора ![]()
Учитывая материал детали, ее шероховатость поверхности. Эти факторы накладывают ограничения на измерительное усилие средств. При выборе средств измерения необходимо учитывать размеры, массу, конфигурацию детали, а также физическую возможность произвести измерение данного размера выбранным инструментом. Когда все эти факторы будут учтены, из возможных для использования средств измерения выбираются также, погрешность которых обеспечивает заданную точность изготовления.
При выборе средств измерения необходимо обязательно выполнить условие:
![]()
где
- допускаемая погрешность измерения для контроля размера, принимается по ГОСТ 8.051-81
- предельная погрешность средств измерения
Выбор средств измерения производится по методическим указаниям «Выбор универсальных средств измерения линейных размеров до 500 мм» (По применению ГОСТ 8.051-81) РД 50-98-86 М.: издательство стандартов, 1987 г.
Выбираем измерительный инструмент на следующие размеры:
А) Шейка вала под подшипник ![]()
Б) посадочное место под внешнее кольцо подшипника ![]()
Выбираем измерительный инструмент для контроля размера шейки вала под подшипник ![]()
По методическим указаниям определяем, что для этого размера б=0,005 мм, Т=0,016 мм. Этот размер можно измерить инструментами, указаннымив пунктах 4б; 5г;6б.
Пункт 4б – микрометры гладкие с точностью 0,01 мм. При работе находится в стойке или обеспечивается надежная изоляция от тепла рук: ![]()
Пункт 5г – скоба индикаторная (СИ) с точностью измерения 0,011 мм. При работе находится в стойке или обеспечивается надежная изоляция от тепла рук. Предельная погрешность измерения составляет 0,005 мм.
Пункт 6б – микрометры рычажные МР и МРН с ценой деления 0,002 мм и 0,05 мм при установке на нуль по установочной мере и скобырычажные (СР) с ценой деления 0,002 мм при настройке на нуль по концевым мерам длины при использовании на всем пределе измерения. При работе находится в стойке или обеспечивается надежная изоляция от тепла рук оператора. Предельная погрешность измерения составляет 0,0045 мм.
Из вышеперечислленых приборов наиболее недорогим является микрометр рычажный, который удобно и просто настраивать.
Выбираем измерительный инструмент для контроля размера посадочного места под внешнее кольцо подшипника ![]()
По методическим указаниям опредляем, что для этого размера б=0,010 мм; Т=0,035 мм. Этот раэмер можно измерить инструментами, указанными в пунктах 4б; 6а; 9а; 11; 12.
Пункт 4б – нутромеры микрометрические (НМ) с величиной отчета 0,01 мм. При работе находится в стойке. Предельная погрешность этого измерения будет равна
мм.
Пункт 6а – нутромеры индикаторные при замене отмечанного устройства измерительной головки (ИГ) с ценой деления 0,0001 или 0,002 мм. При работе находится в руках. Предельная погрешность этого измерения будет равна
мм.
Пункт 9а – пневманические пробки с прибором с ценой деления 1 мкм и 0,5 мкм с настройкой по установочным кольцам. При работе находится в руках. Предельная погрешность этого измерения будет равна
мкм.
Пункт 11 – микроскопы инструментальные (большая и малая модели). Предельная погрешность этого измерения будет равна
мм.
Пункт 12 – микроскопы увеличительные измерительные при использовании штриховой головки. Предельная погрешность
мм.
Из вышеперечисленных приборов наиболее подходящий является нутрометр индикаторный.
Таблица 2.3 – Выбор средств измерения
| Наименование размера | Размер, мм | Допускаемая погрешность измерения, мм | Предельная погрешность средств измерения |
Наименование СИ, тех. характеристика и условие эксплуатации |
| Шейка вала под внутреннее кольцо подшипника | 0.005 | 0.045 | Рычажный микрометр (HP), с ценой деления 0,002 мм свыше 25 до 50 мм. При работе находится в стойке | |
| Гнездо корпуса под внутреннее кольцо подшипника | 0.010 | 0.0065 | Нутромер индикаторный (НИ), с ценой деления 0,001 или 0,002 свыше 50 до 120 мм измерении находится в руках |
3 Взаимозаменяемость стандартных изделий
3.1 Выбор и расчет посадок колец подшипников качения
Задание: для заданного подшипникового узла выбрать посадки наружного и внутреннего колец с обоснованием. Рассчитать эти посадки. Начертить условное изображение подшипникового узла, вала и корпуса с простановкой полей допусков, посадок, шероховатости и требований к погрешностям формы и расположения.
Исходные данные: подшипник №7310
Режим работы: тяжелый
Нагрузка: 12000 Н
Выбираем конструктивные размеры подшипника по ГОСТ 27365 – 87:
- внутренний диаметр подшипника;
– внешний диаметр подшипника;
- ширина подшипника;
– радиус закругления внутренний;
r1 =1.0 мм – радиус закругления внешний.
Определяем виды нагружения колец.
На основе анализа конструкции и работы узла устанавливаем, что внутреннее кольцо вращается с валом, следовательно оно испытывает циркуляционный вид нагружения, наружное кольцо установлено в стакане и не вращается, следовательно оно испытывает местный вид нагружения.
Для циркуляционного нагруженного кольца посадку выбираем расчетом интенсивности радиальной нагрузки [1, с. 221]
(3.1)
где
– расчетная радиальная реакция опоры, Н;
– рабочая ширина посадочного места, м;
– динамический коэффициент посадки, зависимый от характера нагрузки;
– коэффициент, учитывающий степень ослабления посадочного
места при полом вале и тонкостенном корпусе; ![]()
– коэффициент неравномерности распределения радиальной нагрузки,
.
![]()
Принимаем
, так как режим работы тяжелый;
, так как вал сплошной;
, так как имеется осевая нагрузка.
По таблице 17 [1, с. 222] выбираем поле допуска шейки вала под внутреннее кольцо – ![]()
Размер шейки вала: ![]()
Тогда посадка - 
Определим предельные размеры и натяги
![]()
![]()
![]()
![]()
![]()
![]()
Масштаб: 1мм=1мкм

Рисунок 3.1.1 – Схема расположения полей допусков размеров вала и отверстия в соединении ![]()
Посадку для местно нагруженного кольца выбираем по рекомендации [1, с. 233]. По таблице 18 принимаем поле допуска отверстия в стакане –
, т.к. в нашем случае режим работы тяжелый.
Размер отверстия под наружное кольцо ![]()
Посадка наружного кольца подшипника ![]()
Определим предельные размеры и зазоры
![]()
![]()
![]()
![]()
![]()
![]()
Масштаб: 1мм=1мкм

Рисунок 3.1.2 – Схема расположения полей допусков соединения ![]()
Шероховатость посадочных поверхностей определяем по таблице 3 ГОСТ 3325 – 85.
Шероховатость поверхности вала ![]()
Шероховатость поверхности отверстия ![]()
Отклонения от формы посадочных поверхностей определяем по таблице 4 ГОСТ 3325 – 85. Торцевое биение заплечиков вала по таблицам 5, 6 ГОСТ 3325 – 85.



Масштаб: 1мм=2мм
Рисунок 3.1.3 – Условное обозначение подшипникового узла и его деталей с простановкой размеров, полей допусков и посадок, шероховатости и требований к погрешностям формы и расположений поверхностей.
3.2 Допуски и посадки шпоночных соединений
Задание: для заданного на сборочном чертеже шпоночного соединения выбрать с обоснованием посадки шпонки с пазом вала и пазом ступицы. Рассчитать эти посадки, начертить поперечные сечения вала и ступицы со шпоночными пазами. Выбрать точность для непосадочных размеров шпоночных соединений.
Исходные данные: шпоночное соединение вала с барабаном.Соединение неподвижное, нереверсивное. По стандарту ГОСТ 23360 – 78 выбрать размеры элементов шпоночного соединения
[с. 4]
– ширина шпонки и паза;
- высота шпонки;
– глубина паза вала;
– глубина паза ступицы.
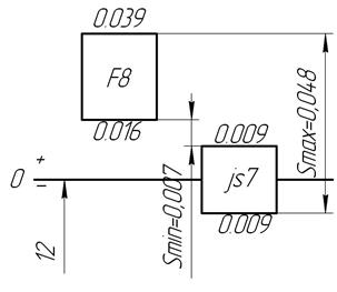
Поле допусков размеров шпоночного соединения выбираем по рекомендации [5, с. 57]. Принимаем поля допусков на ширину шпонки, паза вала и паза ступицы.
Поле допуска ширины шпонки - ![]()
Поле допуска ширины паза вала – Js![]()
Поле допуска ширины паза ступицы – ![]()
Посадка шпонки с пазом вала ![]()
Посадка шпонки с пазом ступицы ![]()
Определим предельные размеры, зазор и натяги соединений шпонки с пазом вала ![]()
![]()
![]()
![]()
![]()
![]()
![]()
Масштаб: 1мм=1мкм

Рисунок 3.2.1 – Схема расположения полей допусков в соединении ![]()
Определим предельные размеры, зазор и натяги соединений шпонки с пазом ступицы ![]()
![]()
![]()
![]()
![]()
![]()
![]()
Масштаб: 1мм=1мкм

Рисунок 3.2.2 – Схема расположения полей допусков в соединении ![]()
Посадку для соединения вал – втулка выбираем по [5, с. 57].
При передаче вращающего момента шпоночным соединениям применение посадки колеса на вал с зазором недопустимо, а посадки переходные нежелательны. Объясняется это тем, что если в соединении имеется зазор, то при вращении вала происходит обкатывание со скольжением поверхностей вала и отверстия колеса, которое приводит к их изнашиванию. Поэтому на посадочных поверхностях вала и отверстия колеса при передачи крутящего момента шпонкой следует создавать натяг, гарантирующий перекрытие стыка.
Поэтому принимаем посадку барабана на валу – ![]()
Определим предельные размеры и натяги для соединения ![]()
Определим предельные размеры и натяги
![]()
![]()
![]()
![]()
![]()
![]()
Масштаб: 1мм=1мкм

Рисунок 3.2.2 – Схема расположения полей допусков в соединении ![]()

Рисунок 3.2.3 – Поперечное сечение вала и втулки со шпоночным пазом
3.3 Допуски и посадки шлицевых соединений
Задание: для заданного шлицевого соединения выбрать по стандарту основные размеры. Назначить метод центрирования в зависимости от твердости поверхностей вала и отверстия, режима работы.Выбрать посадки по центрирующему диаметру и боковым сторонам шлица. Начертить поперечное сечение шлицевого вала и втулки и проставить размеры, шероховатость и погрешность формы и расположения.
Исходные данные: задано шлицевое соединение
твердость поверхностей
, неподвижное соединение с реверсивным движением.
По стандарту ГОСТ 1139 – 80 выбираем размеры шлицевого соединения
– наружный диаметр;
- внутренний диаметр;
- ширина шлица;
– число шлицов.
Принимаем центрирование по наружному диаметру ![]()
Посадки шлицевого соединения принимаем по рекомендации [2, с. 59] центрирующих
; боковых
.
![]()
Условное изображение при центрировании по наружному диаметру:
Отверстие: ![]()
вал - ![]()
Находим предельные размеры, зазоры и натяги, строим схему расположения полей допусков соединения ![]()
![]()
![]()
![]()
![]()
![]()
![]()
Масштаб: 1мм=1мкм

Рисунок 3.3.1 – Схема расположения полей допусков посадки ![]()
Находим предельные зазоры, натяги и размеры, строим схему расположения полей допусков соединения ![]()
![]()
![]()
![]()
![]()
![]()
![]()
Масштаб: 1мм=1мкм

Рисунок 3.3.2 – Схема расположения полей допуска посадки ![]()

Рисунок 3.3.3 – Схема сечения вала с простановкой размеров и требований по чистоте шероховатости и погрешности формы

Рисунок 3.3.4 – Изображение сечения ступицы с простановкой размеров и требований по чистоте шероховатости и погрешностей формы
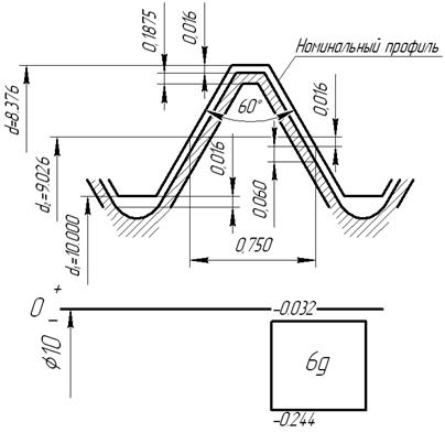
3.4 Взаимозаменяемость резьбовых соединений
Задание: для резьбового соединения на сборочном чертеже выбрать размер, шаг резьбы, наружный диаметр, средний диаметр, внутренний диаметр в соответствии со стандартами на резьбу. Назначить точность (степень точности) и поле допусков наружной и внутренней резьбы. Начертить профили резьбы в соответствии с принятой посадкой.
Для крепления крышки подшипника по рекомендациям [4,с.126] в зависимости от среднего диаметра подшипника D=110 мм для крепления крышки выбираем толщину стенки крышки σ=8 мм, диаметр винтов крепления крышки δ=10 мм; количество винтов n=6.
Анализируя конструкцию крепления крышки подшипника приходим к выводу, что резьбовое соединение выполняет малоответственную работу, т.к. крышка только предотвращает попадание инородных тел к подшипнику качения. Следовательно, принимаем класс точности резьбы грубый, шаг крупный и с учетом толщины стенки принимаем нормальную длину свинчивания.
По стандарту ГОСТ 8724 – 81 и по чертежу принимаем номинальный диаметр резьбы
.
По стандарту ГОСТ 24705 – 81 рассчитываем по формулам и уточняем по таблицам средний
и внутренний
диаметр.
Средний диаметр:
;
Внутренний диаметр:
![]()
По стандарту ГОСТ 16093 – 81 выбираем поле допусков и степень точности для наружной и внутренней резьбы. С учетом толщины стенки, прмнимаем длину свинчивания нормальную N=5-15 мм. Выбираем N=9мм.
Наружная резьба ![]()
![]()
Внутренняя резьба ![]()
![]()
Резьба ![]()
По стандарту ГОСТ 16093 – 81 выбираем предельные отклонения.
Внутренняя резьба ![]()
средний диаметр
![]()
наружный диаметр
![]()
внутренний диаметр
![]()
По стандарту ГОСТ 16093-81 выписываем предельные отклонения:
для внутренней резьбы
EI=0
По таблице 5 с.5-6 определяем допуск TD1=0.375 мм; TD2=0,224 мм.
Находим верхнее отклонение:
ESD1=EI+ TD1=0.375 мм
ESD2=EI+ TD2=0,224 мм
По среднему диаметру
D2=9.026-7H=9.026![]()
По внутреннему диаметру
D1=8.376-7H=8.376![]()
Для наружной резьбы ![]()
es=-0.032 мм
По таблице 5 с.5-6 определяем допуск Td1=0.375 мм; Td2=0,170 мм
Находим нижнее отклонение:
eid1=es- Td1=-0.032-0.375= -0.407 мм
eid2=es- Td2=-0.032-0.170= -0.202 мм
По среднему диаметру
d2=9.026-
=9.026![]()
По наружному диаметру
d=8.376-![]()
Строим схему расположения полей допусков резьбы по среднему диаметру.

Рисунок 3.4.1 – Схема расположения полей допусков резьбы по среднему диаметру.

Рисунок 3.4.2 – Положение полей допусков наружной резьбы с основным отклонением 8g.

Рисунок 3.4.3 – Положение полей допусков внутренней резьбы с основным отклонением 7Н.
4 Расчет размерной цепи
Задание: для заданной размерами цепи сформулировать задачу, решаемую расчетом заданной размерной цепи, расчет произвести двумя методами: максимум – минимум и вероятностным.
Исходные данные: замыкающее звено
- зазор между верхним подшипником качения и крышкой.
Расчетом данной размерной цепи решается прямая задача, при которой по заданному значению замыкающего звена определяется точность составляющих звеньев.
4.1 Расчет методом максимум – минимум
По сборочному чертежу выявляем составляющие звенья размерной цепи.
Замыкающее звено
- зазор между верхним подшипником качения и крышкой.
- ширина кольца подшипника;
- ширина дистанционного кольца;
- ширина ступицы червячного колеса;
- ширина дистанционного кольца;
- ширина кольца подшипника;
– высота буртика нижней крышки;
- толщина прокладки верхней крышки;
– ширина корпуса;
- толщина прокладки нижней крышки;
- высота буртика верхней крышки;
– замыкающее звено.
– увеличивающие звенья;
- уменьшающие звенья.
Составим схему размерной цепи.

Рисунок 4.1.1 – Схема размерной цепи.
Проверяем правильность составления схемы размерной цепи по основному уравнению
(4.1)
где
- номинальное значение замыкающего звена;
- сумма номинальных значений увеличивающих звеньев;
- сумма номинальных значений уменьшающих звеньев;
– число увеличивающих звеньев;
– всего звеньев.
![]()
![]()
![]()
Равенство соблюдается, значит схема размерной цепи составлена правильно.
Определим коэффициент точности для составляющих звеньев
(4.2)
где
- допуск замыкающего звена;
- сумма допусков звеньев, предельные отклонения которых известны;
- сумма единиц допусков звеньев с неизвестными допусками;
– число звеньев, для которых нужно определить точность.
![]()
По таблице 13 [1, с. 182] определим квалитет – принимаем точность составляющих размеров по IТ 10, для которого ![]()
По таблице предельных отклонений определяем допуски и результаты расчетов сводим в таблицу.
Таблица 4.1 – Результаты расчета размерной цепи методом максимум-минимум.
| Обозначение звеньев | Номинальный размер, мм | Квалитет точности | Допуск, мм | Номинальный размер, мм | |
| ES; es | EI; ei | ||||
| 1 | 2 | 3 | 4 | 5 | 6 |
| 23 | - | 0.120 | 0 | -0.120 | |
| 8 | IТ 10 | 0.058 | 0 | -0.058 | |
| 98 | IТ 10 | 0.127 | -0.038 | -0.156 | |
| 20 | IТ 10 | 0.084 | 0 | -0.084 | |
| 23 | - | 0.120 | 0 | -0.120 | |
| 8 | IТ 10 | 0.058 | +0.029 | -0.029 | |
| 1 | - | 0.200 | 0 | -0.200 | |
| 188 | IТ 10 | 0.185 | 0 | -0.185 | |
| 1 | - | 0.200 | 0 | -0.200 | |
| 6 | IТ 10 | 0.048 | +0.024 | -0.024 | |
| 4 | - | 1.200 | +0.600 | -0.600 | |
Определим предельные отклонения на размеры составляющих звеньев по правилу:
а) если размер охватываемый, то предельные отклонения назначаются как для вала;
б) если размер охватывающий, то предельные отклонения назначаются для основного отверстия;
в) если размер явно нельзя отнести к первому или второму случаю, то допуск делится пополам ![]()
Проверяем правильность назначения допусков по условию
(4.3)
![]()
![]()
Условие (4.3) не выполняется, по этому вводим корректирующие звено
, так как его легче изготовить. Предельные отклонения для этого звена определяем по формуле 93 [1, с. 238] для увеличивающего звена.
![]()
![]()
![]()
![]()
![]()
Получим
.
Проводим повторную проверку по формуле (4.3).
![]()
![]()
Условие выполняется, расчет выполнен правильно.
4.2 Вероятностный метод
При расчете размерных цепей методом максимум – минимум исходим из того, что даже при самом неблагоприятном сочетании размеров звеньев (например, когда все увеличивающие звенья будут наименьшими) замыкающие звено должно находиться в пределах поля допуска. Этим достигается полная (или абсолютная) взаимозаменяемость.
В крупносерийном и массовом производстве при расчете размерных цепей необходимо использовать основные положения теории вероятностей. Размер замыкающего звена можно рассматривать как сложное случайное событие, зависящее от рода независимых простых случайных событий размеров составляющих звеньев.
Определим расчетный коэффициент точности для составляющих звеньев размерной цепи.

где
- коэффициент риска замыкающего звена, определяющий вероятность появления брака
![]()
где
– коэффициент риска составляющих звеньев;
- коэффициент риска замыкающего звена.
Для закона нормального распределения
![]()

Принимаем точность составляющих звеньев по УТ 13, для которого
По таблице предельных отклонений определяем допуски, и результаты расчетов сводим в таблицу.
Таблица 4.2 – Результаты расчета размерной цепи вероятностным методом.
| Обозначение звеньев | Номинальный размер, мм | Квалитет точности | Допуск, мм | Номинальный размер, мм | |
| ES; es | EI; ei | ||||
| 1 | 2 | 3 | 4 | 5 | 6 |
| 23 | - | 0.120 | 0 | -0.120 | |
| 8 | IТ 13 | 0,220 | 0 | -0.360 | |
| 98 | IТ 13 | 0,540 | +0,270 | -0,270 | |
| 20 | IТ 13 | 0,330 | 0 | -0,520 | |
| 23 | - | 0.120 | 0 | -0.120 | |
| 8 | IТ 13 | 0,220 | +0,110 | -0.110 | |
| 1 | - | 0.200 | 0 | -0.200 | |
| 188 | IТ 13 | 0,720 | 0 | -0.185 | |
| 1 | - | 0.200 | 0 | -0.200 | |
| 6 | IТ 13 | 0,180 | +0,090 | -0.090 | |
| 4 | - | 1.200 | +0.600 | -0.600 | |
Проводим проверку правильности назначения допусков по условию 99 [1, с. 244]

=1,076
![]()
Условие выполняется, задача решена правильно.
Литература
1. Серый И. А. Взаимозаменяемость, стандартизация и технические изменения - М.: Колос, 1987 г.
2. Дунаев П. Ф., Леликов О. П. Конструирование узлов и деталей машин – М.: Высшая школа, 1984г.
3. Дунаев П. Ф., Леликов О. П., Варламова Л. П. Допуски и посадки. Обоснование выбора. Учебное пособие – М.: Высшая школа, 1984 г.
4. Р.Д. 50-38-86 Выбор универсальных средств измерения линейных размеров до 500 мм. Методические указания М.: Издательство стандартов, 1987г.
Похожие рефераты:
Размерный анализ сборочной единицы (тихоходного вала редуктора)
Основы проектирования и конструирования
Расчет и выбор посадок для различных соединений
Расчёт на прочность закрытой цилиндрической одноступенчатой передачи и её проектирование
Модернизация двигателя мощностью 440 квт с целью повышения их технико-экономических показателей
Расчет редуктора привода стружкоуборочного конвейера
Технологический процесс изготовления вала насоса
Ремонт и обслуживание скважин и оборудования для бурения
Выбор и расчет посадок для гладких соединений c расчетом размерной цепи
Анализ качества изделия машиностроения
Проектирование мотор-редуктора
Ремонт и монтаж центробежных насосов по перекачке нефти и газа
Установка для статической балансировки роторов методом прямого измерения статического момента