| Похожие рефераты | Скачать .docx |
Дипломная работа: Электрическое оборудование ремонтной мастерской с разработкой устройства ограничения холостого хода сварочного трансформатора
МИНИСТЕРСТВО СЕЛЬСКОГО ХОЗЯЙСТВА И ПРОДОВОЛЬСТВИЯ РЕСПУБЛИКИ БЕЛАРУСЬ
Учреждение образования «Буда-Кошелевский государственный аграрно-технический колледж»
Рассмотрено Утверждаю
на заседании цикловой комиссии Заместитель директора по учебной ______________________________ работе__________В. А. Малашенко
Протокол № ___ от«____»____200_г. «_____»_________________200__г.
Председатель __________________
(Ф.И.О.)
на дипломное проектирование
учащемуся Никончуку Виталию Анатольевичу
Тема проекта: «Электрическое оборудование ремонтной мастерской на 25 тракторов РСУП «Эксбаза» Криничный» Мозырского района с разработкой устройства ограничения холостого хода сварочного трансформатора»
Приказ № ______ от «_____»______________200__г.
Специальность 2-74 06 31-01, «Энергетическое обеспечение сельскохозяйственного производства (электроэнергетика)»
Исходные данные для проектирования: Типовой проект, Характеристика хозяйства, нормативно-справочные материалы (СНиП, ПУЭ, СНБ, СТБ и др.), технологические параметры вентиляционных установок.
| Расчетно-пояснительная записка (перечень подлежащих разработке вопросов) | Срок выполнения |
| Введение. | |
| 1. Общая часть | |
| 1.1.Обоснование темы дипломного проекта | |
| 1.2. Характеристика хозяйства | |
| 1.3. Исходные данные для проектирования. | |
| 1.4. Характеристика объекта электрификации | |
| 1.5. Описание технологического процесса. | |
| 2.Расчетно-технологическая часть. | |
| 2.1. Расчет и выбор технологического оборудования | |
| 2.2. Расчет и выбор электродвигателей | |
| 2.3. Расчет освещения | |
| 2.4. Расчет и выбор аппаратуры управление и защиты. | |
| 2.5.Выбор компоновка и расчет внутренних проводок. | |
| 2.5.1Выбор распределительных устройств. | |
| 2.5.2Выбор марок проводов кабелей и способ их прокладки. | |
| 2.5.3.Электрический расчет проводок. | |
| 2.6.Построение графика электрических нагрузок и определение мощности на вводе. | |
| 3. Специальная часть | |
| 3.1. Разработка схемы автоматизации кормораздатчика. | |
| 3.1.1. Общие сведения и технологические требования к автоматизированной установке. | |
| 3.1.2.Разработка функциональной схемы автоматизации | |
| 3.1.3.Разработка электрической принципиальной схемы автоматизации | |
| 3.2. Разработка и выбор элементов схемы автоматизации | |
| 3.4. Разработка шкафа управления | |
| 4. Безопасность жизнедеятельности | |
| 4.1. Требования безопасности при монтаже электрооборудования в свинарнике для поросят отъемышей | |
| 4.1. Требования безопасности при эксплуатации электрооборудования в свинарнике для поросят отъемышей | |
| 4.3. Пожарная безопасность | |
| 4.4. Безопасность жизнедеятельности в чрезвычайных экологических условий | |
| 5. Экономическая часть | |
| 5.1. Разработка мероприятий по экономии электрической энергии | |
| 5.2. Разработка показателей экономической эффективности автоматизации кормораздачи | |
| Заключение |
Графическая часть проекта (перечень обязательных чертежей, схем)
Лист 1 План расположения электрооборудования и прокладки осветительной сети
Лист 2 План расположения электрооборудования и прокладки силовой сети
Лист 3 Электрическая принципиальная схема распределительной сети
Лист 4 Электрическая принципиальная схема выпрямителя ВД-306 М1
Дата выдачи задания учащемуся «___»________200__г.
Дата окончания проектирования«___»______200__г.
Руководитель проекта ____________________В.А. Блинцов
(подпись)
Проектант ______________________________В.А. Никончук
(подпись)
Содержание
Введение
1. Общая часть
1.1 Обоснование темы дипломного проекта
1.2 Характеристика хозяйства
1.3 Исходные данные для проектирования
1.4 Характеристика объекта электрификации
1.5 Описание технологического процесса
2. Расчётно-технологическая часть
2.1 Расчёт и выбор технологического оборудования
2.2 Расчёт и выбор электродвигателей
2.3 Расчёт освещения
2.4 Расчёт и выбор аппаратуры управления и защиты
2.5 Выбор, компоновка и расчёт внутренних проводок
2.5.1 Выбор распределительных устройств
2.5.2 Выбор марок проводов способов прокладки
2.5.3 Электрический расчёт проводок
2.6 Построение графика электрических нагрузок и определение мощности на вводе
3. Специальная часть
3.1 Обоснование вопроса автоматизации
3.2 Описание процесса и технологические требования
3.3 Выбор элементов схем автоматизации
4. Безопасность жизнедеятельности
4.1 Требования безопасности при эксплуатации электрооборудования в машинотракторном парке
4.2 Пожарная безопасность
4.3 Безопасность жизнедеятельности в чрезвычайных экологических условиях
5. Экономическая часть
5.1 Разработка мероприятий по экономии электрической энергии
5.2 Разработка показателей экономической эффективности автоматизации сварочного трансформатора
Заключение
Введение
Важную роль в экономике Беларуси занимает сельское хозяйство, поскольку на него возлагается снабжение населения пищевой продукцией, обеспечение сырьем хозяйств и предприятий.
Для выгодного развития отрасли в целом необходимо в каждом хозяйстве и предприятии добиться экономически целесообразного использования средств производства. Однако, из главных задач, стоящих на современном этапе развития повышение экономического образования широких масс трудящихся, рост их инициативы, активности в управлении производством. Чтобы обеспечить эффективное использование электрооборудования и рациональное применение электрической энергии, необходимо уметь пользоваться методами технических расчетов в планировании, управлении и анализе хозяйственной деятельности в целом, а также отдельных его звеньев, вспомогательных цехов.
Применение электроэнергии в сельскохозяйственном производстве снижает трудоемкость работ, повышает производительность труда.
Основная часть электроэнергии преобразуется в механическую при использовании электроприводов сельскохозяйственных машин и орудия. Широко она применяется на очистке и сортировке семян, при защите их от болезнетворных микробов, для стимулирования всхожести семян, роста и развития растений, для сушки травы, производства травяной муки, гранул, брикетов, для электрогидравлической обработки соломы и так далее.
Электрификация производства служит основой для изменения характера сельскохозяйственного труда.
1. Общая часть
1.1 Обоснование темы дипломного проекта
Сельское хозяйство республики Беларусь оснащено современной техникой, позволяющей механизировать основные технологические процессы сельскохозяйственного производства. Сельскохозяйственные предприятия используют большое число тракторов, автомобилей, комбайнов и других сельскохозяйственных машин, требующих в процессе своей эксплуатации систематического выполнения различных работ по техническому обслуживанию и ремонту. Вместе с тем большой объем работ осуществляется и собственными силами хозяйства в мастерских сельскохозяйственных предприятий. Это объясняется необходимостью проведения на месте различных плановых видов технических обслуживаний и простых видов ремонта, внеплановых аварийных ремонтов машин. Во многих случаях выполнение такой местной работы в специализированных мастерских с транспортировкой машины невозможно в силу срочной необходимости выполнения работы или экономически нецелесообразно.
Таким образом, несмотря на развитую сеть предприятий сельхозтехники, ремонтные мастерские хозяйств играют важную роль в поддержании машинотракторного парка в работоспособном состоянии. Существенным обстоятельством является и невозможность выполнения объема ремонтных работ в осенне–зимний период работников сельскохозяйственного производства, не занятых сельскохозяйственными работами. Это повышает экономичность использования рабочих и способствует стабилизации состава кадров в хозяйстве.
Хорошо оснащенные современным оборудованием ремонтные мастерские, обеспеченные квалифицированными кадрами рабочих ремонтных специальностей, создают благоприятные условия для бесперебойной работы машин в хозяйстве.
1.2 Характеристика хозяйства
РСУП «Эксбаза Криничный» расположен в юго–восточной части Мозырского района. От районного центра Мозырь хозяйство находится на расстоянии 7 километров и связано с ним дорогой с асфальтовым покрытием, от областного центра Гомель находиться на расстоянии 120 километров. Хозяйство организовано в 1972 году. Хозяйственная деятельность предприятия направлена на получение прибыли для удовлетворения социальных и экономических интересов членов трудового коллектива предприятия и интересов государства. РСУП «Эксбаза Криничный» специализируется на производстве элитных семян зерновых, зернобобовых, многолетних трав, картофеля с развитием молочного скотоводства и свиноводства.
По совокупности природно-климатических условий территория хозяйства находиться в центральной агроклиматической зоне, для которой характерен умеренный климат, который благоприятен для выращивания сельскохозяйственных культур. Среднегодовая температура воздуха составляет +7,3оС , среднеминимальная - 6,3оС . Самым тёплым месяцем является – июль, холодным – январь.
Обеспечение хозяйства материально-техническими средствами осуществляется через торгово-проводящую сеть территориальных органов сельхозтехники, состоящей из множества снабжающих баз, складов, обменных пунктов и специализированных магазинов.
Важным показателем работоспособности хозяйства является её земельные угодия, которые различают по составу и структуре. Земельный фонд и его использование в 2006 / 2007 годах отобразим в таблице 1.
Таблица 1 – Состав землепользования хозяйства
| Составляющие земельного фонда | Площадь, га | |
| 2006г. | 2007г. | |
| Общеземельная площадь в том числе: | 2993 | 2993 |
| пашня | 1953 | 1953 |
| посевная площадь | 1972 | 1972 |
| пастбища | 698 | 698 |
| сельскохозяйственные угодия | 2280 | 2280 |
Проанализировав данные таблицы видно, что площадь сельхозугодий как и общая земельная площадь в хозяйстве в 2007 году относительно 2006 года осталась без изменений.
Для оценки развития растениеводства составим таблицу 2, в которой отобразим посевные площади и урожайность сельскохозяйственных культур, возделываемых в хозяйстве.
Таблица 2 – Показатели растениеводства.
| Культуры | Площадь, га | Урожайность, ц / га |
| Зерно | 400 | 30,5 |
| Картофель | 50 | 246 |
| Кукуруза на корм | 293 | 231 |
| Кукуруза на семена | 447 | 35,7 |
1.3 Исходные данные для проектирования
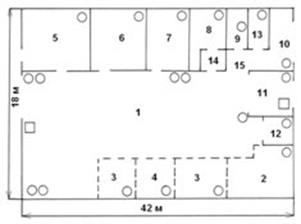
Здание мастерской панельное, двухэтажное: на первом этаже размещены производственные участки, на втором – бытовые помещения.
Степень огнестойкости здания вторая, перекрытие и потолок выполнены из железобетонных плит. Пол здания забетонирован, стены и потолок покрыты побелкой. Высота здания ремонтной мастерской на 25 тракторов составляет 7,2 метра.
Таблица 3 – Экспликация помещений
| № п/п | Наименование |
| 1 | Участок ремонтно-монтажный |
| 2 | Участок мойки деталей и агрегатов |
| 3 | Участок ремонта агрегатов |
| 4 | Участок шиномонтажный |
| 5 | Участок кузнечно-сварочный |
| 6 | Участок слесарно-механический |
| 7 | Участок проверки и регулировки автотракторного оборудования, ремонта и зарядки аккумуляторов |
| 8 | Участок проверки и регулировки топливной аппаратуры |
| 9 | Инструментально-раздаточная кладовая |
| 10 | Участок диагностики и ТО |
| 11 | Участок наружной мойки |
| 12 | Помещение для компрессора |
| 13 | Венткамера |
| 14 | Тамбур-шлюз |
| 15 | Коридор |
| 16 | Коридор |
| 17 | Вестибюль |
| 18 | Мужской гардероб уличной, домашней и специальной одежды |
| 19 | Лестничная клетка |
| 20 | Душевая |
| 21 | Мужская уборная и курительная |
| 22 | Кладовая уборная инвентаря |
| 23 | Индивидуальный тепловой пункт |
| 24 | Электрощитовая |
| 25 | Кабинет зав. мастерской и мастера |
| 26 | Коридор |
| 27 | Тамбур |
| 28 | Венткамера |
| 29 | Комната приёма пищи |
| 30 | Учебный класс по ТБ и красный уголок |
| 31 | Коридор |
1.4 Характеристика объекта электрификации
Центральная ремонтная мастерская для хозяйств с парком 25 тракторов одноэтажная. Шаг колоны 6 метров. В зависимости от климатических условий и экономической целесообразности может быть выбран проект со зданиями, имеющими кирпичные или панельные стены. Проектирование мастерской производилось исходя из трудозатрат, необходимых для выполнения годовой производительной программы и технического обслуживания.
Мастерская предназначена для проведения текущего ремонта и технического обслуживания тракторов, комбайнов, автомобилей, сельскохозяйственной техники.
Текущий ремонт машины включает: наружную очистку, разборку, дефектовку, комплектовку, ремонт сборочных единиц и деталей, сборку, обкатку и окраску.
Производственные участки мастерской расположены на первом этаже. На втором, встроенном этаже расположены комнаты приема пищи, мастеров, кабинет заведующего мастерской, учебный класс, бухгалтерия, бытовые помещения и вентиляционные камеры.
1.5 Описание технологического процесса
Машины, поступающие на участки технического обслуживания и ремонтно–монтажный в теплое время года должны пройти предварительную очистку и мойку на соответствующих площадках.
В холодное время года проводится очистка от возможных значительных скоплений наледи и снега на площадке ремонтно–обслуживающей базы и углубленная мойка на участке ремонтной мастерской.
Основные работы по техническому обслуживанию и ремонту, связанные с разборочно–сборочными операциями на полносборных машинах, выполняются на пяти универсальных тупиковых постах ремонтно–монтажного участка.
Работы по демонтажу и монтажу шин, ремонту камер, ремонту и зарядке аккумуляторных батарей, проверке и регулировке двигателей выполняются на аналогичных участках мастерской.
Технический ремонт тракторов должен выполняться агрегатным методом, посредством замены непригодных и дальнейшей эксплуатации агрегатов, узлов и деталей на новые или заранее отремонтированные из обменного фонда.
2. Расчетно-технологическая часть
2.1 Выбор технологического оборудования
Вентиляция в помещении предназначена для создания микроклимата в рабочем помещении. Микроклимат как совокупность внешней среды играет огромную роль в технологическом процессе. Наибольшее влияние на работоспособность человека, а значит на другие экономические показатели, вместе с освещённостью, уровнем шума является состав воздуха и скорость его движения в помещении. Выбираем вентилятор для слесарно-механического участка.
Определяем производимоспособность вентилятора:
Q = K6 • V(),
где K6 – коэффициент воздухообмена (3,5);
V – объём помещения, м2 .
V = A * B * H(),
где А - длина помещения, 6 м;
В – ширина помещения, 5,65 м;
Н – высота помещения, 4 м.
V = 6 * 5,65 * 4 = 135,6 м3
Q = 3,5 • 135,6 = 474,6
Определяем напор вентилятора, кг / м2 :
Н = Ндин. + Нст. ()
Ввиду отсутствия параметров воздуховода динамическая составляющая напора не рассчитывается:
Ндин
=
; ()
гдеP – плотность воздуха, 1,29 км / м3
V – скорость движения воздуха в помещении, 10 м / с
Ндин
=
= 64,5 Па
Выбираем стандартный вентилятор типа ВО – Ф – 7,1 А
Перемещение груза внутри предприятия в пределах отдельных подразделений, между отдельными объектами на территории мастерской процесс очень трудоёмкий.
Мощность необходимая для подъёма груза, кВт:
Рп = (Gн + Gп ) * V1 ;()
где Gн – номинальная масса поднимаемого груза, кН;
Gп – масса подвески, кН;
V1 – скорость подъёма груза,3,133 м / с.
Мощность необходимая для перемещения груза, кВт:
Рпер.
=
; ()
где
– коэффициент трения рёбер колеса монорельса, 1,25;
- собственная масса механизма;
- номинальная масса груза;
- коэффициент трения подшипников, 0,07;
- радиус шейки вала, м;
- коэффициент трения качения;
- скорость передвижения механизма;
- радиус колеса, м
Рпер.
=
= 0,776 кВт
Принимаем электросталь ТЭЗ – 511
Остальное технологическое оборудование центральной ремонтной мастерской на 25 тракторов приводим в таблице __.
Таблица __ - Технологическое оборудование мастерской
| Технологическое оборудование | Марка машины | Мощность, кВт | Частота вращения мин-1 |
Количество | |
| 1 | 2 | 3 | 4 | 5 | 6 |
| Машина для наружной мойки | 0,4-22616 | 5 | 1430 | 1 | 12/78 |
| Электроинструмент 3-х фазный | - | 1,0 | 1395 | 3 | 4,55 |
| Универсальный стенд для разборки и сборки двигателей | - | 0,9 | 1395 | 1 | 2,3/10,4 |
| Станок для шлифовки фасок | ИКБР-10В | 0,39 | 1360 | 1 | 1,1/3,8 |
| Задвижка | 30490 Вбр | 0,18 | 2730 | 1 | 0,5/2,5 |
| Установка моечная | ОМ 1366 | 8,5 | 1440 | 1 | 16,6/116,6 |
| Пресс гидравлический | ОКС 1671 | 3 | -- | 1 | 16,5 / 45,5 |
| Станок вертикально - сверлильный | 24-135-1 | 4,45 | 1430 | 1 | 10,1 / 57,5 |
| Электровулканизационный аппарат | 6140 | 0,97 | -- | 1 | 4,4 |
| Установка для замочки ножей режущих аппаратов | ОР-3562 | 0,5 | 2820 | 1 | 2,27 |
| Приспособление для обкатки молотилки | -- | 11 | 1440 | 1 | 22,2 / 136,6 |
| Станок вертикально - сверлильный | 2Р-112П | 0,6 | 1430 | 1 | 1,7 / 12 |
| Отопительный агрегат | -- | 0,75 | -- | 1 | 1,7 / 9,35 |
| Компрессор воздушный | ГСВ-06112 | 5,5 | 1430 | 1 | 10,6 / 74,2 |
| Трансформатор сварочный | ТД-102УХЛО2 | 3,3 | -- | 1 | 10,6 / 74,2 |
| Выпрямитель сварочный | ВД-20193 | 13 | -- | 1 | 23,1 |
| Станок точильно-шлифовальный | 3К634 | 5,3 | 1440 | 1 | 11 / 7,7 |
| Агрегат для отсоса пыли | ПА2-12М | 1,5 | 1395 | 1 | 3,3 / 23,2 |
| Станок токарно-комбинированный | 1695 | 6,42 | 1440 | 1 | 19,8 / 40,1 |
| Станок точильно-шлифовальный | 3К631 | 0,75 | 1395 | 1 | 1,7 / 9,7 |
| Стенд для испытания топливной аппаратуры | КН-22203 | 4,5 | 1430 | 1 | 9,6 / 18,8 |
| Стенд для испытания масляных насосов | ОР-5287 | 3,4 | 1410 | 1 | 8,6 / 42,2 |
| Стенд для разборки и сборки форсунок | КН5728М | 3 | 1410 | 1 | 6,5 / 45,5 |
2.2 Расчет и выбор электродвигателей
Большая часть оборудования мастерской приводится в действие с помощью асинхронных электродвигателей с короткозамкнутым ротором.
Электродвигатели к рабочим машинам выбирают по характеру и значению нагрузки,по частоте вращения.
Рассчитываем и выбираем электродвигатель вентилятора слесарно-технического участка.
Определяем расчетную мощность электродвигателя.
;
где Qв - подача вентилятора,![]()
Н- расчетное значение давления, мПа;
nв - коэффициент полезного действия вентилятора ;
nп – коэффициент полезного действия передачи.
=1,4 кВт
Расчетная мощность электродвигателя для вентилятора, по которой выбирают электродвигатель, кВт:
Р = Кз • Рр
где Кз –коэффициент запаса.
Р=1,5• 1,6=2,4кВт
Выбираем электродвигатель АИР 1005443 с номинальными данными:Рн=3кВт; Iн=6,7А; Кi=7.0; n=1410ми![]()
Выбор электродвигателя для ТЭЗ-511.
Определяем мощность электродвигателя необходимую для подъема груза, кВт:
Р=Рпер / nп ;
Р= 4,48 / 0,98 =4,57кВт
Выбираем электродвигатель АИР13254У2 повторно-кратковременного режима работы с номинальной продолжительностью включения ПВ-25%; Рн
=4,5кВт; Iн
=10,4А; n=
;
;nп
=0,87.
Определяем мощность электродвигателя необходимую для перемещения груза, кВт:
Р=Рпер / nп ;
Р=![]()
Выбираем электродвигатель АИР80А4У2 Повторно-кратковременного режима работы: ПВ=25%; Рн=1,1кВт; Iн=2,75А;
=0,81 ;nп=0,75.
Перечень остального силового оборудования сводим в таблицу __

2.3 Расчет освещения
Задача светотехнического расчета осветительной установки – определить потребляемую мощность источников света для обеспечения заданных видения. В результате расчета определяют требующийся световой поток светильников, по которому в справочных таблицах находят мощность ближайшей стандартной лампы требующегося типа.
Произведем расчет освящения основного помещения методом коэффициента использования светового потока
Основным помещением является участок ремонтно-монтажный с геометрическими размерами: длина А=42 м, ширина В=18 м, высота Н=7,2м.
Выбираем источник света - люминесцентную лампу, вид освящения –рабочая система освящения- общая равномерная.
Определяем высоту подвеса, м:
h=H-hc – hp;
где Н-высота помещения, м ;
hc - высота свеса светильника, м;
hp - высота рабочей поверхности, м;
h=7,2-0-0=7,2 м
Из таблицы __ выбираем норму освещенности для ремонтно-монтажного участка: Е=200пк.
Выбираем светильник типа ПСП.
Светотехнически наиболее выгодное расстояние между светильниками Лс=0,83
Определяем расстояние между светильниками, м:
L=Лс• h;
L=0.83• 7.2=6м
Определяем расстояние от стены до светильника, м:
Lст
=![]()
Lст
=![]()
Определяем количество светильников в помещении:
h=![]()
h=![]()
Определяем индекс помещения:
I=
;
I=
;
Применяем коэффициент запаса для газоразрядных ламп равным К3=1,3.
Из таблицы 12.3/7/ с учетом состояния стен и потолка выбираем коэффициент отражения стен и потолка:Рст=10%; Рп=30%;
Из таблицы 26.2/7/выбираем коэффициент использования светового потока:V=42%.
Определяем общее количество светильников:
N= ![]()
где Z- коэффициент минимальной освещенности, Z=1.1;
S-площадь помещения,
.
Фн- номинальный световой поток лампы, лм.(для лампы ЛТБ-80,Фн=470лм.(таблица2/7/));
nп- количество ламп и светильнике.
N=![]()
Применяем N=54 светильника.
Определяем количество светильников в одном ряду:
m=
;
m=
;
Определяем установочную мощность освещения, кВт:
P уст
.= Pн.• N• nп
•
;
где Рн – номинальная мощность лампы, Вт.
Руст
.=80• 54• 2•
=8,64 кВт.
Произведем расчет освещения методом удельной мощности для помещения компрессора имеющего геометрические размеры: длина А=4 м.; ширина В=3м.; высота Н=4м.
Выбираем источник света – лампа накаливания; вид освещения – рабочее; система освещения - общая равномерная.
Из таблицы 3/2/ выберем норму освещения для помещения компрессора:Е=50лк.
выбираем светильник НСП.
По формуле 10 определяем высоту подвеса светильника, м.
H=4-0.5-0=3.5 м.
По формуле 11 определяем расстояние между светильниками, м.
L=0.6• 3.5=2.1 м.
По формуле 12 определяем расстояние от стены до светильника, м.:
Lст
.=
м.
По формуле 13 определяем количество рядов светильников в помещении.
N=![]()
Применяем 1 ряд светильников.
Определяем количество светильников в ряду:
m=![]()
m=![]()
Применяем m=2
Определяем количество светильников в помещении:
N=m• n;
N=2• 1=2.
Учитывая тип светильника,площадь помещения,высоту подвеса и освещенность из таблицы 26,3/6/ выбираем значение удельной мощности освещения:
Р уд
.=33,2 Вт/
/
Определяем требующуюся мощность освещения, Вт.:
Р тр .= Р уд.• S
S-площадь помещения, м.
Р тр .=33,2• 12=398,4 Вт.
Определяем мощность лампы светильника, Вт.:
Pn
=
;
Pn
=
=199.2 Вт.
Выбираем стандартную лампу из условия:
Pn =/0.9…1.2/Pn;
P min =0.9• 199.2=179.3 Вт.
P max =1.2• 199.2=239.04 Вт.
Применяем лампу Б 213-223-200 номинальной мощностью Рn=200 Вт.
Определяем установленную мощность освещения, кВт.:
Р уст .=Pn• N ;
Р уст
.=200• 2•
кВт.
Дальнейший расчет ведем аналогично. Данные расчета этих и остальных помещений заносим в таблицу __.





2.4 Расчет и выбор аппаратуры управления и защиты
Электрическими аппаратами пуска, управления и защиты называются электротехнические устройства и механизмы, предназначенные для включения и отключения, определенного режима работы и для защиты электроприборов и электрических цепей. Аппарат может выполнять одну или несколько функций.
Производим расчет и выбор аппаратуры управления и защиты для вентилятора слесарно-механического участка Принимаем следующую схему электродвигателя:

Рисунок __ - Схема подключения электродвигателя вентилятора.
Выбираем автоматический выключатель для двигателя вентилятора.
Автоматический выключатель выбираем из условия.
Номинальное напряжение автоматического выключателя должно быть больше или равно напряжению сети.
Uн.авт.
н.с;
500Вт.
380Вт.
Номинальный ток автоматического выключателя должен быть больше или равен номинального тока двигателя.
Iн.авт.
Iн.дв.
10А
6,7А
Номинальный ток теплового расцепителя должен быть равен или больше номинального тока двигателя.
Iн.р .≥Iн. дв .
8,0А
6,7А
Определяем ток электромагнитного расцепителя:
Iэм.р .=1.25• Iп.А
Iн .=Ki• Iп.=7.0• 6.7=46.9A
Iэм.р .=1,25• 49,6=58,6А
Определяем ток срабатывания электромагнитного расцепителя:
Iср.к .=K• Iн.р.
Iср.к .=12• 8.0=96A
К- Кратность силы тока срабатывания.
Проверяем выбранный автомат на возможность ложного срабатывания при пуске.
Iср.к .≥Iэ.р .
96 A
58,6 A
Выбираем автоматический выключатель типа АЕ2016Р. Iп.=10A; Uп.=500B.
Выбираем машинный пускатель для двигателя вентилятора.
Магнитный пускатель выбираем из условия:
Iн.п ≥ Iп.дв ;
10А
6,7А
Принимаем магнитный пускатель типа ПМЛ-122002.
Проверяем выбранный магнитный пускатель по условию коммутации в режиме гасимых пусков и остановок.
-по расчетному току коммутации:
Iр.ком
. =
; A
Iр.ком
. =
= 7,8 А
Так как ток расчетный коммутации не превысил номинальный ток пускателя, тогда принимаем пускатель типа ПМЛ-122002,Iп=10А.
Выбираем тепловое реле для двигателя вентилятора.
Тепловое реле выбираем из условия:
Iт.р
Iп.дв.
25А
6,7А
где Iт.р.- ток теплового расцепителя.
Определяем значение коэффициента постройки теплового реле:
К =
;
К =
= 0,268
Принимаем тепловое реле типа РТП-101204 с пределами регулирования силы тока несрабатывания 5,5…8,0А.
Выбор аппаратуры управления и защиты для двигателей кран-балки.

Рисунок __ – Схема подключения электродвигателей кран-балки.
Выбираем автоматический выключатель для двигателей кран-балки.
Автоматический выключатель выбираем из условия:
Uн.авт . ≥ Uн.с
500В
380В
- номинальный ток автоматического выключателя должен быть больше или равен номинального тока двигателя:
Iн.авт
.![]()
Iп.дв
. =
А
25А
10,4+1,15=11,15 А
- номинальный ток теплового расцепителя должен быть больше или равен номинального тока двигателя:
Iэм.р .= (Iпуск .+∑Iп.дв .); A
Iпуск = Iп.дв. • Ki;
Iпуск = 11,15 • 6=69А;
Iэм.р . = (69+11,15) =80,5 А
Определяем каталожный ток срабатывания электромагнитного расцепителя:
Iср.кат . = K• Iп.р.; А
Iср.кат . = 12• 12.5=150 A
Проверяем выбранный автоматический выключатель на возможность ложного срабатывания при пуске:
I
Iэм.р. (39)
150 А
80,5 А.
Выбираем автоматический выключатель типа АЕ2036Р, Iп= 25 А, Uп= 500 В.
Выбираем магнитный пускатель КН 1 для двигателя кран-балки.
Магнитный пускатель выбираем из условия:
Iн.п
.
Iп.дв
.; (40)
25А
10,4А
Принимаем магнитный пускатель типа ПМП-211002.Проверяем магнитный пускатель:
- по расчетному току коммутации:
Iр.ком
. =
;А (41)
Iр.ком
.=
7,8 А
Так как расчетный ток коммутации не превысил номинальный ток пускателя, тогда принимаем пускатель типа ПНП-211002, с номинальным током пускателя Iн.п .= 25А.
Выбор магнитного пускателя КМ 2 не приводим, так как он аналогичен выбору магнитного пускателя КМ 1.
Выбираем магнитный пускатель КМ 3.Магнитный пускатель выбираем из условия:
Iн.п . ≥ Iп.дв.; (42)
2,75 А
Принимаем магнитный пускатель типа ПНП-121002.Проверяем выбранный магнитный пускатель:
- по расчетному току коммутации:
Iр.ком
.=
; А (43)
Iр.ком
. =
=2,2 А
Так как расчетный ток коммутации не превысил номинальный ток пускателя, тогда принимаем пускатель типа ПНП-121002,Iн.п.=10А.
Выбор магнитного пускателя КМ 4 приводим, так как он аналогичен выбору магнитного пускателя КМ 3.
Выбор аппаратуры управления и защиты для осветительной сети.
Провода электрических сетей в зависимости от их типа, способа прокладки и условий работы, рассчитаны на протекание вполне определенных длительно допустимых токов нагрузки.
Электрические сети во всех случаях должны быть защищены от токов короткого замыкания. Защита должна в кратчайшее время отключить поврежденный участок линии при возникновении токов одно- и многофазных коротких замыканий в сетях с заземленной нейтралью.
Проведем выбор автоматического выключателя, защищающего первую осветительную группу.
Определяем ток, протекающий в группе А:
Iр
=
; А (44)
где P – мощность осветительной группы, Вт;
Uф – фазное напряжение, В;
Cos
- коэффициент мощности,0,92.
Iр
=
= 44.4А
Выбираем автоматический выключатель из условия:
Iп.р . ≥ 1,4• Iр ; (45)
Iп.р
. = 63А
62,16А
Принимаем автоматический выключатель типа АЕ 2046 Р,Iп = 63А; Iп = 500В.
2.5 Выбор, компоновка и расчет внутренних проводок
Площадь поперечного сечения токопроводящих жил проводов и кабелей определяют исходя из двух основных условий: допустимого нагрева проводов током нагрузки и допустимого отклонения напряжения у потребителя. Расчет обычно выполняют по одному из условий, а по-другому проверяют.
Проводим выбор сечения провода питающего электродвигатель вентилятора слесарно-механического участка.
Сечение кабеля выбираем из условия:
Iдоп. ≥ Iн.; (46)
19А
6,7А
где Iдоп. – допустимый длительный ток для кабеля, А;
Iн. – номинальный ток электродвигателя.
Принимаем кабель АВВГ с сечением жилы S = 2,5 мм2
Проводим расчет сечения провода для первой группы освещения. Сечение провода выбираем из условия:
Iдоп . ≥ Iр. (47)
60А
44,4А
Принимаем провод АПВ – 10 с сечением жилы S = 10 м![]()
Провода осветительной сети, выбранные по доступному нагреву, проверяем на допустимую потерю напряжения. Для проверки выбираем самую длинную и нагруженную группу Такой группой является первая.
На рисунке 5 показываем расчетную схему первой осветительной группы.

Рисунок 5 – Расчетная схема первой осветительной группы.
В связи с тем, что мощности ламп одинаковы и расстояние между ними одинаково, схему можно упростить.
Упрощенная схема первой осветительной группы приводится на рисунке 6.

Рисунок 6 – Упрощенная схема первой осветительной группы.
Определяем суммарный момент нагрузки, кВт• м.
М = L• P; (48)
где P – мощность светильников, кВт;
L – длина участка, м.
М =
(
+
+
)+
(
+
)
+
+
+
+
+
+
+
+
+
+
+
+
+
+
+
+
+
+
+
+
)+
(
+
+
+
+
+
+
+
+
+
+
+
+
+
+
+
+
+
+
+
)+
(
+
+
+
+
+
+
+
+
+
+
+
+
+
+
+
+
+
+
)+
+
+
+
+
+
+
+
+
+
+
+
+
+
+
+
+
+
)+
(
+
+
+
+
+
+
+
+
+
+
+
+
+
+
+
+
)+
(
+
+
+
+
+
+
+
+
+
+
+
+
+
+
+
)+
(
+
+
+
+
+
+
+
+
+
+
+
+
+
+
)+
(
+
+
+
+
+
+
+
+
+
+
+
+
+
)+
(
+
+
+
+
+
+
+
+
+
+
+
+
)+
+
+
+
+
+
+
+
+
+
+
)+
• (
+
+
+
+
+
+
+
+
+
)+
(
+
+
+
+
+
+
+
+
)+
(
+
+
+
+
+
+
)+
(
+
+
+
+
+
+
)+
(
+
+
+
+
+
)+
+
+
+
+
)+
(
+
+
+
)+
(
+
+
+
)+
(
+
+
)+
+
)+
*
=15,2*(3,04+3,04+3,36)+15,2* *(3,04+3,36)+0,8*3,36+0,8*3,2+0,8*3,04+0,8*2,88+0,8*2,72+0,8*2,56+0,8*2,4+0,8*2,24+0,8*2,08+0,8*1,92+0,8*1,76+0,8*1,6+0,8*1,44+0,8*1,28+0,8*1,12+0,8*0,96+0,8*0,8+0,8*0,64+0,8*0,48+0,8*0,32+0,8*0,16=268,7кВт/м.
Определяем расчётную потерю напряжения в проводе первой осветительной группы, %:
∆Uрасч
=
;
гдеS – сечение провода, мм2 ;
С – коэффициент, значение которого зависит от напряжения, числа фаз и материала провода, (С = 20, таблица 12.3 / 14)
∆Uрасч
=
= 1,34 %
∆Uдоп . ≥ ∆Uрасч
где∆Uдоп – допустимая потеря напряжения, ∆Uдоп = 2,5 %
∆Uдоп
. = 2,5%
∆Uрасч
.=1,34%
Условие выполняется, значит сечение выбрано верно.
2.5.1 Выбор распределительных устройств
Для приема и распределения электрической энергии в сетях напряжением до 1000 В применяют распределительные устройства и силовые шкафы.
Распределительные устройства комплектуются отдельных панелей для измерения и учета проводных цепей. Такие устройства обычно устанавливается на низкой стороне трансформаторных подстанций.
Силовые распределительные шкафы до 500 В обеспечивают защитой, предназначенной для участков цеховых сетей групп отдельных токоприемников.
В шкафах устанавливают предохранители для линии силовой распределительной сети и вводные аппараты, при помощи которых защитная аппаратура шкафа присоединяется к питающей сети.
Применяют распределительные пункты серии ПР 9000 с автоматами серии А 3100,А 3161,А 43163 И А 3120,А 3130 ;СПА 63 и СПА 463 с предохранителями НПИ -60 и ПИ -2 и рубильником на вводе; ПР 11;ПР 12;ПР 22;ПР 24 с автоматами серии А 3700 и другие.
В осветительных установках применяют автоматические щитки с автоматическими выключателями. В помещениях с нормальными условиями среды рекомендуется применять щитки типа OЩВ с линейными автоматами А 3161 и вводным автоматом А 311414 на 6 и 12 групп.
Распределительные устройства и щитки выбирают по напряжению, условиям окружающей среды, способу установки и проведению проводов, числу, типу и номинальным параметрам автоматом или групп предохранителей.
В качестве распределительных устройств применяют силовые распределительные шкафы типа ШРC1 – 5093,ШРА1 – 2043 и ШРС1 – 5343 с предохранителями на линиях и рубильником на вводе.
В осветительных установках применяют щитки типа OЩВ.
2.5.2. Выбор марок проводов кабелей и способов их прокладки
При открытой электропроводке применяют различные способы монтажа проводов и кабелей: на изоляторах, роликах, тросах, в ложках, коробах, непосредственно по стенам или конструкциям зданий.
Электропроводку непосредственно по кирпичным, бетонным или другим несгораемым стенам или перегородкам выполняют плоскими проводами марок АППВ,ППВ,АППП,ППП.
Электропроводки на тросах получили в сельском хозяйстве самое широкое распространение. Это наиболее удобный и экономический способ прокладки проводов.
Для тросовых проводок наиболее часто используют провода марок АПВ, АПРВ, а так же кабели марок АВВГ, АВРГ, АИРГ. Для осветительных сетей применяют провода АВТУ, АВТ, АВТВ, АСВ с несущим тросом в их конструкции. Для светильников несущий трос может служить рабочим заземлением.
2.6 Построение графика электрических нагрузок и определение мощности на вводе
электрооборудование ремонт трансформатор
Существует большое количество различных методов для определения электрических нагрузок. Так как ремонтная мастерская относится к сельскохозяйственным объектам промышленного типа, а также неизвестно время работы технического оборудования для определения мощности на вводах применяют метод упорядоченных диаграмм или метод эффективного числа электроприемников.
Ведем расчетные действия
Определяем по справочникам значение коэффициента использования Ки
. И записываем его в графу 5 таблицы 7.Далее заполняем графы 2,3,4 и 6.При этом значение tg.
определяется по известному справочному значению
.
Рассчитываем значение величин Ки
.*Ри
.;n Ки
*Ри
*tg
. Данные построчно заносятся в графы 7и8 таблицы 7.
Ки .*Ри ;
0,6*4,4=2,64
Ки .*Ри *tg φ ;
0,6*4,4*0,75=1,98;
В итоговой строке определяем суммы этих величин:
∑Ки .*Ри ;
0,24*39,3=9,5
∑Ки .*Ри .*tgφ;
0,24*39,3*1,042=9,9
Определяем групповой коэффициент использования Ки. как средневзвешенный коэффициент для данного распределительного пункта, например, ШР 1по формуле:
Ки
.=![]()
Ки
.=![]()
Величина Ки заносится в итоговую строку графы 5.
Рассчитываются величины n*
для каждой характерной группы и построчно записываются в графу 9.В итоговой строке подсчитывается их суммарное значение ∑n*
.
N*
.
2*,
=9,68
Определяем эффективное число электроприемников по основной формуле:
nэ
=
;
nэ
=
=7
Найденное значение записываем в итоговой строке графы 10.
По полученному значению nэ, и ранее определенным значениям группового Ки. по справочной таблице или по кривым определяем значение коэффициента расчетной нагрузки Кр и дописываем в итоговой строке в графе 11.
Определяем расчетные мощности активной и реактивной нагрузок по выражениям:
Рр =Кр ∑Ки .*Ри .;
Рр =1,54*9,5=14,6
Q=1.1∑Ки .*Ри .*tgφ;
Q=1.1*9.9=10.89
Данные записываются в итоговую строку в графы 12и13.
Определяем полную мощность:
Sp
=
Sp
=
=18.2
Определяем значение основной расчетной нагрузки:
Ip
=
;
Ip
=
= 28 A
Данные расчетов записываются в новую строку таблицы 7,графы 12,13,14 и 15.
Аналогично рассчитываем нагрузки на остальных ШР.
3. Специальная часть
3.1 Обоснование вопроса автоматизации
Электросварочные установки представляют собой совокупность функционально связанных между собой специальных электросварочных и общего назначения электрических и механических элементов, а также кабельных линий, электропроводок, токопроводов для внешних соединений этих элементов. Все устройства, используемые для электросварочных установок, должны быть изготовлены согласно утверждённой в установленном порядке технической документации и соответствовать действующим стандартом.
Выполнение работ на электросварочных устройствах должно предусматриваться в соответствии с требованиями ГОСТ12.3.003-86 «Работы сварочные. Требование безопасности» и правил технической эксплуатации электроустановок.
Общие требования.
Оборудование электросварочных установок должно иметь положение, соответствующее условием окружающей среды. Конструкция и расположение этого оборудования, ограждений и блокировок должны не допускать возможности его механического повреждения, а также случайных прикосновений к вращающимся или находящимися под напряжением частей. Исключение допускается для электродержателей установок ручной дуговой сварки, резки и наплавки, а также для мундштуков, горелок для дуговой сварки и других деталей, находящимся под сварочным напряжением.
Напряжение первичной цепи электросварочной установки должно быть не выше 660В. эта цепь должна содержать коммутационный (отключающий) и защитный электрические аппараты (аппарат). Сварочные цепи не должны иметь электрических соединений с цепями, присоединёнными к цепи (в том числе с пытаемыми от сети обмотками, возбуждение генераторов преобразователей).
Требования к помещениям для электросварочных установок и сварочных постов.
Здания и вентиляционные устройства сборочно-сварочных цехов и участков, в которых размещаются электросварочные установки и сварочные посты, должны отвечать требованиям действующих стандартов, санитарных правил и противопожарных инструкций, а также СНиП.
Установки электрической сварки (резки, наплавки) плавлением.
Напряжение холостого хода источника сварочного источника тока установок дуговой сварки при номинальном напряжении сети не должно превышать для источников переменного тока ручной и полуавтоматической дуговой сварки 80в. (действующее значение), при автоматической дуговой сварки 140в. для источников постоянного тока (среднее значение) 100в. В цепи сварочного тока генераторов допускаются кратковременные пики напряжения при обрыве дуги длительностью не более 0.5с.
Источники сварочного тока должны обеспечивать соответствующий режим работы и стабильность горения дуги, в связи, с чем к ним предъявляются определённые требования.
1. Напряжение холостого хода должно быть достаточным для лучшего возбуждения дуги и безопасным для человека. Напряжение зажигания дуги переменного тока составляет 50…55в. постоянного тока 30…40в. напряжение по условиям безопасности 66…75в. Наиболее высокое напряжение в режиме холостого хода. Для обеспечения безопасности, а также снижение расхода электрической энергии применяют специальные устройства ограничения холостого хода УСНТ 0,6.
2. После возникновения дуги напряжение источника должно уменьшаться до значений, соответствующих напряжению горению дуги (точка, рисунок).
3. При изменении длины дуги не должно происходить значительного изменения сварочного тока.
4. При коротких замыканий ток в цепи не должен превышать рабочий ток при сварке более чем на 20…40%.
5. Источник тока должен обеспечивать возможность лёгкого и плавного регулирования сварочного тока.
6. Источник должен обладать хорошими динамическими свойствами.
7. КПД источника тока должно быть достаточно высоким.

Рисунок 7 – совмещённые внешние характеристики на источником питания и вольт-амперной характеристики дуги (2)
Электросварочное оборудование обозначается буквами и цифрами. Первая буква обозначает тип изделия (Т – трансформатор, В – выпрямитель, Г – генератор, У – установка), второе – вид сварки (Д – дуговая, П – плазменная), третье – способ сварки(Ф – под флюсом, Г – в защитных газах, У – универсальные источники для нескольких видов сварки), четвёртая – назначение источника (без буквы – ручная сварка, М – для многопостовой сварки, И – импульсной сварки). Две или три цифры – регистрационный номер изделия; буква и цифра - климатическое исполнение (У,7) и категорическое размещение (3,3,и).
Техническое обслуживание сварочного электрооборудования.
Очистить кожух и корпус от загрязнений, продуть корпус сжатым воздухом, проверить состояние заземления, ослабленные контакты подтянуть. Проверить состояние зажимов и контактных соединений, ослабленные контактные соединения подтянуть, доску зажимов со сколами и трещинами или обугливанием – заменить, повреждённые участки изоляции сварочных кабелей – восстановить.
В трансформаторах проверить состояние механизма регулирования сварочного тока и конденсатора фильтра защиты от радиопомех. Устранить замеченные дефекты и при необходимости смазать трущиеся части. Убедиться в отсутствии посторонних шумов при работе трансформатора, проверить стабильность дуги при сварки.
В генераторах и преобразователях очистить щёточный механизм от загрязнений, проверить его техническое состояние, убедиться в отсутствии трещин на траверсе и в целостности её изоляции, проверить соответствие положение траверсы заводским счетчиком, проверить соответствие изоляции обмотки. Снять крышку подшипников и при необходимости дополнить смазку подшипников. Проверить работу на холостом ходу и стабильность сварочной дуги при полной нагрузке.
3.2 Описание процесса и технические требования
Трехфазные выпрямительные сварочные установки типа ВД (таблица) предназначенные для питания электрической дуги при ручной дуговой сварки, резки и наплавки металлов постоянным током в помещении и на открытом воздухе при температуре от +55 до – 35°С и влажности воздуха не более 90%.
Трёхфазный трансформатор выпрямитель выполнен с повышенной индуктивностью рассеяния, что обеспечивает падающие внешние характеристики. Обмотки трансформатора алюминиевые с концами, армированные медью. Сварочный ток регулируют ступенями путём изменения соединения первичных и вторичных катушек «звезда – звезда» или «треугольник – треугольник» при помощи переключателя диапазона 5-4 сварочных выпрямителей ВД – 102, ВД – 102, ВД – 301 и ВД – 302 плавное регулирование сварочного тока внутри диапазонов достигается изменением сварочного тока внутри вторичной обмотки. Для выпрямления переменного тока применяются кремневые (для выравнивания ВД – 101, ВД – 301) или селеновые (для выпрямителей ВД – 102, ВД – 302) выпрямители.
Охлаждение трансформатора и выпрямительного блока воздушное принудительное.
При ручной сварке от трансформаторов с напряжением холостого хода более 70в. необходимо применять устройство для ограничения времени холостого хода с выдержкой времени при отключении не более 0,5сек (ГОСТ 95-51). Во время работы внутри металлических сосудов и водонапорных балов при обрыве дуги необходимо автоматическое отключение сварочной цепи независимо от величины напряжения холостого хода источника.
Рубильником SF подаётся напряжение на вспомогательный трансформатор ТV2 По цепи обмотки реле времени КТ, дросселя ДР,
сварочного трансформатора TV1 течёт ток но он не вызывает срабатывание реле КТ из-за его малой силы. Касаясь электродом Э изделия U, шунтируют обмотки Др и TV. Ток в обмотке TV увеличивается до тока, реле срабатывает и включает катушку магнитного пускателя. Магнитный пускатель главными контактами МП включает сварочный трансформатор TV е а размыкающие блок-контакты КМ2 отключает обмотку реле КТ от сварочной цепи (TV, Др, Э,U), но контакты КТ остаются включёнными за счёт выдержки. По сварочной цепи течёт рабочий ток. На дросселе Др образуется падение напряжения, достаточное для срабатывания промежуточного реле КV, включённого через выпрямитель с параллельно дросселю. Реле КV, закрывает свои контакты, падаёт напряжение на реле КТ, которое продолжает удерживать свои контакты КТ закрытыми. Отрывая электрод от детали, возбуждают дугу и ведут сварку.
При обрыве дуги на время, большее 0,5с реле времени через магнитный пускатель отключает сварочный трансформатор. Выдержка времени нужна для предупреждения ненужного отключения при кратковременном случайным обрыве дуги.
Таблица __ Технические данные трёхфазных выпрямительных сварочных установок типа ВД
| Сварочный Выпрямитель | U сети | !!, Гц |
Р потр. кВ-А | ПВ.% | !!!. А |
Предель Регулирова-ние I св - А |
U2х В |
Uр, В |
Масса, кг |
| ВД - 101 | 220,380 | 50 | 9 | 60 | 125 | 20 – 45; 45 - 125 |
64 | 25 | 140 |
| ВД – 102 | 220,380 | 50 | 9 | 60 | 125 | 20 – 50; 50 – 125 |
61 | 25 | 160 |
| ВД – 301 | 220,380 | 50 | 23 | 60 | 300 | 45 – 125; 125 – 300 |
65 | 32 | 230 |
| ВД – 302 | 220,380 | 50 | 22 | 60 | 300 | 55 – 135 135 – 300 |
61 | 32 | 220 |
| ВД – 304 | 380 | 50 | ~26 | 60 | 315 | 30 – 330 | 68-72 | 32 | 305 |
3.3 Выбор элементов схем автоматизации
Выбор промежуточного реле необходимо проводить по роду тока, напряжение катушки, по значению коммутирующего тока, по исполнению.
При выборе реле постоянного тока необходимо также определить коэффициент запаса К3 характеризующий надёжность срабатывания реле определяется по формуле:
К3 = Ip /Iср
Где Ip – рабочий ток реле, А
Ip – ток срабатывание реле, А
Кз = 21/11 = 1.9
Рабочий ток реле определяется по формуле:
Ip = Uн /Rоб , мА
где Uн – напряжение питание реле, В
Rоб – сопротивление обмотки реле, В
Ip = 60/2800 = 21, мА
Коэффициент запроса должен находиться в пределах Кз = 1,5…3
Мощность потребляемая реле определяется по формуле:
Rоб = Un ²/ Rоб , Вт
Rоб = 60·60/2800 = 1,28, Вт
Как показала практика коэффициент запаса не должен быть меньше 1,5. В данном случае это условие выполняется. Все данные выбранные выбранного реле занесены в таблицу.
Таблица __ Технические данные реле времени
| Тип реле | Номер паспорта | Рабочее напряжение В. | Сопротивление обмотки Ом | Ток. мА | |
| Срабатывание | Отключение | ||||
| 1 | 2 | 3 | 4 | 5 | 6 |
| РЭС 32 | РФ4.330.335-05 | 60±6 | 2800/-420 +280 | 11 | 2 |
Количество и тип контактов: ЗП
Ток и напряжение коммутации контактов: 1А;250В.
Производим выбор реле времени.
Реле времени выбирают в соответствии с требованием диапазоном выдержки времени, напряжению питания, току коммутации, числом коммутирующих контактов и программ выбранное реле записываем в таблицу __
Таблица __ Данные реле времени
| тип | Напряжение, В | Диапазон выдержки времени, сек | Погрешность, % | Количество и вид контактов и цепей | Коммутируемая мощность ток коммутации, Вт | Потребляемая мощность ВА | Габарит, мм |
| ВЛ-37м | 24 | 0,1-101 | 2,5% | Одноцепное, 2П | До 25 кВ | 25 Вт | 142х165 х100 |
Производим расчёт силового трансформатора
Зная напряжение и номинальный ток, который должна давать вторичная обмотка (U2 и I2 ), находим вторичной цепи U2 = 24в; I2 = 1.1А; Р2 – 25 ВА по формуле:
Р2 = U2 /I2
где U2 – напряжение вторичной обмотки, В
I2 – ток вторичной обмотки, А
Р2 = 24 / 1.1 = 21.8
Принимаем КПД трансформатора небольшой мощности предела 80%, определяем предельную мощность по формуле:
Р1
=
, Вт
Мощность передаётся из первичной обмотки во вторичную через магнитный поток. Поэтому от неё зависит площадь полярного сечения сердечника S, которое возрастает при увеличении мощности. Для сердечника из нормальной трансформаторной стали можно рассчитать S по формуле:
S =
см²
где S – в квадратных сантиметрах,
- в ватах
По величине S определяют число витков на один вольт напряжение:
S =
= 5.2
Напряжение ω при использовании трансформаторной стали оно равно:
ω =
. Вит на 1В
ω =
= 9.6 витков на 1В
Ток первичной обмотки:
I1
=
A
I1
=
= 0.12A
d = 0.8 ![]()
d = 0.8
= 0.27
q = 0.27 d![]()
Число витков и диаметры проводов обмотки будут:
Где первичной обмотки:
ω 1 = 9.6*220 = 2112
d 1
= 0,8
*12 = 0,27 мм
для вторичной обмотки:
ω 2 = 9.6*24 = 330
d = 0.8
= 0,84мм
Выбирая магнитный пускатель КМ предназначенный для включения трансформатора тока ТV1
Выбираем из следующих условий:
Uн
Uсети
где Uн – номинальное напряжение магнитного пускателя В
Uсети – номинальное напряжение сети. В
380
380В
I н. м. п
Iн цепи
Где Iн. м. п – номинальная сила тока магнитного пускателя. А
Iн. цепи – номинальная сила тока цепи трансформатора. А
40А
36.5А
Выбираем ПМЛ 322002 Iн . 40А; Uн 500В
Выбираем плавкий предохранитель FU, защищающий цепь сварочного трансформатора от токов короткого замыкания.
Выбираем из условия:
I н. п.п
Iн. тр
где I н. п.п – номинальная сила плавкого предохранителя. А
Iн. тр – номинальная сила тока трансформатора
50
36.5 А
Выбираем ПП31-29 Uн 660 В; Iн сила тока патрона 63А
4. Безопасность жизнедеятельности
4.1 Требования безопасности при эксплуатации электрооборудования в машинотракторном парке
Ответственность за организацию работы по охране труда возложена на заведующего мастерской, в бригадах – на бригадиров. Для ознакомления рабочих с правилами техники безопасности проводятся инструктажи: вводный, первичный, повторный, внеплановый и целевой.
При монтаже проводок и осветительных установок вредными факторами производства является попадание в органы дыхания и зрения мелких частиц при пробивке отверстий, резке оборудования. Для устранения этого фактора необходимо применять при выполнении работ рукавицы, защитные очки и респиратор.
При работе с электрифицированным переносным инструментом - вредный фактор – повышенный уровень шума, наличие вибрации, выброс мелких частиц. Для защиты от этих воздействий применяют противошумные заглушки, защитные очки, виброгасящие перчатки, приспособления и материалы.
При монтажных работах большинство несчастных случаев происходит из-за падения с высоты каких-либо предметов. Для предотвращения этого необходимо: инструмент должен содержаться в специальных подсумках или ящиках, недопустимо использовать недостаточно длинные лестницы, запрещается работать с последних двух ступенек, высота приставной лестницы не должна превышать пяти метров.
При монтаже электродвигателей высокая вероятность поражения человека электрическим током, а также причинение травм иного рода. Меры безопасности: перед началом монтажа или демонтажа электродвигателя необходимо убедиться, что оборудование при монтаже электродвигателя с фланцевым креплением на высоте необходимо использовать поддерживающие приспособления, а при его значительной массе – подъёмное устройство.
Основные требования безопасности при эксплуатации электрооборудования.
Охарактеризуем ремонтную мастерскую по классу поражения электрическим током. По поражению электрическим током помещения делят на 3 класса:
Первый класс – помещения без повышенной опасности, в которых отсутствуют признаки двух других классов.
Второй класс – помещения с повышенной опасностью, имеющие следующие признаки: относительная влажность воздуха длительно превышает 75%, с токопроводящей пылью, с токопроводящими полами, жаркие с температурой боле 35оС , с возможностью прикосновения человека одновременно к металлическим заземлённым частям и токопроводящему оборудованию.
Третий класс – помещения особо опасные, имеющие один из следующих признаков: особо сырые, с химическиактивной средой, газами, пылью, имеющие два и более признака помещения с повышенной опасностью.
Данные помещений приводим в таблице.
Таблица __ - Помещения по классу поражения электрическим током.
| Наименование помещения | Признаки | Класс помещения |
| 1 | 2 | 3 |
| Участок ремонтно-монтажный | Токопроводящие полы | II |
| Участок мойки деталей и агрегатов | Особо сырое | III |
| Участок ремонта агрегатов | Токопроводящие полы | II |
| Участок шиномонтажный | Токопроводящие полы | II |
| Участок кузнечно-сварочный | Токопроводящие полы, жаркое | III |
| Участок слесарно-механический | Токопроводящие полы | II |
| Участок регулировки автотракторного оборудования | Химическиактивная среда, возможность поражения электротоком | III |
| Участок регулировки топливной аппаратуры | Химическиактивная среда, газы, токопроводящие полы | III |
| Инструментально-раздаточная | Сырое помещение | II |
| Участок диагностики и ТО | Токопроводящие полы | II |
| Участок наружной мойки | Особо сырое | III |
| Помещение для компрессора | Токопроводящие полы | II |
| Венткамера | Сухое | II |
| Тамбур-шлюз | Токопроводящие полы | II |
| Коридор | Сырое | II |
| Коридор | Сырое | II |
| Вестибюль | Токопроводящие полы | II |
| Мужской гардероб | Токопроводящие полы | II |
| Лестничные клетки | Сырое | II |
| Душевая | Особо сырое | III |
| Мужская уборная | Токопроводящие полы | II |
| Кладовая инвентаря | Токопроводящие полы | II |
| Индивидуальный тепловой пункт | Жаркое | III |
| Электрощитовая | Токопроводящие полы | II |
| Кабинет | Токопроводящие полы | II |
| Коридор | Сырое | II |
| Тамбур | Сырое | II |
| Венткамера | Сухое | II |
| Комната приёма пищи | Токопроводящие полы | II |
| Учебный класс | Токопроводящие полы | II |
| Коридор | Сырое | II |
II – помещения с повышенной опасностью;
III – особоопасные помещения.
Основным методом защиты от поражения электрическим током в ремонтной мастерской является зануление. Расчёт эффективности его действия приведём дальше.
Защитное отключение – это система защиты, автоматически отключающая электроустановку при возникновении опасности поражения человека электрическим током.
Устройство защитного отключения состоит из двух частей: прибора датчика и автоматического выключателя.
Разработка мер защиты от поражения электрическим током.
Для защиты от поражения электрическим током людей при попадании напряжения на нетоковедущие металлические части оборудования и конструкций в ремонтной мастерской применяем защитное зануление.
Зануление – преднамеренное металлическое соединение частей электроустановок, нормально не находящихся под напряжением, с заземлённой нейтралью трёхмерного генератора или трансформатора. Или заземлённым видовым источником однофазного тока, или с заземлённой точкой источника в сети постоянного тока.
Произведём расчёт эффективности зануления для электродвигателя кран-балки.

Рисунок __ - Расчётная схема зануление.
Зануление эффективно, если соблюдается неравенство:
≥ К;
где Iк.з. 1 – ток однофазного короткого замыкания электроприёмника, А;
Iн.р – номинальный ток расцепителя, А;
К – коэффициент чувствительности.
Определим ток однофазного короткого замыкания, А
Iк.з.
1
= ![]()
![]()
где Uф – фазное напряжение, В;
Zn – полное сопротивление петли «фаза – нуль», Ом;
– сопротивление фазы трансформатора току однофазного к.з., Ом
Полное сопротивление петли «фаза – нуль» определяем по формуле:
ZП = Z1 +Z2 +Z3 +Z4 ;
где Z1 – полное сопротивление петли «фаза – нуль» от ТП до ВРУ, Ом;
Z2 - полное сопротивление петли «фаза - нуль» от ВРУ до ШР, Ом;
Z3 - полное сопротивление петли «фаза - нуль» отШР до автоматического выключателя, Ом;
Z4 - полное сопротивление петли «фаза - нуль» от автоматического выключателя до электродвигателя, Ом;
Полное сопротивление петли «фаза - нуль» от ТП до ВРУ определяем по формуле:
Zп1
= L
;
где L – длина участка, км;
S – сечение кабеля, мм2 ;
ρ – удельное сопротивление для алюминия;
х – реактивное сопротивление участка, Ом / км., х = 0,15 Ом / км.
Z1
= 0,06
= 0,029 Ом
Полное сопротивление петли «фаза - нуль» от ВРУ до ШР определяем по формуле:
Z2
= 0,005
= 0,0024 Ом
Полное сопротивление петли «фаза - нуль» от ШР до автоматического выключателя определяем по формуле:
Z3
= 0,014
= 0,049 Ом
Полное сопротивление петли «фаза - нуль» от автоматического выключателя до электродвигателя определяем по формуле:
Z4
= 0,006
= 0,021 Ом
Полное сопротивление петли «фаза – нуль»
ZП = 0,029+0,0024+0,049+0,021 = 0,1014 Ом
Сопротивление фазы трансформатора току однофазного короткого замыкания определяем по формуле:
=
;
где ki – энтрический коэффициент, для схемы соединения “звезда –звезда с нулём» ki = 26
Sн. т. – номинальная полная мощность трансформатора, кВА
=
Ом.
Ток однофазного тока короткого замыкания равен:
Iк.з. (1) = 220 / 0,1014 + 0,104 = 1071 А
Тогда по условию получаем
= 85,7 > 3
Следовательно, зануление эффективно.
Необходимость применения УЗО определяется по условиям обеспечения электро- и пожаробезопасности в соответствии с действующими стандартами и нормативными документами.
Выбор производим следующим образом:
- по напряжению:
Uн. ≥ Uн.с.;
380 В = 380 В
- по номинальному току:
Iн. ≥ Ic.
16 А ≥ 10,4 А
- по номинальному отключающему току и суммарному току утечки Iсум. защитной сети, mA:
IΔн ≥ 3 * IΔ;
где IΔн – расчетный суммарный ток утечки защитной сети, mA
IΔн = 0,4 * Iн. +0,01 * l;()
IΔн = 0,4 * 10,4+0,01*85 = 5,01 mA
Если IΔн ≥ 3 Iн принимаем IΔн = 10 mA
По числу пар полюсов выбираем четырёхполюсное УЗО.
Проверяем по номинальному условному току короткого замыкания:
Iн.у. ≥ Iк.з (1)
где Iн.у. – номинальный отключающий ток, А
1500 А > 1157 А
Выбираем УЗО марки АСТОУЗО, Uн = 380 В,
Iн = 16 А, Iн.у. = 1500 А
Расчет молниязащиты.
Сооружения и здания защищаются в соответствии с «Инструкцией по проектированию и устройству молниязащиты зданий и сооружений».
Молниязащита категории I применяется для зданий классов B-I и В-II.
Молниязащита категории III используется для производственных зданий классов В-Iа , В-Iб и В-Iа . Для всех остальных помещений молниязащита III категории.
Проверим на необходимость в молниязащите. Вначале определяем ожидаемое количество прямых ударов молнии в ремонтную мастерскую за год.
N = ( B+3 * hx ) * ( L+3hx ) * n * 10-6 ;
где В – ширина здания, м;
L – длина здания, м;
hx – высота здания, 9,5м;
n – среднее число ударов в год на 1км.
n = 4…6 для средней полосы.
N = (18+3+3 * 9,5) (42+3 * 9,5) * 5 * 10-6 = 0,022
В связи с тем, что N < 0,1 отсюда следует что ремонтная мастерская в молниязащите не нуждается.
4.2 Пожарная безопасность
В сельском хозяйстве пожарами наносится большой ущерб, основными причинами которого являются: нарушение правил эксплуатации электрооборудования; поражение молнией; нарушение правил монтажа электроустановок, нарушение правил эксплуатации технологического оборудования.
Выбираем для тушения пожара центральное водоснабжение. Пожарные краны устанавливаем по торцам помещения.
Для тушения пожаров наиболее широко используют воду, углекислый газ, пену, песок.
Определим необходимое количество огнетушителей для нашего объекта. По норме, защищаемая площадь одного углекислого огнетушителя 100м2 . Необходимое количество огнетушителей определяется по формуле:
N = S / S0 ;
где S – площадь помещения, м2 ;
S0 – защищаемая площадь одного углекислого огнетушителя, м2 .
S = A * B;
где А – длина помещения, м;
В – ширина помещения, м.
S = 42 * 18 = 756 м2 .
Данные о количестве огнетушителей сводим в таблице __.
Таблица __ – План помещения с размещенными на нем средствами тушения пожара.
| Наименование помещения | Площадь, М2 | Количество огнетушителей |
| Участок ремонтно-монтажный | 756 | 7 |
| Участок мойки деталей | 66,6 | 1 |
| Участок ремонта агрегатов | 22,2 | 1 |
| Участок шиномонтажный | 22,2 | 1 |
| Участок кузнечно-сварочный | 51,3 | 1 |
| Участок слесарно-механический | 36 | 1 |
| Участок проверки и регулировки | 32,4 | 1 |
| Участок топливной аппаратуры | 33,6 | 1 |
| Инструментально-раздаточная | 11,6 | 1 |
| Участок наружной мойки | 52,2 | 1 |
| Участок диагностики и технического обслуживания | 69,03 | 1 |
| Помещение для компрессора | 12 | 1 |
| Венткамера | 12,04 | 1 |
| Тамбур - шлюз | 2,38 | 1 |
| Коридор | 7,41 | 1 |
На рисунке __ приводим план помещения с размещенными на нем
средствами тушения пожара.

Ο – огнетушитель
- пожарный кран
Рисунок __ - План размещения средств тушения пожара
4.3 Безопасность жизнедеятельности в чрезвычайных экологических условиях
Наибольшая эффективность в защите атмосферы от выбросов токсичных веществ достигается при одновременном сочетании технологических, санитарно – гигиенических и объемно – планировочных мероприятий. Основными направлениями, позволяющими уменьшить загрязнения окружающей среды, в том числе атмосферного воздуха, являются:
- Замена вредных веществ в технологических процессах безвредными или менее вредными;
- Замена сухих способов переработки пылящих материалов мокрыми;
- Непрерывность производственных процессов;
- Герметизация оборудования и аппаратуры;
- Применение оборудования со встроенными местными отсосами, применение сигнализации при аварии;
- Применение гидро – и пневмотранспорта при транспортировке материалов;
- Полное улавливание и очистка технологических выбросов, а также удаляемого вентиляцией загрязненного воздуха от химически вредных веществ;
- Применение газоанализаторов.
5. Экономическая часть
5.1 Разработка мероприятий по экономии электрической энергии
Экономия электроэнергии – важнейшая народно – хозяйственная задача. Электроприводы потребляют больше половины всей вырабатываемой электроэнергии, поэтому каждый процент экономии в этих условиях составляют миллиарды киловатт в стране.
Из анализа причин потерь мощности в электроприводах определяют следующие пути экономии электроэнергии:
- правильно электромеханизировать производственные механизмы;
- обеспечивать соответствующую смазку, регулировку;
- полностью загружать механизмы, трансформаторы. Для контроля загрузки в приводах устанавливать амперметры и ваттметры;
- исключить холостой ход производственных механизмов;
- следить за качеством напряжения на предприятии;
- всеми методами бороться за повышение коэффициента мощности;
- совершенствовать электроприводы энергоёмких агрегатов путём установки автоматических регуляторов загрузки.
5.2 Разработка показателей экономической эффективности применения блока снижения напряжения холостого хода сварочного трансформатора
Расчёт экономической эффективности начинают с изучения технологического процесса. Решают за счёт чего получается дополнительный доход при внедрении предлагаемого варианта. Расчёт проводят методом сравнения двух вариантов: существующего технологического процесса и предлагаемого варианта. При этом следует показать, какие технические улучшения даёт предполагаемое оборудование, по сравнению со старым. Оборудование – трансформатор сварочный ТД – 102 УХЛ 2, улучшение – блок снижения напряжения холостого хода сварочного трансформатора.
Применение блока снижения напряжения холостого хода повысит безопасность работы и сэкономит электроэнергию за счет уменьшения времени работы трансформатора в среднем до 30%за смену.
Определяем эксплуатационные затраты:
UЭ = UA +UT +Uэл. эн +П ; (5.1)
гдеUA – амортизационные отчисления, руб.;
UT – отчисления на текущий ремонт, руб.;
Uэл. эн – затраты на электрическую энергию, руб.;
П – прочие затраты, руб.
Определяем амортизационные отчисления:
UA
= К ·
; (5.2)
где К – капитальные затраты, руб.;
НА – норма амортизационных отчислений (НА = 14,3 %);
К = Цоб · (αтр + αт ); (5.3)
где Цоб – оптовая цена оборудования, руб.;
αтр – коэффициент, учитывающий транспортные и заготовительные работы
(αтр = 1,15);
αм - коэффициент, учитывающий затраты на монтаж (αм = 1,2);
К1 = 616890 · 2,35 = 1449691,5 руб.
К2 = 673539 · 2,35 = 1582816,7руб.
UA1 = 1449691,5 · 14,3 /100 = 207305,9 руб.
UA2 = 1582816,7 ·14,3 / 100 = 226342,8руб.
Определяем отчисления на текущий ремонт:
Uт
= К ·
; (5.4)
где Нт – норма отчислений на текущий ремонт (Нт = 10%);
Uт1 = 1449691,5 · 10 / 100 = 144969,2 руб.
Uт2 = 1582816,7 · 10 / 100 = 158281,7 руб.
Определяем затраты на электроэнергию:
Uэл. эн. = Руст. · т · Д · Т; (5.5)
где Руст. – установленная мощность, кВт;
т – число часов работы в смену:
т1 = 7 ч – без применения устройства ограничения напряжения х.х;
т2
= т1
-
= 7 -
= 4,9 ч – с применением устройства;
Д – количество дней работы;
Т – тариф на электроэнергию (с НДС), Т = 277,43 руб./кВт.
Uэл. эн1 = 6,4• 7• 240• 277,43 = 2982927,4 руб.
Uэл. эн2 = 6,4• 4,9• 240• 277,43 = 2088049,2 руб.
Определяем прочие затраты
П =
; (5.6)
П1
=
=66704,1 руб.
П2
=
= 49453,5 руб.
Uэ1 = 207305,9 + 144969,2 + 2982927,4 + 66704,1= 3401906,6 руб.
Uэ2 = 226342,8 + 158281,7 + 2088049,2 + 49453,5= 2522127,2 руб.
Определяем инвестиционный доход:
Dи = (Uэ1 - Uэ2 ) + Uа2 ; (5.7)
Dи = (3401906,6 - 2522127,2)+ 226342,8 = 1106122,2 руб
Определяем число лет получения дохода
Т = 100 / На ; (5.8 )
Т = 100 / 14,3 = 7
Определяем дисконтированную стоимость будущих доходов:
Дбд
= Dи
; (5.9)
где Е – базовая процентная ставка, Е = 0,15;
Т – число лет получения дохода;
Дбд
= 1106122,2 ·
= 4601468,4 руб.
Определяем чистый дисконтированный доход:
ЧДД = Дбд – К ; (5.10)
ЧДД = 4601468,4– 1582816,7 = 3018651,7 руб.
Определяем индекс доходности:
ИД = Дбд / К ; (5.11)
ИД = 4601468,4/ 1582816,7 = 2,91
Определяем коэффициент возврата капитальных вложений:
Кв
=
- E; (5.12)
Кв
=
– 0,15 = 0,55
Определяем срок возврата капитала:
Тв
=
; (5.13)
Тв
=
= 1,73 года 0,2414/0,1398
Сравниваем два варианта:
Т > Тв
7 > 1,73
Вывод: применение устройства снижения напряжения холостого хода сварочного трансформатора экономически выгодно.
Заключение
В ходе дипломного проектирования на тему: электрооборудование ремонтной мастерской на 25 тракторов – были произведены расчет и выбор технологического и электрооборудования, наиболее полно соответствующих технологическому процессу и имеющего улучшенные энергетические и экономические показатели. Двигатели серии АО и 4А были заменены на двигатели серии АИР, которые имеют более высокие технико-экономические показатели. Так же был произведен расчет и выбор аппаратуры управления и защиты, в результате чего магнитные пускатели устаревшей серии были заменены на пускатели новой серии ПМЛ, были выбраны автоматические выключатели серии АЕ, которые компактнее и более надежны в эксплуатации, что обеспечивает более надежную защиту электрооборудования.
В специальной части проекта была разработана схема устройства снижения напряжения холостого хода сварочного трансформатора, произведен расчет и выбор элементов и средств автоматизации.
Расчеты показателей экономической эффективности применения данного устройства показали, что капиталовложения на эту установку целесообразны, и они окупаются через 1,73 года.
В дипломном проекте также были разработаны вопросы по охране труда и безопасности жизнедеятельности.
Список использованных источников
1. Правило устройства электроустановок /ПУЭ – 85/.- М: Энергоиздат, 1986
2. СНиП 11 – 4 – 79 Естественное и искусственное освещение. Нормы проектирования. – Н: Стройиздат, 1980
3. Нагорский И.С., Севериев И.М. и др. Направление развития механизации автоматизации сельскохозяйственного производства Республики Беларусь на период до 2000 г. – Ми: Ураджай, 1996
4. Бородин И.Ф., Дробышев Ю.В. и др. Элементы и устройства сельскохозяйственной автоматики. – Ми: Урожай, 1983
5. Бохан Н.Н., Дробышев Ю. В. и др. Элементы автоматики. – Ми: Урожай, 1989
6. Кудрявцев И. Ф. и др. Автоматизация производственных процессов на фермах. М: Колос, 1976
7. Сигенанцов В.П. Светотехническое оборудование в сельском хозяйстве. – Ми: Ураджай, 1987
8. Методические указания для курсового проектирования по «Электроосвещению». – Ми: БАТУ,1991
9. Мартыненко И.И., Тищенко П.П. Курсовое проектирование комплексной электрификации и автоматизации. – М: Колос, 1987
10. Колесник А.П., Шаминский В.Т. курсовое и дипломное проектирование. – М: Колос, 1977
11. Мартыненко В.Ф. Проектирование систем автоматики. – М: Агропром издат, 1990
12. Елистратов П.С. Электрооборудование сельскохозяйственных предприятий. Справочник. – Ми: Ураджай, 1986
13. www. kran – balka. ru
14. Охрана труда при эксплуатации электроустановок А.И. Федорчук, Л.П. Филенович, Е.А. Милаш. – Ми: Ураджай, 2000 – 196 с.
Похожие рефераты:
Электроснабжение и электроборудование буровой установки
Техническое обслуживание и эксплуатация электрического и электромеханического оборудования
Проект новой подстанции для обеспечения электроэнергией нефтеперерабатывающего завода
Реконструкция электротехнической части фермы КРС на 200 голов
Электроснабжение текстильного комбината
Разработать лабораторный стенд для испытания устройств защиты судовых генераторов
Проектирование электрической части ТЭЦ 180 МВт
Модернизация релейной защиты на тяговой подстанции Улан-Удэ на базе микропроцессорной техники
Электрооборудование свинарника на 1200 голов СПК "Холопеничи"
Перечень электротехнических изделий и оборудования (справочник)