| Похожие рефераты | Скачать .docx |
Курсовая работа: Обеспечение безопасности жизнедеятельности работников в помещении компьютерного класса
Министерство образования РФ
Тверской государственный технический университет
Кафедра БЖД
Пояснительная записка
к курсовой работе по дисциплине “Безопасность жизнедеятельности”
на тему “Обеспечение безопасности жизнедеятельности работников в помещении компьютерного класса ”
Автор работы:
Специальность: “Автоматизация технологических процессов и производств”
Обозначение: КР
Руководитель: А. Б. Волков
Работа защищена ________ оценка
Тверь, 2002
Министерство образования РФ
ТГТУ
Кафедра БЖД
Задание на курсовую работу
студента
из группы
1. Тема ”Обеспечение безопасности жизнедеятельности сотрудников компьютерного класса”
2. Срок предоставления работы: 30.05.2002
3. Исходные данные к варианту №11
4. Содержание пояснительной записки курсовой работы
4.1. Идентификация возможных поражающих, опасных, вредных факторов в компьютерном классе и вне него.
4.2. Оценка условий труда работающих в компьютерном классе.
4.3. Выбор методов и средств обеспечения БЖД операторов компьютерного зала.
4.4. Расчетно-конструктивные решения по основным СКЗ работающих в зале:
4.4.1. Проектирование искусственного освещения для производственного помещения цеха.
4.4.2. Проектирование системы кондиционирования воздуха компьютерного класса.
4.4.3. Проектирование молниезащиты зданий и сооружений.
4.4.4. Прогнозирование возможной радиационной обстановки при аварии на Калининской АЭС.
4.5. Основные мероприятия по электробезопасности, охране окружающей среды (ООС), предупреждению аварий и пожаров в компьютерном классе и ликвидации последствий чрезвычайных ситуаций.
4.5.1. Технические способы и средства, организационные и технические мероприятия по обеспечению электробезопасности при эксплуатации электрооборудования компьютерного зала.
4.5.2. Общие мероприятия по охране окружающей среды при работе компьютерного зала.
4.5.3. Мероприятия по предупреждению аварий и пожаров в цехе и ликвидации последствий ЧС.
4.6. Перечень графического материала – 4 чертежа формата А4.
4.7. Список используемой литературы.
Руководитель работы: Волков А. Б.
Задание принял к исполнению: 01.04.2002
Введение
Специалист высшей квалификации должен знать основы дисциплины “Безопасность жизнедеятельности”. А именно, будущий специалист специальности АТПП должен знать инженерные основы “Безопасности жизнедеятельности”.
Как известно, дисциплина “Безопасность жизнедеятельности” изучает опасности, угрожающие человеку, закономерности их проявления и способы, методы и средства защиты от них. При проектировании производственной среды и обеспечении безопасности труда будущий инженер должен учитывать человеческий фактор. Данная курсовая работа носит своей целью закрепить навыки проектирования производственной среды с учетом челов6ческого фактора.
Повышенное внимание к проблеме БЖД во всех средах обитания объясняется целым рядом факторов. Например, резким ростом вероятности несчастных случаев на производстве. Первая часть курсовой работы посвящена выявлению негативных вредных факторов и их идентификации, действующих в производственном помещении и неблагоприятно воздействующих на человека в нем находящегося. Учет всех вредностей позволит инженеру правильно спроектировать производственную среду и обеспечить БДЖ всех работающих в этой среде.
В настоящее время не менее резко изменились условия труда. Во-первых, наблюдается повышение интенсивности воздействующих на человека, как уже было сказано выше, неблагоприятных санитарно-гигиенических факторов. Растет интенсивность акустических шумов, достигающая на ряде производств болевого порога. Механизированный ручной инструмент, ряд машин и механизмов создают высокие уровни вибраций. В ряде отраслей промышленности трудовая деятельность выполняется в помещениях с избытками явного тепла. Поэтому, вторая часть курсовой работы посвящены оценке условий труда работающих в рассматриваемой производственной среде.
Учет неблагоприятных факторов является необходимым условием обеспечения требуемой эффективности деятельности и сохранения здоровья работников. В условиях НТП постоянно растет перечень неблагоприятных физических и химических факторов внешней среды. Безопасный ранее, например, фоновый уровень проникающей ионизирующей радиации в условиях современной технологии стал реальной причиной одного из опасных профессиональных заболеваний – лучевой болезни. Высокие мощности сверхвысокочастотного электромагнитного излучения современных радиолокационных установок, некоторых технических средств, базирующихся на использовании этого излучения, а также электромагнитных излучений от оргтехники оказываются опасными для здоровья человека, вызывая изменения в психическом и физиологическом состояниях.
Проектная часть курсовой работы посвящена разработке системы местного кондиционирования воздуха и проектирования системы общего рабочего освещения в рассматриваемой производственной среде. Для этих целей в качестве производственной среды был выбран компьютерный класс в здании ОАО “Электросвязь”, в котором проводятся занятия Internet технологиям. Здание располагается по адресу: улица Семионовская, дом
Курсовая работа затрагивает задачу проектирования систем местного кондиционирования воздуха для поддержания оптимальных параметров микроклимата в рассматриваемом помещении, чтобы сотрудники чувствовали себя комфортно в этих условиях.
Разработке системы искусственного освещения посвящена одна из проектных частей данной курсовой работы. В ней подбирается система освещения такая, чтобы обеспечить достаточную освещенность рабочего места по санитарно-гигиеническим нормам.
Одной из задач курсового проекта является молниезащита здания. Изучение методики защиты здания от поражающего действия молнии пригодится в дальнейшем. Проектирование молниезащиты будет осуществляться для здания “ОАО Электросвязь”.
Все конструкторские решения по размещению системы освещения и местной системы кондиционирования воздуха будут представлены на чертежах, прилагающихся в конце каждого расчета.
Курсовая работа позволит овладеть навыками и знаниями по прогнозированию последствий взрыва на атомной электростанции и последствий воздействия радиационного заражения местности на людей, а также учесть человеческий фактор при проектировании производственной зоны.
Идентификация возможных поражающих и вредных и опасных факторов в помещении компьютерного класса
В основе возникновения негативных воздействий на человека лежит неравновесное состояние материального мира и, прежде всего, различия энергетических характеристик его компонентов, в уровнях тепловой, кинетической, электромагнитной и других видов энергии. Появление и развитие человеческого общества привело к формированию и расширению нового класса негативных факторов, воздействующих на природную среду, ‑ антропогенных. По происхождению негативные факторы делятся на естественные и антропогенные факторы.
С трудовой деятельностью человека связана особая группа психофизиологических факторов, создающих высокие уровни физических и нервно – психических нагрузок и обусловленную ими тяжесть и напряженность труда.
Согласно ГОСТ 12.0.003-74 (1) опасные и вредные производственные факторы подразделяются по природе действия на следующие группы: физические, химические и биологические, психофизиологические.
Один и тот же опасный и вредный производственный фактор может по природе своего воздействия относиться одновременно к различным группам факторов.
Идентификация опасных и вредных факторов на производстве включает в себя выявление негативных факторов, определение их локализации, времени появления и продолжительности действия, вероятных последствий, а также путей и методов защиты. При этом используются результаты инспектирования предприятия, общественной организации, данные измерений конкретных условий труда, проведенных службами предприятия или общественной организации.
Выявление действующих опасностей в помещении компьютерного класса
1. Воздействие опасных веществ:
Взрывчатые, окисляющиеся, ядовитые, агрессивные, самовоспламеняющиеся, легковоспламеняющиеся, сжатые, сжиженные и растворенные под давлением опасные вещества отсутствуют в помещении.
2. Воздействие вредных веществ:
В помещении из вредных веществ присутствуют фиброгены, аллергены, малоопасные вещества с концентрацией более 10 мг/м3 . Канцерогенов, различных медицинских препаратов и веществ, опасных для развития острого отравления в помещении не выделяется.
3. Идентификация механических опасностей:
В настоящее время растет число ЧС и несчастных случаев, связанных с техногенными факторами, действующими на людей в процессе работы с механизмами, машинами и оборудованием. Рассматриваемый компьютерный класс характеризуется отсутствием различного рода движущихся механизмов, деталей машин, перемещающихся изделий. Звуковые раздражения, вызываемые посторонними шумами (работа кондиционеров, принтеров, печатных машинок) сведены к минимуму. Так же помещение характеризуется отсутствием источников инфразвука и ультразвука. Общая и локальная вибрации не проявляют себя. Оператор ПК не подвергается никаким физическим перегрузкам, связанным с различного рода перенесением тяжестей.
4. Идентификация электрических опасностей:
Наиболее часто в помещениях с вычислительными средствами человек подвержен электрическим опасностям, так как при работе с ЭВМ или иными электроустановками (кондиционерами, вентиляторами, компрессорами, светильниками и т.п.) возможно соприкосновение с проводниками, находящимися под напряжением. Проходя через организм человека, электрический ток оказывает термическое, электролитическое и биологическое воздействие на его различные органы и системы. Так, термическое воздействие тока проявляется в ожогах отдельных участков тела и нагреве до высокой температуры сосудов, нервов, сердца и мозга. Электролитическое воздействие проявляется в разложении органической жидкости, в том числе и крови. Биологическое воздействие проявляется в раздражении и возбуждении живых тканей организма человека. Наиболее распространенными видами опасностей, связанных с электричеством, являются высокое напряжение ЭО и возможность кратковременного контакта с металлическими корпусами или элементами ЭО. Так же существует опасность воздействия статического электричества.
5. Идентификация термических опасностей:
ПК и работающая оргтехника выделяет среднее количество тепла. Степень его выделения нельзя назвать интенсивной. ПК являются причиной повышения температуры и снижения влажности воздуха на рабочем месте, вызывающих раздражение кожи. Однако повышения температуры незначительны и системы кондиционирования воздуха и регулярное проветривание помещения с ПК и другой оргтехникой способствуют поддержанию нормального здорового микроклимата в помещении рабочей зоны.
6. Идентификация биологических факторов:
Рассматриваемое помещение компьютерного класса не содержит источников выделения и развития микроорганизмов, патогенных и непатогенных организмов, белковых препаратов, а так же гормонов, ферментов и фармацевтических веществ.
7. Идентификация ЭМИ:
Помещение с ПК и оргтехникой является источником различных электромагнитных излучений, приводящих к различным изменениям и отклонениям в физиологии человека, развитием различного рода болезней и снижению сопротивляемости заболеваниям при длительном непосредственном облучении. Работающие в компьютерном классе подвергаются воздействию электростатического поля, ЭМИ от ЭВМ, ионизации воздуха и различным полям (магнитным и электрическим).
8. Идентификация психофизиологических факторов:
Деятельность оператора, работающего на ПК, требует напряжения воли для обеспечения необходимого уровня внимания, что заставляет прилагать большие усилия и сопровождается последующим истощением энергетических ресурсов организма. Труд оператора характеризуется высоким уровнем психической нагрузки, так как на оператора возлагаются функции контролера, координатора. Поэтому у работающих на ПК людей могут отмечаться головные боли, плохой сон, снижение бодрости, работоспособности. Оператор ПК подвергается различного рода интеллектуальным, эмоциональным, зрительным нагрузкам.
По предварительным оценкам с учетом рассмотренных выше факторов работа оператора ПК характеризуется наличием следующих вредных и опасных факторов:
· недостаточная освещенность рабочей зоны
· повышенная температура и пониженная относительная влажность воздуха
· повышенный уровень статического электричества
· отсутствие или недостаток естественного света
· средняя запыленность воздуха рабочей зоны
· пониженная контрастность
· повышенная информационная, статическая и нервно-эмоциональная нагрузка.
После описания действующих на оператора ПК факторов переходим к детальному описанию каждой из выявленных опасностей.
1. Недостаточная освещенность помещения с ПК:
Известно, что одним из важнейших условий БЖД человека является рациональное и достаточное освещение рабочего места и помещения в целом. Компьютерный класс может быть плохо освещен, вследствие чего оператору приходится напрягать зрительные органы. Плохая освещенность может привести к ухудшению зрения, снижению работоспособности, быстрому утомлению и росту числа ошибок в выполняемой работе. Оператор подвергается воздействию плохой освещенности с самого начала работы. Ее воздействие продолжается до окончания работы на ПК или с оргтехникой. Последствиями плохой освещенности являются песок в глазах, тени перед глазами, напряжение зрительных органов. Последствия проходят через некоторое время после окончания работы за ПК. Длительность “восстановительного периода” зависит от времени, проведенного за ПК при плохой освещенности. Для предупреждения воздействия этого вида опасности необходимо позаботиться заранее о нормальной системе освещения, соответствующей СГ нормам, а так же применять местное освещение на рабочих местах, если это нужно для работы с важными документами. При плохой освещенности рабочих мест оператора не рекомендуется длительно пребывать за ПК и свести время работы за ним к минимуму, постараться найти место под компьютерный класс в более освещенном помещении, а если нет такой возможности, то чаще делать перерывы в работе.
2. Интеллектуальное и психо-эмоциональное перенапряжение оператора:
Деятельность оператора ПК требует напряжения воли для обеспечения необходимого уровня внимания, что заставляет прилагать большие усилия и сопровождается последующим истощением энергетических ресурсов организма. Труд оператора характеризуется высоким уровнем психической нагрузки, так как на него возлагаются функции контролера и координатора. Последствиями воздействия такого рода нагрузок приводят к быстрому переутомлению, головным болям, плохому сну и снижению работоспособности. Интеллектуальным нагрузкам человек подвергается не только сидя за ПК, но и вне его при решении других задач, не связанных с набором текста, формул, программированием. Однако при наличии ПК степень интеллектуальных и психо-эмоциональных нагрузок возрастает. Такая опасность проявляется при выполнении ответственных задач с использованием ПК. Степень ее воздействия зависит от уровня сложности выполняемого задания. Оператор ПК подвержен ее воздействию в течение всей рабочей смены. Для того чтобы снизить риск переутомления, истощения нервно-психических ресурсов организма, нужно делать регламентированные перерывы в работе.
3. Воздействие ЭМИ излучений:
Оператор ПК подвергается воздействию ЭМИ в компьютерном классе с момента начала работы и до ее прекращения. Источниками ЭМИ служат мониторы ПК, различная множительная и копировальная техника. Последствиями воздействия ЭМИ на человека могут быть физико-химические изменения в организме, ослабление иммунитета организма, развитие заболеваний. ЭМИ излучения воздействуют в различной степени на всех присутствующих в классе с ПК. ЭМИ воздействуют на организм в небольших количествах, но их действие со временем сказывается на организме человека в той или иной степени, приводя к заболеваниям внутренних органов в виде различных опухолей. Однако при работе за ПК их воздействие сведено к минимуму, благодаря применению различных технологий защиты от ЭМИ. Так, например, ЭМИ от работающего монитора считается не опасным при нахождении на расстоянии от него более 50-80 см. Однако очень часто оператор сидит “уткнувшись в монитор носом”, что нежелательно. Наиболее рациональным средством защиты от ЭМИ является соблюдение графика работы с чередованием пауз, а так же нахождение на безопасном расстоянии от монитора и другой оргтехники как того требуют ПТБ при эксплуатации конкретного вида оборудования, излучающего ЭМИ.
4. Высокое напряжение:
При работе в компьютерном классе оператор подвержен воздействию высокого напряжения. Источниками высокого напряжения в помещении являются ЭВМ, светильники, различная бытовая техника: множительная и копировальная, кондиционеры. Так же оператор может случайно прикоснуться к токоведущим частям ЭУ, к частям ЭУ случайно в данный момент оказавшимся под напряжением. Опасность реализуется при непосредственном контакте с ЭО. Оператор, подвергнувшийся кратковременному воздействию высокого напряжения, может испытать болевой шок, потерять сознание, получить ожоги при плотном контакте с токоведущей частью. Причинами так же может служить плохая изоляция токоведущих проводов в помещении. С этой целью обычно все токоведущие провода и соединительные кабели между ЭВМ и оргтехникой располагаются в местах недоступных для пользователей. При соблюдении ПТБ вероятность подвергнуться воздействию этой опасности сводится к минимуму. Для снижения вероятности реализации этой опасности необходимо проверять изоляцию токоведущих проводов, соединений аппаратов, их исправность
5. Воздействие вредных веществ:
К вредным веществам, которые действуют в помещении компьютерного класса, относятся пыль и выделения паров спирта после профилактической чистки ПК. В помещениях с ПК операторы подвержены воздействию пыли, притягиваемой к работающему и сильно наэлектризованному оборудованию. В процессе работы за ПК при сильной запыленности помещения частички пыли попадают в организм человека, оказывая на него неблагоприятное воздействие, затрудняя дыхание. У некоторых людей воздействие сильная запыленность помещения может вызвать аллергию. Чтобы избежать этого и снизить степень запыленности помещения, необходимо регулярно проветривать помещение компьютерного класса, осуществлять пылеуборку помещения, использовать системы кондиционирования воздуха. Содержание паров этилового спирта в помещении с ПК невелико, так как он используется лишь в профилактических целях, и его воздействию подвергаются операторы кратковременно и очень редко, так как обработка ПК этиловым спиртом производится в конце рабочего дня.
6. Ионизация воздуха:
При работе ПК возникает ионизация среды, которая приводит к физико-химическим изменениям в структуре веществ. Конечный результат ионизации веществ или ОС определяется интенсивностью и продолжительностью облучения. Облучение может вызвать небольшое повышение температуры теля во время работы за компьютером. При продолжительной работе может возникнуть сильное переутомление, что может ослабить защитные свойства организма и сопротивляемость другим заболеваниям.
Высокое напряжение на токоведущих частях схемы ![]()
вызывают ионизацию воздуха с образованием положительных ионов, которые неблагоприятно воздействуют на человека. В ![]()
рабочего воздуха содержится число положительных ионов в диапазоне от 200 до 6000. Воздействию ионизирующего излучения оператор подвергается в процессе работы, находясь в непосредственной близости от монитора. При соблюдении требуемого расстояния между источником ионизирующих излучений и работающим воздействие ионизирующего излучения на организм можно свести к минимуму.
7. Повышенная температура и пониженная влажность воздуха:
При работе любого ЭО выделяется некоторое количество тепла, которое зависит от потребляемой мощности ЭО. Работа ПК приводит к повышению температуры в помещении и понижению влажности воздуха, так как высокопроизводительная техника работает на сверхвысоких частотах, что вызывает сильный нагрев элементов. При работе ПК, образующийся теплый воздух выдувают наружу из системного блока специальные вентиляторы. Это приводит к повышению температуры в помещении и снижению влажности воздуха. Для подержания параметров микроклимата необходимо использовать системы кондиционирования воздуха.
В целом выявление возможных поражающих, опасных и вредных факторов в помещении с техническими средствами и вне его производится при инспектировании предприятий, анализе установленной отчетности по производственному травматизму и заболеваемости работников, а также с помощью современных расчетно-аналитических методов оценки опасностей.
Таким образом, условия труда операторов ЭВМ, несмотря на отсутствие явных вредностей, нуждаются в оптимизации. При проектировании систем искусственного освещения, кондиционирования воздуха мы попытаемся оптимизировать условия труда оператора ПК.
Оценка условий труда работающих в компьютерном классе
Принципы классификации условий труда
Принципы классификации условий труда изложены в РД 2.2.755-99 (2). Исходя из гигиенических критериев, условия труда подразделяются на 4 класса: оптимальные, допустимые, вредные и опасные.
Оптимальные условия труда относятся к 1-му классу. Это такие условия труда, при которых сохраняется здоровье операторов, и создаются предпосылки поддержания высокого уровня работоспособности. Оптимальные нормативы производственных факторов установлены для микроклиматических параметров и факторов трудового процесса. Для других факторов условно за оптимальные принимают такие условия труда, при которых неблагоприятные факторы отсутствуют либо не превышают уровни, принятые в качестве безопасных для населения.
Допустимые условия труда характеризуются такими уровнями факторов среды и трудового процесса, которые не превышают установленных гигиенических нормативов для рабочих мест. Это 2-й класса УТ. Возможные изменения функционального состояния организма восстанавливаются во время регламентированного отдыха или к началу следующей смены и не должны оказывать неблагоприятного действия в ближайшем и отдаленном периоде на состоянии здоровья работающих и их потомство. Допустимые условия труда условно относят к безопасным условиям труда.
Вредные условия труда - это такие условия труда, которые характеризуются наличием вредных производственных факторов, превышающих гигиенические нормативы и оказывающих неблагоприятное действие на организм работающего и/или его потомство. Это 3-й класса УТ. Вредные условия труда по степени превышения гигиенических нормативов и выраженности изменений в организме работающих подразделяются на 4 степени вредности:
1. Первая степень. Условия труда характеризуются такими отклонениями уровней вредных факторов от гигиенических нормативов, которые вызывают функциональные изменения, восстанавливающиеся, как правило, при более длительном (чем к началу следующей смены) прерывании контакта с вредными факторами и увеличивают риск повреждения здоровья.
2. Вторая степень
. Уровни вредных факторов, вызывающие стойкие функциональные изменения, приводят в большинстве случаев к увеличению производственно обусловленной заболеваемости (это проявляется повышением уровня заболеваемости с временной утратой трудоспособности и, в первую очередь, заболеваемости теми болезнями, которые отражают состояние наиболее уязвимых органов и систем для данных вредных факторов), появлению начальных признаков или легких (без потери профессиональной трудоспособности) форм профессиональных заболеваний, возникающих после продолжительной экспозиции (часто после
и более лет).
3. Третья степень . Она характеризуется такими уровнями вредных факторов, воздействие которых приводит к развитию, как правило, профессиональных заболеваний легкой и средней тяжести (с потерей профессиональной трудоспособности) в периоде трудовой деятельности, росту хронической (производственно-обусловленной) патологии, включая повышение уровня заболеваемости с временной утратой трудоспособности.
4. Четвертая степень . Это такие условия труда, при которых могут возникать тяжелые формы профессиональных заболеваний (с потерей общей трудоспособности), отмечается значительный рост числа хронических заболеваний и высокие уровни заболеваемости с временной утратой трудоспособности.
Опасные условия труда . Они относятся к самому вредному 4-му классу УТ. Такие условия труда характеризуются уровнями производственных факторов, воздействие которых в течение рабочей смены (или ее части) создает угрозу для жизни, высокий риск развития острых профессиональных поражений, в том числе и тяжелых форм.
Чтобы оценить условия труда в помещении, необходимо учесть комплекс различных факторов, влияющих на оператора в помещении компьютерного класса. Далее после выявления вредных и опасных факторов произведем их количественную оценку, на основе которой можно будет оценить условия труда по выше приведенным категориям.
Условия труда оценивают по химическому, биологическому и физическому факторам, а так же по напряженности и тяжести трудового процесса. Затем выводят общую оценку на основе установленных ранее оценок по вышеприведенным факторам.
Химический фактор. Оценка УТ.
В воздухе помещений почти всегда присутствуют загрязняющие вещества, которые при превышении установленных нормами пределов могут оказывать неблагоприятное воздействие на работающего.
Существует такое понятие как – ПДК. Это предельно допустимая концентрация вредного вещества, под которой понимают концентрацию вредных веществ в рабочей зоне. Эти вредные вещества при ежедневной работе в течение 8 часов или другой продолжительности (но не более 40 часов в неделю) в течение всего рабочего стажа не могут вызывать заболеваний или отклонений в состоянии здоровья, обнаруживаемых современными методами исследований в процессе работы или в отдаленные сроки жизни настоящего и последующих поколений. Предельно допустимая концентрация выражается в мг/м3 .
По ГОСТ 12.1.007.-76 (3) существует 4 класса опасности вредных веществ: вещества 1-го класса опасности (чрезвычайно опасные вещества, ПДК < 0.1 мг/м3 ), вещества 2-го класса опасности (высоко опасные вещества, ПДК в диапазоне от 0.1 до 10 мг/м3 ), вещества 3-го класса опасности (умеренно опасные вещества, ПДК в диапазоне от 1 до 10 мг/м3 ), вещества 4-го класса опасности (мало опасные вещества, ПДК > 10 мг/м3 ).
Если фактическая концентрация вредного или загрязняющего вещества в воздухе рабочей зоны меньше ПДК этого вещества, то состояние воздушной среды по данному вредному или загрязняющему веществу оценивается как соответствующее нормам. В противном случае оно не соответствует нормам и следует разработать меры по защите людей, подвергающихся воздействию этого вещества.
В помещении компьютерного класса присутствуют вредные вещества 3-4 класса опасности (пыль, этиловый спирт) с концентрациями (0.7 мг/м, 1000 мг/м3 ) . По содержанию данных вредных веществ при сравнении с нормами делаем вывод о классе УТ: допустимый, так как их концентрации меньше ПДК. Для пыли ПДК составляет 0.75 мг/м3 , а для спирта ПДК составляет мг/м3 . Так же пыль и пары этилового спирта относятся и к группе аллергенов одновременно. Других вредных веществ в помещении не обращается. Следовательно, по химическому фактору делаем вывод, что класс УТ 2-й, допустимый .
Биологический фактор. Оценка УТ.
Поражающе действие инфекций и микробов заключается в том, что попав в организм человека в ничтожно малых количествах, болезнетворные микробы и их токсичные продукты вызывают крайне тяжелое заболевание, заканчивающееся (при отсутствии своевременного лечения) длительной потерей трудоспособности или смертельным исходом. Поражающее действие проявляется через какой-то скрытый период. Некоторые заболевания могут передаваться различными путями от больного человека к здоровому человеку.
Патогенные организмы - возбудители инфекционных заболеваний чрезвычайно малы по размерам, не имеют цвета, запаха, вкуса. Они не определяются органами чувств человека.
В помещении компьютерного класса вещества биологического происхождения не обращаются. По биологическому фактору делаем вывод, что класс УТ 1-й, оптимальный.
Физический фактор. Оценка УТ.
Наиболее многочисленными и весьма разнообразными являются физические факторы окружающей среды. К ним относят: природные факторы, антропогенные факторы. Оценка условий труда по физическому фактору осуществляется в несколько этапов:
Этап 1. Оценка УТ по содержанию в воздухе РЗ фиброгенов:
В помещении обращается пыль. Ее можно отнести к аэрозолям фиброгенного действия. Концентрация пыли составляет 0.7 мг/м3 , в то время как ПДК для зала с ПК составляет 0.75 мг/м3 . Других веществ в помещении зала с ПК не обращается. Поэтому класс УТ в помещении по содержанию в воздухе РЗ фиброгенов принимаем допустимым .
Этап 2. Оценка УТ по показателям световой среды РЗ:
Одним из важнейших условий безопасности жизнедеятельности человека является рациональное освещение. Правильно спроектированное и выполненное освещение улучшает условия зрительной работы, снижает утомление, способствует повышению производительности труда и качеству выполняемой работы.
Для освещения рабочих мест применяются естественное, искусственное и совмещенное освещение. Помещения с постоянным пребыванием людей должны иметь естественное и искусственное освещение. Естественное освещение создается прямым солнечным светом и/или диффузионным светом небосвода. Искусственное освещение проектируется двух видов: общее и комбинированное.
Для измерения освещенности применяется специальный прибор – люксомер, работающий автономно и не требующий электропитания. Принцип действия люксметра основан на использовании фотоэлектрического эффекта.
В зависимости от вида выполняемых работ и освещенности для каждого помещения можно установить разряд зрительной работы. При выполнении работ высокой и очень высокой точности следует предусматривать совмещенное освещение в помещении. Категория зрительной работы и ее подразряд определяются наименьшим размером объекта различения в мм.
На основе вышеприведенных положений и вида выполняемых работ в рассматриваемом помещении компьютерного класса можно установить разряд зрительной работы. Оператор воспринимает изображения на экране, должен постоянно следить за динамикой изображения, различать текст рукописных или печатных материалов, выполнять машинописные, графические работы и другие операции, программирует. Очень часто работы ведутся при фиксированном направлении линии зрения оператора на рабочую поверхность. На основе этого разряд зрительной работы устанавливается как I.
Естественная освещенность допустимая, обеспечивается в помещении 4-мя большими окнами. Искусственное освещение составляет 350 лк, что соответствует установленным нормам по освещенности для помещений административных и общественных, по которым освещенность помещений должна находиться в пределах 300…500 лк. Общий класс условий труда по показателям световой среды можно считать оптимальным .
Этап 3. Оценка УТ по уровням шума, вибрации, инфразвука, ультразвука на РМ:
На человека воздействуют различные акустические факторы (шум, ультразвук и инфразвук) и вибрация. Шумы беспорядочно изменяются во времени и вызывают неприятные субъективные ощущения. Они бывают широкополосные, тональные, постоянные, непостоянные. Шум вредно действует на здоровье и труд людей. Он является общебиологическим раздражителем. В результате воздействия шума снижается производительность труда, растет число ошибок при работе, повышается опасность травмирования. С шумом борются ослаблением в источнике, по пути распространения.
Особенности распространения и поглощения ультразвуковых колебаний практически ничем не отличаются от аналогичных характеристик высокочастотного шума. Инфразвук распространяется практически без потерь на значительные расстояния, поэтому с ним борются в источнике. Вибрация бывает общая и локальная. Борьба вибрацией осуществляется при проектировании, изготовлении и эксплуатации технических объектов.
Из перечисленных механических факторов на оператора в зале с ПК воздействует шум. Источниками шума являются различные печатающие устройства, кондиционеры. Однако их уровень шума сведен к минимуму, благодаря использованию звукоизолирующих корпусов. Если оператор и подвергается воздействию шума, то лишь кратковременно при работе печатающих устройств. На этой основе делаем вывод, что класс УТ допустимый .
Этап 4. Оценка УТ по параметрам микроклимата:
Оценку микроклиматических параметров проводят с учетом наличия (или отсутствия) избытков явной теплоты, категории тяжести работы и периода года путем сравнения полученных значений температуры, влажности воздуха и скорости его движения.
Нормирование микроклимата проводят на рабочих местах по комплексным показателям, учитывающим одновременное воздействие двух и более факторов, или раздельно по каждому фактору. Различают оптимальные (комфортные) значения факторов (не вызывают напряжения системы терморегуляции человека), допустимые значения факторов (вызывают напряжения системы терморегуляции человека, но не ухудшают здоровья работающего), переносимые значения факторов (исключают трудовую деятельность, но обеспечивают выживание человека).
Температура воздуха в помещении компьютерного класса в холодное время года составляет 21 o C, в теплое время года – 24 o C. Скорость движения воздуха в помещении составляет менее 1.5 м/с. Влажность менее 65%. Таким образом, класс условий труда по показателям микроклимата можно считать допустимым .
Если значение микроклиматического параметра выходит за пределы, установленные нормативными документами (ГОСТ 12.1.005-88 (4), РД 2.2.755-99 (2)), то нужно разработать предложения по нормализации микроклиматических условий. Сначала устанавливают причину отклонения параметра от нормативного значения, затем разрабатывают конкретные технические решения по обеспечению санитарно-гигиенических требований. При отклонениях параметров микроклимата, их необходимо регулировать местными системами кондиционирования воздуха.
Этап 5. Оценка УТ по неионизирующим ЭМИ:
Источником неионизирующих ЭМИ в помещении компьютерного класса являются ЭУ (компьютеры, множительная техника). Их воздействие на человека происходит в процессе работы с оборудованием. Однако, оргтехника сертифицирована для работы с ней людей, поэтому на определенном расстоянии от оборудования ЭМИ не превышает ПДУ. Обычно это 60…90 см.
В зале с ПК на оператора действуют электростатическое поле напряженностью до 18 кВ/м, постоянные магнитные поля напряженностью до 0.2 А/м, ЭМИ от ПК напряженностью менее 10 В/м, которые на расстоянии долее 60 см уже не превышают ПДУ. Так же на оператора действует в небольших допустимых количествах ультрафиолетовое излучение. На основе перечисленных факторов итоговая оценка УТ по неионизирующим излучениям в помещении с ПК допустимая .
Этап 6. Оценка УТ по ионизирующим ЭМИ:
Источниками ионизации воздуха в помещении с ПК являются мониторы, а в частности их электроннолучевые трубки. При этом дозы облучения от электроннолучевых трубок не превышают ПДУ. Но несмотря на это ионизирующее излучение с выделением положительных ионов оказывает на организм человека некоторое неблагоприятное воздействие. Очень часто при продолжительной работе оператор может почувствовать, что температура его тела несколько возросла. В таких случаях говорят, что “лицо горит”.
Причиной ионизации является высокое напряжение на токоведущих частях схемы электроннолучевой трубки (примерно менее 20 кВ). Оно вызывает ионизацию воздуха положительными ионами. В 1 см3 содержится от 200 до 6000 положительных ионов. Итоговая оценка условий труда по ионизирующему ЭМИ допустимая.
Тяжесть трудового процесса. Оценка УТ:
Тяжесть трудового процесса характеризуется физической динамической нагрузкой (по показателю УТ оптимальные), массой поднимаемого и перемещаемого груза в ручную (по показателю УТ оптимальные), стереотипными рабочими движениями за смену (по показателю УТ допустимые), рабочей позой (по показателю УТ допустимые), перемещениями в пространстве (по показателю УТ оптимальные). Итоговая оценка УТ по всем перечисленным показателям: класс УТ 2-й допустимый .
Напряженность трудового процесса. Оценка УТ:
Индивидуальная защищенность работника при воздействии опасных психологических факторов производственной среды обеспечивается собственными системами защитных реакций, соответствием свойств и состояний человека требованиям, предъявляемым данной деятельностью, профессиональными навыками и умениями (прежде всего в применении безопасных приемов работы), отношением работника к труду и собственной безопасности.
Особенности характера и режима труда, значительное умственное напряжение и другие психоэмоциональные нагрузки могут привести к изменению функционального состояния центральной нервной системы, нервно-мышечного аппарата рук. Нерациональная конструкция и расположение элементов рабочего места вызывают необходимость поддержания вынужденной рабочей позы, что ведет к различным формам заболеваний опорно-двигательного аппарата человека. Отсутствие физической нагрузки и неподвижность оператора – явления, не соответствующие естественному (физиологическому) состоянию человека. При этом не стимулируется деятельность внутренних органов, что ведет к застойным явлениям, неблагоприятно отражающимся на общем тонусе организма и психической деятельности.
Работа оператора связана с восприятием изображения на экране, необходимостью постоянного слежения за динамикой изображения, различением текста рукописных или печатных материалов, выполнением машинописных, графических работ и других операций.
К показателям напряженности трудового процесса относятся такие, как интеллектуальные нагрузки (по показателю УТ допустимые), нагрузки на зрительные органы (по показателю УТ вредные 1 степени), эмоциональное перенапряжение (по показателю УТ допустимые), монотонность работы (по показателю УТ допустимые), режим работы (по показателю УТ оптимальный). Итоговая оценка по напряженности трудового процесса: класс 2-й допустимый .
| Фактор | Класс условий труда | |||||||
| Оптимальный | Допустимый | Вредный | Опасный | |||||
| Степень 1 | Степень 2 | Степень 3 | Степень 4 | |||||
| Химический | + | |||||||
| Биологический | + | |||||||
| Физический | Аэрозоли – Фиброгены | + | ||||||
| Шум | + | |||||||
| Вибрация локальная | + | |||||||
| Вибрация общая | + | |||||||
| Инфразвук | + | |||||||
| Ультразвук | + | |||||||
| ЭМИ | + | |||||||
| Ионизирующее излучение | + | |||||||
| Микроклимат | + | |||||||
| Освещенность | + | |||||||
| Тяжесть труда | + | |||||||
| Напряженность труда | + | |||||||
| Общая оценка условий труда | + | |||||||
Выбор методов и средств обеспечения БЖД работающих в компьютерном зале
Обеспечение БЖД представляет собой сложный процесс, состоящий из решения как научных, так и практических (инженерно-технических) задач.
Научные задачи сводятся к теоретическому анализу и разработке методов идентификации опасных и вредных факторов, комплексной оценке многофакторного влияния их на работоспособность и здоровье человека, оптимизации условий деятельности и отдыха, реализации новых методов защиты, моделированию опасных и чрезвычайных ситуаций и т.д. Практические задачи — это выбор принципов и методов защиты, разработка и рациональное использование средств защиты человека и природной среды от негативных воздействий этих факторов, а также средств, обеспечивающих комфортное состояние среды жизнедеятельности.
В начале обеспечения БЖД выделяются элементарные составляющие, называемые принципами, с помощью которых формируются требования к проведению защитных мероприятий и методы их расчета. Они позволяют находить оптимальные решения защиты от опасностей на основе сравнительного анализа конкурирующих вариантов.
Принципы обеспечения БЖД определяются спецификой производства, особенностями технологических процессов, разнообразием оборудования и т.д. По признаку их реализации они делятся на ориентирующие, технические, управленческие и организационные.
Ориентирующие принципы определяют основополагающие идеи для поиска безопасных решений и служат методологической и информационной базой БЖД. Технические принципы направлены на предотвращение действия опасных и вредных факторов и основаны на использовании физических законов. Управленческие принципы позволяют определять взаимосвязь и отношения между отдельными стадиями, этапами обеспечения БЖД. К ним относятся принципы контроля, адекватности, ответственности, плановости, стимулирования и т.д. К организационным принципам относятся принципы несовместимости, подбора кадров, последовательности, нормирования, информации, защиты временем, рациональной организации труда на рабочем месте и т.д.
По сфере реализации принципы обеспечения БЖД подразделяются на группы:
1. общественно-методологические принципы системности, информации, классификации, организации, планирования, контроля, анализа, управления, эффективности, обучения .
2. медико-биологические принципы нормирования вредных веществ, санитарного зонирования, медицинского профилактического предупреждения, компенсации
3. инженерно-технические принципы экранирования, прочности, недоступности, блокировки, резервирования, дублирования, ограничения.
Применяемые методы в БЖД основаны на перечисленных принципах. Они осуществляют конструктивное и техническое воплощение принципов в реальной действительности.
Современными методами обеспечения БЖД являются:
1. создание оптимальных (нормативных) условий в зонах жизнедеятельности человека
2. идентификация опасных и вредных факторов в этих зонах и снижение их до нормативно допустимых уровней
3. прогнозирование зон повышенного риска и использование защитных мер и специальных служб и формирований для локализации негативных воздействий на объектах с повышенным техногенным риском и для защиты от естественных негативных воздействий
4. подготовка кадров по вопросам БЖД.
Методами и средствами обеспечения БЖД работников в помещении с техническими средствами кроме перечисленных ранее методов, являются:
1. рациональная организация рабочего места
2. эстетизация интерьера
3. улучшение санитарно-гигиенических факторов условий труда
4. рационализация режима труда и отдыха
При организации рабочих мест в помещениях с ПК необходимо учитывать инженерно-психологические характеристики и антропометрические данные человека как при выборе рабочей позы и определении рабочих зон, так и при размещении органов управления и индикаторов.
Размещение органов управления и средств отображения информации на рабочем месте существенно влияет на эффективность действий оператора, особенно на скорость и точность выполнения критических операций. Так рекомендуется располагать органы управления в зоне досягаемости моторного поля с учетом частоты использования и важности этих органов. Их группируют так, чтобы действия человека осуществлялись слева направо и сверху вниз, а также обеспечивалась равномерность нагрузки обеих его рук и ног. Аварийные органы управления должны иметь специальные средства опознавания и предотвращения их непроизвольного и самопроизвольного включения (выключения).
Рабочие места операторов ЭВМ следует размещать в специально выделенных помещениях, отвечающих гигиеническим требованиям в отношении площади (согласно СНиП минимальная площадь рабочего места с ПЭВМ составляет 6 м2 ), условий естественного освещения и систем кондиционирования воздуха. В качестве таких помещений наиболее подходят помещения с северной, северо-восточной или северо-западной ориентацией световых проемов.
Интерьер или внутреннее пространство помещения создается архитектурными формами и отделкой, цветовым решением и системой освещения. Предметное окружение персонала помещения должно сочетаться гармонически и способствовать снижению нервно-психической перегрузки. Цветовую окраску помещений с вычислительными средствами целесообразно выбирать в соответствии с цветом технических устройств, а также учитывать эмоционально-физиологическое воздействие цвета, света и их функционально-эстетическую роль в организации пространства. Так же при выборе цветовой окраски необходимо учитывать требование равномерного распределения яркостей в поле зрения оператора. Более светлая окраска помещения способствует повышению степени освещенности.
Для окраски потолков рекомендуются оптимальные слабонасыщенные цвета с высокой отражательной способностью: белый, слоновой кости, салатовый, светло-бежевый, светло-голубой. Для окраски стен рекомендуют гамму светло-серых, серо-голубых, светло-зеленых, зеленовато-голубых, серо-зеленых, светло-желтых цветов и белого цвета. В отделке помещений должен доминировать один цвет.
Помещения северной стороны рекомендуют окрашивать в цвета теплого оттенка (бежевые, оранжевые, желтые, желто-зеленые), а солнечные помещения окрашивать в цвета холодного оттенка (синие, голубые, зелено-голубые, серо-голубые и белые). При монотонной работе помещение и окружающие предметы следует окрашивать в яркие, бодрящие, но не режущие глаз цвета. При выполнении работ, связанных с нервно-эмоциональным напряжением, должны преобладать спокойные тона холодного, голубовато-зеленоватого оттенка.
Для снижения утомления, сохранения здоровья и повышения работоспособности человека необходимы перерывы в работе по 5…10 мин. через каждый час работы или по 15…20 мин. через каждые два часа работы.
На рабочих местах операторов должны обеспечиваться оптимальные параметры микроклимата, уровень освещенности не менее 400 лк и уровень шума не более 50 дБА, что должно обеспечиваться правильно спроектированной системой искусственного освещения и звукоизолирующими корпусами оборудования.
Проектирование искусственного освещения помещений
Через глаза человек получает около 90% всей информации. Качество ее поступления во многом зависит от освещения. При неудовлетворительном освещении человек напрягает зрительный аппарат, что ведет к утомлению зрения и организма в целом. Одновременно человек теряет ориентацию среди оборудования, что повышает опасность его травмирования. Перед глазами появляются бегающие тени, препятствующие нормальному восприятию окружающей действительности.
В зависимости от источника света освещение может быть:
1. естественным
2. искусственным
3. совмещенным (естественное + искусственное).
По функциональному назначению освещение подразделяется:
1. рабочее (естественный и искусственный свет)
2. аварийное (искусственный свет)
3. эвакуационное (искусственный свет)
4. дежурное (искусственный свет)
Согласно нормативным документам все помещения по задачам зрительной работы подразделяются на 4 группы:
1. Помещения, в которых производится различие объектов зрительной работы при фиксированном направлении линии зрения работающих на рабочую поверхность.
2. Помещения, в которых производится различение объектов при нефиксированной линии зрения и обзор окружающего пространства.
3. Помещения, в которых производится обзор окружающего пространства пир очень кратковременном, эпизодическом различении объектов.
4. Помещения, в которых происходит общая ориентировка в пространстве интерьера.
Искусственное освещение применяется в темное время суток и в помещениях, где нет естественного освещения. По конструктивному исполнению оно подразделяется на общее (равномерное или локализованное) и комбинированное (общее + местное). Одно местное освещение в производственных помещениях не допускается.
Выбор искусственных источников света производят по книгам (19) и (20) в зависимости от характера зрительной работы и цветоразличению.
Рекомендуется искусственное освещение в помещениях с ПЭВМ реализовывать с помощью системы общего равномерного освещения. В производственных и административно-общественных помещениях, в случаях преимущественной работы с документами, допускается применение системы комбинированного освещения (к общему освещению дополнительно устанавливаются светильники местного освещения, предназначенные для освещения зоны расположения документов).
Нормативными документами установлены требования ук освещенности рабочего места оператора. Так по СанПиН 2.2.2.542-96 (6) рекомендуемая освещенность на поверхности стола в зоне размещения рабочего документа 300 – 500 лк. При недостаточности общего освещения допускается установка светильников местного освещения для подсвета документов. Местное освещение не должно создавать бликов на поверхности экрана и увеличивать освещенность экрана более 300 лк.
Источниками искусственного света являются преимущественно лампы накаливания
и люминесцентные лампы
. Нормативными документами рекомендуется использование люминесцентных или газоразрядных ламп для организации системы искусственного освещения. Их достоинствами являются: экономичность, большой срок службы, равномерное освещение в поле зрения, отсутствие тепловых излучений, спектр излучения близок к спектру естественного цвета.
По СанПиН 2.2.2.542-96 (6) в качестве источников света при искусственном освещении должны применяться преимущественно люминесцентные ламп. Люминесцентные лампы должны применяться для общего освещения помещений с работами I-IV разрядов, а также в общественных и административных зданиях.
Для расчета требуемого числа и размещения светильника применяются метод удельной мощности, точечный метод и метод светового потока или коэффициента использования.
Для проектирования системы искусственного освещения воспользуемся методом светового потока, так как будем рассчитывать равномерное общее освещение помещения при освещенности только в горизонтальной плоскости. Выбираем тип источника света: люминесцентная лампа. Согласно нормам, установленным для помещений с ПК минимальная освещенность РМ должна составлять300 лк в горизонтальной плоскости и коэффициент естественной освещенности КЕО = 4%.
Рабочее место оператора состоит из стола с размещенным на нем экраном, клавиатурой и подставкой под документ, кресла и подставки для ног. Высота рабочего стола оператора 0,68…0,84 м. Именно в этой плоскости должна обеспечивать достаточная освещенность.
Тип светильника: подвесной диффузионный светильник для производственных и общественных помещений ЛСП02 с условным номером группы
. Светильники типа ЛСП02 предназначены для работы при нормальных параметрах микроклимата в помещении, которые в зале с ПК обеспечиваются системой кондиционирования воздуха. Коэффициенты отражения от потолка 70%, от стен 50%, от пола 10%. Данные параметры рекомендуются нормами (5) и справочниками (19) и (20).
Расчет системы общего освещения методом светового потока
Определяем высоту подвеса светильника над рабочей поверхностью:
.
Высота помещения
. Высота рабочей поверхности стола по (5)
. Высота свеса светильника от потолка
. Итоговая высота подвеса ![]()
.
Освещаемая площадь помещения:
![]()
Индекс помещения:
![]()
С учетом индекса помещения, коэффициентов отражения потолка стен и пола и типа выбранного светильника определяем коэффициент светового потока
:
![]()
Световой поток принятой лампы
,
: по книгам (19) и (20) выбираем характеристики, соответствующие типу лампы - ЛБ:
- ![]()
, ![]()
-
(минимальная) и
(средняя), ![]()
после
горения 4800+/-250 лм. Таким образом, световой поток ![]()
.
Потребное количество светильников:
![]()
,
(коэффициент затенения для помещений с фиксированным положением оператора),
(коэффициент неравномерности освещения),
- количество люминесцентных ламп в светильнике. Мы выбираем светильник с двумя люминесцентными лампами
.
![]()
Из расчетов видно, что для зала с компьютерами требуется
светильников типа
. Значение
принимаем к размещению светильников.
Разработка рациональной схемы равномерного размещения светильников
Наилучшими вариантами размещения светильников в помещении является шахматное размещение или расположение светильников по сторонам квадрата (расстояние
между светильниками в ряду и между рядами светильников равны) при четном числе светильников. При размещении светильников с люминесцентными лампами последние располагают рядами – параллельно рядам оборудования или оконным проемам. Так же могут быть предусмотрены разрывы между светильниками.
Характеристики выбранного светильника:
· Длина ![]()
![]()
· Ширина ![]()
![]()
· Высота ![]()
![]()
· Две лампы типа
мощностью по ![]()
каждая.
Размеры помещения 12х6 м. С учетом характеристик светильника получаем схему рационального расположения светильников в помещении. Воспользуемся разработанной методикой, позволяющей рационально разместить светильники с люминесцентными лампами в помещении. По конструктивным особенностям помещение предусматривает разрывы между светильниками, если невозможно разместить все светильники в один ряд:
, где
,
- длина светильника,
,
- общая суммарная длина светильников, расположенных в ряд. ![]()
Таким образом, из анализа величины
следует, рациональным будет размещение светильников в 3 ряда по 7 светильников в каждом. Для этого необходимо увеличить число светильников с 20 до 21.
Перед проектированием системы искусственного освещения нужно проверить фактическую освещенность в помещении при числе светильников 21:
![]()
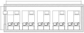
Полученная фактическая освещенность помещения находится в оптимальном диапазоне освещенности помещения согласно (5). Требуемая освещенность помещения компьютерного класса обеспечивается. Рассчитанную систему можно проектировать. Конструктивное решение представлено на рисунке 1.
Проектирование местной системы кондиционирования воздуха для компьютерного класса в помещении “ОАО Электросвязь”
Системы кондиционирования необходимы для автоматического поддержания в закрытых помещениях всех или отдельных параметров воздуха. Системы кондиционирования обеспечивают прием, рециркуляцию, подогрев, сушку, увлажнение и перемещение воздуха по помещению. Системы кондиционирования поддерживают оптимальные или допустимые величины показателей микроклимата.
Методика расчета:
1. Выбор расчетных параметров наружного и внутреннего воздуха для теплого и холодного периода года.
2. Установка размеров помещения, в котором необходима местная система кондиционирования воздуха. Это геометрические размеры помещения.
3. Выявление избытков явного тепла зимой и летом, газовых и пылевых примесей, работающих людей.
4. Определение потребное количество воздуха.
5. выбор системы воздухообмена в помещении.
6. Расчет процессов обработки воздуха и подбор элементов по каталогам для монтирования местной системы кондиционирования.
Кондиционирование следует предусматривать для обеспечения нормируемой чистоты и метеорологических условий воздуха в обслуживаемой или рабочей зоне помещения или отдельных его участков (СНиП 2.04.05-91 (8)).
Проектирование МСКВ осуществляется для помещения с геометрическими размерами
. В помещении может одновременно работать
человек. Выбранное помещение отведено под специализацию по компьютерному моделированию. При определении расчетных параметров воздуха, последние определяют для теплого и холодного периода года.
При выборе оптимальных параметров внутреннего воздуха и наружного воздуха воспользуемся приложениями 1, 2, 5,
(параметр Б) СНиП 2.04.05-91 (8), СН 512-78 (9).
СН 512-78 рекомендует тепловыделения и влаговыделения от людей принимать из условия выполнения ими работ легкой категории для операторов ПК.
По ГОСТ 12.1.005-88 (4) тяжесть труда по энергозатратам нормируется по трем группам: легкие физические работы, работы средней тяжести, тяжелые физические работы.
Легкие физические работы делятся на две подгруппы: работа выполняется сидя (![]()
) и небольшие физические напряжения (![]()
). Работа оператора в компьютерном классе не требует перемещений по помещению или ограничивается минимальным перемещением от рабочего места. В основном это сидячая работа с небольшими физическими нагрузками.
СН 512-78 (9) устанавливает технические нормативы по запыленности и загазованности воздуха в помещениях с ПЭВМ. Установленные нормативы значительно ниже ПДК, установленных СНиП 2.04.05-91 (8). ПДК пыли равен 6 мг/м3
. ПДК этилового спирта ![]()
. Запыленность воздуха в помещениях с ПЭВМ не должна превышать ![]()
.
Выбор схемы воздухообмена для конкретного помещения осуществляется по СНиП 2.04.05-91 (8). Распределение приточного воздуха и удаление воздуха из помещений общественных, административно-бытовых и производственных зданий следует предусматривать с учетом режима использования помещения в течение суток или года, с учетом переменных поступлений теплоты, влаги и вредных веществ.
Приточный воздух следует подавать непосредственно в помещение с постоянным пребыванием людей. По СН 512-78 (9) можно выбрать одну из схем организации воздухообмена в залах с компьютерами следует принимать:
1.
- при тепловой нагрузке, включая поступление тепла через ограждающие конструкции помещения, превышающей ![]()
.
2.
- с удалением воздуха
снизу и
сверху при тепловой нагрузке, превышающей ![]()
.
3.
- при тепловой нагрузке, включая поступление тепла через ограждающие конструкции помещения, не превышающей ![]()
.
Тепловая нагрузка в помещении с работающим ЭО можно найти как: ![]()
- явные избытки тепла от работающего оборудования, тепла освещения, тепла солнечной радиации, тепла ограждающих конструкций и тепла человека. Обычно в помещениях с персональными ЭВМ, то есть в помещениях компьютерных классов применяют схему воздухообмена
.
Тепловыделения от работающего оборудования берутся из паспортных данных на устройства ЭВМ и множительной техники. СН 512-78 (9) рекомендует минимальный расход наружного воздуха в системах кондиционирования принимается из расчета ![]()
на одного оператора, но при этом должен обеспечиваться не менее чем двукратный воздухообмен в час.
Исходные данные для расчета МСКВ
1. Температура наружного воздуха в теплый период года 26 o С и температура наружного воздуха в холодный период года -21 o С.
2. Температура воздуха внутри помещения в теплый период года 22.8 o С и температура воздуха внутри помещения в холодный период года 21 o С
3. Концентрация пыли в помещении 0.7 мг/м3 .
4. Масса выделяющейся выли в помещении 24 мг/ч.
5. Концентрация паров этилового спирта 1000 мг/м3 .
6. Масса выделяющихся паров этилового спирта в помещении 34200 мг/ч.
7. Тепловыделение от одной ЭВМ составляет 230 Вт.
8. Тепловыделение от одного работающего человека 140 Вт.
9. Общее явное избыточное тепло в холодный период года 3700 Вт а теплые время года 5500 Вт.
10. Площадь помещения 72 м2 .
11. Тепловая нагрузка в холодное время года q =52 Вт/м2 и в теплое время года q = 78 Вт/м2
12. Схема воздухообмена “Сверху-вверх”, так как нагрузка не превышает 400 Вт/м2 .
Расчет местной системы кондиционирования воздуха
Потребное количество воздуха
для обеспечения санитарно-гигиенических норм для компьютерного класса:
Потребный расход по избыткам явного тепла летом:
![]()
![]()
Потребный расход по избыткам явного тепла в холодный и переходный период:
![]()
![]()
Потребный расход по выделяющимся вредностям (пыль, пары спирта) в помещении:

![]()

![]()
Далее сравниваем величины найденных потребных расходов и принимаем к дальнейшему расчету наибольшую из них. Следовательно, расход потребного количества воздуха для обеспечения санитарно-гигиенических норм равен ![]()
![]()
Предел регулирования в холодный период года. Так как
и
, то ![]()
.
Потребное количество воздуха для обеспечения норм взрывопожарной безопасности. Расчет потребного количества воздуха ведется по массе выделяющихся вредных веществ в данном помещении, способных к взрыву. Нижний концентрационный предел по этиловому спирту равен ![]()
, а по пыли - ![]()
.
Потребное количество воздуха по пыли:

![]()

![]()
Принимаем наибольшее значение из рассчитанных ранее значений требуемого расхода для обеспечения норм взрывопожарной безопасности по выделяющимся вредным веществам в помещении. Таким образом, принимаем расход ![]()
![]()
Потребное количество кондиционированного воздуха
для данного помещения. Сравниваем потребные расходы для обеспечения норм взрывопожарной безопасности с потребным количеством воздуха для обеспечения санитарно-гигиенических норм: ![]()
и ![]()
. Для расчета принимаем величину ![]()
.
Минимальное количество наружного воздуха на работающих людей в данном помещении
![]()
![]()
Выполняется неравенство
. Значит значение
является потребной производительностью по воздуху местной системы кондиционирования воздуха с подачей ![]()
наружного воздуха и регулированием ее до ![]()
в холодный период года.
![]()
![]()
![]()
![]()
Выбор типа автономного кондиционера
В больших помещениях, МСКВ следует предусматривать не менее чем с двумя кондиционерами одинаковой производительности. При выходе из строя одного из кондиционеров необходимо обеспечить не менее
требуемого воздухообмена и заданную температуру в холодный период года. При наличии технологических требований к постоянству заданных параметров в помещении следует предусматривать установку резервных кондиционеров для поддержания требуемых параметров воздуха.
Для зала с ПК в здании “ОАО Электросвязь” необходимо выбрать больше, чем два кондиционера. По таблице основных технических характеристик автономного кондиционера ![]()
выбираем тип автономного кондиционера, исходя из способа подачи воздуха в помещение и необходимой производительности по воздуху.
Осуществим выбор типа автономного кондиционера для обеспечения схемы воздухообмена “Сверху – вверх”. Для обеспечения требуемой схемы воздухообмена подходят кондиционеры типов КТА2-5-02 и типа БК. Однако по конструктивным особенностям помещения предпочтительным является использование кондиционеров типа БК, так как они устанавливаются в окнах обслуживаемого помещения.
В качестве автономного кондиционера выберем кондиционер типа БК, который устанавливают только в окнах (внизу или вверху) обслуживаемого помещения.
Формулы для расчета потребного числа кондиционеров:
и ![]()
, при
и ![]()
| Характеристика | Тип автономного кондиционера | |||
| БК-1500 | БК-2000 | БК-2500 | БК-3500 | |
| Производительность по воздуху, |
400 | 500 | 630 | 800 |
Холодопроизводительность
|
1740 | 2300 | 2900 | 3480 |
| 12.9 | 10.3 | 8.2 | 6.45 | |
| 3.2 | 2.4 | 1.9 | 1.6 | |
Анализируем полученные данные в направлении определения необходимого числа кондиционеров
. Условия выбора числа автономных кондиционеров:
. Этому условию удовлетворяют все рассматриваемые кондиционеры. Выберем более мощный кондиционер. Данным условиям удовлетворяет кондиционер типа БК-3000. Таких кондиционеров требуется для помещения 7, чтобы обеспечивать нормальные параметры микроклимата в помещении с ПК.
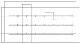
Конструктивные решения
Выбранный нами автономный кондиционер БК-3000 подходит для осуществления схемы воздухообмена
. К установке в помещении необходимы 7 кондиционеров типа БК-3000. Размещение кондиционеров в помещении представлено на рисунке 3. Выбранные кондиционеры размещают в обслуживающем помещении на окнах. В помещении обеспечиваются более комфортные условия работы по вибрации и шуму. Более мощные кондиционеры в данном случае выгоднее также с экономической точки зрения и меньшее количество кондиционеров проще обслуживать.
Проектирование молниезащиты зданий и сооружений
Для защиты здания от ударов молнии необходимо обеспечить его молниезащиту. Молниезащите подлежит здание “ОАО Электросвязь”. Его габаритные размеры: высота 20 м, длина фасада 20 м, глубина 40 м. Тип молниезащиты здания II (РД 34.21.122 (10)). Здание расположено в городской застройке, и часть здания отведена под компьютерные залы. Среднегодовая продолжительность гроз в Твери составляет
. Следовательно, среднегодовое число ударов молнии в ![]()
земной поверхности составляет
. Ожидаемое количество поражений молнией объекта в год составляет:
Тип зоны защиты при использовании стержневых и тросовых молниеотводов относится к зоне Б.
Здания и сооружения II категории по молниезащите должны быть защищены от прямых ударов молнии, вторичных ее проявлений и заноса высокого потенциала через наземные (надземные) и подземные металлические конструкции (РД 34.21.122 (10)).
Для защиты здания “ОАО Электросвязь” от прямых ударов молнии берем молниеотвод стержневой, который состоит из молниеприемника, опоры, токоотвода и заземлителя. Обычно на практике металлическая мачта или ферма здания представляет собой молниепремник, опору и токоотвод одновременно. Стержневые молниеотводы будут установлены на нашем объекте.
Выбираем число стержневых молниеотводов. При выборе числа стержневых молниеотводов будем руководствоваться утверждениями о том, что при больших размерах защищаемого объекта одиночный стержневой молниеотвод будет значительных размеров, двойной – огромных, что создаст трудности в их монтаже и обеспечении устойчивости. Поэтому чаще всего применяют многократный стержневой молниеотвод, который не имеет данных недостатков. Так как применение многократного стержневого молниеотвода будет рациональным, то дальнейший расчет молниезащиты проведем для многократного стержневого молниеотвода.
Количество молниеотводов устанавливается в зависимости от ширины и длины объекта, а также его конфигурации. Для обеспечения защиты здания “ОАО Электросвязь” площадью 72 м2 достаточно будет 4-х стержневых молниеотводов.
При расчетах будем использовать следующие величины:
- высота защищаемого здания,
- высота стержневого молниеотвода,
- высота зоны защиты,
- радиус зоны защиты на уровне земли,
- радиус зоны защиты на высоте здания
.
Габаритные размеры одиночного стержневого молниеотвода для зоны типа Б:
![]()
При расчете зоны защиты многократных стержневых молниеотводов, высота одного стержневого молниеотвода вычисляется по формуле:
.
![]()
Если высота стержневого молниеотвода недостаточна для обеспечения защиты объекта по высоте, то необходимо увеличить
на
. Для расчета многократных стержневых молниеотводов принимаем их высоту равной 25 м. Вычислим радиусы зон защиты системы молниеотводов:

Расчет зоны защиты ведем отдельно для каждой пары молниеотводов. Для этого расположим молниеотводы по периметру здания и разделим на пары: №3-№4 и №1-№2. Остальные пары полностью идентичны. Для пары №3-№4
:
![]()
|
![]()
![]()
Для пары
и
:
![]()
Так как
и
, то группа стержневых молниеотводов с высотой
обеспечивает защиту здания по высоте.
Вычерчиваем в масштабе зону защиты
рассчитанных стержневых молниеотводов для здания “ОАО Электросвязь”. План и боковой виды изображены на рисунке 4. Полученная зона защиты объекта накрывает все здание. Все части объекта находятся внутри зоны защиты (показана на рисунке штриховкой). По высоте все части здания “ОАО Электросвязь” находятся внутри зоны защиты. Следовательно, обеспечена полная защита от прямого удара молнии на этом объекте.
Конструктивные решения по проектируемой молниезащите здания корпуса ТГУ
На основе требований РД 34.21.122-87 (10) выберем конструкцию токоотвода заземлителя, молниеприемника. Опоры стержневых молниеотводов должны быть рассчитаны на механическую прочность как свободно стоящие конструкции.
Стержневые молниеприемники должны быть изготовлены из стали любой марки сечением не менее ![]()
и длиной не менее ![]()
, защищены от коррозии оцинкованием, лужением или краской.
Соединения молниеотводов с токоотводами и токоотводов с заземлителями выполнены сваркой. При установке молниеотводов на защищаемом объекте допускается прокладывать токоотводы к заземлителям по наружным стенам здания кратчайшим путем, но не ближе чем в
от входов или в местах, не доступных для прикосновения людей.
Допускается использование любых конструкций железобетонных фундаментов зданий и сооружений в качестве естественных заземлителей молниезащиты.
С учетом требований выберем в качестве естественного заземлителя железобетонный фундамент защищаемого здания “ОАО Электросвязь”. Так как при этом выполняется условие обеспечения непрерывной электрической связи по их арматуре и присоединения ее к закладным деталям с помощью сварки. В качестве заземлителей молниезащиты допускается использовать все рекомендуемые ПУЭ заземлители.
Мероприятия по защите от вторичных проявлений молнии
1. Металлические конструкции и корпуса всего оборудования и аппаратов, находящиеся в защищенном здании, должны быть присоединены к заземляющему устройству электроустановок или к железобетонному фундаменту здания. Наименьшие допустимые расстояния в земле между этим заземлителем и заземлителями защиты от прямых ударов молнии должны быть в соответствии с ПУЭ.
2. Внутри зданий между трубопроводами и другими протяженными металлическими конструкциями в местах их взаимного сближения на расстояние менее ![]()
через каждые ![]()
следует приваривать или припаивать перемычки из стальной проволоки диаметром не менее ![]()
или из стальной ленты сечением не менее ![]()
. Для кабелей с металлическими оболочками или броней перемычки должны выполняться из гибкого медного проводника.
3. В соединениях элементов трубопроводов или других протяженных металлических предметов должны быть обеспечены переходные сопротивления не более ![]()
на каждый контакт. При невозможности обеспечения контакта с указанным переходным сопротивлением с помощью болтовых соединений необходимо устройство стальных перемычек. Во фланцевых соединениях трубопроводов внутри здания следует обеспечить нормальную затяжку не менее
болтов на каждый фланец.
Мероприятия по заносу высокого потенциала через металлические коммуникации
К металлическим коммуникациям относятся ЛЭП, сети телефона, радио и сигнализации, трубопроводы, кабели в наружных металлических оболочках или трубах. Защита от заноса высокого потенциала по подземным коммуникациям осуществляется присоединением их на вводе в здание к заземлителю электроустановок или к заземлителю защиты от прямых ударов молнии.
Защита от заноса высокого потенциала по воздушным линиям электропередачи, сетям телефона, радио и сигнализации должна осуществляться следующим образом: ввод в здания воздушных линий электропередачи напряжением до ![]()
, сетей телефона, радио, сигнализации должен осуществляться только кабелями длиной не менее ![]()
с металлической броней или оболочкой или кабелями, проложенными в металлических трубах. На вводе в здание металлические трубы, броня и оболочки кабелей, в том числе и с изоляционным покрытием металлической оболочки, должны быть присоединены к железобетонному фундаменту здания. В месте перехода воздушной линии электропередачи в кабель металлические броня и оболочка кабеля, а также штыри или крючья изоляторов воздушной линии должны быть присоединены к заземлителю.
Защита от заноса высокого потенциала по внешним наземным (надземным) коммуникациям выполняется путем их присоединения на вводе в здание к заземлителю электроустановок или заземлителю защиты от прямых ударов молнии, а на ближайшей к вводу опоре коммуникации – к ее железобетонному фундаменту.
Защита от заноса высоких потенциалов по воздушным линиям электропередачи напряжением выше ![]()
, вводимым в подстанции, размещенные в защищаемом здании, должна выполняться в соответствии с ПУЭ (12).
Кроме того, в месте перехода воздушной линии электропередачи в кабель между каждой жилой кабеля и заземленными элементами должны быть обеспечены закрытые воздушные искровые промежутки длиной ![]()
, установлен вентильный разрядник низкого напряжения.
Прогнозирование зон радиоактивного заражения местности и внутреннего поражения человека при аварийном выбросе на АЭС
Будем вести расчет зон радиоактивного заражения после разрушения реактора
с выбросом продуктов деления
и ![]()
. Затем оценим обстановку на ОЭ в городе Тверь и осуществим выбор режима радиационной защиты работающих ОЭ и населения города Тверь. При аварии на АЭС с разрушением реактора образуются пять зон радиоактивного внешнего заражения: ![]()
(зона слабого радиоактивного заражения),![]()
(зона умеренного радиоактивного заражения), ![]()
- зона сильного радиоактивного заражения, ![]()
(зона опасного радиоактивного заражения), ![]()
(зона чрезвычайно опасного радиоактивного заражения). Так же при аварии на АЭС с разрушением реактора образуются две зоны внутреннего (ингаляционного) поражения: ![]()
(зона опасного внутреннего поражения), ![]()
(зона чрезвычайно опасного внутреннего поражения)
| Время аварии | Облачность | Установленная доза | Удаление объекта от АЭС | Скорость ветра на высоте 10 м | |||||||||||
| Сплошная облачность | |||||||||||||||
| Продолжительность нахождения людей в различных условиях в течение суток T, ч и коэффициенты ослабления K радиации в этих условиях | |||||||||||||||
| На рабочем месте | В транспорте | На открытой местности | В зоне отдыха | ||||||||||||
| Характеристика зон радиоактивного заражения | |||||||||||||||
| Тип зоны | Длина зоны |
Ширина зоны |
|||||||||||||
| - | |||||||||||||||
| - | |||||||||||||||
| - | |||||||||||||||
| - | |||||||||||||||
| Не образуется | |||||||||||||||
| - | - | ||||||||||||||
| - | - | ||||||||||||||
|
|
|
|
|
|

Рисунок 2. Схема зон радиационного заражения и внутреннего поражения
“ОАО Электросвязь” попадает в зону между
и
. Таким образом, он находится в зоне слабого радиоактивного заражения. Время начала выпадения радиоактивных осадков над объектом: ![]()
или
часа
примем для окончательного расчета ![]()
Вычисляем время формирования радио активного следа: методом экстраполяции получаем
. Определяем уровень радиации на один час после аварии:
, где
- доза до полного распада. Методом интерполяции получаем:
для зоны
: ![]()
для зоны
: ![]()
Решая систему уравнений, находим:
и
. По определенным коэффициентам вычисляем
и
:
![]()
![]()
![]()
![]()
Определяем уровни радиации на ОЭ на различное время суток: уровни радиации определяют по формуле
, где
- коэффициент пересчета.
Уровень радиации на начало выпадения осадков:
![]()
![]()
![]()
![]()
Уровень радиации на конец рабочей смены:

![]()
![]()
![]()
Уровень радиации за первую смену:
![]()
![]()
Уровень радиации на конец первых суток с начала выпадения осадков:
![]()
![]()
![]()
![]()
Уровень радиации на конец третьих суток:
![]()
![]()
![]()
![]()
Определяем дозу облучения, полученную на открытой местности за первые сутки:
![]()
![]()
Так как
, то подбирать режим радиационной защиты не надо для персонала ОЭ и населения города Тверь.
Суммарная доза, полученную работающим первой смены:
![]()
Все составляющие
определяются по формуле:
![]()
,
- период облучения работающих в различных условиях,
- коэффициент ослабления в этих условиях.
,
- доза, полученная работающим на открытой местности в течение времени облучения
. Коэффициент ослабления
.
![]()
Так как
, то
, ![]()
![]()
![]()
![]()
![]()
![]()
![]()
![]()
Таким образом, доза ![]()
![]()
,
-доза, полученная работающим на рабочем месте за
рабочую смену в течение времени облучения
. Коэффициент ослабления
.
![]()
Так как
, то
, ![]()
![]()
![]()
![]()
![]()
Таким образом, доза ![]()
![]()
,
- доза, полученная работающим от проходящего радиоактивного облака.
![]()
![]()
![]()
![]()
,
- доза, полученная в транспорте.
![]()
,
- доза, полученная работающим при переезде к месту работы за время
. Коэффициент ослабления
.
, где
,
- время, проведенное рабочим в транспорте. ![]()
,
- доза, полученная работающим при переезде с места работы за время
. Коэффициент ослабления
.
, где
,
- время, проведенное рабочим в транспорте.
, ![]()
![]()
![]()
![]()
![]()
![]()
![]()
,
- доза, полученная работающим за время
его отдыха в зоне отдыха с коэффициентом ослабления
.
, ![]()
->![]()
![]()
![]()
![]()
![]()
Суммарная доза:
![]()
![]()
Так как
, никаких пересчетов и внесений поправок в величину
не требуется. Так как величина ![]()
не велика, то никаких радиационных потерь людей на ОЭ не будет. Что касается групповой трудоспособности людей, то потери трудоспособности наблюдаться не будет. Население будет полностью трудоспособно.
Далее необходимо подобрать безопасный режим радиационной защиты для рабочих и для населения, находящегося в условиях радиоактивного заражения местности. Безопасным считается такой режим, когда облучение людей не выше суточной установленной дозы ![]()
. Он характеризуется коэффициентом безопасной защищенности
:
![]()
- суточная доза радиации, накапливаемая на открытой местности за сутки
![]()
. Она установлена нормами радиационной безопасности для выполнения аварийных работ.
![]()
, где
и
.
![]()
![]()
![]()
![]()
![]()
![]()
![]()
Так как величина
, то фактическая доза радиации за сутки меньше установленной допустимой нормы. И, следовательно, нет необходимости в уменьшении фактической дозы радиации.
Суточный коэффициент защищенности
:

Величина
показывает во сколько раз доза облучения, полученная людьми при данном режиме меньше дозы, которую они получили бы за то же время на открытой местности. Следовательно, люди получили бы в ![]()
дозу облучения меньше, находясь в защитных зданиях, сооружениях, машинах в течение суток, чем на открытой местности. Сравнивая суточный коэффициент защищенности
и коэффициентом безопасной защищенности
, получаем, что
. Следовательно, радиационная безопасность обеспечивается. Максимальное допустимое время работы персонала ОЭ:

![]()
![]()
Так как
, то радиационная безопасность обеспечивается при любом режиме работы персонала ОЭ.
Инженерные решения по результатам прогнозирования
ОЭ с городом Тверь в результате аварии на АЭС с разрушением реактора может попасть в зону слабого радиоактивного заражения
. А по внутреннему поражению не попадет ни в зону опасного внутреннего поражения
, ни в зону чрезвычайно опасного внутреннего поражения
. При этом уровень радиации к моменту выпадения радиоактивных осадков (это произойдет через
после аварии) составит ![]()
. Данный уровень на превышает естественного радиационного фона, равного ![]()
![]()
![]()
![]()
. Прогнозируемая доза за первые сутки на открытой местности и в помещениях ОЭ может составить соответственно ![]()
и ![]()
, что меньше ![]()
.
Радиационные поражения людей не ожидаются, так как ![]()
и ![]()
, что меньше ![]()
. Работающие сохраняют работоспособность полностью, потому что радиационная безопасность обеспечивается при любом режиме работы и прогнозируемая доза меньше ![]()
.
РРЗ для рабочих ОЭ не требуется, так как он обеспечивается при любом режиме работы ОЭ. РРЗ населения города не предусматривается, необходимости эвакуации населения на незараженную местность нет. Дозовый критерий для принятия решения о защите рассчитывать не надо, так как
.
Основные мероприятия по электробезопасности, охране труда, предупреждению аварий, пожаров и по ликвидации возникших чрезвычайных ситуаций.
1. Технические способы и средства, организационные и технические мероприятия по обеспечению электробезопасности при эксплуатации электрооборудования компьютерного класса.
Электробезопасность – это система организационных и технических мероприятий и средств, обеспечивающих защиту людей от вредного и опасного воздействия электротока, электродуги, электромагнитного поля, статического и атмосферного электричества. Согласно ГОСТ 12.1.019-79 (11) и ПУЭ (12) она обеспечивается как в электроустановках, так и на РМ одновременной реализацией трех принципов:
· конструкцией ЭУ
· техническими способами и СЗ
· организационными и техническими мероприятиями.
Первые два принципа применяют в основном при проектировании, изготовлении (включая испытания и ввод в эксплуатацию) и размещении ЭУ, а третий принцип – только при их эксплуатации.
Выбор технических способов и СЗ для обеспечения электробезопасности зависит от вида опасности:
· от опасного и вредного действия электротока и электродуги;
· от электромагнитного поля
· от статического электричества
· от разрядов и воздействия атмосферного электричества.
Электрические установки, к которым относится все оборудование ПЭВМ, представляют для человека потенциальную опасность. Воздействие тока может привести к электрической травме, то есть повреждению организма электрическим током или электрической дугой.
Исключительное значение для предотвращения электрического травматизма имеет правильная организация обслуживания действующих электрических установок, установленная “Правилами технической эксплуатации электроустановок потребителей” (ПТЭ) и “Правилами устройства электроустановок” (ПУЭ). Помещения, где находятся рабочие места операторов, относятся к категории помещений без повышенной опасности, оборудование относится к классу до 1000 В . Оператор работает с оборудованием на 220 В. Наиболее частыми бывают случаи касания рукой или другими частями тела корпусов компьютеров и дисплеев. Для предотвращения электротравматизма необходимо применять наиболее дешевый и эффективный способ защиты, которым является зануление. Человек-оператор должен быть обучен правилам эксплуатации электрооборудования и оказанию первой помощи при поражении электрическим током.
Для предотвращения образования и защиты от статического электричества необходимо использовать нейтрализаторы и увлажнители, а полы должны иметь антистатическое покрытие. Защита должна проводиться в соответствии с Санитарно-гигиеническими нормами допускаемой напряженности электростатического поля - ее уровень не должен превышать 20 кВ в течение часа.
Очень важным, волнующим и сложным является вопрос электромагнитного излучения видеомонитора. Все большее число специалистов признают, что они не обладают достаточным запасом знаний, чтобы с уверенностью говорить о безопасности излучения дисплея. Спектр излучения компьютера включает в себя рентгеновскую, ультрафиолетовую и инфракрасную области спектра, а также широкий диапазон электромагнитных волн других частот. Опасность рентгеновских лучей считается сейчас специалистами пренебрежимо малой, поскольку этот вид лучей полностью поглощается веществом экрана. Внимание исследователей в настоящее время привлекают биологические эффекты низкочастотных электромагнитных полей, которые до недавнего времени считались абсолютно безвредными.
Для снижения потенциально опасного излучения видеотерминалов целесообразно предпринимать специальные меры защиты от низкочастотных полей. Поскольку источник высокого напряжения дисплея - строчный трансформатор - помещается в задней или боковой части терминала, уровень излучения со стороны задней панели дисплея выше, причем стенки корпуса не экранируют излучение. Поэтому пользователям следует находиться не ближе чем на 1.2 метра от задних или боковых поверхностей соседних терминалов.
Наблюдения и исследования последних лет выявили также целесообразность установки в непосредственной близости от дисплеев горшков с кактусами, присутствие которых снижает интенсивность и вредное влияние электромагнитного излучения дисплея.
В помещении должны быть предусмотрены защитные оболочки для токоведущих частей, обеспечивающими полную (частичную) защиту человека от прикосновения. Токоведущие части должны иметь безопасное расположение, что достигается их размещением на такой высоте, чтобы человек или передвижная машина не смогли прикоснуться к ним в процессе работы.
По (14) наружные электропроводки временного электроснабжения должны быть выполнены изолированным проводом и размещены на опорах на высоте не менее ![]()
от уровня земли, пола или настила над рабочим местом, не менее ![]()
над проходами и не менее ![]()
над проездами. Светильники общего освещения напряжением
и ![]()
устанавливаются на высоте не менее ![]()
от уровня земли, пола или настила.
Для уменьшения вероятности электротравматизма необходимо осуществлять периодический контроль изоляции измерением сопротивления изоляции. Контроль осуществляется на стадиях монтажа, ремонта, аварийного отключения или длительного пребывания в бездействии ЭУ, в процессе эксплуатации ЭУ.
Прекрасным дополнением к общей защите от ЧС и аварий являются системы автоматического отключения в случае возникновения опасности. Это быстродействующая защита, которая обеспечивает автоматическое отключение ЭУ при возникновении в ней опасности поражения током. Такая опасность возникает при снижении сопротивления изоляции фаз ниже предельно допустимого уровня, появлении на корпусе ЭУ опасного сочетания тока и времени его протекания, однофазном замыкании на землю, а также в случае прикосновения человека непосредственно к токоведущей части, которая находится под напряжением.
2. Общие мероприятия по охране окружающей среды при работе ЭВТ
Стандарты требуют, чтобы оборудование в процессе эксплуатации не загрязняло среду обитания ни физическими, ни химическими и ни биологическими факторами выше нормативов безопасности и экологичности.
Как уже говорилось выше, современная вычислительная техника конструируется и производится с соблюдением строжайших санитарно-гигиенических требований. Компоненты ПК сами по себе не являются источниками каких-либо отравляющих или вредных веществ. Однако в процессе эксплуатации вычислительной техники и при планировании мероприятий по охране окружающей среды следует учитывать следующие обстоятельства:
· компьютер является источником избытков явного тепла
· конструкция стандартного ПК способствует накоплению в нем частичек пыли, что в определенных ситуациях может служить источником запыленности помещения;
· спирт и другие вещества, применяемые для протирки компонентов и комплектующих деталей ПК, могут явиться источником вредных или ядовитых паров.
Как мы видим, основное влияние вычислительная техника оказывает на воздушную среду помещения. В помещениях с ПЭВМ рекомендуется применять кондиционеры, и именно они являются основным средством охраны окружающей среды от вышеперечисленных факторов. Например, спроектированная нами система кондиционирования воздуха кондиционерами типа БК-3000. Входящие в состав кондиционеров средства охлаждения воздуха, компенсируют выделение избытков тепла, а средства очистки воздуха и фильтры очистят воздух от пыли и паров. Для предотвращения запыленности помещения рекомендуется регулярно проводить процедуру удаления пыли из системного блока с помощью пылесоса и ветоши смоченной в техническом, медицинском или пищевом спирте. Помещение, в котором устанавливается множительный аппарат или компьютер, должно хорошо проветриваться (желательно с кондиционированием) объемом воздуха не менее ![]()
на один аппарат.
3. Мероприятия по предупреждению аварий и пожаров и ликвидации их последствий
Пожаровзрывобезопасность - это состояние объекта экономики и его технологических процессов, при котором с установленной вероятностью исключается возможность пожара и взрыва и воздействие на людей их опасных факторов, а также осуществляется защита материальных ценностей. Она обеспечивается комплексом организационных, противопожарных, инженерно-технических и специальных мероприятий и средств, как при эксплуатации объектов, так и в случаях их реконструкции, ремонта или аварийной (чрезвычайной) ситуации. Следовательно, она реализуется постоянно на объекте, функционирующем в штатном (нормальном) режиме или в ЧС. При этом нормальный пожаровзрывобезопасный режим на объекте экономики предотвращает возникновение пожара и взрыва, а в итоге – возникновение и развитие ЧС.
Требуемый уровень пожарной безопасности объекта должен быть не менее 0.999999 предотвращения воздействия опасных факторов в год в расчете на каждого человека, а допустимый уровень пожарной опасности – не более 10-6 воздействия опасных факторов пожара в год на каждого человека.
В организационно-технические мероприятия входят организация пожарной охраны, паспортизация горючих веществ, материалов, технологических процессов и зданий по пожарной безопасности, разработка и реализация правил и инструкций по пожарной безопасности, соблюдение противопожарного режима …
Классификация помещений и зданий по взрывопожарной и пожарной опасности осуществляется по (15). Все помещения и здания (15) делит на пять категорий А, Б, В, Г, Д в зависимости от размещаемых в них процессов и пожаровзрывоопасных свойств находящихся там веществ и материалов. Эти категории устанавливают в соответствии с требованиями ПУЭ (12).
Здание “ОАО Электросвязь” относится к категории В (пожароопасная) по пожаровзрывобезопасности. К этой категории относят помещения, в которых находятся горючие и трудно горючие жидкости, твердые горючие и трудно горючие вещества и материалы (в том числе пыли и волокна с низким концентрационным пределом ![]()
). А так же вещества и материалы, способные при взаимодействии с водой,
воздуха или друг с другом только гореть, при условии, что эти помещения не относятся к категориям
и
(пожаровзрывоопасные). Помещения в здании “ОАО Электросвязь’ оборудованы установками автоматического пожаротушения, углекислотными огнетушителями.
Правила устройства электроустановок (12) с учетом взрывоопасных свойств и количеств, находящихся в производственных помещениях и наружных установках предусматривают классификацию взрывоопасных зон. По ПУЭ (12) взрывоопасные зоны делят на шесть классов:
,
,
,
,
,
.
Помещение компьютерного класса относится к зоне класса
. В них могут образовываться взрывоопасные пылевоздушные смеси только при авариях или неисправностях.
ПУЭ (12) с учетом взрывоопасных свойств и количеств, находящихся в производственных помещениях и наружных установках предусматривают классификацию пожароопасных зон. Пожароопасные зоны делятся на четыре класса:
,
,
,
.
Здание “ОАО Электросвязь” относится к зоне класса
. Это зоны помещений, в которых выделяются горючие пыли с нижним концентрационным пределом более ![]()
.
Классы зон по ПУЭ (12) определяют требования к исполнению электрооборудования, применяемого в этих зонах, в части предупреждения появления источника зажигания, а, следовательно, возникновения взрыва или пожара.
Пожарная безопасность объекта обеспечивается системами предотвращения пожара и противопожарной защиты, а также организационно-техническими мероприятиями при его эксплуатации. Предотвращение пожара должно достигаться предотвращением образования горючей смеси и возникновения или появления в ней источников зажигания. Предотвращение образования горючей смеси решается технологическими методами (вакуумированием или герметизацией пожароопасных технологических процессов, применением флегматизаторов и так далее).
Предотвращение появления источников зажигания обеспечивается применением машин и оборудования, не создающих этих источников, особого исполнения электрооборудования в пожароопасных и взрывоопасных зонах, защитой от статического и атмосферного электричества, ликвидацией условий для самовозгорания, установкой быстродействующих средств защитного отключения возможных источников зажигания и т.д.
Для тушения пожаров используют физический и химический способы. При физическом способе применяют охлаждение, разбавление и изоляцию, а при химическом способе – флегматизацию. Сущность последней заключается в связывании активных центров цепной реакции горения. Для флегматизации проводят объемные разбавления горючей среды флегматизирующими веществами и составами, а для твердых и жидких горючих веществ - орошение их поверхности теми же веществами и составами.
Метод охлаждения действует при орошении горючих веществ водой, перемешивании слоев горячей жидкости и удалении горящих веществ и материалов из очага пожара. При разбавлении инертными газами и парами снижается концентрация горючих веществ и окислителя. Изоляция направлена на отключение механизма воспламенения, для чего используют отрыв пламени воздушной ударной волной и изоляцию поверхности горючих веществ водой слоем пены, кошмой, песком.
Горючими компонентами в помещениях с вычислительной техникой могут быть строительные материалы для акустической и эстетической отделки помещений, перегородки, оконные рамы, двери, полы, мебель, изоляция кабелей, конструктивные элементы из пластмасс, жидкости для очистки элементов и узлов ЭВМ от загрязнения. Источником зажигания - электрические искры, дуги и перегретые участки элементов и конструкций устройств ЭВМ, систем кондиционирования воздуха и электроснабжения.
Современные пожары возникают из-за причин неэлектрического и электрического характера. К причинам неэлектрического характера относят:
· неосторожное и халатное обращение с огнем
· неправильное устройство или неисправность отопления
· неисправность оборудования и нарушение режима производственного процесса
· неправильное устройство и неисправность систем вентиляции и кондиционирования воздуха
· самовоспламенение, самовозгорание отдельных веществ
· взрывы пыли, газов или паров
С целью устранения этих причин предусматривают мероприятия организационного, эксплуатационного, технического и режимного характера.
К организационным мероприятиям относят: обучение работающих противопожарным правилам, проведение инструктажей и т.п. К самостоятельной работе на ПЭВМ и на современных множительных аппаратах, которые находятся в компьютерном классе, допускаются лица, прошедшие предварительное медицинское освидетельствование, получившие вводный инструктаж, первичный инструктаж на рабочем месте и обученные безопасным приемам к методам труда в течение
смен, получившим группу по электробезопасности 1 или 2.
Один раз в шесть месяцев работники проводят повторный инструктаж. Лица, не получившие все виды инструктажа, к самостоятельной работе не допускаются. При нарушении требований инструкции и правил безопасности проводится внеплановый инструктаж.
К эксплуатационным мероприятиям - правильную эксплуатацию техники и оборудования, правильное содержание зданий и территорий; к технологическим мероприятиям - соблюдение противопожарных правил при устройстве отопления, вентиляции и кондиционирования воздуха; к режимным мероприятиям — запрещение курения в не установленных местах, производства сварочных работ в пожароопасных помещениях.
К причинам электрического характера относят короткое замыкание, перегрузки, большие переходные сопротивления, искрение и электрические дуги, статическое электричество. К мерам предупреждения этих причин относят применение плавких предохранителей, правильный монтаж сетей, машин и аппаратов, правильный выбор проводов электроустановок, профилактические осмотры, ремонты, испытания их и т.д.
В целом пожарная безопасность объекта “ОАО Электросвязь” обеспечивается системами предотвращения пожара и противопожарной защиты, а также организационно-техническими мероприятиями при его эксплуатации.
Заключение:
В процессе выполнения данной курсовой работы были получены и применены теоретические знания и практические навыки по обеспечению безопасности жизнедеятельности работников в помещениях с ЭВМ. Так в ходе работы над аналитико-расчетной частью мы рассмотрели методы и средства защиты пользователей ПК от опасных и вредных факторов, определили основные требования к помещению с ЭВМ, учли человеческий фактор, современные санитарно-гигиенические требования при проектировании производственной среды. Кроме того, представили расчетно-конструктивное решение таких вопросов, как: проектирование искусственного освещения, местной системы кондиционирования воздуха с автономными кондиционерами для помещения с ЭВМ. Получили навыки прогнозирования возможной радиационной обстановки при аварии на АЭС. В заключительной части работы мы рассмотрели основные меры по обеспечению электробезопасности и пожаробезопасности в помещениях с вычислительной техникой, а также меры по охране окружающей среды при работе с ЭВМ.
Спроектированная система искусственного освещения обладает достаточной освещенностью, местная система кондиционирования воздуха обеспечивает требуемые нормами комфортные и оптимальные микроклиматические показатели.
Список используемой литературы:
1. ![]()
. Опасные и вредные производственные факторы. Классификация факторов.
2. РД 2.2.755-99. Гигиенические критерии оценки условий труда по показателям вредности и опасности трудового процесса. Москва, 1999.
3. ГОСТ 12.1.007-76
4. ГОСТ 12.1.005-88. ПДК вредных веществ в воздухе рабочей зоны.
5. СНиП 23-05-95. Естественное и искусственное освещение.
6. СанПиН 2.2.2.542-96. Гигиенические требования к ЭВМ и рабочему месту. Москва, 1996.
7. СНиП II-A/9-71
8. СНиП 2.04.05-91. Отопление, вентиляция и кондиционирование. Москва, 1992.
9. СН 512-78. Санитарные нормы, инструкции по проектированию зданий и помещений для ЭВМ. Москва, 1979.
10. РД 32.21.122-87. Инструкция по устройству молниезащиты зданий и сооружений. – Москва: Энергоатомиздат, 1989.
11. ГОСТ 12.1.019-79
12. Правила устройства электроустановок. Минтопэнерго РФ – Москва, 1998.
13. ГОСТ 12.2.007.0-75
14. ГОСТ 12.1.013-78. Система стандартов безопасности труда.
15. СНиП 2.09.02-85
16. Бережной С.А., Романов В.В., Седов Ю. И. “Безопасность жизнедеятельности: учебное пособие”, Тверь: ТГТУ, 1996 (№ 722).
17. Практикум по безопасности жизнедеятельности под редакцией С. А. Бережного – Тверь: ТГТУ, 1997 (№772).
18. Сборник типовых расчетов и заданий по экологии: учебное пособие. Издание 2-е, переработанное и дополненное под редакцией С. А. Бережного – Тверь: ТГТУ, 1990 (№ 943).
19. Справочная книга для проектирования электрического освещения / под редакцией Г. М. Кнорринга. Ленинград, 1976.
20. Справочная книга по светотехнике / под редакцией Ю. Б. Айзенберга. Москва, 1983.
Молниезащита здания II категории многократными стержневыми молниеотводами
, установленными на здании.
|
|
![]()
![]()
![]()
|


Похожие рефераты:
Организация интеллектуальной сети в г. Кокшетау на базе платформы оборудования Alcatel S12
Математическое моделирование услуг Интернет
Разработка системы оперативно-диспетчерского контроля и управления канала
Регулировка охлаждения компьютерных систем
АРМ бухгалтера Учет основных средств
Система управления узлом дегидрирования этилбензола
Организация корпоративной компьютерной сети в предприятии
Разработка устройства автоматического регулирования света на микроконтроллере
Усовершенствование системы регулировки температуры жесткого диска
АСУ целевыми программами в некоммерческой организации
Разработка светодиодной матрицы
Анализ маркетинговой деятельности ЧУП "Энергоконструкция"
Усовершенствование охлаждения блока питания
Автоматизация и диспетчеризация систем электроснабжения