| Похожие рефераты | Скачать .docx |
Дипломная работа: Технология производства полумуфты - детали компрессора 16ГЦ2-340/25-56
Введение
Технический прогресс в машиностроении характеризуется не только улучшением конструкций машин, но и непрерывным совершенствованием технологии их производства. В настоящее время важно качественно, дешево и в заданные плановые сроки с минимальными затратами живого и материального труда изготовить машину, применив современное высокопроизводительное оборудование, инструмент, технологическую оснастку, средства механизации и автоматизации производства. От принятой технологии производства во многом зависят долговечность и надёжность работы выпускаемых машин, а также экономика их эксплуатации. Совершенствование технологии машиностроения определяется потребностями производства необходимых обществу машин. Вместе с тем развитие новых прогрессивных технологических методов способствует конструированию более совершенных машин, снижению их стоимости и уменьшению затрат труда на их изготовление.
Массовый выпуск машин стал возможен в связи с развитием высокопроизводительных методов и процессов производства, а дальнейшее повышение быстроходности, точности, мощности, рабочих давлений, температур, коэффициента полезного действия, износостойкости и других показателей работы машин было достигнуто в результате разработки новых технологических методов и процессов. Общая компоновка и конструктивное оформление машины оказывает существенное влияние на технологию её производства. Общепризнано, что разработку конструкции машины нельзя проводить без учёта технологии производства её изготовления.
Окончательное развитие прогрессивного оборудования - безлюдное производство, что обеспечивает более точное и качественное изготовление продукции, позволяющее работать с максимальной производительностью труда.
Одной из главных задач технологии машиностроения является изучение закономерностей протекания технологических процессов и выявление тех параметров, воздействие на которые наиболее эффективно для повышения точности производства.
1. Описание изделия
Деталь «Полумуфта» входит в состав компрессора 16ГЦ2-340/25-56.
Компрессор предназначен для сжатия газа до необходимого давления и подачи его в нагнетательный трубопровод.
Компрессор предназначен для установки в газоперекачивающий агрегат типа ГПА‑Ц-16. Агрегат представляет собой блочный, комплектный, автоматизированный агрегат с приводом от синхронного трёхфазного электродвигателя типа СТДП-6300-2Б-УХЛ4 мощностью 16000 кВт. предназначенный для компримирования природного газа.
Центробежный компрессор имеет вертикальный разъем корпуса. Длина корпуса 2800 мм. В компрессоре установлены масляные уплотнения.
Параметры компрессора приведены в таблице 1.1
Таблица 1.1 – Параметры компрессора
| Наименование параметра, единица измерения | Значение параметра |
| 1 Производительность, приведенная к температуре 293°К (+20°С) и давлению 0,101 МПа (1,033 атм), м3/с, (млн.м3/сутки), не менее | 148,52 (12,832) |
| 2 Производительность по условиям всасывания, м3/c (м3/мин), не менее | 5,644 (338,64) |
| 3 Давление начальное, номинальное, абсолютное, МПа (кгс/см2) | 2,495 (25,43) |
| 4 Конечное давление нагнетания, абсолютное, МПа (кгс/см2) | 5,49 (56,0) |
| 5 Отношение давлений, расчетное, не менее | 2,2 |
| 6 Политропный КПД газового компрессора, %, не менее | 80 |
| 7 Количество ступеней сжатия | 4 |
| 8 Температура газа на всасывании К (°С) | 288 (15) |
| 9 Повышение температуры газа в газовом компрессоре на номинальном режиме, расчетное, 0С | 74 |
| 10 Рабочий диапазон частот вращения ротора компрессора, с-1 (об/мин) | 60,7 – 91 (3640 - 5460) |
| 11 Масса компрессора, т | 33,0 |
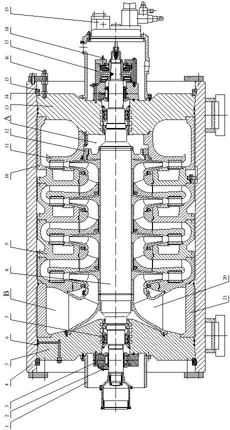
Описание компрессора 16ГЦ2-340/25-56
Наружный корпус 4 компрессора представляет собой стальной цилиндр. Всасывающий и нагнетательный патрубки расположены на боковой поверхности цилиндра. К нижней части цилиндра приварены опорные лапы.
С обоих торцов корпус закрыт стальными коваными крышками 5 и 13, которые зафиксированы в корпусе сегментными разрезными кольцами 14 и 15 и шпильками 16. В крышках размещены функциональные масляные и газовые каналы, имеющие выход на наружный торец крышек для подсоединения фланцев трубопроводов.
Герметизация внутренних полостей проточной части обеспечивают концевые уплотнения 7 вала ротора, расположенные в центральной части крышек и резиновые уплотнительные кольца 6.
На торцевой крышке 13 закреплены улитка 11 и камера 10. Улитка и камера образуют совместно с внутренней частью крышки сборную камеру. Сборная камера обеспечивает снижение скорости газового потока, выходящего из диффузора, и радиальный выход его через нагнетательный патрубок.
Камера всасывающая 21 и аппарат входной направляющий 20 установлены на крышке 5. Камера всасывающая и аппарат входной направляющий обеспечивают плавный вход газа в колесо первой ступени.
На улитке закреплена втулка 12, образующая с думмисом лабиринтное уплотнение.
Задуммисная полость А соединена трубопроводом с полостью всасывания В. Это уменьшает величину осевой газодинамической силы.
В корпусе компрессора на двух подшипниках, опорном 3 и опорно-упорном 17, установлен ротор 8.
Подшипники закреплены на торцевых крышках 5, 13 и закрыты кожухами, которые образуют подшипниковые камеры с горизонтальным разъемом. В подшипниковых камерах происходит сбор и организация слива отработанного масла из подшипников и уплотнений.
На кожухе опорно-упорного подшипника закреплен блок маслонасосов 19, состоящий из насоса системы смазки и насоса системы уплотнений.
Виброперемещение ротора контролируют датчики вибрации 2. Осевое перемещение ротора контролирует датчик осевого сдвига 18.
2. Описание детали
2.1 Назначение детали
Данная деталь относится к деталям типа втулка. По конструкции втулки делятся на гладкие, с буртиком, с фланцем, разрезные и т.п. Главное требование, предъявляемое к подобным деталям, состоит в достижении концентричности наружных и внутренних поверхностей втулок и перпендикулярности торцов к оси центрального отверстия. Достижение концентричности может быть обеспечено различными способами механической обработки заготовки, а это, в свою очередь, сказывается на выборе черновых баз механической обработки и на распределение припусков при проектировании заготовки.

Рисунок 1.2 – Деталь «Полумуфта»
Деталь «Полумуфта» входит в сборочную единицу «Ротор».
Полумуфта предназначена для передачи крутящего момента от вала привода на вал ротора посредством зубчатого соединения.
Деталь 1 базируется на валу ротора 2 и фиксируется круглой гайкой 7 и отгибной шайбой 6. Соединение детали с приводом осуществляется через обойму 3, пальцы 4 и гайки 5 (см. рисунок 1.3)

Рисунок 1.3 – Деталь в сборочной единице «Ротор»
Поверхности детали «Полумуфта» предназначены:
- внутренний диаметр Æ115Н7 предназначен для базирования на поверхности вала ротора;
- внутренний диаметр Æ132Н7 предназначен для базирования на поверхности вала ротора;
- наружный диаметр Æ335js6 и торец Æ405/Æ335js6, l5 предназначен для базирования детали к обойме;
- поверхности зубьев Æ120Н9/Æ131,25Н9 служат для передачи крутящего момента от полумуфты к ротору;
- 2 отв. М10 -7Н предназначены для установки отжимных винтов;
- 18 отв. Æ14Н7 предназначены для прикрепления полумуфты к обойме пальцами и гайками.
Остальные поверхности являются свободными, т.е. в процессе работы не контактируют с другими деталями.
2.2 Анализ детали на технологичность
Показатели технологичности делятся на качественные и количественные.
К качественным показателям относятся следующие факторы:
- материал детали;
- базирование и закрепление;
- простановка размеров;
- допуски формы и расположения;
- взаимозаменяемость;
- нетехнологичные конструктивные элементы.
К количественным показателям технологичности относятся:
- коэффициент использования заготовки и материала;
- коэффициент точности;
- коэффициент шероховатости;
- себестоимость;
- коэффициент унификации.
Технологичной считается та конструкция, обработка которой возможна с максимальной производительностью труда и минимальной себестоимостью.
2.2.1 Качественная оценка технологичности конструкции
Материал детали – углеродистая качественная Сталь40 ГОСТ 1050-88.
Назначение – оси, коленчатые валы, вал-шестерни, штоки, шестерни, бандажи, детали турбин, детали арматуры, шатуны, шпиндели, звездочки, распределительные валики, болты, головки цилиндров, шпонки, фрикционные диски, плунжеры, крепежные детали котлов и трубопроводов ТЭС и АЭС, паровых и газовых турбин, корпусные детали газовых турбин, цельнокованые валы гидравлических турбин.
Заменитель – Сталь35, Сталь45, Сталь40Г.
Химический состав стали [2 с.93] см. таблицу 1.2.
Таблица 1.2 - Химический состав стали, %
| C | Si | Mn | S | P | Cr | Ni | As | N | Cu |
| не более | |||||||||
| 0,37-0,45 | 0,17-0,37 | 0,5-0,8 | 0,040 | 0,035 | 0,25 | 0,30 | 0,08 | 0,008 | 0,30 |
Механические свойства стали [2 с.94] см. таблицу 1.3.
Таблица 1.3 - Механические свойства стали
| s0,2 Н/мм2 | sВ Н/мм2 | d5 % | y % | КСU, Дж/см2 | НВ |
| 245 | 470 | 17 | 35 | 34 | 143 – 179 |
Технологические свойства стали:
Температура ковки, °С: начала 1250, конца 900. Сечения до 350 мм охлаждаются на воздухе.
Свариваемость - ограниченосвариваемая. Способы сварки: РД, РАД, АФ,
МП, ЭШ. Сварные соединения в зоне термического влияния обладают пониженной стойкостью к МКК и общей коррозии, поэтому после сварки необходим отпуск при 680-700°С в течении 30-60 мин.
Обрабатываемость резанием - в закаленном и отпущенном состоянии при НВ 170 и, sВ =530Н/мм2;КVтв. сплав=1,2; КVб. ст.=1,05.
Флокеночувствительность – не чувствительна.
Склонность к отпускной хрупкости – не склонна.
Деталь имеет отношение L/D<1, что обеспечивает достаточную жесткость при закреплении и обработку без специальных приспособлений. Базирование и закрепление детали не представит особой сложности, т.к. наружная поверхность вполне пригодна для этого. Заготовку можно закрепить в трехкулачковом самоцентрирующем патроне с упором в торец.
На основании изучения рабочего чертежа детали можно сделать следующий вывод: на чертеже деталь представлена одной проекцией, что является вполне достаточно, т.к. «полумуфта» - представляет собой тело вращения. Чертеж детали имеет достаточное количество видов, разрезов и сечений, дающих полное представление о форме детали. Все поверхности детали образмерены, указана их точность и шероховатость. Простановка размеров правильна и удобна для чтения чертежа. Чертеж детали «полумуфта» соответствует требованиям ЕСКД.
Обеспечение требований допусков формы и взаимного расположения достигается на операциях конечной обработки с соблюдением принципов постоянства и совмещения баз, благодаря выбору высокоточных, прогрессивных станочных приспособлений, сводящих погрешность установки к минимальным значениям.
На чертеже нет жестких допусков расположения отверстий. Допуски радиального и торцового биения, а также допуск параллельности отверстий относительно внутреннего отверстия 0,02 и 0,03 мм достигаются благодаря принципам совмещения и постоянства баз.
Нетехнологичными конструктивными элементами данной детали являются конусные поверхности Æ155/Æ170 l68, Æ170/Æ362 l34, R15, а также торцевое углубление Æ320 l15, Æ150 l37 под углом 150, R5, R15. Они получаются с помощью станков с ЧПУ.
2.2.2 Количественная оценка технологичности конструкции
Коэффициенты использования заготовки и материала для базового и предлагаемого технологических процессов определяются в пункте 4.
Для расчета коэффициента шероховатости и коэффициента точности необходимо составить таблицу, в которой будет указаны характеристики (параметр шероховатости и квалитет точности) поверхностей детали.
Таблица1.4 - Характеристика поверхностей детали
| Наименование поверхности | Количество поверхностей |
Параметр шероховатости Ra, мкм |
Квалитет точности |
| Æ405 | 1 | 6,3 | 14 |
| Æ362 | 1 | 6,3 | 14 |
| Æ335 | 1 | 1,6 | 6 |
| Æ320 | 1 | 6,3 | 14 |
| Æ134 | 1 | 6,3 | 14 |
| Æ132 | 1 | 6,3 | 14 |
| Æ132 | 1 | 1,6 | 7 |
| Æ131,25 | 1 | 6,3 | 9 |
| Æ120 | 1 | 1,6 | 9 |
| Æ115 | 1 | 1,6 | 7 |
| конус Æ150Ð15° | 1 | 6,3 | 14 |
| конус Æ155/Æ170 L68 | 1 | 6,3 | 14 |
| конус Æ170/Æ362 L34 | 1 | 6,3 | 14 |
| конус L37/ L15 | 1 | 6,3 | 14 |
| торец L125 | 2 | 6,3 | 14 |
| торец L5 | 1 | 1,6 | 14 |
| торец L14 | 1 | 6,3 | 14 |
| торец L20 | 1 | 6,3 | 14 |
| торец L6 | 1 | 6,3 | 14 |
| торец L70 | 1 | 6,3 | 14 |
| торец L10 | 1 | 6,3 | 14 |
| R15 | 2 | 6,3 | 14 |
| R5 | 1 | 6,3 | 14 |
| R2 | 4 | 6,3 | 14 |
| Фаска 1x45° | 9 | 6,3 | 14 |
| М12 | 2 | 3,2 | 7 |
| отверстие Æ14 | 18 | 0,8 | 7 |
| итого | 58 | 236,7 | 640 |
После составления таблицы по формулам определяются коэффициенты шероховатости и точности.
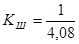
Коэффициент шероховатости определяется по формуле:
, (1.1)
где Аср - среднее арифметическое значение шероховатости, по данным таблицы 2.3, Аср=236,7/58=4,08 мкм.
= 0,25
Так как коэффициент шероховатости получился меньше, чем 0,32, то значит, что по данному критерию деталь технологична.
Коэффициент точности обработки определяется по формуле:
, (1.2)
где Бср - среднее арифметическое значение квалитета точности, по данным таблицы 2.3, Бср=640/58=11,03.
= 0,91
Так как коэффициент точности получился больше, чем 0,8, то значит, что по данному критерию деталь технологична.
Из анализа детали на технологичность можно сделать вывод, что она технологична.
полумуфта заготовка резание технологический
3. Характеристика типа производства
Тип производства и соответствующая ему форма организации работ определяет характер технологического процесса и его построение.
Исходя из годовой программы выпуска N=1400 шт. и массы детали m=22.5кг определяется тип производства, в котором изготавливается деталь - среднесерийный – по [3 стр.24, т.3.1]
Среднесерийное производство характеризуется ограниченной номенклатурой изделий, изготавливаемых или ремонтируемых, периодически повторяющимися партиями и сравнительно большим объемом выпуска и является основным типом современного машиностроительного производства. Предприятиями этого типа выпускается в настоящее время 75-80% всей продукции машиностроения Украины. По технологическим и производственным характеристикам среднесерийное производство занимает промежуточное место между единичным и массовым производством. В среднесерийном типе производства используются универсальные и специализированные, частично специальные станки, которые располагаются в последовательности технологического процесса для одной или нескольких деталей, требующих одинакового порядка обработки, в той же последовательности образуется и движение деталей.
Производство идет партиями, причем детали каждой партии могут несколько отличаться одна от другой размерами или конструкцией, допускающими обработку на одном и том же оборудовании. Производственный процесс ведется таким образом, что после выполнения обработки заготовок на одной операции производится обработка этой же партии на следующей операции. При среднесерийном типе производства широко используются станки с числовым программным управлением, обрабатывающие центры, а так же находят применение гибкие автоматические системы станков с ЧПУ. Переналадка станков, приспособлений и инструментов, а также перестройка производственного процесса при переходе на обработку других разновидностей сходных деталей обеспечиваются предварительной технологической подготовкой. Средняя квалификация рабочих при среднесерийном типе производства выше, чем в массовом производстве, но ниже, чем в единичном. Наряду с рабочими высокой квалификации, работающими на сложных универсальных станках, и наладчиками используются рабочие-операторы невысокой квалификации, работающие на настроенных станках. Технологическая документация и техническое нормирование подробно разрабатываются для наиболее сложных и ответственных заготовок при одновременном применении упрощенной документации и опытно-статистического нормирования простейших заготовок.
4. Выбор и технико-экономическое обоснование метода получения заготовки
4.1 Базовый метод получения заготовки
Заводской метод получения заготовки - поковка кованная на молотах.
Процесс ковки состоит из нескольких этапов: нагрева металла, выполнение кузнечных операций, термической обработки. При ковке используют универсальный инструмент и оборудование возвратно-поступательного периодического действия. Термическая обработка – нормализация, применяется для измельчения зерен, повышения прочности, для уменьшения внутренних напряжений. Механические свойства будут ниже, а вероятность образования закалочных трещин будет меньше.
Ковка на молоте экономически целесообразна в единичном производстве. При ковке на молотах возможно регулирование энергии удара, слабые удары могут быть нанесены с повышенной частотой. Деформирование осуществляется за несколько ударов.
Недостатком ковки на молотах является то, что молоты имеют малый кпд (не более 30%). Они неэкономичны при изготовлении мелких и средних поковок. Высокая стоимость молотовых установок связана с использованием котельных или компрессорных станций и громоздких фундаментов. Ковку на молотах характеризует невысокая производительность труда, невысокая точность размеров поковок, большой расход металла на напуски от штамповочных уклонов.
Для изготовления детали типа полумуфта принимается тип поковки - втулка с уступом и с отверстием, изготовляемая в подкладных кольцах по
[5 с.5, т.1]. Для проверки правильности выбора типа поковки необходимо проверить соотношение размеров, показанных на рисунке 1.4. Необходимо выполнение следующих соотношений (размеры берутся с чертежа детали):
1) h£D1соотношениевыполняется 23<405;
2) h<0,75×H соотношение выполняется 23<93,75;
3) D1-D2³0,2×D1 соотношение выполняется 235>81.

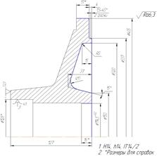
Рисунок 1.4 - Эскиз поковки втулки с уступом и с отверстием
Так как соотношения размеров правильны, то, следовательно, выбранный тип поковки верный.
Припуски и предельные отклонения на размеры детали назначаются по [5 с.26, т.12].:
- на диаметр Ø405 мм. припуск и предельное отклонение - 17± 6 мм;
- на диаметр Ø170 мм. припуск и предельное отклонение - 13± 4 мм;
- на диаметр Ø155 мм. припуск и предельное отклонение - 13± 4 мм;
- на диаметр Ø115 мм. припуск и предельное отклонение - 18± 4 мм;
- на общую высоту 125 мм. припуск и предельное отклонение - 12± 3 мм;
- на высоту фланца 23 мм. припуск и предельное отклонение - 12± 3 мм;
Окончательно размеры поковки определяются по формуле:
, (1.3)
Где:
- i-й размер заготовки, мм;
- i-й размер детали, мм;
- припуск на соответствующий i-й размер детали, мм;
- предельные отклонения на соответствующий i-й размер детали, мм.
Расчёт размеров заготовки выполняется табличным способом, результаты вычислений приведены в таблице 1.5
Так как из поковки требуется отрезать образец в=20, плюс припуск на отрезку, значит длина поковки L=125+12+20+11=168 мм, тогда высота фланца l=23+12+20+11=66 мм.
Таблица1.5 – Результаты вычислений размеров заготовки
Размер детали, мм |
Припуск и предельные отклонения, мм | Размер заготовки, мм |
| Ø405 | 17± 6 | Ø422 |
| Ø170 | 13± 4 | Ø183 |
| Ø155 | 13± 4 | Ø168 |
| Ø115 | 18± 4 | Ø97 |
| L125 | 12± 3 | L168 |
| L23 | 12± 3 | L66 |
Отверстие в поковке выполнимо, т.к. выполняется условие H/d < 2,5;
168/97<2,5 (1,73<2,5).
Окончательные размеры поковки с назначенными на нее основными припусками приведены на рисунке 1.5

Рисунок 1.5 - Эскиз поковки кованной на молотах
Масса кованной заготовки:
М3=ρVобщ (1.4).
где:
ρ – плотность материала, ρ=7,85 г/см3.
Vобщ – общий объём заготовки, см3
Vобщ= (V1+V2+V3)- V4 (1.5)
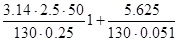
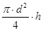
Объем для цилиндра:
V=
(1.6)
V1=
= 9,227 см3V4=
= 1,241 см3
Объем для усеченного конуса:
V=
(1.7)
V2=
=2,57 см3
V3=
=1,646 см3
По формуле 1.5 общий объём детали:
Vобщ= (9.227+2.57+1.646)-1.241=12,202 см3
По формуле 1.4 масса кованой заготовки:
М3=
=95,8 кг.
Коэффициент использования заготовки определяется по формуле:
, (1.8)
гдеmД- масса детали, mД=22,5 кг
= 0,235
Коэффициент использования материала определяется по формуле:
, (1.9)
где mОПЗ - масса отходов производства заготовки, для поковок кованных mОПЗ=1¸3%mЗ, mОПЗ=1,916 кг.
= 0,23
4.2 Предлагаемый метод получения заготовки
В зависимости от материала детали, типа производства, размеров и конфигурации детали предлагаемый метод получения заготовки: поковка штампованная на кривошипном горячештамповочном прессе (КГШП).
Этот метод отличается более высокой стоимостью, но приспособлен для высокомеханизированного и автоматизированного производства поковок, допускает эксцентричное расположение ручьев в штампе, который снабжен верхним и нижним выталкивателем.
При штамповке на КГШП получают поковки более близкие по форме к готовой детали, с более точными размерами чем при штамповке на молотах. Более совершенная конструкция штампов обеспечивает меньшую величину смещения половин штампа, уменьшения припусков (на 20 – 30%), напусков, штамповочных уклонов (в 2 – 3 раза), допусков, и как следствие – увеличение коэффициента использования металла.
Для определения припусков табличным способом проводятся следующие расчеты по [6]:
Класс точности поковки - Т4 [с.28, т.19, пр.1].
Группа стали – М2 [с.8, т.1].
Коэффициент для определения ориентировочной массы поковки КР=1,6 [с.31, т.20, пр.3].
Ориентировочная (расчетная) масса поковки определяется по формуле:
, (1.10)
= 36 кг.
Для определения степени сложности необходимо определить отношение массы GП поковки к массе GФ геометрической фигуры.
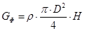
Масса геометрической фигуры (цилиндра) определяется по формуле:
, (1.11)
где: D - диаметр цилиндра D=
=0,425 м;
H высота цилиндра, Н=
=0,131 м.
=145,8 кг.
Тогда отношение фигур GП /GФ=36/145,8=0,247.
Степень сложности - С3 [с.29, пр.2].
Исходный индекс - 18 [с.10, т.2].
Конфигурация поверхности разъема штампа - П (плоская) [с.8, т. 1].
Зная исходный индекс, размеры поверхностей и параметр шероховатости Ra, который необходимо достичь после механической обработки, определяются основные припуски на механическую обработку [с.12, т.3], допуски и допускаемые отклонения линейных размеров [с.17, т.8].
Основные припуски на размеры (на сторону), мм:
- на диаметр Ø405 мм. и шероховатость поверхности Ra=6,3 мкм – 4,3мм
- на диаметр Ø362 мм. и шероховатость поверхности Ra=6,3 мкм – 3,8мм
- на диаметр Ø170 мм. и шероховатость поверхности Ra=6,3 мкм – 3,5мм
- на диаметр Ø155 мм. и шероховатость поверхности Ra=6,3 мкм – 3,2мм
- на диаметр Ø115 мм. и шероховатость поверхности Ra=1,6 мкм – 3,2мм
- на высоту 125 мм. и шероховатость поверхности Ra=6,3 мкм – 3,2мм
- на высоту 23 мм. и шероховатость поверхности Ra=6,3 мкм – 2,7мм
Дополнительные припуски, учитывающие:
- смещение по поверхности разъема штампа - 0,4 мм [с.14, т.4];
- изогнутость, отклонения от плоскостности и прямолинейности - 0,5 мм [с.14, т.5];
Расчёт размеров заготовки выполняется табличным способом, результаты вычислений приведены в таблице 1.6
Так как из поковки требуется отрезать образец в=20, плюс припуск на отрезку, значит длина поковки L=125+6,4+20+11=164,2 мм, тогда высота фланца l=23+3,2+2,7+20+11=60,8 мм.
Таблица1.6 – Результаты вычислений размеров заготовки
| Размер детали | Основной припуск |
Дополнительный припуск |
Расчетный размер заготовки |
Допуск и предельные отклонения |
Принятый размер заготовки |
| Ø405 | 4,3 | 0,4;0,5 | Ø415,4 | Ø415 |
|
| Ø362 | 3,8 | 0,4;0,5 | Ø371,4 | Ø371 |
|
| Ø170 | 3,5 | 0,4;0,5 | Ø178,8 | Ø179 |
|
| Ø155 | 3,2 | 0,4;0,5 | Ø163,2 | Ø163 |
|
| Ø115 | 3,2 | 0,4;0,5 | Ø106,8 | Ø107 |
|
| L125 | 3,2 | 0,4;0,5 | L164,2 | L164 |
|
| L23 | 2,7 | 0,4;0,5 | L60,8 | L61 |
Допускаемая высота торцового заусенца, образовавшегося по контуру пуансона при штамповке в закрытых штампах - 8 мм [с.22, т.11].
Допускаемое отклонение по изогнутости, от плоскостности и от прямолинейности - 1,0 мм [с.23, т.13]. Данная величина не учитывает перепады по высоте, толщине и ширине поковки.
Допускаемое отклонение от концентричности пробитого отверстия относительно внешнего контура поковки - 1,5 мм [с.23, т.12]. Допускаемое отклонение от концентричности пробитого отверстия соответствует началу пробивки (со стороны входа пуансона в поковку). В конце пробивки (со стороны выхода пуансона) это отклонение может быть увеличено на 25%.
На поковках, изготовленных на кривошипном горячештамповочном прессе, штамповочный уклон не должен превышать на наружные поверхности - 5°, на внутренние поверхности - 7°. Радиус закругления наружных углов – 5 мм.

Рисунок 1.6 - Эскиз поковки кованной на КГШП
Масса штампованной заготовки:
По формуле 1.6 объем цилиндра
V1=
= 8,07 см3
V4=
= 1,48 см3
По формуле 1.7 объем усеченного конуса
V2=
=2,1 см3
V3=
=1,52 см3
По формуле 1.5 общий объём детали:
Vобщ= (8,07+2,1+1,52)-1.48=10,21 см3
По формуле 1.4 масса кованой заготовки:
М3=
=80,1 кг.
Коэффициент использования заготовки определяется по формуле (1.8):
= 0,28
Коэффициент использования материала определяется по формуле (1.9)
для штамповок на КГШПmОПЗ=2%×mЗ=2%× 80,1=1,602 кг
= 0,275
Коэффициенты использования заготовки и материала ниже коэффициентов, предусмотренных стандартом ЕСТП, так как из заготовки требуется изготовить образец, что влияет на массу получаемой поковки.
Выгодней использовать заготовку - поковку штампованную на кривошипном горячештамповочном прессе, чем поковку кованную на молотах, т.к. коэффициенты использования заготовки и материала в первом случае ниже, чем те же коэффициенты во втором случае.
5. Расчет припусков аналитическим методом
Величина припуска влияет на себестоимость изготовления детали. При увеличенном припуске повышаются затраты труда, расход материала и другие производственные расходы, а при уменьшенном приходится повышать точность заготовки, что также увеличивает себестоимость изготовления детали.
Для получения деталей более высокого качества необходимо при каждом технологическом переходе механической обработки заготовки предусматривать производственные погрешности, характеризующие отклонения размеров, геометрические отклонения формы поверхности, микронеровности, отклонения расположения поверхностей. Все эти отклонения должны находиться в пределах поля допуска на размер поверхности заготовки.
Аналитический метод определения припусков базируется на анализе производственных погрешностей, возникающих при конкретных условиях обработки заготовки.
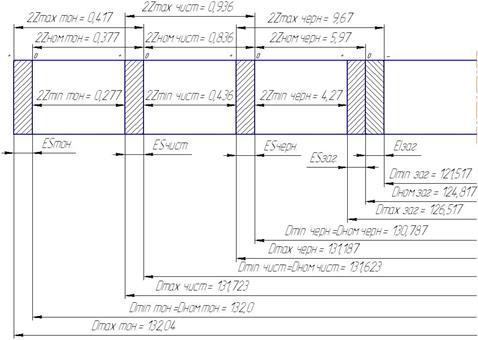
Согласно задания производится расчет припусков аналитическим методом для внутренней поверхности тела вращения Ø132Н7. Маршрут обработки данной поверхности выбирается по [7 с.11, т.4] и сводится в таблицу 1.7.
Таблица 1.7 - Маршрут обработки поверхности Ø 132Н7
| Наименование операции (перехода) | Квалитет точности IT | Параметр шероховатости Ra, мкм |
| Заготовительная | IТ16 | 50 |
| Растачивание черновое | H12 | 25 |
| Растачивание чистовое | H9 | 6.3 |
| Растачивание тонкое | H7 | 3.2 |
Величина минимального припуска при обработке наружных и внутренних поверхностей (двусторонний припуск) определяется по формуле:
, (1.12)
где: Rzi-1 - высота микронеровностей профиля на предшествующем переходе (операции), мкм;
hi-1 – глубина дефектного поверхностного слоя на предшествующем переходе (операции) (обезуглероженный или отбеленный слой), мкм;
ri-1 - суммарные значения пространственных отклонений формы на предшествующем переходе (операции), мкм;
eуi – погрешность установки заготовки на выполняемом переходе (операции), мкм.
Высота микронеровностей Rz и глубина дефектного слоя h выбираются по таблицам [7]:
- для заготовки [с.186, т.12]: Rz=250 мкм; h=300 мкм;
- по переходам [с. 188, т.25]:
а) для чернового растачивания: Rz=50 мкм; h=50 мкм;
б) для чистового растачивания: Rz=25 мкм; h=25 мкм;
в) для тонкого растачивания: Rz=5 мкм; h=5 мкм.
Суммарное значение пространственных отклонений формы заготовки при обработке в патроне отверстий определяется по формуле:
, (1.13)
где: rсм - допускаемая погрешность поковки по смещению осей фигур, по [8 с.169, т.6]: rсм=1300 мкм;
rкор - допускаемая погрешность поковки по короблению, по [8 с.169, т.6]: rкор =900 мкм.
мкм.
Величина остаточного суммарного значения пространственных отклонений формы заготовки после выполнения перехода (операции) определяется по формуле:
, (1.14)
где: Ку - коэффициент уточнения
Коэффициент уточнения выбирается по [8 с.190, т.29]:
- для чернового растачивания: Ку=0,06;
- для чистового растачивания: Ку=0,05;
- для тонкого растачивания: Ку=0,04.
Тогда суммарные значения пространственных отклонений формы по переходам равны:
=95 мкм;![]()
=79 мкм;![]()
=63 мкм;![]()
Требуемое положение заготовки в рабочей зоне станка достигается в процессе ее установки. Процесс установки включает базирование и закрепление. Отклонение в положении заготовки, возникающее при базировании, называется погрешностью базирования eб, а при закреплении - погрешностью закрепления eз.
Погрешность установки eу определяется по формуле:
. (1.15)
При укрупненных расчетах точности обработки погрешность eу, соответствующую формуле (1.15), можно определить по таблицам:
- для заготовки: eу=120 мкм; [7 с.42, т.13]
- для чернового растачивания: eу=110 мкм; [7 с.138, т.5]
- для чистового растачивания:: eу=70 мкм;
- для тонкого растачивания: eу=40 мкм.
Элементы припуска заносятся в таблицу 1.7.
Подставив выбранные (Rz, h и eу) и рассчитанные (r) значения в формулу (1.12) определяются минимальные припуски на соответствующих переходах:
=4270 мкм;
=436 мкм;
= 277 мкм;
Допуск заготовки dзаг определен в п.4,2 и равен dзаг=5,0 мм (ES=1,7 мкм; EI=3,3 мкм).
Допуски по переходам определяются по [9]:
- для растачивания чернового Н12: dчерн=0,4 мм (ES=0,4 мм; EI =0 мм);
- для растачивания чистового Н9: dчист=0,1 мм (ES=0,1 мм; EI=0 мм);
- для растачивания тонкого Н7: dтон=0,04 мм (ES=0,04 мм; EI=0 мм);.
Размеры поверхности после тонкого растачивания определяются по формулам:
(1.16)
=132 мм.
(1.17)
=132,04 мм.
Номинальный и максимальный припуски на тонкое растачивание определяются по формулам:
(1.18)
=0,377 мм.
(1.19)
=0,417 мм.
Размеры поверхности после чистового растачивания определяются по формулам:
(1.20)
=131,723 мм.
(1.21)
=131,623 мм.
Номинальный и максимальный припуски на чистовое растачивание определяются по формулам:
(1.22)
=0,836 мм.
(1.23)
=0,936 мм.
Размеры поверхности после чернового растачивания определяются по формулам:
(1.24)
=131,187 мм.
(1.25)
=130,787 мм.
Номинальный и максимальный припуски на черновое растачивание черновое определяются по формулам:
(1.26)
=5,97 мм.
(1.27)
=9,67 мм.
Размеры заготовки определяются по формулам:
(1.28)
=126,517 мм.
(1.29)
=124,817 мм.
(1.30)
=121,517 мм.
Рассчитанные значения номинальных и максимальных припусков и промежуточных размеров сводятся в таблицу 1.8.
Расчет общего припуска на обработку поверхности производится по формуле:
(1.31)
где
- сумма номинальных межоперационных припусков, мм.
=7,183 мм.
Таблица 1.8 - Исходные и расчетные данные на заданный размер
| Технологические операции (переходы) | Элементы припуска, мкм | Расчет припусков, мм | Расчет размеров, мм | ||||||||
| Rzi-1 | hi-1 | ri-1 | eуi | 2Zmin | 2Zном. | 2Zmax | Dmin | Dном. | Dmax | ||
| Заготовительная | - | - | - | - | - | - | - | 121,517 | 124,817 | 126,517 | |
Черновое растачивание |
250 | 300 | 1581 | 110 | 4,27 | 5,97 | 9,67 | 130,787 | 130,787 | 131,187 | |
Чистовое растачивание |
50 | 50 | 95 | 70 | 0,436 | 0,836 | 0,936 | 131,623 | 131,623 | 131,723 | |
Тонкое растачивание |
25 | 25 | 79 | 40 | 0,277 | 0,377 | 0,417 | 132,0 | 132,0 | 132,04 | |

Рисунок 1.7 - Схема расположения полей допусков и припусков
Схема расположения полей допусков и припусков расположена на рисунке 1.7
6. Разработка маршрутного технологического процесса
В настоящее время существует много разнообразных технологических способов получения поверхностей заданного качества, которые обеспечивают одинаковые требования к обрабатываемым поверхностям деталей, но существенно различаются по себестоимости и реализации.
При проектировании одной из задач является создание такого технологического процесса, который обеспечивал бы заданную точность и шероховатость поверхностей детали, нужные физико-механические качества поверхностного слоя материала при наибольшей производительности и минимальной себестоимости производства.
Таблица 1.9 - Сравнение базового и предлагаемого технологических процессов
| Базовый технологический процесс | Предлагаемый технологический процесс | ||||
| № опер. | Наименование операции |
Обору- дование |
№ опер. | Наименование операции |
Обору- дование |
| 005 | Кузнечная | - | 005 | Заготовительная | КГШП |
| 010 | Термическая | 010 | Термическая | печь | |
| 015 | Изготовление, испытание образцов |
- | 015 | Контроль ОТК | КП |
| 020 | Токарная с ЧПУ | 1П756Ф3 | 020 | Изготовление, испытание образцов |
- |
| 020К | Контрольная | - | 025 | Токарная с ЧПУ | MDW43 |
| 025 | Токарная с ЧПУ | 1П756Ф3 | 025К | Контроль на рабочем месте |
- |
| 025К | Контрольная | - | 030 | Токарная с ЧПУ | MDW43 |
| 030 | Токарная с ЧПУ | 1П756Ф3 | 035 | Контроль ОТК | КП |
| 035 | Контрольная | - | 040 | Токарная с ЧПУ | MDW43 |
| 040 | Шлифовальная | 3М194 | 045 | Контроль ОТК | КП |
| 045 | Контрольная | - | 050 | Круглошлифовальная | 3М194 |
| 050 | Маркировочная | - | 055 | Контроль ОТК | КП |
| 055 | Зубодолбёжная | 5140 | 060 | Зубодолбёжная | 5140 |
| 060 | Координатно- расточная | 2421 | 065 | Контроль ОТК | КП |
| 065 | Контрольная | - | 070 | Слесарная | СВ |
| 070 | Слесарная | - | 075 | Маркировочная | МП |
| 080 | Контроль ОТК | КП | |||
6.1 Предлагаемые методы обеспечения технических требований в процессе обработки
Точность обработки - соответствие обработанных поверхностей требованиям чертежа. Анализируя эти требования, можно увидеть, что ограничены они четырьмя факторами:
-соблюдение размерной точности;
-соблюдение требований шероховатости поверхностей;
-соблюдения допусков формы и взаимного расположения поверхностей;
-соблюдение требуемой твердости поверхности.
Соблюдение размерной точности
Требуемую точность обрабатываемых поверхностей обеспечивается достаточным количеством стадий обработки:
- поверхности Æ132H7 и Æ115H7 подвергаются черновому, чистовому и тонкому растачиванию;
- поверхности отверстий Æ14H7 – сверлению, чистовому и тонкому растачиванию;
- поверхность Æ335js6 – черновому, получистовому, чистовому точению и шлифованию;
- поверхность Æ120H9 – черновому и получистовому точению.
Соблюдение требований по шероховатости поверхностей
Соблюдение требований шероховатости достигается благодаря правильному выбору оптимальных режимов обработки, правильному подбору геометрии режущего инструмента и СОТС, жесткости технологической системы СПИД. Наибольшее влияние на шероховатость оказывает подача. Поэтому выбранная подача проверяется по возможности достижения требуемой шероховатости поверхности.
Соблюдение допусков формы и взаимного расположения поверхностей
Обеспечение требований допусков формы и взаимного расположения достигается на операциях конечной обработки с соблюдением принципов постоянства и совмещения баз, а также выбору станочных приспособлений, сводящих погрешность установки к минимальным значениям.
Допуск торцевого биения 0,02 и 0,03мм и радиального биения 0,02 и 0,03мм получаем благодаря принципу совмещения и постоянства баз, допуск расположения отверстий 0,03мм обеспечивается благодаря точности приспособления на координатно – расточной операции.
Соблюдение требуемой твердости поверхностей
Достижение требуемой твердости обеспечивается на операциях термообработки. Для достижения необходимой твердости Сталь40 подвергается нормализации.
6.2 Анализ заводского технологического процесса и предлагаемые нововведения по оборудованию, технологической оснастке и базированию
В данном пункте курсового проекта анализируется базовый (заводской) технологический процесс и вносятся в него коррективы - нововведения по оборудованию, технологической оснастке и базированию.
005 Заготовительная
В базовом технологическом процессе заготовка - поковка кованная на молотах. В связи с тем, что тип производства среднесерийный (см. п.1.3), то возникла необходимость изменить способ получения заготовки. Заготовкой в предлагаемом технологическом процессе служит поковка штампованная на кривошипном горячештамповочном прессе. Обоснования выбора способа получения заготовки см. п.1.4.2
010 Термическая
Целью термической обработки поковки является устранение дефектов, возникших при нагреве и обработке давлением, измельчения зерен, повышения прочности, для уменьшения внутренних напряжений, улучшения обрабатываемости резанием.
Процесс нормализации заключается в нагреве стали до 840 – 860°С, выдержке при этой температуре на протяжении 30 – 60 минут и последующим медленным охлаждении на воздухе
015 Изготовление и испытание образцов
Данный пункт технологического процесса предусматривает отрезку из поковки заготовки под образец В=20мм., его дальнейшее фрезерование, шлифование и испытание на прочность.
020 Токарная с ЧПУ
После получения положительных результатов испытания образцов, заготовка устанавливается в трехкулачковом самоцентрирующем патроне и обрабатывается согласно эскиза (см. рис. 1.8)
Деталь базируется и закрепляется в трехкулачковом самоцентрирующем патроне Æ500 ГОСТ 2675-80. В целом деталь лишена пяти степеней свободы. Имеют место две технологические базы: установочная, лишающая деталь 3 степеней свободы, и двойная опорная, лишающая двух степеней свободы.
Оборудование:
Токарно-винторезный станок с ЧПУ мод. 1П756Ф3
Режущий инструмент:
Резец подрезной PCLNR4040S19 пластина CNM1906 ГОСТ26611-85
Резец расточной PCLNR4040S19 пластина CNM1906 ГОСТ26611-85
Предлагаемые нововведения: в предлагаемом технологическом процессе на данной операции деталь будет обрабатываться с припуском 2мм на сторону, также будет заменен станок на более новый мод. MDW43

Рисунок 1.8 – Эскиз детали на операции 020
020К Контроль на рабочем месте
На данной операции на рабочем месте контролируются размеры, полученные на данной операции технологического процесса.
Мерительный инструмент:
Штангенциркуль ШЦ – III – 500 – 0,1 ГОСТ 166-80.
Штангенглубиномер ШГ – 200 – 0,05 ГОСТ 162-80.
025 Токарная с ЧПУ
На данной операции деталь обрабатывается согласно эскиза (см. рис. 1.9)

Рисунок 1.9 – Эскиз детали на операции 025
Деталь базируется и закрепляется в трехкулачковом самоцентрирующем патроне Æ500 ГОСТ 2675-80. В целом деталь лишена пяти степеней свободы. Имеют место две технологические базы: установочная, лишающая деталь 3 степеней свободы, и двойная опорная, лишающая двух степеней свободы.
Оборудование:
Токарно-винторезный станок с ЧПУ мод. 1П756Ф3
Режущий инструмент:
Резец подрезной PCLNR4040S19 пластина CNM1906 ГОСТ26611-85
Резец проходной PSSNL4040S19 пластина SNM1906 ГОСТ26611-85
Резец с круглой пластиной PRCCN2525M10H1 пластина RCM100300
Резец расточной PCLNR4040S19 пластина CNM1906 ГОСТ26611-85
Предлагаемые нововведения: в предлагаемом технологическом процессе на данной операции будет заменен станок на более новый мод. MDW43
025К Контроль на рабочем месте
На данной операции на рабочем месте контролируются размеры, полученные на данной операции технологического процесса.
Мерительный инструмент:
Штангенциркуль ШЦ – III – 500 – 0,1 ГОСТ 166-80.
Штангенглубиномер ШГ – 200 – 0,05 ГОСТ 162-80.
Образцы шероховатости ГОСТ 9378-93.
Шаблон специальный на торцевую канавкуÆ320/Æ150
030 Токарная с ЧПУ
Деталь базируется и закрепляется в трехкулачковом самоцентрирующем патроне Æ500 ГОСТ 2675-80. В целом деталь лишена пяти степеней свободы. Имеют место две технологические базы: установочная, лишающая деталь 3 степеней свободы, и двойная опорная, лишающая двух степеней свободы.
Оборудование:
Токарно-винторезный станок с ЧПУ мод. 1П756Ф3
Режущий инструмент:
Резец подрезной PCLNR4040S19 пластина CNM1906 ГОСТ26611-85
Резец расточной PCLNR4040S19 пластина CNM1906 ГОСТ26611-85
Резец специальный канавочный В=6мм., R=2,0мм., Т5К10
Предлагаемые нововведения: в предлагаемом технологическом процессе на данной операции будет заменен станок на более новый мод. MDW43, а также будут объединены операции: токарная с ЧПУ 030, и координатно-расточная 060.
035 Контроль ОТК
На данной операции на контрольной плите контролируются размеры, полученные на данной операции технологического процесса.
Мерительный инструмент:
Штангенциркуль ШЦ – III – 500 – 0,1 ГОСТ 166-80.
Штангенглубиномер ШГ – 200 – 0,05 ГОСТ 162-80.
Образцы шероховатости ГОСТ 9378-93.
Шаблон специальный на наружный контур М3-01135
Шаблон специальный на канавку Æ132 х 6мм.
Штихмасы Æ132Н7, Æ120Н9, Æ132Н7 СТП3300-2339-82
040 Круглошлифовальная
На данной операции деталь обрабатывается согласно эскиза (см. рис. 1.11)
Деталь базируется и закрепляется в трехкулачковом самоцентрирующем патроне Æ500 ГОСТ 2675-80. В целом деталь лишена пяти степеней свободы. Имеют место две технологические базы: установочная, лишающая деталь 3 степеней свободы, и двойная опорная, лишающая двух степеней свободы.
Оборудование:
Круглошлифовальный станок мод. 3М194
Режущий инструмент:
Круг шлифовальный
Предлагаемые нововведения: на данной операции будет заменен шлифовальный круг.

Рисунок 1.11 – Эскиз детали на операции 040
045 Контроль ОТК
На данной операции на контрольной плите контролируются размеры, полученные на данной операции технологического процесса.
Мерительный инструмент:
Штангенглубиномер ШГ – 200 – 0,05 ГОСТ 162-80.
Образцы шероховатости ГОСТ 9378-93.
Калибр-скоба Æ335js6
050 Маркировочная
Маркировать марку материала, обозначение чертежа
Вспомогательный инструмент:
Комплект букв русского алфавита
Комплект арабских цифр
Молоток
055 Зубодолбежная
На данной операции деталь обрабатывается согласно эскиза
(см. рис. 1.12)
Деталь базируется в специальном приспособлении на оправке с упором в торец. В целом деталь лишена пяти степеней свободы. Имеют место две технологические базы: установочная, лишающая деталь 3 степеней свободы, и двойная опорная, лишающая двух степеней свободы.
Оборудование:
Зубодолбежный станок мод. 5140
Режущий инструмент:
Долбяк чашечный т=2,5
Предлагаемые нововведения: для данной операции будет спроектирован долбяк для обработки зубьев.
![]()
Рисунок 1.12 – Эскиз детали на операции 055
060 Координатно-расточная
На данной операции деталь обрабатывается согласно эскиза
(см. рис. 1.13)
Деталь базируется в специальном приспособлении на оправке с упором в торец. В целом деталь лишена пяти степеней свободы. Имеют место две технологические базы: установочная, лишающая деталь 3 степеней свободы, и двойная опорная, лишающая двух степеней свободы.
Оборудование:
Координатно-расточной станок мод. 2421
Режущий инструмент:
Сверло Æ8,4мм. СТП3300-331-77
Метчик М10
Сверло Æ12мм. СТП3300-331-77
Резец расточной специальный ИБ3-250
Предлагаемые нововведения: данная операция будет производиться на токарном станке операции 030

Рисунок 1.13 – Эскиз детали на операции 060
065 Контроль ОТК
На данной операции на контрольной плите контролируются размеры, полученные на данной операции технологического процесса.
Мерительный инструмент:
Калибр-пробка Æ14Н7 СТП3300-2339-82
070 Слесарная
Зачистить поверхности детали от заусенцев, которые образовались после механических операций.
Вспомогательный инструмент:
Шкурка наждачная
Напильник
6.3 Краткое описание предлагаемого технологического процесса по операциям
005 Заготовительная
Заготовкой в предлагаемом технологическом процессе служит поковка штампованная на кривошипном горячештамповочном прессе. Обоснования выбора способа получения заготовки см. п.1.4.2
010 Термическая
Термообработка – нормализация. Подробнее см. п.1.6.2
015 Контроль ОТК
На данной операции на контрольной плите контролируются размеры, полученные на заготовительной операции технологического процесса.
Мерительный инструмент:
Штангенциркуль ШЦ – III – 500 – 0,1 ГОСТ 166-80.
020 Изготовление и испытание образцов
Подробнее см. п.1.6.2
025 Токарная с ЧПУ
После получения положительных результатов испытания образцов, заготовка устанавливается в трехкулачковом самоцентрирующем патроне и обрабатывается согласно эскиза (см. рис. 1.14)
Деталь базируется и закрепляется в трехкулачковом самоцентрирующем патроне Æ500 В целом деталь лишена пяти степеней свободы. Имеют место две технологические базы:
- установочная, торец детали, лишает деталь трех степеней свободы: перемещений вдоль оси Z и вращений вокруг осей X и Y; Обеспечивает все линейные размеры.
- двойная опорная, наружная цилиндрическая поверхность Æ415мм, лишает деталь двух степеней свободы: перемещений вдоль осей X и Y. Обеспечивает все диаметральные размеры, а также соосность обрабатываемых поверхностей.
Оборудование:
Токарно-винторезный станок с ЧПУ мод. MDW43
Вспомогательный инструмент:
Патрон 7100 – 0017 П ГОСТ 2675 – 80
Режущий инструмент:
Резец токарный подрезной упорный с механическим креплением твердосплавной неперетачиваемой пластинки.
Обозначение: Резец PCLNR4040S19 пластина CNM1906 Т5К10 ГОСТ26611-85
Резец токарный расточной.
Обозначение: Резец PCLNR4040S19 пластина CNM1906 Т5К10 ГОСТ26611-85

Рисунок 1.14 – Эскиз детали на операции 025
Мерительный инструмент:
Штангенциркуль ШЦ – III – 500 – 0,1 ГОСТ 166-80.
Штангенглубиномер ШГ – 200 – 0,05 ГОСТ 162-80.
025К Контроль на рабочем месте
На данной операции на рабочем месте контролируются размеры, полученные на данной операции технологического процесса.
Мерительный инструмент:
Штангенциркуль ШЦ – III – 500 – 0,1 ГОСТ 166-80.
Штангенглубиномер ШГ – 200 – 0,05 ГОСТ 162-80.
030 Токарная с ЧПУ
На данной операции деталь обрабатывается согласно эскиза (см. рис. 1.15)

Рисунок 1.15 – Эскиз детали на операции 030
Деталь базируется и закрепляется в трехкулачковом самоцентрирующем патроне Æ500 В целом деталь лишена пяти степеней свободы. Имеют место две технологические базы:
- установочная, торец детали, лишает деталь трех степеней свободы: перемещений вдоль оси Z и вращений вокруг осей X и Y; Обеспечивает все линейные размеры.
- двойная опорная, внутренняя цилиндрическая поверхность Æ128мм, лишает деталь двух степеней свободы: перемещений вдоль осей X и Y. Обеспечивает все диаметральные размеры, а также соосность обрабатываемых поверхностей.
Оборудование:
Токарно-винторезный станок с ЧПУ мод. MDW43
Вспомогательный инструмент:
Патрон 7100 – 0017 П ГОСТ 2675 – 80
Режущий инструмент:
Резец токарный подрезной упорный с механическим креплением твердосплавной неперетачиваемой пластинки.
Обозначение: Резец PCLNR4040S19 пластина CNM1906 Т5К10 ГОСТ26611-85
Резец токарный проходной с механическим креплением твердосплавной неперетачиваемой пластинки.
Обозначение: Резец PSSNL4040S19 пластина SNM1906 Т5К10 ГОСТ26611-85
Резец токарный круглый с механическим креплением твердосплавной неперетачиваемой пластинки.
Обозначение: Резец PRCCN2525M10H1 пластина RCM100300 Т5К10 ГОСТ26611-85
Резец токарный расточной.
Обозначение: Резец PCLNR4040S19 пластина CNM1906 Т5К10 ГОСТ26611-85
Мерительный инструмент:
Штангенциркуль ШЦ – III – 500 – 0,1 ГОСТ 166-80.
Штангенглубиномер ШГ – 200 – 0,05 ГОСТ 162-80.
Образцы шероховатости ГОСТ 9378-93.
Шаблон специальный на торцевую канавкуÆ320/Æ150
035 Контроль ОТК
На данной операции на контрольной плите контролируются размеры, полученные после двух токарных операций технологического процесса.
Мерительный инструмент:
Штангенциркуль ШЦ – III – 500 – 0,1 ГОСТ 166-80.
Штангенглубиномер ШГ – 200 – 0,05 ГОСТ 162-80.
Образцы шероховатости ГОСТ 9378-93.
Шаблон специальный на торцевую канавкуÆ320/Æ150
040 Токарная с ЧПУ
На данной операции деталь обрабатывается согласно эскиза (см. рис. 1.16)
Деталь базируется и закрепляется в трехкулачковом самоцентрирующем патроне Æ500 В целом деталь лишена пяти степеней свободы. Имеют место две технологические базы:
- установочная, торец детали, лишает деталь трех степеней свободы: перемещений вдоль оси Z и вращений вокруг осей X и Y; Обеспечивает все линейные размеры.
- двойная опорная, внутренняя цилиндрическая поверхность Æ405мм, лишает деталь двух степеней свободы: перемещений вдоль осей X и Y. Обеспечивает все диаметральные размеры, а также соосность обрабатываемых поверхностей.

Рисунок 1.16 – Эскиз детали на операции 040
Оборудование:
Токарно-винторезный станок с ЧПУ мод. MDW43
Вспомогательный инструмент:
Патрон 7100 – 0017 П ГОСТ 2675 – 80
Втулка переходная с наружным конусом Морзе 4 и внутренним конусом Морзе 1. Обозначение: Втулка 6100 – 0221 ГОСТ 13598-85
Режущий инструмент:
Резец токарный подрезной упорный с механическим креплением твердосплавной неперетачиваемой пластинки.
Обозначение: Резец PCLNR4040S19 пластина CNM1906 Т5К10 ГОСТ26611-85
Резец токарный расточной
Обозначение: Резец PDJNR2525M15 пластинаDNM1506 Т5К10 ГОСТ26611-85
Резец токарный расточной
Обозначение: Резец PCLNR4040S19 пластина CNM1906 Т5К10 ГОСТ26611-85
Резец специальный канавочный В=6мм., R=2,0мм., Т5К10 ГОСТ 18884-73
Сверло центровочное сверло Р6М5 2 II ГОСТ14952-75
Сверло удлиненное 2301-4027 Æ8,4мм Р6М5 ГОСТ 2092-77
Метчик 2620-0510 М10 Р6М5 ГОСТ 3266-81
Сверло удлиненное 2301-4044 Æ10мм Р6М5 ГОСТ 2092-77
Зенковка 2353-0133 Æ16мм Р6М5 ГОСТ 14953-80
Зенкер 2320-0004 Æ13,9мм Р6М5 ГОСТ 12489-71
Развертка 2363-1047 Æ14мм Р6М5 ГОСТ 1672-80
Мерительный инструмент:
Штангенциркуль ШЦ – III – 500 – 0,1 ГОСТ 166-80.
Штангенглубиномер ШГ – 200 – 0,05 ГОСТ 162-80.
Образцы шероховатости ГОСТ 9378-93.
Шаблон специальный на наружный контур М3-01135
Шаблон специальный на канавку Æ132 х 6мм.
Калибр – пробка 8140 – 0006 Æ115Н7 ГОСТ 14820-69
Калибр – пробка 8140 – 0007 Æ120Н9 ГОСТ 14820-69
Калибр – пробка 8133 – 0928 Æ14Н7 ГОСТ 14810-69
Калибр – пробка специальная Æ132Н7 ГОСТ 14820-69
Калибр – пробка резьбовая М10 – 7Н ГОСТ 17764-72
045 Контроль ОТК
На данной операции на контрольной плите контролируются размеры, полученные после токарной операции технологического процесса.
Мерительный инструмент: см. пункт выше.
050 Круглошлифовальная
На данной операции деталь обрабатывается согласно эскиза (см. рис. 1.17)
Деталь базируется и закрепляется в патроне самоцентрирующем трехкулачковом с креплением непосредственно на фланцевые концы шпинделя станка, с цельными кулачками Æ500 мм, класса точности П.

Рисунок 1.17 – Эскиз детали на операции 050
В целом деталь лишена пяти степеней свободы, имеют место две технологические базы:
- установочная, торец детали, лишает деталь трех степеней свободы: перемещений вдоль оси Z и вращений вокруг осей X и Y; Обеспечивает линейный размер 5мм.
- двойная опорная, наружная цилиндрическая поверхность Æ405 мм, лишает деталь двух степеней свободы: перемещений вдоль осей X и Y. Обеспечивает диаметральный размерÆ335js6, а также соосность обрабатываемых поверхностей.
Оборудование:
Круглошлифовальный станок мод. 3М194
Режущий инструмент:
Круг шлифовальный прямого профиля ПП с белого электрокорунда 24А, зернистостью 40, индексом зерен Н, среднемягкий СМ2, структура круга №5, на керамической связке К8.
Круг ПП 24А 40 Н СМ2 5 К8 ГОСТ 2424-83.
Мерительный инструмент:
Калибр-скоба индикаторная СИ300 ГОСТ 11098-75
Контрольно-измерительное приспособление для контроля торцевого биения.
Образцы шероховатости ГОСТ 9378-93.
055 Контроль ОТК
На данной операции на контрольной плите контролируются размеры, полученные после круглошлифовальной операции технологического процесса.
Мерительный инструмент: см. пункт выше.
060 Зубодолбежная
На данной операции деталь обрабатывается согласно эскиза
(см. рис. 1.18)

Рисунок 1.18 – Эскиз детали на операции 060
Деталь базируется в специальном приспособлении на оправке с упором в торец. В целом деталь лишена пяти степеней свободы, имеют место две технологические базы:
- установочная, торец детали, лишает деталь трех степеней свободы: перемещений вдоль оси Z и вращений вокруг осей X и Y; Обеспечивает линейные размеры операции
- двойная опорная, внутренняя цилиндрическая поверхность Æ115Н7 мм, лишает деталь двух степеней свободы: перемещений вдоль осей X и Y. Обеспечивает диаметральный размер Æ131,25Н9, а также соосность обрабатываемых поверхностей.
Оборудование:
Зубодолбежный станок мод. 5140
Режущий инструмент:
Долбяк чашечный т=2,5 ГОСТ 9323-79
Мерительный инструмент:
Микрометр ГОСТ 6507-78 с цифровым отсчётным устройством модели 123
Эвольвентомер КЭУМ
Шагомер БВ-5070 ГОСТ 5368-81
Биениемер Б-10М ГОСТ 8137-81
Зубомер смещения М1(23500) ГОСТ 4446-81
065 Контроль ОТК
На данной операции на контрольной плите контролируются размеры, полученные после зубодолбежной операции технологического процесса.
Мерительный инструмент: см. пункт выше.
070 Слесарная
Зачистить поверхности детали от заусенцев, которые образовались после механических операций.
Вспомогательный инструмент:
Шкурка наждачная ГОСТ 5009-82.
Напильник ГОСТ 1465-80.
075 Маркировочная
Маркировать марку материала, обозначение чертежа
Вспомогательный инструмент:
Комплект букв русского алфавита СТП 3300-2045-85.
Комплект цифр арабских СТП 3300-2047-81.
Молоток ГОСТ 2310-77.
080 Контроль ОТК
На данной операции на контрольной плите контролируются размеры, полученные после всех механических операций технологического процесса.
Мерительный инструмент: см. пункт выше.
7. Разработка операционного технологического процесса
7.1 Краткое описание траекторий движения режущего инструмента
В данном пункте рассматривается краткое описание траекторий движения режущего инструмента на токарной с ЧПУ операции. Обработка детали ведется на токарном станке модели MDW 43
Исходная точка выбирается из соображений безопасности на расстоянии, чтобы при смене инструмента, инструмент не повредил деталь, и сам не повредился.
Описание траектории движения режущего инструмента на операции 025
На данной операции производится черновая обработка детали. Для обработки детали на данной операции используется два режущих инструмента (см. п.1.6.3)

Рисунок 1.19 – Траектория движения режущего инструмента №1
И.т. – 1 – на ускоренной подаче резец №1 из исходной точки подходит к детали;
1 – 2 – на подаче 5мм/об резец подходит к торцу детали Z 0;
2 – 3 – на рабочей подаче подрезается торец начерно;
3 – 4 – отход от детали на 1мм. под 45 градусов;
4 – 5 – подход к конической поверхности;
5 – 6 – на рабочей подаче точится коническая поверхность начерно;
6 – 7 – отход от детали на 1мм. под 45 градусов;
7 – 8 – подход к диаметру Ø420мм;
8 – 9 – подход к торцу Z – 104 мм;
9 – 10 – на рабочей подаче подрезается торец начерно в размер 104;
10 – 11 – на рабочей подаче точится диаметр Ø366 начерно;
11 – 12 – на рабочей подаче точится коническая поверхность начерно;
12 – 13 – на рабочей подаче точится радиус 13 начерно;
13 – 14 – отход от детали на 1мм. под 45 градусов;
14 – и.т. – инструмент на ускоренной подаче возвращается в исходную точку.

Рисунок 1.20 – Траектория движения режущего инструмента №2
И.т. – 15 – на ускоренной подаче резец №2 из исходной точки подходит к детали;
15 – 16 – на подаче 5мм/об резец подходит к Ø116мм;
16 – 17 – на рабочей подаче растачивается Ø116мм начерно;
17 – 18 – на рабочей подаче подрезается торец начерно в размер 111;
18 – 19 – на рабочей подаче растачивается Ø111мм начерно;
19 – 20 – отход от детали на 1мм. под 315 градусов;
20 – 21 – выход из детали Z 1мм;
21 – 22 – подход к диаметру Ø128мм;
22 – 23 – на рабочей подаче растачивается Ø128мм начерно;
23 – 24 – на рабочей подаче подрезается торец начерно в размер 35;
24 – 25 – выход из детали Z 1мм;
25 – и.т. – инструмент на ускоренной подаче возвращается в исходную точку.
7.2 Выбор режимов резания и нормирование операций технологического процесса
Выбор режимов резания для операции 025 токарная с ЧПУ производится по [12].
Паспортные данные на токарный патронно-центровой станок с ЧПУ модели MDW 43
Станок предназначен для токарной обработки деталей длиной до 4000 мм и весом до 2000 кг сложной криволинейной поверхности, а также сверления, фрезерования и шлифования наружных цилиндрических и торцевых поверхностей. На станке возможно нарезание цилиндрических и конических резьб с шагом 0,001-2000 мм, а также с увеличивающимся или уменьшающимся шагом.
Рабочие диапазоны:
1. Высота центров, мм 471
2. Наибольший диаметр изделия над станиной, мм 830
3. Наибольший диаметр изделия над поперечными салазками, мм 640
4. Диаметр обработки над инструментальным кожухом, мм 430 5. Длина обточки, мм 3500
Главный шпиндель:
6. Диаметр шпинделя в переднем подшипнике, мм 230
7. Диаметр отверстия в шпинделе, мм 128
Главный привод:
8. Мощность привода, кВт 63
9. Минимальное число оборотов, об/мин 10
10. Максимальное число оборотов, об/мин 710
11. Программируемые числа оборотов бесступенчатые
Приводы подачи:
12. Скорость подачи поперечно/продольной, мм/мин 0,01-3000
13. Скорость подачи поперечно/продольной, мм/об 0,001-50
14. Ускоренный ход, мм/мин 10000
15. Усилие подачи поперечно, Н 8000
16. Усилие подачи продольно, Н 3600
Крестовые салазки:
17. Поперечный ход, мм (по оси X) 560
18. Продольный ход, мм (по оси Z) 3500
Устройство автоматической смены инструмента:
19. Количество инструментов магазин/патрон 46/1
20. Время смены инструмента, сек 35
Габариты станка(без ЧПУ):
21. Длина, мм 8830
22. Ширина, мм 1900
23. Высота, мм 2700
24. Вес станка(без ЧПУ), кг 19200

Рисунок 1.21 Эскиз детали для нормирования операции 025
Стадия обработки – черновая для всех поверхностей
Таблица 1.10 – Глубина резания по поверхностям
| № поверхности | 1 | 2 | 3 | 4 | 5 | 6 | 7 | 8 | 9 | 10 | 11 |
| Глубина резания, мм | 3 | 3 | 6 | - | 3 | 3 | 4,5 | - | 2 | 6 | - |
1. Выбор подачи при точении.
Для поверхности 1,2,6 при точении детали с диаметром до 180 мм и глубиной резания до t=5мм. рекомендуется подача Sот = 0,73 мм/об [с.38, к.3]
Для поверхности 3,4,5 соответственно рекомендуется подача Sот = 0,98 мм/об [с.38, к.3].
Поправочные коэффициенты на подачу в зависимости от инструментального материала KSИ =1,15 и способа крепления пластины
KSP=1,0
Поправочные коэффициенты на подачу черновой стадии обработки для измененных условий обработки в зависимости от:
- сечения державки резца KSД =0,95; [с.44, к.5]
- прочности режущей части KSh=1,0;
- механических свойств обрабатываемого материала KSM=0,9;
- схемы установки заготовки KSy=1,2;
- состояния поверхности заготовки KSп =1,0;
- геометрических параметров резца KSφ=1,0;
- жесткости станка KSj=1,1;
- вылета инструмента KSl=1,0.
Окончательно подача черновой стадии определяется по формуле:
(1.32)
для поверхностей 1,2,6:
0,95 мм/об;
для поверхностей 3,4,5:
1,27 мм/об.
Для черновой стадии обработки, рассчитанные подачи проверяются по осевой
и радиальной
составляющим силы резания, допустимые прочностью механизма подачи станка.
=4700 Н;
=1460Н [с.98, к.32]
Поправочные коэффициенты на силы черновой стадии обработки
КРМ =1,1; КРφ =1; КРТ =1; КРλ =1 [с.99, к.33]
Окончательно силы резания определяется по формуле:
(1.33)
5170 Н
1606 Н
Полученные значения сил резания меньше допустимых РХ =8000 Н; РY=3600 Н, следовательно обработка возможна.
2. Выбор подачи при растачивании.
Для поверхности 9 при растачивании детали с диаметром до 120 мм и глубиной резания до t=5мм. рекомендуется подача Sот = 0,8 мм/об (с.50, к.9)
Для поверхности 7 при растачивании детали с диаметром до 120 мм и глубиной резания до t=3мм. рекомендуется подача Sот = 0,68 мм/об (с.50, к.9)
Для поверхности 10 при растачивании детали с диаметром до 180 мм и глубиной резания до t=8мм. рекомендуется подача Sот = 0,52 мм/об [с.50, к.9]
Поправочные коэффициенты на подачу в зависимости от механических свойств обрабатываемого материала KSM=0,9; [с.52, к.11]
- состояния поверхности заготовки KSп =1,0;
- вылета инструмента KSl=0,9;
- сечения державки резца KSД =0,8;
- геометрических параметров резца KSφ=1,0;
- способа крепления пластины KSP=1,0;
- KSи =1,15
Окончательно подача черновой стадии определяется по формуле:
(1.34)
для поверхности 9:
0,6 мм/об;
для поверхности 7:
0,5 мм/об;
для поверхности 10:
0,39 мм/об;
Рассчитанные значения подач для и черновой стадии обработки заносятся в таблицу 1.12
3. Выбор скорости резания
Для поверхностей 1-6 при точении конструкционной стали без корки с глубиной резания до t=8 мм и подачей до Sо = 1,3мм/об скорость резания Vт =128 м/мин [c.73, к.21].
При растачивании Vт =166 м/мин [c.73, к.21].
Поправочный коэффициент для черновой стадии обработки в зависимости от инструментального материала KVИ =1,0
Остальные поправочные коэффициенты на скорость резания при черновой стадии обработки для измененных условий в зависимости от:
- группы обрабатываемости материала KVc=1,0; [с.82, к.23]
- вида обработки KVo=1,0;
- жесткости станка KVj=1,1;
- механических свойств обрабатываемого материала KVM=0,8;
- геометрических параметров резца KVφ=1,0;
- периода стойкости режущей части KVT=1,0;
- наличие охлаждения KVж =1,0.
Общий поправочный коэффициент на скорость резания вычисляется по формуле:
, (1.35)
0,88
Окончательно скорость резания при черновой стадии обработки определяется по формуле:
,(1.36)
Для точения:
112,64 м/мин.
Для растачивания:
146,08 м/мин.
4.Частота вращения шпинделя определяется по формуле:
, (1.37)
При точении наружных поверхностей:
86,41 об/мин.
Принимаем частоту вращения, nф = 80 об/мин.
Фактическая скорость резания определяется по формуле:
, (1.38)
104,25 м/мин.
При растачивании поверхностей:
363,45 об/мин.
Принимаем частоту вращения, nф = 350 об/мин.
Фактическая скорость резания определяется по формуле:
140,7 м/мин.
Расчет частоты вращения шпинделя, корректировку ее и расчет фактической скорости резания для остальных поверхностей проводятся аналогично. Результаты расчетов сведены в таблицу 1.12
5. Проверка выбранных режимов по мощности привода главного движения
Для черновой стадии обработки табличная мощность резания определяется по карте 21 аналогично табличной скорости резания, т.е. значение
определяется из той же клетки в карте 21, что и значение
.
При точении мощность резания Nт=12 кВт (с.73, к.21)
По карте 24 определяется поправочный коэффициент на мощность в зависимости от твердости обрабатываемого материала КN=1,05 (с.75, к.24)
Табличная мощность резания корректируется по формуле:
, (1.39)
11,66 кВт.
По паспортным данным станка мод. MDW – 43 мощность электродвигателя привода станка N=25 кВт; КПД станка h=0,85. Мощность шпинделя станка определяется по формуле:
, (1.40)
21.25 кВт.
Аналогично рассчитываются остальные значения мощности резания. Результаты расчетов занесены в таблицу 1.12. Ни одно из рассчитанных значений не превышает мощности привода главного движения станка. Следовательно, установленный режим резания по мощности осуществим.
6. Определение минутной подачи
Минутная подача рассчитывается по формуле:
, (1.41)
При черновой стадии обработки поверхности 1:
76 мм/мин.
Значения минутной подачи для остальных поверхностей рассчитываются аналогично и заносятся в таблицу 1.12
7. Определение времени автоматической работы станка по программе
Время автоматической работы станка по программе определяется по формуле:
(1.42)
(1.43)
Расчет производится в табличной форме, результаты расчета сведены в таблицу 1.11
По формуле 1.42 время автоматической работы станка по программе:
5,11 мин.
8. Вспомогательное время
Вспомогательное время определяется по формуле:
, (1.44)
где:
- время на установку и снятие детали
Вспомогательное время на установку и снятие детали в самоцентрирующем патроне с креплением ключом
= 1,4 мин. [15 с.32, к.2];
- время связанное с операцией,
= 0,32 мин. [15 с.64, к.18];
- время на измерения,
= 0,6 мин. [15 с.185, к.86]
По формуле 1.44 вспомогательное время:
2,32 мин.
Определение коэффициента на выполнение ручной вспомогательной работы
Кtв =1,0 [15 с.50, к.1]
9. Определение нормы штучного времени
(1.45)
где
- время на организационное и техническое обслуживание рабочего места 5,5% [15 с.70, к.19], и время перерывов на отдых и личные надобности 4% [15 с.203, к.88 ].
По формуле 1.45 норма штучного времени:
8,14 мин.
Таблица 1.11 - Определение времени автоматической работы станка
Участок траек тории |
Приращение по оси Х, DХ, мм | Приращение по оси Z, DZ, мм | Длина i-го участка траектории Li, мм | Минутная подача на i-м участке SMi, мм/мин |
Основное время работы станка ТО, мин |
Машино-вспомогательное время ТМВ, мин |
| РИ1 | - | - | - | - | - | 0,58 |
| и.т.-1 | 307,5 | 195 | 364,12 | 10000 | - | 0,036 |
| 1-2 | 0 | 5 | 5 | 950 | - | 0,005 |
| 2-3 | 42,5 | 0 | 42,5 | 180,5 | 0,24 | - |
| 3-4 | 1 | 1 | 1,41 | 950 | - | 0,002 |
| 4-5 | 28,39 | 0 | 28,39 | 3800 | - | 0,007 |
| 5-6 | 6,695 | 60,72 | 61,09 | 180,5 | 0,34 | - |
| 6-7 | 1 | 1 | 1,41 | 950 | - | 0,002 |
| 7-8 | 122,915 | 0 | 122,915 | 3800 | - | 0,032 |
| 8-9 | 0 | 45,28 | 45,28 | 1600 | - | 0,028 |
| 9-10 | 27 | 0 | 27 | 101,6 | 0,27 | - |
| 10-11 | 0 | 4 | 4 | 101,6 | 0,04 | - |
| 11-12 | 88,1 | 29,37 | 92,87 | 101,6 | 0,91 | - |
| 12-13 | 8,815 | 10,91 | 81,64 | 101,6 | 0,8 | - |
| 13-14 | 1 | 1 | 1,41 | 950 | - | 0,002 |
| 14-и.т. | 312,915 | 258,72 | 406,02 | 10000 | - | 0,041 |
| РИ2 | - | - | - | - | - | 0,58 |
| и.т.-15 | 347,5 | 199 | 400,45 | 10000 | - | 0,04 |
| 15-16 | 5,5 | 0 | 5,5 | 1750 | - | 0,003 |
| 16-17 | 0 | 112 | 112 | 175 | 0,64 | - |
| 17-18 | 2,5 | 0 | 2,5 | 175 | 0,014 | - |
| 18-19 | 0 | 22 | 22 | 210 | 0,105 | - |
| 19-20 | 1 | 1 | 1,41 | 1750 | - | 0,001 |
| 20-21 | 0 | 133 | 133 | 5250 | - | 0,025 |
| 21-22 | 9,5 | 0 | 9,5 | 1750 | - | 0,005 |
| 22-23 | 0 | 36 | 36 | 136,5 | 0,264 | - |
| 23-24 | 7 | 0 | 7 | 136,5 | 0,051 | - |
| 24-25 | 0 | 36 | 36 | 5250 | - | 0,007 |
| 25-и.т. | 343 | 199 | 396,55 | 10000 | - | 0,04 |
| Сумма | 3,67 | 1,44 | ||||
10. Определение нормы времени на выполнение операции
(1.46)
где: Тпз – подготовительно-заключительное время на партию, Тпз = 19 мин. [15 с.70, к.19 ];
п – количество деталей в день.
(1.47)
56 шт.
Таблица 1.12 – Режимы резания и нормы времени на операцию 025
| Переход | Режимы резания | Нормы времени | ||||||||
| Глубина резания t, мм. | Подача So, мм/об. | Скорость резания V м/мин. |
Частота вращения n об/мин. |
Основное время То мин. | Машино-вспомогательное время ТМВ мин. |
Вспомогательное время ТВ мин. |
Штучное время ТШТ, мин. | Подготовительно- заключительное время ТПЗ, мин. |
Штучно-калькуляционное время ТШТК, мин. |
|
| Подрезать торец 1 | 3 | 0,95 | 103,8 | 190 | 3,67 | 1,44 | 2,32 | 8,14 | 19 | 8,48 |
Точить коническую поверхность 2 |
3 | 0,95 | 103,8 | 190 | ||||||
| Подрезать торец 3 | 6 | 1,27 | 104,2 | 80 | ||||||
Точить поверхность 4 |
- | 1,27 | 91,9 | 80 | ||||||
Точить коническую поверхность 5 |
3 | 1,27 | 91,9 | 80 | ||||||
| Точить радиус 6 | 3 | 0,95 | 103,8 | 190 | ||||||
Расточить поверхность 7 |
4,5 | 0,5 | 127,5 | 350 | ||||||
Расточить торец 8 |
- | 0,5 | 127,5 | 350 | ||||||
Расточить поверхность 9 |
2 | 0,6 | 122,0 | 350 | ||||||
Расточить поверхность 10 |
6 | 0,39 | 140,6 | 350 | ||||||
Расточить торец 11 |
- | 0,39 | 140,6 | 350 | ||||||
По формуле 1.46 норма времени на выполнение операции:
8,48 мин.
Выбор режимов резания для операции 060 Зубодолбежной производится по [14]
Паспортные данные на зубодолбежный полуавтомат модели 5140
1. Наибольший диаметр устанавливаемой заготовки, мм 500
2. Наибольшая ширина нарезаемого венца зубчатого колеса, мм 100
3. Наибольший модуль нарезаемого зубчатого колеса 8
4. Номинальный диаметр устанавливаемого долбяка, мм 100
5. Конус Морзе шпинделя для крепления инструмента 5
6. Число двойных ходов инструмента в минуту, дв. ход/мин. 65 450
7. Круговая подача, мм/дв. ход 0,14 – 0,75
8. Радиальная подача, мм/дв. ход 0,02 – 0,1
9. Мощность электродвигателя привода главного движения, кВт 4
Габариты станка:
10. Длина, мм 1900
11. Ширина, мм 1450
12. Высота, мм 2450
13. Вес станка, кг 4400
1 Круговая подача (подача обкатки)
Определяем классификационную группу, к которой по нормативам относится используемый зубодолбёжный станок. Станок 5140 относится к III группе станков [к.12, с.38], т.к. мощность его электродвигателя 4 кВт.
Для параметра шероховатости обработанной поверхности Ra=3.2, обработки по сплошному металлу круговая подача Sтаб = 0,25 – 0,3 мм/дв. ход [к.13, с.38],
Необходимо учесть примечания к карте 13.
Поправочный коэффициент на подачу [к.14, с.41], т.к. материал – Сталь 40, то Кмs=1,0
Sкр= Sтаб = 0,25 – 0,3 мм/дв. ход.
Принимаем Sкр = 0,27 мм/дв. ход., так как число зубьев нарезаемого колеса больше 25.
Корректируя подачу по данным станка принимаем Sкр = 0,25 мм/дв. ход
Радиальная подача (подача при врезании)
Sрад = (0,1 – 0,3) Sкр
Принимаем Sрад=0,2 Sкр
Sрад=
=0,05 мм/дв. ход.
Корректируя по данным станка принимаем Sрад = 0,051 мм/дв. ход.
2. Период стойкости.
Для чистового долбяка Т = 240 мин. [c.161, пр.3].
3. Скорость главного движения резания.
Для обработки по сплошному металлу, при круговой подаче Sкр = 0,25 мм/дв. ход и модуле т=2,5 скорость Vтаб = 20,5 м/мин. [к.14, с.40].
Поправочный коэффициент на скорость резания [к.14, с.41], т.к. материал – Сталь 40, то Кмv= 1,1
Vи =
=
= 22,55 м/мин.
Определяем число двойных ходов долбяка в минуту, соответствующее найденной скорости резания:
к =
(1.48)
где L – длина хода долбяка
L= b+l1 (1.49)
где b – ширина венца, b=70 мм.
l1 – перебег долбяка на две стороны
При ширине венца до 72 мм, l1=12 мм. [с.184, пр.14].
По формуле 1.49 длина хода долбяка:
L=70 + 12 = 82 мм.
По формуле 1.48 число двойных ходов:
к =
=137,5 дв. ход/мин.
Корректируем число двойных ходов долбяка по данным станка и устанавливаем действительное число двойных ходов долбяка кд = 130 дв. ход/мин.
Действительная скорость главного движения резания
Vд=
=
= 21,3 м/мин. (1.50)
4. Мощность, затрачиваемая на резание.
Мощность, затрачиваемая на резание при окончательном зубодолблении по сполошному металлу при Sкр = 0,25 мм/дв. ход,Nт = 1,1 кВт. [к.14, с.40].
Поправочный коэффициент на мощность [к.14, с.41], т.к. материал – Сталь 40, то КмN= 1;
Поправочный коэффициент на мощность [к.14, с.41], т.к. число нарезаемых зубьев z=50, то КZN= 1,2
N =
=
= 1,32 кВт.
Мощность на шпинделе станка
Nш = NЭ η =
= 2,6 кВт
Назначенный режим можно осуществить на данном станке так как мощность резания меньше мощности на шпинделе станка (N<Nш),
(1,32< 2,6)
5. Основное время
То =
(1.51)
где т – модуль, т=2,5
z – число нарезаемых зубьев, z=50
i – число рабочих ходов, i=1
h – высота нарезаемого зуба, h=5,625 мм.
По формуле 1.51 основное время обработки:
То =
=12,93 мин.
6. Вспомогательное время
Вспомогательное время определяется по формуле 1.44
Вспомогательное время на установку и снятие детали специальном приспособлении
= 0,99 мин. [15 с.54, к.16];
- время связанное с операцией,
= 0,75 мин. [15 с.155, к.65];
- время на измерения,
= 0,18 мин. [15 с.185, к.86]
По формуле 1.44 вспомогательное время:
1,92 мин.
7. Определение нормы штучного времени
Штучное время определяется по формуле 1.45
- время на организационное и техническое обслуживание рабочего места 4% [15 с.156, к.66], и время перерывов на отдых и личные надобности 4% [15 с.203, к.88 ].
По формуле 1.45 норма штучного времени:
16,03 мин.
8. Определение нормы времени на выполнение операции
Подготовительно-заключительное время на партию, Тпз =26 мин.[15 с.66, к.26]
По формуле 1.47 количество деталей в день:
28 шт.
По формуле 1.46 норма времени на выполнение операции:
16,96 мин.
Таблица 1.13 – Режимы резания и нормы времени на операцию 060
| Переход | Режимы резания | Нормы времени | |||||||
| Круговая подача Sкр, мм/дв.ход | Радиальная подача Sрад, мм/дв.ход | Скорость резания V м/мин. |
Число двойных ходов к дв.ход/мин. |
Основное время То мин. | Вспомогательное время ТВ мин. |
Штучное время ТШТ, мин. | Подготовительно- заключительное время ТПЗ, мин. |
Штучно-калькуляционное время ТШТК, мин. |
|
| Долбить зубья т=2,5 | 0,25 | 0,051 | 21,3 | 130 | 12,93 | 1,92 | 16,03 | 26 | 16,96 |
Назначение режимов резания и нормирование остальных операций производится в табличной форме.
Таблица 1.14 – Режимы резания и нормы времени на операцию 030
| Переход | Режимы резания | Нормы времени | ||||||||
| Глубина резания t, мм. | Подача So, мм/об. | Скорость резания V м/мин. |
Частота вращения n об/мин. |
Основное время То мин. | Машино-вспомогательное время ТМВ мин. |
Вспомогательное время ТВ мин. |
Штучное время ТШТ, мин. | Подготовительно- заключительное время ТПЗ, мин. |
Штучно-калькуляционное время ТШТК, мин. |
|
Подрезать торец Ø415/Ø111 |
3 | 1,2 | 104,2 | 80 | 21,85 | 3,84 | 2,53 | 30,9 | 24 | 32,61 |
| Точить Ø405 | 5 | 1,2 | 101,7 | 80 | ||||||
| Точить фаску 1,5х45 | 1,5 | 1,2 | 101,7 | 80 | ||||||
Подрезать торец Ø405/Ø337 |
4 | 1,2 | 101,7 | 80 | ||||||
| Точить Ø337 | - | 1,2 | 84,7 | 80 | ||||||
| Точить фаску 1,5х45 | 1,5 | 1,2 | 84,7 | 80 | ||||||
Выбрать карман начерно резцом PSSNL4040S19 |
4 | 0,6 | 113,1 | 150 | ||||||
Выбрать карман начерно резцом PRCCN2525M10 |
4 | 0,5 | 113,1 | 150 | ||||||
Расточить Ø114,5 получисто |
1,75 | 0,3 | 125,8 | 350 | ||||||
Таблица 1.15 – Режимы резания и нормы времени на операцию 040
| Переход | Режимы резания | Нормы времени | ||||||||
| Глубина резания t, мм. | Подача So, мм/об. | Скорость резания V м/мин. |
Частота вращения n об/мин. |
Основное время То мин. | Машино-вспомогательное время ТМВ мин. |
Вспомогательное время ТВ мин. |
Штучное время ТШТ, мин. | Подготовительно- заключительное время ТПЗ, мин. |
Штучно-калькуляционное время ТШТК, мин. |
|
Подрезать торец Ø155/Ø128 |
2 | 0,6 | 97,3 | 200 | ||||||
| Точить фаску 1х45 | 1 | 0,6 | 97,3 | 200 | ||||||
Точить коническую поверхность Ø155/Ø170 |
2 | 0,6 | 106,8 | 200 | ||||||
| Точить фаску 1х45 | 1 | 0,8 | 114,5 | 90 | ||||||
Подрезать торец Ø405/Ø362 |
2 | 0,8 | 114,5 | 90 | ||||||
| Точить Ø362 | - | 0,8 | 102,3 | 90 | ||||||
| Точить фаску 1х45 | 1 | 0,8 | 102,3 | 90 | ||||||
Точить коническую поверхность Ø362/Ø170 |
2 | 0,8 | 102,3 | 90 | ||||||
| Точить радиус R15 | 2 | 0,6 | 106,8 | 200 | ||||||
| Расточить фаску 1х45 | 1 | 0,4 | 145,1 | 350 | ||||||
Расточить Ø132Н7 получисто |
0,8 | 0,35 | 145,1 | 350 | ||||||
| Расточить Ø134 | 0 | 0,35 | 147,3 | 350 | ||||||
| Расточить R2 | 2 | 0,35 | 147,3 | 350 | ||||||
Расточить торец в размер 35 |
2 | 0,35 | 147,3 | 350 | ||||||
| Переход | Режимы резания | Нормы времени | ||||||||
| Глубина резания t, мм. | Подача So, мм/об. | Скорость резания V м/мин. |
Частота вращения n об/мин. |
Основное время То мин. | Машино-вспомогательное время ТМВ мин. |
Вспомогательное время ТВ мин. |
Штучное время ТШТ, мин. | Подготовительно- заключительное время ТПЗ, мин. |
Штучно-калькуляционное время ТШТК, мин. |
|
| Расточить фаску 1х45 | 1 | 0,35 | 131,9 | 350 | ||||||
Расточить Ø120Н9 получисто |
0,8 | 0,45 | 131,9 | 350 | ||||||
Расточить торец в размер 111 |
2 | 0,45 | 131,9 | 350 | ||||||
Расточить Ø115Н7 чисто |
0,4 | 0,45 | 144,5 | 400 | ||||||
Прорезать канавку В=6 мм, R=2 мм. |
6 | 0,1 | 62,2 | 150 | ||||||
Расточить Ø132Н7 чисто |
0,5 | 0,3 | 165,8 | 400 | ||||||
Расточить Ø120Н9 чисто |
0,4 | 0,25 | 150,7 | 400 | ||||||
Расточить Ø115Н7 окончательно |
0,3 | 0,15 | 162,5 | 450 | ||||||
Расточить Ø132Н7 окончательно |
0,3 | 0,18 | 186,5 | 450 | ||||||
Центровать 20 отв. Ø4 мм. |
2 | 0,1 | 11,9 | 950 | ||||||
Сверлить 2 отв. Ø8,4 мм. |
4,2 | 0,3 | 13,2 | 500 | ||||||
| Переход | Режимы резания | Нормы времени | ||||||||
| Глубина резания t, мм. | Подача So, мм/об. | Скорость резания V м/мин. |
Частота вращения n об/мин. |
Основное время То мин. | Машино-вспомогательное время ТМВ мин. |
Вспомогательное время ТВ мин. |
Штучное время ТШТ, мин. | Подготовительно- заключительное время ТПЗ, мин. |
Штучно-калькуляционное время ТШТК, мин. |
|
Сверлить 18 отв. Ø10 мм. |
5 | 0,3 | 15,7 | 500 | 18,68 | 7,53 | 3,14 | 32,14 | 30 | 34,28 |
| Зенкеровать 18 отв. Ø13,9 мм. | 1,95 | 0,8 | 7,9 | 180 | ||||||
| Зенковать в 18 отв. фаску 1х45 | 1 | 0,8 | 10,1 | 200 | ||||||
| Развернуть 18 отв.Ø14Н7 мм. начисто | 0,05 | 0,5 | 11,0 | 250 | ||||||
| Нарезать резьбу М10-7Н в 2 отв. | 0,8 | 1,5 | 4,7 | 150 | ||||||
Таблица 1.16 – Режимы резания и нормы времени на операцию 050
| Переход | Режимы резания | Нормы времени | ||||||||
Частота вращения шлифовального круга nшк об/мин. |
Скорость резания VSокр м/мин |
Радиальная подача Sх мм/ход станка |
Скорость резания VSпрод м/мин |
Подача So, мм/об. | Основное время То мин. | Вспомогательное время ТВ мин. |
Штучное время ТШТ, мин. | Подготовительно- заключительное время ТПЗ, мин. |
Штучно-калькуляционное время ТШТК, мин. |
|
Шлифовать Ø335js6 |
800 | 31,6 | 0,005 | 0,9 | 30 | 1,56 | 2,23 | 4,31 | 12 | 4,42 |
7.3 Заполнение ККИ
Карты кодирования информации для операций 025, 030, 040 представлены в приложениях А, Б, В.
8. Проектирование специальной оснастки
8.1 Проектирование станочного приспособления
8.1.1 Расчет сил закрепления заготовки
Составляющие силы резания при долблении рассчитывают по формулам для точения [11 стр.276]
Расчет режимов резания см. п.1.7.2
Сила резания определяется по формуле:
(1.52)
где: Cр – коэффициент силы резания Cр=200 [с. 273, т.22].
x, y, n – показатели степени, x=1.0, y=0.75, n=0 [ c. 273, т.22].
Kр – поправочный коэффициент
(1.53)
где: Крм – коэффициент, учитывающий влияние физико-механических свойств обрабатываемого материала на силу резания
Крм=
(1.54)
где: sв – предел прочности, для Стали 40 sв =470 Мпа;
n – показатель степени, n=0,75 [с. 264, т.9].
По формуле 1.54
Крм=
=0,7
Кφр – коэффициент, учитывающий влияние главного угла в плане на силу резания, Кφр =1,08 (с.275, т.23)
Кγр – коэффициент, учитывающий влияние переднего угла на силу резания, Кγр =1,15;
Кλр – коэффициент, учитывающий влияние угла наклона главного лезвия на силу резания, Кλр =1,0;
Кrр – коэффициент, учитывающий влияние радиуса при вершине на силу резания, Кrр =0,87
По формуле 1.53 поправочный коэффициент на силу резания
![]()
По формуле 1.52 сила резания при зубодолблении
Н

Рисунок 1.22 – Силы при закреплении заготовки
Для достаточного и надежного закрепления заготовки сила закрепления рассчитывается по формуле [16 с.193]
(1.55)
где: К- коэффициент запаса
Коэффициент запаса К вводят в формулы при вычислении силы закрепления для обеспечения надежного закрепления заготовки:
(1.56)
где: К0 – гарантированный коэффициент запаса, К0 =1,5 [17 с.382]
К1 - коэффициент, учитывающий увеличение сил резания из-за случайных неровностей на обрабатываемых поверхностях заготовок, при чистовой обработке К1 =1;
К2 - коэффициент, учитывающий увеличение сил резания вследствие затупления режущего инструмента, К2 =1,0
К3 - коэффициент, учитывающий увеличение сил резания при прерывистом резании, К3 =1;
К4 - коэффициент, учитывающий постоянство силы закрепления, при использовании пневмоцилиндра, К4 =1;
К5 - коэффициент, учитывающий удобное расположение рукоятки, К5 =1;
К6 - коэффициент учитывающий наличие моментов, стремящихся повернуть заготовку, К6 =1,0.
По формуле 1.56 коэффициент запаса
К=1,5.1.1.1.1.1,0=1,5
Принимается К=2,5
(1.57)
где: g – сопротивление пружины, g=0,1РО’;
f - коэффициент трения на направляющей поверхности Г-образного прихвата,
=0,16[17 с.384, т.3]
η1 – коэффициент учитывающий потери от трения в шарнирах коромысла,η1=0,9;
η - коэффициент учитывающий потери от трения в звене верхнего прихвата, η=0,9
Н
Н
По формуле 1.55 сила зажима
Н
8.1.2 Выбор и расчет силового привода.В данном приспособлении в роли силового привода используется пневмоцилиндр, для которого усилие на штоке при давлении сжатого воздуха на поршень в бесштоковой полости рассчитывается по формуле:
Q =
(1.58)
где: D – диаметр пневмоцилиндра;
р – давление сжатого воздуха в системе, р=0,4 Мпа;
η – кпд, учитывающий потери в пневмоцилиндре, η=0,9
D=
мм (1.59)
Принимаем диаметр пневмоцилиндра D=125 мм, [17 с.432, т.7], тогда диаметр штока d=32 мм.
Действительная сила закрепления
Q =
Н
Действительная сила зажима заготовки больше необходимой силы, следовательно, приспособление обеспечивает фиксированное положение детали при обработке.
8.2 Проектирование режущего инструмента
Зуборезные долбяки делятся на дисковые, чашечные и хвостовые, предназначенные для обработки зубьев прямозубых и косозубых цилиндрических зубчатых колес с исходным контуром по ГОСТ 13755-81, а также для обработки зубьев валов и отверстий шлицевых соединений с эвольвентным профилем по ГОСТ 6033-80.
Зуборезные долбяки изготовляют следующих типов:
1-го – дисковые прямозубые долбяки классов точности АА, А и В для колес 6, 7 и 8-й степеней точности;
2-го – дисковые косозубые классов точности А и В для 7 и 8-й степеней точности;
3-го – чашечные прямозубые – классов точности АА, А и В для колес 6, 7 и 8-й степеней точности;
4-го – хвостовые прямозубые классов точности А и В для колес 7 и 8-й степеней точности;
5-го – хвостовые косозубые класса точности В для 8-й степени точности.
Согласно задания нужно рассчитать и сконструировать прямозубый долбяк для обработки зубьев с модулем то =2,5мм., номинальным делительным диаметром 125мм. Степень точности нарезаемых зубьев – 7-я. Материал заготовки – Сталь 40.
Основные конструктивные и расчетные размеры чашечного долбяка принимаем по ГОСТ 9323-79. Для долбяков 3 – го типа, класса точности А:
- диаметр делительной окружности d0 = 99 мм;
- диаметр окружности вершин зубьев dа0 = 107,3 мм;
- диаметр посадочного отверстия d1 = 44,45 мм;
- диаметр выточки d2 = 63 мм;
- диаметр ступицы d3 = 80 мм;
- расстояние исходного сечения от передней поверхности А = 6,8 мм;
- ширина ступицы b1 = 12 мм;
- длина зубьев b0 = 20 мм;
- высота долбяка В = 32 мм;
- число зубьев z0 =40
Размеры профиля зубьев долбяка в проекции передней поверхности на плоскость, перпендикулярную к оси:
- высота головки ha0 = 3,875 мм;00
- толщина зуба теоретически делительная S0 = 4,573 мм;
- диаметр основной окружности db0 = 93,867 мм.
Геометрические элементы лезвия при вершине зуба:
- передний угол γ=5°;
- задний угол α=6°.
Технические требования на долбяк чашечный 3-го типа класса А
1. Долбяк должен изготавливаться в соответствии с требованиями ГОСТ 9323-79.
2. Долбяк должен изготавливаться из быстрорежущей стали марок, указанных по ГОСТ 19265-73.
3. Твердость долбяка из быстрорежущей стали – HRC 62... 65
4. На всей поверхности долбяка не должно быть трещин, забоин, выкрошенных мест, заусенцев и следов коррозии.
5. Конусность и овальность посадочного отверстия должны быть в пределах половины допуска на диаметр отверстия. Не допускаются завалы краев отверстия, выходящие за пределы допускаемых отклонений, суммарной длинной более 25% ширины ступицы долбяка.
6. Отклонение профиля рабочей части зуба от теоретического не должна превышать 0,005 мм.
7. Разность соседних окружных шагов не более 0,006 мм. Накопленное отклонение окружного шага 0,018 мм.
8. H14, h14, IT14/2.
9. Маркировать: модуль, число зубьев долбяка, угол профиля, обозначение класса точности, марку стали долбяка.
8.3 Проектирование мерительного инструмента
Годность деталей с допуском от IT6 до IT9 наиболее часто проверяют предельными калибрами. Комплект рабочих предельных калибров для контроля размеров гладких цилиндрических деталей состоит из проходного калибра ПР и непроходного калибра НЕ.
Калибры для контроля размеров отверстия называются пробками, а для контроля размеров вала - скобами.
По назначению калибры делят на две основные группы: рабочие калибры ПР и НЕ, и контрольные калибры (К-ПР, К-НЕ, К-И).
Рабочие калибры предназначены для контроля изделий в процессе их изготовления.
Согласно задания нужно рассчитать калибр – пробку для контроля отверстия Æ132Н7.
Определяем предельные размеры калибра – пробки для отверстия диаметром D=132 мм с полем допуска Н7 ( предельные отклонения: ES=0,04 мм., EI=0 мм).
Наибольший и наименьший размеры отверстия
Dmin=Dном + EI (1.60)
Dmin=132+0 = 132 мм.
Dmax= Dном+ ES (1.61)
Dmax=132+0,04=132,04 мм.
По [19 с. 39, т.2.3) для квалитета Н7 и интервала размеров 120¸180 мм. находим данные для расчета размеров калибров – пробок: H=8 мкм; Z=6 мкм; Y=4 мкм.
1. Наибольший и наименьший размеры нового проходного калибра – пробки
DmaxПР= Dmin+Z+H/2 (1.62)
DmaxПР=132+0,006+0,004=132,01 мм.
DminПР= Dmin+Z - H/2 (1.63)
DminПР=132+0,006-0,004=132,002 мм.
2. Наибольший и наименьший размеры нового непроходного калибра –пробки
DmaxНЕ=Dmax+ H/2 (1.64)
DmaxНЕ=132,04+0,004=132,044 мм.
DminНЕ= Dmax - H/2 (1.65)
DminНЕ=132,04 – 0,004=132,036 мм.
3. Предельный размер изношенного калибра – пробки
Dизн.= Dmin – Y (1.66)
Dизн.=132 – 0,004=131,996 мм.
Схему расположения полей допусков см. рисунок 1.23

Рисунок 1.23 – Схема расположения полей допусков
9. Исследовательская часть
Производительность труда и себестоимость обработки деталей на металлорежущих станках зависят от скорости резания, определяемой главным образом износостойкостью инструмента, и подачи, которая в случае черновой обработки твердосплавным инструментом обусловливается преимущественно его прочностью.
Современный инструмент в большинстве случаев является составным телом, в котором протекают сложные процессы упрочнения и разупрочнения, обусловленные явлениями усталости материала пластинки, ползучести опорной зоны державки и другими причинами. Процессы разрушения являются стохастическими; они в значительно большей мере, чем процесс изнашивания, обусловливают случайный характер потери работоспособности инструмента.
Виды разрушений инструмента
Режущий инструмент может подвергаться хрупкому разрушению, пластической деформации и разрушению после пластической деформации. При хрупком разрушении макропластическая деформация мала по сравнению с упругой. Инструмент может разрушиться под действием сил механического и термического происхождения. В зависимости от уровня нагрузки, ее характера и температуры в опасных местах возможно разрушение инструмента в связи с однократной перегрузкой, усталостью, ползучестью и т. д.
Разрушения наблюдаются в различные моменты периодов стойкости и эксплуатации инструмента. Поэтому разрушения следует классифицировать по времени их возникновения. Различают разрушения периода приработки, нормальной эксплуатации и старения, которые отличаются степенью детерминации. Разрушения периода нормальной эксплуатации считают чисто случайными. Наиболее детерминированным и, следовательно, легче прогнозируемым является разрушение периода старения.
Разрушению могут подвергаться: а) режущий клин по сечению или его участки; б) режущая пластинка, зуб или вся рабочая часть цельного инструмента; в) калибрующая или направляющая части; г) паяное соединение или элементы механического крепления пластинки; д) державка или корпус у задней поверхности под пластинкой (опорная зона державки); е) державка или корпус у места крепления инструмента.
В зависимости от размеров и формы отделяемых или деформируемых частей инструмента различают микровыкрашивание, макровыкрашивание, скалывание тонких слоев или отделение слоев значительной толщины,, локальное выдавливание материала и т. д.
Работоспособность инструмента — это его способность осуществлять процесс резания с заданной производительностью и качеством обработки. Отказ — событие, заключающееся в нарушении работоспособности. Различают разрушение, требующее обязательного прекращения процесса резания (полный отказ), и разрушение, не требующее прекращения процесса (частичный отказ).
Износ и выкрашивание влияют на разрушение пластинки значительно меньше, чем это принято считать. Направление трещин обычно не совпадает с сечением, по которому разрушается пластинка. Часто инструмент с трещинами заменяют только в связи с износом и даже после переточки он бывает работоспособным, хотя вероятность разрушения пластинки в процессе резания и особенно при заточке возрастает. Разрушение пластинки во многих случаях следует считать отказом, зависимым от деформации державки или корпуса у задней поверхности (опорной зоны).
По целесообразности восстановления работоспособности инструмента отказы делятся на устранимые (рационально восстановление или перестановка пластинки инструмента) и неустранимые (восстановление нерационально). Неустранимые отказы резко увеличивают расход инструмента, могут быть причиной брака детали; иногда требуется вырубка частиц твердого сплава, внедрившихся в деталь. Неустранимые отказы чаще вызывают простои оборудования, так как они более других связаны со случайными факторами и поэтому хуже прогнозируются.
Под разрушением или поломкой пластинки (I вид разрушения) будем понимать отделение материала толщиной, существенно превышающей длину контакта инструмента с деталью и стружкой. В этом случае разрушаются припой, державка и прочность инструмента зависит от свойств не только пластинки, но и опорной зоны державки, а также зоны их соединения. Под разрушением режущего клина или режущей части (11 вид) будем понимать скалывание слоев толщиной, близкой к длине зоны контакта; это разрушение мало зависит от свойств опорной зоны и зоны соединения инструмента. В единичном и мелкосерийном производствах неустранимые отказы из-за разрушения инструмента составляли 15—75% общего числа отказов, в серийном производстве на настроенных станках 8—50%, в массовом производстве 0—30%.
Некоторые специалисты считают, что поломки инструмента — результат его неправильной эксплуатации. Статистические данные показывают, что количество разрушений зависит главным образом от типа производства с комплексом соответствующих условий и, в частности, от требований к стабильности технологического процесса, качества обрабатываемого материала и величины припусков.
При черновом и получистовом точении наиболее характерным видом разрушения является поломка пластинки. В случаях непрерывного точения деталей из конструкционных сталей обычными резцами чаще разрушается пластинка твердого сплава по всей толщине. При увеличенной толщине пластинки или ее расположении вдоль задней поверхности во время резания материалов повышенной твердости или прерывистого резания увеличивается количество случаев разрушения пластинки не на всю толщину. При точении деталей из труднообрабатываемых материалов резко возрастают отказы в связи с выкрашиванием, которые в некоторых случаях могут превысить количество разрушений пластинки. На операциях отрезки и глубокой прорезки взаимодействие стружки со стенками канавки вызывает рост напряжений у вспомогательных режущих кромок, что приводит к их выкрашиванию; поэтому относительное количество контактных разрушений при отрезке возрастает.
Повышение прочности инструмента путем округления режущих кромок
При заточке и доводке инструмента режущие кромки не получаются абсолютно острыми. Радиус округления р кромок зависит от технологии заточки, материала режущей части, а также от заднего и переднего углов. Режущие кромки твердосплавного инструмента, обработанного алмазным кругом (р = 10—5 мкм), условно будем называть острыми, а дополнительно обработанного с целью получения увеличенного радиуса округления правильной формы — округленными. Увеличенный радиус округления повышает прочность инструмента.
С увеличением радиуса округления на определенном участке передней поверхности передний угол уменьшается до отрицательных значений, что вызывает рост сил на передней поверхности инструмента. Инструмент с дополнительным округлением режущих кромок имеет большую площадь контакта с деталью, в связи с чем возрастает сила и на задней поверхности. Увеличение сил на передней и задней поверхностях приводит к росту равнодействующей силы резания и ее составляющих. Так как уменьшение переднего угла и увеличение площади контакта по задней поверхности больше влияет на радиальную и осевую составляющие силы резания, то с ростом радиуса округления эти составляющие увеличиваются более интенсивно, чем сила PZ, поэтому отношение указанных составляющих к силе РR возрастает. С увеличением радиуса округления площадь контакта передней поверхности со стружкой уменьшается. Это несколько приближает равнодействующую силу к режущей кромке инструмента, что является неблагоприятным фактором для прочности инструмента. Однако характер распределения напряжений при увеличении радиуса округления становится более благоприятным: как нормальные, так и касательные напряжения на поверхности контакта округленного режущего клина изменяются более плавно, чем при остром клине. С ростом радиуса округления усадка стружки при относительно малых скоростях резания, при которых образуется нарост, увеличивается, а при относительно больших скоростях падает. Известное значение имеет также снижение пластичности материала вследствие его большего наклепа при предшествующем обороте детали (точение) или инструмента (фрезерование).
Рост усадки стружки для инструментов с округлением режущей кромки при относительно небольших скоростях резания связан с уменьшением нароста и соответственно фактического переднего угла, что подтверждается микрофотографиями корней стружки. Относительно малый коэффициент трения, а также форма округленного клина не способствуют удержанию нароста на передней поверхности инструмента. Уменьшение нароста повышает стабильность процесса резания и уменьшает колебания сил резания, связанные с периодическим образованием и удалением нароста. Увеличенное округление затрудняет врезание инструмента в обрабатываемый материал по нормали к плоскости резания. Это уменьшает разницу между силами резания при отталкивании и врезании и должно уменьшать интенсивность колебаний.
Округление режущих кромок не влияет на размеры режущего клина в том месте, где происходит поломка пластинки, но изменяет его форму и конструктивную прочность в непосредственной близости от кромки. Значение последней особенно велико при резании некоторых труднообрабатываемых материалов и прерывистом резании. ления. При округлении режущих кромок уменьшается их шероховатость.
Прочность и стойкость инструмента с различными радиусами округления режущих кромок проверялись в широком диапазоне условий обработки. С увеличением р до определенной величины прочность инструмента возрастает. Время работы до разрушения при форсированных испытаниях увеличивается в 1,5—10 раз, разрушающая подача — на 10—50%, а в отдельных случаях — на 100%. Большой эффект в указанных пределах достигается при тяжелых условиях работы (обработка высокопрочных материалов, прерывистое резание, низкая жесткость СПИД, ослабленная рабочая часть инструмента).
При определенных радиусах округления прочность инструмента становится максимальной. Дальнейшее увеличение округления снижает прочность, что может быть объяснено как ростом силы резания, так и средних контактных напряжений. Очевидно при больших р действие этих факторов становится более сильным, чем положительных факторов, тем более что, начиная с определенного значения р, его влияние на шероховатость кромки и наростообразование ослабевает.
Увеличение округления кромки повышает степень наклепа и глубину наклепанного слоя под поверхностью резания и обработанной поверхностью, что может усиливать износ инструмента. Рост площади контакта задней поверхности инструмента с деталью и сил резания при увеличении р также способствует повышению интенсивности изнашивания инструмента; в некоторых случаях этому может способствовать и уменьшение нароста.
С ростом радиуса округления кромок начинают также действовать факторы, уменьшающие износ инструмента. К их числу следует отнести уменьшение коэффициента трения, более благоприятное распределение контактных напряжений и их меньшие колебания а также повышение прочности кромок и уменьшение их шероховатости.
Температура резания минимальна при определенном радиус округления инструмента, что может быть объяснено уменьшением касательных сил, вызванных снижением коэффициента трения усадки стружки. При увеличении р стойкость инструмента сначала будет повышаться в связи с уменьшением коэффициента трения, температурь резания и других изменений, а затем будет падать вследствие рост сил, температуры резания и наклепа обрабатываемого материала Максимум стойкости инструмента в зависимости от условий работы будет соответствовать различным значениям р.
У резца с округленной режущей кромкой в течение длительного времени износ развивается так, что между изношенными участками на задних и передней поверхностях остается округленная поверхность, но в середине или конце периода стойкости участки износа на режущих поверхностях соединяются (рис. 66), причем в последнюю очередь округленная поверхность изнашивается у вершины резца. Новый радиус округления инструмента определяется условиями изнашивания.
Тот факт, что величина округления у инструментов без округления и с округлением режущей кромки к концу периода стойкости становится одинаковой, не исключает эффективности округления в эксплуатации по следующим причинам. Во-первых, большое число поломок происходит в начале работы, когда разница в величине р для острых и округленных инструментов значительна. Во-вторых, шероховатость специально округленной кромки меньше, чем кромки, округленной в результате износа.
Во всех случаях увеличенный радиус округления уменьшает интенсивность отказов в связи с поломками, приводит к росту средней стойкости до разрушения и среднего числа периодов стойкости резцов.
В условиях благоприятного распределения напряжений, возникающих в процессе резания, и уменьшенных колебаний сил резания при работе инструментом с округлением режущих кромок влияние на прочность инструмента крупных пор в твердом сплаве, остаточных растягивающих напряжений, полученных при пайке и заточке и других дефектов уменьшается, поэтому округление особенно важно для нового инструмента.
Средняя стойкость всех резцов, т. е. время работы до наступления любого из отказов, во всех случаях выше для резцов с округленными режущими кромками, что наряду с увеличенным К привело к резкому росту суммарной стойкости (в 1,8—2,05 раза).
Особенностью резцов с увеличенным р является способность снижать
число и размеры выкрашиваний режущих кромок сходящей стружкой вне зоны резания.
В большинстве случаев радиус округления, обеспечивающий наименьшее число поломок, соответствует и меньшему коэффициенту вариации стойкости, что свидетельствует о большей стабильности режущих свойств резцов с округленными кромками. Стойкость с вероятностью 0,9 увеличивается до 3 раз.
Округление режущих кромок значительно уменьшает число поломок и выкрашиваний торцовых фрез и повышает их износостойкость. Так, при обработке инструментальных сталей Т увеличивалось с 73 до 140 мин (на 92%), К с 2,5 до 3,84 (53%)
Инструментальный и обрабатываемый материалы, жесткость системы СПИД и другие факторы, кроме толщины среза, незначительно влияют на радиус округления. Это связано с тем, что при условиях, менее благоприятных с точки зрения вероятности разрушения, следует повышать р, но в этих же случаях обычно применяются меньшие подачи, для чего требуется снижать р.
В условиях единичного и мелкосерийного производств применяют резцы, изготовляемые инструментальными заводами. Режущие кромки инструмента при фрезеровании деталей из жаропрочных сталей и других высокопластичных труднообрабатываемых материалов округлять не следует.
Размеры и расположение пластинки
Увеличение размеров твердосплавной пластинки повышает прочность инструмента, причем в большей степени влияет толщина пластинки и в меньшей — ширина и длина.
С увеличением h растягивающие напряжения во всех сечениях пластинки резко уменьшаются.
Толщина пластинки оказывает наибольшее влияние на температуру опорной зоны. С ростом h опора отодвигается от наиболее нагретого места инструмента. В связи со значительным уменьшением температуры опоры ее сопротивление сжатию растет.
Увеличение толщины пластинки меньше влияет на сопротивление рабочей части сжатию от силы Р, а также на сопротивление касательным напряжениям, чем нормальным растягивающим напряжениям при изгибе. Поэтому при некоторой толщине пластинки прочность инструмента не повышается, а при торцовом фрезеровании даже понижается что может быть связано с большей вероятностью появления дефекта в толстой пластинке.
При увеличении ширины пластинки площадь ее опорной поверхности возрастает, что повышает жесткость опорной зоны и прочность паяного соединения. Для отрезных, а также проходных резцов, когда ширина пластинки относительно мала и пластинка разрушается по всей ширине, рост b увеличивает момент инерции пластинки. При увеличении длины пластинки площадь ее опорной поверхности также возрастает. Однако увеличение / и Ь повышает остаточные напряжения растяжения, возникающие при остывании инструмента с температуры пайки. Пластинками с размерами, рекомендованными нормалями машиностроения, оснащают инструмент общего назначения, выпускаемый инструментальными заводами
При напайке пластинки со стороны задней поверхности инструмента толщина пластинки увеличивается примерно в 1,8 раза, а ширина уменьшается во столько же раз. Наиболее эффективно располагать пластинки вдоль задней поверхности инструмента при точении деталей на тяжелых станках. Разрушающая подача при этом увеличивается примерно в 1,5 раза. Вероятность разрушения крупных резцов с пластинками, напаянными вдоль задней поверхности, при тех же режимах резания, в среднем в 2 раза меньше, а число периодов стойкости в 1,9 раза больше, чем у обычных резцов. Стоимость заточки и переточек такого резца возрастает только на 6 к., прочие затраты на инструмент не изменяются.
Для пластинки, напаянной со стороны задней поверхности, при появлении выкрашиваний и большого износа на задней поверхности, возможен преимущественный изгиб пластинки в направлении действия горизонтальных составляющих сил резания.
Для облегчения алмазной заточки резцов иногда твердосплавную пластинку напаивают так, что она выступает над державкой на величину А/. Такое свисание вызывает дополнительный момент и увеличивает нагрузку на опору в опасном для нее месте. При этом растягивающие напряжения в пластинке резко возрастают (например, у отрезных резцов, по данным поляризационно-оптических исследований, — в 2 раза).
При выступании пластинки 1,4 мм резцы имели стойкость в среднем в 2 раза ниже по сравнению с выступанием 0,15 мм. Такая разница вызвана увеличением числа поломок резцов с большим выступанием пластинки и снижением стойкости до разрушения этих резцов. Таким образом, свисание пластинок не может быть рекомендовано, тем более, что алмазными кругами можно одновременно обрабатывать твердый сплав и сталь.
Качество опорной поверхности пластинки
Опорная поверхность пластинки твердого сплава после спекания покрыта пленкой оксидов, имеющих низкую теплопроводность, например, если коэффициент теплопроводности твердого сплава Т5К10 равен 33 ккал/(м-ч-°С), то коэффициент теплопроводности двуокиси титана составляет 5,4 ккал/(м-ч-°С), а при 600° С он снижается до 3,0 ккал/(м-ч-°С).
Шлифование или доводка опорной поверхности пластинки резко активизирует теплоотвод от режущих поверхностей через резец. Температура как в зоне резания, так и в опорной зоне уменьшается. Влияние обработки пластинки на температуру опоры увеличивается при использовании твердых сплавов с большей теплопроводностью. Например, при шлифовании пластинки из сплава Т15К6 температура опоры снижается на 15—18%, а из сплава ВК8 — на 25—35%.
Обработка опорной поверхности благодаря активизации теплоотвода повышает также износостойкость инструмент. Для обеспечения высокого качества пайки требуется лишь определенная растекаемость припоя. Кроме того, по мере снижения шероховатости поверхности уменьшается площадь контакта поверхности твердого сплава с припоем, что снижает прочность соединения. Перед пайкой опорную поверхность необходимо обрабатывать с обеспечением шероховатости 8-го класса.
При механическом закреплении пластинки впадины заполнены воздухом, теплопроводность которого на четыре порядка меньше теплопроводности меди. Поэтому для повышения термической проводимости контакта шероховатость поверхности пластинок, закрепляемых механически, должна быть значительно более низкой по сравнению с шероховатостью напаиваемых пластинок. Рекомендуется доводка опоры с обеспечением шероховатости 11—12-го класса.
Кривизна контактирующих поверхностей влияет на жесткость опорной зоны. Значительное влияние обработки больших пластинок, имеющих значительную неплоскостность, на прочность инструмента может быть объяснено не только худшими условиями контакта.
При выпуклой пластине силы реакции опоры перераспределяются так, что- их равнодействующая удаляется от задней поверхности.
Неплоскостность пластинки влияет на прочность инструмента в большей степени, чем шероховатостьи удаление оксидных лленок.
Эксплуатационные испытания подтвердили целесообразность обработки опорной поверхности пластинки для повышения прочност: и стойкости инструмента. Уменьшение неплоскостности с 0,15 м до 0,03 мм может увеличить суммарную стойкость инструмента в 2 раза.
Жесткость державки
Размеры державки, в отличие от размеров пластинки, значительно влияют на надежность инструмента не только через прочность и свойства материалов рабочей части, но и через изменение цикла нагружения, связанного с виброустойчивостью инструмента. Влияние державки на конструктивную прочность является преобладающим при малом вылете резца из резцедержателя или ножа из корпуса фрезы, а также при различной высоте кд державки под пластинкой, но постоянной общей высоте державки.
Применение усиленной державки позволяет расположить пластинку вдоль задней поверхности не только крупных, но и мелких резцов.
Высота державки под пластинкой у отрезных резцов может быть также увеличена, если рабочую часть инструмента сделать независимой от гнезда резцедержателя. Ширина державки значительно меньше, чем высота, влияет на момент инерции, но от нее зависит площадь опоры и площадь паяного соединения. С ростом В разрушающая подача также увеличивается, хотя и в меньшей степени, чем с ростом Я. Поэтому для черновых операций целесообразно изготовлять резцы с квадратным сечением державок. В процессе резания инструментом с закаленной державкой на напряженных режимах наблюдаются явления ползучести. Но пластическая деформация в этом случае является менее интенсивной и охватывает меньшую зону под пластинкой. Закалка державки кроме повышения жесткости опоры уменьшает также остаточные напряжения, возникающие при пайке. Так как затраты на закалку державок при достаточно большом количестве изготовляемых инструментов обычно ниже затрат на дополнительную опору и, кроме того, не требуются дефицитные материалы, то закалку можно рекомендовать для всех черновых инструментов широкого назначения. Закалку целесообразно выполнять с использованием теплоты нагрева под пайку, подстуживая державку до температуры начала закалки (800—850° С для стали 45). Для повышения жесткости опорной зоны необходимо одновременно увеличивать ее упруго-пластические свойства и радиус кривизны опорной поверхности пластинки. При этом обеспечивается особенно интенсивный рост прочности инструмента.
Для обеспечения высокой стабильности технологических процессов инструменты должны иметь повышенную прочность. Такие инструменты допускают большое число переточек. Поэтому пластинка у них должна быть расположена вдоль передней поверхности.
Параметры зоны соединения пластинки с державкой
Припой как часть опорной зоны сопротивляется сжатию. Он удерживает пластинки от поворота, сопротивляясь растяжению, сдвигу. От свойств припоя зависят также остаточные напряжения в твердосплавной пластинке, возникающие при охлаждении с температуры пайки. Материал припоя значительно влияет на усредненную деформацию державки, припоя и твердого сплава на задней поверхности. Таким образом, припой влияет на прочность рабочей части инструмента в большей степени вследствие изменения жесткости и прочности паяного соединения, чем изменения остаточных напряжений. Припой является частью опорной зоны, обладающей меньшим модулем упругости и пределом текучести, чем стальная державка. Поэтому с уменьшением толщины припоя hn жесткость опорной зоны повышается. Кроме того, при тонких слоях припоя жесткие стенки, которые образуют твердый сплав и сталь, блокируют и упрочняют припой. Усредненная деформация зоны соединения на задней поверхности ориентировочно прямо пропорциональна толщине припоя.
Уменьшение толщины припоя вызывает рост остаточных деформаций в пластинке. Так как толщина припоя оказывает противоположное действие на жесткость опоры и остаточные напряжения, зависимость разрушающей подачи от hn имеет максимум; инструмент наиболее прочный при hn = 0,1 мм. С ростом отношения - напряжения в пластинке непрерывно уменьшаются, но одновременно с этим повышаются остаточные напряжения. Поэтому при резании максимальную разрушающую подачу имеет инструмент, у которого пластинка припаяна до половины высоты.
Увеличение сопротивления взаимному перемещению "пластинки и державки резца повышает прочность инструмента. Поэтому при одинаковом плече силы резания в пластинке, закрепленной механически, возникают большие напряжения, чем в напаянной пластинке. В связи с меньшей теплопроводностью стыка температура опоры в случае механического крепления пластинки выше и ее механические свойства ниже. Резцы с механическим креплением пластинок на обдирочных операциях использовать не рекомендуется.
При механическом закреплении многогранных пластинок устраняются остаточные напряжения, возникающие при пайке и неквалифицированной заточке, облегчается эксплуатация инструмента и т. д. В связи с этим важно указать способы усовершенствования такого инструмента.
Для повышения прочности в конструкции инструмента должно быть предусмотрено достаточно жесткое закрепление пластинки. Место закрепления пластинки должно быть возможно ближе к режущей кромке, чтобы уменьшить плечо сил резания. При нагружении модели отрезного резца с напаянной пластинкой длиной 15 мм и такого же резца с пластинкой, закрепленной сверху прихватом на расстоянии 5 мм от кромки, в последнем случае растягивающие напряжения на передней поверхности, например, при h = 5 мм получались на 22% меньше, а при h — 10 мм — полностью отсутствовали). Для черновых резцов с механическим креплением пластинок следует обязательно применять дополнительную опору, причем она должна быть напаяна или наварена, но не закреплена механически, так как в последнем случае жесткость опорной зоны резко уменьшается. Прочность резцов с механически закрепленными пластинками и дополнительной опорой даже при неблагоприятном расположении места крепления пластинки не ниже прочности резцов с напаянными пластинками, но без дополнительной опоры. Требования к неплоскостности и шероховатости опорных поверхностей дополнительной опоры и режущей пластинки при механическом закреплении должны быть значительно повышены по сравнению с напайными резцами, причем должен быть предусмотрен своевременный ремонт державки в случае развития пластической деформации (завала) опоры.
Похожие рефераты:
Методика расчётов режимов резания
Теоретические методы технологии машиностроения
Разработка твёрдосплавной развёртки
Разработка технологического процесса ремонта коробки подач станка 1М63Н
Альтернативный вариант технологического процесса изготовления детали "Крышка ТМ966.Сб2120–5СБ"
Основы проектирования и конструирования
Технологический процесс изготовления промежуточной шестерни 60640 коробки передач комбайна СК-4
