| Похожие рефераты | Скачать .docx |
Реферат: Организация технического обслуживания и текущего ремонта с планировочным решением участка по диагностике и ремонту ходовой части легковых автомобилей
Федеральное агентство по образованию
Восточно-Сибирский государственный технологический университет
Кафедра «Автомобили»
Отчет о прохождении производственной практики
на предприятии ООО «Росшина Инвест»
по теме:
Организация технического обслуживания и текущего ремонта с планировочным решением участка по диагностике и ремонту ходовой части легковых автомобилей
Улан-Удэ
2009
Содержание
1. История СТО при «Росшина Инвест»
2. Организационно-управленческая структура
3. Расположение предприятия на плане города
4. План здания и расположение оборудования на производственном участке
5. Документооборот на предприятии
6. Организация технического обслуживания и текущего ремонта с планировочным решением участка по диагностике и ремонту ходовой части легковых автомобилей
6.1 Организация ТО и ТР автомобиля
6.2 Ходовая часть и техническое обслуживание
6.3 Стенды для диагностики и контроля ходовой части
6.4 Технологическая планировка производственных зон и участков
6.5 Общие требования и положения
6.6 Определение ширины проезда в зонах ТО и ТР
6.7 Планировочное решение участка по диагностированию и ремонту ходовой части легкового автомобиля
Список использованных источников
1. История СТО при «Росшина Инвест»
Станция технического обслуживания основана при «Росшина Инвест» в 1998 году. В свою очередь, «Росшина Инвест» это большая сеть магазинов по всей России, занимающаяся продажей шин ко всем видам авто- и мототранспорта, сельскохозяйственной и специализированной техники, штампованных и литых дисков, расходных материалов и оборудования, необходимого для ремонта, монтажа и демонтажа все типов колес как легковых так и грузовых автомобилей. С начала возникновения станция занималась только шиномонтажем и установкой углов управляемых колес, но в настоящее время это современное, динамически развивающееся предприятие, обладающее всем необходимым современным оборудованием и инструментом, а также работоспособным коллективом. В этом году подходит к концу строительство дополнительного двухэтажного здания, где будут располагаться посты по замене рабочих жидкостей и автомойка на первом этаже, и на втором – офисы, которые будут сдаваться в аренду. При СТО работает кафе, что представляет возможность хорошо провести время клиентам пока их автомобили находятся в зоне обслуживания, а сотрудникам предприятия возможность пойти на обеденный перерыв.
2. Организационно-управленческая структура ООО «РОСШИНА ИНВЕСТ»
Название: Общество с Ограниченной Ответственностью «РОСШИНА ИНВЕСТ»
Почтовый адрес : 670045, г. Улан-Удэ, пр-т Автомобилистов, 1 «А», тел/факс 8 (3012) 44-35-77 / 44-35-66.
Генеральный директор: Царегородцев А.Л.
Заместитель директора: Бурцев А. И.
Начальник отдела кадров: Карпова И. П.
Начальник ПТО: Ануфреев А. И.
Главный механик: Ланцов А. Г.
Заместитель главного механика: Орлов Д. П.
![]() |
Рис. 1. Структура управления предприятием.
3. Расположение предприятия в плане города
Расположение зданий предприятия «Росшина Инвест», как видно из рисунка 2, является очень удобным с точки зрения эффективности, так как рядом движение большого потока транспортных средств по проспекту Автомобилистов, примыкание междугороднего маршрута Р-438, идущего в Баргузинский район и близко расположенные жилые зоны.

Рис. 2. Расположение зданий «Росшина Инвест»
4. План здания «Росшина Инвест»
План здания предприятия «Росшина Инвест» представлен на рисунке 3.

Рис. 3. План здания предприятия
Обозначение помещений здания предприятия:
1. Оптовый отдел продаж;
2. Торговый отдел;
3. Магазин;
4. Кафе;
5. Санитарный узел;
6. Помещение сотрудников СТО;
7. Отдел главного механика;
8. Фойе;
9. Производственный участок.
Техническое обслуживание и ремонт автомобилей осуществляется в здании в специально отведенном для этого месте, то есть на производственном участке. Расположение оборудования и оснастки на производственном участке показано на рисунке 4.
![]() |
Рис. 4. Расположение оборудования и оснастки на производственном участке.
Наименование оборудования:
1. Ножничный платформенный подъемник;
2. Стационарный двухстоечный подъемник с электромеханическим приводом;
3. Электрогидравлический подъемник для легковых автомобилей со встроенными в платформы самоустанавливающимися опорами для регулировки углов установки управляемых колес (углов «развал – схождение»);
4. Полуавтоматический универсальный шиномонтажный стенд минимальной комплектации;
5. Балансировочный станок;
6. Многоярусный стеллаж для хранения покрышек;
7. Электровулканизационный аппарат для ремонта камер;
8. Верстак с тисками;
9. Ванна для проверки камер;
10.Мойка колес;
11.Верстак;
12.Диагностическая стойка;
13.Пресс гидравлический напольного исполнения с ручным насосом;
14.Автоматический шиномонтажный стенд для демонтажа – монтажа колес легковых автомобилей;
15.Станок для правки дисков;
16.Шиномонтажный стенд для демонтажа – монтажа колес грузовых автомобилей.
5. Документооборот на предприятии
В соответствии с положением о техническом обслуживании и ремонте легковых автомобилей, принадлежащих гражданам, документы, используемые для организации и учета СТО, делят на первичные и сводные.
Первичные документы составляют при совершении хозяйственных операций, например, при передачи автомобиля заказчиком на СТО, при получении запасных частей и т.п.
Сводные документы в основном отчетные, являются сводной нескольких первичных документов, обобщающей и группирующей их показатели для сокращения количества записей и систематизации отчета, например, при получении отчета расхода запасных частей.
Основанием для открытия заказа служит заявка на проведение ТО и Р, которая находится у мастера - приемщика (инженера - технолога по работе с клиентами) и мастера подготовки производства. Она заполняется приемщиком в 3-х экземплярах, один из которых прилагается к производственному заказу - наряду для дальнейшей передачи в бухгалтерию. В заявке оформляется заказ на ТО и Р, в ней же указывается причина отказа.
Журнал предварительной записи на ТО и Р находится у мастера -приемщика и ведется им в одном экземпляре. В начале текущей смены диспетчер заполняет 2 - ой экземпляр, который используется в качестве диспетчерской карты. Диспетчер в журнале отмечает линией срок выполнения работ: начало и конец линии соответствуют началу и окончанию работ.
Журнал предварительной записи для выполнения кузовных и окрасочных работ находится у мастера подготовки производства и ведется в одном экземпляре.
Заказ - наряд является бланком строгой отчетности, находится у оператора (мастера - приемщика), печатается через копирку в 4-х экземплярах. Продолжение заказ - наряда (оборотная сторона) применяется, если в заказ - наряде недостаточно места для перечисления работ и материальных ценностей, а также в случае необходимости выполнения дополнительных работ.
Заказ - квитанция оформляется на основании заказ - наряда, находится в подотчете у мастера - приемщика, заполняется в 3-х экземплярах, первый из которых остается в кассе и прикладывается к кассовому отчету, второй передается в производство, третий заказчику.
Приемосдаточный акт находится у мастера - приемщика и мастера подготовки производства. Заполняется в 2-х экземплярах, первый из которых прикладывается к заказ - наряду, второй находится у заказчика.
На основании заказ - нарядов и приемосдаточных актов составляются суточные и месячные графики загрузки участков СТО.
Документом, сопровождающей совершение сделки купли-продажи, оказания услуг и т.п. является счет-фактура. В ней указываются банковские реквизиты юридических лиц обоих сторон, описывается род выполненных работ. Оформляется в 2-х экземплярах, где указывают стоимость и выделяют сумму НДС. Документооборот на предприятии наглядно отображает рисунок 5.

Рис.5. Документооборот на СТО
1. Заявка на ТО и Р;
2. Журнал предварительной записи на ТО и Р;
3. Заказ – наряд;
4. Заказ – квитанция;
5. Приемо-сдаточный акт;
6. Чек.
6. Организация технического обслуживания и текущего ремонта с планировочным решением участка по диагностике и ремонту ходовой части легковых автомобилей
6.1 Организация ТО и ТР автомобиля
При регулярном техническом обслуживании параметры технического состояния автомобиля поддерживаются в заданных пределах. Однако вследствие изнашивания деталей, поломок и других причин ресурс автомобиля, его агрегатов или механизмов расходуется, и наступает такой момент, когда автомобиль уже не может нормально эксплуатироваться. Иными словами, наступает такое его предельное состояние, которое не может быть устранено профилактическими методами технического обслуживания, а требует восстановления устраненной работоспособности — ремонта.
Основным назначением технического ремонта являются устранение возникших в автомобиле, его агрегатах неисправностей или отказов и восстановление их работоспособности.
При техническом ремонте выполняются следующие виды работ:
1. разборочно-сборочные;
2. слесарно-механические;
3. медницкие;
4. сварочно-жестяницкие;
5. электротехнические;
6. шиноремонтные;
7. обойные;
8. окрасочные;
9. регулировочные и некоторые другие виды.
Работы по ремонту автомобиля трудоемки и требуют порой значительных денежных затрат. Для их проведения иногда необходимы частичная или полная разборка изделия для Установления или замены деталей, применение сложного Точного, сварочного, окрасочного и иного оборудования.
К основным базовым деталям и агрегатам относят блок цилиндров двигателя, коробку передач, ведущий мост, рулевой механизм, балку переднего моста или поперечину независимой подвески, корпус кузова. При техническом ремонте демонтажно-монтажные и восстановительные работы могут проводиться как по автомобилю в целом, так и по его отдельным агрегатам, системам и узлам. Наряду с этим при техническом ремонте производят восстановление, замену и устранение различных повреждений деталей, деформаций и перекосов кузова и его деталей, пайку, расточку, окраску, противокоррозийную защиту, замену стекол, арматуры и др.
Технический ремонт может быть текущим и капитальным.
При текущем ремонте устраняют возникающие отказы и неисправности, способствуют выполнению установленных норм пробега до капитального ремонта при минимальных простоях. Необходимость такого ремонта устанавливают при контрольных осмотрах, которые выполняют во время проведения всех видов технического обслуживания, а также по заявкам водителя или владельца автомобиля. Производят текущий ремонт на станциях технического обслуживания, в автомастерских, автотранспортных подразделениях, автокомбинатах, заменяя у восстанавливаемых агрегатов поршневые кольца, вкладыши подшипников коленчатого вала, подшипники ступиц колес, рессоры и рессорные пальцы, шаровые пальцы рулевого привода, выполняют притирку клапанов, пайку радиатора и др.
Капитальный ремонт предназначен для восстановления работоспособности автомобилей и их агрегатов с целью обеспечения установленного межремонтного пробега при условии проведения регулярного технического осмотра, текущего ремонта и правильной эксплуатации. Нормы межремонтных пробегов капитально отремонтированных агрегатов, как правило, назначают из расчета не менее 80% нормы пробега для новых агрегатов и автомобилей. Техническое состояние и комплектность автомобиля и его агрегатов должны соответствовать единым техническим условиям на сдачу и выдачу из капитального ремонта.
Капитальный ремонт автомобилей должен выполняться специализированных автопредприятиях с полной разборкой на агрегаты, а агрегатов на детали. Необходимость капитального ремонта определяет специальная комиссия, которую назначает руководитель автопредприятия.
В капитальный ремонт не принимают агрегаты, если при их диагностировании или осмотре оказалось, что при оформлении нарушены правила сдачи в ремонт и если дефекты базовых деталей не поддаются восстановлению. Направляют в капитальный ремонт агрегаты в случае необходимости ремонта базовой детали, ухудшения технического состояния агрегата из-за износа большинства деталей и тогда, когда для ремонта базовой детали необходима полная разборка агрегата.
При капитальном ремонте агрегат полностью разбирают, выявляют неисправности, восстанавливают нужные детали, узлы или заменяют их, после чего агрегат собирают, производят регулировку и испытывают.
Для определения технического состояния автомобиля и объема ремонтных работ применяют различные средства диагностирования. Если при диагностировании определить техническое состояние или неисправность узлов и агрегатов не представляется возможным, их снимают с автомобиля и разбирают для определения объема работ. Результаты проверки заносят в карту контрольно-диагностического осмотра автомобиля.
Ремонтируют автомобили индивидуальным или агрегатным способом.
Индивидуальный способ ремонта предусматривает демонтаж поврежденных агрегатов, их восстановление, ремонт и установку на автомобиль. При этом способе ремонта простой автомобиля может быть значительным.
Агрегатный способ ремонта значительно сокращает время простоя, так как в этом случае ремонт выполняют заменяя неисправные агрегаты и узлы на исправные. Агрегатным способом, как правило, ремонтируют на специализированных предприятиях и в мастерских, что повышает эффективность ремонта.
6.2 Ходовая часть и техническое обслуживание
Ходовая часть является несущей частью автомобиля, которая воспринимает ударные нагрузки и подвержена вибрации. В результате этого изменяются углы установки управляемых колес, ухудшается их стабилизация, что затрудняет управление автомобилем, увеличивается расход топлива и изнашивание шин. При ТО ходовой части выполняются работы по уходу за основанием кузова, передней и задней подвеской, шинами и колесами.
Основные неисправности передней и задней подвески
Подвеска соединяет колеса с кузовом, смягчает и поглощает удары колес по неровностям дороги, гасит колебания кузова. Подвеска бывает зависимой и независимой. При зависимой подвеске перемещение одного колеса зависит от перемещения другого колеса. При независимой подвеске каждое колесо соединяется с кузовом по отдельности. В качестве упругого элемента, который смягчает соединение кузова и колес, могут применяться пружины, листовые рессоры, торсионы (рис. 6).
Техническое обслуживание подвески в современных автомобилях сводится к осмотру состояния подвески. Осмотр проводят через каждые 15 тыс. км. При осмотре проверяют состояние элементов подвески, резиновых и резино-металлических шарниров, втулок, подушек.

Рис. 6. Подвеска переднего колеса, амортизационная стойка:
1 — верхняя опора амортизатора, внутри находится упорный подшипник (освобождаем только после того, как пружина надежно стянута); 2 — верхняя опорная чашка; 3 — буфер хода сжатия; 4 — пружина; 5 — опора буфера; 6 — шарнир рулевой тяги; 7 — поворотная цапфа; 8 — тормозной диск; 9 — стопорное кольцо внешнее; 10 — щлицевое окончание шарнира привода; 11 — колпак ступицы; 12 — подшипник ступицы; 13 — шаровой шарнир; 14 — поперечный рычаг подвески; 15 — регулировочные шайбы; 16 — стопорное кольцо внутреннее; 17 — кронштейн амортизатора; 18 — нижняя опорная чашка
Особое внимание обращают на следы масла. Для этого необходимо освободить колесные болты, поднять автомобиль и снять соответствующие колеса.
Обслуживание старых автомобилей требует регулярной проверки и регулировки зазоров в подшипниках ступиц, замены масла в подшипниках, проверки состояния стабилизатора поперечной устойчивости.
Чтобы точно замерить зазор необходим индикатор, однако наличие люфта в подшипниках ступиц передних колес можно определить и без прибора. Проверяемое ведомое колесо необходимо поднять домкратом либо поднять автомобиль на подъемнике. Для проверки зазора следует одну руку положить сверху на поднятое домкратом колесо, а другую снизу, прижать его снизу ногой, а сверху покачать от себя и к себе, т.е. в плоскости, перпендикулярной оси вращения колеса.
Колесо не должно свободно качаться. Однако полная неподвижность колеса также свидетельствует о неправильной регулировке или заклинивании подшипников. Для того, чтобы отрегулировать подшипники, необходимо расшплинтовать или раскернить, а затем отвернуть регулировочную гайку поворотной цапфы. Покрутив вывешенное колесо, проверяем, свободно ли оно вращается. Если происходит задевание или притормаживание, необходимо этот дефект устранить. Затянутую до отказа гайку надо отпустить на 20—25°, т.е. на расстояние, не превышающее половину грани, до совпадения ближайшей прорези в ней с отверстием в цапфе.
Затем необходимо установить новую регулировочную гайку и затянуть ее ключом до отказа, одновременно проворачивая ступицу колеса в обоих направлениях 5—6 раз, чтобы самоустановились ролики подшипников. Затем ослабляем гайку и вновь затягиваем до отказа. После этого на шайбе делаем метку против середины одной из граней гайки. Далее зашплинтовываем или, в зависимости от модели автомобиля, стопорим, вдавливая лунки на гайке в пазы на конце цапфы, и закрываем ее колпачком, заполненным смазкой.
Чтобы отрегулировать ступицы правого колеса, затяжку делают в обратном направлении, так как гайка имеет левую резьбу. Правильность регулировки подшипников окончательно проверяется по нагреву ступиц колеса при движении.
При замене смазки из-за ухудшения ее качества или при ее вытекании необходимо подшипники заполнить смазкой. Для замены смазки отворачивают болты, отводят в сторону суппорт и снимают колпак ступицы, не отсоединяя шланг подвода жидкости. Домкратом поднимают соответствующую часть автомобиля и снимают колесо. Отворачивают регулировочную гайку подшипников ступицы, снимают ее шайбу. Аккуратно снимают ступицу с тормозным диском, подшипником и сальником, промывают внутреннюю полость ступицы и подшипники керосином и, если сальник поврежден, его заменяют.
Затем устанавливают на поворотную цапфу внутреннее кольцо внутреннего подшипника и закладывают в сепараторы подшипников и во внутреннюю полость ступицы 40—45 г смазки, равномерно распределив ее по всей полости ступицы. Устанавливают ступицу на цапфу, а также внутреннее кольцо наружного подшипника, надевают шайбу и заворачивают новую гайку. Далее регулируют зазор подшипников Ступицы и перед установкой колпака ступицы закладывают в него 25 г смазки.
Если амортизаторы рессорные, необходимо смазать листы рессор. Одновременно с этими операциями проверяют состояние резиновых буферов, втулок, хомутов крепления листов рессоры и другие элементы рессорного механизма.
Неисправностями в передней подвеске могут быть изгибы балки, верхнего и нижнего рычагов, износ верхнего и нижнего шаровых пальцев, сухарей, вкладышей, резиновых втулок. Эти неисправности приводят к изменению углов установки управляемых колес, что вызывает ухудшение управления автомобилем, перерасход топлива, износ шин и т. д.
Проверка технического состояния шаровых шарниров
Проверяя техническое состояние шаровых шарниров, необходимо убедиться в сохранности защитных чехлов шарниров. Разрывы, трещины, отслоения резины от металлической арматуры, следы утечки смазки недопустимы. Далее проверяют, нет ли износа рабочих поверхностей шаровых шарниров, проворачивая вручную шаровой палец. Свободный ход пальца и его заедание недопустимы.
Проверка технического состояния телескопической стойки
Детали телескопической стойки промывают керосином и просушивают. Диски клапанов сжатия и отдачи, а также тарелка перепускного клапана не должны быть деформированы; неплоскостность тарелки проверяется щупом на плите и должна быть не более 0,05 мм; рабочие поверхности поршня, поршневого кольца, направляющей втулки, штока, цилиндра, буфера отдачи и деталей клапанов должны быть без следов износа, задиров и вмятин; рабочие кромки сальника должны быть без износа и повреждений; на направляющей втулке штока не допускаются задиры, риски и отслоения фторопластового слоя; пружины клапанов отдачи и сжатия, а также буфера отдачи должны быть целыми и упругими; корпус стойки, кронштейн, чашка пружины, поворотный рычаг, буфер сжатия и защитный кожух не должны иметь разрушений и деформаций; внутренняя поверхность корпуса стойки должна быть чистой, без рисок, повреждений, с хорошей резьбой.
Верхнюю опору телескопической стойки проверяют на упругую осадку, приложив нагрузку Р = 700 кгс на подшипник опоры. Кроме того, нужно убедиться, что подшипник не имеет осевого перемещения в корпусе опоры. Коррозия, повреждение или заедание подшипника не допускаются. В этих случаях подшипник заменяют. При проверке состояния опоры следят, чтобы не было отслоений резины, большой осадки опоры, трещин и порывов.
Проверка технического состояния стабилизатора поперечной устойчивости
Проверяют состояние и плоскостность стабилизатора поперечной устойчивости. При незначительной деформации штангу выправляют, при значительной — заменяют. Проверяют состояние и сохранность подушек в кронштейнах штанги. В случае износа и повреждения подушек их заменяют. Деформацию стоек стабилизатора проверяют калибром. Если пальцы не заходят в отверстия стойки, ее заменяют.
Проверка технического состояния пружин подвески
Если при тщательном осмотре обнаружены трещины или деформация витков, пружину нужно заменить. Для проверки осадки пружины ее трижды сжимают до соприкосновения витков, затем прикладывают к пружине нагрузку 325 кгс. Высота пружины для, например, автомобиля ВАЗ—2109 под этой нагрузкой должна быть не менее 201 мм. Пружину сжимают по ее оси. Опорные поверхности должны соответствовать поверхностям опорных чашек на телескопической стойке. Если пружина с желтой маркировкой (класс А) в автомобиле ВАЗ—2109 имеет длину более 207 мм, ее маркировку изменяют на зеленую.
Проверка технического состояния штанги стабилизатора
Штангу стабилизатора проверяют на деформацию и плоскостность. При незначительной деформации штангу выправляют, при значительной — заменяют. Подушки в кронштейнах крепления к кузову и к нижним рычагам подвески должны быть целыми, при износе их заменяют.
Основными неисправностями ходовой части автомобиля и их причинами могут быть:
• частичное отклонение автомобиля от направления прямолинейного движения по причинам увеличенных зазоров между шаровыми пальцами и вкладышами, пальцами и подшипниками;
· большие зазоры в шарнирах рулевых тяг, подшипниках передних колес;
· износ втулок маятникового рычага и ослабление крепления в рулевом управлении.
В случае отклонения автомобиля от прямолинейного движения причинами могут быть:
· различный развал левого и правого колес;
· различные углы продольного и поперечного наклона осей поворота левого и правого колес; неодинаковое давление в шинах левого и правого колес;
· деформации нижнего и верхнего рычагов передней подвески;
· нарушение параллельности осей переднего и заднего мостов;
· притормаживание одного из колес автомобиля на ходу из-за отсутствия зазора между тормозным барабаном и фрикционной накладкой;
· повышенный дисбаланс передних колес;
· неодинаковая упругость пружин подвески.
При раскачивании передней части автомобиля при движении по неровной дороге причиной может быть плохая работа передних амортизаторов.
При стуке в передней подвеске причинами могут быть:
· ослабление болтов крепления;
· износ резиновых втулок усиков амортизатора;
· ослабление затяжки гайки резервуара амортизатора;
· повышенный зазор в подшипниках ступиц колес;
· повышенный дисбаланс колес;
· деформация обода или колеса;
· осадка или поломка пружины;
· разрушение буферов хода сжатия;
· неисправность стоек подвески;
· ослабление крепления верхней опоры стойки подвески к кузову;
· осадка, разрывы, отслоение резины от корпуса опоры стойки;
· ослабление болтов крепления кронштейнов растяжек или болтов, крепящих штангу стабилизатора поперечной устойчивости к кузову;
· износ резиновых подушек растяжек или штанги.
При слабом стуке, передающемся на рулевое колесо, причинами может быть:
· деформация дисков передних колес;
· большой дисбаланс передних колес.
При стуке в задней подвеске причинами могут быть:
· перегрузка задней оси;
· ослабление мест крепления;
· износ втулок амортизаторов.
Основной причиной биения колес является нарушение балансировки колес. Причиной повышенного износа крайних частей протектора шины является недостаточное давление воздуха в шине.
При неравномерном износе протектора причинами могут быть:
· неисправность амортизаторов;
· большие зазоры в шарнирных соединениях рулевого привода и передней подвески;
· большой остаточный дисбаланс колес.
Деформация поперечины подвески в зоне передних болтов крепления осей нижних рычагов, оси нижнего рычага, поворотного кулака, рычагов подвески или элементов передней части кузова, а также износ резино-металлических шарниров могут быть причинами невозможности регулировки угла установки колес.
Если автомобиль сильно бросает из стороны в сторону на неровной дороге и долго качает после толчка, вероятными причинами могут быть неисправность амортизаторов, снижение количества жидкости в амортизаторах, поломка или износ пружин сальников, клапанов, поршня, штоков, загрязнение каналов. Нормальная работа амортизатора нарушается как при недостатке, так и при избытке жидкости в нем. В амортизаторы необходимо заливать строго определенное количество жидкости.
Проверка технического состояния амортизаторов
Для того, чтобы проверить работу амортизатора, необходимо снять его вместе с нижним кронштейном, установить вертикально на пол, зажав кронштейн ногами, несколько раз вытянуть и отпустить шток. В исправном амортизаторе сопротивление движению штока должно быть почти втрое сильнее сопротивления движению вниз. Кроме того, в близких к крайним положениях штока не должно ощущаться уменьшения сопротивления или упругости. Если такой эффект ощущается, значит, в цилиндр попал воздух. Свободное передвижение штока означает, что жидкости недостаточно. Амортизатор должен быть сухим. Утечка жидкости ухудшает его работу, вызывает стуки и скрипы. Если гайка резервуара ослаблена, необходимо ее подтянуть.
Амортизатор заменяют, если обнаружена утечка жидкости, деформирован кожух. При проверке амортизатора необходимо осмотреть его верхнее и нижнее крепление. Неисправные и изношенные втулки и подушки заменяют.
Кроме этого способа, для проверки действия амортизатора передней и задней подвесок автомобиль устанавливают на эстакаду или смотровую яму, раскачивают кузов и нажимают на него руками последовательно с правой и левой сторон передней и задней частей несколько раз, так, чтобы амплитуда колебаний достигла 40-50 мм. Если после отпускания рук в нижнем положении кузова он совершит более полутора циклов колебаний, значит, амортизатор нуждается в ремонте или замене.
Кроме этих способов, амортизаторы можно проверить непосредственно на автомобиле с использованием стендов. Существуют стенды двух типов. На стенде первого типа создаются длительные колебания колеса с переменной частотой, при которой в определенный момент происходит резонанс, и фиксирующие амплитуды при резонансе. На стенде второго типа создаются кратковременные колебания колес и фиксируется количество циклов затуханий колебаний. При резонансе амплитуда свободных колебаний в наибольшей степени зависит от сопротивления, создаваемого амортизатором. Такие стенды состоят из площадок-вибраторов, на которые устанавливают колеса автомобиля, приводного электродвигателя с кривошипно-шатунным механизмом и прибора, который регистрирует результаты испытаний в виде осциллограмм или цифровой информации о проценте годности амортизатора.
6.3 Стенды для диагностики и контроля ходовой части
Стенды контроля увода автомобиля. Эти стенды представляют собой площадочное устройство, платформа которого имеет возможность смещаться в сторону, противоположную силам увода автомобиля с траектории прямолинейного движения (рис. 7.). Под платформой расположен датчик, передающий сигнал на информационное табло. Автомобилю достаточно проехать по платформе одним колесом, чтобы на табло загорелась сигнальная лампа, информирующая оператора-диагноста о том, что углы схождения колес не соответствуют норме и требуется углубленная диагностика механизмов установки колес на специальном стенде.

Рис. 7. Стенд контроля увода автомобиля RAV RT 370 IN фирмы RAVAGL10LI (Италия)
Стенды диагностики подвески автомобиля. Стенды предназначены для диагностики пружинно-амортизаторной системы подвески автомобиля. Стенд состоит из силового шкафа, приборной стойки и блока измерительных пластин. В блоке (рис. 8.) находятся вибраторы, приводящие в колебания опорные пластины и подвеску автомобиля, который колесами стоит на пластинах, и датчики измерения параметров вибрации пластин. Работа стенда основывается на реализации амплитудно-резонансного метода диагностики колебательной системы. Вначале вибраторы сообщают через пластины подвеске автомобиля вынужденные колебания с заданной начальной частотой, которая находится в сверхкритическом диапазоне колебаний. Колебания подвески проходят весь диапазон низких частот и точку резонанса до полного прекращения колебаний. Затем вибраторы выключаются и включается система регистрации амплитуды и частоты свободных колебаний подвески. Результаты измерения выдаются в виде графиков зависимости: амплитуда (мм) — частота колебаний (Гц) и в виде процентов от максимального значения амплитуды по левому и правому колесам автомобиля.

Рис. 8. Стенд площадочного типа для диагностики подвески автомобиля RAV RT 202 фирмы RAVAGLIOLI (Италия)
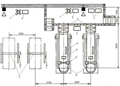
Стенды «люфт-детекторы» для диагностики зазоров в сочленениях подвески и рулевого управления автомобилей. Стенды позволяют визуально выявить люфты (люфт — зазор в кинематической паре, проявляющийся как относительное движение охватывающего и охватываемого элементов, при приложении к звеньям механизма знакопеременной нагрузки) в сочленениях подвески и рулевого механизмов. Стенды (рис. 9.) выпускаются в трех исполнениях:
— напольного (для грузовых автомобилей) с использованием в автономном режиме;
— заглубленного (для легковых автомобилей) с использованием в автономном режиме и устанавливаемых на осмотровую канаву
— для встраивания в платформы автомобильных подъемников.
Стенды состоят из трех частей — гидравлической станции, переносного пульта управления с лампой подсветки, двух опор. Пульт и гидравлическая станция соединены между собой электрическим кабелем, а гидравлическая станция и опоры — гидравлическими шлангами. Опоры представляют собой пластины, расположенные в раме и имеющие возможность перемещаться в двух взаимно перпендикулярных направлениях в горизонтальной плоскости от встроенных в раму гидроцилиндров.
Принцип действия стенда состоит в следующем: проверяемый автомобиль наезжает передними колесами на пластины и затормаживается. Пластинам с пульта управления дается команда на возвратно-поступательное движение сначала по одному, а затем по другому направлению. Во время качания автомобиля пластинами механик, осматривая механизмы подвески и рулевого управления, визуально обнаруживает имеющиеся люфты.

Рис. 9. Стенд «люфт-детектор» моделей RАУ 200-2001, 203-2031 для диагностики зазоров в подвеске и рулевом управлении фирмы RАVАLILI (Италия):
а — общий вид в напольном исполнении; б — пульт управления с вмонтированной в него лампой подсветки; в — размеры соединительных гидрошлангов для различных моделей стенда; г — стенд, встроенный в платформы ножничного подъемника
6.4 Технологическая планировка производственных зон и участков
Технологическая планировка зон и участков представляет собой план расстановки постов, автомобиле-мест ожидания и хранения, технологического оборудования, производственного инвентаря, подъемнотранспортного и прочего оборудования и является технической документацией проекта, по которой расставляется и монтируется оборудование. Степень проработки и детализации технологической планировки зависит от этапа проектирования. Для разработки общего объемно-планировочного решения зданий предприятия в ряде случаев недостаточно иметь только площади отдельных помещений, рассчитанных по удельным показателям, а необходимо знать геометрические размеры и конфигурацию отдельных зон и участков, что требует укрупненной проработки их планировочных решений. Это, прежде всего, относится к зонам ТО и ТР, особенно при поточном методе организации ТО, и участкам с крупногабаритным оборудованием и въездом на них автомобилей, например, кузовному, малярному. Поэтому в ряде случаев проработка планировочных решений отдельных зон и участков производится одновременно с разработкой общего объемно-планировочного решения зданий СТО.
Уточнение и окончательная доработка технологических планировок зон и участков выполняются на основе размеров помещений исходя из принятого общего объемно-планировочного решения зданий.
6.5 Общие требования и положения
Планировочное решение зон ТО и ТР разрабатывается с учетом требований СНиП II-93-74.
Посты диагностирования располагают или в обособленных помещениях или в общем помещении с постами ТО и ТР. При организации диагностирования на поточной линии ее располагают обычно в самостоятельном помещении. Линии (посты) общего диагностирования (Д-1) тормозов, углов установки управляемых колес, приборов освещения и сигнализации допускается размещать в одном помещении с постами ТО и ТР. Посты углубленной диагностики (Д-2), связанные с проверкой тягово-экономических качеств автомобилей, из-за повышенного шума при работе стенда следует располагать в отдельных изолированных помещениях.
Посты ТР можно располагать в общем помещении с постами ТО-1 и ТО-2. При поточной организации этих обслуживании посты ТР располагают в обособленных, помещениях. Посты ТО и ТР для автопоездов и сочлененных автобусов, исходя из удобства маневрирования, следует проектировать проездными.
При размещении постов ТО и ТР необходимо руководствоваться нормируемыми расстояниями между автомобилями, а также между автомобилями и элементами здания, которые установлены в зависимости от категории автомобилей.
Планировочное решение и размеры зон ТО и ТР зависят от выбранной строительной сетки колонн (шага колонн и ширины пролетов), обустройства постов, их взаимного расположения и ширины проезда в зонах.
Наиболее распространенными осмотровыми устройствами в зонах ТО и ТР являются канавы и подъемники. В соответствии со СНиП II-93-74 для удобства работы и обеспечения безопасности при наличии двух и более параллельных канав, расположенных рядом, они соединяются между собой открытой траншеей (тупиковые) или тоннелем (проездные). Ширина траншей и тоннелей должна быть не менее 1 м, если они служат только для прохода, и не менее 2 м, если в них расположены рабочие места и технологическое оборудование. Высота тоннеля от пола до низа перекрытия или несущих конструкций для автомобилей над приямками в местах прохода людей принимается не менее 1,8 м. Из тоннелей и траншей предусматриваются выходы по лестницам в производственные помещения: не менее одного на 5 автомобилей. При большем числе автомобилей устраивается дополнительный выход на каждые 10 автомобилей. Ширина выхода должна быть не менее 0,7 м.
Лестницы из канав, траншей и тоннелей в целях безопасности нельзя располагать под автомобилями и на путях их движения.
На уровне пола тупиковых канав постов ТО-2 и ТР иногда располагают оборудование для слесарных и некоторых других работ. При этом ширину открытой траншеи, соединяющей канавы, увеличивают до 4 - 6 м и размещают в ней необходимое оборудование.
По взаимному расположению посты могут быть прямоточными и тупиковыми. Прямоточное расположение нескольких постов используется для ЕО, ТО-1 и ТО-2 при поточном методе обслуживания автомобилей, а прямоточные одиночные (проездные и тупиковые) посты для ТО и ТР при выполнении работ на отдельных постах.
При тупиковом расположении постов в зонах ТО и ТР расстановка постов может быть прямоугольной однорядной и двухрядной, косоугольной, а также комбинированной однорядной и двухрядной.
Разработка планировочных решений производственных участков производится в соответствии с технологией работ, требованиями научной организации труда и СНиП.
Однородный характер некоторых работ, выполняемых на вспомогательных участках, например жестяницких и сварочных, предъявляет к ним одинаковые строительные, противопожарные и санитарно-гигиенические Требования. Поэтому для исключения раздробленности здания на мелкие помещения целесообразно совмещение такого рода работ и, следовательно, участков в одном помещении. Кроме того, при небольшой производственной программе, когда площади помещений для выполнения отдельных видов работ составляют менее 10 м2 , необходимо также совмещать однородные работы.
Укрупнение помещений при изменении программы тех или иных видов работ дает возможность некоторых изменений технологического процесса без существенной реконструкции здания.
В соответствии со СНиП II-93-74 в одном помещении допускается совмещение следующих групп участков:
а) моторного, агрегатного, механического, электротехнического и карбюраторного (приборов питания);
б) кузнечно-рессорного, сварочно-жестяницкого и медницкого;
в) столярного и обойного.
Расстановка оборудования на участках должна выполняться с учетом необходимых условий техники безопасности, удобства обслуживания и монтажа оборудования при соблюдении нормативных расстояний между оборудованием, и элементами зданий. Для относительно простого оборудования (разборочные и сборочные стенды, верстаки и т. п.), не требующего фундаментов или устанавливаемого на фундаменты, габариты в плане которого мало отличаются от габаритов самого оборудования, а также для оборудования, не требующего сложных сантехнических и энергетических устройств, нормативные расстояния приведены в таблицах. Нормы размещения более сложного технологического оборудования для различных производственных участков с учетом специфики их производственных процессов следует принимать по соответствующим общесоюзным и отраслевым нормам технологического проектирования.
6.6 Определение ширины проезда в зонах ТО и ТР
Существуют различные методы определения ширины проезда: аналитический, экспериментальный и графический. Наибольшее распространение в практике проектирования получил графический метод для одиночных автомобилей. Ввиду сложности графического построения поворота автопоездов ширину проезда для них определяют аналитическим и экспериментальным методами.
Графическое определение ширины проезда при тупиковом расположении постов производится с учетом следующих условий: въезд на пост осуществляется только передним ходом с применением дополнительного маневра (однократного применения заднего хода); перед началом движения автомобиля на поворотах его передние колеса повернуты на максимальный угол.
При установке автомобиля на тупиковый пост применение дополнительного маневра не только сокращает ширину проезда, но и облегчает установку автомобиля относительно соседних постов.
6.7 Планировочное решение участка по диагностированию и ремонту ходовой части легкового автомобиля
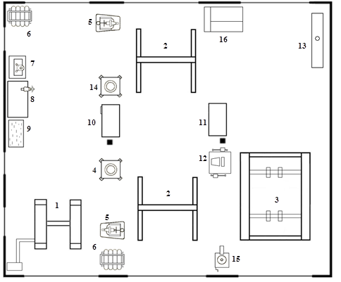
Участок по диагностированию и ремонту ходовой части автомобилей может размещаться отдельно или в общем помещении. В ряде случаев в составе участка по ремонту ходовой части выделяется помещение для мойки агрегатов, узлов и деталей. На крупных СТО при организации отдельного участка по ремонту ходовой части выделяется помещение для восстановления и проверки деталей после ремонта. Данная группа участков может иметь стены или перегородки не на всю высоту помещения и благодаря этому сообщаться между собой и постами ТР с помощью тельферов или кран-балок, что сокращает потребность в подъемно-транспортных средствах. Пример планировочного решения участка приведен на рисунке 10.

Рис. 10. Участок по диагностированию и ремонту ходовой части легкового автомобиля
Перечень обозначений по рисунку 10.
1 – стеллаж для деталей;
2 – верстак слесарный;
3 – переходный мостик съемный;
4 – ящик для инструмента;
5 – подставка под ноги при работе в осмотровой канаве;
6 – подъемник канавный;
7 – подъемник электромеханический;
8 – осмотровая канава.
Список использованных источников
1. Афанасьев Л.Л., Маслов А.А., Колясинский Б.С. Гаражи станции технического обслуживания автомобилей. – М.: Транспорт, 1980. – 215 с.
2. Корниенко С.В. Ремонт японского автомобиля. – М.: АСТ: Астрель, 2007. – 255 с.
3. Лудченко А.А. Основы технического обслуживания автомобилей. – К., 1987. – 399 с.
4. Напольский Г.М. Технологическое проектирование автотранспортных предприятий и станций технического обслуживания. – М.: Транспорт, 1985. – 231 с.
5. Першин В.А. [и др.]. Типаж и техническая эксплуатация оборудования предприятий автосервиса. – Ростов н/Д: Феникс, 2008. – 413 с.
6. Ханников А.А. Автомеханик: техническое обслуживание и ремонт отечественных и зарубежных автомобилей. – Минск: Соврем. шк., 2006. – 384 с.
Похожие рефераты:
Развитие сервисного обслуживания автомобилей
Проект автотранспортного парка для техобслуживания автомобилей
Техническое обслуживание №2 автомобиля ГАЗ-53
Рама и подвеска автомобиля КамАЗ
Система технического обслуживания и ремонта ВАЗ-2109
Разработка технологического процесса ТО-2 автобуса ЛиАЗ-677
Эксплуатация и ремонт автомобильного транспорта
Автомобили и автомобильное хозяйство
Обслуживание и текущий ремонт автомобильного транспорта в России
Разработка технологического процесса ТР переднего моста автомобиля ГАЗ-31029

