| Похожие рефераты | Скачать .docx |
Дипломная работа: Проектирование 16-ти этажного 2-х секционного жилого дома в Ейске
ОХРАНА ОКРУЖАЮЩЕЙ СРЕДЫ.
ЗАЯВЛЕНИЕ ОБ ЭКОЛОГИЧЕСКИХ ПОСЛЕДСТВИЯХ
1. Описание основных параметров проектируемого объекта:
· осуществляется новое строительство здания;
· в новом микрорайоне;
Характеристика здания: назначение – жилой дом; конструкция верхнего строения – конструктивная схема жилого дома представляет собой стеновую систему с поперечными несущими стенами с шагом 3000 и 3600 мм. Все конструкции выполняются из сборного железобетона; тип и глубина фундамента – в соответствии с показаниями инженерно – геологических изысканий фундаменты приняты мелкого заложения на глубину 3,3м, опирающимися на суглинки тугопластичные с прослоями песка.
Наличие подземной части и ее вид – имеется цокольный этаж на отм. – 2,800 м; этажность – 16 этажей. Высота этажа –2,8 м. Количество квартир – 128.
· ориентация здания по сторонам света – проектируемое здание ориентировано по сторонам света с севера на восток, главный вход выходит на северо-восток;
· транспортные магистрали – рядом с объектом строительства проходит ул. Московское шоссе;
· стройгенплан – на строительной площадке располагаются: бытовые вагончики для рабочих, открытые склады; коммуникации – водопровод, электроснабжение и канализация подключаются к существующим коммуникациям; дороги на площадке строительства предусматриваются временными, дороги прокладываются из сборных железобетонных плит, укладываемых по песчаной подушке;
· применяемые материалы и изделия – для конструкций – железобетонные изделия, цементно-песчанный раствор.
· объем и площадь изымаемых ресурсов – при строительстве объекта отрывается котлован, изымается грунт в объеме 1750м3 .
2. Описание основных природных условий:
· географическое местоположение – проектируемый объект располагается в Московском районе г. Рязани на ул. Московское шоссе.
· природная среда – среда природно-техногенная, измененная застройкой;
· инженерно-геологическая характеристика (характеристика почв и подстилающего слоя грунтов) – толща грунтов основания сложена 4-мя основными инженерно – геологическими элементами: 1 – насыпной грунт, мощность слоя 0,4-0,7 м; 2 – суглинок тугопластичный, мощность слоя 4,7-5,5 м; 3 – песок пылеватый, средней плотности, влажный мощность слоя 1,6-2,9 м; 4 – песок крупный плотный, влажный, мощность слоя 2,2-3,3 м;
· климатические характеристики – Преобладающие ветры: в зимний период – Ю , в летний – З. Абсолютная минимальная температура – 40
, максимальная +38
. Средняя максимальная температура +24,2
. Температура наиболее холодного периода – 15
. Температура наиболее холодных суток с обеспеченностью 0,92 - – 31
, наиболее холодной пятидневки с обеспеченностью 0,92 - – 25
. Продолжительность периода с температурой менее 0
– 150суток. Продолжительность периода с температурой более 10
– 215 суток. Количество осадков: за год – 704 мм, жидких и смешанных за год – 528 мм, суточный максимум – 61 мм; средняя месячная относительная влажность воздуха в 13 ч.: наиболее холодного месяца – 81%, наиболее жаркого месяца – 62%.
Продолжительность ветра по направлениям (%):
| Июль | |||||||
| С | СВ | В | ЮВ | Ю | ЮЗ | З | СЗ |
| 13 | 9 | 10 | 9 | 8 | 12 | 20 | 19 |
| Январь | |||||||
| С | СВ | В | ЮВ | Ю | ЮЗ | З | СЗ |
| 7 | 5 | 8 | 15 | 17 | 23 | 14 | 11 |
· гидрогеологические условия – подземные воды вскрыты на глубине 7,2 м.
· характеристика растительности – в районе строительства преобладает травяная растительность (лиственные деревья); распространенность травянистой растительности – 80%, древесной – 15%; древесная растительность имеет возраст приблизительно 20-25 лет.
3. Описание условий техногенно-измененной среды:
· котлован глубиной –3,5 м : 1 – насыпной грунт , мощность слоя 0,4-0,7 м; 2 – суглинок тугопластичный, мощность слоя 4,7-5,5 м;
· глубина уровня грунтовых вод – 7,2 м (от спланированного уровня земли)
· на территории строительной площадки древесная растительность была подвергнута вырубке, а травянистая вместе с почвенным покровом (слой толщиной 15 см) была срезана и вывезена с территории строительной площадки;
4. Характеристика существующих воздействий:
· инженерные изыскания для проектирования (воздействия незначительны);
· проектирование и конструирование (воздействия незначительны);
· строительство здания – воздействия: загрязнение воздуха выхлопными газами автомашин – интенсивность средняя; загрязнение почвы горюче-смазочными материалами автомашин, строительным мусором – интенсивность средняя (проведение мероприятий по сбору и утилизации загрязненной почвы и мусора); разработка грунта под котлован – интенсивность высокая; вырубка древесной растительности – интенсивность средняя (высадка деревьев после окончания строительства,); шум и вибрация от автомашин и строительных механизмов – интенсивность высокая (применение более совершенных машин и механизмов).
· эксплуатация здания – воздействия: тепловыделения от здания – необходима хорошая теплоизоляция, различные протечки в коммуникациях – предупреждение и своевременное устранение возникших неполадок; открытая стоянка автомобилей; площадка для загрузки мусоровоза.
Возможные последствия при реализации проекта незначительны, так как при полном соблюдении технологии производства работ, при применении экологически чистых строительных материалов и проведении природоохранных мероприятий направленных на восстановление природной среды, а также при правильной эксплуатации здания какое-либо негативное воздействие сводится к минимуму.
5. Возможные негативные последствия в социально-экономической среде:
При реализации проекта каких-либо негативных последствий в социально-экономической среде не намечается, а намечается только положительный эффект – увеличение жилого фонда.
6. Природоохранные мероприятия, снижающие негативные воздействия на природо-техногенную среду при реализации проекта:
Проектом предусматриваются следующие меры по охране окружающей среды:
Для уменьшения объема выбросов загрязняющих веществ в атмосферу.
- Рекомендуется применять механизмы в основном с электроприводом (монтажные краны, подъемники, эл. компрессор и др.), как наиболее экологически чистые.
Особое внимание необходимо уделить мероприятиям, направленным на предотвращение переноса загрязнения со стройплощадки на сопредельные территории. В связи с этим предусматривается:
- Производство работ строго в зоне, отведенной стройгенпланом;
- Установка на стройплощадке биотуалетов, обслуживаемых специализированной организацией;
- Упорядоченная транспортировка и складирование сыпучих и жидких материалов;
- Перед выездом со стройплощадки оборудовать пункт мойки колес автотранспорта, нa котором производится очистка колес и внешних сторон кузова от грязи. После мойки колес загрязненная вода попадает в бак-накопитель и по мере накопления вывозится илососной машиной за пределы стройплощадки.
- Сбор в специальные поддоны, устанавливаемые под специальные механизмы, отработанных нефтепродуктов, моторных масел и т.п. и их утилизацию.
Кроме того:
- Регулярно вывозить строительный мусор;
- Организовать механизированную уборку территории стройплощадки;
- После окончания строительства все временные сооружения разбираются и вывозятся.
Для удаления поверхностных вод с кровли, запроектирована система внешнего водостока. Вертикальная планировка предусматривает отведение поверхностного стока с территории объекта.
Для уменьшения загрязнения подземных вод атмосферными осадками предусматривается минимальное по времени нахождение на территории строительной площадки открытых котлованов и траншей.
Удаление и утилизация всех видов отходов осуществляется централизованно. Длительное хранение их на территории объекта не предусматривается, что значительно снижает возможность загрязнения подземных вод.
Поверхностный сток с проездов и площадки для кратковременной парковки автомобилей отводится по лоткам запроектированных проезжих частей в лотки существующих проезжих частей внутренних проездов и далее в городской водосток для дальнейшей централизованной очистки.
Благоустройство территории:
После окончания строительства предусмотрены работы по озеленению территории.
Посадка деревьев: озеленение площадки предусмотрено выполнить следующими видами пород деревьев:
·липа обыкновенная
·лиственница сибирская
·рябина обыкновенная
·различные виды кустарников
Также предусмотрено выполнить привоз растительного слоя и там где необходимо посев газонной травы.
Общая площадь газонов составляет около 2834 м2.
На проезды и автостоянки всего выделено 2125м2, которые выполнены из асфальтобетона. Тротуары и площадки выполняются как из асфальтобетона, так и из бетонной плитки.
7. Мероприятия по рекультивации территории:
Перед началом строительства объекта слой почвы толщиной 15 см снимают и вывозят с целью дальнейшего использования его для рекультивации территории после окончания строительства.
Расчет загрязнения воздуха автомобилями
Основными источниками выделения вредных веществ в атмосферу на территории проектируемого жилого дома являются автомобили, размещенные на закрытой и открытых стоянках , а также перемещающиеся в рейсовом режиме по территории.
Загрязнители от автомобилей выделяются в период прогрева двигателей , работы на холостом ходу и , соответственно , при движении по территории. Главными загрязнителями при этом являются оксид углерода , диоксид азота , углеводороды и сернистый ангидрит.
Для организации необходимого воздухообмена и локализации выбросов в помещении гаража-стоянки производится оборудование его приточно-вытяжной вентиляцией с механическим побуждением.
Источниками выбросов загрязняющих веществ в атмосферу из подземной автостоянки являются вытяжные вентиляционные системы. Высота выброса равна 58 м.
Максимальный разовый выброс от автомобилей составит:
Углерода оксид
:
, где
mi – масса выброса i – го загрязняющего вещества одним автомобилем j – го типа, г/сек.;
n – количество групп автомобилей ;
gij – удельный выброс i – го загрязняющего вещества одним автомобилем j – го типа , г/км
L – условный пробег одного автомобиля за цикл на территории стоянки с учетом времени запуска двигателя , движения по территории , работы в зонах стоянки , км ;
A3 – эксплуатационное количество автомобилей;
k – коэффициент , учитывающий влияние режима движения автомобиля и способа его хранения ;
t - время выпуска и возврата автомобилей , час ;
Количество годовых выбросов загрязняющих атмосферу веществ :
, где
Мi – масса выброса i – го загрязняющего вещества , т/год;
N , gij ,L,A3 , k –аналогичны значениям , приведенным ранее ;
D – количество рабочих дней в году.
Расчет: На открытой стоянке на территории проектируемого объекта паркуется 40 легковых автомобилей среднего класса . Способ хранения автомобилей – манежный. В < в час пик> со стоянки выезжает (въезжает) 50% от списочного состава автомобилей.
Условная длина пробега в соответствии с ОНТП 01-91 принята равной 0,8 км.
Годовой режим работы –365 дней.
Коэффициент , учитывающий неравномерность выезда – въезда автомобилей принят равным 0,7.
Максимальный разовый выброс от автомобилей составит:
Углерода оксид
,
Азота оксид
,
Углеводорода
,
Сернистый ангидрид
,
Валовой годовой выброс от автомобилей составит:
Углерода оксид
,
Азота оксид
,
Углеводорода
,
Сернистый ангидрид
,
Расчет: Проезд мусоровоза с дизельным двигателем предусмотрен один раз в день. Условная длина пробега принята равной 0,8 км.
Годовой режим работы –260 дней.
Максимальный разовый выброс от автомобилей составит:
Углерода оксид
,
Азота оксид
,
Углеводорода
,
Сернистый ангидрид
,
Валовой годовой выброс от автомобилей составит:
Углерода оксид
,
Азота оксид
,
Углеводорода
,
Сернистый ангидрид
,
Результаты расчетов сводят в таблицу
№ п/п |
Наименование объекта |
Наименование источника выделения вредных веществ и номер вентсистемы |
количество | Номер источника выброса | Наименование вещества | ПДК, мг/м3 |
выбросы | |
| г/сек | т/год | |||||||
| 1 | Открытая стояка автомашин | Автомашины (въезд-выезд) |
40 | 1 | Углерода оксид Азота оксид Углеводорода Сернистый ангидрид |
5,0 0,085 5 0,5 |
0,1547 0,0036 0,01424 0,00034 |
0,2845 0,00657 0,02619 0,000618 |
| 2 | Проезд мусоровоза | Автомашины (въезд-выезд) |
1 | 2 | Углерода оксид Азота оксид Углеводорода Сернистый ангидрид |
5,0 0,085 5 0,5 |
0,0092 0,0016 0,0028 0,00016 |
0,0128 0,0016 0,0036 0,0002 |
После этого производится расчет суммарного максимально-разового выброса от источников объектов от всех источников по каждому загрязнителю
Углерода оксид
,
Азота оксид
,
Углеводорода
,
Сернистый ангидрид
,
Суммарный валовой (годовой) выброс от источников объектов составит
Углерода оксид
,
Азота оксид
,
Углеводорода
,
Сернистый ангидрид
,
Вывод и рекомендации
Приведенные выше расчеты показывают, что на территории объекта приземные концентрации существенно ниже предельно допустимых величин. В этой связи, полученные расчетом величины выбросов от источников объекта могут быть приняты за предельно допустимые (ПДВ).
№ п/п |
Наименование вещества | ПДК, мг/м3 |
|
||
| г/сек | т/год | ||||
| 1 | Углерода оксид Азота оксид Углеводорода Сернистый ангидрид |
5,0 0,085 5 0,5 |
0,1639 0,0052 0,017 0,00019 |
0,297 0,0082 0,0298 0,00026 |
ПДВ ПДВ ПДВ |
| ВСЕГО | 0,1866 | 0,3361 | |||
Вывод: Размещение проектируемого объекта не окажет ощутимого негативного воздействия на окружающую среду.
АРХИТЕКТУРНАЯ ЧАСТЬ
1. Генеральный план
Проектируемый стартовый 16-ти этажный 2-х секционный жилой дом расположен в новом микрорайоне города Ейска. Участок строительства расположен в средней части квартала, который ограничен улицей Ленина и улицей Свободной.
На территории квартала уже существует два современных 16-ти этажных здания.
Рельеф участка спокойный. Проект организации рельефа предусматривает естественный отвод воды с территории жилого дома. В элементах благоустройства используется асфальтовое покрытие для проездов и плиточное покрытие для тротуаров и отмосток.
По периметру здания предусмотрен самотечный дренаж из 15-ти колодцев со сбросом воды в городскую ливневую канализацию.
В квартале расположены ЦТП, ТП, основная (для жильцов) и гостевая стоянки на 40 автомашины.
Площадь, которая находится под строительством занимает почти 8892 м2 , включая озеленительные зоны, зоны игровых площадок и стоянок для автомобилей.
Возводящееся здание занимает площадь 730,52 м2 и имеет ориентацию главного фасада на северо-восток, что соответствует меридиональной ориентации, обеспечивающей наиболее продолжительную инсоляцию здания второго климатического района.
Комплекс генерального плана включает в себя игровую площадку для детей, которая обеспечена необходимыми элементами для детских игр. Вблизи игровой площадки расположена площадка для сушки белья и выбивания ковров, которая занимает 60 м2 .
2. Технико-экономические показатели по генеральному плану
Площадь территории - 8892 м2
Площадь застройки - 731 м2
Площадь озеленения - 4060 м2
Площадь дорог и мощенных площадок - 4100 м2
Коэффициент застройки - 0,08
Коэффициент использования территории - 0,54
Коэффициент озеленения - 0,46
3. Архитектурно - планировочное решение
Запроектирован 16-ти этажный 2-х секционный жилой дом по типовому проекту в сборных конструкциях на 128 квартиры. В том числе:
· 2-х комнатных - 64 или 50 %
· 3-х комнатных - 64 или 50 %
Каждая секция имеет незадымляемую лестничную клетку с вентиляционными шахтами и два лифта грузоподъемностью 630 и 400 кг - один грузопассажирский, другой пассажирский, выходящие в лифтовой холл, отделенный от коридоров перегородками с дверями.
В обеих секциях запроектирован мусоропровод, размещаемый в у лифтов с приемными клапанами на каждом этаже и мусорокамерой в подвальном помещении, имеющей выход во двор.
Квартиры запроектированы в соответствии с требованиями СНиП.
Выход на балкон или лоджию предусмотрен в каждой квартире. В квартирах предусмотрено расположение раздельных санузлов. Запроектированы кухни и ванные комнаты с увеличенными размерами.
Несущие стены расположены с таким образом, чтобы они отделяли квартиры от коридоров и друг от друга, повышая комфортность в части звукоизоляции.
На техническом этаже располагаются лифтовые помещения. Лифтовые помещения не имеют смежных стен с жилыми помещениями.
Дом оборудован двумя раздельными входами, выходящими во двор, по одному на каждую секцию, через которые жильцы попадают на первый этаж. Высота этажа 2,8 м от пола до пола.
Вода к зданию поступает через центральный водопровод микрорайона, канализация присоединена к центральной канализационной сети города равно как и все остальные инженерные сети здания.
Характеристики здания:
Степень долговечности - II
Степень огнестойкости - I
Класс здания - II
Ориентация - меридиональная.
Отношение рабочей (жилой) площади квартир к общей (полезной) будет равно:
К1 = 5120 / 9024 = 0,57
Значения К1 соответствуют нормативному: К1 (0,5-0,75).
Строительный объем надземной части здания составляет 35453 м3 . Тогда коэффициент, характеризующий экономическую эффективность здания, равный отношению строительного объема к его жилой площади будет равен:
K2 = 35453 / 5120 = 6,92 м3/м2
Коэффициент компактности плана, равный отношению периметра наружных стен к общей площади равен:
K3 = 136,2 м / 730,8 м2 = 0,186 м/м2 (норм. K3 = 0,16-0,25).
Коэффициент, характеризующий степень насыщенности плана здания, вертикальными конструкциями, равный отношению конструктивной площади вертикальной конструкции к площади застройки здания:
K4 = 74,2 / 730,8 = 0,11 (норм. K4 = 0,1-0,2).
4. Технико-экономические показатели по объекту
Строительный объем - 35453 м3
Приведенная общая площадь (с общественными) - 11696 м2
Приведенная общая площадь квартир - 9024 м2
Приведенная жилая площадь – 5120 м2
Общая площадь без учета летних помещений – 9568 м2
Площадь летних помещений - 1088 м2
Отношение строительного объема к приведенной общей площади – 48,51
Отношение площади наружных стен к приведенной общей площади – 0,06
Количество заселяемых людей - 448 человек
Приведенная общая площадь на одного заселяемого - 26,1 человеко-м2/чел.
5. Архитектурно - конструктивное решение здания
Проектируемое здание имеет 16 этажей. Выполняется из сборного железобетона и имеет бескаркасную схему с поперечными и продольными несущими стенами. Основной шаг поперечных несущих стен 3,0 – 3,6 м. Ограждающие конструкции – навесные стеновые панели из керамзитобетона.
Принятая конструктивная схема здания обеспечивает прочность, жесткость и устойчивость на стадии возведения и в период эксплуатации при действии всех расчетных нагрузок и воздействий.
Две поперечные внутренние стены спроектированы отдельными панелями, внутренние продольные стены располагаются так, чтобы объединять по возможности поперечные стены. Вертикальные нагрузки от перекрытий воспринимаются и передаются на фундамент основания поперечными и продольными стенами одновременно.
Под зданием запроектирован сборный железобетонный фундамент. Основанием для фундамента на отметке 155.20 (–3.30 ). Основанием, по данным «Геотреста», слагают тугопластичные суглинки с прослоями песка и пески пылеватые, средней плотности, влажные, а также пески крупнообломочные. Уровень подземных грунтовых вод находится на глубине -7,9 м. Расчетное сопротивление грунта основания принято 2.50 кН/м2 по самому слабому грунту - пески пылеватые.
Стены подвала, расположенные со стороны грунта должны быть защищены сплошной обмазочной гидроизоляцией, под полом подвала устраивают рулонную гидроизоляцию. В первую очередь устраивают внешний водосток для отвода атмосферных вод с территории строительной площадки. После возведения подземной части устроить водонепроницаемую отмостку шириной не менее 1,0 м.
Под всей фундаментными плитами устраиваем бетонную подготовку толщиной 100 мм из бетона класса В7,5.
Этажи перекрываются плитами на комнату опертые по трем сторонам. Перекрытие состоит из однослойных сплошных плит толщиной 140мм, заводского изготовления. Плиты лоджий имеют не прямоугольное очертание, также заводского изготовления из более морозостойкого бетона.
Несущие стены соединяются между собой надпроемными перемычками и диском плит перекрытия.
За отметку 0,000 условно принят уровень чистого пола первого этажа.
В данном проекте предусмотрены следующие конструкции полов:
Жилые комнаты, проходы - паркет щитовой на мастике по цементно-песчаной стяжке и звукоизоляционным плитам.
Кухня - линолеум на мастике по цементно-песчаной стяжке и звукоизоляционным плитам.
Санузлы - керамическая плитка на цементно-песчаном растворе, гидроизоляция по пенополистирольным плитам.
Лестничные клетки-керамическая плитка на цементно-песчаном растворе.
Лоджии - керамическая плитка на цементно-песчаном растворе.
Запроектирована горизонтальная кровля с внутренним водостоком. Она выполнена из следующих слоев:
защитный слой гравия, втопленный в разогретый слой рулонного материала
· три слоя фризола
· полиэтиленовая пленка
· пенополистирол 10 см
· пароизоляция – 1 слой полиэтиленовой пленки
· выравнивающая цементно - песчаная стяжка
· ж/бетонная утепленная плита покрытия.
Лестницы выполнены из сборных элементов.
Ленточный фундамент – сборный ж/б блоки и цокольные панели толщиной 500 мм.
Наружные стены - ж/б навесные панели с утеплителем из минераловатных матов и керамзитобетонным несущим слоем, заводского изготовления толщиной 325 мм.
Внутренние несущие стены – сборные ж/б плиты 180 мм
Перегородки - кирпич - 120 мм
Перекрытия – сборные ж/б плиты перекрытия однослойные сплошные толщиной 140 мм.
Проемы оконные-переплет двойной, спаренный, окрашенный масляной краской
Проемы дверные - деревянные, заводского изготовления
Центральное отопление-трубы стальные, радиаторы-чугунные секционного типа.
Ниже приведены расчеты по теплотехническим, светотехническим и акустическим показателям приведенных конструкций.
6. Отделка здания
Внутреннюю отделку квартир не производим.
Отделке подлежат только помещения общего назначения : техэтаж, общие коридоры, лестничные клетки, лифтовые холлы и вестибюль.
1. Техподполье - цементный - побелка - побелка
2. Общие коридоры, лифтовые холлы, вестибюль - керамическая плитка – декоративная штукатурка - окраска водоэмульсионная
3. Лестничные клетки керамическая плитка - полимерцементная окраска - окраска масляная.
4. Чердак, технические помещения - цементный - побелка – побелка.
Производим отделку фасадов торкрет - раствором, затем производим окраску необходимым колером.
7. Противопожарные мероприятия
Здание I степени огнестойкости. Принятые основные строительные конструкции - несгораемые, обеспечивают пределы огнестойкости, предусмотренные таблицей 1 СНиП 2.01.02-85 «Противопожарные нормы».
Перекрытия и покрытия, лестничные марши – сборные железобетонные. Эвакуация осуществляется по незадымляемой лестнице 2-го типа с подпором воздуха. Лестницы обеспечены естественным освещением через окна в наружных стенах. Секции отделены друг от друга противопожарными стенами. Лифтовые холлы отделены от поэтажных коридоров несгораемыми перегородками с дверьми с притворами. Подвальное помещение имеют два рассредоточенных эвакуационных выхода на улицу. Проветривание подвала осуществляется специальными вентиляционными продухами. В здании предусмотрено дымоуда ление из коридоров на каждом этаже в соответствии со СНиП 2.04.05-86 и пожарные краны. Коридор разделен п ротив опожарными перегородками 2-го типа стоящими на расстоянии 13 м.
Лестницы выходят на кровлю. Между маршами л естниц предусматривают зазор шириной не менее 10 мм. В чердаках здания предусмотрены выходы на кровлю, оборудованные стационарной лестницей.
Все квартиры имеют лоджии. На лоджии оборудованы пожарными лестницами.
На кровле предусмотрена молниезащита.
Двери лестничной клетки - самозакрывающиеся, с уплотнителями.
Эвакуационным выходом является выход первого этажа наружу непосредственно через вестибюль.
Кольцевой проезд вокруг здания запроектирован шириной 4,5м на расстоянии 8-10м от стен дома.
8. Природоохранные мероприятия после строительства
Запроектированный жилой дом не требует специальных природоохранных мероприятий. Сброс внутренних стоков предусматривается в городскую фекальную канализационную сеть. Отвод ливневых вод с территории осуществляется закрытым дренажем в городскую систему водостока. Возможного источником шума внутри здания являются лифтовые и кондиционирующие установки. Для снижения шума от лифтовых установок предусматриваются мероприятия, рекомендуемые техническими условиями при устройстве лифтов, конструкции лифтовых установок отрезаны от несущих конструкций здания.
После окончания строительства предусмотрены работы по озеленению территории.
Озеленение площадки
Посадка деревьев: озеленение площадки предусмотрено выполнить следующими видами пород деревьев:
·липа обыкновенная
·лиственница сибирская
·рябина обыкновенная
·различные виды кустарников
Также предусмотрено выполнить привоз растительного слоя и там где необходимо посев газонной травы.
Общая площадь газонов составляет около 2834 м2 .
9. Теплотехнический расчет ограждающих конструкций
Общая информация о проекте
1. Назначение – жилое здание.
2. Размещение в застройке – в составе комплекса, двухсекционное.
3. Тип – 16-этажный жилой дом центрального теплоснабжения.
4. Конструктивное решение – панельно-сборное.
Расчетные условия
5. Расчетная температура внутреннего воздуха – (+20 0 C).
6. Расчетная температура наружного воздуха – (– 22 0 C).
7. Расчетная температура теплого чердака – (+14 0 С).
8. Расчетная температура теплого подвала – (+2 0 С).
9. Продолжительность отопительного периода – 166 сут.
10. Средняя температура наружного воздуха за отопительный период для г. Ейска – (+2 0 C).
11. Градусосутки отопительного периода – (3303 0 C. сут).
Объемно-планировочные параметры здания
12. Общая площадь наружных ограждающих конструкций здания площадь стен, включающих окна, балконные и входные двери в здание:
Aw+F+ed =Pst . Hh ,
где Pst – длина периметра внутренней поверхности наружных стен этажа,
Hh – высота отапливаемого объема здания.
Aw + F + ed =(52,8*2+14,4)х2х49,9=5012,28 м2 ;
Площадь наружных стен Aw , м2 , определяется по формуле:
Aw = Aw+F+ed – AF1 – AF2 – Aed ,
где AF – площадь окон определяется как сумма площадей всей оконных проемов.
Для рассматриваемого здания:
- площадь остекленных поверхностей
AF1 = 2,05х1,44х (10х4х4+10х3х2 + 16х4х2) + 2,5х1,8х64 + 10х1,6х2х14 + 8,5х1,6х4х10 + 2,5х1,6х10х2 = 2387,3 м2 ;
- площадь глухой части балконной двери
AF2 =0,8х0,8х(14х4+6х10) = 74,24 м2 ;
- площадь входных дверей
Aed = 1,5х2,5х6х3=67,5 м2 .
Площадь глухой части стен:
AW = 5012,28-2387,3-74,24-67,5 = 2483,24 м2 .
Площадь покрытия и перекрытия над подвалом равны:
Ac =Af =Ast =(58,2х2)х14,4 = 1395,14 м2 .
Общая площадь наружных ограждающих конструкций:
Ae sum =Aw+F+ed +Ac +Ar = 5012,28+1395,14×2 = 7802,56 м2 .
13 – 15. Площадь отапливаемых помещений (общая площадь и жилая площадь) определяются по проекту:
Ah =58,2*2*14,4*16 = 18644 м2 ; Ar =5467,6 м2 .
16. Отапливаемый объем здания, м3 , вычисляется как произведение площади этажа на высоту (расстояние от пола первого этажа до потолка последнего этажа):
Vh =Ast . Hh =58,2*2х14,4х49,9=54365,75 м2 ;
17. Коэффициент остекленности фасадов здания:
P=AF 1 /Aw + F + ed =2387,3/5012,28=0,476;
18. Показатель компактности здания:
Ke des =Ae sum /Vh =7802,56/54365,75 = 0,144.
Теплотехнические показатели
19. Согласно СНиП II-3-79* приведенное сопротивление теплопередаче наружных ограждений должно приниматься не ниже требуемых значений R0 req , которые устанавливаются по таблице 1«б» СНиП II-3-79* в зависимости от градусосуток отопительного периода. Для Dd =33030 С. сут требуемые сопротивления теплопередаче равно для:
- стен Rw req =2.34 м2. 0 С/Вт
- окон и балконных дверей Rf req =0.367 м2. 0 С/Вт
- глухой части балконных дверей RF1 req =0.81 м2. 0 С/Вт
- входных дверей Red req =1.2 м2. 0 С/Вт
- покрытие Rc req =3.54 м2. 0 С/Вт
- перекрытия первого этажа Rf =3.11 м2. 0 С/Вт
По принятым сопротивлениям теплопередаче определим удельный расход тепловой энергии на отопление здания qdes и сравним его с требуемым удельным расходом тепловой энергии qh req , определенным по таблице 3.7 СНКК-23-302-2000. Если удельный расход тепловой энергии на отопление здания окажется меньше 5% от требуемого, то по принятым сопротивлениям теплопередаче определимся с конструкциями ограждений, характеристиками материалов и толщиной утеплителя.
20. Приведенный трансмиссионный коэффициент теплопередачи здания определяется по формуле:
Km tr =b(Aw /Rw r +AF1 /RF1 + AF2 /RF2 +Aed /Red +n. Aс /Rс r +n. Af . Rf r )/Ae sum ,
Km tr =1.13(2483,24/2,34+2387,3/0,367+74,24/0,81+67,5/1,2+0,6×1395,14/3,54+0,6×1395,14/3,11)/7802,56 = 1,19 (Вт/(м2. 0 С)).
21. Воздухопроницаемость стен, покрытия, перекрытия первого этажа Gm w =Gm c =Gm f =0.5кг/(м2. ч), окон в деревянных переплетах и балконных дверей Gm F =6кг/(м2. ч). (Таблица 12 СНиП II-3-79*).
22. Требуемая краткость воздухообмена жилого дома na , 1/ч, согласно СНиП 2.08.01, устанавливается из расчета 3 м3 /ч удаляемого воздуха на 1м2 жилых помещений, определяется по формуле:
na =3. Ar /(bv . Vh )=3. 5467,6/(0.85. 54365,75) = 0,355 (1/ч),
где Ar – жилая площадь, м2 ;
bv – коэффициент, учитывающий долю внутренних ограждающих конструкций в отапливаемом объеме здания, принимаемый равным 0.85;
Vh – отапливаемый объем здания, м3 .
23. Приведенный инфильтрационный (условный) коэффициент теплопередачи здания определяется по формуле:
Km inf =0.28. c. na . bV . Vh . ga ht . k/Ae sum ,
Km inf =0,28×0,355×0,85×54365,75×1,283×0,8/7802,56 = 0,604 (Вт/(м2. 0 С)).
где с – удельная теплоемкость воздуха, равная 1кДж/(кг. 0 С),
na – средняя кратность воздухообмена здания за отопительный период (для жилых зданий 3м3 /ч, для других зданий согласно СНиП 2.08.01 и СНиП 2.08.02);
bV – коэффициент снижения объема воздуха в здании, учитывающий наличие внутренних ограждающих конструкций, при отсутствии данных принимать равным 0.85;
Vh – отапливаемый объем здания;
ga ht – средняя плотность наружного воздуха за отопительный период, равный 353/(273+2)=1.283
k – коэффициент учета влияния встречного теплового потока в конструкциях, равный 0.7 – для стыков панельных стен, 0.8 – для окон и балконных дверей;
Ae sum – общая площадь наружных ограждающих конструкций, включая покрытие и перекрытие пола первого этажа;
24. Общий коэффициент теплопередачи, Вт/(м2. 0 С), определяемый по формуле:
Km =Km tr +Km inf =1,19+0,604=1,79 (Вт/(м2. 0 С)).
Теплоэнергетические показатели
25. Общие теплопотери через ограждающую оболочку здания за отопительный период Qh , МДж, определяют по формуле:
Qh =0.0864. Km . Dd . Ae sum ,
Qh =0.0864. 1,79×3303×7802,56=3244071,51 (МДж).
26. Удельные бытовые тепловыделения qint , Вт/м2 , следует устанавливать исходя из расчетного удельного электро- и газопотребления здания, но не менее 10Вт/м2 . Принимаем 10Вт/м2 .
27. Бытовые теплопоступления в здание за отопительный период, МДж:
Qint =0.0864. qint . Zht . Al =0.0864. 10. 166. 10316,6 = 10445,34 (МДж).
28. Теплопоступления в здание от солнечной радиации за отопительный период определяется по формуле (3.14).
Определим теплопоступления:
Qs =tF . kF . (AF 1 I1 + AF 2 I2 + AF 3 I3 +AF 4 I4 )=
=0.65. 0.9(1193,65х974+1193,65х357)=929417,67 (МДж).
29. Потребность в тепловой энергии на отопление здания за отопительный период, МДж, определяют по формуле (3.6а) при автоматическом регулировании теплопередачи нагревательных приборов в системе отопления:
Qh y =[Qh – (Qint +Qs ). У]. bh ,
Qh y =[3244071,51–(10445,34+929417,67). 0.8]. 1.11=2766321,03 (МДж).
30. Удельный расход тепловой энергии на отопление здания qh des , кДж/(м2. 0 С. сут) определяется по формуле (3.5):
Qh des =103. Qh y /Ah . Dd ,
qh des =2766321,03×103 /(18644. 3303)=59,32 (кДж/(м2. 0 С. сут)).
31. Расчетный коэффициент энергетической эффективности системы отопления и централизованного теплоснабжения здания от источника теплоты принимаем h0 des =0.5, так как здание подключено к существующей системе централизованного теплоснабжения.
32. Требуемый удельный расход тепловой энергии системой теплоснабжения на отопление здания принимается по таблице 3.7 – для здания более 10 этажей равен 70 кДж/(м2. 0 С. сут). Следовательно, полученный нами результат значительно (более 5%) меньше требуемого 59,32<70, поэтому мы имеем возможность уменьшать приведенные сопротивления теплопередачи ограждающих конструкций, определенные по таблице 1«б» СНиП II-3-79*, исходя из условий энергосбережения. (Изменения вносим в пункт 19).
19. Для второго этапа расчета примем следующие сопротивления теплопередачи ограждающих конструкций:
- стен Rw req =1,91 м2. 0 С/Вт
- окон и балконных дверей Rf req =0.367 м2. 0 С/Вт – (Без изменения)
- глухой части балконных дверей RF1 req =0.81 м2. 0 С/Вт – (Без измен.)
- наружных входных дверей Red req =0.688 м2. 0 С/Вт – т.е. 0.6 от R0 тр по санитарно-гигиеническим условиям;
- совмещенное покрытие Rc req =1,63м2. 0 С/Вт
- перекрытия первого этажа Rf =2 м2. 0 С/Вт
20. Приведенный трансмиссионный коэффициент теплопередачи здания:
Km tr =1.13(2483,24/1,91+2387,3/0,367+74,24/0,81+67,5/0,688+
+0,6×1395,14/1,63+0,6×1395,14/2)/7802,56 = 1,29 (Вт/(м2. 0 С)).
21. (Без изменения). Воздухопроницаемость стен, покрытия, перекрытия первого этажа Gm w =Gm c =Gm f =0.5кг/(м2. ч), окон в деревянных переплетах и балконных дверей Gm F =6кг/(м2. ч). (Таблица 12 СНиП II-3-79*).
22. (Без изменения). Требуемая краткость воздухообмена жилого дома na , 1/ч, согласно СНиП 2.08.01, устанавливается из расчета 3м3 /ч удаляемого воздуха на 1м2 жилых помещений, определяется по формуле:
na =0,35 (1/ч).
23. (Без изменения). Приведенный инфильтрационный (условный) коэффициент теплопередачи здания: Km inf =0,6 (Вт/(м2. 0 С)).
24. Общий коэффициент теплопередачи, Вт/(м2. 0 С), определяемый по формуле:
Km =Km tr +Km inf =1,29+0,6=1,89 (Вт/(м2. 0 С)).
Теплоэнергетические показатели
25. Общие теплопотери через ограждающую оболочку здания за отопительный период Qh , МДж:
Qh =0.0864. 1,89. 3303. 7802,56=3422324,26 (МДж).
26. (Без изменения). Удельные бытовые тепловыделения qint =10Вт/м2 .
27. (Без изменения). Бытовые теплопоступления в здание за отопительный период, МДж:
Qint =10445,34 (МДж).
28. (Без изменения). Теплопоступления в здание от солнечной радиации за отопительный период:
Qs =929300,87 (МДж).
29. Потребность в тепловой энергии на отопление здания за отопительный период, МДж:
Qh y =[Qh – (Qint +Qs ). У]. bh ,
Qh y =[3422324,26 –(10445,34 +929300,87). 0.8]. 1.11= 2964285,29 (МДж).
30. Удельный расход тепловой энергии на отопление здания qh des , кДж/(м2. 0 С. сут):
qh des =103. Qh y /Ah . Dd ,
qh des =2964285,29 ×103 /(18644×3303)=66,28 (кДж/(м2. 0 С. сут)).
При требуемом qh req =70кДж/(м2. 0 С. сут).
По принятым сопротивлениям теплопередаче определимся конструкциями ограждений и толщиной утеплителя стен, совмещенного покрытия и перекрытия 1-го этажа.
Характеристики материалов:
1 Цементно-известковый раствор d1 = 50 мм, l = 0,7 ВТ/мо К;
2 Утеплитель - плиты минераловатные d2 = х, l = 0, 06 ВТ/мо К;
3 Панель сборная ЖБ d3 = 510 мм, l = 1,92 ВТ/мо К;
4 Известково-песчаный раствор d4 = 20 мм, l = 0,81 ВТ/мо К.

Рис. 4.1- Схема стены
Так как для градусосуток Dd = 3303 R0 треб =1,91 м2 ×0 С/Вт, тогда :
R0
=![]()
[1,91 – (0,115 + 0,071 + 0,729 + 0,025 + 0,043)]×0,06 = x
x = 0,088 dут =0,088 м или 9 см
толщина стены 0,05+0,09+0,51+0,02= 0,67 м.
Для обеспечения требуемого по градусосуткам сопротивления теплопередаче совмещенного покрытия R0 тр = 1,63 м2 ×0 С/Вт определяем толщину утеплителя в многослойной конструкции покрытия (термическое сопротивление пароизоляции и рулонного ковра отнесены в запас), схема которого приведена на рисунке 4.2.

Рис. 4.2 – Схема покрытия
Условия эксплуатации А.
1. Железобетонная плита пустотного настила : плотность Y=2500 кг/м3 , коэффициент теплопроводности lА =1,92 Вт/(м0 С).
2. Утеплитель – пенобетон: плотность Y=300 кг/м3 , коэффициент теплопроводности lА =0,11 Вт/(м0 С).
3. Цементно – песчаный раствор: плотность Y=1800 кг/м3 , коэффициент теплопроводности lА =0,76 Вт/(м0 С).
R0 = Rв + Rж/б + Rутеп + Rраств + Rн = R0 треб ,
1/8,7 + 0,163 + dутеп /0,11 + 0,04/0,76 + 1/23 = 1,63 ,
откуда dутеп = 0,37 (м).
Для обеспечения требуемого по градусосуткам сопротивления теплопередаче R0 тр =2 м2 ×0 С/Вт перекрытия над неотапливаемым техническим подпольем без световых проёмов в стенах выше уровня земли, определимся конструкцией перекрытия (рис.4.3) и рассчитаем толщину утеплителя.

Рис. 4.3 – Схема перекрытия первого этажа.
Условия эксплуатации А.
1. Паркет дубовый : плотность Y= 700 кг/м3 , коэффициент теплопроводности lА =0,18 Вт/(м0 С).
2. Цементно–песчаный раствор: плотность Y=1800 кг/м3 , коэффициент теплопроводности lА =0,76 Вт/(м0 С).
3. Утеплитель – пенобетон : плотность Y= 300 кг/м3 ,коэффициент теплопроводности lА =0,11 Вт/(м0 С).
4. Железобетонная плита : плотность Y=2500 кг/м3 , коэффициент теплопроводности lА =1,92 Вт/(м0 С).
R0 = Rв + Rпаркета + Rраствор + Rутеп +Rж/б + Rн = R0 треб ,
1/8,7 + 0,015/0,18 + 0,02/0,76 + dутеп /0,11 + 0,163 + 1/23 = 2,
откуда dутеп = 0,31 (м).
10. Расчет естественного освещения при боковом источнике света
Для оценки условий освещения, создаваемых источником света, пользуются коэффициентом естественного освещения. Пользуемся графическим методом разработанным А.М.Данилюком.
Итоги расчетов сводим в таблицу.
К.Е.О.=(n1 *n2 /100*q+R*K)*r*r0 , где :
К.Е.О.- коэффициент естественной освещенности, находим по формуле,
n1 -количество световых лучей по вертикальной плоскости, определяем по графику I Данилюка,
n2 - количество световых лучей по горизонтальной плоскости, определяем по графику II Данилюка,
q - коэффициент, учитывающий неравномерную яркость облачного небосвода, определяется в зависимости от угла Q между линией рабочей плоскости и линией соединяющей исследуемую точку с оптическим центром светопроема,
R – коэффициент, учитывающий свет, отраженный от противостоящего здания, если оно имеется, R= n1 *n2 /100 где n1, n2 количество соответственно теневых лучей,
K - коэффициент, учитывающий относительную яркость противостоящего здания, принимаем по таблице СниП,
r- коэффициент, учитывающий повышение К.Е.О., при боковом освещении благодаря свету, отраженному от внутренних поверхностей и подстилающего слоя, прилегающему к зданию, зависит от параметров рассматриваемой комнаты,
r0 - общий коэффициент светопропускания, принимаем по таблице СниП.


| №п.п. | L | Q | q | n1 | Nno | n2 | r | ер | ен | |||
| 1 | 1,0 | 40 | 0,98 | 12 | 8 | 80 | 9,6 | 1,05 | 4,74 | удовл. | ||
| 2 | 2,0 | 31 | 0,88 | 7 | 14 | 58 | 4,06 | 1,1 | 1,89 | удовл. | ||
| 3 | 3,0 | 29 | 0,86 | 5 | 21 | 40 | 2 | 1,25 | 0,48 | 1,03 | 0,5 | удовл. |
| 4 | 4,0 | 20 | 0,72 | 2 | 28 | 34 | 0,68 | 1,6 | 0,38 | неудовл. | ||
| 5 | 5,0 | 18 | 0,7 | 2 | 34 | 26 | 0,52 | 1,9 | 0,33 | неудовл. |
ВЫВОД: в данной комнате по расчету необходимо применять комбинированное освещение, у стены противоположной оконному проему обязательно повесить светильники.
11. Расчет перекрытия на ударный шум
Расчет на ударный шум производим в соответствии со СНиП II-12-77 “Защита от шум”.
Определяем изоляцию от ударного шума междуэтажного перекрытия, состоящего из несущей железобетонной плиты толщиной 140мм (2400кг/м3), сплошного слоя древесноволокнистой плиты толщиной 50мм (250кг/м3), цементно-бетонной стяжки толщиной 20мм (1200кг/м3) и линолеумного покрытия толщиной 3мм (1100кг/м3).

Определяем значение поверхностных плотностей элементов перекрытия
m1 =2400*0.14=336кг/м2
m2 =1200*0.02+1100*0.003=27.3кг/м2
m3 =250*0.05=12.5кг/м2
для значения m1 строим частотную характеристику требуемого снижения приведенного уровня ударного шума.

Находим нагрузку на звукоизолирующий слой М=273+1500=1730Па
Где 273Па-постоянная нагрузка, 1500Па - временная нагрузка на перекрытие.
Динамический модуль упругости древесноволокнистой плиты б = 1.4*106 Па, статический модуль – E =3*105 Па.
Толщина упругой прокладки в сжатом состоянии
D=d0 *(1- М /E)=0.05*(1-1730*103 /3*105 )=0.0498м
Где d0 – толщина упругой прокладки в несжатом состоянии.
Находим К= б / D =1.4*106 /0.0498=2.81*108 Па – коэффициент жесткости упругого основания.
Определяем резонансную частоту колебаний на упругом основании
f0 = 0.05 ( К / m 2 ) 1/2 =0.05 *(2.81*108 /27.3)1/2 =160 Гц
Для построения расчетной частотной характеристики снижения приведенного ударного шума, при значении = m1 / m2 =336/27.3=12.3 используем следующую формулу;
L2 = 10lg(1.17+a2 *(a2 -1.84)), гдеа = f / f0
| Частота, Гц | Вычисленное Значение дБ |
Требуемое Значение дБ |
Отклонение дБ |
Сдвинутые Значения дБ |
Новые откло- нения |
| 1 | 2 | 3 | 4 | 5 | 6 |
| 100 | 0 | 0 | 0 | 6 | -6 |
| 125 | 0 | 0 | 0 | 6 | -6 |
| 160 | 0 | 0 | 0 | 6 | -6 |
| 200 | 0 | 4 | -4 | 10 | -6 |
| 250 | 4 | 8 | -4 | 14 | -6 |
| 320 | 10 | 12 | -2 | 18 | -8 |
| 400 | 15 | 14 | 1 | 20 | -5 |
| 500 | 19 | 16 | 3 | 22 | -1 |
| 640 | 24 | 18 | 6 | 24 | 0 |
| 800 | 27 | 20 | 7 | 26 | 1 |
| 1000 | 30 | 22 | 8 | 28 | 2 |
| 1250 | 32 | 24 | 8 | 30 | 2 |
| 1600 | 34 | 26 | 8 | 32 | 2 |
| 2000 | 36 | 28 | 8 | 34 | 2 |
| 2500 | 38 | 30 | 8 | 36 | 2 |
| 3200 | 40 | 32 | 8 | 38 | 2 |
| 55 | -31 |
Сумма отклонений составляет 55 дБ. Среднее отклонение составляет 55/16=3.44 , что более 2дБ, смещаем нормативную кривую вверх на 6 дБ. Среднее отклонение составляет -31/16 = 1.98 < 2 дБ, таким образом, показатель изоляции ударного шума равен +6 дБ, что обеспечивает нормативные требования звукоизоляции для жилых помещений +3 дБ.
Находим индекс приведенного уровня ударного шума
Ly = Lyo - дLy =70-6 = 64 дБ < 67 дБ, что составляет норму для междуэтажных перекрытий.
Ly – индекс приведенного уровня ударного шума под перекрытием
Lyo - индекс приведенного уровня ударного шума плиты перекрытия
д Ly - снижение приведенного уровня ударного шума звукоизолирующим слоем
Ly н - нормативный индекс приведенного уровня ударного шума принимаемый по таблице СНиПа.
ВЫВОД:
Принимаемая конструкция пола имеет достаточный индекс изоляции от ударного шума.
ЖБК. РАСЧЕТНО-КОНСТРУКТИВНАЯ ЧАСТЬ
1. Расчет плиты перекрытия и внутренней несущей беспроемной стены
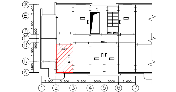
Плита имеет параметры 6,0х3,4м. Оперта на несущие стены по трем сторонам.
Внутренняя несущая беспроемная стена имеет параметры: высота 49,3 м, ширина 6,3 м., толщина 0,18 м. Жестко защемлена в фундамент.
Конструктивная схема перекрытия

Конструктивная схема стены

Производим расчет плиты перекрытия:
2 Сборная плита перекрытия сплошного сечения
Исходные данные:
Плита толщиной 140мм в конструктивной ячейке 6,0´3,4м сборного здания с внутренними панельными стенами и навесными фасадными панелями.
Расчетная схема плиты – плита защемлена по трем сторонам и не имеет опор по четвертой стороне.
Расчетные пролеты :l 1 = 6000-140=5860мм; l 2 =3400-140/2=3310мм, где 140мм – толщина стен .
Соотношение сторон плиты l 1 / l 2 =5860/3310=1,8 > 1,5 – плита работает на изгиб в одном направлении.

Материалы для плиты:
Бетон
Бетон тяжелый класса В20 , Rbn
= Rb
,
ser
= 15МПа, Rb
,
tn
= Rb
,
ser
= 1,4МПа , Rb
=11,5 МПа, Rbt
=0,9 МПа, коэффициент условия работы бетона
=0.9
Плита подвергается тепловой обработке при атмосферном давлении. Начальный модуль упругости Еb =24*103 МПа. К трещиностойкости плиты предъявляются требования 3-й категории. Технология изготовления плиты – агрегатно – поточная. Натяжение напрягаемой арматуры осуществляется электротермическим способом.
Арматура
- преднапрягаемая: стержни периодического профиля класса A-IVRs = 510МПа, Rsn=Rs,ser=590МПа , Es =19*104 МПа.
- ненапрягаемая : проволочная арматура класса Вр-IRs=365МПа, Rsw = 265МПа, Es =17*104 МПа.
Определение нагрузок и усилий в плите:
Нагрузка на 1 м2 перекрытия в кН
| Вид нагрузки | qнор , кН/м2 | g f | qрас , кН/м2 |
1. Линолеум d=3 мм r= 1800 кг/м3 |
0,063 | 1,3 | 0,082 |
2. Цементно – песчаная стяжка d=20 мм r= 1800 кг/м3 |
0,63 | 1,3 | 0,82 |
3. Древесно – волокнистая плита d=50 мм r= 550 кг/м3 |
0,050 | 1,3 | 0,065 |
4. Железобетонная плита d=140 мм r= 2500 кг/м3 |
3,5 | 1,1 | 3,85 |
| Итого постоянная q | 4,243 | 4,816 | |
| Временная нагрузка v | 1,500 | 1,3 | 1,950 |
| в том числе длительная vL | 0,300 | 1,3 | 0,390 |
| Кратковременная vsh | 1,200 | 1,3 | 1,560 |
| Полная нагрузка q+v | 5,743 | 6,616 |
Расчет плиты производим в машинном варианте, а также производим расчет места, где плита работает по балочной схеме ,т.е. у края не опертого, вручную
Результаты машинного расчета:
Ручной расчет:
Расчетная схема

Расчетные нагрузки с учетом коэффициента надежности по назначению
=0.95
:
Ширина расчетной полосы 1,0м.
=0,95´4,816=4,575 кН/м
=0,95´4,243=4,03кН/м
=0,95´6,616=6,285кН/м
=0,95´5,743=5,456кН/м
=0,95´4,543=4,316кН/м
Расчет плиты по предельным состояниям первой группы
Расчетные пролеты:l 2 =3400-140/2=3310мм, где 140мм – толщина опорной стены.
Поперечное конструктивное сечение плиты заменяем эквивалентным прямоугольным сечением: h =14см , h о = 11см , b =100см.
Плита рассчитывается как защемленная балка, загруженная равномерно – распределенной нагрузкой.
Усилия от расчетной полной нагрузки:
- изгибающий момент на опорах
-
5,738 кН*м
- изгибающий момент в середине пролета
- ![]()
2,869 кН*м
- поперечная сила в опорах
10,402 кН

Расчетным моментом принимаем наибольший, т.е. момент на опорах и далее будем искать только расчетные величины.
Усилия от нормативной нагрузки:
- изгибающий момент на опорах
4,981 кН*м
Усилия от постоянной и длительной нагрузки:
- изгибающий момент на опорах
3,94 кН*м
Расчет по прочности сечения, нормального к продольной оси плиты
При расчете по прочности расчетное поперечное сечение плиты прямоугольное.
0,0458
При ![]()
Граничная относительная высота сжатой зоны определяется по формуле:

где ![]()
Мпа при ![]()
Величина
должна удовлетворять условию:
![]()
При электротермическом способе натяжения
МПа
где l – длина натягиваемого стержня с учетом закрепления его на упоры.
Условие при
МПа удовлетворяется.
Значение
вводится в расчет с коэффициентом точности натяжения арматуры
, определяемым по формуле: ![]()
По формуле при электротермическом способе натяжения величина

Число напрягаемых стержней принимаем равным
. Тогда

При благоприятном влиянии предварительного напряжения ![]()
Предварительное напряжение с учетом точности натяжения
МПа
Потери от начального предварительного напряжения
![]()
где
принимается при коэффициенте
.
При электротермическом способе эти потери равны нулю, поэтому
МПа
МПа

Так как
, то площадь сечения растянутой арматуры определяется по формуле:
![]()
где
- коэффициент условий работы арматуры, учитывающий сопротивление напрягаемой арматуры выше условного предела текучести.
По формуле:

Для арматуры класса А-IV![]()
Поскольку
принимаем ![]()
Тогда
см2
.
По сортаменту принимаем:
2 Ø10 А-IVАS =1,57 см2
Мu = 1,57*1,2*510*102 *11*0,915 = 6,04*105 МПа
Мu = 6,04*105 МПа > Мact = 5,738*105 МПа
Расстояние между стержнями принимаем 200мм.
Расчет по прочности сечения, наклонного к продольной оси плиты
Поперечная сила Q =10,4кН
Предварительно приопорные участки плиты заармируем в соответствии с конструктивными требованиями. Для этого с каждой стороны плиты устанавливают по четыре каркаса длиной l
= 0,85м с поперечными стержнями Ø 4Вр-I, шаг которых s = 6 см (
или
).
По формуле проверяем условие обеспечения прочности по наклонной полосе между наклонными трещинами:
![]()
Коэффициент, учитывающий влияние хомутов, ![]()
![]()
Коэффициент поперечного армирования
![]()
см2
( 4 Ø 4Вр-I)
![]()
![]()
Коэффициент ![]()
где
для тяжелого бетона.
кН
Следовательно, размеры поперечного сечения плиты достаточны для восприятия активной нагрузки.
Проверяем необходимость постановки расчетной поперечной арматуры из условия:
![]()
Коэффициент
для тяжелого бетона.
Коэффициент, учитывающий влияние сжатых полок в двутавровом сечении элементов. ![]()
Коэффициент, учитывающий влияние продольной силы обжатия
![]()
где Р2
принимается с учетом коэффициента
0,865
![]()
Тогда
< 1,5
![]()
Следовательно, условие удовлетворяется, арматура ставится по конструктивным требованиям, (Хомуты ставим с шагом 6см, Ø4 Вр-I).
Армирование плиты показано на листе.
Расчет плиты по предельным состояниям второй группы
Геометрические характеристики приведенного сечения.
Приведенная высота сеченияh 0 = 11см , ширина сеченияb = 100см ,
высота сеченияh = 14см
При
площадь приведенного сечения
см2
Статический момент приведенного сечения относительно нижней грани
см3
Расстояние от нижней грани до центра тяжести приведенного сечения
см
Момент инерции приведенного сечения относительно его центра тяжести
см4
Момент сопротивления приведенного сечения по нижней и по верхней зоне.
см3
Расстояние от центра тяжести приведенного сечения до ядровой точки, наиболее удаленной от растянутой зоны, согласно формуле:
![]()
Максимальное напряжение в сжатом бетоне от внешней нагрузки и усилия предварительного напряжения
![]()
где М- изгибающий момент от полной нормативной нагрузки,
М = 4,98 кН*м = 498100 Н*см
Р2
– усилие обжатия с учетом всех потерь ![]()
Н
эксцентриситет усилия обжатия
см
Н/см2
принимаем ![]()
Расстояние от центра тяжести приведенного сечения до ядровой точки, наименее удаленной от растянутой зоны
=2,33
Упругопластический момент сопротивления по растянутой зоне, определяется по формуле:
- для симметричного сечения
см3
= 4932 см3
Потери предварительного напряжения
При расчете потерь коэффициент точности натяжения арматуры ![]()
Первые потери от релаксации напряжений в арматуре при электротермическом способе натяжения стержневой арматуры:
=0,03*463=13,9 МПа
Потери от температурного перепада между натянутой арматурой и упорами
, так как при агрегатно-поточной технологии форма с упорами нагревается вместе с изделием.
Потери от деформации анкеров и формы при электротермическом способе равны 0
и ![]()
Потери от трения арматуры об огибающие приспособления ,поскольку напрягаемая арматура не отгибается ![]()
Потери от быстронарастающей ползучести определяются в зависимости от соотношения ![]()
По таблице СНиП
. Из последнего условия устанавливается передаточная прочность ![]()
Усилие обжатия с учетом потерь
,,,
вычисляется по формуле
1,57 *(463-13,9)*100 = 44012 Н
Напряжение в бетоне при обжатиии
Н/см2
= 0,85 МПа
Передаточная прочность бетона
МПа
Согласно требованиям СНиП
МПа и
МПа
Окончательно принимаем
МПа
Тогда : ![]()
Условие выполняется.
Сжимающее напряжение в бетоне на уровне центра тяжести напрягаемой арматуры от усилия обжатия
( без учета изгибающего момента от собственной массы плиты).
![]()
Так как
![]()
то потери от быстронатекающей ползучести
![]()
![]()
Первые потери
13,9 + 2,04 = 15,94 МПа
Вторые потери определяются по формулам :
Потери от усадки бетона
МПа
Потери от ползучести бетона
вычисляются в зависимости от соотношения
, где
находится с учетом первых потерь .
![]()
![]()
При ![]()
МПа
Вторые потери
МПа
Полные потери
МПа
Так как
МПа < 100МПа, окончательно принимаем
МПа.
Р2 = 1,57 * (463 - 100 ) * 100 = 35570 Н
Расчет по образованию трещин
Для элементов, к трещиностойкости которых предъявляются требования 3-категории, коэффициент надежности по нагрузке
. Расчет производится из условия: ![]()
Нормативный момент от полной нагрузки М = 4,981 кН*м
Момент образования трещин
по способу ядровых моментов определяется по формуле :
![]()
где ядровый момент усилия обжатия
35570*0,865*(4,0+2,33) = 51382,6 Н*см = 0,51 кН*м
Так как
4,981кН*м <
4932*106
*1,4*103
+0,51 = 7,41 кН*м , в растянутой зоне от эксплуатационных нагрузок трещины не образуются.
Трещины не образуются также и в верхней зоне плиты в стадии ее изготовления.
Расчет прогиба плиты
Предельно допустимый прогиб для рассчитываемой плиты с учетом эстетических требований согласно таблице СНиП.
см.
Определение прогибов производится только на действие постоянных и длительных нагрузок при коэффициенте надежности по нагрузке
по формуле :
,
где для свободно – опертой балки коэффициент
равен :
· 5/48 при равномерно распределенной нагрузке
· 1/8 при двух равных моментах по концам балки от стлы обжатия.
Полная кривизна плиты на участках без трещин в растянутой зоне определяется по формулам СНиП
Кривизна от постоянной и длительной нагрузки
1/см
где
0,85 – коэффициент , учитывающий влияние кратковременной ползучести тяжелого бетона,
2 - – коэффициент , учитывающий влияние длительной ползучести тяжелого бетона при влажности больше 40%
Кривизна от кратковременного выгиба при действии усилия предварительного обжатия с учетом ![]()
1/см
Поскольку напряжения обжатия бетона верхнего волокна
Н/см2
,
т.е. верхнее волокно растянуто, то в формуле при вычислении кривизны
, обусловленной выгибом плиты вследствие усадки и ползучести бетона от усилия предварительного обжатия, принимаем относительные деформации крайнего сжатого волокна
. Тогда согласно формулам СНиП
1/см
где
2,04+42,14 = 44,18 МПа
Прогиб от постоянной и длительной нагрузок
f = [5/48*1,7*10-5 – 1/8*(0,26 + 0,02)*10-5 ]*3312 = 0,23см
f =0,23см. < fu = 1,7см.
т.е. прогиб не превышает допустимую величину.
Прочность сечения обеспечена.
Производим расчет сборной стены:
3. Сборная внутренняя несущая беспроемная стена
А. Сбор вертикальных нагрузок
1. Нагрузка на м2 конструкции перекрытия в жилых помещениях
| Вид нагрузки | qнор , кН/м2 | g f | qрас , кН/м2 |
1. Линолеум d=3 мм r= 1800 кг/м3 |
0,063 | 1,3 | 0,082 |
2. Цементно – песчаная стяжка d=20 мм r= 1800 кг/м3 |
0,63 | 1,3 | 0,82 |
3. Древесно – волокнистая плита d=50 мм r= 550 кг/м3 |
0,050 | 1,3 | 0,065 |
4. Железобетонная плита d=140 мм r= 2500 кг/м3 |
3,5 | 1,1 | 3,85 |
| Итого постоянная q | 4,243 | 4,816 | |
| Временная нагрузка v | 1,500 | 1,3 | 1,950 |
| в том числе длительная vL | 0,300 | 1,3 | 0,390 |
| Кратковременная vsh | 1,200 | 1,3 | 1,560 |
| Полная нагрузка q+v | 5,743 | 6,616 |
2. Нагрузка на 1 м2 покрытия
| Вид нагрузки | qнор , кН/м2 | g f |
qрас , кН/м2 | ||||
| 1 | 2 | 3 | 4 | ||||
| 1. Гидроизоляц.ковер 4 слоя | 0,19 | 1,3 | 0,247 | ||||
| 2. Армированная цементная стяжка t=100 мм r= 2200 кг/м3 | 0,22 | 1,3 | 0,286 | ||||
3. Пеностекло d=120 мм r= 300 кг/м3 |
0,36 | 1,3 | 0,468 | ||||
| 4. Пароизоляция 1 слой | 0,05 | 1,3 | 0,065 | ||||
5. Железобетонная плита d=140 мм r= 2500 кг/м3 |
3,5 | 1,1 | 3,85 | ||||
| Итого постоянная q | 4,32 | 4,916 | |||||
| 1 | 2 | 3 | 4 | ||||
| Временная | |||||||
| Снеговая полная S | 1 | 1,4 | 1,4 | ||||
| длительная | 0,3 | 1,4 | 0,42 | ||||
| Итого постоянная q + снеговая S | 5,32 | 6,316 | |||||
3. Нагрузка от собственного веса стены на 1 пог.м ее длины
| Вид нагрузки | qнор , кН/м2 | g f | qрас , кН/м2 |
Железобетонная стена Н=2800 мм r= 2500 кг/м3 |
79,4 | 1,1 | 87,32 |
Суммируем все виды нагрузок на стену при грузовой площади от стены
Определяем вертикальную нагрузку, действующую на стену:
Грузовая площадь: А = 10,2 * 3,6 = 36,72 м.кв.
Находим вертикальные нагрузки на рассматриваемую стену.
Nр(0) = 22,08 кН
Nн(0) = 19,15 кН
Nр(49,3) = 0,95 х 16 х 25,8 +22,08 +87,32 х 18 =2006,65 кН
Nн(49,3) = 0,95 х 16 х 22,5 + 19,15 +79,4 х 18 = 1808,35 кН
Б. Сбор горизонтальной нагрузки. (ветровая)
Согласно карте 3 СНиП 2.01.07-85 «Строительная климатогия и геофизика» город Ейск расположен в первом районе по давлению ветра. Нормативное значение ветрового давления Wс = 0,23 кПа.
Нормативное давление ветра на высоте Z над поверхностью земли для зданий высотой H > 40 м с равномерно-распределенной массой и постоянной по высоте жесткостью несущей системы равно:
wn = w0 ´×С( k +1,4 ksup ´ Z/H ´×xzn) ; [кПа]
где w0 - нормативное значение ветрового давления на 1 м2 поверхности
фасада. Для города Ейска w0 = 0,23 кН/м2 (кПа);
С - аэродинамический коэфициент, равный 1,4
k - коэффициент возрастания напора по высоте здания;
ksup -коэффициент возрастания скоростного напора для вершины здания ksup =1,2;
x - коэффициент пульсации скоростного напора на уровне Н,
принимаемый для здания с Н = 49,3м и x = 0,757;
z - коэффициент динамичности, зависящий от параметра e,
который определяется по формуле:
e=Ögf ´w0 / (940 ´ f1 )
gf = 1,4 , коэффициент надежности по ветровой нагрузке
f1 - первая частота собственных колебаний, Гц
f1 = 1/T1 = 1/1,0533 = 0,966
T1 - период первой формы собственных колебаний.
По приближенной формуле:
Т1 = 0,021Н = 0, 021´ 49,3 =1,0533
e = (1,0533 / 940) х Ö1,4 х 0,23 х 1000 = 0,020
Высота над поверхностью земли; м |
5 | 10 | 20 | 40 | 49,3 |
| K | 0,5 | 0,65 | 0,85 | 1,1 | 1,2 |
По графику рис.2 СНиП находим значение z = 1,51.
n - коэффициент коррекции пульсации ветра, при
L = 52,8 м;
Н = 49,3 м;
n = 0,641.
Высота над поверхностью земли; Z , м |
5 | 10 | 20 | 40 | 49,3 |
| Z/H | 0,101 | 0,203 | 0,406 | 0,811 | 1,000 |
1,4 ksup ´Z/H ´x´zn = 1,4 ´1,2 ´ Z / H ´0,641 ´1,51´ 0,77 = 1,252 Z / H
wn (Z = 5) = 0,23 ´1,4(0,5+1,252 ´0,101) = 0,202 кН/м2
wn (Z =10) = 0,23 ´1,4(0,65+1,252 ´0,203) = 0,291 кН/м2
wn (Z = 20) = 0,23 ´1,4(0,85+1,252 ´0,406) = 0,437 кН/м2
wn (Z = 40) = 0,23 ´1,4(1,1+1,252 ´0,811) = 0,717 кН/м2
wn (Z = 49,3) = 0,23 ´1,4(1,2+1,252 ´1) = 0,790 кН/м2
Полученную эпюру, ограниченную ломаной линией, приводим к эквивалентной трапециевидной. Для этого сначала определяем ее площадь А, статический момент Sи положение центра тяжести С криволинейной эпюры, а затем находим параметры трапециевидной эпюры.
Эпюра и расчетная схема приложена ниже

А = ( 0,79 + 0,717) ´ 9,3 / 2+ ( 0,717 + 0,437 ) ´ 20 / 2 +
+ ( 0,437 + 0,291 ) ´ 10 / 2 + ( 0,291 + 0,202 ) ´ 5 / 2 +
+ 0,202 ´ 5 = 24,431 [кПа ´ м]
S = 0,717 х 9,3 ´ 44,65 + ( 0,79 – 0,717 ) х 9,3 ( 40 + ( 2 / 3 ) х 9,3 ) / 2 + 0,437 х 20 х 30 + ( 0,717 – 0,437 ) х 20 ´ ( 20 + ( 2 / 3 ) х 20 ) + 0,291 х 10 х 15 + ( 0,437 – 0,291 ) х 10 ( 10 + ( 2 / 3 ) х 10 ) х 10 + 0,202 х 5 х 7,5 + ( 0,291 – 0,202 ) х 5 х ( 5 + ( 2 / 3 ) х 5 ) / 2 + 0,202 х 5 х 2,5 = 736,715 [кПа´м]
C = S / A = 736,715 / 24,431 = 30,155м
Параметры эквивалентной трапецевидной эпюры нормативного ветрового давления на здание a, wn , awn будут равны:
a = (2H-3C) / (3C-H) = ( 2 ´ 49,3 - 3 ´ 30,155 ) / ( 3 ´ 30,155 – 49,3) = 0,197
Значение ветровой нагрузки на уровне верха здания:
wn = 2A / (1+a)H = 2 х 24,431 / ( 1+0,197 ) х 49,3 = 0,828 кН/м2
Значение ветровой нагрузки на уровне поверхности земли:
awn = 0,197 ´ 0,828 = 0,163 кН/м2
Нормативная погонная по высоте здания ветровая нагрузка с учетом коэффициента надежности по назначению здания gn = 0,95 и при длине наветренного фасада L=3,6 м:
qn = 0,828 ´ 3,6 ´ 0,95 = 2,83 кН/м
aqn = 0,163 ´ 3,6 ´ 0,95 = 0,56 кН/м
Расчетная ветровая нагрузка при коэффициенте надежности по нагрузке gf = 1,4:
q = 2,83 ´ 1,4 = 3,962 кН/м
aq = 0,56 ´ 1,4 = 0,78 кН/м
Определяем усилия: При действии на здание горизонтальной нагрузки, на стену дополнительно внецентренно–приложенной вертикальной нагрузки в ней возникают изгибающие моменты и силы поперечные и нормальные.
Находим полный изгибающий момент:
q(x) = q ( 1 + ( a - 1 ) x / H)
Q(x) = - q x ( 1 + ( a - 1 ) x / 2 H )
Mh(x) = - q x2 ( 1 + ( a - 1 ) x / 3 H ) / 2
| x | По расчетной нагрузке | По нормативной нагрузке | ||||
| q(x),кН/м | Mh (x),кН*м | Q(x),кН | q(x),кН/м | Mh (x),кН*м | Q(x),кН | |
| 0 | -3.96 | 0 | 0 | -2.83 | 0 | 0 |
| 49.3 | -0.784 | 686.93 | 22.47 | -0.56 | 490.66 | 16.05 |
Определение прогиба здания.
Расчет многоэтажного здания на ветровую нагрузку предусматривает ограничение величины прогиба:
![]()
fsup < (1/500)*H = 49,3/400 = 0,0986м
Находим изгибную жесткость : Bu = 0,85*γn *Eb *Ii
Для стен выбираем бетон В30 : Еb = 29*103 МПа.

γn - коэффициент учитывающий податливость горизонтальных и вертикальных швов.
δn –податливость раствора шва, при длительном сжатии равна 1,8.
hfl = 2,8м - высота этажа.
Bu = 0,85*γn *Eb *Ii = 0,85*0,982*29*106 *0,18*6,33 /12 = 90,77*106 кН/м2
fsup = - (4α + 11)*qн *Н4 /120*Вu = - (4*0,16 + 11)* - 43,53*49,34 /120*90,77*106 = 0,0275м
fsup = 0,0275м < (1/500)*H = 49,3/400 = 0,0986м - жесткость здания обеспечена.
Определение нормальных напряжений
Считаем нашу стену внецентренно – сжатой и поэтому нормальные напряжения находим по формуле:
![]()
А =6,3*0,18 = 1,134 м2
W = bh2 /6 = 0,18*6,32 /6 = 1,1907 м3
![]()
т.е. стенка находится в сжатом состоянии.
Подбор сечения и армирования
На первом этапе требуемое количество арматуры для элементов стены подбирается с учетом указаний по конструированию стен:
· Стена армируется двумя расположенными вдоль его лицевых поверхностей сетками, объединенными в единый арматурный блок поперечными балочными каркасами с расстоянием между ними не более 1000 мм, размер ячеек сеток 200´200 мм;
· Минимальный процент армирования горизонтального сечения стены должен составлять 0,2~0,3% ;
· Площадь сечения горизонтальной распределенной арматуры у каждой грани стены должна составлять не менее 0,3 см2 на 1 м вертикального сечения.
· В качестве рабочей арматуры следует применять арматуру класса А-III , Вр-I , а в качестве конструктивной А –I , Вр-I.
· Диаметр арматуры сеток и каркасов назначается не менее 5мм.
Армируем стену в соответствии с эти требованиями: Две параллельные сетки с ячейками 200х200мм и поперечными каркасами продольные стержни которых Ø6 А-III , а поперечные - Ø5 Вр –I.
Материал стенки:
Бетон
Бетон тяжелый класса В30, Rbn
= Rb
,
ser
= 22МПа, Rb
,
tn
= Rb
,
ser
= 1,8МПа , Rb
=17 МПа, Rbt
=1,2 МПа, коэффициент условия работы бетона
=
1,1
Плита подвергается тепловой обработке при атмосферном давлении. Начальный модуль упругости Еb =29*103 МПа. К трещиностойкости плиты предъявляются требования 3-й категории. Технология изготовления плиты – агрегатно – поточная.
Арматура
стержни периодического профиля класса A-IIIRs = 355МПа, Rsw = 285МПа, Es =20*104 МПа.
Приведенная призменная прочность бетона:
Rb , red = gb 2 ´Rb + m´Rs
где m = As /A - коэффициент армирования конструкции;
As - площадь продольной арматуры в стене;
A - площадь сечения бетона;
gbi - коэффициент условий работы (gb2 = 1,1);
As = ( 53*2 Æ 6 ) = 106 х 0,283 = 30 см2
0,002*18*630 = 22,7 см2 минимальная площадь армирования.
30 см2 > 22,7 см2
А = 18*630 = 11340 см2
m = 30/11340 = 0,00265 > 0,002
Rbret = 1,1*17+0,00265*355 = 18,7+0,941 = 19,64 МПа.
Проверка несущей способности.
Проверка расчетных усилий в столбе в уровне подвала Х =49,3м.
Расчетные усилия : M1 = 343,47 кН*м N1 = 2006,65 кН Q1 = 22,47 кН
Размеры сечения : h=6,3м, b = 0,18м.
Проверка несущей способности внецентренно сжатого бетонного элемента производят из условия.
![]()
где α = 1 – коэффициент принимаемый для тяжелого бетона,
γb 9 = 0,9 коэффициент условий работы для бетонных конструкций,
Аbi – площадь сжатой зоны бетона столба, определяемой при условии что ее центр тяжести совпадает с точкой равнодействующей внешних сил.
2006,65 < 0,9*1*19,64*1,134 = 20,04*103 = 20044 кН.
Прочность сечения обеспечена.
СТРОИТЕЛЬНО – ТЕХНОЛОГИЧЕСКАЯ И ЭКОНОМИЧЕСКАЯ ЧАСТЬ
Введение
Большое значение в строительстве имеет правильная организация строительного производства. Применение сетевых и линейных моделей календарного планирования, в том числе и в данном проекте, обеспечивает возможность оптимизации календарного плана, а так же позволяет достаточно точно описать принятую технологию строительства, взаимосвязь между работами и отдельными исполнителями, выполнение нормативного срока с максимально возможным совмещением работ на объекте.
Календарное планирование строительства объекта в виде линейного или сетевого графика предназначено для определения последовательности и сроков выполнения общестроительных, специальных и монтажных работ, осуществляемых при возведении объекта. Эти сроки устанавливают в результате рациональной увязки сроков выполнения отдельных видов работ, учета состава и количества основных ресурсов, в первую очередь рабочих бригад и ведущих механизмов, а также специфических условий района строительства, отдельной площадки и ряда других существенных факторов.
По календарному плану рассчитывают во времени потребность в трудовых и материально-технических ресурсах, а также сроки поставок всех видов оборудования. Сроки работ используют в качестве отправных в более детальных плановых документах, например, в недельно-суточных графиках и сменных заданиях.
Не меньшее значение для производительной работы имеет организация поточных методов работ. Применение поточного истода позволяет использовать специализированные бригады рабочих заданного профессионального состава, оснащение поставленным парком машин. Поточный метод позволяет обеспечивать планомерный, ритмичный выпуск готовой строительной продукции на основе непрерывной и равномерной работы трудовых коллективов (бригад, потоков) неизменного состава, снабженных своевременной и комплексной поставкой всех необходимых материально-технических ресурсов.
Использование поточных методов является естественной организационной формой выполнения СМР силами постоянно действующих, стабильных по составу и численности работающих строительных организаций.
В составе дипломного проекта разрабатываются в строгой последовательности все указанные ниже разделы. Разделы, отражающие особенности возведения зданий и сооружений в сборном железобетоне, описываются более подробно.
Основой для проектирования производства работ должны быть индустриальные методы их выполнения, комплексная механизация и поточность строительных процессов, применение новых технологий, конструкций и материалов.
Согласно СНиП 3.01.01-85, в состав ППР на выполнение отдельных видов работ входят:
- технологические карты производства работ по монтажу сборного железобетона и схемы операционного контроля качества, данные о потребности в основных материалах, полуфабрикатах, конструкциях и изделиях, а также используемых машинах, приспособлениях и оснастке;
- календарный план производства работ;
- строительный генеральный план объекта;
- пояснительная записка с необходимыми расчетами, обоснованиями и технико-экономическими показателями.
1. Условия осуществления строительства:
· Город строительства - Ейск (застройка пустыря в 200м от существующей постройки – 16 этажного дома ).
· Календарные сроки начала работ - 1.03.08 (1 марта 2008 года.)
· Нормативные сроки строительства - 12 месяцев.
· Поставку сборного железобетона производим с заводов Ж.Б.И., находящихся в 20 км от строительной площадки.
· Доставка грузов производится со среднее расстояние 20 км автомобильным транспортом со средней скоростью 50 км/ч.
· Минимальный предполагаемый запас строительных материалов – 3 дня.
· Источник водоснабжения, электроснабжения и других ресурсов - городские коммуникационные сети, ранее протянутых в новый микрорайон.
· Временные здания и сооружения - инвентарные сооружения контейнерного типа.
2. Ведомость объёмов и трудозатрат общестроительных работ
А. Определение примерной стоимости общестроительных работ.
Рассматриваемое многоэтажное здание в сборном железобетоне.
Высота здания 50,4 м, ширина 14,4 м, длина 52,8 м.
Объем здания – 50,4*14,4*52,8 = 38321 м3.
Средняя стоимость общестроительных работ с учетом накладных расходов и плановых накоплений на м3 здания составит 2100 руб.
Стоимость всего здания составит примерно:
38321*2100 = 80474100 руб.
Б. Примерная выработка и трудоемкость.
Для данного здания примерная выработка составит 3700 руб.
Ведущими технико – экономическими показателями являются: сметная стоимость, выработка и трудоемкость.
Стоимость/выработка = трудоемкость.
Примерная трудоемкость = 80474100/3700 = 21750(чел.–дн.)
3. Спецификация изделий заводского изготовления
м3
4. Ведомость объемов и трудоемкости работ


5. Расчетная сметная стоимость и трудоемкость
Определяем сметную стоимость и трудоемкость с учетом коэффициента пересчета стоимости из 2001 г в 2008 г.
Далее производим оценку полученных результатов и делаем соответствующую корректировку.
6. Оценка полученных результатов
Выводы:
· Полученная в результате прямых расчетов сметная стоимость примерно равна, рассчитанной на 1м3.
· Средняя выработка на общестроительные работы для данного типа здания должна быть в пределах 3000….3700. Полученный результат завышен и нуждается в корректировке.
· Трудоемкость по результатам расчета занижена. Производим проверку объемов.
Оптимальная трудоемкость составит 78345472 / 3700 = 21251 чел. - дни
Реальная трудоемкость составляет 9082,1чел.-дней,
разница 21251 – 9082,1 = 12540чел.-дней - относим к неучтенным работам.
12540 / 21251 = 0,58 > 0,1 процент неучтенных работ превышает допустимого значения, делаем соответствующую корректировку трудоемкости.
Корректировка трудоемкости: Распределяем трудоемкость из условий
· На неучтенные работы должно приходиться 10%от всей трудоемкости.
· Остальную трудоемкость распределяем по разделам, так чтобы выработка была в пределах допустимой.

Также помимо итоговой ведомости трудоемкости основных работ составляем итоговую ведомость трудоемкости специальных работ.
Итоговая ведомость трудоемкости специальных работ

Мы получили все необходимые показатели для составления календарного плана выполнения работ.
7. Ведомость потребности в основных материалах и полуфабрикатах
Ведомость составляется по ГЭСН
| №п.п | Наименование возводимых конструкций | Ед. Изм. |
Объем работ |
Пункт ГЭСН | Наименование материалов и полуфабрикатов | Ед. Изм |
Норма.на ед. изм. | Потре-бное кол-во | ||||||||
| 1 | 2 | 3 | 4 | 5 | 6 | 7 | 8 | 9 | ||||||||
| 1. | Плиты перекрытия и покрытия площадью до 15м2 |
100 шт. | 3,96 | 27.1 | Раствор цементный 150 Электроды Э-42 |
м3 т |
2,85 0,01 |
11,29 0,04 |
||||||||
| 2. | То же, площадью до 20м2 | -//- | 3,6 | -//- | Раствор цементный 150 Электроды Э-42 |
м3 т |
4,14 0,01 |
14,90 0,04 |
||||||||
| 3. | Лестничные площадки | -//- | 0,72 | 28 |
Р-р цемент.150 Электроды Э-42 |
м3 т |
0,76 0,01 |
0,55 0,007 |
||||||||
| 4. | Лестничные марши | -//- | 0,72 | -//- | Р-р цемент. 150 Электроды Э-42 |
м3 т |
1,16 0,02 |
0,84 0,014 |
||||||||
| 5. | Цокольные панели стен площадью до 12м2 | -//- | 0,24 | 30.1 | Бетон М200 Р-р цемент. 150 |
м3 м3 |
5,1 3,27 |
1,22 0,78 |
||||||||
| 1 | 2 | 3 | 4 | 5 | 6 | 7 | 8 | 9 | ||||||||
| 6. | То же, площадью до 20м2 | -//- | 0,6 | -//- | Бетон М200 Р-р цемент. 150 |
м3 м3 |
5,58 5,03 |
3,35 3,02 |
||||||||
| 7. | Наружные стеновые панели площадью до 15м2 | -//- | 2,0 | -//- | Бетон М200 Р-р цемент. 150Клей-мастика КН-3 Воздухозащ. лента |
м3 м3 т м2 |
5,58 5,03 0,03 85 |
11,16 10,06 0,06 170 |
||||||||
| 8. | То же, площадью до 25м2 | -//- | 3,02 | -//- | Бетон М200 Р-р цемент. 150Клей-мастика КН-3 Воздухозащ. лента |
м3 м3 т м2 |
7,2 3,69 0,03 161 |
21,74 11,14 0,09 486,2 |
||||||||
| 9. | Внутренние стеновые панели площадью до 15м2 | -//- | 3,7 | 30.2 | Р-р цемент. 150 Пакля смоляная |
м3 кг |
1,02 199 |
3,77 736,3 |
||||||||
| 10. | То же, площадью до 25м2 | -//- | 5,4 | -//- | Р-р цемент. 150 Пакля смоляная |
м3 кг |
2,15 205 |
11,61 758,5 |
||||||||
| 11. | Плиты лоджий | -//- | 0,64 | 32 | Р-р цемент. 150 Электроды Э-42 |
м3 т |
3,11 0,03 |
1,99 0,019 |
||||||||
| 12. | Плиты балкона | -//- | 0,64 | -//- | Р-р цемент. 150 Электроды Э-42 |
м3 т |
2,27 0,01 |
1,45 0,006 |
||||||||
| 13. | Разделительные стенки | -//- | 0,80 | -//- | Р-р цемент. 150 Электроды Э-42 |
м3 т |
0,29 0,01 |
0,23 0,008 |
||||||||
| 14. | Сантехкабины | -//- | 1,44 | 34 | Песок строительный | м3 |
8,9 |
12,82 |
||||||||
| 15. | Шахты лифтовые массой более 2,5т |
-//- | 0,36 |
-//- | Р-р цемент. 150 Электроды Э-42 |
м3 т |
2,48 0,04 |
0,89 0,014 |
||||||||
| 16. | Вентблоки массой до 2,5т | -//- | 2,88 | -//- | Р-р цемент. 150 | м3 | 0,89 |
2,56 | ||||||||
| 1 | 2 | 3 | 4 | 5 | 6 | 7 | 8 | 9 | ||||||||
| 17. | Герметизация стыков стеновых панелей Горизонтал. швы |
100п.м. | 45,36 | 36 | Герметизи- рующей нетвердеющей мастикой |
кг |
76,2 |
3456 |
||||||||
| 18. | То же Вертик. швы |
-//- | 45,63 | -//- | Пено- полистиролом |
м3 |
1,07 |
48,82 |
||||||||
| 19. | Герметизация коробок окон и балконных дверей | -//- | 22,68 | -//- | Герметизи- рующей нетвердеющей мастикой |
кг |
72,1 |
1635 |
||||||||
| 20. | Зачеканка и расшивка швов цокольных панелей с внутренней стороны | -//- | 5,04 | -//- | Р-р цемент. 150 | м3 | 0,2 |
1,008 | ||||||||
| 21. | Промазка и расшивка снизу швов плит перекрытия | -//- | 8,16 | -//- | Р-р цемент. 150 | м3 | 0,04 | 0,326 | ||||||||
Всего расход материалов
Раствор цементный 150 - 76,42 м3
Электроды Э-42 - 0,014 т
Бетон М200 - 37,47 м3
Клей-мастика КН-3 - 0,09 т
Воздухозащитная лента - 656,2 м2
Пакля смоляная - 1494,8 кг
Песок строительный - 12,82 м3
Мастика герметизирующая
нетвердеющая - 5091 кг
Пенополистирол - 48,82 м3
8. Технологическая карта на монтаж этажа
Технологическая карта разработана на монтажные работы по возведению типового этажа из сборных конструкций. Данную технологическую карту рассматриваем в пределах одной секции типового этажа.
Состав работ:
· монтаж внутренних несущих стен,
· монтаж лифтовой клетки,
· монтаж наружных стеновых панелей,
· монтаж сантехкабин и венткамер,
· укладка плит перекрытия,
Технология и организация строительного процесса.
Исходные данные


Составляем калькуляцию трудовых затрат.
Калькуляция трудовых затрат


Составляем почасовой график производства работ.
Работы будем производить поточным методом оной специализированной бригадой. Разбиваем этаж на две захватки равных по объему работ.
Площадь захватки составит: 185,4 м2
Расчет параметров почасового графика

Принимаем комплексную бригаду 28 человек. В составе:
· 2 сварщика
· 1 крановщик
· 10 монтажников
· 3 каменщика
· 5 герметчиков
· 7 разнорабочих
Работы производятся в две смены.
Далее составляем посменный график. График представлен на следующей странице.
Посменный график производства работ на монтаже этажа

Итоговые показатели по техкарте:
9. Описание технологии выполнения работ (рекомендации по монтажу, механизмы, зимние условия). Описание других строительных процессов
Перечень оснастки
Для монтажа сборных конструкций стен типового этажа.
Тип приспособления |
Наименование | Кол-во | Масса Ед. в кг. |
Организ. разработ. рабоч. чертежи |
№.№ черт. |
| 1 | 2 | 3 | 4 | 5 | 6 |
| I | Подкос для монтажа панелей дома серии П-3М | 38 | 10,65 | Трест Мосоргстрой |
10070 |
| II | Подкос для монтажа панелей стен | 4 | 20,3 | - / / - | 4104А |
| III | Монтажная связь для временного крепления панелей внутренних стен крупнопанельных домов | 20 | 6,6 | - / / - | 5502 |
| IV | Инвентарная петля для монтажной связи | 12 | 5,1 | - / / - | 5671 |
1 |
2 | 3 | 4 | 5 | 6 |
| V | Монтажная опора для панелей внутренних стен | 10 | 15,5 | - / / - | 5766 |
| VI | Стойка для крепления перегородок | 5 | 15,4 | - / / - | 1631УД |
| VII | Монтажный зажим зев 480 – 560 мм. | 6 | 8,4 | - / / - | 5570 |
| VIII | Струбцина зев 210 - 350мм. для монтажа панелей | 2 | 8,5 | - / / - | 4638АБ |
| IX | Винтовой захват для подкосных струбцин | 10 | 4,3 | СПКТБ Кассетдеталь |
ОР.7082 |
| X | Стойка для временного крепления вентблоков | 4 | 16,0 | - / / - | ОР-12271 |
Примечание:
1. Монтаж сборных элементов типового этажа следует производить в соответствии с технологической последовательностью установки конструкций указанной на листе.
2. Монтажное приспособление следует снимать только после приварки всех постоянных связей в соответствии с проектом, соединяющих освобождаемый элемент с примыкающими закрепленными конструкциями.
3. Закрепление нижних захватов подкосов обозначенных 1 производится в технологические отверстия Ø60 / Ø130 панелей перекрытий. Нижние захваты подкосов, обозначенных П и Ш закрепляются за винтовые захваты, предварительно установленные в технологические отверстия панелей перекрытия.
4. Стойки XI временно закрепляющие вентблоки снимаются только после монтажа панелей перекрытия удерживающих вентблоки сверху.
Монтажные приспособления и инвентарь.
1. Ограждение по периметру перекрытия.
2. Ограждение лестничной площадки.
3. Постоянное ограждение лестничного марша.
4. Защитные щиты перекрытия лифтовых шахт.
5. Щиты над проемами перекрытия.
6. Будка герметчика.
7. Поэтажная прожекторная вышка со сварочным постом на 1 единицу.
8. Предохранительное верхолазное устройство (ПВУ – 2).
9. Крнтейнер с гернитовым шнуром, теплоизоляционными вкладышами, монтажными связями.
10. Контейнер для монтажного оснащения.
11. Ящик с инструментом.
12. Подкосы.
13. Монтажный ломик.
14. Подштопка.
15. Ящик с раствором.
16. Совковая лопата.
17. Метла.
18. Рейка – отвес.
Грузозахватные приспособления и монтажная оснастка
1. Грузозахватные приспособления.
Основное грузозахватное устройство – Универсальная траверса с дистанционной отцепкой крюков грузоподъемностью 15т.с. предназначено для подъема панелей наружных и внутренних стен, перекрытий, перегородок, объемных элементов лифтовых шахт, сантехкабин и пр. конструкций.
Она обеспечивает строповку и возможность монтажа в установочном положении конструкций при различном расположении подъемных петель и их расстроповку с рабочего места монтажника.

Рис.1
Универсальная траверса (Рис.1) состоит из подвески – 1, обойм с блоками – 2, чалочных ветвей – 3 и уравнительных канатов.
Подвеска представляет собой две щеки, соединенные между собой пальцами. Верхним пальцем она навешивается на крюк монтажного крана, а на двух нижних закреплены обоймы с блоками.
Обоймы с блоками крепятся к подвеске соединительными кольцами, что обеспечивает их поворот в горизонтальной плоскости относительно подвески в пределах 120°.
Через блоки перекинуты стропы, образующие чалочные ветви, которые соединяются попарно взаимодействующими с ними уравнительными канатами и страховочными перемычками. На концах чалочных ветвей расположены крюки с карабинами для их отцепки.
Техническая характеристика.
Грузоподъемность, кгс - 15000
Количество стропов, вмонтированных в обоймы с блоками - 2
Перемещение стропа по блоку обоймы - одностороннее
Количество чалочных ветвей с крюками - 4
Длина чалочных ветвей, мм - 6500
Общая длина траверсы, включая подвеску с блоками, м - 7,76
Максимально допустимый суммарный угол отклонения от вертикали
чалочных ветвей каждого стропа, град. - 40
Вес универсальной траверсы, кг - 195
Панели, имеющие смещенный центр тяжести стропят так, чтобы чалочная ветвь с уравнительным канатом была направлена в сторону смещения центра тяжести панели.
Зацепка крюков за подъемные петли внутренней стеновой панели производится так, чтобы зевы крюков находились с одной из ее сторон. Это дает возможность монтажникам производить расстроповку без обхода панели. Отцепку крюков от подъемных петель панелей производят после их установки и временного или постоянного закрепления в проектном положении. Отцепку крюков осуществляют при ослабленных стропах тягой, которой зацепляют за проушину карабина крюка и тянут вниз по направлению ветви стропа. Карабин, поворачиваясь вначале раскрывает зев крюка, а затем разворачивает крюк и снимает его с подъемной петли панели.
2. Подкос для монтажа панелнй стен,
Предназначен для временного крепления панелей наружных и внутренних стен (Рис 2. ). Подкос состоит из телескопической штанги – 1 с запирающим штифтом – 7 и двух захватов. Захват выполнен из винта с крюком – 2, предохранительной втулки – 3, ограничителя – 6 и гаек (внутренней – 5 и натяжная – 4 )
Масса подкоса – 20,3 кг.
Подкос используется совместно со струбциной, закрепляемой к одному из его захватов для временного крепления отдельных панелей внутренних стен.

Рис. 2.
3. Монтажная связь
Предназначена для временного крепления панелей внутренних стен (Рис.3 ). Она состоит из захвата, стяжной муфты – 1 и струбцины – 2.
Захват состоит из крюка – 6, приваренного к винту стяжной муфты – 7, предохранительной втулки – 8 и натяжной гайки – 9. Стяжная муфта представляет собой отрезок трубы, в одном конце которого вмонтирована, с возможностью ее вращения, проушина, а на другом крепится гайка с винтом. Струбцина имеет П-образную форму.
К одной из ее боковых сторон закрепляется винтовой упор – 3,а в верхней части струбцины установлена ось – 4,которая монтируется в проушину стяжной муфты – 5.
Масса монтажной связи – 6,6 кг.

Рис. 3
4. Монтажная опора
Предназначена для обеспечения устойчивости панелей внутренних стен при их монтаже (Рис,4), представляет собой треугольную сварную раму из труб – 1 с двумя крепежными струбцинами – 2, жестко приваренными к раме на высоте 0,35 и 0,96 м. от опорных башмаков – 4.
Закрепление монтажной опоры на монтируемом элементе производится винтовым упором – 3, расположенными на крепежных струбцинах.
Масса монтажной опоры – 15,5 кг.

Рис. 4
5. Инвентарная петля – захват
Предназначена для временного закрепления монтажных приспособлений в местах, где отсутствуют подъемные петли на панелях внутренних стен. Она представляет собой струбцину – 1, к которой приварена специальная петля – 2. Установка инвентарной петли на панели внутренней стены производится с помощью зажимного винта – 3 (Рис.5).

Рис. 5
6. Струбцины.
Служат для временного крепления панелей стен и применяются совместно с подкосами. В зависимости от размера зева, струбцины используют:
· 140 – 260 мм. – при монтаже внутренних стеновых панелей машинного отделения лифтовой шахты.
· 210 – 350 мм. – при монтаже панели внутренних стен лестнично–лифтового узла.
Сводная ведомость в потребности в строительных машинах
№ п.п |
Наименование оборудования |
Марка | Количество |
| 1 | 2 | 3 | 4 |
| 1 | Экскаватор | Э – 652Б | 2 |
| 2 | Экскаватор наружной сети |
ЭО-2621А | 2 |
| 3 | Сварочный аппарат | ТС – 500 | 2 |
| 4 | Штукатурная установка | СО - 57 | 1 |
| 5 | Малярная станция | СО – 48 | 1 |
| 6 | Компрессор передвижной |
ДК – 9Н | 1 |
| 7 | Гудронатор | 1 | |
| 8 | Башенный кран | БК – 404М | 1 |
| 1 | 2 | 3 | 4 |
| 9 | Подъемники | ТП – 2 | 2 |
| 10 | Бульдозеры | ДЗ – 18 | 2 |
Указания по монтажу:
· Монтаж блок – секций должен производиться в соответствии с проектом производства работ, технологическими картами.
· Величины допускаемых отклонений строительных параметров принимаются по расчету точности в соответствии с ГОСТ 21779 – 82.
· Все металлические элементы должны быть защищены от коррозии в соответствии с СНиП 2.03.II – 85 и СНиП 3.04.03 – 85.
· Раствор и цементно – песчаная паста должна соответствовать требованиям СН-290-74, СНиП II-22-81, СНиП 2.03.01-84* , СНиП 3.03.01-87, «Руководства по возведению каменных полносборных конструкций зданий повышенной этажности в зимних условиях».
· Проектная марка раствора при монтаже принять М150.
· Все кровельные работы производить в соответствии с СНиП 3.04.01-87
Указания по монтажу в зимних условиях.
· Работы по монтажу дома в зимних условиях распространяются на период строительства при среднесуточной температуре наружнего воздуха ниже -5°С и минимальной суточной температуре ниже 0°С.
· Работы в зимних условиях должны производиться в соответствии с проектом производства работ и технологическими картами.
· Монтаж конструкций в зимних условиях должен производиться безобогревным способом с применением раствора или цементно-песчаной пасты с противоморозными добавками, обеспечивающими нарастание прочности раствора на морозе без прогрева. При этом следует руководствоваться ВСН-159-81, ВСН-42-75, ВСН-141-77, ВСН-31-66.
· Применение в зимних условиях растворов и цементно-песчаной пасты без противоморозных добавок запрещается.
· При применении растворов с противоморозными добавками следует учитывать ограничения в области применения и процентном содержании в бетоне и растворе различных добавок, установленные СНиП 3.03.01-87.
· Растворы для заделки стыков приготавливать на быстротвердеющих портландцементах или на портландцементах марки 400 и выше.
· Марка раствора для заделки принимается равной проектной (летгей), т.е. М150, если монтаж конструкций будет выполняться при среднесуточной температуре наружного воздуха до -20°С и на одну марку выше проектной, т.е. М200, если монтаж будет производится при температуре -20°С и ниже.
· Прочность раствора в горизонтальных и вертикальных стыках для различных стадий готовности здания должна быть не менее указанной в таблице:
Монтируемый этаж |
Требуемая прочность раствора в горизонтальных и вертикальных стыках на этажах, кгс / см2 | |||||
Теподполье и 1этаж |
2 и 3 этажи |
4 и 5 этажи |
6 и 7 этажи |
8 и 9 этажи |
10 и 11 этажи |
|
| 6 – 7 | 20 | - | - | - | - | - |
| 8 – 9 | 20 | 20 | - | - | - | - |
| 10 – 11 | 40 | 20 | 20 | - | - | - |
| 12 – 13 | 60 | 40 | 20 | 20 | - | - |
| 14 – 15 | 80 | 60 | 40 | 20 | 20 | - |
16 – 17 и крыша |
100 | 80 | 60 | 40 | 20 | 20 |
· Учитывая возможность значительного разброса значений прочности раствора в зимнее время, необходимо временное отопление 1-3-го этажа перед монтажом 9-го этажа, 1-5 этажей перед монтажом 11 этажа и 1-9 этажей перед монтажом 15 этажа.
· В специальные журналы должны заносить все необходимые данные о растворе и различных факторах, влияющих на процесс твердения раствора.
· Особо строго должны контролировать толщины горизонтальных швов и соосность конструкций.
· Работы по герметизационной защите стыков следует выпполнять в соответствии с ВСН –15-85 и СНиП 3.03.01-87.
· Впериод наступления оттепелей и весеннего оттаивания должен быть организован тщательный контроль за конструкциями, смонтированными в зимних условиях.
· Авторским надзором должны быть выданы рекомендации по мероприятиям, обеспечивающим прочность и устойчивость конструкций в период весеннего оттаивания и в последующее время – до достижения раствором и бетоном необходимой прочности, а также определить условия дальнейшего продолжения строительных работ.
· Монтаж панелей на слой замерзшего раствора не допускается.
· При устройстве стыков панелей наружных стен должно быть обращено особое внимание на тщатальную очистку полостей стыка от наледи.
· Работы по устройству кровли в зимнее время выполнять в соответствии с СНиП 3.04.01-87.
Подготовка строительной площадки включает в себя: расчистку территории - производим срезку растительного слоя, выкорчевывание пней валка деревьев, выравнивание площадке; отвод поверхностных вод – производим обвалование вдоль границ строительной площадки; создание геодезической разбивочной основы – определяется и закрепляется положение красных линий или разбивочных осей на местности.
Земляные работы - производим отрывку котлована двумя бульдозерами, часть грунта складируется для обратной засыпки, а часть отвозится для вертикальной планировки на другую строительную площадку.
Параллельно с земляными работами ведутся вспомогательные: устройство строительного городка, временных подъездных дорог, места для складов.
Далее производят монтаж подземной части здания и устройство вводов.
Фундаменты монтируют автомобильным краном.
Кровельные работы идут одним потоком: последовательно производим работы по утеплению кровли (из засыпного утеплителя) и устройству гидроизоляционного ковра (из рулонного материала).
До производства отделочных работ и устройства полов осуществляются сантехнические и электротехнические работы.
ОРГАНИЗАЦИЯ СТРОИТЕЛЬСТВА
Сетевой график, календаризация графика, график потребности в рабочих
Производство работ организуется поточным методом, при этом необходимо учесть одновременность выполнения ряда работ и совмещение профессий.
Работы нулевого цикла производим одной захваткой, при производстве работ, связанных с возведением коробки здания и дальнейшими отделочными работами, делим объект на четыре захватки.
Продолжительность (ритм) каждого вида работ на захватках определяется временем выполнения ведущего механизированного процесса на рассматриваемом этапе строительства объекта.
Продолжительность выполнения полностью механизированных работ, дн.,
Зм
tim = ---------,
n*A
где Зм – общие затраты машинного времени на производство работ, маш. - см.;
А – сменность работы, А=2;
n – число машин, участвующих в выполнении работы в смену.
В случае производства работ немеханизированным (частично механизированным) способом продолжительность работы ti , дн., определяется по формуле
Тр
ti = -----------,
N*A
где Тр – трудоёмкость работы, чел.-дн.;
N – принятое количество рабочих в смену;
А – сменность работы.
Если рассматриваемый вид работы включает механизированные и немеханизированные процессы, то принимают продолжительность, большую из рассчитанных по данным формулам.
Работы ведутся поточным методом. Для реализации поточного метода вся номенклатура работ на объекте группируется таким образом, чтобы каждый вид работы мог быть выполнен звеном или бригадой рабочих заданного профессионального состава. При этом учитывается одновременность выполнения работ и совмещения профессий.
Совмещение разных видов работ во времени достигается путём деления объекта на захватки.
Планировка территории ведётся двумя бульдозерами.
Отрывка траншей под фундамент производится одним экскаватором.
Монтаж ведётся одним башенным краном последовательно по захваткам.
Отделочные и пусконаладочные работы ведутся также последовательно по захваткам.
Составляем итоговую ведомость трудоемкости работ.

Карточка определитель располагается на следующей странице.
Карточка - определитель

Стройгенплан
Стройгенплан – это чертёж, который показывает образец обустройства строительной площадки в период ведения строительных работ основного периода.
Потребность во временных зданиях и сооружениях определяется на расчётное количество рабочих, служащих, ИТР, МОП и работников охраны.
Расчётное количество рабочих принимается равным максимальному числу на графике потребности рабочих на объекте при расчёте площадей гардеробных, и равным максимальному числу рабочих в одну смену при расчёте площадей других объектов временного строительного городка.
Нормативная площадь территории временного городка в расчёте на одного рабочего должна лежать в пределах 8-36 м2 .
Помещения для обогрева рабочих должны быть расположены на расстоянии не более 150 м от рабочих мест. Пункты питания должны быть удалены от туалетов и мусоросборников на расстояние не менее 25 м и не более 600 м от рабочих мест.
Медпункт надо располагать не далее 800 м от рабочих мест.
Расстояние от туалетов до наиболее удалённых мест внутри здания не должно превышать 100 м, до рабочих мест вне здания – 200 м.
В городке должно быть предусмотрено место для отдыха и курения рабочих.
Ввиду того, что работы по монтажу ведутся со склада, требуются складские помещения открытого типа.
Расчёт потребности в воде производится для периода с наибольшим водопотреблением для производственных, хозяйственных и противопожарных целей.
Противопожарная (постоянная) водопроводная сеть должна быть закольцована, и на ней располагают пожарные гидранты на расстоянии не далее 150 м один от другого. Расстояние от гидрантов до здания должно быть не менее 5 м и не более 50 м, а от края дороги – не более 2 м.
Общие требования к проектированию временного электроснабжения строительного объекта: обеспечение электроэнергией в потребном количестве и необходимого качества, гибкость электрической схемы, надёжность, минимальные потери в сети.
Временные трансформаторные подстанции следует располагать в центре электрических нагрузок и не далее 250 м от потребителя. Временные внутрипостроечные дороги одностороннего движения имеют ширину проезжей части 3,5 м и радиусы закругления 12 м.
При проектировании стройгенплана необходимо предусматривать мероприятия по охране окружающей среды: сохранение почвенного слоя, соблюдение требований к запылённости и загазованности воздуха, очистке бытовых и производственных стоков и другие.
Расчет площадей временных зданий:
Временными зданиями называются надземные подсобно-вспомогательные и обслуживающие объекты, необходимые для обеспечения производства СМР. Временные здания сооружаются только на период строительства. Временные здания в отличие от постоянных имеют свои особенности, связанные с назначением, конструктивным решением, методами строительства, эксплуатации и порядком финансирования. По назначению временные здания делятся на производственные, складские, административные, административно-бытовые, жилые и общественные.
Потребность во временных зданиях и сооружениях определяется по действующим нормативам на расчетное количество рабочих, ИТР, служащих, МОП и работников охраны.
Расчёт площадей временных зданий и сооружений
| Наименование | Численность персонала | Вместимость, человек |
Размеры в плане, м | Кол-во зданий / Тип-конструкции |
| 1 | 2 | 3 | 4 | 5 |
| Контора нач. участка | 2 | 4 | 8,0 X 7,0 | 1 / щитовая |
| Прорабская | 4 | 4 | 8,0 Х 3,5 | 1 / щитовая |
| Бытовка | М – 60 Ж - 20 |
16 16 |
8,0 X 7,0 8,0 X 7,0 |
4 /щитовая 2 / шитовая |
| Летняя душевая | М – 30 Ж - 10 |
- - |
8,0 X 3,5 8,0 X 3,5 |
3 / автофургон 1/ автофургон |
| Проходная | 3,0 X 3,0 | 2 / щитовая | ||
| Туалет канализированный | М – 30 Ж - 10 |
6 6 |
8,0 X 3,5 8,0 X 3,5 |
2 / автофургон 1 / автофургон |
| 1 | 2 | 3 | 4 | 5 |
| Помещение для обогрева, отдыха и принятия пищи | 40 |
10 |
3,7 X 3,5 |
4 / контейнер |
| Столовая - раздаточная | 40 | 22 | 9,1 X 2,9 | 2 / автофургон |
| Медпункт | - | - | 8,0 X 7,0 | 1 / щитовой |
| Ремонтная мастерская | - | - | 8,7 X 2,9 | 1 / автофургон |
| Закрытый отапливаемый склад | - | - | 40м2 | 1/ щитовой |
| Закрытый неотапливаем. склад | - | - | 40м2 | 1/ щитовой |
Водоснабжение строительной площадки
Временное водоснабжение на строительной площадке предназначено для обеспечения производственных, хозяйственно-бытовых и противопожарных нужд. При проектировании временного водоснабжения необходимо определить потребность, выбрать источник, наметить схему, рассчитать диаметр водопровода, привязать трассу и сооружение на строй генплане. Следует предельно использовать постоянные источники и сети водоснабжения.
Водопроводную сеть необходимо рассчитывать на период ее наиболее напряженной работы, т.е. она должна обеспечивать потребителей водой в часы максимального водозабора и во время тушения пожара.
Водоснабжение строительной площадки
Обеспечение 3 видов потребностей
Qобщ =Qпр +Qx +Qпож , где:
Qпр – максимальный расход на хозяйственно –бытовые нужды
Qпр –максимальный расход воды на производственные нужды
Qпож – тоже, на противопожарные нужды
| Потребители | Един.изм | Количество в смену |
Удельный расход | Кn | t |
Компрессор Р = 10кВт/ч |
кВт / ч | 70 | 700 | 1,5 | 8 |
| Мойка машин | Маш. | 10 | 2000 | 1,5 | 8 |
| Мойка тракторов | Маш. | 2 | 200 | 1,5 | 8 |
Qпр
= кпр
t- число учитываемых часов в смену 8ч.
kn -коэффициент часовой неравномерности
nn - число производственных потребителей
en - удельный расход воды на производственные цели
кпр =1,2¸1,3
Qx
=
qx - удельный расход воды на хозяйственно-бытовые
нужды (20-25л)
qg - удельный расход воды на прием душа одного
работающего (30-50л)
np - число работающих в максимально загруженной смене
ng - число пользующих душем (80%)
kr - коэффициент неравномерности
Qпож = 20 л/с
Qобщ = 0,18 + 0,43 + 20 = 20,61 л/с
Определяем диаметр трубы
Принимаем D=150мм
Q – расчетный расход воды, л./сек.
V – скорость движения воды по трубам, м./сек.
Для сетей временного водопровода значения скоростей принимают большими чем для постоянного водопровода: V = 1,5 м./сек., что позволяет принимать трубопроводы меньшего диаметра.
Временные водопроводные сети выполняются из стальных труб.
Расходы воды на противопожарные нужды могут быть приняты в следующих количествах:
при площади застройки до 50 га. – 20 л./сек.
На каждые 20 га. + 5 л./сек.
Электроснабжение строительной площадки
Требования:
1. Обеспечение энергией в потребном количестве необходимого качества;
2. Гибкость электрической сети;
3. Надежность электрической сети;
4. Минимизация затрат на электроснабжение.
Порядок проектирования:
1. Производят расчет электрических нагрузок;
2. Выбор источника электроэнергии. Определение количество и мощностей трансформаторных подстанций;
3. Выявление объекта первой категории требующие резервного электропитания;
4. Размещают на СГП трансформаторные подстанции, силовые и осветительные сети, инвентарные электротехнические устройства.
Назначение сети – сети электроснабжения постоянные и временные предназначены для энергетического подпитки силовых и технологических потребителей.
Исходными данными для организации временного энергоснабжения являются объемы, сроки выполнения и структура строительно-монтажных работ, площади временных зданий, сооружений и закрытых складов, размеры строительной площадки, типы и мощности строительных машин и др.
Проектирование временного электроснабжения ведется в следующем порядке:
- определяют потребителей электроэнергии, количество необходимой электрической мощности в смену по каждому потребителю и суммарную потребную мощность электроустановок или трансформатора;
- подбирают соответствующий тип трансформатора, устанавливают его местоположение на строй генплане и проектируют временную электросеть.
Ртр= 
где:
a- коэффициент потери мощности в сети;
Рс - мощностей силовых потребителей;
Рт - мощностей для технических нужд;
Рсв - потребляемая мощность для сварочных трансформаторов;
Ров - потребляемые мощности осветительными приборами для внутреннего освещения;
Рон - потребляемые мощности для наружного освещения;
cosj1 =0,7 - коэффициент мощности для моторов;
cosj2 =0,8 - коэффициент мощностей для технических целей;
cosj3 =1
cosj4 =1
cosj5 =0,6
К - коэффициенты одновременного потребления энергии:
K1=0,4; K2=0,4; K3=0,8; K4=0,9; K5=0,8.
1. Суммарная мощность моторов для строительных машин и механизмов (SРс):
-башенный кран БК 404М - 1штука- 71кВт,
-подъемник С-867 – 2 штуки – 24 кВт,
-окрасочный агрегат - 1штука- 4 кВт,
-различные мелкие механизмы и инструменты – 5,5 кВт
SРс = 104,5 кВт
2.Суммарная мощность сварочных трансформаторов (SРсв):
- ТС-500 Рс = 32 * 2 = 64 кВт,
3. Мощность для внутреннего освещения (SРов):
закрытые склады
2 Вт/м2 * 40 м2 = 80 Вт = 0,08 кВт
ремонтная мастерская
15 * 25,23 = 378,45 Вт = 0,378 кВт
конторы и служебные помещения
15 * 48 = 0,72 кВт
SРов = 1,178 кВт
4.Мощность для наружного освещения (SРон):
главные проходы и проезды
210 * 5 = 1050Вт = 1,05кВт
второстепенные проходы и проезды
210 * 2,5 = 525Вт = 0,525кВт
охранное освещение
2 * (70 + 30) * 1,5 = 300Вт = 0,3кВт
открытые склады
7 * 50 * 2 = 700Вт = 0,7кВт
освещение монтажа
760,3 * 3 = 2281Вт = 2,281кВт
SРон = 4,856кВт
5. Потребности для технологических нужд для электронагревателя мощностью Рт = 500кВ·А
Выбираем трансформаторную подстанцию – СКТП-560 1шт.
С Р=560кВА.
Локальная смета на общестроительные работы


Локальная смета на специальные работы
Локальная смета на благоустройство
Объектная смета
Технико-экономические показатели
1. Объем здания - 37483 м3
2. Площадь здания - 13154,4 м2
3. Общие трудозатраты по всем работам - 23.828 чел.- дни
4. Общая сметная стоимость строительства - 82.964.090руб.
5. Сметная стоимость на единицу площади здания – 13.983 руб/м2
6. Сметная стоимость на единицу объема здания - 2213 руб/м3
7. Средняя выработка одного рабочего в день
· На общестроительных работах - 3687 руб/чел-дни
· На специальных работах - 1792 руб/чел-дни
· В целом по объекту - 3482 руб/чел-дни
8. Нормативная продолжительность строительства по СНиП – Тн = 360 дней.
9. Фактическая продолжительность строительства - Тф = 352 дня.
10. Показатель продолжительности строительства –
ППС = Тф / Тн = 352 / 360 = 0,98
Список литературы по разделу:
1. СНиП 1.04.03.85 “Нормы продолжительности строительства и задела в строительстве предприятий, зданий и сооружений”.
2. СНиП IV-2-82 “Сборники элементных сметных норм на строительные конструкции и работы”.
3. Тепличенко В.И., Терентьев О.М., Лапидус А.А. “Технология строительного производства, курсовое и дипломное проектирование”.
4. ЕНиП 4-1-1 “Монтаж сборных и устройство монолитных железобетонных конструкций”.
5. Тепличенко В.И., Терентьев О.М.,Лапидус А.А. “Технология строительных процессов”.
ОХРАНА ТРУДА И ТЕХНИКА БЕЗОПАСНОСТИ
Основные требования к организации труда на строительной площадке с точки зрения техники безопасности
До начала строительства на площадке сооружают подъездные пути и внутрипостроечные дороги, обеспечивающие удобные подъезды тяжеловесной технике, осуществляющих подвоз материалов. Деталей, конструкций и приспособлений. Как правило, дороги устраивают сквозные с местными, уширениями для разгрузки грузов.
Для обеспечения безопасности производства работ в темное время суток все места возможного выполнения работ подлежат освещению в соответствии со СНиПом.
До начала строительных работ в соответствии с проектом в безопасной зоне возводят все необходимые санитарные, административные и бытовые помещения.
В зоне административных и бытовых помещений помимо бытовых, устанавливают передвижной медпункт, сушильную комнату, технический кабинет, где оборудуются стенды по технике безопасности.
К зонам постоянно действующих опасных производственных факторов относятся участки: вблизи неизолированных токоведущих частей электроустановок, места перепадов по высоте более 1,3 м, зоны, где находятся вещества с концентрацией вредных веществ выше предельно допустимых.
К зонам потенциально опасных действующих производственных факторов относятся участки: вблизи производства монтажных работ, этажи здания, над которыми производится монтаж конструкций, вблизи неогражденных технологических проемов и отверстий в перекрытиях и наружных стенах, к которым возможен доступ людей, места установки технологического оборудования, вентиляционных камер, лестничных клеток и т.п., вблизи мест перемещения техники и механизмов, а также места, где происходит перемещение грузов кранами.
Для предупреждения доступа посторонних лиц в указанные опасные зоны применяют защитные ограждения в виде сборно–разборных деревянных или других щитов с унифицированными элементами, соединениями и деталями крепления.
Обязательно должна быть определена и обозначена на местности опасная зона перемещения груза башенным краном, в которой не допускается нахождение посторонних лиц, выполнение работ, не связанных с монтажными работами, размещение бытовых городков административных и временных сооружений.
Работающих в опасной зоне людей обеспечивают средствами индивидуальной и коллективной защиты и инструктируют по правилам техники безопасности и охраны труда в данной опасной зоне.
Для обеспечения безопасности перемещения механизмов монтажную площадку выравнивают.
На монтажной площадке предусматривают условия стока атмосферных вод через временную водосточную сеть.
Зоны, опасные для движения, ограждают либо выставляют на их границах предупредительные надписи и сигналы, видимые днем и ночью. Проходы для рабочих расположенные на уступах, откосах и косогорах с уклоном более 20%, оборудуют стремянками или лестницами с односторонними перилами, в местах перехода через траншеи делают мостики шириной не менее 0,6м с перилами высотой 1м.
Машины и оборудование размещают на площадке так, чтобы не загромождать проходы и проемы. На машинах и механизмах должны быть установлены приспособления, обеспечивающие безопасность труда. Особое внимание при этом обращают на ограждение движущихся частей механизмов. Сигнализация на машинах должна быть в исправном состоянии. На машинах и в зоне их работы вывешивают предупредительные надписи и плакаты, по технике безопасности.
Для защиты людей от поражения электрическим током временные электрические установки и сети на строительстве выполняют с изолированным проводом, его подвешивают на высоте не менее 2,4 м над рабочим местом, 3,5 м над проходами и 5 м над проездами.
Строительные машины и механизмы, электродвигатели и другие устройства на строительстве, которые могут оказаться под напряжением, заземляют в соответствии с утвержденными инструкциями по электробезопасности.
Все установки, находящиеся под напряжением, снабжают надписями, предупреждающими об опасности. К работе с электрифицированным и пневматическим инструментом допускаются только лица, прошедшие производственное обучение и овладевшие правилами работы с ними. Каменщики и монтажники, работающие на высоте должны работать с испытанными и проверенными монтажными поясами. Выполнять работы на высоте с лесов, подмостей разрешается только после проверки этих средств подмащивания производителем работ или мастером.
При электросварочных работах рабочие места сварщиков, электропровода и электрооборудование должны быть ограждены. На ограждениях вывешивают предупредительные вывески и плакаты. Корпуса электрооборудования, а также свариваемые конструкции и элементы заземляют.
Запрещается вести сварочные работы в непосредственной близости от огнеопасных и легко воспламеняющихся материалов и конструкций. На высоте сварочные работы разрешается вести, после того как будут приняты меры против возгорания настилов и падения расплавленного металла на работающих или проходящих внизу людей.
При ветре в 6–ть и более баллов прекращают каменные и монтажные работы на высоте и в открытых местах. Также при гололеде, грозе, тумане, снижающем видимость.
Рабочие места каменщиков и монтажников должны быть защищены от ударов молний. С этой целью устраивают молниеприемники (громоотводы), которые располагают выше наиболее высоких частей каркаса не менее чем на 6 м. Исправность заземления проверяют не реже одного раза в месяц.
Находится непосредственно под башенным краном, в зоне строповки и складирования, а также производить стропильные работы могут только люди имеющие удостоверение стропальщика. Ходить по подкрановым путям строго запрещено.
Все лица, занятые на строительною – монтажных работах должны быть обучены приемам оказания первой доврачебной помощи и могут быть допущены к работе только после вводного инструктажа по технике безопасности, производственной санитарии, а также инструктажа непосредственно на рабочем месте.
Основные требования к производственному освещению:
Освещенность на рабочих местах должна соответствовать характеру зрительной работы. Увеличение освещенности рабочих поверхностей улучшает условие видения объектов, повышает производительность труда.
Должно выполняться условие достаточно равномерного распределения яркости света на рабочей поверхности, так как при неравномерной, яркости в процессе работы глаз вынужден переадаптироваться, что ведет к утомлению зрения.
Так же не должно быть блесткости, которая вызывает нарушение зрительных функций.
Расчет прожекторного освещения стройплощадки
1. Ориентировочное число прожекторов:
N=mEn kA/ Pл
Где m- коэффициент, учитывающий световую отдачу источника света, КПД прожекторов и коэффициент использования светового потока;
m = 0,3 для ламп накаливания
En - нормируемая освещенность горизонтальных поверхностей, [лк];
En = 2 лк в соответствии с СН 81-80
k-коэффициент запаса; k=1,7 для прожекторов с лампой накаливания
A-освещаемая площадь, м2 ; A=2100 м2
Pл - мощность лампы, Вт; Pл = 500 Вт
N = 0,3 * 2 * 1,7 * 2100 / 500 = 4 (прожекторов)
Принимаем из условия геометрической схемы строительной площадки 4 прожекторов типа ПЗС-35 с 6 лампами накаливания Г-500, мощностью 500 Вт , (ширина освещаемой площадки 30м., высота прожекторных мачт 15м., расстояние между мачтами 70м.). Параметры установки прожектора: высота установки 15 м., угол наклона прожекторов θ=15°, угол между оптическими осями прожекторов τ=15°.
Минимальная высота установки прожекторов над освещаемой поверхностью по ГОСТ 12.1.046-85 для данного типа прожекторов равна при нормируемой освещенности Ен=2лк. и минимальной силе света 50 кКД (килокендел) равна 14 м.
| Прожектор | Лампа | Максим. Сила света, кКД |
Макс. Допустимая высота установки прожектора ,м при нормальной освещенности 2 лк | ||||
| 0,1 | 1 | 2 | 3 | 5 | |||
| ПЗС - 35 | Г - 500 | 50 | 22 | 18 | 14 | 13 | 11 |
Принимаем инвентарную мачту высотой 20 м.
Для равномерного освещения строительной площадки устанавливаем 4 мачты в четырех углах строительной площадки.
h = ((Jmax / 300) – высота установки прожектора на мачте
где Jmax - максимальная сила света,[KД] ; Jmax = 50 кKД
h = ((50 000 / 300) = 15,3 м
Оптимальный угол наклона прожекторов к горизонтальной поверхности – 15%.
Противопожарные мероприятия
Здание класса А, I степени огнестойкости. Принятые основные строительные конструкции - несгораемые, обеспечивают пределы огнестойкости, предусмотренные таблицей 1 СНиП 21-01-97 «Противопожарные нормы».
По степени огнестойкости
Предел огнестойкости строи тельных конструкций устанавливается по времени (в минутах) наступления одного или последовательно нескольких, нормируемых для данной конструкции, признаков предельных состояний:
потери несущей способности (R);
потери целостности (Е);
потери теплоизолирующей способности (I).
Пределы огнестойкости строительных конструкций и их условные обозначения устанавливают по ГОСТ 30247. При этом предел огнестойкости окон устанавливается только по времени наступления потери целостности (Е).
| Предел огнестойкости строительных конструкций | Степень огнестойкости здания |
Предел огнестойкости строительных конструкций, не менее | ||||||
Несущие элементы здания |
Наружные ненесущие стены |
Перекрытия междуэтажные (в том числе чердачные и над подвалами) |
Элементы бесчердачных покрытий | Лестничные к летки | ||||
| Настилы (в т.ч. с утеплителем) | Фермы, балки, прогоны | Внутренние стены | Марши и площадки лестниц | |||||
| Птр | I | R 120 | Е 30 | RЕI 60 | RЕ 30 | R 30 | RЕI 120 | R 60 |
| Пф | I | R 150 | E 40 | REI 80 | -- | -- | REI 150 | R 70 |
Пф находим по расчету из «Справочника строителя»
По функциональной пожарной опасности
Ф1 Для постоянного проживания и временного (в том числе круглосуточного) пребывания людей (помещения в этих зданиях, как правило, используются круглосуточно, контингент людей в них может иметь различный возраст и физическое состояние, для этих зданий характерно наличие спальных помещений)
По конструктивной пожарной опасности
| Класс конструктивной | Класс пожарной опасности строительных конструкций, не ниже | ||||
| пожарной опасности здания | Несущие стержневые элементы (колонны, ригели, фермы и др.) |
Сте ны наружные с внешней стороны | Стены, перегородки, перекрытия и бесчердачные покрытия | Стены лестничных клеток и противопожарные преграды | Марши и площадки лестниц в лестничных клетках |
| С1 | К1 | К2 | К1 | К0 | К0 |
Перекрытия и покрытия, лестничные марши – сборные железобетонные. Эвакуация осуществляется по незадымляемой лестнице 2-го типа с подпором воздуха. Лестницы обеспечены естественным освещением через окна в наружных стенах. Секции отделены друг от друга противопожарными стенами. Лифтовые холлы отделены от поэтажных коридоров несгораемыми перегородками с дверьми с притворами. Подвальное помещение имеют два рассредоточенных эвакуационных выхода на улицу. Проветривание подвала осуществляется специальными вентиляционными продухами. В здании п редусмотрено дымоудаление из коридоров на каждом этаже в соответствии со СНиП 2.04.05-86 и пожарные краны. Коридор разделен противопожарными перегородками 2-го типа стоящими на расстоянии 13м.
Лестницы выходят на кровлю. Между маршами лестниц предусматривают зазор шириной не менее 10 мм. В чердаках здания предусмотрены выходы на кровлю, оборудованные стационарной лестницей.
Все квартиры имеют лоджии. На лоджии оборудованы пожарными лестницами.
На кровле предусмотрена молниезащита.
Двери лестничной клетки - самозакрывающиеся, с уплотнителями.
Эвакуационным выходом является выход первого этажа наружу непосредственно через вестибюль.
Кольцевой проезд вокруг здания запроектирован шириной 4,5м на расстоянии 8-10м от стен дома.
Монтажные работы
На участке (захватке), где ведутся монтажные работы, не допускается производство других работ и нахождение других лиц.
Способы строповки элементов конструкций и оборудования должны обеспечивать их подачу к месту установки в положении, близком к проектному.
Запрещается подъем сборных железобетонных конструкций, не имеющих монтажных петель или меток, обеспечивающих их правильную установку и монтаж.
Очистку подлежащих монтажу элементов от грязи и наледи проводить до их подъема.
Не допускается пребывание людей на элементах конструкций и оборудования во время их подъема и перемещения.
Во время перерывов в работе не допускается оставлять поднятые элементы конструкций и оборудования на весу.
Установленные в проектное положение элементы конструкций или оборудование должны быть закреплены так, чтобы обеспечивалась их устойчивость и геометрическую неизменяемость. Не допускается проводить монтажные на высоте и открытых местах при скорости ветра 15м/с и более, при гололедице, грозе или тумане, исключающем видимость в пределах фронта работ. Работы по перемещению и установке вертикальных панелей и подобных конструкций с большой парусностью следует прекращать при скорости ветра 10м/с и более.
Не допускается нахождение людей под монтируемыми элементами конструкций и оборудования до установки их в проектное положение и закрепления. При необходимости нахождения работающих под монтируемыми элементами, а также на оборудовании и конструкциях должны осуществляться специальные мероприятия, обеспечивающие безопасность работающих.
Навесные монтажные площадки, лестницы и другие приспособления, необходимые для работы монтажников на высоте, следует устанавливать и закреплять на монтируемых конструкциях до их подъема.
Монтаж лестничных маршей и площадок здания, а также грузопассажирских строительных подъемников (лифтов) должен осуществляться одновременно с монтажом конструкций здания. На смонтированных лестничных маршах и проемах лифтовых шахт следует немедленно устанавливать ограждение.
Электробезопасность
Опасность эксплуатации электроустановок определяется тем, что токоведущие проводники (или корпуса машин, оказывающиеся под напряжением в результате повреждения изоляции) не подают сигналов опасности, на которые реагирует человек.
Реакция на электрический ток возникает лишь после его прохождения через ткани человека. В этих случаях возникают судороги мышц или остановка дыхания и сердца, что не позволяет человеку самостоятельно освободиться от контакта с установкой (или проводами), находящимися под напряжением. Степень поражения человека зависит от рода или величины напряжения и тока; частоты электрического тока; пути тока через человека; продолжительности действия тока; условий внешней среды.
Как показывает практика, спасение человека возможно, если время, в течение которого человек находится под действием электрического тока, не превышает 4-5 минут. Тело человека обладает электрическим сопротивлением, которое складывается из сопротивления кожи и сопротивления внутренних органов. Наибольшим сопротивлением обладает верхний слой кожи, имеющий толщину до 0,2 мм, внутренние органы обладают наибольшим сопротивлением 200-500 Ом. При наличии сухой неповрежденной кожи сопротивление тела человека может колебаться в зависимости от индивидуальных особенностей в пределах 1000-200000 Ом. Большое влияние на снижение сопротивления тела оказывает состояние кожи, наличие пота, общее состояние организма, употребление алкоголя. При сочетании некоторых неблагоприятных факторов и опьянения, сопротивление тела человека снижается до 300-500 Ом. В расчетах, связанных с определением тока, проходящего через человека Rчел принимается равным 1000 Ом. Величина тока, проходящего через человека является фактором, определяющим тяжесть поражения электрическим током. Электрический ток, проходя через человека, оказывает сложное физико-биологическое воздействие на основные системы организма которое выражается в возбуждении мышечных и нервных тканей, ожогах внутренних и внешних органов, электролизе крови. Человек начинает ощущать прохождение тока частотой 50 Гц при силе 0,6 ...1,5 мА. При токе 10...15 мА возникают судороги мышц рук, которые человек не может самостоятельно преодолеть, т.е. человек не в состоянии самостоятельно разжать руку, которая касается токоведущей части установки. Величина такого тока называется пороговым неотпускающим. При прохождении тока в 25...50 мА возникают спазмы мышц грудной клетки, что вызывает нарушение или прекращение дыхания. При длительном воздействии тока такой величины (5...7) мин. может наступить смерть вследствие прекращения работы легких. Ток силой 50 мА и более вызывает остановку или хаотическое сокращение сердца, что приводит к прекращению кровообращения. Такой ток считается смертельным. Многообразное воздействие электрического тока можно свести к двум видам поражения: электрическим травмам и электрическим ударам. Электрические травмы - это повреждения тканей организма под действием проходящего электрического тока, выражающиеся в виде электрического ожога, металлизации кожи, механических повреждений. Электрический удар вызывает возбуждение живых тканей организма под действие проходящего электрического тока, сопровождающееся непроизвольными сокращениями мышц и вторичных телесных травм.
Организация безопасных условий работы на высоте
Важным фактором безопасного ведения монтажных работ является правильная организация рабочих мест, включая систему мероприятий по оснащению рабочего места необходимыми техническими средствами: подмостями, люльками, монтажными столиками, вышками, лестницами, переходными мостиками, а также средствами индивидуальной и коллективной защиты.
Организация рабочего места должна обеспечивать безопасность труда, а также безопасный и удобный доступ к рабочим местам. Состояние охраны труда на рабочих местах влияет на уровень производительности труда рабочих. Там, где рабочее место находится в непосредственной близости от незащищенных ограждениями проемов или края перекрытия, рабочий не чувствует себя спокойно. В этих условиях работы он все время будет опасаться падения с высоты. Поскольку рабочий рассеивает свое внимание на этих факторах, ритм труда не устанавливается, выработка его снижается, а утомляемость в процессе такой работы быстро нарастает.
Для улучшения эффективности организационно-технических мероприятий по предупреждению падения работающих с высоты на монтаже строительных конструкций необходимо и целесообразно рассматривать отдельно проблему обеспечения безопасности работающих при переходе с одного рабочего место на другое и проблему обеспечения безопасности при установке, выверке и проектном закреплении конструктивных элементов, т.е. когда рабочие операции производятся на одном ограниченном рабочем месте на высоте. Переход с одного места на другое осуществляется по лестницам, переходным мостикам и трапам, а часто непосредственно по конструкциям здания.
Эксплуатация строительных машин
Эксплуатацию строительных машин и механизмов, а также их техническое обслуживание следует осуществлять в соответствии с требованиями ГОСТ 12.3.033-84, СниП 3.01.01-85 и инструкций завода-изготовителя.
До начала работы с применением машин руководитель работ должен определить схему движения и установки машин, места и способы зануления, имеющих электропривод.
Запрещается оставлять работающие машины и механизмы без присмотра.
Эксплуатация технологической оснастки и инструмента
Строительно-монтажные работы должны проиводиться с использованием технологической оснастки, средств коллективной защиты и строительного ручного инструмента, определяемых составом нормокомплектов.
Средства подмащивания и другие приспособления, обеспечивающие безопасность производства работ, должны соответствовать требованиям ГОСТ 27321-87, ГОСТ 24258-88 и ГОСТ 28012-89. Средства подмащивания должны иметь ровные рабочие настилы с зазором между досками не более 5мм, а при расположении настила на высоте 1,3м и более-ограждения и бортовые элементы.
Леса в процессе их эксплуатации должны осматриваться прорабом не реже чем через каждые 10 дней.
Подвесные леса и подмости могут быть допущены к эксплуатации только после того как они выдержат испытание в течении одного часа статической нагрузкой, превышающей нормативную на 20%.
Погрузочно-разгрузочные работы
Площадки для разгрузо-погрузочных работ должны быть спланированы и иметь уклон не более 5%.
Грузоподъемные механизмы и грузозахватные приспособления должны удовлетворять требованиям государственных стандартов или технических условий на них.
Строповку грузов следует производить инвентарными стропами или специальными грузозахватными устройствами. Способы строповки должны исключать возможность падения или скольжения застропованного груза.
При выполнении погрузочно-разгрузочных работ не допускается строповка груза, находящегося в неустойчивом положении, а также смещение строповочных приспособлений на приподнятом грузе. Перед разгрузкой панелей, блоков и других сборных железобетонных конструкций монтажные петли должны быть осмотрены, очищены от раствора или бетона и при необходимости выправлены без повреждения конструкции.
При загрузке автомобилей экскаваторами или кранами шоферу и другим лицам запрещается находиться в кабине автомобиля не защищенного козырьками.
Изоляционные работы
При выполнении изоляционных работ с применением огнеопасных материалов, а также выделяющих вредные вещества следует обеспечить защиту работающих от этих факторов.
Для подогрева битумных составов внутри помещений не допускается применять устройства с открытым огнем.
При выполнении работ с применением горячего битума несколькими рабочими звеньями расстояние между ними должно быть не меньше 10м.
Кровельные работы
Допуск рабочих к выполнению кровельных работ разрешается после осмотра прорабом или мастером совместно с бригадиром исправности несущих конструкций крыши и ограждений.
На кровлях с уклоном больше чем 20% рабочие должны применять монтажные пояса.
Размещать на крыше материалы допускается только в местах, предусмотренных проектом производства работ, с принятием мер против их падения, в том числе от действия ветра.
Не допускается проведение кровельных работ во время гололеда, тумана, исключающего видимость в а пределах фронта работ, грозы и ветра со скоростью 15 м/с и более.
Отделочные работы
Средства подмащивания, применяемые при отделочных работах, в местах, под которыми ведутся работы или есть проход, должны иметь настил без зазоров.
Для просушивания помещений строящихся зданий и сооружений при невозможности использования системы отопления следует применять воздухонагреватели (электрические или работающие на жидком топливе). При их установке следует выполнять требования Правил пожарной безопасности .
Малярные составы следует готовить централизованно. При их приготовлении на строительной площадке необходимо использовать для этих целей помещения, оборудованные вентиляцией, не допускающей предельных концентраций вредных веществ в воздухе рабочей зоны.
Запрещается приготовление малярные составы, нарушая требования инструкции завода-изготовителя, краски, а также применять растворители, на которых нет сертификата с указанием о наличии и характере вредных веществ.
Тару с взрывоопасными материалами (лаками, нитрокрасками и т.п.) во время перерывов в работе следует закрывать пробками или крышками и открывать инструментом, не вызывающим искрообразования.
Места, над которыми производятся стекольные работы, необходимо ограждать.
До начала стекольных работ необходимо визуально проверить прочность и исправность оконных переплетов.
Подъем и переноску стекол к месту их установки следует производить с применением соответствующих безопасных приспособлений или в специальной таре.
Защитное заземление
Защитное заземление – преднамеренное соединение с землей частей оборудования, не находящихся под напряжением в нормальных условиях эксплуатпции, но которые могут оказаться под наряжением в резельтате нарушения изоляции электроустановки.

Принципиальная схема защитного заземления.
Ro – заземление нулевой точки трансформатора
ПП – пробивной предохранитель
Rз – заземляющее устройство
Rиз – сопротивление изоляции
Uпр –напряжение прикосновения
Jз – ток замыкания на землю
Jчел – ток протекающий через человека
1 – плавкие вставки
2 – электродвигатель
3 – график распределения потенциалов на поверхности земли
Рассчитаем систему защитного заземления при мощности питающего трансформатора 750 кВА, схема соединения обмоток трансформатора – звезда, электродвигатель асинхронный, серии 4А, U = 380 B, n = 3000 мин , 4А132М2.
Грунт–суглинок с удельным электрическим сопротивлением r=100 Ом
м ,
Вкачестве заземлителей приняты стальные трубы диаметром d=0,08 м и длиной l=2,5 м , распологаемые вертикально и соединенные на сварке стальной полосой 40х4 мм.
Требуемое по нормам допускаемое сопротивление заземляющего
устройства ![]()
Схема заземляющего устройства .

1 – плавкие вставки
2 – электродвигатель
3 – соединительная полоса
4 – трубчатый заземлитель
rрасч=r
y ,
где y - коэффициент сезонности , учитывающий возможность повышения сопротивления грунтав течении года.
l – длина полосы ,
t – расстояние от полосы до поверхности земли
коэффициент использования вертикальных заземлителей
коэффициент использования горизонтального полосового электрода , соединяющего вертикальные электроды групового заземлителя
n – число одиночных стержневых заземлителей
![]()
![]()
![]()
![]()
![]()
![]()
![]()
![]()
![]()
< 4 Ом*м
Окончательно принимаем : 18 заземлителей в виде стальных трубок диаметром d=0,08 м и длиной l=2,5 м , распологаемых вертикально и соединенных на сварке стальной полосой 40х4 мм.
Литература по разделу «Охрана труда»
1. Справочник строителя. «Инженерные решения по охране труда в строительстве». Москва Стройиздат 1985г.
2. В.А.Пчелинцев, Д.В.Коптев, Г.Г.Орлов. «Охрана труда в строительстве».
3. СНиП III-4-80 «Техника безопасности в строительстве».
4. СНиП 21-01-97 «Противопожарные нормы».
5. ГОСТ 12.1.046-85 «Нормы освещения строительных площадок».
Похожие рефераты:
Капитальный и текущий ремонты зданий
Проектирование 9-этажного дома
Расчет и проектирование здания Дома быта на 15 человек
Детский ясли-сад на 140 мест с бассейном
Проектирование четырехэтажной гостиницы в г. Краснодаре
Строительные Нормы и Правила (СНиП 2.08.02-89*)
Разработка технологической карты на возведение кирпичного здания