| Похожие рефераты | Скачать .docx |
Курсовая работа: Земляные работы при планировке и разработке строительной площадки
Федеральное агентство по образованию
Государственного профессионального образования
Тверской государственный технический университет
Кафедра «Строительное производство»
Курсовая работа
по дисциплине «Технология строительных процессов»
на тему: «Земляные работы при планировке и разработке строительной площадки»
Выполнил: студент ИДПО группы ПГС-20-08
Принял: преподаватель Кульков С.А.
Тверь 2011
Содержание:
1.Исходные данные
2. Планировка строительной площадки
2.1 Определение черных отметок
2.2 Определение нулевой отметки
2.3 Определение красных отметок
2.4 Определение рабочих отметок
2.5 Определение положения линии нулевых работ
2.6 Определение объемов грунта выемки и насыпи
2.7 Определение средней дальности перемещения грунта
2.8 Выбор бульдозеров для снятия и восстановления растительного слоя гурта
2.9.Выбор машин для планировки площадки
2.10 Выбор машин для уплотнения грунта
3. Разработка котлована
3.1 Подсчет объемов работ в котловане
3.2 Выбор экскаватора
3.3 Выбор автосамосвалов для вывоза грунта
3.4 Проектирование экскаваторных забоев
4. Выбор средств для водопонижения
Библиографический список
1.Исходные данные
1.1. Место строительства – г. Брянск.
1.2. Начало земляных работ 28.05.2010г., завершение земляных работ 15.07.2010г.
1.3. Грунт: песок, плотность Gсух=1820кг/
, коэффициент фильтрации Кф=15м/сут, весовая влажность W=4%, толщина растительного слоя 0.15м.
1.4. Отметка уровня грунтовых вод 92.0м, отметка водоупора 80м.
1.5. Планировка под нулевой баланс грунта.
1.6. Глубина котлована 3.6м.
1.7. Излишний грунт из котлована вывозится в отвал на 2 км.
1.8. Растительный слой снимается, складируется на расстоянии 30м от границ территории, а после выполнения работ восстанавливается.
1.9. Доставка строительных машин за 70км.
2.Планировка строительной площадки.
2.1 Определение черных отметок.
Проводим дополнительные горизонтали через 0.1м, разбиваем площадку на квадраты со стороной 50м (рис.1)
Рисунок 1.

Находим черные отметки из соотношения:
(рис.2)
Рисунок 2.

Проставляем черные отметки внизу каждого угла планировочной сетки (рис.3).
2.2 Определяем нулевую отметку Н0.
Линия нулевых работ – это граница между выемкой и насыпью из условия их равных объемов.

2.3 Определение красных отметок.
![]()
I=0 ⇒![]()
Проставляем красные отметки вверху каждого угла планировочной сетки.
2.4 Определение рабочих отметок
Рабочая отметка – это разность между красной и черной отметкой, показывающая высоту срезки или насыпи в данной точке.
1) ![]()
2) ![]()
3) ![]()
4) ![]()
5) ![]()
6) ![]()
7) ![]()
8) ![]()
9) ![]()
10) ![]()
11) ![]()
12) ![]()
13) ![]()
14) ![]()
15) ![]()
16) ![]()
17) ![]()
18) ![]()
19) ![]()
20) ![]()
21) ![]()
Проставляем рабочие отметки в левом верхнем углу планировочной сетки.
2.5 Определение положения линии нулевых работ.










Находим промежуточные рабочие отметки h1 и h2:
![]()
![]()
2.6 Определение объемов грунта выемки и насыпи
2.7 Определяем площади фигур F:
![]()
![]()
![]()
![]()
![]()
![]()
![]()
![]()
![]()
![]()
![]()
![]()
![]()
![]()
![]()
![]()
![]()
![]()
Таблица 1. Объемы грунта выемки и насыпи.
| Номера фигур | Рабочие отметки, м | Средняя рабочая отметка, м | Площади фигур, |
Объемы, |
|||||
| Насыпь | Выемка | ||||||||
| h1 | h2 | h3 | h4 | hСР | F | +V | -V | ||
| 1 | 2 | 3 | 4 | 5 | 6 | 7 | 8 | 9 | |
| 1 | -1.58 | -1.22 | -0.48 | -0.24 | -0.88 | 2500 | 2200 | ||
| 2 | -1.22 | -1.04 | -0.24 | -0.03 | -0.633 | 2500 | 1581.25 | ||
| 3 | -1.04 | -1.01 | -0.03 | 0 | -0.52 | 416.5 | 216.58 | ||
| 4 | -1.01 | -0.84 | 0 | 0 | -0.463 | 1925.57 | 890.58 | ||
| 5 | - | 0 | 0 | +0.15 | +0.05 | 157.93 | 7.90 | ||
| 6 | -0.84 | -0.64 | 0 | 0 | -0.37 | 1930 | 714.10 | ||
| 7 | 0 | 0 | +0.15 | +0.28 | +0.108 | 570 | 61.28 | ||
| 8 | -0.64 | -0.47 | 0 | 0 | -0.278 | 1529.5 | 424.44 | ||
| 9 | 0 | 0 | +0.28 | +0.42 | +0.175 | 970.5 | 169.84 | ||
| 10 | -0.47 | -0.30 | 0 | 0 | -0.193 | 1117.25 | 215.07 | ||
| 11 | 0 | 0 | +0.42 | +0.52 | +0.235 | 1382.75 | 324.95 | ||
| 12 | -0.48 | -0.24 | 0 | 0 | -0.18 | 1084.75 | 195.26 | ||
| 13 | 0 | 0 | +0.36 | +0.57 | +0.233 | 1415.25 | 329.05 | ||
| 14 | -0.24 | -0.03 | 0 | 0 | -0.068 | 417.25 | 28.16 | ||
| 15 | 0 | 0 | +0.57 | +0.77 | +0.335 | 2082.75 | 697.72 | ||
| 16 | -0.03 | 0 | 0 | - | -0.01 | 7.79 | 0.01 | ||
| 17 | 0 | 0 | +0.77 | +0.81 | +0.395 | 408.71 | 161.44 | ||
| 18 | 0 | +0.15 | +0.81 | +1.02 | +0.497 | 2083.5 | 1035.50 | ||
| 19 | +0.15 | +0.28 | +1.02 | +0.81 | +0.573 | 2500 | 1432.5 | ||
| 20 | +0.28 | +0.42 | +0.81 | +0.52 | +0.515 | 2500 | 1287.5 | ||
| 21 | +0.42 | +0.52 | +0.52 | +0.29 | +0.442 | 2500 | 1105 | ||
| Итого: | 6612.68 | 6465.45 | |||||||
| Расхождение: | 2.28% | ||||||||
2.8 Определение объемов откосов площадки
строительная площадка земельный работа планировка
Для песка, откосы грунта принимаются с коэффициентом заложения m=2 в соответствии с углами естественного откоса. Коэффициент остаточного разрыхления для песка Кост=1.02 (Субботин С.Л., Справочные данные по землеройно-транспортным работам).
![]()
![]()
![]()
![]()
![]()
![]()
Объем насыпи: Vн=6612.68+2.29+31.81+0.93=6647.71![]()
Объем грунта выемки после укладки в насыпь и уплотнения: Vв=(6465.45+65.38+306.04+0.55)·Кост=6837.42·1.02=6974.17![]()
Расхождение нулевого баланса земляных работ составляет:
![]()
что является допустимым.
Объем выемки превышает объем насыпи. Излишний грунт укладывается в насыпь за счет увеличения размеров площадки в области насыпи. В среднем длина площадки увеличивается на:
![]()
![]()
, ![]()
![]()
2.9 Определение средней дальности перемещения грунта.
Расчеты выполнены в табличной форме (табл. 2). Объемы грунта вычисляются в плотном состоянии (без учета разрыхления).
Таблица 2. Статические моменты объемов грунта выемки и насыпи.
№ фигуры |
Объемы, м3 | Координаты центра тяжести, м | Статические моменты, м4 | |||||
| Насыпь | Выемка | |||||||
| Насыпь | Выемка | xi | yi | Vi xi | Vi yi | Vi xi | Vi yi | |
| 1 | 2200 | 25 | 75 | 55000 | 165000 | |||
| 2 | 1581.25 | 75 | 75 | 118594 | 118594 | |||
| 3 | 216.58 | 104.17 | 75 | 22561 | 16244 | |||
| 4 | 890.58 | 128.59 | 76.84 | 114520 | 68432 | |||
| 5 | 7.90 | 136.11 | 52.53 | 1075 | 415 | |||
| 6 | 714.10 | 174.18 | 80.64 | 124382 | 57585 | |||
| 7 | 61.28 | 177.79 | 55.91 | 10895 | 3426 | |||
| 8 | 424.44 | 223.86 | 84.61 | 95015 | 35912 | |||
| 9 | 169.84 | 226.80 | 59.86 | 38520 | 10167 | |||
| 10 | 215.07 | 273.49 | 88.71 | 58820 | 19079 | |||
| 11 | 324.95 | 276.22 | 63.93 | 89758 | 20774 | |||
| 12 | 195.26 | 22.36 | 38.79 | 4366 | 7574 | |||
| 13 | 329.05 | 27.02 | 14.43 | 8891 | 4748 | |||
| 14 | 28.16 | 68.53 | 44.99 | 1930 | 1267 | |||
| 15 | 697.72 | 76.30 | 21.00 | 53236 | 14652 | |||
| 16 | 0.01 | 102.78 | 49.38 | 1 | 0.5 | |||
| 17 | 161.44 | 104.19 | 24.54 | 16820 | 3962 | |||
| 18 | 1035.50 | 129.17 | 25.00 | 133756 | 25888 | |||
| 19 | 1432.5 | 175.00 | 25.00 | 250688 | 35813 | |||
| 20 | 1287.5 | 225.00 | 25.00 | 289688 | 32188 | |||
| 21 | 1105 | 275.00 | 25.00 | 303875 | 27625 | |||
| Откосы | 371.97 | 71.42 | 95.65 | 26566 | 35579 | |||
| Откосы | 35.03 | 144.72 | 0.93 | 5070 | 32.58 | |||
| Итого | 6647.71 | 6837.42 | - | - | 1202272 | 179691 | 621755 | 525267 |
Координаты центра тяжести выемки:
![]()
Координаты центра тяжести насыпи:
![]()
По найденным координатам на план площадки наносятся точки, обозначающие положения центров тяжести, и из центра тяжести выемки в центр тяжести насыпи проводится вектор (рис. 3), длина которого
![]()
представляет собой среднюю дальность перемещения грунта.
Грунт растительного слоя:
Объем
. Отвал выполнен в виде трапеции. Высота h=1.4м. Длина L=300м. Коэффициент первоначального разрыхления для растительного грунта Кр=1.22. Угол откоса φ=45˚ (Субботин С.Л., Справочные данные по землеройно-транспортным работам). Нижнее основание равно:
![]()
Средняя дальность перемещения:
![]()
2.8 Выбор бульдозеров для снятия растительного слоя грунта
Общий срок земляных работ 35 рабочих дней. На планировку берем половину, то есть 17 дней или 17 смен. Из 17 смен на снятие растительного слоя берем 7 смен.
Разработка грунта производится промежуточными валами по 29 м.
Требуемая сменная производительность звена:
![]()
Сменная эксплуатационная производительность бульдозера на разработку и перемещение грунта:
![]()
Где Т – продолжительность рабочей смены (ч), Тц – продолжительность одного цикла работы (мин.), q – объем грунта в плотном состоянии, перемещаемый бульдозером (
), Кв – коэффициент использования машин по времени, принимаемый равным 0.8, Кп – коэффициент, учитывающий потери грунта в процессе перемещения, определяемый по формуле:
.
Объем грунта в плотном виде, перемещаемый бульдозером, определяется по формуле:

где b – ширина отвала, h – высота отвала, φ – угол естественного откоса грунта (40˚ для растительного грунта), Кр – коэффициент первоначального разрыхления грунта (1.22 для растительного грунта).
Продолжительность цикла работы бульдозера определяется по формуле:
![]()
Где
- продолжительность зарезания грунта (мин.), tп – время, затрачиваемое на переключение скоростей (мин.),
– расчетное расстояние перемещения грунта (м),
– скорость перемещения бульдозера при транспортировании грунта (м/мин),
– дальность перемещения бульдозера без грунта (обратный ход),
- скорость перемещения бульдозера без грунта (м/мин).
Сменную эксплуатационную производительность бульдозера определяем по формуле:

Таблица 3. Технические характеристики бульдозеров (Кузнецов В.Г. Комплексная механизация земляных работ).
| № | Марка трактора | Марка бульдозера | Размеры отвала (м) | Скорость перемещения (м/мин) | Продолжитель ность набора грунта (мин) | Время, затрачиваемое на переключение скоростей | ||||||
Длина |
Высо та |
Груженого | Порожнего | |||||||||
| Vгр | Vп | tн | tп | |||||||||
| b | h | Группа грунта | ||||||||||
| । | ॥ | । | ॥ | । | ॥ | । | ॥ | |||||
| 1 | Т-130 | ДЗ-28 (Д-533) |
3.94 | 1 | 44 | 42 | 83 | 83 | 0.07 | 0.15 | 0.14 | 0.14 |
| 2 | Т-130 | ДЗ-27С (Д532С) |
3.2 | 1.3 | 44 | 42 | 83 | 83 | 0.07 | 0.15 | 0.14 | 0.14 |
| 3 | ДЭТ-250 | Д-385 | 4.53 | 1.4 | 52 | 49 | 117 | 117 | 0.07 | 0.14 | 0.17 | 0.17 |
Вариант 1: бульдозер ДЗ-28 на базе трактора Т-130 при транспортировании на 29 м:

Вариант 2: бульдозер ДЗ-27С на базе трактора Т-130 при транспортировании на 29 м:

Вариант 3: бульдозер Д-385 на базе трактора ДЭТ-250 при транспортировании на 29 м:

Выбор наиболее экономичного бульдозера произведем в таблице 4. Так как по расчету бульдозеры разрабатывали грунт на расстоянии 29 м а не 87м, уменьшим производительность бульдозеров в 3 раза.
Таблица 4. Выбор наиболее экономичного бульдозера
| № | Марка бульдозера | Сменная эксплуатационная производительность 1 бульдозера |
Количество бульдозеров
|
Сменная производительность звена бульдозеров |
Продолжительность выполнения работ в сменах | Стоимость одной машиносмены | Стоимость работы (руб) |
| 1 | ДЗ-28 на Т-130 160л.с. |
172.66 | 4∙172.66= =690.64 |
37 | 37∙6.52∙4=964.96 | ||
| 2 | ДЗ-27с на Т-130 160л.с. |
236.99 | 3∙236.99= 710.97 |
6.33 |
37 | 37∙6.33∙3= 702.56 |
|
| 3 | Д-385 на ДЭТ-250 300л.с. |
453.43 | 2∙453.43= =906.86 |
53 | 53∙4.96∙2=525.76 |
По полученным данным для снятия растительного слоя грунта выбираем 2 бульдозера Д-385 на базе трактора ДЭТ-250 (300л.с). Срок выполнения работ по срезке растительного слоя грунта в этом случае составит 5 машино-смен.
1.10. Выбор машин для планировки площадки. Объем разрабатываемого грунта
Vгр=6837
, плановое число смен Nсм=10, среднее расстояние перемещения грунта Lср=103м. Песок при разработке бульдозерами является грунтом ॥ группы.
, Кр=1.12
Требуемая сменная производительность:
![]()
Для планировки можно использовать бульдозеры. Разработка грунта производится промежуточными валами по 26 м. Технические характеристики бульдозеров представлены в таблице 3.
Вариант 1: бульдозер ДЗ-28 на базе трактора Т-130 при транспортировании на 26 м:

Вариант 2: бульдозер ДЗ-27С на базе трактора Т-130 при транспортировании на 26 м:

Вариант 3: бульдозер Д-385 на базе трактора ДЭТ-250 при транспортировании на 26 м:

Выбор наиболее экономичного бульдозера произведем в таблице 5. Так как по расчету бульдозеры разрабатывали грунт на расстоянии 26 м а не 103м, уменьшим производительность бульдозеров в 4 раза.
Таблица 5. Выбор наиболее экономичного бульдозера
| № | Марка бульдозера | Сменная эксплуатационная производительность 1 бульдозера |
Количество бульдозеров
|
Сменная производительность звена бульдозеров |
Продолжительность выполнения работ в сменах | Стоимость одной машиносмены | Стоимость работы (руб) |
| 1 | ДЗ-28 на Т-130 160л.с. |
226.77 | 3∙226.77= =680.31 |
37 | 37∙10.05∙3=1115.55 | ||
| 2 | ДЗ-27с на Т-130 160л.с. |
311.5 | 2∙311.5= 623 |
37 | 37∙10.97∙2=812.1 | ||
| 3 | Д-385 на ДЭТ-250 300л.с. |
587.7 | 2∙587.7= =1175.4 |
53 | 53∙5.82∙2=616.58 |
Окончательно для выполнения планировочных работ выбираем 2 бульдозера Д-385 на ДЭТ-250 (300л.с.). Число смен при этом будет равно
2.10 Выбор машин для уплотнения грунта
Песок – грунт несвязный. Для его уплотнения могут применяться прицепные или самоходные катки на пневмошинах, вибрационный каток или грунтоуплотняющая машина. Катки должны уплотнять весь отсыпаемый бульдозерами за смену грунт и не простаивать. Грунт не должен переувлажняться или пересыхать. Для полного уплотнения грунта требуется 6-12 проходов катка по одному слою. Рекомендуются следующие размеры захваток (длина гона): для катков на пневмошинах 200м, для виброкатков 200-250м, для трамбующих машин до 200м. При увеличении длины полосы производительность катков возрастает, но при этом появляется опасность высушивания грунта до его окончательного уплотнения. Выбор катка производится в таблице 6.
Таблица 6. Выбор машин для уплотнения грунта.
| № | §ЕНиР | Каток | Длина гона, м |
Принятое число проходок |
Объем грунта, уплотняемого за 1 смену, |
Нвр, маш.-час. На 100 |
Продолжительность работы катка в 1 смену, ч | Принятое количество катков | Стоимость 1 машино-смены, руб. | Количество смен | Стоимость работы, руб. |
| 1 | Е2-1-29 | ДУ-39А, прицепной, масса 25 т, трактор 108 л.с. |
До 100 | 6 | 1175 | 0.58+ 0.11∙2=0.8 | 0.8∙1175/100= 9.4 |
2 | 32 | 6 | 384 |
| 2 | Е2-1-29 | ДУ-16В, прицепной, масса 25 т, трактор 240 л.с. |
До 100 | 6 | 1175 | 0.51+ 0.08∙2=0.67 | 0.67∙1175/100= 7.87 |
1 | 54 | 6 | 324 |
| 3 | Е2-1-3 | ЗУР-25, прицепной, масса 15 т, трактор Т100 108л.с. |
До 100 | 6 | 1175 | 0.46+ 0.08∙2=0.62 |
0.62∙1175/100= 7.29 |
1 | 31 | 6 | 186 |
| 4 | Е2-1-31 | ДУ-31А, самоходный, масса 25 т, |
До 100 | 6 | 1175 | 0.63+ 0.13∙2=0.89 |
0.89∙1175/100= 10.46 |
2 | 60 | 6 | 720 |
| 5 | Е2-1-31 | ДУ-29А, самоходный, масса 16т, |
До 100 | 6 | 1175 | 0.54+ 0.11∙2=0.76 |
0.76∙1175/100= 8.93 |
1 | 45 | 6 | 270 |
Окончательно принимаем прицепной решетчатый каток ЗУР-25.
Техническая характеристика катка ЗУР-25
| Тип катка | прицепной |
| Ширина уплотняемой полосы, м | 2,9 |
| Толщина уплотняемого слоя, м | 0,5 |
| Марка трактора | Т-100 |
| Мощность двигателя трактора, кВт (л.с.) | 79 (108) |
| Масса катка, т | 15 |
Так как для уплотнения отсыпаемого бульдозерами грунта катку достаточно 7.29 часов в смену, то оставшееся время используется для дополнительных проходок. Число проходок будет равно:
![]()
3.Разработка котлована.
3.1 Подсчет объема работ в котловане.

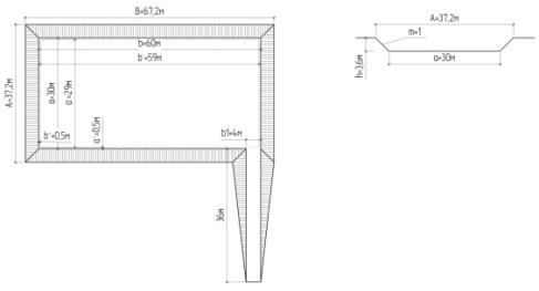
Грунт песок, глубина котлована h=3.6 м, размеры котлована по дну a=30м, b=60м. Коэффициент откоса m=1.
Размеры котлована по верху: А=а+2mh=30+2∙1∙3.6=37.2м
В=b+2mh=60+2∙1∙3.6=67.2м
Объем котлована:

Размеры подземной части сооружения в плане:
![]()
![]()
Где а
=b
=0.5м – рабочие зазоры на уровне дна котлована.
Объем пазух для обратной засыпки:
![]()
Объем грунта для обратной засыпки:
![]()
Для въезда и выезда техники устраивается однополосная въездная траншея шириной b1=4м, уклоном 1:10, т.е. mʹ=10. Объем въездной траншеи:
![]()
![]()
Объем грунта, оставляемого для обратной засыпки траншеи:

Общий объем грунта, оставляемого для обратной засыпки:

Объем грунта, вывозимого за пределы строительной площадки:
![]()
3.2 Выбор экскаватора.
На разработку грунта в котловане берем 18 смен.
Объем грунта, разрабатываемого экскаватором:
![]()
Требуемая норма времени в машино-часах на разработку 100
грунта:

По этой величине по таблицам ЕНиР выбираются возможные марки экскаваторов. Для выбора наиболее экономичного варианта рассматриваются два экскаватора. Один – оборудованный прямой лопатой, второй – обратной. Нормы времени выбранных экскаваторов должны быть наиболее близки к требуемой. Норма времени принимается по ЕНиР с учетом, что грунт песок с объемной массой 1,82 т/м3 для разработки экскаватором является грунтом I группы. Экскаваторы выбираются с гидравлическим приводом, оборудованные ковшом с зубьями, погрузка грунта в основном в транспорт.
Таблица 7. Выбор наиболее экономичного варианта экскаватора
| № | § ЕНиР | Марка экскаватора | НВР , маш-час |
руб. |
||
| 1 | Е2-1-8 | ЭО-4321 прямая лопата q=0.8 м3 |
1.1 | 50 | 550 | |
| 2 | Е2-1-9 | ЭО-4121А обратная лопата q=0.65 м3 | 1.6 | 42 | 672 |
Окончательно принимаем экскаватор ЭО-4121А обратная лопата q=0.65 м3 , так как норма времени наиболее близка к требуемой.
3.3 Выбор автосамосвалов для вывоза грунта
Выбор возможных марок автосамосвалов выполнен в табл. 8. Для заданного по исходным данным грунта (песок с объемной плотностью γ=1,82 т/м3
) принято: группа грунта I, Кн=0.9, Кр=1.12. Для выбранного экскаватора ЭО-4121А обратная лопата q=0.65 м3
, ![]()
Таблица 8. Выбор автосамосвала по грузоподъемности
| Марка автосамосвала | Недогруз (-) или перегруз (+) | |||
| 6 | 5.68 | Маз 503 | 7 | -19% |
| 7 | 6.63 | МАЗ 503 | 7 | -5% |
| 8 | 7.57 | МАЗ 503 | 7 | +8% |
| 9 | 8.52 | КАМАЗ 5511 | 10 | -15% |
| 10 | 9.46 | КАМАЗ 5511 | 10 | -5% |
| 11 | 10.41 | КАМАЗ 5511 | 10 | +4% |
Для дальнейшего расчета принимаются автосамосвалы МАЗ 503 и КАМАЗ 5511, для которых отклонение от фактической грузоподъемности не превышает 10%.
Время погрузки вычисляется по формуле:
![]()
где nк - число ковшей, погружаемых в один автосамосвал; 60 – число секунд в минуте; Кв=0,7 – коэффициент использования рабочего времени экскаватора при погрузке в автосамосвалы; расчетное время цикла экскаватора ЭО-4321:

Время пробега в оба конца:
![]()
Где L=2 км – дальность перемещения грунта;V=25 км/час – расчетная скорость движения; 60 – число минут в часе.
Расчет количества автосамосвалов выполнен в табличной форме (табл. 9). (Коэффициенты tпр , tр , tм см. Субботин С.Л., Справочные данные по землеройно-транспортным работам.)
Таблица 9. Определение требуемого числа автосамосвалов
| Марка автосамосвала | nK | tп , мин |
tпр , мин |
tр , мин |
tм , мин |
tсам , мин |
N |
| МАЗ 503 | 7 | 2.45 | 9.6 | 1,9 | 1.33 | 15.28 | 7 |
| КАМАЗ 5511 | 10 | 3.5 | 9.6 | 1,9 | 2 | 17 | 5 |
Выбирается вариант с меньшей стоимостью. Сравнение вариантов выполнено в табличной форме (табл. 10)
Таблица 10. Выбор наиболее экономичного варианта автосамосвала
| № | Марка автосамосвала | С0, руб/смену | N | nсмен | С, руб |
| 2 | МАЗ 503 | 30 | 7 | 16 | 3360 |
| 3 | КАМАЗ 5511 | 38 | 5 | 16 | 3040 |
Окончательно принимается наиболее экономичный вариант – 5 автосамосвалов
КАМАЗ 5511.
3.4 Проектирование экскаваторных забоев.
Технические характеристики экскаватора ЭО-4121А обратная лопата:
| Вместимость ковша q, м3 | 0,65 |
| Наибольшая глубина копания котлована Нmax, м | 5.14 |
| Наибольшая высота выгрузки Hв, м | 5 |
| Наибольший радиус копания R, м | 9 |
| Наибольший радиус выгрузки в транспорт Rв, м | 7,8 |
| Длина гусеничного хода А, м | 3,42 |
Радиусы копания на уровне дна котлована:
Максимальный радиус
Где hп=2.01м – высота до оси пяты стрелы, b=0.52м – расстояние от оси вращения до оси пяты стрелы
![]()

Минимальный радиус
![]()
Шаг рабочей передвижки экскаватора:
![]()
Максимальная ширина торцевого забоя поверху при движении экскаватора по прямой:
![]()
Максимальная ширина бокового забоя поверху:

Ширина котлована поверху В=37.2м>3.5R=3.5∙9=31.5м, поэтому возможны две схемы проходок. Первая схема – экскаватор движется поперек котлована, пионерная проходка – лобовая, остальные – боковые. При проектировании проходок сначала определяется ширина боковых проходок и выбирается их число, а затем размеры пионерной лобовой проходки (рис. 8). Ширина лобовой проходки определяется как разность между шириной котлована и суммарной шириной всех боковых проходок. Вторая схема – торцевая проходка с несколькими стоянками по ширине котлована (рис. 9). Максимальное расстояние между стоянками экскаватора по ширине котлована равно
. Расстояние от края забоя до ближайшей стоянки принимается не более половины ширины торцевого забоя
. И для первой и для второй схемы ширина котлована должна удовлетворять равенству
![]()
где N – число стоянок экскаватора по ширине котлована В, отсюда

Полученное число округляется до целого в большую сторону, иначе ширина бокового или торцевого забоя превысит максимально возможную величину.
Таким образом, принимается N=5. В этом случае ширина бокового забоя может быть принята равной Вб=12.5 м, что меньше максимально допустимого
. Тогда ширина торцевого забоя
![]()
Эта величина не превышает
.
Для обеих схем проходок число стоянок, длина проходимого экскаватором пути, угол поворота экскаватора от центра тяжести забоя до точки выгрузки в транспорт одинаковы. Грунт обратной засыпки размещается во временных отвалах, которые размещаются по периметру котлована. Объем отвала определяется по той же формуле, что и объем котлована. Эти объемы равны объему грунта, оставляемому для обратной засыпки с учетом первоначального разрыхления.
Массив грунта между плоскостью естественного откоса и плоскостью откоса котлована представляет собой призму обрушения. Временные отвалы должны отстоять от призмы обрушения не менее чем на безопасное расстояние, равное 1 м. Расстояние между бровкой откоса и подошвой отвала (берма) определяется разностью углов откоса котлована (φ) и плотного грунта (φпл) или соответствующими заложениями откосов. Угол естественного откоса для отвала (насыпной грунт) принимается
(Субботин С.Л., Справочные данные по землеройно-транспортным работам).
Объем грунта, оставляемого для обратной засыпки
.
Размер бермы между бровкой котлована и подножием временного отвала равен
![]()
Где mпл=2, m=1– коэффициенты заложения естественного откоса плотного грунта и откоса котлована (Субботин С.Л., Справочные данные по землеройно-транспортным работам), bбез=1м – безопасное расстояние.
Площадь поперечного сечения отвалов при их расположении по 3-м сторонам котлована с учетом разрыхления грунта:
![]()
При треугольном профиле отвала его высота hотв=а/2, а площадь поперечного сечения
, откуда ширина подошвы отвала
.
В этом случае расстояние от оси экскаватора до оси временного отвала равно
![]()
где для принятой схемы проходок С=Вт/2=7.6м.
Полученное расстояние превышает максимальный радиус выгрузки экскаватора ЭО-4121А. Следовательно, экскаватор не может производить выгрузку грунта непосредственно в отвал. В этом случае перемещение грунта обратной засыпки во временные отвалы выполняется автосамосвалами. Высота отвала из условия выгрузки грунта из автосамосвалов без окучивания бульдозерами принимается hотв=1 м, форма поперечного сечения отвала – трапеция.
Площадь поперечного сечения отвалов
![]()
Откуда
![]()
Калькуляция трудовых затрат и зарплаты рабочих при разработке котлована.
Расчет трудовых затрат и зарплаты рабочих выполняется также, как и при планировке площадки. При определении объемов работ нужно учитывать, что объем грунта, разрабатываемый экскаватором с погрузкой в автосамосвалы, равен общему объему грунта за вычетом объема грунта недобора, срезаемого бульдозером.
Объем грунта недобора определяется по формуле
![]()
где а=30м, b=60м – размеры котлована по дну, hнедоб=0.15м – глубина недобора, принимаемая в зависимости от емкости ковша экскаватора.
Объем грунта, разрабатываемый экскаватором
![]()
Норма времени и расценка для экскаватора на разработку и погрузку грунта дается в ЕНиР, при этом для погрузки грунта недобора (разрыхленного бульдозером) группа грунта принимается на одну группу ниже (для грунта II группы по I группе, для грунта III группы по II по I группе и т.д.). Для грунта I группы норму времени и расценку можно не изменять.
Бульдозер для срезки грунта недобора выбирается так, чтобы необходимое для выполнения этой работы время соответствовало времени необходимому экскаватору для погрузки этого грунта в автосамосвалы. Норма времени на разработку 100
грунта । группы для экскаватора ЭО-4121А обратная лопата составляет Нвр=1.6маш.-часов. По § Е2-1-22 подбираем бульдозер ДЗ-19 (Д-494А) на базе трактора Т-100, норма времени которого приближена к норме времени экскаватора.
Технические характеристики бульдозера ДЗ-19 (§ Е2-1-22):
| Наименование показателя | ДЗ-19 (Д-494А) |
| Тип отвала | Неповоротный |
| Длина отвала, м | 3,03 |
| Высота отвала, м | 1,3 |
| Управление | Гидравлическое |
| Мощность, кВт (л.с.) | 79 (108) |
| Марка трактора | Т-100 |
| Масса бульдозерногооборудования, т | 1,53 |
При определении нормы времени и расценки работы бульдозера можно принять, что бульдозер через каждые 25 м будет отсыпать промежуточные валы, из которых экскаватор будет грузить грунт в автосамосвалы. Тогда для ДЗ-19 на базе трактора Т-100 на 100 м3 грунта ॥ группы (песок) норма времени по ЕНиР
![]()
расценка
![]()
Трудоемкость транспортирования грунта автосамосвалами определяется произведением числа смен работы на количество автосамосвалов. Число смен работы автосамосвалов равно числу смен работы экскаватора на погрузке грунта.
Продолжительность работы экскаватора при погрузке грунта и транспортировании за пределы строительной площадки на 2 км
![]()
Таким образом, для 5 автосамосвалов КАМАЗ 5511, определенных в п. 3.3, число машино-смен равно
![]()
При транспортировании грунта во временные отвалы для обратной засыпки в пределах строительной площадки требуется меньшее число автоавтосамосвалов ввиду меньшего расстояния транспортировки. Число автосамосвалов в этом случае определяется полностью аналогично п. 3.3, но с учетом фактической дальности перемещения грунта. Используются те же автосамосвалы КАМАЗ 5511. Приближенно средняя дальность перемещения грунта может быть принята равной ширине котлована В=37.2м=0.0372 км. Расчетная скорость при таком расстоянии принимается 15 км/час. Время пробега в оба конца
![]()
время цикла автосамосвала
![]()
требуемое число автосамосвалов
![]()
Полученное число округляется до ближайшего большего N=3.
Число смен работы экскаватора на погрузке в автосамосвалы грунта обратной засыпки
![]()
Количество машино-смен автосамосвалов 3∙3.74=11.22.
Для определения зарплаты шоферов 3 класса в ценах 1988 г. принимается часовая тарифная ставка 0,7 руб. или 0.7∙8=5.6руб за один рабочий день.
Ведомость используемых механизмов и машин приведена в табл. 11.
Калькуляция трудовых затрат и зарплаты рабочих представлена в табл. 13.
Таблица 11. Ведомость используемых механизмов и машин
| № п/п | Наименование и тип | Марка | Количество |
| 1 | Экскаватор обратная лопата | ЭО-4121А | 1 |
| 3 | Бульдозер | ДЗ-19 | 1 |
| 4 | Автосамосвалы | КАМАЗ 5511 | 5 |
4. Выбор средств для водопонижения
В соответствие с заданием коэффициент фильтрации грунта Кф=15м/сутки, превышение уровня грунтовых вод над уровнем дна котлована S=0.58м, превышение уровня грунтовых вод над уровнем водоупора Н=12м, глубина котлована h=3.6м.
Котлован полностью находится в водоносном слое.
Мощность водоносного слоя, равная превышению уровня грунтовых вод над уровнем водоупора, Н=12м.
Мощность безнапорного водоносного слоя, равная превышению уровня грунтовых вод над уровнем дна котлована, S=0,58 м.
Мощность напорного водоносного слоя
![]()
Котлован по форме близок к квадрату (отношение длины к ширине 60/30=2), поэтому приведенный радиус котлована находится по формуле

Радиус влияния водопонижения
![]()
Где принято Т=3 суток – время стабилизации режима водопонижения,
μ=0,2 – коэффициент водоотдачи грунта.
Приток воды в котлован

Пропускная способность одного иглофильтра
![]()
где dl=0.05м2 – произведение диаметра фильтрового звена на его длину для существующих иглофильтровых установок.
Необходимое число иглофильтров
![]()
Расстояние между иглофильтрами (м)
![]()
где Lʹ=67.2+2∙0.5=68.2м, Вʹ=37.2+2∙0.5=38.2м – длина и ширина контура расположения иглофильтров с учетом их расположения на расстоянии 0,5 м от бровки откоса.
Принимается наибольшее возможное расстояние между иглофильтрами l=3 м, тогда окончательное число иглофильтров
![]()
Установка одного яруса иглофильтров обеспечивает понижение уровня грунтовых вод в центре котлована на 4-5 м. Поэтому при заданной глубине котлована достаточно одного яруса иглофильтров.
Требуемая общая длина водосборного коллектора
![]()
Поскольку приток воды в котлован невелик, всего 28 м3 /час, вместо трудоемкого монтажа сложной водопонижающей иглофильтровой установки целесообразно применить открытый водоотлив.
Для водоотлива следует принять 2 центробежных насоса С-374 с производительностью 24 м3 /час каждый, глубиной всасывания 6 м и высотой подъема 4 м.
Библиографический список
1. ЕНИР. Общая часть. М.: Прейскурантиздат, 1987. 37 с.
2. ЕНИР Сборник Е2. Земляные работы, вып. 1. Механизированные и ручные земляные работы (ЕНИР Е2). М.: Стройиздат, 1988.
3. СНиП 3.02.01-87. Земляные сооружения, основания и фундаменты / Госстройиздат СССР. М.: ЦИТП Госстрой СССР, 1988. 128 с.
4. СНиП 12-03-2001. Безопасность труда в строительстве. Ч. 1. Общие требования. СПб.: Изд-во ДЕАН, 2006. 96 с.
5. СНиП 12-04-2002. Безопасность труда в строительстве. Ч. 2. Строительное производство. СПб.: Изд-во ДЕАН, 2006. 80 с.
6. Евдокимов В.А. Механизация и автоматизация строительного производства. Л.: Стройиздат, 1985. 296 с.
7. Черненко В.К., Галимуллин В.А., Чебанов Л.С. Проектирование земляных работ. Программированное пособие. Киев: Выща школа, 1989.
160 с.
8. Хамзин С.К., Карасев А.К. Технология строительного производства. Курсовое и дипломное проектирование. Санкт-Петербург: Изд-во Интеграл, 2006. 216 с.
9. Кузнецов В.Г. Комплексная механизация земляных работ. Методические указания к курсовому и дипломному проектированию для специальностей 1202, 1205. Тверь: ТГТУ, 1987.
10.Кузнецов В.Г. Водоотвод, водоотлив и водопонижение при производстве земляных работ. Тверь: ТГТУ, 1989. 32 с. (№ 492 в библиотеке ТГТУ).
11.Дехтерева А.А., Гультяев В.И. Вертикальная планировка площадки и комплексная механизация планировочных работ. Тверь: ТГТУ, 2007.
28 с.
12.Субботин С.Л., Справочные данные по землеройно-транспортным работам. Методические указания к выполнению курсовой работы по дисциплине «Технология строительных процессов» и дипломному проектированию для студентов специальности ПГС заочного обучения. Тверь: ТГТУ, 2009.
13. Макарова Т.Ю. Земляные работы. Учебно-методическое пособие для курсового проектирования по дисциплине Технология строительных процессов и дипломного проектирования студентов спец. 270102 – ПГС всех форм обучения. – Тверь. ТГТУ, 2009. – 58с.
Похожие рефераты:
Технология возведения подземной части здания
Строительство автомобильной дороги
Земляные работы по устройству котлована
Технология и организация земляных работ
Строительство автомобильных дорог
Технология и организация в городском строительстве и хозяйстве