| Похожие рефераты | Скачать .docx |
Курсовая работа: Организация производства на предприятия общественного питания
МИНИСТЕРСТВО труда, занятости и социальной защиты РЕСПУБЛИКИ ТАТАРСТАН
ГОСУДАРСТВЕННОЕ БЮДЖЕТНОЕ ОБРАЗОВАТЕЛЬНОЕ УЧРЕЖДЕНИЕ
ВЫСШЕГО ПРОФЕССИОНАЛЬНОГО ОБРАЗОВАНИЯ
«НАБЕРЕЖНОЧЕЛНИНСКИЙ ГОСУДАРСТВЕННЫЙ ТОРГОВО-ТЕХНОЛОГИЧЕСКИЙ ИНСТИТУТ»
(ГБОУ ВПО НГТТИ)
Кафедра Технологии продуктов питания
Специальность 260501.65
Технология продуктов общественного питания
ОТЧЕТ
по производственной практике
Набережные Челны
2010
Содержание
Введение
1. Раздел Организация снабжения и складского хозяйства
2. Раздел Организация производства. Оперативное планирование
3. Раздел Система сертификации продукции и услуг предприятия. Нормативно-технологическая документация на предприятии
4. Индивидуальное задание
Заключение
Список использованных источников
Введение
столовая снабжение складское хозяйство ассортимент
Общественное питание представляет собой отрасль народного хозяйства, основу которой составляют предприятия, предназначенные для производства кулинарной продукции, мучных кондитерских и булочных изделий, их реализации и организации потребления, а также характеризующиеся единством форм организации производства и обслуживания потребителей и различающиеся по типам, специализациям.
С переходом на рыночные отношения в нашем городе увеличилось и количество предприятий общественного питания. Посещаемость населением таких предприятий растет с каждым днем. Это можно объяснить увеличением уровня жизни населения, интересом к культуре зарубежных стран и к их кухне в частности, отсутствие времени для приготовления пищи, стремление к разнообразию своего досуга.
Для прохождения производственной практики в качестве стажера- технолога я выбрала ООО «ЕлАЗ-автомаркет». Данное предприятие предоставило мне всю необходимую информацию и документацию для заполнения дневника и написания данного отчета.
Площадь торгового зала составляет 408м2 . Автосалон «ЕлАЗ-автомаркет» расположен по адресу: г. Елабуга. Производство работает с 08:00 до 17:00, автосалон работает с 09:00 до 18:00.
Состав работников:
-директор автосалона,
-заведующий производством,
-повара (1 человек- IV разряда, 3 человека- IIIразряда),
-экспедитор,
-посудомойщица,
-кассир,
-охранник,
-грузчик,
-подсобный рабочий.
Ассортимент продукции относительно большой и соответствует утвержденному ассортиментному перечню продуктов. В столовой используются такие методы продажи как самообслуживание. Кроме того, в отделе самообслуживания покупатель может самостоятельно приобрести товар, а также продавец может обслужить покупателя через прилавок, расчеты будет производить покупатель в узле расчета.
Выбрано очень удачное расположение: можно легко подъехать, имеет место для парковки.
Выпускаемая продукция:
Салаты:
«Витаминный», «Здоровье», «Оригинальный», «Мясной», «Гренадер», «Гурман», «Искушение», «Питательный», «Полевой».
Первые блюда:
Борщ мясной, Суп острый с картофелем и рисом, Суп гречневый с яйцом и зеленью, Суп-лапша с курицей и зеленью, Суп с рыбными фрикадельками, Окрошка сборная мясная.
Вторые блюда:
Морской язык запеченный с овощами, Говядина «Аппетитная», Бефстроганов, Голубцы с мясом, Манты по-казански со сметаной, Пельмени с бульоном и зеленью, Котлеты по-киевски, Курица с овощами.
Гарниры: Каша гречневая (рассыпчатая), Каша рисовая, Картофельное пюре, Макароны с сыром.
Мучные кондитерские изделия:
Слоеное пирожное с яблоками и курагой, Хрустящие орешки, Губадья с кортом, Пирожное «Медовое», Эклеры.
Напитки: Чай с сахаром, Чай с лимоном, Чай с медом, Чай зеленый, Кофе, Кофе с молоком, Кофе со сливками, Какао.
Столовая при автосалоне «ЕлАЗ-автомаркет»- предприятие общественного питания, предназначенное для производства холодных и горячих закусок, первых и вторых блюд. Реализация готовой продукции осуществляется через торговый зал. Разнообразие изделий зависит от предпочтений персонала, условий труда и других факторов. Режим работы зависит от графика работы автосалона.
Все требования согласно трудовому кодексу РФ, который гласит, что рабочее время не должно превышать 160 часов в месяц, соблюдаются, повара работают по 8 часов.
Я ознакомилась с графиком выхода на работу служащих и изучила его.
Во всех производственных, административных, складских и вспомогательных помещениях на видных местах вывешены таблички с указанием номера телефона вызова пожарной охраны.
На предприятие приказом установлен соответствующий противопожарный режим:
-определен порядок обесточивания электрооборудования в случае пожара и по окончании рабочего дня;
-регламентированы: порядок проведения временных огневых и других пожароопасных работ; порядок осмотра и закрытия помещений после окончания работы; действия работников при обнаружении пожара;
-определен порядок и сроки прохождения противопожарного инструктажа и занятий по пожарно-техническому минимуму, а также назначены ответственные за их проведение.
-определены места и допустимое количество единовременно находящихся в помещениях сырья, полуфабрикатов и готовой продукции;
-установлен порядок уборки горючих отходов и пыли, хранения промасленной спецодежды.
1 Раздел. Организация снабжения и складского хозяйства
1.1 Организация снабжения
На предприятие поступают как полуфабрикаты, так и другие продукты: овощи, фрукты, мука, мясо и др. Поставка товара осуществляется в зависимости от вида продукции: скоропортящиеся продукция молоко, хлеб поставляются ежедневно с утра. Остальная продукция доставляется в течение дня. (см. таблица 1.1)
1.1Формы, маршруты, способы доставки и оплаты продуктов
| Продукты | Поставщики | Формы | Маршруты | Способы доставки |
Способы оплаты |
| Фрукты | ЧП Иванов | Транзитный | Маятниковый | Централизованный | Безналич-ный |
| Овощи | Оптовая база Елабуга | Транзитный | Маятниковый | Централизованный | Безналич-ный |
| Мясо | Ип Кудряшов | Транзитный | По кольцу | Централизованный | Безналич-ный |
| Птица | Ип Кудряшов | Транзитный | По кольцу | Централизованный | Безналич-ный |
| Молочная продукция | Елабужский молочный комбинат | Транзитный | По кольцу | Централизованный | Безналич-ный |
| Мука | Оптовая база Елабуга | Транзитный | Маятниковый | Централизованный | Безналич-ный |
| Бакалея | Оптовая база Елабуга | Транзитный | По кольцу | Централизованный | Безналич-ный |
| Приправы, сахар | Оптовая база Елабуга | Транзитный | По кольцу | Централизованный | Безналич-ный |
| Масло, майонез | Оптовая база Елабуга | Транзитный | По кольцу | Централизованный | Безналич-ный |
| Консервированная продукция | Оптовая база Елабуга | Транзитный | По кольцу | Централизованный | Безналич-ный |
| Кофе, чай | Оптовая база Елабуга | Транзитный | По кольцу | Централизованный | Безналич-ный |
| Рыба | Ип Кудряшов | Транзитный | Маятниковый | Централизованный | Безналич-ный |
| Яйца | Оптовая база Елабуга | Транзитный | Маятниковый | Централизованный | Безналич-ный |
| Хлеб | Ип Хуснутдинов | Транзитный | По кольцу | Централизованный | Безналич-ный |
Таблица 1.2- Ритмичность поставок
| Поставщики | Пн | Вт | Ср | Чт | Пт | Сб | Вс |
| Ип Хуснутдинов | 7-8 | 7-8 | 7-8 | 7-8 | 7-8 | 7-8 | 7-8 |
| Елабужский молочный комбинат | 8-8:30 | 8-8:30 | 8-8:30 | 8-8:30 | |||
| Оптовая база Елабуга | 11-12 | 11-12 | 11-12 | ||||
| Ип Кудряшов | 10-11 | 10-11 |
Прием товара осуществляется складским работником, он проверяет дату изготовления, внешний вид товара и количество. Прием товара по накладным. На предприятие транзитная форма снабжения «поставщик- предприятие». Доставка продуктов ведется централизованным способом. Доставка товара осуществляется силами и средствами поставщиков, поэтому на предприятие не имеется свой транспорт. Завоз продуктов в основном производится по кольцевым маршрутам. Формируется список потенциальных поставщиков, который постоянно обновляется и дополняется. Критерии выбора поставщиков ценой и качеством поставляемой продукции, а также надежностью поставок, сроки выполнения заказов, удаленность поставщика от потребителя.
1.2 Организация складского хозяйства
Складские помещения предприятий общественного питания служат для приемки поступающих от поставщиков продуктов, сырья и полуфабрикатов, их краткосрочного хранения и отпуска. Помещение имеет удобную связь с производственными помещениями.
Приемка товара осуществляется складскими работниками. Складские помещения размещаются в отдельных помещениях, они имеют удобную связь с производственными помещениями.
Комплекс складских операций данного предприятия представляет собой следующую последовательность:
-разгрузка транспорта;
-приемка товаров;
-размещение на хранение;
-отпуск товаров из мест хранения;
-внутрискладское перемещение грузов.
В состав складской группы входят помещения для хранения продуктов, которые делятся на охлаждаемые и неохлаждаемые. В охлаждаемых помещениях хранят скоропортящиеся продукты: мясо, рыба, жиры, молочные и др. Требуемая температура в камерах поддерживается с помощью механического охлаждения. В не охлаждаемых помещения хранят овощи напитки, сухие продукты.
К оборудованию складского помещения относятся стеллажи, подтоварники для размещения и хранения продуктов, весоизмерительное, холодильное оборудование.
Для предотвращения потерь и порчи продуктов в складских помещениях обеспечивается оптимальный режим хранения товаров в соответствие с их физико-химическими свойствами.
Из складского помещения предприятие общественного питания отпуск продуктов осуществляется на производство по требованию заведующим производством. На основании требования бухгалтерия оформляет требования- накладные, которые подписываются главным бухгалтером и руководителем предприятия, а после отпуска товаров- заведующим складом и получившим товар. При отпуске кладовщик соблюдает очередность: товары поступившие раньше отпускаются в первую очередь.
Таблица 1.3-Состав складских помещений предприятия
| Место размещение холодильного оборудования | Вид сырья подлежащий хранению |
Количество товара требуемого в день (кг) |
Срок хранения товарных запасов (сут) |
Количество товара подлежащий хранению (кг) |
Условия хранения товара | Способ хранения товара | Оборудование необходимое для размещения товара |
| Помещение для хранения овощей без охлаждения | Морковь свежая | 4 | 2 | 8 | +2…4о С Влажность 85% |
Насыпной | Контейнер для хранения |
| Картофель | 95 | 2 | 100 | +2…4о С Влажность 85% |
Насыпной | Контейнер для хранения | |
| Лук репчатый | 10 | 2 | 20 | +2…4о С Влажность 85% |
Насыпной | Контейнер для хранения | |
| Чеснок | 1 | 5 | 5 | +2…4о С Влажность 85% |
Ящичный | Стеллаж | |
Складская группа / Помещение для хранения овощей, фруктов, зелени, молочно-жировой гастроно-мии |
Лимон свежий | 4 | 2 | 8 | +2…4о С Влажность 85% |
Ящичный | Холодиль-ный шкаф |
| Апельсины свежие | 5,5 | 2 | 11 | +2…4о С Влажность 85% |
Ящичный | Холодиль-ный шкаф | |
| Лук репчатый | 10 | 2 | 20 | +2…4о С Влажность 85% |
Ящичный | Холодиль-ный шкаф | |
| Перец сладкий свежий | 10 | 2 | 20 | +2…4о С Влажность 85% |
Ящичный | Холодиль-ный шкаф | |
| Огурцы свежие | 20 | 2 | 40 | +2…4о С Влажность 85% |
Ящичный | Холодильный шкаф | |
Салат зеленый свежий |
9 | 2 | 18 | +2…4о С Влажность 85% |
Ящичный | Холодиль-ный шкаф | |
| Лук зеленый | 0,5 | 2 | 1 | +2…4о С Влажность 85% |
Ящичный | Холодиль-ный шкаф | |
| Яблоки свежие | 7 | 2 | 14 | +2…4о С Влажность 85% |
Ящичный | Холодиль-ный шкаф | |
| Бананы свежие | 7 | 2 | 14 | +2…4о С Влажность 85% |
Ящичный | Холодиль-ный шкаф | |
| Груши свежие | 7 | 2 | 14 | +2…4о С Влажность 85% |
Ящичный | Холодиль-ный шкаф | |
| Мандарины свежие | 6 | 2 | 12 | +2…4о С Влажность 85% |
Ящичный | Холодиль-ный шкаф | |
| Виноград свежий | 6 | 2 | 12 | +2…4о С Влажность 85% |
Ящичный | Холодиль-ный шкаф | |
| Сливки 20% | 6 | 2 | 12 | +2…4о С Влажность 85% |
Стеллажный | Холодильный шкаф | |
| Молоко | 4 | 2 | 8 | +2…4о С Влажность 85% |
Стеллажный | Холодильный шкаф | |
| Масло сливочное | 5 | 2 | 10 | +2…4о С Влажность 85% |
Стеллажный | Холодильный шкаф | |
| Маргарин столовый | 2 | 2 | 4 | +2…4о С Влажность 85% |
Стеллажный | Холодильный шкаф | |
| Сыр | 4 | 2 | 8 | +2…4о С Влажность 85% |
Стеллажный | Холодильный шкаф | |
| Сметана | 0,5 | 2 | 1 | +2…4о С Влажность 85% |
Стеллажный | Холодильный шкаф | |
| Майонез | 9 | 2 | 18 | +2…4о С Влажность 85% |
Стеллажный | Холодильный шкаф | |
| Телятина мороженная | 1 | 3 | 3 | -2…-6о С Влажность 85-90% |
Насыпной | Морозильный ларь | |
| Говядина мороженая | 3,5 | 3 | 10,5 | -2…-6о С Влажность 85-90% |
Насыпной | Морозильный ларь | |
| Почки говяжьи мороженые | 1,5 | 1 | 1,5 | -2…-6о С Влажность 85-90% |
Насыпной | Морозильный ларь | |
| Кости пищевые мороженые | 4 | 3 | 12 | -2…-6о С Влажность 85-90% |
Насыпной | Морозильный ларь | |
| Куры 1 категории потрош. мороженые | 23 | 3 | 69 | -2…-6о С Влажность 85-90% |
Насыпной | Морозильный ларь | |
| Свинина (котлетное мясо) мороженая | 2 | 3 | 6 | -2…-6о С Влажность 85-90% |
Насыпной | Морозильный ларь | |
| Говядина (котлетное мясо) мороженая | 2 | 3 | 6 | -2…-6о С Влажность 85-90% |
Насыпной | Морозильный ларь | |
| Свиная корейка мороженая | 5 | 3 | 15 | -2…-6о С Влажность 85-90% |
Насыпной | Морозильный ларь | |
| Говядина (вырезка) мороженая | 6 | 3 | 18 | -2…-6о С Влажность 85-90% |
Насыпной | Морозильный ларь | |
| Складская группа / кладовая сухих продуктов | Томатное пюре | 2 | 7 | 14 | 10…12 о С Влажность 65% |
Стеллажный | Стеллаж/ кладовая сухих продуктов |
| Масло растительное | 10 | 7 | 70 | 10…12 о С Влажность 65% |
Стеллажный | Стеллаж/ кладовая сухих продуктов | |
| Мука пшеничная | 6 | 5 | 30 | 10…12 о С Влажность 65% |
Стеллажный | Стеллаж/ кладовая сухих продуктов | |
| Кофе | 1 | 10 | 10 | 10…12 о С Влажность 65% |
Стеллажный | Стеллаж/ кладовая сухих продуктов | |
| Сахар | 7 | 7 | 49 | 10…12 о С Влажность 65% |
Стеллажный | Стеллаж/ кладовая сухих продуктов | |
| Шоколад | 0,5 | 5 | 2,5 | 10…12 о С Влажность 65% |
Стеллажный | Стеллаж/ кладовая сухих продуктов | |
| Чай | 0,1 | 5 | 0,5 | 10…12 о С Влажность 65% |
Стеллажный | Стеллаж/ кладовая сухих продуктов | |
| Соль | 2 | 10 | 20 | 10…12 о С Влажность 65% |
Стеллажный | Стеллаж/ кладовая сухих продуктов | |
| Перец черный молотый | 0,04 | 10 | 0,4 | 10…12 о С Влажность 65% |
Стеллажный | Стеллаж/ кладовая сухих продуктов | |
| Лавровый лист | 0,03 | 10 | 0,3 | 10…12 о С Влажность 65% |
Стеллажный | Стеллаж/ кладовая сухих продуктов | |
| Лимонный сок | 0,1 | 10 | 1 | 10…12 о С Влажность 65% |
Стеллажный | Стеллаж/ кладовая сухих продуктов | |
| Панировочные сухарики | 0,2 | 10 | 2 | 10…12 о С Влажность 65% |
Стеллажный | Стеллаж/ кладовая сухих продуктов | |
| Уксус 3%-ный | 1 | 10 | 10 | 10…12 о С Влажность 65% |
Стеллажный | Стеллаж/ кладовая сухих продуктов |
2 Раздел. Организация производства. Оперативное планирование
2.1Организация работы заготовочных цехов
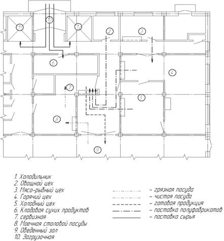
В мясорыбном цехе предусматривается обработка мяса, рыбы и птицы в одном помещении. Размещен рядом с горячем цехом. Выделены инструменты, тары, разделочные доски, разделочные ножи, маркированные для обработки мяса и рыбы. Также на предприятие имеется мясорубка, холодильные камеры. На предприятие мясо поступает полутушами в замороженном виде. Процесс обработки мяса состоит из следующих операций:
Мясо размораживают, обмывают, обсушивают, делают обвалку, жиловку и зачистку, а затем приготавливают полуфабрикаты. Мясо поступает на производство от крупных поставщиков.
Обработка рыбы проходит в том же цеху, где и обработка мяса. В цехе находится перегородка разделяющая обработку рыбы от мясного. В замороженном виде рыба поступает на предприятие в основном потрошеная.
Доброкачественность сырья производится при приемке. Проверяют цвет запах, состояние тушек. Организация труда, общее руководство цехом осуществляет заведующая производством. В цехе три работника повар четвертого разряда осуществляет разруб мяса, обвалку частей. За приготовление полуфабрикатов отвечает повар четвертого разряда, а третий осуществляет обработку мяса птицы и рыбы.
Овощной цех размещен рядом с холодным. Цех оснащен инструментами, инвентарем для выполнения определенных операций. Механическая кулинарная обработка овощей ведется в овощном цехе и осуществляется следующим образом:
Овощи сортируют по размерам степени загрязненности и пригодности, овощи моют вручную удаляя загрязнения, удаляют глазки и плодоножки, очищенные овощи ополаскивают. Имеется раковина для мытья рук персонала.
Режим работы цехов с 8:00 до 17:00.
Производственная программа мясного цеха
Таблица 2.1- Количество сырья для переработки
| Наименование | Количество, кг |
| Телятина мороженная | 3 |
| Говядина мороженая | 10,5 |
| Почки говяжьи мороженые | 1,5 |
| Кости пищевые мороженые | 2,5 |
| Свинина окорок мороженый | 9 |
| Свинина (котлетное мясо) мороженая | 6 |
| Говядина (котлетное мясо) мороженая | 6 |
| Свиная корейка мороженая | 8 |
| Говядина (вырезка) мороженая | 7 |
| Куры 1 категории потрош. мороженые | 9 |
2.2 Организация работы доготовочных цехов.
Горячий цех является основным цехом предприятия, он располагается рядом с мясорыбным цехом. В нем завершается технологический процесс приготовления пищи: осуществляется тепловая обработка продуктов и полуфабрикатов производится тепловая обработка продуктов для холодных блюд. Из горячего цеха готовые блюда поступают непосредственно в раздаточные витрины для реализации потребителю. Производственная программа горячего цеха составляется на основе ассортимента блюд. Работают 1 повар четвертого разряда и 3 повара III разряда 5 дней в неделю по 8 ч. Горячий цех оснащен следующим оборудованием: жарочный шкаф, комфорочная плита, два стола, стеллажи, одна микроволновка, весы один холодильник, две мойки, доски, ножи.
Блюда, приготавливаемые в горячем цехе соответствуют требованиям государственных стандартов. Санитарное состояние в норме. Имеются моечные ванны поставлены вытяжки. Имеются раковины для мытья рук персонала. Имеются резиновые коврики.
На предприятие холодному цеху отведено отдельное рабочее место в общем производственном помещении, так он реализует большой ассортимент салатов для столовой.
Продукция цеха после приготовления и порционирования не подвергается вторичной обработке, поэтому строго соблюдается санитарные правила при организации производственного процесса, а повара- правила личной гигиены.
Цеха работают с 8:00 до 17:00.
2.3 Организация работы вспомогательных цехов
Моечная размещена напротив холодного цеха. В моечной не установлены подтоварники для использованной посуды, имеются стеллажи для чистой посуды и инвентаря, моечные ванны с тремя отделениями для замачивания, мытья и дезинфекции использованной посуды и ее ополаскивания. Моют посуду щетками с применением моющих средств. После обработки инвентарь, кухонную посуду и внутрицеховую тару просушивают и хранят в специально выделенном месте на стеллажах высотой не менее 0,5-0,7 м от пола.
Я бы посоветовала приобрести посудомоечную машину. Это во- первых, ускорит работу, а во-вторых, улучшит санитарное состояние посуды.
2.5 Организация работы торговых групп помещений
В торговом зале отведено специальное место для реализации продукции, имеются витрины.
Режим работы соответствует режиму работы торгового зала с 8:00 до 17:00, обслуживают продавцы.
Имеет удобную связь с горячим, холодным и мясорыбным цехом.
В холодильных витринах, поддерживается определенная температура, способствующая долговременному хранению продукции.
Таблица -2.10 Загрузка торгового зала по часам работы
| № | Часы работы предприятия | Оборачиваемость 1 места за день | Средний % загрузки зала | Количество посетителей за 1 час |
| 1 | 8.00-9.00 | - | 0 | - |
| 2 | 9.00-10.00 | 1 | 10 | 2 |
| 3 | 10.00-11.00 | 1 | 15 | 4 |
| 4 | 11.00-12.00 | 1 | 90 | 20 |
| 5 | 12.00-13.00 | 1 | 80 | 15 |
| 6 | 13.00-14.00 | 1 | 60 | 10 |
| 7 | 14.00-15.00 | 1 | 50 | 9 |
| 8 | 15.00-16.00 | 1 | 60 | 11 |
| 9 | 16.00-17.00 | 1 | 40 | 8 |
| Итого: | 79 |
2.6 Оперативное планирование
На предприятие утвержден план товарооборота на месяц, на основании этого плана составляется производственная программа на день.
Оперативное планирование работы производства включает в себя следующие элементы:
Составление планового меню на неделю, на его основе разработать план-меню, отражающего дневную производственную программу предприятия; составление и утверждение меню;
Расчет потребности в продуктах для приготовления блюд, предусмотренных планом меню, и составление требования на сырье;
Оформление требований накладной на отпуск продуктов из кладовой на производстве и получение сырья;
Распределение сырья между цехами и определение заданий поварам в соответствии с планом меню.
Вывод:
Предприятие не достаточно механизировано, я бы внесла свои предложения. В холодный цех необходимо приобрести овощерезку, так как в основном делают все в ручную, а это повышает риск передачи продуктам инфекции и бактерии. Также мясорыбный цех я бы разделила перегородкой.
3 Раздел. Контроль качества продукции на предприятие
3.1 Сертификация продукции и услуг предприятия
Сертификации подлежат следующие виды услуг общественного питания:
-услуги питания (ресторанов, кафе, столовых, баров, закусочных и других предприятий общественного питания, предприятий общедоступной сети);
-услуги по изготовлению кулинарной продукции и кондитерских изделий;
- услуги по реализации кулинарной продукции.
Сертификация услуг общественного питания включает:
-подача заявки на сертификацию (форма заявки)
-рассмотрение и принятие решения по заявке
-оценка соответствия услуг установленным требованиям, включая: анализ документов, проверку организации технологического процесса и оказания услуги на месте
-принятие решения о выдаче (отказе в выдаче) сертификата соответствия
-выдача сертификата соответствия и разрешения на применение знака соответствия
-инспекционный контроль за сертифицированными услугами.
При сертификации проверяются характеристики услуг и используются методы проверок, позволяющие:
-провести идентификацию услуги, в том числе проверить её принадлежность к классификационной группировке в соответствии нормативными и техническими документами
-полно и достоверно подтвердить соответствие услуги требованиям, направленным на обеспечение её качества и безопасности для жизни, здоровья и имущества потребителя, окружающей среды, установленным в нормативных документах, регламентирующих эту услугу.
Перечень основных документов для сертификации услуг
-Устав (копия)
-Свидетельство о внесении в реестр юридических лиц МНС (копия)
-Свидетельство о регистрации ИНН в МНС (копия)
-Справка Госкомстата (копия)
-Договор аренды (субаренды) или на право собственности (копия)
-Санитарно-эпидемиологическое заключение ЦГСЭН на вид деятельности (копия)
-Ассортимент изготовляемой и реализуемой продукции общественного питания (копия)
-Заключение органа Госпожнадзора на объект сертификации (копия)
-Лицензия на розничную реализацию алкогольной продукции (копия)
-Сертификаты соответствия, декларации о соответствии, санитарно-эпидемические заключения на товары (выборочно копии)
-Договоры с обслуживающими организациями (на предоставление коммунальных услуг, вывоз мусора, дезобработку, ремонт оборудования)
-Технические и технологические документы организации (копии)
-Список оборудования, в т.ч. средств измерения
-Список персонала (производственного и обслуживающего)
-Протоколы лабораторных испытаний продукции в АИЛ (по микробиологическим и физико-химическим показателям)
Перечень услуг предоставляемых предприятием согласно ГОСТу
Классификация услуг общественного питания
4.2.1. Услуга питания ресторана представляет собой услугу по изготовлению, реализации и организации потребления широкого ассортимента блюд и изделий сложного изготовления всех основных групп из различных видов сырья, покупных товаров.
4.3. Услуги по изготовлению кулинарной продукции и кондитерских изделий включают:
- изготовление кулинарной продукции и кондитерских изделий по заказам потребителей, в том числе в сложном исполнении и с дополнительным оформлением на предприятиях общественного питания;
- изготовление блюд из сырья заказчика на предприятии;
4.4. Услуги по организации потребления продукции и обслуживания включают:
- организацию и обслуживание торжеств, семейных обедов и ритуальных мероприятий;
- организацию питания и обслуживание участников конференции, семинаров, совещаний, культурно - массовых мероприятий в зонах отдыха и т.д.;
- услугу официанта (бармена) по обслуживанию на дому;
- доставку кулинарной продукции и кондитерских изделий по заказам потребителей, в том числе в банкетном исполнении;
- доставку кулинарной продукции, кондитерских изделий и обслуживание потребителей на рабочих местах и на дому;
- доставку кулинарной продукции и кондитерских изделий по заказам и обслуживание потребителей в пути следования пассажирского транспорта (в том числе в купе, каюте, салоне самолета);
- бронирование мест в зале предприятия общественного питания;
- организацию рационального комплексного питания.
4.5. Услуги по реализации кулинарной продукции включают:
- реализацию кулинарной продукции вне предприятия;
- отпуск обедов на дом;
- комплектацию наборов кулинарной продукции в дорогу, в том числе туристам для самостоятельного приготовления кулинарной продукции .
4.6. Услуги по организации досуга включают:
- организацию музыкального обслуживания;
- организацию проведения концертов, программ варьете и видеопрограмм;
3.2 Нормативно-технологическая документация на предприятии
Нормативно-технической документации данного предприятия является: сборник рецептур, технико-технологические карты, технологические карты, технологические схемы, аппаратно-технологическая схема производства, спецификация технологического оборудования, расчетная ведомость расхода сырья по меню, отчеты о работе, акты о контроле и.т.д.
При составление технологических карт, калькуляционных карточек, технико-технологических и технологических схем руководствуются сборником рецептур блюд и кулинарных изделий. Вся документация содержится в компьютере и в бумажной форме.
Данное предприятие предоставило мне весь перечень нормативно-технической документации, ознакомившись с которой, я пришёл к выводу, что она соответствует всем требованиям, нормам и содержится в полном порядке.
Качество продукции производства, прежде всего, зависит от качества поступающего сырья. Данное предприятие, заключая договор о поставке продовольственных товаров уверено в поставщике. На предприятие внедрена система управления качеством продукции. Система качества является не только средством обеспечения качества товара, но и критерием оценки надежности поставщика.
Основным документом при разработке и внедрении системы качества является «Руководство по качеству», в котором изложены справочные данные (стандарты, нормативно-технологическая документация и т.д.). Проверка качества может быть внешней и внутренней.
Внешний контроль - это контроль со стороны местной администрации, СанПиН.
Внутренний контроль осуществляет администрация предприятия: директор, заведующая производства. Начало рабочего дня начинается с проверки рук. Работники проходят медосмотр 1 раз в три месяца
Важнейшими условиями выпуска блюд высокого качества является четкое соблюдение всеми работниками норм закладки сырья и осуществление технологического процесса в строгом соответствии с установленными требованиями.
Перечень блюд пользующихся большим спросом:
Салаты: «Оригинальный», «Гурман», «Питательный». Кратковременное хранение блюд для реализации осуществляется в среднетемпературных витринах.
Незаправленные салаты должны быть проданы в течение 18 часов с момента изготовления, заправленные майонезом или соусом - в течение 12 часов, причем при условии, что они хранятся при температуре не выше 4 градусов по Цельсию. Добавление в салаты с заправками яиц сокращает срок хранения до шести часов.
3.3 Контроль качества выпускаемой продукции
Качество понимается как свойства и характерные особенности товара, которые вызывают удовлетворение потребителя, и как отсутствие недостатков, усиливающее чувство удовлетворения у клиента.
Контроль качества выпускаемой продукции производится при изготовлении. Предприятие осуществляет доставку и контроль за поступлением продуктов с сертификатами качества. Разрабатывает меры по совершенствованию технологических процессов, соблюдение которых обеспечивает производство продукции в строгом соответствии документацией. Осуществляет профилактический контроль оборудования на технологическую точность.
Обязательно делают запись о том, что сырье, пищевые продукты, полуфабрикаты для данного блюда (изделия) соответствуют нормативным документам (ГОСТам, ОСТам, ТУ) и имеют сертификаты и удостоверения качества.
Показатели качества и безопасности. Указывают органолептические показатели блюда (вкус, запах, цвет, консистенция), физико-химические и микробиологические показатели, влияющие на безопасность блюда.
Показатели пищевого состава и энергетической ценности. Приводят данные о пищевой и энергетической ценности блюда, которые важно для организации питания определенных групп потребителей (диетическое, лечебно-профилактическое, детское питание и др.)
Качество приготовленной ими пищи периодически проверяют работники вышестоящих звеньев.
В блюдах из мяса, птицы и рыбы оценивают правильность нарезки, кусков, их форму, отмечая наличие кусков, нарезанных вдоль волокон или сильно деформированных, состояние панировки.
Степень готовности и консистенцию мясопродуктов, птицы и рыбы определяют проколом поварской иглой: она должна легко входить в толщу продукта. Определяют цвет на поверхности, и на разрезе.
Консистенция изделий из рубленого мяса должна быть рыхлой, сочной, слегка упругой.
При бракераже овощных гарниров обращают внимание на качество очистки овощей и картофеля, тщательность удаления темных пятен и загнивших мест, правильную и аккуратную нарезку их; у жареных овощей, на наличие или отсутствие сильно подгорелых Готовность их определяют раздавливанием, разжевыванием или разрезанием. Консистенция должна быть мягкой и сочной.
Лабораторный контроль заключается в проверке качества и безопасности сырья, вспомогательных материалов, готовой продукции и соблюдения технологических и санитарно-гигиенических режимов производства блюд, кондитерских изделий осуществляется по хоздоговору с Госсанэпиднадзором.
Таблица -3.1 Контроль качества выпускаемой продукции
| Этапы контроля | Ответственное лицо или группа лиц (должность) | Точки контроля | Нормативно-техническая документация | Оперативные действия при невыполнении контролируемых качественных показателей |
| Входной | Зав. производством | Приемка продуктов по количеству, путем пересчета тарных мест, взвешивания . если товар поступил в исправной таре, кроме проверки веса брутто предприятие имеет право потребовать вскрытия тары и проверки веса нетто | Товарно-транспортная накладная, с/ф, сертификаты качества и соответствия | При обнаружении недостачи составляется односторонний акт о выявленной недостаче, этот товар хранится отдельно, обеспечивается его сохранность и вызывается поставщик по скоропортящимся товарам немедленно после обнаружения недостачи, по остальным не позднее 24 часа. Также составляется акт о несоответствии. |
| Операционный | Зав. производством, шеф-повар | Правильность технологического процесса, соблюдение рецептур, качество поступающего сырья, готовой продукции и полуфабрикатов | Технологические карты, технико-технологические карты, сборники рецептур, стандарты | Подбор сырья с определенными технологическими свойствами, совершенствование и модернизация технологический операций и режимов с учетом свойств исходного сырья, сортировка готовой продукции по градациям качества. |
| Выходной | Зав. производством, шеф-повар | Подача блюд и изделий, вложение сырья, температура подачи | Технико-технологические карыт, стандарты | Замена блюда, взыскание с повара |
Вывод:
Контроль качества продукции на предприятии ведется. Все сырье, поступающее на предприятие подкреплено соответствующими сертификатами и свидетельствами. Готовые изделия хранятся строго в рамках срока реализации.
Индивидуальное задание
Выбор эффективных технологий производства
Для эффективной работы столовой и его рентабельности необходимо использовать новые технологии производства кулинарной продукции. Главная заслуга здесь принадлежит современному, высокотехнологичному оборудованию, которое является приоритетной составляющей введения успешного бизнеса в этой области.
Я рекомендую располагать оборудование и организовывать зоны приготовления в зависимости от операций, которые будут выполняться. Правильное расположение машин увеличивает эффективность работы персонала, избавляет от ненужных движений, ошибок, трат сырья и увеличивает доходы. А также
- разработать эргономичный и ресурсосберегающий проект кухни;
- внедрить эффективные технологии управления персоналом;
- сократить до необходимого минимума количество персонала;
- отладить стабильность качества блюд;
- внедрить прозрачную и надежную систему учета;
Заключение
Столовая при автосалоне «ЕлАЗавтомаркет» может удовлетворить требованиям любого человека. Работа персонала кухни идет слаженно. Все операции по приготовлению пищи идут в определенном порядке.
Проходя практику на данном предприятии я ознакомилась с организационно-производственной структурой предприятия, системой материально-технического снабжения, изучил торгово-технологическое оборудование и основные технологические операции производства и установил их влияние на формирование качества готовых изделий, изучила ассортимент кондитерской продукции, методы и формы контроля качества и учета сырья, полуфабрикатов и готовых изделий, изучила основные виды нормативных документов и другие вопросы указанные в программе.
Ассортимент относительно разнообразен, блюда выпускаемые данным предприятием высокого качества и приготовлены с соблюдением всех технологических норм.
Контроль качества продукции на предприятии ведется. Все сырье, поступающее на предприятие подкреплено, соответствующими сертификатами и свидетельствами. Готовые изделия хранятся строго в рамках срока годности.
Ознакомилась с работой торгового зала, моечной. Самостоятельно заполняла документы и принимал товар. Изучила способы оформления и отпуска блюд.
Наблюдая за ходом работы на предприятии, я бы хотела внести свои предложения по улучшению работы:
-разделение мясорыбного цеха на две самостоятельные зоны
-приобретение овощерезательной машины, кухонных ножей
Также у меня есть и замечания по ходу работы:
-при приготовлении блюд повара не до конца соблюдают правила технологического процесса;
-отсутствует дисциплина у персонала.
Список использованных источников
1. Оборудование предприятий торговли и общественного питания. Учебник/ Под ред. В.А.Гуляева. - Москва: ИНФРА-М, 2004. - 543 с.
2. Организация производства на предприятия общественного питания. Учебник/ Под ред. Л.А.Радченко.- Ростов н/Д.:ФЕНИКС,2004.- 352 с.
3. Технология приготовления пищи. Учебник. Н.И. Ковалев, М.Н. Куткина, В.А. Кравцова. Москва: Деловая литература, Омега-Л, 2005.468 с.
4. Васюкова А., Пивоваров В.И., Пивоваров К. В. Организация производства и управления качеством продукции в общественном питании: учеб. пособие. - М. Издательско-торговая корпорация «Дашков и К» 2006.-296с.
5. Зайко Г.М. Организация производства и обслуживания на предприятиях общественного питания. – Москва – Ростов – на – Дону: «МарТ», 2005. – 192с.
6. Смагина И.Н., Смагин Д.А. «Организация коммерческой деятельности в общественном питании». - М.: «Эксмо», 2005. – 336с.
7 Общественное питание. Сборник нормативных документов. – М.: «Гросс Медиа», 2005. – 208 с.
8. Сборник рецептур национальных блюд и кулинарных изделий для предприятий общественного питания всех форм собственности. – М.: «Гамма Пресс», 2003. – 832 с.
9. Усов В.В. «Организация производства и обслуживания на предприятиях общественного питания». - М: «Академия», 2002. – 416 с.
10. ГОСТы, ОСТы в общественном питании (в соответствии с Федеральным законом "О техническом регулировании"). - М.: Книга сервис, 2006.-128с.
11 Рубина Е.А. Санитария и гигиена питания: Учеб. пособие для студ. вузов. - М.: Академия, 2005. - 288 с.
Приложение № Характеристика технологического оборудования
| Наименование оборудования | Марка | Коли чество |
Назначение | Характеристика (мощность, производительность и т. д.) | Общее время использования, ч |
| Холодильный шкаф | Polair Rosella |
6 |
Предназначены для хранения рабочего запаса продуктов. |
150 | 24 |
| Весы производственные | SW-0,2 | 4 | Взвешивание продуктов | 4 | |
| Пекарьский шкаф | UNOX | 1 | предназначен для выпечки только кондитерских и мелких хлебобулочных изделий | 7 | |
| СВЧ печь | LG | 1 | предназначены для подогрева готовых блюд | 2 | |
| Плиты электрические | 2 | служат для жарки и варки на плитной посуде | 8 | ||
| Плита | UNOX | 2 | служат для жарки и варки на плитной посуде. | 6 | |
| Мясорубка | MUM300 | 1 | предназначены для измельчения мяса и рыбы | 2 |

Похожие рефераты:
Разработка проекта сендвич-бара
Технология продукции общественного питания
Разработка нового предприятия общественного питания
П. Я Григорьев Холодные блюда и закуски
Разработка проекта молодежного кафе высшей категории на 85 посадочных мест
Организация предприятия общественного питания
Разработка проекта современного предприятия общественного питания
Технология продуктов общественного питания
Отчет по преддипломной практике в Ночном клубе Барин