| Похожие рефераты | Скачать .docx | Скачать .pdf |
Курсовая работа: Ресторан "Медведь"
Комитет по образованию
Администрации Волгоградской области
Волжский филиал Государственного образовательного учреждения
среднего профессионального образования
«Волгоградский колледж ресторанного сервиса и торговли»
Допущено к защите__________________
КУРСОВАЯ РАБОТА
По дисциплине_____________________________________
Тема______________________________________________
Специальность_____________________________________
Студент___________________________________________
Курс_____________
Группа___________
Шифр____________
Преподаватель_______________________________________________
Оценка______________________________________________________
Волжский
2008-2009 уч.г.
Содержание.
1. Введение.
2. Характеристика предприятия.
3. Перечень услуг предоставляемых предприятием.
4. Ассортиментный минимум блюд предприятий общественного питания.
5. Производственная программа.
6. Расчетно-пояснительная часть.
6.1 Расчет пропускной способности зала.
6.2 Составление расчетного меню.
6.3 Составление технологических карт
6.4 Организация производства.
6.5 Структура производства.
6.6 Характеристика цехов.
6.7 Организация рабочих мест.
6.8. Организация складского хозяйства.
7. Характеристика и расчёт холодного цеха.
7.1 Холодный цех.
7.2 Составление технологических таблиц.
7.3 Расчёт производственного персонала холодного цеха.
7.4 Организация труда.
7.5 Расчёт почасовой реализации блюд для холодного цеха.
7.6 Расчёт численности работников холодного цеха.
7.7 Организация работы в цехе.
7.8 Технологическая линия холодного цеха.
7.9 Технологический расчет оборудования.
7.9.1 Расчет холодильного оборудования.
7.9.2 Расчет и подбор немеханического оборудования.
7.9.3 Расчет и подбор кухонной посуды и инвентаря.
7.9.4 Расчет площади холодного цеха.
7.9.5 Планировка холодного цеха.
9. Заключение.
Список использованных источников.
Приложение.
1.Введение.
Пища-основа жизни человека. От того, как человек питается, зависит его здоровье, настроение, трудоспособность. Следовательно, питание человека-это не только его личное, но и общественное дело. Французскому физиологу Бормат-Саварену принадлежит выражение: «Животное насыщается, человек ест, умный человек умеет питаться». «Уметь питаться» ничего общего не имеет с утолением голода. Умение питаться предполагает разумное, умеренное и своевременное питание, то есть культуру питания. И этой очень непростой науке-культуре питания необходимо учиться, учиться смолоду, пока человек еще не приобрёл болезней от неумеренного питания. Так что кухня-дело очень серьезное и требует к себе уважительного отношения.
В прошлые века русский народ отличался крепким здоровьем. Не последнюю роль в этом играла наша национальная кухня. Благодаря своей неповторимости и самобытности она давно стала популярной в мире. Что же ели-пили сами, да и гостей потчевали наши предки богатыри?
Закуски - одна из особенностей русской кухни, отличающейся таким образом холодных и горячих закусочных блюд, особенно рыбных, какого нет ни в одной зарубежной кулинарии. Закусками могут быть салаты, винегреты, паштеты, заливные блюда, студни, отварное и жареное мясо, рыба, домашняя птица, дичь с острыми приправами и соусами, всевозможные соления и маринады, и прочие кулинарные изделия.
Развивая свой слух и удовлетворяя его надобность в удовольствии, человечество создало музыку. Изобразительные искусства появились как следствие потребности человеческого глаза в прекрасном. Обоняние и вкусовые ощущения не менее важны, чем зрение и слух. В их угоду и возникло «кухонное» искусство-кулинария. Полет фантазии, и авторская импровизация в кулинарном творчестве ограничены всего двумя условиями: полезно и вкусно.
Каждый человек знает, что пища необходима для нормальной жизнедеятельности организма.
В течение всей жизни в организме человека непрерывно совершается обмен веществ и энергии. Источником необходимых организму строительных материалов и энергии являются питательные вещества, поступающие из внешней среды в основном с пищей. Если пища не поступает в организм, человек чувствует голод. Но голод, к сожалению, не подскажет, какие питательные вещества и в каком количестве необходимы человеку. Мы часто употребляем в пищу то, что вкусно, что можно быстро приготовить, и не задумываемся о полезности и доброкачественности употребляемых продуктов.
Человек потребляет количество пищи, примерно в 1400 раз превышающее вес его тела. Около 70 химических элементов в различных сочетаниях требуется организму для завершения своего развития. Этот материал дает нам пища. Человек в процессе жизни совершает огромную внутреннюю и внешнюю работу. Лежит ли он, отдыхая, занимается ли физическим или умственным трудом, - он расходует энергию в том или ином виде. При полном покое человек затрачивает на внутреннюю работу около 1780 калорий в сутки. Так, у взрослого молодого мужчины, ведущего физически умеренно активный образ жизни, суточные энергозатраты составляют 2800-3000 ккал, из них примерно 60% расходуется на поддержание жизни в состоянии полного покоя, около 7% на пищеварение и остальное количество главным образом на физическую активность.
Врачи утверждают, что полноценное рациональное питание - важное условие сохранения здоровья и высокой работоспособности взрослых, а для детей еще и необходимое условие роста и развития.
Для нормального роста, развития и поддержания жизнедеятельности организму необходимы белки, жиры, углеводы, витамины и минеральные соли в нужном ему количестве.
Нерациональное питание является одной из главных причин возникновения сердечнососудистых заболеваний, заболеваний органов пищеварения, болезней, связанных с нарушением обмена веществ.
Регулярное переедание, потребление избыточного количества углеводов и жиров – причина развития таких болезней обмена веществ, как ожирение и сахарный диабет.
Они вызывают поражение сердечнососудистой, дыхательной, пищеварительной и других систем, резко понижают трудоспособность и устойчивость к заболеваниям, сокращающая продолжительность жизни в среднем на 8–10 лет.
Рациональное питание – важнейшее непременное условие профилактики не только болезней обмена веществ, но и многих других.
Пищевой фактор играет важную роль не только в профилактике, но и в лечении многих заболеваний. Специальным образом организованное питание, так называемое лечебное питание – обязательное условие лечения многих заболеваний, в том числе обменных и желудочно-кишечных.
Лекарственные вещества синтетического происхождения в отличие от пищевых веществ являются для организма чужеродными. Многие из них могут вызвать побочные реакции, например, аллергию, поэтому при лечении больных следует отдавать предпочтение пищевому фактору.
В продуктах многие биологически активные вещества обнаруживаются в равных, а иногда и в более высоких концентрациях, чем в применяемых лекарственных средствах. Вот почему с древнейших времен многие продукты, в первую очередь овощи, фрукты, семена, зелень, применяют при лечении различных болезней.
Многие продукты питания оказывают бактерицидные действия, подавляя рост и развитие различных микроорганизмов. Так, яблочный сок задерживает развитие стафилококка, сок граната подавляет рост сальмонелл, сок клюквы активен в отношении различных кишечных, гнилостных и других микроорганизмов. Всем известны антимикробные свойства лука, чеснока и других продуктов. К сожалению, весь этот богатый лечебный арсенал не часто используется на практике. Рациональное питание предусматривает необходимость при составлении суточного рациона учитывать, с одной стороны, потребности организма в основных питательных веществах и энергии, с другой – содержание этих веществ и их энергетическую ценность. Необходимо строго соблюдать санитарно-гигиенические правила приготовления пищи. Тщательно мыть, подвергать термической обработке продукты питания. Все это делается для того, чтобы в организм человека не попали биологические загрязнители болезнетворные и паразитические организмы. И всё вышеперечисленное должны сочетать в себе предприятия питания.
Создание необходимых условий для удовлетворения потребностей людей в полноценном питании по месту работы, учебы, жительства и отдыха, повышение качества обслуживания и предоставление дополнительных услуг предприятиями общественного питания важнейшие социально-экономические задачи государства. Первостепенное значение в этом отношении приобретает комплекс мероприятий, направленных на рациональную организацию и развитие сети предприятий общественного питания, строительство новых предприятий и реконструкцию действующих, внедрение прогрессивных технологий и форм обслуживания. Развитие и совершенствование отрасли общественного питания в значительной степени зависит от ее материально-технической базы, внедрения в проекты прогрессивных научно-технических достижений.
2.Характеристика предприятия
Наш ресторан «Медведь» – предприятие общественного питания, отличающееся наилучшим оснащением, сервировкой, интерьером и высококвалифицированным уровнем обслуживания посетителей. Наш ресторан относится к классу «Люкс» отличающийся изысканным интерьером, высоким уровнем комфортности, широким ассортиментом фирменных и заказных блюд сложного приготовления и разнообразием коктейлей.
При входе в наш ресторан Вас встретит красочная вывеска и вежливый швейцар.
Интерьер ресторана выполнен в стиле русской деревенской избы. У Нас преобладает много древесных тонов, что придает теплоту и уют обстановке. Стены расписаны живописцами под цветущий сад с преобладанием одноименного цветка. По всему залу развешаны картины и гобелены со сценами охоты - это придает торжественность, а расставленные кадки с цветами придают живость и свежесть обстановки. Пол выполнен мастерами в виде фрески из разных пород древесины. В центре Вы увидите великолепный фонтан с экзотическими рыбками и водными лилиями. Освещение в виде маленьких огоньков, разбросанных по всему потолку, регулируется от яркого света - днем, до приглушенного - вечером.
В Вашем распоряжении опытный персонал и лучшие повара.
В ресторане «Медведь» оплата полученной продукции производится как по наличному, так и по безналичному расчету, а для постоянных клиентов предусмотрены скидки. За обеденную продукцию, отпускаемую по специальному меню, посетители расплачиваются по средствам кассы (с вручением чека официанту).
В нашем ресторане используется фарфоровая посуда с эмблемой ресторана в виде буквы «М». Фужеры, бокалы и рюмки выполнены из хрусталя инкрустированные позолотой. Приборы выполнены из нержавеющей стали с выгравированным символом ресторана.
Ресторан «Медведь» относится к предприятию с полным циклом производства, то есть с осуществлением обработки сырья, выпуску полуфабрикатов и готовой продукцией, а затем ее реализацией.
Здесь Вас ждет всегда хорошая музыка, а для любителей танцевать у Нас имеется специально оборудованная танцплощадка.
Наш ресторан оснащен девятью двухместными, шестью четырехместными, четырьмя шестиместными и еще двумя столиками в VIP секторах, выполненные из массива красного дерева.
Нас легко найти: мы находимся по адресу г.Волжский ул.Мира,26 тел.7568994.
У Нас удобная автостоянка и поэтому у Вас не будет проблем с парковкой.
Разрабатываемое предприятие, ресторан «Медведь» на 100 мест с обслуживанием официантами. Для ресторана коэффициент потребления блюд m=3.0.Ресторан работает по 2 колонке сборника рецептур кулинарных изделий. Ресторан работает без выходных.
Из нормативных документов используют СНиП 2.08.02—89 «Общественные здания и сооружения», в которых приведены нормы площади на одно место в залах предприятии общественного питания.
Ресторан — предприятие общественного питания, предназначенное для организации отдыха потребителей. Ассортимент реализуемой продукции по сравнению с кафе не ограниченный. Реализует фирменные, заказные блюда, мучные кондитерские изделия, напитки, покупные товары. Блюда в основном сложного приготовления, расширенный ассортимент горячих напитков (чай, кофе, молоко, шоколад и др.) . Рестораны делятся на классы:
Люкс
Высший
Первый
Рестораны с обслуживанием официантами в своем меню имеют фирменные, заказные блюда.
Рестораны предназначены для отдыха посетителей, поэтому большое значение имеет оформление торгового зала декоративными элементами, под освещение, цветовое решение. Микроклимат поддерживается системой при-точно-вытяжной вентиляции. Мебель применяется стандартная облегченных конструкций, столы должны иметь полиэфирное покрытие. Из столовой посуды применяется: металлическая из нержавеющей стали, полуфарфоровая фаянсовая, сортовая стеклянная.
В ресторане кроме торговых залов должны быть вестибюль, гардероб, туалетные комнаты для посетителей.
Норма площади на одно посадочное место в ресторане 1,6 м2.
3. Перечень услуг предоставляемых предприятием
Услуга – это результат деятельности, направленный на удовлетворение потребностей потребителя.
Услуги оказываются во всех предприятиях общественного питания в соответствии с правилами оказания услуг общественного питания, которые утверждены постановлением Правительства РФ от 15.08.97, а так же с Общероссийским классификатором услуг населению ОК 022-93 и ГОСТом
Р 50764-99.
Общие требования:
Услуги должны содержать: перечень услуг и условия их организации, цены, фирменное наименование предлагаемых услуг, сведения о весе (объеме) порций готовых блюд, сведения о сертификации услуг, подлинный сертификат, копию сертификата. Все услуги предприятия должны иметь сертификат, табачные и алкогольные товары лицензию позволяющие продажу данного вида товара.
Услуги, предоставляемые нашим рестораном сводятся в таблицу 1.
Таблица 1
| Код | Наименование |
| 12200 | Услуги общественного питания |
| 122101 | Услуга питания ресторана |
| 122200 | Услуги по изготовлению кулинарной продукции и кондитерских изделий |
| 122201 | Изготовление кулинарной продукции и кондитерских изделий по заказам потребителей, в том числе в сложном исполнении и с дополнительным оформлением на предприятиях общественного питания |
| 122300 | Услуги по организации потребления и обслуживания |
| 122303 | Организация и обслуживание торжеств, семейных обедов и ритуальных мероприятий |
| 122310 | Бронирование мест в зале предприятий общественного питания |
| 122313 | Организация рационального комплексного питания |
| 122500 | Услуги по организации досуга |
| 122501 | Услуги по организации музыкального обслуживания |
| 122502 | Организация проведения концертов, программ варьете и видеопрограмм |
| 122600 | Информационно-консультативные услуги |
| 122603 | Организация обучения кулинарному мастерству |
| 122700 | Прочие услуги общественного питания |
| 122704 | Гарантированное хранение ценностей потребителей |
| 122705 | Вызов такси по заказу потребителя (посетителя предприятия общественного питания) |
| 122706 | Парковка личных автомобилей потребителя на организованную стоянку у предприятия общественного питания |
4. Ассортиментный минимум блюд предприятий общественного питания
Следующим этапом оперативного планирования составление планового меню. Наличие планового меню дает возможность обеспечить разнообразие блюд по дням недели, избавить от повторения одних и тех же блюд, обеспечить четкую организацию, снабжения производства сырьем и полуфабрикатами, своевременно направляя заявки на оптовые базы, промышленные предприятия, правильно организовать технологический процесс приготовления пищи и труд работников производства. В плановом меню указывается ассортимент и количество каждого наименования.
Эта разработка базируется на материале, отражающем количество и состав потребителей, состояние и возможные колебания конъюнктуры спроса на отдельные виды кулинарной продукции, перспективу снабжения предприятия продуктами, требования рационального питания, учитывается квалификация поваров, техническое оснащение предприятия.
Примерный ассортимент блюд (Ассортиментный минимум) – это определенное количество наименований холодных блюд, горячих блюд, напитков, характерных для различных предприятий общественного питания.
Примерный ассортимент выпускаемой и реализуемой продукции для ресторана класса «Люкс» приведен в таблице 2
Таблица 2
| Холодные блюда и закуски | 13 |
| Горячие закуски | 2 |
| Супы | 4 |
| Горячие блюда | 15 |
| Сладкие блюда | 4 |
| Напитки | 6 |
| Кондитерские изделия | 6 |
5. Производственная программа
Успешное осуществление производственного процесса зависит от оперативного планирования и правильной организации работы на предприятиях общественного питания.
Сущность оперативного планирования заключается в составлении производственной программы предприятия. Вопросами планирования производственной программы занимаются заведующие производством (заместители), начальники производственных цехов, бригадиры, работники бухгалтерии.
Производственная программа – обоснованный план выпуска всех видов продукции собственного производства.
Оперативное планирование включает в себя следующие элементы:
Составление планового меню на неделю и разработку на его основе меню – плана, отражающего дневную программу предприятия.
Расчет потребности в продуктах для приготовления блюд, предусмотренных планом – меню.
Оформление требования – накладной на отпуск продуктов из кладовой.
Распределение сырья между цехами и бригадами.
Производственная программа составляется на основании:
Графика загрузки торгового зала и расчета посетителей.
Определения количества блюд реализуемых за день.
Составление плана – меню.
Расчет сырья, необходимого для приготовления данных блюд.
Составление технологических карт.
Сборники блюд и кулинарных изделий наряду с действующими в отрасли стандартами и техническими условиями являются основными нормативно – технологическими документами для предприятий общественного питания.
6. Расчетно-пояснительная часть.
6.1. Расчет пропускной способности зала.
Определяем количество потребителей. Количество потребителей определяется на основе графика загрузки зала и оборачиваемости мест в зале в течение дня.
При определении потребителей по графику загрузки зала основными данными для составления графика являются: режим работы предприятия; оборачиваемость мест в зале в течение данного часа; процент загрузки зала по часам его работы и вместимость зала.
Количество потребителей, обслуживаемых за один час работы предприятия, определяется по формуле:
Nr=P*Cr*d/100 (1)
где Nr – количество потребителей, обслуживаемых за один час работы предприятия, чел.;
Р – вместимость зала, чел.;
Cr– оборачиваемость мест в зале в течение данного часа;
d – средний процент загрузки зала за час %.
Расчеты по определению количества посетителей в зале ресторана представлены в таблице 3.
Таблица 3.
| Часы работы предприятия. | Оборачиваемость места за час. Cr | Средний процент загрузки зала. d | Количество потребителей за час. Nr | Коэффициент перерасчета блюд K. |
| 8-9 | 1,5 | 30 | 31 | 0,047 |
| 9-10 | 1,5 | 30 | 31 | 0,047 |
| 10-11 | 1,5 | 30 | 31 | 0,047 |
| 11-12 | 1,5 | 40 | 42 | 0,064 |
| 12-13 | 1,5 | 90 | 94 | 0,143 |
| 13-14 | 1,5 | 100 | 105 | 0,16 |
| 14-15 | 1,5 | 90 | 94 | 0,143 |
| 15-16 | 1,5 | 50 | 52 | 0,079 |
| 16-17 | 1,5 | 40 | 42 | 0,064 |
| 17-18 | 1,5 | 30 | 31 | 0,047 |
| 18-19 | 0,5 | 60 | 21 | 0,032 |
| 19-20 | 0,5 | 90 | 31 | 0,047 |
| 20-21 | 0,5 | 90 | 31 | 0,047 |
| 21-22 | 0,5 | 60 | 21 | 0,032 |
Производим расчет количества потребителей по формуле (1).
8-9 Nr=70*1.5*30/100=31 16-17 Nr=70*1.5*40/100=42
9-10 Nr=70*1.5*30/100=31 17-18 Nr=70*1.5*30/100=31
10-11 Nr=70*1.5*30/100=31 18-19 Nr=70*0.5*60/100=21
11-12 Nr=70*1.5*40/100=42 19-20 Nr=70*0.5*90/100=31
12-13 Nr=70*1.5*90/100=94 20-21 Nr=70*0.5*90/100=31
13-14 Nr=70*1.5*100/100=105 21-22 Nr=70*0.5*60/100=21
14-15 Nr=70*1.5*90/100=94
15-16 Nr=70*1.5*50/100=52
Количество посетителей определяется по формуле.
Nдн=∑Nr(2)
Затем чертится график загрузки торгового зала.
График 1
Количество посетителей за час
| 105 |
| 94 |
| 52 |
| 42 |
| 31 |
| 21 |
8 9 10 11 12 13 14 15 16 17 18 19 20 21 22
Время в часах
Nдн-количество посетителей обслуживаемых за день.
Определим количество посетителей за день по формуле (2).
Nдн=31+31+31+42+94+105+94+52+42+31+21+31+31+21=657 (посетителей)
Коэффициент перерасчета блюд определяется по формуле.
K=Nr/Nдн (3)
Рассчитаем коэффициент перерасчета блюд в таблице 1 по формуле (3).
8-9 K=31/657=0.047 15-16 K=52/657=0.079
9-10 K=31/657=0.047 16-17 K=42/657=0.064
10-11 K=31/657=0.047 17-18 K=31/657=0.047
11-12 K=42/657=0.064 18-19 K=21/657=0.032
12-13 K=94/657=0.143 19-20 K=31/657=0.047
13-14 K=105/657=0.16 20-21 K=31/657=0.047
14-15 K=94/657=0.143 21-22 K=21/657=0.032
6.2 Составление расчетного меню.
Сущность оперативного планирования заключается в составлении программы предприятия. Вопросами планирования производственной программы занимаются заведующий производством, бухгалтер.
В ресторане должен быть утвержден план товарооборота на месяц, на основании которого составляется производственная программа.
Оперативное планирование работы производства включает в себя следующие элементы:
· составление планового меню на декаду (цикличное меню), на его основе разработка плана-меню, отражающего производственную программу предприятия; составление и утверждение меню;
· расчет потребности в продуктах для приготовления блюд, предусмотренных планом меню, и составления требования на сырье;
· оформление требования-накладной на отпуск продуктов из кладовой на производстве и получение сырья;
· распределение сырья между цехами и определение заданий поварам в соответствии с планом-меню.
Первым этапом оперативного планирования является составление планового меню, наличие которого дает возможность обеспечить разнообразие блюд в декаде, избежать повторений одних и тех же блюд, обеспечить четкую организацию снабжения производства сырьем и полуфабрикатами, своевременно направляя заявки на оптовые базы, промышленные предприятия, правильно организовать технологический процесс приготовления пищи и труд работников производства. В плановом меню указывается ассортимент и количество блюд каждого наименования, которые могут быть приготовлены на данном предприятии по дням декады. При составлении планового меню учитываются квалификация поваров, потребительский спрос, возможности снабжения сырьём и сезонность сырья, техническое оснащение предприятия.
Вторым и основным этапом оперативного планирования является составление плана-меню заведующим производством накануне планируемого дня (не позднее 15 часов) и утверждение его директором предприятия.
В нем приводятся наименования, номера рецептур и количество блюд с указанием сроков приготовления их отдельными партиями с учетом потребительского спроса.
К основным факторам, которые необходимо учитывать при составлении меню, относятся: примерный ассортимент выпускаемой продукции, вида предоставляемого рациона, наличие сырья.
Примерный ассортимент блюд (ассортиментный минимум) – это определенное количество наименований холодных блюд, напитков, характерных для ресторана.
При составлении плана-меню необходимо учитывать наличие сырья в кладовых. Блюда и закуски, включаемые в меню, должны быть разнообразными как по видам сырья, так и по способам тепловой обработки (варёные, припущенные, жареные, тушеные, запеченные); учитываются также квалификационный состав работников, мощность производства и оснащенность его торгово-технологическим оборудованием, а также трудоёмкость блюд, т.е. затраты времени на приготовление единицы продукции.
Утверждая план-меню, директор и заведующий производством несут ответственность за то, чтобы блюда, включаемые в меню, были в продаже в течение всего дня торговли предприятия.
Расчет блюд, реализуемых за день
Расчет блюд, реализуемых за день, производится по формуле:
nблюд= Nобщ * m, (4)
где: Nобщ – количество потребителей
m – коэфициент потребления блюд
nблюд – количество блюд реализуемых за день
nблюд = 657*3,0 = 1971 (блюд)
Разбивка общего количества блюд на виды (холодные, первые, вторые, вторые, сладкие) и по ассортименту (рыбные, мясные, овощные и др.) производится в соответствии с процентным соотношением различных видов блюд в ассортименте продукции.
Разбивка блюд по ассортименту сводится в таблицу 4
Таблица 4
Виды блюд |
% соотношения | Количество блюд за день для включения в меню | ||
| От общего количества | От данного вида | По виду | По ассортименту | |
| Холодные блюда | 30 | 574 | ||
| Гастрономические продукты | 40 | 164 | ||
| Салаты | 25 | 102 | ||
| Кисломолочные продукты | 25 | 102 | ||
| Бутерброды | 10 | 41 | ||
| Супы | 5 | 82 | ||
| Вторые горячие блюда | 35 | 739 | ||
| Мясные | 50 | 369 | ||
| Овощные, крупяные ,мучные | 20 | 147 | ||
| Яичные и творожные | 30 | 201 | ||
| Сладкие блюда и горячие напитки | 30 | 574 | ||
| всего | 1643 | |||
Определение количества холодных напитков, кондитерских изделий, фруктовой воды производится на основе примерных норм потребления на одного человека.
Таблица 5
| Наименование блюд. | Количество потребителей. | Норма потребления в л., шт. | Количество. | |
| в л., шт., кг. | в порциях | |||
| Горячие напитки | 657 | 0,1 | 65,7 | 32,85 |
| Холодные напитки в том числе | 657 | 0,09 | 59,13 | 295,65 |
| Фруктовая вода | 657 | 0,02 | 13,14 | 65,7 |
| Минеральная вода | 657 | 0,02 | 13,14 | 65,7 |
| Натуральный сок | 657 | 0,02 | 13,14 | 65,7 |
| Напитки собственного производства | 657 | 0,03 | 19,71 | 98,65 |
| Хлебобулочные изделия | 657 | 0,75 | 492,75 | |
| Хлеб ржаной | 657 | 0,25 | 164,25 | |
| Хлеб пшеничный | 657 | 0,50 | 328,50 | |
| Мучные и кондитерские изделия собственного производства шт. | 657 |
0,85 |
558,45 |
|
| Конфеты, печенье кг. | 657 | 0,03 | 19,71 | |
| Фрукты кг. | 657 | 0,03 | 19,71 | |
| Вино-водочные изделия л. | 657 | 0,05 | 32,85 | |
| Пиво л. | 657 | 0,025 | 16,425 | |
Определим количество безалкогольных напитков в л.
Расчет порций напитков производится по формуле:
n. Напитков = Nобщ*Норма потребления (5)
Горячие напитки 657*0,1=65,7
Фруктовая вода 657*0,09=13,14
Минеральная вода 657*0,02=13,14
Натуральный сок 657*0,02=13,14
Напитки собственного производства 657*0,03=19,71
Определим количество хлеба в шт.
Хлеб ржаной 657*0,25=164,25
Хлеб пшеничный 657*50=328,50
Мучные и кондитерские изделия собственного производства 657*0,85=558,45
Определим количество конфет, печенья в кг.
Конфеты, печенье 657*0,03=19,71
Фрукты 657*0,03=19,71
Определим количество спиртных напитков в л.
Вино-водочные изделия 657*0,05=32,85
Пиво 657*0,025=16,625
Составление расчетного меню.
Таблица 6
| № рецеп-туры по сборнику рецептур. | Наименование блюд. |
Выход в г. |
Количество в порциях. |
| Холодные блюда и закуски | |||
84 159/808/887 42 76 109 161/891 35 60 78 3 |
Сельдь рубленная Ассорти мясное гарнир овощной соус майонез Сыр (порциями). Голландский сыр ломтиками Икра овощная закусочная Салат овощной с яблоками и сладким перцем Язык заливной. Язык свиной, гарнир овощной, соус-хрен Радужный салат Винегрет овощной Острая закуска Булочка с творогом и изюмом |
100 75/75/25 75 100 125 75/50/25 125 100 100 60 |
37 52 30 37 33 170 18 20 15 41 |
| Молоко и кисломолочные продукты | |||
Простокваша сладкая Йогурт «Danone» питьевой из вишни Йогурт «Danone» с кусочками клубники Творог «Danone» с джемом персиковым Творог «Danone» с кусочками сухофруктов |
200 150 100 100 100 |
20 30 15 15 20 |
|
| Горячие закуски | |||
369/798 360/828 |
Грибы запечённые в сметанном соусе Крокеты картофельные, соус красный с луком и огурцами |
90/75 180/75 |
111 80 |
| Первые блюда | |||
172/699/712 279/286 186 266 189/190 |
Бульон мясной с кулебяками из мяса и риса Бульон мясной прозрачный, капуста цветная Щи из свежей капусты, Щи из белокочанной капусты. Суп-пюре из картофеля Борщ украинский Борщ с чесноком и шпиком. |
400/100 200/100 300 300 300/100/30 |
27 77 90 38 90 |
| Вторые горячие блюда | |||
511/757/857 383 570/750/760 595/879/760 394 472 232 483 258 282 287 598/760 294 |
Рыба по-русски. Осётр припущенный с карто- фелем отварным и соусом томатным Поджарка из говядины с кунжутом Язык отварной с соусом. Язык свиной отварной с бобовыми и соусом красным основным. Антрекот. Антрекот из толстого края говядины с хреном, маслом зелёным и картофелем жаренным. Тефтели с кислой капустой Жаркое по-домашнему Пюре картофельное Блины из тыквы со сметаной Каша гречневая Каша рисовая с тыквой Яичница глазунья с шампиньонами Бефстроганов. Говяжья вырезка, нарезанная на мелкие брусочки обжаренная и прогретая в соусе с картофелем жаренным. Сырники из творога со сметаной |
125/150/75 100 91/5 100/40/150 100/15/100 325 200 200/30 200 200/15 114 225 100/100/150 200 |
200 75 59 100 200 70 204 73 165 73 50 55 65 55 |
| Сладкие блюда | |||
586 592 584 623 |
Компот из яблок и слив Кисель из клюквы (густой) Салат фруктовый со сметанным соусом Шарлотка с яблоками Мороженое пломбир с фруктами Мороженое шоколадное Мороженое абрикосовое |
200 150 100/25 170/30 100/25 100 100 |
50 50 55 55 66 66 66 |
| Горячие напитки | |||
628/96 628 629 633 637 640 |
Чай с сахаром Чай с медом Чай с лимоном Чай с душицей Кофе со сливками Кофе на молоке Кофе по-восточному Кофе с коньяком Кофе «капучино» Кофе «эспрессо» |
200 200/30 200/7 200 200/10 200 100 100/25 100 100 |
50 40 50 15 43 20 25 15 35 35 |
| Холодные напитки | |||
641 651 |
«Fanta» «Coca-cola» «Sprite» «Pepsi» минеральная вода «Львовская» виноградный сок апельсиновый сок грушевый сок гранатовый сок ананасовый сок яблочный сок персиковый сок кофе черный с мороженным «гляссе» коктейль сливочный коктейль молочный напиток из кураги |
200 200 200 200 200 200 200 200 200 200 200 200 150 250 250 200 |
16 16 16 16 65 9 9 9 9 9 9 9 25 25 30 19 |
| Кондитерские изделия | |||
687/712 697/732 701 |
Пирожное «Медовое» Пирожное «Буше» Пирожное «Птичье молоко» Кекс «Столичный» Пирожки печеные мясом с рисом из дрожжевого теста Слоеная булочка с яблочным повидлом Расстегаи закусочные с рисом и грибами Сосиски в тесте Хлеб ржаной Хлеб пшеничный |
40 75 50 50 60 100 50 100 100 100 |
60 60 60 80 70 90 70 68 164 328 |
6.3. Составление технологических карт.
Последний шаг оперативного планирования: составление технологических карт. В технологических картах указываются: наименование блюда, номер и вариант рецептуры, норма вложения сырья массой нетто на одну порцию, а так же дается расчет на определенное количество порций или изделий, указывается выход блюда, приводится краткое описание технологии приготовления блюда.
Образцы технологических карт приведены в приложении (3)
6.4 Организация производства
Сущность организации производства заключается в создании условий, обеспечивающих правильное ведение технологического процесса приготовления пищи.
Для успешного выражения производственного процесса на предприятиях общественного питания необходимо:
Выбрать рациональную структуру производства;
Производственные помещения должны размещаться по ходу технологического процесса, чтобы исключить встречные потоки поступающего сырья, полуфабрикатов и готовой продукции. Так, заготовочные цехи должна располагаться ближе к складским помещениям, но в то же время иметь удобную связь с доготовочными цехами;
Обеспечить поточность производства и последовательность осуществления технологических процессов;
Правильно разместить оборудование;
Обеспечить рабочие места необходимым оборудованием, инвентарем, инструментами;
Создать оптимальные условия труда;
Производственные помещения должны располагаться в наземных этажах и ориентироваться на север или северо-запад. Состав и площадь производственных помещений определяются Строительными нормами и правилами проектирования в зависимости от типа и мощности предприятия.
Площадь производственных помещений должна обеспечивать безопасные условия труда и соблюдение санитарно-гигиенических требований. Площадь состоит из полезной площади, занятой под различным технологическим оборудованием, а так же площади проходов.
Нормы площади приняты, в квадратных метрах: для горячего цеха-7-10; холодного-6-8; для заготовочных цехов-4-6.
Высота производственных помещений должна быть не менее 3,3м. Стены на высоту 1,8м от пола облицовывают керамической плиткой, остальная часть покрывается светлой клеевой краской.
В современных помещениях облицовывают стены светлой керамической плиткой на всю высоту, что улучшает условия санитарной обработки.
Полы должны быть водонепроницаемыми, иметь небольшой уклон к трапу, они покрываются метлахской плиткой или другим искусственным материалом, отвечающим санитарно-гигиеническим требованиям.
В производственных помещениях должен быть создан оптимальный микроклимат. К факторам микроклимата относятся температура, влажность и скорость движения воздуха. На микроклимат горячего и кондитерского цехов влияет так же тепловое излучение от нагретых поверхностей оборудования. Открытая поверхность раскаленной плиты выделяет лучи, которые могут вызвать тепловой удар у работника.
Оптимальная температура в заготовочном и холодном цехах должна быть в пределах 16-18С, в горячем и кондитерском цехах 23-25С. относительная влажность воздуха в цехах 60-70%.
Важным условием снижения утомляемости работников, предотвращения травматизма является правильное освящение производственных помещений и рабочих мест. В цехах обязательно должно быть естественное освящение. Коэффициент освещаемости должен быть не менее 1:6, а удаленность рабочего места от окон- не боле 8м. Производственные столы размещают так, чтобы повар работал лицом к окну или свет падал слева.
Для искусственного освящения используют люминесцентные лампы или лампы накаливания. При подборе ламп необходимо соблюдать норму - на 1 м2 площади цеха должно приходится 20 Вт.
Производственные помещения должны иметь подводку горячей и холодной воды к моечным - ваннам, электрокипятильникам, пищеварочным котлам.
Канализация обеспечивает удаление сточных вод при эксплуатации ванн, пищеварочных котлов.
В производственных цехах в процессе работы механического и холодного оборудования возникают шумы. Допустимый уровень шума в производственных помещениях 60-75 Дб. Снижения уровня шума в производственных помещениях можно добиться путем применения звукопоглощающих материалов.
6.5 Структура производства
Различают предприятия с цеховой и безцеховой структурой производства.
Цеховая структура организуется в предприятиях, работающих на сырье, с большим объемом производства. Цехи подразделяются на заготовочные, (мясной, рыбный, птице гольевой, мясорыбный, овощной), доготовочные (горячий, холодный), специализированные (мучной, кондитерский, кулинарный). На предприятиях общественного питания, работающих на полуфабрикатах, организуется цех доработки полуфабрикатов, цех обработки зелени.
В каждом цехе организуется технологические линии. Технологической линией называется участок производства, оснащенный необходимым оборудованием для определенного технологического процесса.
Безцеховая структура производства организуется на предприятиях с небольшим объемом производственной программы, имеющих ограниченный ассортимент выпускаемой продукции на специализированных предприятиях (закусочных, шашлычных, пельменных, вареничных и др.)
В ресторане организована цеховая структура производства.
6.6 Характеристика цехов
На предприятии расположены следующие цеха:
Заготовочный – мясо-рыбный.
Доготовочные – горячий, холодный.
Специализированный – кондитерский.
- Особенности работы мясо-рыбного цеха.
Мясорыбные цехи организуются при предприятиях средней мощности с полным производственным циклом. В этих цехах предусматривается обработка мяса, птицы, рыбы в одном помещении.
Учитывая специфический запах рыбных продуктов, необходимо организовать раздельные потоки обработки мяса и рыбы. Кроме раздельного оборудования выделяются отдельно инструмент, тара, разделочные доски, маркированные для обработки рыбы и мяса.
На линии обработки мяса устанавливается ванна для промывания мяса, разрубочный стул, стол производственный для обвалки мяса, приготовления, мясорубка, опалочный шкаф для обработки птицы. Кроме того, в цехе устанавливается холодильный шкаф для хранения и охлаждения полуфабрикатов.
На местах обработки мяса можно обрабатывать и птицу.
На участке обработки рыбы размещаются ванна для дефростации мороженой рыбы, столы для очистки и потрошения рыбы. Потрошат рыбу на производственном столе ручным способом при помощи малого ножа поварской тройки. Не пищевые отходы собирают в специальный бак. Отдельное рабочее место организуется для приготовления порционных полуфабрикатов. Для приготовления рыбного фарша используется мясорубка, которая не применяется для приготовления мясного фарша.
Технологический процесс обработки рыбы осетровых пород осуществляется на тех же рабочих местах, что и обработка рыб частиковых пород. Рыбные полуфабрикаты укладывают в лотки и хранят в холодильных камерах при температуре не выше 5 °С. Срок хранения — до 12 ч, рубленых — не более 6 ч.
- Организация работы горячего цеха.
Горячие цехи организуются в предприятиях, выполняющих полный, цикл производства. Горячий цех является основным цехом предприятия общественного питания, в котором завершается технологический процесс приготовления пищи: осуществляется тепловая обработка продуктов и полуфабрикатов, варка бульона, приготовление супов, соусов, гарниров, вторых блюд, а также производится тепловая обработка продуктов для холодных и сладких блюд. Кроме того, в цехе приготовляются горячие напитки и выпекаются мучные кондитерские изделия (пирожки, расстегаи, кулебяки и др.) для прозрачных бульонов. Из горячего цеха готовые блюда поступают непосредственно в раздаточные для реализации потребителю.
Горячий цех занимает в предприятии общественного питания центральное место. В том случае, когда горячий цех обслуживает несколько торговых залов, расположенных на разных этажах, его целесообразно расположить на одном этаже с торговым залом, имеющим наибольшее число посадочных мест. На всех других этажах должны быть раздаточные с плитой для жаренья порционных блюд и мармитами. Снабжение этих раздаточных готовой продукцией обеспечивается помощью подъемников.
Горячий цех должен иметь удобную связь с заготовочными цехами, со складскими помещениями и удобную взаимосвязь с холодным цехом, раздаточной и торговым залом, моечной кухонной посуды.
Микроклимат горячего цеха. Температура по требованиям научной организации труда не должна превышать 23. ° С, поэтому более мощной должна быть приточно-вытяжная вентиляция (скорость движения воздуха 1—2 м/с); относительная влажность 60—70%. Чтобы уменьшить воздействие инфракрасных лучей, выделяемых нагретыми жарочными поверхностями, площадь плиты должна быть меньше в 45—50 раз площади пола.
Режим работы горячего цеха зависит от режима работы предприятия (торгового зала) и форм отпуска готовой продукции. Работники горячего цеха, чтобы успешно справиться с производственной программой, должны начинать работу не позднее, чем за два часа до открытия торгового зала.
Горячий цех должен быть оснащен современным оборудованием: тепловым, холодильным, механическим и немеханическим: плитами, жарочными шкафами, пищеварочными котлами, электросковородами, электрофритюрницами, холодильными шкафами, а также производственными столами и стеллажами.
Горячий цех подразделяется на два специализированных отделения — суповое и соусное. В суповом отделении осуществляется приготовление бульонов и первых блюд, в соусном — приготовление вторых блюд, гарниров, соусов, горячих напитков.
- Организация работы холодного цеха
Холодные цехи предназначены для приготовления, порционирования и оформления холодных блюд и закусок. Ассортимент холодных блюд зависит от типа предприятия, его класса. В ассортимент холодного цеха входят холодные закуски, гастрономические изделия (мясные, рыбные), холодные блюда (отварные, жареные, фаршированные, заливные и др.), молочнокислая продукция, а также холодные сладкие блюда (желе, муссы, самбуки, кисели, компоты и др.), холодные напитки, холодные супы.
Холодный цех располагается, как правило, в одном из наиболее светлых помещений с окнами, выходящими на север или северо-запад. При планировке цеха необходимо предусматривать удобную связь с горячим цехом, где производится тепловая обработка продуктов, необходимых для приготовления холодных блюд, а также с раздачей и моечной столовой посуды.
При организации холодного цеха надо учитывать его особенности: продукция цеха после изготовления и порционирования не подвергается вторично тепловой обработке, поэтому необходимо строго соблюдать санитарные правила при организации производственного процесса, а поварам - правила личной гигиены; холодные блюда должны изготавливаться в таком количестве, которое может быть реализовано в короткий срок.
В небольших предприятиях организуются универсальные рабочие места, на которых последовательно готовят холодные блюда в соответствии с производственной программой. В крупных холодных цехах организуются специализированные рабочие места.
Холодный цех должен быть оснащен достаточным количеством холодильного оборудования. В ресторанах и барах применяют льдогенераторы для получения льда, который используется при приготовлении коктейлей, холодных напитков. Подбор холодильного оборудования зависит от мощности холодного цеха, количества продуктов и готовых изделий, подлежащих хранению.
В холодном цехе используются разнообразные инструменты, инвентарь, приспособления.
- Организация работы кондитерского цеха.
Кондитерский цех занимает особое место на предприятиях общественного питания. Он, как правило, работает самостоятельно, независимо от горячего цеха.
Кондитерские цехи классифицируются по производительности и ассортименту выпускаемой продукции:
Малой мощности считаются цехи, выпускающие до 12тыс. изделий в смену;
Средней мощности – 12-20 тыс. изделий в смену;
Большой мощности – от 20 тыс. изделий в смену;
В ресторанах, столовых, кафе организуются кондитерские цехи меньшей мощности: 3, 5, 8 или 10 тыс. изделий в день.
Кондитерские цехи большой мощности предусматривают следующий состав помещений: кладовая и холодильная камера суточного хранения продуктов; помещение для обработки яиц; помещения для просеивания муки, замеса и брожения теста, разделки, расстойки и выпечки кондитерских изделий, приготовления отделочных полуфабрикатов, отделки кондитерских изделий; моечная посуды, тары, инвентаря; кладовая и охлаждаемая камера готовых кондитерских изделий, комната начальника цеха, экспедиция. Такой состав помещений улучшает условия труда в цехе. В небольших кондитерских цехах количество помещений может быть сокращено до 2-3.
В кондитерском цехе используется самое разнообразное оборудование: просеиватели, тестомесильные машины, тестораскаточные, взбивальные, универсальный привод с комплектом сменных механизмов (мясорубки, просеиватель, протирочная, взбивальная), пищеварочные котлы, электроплиты, электропекарные шкафы, холодильное оборудование.
Продукты необходимые для приготовления изделий, поступают в кладовую суточного запаса. Скоропортящиеся продукты (масло, яйца и др.) хранятся в холодильной камере при 2-4°С. основные продукты (мука, яйца) подвергаются предварительной подготовке.
Готовые кондитерские изделия направляются в кладовые или холодильные камеры цеха для кратковременного хранения. Изготовленные изделия укладывают в специализированную тару.
Срок хранения кондитерских изделий при температуре 2-6°С с момента окончания технологического процесса должны быть следующими:
С белковым кремом – не долее 72 ч;
Со сливочным кремом, в т.ч. пирожного картошка – 36 ч;
С заварным кремом, с кремом из сливок – 6 ч;
Реализация кондитерских изделий с кремом на предприятиях общественного питания и торговли возможна только при наличии холодильного оборудования.
6.7 Организация рабочих мест.
Рабочим местом называется часть производственной площади, где работник выполняет отдельные операции, используя при этом соответствующее оборудование, посуду, инвентарь, инструменты. Рабочие места на предприятиях общественного питания имеют свои особенности в зависимости от типа предприятия, его мощности, характера выполняемых операций, ассортимента выпускаемой продукции.
Площадь рабочего места должна быть достаточной, чтобы обеспечить рациональное размещение оборудования, создание безопасных условий труда, а также удобное расположение инвентаря, инструментов.
Рабочие места в цехе располагаются по ходу технологического процесса.
Размеры производственного оборудования должны быть таким, чтобы корпус и руки работника находились в наиболее удобном положении.
Как показывает опыт организации рабочего места повара, расстояние от пола до верхней полки стола, на котором обычно размещают запас посуды, не должно превышать 1750 мм. Оптимальное расстояние от пола до средней полки 1500мм. Эта зона является наиболее удобной для повара. Очень удобно, когда стол имеет выдвижные ящики для инвентаря, инструментов. В нижней части стола должны быть полки для посуды, разделочных досок.
Около производственных столов и ванн устанавливают подвижные деревянные стеллажи.
Каждое рабочее место должно быть обеспечено достаточным количеством инструментов, инвентаря и посуды. К производственному инвентарю предъявляют требования: прочность, надежность в работе, эстетичность.
6.8. Организация складского хозяйства
Складские помещения предприятий общественного питания служат для приемки продуктов, сырья и их хранения и отпуска.
Помещения могут размещаться в зданиях на первых цокольных или в подвальных этажах. Они должны иметь удобную связь с торговой группой предприятия. Складское помещение по составу и площади должно отвечать требованиям строительных норм и правил данного типа предприятия. Нельзя помещать складские помещения рядом или непосредственно с помещениями, где технологические процессы сопровождаются выделением тепла и влаги. На предприятиях каждый вид сырья хранится в отдельной камере. В одной камере можно объединять продукты одинаковой загрязненности, степени готовности к употреблению и с одинаковыми режимами хранения. Каждая камера должна иметь площадь не менее 9м2, хорошее искусственное освящение, приточно- вытяжную вентиляцию, приборы регулирующие температуру и влажность.
В мясо-рыбной камере хранят мясо и рыбу при t=0-2°С,a-85-90%-30 суток
В камере молочно-жировых товаров хранят молоко и молочные продукты- при t +2°С, a-85%-10 -36суток.
В овощной камере хранят плоды и овощи при t 14-16°С, a-80-90%-3-5суток.
Муку, сахар, соль, крупу хранят на подтоварниках в упаковках без естественного освещения при t 12-18°С, a-60-70%.
Хлеб и хлебобулочные изделия хранят стеллажным способом при t 16-18°С, при этом хлеб укладывают в 2 раза.
Винно-водочные изделия хранят в бутылках стеллажным способом в горизонтальном положении при t 16-18°С, а безалкогольные напитки в ящиках штабельным способом.
7. Характеристика и расчёт холодного цеха.
7.1. Холодный цех.
Этот цех проектируют на всех предприятиях независимо от их мощности, где предусмотрены залы для обслуживания потребителей. Исключение составляют раздаточные предприятия, столовые (в сельских населенных пунктах), кафе и специализированные предприятия на 25—50 мест, в которых хранение, приготовление, оформление и отпуск горячих и холодных блюд и закусок, а также нарезку хлеба осуществляют в одном помещении —- горячем цехе (кухне). Горячий и холодный цехи предназначены для приготовления горячих блюд и холодных закусок, отпускаемых в залах предприятиям также кулинарных изделий — для реализации в магазинах кулинарии.
В холодном цехе организуют участки приготовления холодных и сладких блюд и оборудуют их холодильными шкафами, льдогенераторами, секциями-столами с охлаждаемым шкафом, секциями-столами с охлаждаемым шкафом и горкой, производственными столами со встроенной ванной, моечными ваннами, стеллажами, раздаточными стойками и приводами для холодных цехов. Для облегчения труда работников рабочие места оснащают маслоделителями, яйцерезками, миксерами, овощерезками и др.
В холодном цехе предприятий большой мощности дополнительно организуют участки по приготовлению салатов из свежих сезонных овощей и зелени, гастрономических продуктов, порционированию и оформлению холодных и сладких блюд.
При работе предприятий на полуфабрикатах и продукции высокой степени готовности процессы приготовления и оформления горячих и холодных блюд осуществляют в одном помещении на участках: разогрева и доведения до готовности охлажденных супов, вторых блюд, соусов и гарниров; приготовления несложных блюд (молочных каш, яичных блюд и изделий из творога); приготовления горячих напитков, салатов из сезонных овощей и зелени; блюд из гастрономических продуктов; порционирования и оформления холодных и сладких блюд.
Применение секционного модульного оборудования холодном цехе предъявляет повышенные требования к организации рабочих мест, поскольку появляется возможность выполнять на рабочих местах последовательно несколько технологических операций, таких, как шинковка и промывка зелени, хранение продуктов на холоде. Эти требования заключаются в правильном размещении на рабочих местах оборудования, взаимосвязанного ходом технологического процесса: тепловых аппаратов, холодильных шкафов, моечных ванн, производственных столов, механического оборудования и т. п.
Основное требование к планировке рабочего места — такое его расположение, которое сводило бы к минимуму переходы повара от одного вида оборудования к другому большое значение имеет порядок размещения рабочих мест на технологических линиях, так как от этого зависит характер передвижения обслуживающего персонала. Чем короче этот путь, тем меньше будет расходоваться времени и энергии человека в производственном процессе, тем эффективнее будет использоваться оборудование. Правильно организованные технологические линии позволяют сократить лишние непроизводительные движения работников, облегчить условия труда и способствовать повышению его производительности.
При размещении оборудования необходимо соблюдать прежде всего принцип прямоточности, с тем чтобы при выполнении работ повара не совершали непроизводительные перемещения в направлении, противо-положном направлению технологического процесса.
Наиболее рационально линейное размещение оборудования. Повара в процессе работы передвигаются только вдоль линии оборудования и поворачиваются не более чем на 90°.
Для рациональной организации труда на рабочих местах надо, комплектуя технологические линии, учитывать не только последовательность выполнения операций, но и направление, в котором ведут процесс. Производительность труда поваров на 5—8 % выше, если технологические процессы направлены справа налево.
Поскольку протяженность технологических линий ограничивается габаритными размерами цехов, допускается применение линейно-группового метода расстановки оборудования по технологическим процессам. Параллельно линиям холодильного оборудования в холодном располагают линии вспомогательного оборудования.
Технологические линии могут иметь пристенное и островное расположение, их устанавливают в одну или две смежные линии, параллельно или перпендикулярно раздаче.
В планировке холодных цехов предприятий, работающих с самооб-служиванием и обслуживанием официантами, характер размещения оборудования в цехах существенно различается. Это обусловлено тем, что в предприятиях с обслуживанием официантами приготовленные блюда оформляют на раздаточных стойках и выдают официантам из цеха, а при самообслуживании реализация блюд осуществляется на линиях раздачи, установленных в зале предприятия.
Для организации выдачи блюд официантам из холодного и горячего цехов предусматривают раздаточные окна, размеры которых зависят от числа мест в залах.
Холодные цехи размещают в наземных этажах здания, со стороны дворового или боковых фасадов здания, в помещениях с естественным освещением, на одном уровне с залами. При наличии в здании нескольких залов одного назначения цех размещают на этаже рядом с залом с наибольшим числом мест; на других этажах предусматривают помещения, холодного цеха — в холодильных шкафах, организованы рабочие места для порционирования и оформления блюд. Готовую продукцию транспортируют по этажам подъемниками. При отсутствии последних и размещении на этажах залов разного назначения холодный цех проектируют при каждом из них.
Холодный цех должен быть удобно связан с моечными столовой и кухонной посуды, помещением для нарезки хлеба, цехами — мясным (мясо-рыбным ) и овощным при работе предприятия на сырье и цехами — доготовочным и обработки зелени, если предприятие работает на полуфабрикатах, с помещениями для приема и хранения сырья.
В зависимости от формы обслуживания холодный цех должен меть удобную связь с помещениями раздачи пищи. При обслуживании официантами цех примыкают непосредственно к раздаточной; в предприятиях с самообслуживанием — к залам, на площади которых размещают раздаточные линии.
Рассмотрим организацию рабочих мест.
На рабочем месте по нарезке сырых и вареных овощей предусматривают: ванну для промывки свежих овощей или стол со встроенной моечной ванной; столы производственные для нарезки овощей, разделочные доски, ножи поварской тройки и функциональные емкости. При массовом изготовлении несложных по приготовлению салатов для комплексов используют универсальный привод П-2 со сменными механизмами для нарезки сырых и вареных овощей и перемешивания салатов. Кроме того, можно установить на производственном столе машину МРОВ для нарезки вареных овощей. Нарезку овощей осуществляют повара 3-го разряда, а приготовления салатов – повара 4-го разряда.
Второе рабочее место организуется для приготовления блюд из гастрономических мясных и рыбных продуктов. Нарезку продуктов производят на разделочной доске, используя средний нож поварской тройки. Спорционированные кусочки продукции укладываются в функциональные емкости и помещают в холодильный шкаф.
Если изготавливается большое количество блюд из гастрономических продуктов, то целесообразно использовать машину МРГ-300А для нарезки ветчины, колбасы, сыра. Ее устанавливают на столе для средств малой механизации СПМ-1500.
Третье рабочее место предусматривается для порционирования и отпуска блюд на раздаточную и оснащается столом производственным с охлаждаемым шкафом и горкой и стеллажом для установки готовых блюд для реализации. Горка предназначена для хранения заранее подготовленных продуктов (консервированных фруктов, зелени петрушки, лимонов и др.), используемых для украшения блюд.
В летнее время на предприятиях общественного питания большим спросом пользуются холодные (овощные, мясные) и фруктовые супы. Для холодных супов овощи и мясо варят в горячем цехе. После охлаждения их нарезают вручную кубиком или соломкой. Зеленый лук нарезают вручную с помощью устройства УН3. Температура подачи супов 10-12 гр.
7.2. Составление технологических таблиц
Таблица 7
Технологи ческая операция |
№525 Рыба жареная во фритюре | ||
| Оборудование | Посуда | Инвентарь | |
| 1. Обработка рыбы | 1.Стол 2.Рыбоочистительная машина 3.Ванна |
1. Лоток | 1.Нож 2.Доска – « Р.С.» |
| 2. Нарезка | 1. Стол | 1. Лоток | 1.Нож 2.Доска – «Р.С.» |
| 3. Жарка | 1. Фритюрница | - | - |
| 4. Отпуск | 1.Стол 2.Весы |
1. Тарелка мелкая столовая | - |
Таблица 8
Технологи ческая операция |
№492 Сырники из творога | ||
| Оборудование | Посуда | Инвен- тарь |
|
| 1.протирка творога | 1.стол | 1.лоток | 1.сито |
| 2.смешивание компонентов | 1.стол | 1.лоток | 1.весёлка |
| 3.формов-ка | 1.стол 2.весы |
1.лоток | 1.нож |
4.жарка |
1.плита 2.жарочный шкаф |
1.сковорода | 1.лопатка |
5.отпуск |
1.стол 2.весы |
1. тарелка мелкая столовая | - |
Таблица 9
Технологи ческая операция |
№160 Ассорти мясное | ||
| Оборудование | Посуда | Инвен- тарь |
|
| 1. Обработка мясных продуктов | Стол Ванна моечная Плита |
1. Кастрюля 2. Лоток |
Доска «М.С.» Нож Шумовка |
| 2. Нарезка | 1. Стол | 1. Блюдо | Лопатка |
7.3.Расчёт производственного персонала предприятия (цеха).
Важнейшей задачей нормирования труда является определение численности работников. Различают следующие основные методы определения необходимого количества работников: по нормам выработки, нормам времени; рабочим местам на основании норм обслуживания.
Численность работников предприятий общественного питания непосредственно зависит от объема товарооборота, выпуска продукции, форм обслуживания, степени механизации производственных процессов. Чем больше товарооборот и выпуск продукции собственного производства, тем выше численность работников.
Всех работников предприятий общественного питания можно разделить в зависимости от выполняемой функции на следующие группы: производственную, торговую, административную и работников торгового зала.
Для определения численности работников производства, где установлены нормы выработки, запланированный объем выпуска продукции или товарооборота делят на установленную для одного работника дневную норму выработки в рублях товарооборота или условны блюдах и количество дней, которые должен отработать работник в планируемый период.
7.4 Организация труда.
Общее руководство цехом осуществляет заведующий производством, если в цехе работает 5 и более работников — назначается бригадир (повар IV или V разрядов), который вместе с другими поварами выполняет производственную программу. На основании плана-меню он получает у заведующего производством сырье, дает задание поварам в соответствии с их классификацией, распределяет продукты между членами бригады. Бригадир осуществляет контроль над ходом технологического процесса, нормами расхода сырья и выхода полуфабрикатов, состоянием и исправностью оборудования, отвечает за соблюдение правил охраны труда, техники безопасности, следит за санитарным состоянием цеха.
В ресторане повар V разряда изготовляет полуфабрикаты для сложных и банкетных блюд, порционные полуфабрикаты из говядины, баранины, свинины. Повар IV разряда разделывает рыбу осетровых пород, заправляет тушки птицы, нарезает мясо и рыбу на порции, изготовляет несложные полуфабрикаты. Повара IV и III разрядов осуществляют разруб мяса, обвалку частей. Повар III разряда разделывает рыбу частиковых пород, изготовляет котлетную массу и полуфабрикаты из нее, нарезает мелкокусковые полуфабрикаты.
7.5 Расчет почасовой реализации блюд для холодного цеха.
Производим расчет почасовой реализации блюд для холодного цеха.
Сельдь рубленная
8-9 37*0,047=2 15-16 37*0,079=3
9-10 37*0,047=2 16-17 37*0,064=2
10-11 37*0,047=2 17-18 37*0,047=2
11-12 37*0,064=2 18-19 37*0,032=1
12-13 37*0,143=5 19-20 37*0,047=2
13-14 37*0,16=6 20-21 37*0,047=2
14-15 37*0,143=5 21-22 37*0,032=1
Затем производим расчеты для всех остальных блюд и записываем результаты в таблицу 10.
Таблица 10
Наименование блюд |
Количество реализуемых блюд за день |
Часы реализации | |||||
| 8-9 | 9-10 | 10-11 | 11-12 | 12-13 | 13-14 | ||
| Коэффициент перерасчета | |||||||
| 0,047 | 0,047 | 0,047 | 0,064 | 0,143 | 0,16 | ||
| Количество блюд реализуемых за час | |||||||
| Холодные блюда и закуски | |||||||
| Сельдь рубленная | 37 | 2 | 2 | 2 | 2 | 5 | 6 |
| Ассорти мясное | 45 | 2 | 2 | 2 | 4 | 6 | 7 |
| Ассорти сырное | 45 | 2 | 2 | 2 | 4 | 6 | 7 |
| Икра овощная закусочная | 37 | 2 | 2 | 2 | 2 | 5 | 6 |
| Язык заливной | 15 | 1 | 1 | 1 | 1 | 2 | 2 |
| Салат овощной с яблоками и сладким перцем | 33 | 2 | 2 | 2 | 2 | 4 | 5 |
| Радужный салат | 18 | 1 | 1 | 1 | 1 | 3 | 3 |
| Винегрет овощной | 20 | 1 | 1 | 1 | 1 | 3 | 3 |
| Острая закуска | 15 | 1 | 1 | 1 | 1 | 2 | 2 |
| Булочка с творогом и изюмом | 41 | 2 | 2 | 2 | 3 | 6 | 6 |
| Молоко и кисломолочные продукты | |||||||
| Простокваша сладкая | 20 | 1 | 1 | 1 | 1 | 3 | 3 |
| Йогурт «Danone» питьевой из вишни | 30 | 1 | 1 | 1 | 2 | 4 | 5 |
| Йогурт «Danone» с кусочками клубники | 15 | 2 | 2 | 2 | 4 | 6 | 7 |
| Творог «Danone» с джемом персиковым | 15 | 1 | 1 | 1 | 1 | 2 | 2 |
| Творог «Danone» с кусочками сухофруктов | 20 | 1 | 1 | 1 | 1 | 3 | 3 |
| Сладкие блюда | |||||||
| Компот из яблок и слив | 50 | 2 | 2 | 2 | 4 | 8 | 8 |
| Кисель из клюквы (густой) | 50 | 2 | 2 | 2 | 4 | 8 | 8 |
| Салат фруктовый со сметанным соусом | 55 | 3 | 3 | 3 | 3 | 8 | 9 |
| Мороженое пломбир с фруктами | 66 | 3 | 3 | 3 | 4 | 10 | 11 |
| Мороженое шоколадное | 66 | 3 | 3 | 3 | 4 | 10 | 11 |
| Мороженое абрикосовое | 66 | 3 | 3 | 3 | 4 | 10 | 11 |
| Холодные напитки | |||||||
| «Fanta» | 16 | 1 | 1 | 1 | 1 | 2 | 3 |
| «Coca-cola» | 16 | 1 | 1 | 1 | 1 | 2 | 3 |
| «Sprite» | 16 | 1 | 1 | 1 | 1 | 2 | 3 |
| «Pepsi» | 16 | 1 | 1 | 1 | 1 | 2 | 3 |
| минеральная вода «Львовская» | 65 | 3 | 3 | 3 | 4 | 9 | 10 |
| виноградный сок | 9 | - | - | 1 | 1 | 1 | 1 |
| апельсиновый сок | 9 | - | - | 1 | 1 | 1 | 1 |
| грушевый сок | 9 | - | - | 1 | 1 | 1 | 1 |
| гранатовый сок | 9 | - | - | 1 | 1 | 1 | 1 |
| ананасовый сок | 9 | - | - | 1 | 1 | 1 | 1 |
| яблочный сок | 9 | - | - | 1 | 1 | 1 | 1 |
| персиковый сок | 9 | - | - | 1 | 1 | 1 | 1 |
| кофе черный с мороженным «гляссе» | 25 | 1 | 1 | 1 | 2 | 4 | 4 |
| коктейль сливочный | 25 | 1 | 1 | 1 | 2 | 4 | 4 |
| коктейль молочный | 30 | 1 | 1 | 1 | 2 | 4 | 5 |
| напиток из кураги | 19 | 1 | 1 | 1 | 1 | 3 | 3 |
| Часы реализации | |||||||
| 14-15 | 15-16 | 16-17 | 17-18 | 18-19 | 19-20 | 20-21 | 21-22 |
| Коэффициент перерасчета | |||||||
| 0,143 | 0,079 | 0,064 | 0,047 | 0,032 | 0,047 | 0,047 | 0,032 |
| Количество блюд реализуемых за час | |||||||
| 5 | 3 | 2 | 2 | 1 | 2 | 2 | 1 |
| 6 | 4 | 4 | 2 | 1 | 2 | 2 | 1 |
| 6 | 4 | 4 | 2 | 1 | 2 | 2 | 1 |
| 5 | 3 | 2 | 2 | 1 | 2 | 2 | 1 |
| 2 | 1 | 1 | 1 | - | 1 | 1 | - |
| 4 | 3 | 2 | 2 | 1 | 2 | 2 | 1 |
| 3 | 1 | 1 | 1 | - | 1 | 1 | 1 |
| 3 | 2 | 1 | 1 | - | 1 | 1 | 1 |
| 2 | 1 | 1 | 1 | - | 1 | 1 | - |
| 6 | 3 | 3 | 2 | 1 | 2 | 2 | 1 |
| 3 | 2 | 1 | 1 | - | 1 | 1 | 1 |
| 4 | 2 | 2 | 1 | 1 | 1 | 1 | 1 |
| 6 | 4 | 4 | 2 | 1 | 2 | 2 | 1 |
| 2 | 1 | 1 | 1 | - | 1 | 1 | - |
| 3 | 2 | 1 | 1 | - | 1 | 1 | 1 |
| 8 | 4 | 4 | 2 | 2 | 2 | 2 | 2 |
| 8 | 4 | 4 | 2 | 2 | 2 | 2 | 2 |
| 8 | 4 | 3 | 3 | 2 | 3 | 3 | 2 |
| 9 | 5 | 4 | 3 | 2 | 3 | 3 | 2 |
| 9 | 5 | 4 | 3 | 2 | 3 | 3 | 2 |
| 9 | 5 | 4 | 3 | 2 | 3 | 3 | 2 |
| 2 | 1 | 1 | 1 | 1 | 1 | 1 | 1 |
| 2 | 1 | 1 | 1 | 1 | 1 | 1 | 1 |
| 2 | 1 | 1 | 1 | 1 | 1 | 1 | 1 |
| 2 | 1 | 1 | 1 | 1 | 1 | 1 | 1 |
| 9 | 5 | 4 | 3 | 2 | 3 | 3 | 2 |
| 1 | 1 | 1 | 1 | - | 1 | - | - |
| 1 | 1 | 1 | 1 | - | 1 | - | - |
| 1 | 1 | 1 | 1 | - | 1 | - | - |
| 1 | 1 | 1 | 1 | - | 1 | - | - |
| 1 | 1 | 1 | 1 | - | 1 | - | - |
| 1 | 1 | 1 | 1 | - | 1 | - | - |
| 1 | 1 | 1 | 1 | - | 1 | - | - |
| 4 | 2 | 2 | 1 | 1 | 1 | 1 | 1 |
| 4 | 2 | 2 | 1 | 1 | 1 | 1 | 1 |
| 4 | 2 | 2 | 1 | 1 | 1 | 1 | 1 |
| 3 | 2 | 1 | 1 | - | 1 | 1 | - |
7.6 Расчет численности работников холодного цеха.
Численность производственных работников может быть определена по нормам времени и по нормам выработки.
Численность производственных работников по нормам времени определяется по формуле.
R1=∑n*t/Tp*3600*λ(6)
где,
R1-явочная численность работников холодного цеха.
n-количество изделий за день в шт., кг., блюдах.
t-норма времени на изготовление единицы изделия.
λ-коэффициент учитывающий рост производительности труда (1.14)
T-продолжительность рабочего дня каждого работника (11.5).
t=K*100 (7)
где,
K-коэффициент трудоемкости.
100-норма времени в с. необходимого для приготовления изделия.
R2=R1*k(8)
R2-списочная численность работников холодного цеха.
k-коэффициент увеличения численности работников.
Производим расчет нормы времени на изготовление 1 блюда сельдь рубленная по формуле (7).
t=2*100=200
Затем производим расчет нормы времени для остальных блюд по формуле (7) и записываем результаты в таблицу 9.
Производим расчет количества чел/с для блюда сельдь рубленная.
33*200=6600
Затем производим расчет количества чел/с для остальных блюд и записываем результаты в таблицу 11.
Затем получаем итого количества чел/с.
∑n*t=1800+1800+1230+2970+1800+2970+2200+5550+1850+6600+400+600+300+300+400+4950+1600+1500+1320+1320+1320+320+320+320+320+1300+180+180+180+180+180+180+180+500+500+600+980=41260
Производим расчет явочной численности производственных работников холодного цеха по формуле (6).
R1=41260/11,5*3600*1,14=0,87=1 человек.
Производим расчет списочной численности производственных работников холодного цеха по формуле (8).
R2=0,87*1,59=2 человека
Таблица 11
| Наименование блюд | Кол-во блюд за день n. | Коэффициeнт трудоемкости K. | Нормы времени на изготовление 1 блюда t. | Кол-во чел/с n*t |
| Холодные блюда и закуски | ||||
| Сельдь рубленная | 33 | 2 | 200 | 6600 |
| Ассорти мясное | 45 | 0.4 | 40 | 1800 |
| Ассорти сырное | 45 | 0.4 | 40 | 1800 |
| Икра овощная закусочная | 37 | 1.5 | 150 | 5550 |
| Язык заливной | 15 | 1.2 | 120 | 1800 |
| Салат овощной с яблоками и сладким перцем | 33 | 0.9 | 90 | 2970 |
| Радужный салат | 33 | 0.9 | 90 | 2970 |
| Винегрет овощной | 20 | 1.1 | 110 | 2200 |
| Острая закуска | 37 | 0.5 | 50 | 1850 |
| Булочка с творогом и изюмом | 41 | 0.3 | 30 | 1230 |
| Молоко и кисломолочные продукты | ||||
| Простокваша сладкая | 20 | 0.2 | 20 | 400 |
| Йогурт «Danone» питьевой из вишни | 30 | 0.2 | 20 | 600 |
| Йогурт «Danone» с кусочками клубники | 15 | 0.2 | 20 | 300 |
| Творог «Danone» с джемом персиковым | 15 | 0.2 | 20 | 300 |
| Творог «Danone» с кусочками сухофруктов | 20 | 0.2 | 20 | 400 |
| Сладкие блюда | ||||
| Компот из яблок и слив | 50 | 0.3 | 30 | 1500 |
| Кисель из клюквы (густой) | 50 | 0.3 | 30 | 1500 |
| Салат фруктовый со сметанным соусом | 55 | 0.9 | 90 | 4950 |
| Мороженое пломбир с фруктами | 66 | 0.2 | 20 | 1320 |
| Мороженое шоколадное | 66 | 0.2 | 20 | 1320 |
| Мороженое абрикосовое | 66 | 0.2 | 20 | 1320 |
| Холодные напитки | ||||
| «Fanta» | 16 | 0.2 | 20 | 320 |
| «Coca-cola» | 16 | 0.2 | 20 | 320 |
| «Sprite» | 16 | 0.2 | 20 | 320 |
| «Pepsi» | 16 | 0.2 | 20 | 320 |
| минеральная вода «Львовская» | 65 | 0.2 | 20 | 1300 |
| виноградный сок | 9 | 0.2 | 20 | 180 |
| апельсиновый сок | 9 | 0.2 | 20 | 180 |
| грушевый сок | 9 | 0.2 | 20 | 180 |
| гранатовый сок | 9 | 0.2 | 20 | 180 |
| ананасовый сок | 9 | 0.2 | 20 | 180 |
| яблочный сок | 9 | 0.2 | 20 | 180 |
| персиковый сок | 9 | 0.2 | 20 | 180 |
| кофе черный с мороженным «гляссе» | 25 | 0.2 | 20 | 500 |
| коктейль сливочный | 25 | 0.2 | 20 | 500 |
| коктейль молочный | 30 | 0.2 | 20 | 600 |
| напиток из кураги | 19 | 0.2 | 20 | 980 |
| Итого | 41260 |
7.7 Организация работы в цехе.
Работа в цехе начинается с 9 часов, а заканчивается в 22 часа, т.е. за час до закрытия предприятия.
В утренние часы работники цеха, занимаются подготовкой продуктов к обработке. Заведующий производством, определяет задание поварам.
В холодном цехе работают два повара, оба имеют 5 разряд.
В производственную бригаду холодного цеха входят также мойщицы кухонной посуды, кухонные подсобные работники.
Работники выходят тремя бригадами по два человека с продолжительностью смены пять часов.
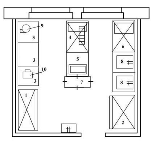
7.8 Технологическая линия холодного цеха.
Это участок производства, оснащенный необходимым оборудованием для определенного технологического процесса. Технологическая линия холодного цеха представлена на схеме 3.
Схема 3
На данном предприятии предусмотрены малоотходные технологии. Большое значение имеет рациональное использование отходов. Так, например, стебли петрушки, сельдерея, укропа используют для варки бульонов, соусов.
Из рыбных пищевых отходов (головы, кости) варят бульоны и затем приготавливают соусы.
Пищевые отходы от переработки мяса также используют для бульонов.
Овощные отходы (помидоры, морковь) измельчают в блендере и готовят соусы, а из ботвы молодой свеклы готовят свекольник. Отходы необходимо сразу перерабатывать, так как они быстро портятся.
7.9 Технологический расчет оборудования.
7.9.1 Расчет холодильного оборудования.
Основное холодильное оборудование производственных цехов являются: холодильные шкафы, секции-столы с охлаждаемой поверхностью расчет которых сводится к определению:
-количества и массы готовых блюд
-массы скоропортящихся продуктов и П/Ф
-необходимой вместимости холодильного оборудования
-марки оборудования в соответствии с требуемой вместимостью
Вместимость холодильного оборудования устанавливаемого в холодном цехе определяется по формуле.
E=∑(Qmax+1/2Qбл)/γ (9)
Где,
Qmax-общая масса блюд реализуемых за час максимальной загрузки зала кг.
1/2Qбл-общая масса блюд реализуемых за 1/2 смены.
γ-коэффициент учитывающий массу посуды в которой хранятся продукты (0.8)
Расчет холодильного оборудования.
Таблица 12.
| Наименование блюд | Кол-во блюд реализуемых за час max загрузки зала | Кол-во блюд реализуемых за 1/2 смены | Масса 1 блюда | Общая масса кг. | |
| Блюд реализуемых за 1ч. max загрузки зала | Блюд за 1/2 смены | ||||
| Холодные блюда и закуски | |||||
| Сельдь рубленная | 6 | 18 | 100 | 0,6 | 1,8 |
| Ассорти мясное | 7 | 22 | 100 | 0,7 | 2,2 |
| Ассорти сырное | 7 | 22 | 100 | 0,7 | 2,2 |
| Икра овощная закусочная | 6 | 18 | 100 | 0,6 | 1,8 |
| Язык заливной | 2 | 7 | 125 | 0,25 | 0,875 |
| Салат овощной с яблоками и сладким перцем | 5 | 9 | 125 | 0,625 | 2 |
| Радужный салат | 3 | 9 | 125 | 0,375 | 1,125 |
| Винегрет овощной | 3 | 10 | 100 | 0,3 | 1 |
| Острая закуска | 2 | 7 | 100 | 0,2 | 0,7 |
| Булочка с творогом и изюмом | 6 | 20 | 60 | 0,36 | 1,2 |
| Молоко и кисломолочные продукты | |||||
| Простокваша сладкая | 3 | 10 | 200 | 0,6 | 2 |
| Йогурт «Danone» питьевой из вишни | 5 | 15 | 150 | 0,75 | 2,25 |
| Йогурт «Danone» с кусочками клубники | 7 | 7 | 100 | 0,7 | 0,7 |
| Творог «Danone» с джемом персиковым | 2 | 7 | 100 | 0,2 | 0,7 |
| Творог «Danone» с кусочками сухофруктов | 3 | 10 | 100 | 0,3 | 1 |
| Сладкие блюда | |||||
| Компот из яблок и слив | 8 | 25 | 200 | 1,6 | 5 |
| Кисель из клюквы (густой) | 8 | 25 | 150 | 1,2 | 3,75 |
| Салат фруктовый со сметанным соусом | 9 | 26 | 125 | 1,125 | 3,25 |
| Мороженое пломбир с фруктами | 11 | 33 | 125 | 1,1 | 4.125 |
| Мороженое шоколадное | 11 | 33 | 100 | 1,1 | 3,3 |
| Мороженое абрикосовое | 11 | 33 | 100 | 1,1 | 3,3 |
| Холодные напитки | |||||
| «Fanta» | 3 | 8 | 200 | 0,6 | 1,6 |
| «Coca-cola» | 3 | 8 | 200 | 0,6 | 1,6 |
| «Sprite» | 3 | 8 | 200 | 0,6 | 1,6 |
| «Pepsi» | 3 | 8 | 200 | 0,6 | 1,6 |
| минеральная вода «Львовская» | 10 | 32 | 200 | 2 | 6,4 |
| виноградный сок | 1 | 4 | 200 | 0,2 | 0,8 |
| апельсиновый сок | 1 | 4 | 200 | 0,2 | 0,8 |
| грушевый сок | 1 | 4 | 200 | 0,2 | 0,8 |
| гранатовый сок | 1 | 4 | 200 | 0,2 | 0,8 |
| ананасовый сок | 1 | 4 | 200 | 0,2 | 0,8 |
| яблочный сок | 1 | 4 | 200 | 0,2 | 0,8 |
| персиковый сок | 1 | 4 | 200 | 0,2 | 0,8 |
| кофе черный с мороженным «гляссе» | 4 | 12 | 150 | 0,6 | 1,8 |
| коктейль сливочный | 4 | 12 | 250 | 1 | 3 |
| коктейль молочный | 5 | 15 | 250 | 1,25 | 3,75 |
| напиток из кураги | 3 | 19 | 200 | 0,6 | 3,8 |
| Итого | 25,335 | 74,53 | |||
Производим расчет массы блюда сельдь рубленная за 1 ч. максимальной загрузки зала.
6*100/1000=0,6
Затем производим расчет массы за 1ч. максимальной загрузки зала для остальных блюд и заносим результаты в таблицу 12.Затем подводим итого массы блюд реализуемых за 1 ч. максимальной загрузки зала.
∑=0,7+0,7+0,36+0,625+0,25+0,375+0,3+0,6+0,2+0,6+1,125+1,6+1,2+1,1+1,1+1,1+0,6+0,75+0,7+0,2+0,3+0,6+0,6+0,6+0,06+2+0,2+0,2+0,2+0,2+0,2+0,2+0,6+1+1,25+0,6=25,335
Произведем расчет массы блюда сельдь рубленная за 1/2 смены.
18*10/1000=1,8
Затем произведем расчет массы остальных блюд за 1/2 смены и заносим результаты в таблицу 12. Затем подводим итого массы блюд реализуемых за 1/2 смены.
∑=2,2+2,2+1,2+2+0,875+1,125+1+1,8+0,7+1,8+3,25+5+3,75+3,3+3,3+3,3+2+2,25+0,7+0,7+1+1,6+1,6+1,6+1,6+6,4+0,8+0,8+0,8+0,8+0,8+0,8+0,8+1,8+1,8+3,75+3,8=75,325
Произведем расчет вместимости холодильного оборудования по формуле (9).
E=∑ (25.335+75.325)/0.8=126 кг.
Требуемая вместимость 126 кг., поэтому принимаем к установке холодильный шкаф ШХ-0.7Ю с вместимостью 150 кг., что позволяет дополнительно увеличить производственную программу.
7.9.2 Расчет и подбор немеханического оборудования.
Производственные столы в холодном цехе подбирают по численности работников.
Общую длину столов можно рассчитать по формуле.
L=l*R(10)
Где,
R-численность работников.
l-средняя длина рабочего места (1,25).
Определяем общую длину столов по формуле (10).
L=1,25*1=1,25 м.
По полученному результату подбираем стол с охлаждаемой поверхностью и горкой СОЭСМ-3. Дополнительно подбираем ванну моечную ВМ-1, раковину для мытья рук, стеллаж СТ-1, настольные весы ВНЦ-2. Подбор немеханического оборудования выводим в таблицу.
Таблица 13.
| Наименование оборудования | Кол-во единиц | Тип, марка | Размеры мм. | |
| Длина | ширина | |||
стол с охлаждаемой поверхностью и горкой ванну моечную раковину для мытья рук стеллаж |
1 1 1 1 |
СОЭСМ-3 ВМ-1 СТ-1 |
1680 630 450 1000 |
640 630 270 700 |
7.9.3 Расчет и подбор кухонной посуды и инвентаря
Таблица 14
| № по порядку | Наименование кухонного инвентаря | Количество | ||
| 1 | Бак для сбора костей Бак для пищевых отходов Ведро Веселка Взбивалка портативная Вилка поварская Вилка со сбрасывателем Выемки для кондитерских изделий Горшок гончарный Горка для специй Горка для гарниров Грохот Держатель для кухонных ножей Держатель для разливательных ложек Доска разделочная Игла поварская Игла шпиговальная Кастрюля 1,5—2,3-литровые Кастрюля 4—6 л Кастрюля 8—10 л Котел 20—30 л Котел 40—50 л Котел для варки рыбы Консервовскрыватель Лимоновыжималка Ложка разливательная 500 мл Ложки порционные для сахара Ложки порционные для жира Нож для кореньев Нож для карбования и резки овощей Нож желобковый Нож-скребок Ножи «поварская тройка» Нож-пила Ножи-рубаки (большой, малый) Ножи для обвалки мяса (большой, малый) Нож для выемки костей Нож для разделки рыбы Нож для колбасы Нож для ветчины Нож для сыра Нож для хлеба Нож для лимонов Нож шпиговальный Нож для приготовления Ножи для изготовления цветов из овощей Ножницы-секаторы для разделки птицы и дичи Набор для фигурной резки сырых овощей Противень Противень для рыбы Сотейники цилиндрические 4-6 л. Сотейники цилиндрические 8 л Сковороды без ручки 170—250 |
2 2 4 5 1 3 2 3 50 4 1 5 2 17 3 2 9 10 12 24 18 6 2 2 1 6 2 2 4 2 1 1 9 1 1 1 1 1 1 1 1 1 1 1 1 1 1 1 9 9 5 2 8 |
||
| 2 | ||||
| 3 | ||||
| 4 | ||||
| 5 | ||||
| 6 | ||||
| 7 | ||||
| 8 | ||||
| 9 | ||||
| 10 | ||||
| 11 | ||||
| 12 | ||||
| 13 | ||||
| 14 | ||||
| 15 | ||||
| 16 | ||||
| 17 | ||||
| 18 | ||||
| 19 | ||||
| 20 | ||||
| 21 | ||||
| 22 | ||||
| 23 | ||||
| 24 | ||||
| 25 | ||||
| 26 | ||||
| 27 | ||||
| 28 | ||||
| 29 | ||||
| 30 | ||||
| 31 | ||||
| 32 | ||||
| 34 | ||||
| 35 | ||||
| 36 | ||||
| 37 | ||||
| 38 | ||||
| 39 | ||||
| 40 | ||||
| 41 | ||||
| 42 | ||||
| 43 | ||||
| 44 | ||||
| 45 | ||||
| 46 | ||||
| 47 | ||||
| 48 | ||||
| 49 | ||||
| 50 | ||||
| 51 | ||||
| 52 | ||||
| 53 | Сковороды с ручкой 210 мм Сковорода 9-ячейковая для жаренья яиц Сковорода с прессом для жаренья цыплят Скалки для теста разные Сита разные Ступки с пестиком Скребок формовочный для масла Скребок для рыбы Тарталетница Горка для сыра Горка ручная Топор-тупица Тяпка для отбивания мяса Формы для паштета, разные Формы для желе, самбука, разные Формы для заливных, разные Формы для кондитерских изделий, Черпак Штопор Шумовка Щипцы кондитерские Щипцы для льда Яблокорезка Яйцерезка |
8 1 10 3 2 1 1 1 20 2 1 2 2 2 25 25 20 2 3 3 5 2 1 1 |
||
| 54 | ||||
| 55 | ||||
| 56 | ||||
| 57 | ||||
| 58 | ||||
| 59 | ||||
| 60 | ||||
| 61 | ||||
| 62 | ||||
| 63 | ||||
| 64 | ||||
| 65 | ||||
| 66 | ||||
| 67 | ||||
| 68 | ||||
| 69 | ||||
| 70 | ||||
| 71 | ||||
| 72 | ||||
| 73 | ||||
| 74 | ||||
| 75 | ||||
7.9.4 Расчет площади холодного цеха.
Расчет площади цеха производят по формуле
Sобщ=Sполезн/k(11)
Где,
k-коэффициент использования площади цеха (0.32).
Sобщ-площадь цеха
Sполезн-площадь занимаемая под оборудованием.
Расчет полезной площади цеха.
Таблица 15.
| Наименование оборудования | Кол-во ед. | Тип, марка | Размеры мм. | S ед. обору-дования | S полез-ная | |
| длина | ширина | |||||
| Холодильный шкаф | 1 | ШХ-0.7Ю | 1120 | 800 | 0,896 | 0,896 |
| Стол с охлаждаемой поверхностью и горкой | 1 | СОЭСМ-3 | 1680 | 640 | 1,08 | 1,08 |
| Ванна моечная | 1 | ВМ-1 | 630 | 630 | 0,397 | 0,397 |
| Раковина для мытья рук | 1 | 450 | 270 | 0,12 | 0,12 | |
| Стеллаж | 1 | СТ-1 | 1000 | 700 | 0,7 | 0,7 |
| Универсальный привод | 1 | ПХ-0.6 | 530 | 280 | 0,15 | 0,15 |
| Итого | 3,343 | |||||
Определяем общую площадь по формуле (11).
Sобщ=3,343/0,32=10,45 м2.
Берём стандартную ширину цеха 3м.
Получаем ширину 10,45/3=3
7.9.5 Планировка холодного цеха.
План холодного цеха.

1- холодный шкаф ШХ-0.8; 2- холодный шкаф ШХ –0.6 3- стол производственный. 4- секция-стол с охлаждаемым шкафом и горкой СОЭСМ-3 5- низкотемпературный прилавок СН-0,15. 6- секция-стол с охлаждаемым шкафом СОЭСМ-2; 7- передвижной стеллаж. 8- моечная ванна ВМ-2СМ 9- машина для нарезки вареных овощей 10 – маслоделитель ручной
8. Заключение.
Предприятия питания играют важную роль в жизни человеческого общества. Успешная работа предприятия зависит от многих факторов. Как и всякая сложная система, предприятие питания начинается с замысла его создателя и заканчивается контролем и его функционированием.
Можно сделать вывод, что запроектированный холодный цех отвечает архитектурно-планировочному, технологическому, конструктивному, специальному инженерному решению. А так же детальная планировка холодного цеха в ресторане «Медведь» отвечает всем требованиям технологического планирования.
Все оборудование в цехе размещено согласно технологическому процессу. Рабочие места организованы в соответствии с технологическим процессом. Расстановка оборудования правильная, подготовка рабочих мест, а так же оснащение необходимым инвентарем, посудой обеспечивает снабжение в течении смены сырьем и бесперебойное выполнение работы. Данный цех можно использовать по его непосредственному назначению и выполнять в нем все необходимые технологические процессы без какого-либо вреда.
Список литературы.
1.ГОСТ Р 51647-94 «Общественное питание. Термины и определения».
2.ГОСТ Р 51764-95 «Услуги Общественного питания. Общие требования».
3.ГОСТ Р 50763-95 «Общественное питание кулинарных продуктов реализуемых населению. Общие технические условия».
4.ГОСТ Р 50762-98 «Общественное питание, классификация предприятия».
5.ОСТ Р 28-1-95 «Требования к производственному персоналу».
6.СанПин 2.3.6. 959-00 «Санитарно эпидемиологические требования к организации предприятий общественного питания, изготовлению и оборотоспособности в них продуктов сырья и пищевых продуктов».
7.СанПин 42-123-4117-86 «Санитарные правила. Условия, сроки хранения особоскоропортящихся продуктов», организация сроков действия, в которых сняты постановлением Госсанэпиднадзора РСФСР от 6.02.92 №11.
8.СанПин 2.3.2. 560-96 «Гигиенические требования к качеству и безопасности продуктов сырья и пищевых продуктов».
9.Нормы технического оснащения доготовочных предприятий общественного питания часть 2-ая Москва: 1989.
10. Т.Т. Никуленкова, Ю.И. Лаврененко, Г.Н. Ястина, «Проектирование предприятий общественного питания». Москва, «Экономика»-2002г.
11. Сборник рецептур блюд и кулинарных изделий. Москва, «Экономика»-1983г.
12. Сборник рецептур блюд и кулинарных изделий. Москва: «Хлебпродинформ», 1и 2 части 1996, 1997 г.
13. Сборник нормативных и технических документов, регламентирующих производство кулинарной продукции», 2-ая часть, Москва: «Хебпродинформ»-2001г.
14. Сборник рецептур блюд диетического питания, 1985г.
15. Сборник рецептур национальных блюд и кулинарных изделий, Москва: «Хлебпродинформ», 5-я часть 2001г.
16. Сборник рецептур предприятий общественного питания, Москва, «Легкая промышленность и бытовое обслуживание», 2000г.
17. Коршунов Н.В. “Организация обслуживания в ресторане” М, высшая школа 1976г.
18. Кристофер Энертон-Томас “Ресторанный бизнес” - М, “Росконсульт” 1999г.
19. Усов В.В. “Организация обслуживания в ресторане” - Москва. “ Высшая школа” 1990г.
20. Аносова М.М., Кучер Л.С. «Организация производства на предприятиях общественного питания» , 1985г
21. Радченко Л.А. «Организация производства на предприятиях общественного питания», 2000г.
22. Сборник рецептур блюд и кулинарных блюд национальных кухонь народов России. 1992г.
23. Х. Ридель, «Бары и рестораны. Техника обслуживания». 2002г.
24. Иванникова Е.И., «Барное дело», 2002г.
25. «Не вороти носа от того, что тебе подают, а если что не нравится, то делай вид, что этого не замечаешь, и продолжай налегать на то, что тебе нравится». Только не спорь, не выпендривайся, не оппонируй. Молчи и жри.
Похожие рефераты:
Организация бизнеса общественного питания на примере ресторана
Расходы и доходы предприятия ООО "ТНТ Продакшн"
П. Я Григорьев Холодные блюда и закуски
Организация предприятия общественного питания
Разработка проекта молодежного кафе высшей категории на 85 посадочных мест
Разработка проекта сендвич-бара
Разработка проекта современного предприятия общественного питания
Анализ товарооборота предприятия общественного питания (ресторана "Горизонт")
Практическая деятельность управляющего в ресторанном бизнесе