| Похожие рефераты | Скачать .docx |
Курсовая работа: Текущий ремонт трубчатой вращающейся печи кальцинации
Структура глиноземного предприятия на примере Ачинского глиноземного комбината представлена на схеме.

Рисунок 1 – Структура глиноземного комбината

Рисунок 2 – Схема получения глинозема
Нефелиновая руда и известняк поступает в сырьевой цех (в отделения приготовления руды, дробления известняка, приготовления руды и каустификации). В цех спекания печное отделение приготовленная шихта поступает из отделения приготовления шихты. После процесса спекания спек перемещается в отделение дробления спека, от куда поступает в отделение выщелачивания цеха гидрохимии. Полученный алюминатный раствор перемещают в отделение обескремнивания. Сюда же из сырьевого цеха отделения каустификации поступает известковое молочко. Из отделения обескремнивания алюминатный раствор перемещают в отделение карбонизации, где раствор подвергается разделению на гидрат алюминия (Al (OH)3 ) и содовый раствор, который перемещают в содовый цех для дальнейшей переработки.
На глиноземном предприятии окончательное получение глинозема осуществляется в цехе кальцинации.
Гидроксид алюминия из отделения карбонизации цеха гидрохимии поступает в цех кальцинации и через приемный бункер ленточным конвейером, с помощью шнекового питателя по наклонной трубе подается в барабанную печь кальцинации . Которая работает по принципу противотока, то есть на встречу гидроокиси алюминия движутся дымовые газы, полученные от сжигания топлива.
Дымовые газы на выходе из печи подвергаются трех - стадийной очистке:
I стадия – очистка в пылеосадительной камере;
II стадия – в батарейных циклонах ;
III стадия – электрофильтрами, куда дымовые газы подается с помощью дымососа.
После III стадии очищенные дымовые газы через дымовую трубу направляются в атмосферу. Уловленная полезная пыль с помощью шнекового питателя по-новой подается в печь. Полученный глинозем на выходе из печи кальцинации подвергается охлаждению в ОАО "РУСАЛ Ачинск" в холодильниках кипящего слоя (на аппаратурно-технологической схеме в барабанной холодильнике). Затем охлажденный глинозем перемещается в силоса.
Трубчатые вращающиеся печи являются универсальными, они используются во многих технологических процессах подготовки металлургического сырья для плавки. В алюминиевой промышленности трубчатые печи служат основными агрегатами для спекания бокситовых и нефелиновых шихт, а также для кальцинации глинозема. По устройству и принципу действия, трубчатые печи одинаковы и отличаются одна от другой только размерами и конструктивным исполнением отдельных частей, что обусловлено главным образом технологическими требованиями. Обжиг – подготовительный процесс для плавки рудного сырья.
В ОАО "РУСАЛ Ачинск" в цехе кальцинации установлена вращающаяся печь кальцинации ф4,5м х 110м предназначена для прокалки гидрата окиси алюминия.

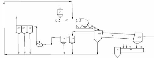
Рисунок 3 – Аппаратурно-технологическая схема цеха кальцинации ОАО "РУСАЛ Ачинск"
| Обозначение | Название оборудования |
| Б | Бункер |
| КЛ | Конвейер ленточный |
| ПШ | Питатель шнековый |
| Т | Труба |
| ПБ | Печь барабанная |
| КПО | Камера пылеосадительная |
| ЦБ | Циклон батарейный |
| ДС | Дымосос |
| ФЭ | Электрофильтр |
| ХБ | Холодильник барабанный |
| С | Силоса |
1.1 Назначение устройство и принцип работы трубчатой вращающейся печи кальцинации 4.5x110
Вращающаяся печь 4.5x110 предназначена для прокалки гидрата окиси алюминия.
Печь устанавливается на пять опор с уклоном к горизонту 2°. Для фиксации наклонного положения в осевом направлении на одной из ее опор установлены контрольные ролики. Вращение печи осуществляется от привода расположенного у четвертой опоры, считая с горячего конца. Отходящие газы из холодного конца печи при t = 250°С проходят три стадии очистки (пылевая камера, батарейные циклоны, электрофильтры) и выбрасываются в дымовую трубу. Глинозем после печи поступает в холодильник кипящего слоя, где охлаждается до t= 80-100°С.
Вращающаяся печь 4.5x110 состоит из следующих основных узлов: вращающегося барабана, загрузочной головки, разгрузочной головки, опорных станций, привода.
Вращающийся барабан представляет собой сварную конструкцию. Барабан печи изготавливают из углеродистой стали марки Ст3 или М16С. Барабан сваривают из отдельных обечаек. Торцы их тщательно разделывают – обрабатывают на станке, так как от качества разделки зависит трудоемкость и точность сборки барабана. Для усиления жесткости и прочности барабана в местах посадки бандажей и зубчатого венца устанавливают дополнительные обечайки жесткости. Барабан должен быть достаточно жестким, чтобы сохранить в процессе работы форму правильного цилиндра. При малейшем искривлении оси цилиндра резко возрастает напряжение в сечении барабана и потребляемая мощность. Деформация барабана приводить к преждевременному разрушению футеровки. В горячей зоне барабан футеруется высокоглиноземистым кирпичом, а в холодной шамотным кирпичом.
На расстоянии шестнадцати метров от холодного конца печи в барабане установлены теплообменные устройства (пакеты, цепные завесы). Загрузочная головка сваривается из трех частей: нижней, средней и верхней. Сегменты уплотнения монтируются вокруг печи и прикрепляются к загрузочной головки чугунными полукольцами.
Разгрузочная головка состоит из двух частей: нижней и верхней. В остальном конструкция уплотнения аналогична конструкции загрузочной головки. При помощи бандажей барабан опирается на опорные ролики. Бандажи свободно "плавают" на бандажных пластинах, приваренных к барабану печи. От осевого смещения бандажи предохраняют сектора, которые приваривают вплотную к бандажу по корпусу барабана. Печь имеет четыре опорных и одну опорно-упорную станции. Опорная станция состоит из двух роликов, которые насаживаются на оси. вращающиеся в подшипниках скольжения.
Корпус подшипника опорного ролика чугунный, литой, с отверстиями в нижней части, для спуска масла, и уровнемера для контроля уровня смазки в подшипниках. К корпусу подшипника крепится крышка, которая в верхней части имеет люк для осмотра цапфы и заливки масла. Корпус подшипника крепится на сварной раме.
Выверяется корпус с помощью регулировочных винтов и гаек. Внутри корпуса находится сферический, пустотелый, стальной вкладыш с водяной рубашкой для охлаждения масла на ней устанавливается бронзовый вкладыш, который при помощи двух пластин и болтов крепится к нему.
На торцах оси опорного ролика расположено смазочное устройство в виде ковшей, которые черпают масло из масленой ванны при вращении и выливают его в желобок с отверстиями, откуда масло равномерно стекает на ось ролика.
Упорные ролики расположены по обе стороны опорно-упорного бандажа. Крепятся ролики на вертикальных осях, вращение происходит в радиально-упорном и упорном подшипниках. Смазываются упорные ролики от принудительной смазочной станции. Назначение упорных роликов - контролировать положение печи.
Вращающиеся печь имеет два привода: главный и вспомогательный. Каждый, из которых состоит из электродвигателя, тормозной муфты, редуктора и соединительной муфты. Главный редуктор трехступенчатый, вспомогательный двухступенчатый.
Цилиндрические колеса главного редуктора имеют шевронное зацепление. Валы вращаются в подшипниках качения.
Вспомогательный редуктор служит для прокрутки печи при ремонтах. На выходном вату главного редуктора находится соединительная втулочно-пальцевая муфта, которая соединяет с главным редукторам вал-шестерню. Вал-шестерня входит в зацепление с зубчатым венцом. Зубчатый венец присоединяется к барабану печи при помощи тангенциальных пластин. Смазка венцовой и вала-шестерни происходи методом погружения в масляную ванну.
Гидроокись алюминия с влажностью 12-14 % поступает из цеха гидрохимии в бункер над печью, из бункера пластинчатые питатели подают ее на шнековые смесители, а затем по течке самотеком гидроокись поступает в загрузочную головку печи. Из загрузочной головки материал поступает в зону сушки, где расположена насадка, для более полного теплообмена. После зоны сушки гидроокись проходит еще три технологические зоны: зона обезвоживания, зона прокалки и зона охлаждения. После чего она поступает в разгрузочную головку, а оттуда в холодильник кипящего слоя. Обработка материала происходит топочными газами по принципу противотока, что обеспечивает наиболее полную отдачу тепла.
1.2 Техническая характеристика трубчатой вращающейся печи кальцинации 4.5х 110
Основными параметрами печей являются: диаметр и длина барабана. Между ними установлена определенная зависимость, обусловленная технологическим процессом и конструкцией
. В печах спекания глиноземного производства это отношение колеблется от 1:20 до 1:36
Таблица 1 – Техническая характеристика
| Диаметр барабана | 4,5 метра |
| Длина барабана | 110 метров |
| Производительность | 40 т/час |
| Влажность на выходе | 12-14% |
| Температура на входе | 500 С |
| Температура на выходе | 1000-9000 С |
| Угол наклона барабана | 20 |
| Число оборотов барабана | 1,6-1 мин-1 |
| Количество роликовых опор | 5 штук |
| Электродвигатель главный Тип ДСУо 74-8 | N=160кВТ;n=740мин-1 |
| Редуктор главный | i=86,4 |
| Электродвигатель вспомогательный Тип КРА 180 2/6 | N=140кВТ;n=975мин-1 |
| Редуктор вспомогательный | i=86,4 |
| Венец зубчатый | m=50мм, z=140 |
| Шестерня подвенцовая | m=50мм, z=27 |
1.2.1 Характерные неисправности трубчатой вращающейся печи кальцинации 4.5х 110
Таблица 2 – Характерные неисправности
| Неисправность | Причины | Способ устранения |
| Лопнул корпус печи | Допущена работа без футеровки | Заварка или замена обечайки |
| Нарушено крепления бандажа | Износ бандажных пластин | Расслойка полочных зазоров с частичной или полной заменой подбандажных платин |
| Ослабление креплений венцовой шестерни | Удаление болтов | Обтяжка или замена болтов |
| Неисправность в механизации опорного блока | Износ подшипников | Замена подшипников или добавка смазки |
| Лопнул бандаж | Некачественная сварка бандажа | Замена бандажа или заварка |
| Нарушено крепление пороговых плит | Выпадение кирпича | Замена плиты |
| Неполное сгорание топлива | Плохое распыление потлива, низкая температура в печи. Недостаток кислорода | Прейти на резервную форсунку |
| Хлопок в печи | Пуск печи на главном приводе без предварительного вращения на вспомогательном приводе | Срочно перевести на вспомогательный привод |
| Нарушение баланса пылевозврата, пылеуноса | Неисправность транспортирующего устройства; отсутствие сжатого воздуха; подача воздуха повышенной влажности; недостаточный расход топлива | Увеличить расход топлива; увеличить тягу; преобладание пылеуноса перед пылевозвратом |
| Разрешение футеровки и покраснение корпуса печи | Некачественная кладка; выжигание футеровки; износ футеровки | Полная или частичная замена футеровки |
1.3 Данные о быстроизнашиваемых деталях
1.3.1 Механические свойства и химический состав втулки
К быстроизнашиваемой детали относится втулка. Материал для изготовления втулки - сталь 45 ГОСТ 1050-88. вид поставки - отливки ГОСТ 4543-71.
Назначение - после улучшения коленчатые валы, шатуны, зубчатые венцы, маховики, зубчатые колёса, распределительные валики, болты, шпильки, цилиндры, гайки, шпонки храповики, бандажи, фрикционные диски, плунжеры, шпиндели. После поверхностного упрочнения с нагревом -детали средних размеров, к которым предъявляются требования высокой поверхностной твёрдости и повышенной износостойкости при малой деформации: длинные валы, ходовые валики.
Таблица 3 – Химические свойства
| С | Cr | Мп |
| 0.42-0.50 | 0025 | 0.50-0.80 |
Таблица 4 - Механические свойства
| Состояние постановки режимов термообработке | Сечение, мм | КП | Предел текучести условный | Предел прочности | Относительное удлинение после разрыва | Относительное сужение | НВ |
| МПа | % | ||||||
| Не менее | |||||||
| Закалка с отпуском 160-180 | - | - | 1030-1650 | 1200-1760 | 4-2 | 30-12 | 335-492 |
1.3.2 Ремонт приводного вала
У валов в процессе эксплуатации могут быть следующие виды дефектов: износ посадочных мест, овальность, огранка, износ центровых отверстий, износ резьб, если таковые имеются, задиры износ шпоночных пазов.
В данном случае вал может иметь следующие дефекты: овальности износ шпоночных пазов и посадочных мест.
Ввиду того, что вал имеет большую массу, с экономической точки зрения целесообразно данный вал реставрировать методом наплавки. Наплавка производится наплавочной проволокой диаметром 2 миллиметра под флюсом, с использованием наплавочного оборудования АРС-1000-2 и КРД-41520.
После наплавки производится механическая обработка: наружное обтачивание на токарно-винторезном станке модели 165. в качестве режущего инструмента используется проходной резец с пластинкой твердого сплава Т5К10 для чернового и Т15К6 для чистового обтачивания. В качестве мерительного инструмента используется штангенциркуль с точностью измерения 0,05 миллиметра.
Для обработки шпоночных пазов используется бесконсольный вертикально - фрезерный станок 6А54. в качестве режущего инструмента используются концевые фрезы разного диаметра в соответствии с шириной шпоночного лаза. Материал режущего инструмента быстрорежущая сталь марки Р18Ф2. Мерительный инструмент - шаблон.
1.3.3 Зубчатое колесо главного привода печи кальцинации 4,5х110
Зубчатое колесо изготовлено из стали 25ХМ ГОСТ4543-71. При значительном износе зубьев и шпоночных пазов возможно восстановление зубьев либо их замена. Применительно к зубчатому колесу главного привода и зубчатому венцу печи кальцинации ф4,5мх110м, высокая долговечность данных деталей, является гарантом длительного срока службы.
1.4 Карта и схема смазки , требования предъявляемые к маслам
Надежность оборудования зависит от рационального выбора смазочных материалов, способов и режимов смазки, контроля и качества смазки Основной функцией смазочных материалов является уменьшение сопротивления трению и повышение износостойкости трущихся поверхностей. Кроме того, смазка выполняет дополнительные функции: отвод тепла от узлов трения, защита поверхностей от коррозии. Для смазки металлургического оборудования применяют следующие виды смазочных материалов: жидкие (минеральные масла), пластичные (смазки), твердые (смазки и смазочные покрытия), самосмазывающиеся материалы и металлоплакирующие.
Требования, предъявляемые к смазке.
Узлы металлургического оборудования работают в тяжелых условиях (большие нагрузки, высокие температуры, загрязнение абразивными материалами) поэтому к смазочным материалам предъявляют повышенные требования.
1. Для минеральных масел:
- обеспечение минимального износа к минимальной потере на трение;
- эффективный отвод тепла;
- хорошая жидкотекучесть (в интервале температур от +40 до -15°С). Для обеспечения свободного прокачивания по трубопроводам и свободного слива от узлов трения;
- высокая сопротивляемость термоокислению;
- способность легко отделятся от воды без образования с водой стойких не расслаивающихся эмульсий.
2 Для пластических смазок:
- обеспечение минимального износа к минимальной потере на трение;
- хорошая прокачиваемость по трубопроводам (в интервале температур от -10 до -180°С). Для обеспечения свободного прокачивания по трубопроводам и свободного слива от узлов трения;
- способность не подвергаться разложению под давлением до 20 МП, незначительно изменять свои свойства в процессе хранения и эксплуатации.
Классификация способов и систем смазки.
В зависимости от принципа подвода смазочных материалов к поверхностям и узлам трения при смазке минеральными маслами различают следующие способы:
1. Индивидуальный
Применяют для смазки отдельных узлов трения, когда подключение их кцентрализованным системам смазки затруднено. Смазку к узлам трения подают периодически под средством ручных шприцевчерез масленки.
2. Погружением
Масло из масленой ванны зацепляется колесом или паразитной шестерней и подносится к месту смазки.
3. Под давлением
Наиболее эффективный способ. Его применяют в ответственных машинах и механизмах. Осуществляют с помощью циркуляционных систем смазки. При смазке пластичными материалами.
4. Закладной
Заключается в заполнении узла трения смазкой при сборке или ремонте и невозможности смазывания узлов в процессе эксплуатации.
5. Централизованный
Применяют для одновременной смазки большого числа узлов трения.
В зависимости от вида или состояния смазочных материалов различаютсистемы смазки. По характеру циркуляции смазочного материала системысмазки делят на проточные и циркуляционные.
І. Проточные
Смазочный материал подается к трущимся поверхностям периодически небольшими порциями, используется в работе один раз и в резервуары системы не возвращаются.
ІІ. Циркуляционные
Система состоит из резервуара для масла, двух насосов с электродвигателями, двух фильтров с приводами, теплообменника, трубопроводов и запорной арматуры Работа
Масло рабочим насосом через плавающую всасывающую трубку всасывается из резервуара и поступает в пластинчатые фильтры, откуда через маслоохладитель по напорному трубопроводу поступает к узлам трения. После смазки всех узлов трения масло самотеком по сливному трубопроводу возвращается в резервуар.
Централизованная система жидкой смазки
Предназначена для централизованной подачи дозированного количества смазки к узлам трения.

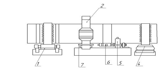
Рисунок 4 – Схема смазки печи кальцинации 4.5х110
1 – опорные ролики; 2 – узел подвенцовой шестерни (зацепления); 4 – упорный ролик; 5 – редуктор главный; 6 – редуктор вспомогательный; 7 – узел подвенцовой шестерни (подшипника).
Таблица 7 –Карта смазки печи кальцинации ф4,5мх110м
| Номер узла | Смазываемый узел | Количество узлов | Смазываемая точка | Количество точек | Способ смазки | Тип смазки |
Расход смазочных материалов |
||||
| Лето | Зима | На залив, кг | |||||||||
| Емкость, кг | Продолжительность в год |
Годовой расход | |||||||||
одной точки |
всех точек |
||||||||||
| 3 | Узел Подве нцовой шестерни |
1 | Под шип ники вала |
2 | Набивка в ручную | Литол 24 |
Литол 24 |
8 | 16 | 2 раза | 32 |
| 4 | Узел подвенцовой шестерни | 1 | Зубчатое зацепление | 1 | Жидкая заливная | Литол -24 |
Литол -24 |
200 | 200 | 2 раза | 400 |
| 5 | Редуктор главный | 1 | Зубчатые зацепления | - | Жидкая циркуляционая | ПС- 28 |
ПС-28 | 800 | 800 | 3 раза | 2400 |
| 6 | Электро двигатель d 94-6 |
6 | Зубчатые зацепления | 4 | Набивка в ручную | УТВ | УТВ | 2,85 | 2,85 | 6 раз | 6,52 |
1.5 Структура механо-службы, правовые обязанности механика
В цехе кальцинации ремонты технологического оборудования производит цех ремонта печных агрегатов. Структура механослужбы в цехе ремонта печных агрегатов представлена в семе:
![]()

Рисунок 5 – Схема структуры механослужбы
Механик подчиняется административно - начальнику цеха. Механик цеха в своей работе руководствуется положениями о цехе и настоящей должностной инструкцией.
Основные задачи:Обеспечение бесперебойной и надежной работы механического оборудования цеха, грузоподъемных машин, противопожарных установок, правил технической эксплуатации и техники безопасности.
Обязанности механика:
Механик осуществляет руководство и непосредственную организацию производства работ по ремонту и обслуживанию оборудования. Обеспечивает выполнение плана производства работ механического оборудования цеха, согласно графику ППР. Организовывает технически правильную эксплуатацию оборудования с правилами и эксплуатационными инструкциями. Составляет и подает своевременно заявки на запасные части, материала, инструменты и приспособления, необходимые для ремонта. Осуществляет годовую и первичную аттестацию персоналу. Контролирует соблюдение рабочими правил техники безопасности.
Немедленно принимает меры для ликвидации обнаруженных дефектов и повреждений. Содействует внедрению рационализации к изобретательству. Осуществляет обучение и своевременную проверку; знаний персонала допущенного к управлению грузоподъемных машин, станков и другого оборудования. Обеспечивает правильное применение рабочими спецодежды и защитных средств. Выдает наряд-задание на производство работ в полном объеме в соответствии с действующими нормами и нормативами.
Должностные права механика:Останавливать оборудование и механизмы, если дальнейшая эксплуатация может вызвать аварию, пожар или несчастный случай. Останавливать оборудование в соответствии с графиком ППР станки, агрегаты, оборудование подлежащие ремонту, отключать оборудование, оставленное по окончанию смены неубранным и не смазанным. Предоставлять начальнику цеха об отлучившихся и не соблюдающих правила пользования и поведения в цехе и приведение их к дисциплинарной ответственности. Участвовать в квалификационной комиссии по присвоению разряда. Не допускать к работе на оборудовании цеха лиц, не сдавших технического минимума.
На металлургический заводах предусмотрены тех.обслуживание, капитальный и текущий ремонт. Графики ППР составляют старшие механики на год на месяц, согласовывают отделом ОГМ и главным механиком. Сроки и методы проведения ремонтов, продолжительность, материальные затраты, комплектацию запасными частями, привлечение механизмов, персонала механослужбы, работу РМЦ, дежурного, смен и персонала подрядных организаций. Оплату производят по сметам выполненных работ. Подготовительные работы ведут за 3-4 месяца до проведения ремонта. Сдача объекта в ремонт, выдача из ремонта, все виды проведенных испытаний оформляются актами, которые подписываются начальниками цехов, представителями отдела техники безопасности, ст.механиком цеха и представителями ремонтных организаций. Приемка после ремонта в эксплуатацию согласно правилам технической эксплуатации сменным и дежурным персоналом производственного цеха. В правилах по каждому виду оборудования даны соответствующие указания по выполнению технологических операций, профилактических осмотров во время плановых остановок оборудования при сдаче смен. Осмотры оборудования осуществляют сменные дежурные, ИТР с записью результатов проверок, обнаруженных неисправностей и сроков устранения в паспорте оборудования и журнале передачи смен. При подготовке ипроведении ремонтов.
Ремонтный цикл - наименьшие повторяющиеся интервалы времени или наработка оборудования, в течение которых выполняются в определенной последовательности все установленные виды ремонта. Для металлургического оборудования в качестве ремонтного цикла принимают период между двумя капитальными ремонтами.
Периодичность технического обслуживания (ремонта)- интервал времени или наработки между данным видом ТО (Р) и последующим таким же видом или другим большей сложности.
Система технического обслуживания и ремонта (ТО и Р) - совокупность взаимосвязанных средств, документации ТО и Р и исполнителей, необходимых для поддержания и восстановления качества оборудования, входящего в систему ТО и Р. В настоящее время на металлургических заводах применяется система ТО и Р, которая основана на принудительной остановке оборудования на профилактические осмотры и ремонты через заранее запланированные промежутки времени (межремонтные периоды) с возможными пределами их изменения.
Основным содержанием системы ТО и Р являются:
а) техническое обслуживание в межремонтный период, включающее внутрисменное обслуживание (уход и надзор) и проведение профилактических осмотров оборудования;
б) выполнение плановых ремонтов оборудования.
Это распространяется на основное технологическое, крановое оборудование и специальный подвижной состав предприятий черной металлургии (металлургических заводов, горнодобывающих и рудообогатительных предприятий).
Ремонт (Р) комплекс операций по восстановлению исправности или работоспособности, а также по восстановлению ресурса оборудования или его составных частей. Содержание части операций ремонта может совпадать с содержанием некоторых операций ТО, однако при выполнении ремонтов обязательным условием является восстановление первоначальных характеристик оборудования, обусловленных нормативно-технической документацией.
Ремонты выполняет ремонтный персонал производственного цеха, а также персонал ремонтных цехов отдела главного механика завода и специализированных ремонтных трестов. В выполнении ремонтов также принимает участие эксплуатационный и дежурный персонал цеха. Методы диагностики отказов и обнаружения дефектов в деталях Своевременное установление причин (диагностика) отказов и обнаружение дефектов в деталях оборудования являются важными условиями правильной оценки состояния оборудования, основанием для своевременной остановки на техническое обслуживание и ремонт, назначения соответствующего метода повышения надежности и залогом безаварийной работы оборудования.
Диагностика отказов выполняется различными методами.
При проведении текущего ремонта вентилятора использовался бесприборный метод. Бесприборные методы позволяют легко определить очевидные причины отказов по частым срабатываниям систем защиты оборудования от перегрузок, браку выпускаемой продукции, повышению температуры узлов трения, изменению интенсивности шума, относительному смещению отдельных деталей, появлению утечек жидкостей и газов в трубопроводах и т.п. Однако бесприборные методы в основном позволяют установить мест и причину отказа, когда его развитие достигло критического значения и вызвало нарушения в нормальной работе оборудования и ходе технологического процесса. Устранение таких отказов, как правило, связано с необходимостью аварийной остановки оборудования для замены отказавшей детали или узла и потерями производства.
Более эффективными являются приборные методы, основанные на применении различных датчиков температуры, акустических, вибрационных, давления и др. Эти датчики устанавливают в местах и узлах оборудования, в которых с наибольшей вероятностью может возникнуть отказ. Сигналы о; датчиков через усилители поступают на регистрирующие или сигнализирующие приборы. При возрастании значения параметра, характеризующего состояние узла или машины (температуры, вибрации, уровня шума) сверх допустимой величины включается сигнализирующее устройство (звуковой или световой сигнал), предупреждающее обслуживающий персонал о выходе узла или машины из нормального режима эксплуатации. В этом случае оборудование может быть остановлено на профилактический осмотр для устранения причины, вызвавшей его выход из нормального режима работы. При этом детали и узлы оборудования не подвергаются недопустимым перегрузкам, сохраняют свои конструктивные и эксплуатационные показатели и не требуют ремонта. Кроме того, исключаются дорогостоящие аварийные простои и потери производства. Кроме стационарных, могут применяться переносные приборы для контроля состояния узлов. В этом случае они входят в состав инструмента, с помощью которого дежурный персонал ремонтной службы или персонал службы инспекции осуществляет диагностику отказов оборудования. Примером такого прибора является стетоскоп, применяемый для контроля состояния узлов, скрытых в корпусах (подшипников, зубчатых передач).
Акустический метод применяют и для обнаружения трещин в деталях. Целые детали при простукивании издают чистый звук, детали с трещинами дребезжащий.
Для обнаружения дефектов в деталях до сборки или после разборки машин или узлов применяют методы, основанные на использовании явления люминесценции, свойств магнитного поля, электромагнитных или звуковых волн.
На свойствах магнитного поля основано применение магнитно-порошкового метода обнаружения внутренних скрытых дефектов в деталях оборудования. Сущность метода заключается в образовании полей рассеяния магнитного металлического порошка над дефектами при намагничивании детали. Магнитные порошки применяют в виде суспензии с использованием керосина, минеральных масел, воды, спирта и так далее. При намагничивании детали порошок сосредоточивается в местах, где прерывается или затрудняется прохождение магнитного потока внутри детали, образуя на поверхности ее рисунок или пятно, соответствующее конфигурации скрытого дефекта. Намагничивание осуществляют полюсным, циркуляционным и комбинированным способами.
- полюсное намагничивание обычно применяют для выявления поперечных трещин в детали. Деталь намагничивается постоянным магнитом, электромагнитом (рисунок 1, а) или соленоидом (рисунок 1, б), приобретая явно выраженные магнитные полюсы.
- циркуляционное намагничивание чаще применяют при выявлении дефектов (трещин), расположенных продольно, в направлении оси детали. Сплошные детали намагничивают, включая их в цепь вторичной обмотки трансформатора (рисунок 1, в), а полые - пропуская через них сердечник, включенный в цепь вторичной обмотки трансформатора (рисунок 1, г). При этом магнитные силовые линии проходят кольцеобразно внутри детали, пересекая трещину.
- комбинированный способ включает одновременное полюсное и циркуляционное намагничивание и применяется при обнаружении внутренних дефектов сложной формы
Под системой ППР понимаются совокупность организационных и технических мероприятий, по эксплуатации, обслуживанию и ремонту оборудования, которые направлены на предупреждение преждевременного износа деталей, узлов и механизмов и на повышение надежности оборудования.
Сущность системы ППР заключается том, что после отработки оборудованием определенного количества часов, производится плановые ремонты, к которым относятся техническое обслуживание, текущие и капитальные ремонты. Периодичность данных ремонтов определяется назначением, конструктивными особенностями и условиями эксплуатации оборудования.
Основными методами ППР является метод периодического ремонта, при котором очередные плановые ремонты выполняются за ранее установленные сроки, причем содержание каждого ремонта уточняется в процессе технического осмотра в зависимости от состояния отдельных узлов, деталей и механизмов.
Ремонт электрооборудования осуществляется в то же время, что и ремонт технологического оборудования.
Основным содержанием системы ППР являются; обязательное выполнение правил технической эксплуатации оборудования и норм технического обслуживания; своевременное и качественное проведение плановых ремонтов оборудования.
Техническое обслуживание – это комплекс операций по поддержанию работоспособности оборудования. К данному комплексу операций относится:
а) ежемесячное техническое обслуживание:
- регулярный наружный осмотр, очистка;
- проверка наличия смазки;
- проверка работы предохранительных устройств;
- наблюдение за работой контрольно-измерительных приборов;
- проверка тормозов;
- регулирование оборудования;
- устранение мелких неисправностей;
- передача оборудования по сменам;
б) ежесуточная проверка правильной эксплуатации лицами ответственными за механически исправное состояние с фиксацией в журнале приема и сдачи смен;
в) периодические ТО (технические осмотры, выполняемые после наработки оборудованием определенного количества часов).
Текущий ремонт – ремонт, выполняемый для обеспечения или восстановления работоспособности оборудования. При наличии в оборудовании узлов и деталей с большей разницей износостойкости предусматриваются различные текущие ремонты Т1 и Т2 . Текущий ремонт - вид планового ремонта, при котором производится:
- очистка;
- частичная разборка оборудования;
- замена или восстановление футеровки, отдельных деталей, узлов и механизмов;
- полная или частичная замена вышедших из строя крепежных деталей;
- наладка оборудования.
Текущие ремонты выполняются силами ремонтных бригад предприятия, а в случае производства крупных текущих ремонтов по графикам, утверждаемым вышестоящей организацией. Также с привлечением подрядных специализированных организаций.
Капитальный ремонт – восстановление первоначальных качественных характеристик оборудования: производительность, мощность, точность. В данные вид ремонта входит:
- очистка;
- полная разборка;
- промывка узлов;
- замена изношенных деталей;
- сборка;
- наладка оборудования.
Графики ППР составляются на один цикл (от капитального ремонта до капитального ремонта), на год , на месяц
На цикл График составляется исходя из расчета Время работы оборудования за год - 8760 час.
Технический осмотр в месяц (производят ежедневно) – 720час., технические ремонты – документация оборудования, капитальный ремонт – документация оборудования
; (1)
где:
-
эффективный фонд времени работы оборудования
- сумма времени простоя оборудования
График ППР на один ремонтный цикл
Режим работы: непрерывное производство
Таблица 8 – Исходные данные
| Вид ремонта | Периодичность, час | Периодичность, мес. | Продолжительность, час | Число ремонтов в цикле |
| ТО | 720 | 1 | 8 | 36 |
| Т | 480 | 6 | 480 | 7 |
| К | 34560 | 48 | 720 | 1 |
Таблица 9 – График ППР на один ремонтный цикл
| Наименование оборудования | Ремонтная сложность | Периодичность ремонтов, мес. |
Продолжительность ремонта, час. |
Простой, час. |
эффективный фонд времени работы оборудования, Тэф , час. |
|||||||||||||||
| К | Т | ТО | Январь | Февраль | Март | Апрель | Май | Июнь | Июль | Август | Сентябрь | Октябрь | Ноябрь | Декабрь | К | Т | ZТ | |||
| Печь кальцинации 4.5х110 | 48 | 6 | 1 | Т/480 | Т\\480 | - | 2\480 | 960 | 7800 | |||||||||||
| Т/480 | Т/480 | - | 2\480 | 960 | 7800 | |||||||||||||||
| Т/480 | Т/480 | 2\480 | 960 | 7800 | ||||||||||||||||
| Т/480 | К\720 | 1\720 | 1/480 | 1200 | 7560 | |||||||||||||||
2.1 Прием оборудования в ремонт
При приеме оборудования в ремонт необходимо составление документации:
2.1.1 Предварительная дефектная ведомость мастером участка и представителем механослужбы, где указывается:
- оборудование дата составления;
- наименование узлов и деталей подлежащих ремонту или ревизии;
- описание неисправностей.
Подписывают данный документ слесарь-ремонтник и матер участка.
2.1.2 Для производства работ цех заказчик составляет наряд-заказ на производство работ с указанием в счет, каких работ будет производиться ремонт.
2.1.3Одновременно с наряд заказом оформляется Акт о сдаче оборудования в ремонт в двух экземплярах.
Контроль качества и приемку отремонтированного оборудования производят работники отдела технического контроля (ОТК), подчиненные руководителю предприятия или начальнику отдела.
2.2 Технологическая карта на разборку открытой зубчатой передачи
Объем разборки зависит от вида проводимого ремонта ( тех.осмотр, Текущий, Капитальный) или дополнительных работ по устранению неисправностей, выявленных в процессе приемки. Разборка производится в последовательности, предусмотренной технологическим процессом данного вида ремонта.
При разборке необходимо избегать ударных напряжений, вызывающих изгиб, Правильное выполнение разборочных работ обеспечивает сохранность снимаемых деталей для повторного использования и является одним из условий рациональной организации производственного процесса ремонта оборудования.
Технологическая карта на разборку узла составляется с той целью, чтобы выяснить все дефекты детали. Обычно производиться при текущем или капитальной ремонте. Предварительно детали разбираемого узла промывают ручной или механической мойкой.
Таблица 6 – Технологическая карта
| № | Наименование операции | Оборудование | Инструмент |
| 1 | Обесточиваем электропривод | Инструмент | |
| 2 | Откручиваем болт полумуфт | - | Гаечный ключ |
| 3 | Откручиваем фундаментальные болты редуктора | - | Гаечный ключ |
| 4 | Удаляем редуктор | Мостовой кран | - |
| 5 | Откручиваем болты полумуфт | - | Гаечный ключ |
| 7 | Снимаем зубчатую шестерню с вала | - | Съемник |
| 8 | Снимаем все полумуфты с валов | - | Съемник |
2. Дефектная ведомость детали
В дефектной ведомости указывается
- цех заказчик ремонта;
- цех исполнитель ремонта;
- наименование ремонтируемого оборудования;
- время проведения ремонта;
- наименование и обозначение узлов и деталей, подлежащих ремонту или замене;
- операция по ремонту узлов, деталей;
- запчасти и материалы, необходимые для ремонта и их количество;
- трудозатраты (чел / час).
Подписывается дефектная ведомость начальниками цехов, старшим мастером цеха ремонта, специалистом ППР, механиком цеха ремонта и утверждает главный механик производственного отдела.
Одновременно с дефектной ведомостью составляется график выполнения ремонта с указанием оборудования, инвентарного номера, начала и окончания ремонта, планового времени ремонта по сменам. Утверждает график начальник цеха-заказчика.
Таблица 7 – Дефекктная ведомость
| № п.п. | Наименование деталей | Материал деталей | Число дет. | Вид дефекта | Решение |
| 1 | Валшестерня | Сталь 45Х ГОСТ 977-88 |
1 | Разбито посадочное место для шпонки | Отремонтировать методом наплавки |
| 2 | Шестерня | Сталь 35Л ГОСТ 1050-84 | 1 | Внешний износ зубьев |
Отремонтировать методом наплавки |
![]()
![]()
![]()
![]()
![]()
![]()
![]()
![]()
![]()
![]()
![]()
![]()
![]()
![]()
![]()
![]()
![]()
![]()
![]()
![]()
2.4 Мойка деталей
После разборки все детали должны быть тщательно очищены от грязи, масла, нагара и накипи, так как дефекты можно обнаружить только на совершенно чистых деталях. Очистка и промывка деталей улучшают санитарные условия ремонта. Детали очищают следующими способами: термическим (огневым), механическим и химическим.
При термическом способе очистки старую краску и ржавчину удаляют пламенем. При механическом способе очистки старую краску, ржавчину и отвердевшие наслоения масла удаляют щетками, механизированными шарошками и другими переносными механизмами. При химическом способе старую краску, смазку и другие наслоения удаляют специальной пастой или раствором из негашеной извести, мела и каустической соды.
На рабочем месте или в местных ремонтных мастерских детали после очистки промывают обычно керосином в ваннах с применением обтирочных материалов, кистей, щеток и т. п. В крупных ремонтных мастерских детали целесообразно промывать в ваннах, сваренных из листовой стали толщиной 4...6 мм и разделенных на две части: в одной находится раствор каустической соды, в другой горячая вода, подогреваемая паром, циркулирующим по змеевику.
В первом отделении ванны детали обрабатывают в течение 10... 15 мин в 10 %-ном растворе каустической соды, нагретом до температуры 80...90 °С, с добавлением зеленого мыла (3 г на 1 л воды). Во втором отделении ванны детали промывают горячей водой для удаления остатков соды. Вычищенные и вымытые детали рекомендуется высушивать под струей сжатого воздуха.
В центральных мастерских и на ремонтно-механических заводах детали можно промывать механизированным способом в стационарных и передвижных установках под действием струи моющей жидкости которая нагнетается насосом в трубу с соплами под давлением.
Для мойки деталей из стали и чугуна применяют различные водные и щелочные растворы, например состав, состоящий из: 1,5% кальцинированной соды, 0,25...0,5% жидкого стекла и 0,1 % поверхностно-активного вещества (марки ДС-РАС). Для очистки деталей от загрязнений смазочными материалами и продуктами их окисления получили распространение синтетические моющие вещества типа МЛ-51, МЛ-52, Лабомид 101, Лабомид 203, типа МС и др. Моющие растворы наиболее эффективны при температуре их нагрева до 75...85 °С.
2.5 Маршрутная технология на восстановление или изготовление детали
Таблица 5 – Маршрутная технология на восстановление вал – шестерни
Наимено - вание операции |
Содержание операции | Наименование оборудования | Приспо -собления | Режу - щий инструмент |
| Токарная | Установить вал-шестерню в центра, выверить, закрепить по d=230мм в четырех кулачковом патроне. Точить с переустановкой шейки "как чисто" на величину износа, диаметры, подлежащие восстановлению уточнить у цехового технолога | 11652 | Четырех- кулачковй патрон | Резец с пласти -ной Т15К6 |
| Контроль ОТК | Микрометр | |||
| Наплавка | Установить в шпоночные пазы технологические шпонки, высота которых выше номинального диаметра на 5мм, прихватить. Установить вал на люнеты, закрепить в патроне. Наплавить шейки D=290, D=320, D=340мм сплошным слоем. Кольцевыми перекрывающимися валиками выше номинального диаметра на ю (+2)мм (толщина наплавляемого слоя 8мм)Раскрепить, снять с люфтов. | 41500 | Патрон | |
| Контроль ОТК | Микрометр | |||
| Токарная | Установит вал-шестерню в центра и в четырех кулачковый патрон, выверить, закрепить на D=230мм. Точить с переустановкой в размеры чертежа по D=290мм, оставить припуск 1,3 (-0,38)мм, по D=320мм и D=340мм припуск 1,4 (-0,38)мм на диаметр под шлифование. | 11652 | Четырех- кулачковй патрон | Резец с пласти - ной Т15К6 |
| Контроль ОТК | Микрометр | |||
| Фрезерная | При необходимости поправить, торцевой насадкой фрезой D=80мм, шпоночный паз, при установке выверить с точностью до 0,7мм | 16610 | Торцевая фреза | |
| Кругло-шлифо-вальная | Шлифовать шейки вала D
=
|
13174 | ||
| Контроль ОТК | Микрометр |
3 Охрана труда и техника безопасности
3.1 Техника безопасности при ремонте и эксплуатации оборудования
К работе слесаря - ремонтника допускаются лица, достигшие 18-летнего возраста, прошедшие медицинское освидетельствование, курс обучения по утвержденной программы и сдавшие экзамен квалификационной комиссии, аттестованные на первую квалификационную группу по электробезопасности.
Слесарь - ремонтник может приступить к работе только после инструктажа по безопасности труда, проведенного мастером смены непосредственно на рабочем месте с записью в личной карточке прохождения обучения.
К самостоятельной работе слесарь-ремонтник допускается после стажировки на рабочем месте в течение 14 смен под руководством лица, назначенного приказом по цеху. В процессе работы возможны воздействия опасных и вредных факторов производства: повышенная запыленность, загазованность воздуха рабочей зоны; повышенная или пониженная температура воздуха рабочей зоны; повышенный уровень шума на рабочем месте; повышенный уровень вибрации; опасный уровень напряжения в электрической цепи, замыкание которой может произойти через тело человека; недостаток естественного света; физические перегрузки; недостаточная освещенность рабочей зоны: движущиеся машины и механизмы.
Для защиты работающих от воздействия вредных и опасных производственных факторов применяются средства индивидуальной защиты. Они выдаются по типовым отраслевым нормам. Для защиты от пыли и загрязнения применяются костюмы х/б, для защиты ног - сапоги кирзовые или ботинки кожаные, для защиты рук рукавицы комбинированные. Для защиты головы от возможных механических воздействий применяется защитная каска. Для защиты органа слуха от шума - беруши или наушники. Для предотвращения глазных травм - защитные очки.
Все работающие обязаны соблюдать правила внутреннего .трудового распорядка.
При работе необходимо соблюдать правила личной гигиены: принимать пищу, пить воду в отведенных для этого местах: перед приемом пищи руки вымыть с мылом: пользоваться защитными кремами и мазями; по окончании работы принять душ.
Если с вами или вашим товарищем произошел несчастный случай, необходимо оказать первую помощь пострадавшему, отправить его в здравпункт.
Обо всех несчастных случаях сообщать мастеру.
Для каждого рабочего должно быть обеспечено удобное рабочее место, не стесняющее его действий во время выполнения работы.
Слесарные верстаки должны иметь жесткую и прочную конструкцию и быть достаточно устойчивыми.
Место производства работ должно быть очищено от мусора и посторонних предметов. Пол на рабочем месте слесаря должен быть ровным и сухим. Разлитое масло убрано, растворы смыты. Если оборудование стоит в ремонте и его ремонтируют, то на пускателе должна быть табличка "Не включать, работают люди!". Разрешение на ремонт дается мастером смены или механиком.
При работе на станках нужно надеть очки, подъем тяжестей производится подъемными механизмами с надежными тормозами. Запрещается на станках работать в рукавицах, а уборка станка, во избежание травм, производится в рукавицах.
Ударные, нажимные и ручные режущие инструменты должны иметь надежно закрепленные рукоятки, изготовленные из сухой древесины твердых и вязких пород. Конец рукоятки, на которую насажен инструмент, необходимо расклинивать металлическим завершенным клином. Рукоятки нажимных инструментов для обработки металла должны иметь стяжные кольца. Пользоваться нажимным инструментом без ручек запрещается. Ручной инструмент для рубки металла должен быть: длиной не менее 150миллиметров, а оттянутая часть не менее 60-70 миллиметров, режущие кромки не должны иметь повреждений; затылочная часть должна быть не закаленной, гладкой, слегка выпуклой, не иметь трещин, скосов и заусенцев. Бойки ударного инструмента должны иметь ровную, слегка выпуклую поверхность без трещин, скосов и заусенцев. Рукоятка для работы с клиньями и зубилами должна быть длиной не менее 0,7 метра. Рабочие поверхности гаечных ключей не должны иметь скосов, а рукоятки - заусенцев. Зевы гаечных ключей должны соответствовать размерам гаек и головок болтов. Запрещается удлинять гаечные ключи присоединением другого ключа или трубы. Длине рабочей чести отвертки должна быть равна диаметру винта, а рабочая честь плотно входить в шлиц головки винта. Ножовочные полотна должны быть надежно закреплены в станках, натянуты и не должны быть ровными, без повреждений и скосов. Домкраты должны иметь надежные тормозящие устройства. Опорные части должны быть ровными, без повреждений и скосов.
Инструмент должен использоваться только по своему назначению в соответствии выполняемым работам.
Немаловажным фактором организации труда на машиностроительном предприятии является его охрана, для чего на нем создается специальная система охраны труда производственного персонала. При эксплуатации оборудования машиностроительных производств на персонал воздействуют различные факторы. Опасным является такой фактор, воздействие которого на работающего в определенных условиях приводит к травме или внезапному резкому ухудшению здоровья и работоспособности. Воздействие на работающего опасного фактора при выполнении им трудовых обязанностей называют несчастным случаем на производстве.
Система охраны труда работающих предназначена для создания безопасной работы персонала и организации мероприятий по созданию высокого общего уровня производственной среды и культуры производства. Она включает технику безопасности и производственную санитарию.
Техника безопасности - это система организационных мероприятий и технических средств, предотвращающих воздействие на работающих опасных производственных факторов.
Производственная санитария - система мероприятий и средств, уменьшающих или предотвращающих воздействие на работающих вредных производственных факторов.
Подсистема обеспечения безопасной работы персонала предназначена для создания безопасной эксплуатации и обслуживания оборудования, профилактики и ликвидации пожаров, а также ограничения их последствий. В автоматизированном производстве роль этой подсистемы возрастает, так как возрастает насыщенность производства автоматическими средствами, работающими от ЭВМ и представляющими особую опасность для работающих. Большое значение приобретает защита от воздействия механических устройств. На планировке автоматизированных участков необходимо предусматривать защитные ограждения у основного и вспомогательного оборудования и пульты аварийного отключения его. Рекомендуемая высота ограждения 1.3 метра от уровня пола при условии, что расстояние от исполнительных устройств автоматизированного комплекса до ограждения составляет не менее 0.8 метра. Ограждения рекомендуется выполнять из труб, обшитых металлической сеткой с ячейками 60 х 60 мм. Ограждения следует окрашивать в виде чередующихся, наклоненных под углом 45 - 60° полос шириной 130 - 200 мм желтого и черного цвета при соотношении ширины полос 1:1.
При использовании подвесного транспорта под проходами, проездами и рабочими местами в целях предупреждения несчастных случаев необходимо предусматривать под зоной движения защитные сетки или другие устройства, предупреждающие падение перемещаемых изделий.
Скорость перемещения исполнительных устройств промышленных, роботов во время программирования и обучения не должна превышать 0.3 м/с. Запрещается присоединять и отсоединять захватные устройства без
предварительного отключения последних от источника питания. Все захватные устройства для манипулирования должны быть снабжены устройствами блокирования от выпадения изделия при прекращении подачи электро- и гидроэнергии.
Ограждение рабочей зоны автоматизированного участка может быть выполнено с применением устройств, использующих различные контактные, силовые, ультразвуковые, индукционные, светолокационные и другие датчики. К числу таких устройств относятся трапики, переходные мостики, буфера.
Светолокационные датчики (например, датчики, работающие на просвет) определяют месторасположение человека в рабочей зоне автоматизированного участка.
Вместе с тем для увеличения безопасности обслуживающего персонала предусматривают дополнительные устройства, например, выдвижные упоры, располагаемые в местах, ограничивающих рабочую зону автоматических транспортных средств. Эти упоры выдвигаются как по команде от оператора, так и по сигналу светозащиты при появлении в данной зоне человека и препятствуют перемещению робота в эту зону.
Защита от стружки и СОЖ может быть индивидуальной (защитные костюмы, очки, специальная обувь и т. п.) и может осуществляться с помощью оградительных средств, которые могут быть стационарными, подвижными и переносными.
Должны быть приняты меры, обеспечивающие защиту людей от вредного и опасного воздействия электрического тока, электрической дуги, электромагнитного поля и статического электричества.
Пожарная безопасность может быть обеспечена мерами пожарной профилактики и активной пожарной защиты. Пожарная профилактика включает комплекс мероприятий, необходимых для предупреждения возникновения пожара или уменьшения его воздействия. Активная пожарная защита обеспечивает успешную борьбу с возникающими пожарами. При проектировании механосборочного производства для активной пожарной защиты предусматривают систему пожарных водопроводов, стационарные пожарные установки автоматические и ручные с дистанционным пуском, огнетушители и противопожарные щиты с ящиками для песка.
Подсистема обеспечения санитарных условий труда предназначена для соблюдения санитарных норм воздушной среды, освещенности, чистоты помещений, защиты от вибраций, шума, а также проведения мероприятий по производственной эстетике.
Одним из необходимых условий здорового и высокопроизводительного труда является обеспечение санитарных норм воздушной среды в рабочей зоне помещений, то есть в пространстве высотой до 2 метра над уровнем пола, путем устранения воздействия таких вредных производственных факторов, как пары, пыль, избыточные теплота и влага.
Правильно спроектированное и выполненное освещение в производственных цехах способствует обеспечению высокой производительности
труда и качества выпускаемой продукции. Сохранность зрения, состояние нервной системы работающих и безопасность на производстве в значительной мере зависят от условий освещения. Культура производства в значительной степени определяется правильной организацией работ по обеспечению чистоты помещений. При проведении этих работ следует облегчать труд рабочих по уборке путем механизации этих работ.
По характеру и способам проведения уборочные работы можно разделить на уборку помещений и уборку на высоте. Каждая разновидность уборочных работ требует своих способов механизации и организации их выполнения. Все уборочные работы должны проводиться по графику, который составляют в соответствии с руководящими материалами. Уборочные работы на высоте требуют специальной подготовки рабочих и применения соответствующих механизмов и устройств.
Увеличение производительности и, как следствие, рост мощности и быстроходности производственного оборудования при одновременном снижении его материалоемкости сопровождается усилением вибраций. Воздействие вибраций не только ухудшает самочувствие работающих и снижает производительность труда, но и часто приводит к тяжелому профессиональному заболеванию - виброболезни. Поэтому при проектировании механосборочного производства вопросам борьбы с вибрацией должно уделяться большое внимание. Введение дистанционной; управления цехами и участками позволит полностью решить проблему защиты от вибраций.
Шум на производстве причиняет большой ущерб, вредно воздействуя на организм человека и снижая производительность труда. Утомление рабочих и операторов вследствие сильного шума увеличивает число ошибок при работе, способствует повышению травмирования. При проектировании цехов выполняют расчет ожидаемого уровня шума на рабочих местах и предусматривают необходимые противошумные мероприятия: изменения в конструкции шумообразующего источника; заключение его в изолирующие кожухи; использование глушителей шума при выпуске сжатого воздуха из пневмосистемы; размещение наиболее мощных источников шума в звукоизолирующих помещениях; использование звукопоглощающей облицовки потолков и стен, штучных звукопоглотителей и звукопоглощающих экранов, виброизолирующих фундаментов или амортизаторов под оборудование. Если невозможно снизить уровень шума до допустимых пределов путем проведения перечисленных мероприятий, следует применять индивидуальные средства защиты работающих - заглушки (тампоны из ультратонкого стекловолокна) и наушники. В ряде случаев при проектировании производственных процессов необходимо обращать внимание на средства защиты не только от шума, но и от инфра - и ультразвука.
Производственная эстетика, оказывая психологическое воздействие на человека, также влияет на производительность труда, поэтому проведению различных мероприятий по улучшению эстетического оформления помещений следует также уделять большое внимание.
Подсистема обслуживания работающих предназначена для создания нормальных условий работы, путем организации бытового и медицинского обслуживания, а также служб общественного питания.
По видам обслуживания и размещения объектов бытовое обслуживание можно разбить на три группы:
- местное, в повседневное рабочее время, в радиусе 50 - 90 м - курительные, санитарные узлы питьевые устройства;
- цеховое и межцеховое, повседневное и периодическое, в радиусе 200 - 400 м - комплекс гардеробов, умывальников и душевых помещений;
- общезаводское, повседневное и периодическое, в радиусе 500 - 800 м - прачечные, ремонтные и другие объекты.
В механосборочных цехах создают фельдшерский пункт при числе работающих 300 - 800, а в цехах с повышенной опасностью в отношении травматизма и профессиональных заболеваний - при меньшем числе работающих. По видам обслуживания и размещения объекты медицинского обслуживания имеют деление, так же как-бытовое обслуживание. К местному медицинскому обслуживанию относят санитарные посты и комнаты личной гигиены женщин. Цеховое медицинское обслуживание осуществляют здравпункты.
К службам местного общественного питания относят торговые автоматы, киоски и лотки. Службы цехового общественного питания включают буфеты, столовые - раздаточные, столовые - доготовочныс (обеды из полуфабрикатов).
Безопасность при эксплуатации автоматизированных комплексов достигается путем их рациональной планировки, соблюдения техники безопасности и безаварийной работы оборудования, а также использования специальных устройств, обеспечивающих безопасность обслуживающего персонала. Планировка оборудования на участках должна обеспечивать свободный, удобный и безопасный доступ обслуживающего персонала к оборудованию, к органам управления и аварийного отключения оборудования и механизмов, входящих в состав участка. Желательно, чтобы органы управления и аварийных блокировок были размещены на общем пульте управления и дублированы вдоль фронта оборудования по трассе возможных перемещений обслуживающего персонала.
При планировке автоматизированных участков необходимо обеспечить нормальные условия освещения и обзора для оператора.
С точки зрения обеспечения безопасности обслуживающего персонала планировки, характеризующие расположение рабочих зон транспортных устройств и операторов, можно разделить на три типа (рисунок 3).

Рисунок 6 - Основные типы планировок роботизированных технологических комплексов: I - станок, 2 - промышленный робот.
Комплексы, исключающие возможность появления оператора в пределах рабочей зоны промышленного робота при его работе, показаны на рисунке а. Обычно это комплексы с круговым ограждением, при раскрытии створки которого посылается сигнал на останов транспортного устройства. К числу таких комплексов относят те, в которых транспортное устройство встроено в основное технологическое оборудование. Требуемые переналадки и коррекция работы транспортного устройства должны осуществляться на пульте оператора вне рабочей зоны транспортного устройства.
Комплексы с совмещением рабочих зон оператора и транспортного устройства показаны на рисунке б. В таких комплексах требуется применять специальные меры безопасности обслуживающего персонала. Это комплексы с автономным транспортным устройством, осуществляющим единичное или групповое обслуживание оборудования. Появление человека в рабочей зоне транспортного устройства должно вызывать автоматическую блокировку его работы. Комплексы с разделением рабочих зон оператора и транспортного устройства, когда транспортное устройство работает с тыла, а оператор перемещается вдоль фронта оборудования, показаны на рисунке (в). В этом случае появление человека в рабочей зоне транспортного устройства также должно вызывать автоматическую блокировку работы транспортного устройства.
Снятие сигнала выполняет оператор, осуществляющий наладку и обслуживание автоматического участка. Пульт управления автоматическим участком должен размещаться вне рабочей зоны транспортных средств месте, обеспечивающем хорошее и удобное наблюдение за работой автоматического участка. Если автоматические участки оснащены несколькими пультами управления, необходимо предусмотреть соответствующие блокировки, предотвращающие параллельное управление от различных пультов. Кнопки аварийных блокировок автоматического участка должны быть расположены в пределах рабочей зоны оператора на расстоянии не более 4 м одна от другой.
При планировке автоматизированных участков необходимо исключить пересечение трасс следования оператора и транспортных средств.
Применение автоматических средств обнаружения пожаров является одним из основных условий обеспечения пожарной безопасности, так как позволяет оповестить дежурный персонал о пожаре и месте его возникновения. С этой целью в помещениях располагают дымовые извещатели из расчета один извещатель на 60 - 70 м. Эвакуационные выходы из помещений следует располагать рассредоточеннее. Ширина путей эвакуации должна быть не менее 1 м, а ширина дверей на путях эвакуации - не менее 0,8 м, причем двери должны открываться наружу. Двери и ворота тля выхода наружу или на лестничную клетку располагают от наиболее удаленного рабочего места на расстояниях, соответствующих нормам по технике противопожарной безопасности. Двери для эвакуации производственного персонала должны открываться в направлении выхода из здания.
Для обеспечения чистоты воздушной среды шлифовальные, полировальные и заточные станки необходимо оборудовать защитно-обеспыливающими кожухами и местными вытяжными вентиляционными устройствами.
Бытовые помещения чаще всего располагают в двухэтажной (или с большим числом этажей) пристройке к производственному корпусу, в нижней части которой размещают вспомогательные отделения цеха и санитарные узлы; во втором и более высоких этажах размещают гардеробы и душевые, конторские помещения и помещения психологической разгрузки персонала. Некоторые варианты планировочных решений бытовых помещений показаны на рисунке.
Максимальный комфорт и наилучшие архитектурно - планировочные решения для производственных корпусов с числом работающих до 1.5 - 2 тысяч достигаются при размещении комплекса бытового обслуживания в отдельно стоящем здании, связанном переходами с производственными помещениями.
Курительные комнаты располагают на расстоянии не более 100 м от наиболее удаленного рабочего места. Эти комнаты должны быть оборудованы скамейками и урнами в соответствии с принятым проектом интерьера для бытовых помещений.
Стены, двери и оборудование санитарных узлов должны быть облицованы такими материалами, которые при смывании с них грязи не меняют цвет и с которых стекает вся влага. Обязательна установка поливочных кранов с горячей и холодной водой для мытья полов, стен и оборудования. Питьевые устройства (колонки) размещают непосредственно на производственных площадях в местах, наиболее удобных для пользования ими. Они могут быть как одноместными, так и многоместными.
В типовых проектах бытовых пристроек каждый зал гардеробной разбит на блоки-ячейки, снабженные необходимыми санитарно-техническими устройствами (умывальники, душевые). Группы шкафов отделены от проходов раздвижными дверями, благодаря чему можно использовать гардероб для обслуживания разного числа мужчин и женщин. Два изолированных светлых прохода делят потоки идущих на работу и с работы. Ширина между шкафами 2 м, что дает возможность устроить скамьи для переодевания всех пользующихся гардеробом. В блоках размещены двойные шкафы для хранения уличной и домашней одежды и одинарные шкафы для хранения рабочей одежды. Габаритные размеры двойных шкафов 350 х 500 х 1800 мм; одинарных - 250 х 500х х 1800 мм. В пристройках устанавливают душевые кабины закрытого типа с местами для переодевания. Число кранов для умывания - один на десять человек, независимо от специальности работающих и выполняемых ими операций технологического процесса. При гардеробных предусмотрены устройства для уборки с использованием холодной и горячей воды всех помещений гардероба. В гардеробных рекомендуется также устанавливать приспособления для чистки обуви, сушки волос, зеркала.
Для автоматов, киосков и лотков радиус обслуживания принимают равным 50-90метров; их устанавливают обычно в непосредственной близости от производственных участков или в отдельных случаях (при допустимости этого по гигиеническим требованиям) на самих производственных участках. Буфеты, а также раздаточные и доготовочные столовые обслуживают работающих в радиусе 200-400 метров, и их организуют при больших производственных корпусах в бытовых помещениях.
На каждом предприятии создается служба охраны труда, подчиненная главному инженеру. Он несет полную ответственность за безопасность при выполнении производственных процессов и осуществляет контроль за всеми мероприятиями по оздоровлению условий труда. Всю практическую работу, обеспечивающую безопасные условия работы в подразделениях предприятия, организуют начальники цехов, участков, смен, а также мастера. Безопасные условия труда на рабочих местах обеспечивает мастер.
Структура и штатный состав службы охраны труда зависит от количества производственного персонала на предприятии, сложности и опасности технологических процессов. В соответствии с этим служба охраны труда может быть отделом, бюро или группой, состоящей из нескольких инженеров по охране труда. Одними из основных функций отдела охраны труда являются инструктаж и обучение персонала безопасным методам работы. Для повышения качества этого обучения на предприятиях, со списочным составом работающих более 100 человек организуют кабинет охраны труда с соответствующими наглядными пособиями и аппаратурой, работой которого руководит начальник отдела (бюро) охраны труда.
3.2 Организация рабочего места слесаря-ремонтника
Планировка рабочего места предусматривает рациональное расположение оборудования и станка, наиболее эффективным использованием производственных площадей, создание удобных и безопасных условий труда, а также продуманное расположение инструмента.
Все предметы и инструменты располагают на столе в пределах досягаемости вытянутых рук. Все, что приходится брать левой рукой, располагают слева, а справа - то, что берут правой рукой. "I о, что берут обеими руками, при работе у станка, располагают с той стороны, где находится токарь.
Планировка рабочего места должна обеспечивать условия для выработки привычных движений и со временем у рабочего вырабатывается привычка и автоматизм движений.
Освещенность рабочего места должна быть равномерной и достаточной для производственных работ.
В механических цехах единичного и мелкосерийного производства на рабочем месте токаря хранится много инструментов и приспособлений. Для хранения инструментов и организационно - технической оснастки, в которые входят тумбочка с планшетом, приемный столик и решетка для ног.
При односменной работе на рабочем месте устанавливается тумбочка с одним отделением, при работе в две смены - двумя отделениями. Если на станке обрабатываются длинномерные заготовки, то вместо приемного столика устанавливается стеллаж, для горизонтального хранения заготовок. При обработке крупногабаритных заготовок не рабочем месте устанавливают подъемно - транспортные устройства.
4 .Расчетная часть проекта
4.1 Расчет цилиндрической зубчатой передачи
Исходные данные
Зубчатый венец
Изготовлен из стали 45Л массой 32000 кг с модулем зацепления 50 мм и количеством зубьев 140.
Вал-шестерня
Изготовлен из стали 40Л массой 1645 кг с модулем зацепления 50 мм и количеством зубьев 27.
Расчет зубчатых колес
Определяем передаточное число
, (2)
где: u – передаточное число;
- количество зубьев зубчатого венца;
- количество зубьев вала-шестерни.
![]()
Округляем до стандартного значения u = 5.
Определяем вращающие моменты:
; (3)
где:
2
– вращающий момент;
Р - ;
= 3,14;
n - ;
![]()
, (4)
![]()
Учитывая, что передача не быстроходная, в качестве материала принимаем:
для вала-шестерни и колеса сталь 45 с разной термообработкой, а именно
- для вала-шестерни улучшение H1 =210НВ;
- для колеса нормализация Н2 =180НВ.
Определяем допустимое напряжение при изгибе
, (5)
где:
=1,75ННВ
;
=1;
=1;SF
=1,7.
![]()
![]()
Определяем модуль зубьев, приняв коэффициент ширины венца
![]()
установив коэффициент неравномерности нагрузки
КFB =1.5
Тогда при YF1 =3.9
(6)
![]()
Принимаем стандартный модeль m=2.5мм. Определяем основные размеры передачи. Диаметры делительных окружностей
(7)
![]()
(8)
![]()
Диаметры вершин зубьев
, (9)
![]()
, (10)
![]()
Определяем межосевое расстояние:
, (11)
![]()
Ширина венца зубчатого венца
, (12)
![]()
Ширина венца вала-шестерни
(13)
![]()
Проверим сравнительную оценку прочности зубьев вала-шестерни и зубчатого венца, предварительно определив коэффициенты формы зуба:

Тогда:
Для шестерни

Для колеса

Зубья колеса на изгиб менее прочны.
Окончательно проверим зубья колеса на изгиб
(14)
где:
(15)
![]()
Тогда,
![]()
Прочность зубьев передачи на изгиб обеспечена
Библиографический список
1. Александров М.П. Подъемно-транспортные машины. - М.: Машиностроение, 1984.
2. Басов А.И. Механическое оборудование обогатительных фабрик и заводов тяжелых цветных металлов. - М.: Металлургия, 1984.
3. Боголюбов С.К. Черчение. – М.: Машиностроение, 1989.
4. Гельберг Т.Б., Текилис Т.Д. Ремонт промышленного оборудования. - М.: Высшая школа, 1984.
5. Додонов Е.П. и др. Грузоподъемные и транспортные устройства. - М.: Машиностроение, 1990.
6. Касаткин Н.Л. Ремонт и монтаж металлургического оборудования. – М.: Металлургия, 1970.
7. Ганенко А.П Оформление текстовых и графических материалов при подготовке дипломных проектов, курсовых и письменных экзаменационных работ. – М.: ПрофОбрИздат, 2001.
8. ГОСТ Р 2.105-95 ЕСКД Общие требования к текстовым документам.
Похожие рефераты:
Проект реконструкции отделения "белой фильтрации" для ЗАО "Крымский Титан"
Модернизация технологической линии производства вареных колбас на ОАО "Борисоглебский мясокомбинат"
Монтаж вращающейся барабанной печи
Проект реконструкции линии производства формового хлеба на ОАО "Хлебозавод № 1" г. Воронежа
Обслуживание и капитальный ремонт стержневой мельницы МСЦ 3200х4500
Модернизация тестомесильной машины в линии производства ржаного хлеба
Технология и оборудование литейного производства
Отчёт по практике на Минском фарфоровом заводе и в НИИСМе
Технология обработки конструкционных материалов
Гильотинные ножницы с нижним резом
Проектирование цеха ремонта поршневых компрессоров
Проект реконструкции цеха первичной переработки нефти и получения битума на ОАО «Сургутнефтегаз»
Продольно-резательный станок производительностью 350 т/сутки