| Похожие рефераты | Скачать .docx |
Реферат: Изучение аппаратуры автоматизации водоотливной установки ВАВ-1М
Лабораторная работа № 1
Изучение аппаратуры автоматизации водоотливной установки ВАВ-1М
Цель работы: изучение назначения, функциональных возможностей и конструкции аппаратуры ВАВ-1М (аппаратура взрывобезопасная для автоматизации водоотливных установок)
1 ТЕОРЕТИЧЕСКИЕ ИССЛЕДОВАНИЯ
Аппаратура ВАВ-1М обеспечивает:
1) автоматическое, местное и дистанционное управление работой насосов;
2) автоматическую заливку насосов;
3) автоматическую замену насоса, отключенного из-за неисправности резервным насосом;
4) цикличность работы насоса;
5) последовательность запуска и остановки насосов при паралельной работе;
6) запрет пуска насоса во время максимума энергопотребления;
7) запрет пуска неисправного насоса;
8) учет времени работы насосов;
9) отображение сигналов диспетчеру об уровне воды, работе насосов; неисправности установки, времени начала и окончания максимумов энергопотребления.
В комплект аппаратуры ВАВ-1М входит:
1) блок управления насосами БУН-1М -1шт.;
2) табло сигнальное водоотлива СТВ-1М - 1шт.;
3) термодатчики ТДЛ-1М - 12 шт.;
4) реле производительности насоса 1ПН-М - Зшт.;
5) реле давления РДВ-1М- 6шт.;
6) датчик электродный ЭД-1м - 8 шт.;
7) блок развязки искробезопасных цепей БРЦ -1шт.;
8) насос заливочный погружной НПЗ - 1шт.;
9) привод задвижки ПЗ-1М - Зшт.;
10)пускатель привода ПРА - 3 шт.;
11)ящик кабельный КЯ.1.1Н-2шт.;
12)ящик кабельный ЯРВ.1М -1шт.;
13)блок питания БП-5-12 с уставкой 2,3 -1шт.
Устройство и работа аппаратуры и ее составных частей.
Аппаратура ВАВ-1М предназначена для автоматического управления водоотливными установками шахт и рудников в зависимости от сигналов, поступающих от датчиков уровня ЭД-1М, реле производительности РПН- 1М, реле давления РДВ-1М, датчиков температуры ТДЛ-1М и концевых выключателей привода задвижки ПЗ-1М.
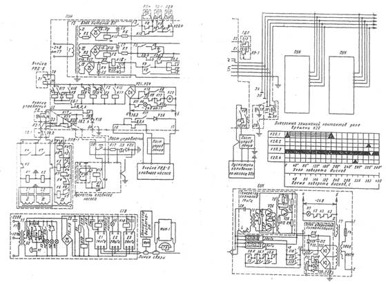
Аппаратура представляет собой систему автоматического управления водоотливной установкой, схема которой приведена на рис.1.
Система содержит блоки управления насосом 1, на входы которых поступают сигналы с датчиков давления 2, производительности 3, температуры подшпников 4, закрытия 5 и заклинивания 6 приводов задвижек, включение высоковольтной ячейки 7, а с выхода блока 1 поступают сигналы на включение заливочного насоса 13, главного насоса 15, привода задвижек 14, блок формирования импульсов запуска и останова работы насосов 3, на входы которого поступают сигналы с датчиков нижнего 9, верхнего 10 и аварийного 11 уровней, блок приема и передачи сигналов на входы которого поступают сигналы с датчиков промежуточных уровней 16, а также с датчиков нижнего 9, верхнего 10 и аварийного 11 уровней, линейные узлы 17 и 19, соединены между собой линией связи 13, блок передачи и приема информации 2, блок представления информации 21, блок внепикового управления электродвигателями 22, блок звуковой сигнализации 23, блок учета машинного времени работы насосов 24, блок программируемого таймера 25, блок формирования импульсов запуска и запрета работы насосов 26, блок задания программы 27 «индикатор текущего времени и набора программ 28, блок ручного управления водоотливной установкой 29, который состоит из коммутаторов 30, 31, 32 и 33, кнопок 34, 35 и 36, диодов 37 и 38 (рис.1).
Табло сигнальное водоотлива CTB-1M, предназначено для приема и отображения информации о состоянии водоотливной установки и устанавливается в диспетчерском пункте шахты.
На передней панели СТВ - 1М расположены элементы, выдающие диспетчеру информацию о состоянии водоотливной установки и элементы, дающие частичную возможность управления насосами.
Для каждого насоса на панели имеются светодиоды, информирующие о работе, неисправности насосов и о виде неисправности; отсутствие производительности. отсутствие давления, перегрев подшипников, заклинивание задвижки, высоковольтная ячейка не включена. Если субблок внепикового потребления электроэнергии работает не в автоматическом режиме, когда он сам включает водоотливную установку, а в режиме советчика, на панели имеются два светодиода, сигнализирующие о необходимости включения одного или двух насосов водоотливной установки Для пуска насосов предназначены кнопки "Пуск 1" и "Пуск 2". Для динамического останова служит кнопка "Стоп".
При неисправности линии связи между БУН-1М и СТВ-1М загорается светодиод "нет связи".
При аварийном отключении насосного агрегата кроме световой индикации предусмотрено звуковая - прерывистая высокой тональности, а при аварийном уровне воды в водосборнике - непрерывная низкой тональности. Снятие звуковые сигналов (светодиоды остаются включенными) осуществляется при помощи тумблеров "квитация сигнала". Для проверки исправности светодиодов и звуковых телефонов служит кнопка "Проверено", при ее нажатии светятся все светодиоды и звучат звуковые сигналы. На передней панели СТД-1М установлены также три счетчика учета времени работы каждого из насосов, индикатор текущего времени и клавиатура ввода в память субблока ВП, корректировки показаний индикатора текущего времени.
Реле производительности насоса РПН-1М. Реле производительности (рис.4) состоит из двух основных частей корпуса (поз.1) и платы (поз.2), соединенных между собой болтами. При обтекании флажка (поз.3) потоком жидкости поворачивается жестко связанный с ним валик (поз.4).
Закрепленный на валике кронштейн (поз.5) передает усилие потока. Пружинка (поз.6) создает противоусилие и возвращает флажок с магнитом в исходное положение при исчезновении потока. Напряжение пружины регулируется винтом (поз.7).
Реле давления РДВ-1М Чувствительным элементом реле давления (рис.5) является диафрагма (поз. 12). Реле имеет две дискретные ступени регулирования по давлению. Это осуществляется с помощью малого (поз. 9) и большого (поз.8) поршней» что аналогично уменьшению или увеличению диафрагмы. Сила давления столба воды воспринимается диафрагмой и передается через поршень на шток (поз.4), который воздействует на кронштейн с магнитом. Предварительное натяжение пружины, необходимое для преодоления сил трения и четкого отключения, регулируется винтом (поз. 4).
Датчик электродный типа ЭД-1М
Электродный датчик представляет собой свинцовый диск со стаканом, на который навинчен кабельный ввод. Контактирующим с водой элементом является свинцовый диск. После подсоединения кабеля стакан обязательно заливается кабельной массой.
Гидравлическая схема аппаратуры ВАВ-1М с заливкой вспомогательным погружным насосом НЗП и управляемыми задвижками представлена на (рис. 2).
Краткое описание работы системы автоматического управления
При достижении воды в водосборнике датчика верхнего уровня 10 сигнал с него поступает в блок, формирования импульсов запуска и останова работы насосов -8. В блоке формируется сигнал, который поступает в блок управления насосом 1, где формируется сигнал на включение в работу заливочного насоса 13. Заливочный насос подает воду в главный насос в течении времени достаточного для создания в нем необходимого давления для срабатывания датчика 2 ( это время реулируется резистором "Таймер" на передней панели субблока РП). По истечении заданного времени заливки с другого выхода блока 8 в блок 1 поступает сигнал, который приводит к Фазированию сигналов в блоке 1 на включение главного насоса 15; привода задвижки 14, на не открытие при отсутствии производительности. При этом сигнал с первого выхода блока 8 нимаются. Если на включенном насосе не сработал датчик давления 2 к моменту выдачи сигнала на его включение, то с данного блока 1 в блок 8 выдает сигнал на включение на другой блок 1, соответствующий другому насосу. с блока 1 соответствующего неисправному насосу в блок приема и передачи информации 12 поступит 2 сигнала "Общей неисправности и вида неисправности".
С момента выдачи сигнала на включение главного насоса блоком 1 производится контроль включения высоковольтной ячейки, контроль набора производительности насосом, контроль заклинивания задвижки. Если после их подачи сигнала на включение главного насоса датчик 7 высоковольтной ячейки не включится, то блок 1 выдает сигнал общей аварии в блок 8 для формирования сигнала запуска другого насоса с помощью другого блока 1, a в блок 12 с блока 1 поступит сигнал общей неисправности и вида неисправности, откуда они через линейные узлы 17, 19 и линию 18 поступят в блок приема и передачи сигналов 20.
Одновременно блоком 1 снимаются сигналы на включение главного насоса привода задвижки на ее открытие и выдается сигнал на ее закрытие. Если через заданное время, достаточное для набора производительности главным насосом (это время регулируется резистором "Уст.Т2" на передней панели субблока УМ) не срабатывает датчик производительности 3 (60-120сек.), то произойдет выход насоса на аварию по производительности аналогично выходу по неисправности высоковольтной ячейки. Аналогично происходит выход насоса на аварию по заклиниванию задвижки и перегреву подшипников.
Информация наличия уровней 9, 10 и 16 о работе главных насосов, об авариях с указанием их причин через блок 12, где она преобразуется из параллельного в последовательный код, линейные узлы 17,19 двухпроводную линию связи 18 поступает в блок 20. В этом блоке информация из последовательного кода преобразуется в параллельный.
С блока 20 информация о работе насосного агрегата поступает в блок машинного времени 24 и блок внепикового управления насосами 22, в блок звуковой сигнализаци 23 - информация об аварийном уровне и об общей аварии. В блок 22с блока 20 поступает информация обо всех уровнях воды в водосборнике и работе насосов 15. В блоке 24 фиксируется время работы насосов путем пуска счетчика по разрешающему сигнал от работающих насосов. При снижении воды в водосборнике ниже датчиков нижнего уровня 9 сигнал с него поступает в блок 3, где с интервалом в 10 сек. формируется сигнал для выдачи в блок 1. В блоке 1 формируется сигнал включения привода задвижки 14 на закрытие за 1,5-2 оборота до полного закрытия задвижки срабатывает контакт 5, который разрывает цепь управления главного насоса 15 и система по истечению 160с (это время регулируется от О до 300с резистором на передней панели субблока УМ) Система возвращается в исходное состояние. В случае неотключения по каким-либо причинам высоковольтной ячейки блоком 1 выдается сигнал общей аварии по высоковольтной, ячейке эти сигналы поступают на СТВ-1м и диспетчер принимает меры по отключению высоковольтной ячейки.
При необходимости пуск насосов можно было осуществить с блока ручного управления 29 путем перевода переключателя 33 (при необходимости и 32) в положение "Ручное" и нажатии кнопки "Пуск 1" "3" (при необходимости и 35). В блок 10 поступает сигнал "Пуск 1" ("Пуск 2"), который через линейные узлы 17,19 и линию связи 18 и блок 12 поступает в блок 8, где формируется сигнал аналогичный сигналу от датчика верхнего уровня.
Дистанционный останов работы насосов может быть осуществлен с блока 29 путем нажатия кнопки 36 "Стоп". При этом сигнал с блока 29 через диод 38 поступает в блок 20 и через 17,19 и 18 в блок 12, из блока 12 сигнал поступает в блок 8, где формируется сигнал, аналогичный сигналу от датчика нижнего уровня.
Система в режиме внепикового управления электродвигателем работает следующим образом.
Программирование времени внепикового включения и "запрета" работы насосной установки производится с помощью блока задания программы 27. Программа с этого блока вводится в память программируемого таймера 25, который представляет собой однокристальное программируемое устройство, позволяющее осуществлять запись и хранение 16-ти временных программ с дискретностью 1 мин. Этого обьема памяти достаточно, для обеспечения в течении суток 4-х сигналов внепикового включения и 4-х сигналов "запрета" работы насосной установки. Визуальный контроль вводимой и уже введенной программы осуществляется с помощью индикатора времени и набора программы 28, который после задания программы используется как индикатор текущего астрономического времени. В запрограммируемое время совокупность сигналов с выхода программируемого таймера 25 поступает на вход блока формирования импульса запуска и запрета работы насосов 26 и на его выходе формируется импульс запуска. Этот сигнал поступает на вход блока внепикового потребления электроэнергии 22, который вступает в работу. Он в соответствии со временем, оставшимся до начала времени максимума потребления электроэнергии анализирует состояние датчиков промежуточных уровней 16 и в случае необходимости выдает сигнал "Пуск 1", которого через коммутатор 33 (находящийся в положении "Автомат" ) блока ручного управлений насосной установкой 29 проходит в блок передачи и приема сигналов и далее в блок 8, аналогично описанному выше.
Формирование сигнала "запрет" работы насосов осуществляется по программе, заложенной в 25, аналогично сигналу импульса запуска.
Сигнал "запрет" работы насосов, ручной и автоматический, проходит на вход блока ручного управления насосной установкой 29 и производят действия аналогичные сигналу "Стоп".
В аппаратуре ВАВ-1М функции блока управления насосом выполняет субблок УМ. Таких субблоков в аппаратуре три, в соответствии с количеством управляемых насосов. Функции блока 8 выполняют субблоки РН,РП,ПФ. Функции линейного узла 17 и блока 12 выполняют субблоки КУ и КИ. Согласование входных сигналов от датчиков и выходных сигналов на исполнительные механизмы по уровню напряжения с сигналами перечисленных блоков осуществляется субблоком ВВ. Все перечисленные субблоки составляют электрическую принципиальную схему аппарата БУН-1М который устанавливается в шахтах непосредственно в водоотливной установке.
Функции линейного узла 19 выполняет субблок ЛВ, блока 29-субблок ПУ и два субблока ПИ, блока 22- субблок ВП, блока 25 и блока 26 - субблок УВ. Функци блока 23 и 24 - субблок УВ и передняя панель на которой расположены счетчики времени работы насосов и телефоны для выдачи звуковых сигналов. Функционально передняя панель состоит из блока представления информации 21, блока задания программы 26, индикатора текущего времени и набора программ 28, блока ручного управления водоотливной установкой 29.
Вышеперечисленные субблоки ЛВ,ПУ,ПИ,ВП,УВ, передняя панель, а также субблок питания СП и субблок вывода информации ВИ составляют электрическую принципиальную схему сигнального табло водоотлива СТВ-1м, которая устанавливается в диспетчерской шахты. Связь между БУН-1М и СТВ-1м осуществляется с помощью линии связи Л8, представляющей собой свободную пару жил телефонного кабеля, соединенную ПУ и КП. Максимальная длительность передачи 10 км.
Для передачи информации использована система с временным разделением элементов сигнала и шахтовой синхронизацией. Метод передачи циклический, т.е. сообщение передающееся в заданной последовательности. Один цикл передачи составляет 1 сек., состоит из 64 тактов от 0 до 63-го. Каждый такт, длительность которого 15мс, состоит их 2-х полупериодов, соответствующих положительному и отрицательному импульсам двухмерного сигнала.
2 ЭКСПЕРИМЕНТАЛЬНЫЕ ИССЛЕДОВАНИЯ
Порядок выполнения:
1. Изучите назначение аппаратуры ВАВ-1М, состав оборудования,
2. входящего в аппаратуру; функции выполняемого отдельными блоками и аппаратурой в целом; принцип действия аппаратуры; устройство, назначение и принцип действия датчика температуры ДТЛ-1М, электродного датчика ЗД-1М, реле производительности РПН-1М, реле давления РДВ-1М. блока управления насосами БУН-1М, сигнального табло водоотлива СТБ-1М, и их взаимодействия.
3. Подайте на БУМ-1М и СТВ-1М напряжения питания.
4. Выполните настройку аппаратуры на включение насосов при
достижении водой в водосборнике верхнего повышенного либо аварийного
уровней (по выбору преподавателем).
5. Нажатием кнопки "УСТ 0" установите триггеры памяти уровней и включения последующей тройки насосов в нулевое состоние.
6. Произведите запуск насосной установки с одним или двумя насосами в цикле; в автоматическом, местном или дистанционном ' режиме (по выбору преподавателя).
7. Произвести замеры времени заливки и запуска насосной установки.
8. При помощи пульта имитаторов произведите имитацию одного из аварийных режимов.
9. Произведите на блоке БУН-1М идентификацию вида неисправности и после снятия имитации полярности установить триггеры неисправности в начальное состояние.
10. Произведите имитацию снижения уровня воды в водосборнике ниже "нижнего уровня".
Измеренные выдержки времени:
- на включение насоса при достижении верхнего уровня 38 с
- на отключение насоса при достижении нижнего уровня 34 с
- реакция на перегрев подшипников 1 с
- реакция на отсуцтвие производительности насоса 5 с
- реакция на неисправность высоковольтной ячейки 12 с

Рисунок 1 –Гидравлическая схема системы автоматического управления водоотливной установкой ВАВ-1М

Рисунок 2 –Принципиальная электрическая схема ВАВ-1М
Похожие рефераты:
Совершенствование метрологического обеспечения измерений в турбокомпрессорном цехе Узюм-Юганской ГКС
Разработка автоматизированной системы управления электроснабжением КС "Ухтинская"
Расширение филиала "Шахта "Осинниковская" за счет ввода в отработку запасов филиала "Шахта "Тайжина"
Отчет о технологической практике на предприятии ГП "Шахта Перевальская"
Госстандарт России по электрооборудованию
Оборудование летательных аппаратов
Пуск в работу питательного электронасоса после ремонта
Продвижение прогрессивных систем энергосбережения в Украине в сегменте (ТН) тепловых насосов
Техническая диагностика средств вычислительной техники
Оборудование участка железной дороги перегонными устройствами автоматики и телемеханики
Проект реконструкции цеха первичной переработки нефти и получения битума на ОАО «Сургутнефтегаз»
Приемник цифровой системы передачи информации ВЧ-каналом связи по ВЛ
Разработать лабораторный стенд для испытания устройств защиты судовых генераторов