| Похожие рефераты | Скачать .docx |
Дипломная работа: Організація локальної обчислювальної мережі агентства нерухомості
ЗМІСТ
Вступ
1. Постановка задачі
2. Функціональна схема локальної обчислювальної мережі
2.1 Аналіз інформаційних потреб підприємства
2.2 Інформаційні потоки у ЛОМ підприємства
3. Планування структури мережі
3.1 Вибір та обґрунтування топології мережі
3.2 Спосіб керування мережею
3.3 План приміщень
3.4 Мережна архітектура
3.5 Мережні ресурси
4. Вибір та обґрунтування апаратних і програмних засобів комп'ютерної мережі підприємства
4.1 Комп’ютерна база локальної обчислювальної мережі
4.2 Кабельна система
4.2.1 Технологія монтажу СКС
4.2.2 Схема побудови
4.2.3 Організація робочого місця
4.3 Мережне обладнання
4.4 Клієнт-серверні компоненти
5. Стратегія адміністрування й керування
5.1 Загальні положення захисту інформації в мережі
5.2 Облікові картки користувачів
5.3 Журнал подій безпеки
5.4 Права користувача
5.5 Установка пароля й політика облікових карток
6. Розрахунки витрат на створення мережі
6.1 Визначення вартості матеріальної частини мережі
6.2 Визначення трудомісткості настроювання мережі
6.3 Розрахунок витрат на організацію й обслуговування ЛОМ
7. Охорона праці
Висновок
Список літератури
Додаток А План приміщеннь
Додаток Б Схема побудови мережі агентства нерухомості
Додаток В Схема побудови мережі агентства нерухомості в приміщені.
Додаток Г Організація робочого місця
Реферат
Темою дипломного проекту є організація локальної обчислювальної мережі агентства нерухомості.
Метою проекту є організація локальної обчислювальної мережі (ЛОМ) із виходом у глобальну комп’ютерну мережу Інтернет, а також передбачення можливості сумісного використання мережних ресурсів всіма повноважними мережі.
Пояснювальна записка містить 74 сторінки, 8 малюнків, 14 таблиць, 4 додатка і складається з таких частин:
-постановка задачі;
-функціональна схема локальної обчислювальної мережі;
-планування структури мережі;
-вибір та обґрунтування апаратних засобів комп'ютерної мережі підприємства;
-стратегія адміністрування й керування;
-розрахунки витрат на створення мережі;
-охорона праці;
-висновок;
-бібліографічний список;
-додатки
При виконанні дипломної роботи я використав наступні програмні засоби:
-MS Word 2007 – оформлення пояснювальної записки;
-MS PowerPoint 2007 – презентація роботи;
-MS Visio – виконання додатків.
Вступ
На сьогоднішній день у світі існує безліч комп'ютерів, і понад 80% з них об'єднані в різні інформаційно-обчислювальні мережі, від малих локальних мереж в офісах, до глобальних мереж типу Internet.
Всесвітня тенденція до об'єднання комп'ютерів у мережі обумовлена поруч важливих причин, таких як прискорення передачі інформаційних повідомлень, можливість швидкого обміну інформацією між користувачами, одержання і передача повідомлень (факсів, Е-Маil листів і іншого) не відходячи від робочого місця, можливість миттєвого одержання будь-якої інформації з будь-якої точки земної кулі, а так само обмін інформацією між комп'ютерами різних фірм виробників працюючих під різним програмним забезпеченням.
Такі величезні потенційні можливості, які несе в собі обчислювальна мережа і той новий потенційний підйом, який при цьому відчуває інформаційний комплекс, а так само значне прискорення виробничого процесу не дають нам право не приймати це до розробки і не застосовувати їх на практиці.
Тому необхідно розробити принципове рішення питання з організації інформаційно-обчислювальної мережі на базі вже існуючого комп'ютерного парку та програмного комплексу, що відповідає сучасним науково-технічним вимогам, з урахуванням зростаючих потреб і можливістю подальшого поступового розвитку мережі у зв'язку з появою нових технічних і програмних рішень.
Під ЛОМ розуміють спільне підключення декількох окремих комп'ютерних робочих місць (Робочих станцій) до єдиного каналу передачі даних.
Завдяки обчислювальним мережам ми одержали можливість одночасного використання програм і баз даних декількома користувачами.
Поняття локальна обчислювальна мережа - ЛОМ відноситься до географічно обмеженим (територіально або виробничого) апаратно-програмним реалізаціям, в яких не-скільки комп’ютерних систем пов'язані один з одним за допомогою відповідних засобів комунікацій.
Завдяки такому з'єднанню користувач може взаємодіяти з іншими робочими станціями, підключеними до цієї ЛОМ.
У виробничій практиці ЛВС відіграють дуже велику роль.
За допомогою ЛОМ у систему об'єднуються персональні комп'ютери, розташовані на багатьох віддалених робочих місцях, які використовують спільно устаткування, програмні засоби та інформацію. Робочі місця співробітників перестають бути ізольованими і поєднуються в єдину систему.
У даному дипломному проекті описане створення локальної мережі агентства нерухомості на базі технології Fast Ethernet, і організація виходу в глобальну мережу Інтернет.
1. Постановка задачі
Метою проектування є розрахунок топології і технічних характеристик локальної обчислювальної мережі, визначення апаратних і програмних засобів комплектації локальної обчислювальної мережі (ЛОМ) агентства нерухомості, розміщення вузлів мережі і каналів мережного зв'язку, розрахунок економічних характеристик локальної мережі.

Рисунок 1 Схема розташування офісних кабінетів
Темою мого дипломного проекту є організація локальної обчислювальної мережі агентства нерухомості. Згідно вихідних даних, є шість кабінетів (рисунок 1), 12 персональних комп'ютерів, два принтери. Агентство нерухомості має три підрозділи в кабінетах 1, 2 й 3. Кабінет директора й секретаря розташовані в кабінетах А и В відповідно. Серверну передбачається розмістити в кабінеті S.
При проектуванні виконуються наступні завдання:
- запропонувати план організації корпоративної мережі з виходом в Інтернет (підтримкою власного Web-pecypcу), електронною поштою;
- забезпечити можливість обміну інформацією між співробітниками відділів;
- організувати резервування даних;
- забезпечити можливість виводу на принтер 2 всім працівникам агентства, на принтер 1 - директорові й секретареві;
- передбачити можливість розвитку мережі за рахунок збільшення кількості комп'ютерів у кімнатах 1 й 2.
2. Функціональна схема локальної обчислювальної мережі
Локальні мережі дозволяють організувати спільне використання дорогої апаратури, а також розподілену обробку даних на декількох комп’ютерах. Це дає значну економію матеріальних засобів і прискорення процесу обміну інформацією. Наприклад, при наявності на підприємстві десяти ПК не обов’язково купувати десять лазерних принтерів. Можна купити один принтер, а засобу локальної мережі нададуть доступ до нього для будь-якого ПК.
У локальній мережі можна організувати колективний доступ до жорсткого диска великого обсягу (установленому на єдиній ЕОМ), тим самим заощаджувати засобу за рахунок покупки вінчестерів невеликих обсягів для кожного ПК. У ЛОМ досить установити один накопичувач на оптичних дисках, один плоттер або модем, а всі ПК мережі будуть мати почерговий доступ до цих обладнань.
На дисках багатьох ПК записані однакові програми (текстові й графічні редактори, бази даних, електронні таблиці й т.п.). При підключенні ПК до локальної мережі копії використовуваних програм можна зберігати на диску однієї ЕОМ. При цьому дискова пам’ять інших комп’ютерів звільняється для розв’язку власних завдань користувачів.
ЛОМ дозволяє групі користувачів виконувати спільні проекти. Для цього частіше використовуються особливі мережні версії прикладних програм, спеціально призначені для роботи в локальній мережі й постачені ліцензією, яка надає право групового використання програми.
2.1 Аналіз інформаційних потреб підприємства
Для створюваної мережі необхідно передбачити такі варіанти її використання:
-обмін даними в мережі передачі даних;
-доступ до ресурсів мережі Інтернет;
-забезпечення надійних каналів передачі інформації в межах мережі передачі даних;
-підготовки основи для створення єдиного інформаційного простору;
-спільне використання периферійних пристроїв (принтерів);
-забезпечення систем безпеки на території розгортання мережі передачі даних;
-створення централізованої системи керування мережею;
2.2 Інформаційні потоки у ЛОМ підприємства
Залежно від того, як розподілені функції між комп'ютерами мережі, вони можуть виступати в трьох різних ролях: комп'ютер, що займається винятково обслуговуванням запитів інших комп'ютерів, відіграє роль виділеного сервера мережі; комп'ютер, що звертається із запитами до ресурсів іншої машини, відіграє роль вузла-клієнта; комп’ютер, що сполучає функції клієнта й сервера, є одноранговим вузлом. Очевидно, що мережа не може складатися тільки із клієнтських або тільки із серверних вузлів.
Таблиця 2.1
Визначення видів необхідного устаткування
| Користувач мережі | Обов'язки | Обладнання | Примітка |
| Директор | Комп'ютер | ||
| Секретар | Підготовка набір документів | Комп'ютер | |
| Друк документів | Принтер | ||
| Менеджери | Організація процесу виробництва | Комп'ютер | |
| Друк документів | Принтер | ||
| Користувач мережі | Обов'язки | Обладнання | Примітка |
| Адміністратор | Забезпечення стабільної роботи мережних служб, Обслуговування мережного обладнання, Інтернет-сервіси |
Сервер | Файл-сервер |
Керівник координує роботу організації.
В обов'язки секретаря входить: оформлення (в тому числі друкування) документів, листів, телеграм, телефонограм, факсів. Прийом, реєстрація, зберігання, облік, доставка по підрозділах документації.
Менеджери працюють з клієнтами.
Адміністратор зобов'язаний стежити за працездатністю мережі та обслуговувати сервер
3. Планування структури мережі
Комп'ютерна мережа - це кілька комп'ютерів у межах обмеженої території (, що перебувають в одному приміщенні, в одному або декількох близько розташованих будинках) і підключених до єдиних ліній зв'язку. Сьогодні більшість комп'ютерних мереж – це локальні комп'ютерні мережі (Local-Area Network), які розміщаються усередині одного конторського будинку й засновані на комп'ютерній моделі клієнт/сервер. Мережне з'єднання складається із двох комп’ютерів, які зв’язані між собою. Можна створити мережу, використовуючи бездротові технології, але поки це не використовується.
У моделі клієнт/сервер зв'язок по мережі ділиться на дві області: сторону клієнта і сторону сервера. По визначенню, клієнт запитує інформацію або послуги із сервера. Сервер у свою чергу, обслуговує запити клієнта. Часто кожна сторона в моделі клієнт/сервер може виконувати функції, як сервера, так і клієнта. При створенні комп'ютерної мережі необхідно вибрати різні компоненти, що визначають, яке програмне забезпечення й устаткування ви зможете використовувати, формуючи свою корпоративну мережу. Комп'ютерна мережа – це невід'ємна частина сучасної ділової інфраструктури, а корпоративна мережа – лише одне з використовуваних у ній додатків і, відповідно, не повинна бути єдиним фактором, що визначає вибір компонентів мережі. Необхідні для Intranet компоненти повинні стати доповненням до наявної мережі, не приводячи до істотної зміни її архітектури.
3.1 Вибір та обґрунтування топології мережі
Топологія - це спосіб фізичного з'єднання комп'ютерів в локальну мережу. Існує три основних топології, що застосовуються при побудові комп'ютерних мереж: «шина», «зірка», «кільце».
При створенні мережі з топологією «Шина» всі комп'ютери підключаються до одного кабелю (рисунок 3.1). На його кінцях повинні бути розташовані термінатори. За такої топології будуються 10 мегабітні мережі 10Base-2 і 10Base-5. У якості кабелю використовується коаксіальний кабель.

Рисунок 3.1 - Топологія «Шина»
Пасивна топологія, будується на використанні одного загального каналу зв'язку і колективного використання його в режимі поділу часу. Порушення загального кабелю або будь-якого з двох термінаторів приводить до виходу з ладу ділянки мережі між цими термінаторами (сегмент мережі). Відключення будь-якого з підключених пристроїв на роботу мережі ніякого впливу не робить. Несправність каналу зв'язку виводить з ладу всю мережу. Всі комп'ютери в мережі «слухають» несучу і не беруть участь в передачі даних між сусідами. Пропускна здатність такої мережі знижується зі збільшенням навантаження або при збільшенні числа вузлів. Для з'єднання шматків шини можуть використовуватися активні пристрої - повторювачі (repeater) із зовнішнім джерелом живлення.
Топологія «Зірка» передбачає підключення кожного комп'ютера окремим проводом до окремого порту пристрою, званого концентратором або повторювачем, або хабом (рисунок 3.2).

Рисунок 3.2 - Топологія «Зірка»
Концентратори можуть бути як активні, так і пасивні. Якщо між пристроєм і концентратором відбувається розрив з'єднання, то вся інша мережа продовжує працювати. Правда, якщо цим пристроєм був єдиний сервер, то робота буде дещо ускладнена. При виході з ладу концентратора мережа перестане працювати.
Дана мережева топологія найбільш зручна при пошуку ушкоджень мережевих елементів: кабелю, мережевих адаптерів або роз'ємів. При додаванні нових пристроїв «зірка» також зручніше в порівнянні з топологією загальна шина. Також можна взяти до уваги, що 100 і 1000 М/біт мережі будуються по топології «Зірка».
Топологія «Кільце» активна топологія. Всі комп'ютери в мережі зв'язані по замкнутому колу (рисунок 3.3). Прокладка кабелів між робочими станціями може виявитися досить складною і дорогою, якщо вони розташовані не по кільцю, а, наприклад, в лінію. В якості носія в мережі використовується «вита пара» або оптоволокно. Повідомлення циркулюють по колу. Робоча станція може передавати інформацію другий робочої станції тільки після того, як отримає право на передачу (маркер), тому колізії виключені. Інформація передається по кільцю від однієї робочої станції до іншої, тому при виході з ладу одного комп'ютера, якщо не брати спеціальних заходів вийде з ладу вся мережа.

Рисунок 3.3 - Топологія «Кільце»
Час передачі повідомлень зростає пропорційно збільшенню числа вузлів в мережі. Обмежень на діаметр кільця не існує, тому що він визначається тільки відстанню між вузлами в мережі.
Крім наведених вище топологій мереж широко застосовуються та інші гібридні топології: «зірка-шина», «зірка-кільце», «зірка-зірка».
Крім трьох розглянутих основних, базових топологій нерідко застосовується також мережна топологія «дерево», яку можна розглядати як комбінацію декількох зірок. Як і у випадку зірки, дерево може бути активним, або істинним, і пасивним. При активному дереві в центрах об'єднання декількох ліній зв'язку перебувають центральні комп'ютери, а при пасивному - концентратори .
Застосовуються досить часто і комбіновані топології, серед яких найбільшого поширення набули зірково-шинна і зірково-кільцева. У зірково-шинної топології використовується комбінація шини та пасивної зірки. У цьому випадку до концентратора підключаються як окремі комп'ютери, так і цілі шинні сегменти, тобто на самому ділі реалізується фізична топологія шина, що включає всі комп'ютери мережі. У даній топології може використовуватися і кілька концентраторів, з'єднаних між собою і утворюють так звану магістральну, опорну шину. До кожного з концентраторів при цьому підключаються окремі комп'ютери або шинні сегменти. Таким чином, користувач отримує можливість гнучко комбінувати переваги шинної і зоряної топологій, а також легко змінювати кількість комп'ютерів, підключених до мережі.
У разі зірково-кільцевої топології в кільце об'єднуються не самі комп'ютери, а спеціальні концентратори, до яких у свою чергу підключаються комп'ютери за допомогою зіркоподібну подвійних ліній зв'язку. Насправді всі комп'ютери мережі включаються в замкнуте кільце, тому що усередині концентраторів лінії зв'язку утворюють замкнутий контур. Дана топологія дозволяє комбінувати переваги зіркової та кільцевої топології. Наприклад, концентратори дозволяють зібрати в одне місце всі точки підключення кабелів мережі.
Таблиця 3.1
Порівняння характеристик мережних топологій
| Характеристики | Топологія | ||
| Зірка | Кільце | Загальна шина | |
| Вартість розширення | незначна | середня | середня |
| Приєднання абонентів | пасивне | активне | пасивне |
| Захист від відмов | незначний | незначний | високий |
| Розміри системи | будь-які | будь-які | обмежені |
| Захищеність від прослуховування | хороша | хороша | незначна |
| Вартість підключення | незначна | незначна | висока |
| Поведінка системи при високих навантаженнях | добре | задовільне | погане |
| Можливість роботи в реальному режимі часу | дуже добра | добра | погана |
| Розведення кабелю | добре | задовільне | добре |
| Обслуговування | дуже добре | середнє | середнє |
У моєму проекті буде використовуватися топологія «зірка», яка має наступні переваги:
- вихід з ладу однієї робочої станції не відбивається на роботі всієї мережі в цілому;
- хороша масштабованість мережі;
- легкий пошук несправностей і обривів в мережі;
- висока продуктивність мережі (за умови правильного проектування);
- гнучкі можливості адміністрування.
3.2 Спосіб керування мережею
Кожна організація формулює власні вимоги до конфігурації мережі, обумовлені характером розв'язуваних завдань. У першу чергу необхідно визначити, скільки людей будуть працювати в мережі. Від цього рішення, по суті, будуть залежати всі наступні етапи створення мережі.
Кількість робочих станцій прямо залежить від передбачуваного числа співробітників. Іншим фактором є ієрархія компанії. Для фірми з горизонтальною структурою, де всі співробітники повинні мати доступ до даних один одного, оптимальним рішенням є проста однорангова мережа.
Фірми, побудованої за принципом вертикальної структури, у якій точно відомо, який співробітник і до якої інформації повинен мати доступ, слід орієнтуватися на більш дорогий варіант мережі – з виділеним сервером. Тільки в такій мережі існує можливість адміністрування прав доступу.
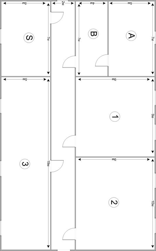
3.3 План приміщень
Приміщення даного агентства нерухомості складається з шістьох, кабінетів (додаток А), що мають такі параметри:
Кабінет А:
- довжина 7 м;
- ширина 5 м;
- висота 3 м.
- вікна 1
- кондиціонери 1
Кабінет В:
- довжина 7 м;
- ширина 4 м;
- висота 3 м.
- вікна 0
- кондиціонери 1
Кабінет S:
- довжина 7 м;
- ширина5 м;
- висота 3 м.
- вікна 1
- кондиціонери 1
Кабінет 1:
- довжина 9 м;
- ширина 9 м;
- висота 3 м.
- вікна 2
- кондиціонери 2
Кабінет 2:
- довжина 10 м;
- ширина 9 м;
- висота 3 м.
- вікна 2
- кондиціонери 2
Кабінет 3:
- довжина 19 м;
- ширина 5 м;
- висота 3 м.
- вікна 3
- кондиціонери 2
В приміщенні є 10 вікон, що забезпечують природне освітлення та лампи для штучного освітлення.
Для забезпечення вентиляції передбачені кондиціонери.
На відміну від установки однорангової мережі, при побудові ЛОМ із сервером виникає ще одне питання - де найкраще встановити сервер.
На вибір місця впливає кілька факторів:
- через високий рівень шуму сервер бажано встановити окремо від інших робочих станцій;
- необхідно забезпечити постійний доступ до сервера для технічного обслуговування;
- з міркувань захисту інформації потрібно обмежити доступ до сервера;
Сервер розташовуємо в окремій кімнаті (S) мережевого адміністратора, тому що тільки це приміщення задовольняє вимогам, тобто рівень шуму в приміщенні мінімальний, приміщення ізольоване від інших, отже, доступ до сервера буде обмежений.
3.4 Мережна архітектура
Мережева архітектура - це комбінація топології, методу доступу, стандартів, необхідних для створення працездатної мережі.
Вибір топології визначається, зокрема, плануванням приміщення, у якім розвертається ЛОМ. Крім того, велике значення мають витрати на придбання й установку мережевого встаткування, що є важливим питанням для фірми, розкид цін тут також досить великий.
Топологія типу «зірка» являє собою більш продуктивну структуру, кожний комп'ютер, у тому числі й сервер, з'єднується окремим сегментом кабелю із центральним концентратором (HAB).
Основною перевагою такої мережі є її стійкість до збоїв, що виникають внаслідок неполадок на окремих ПК або через ушкодження мережевого кабелю.
Найважливішою характеристикою обміну інформацією в локальних мережах є так звані методи доступу (access methods), що регламентують порядок, у якім робоча станція одержує доступ до мережних ресурсів і може обмінюватися даними.
За абревіатурою CSMA/CD ховається англійське вираження «Carrier Sense Multiple Access with Collision Detection » (колективний доступ з контролем несучої й виявленням колізій). За допомогою даного методу всі комп'ютери одержують рівноправний доступ у мережу. Кожна робоча станція перед початком передачі даних перевіряє, чи вільний канал. По закінченню передачі кожна робоча станція перевіряє, чи досяг адресата відправлений пакет даних. Якщо відповідь негативна, вузол робить повторний цикл передачі/контролю приймання даних і так доти, поки не одержить повідомлення про успішне приймання інформації адресатом.
Тому що цей метод добре зарекомендував себе саме в малих і середніх мережах, для підприємства даний метод підійде. До того ж мережна архітектура Ethernet, яку й буде використовувати мережа підприємства, використовує саме цей метод доступу.
Специфікацію Ethernet наприкінці сімдесятих років запропонувала компанія Xerox Corporation. Пізніше до цього проекту приєдналися компанії Digital Equipment Corporation (DEC) і Intel Corporation. В 1982 році була опублікована специфікація на Ethernet версії 2.0. На базі Ethernet інститутом IEEE був розроблений стандарт IEEE 802.3. фаст
У цей час технологія, що застосовує кабель на основі кручена пари (10BaseT), є найбільш популярною. Такий кабель не викликає труднощів при прокладці.
Мережа на основі крученої пари, на відміну від тонкого й товстого коаксіального, будується по топології зірка. Щоб побудувати мережу по зіркоподібній топології, потрібне більша кількість кабелю (але ціна крученої пари не велика). Подібна схема має й неоціненну перевагу – високу стійкість до відмови. Вихід з ладу однієї або декількох робочих станцій не приводить до відмови всієї системи. Правда якщо з ладу вийде хаб, його відмова торкнеться всього підключеного через нього обладнання.
Ще однією перевагою даного варіанту є простота розширення мережі, оскільки при використанні додаткових хабів (до чотирьох послідовно) з'являється можливість підключення великої кількості робочих станцій ( до 1024). При застосуванні неекранованої крученої пари (UTP) довжина сегмента між концентратором і робочою станцією не повинна перевищувати 100 метрів, чого не спостерігається в підприємстві.
Існує два основні підходи до побудови локальних мереж: мережі типу «клієнт-сервер» і однорангові мережі.
Мережі, в яких комп’ютер одночасно може бути клієнтом і одночасно виконувати функції серверу для інших називаються одноранговими. В таких мережах виділені сервери не використовуються.
Існує багато способів зв’язати персональні комп’ютери в єдиний обчислювальний комплекс. Найпростіший полягає в тому, щоб з’єднати їх через послідовні порти. В цьому випадку є можливість копіювати файли з жорсткого диска одного комп’ютера на інший, використовуючи файлові менеджери або стандартні засоби операційної системи.
Технологія «клієнт-сервер», яка широко застосовується при роботі з базами даних в мережі, відома вже давно і найчастіше застосовувалась у великих організаціях. Сьогодні, з розвитком Інтернет, ця технологія все частіше приваблює погляди розробників програмного забезпечення, оскільки в світі нагромаджено величезну кількість інформації по різноманітних питаннях і найчастіше ця інформація зберігається в базах даних.
В моєму проекті буде використовуватися архітектура «клієнт-сервер», тому, що у мережі постійно знаходиться адміністратор, який слідкує за комп’ютерною мережею. Персональний комп’ютер адміністратора може виступати в ролі сервера.
3.5 Мережні ресурси
Наступним важливим аспектом планування мережі є спільне використання мережних ресурсів (принтерів, факсів, модемів).
Перераховані ресурси можуть використовуватися як в однорангових мережах, так і в мережах з виділеним сервером. Однак у випадку однорангової мережі відразу виявляються її недоліки. Щоб працювати з перерахованими компонентами, їх потрібно встановити на робочу станцію або підключити до неї периферійні обладнання. При відключенні цієї станції всі компоненти й відповідні служби стають недоступними для колективного користування.
У мережах із сервером такий комп'ютер існує по визначенню. Мережний сервер ніколи не вимикається, якщо не вважати коротких зупинок для технічного обслуговування. Таким чином, забезпечується цілодобовий доступ робочих станцій до мережної периферії.
На підприємстві є десять принтерів: у кожнім відособленім приміщенні. Адміністрація пішла на витрати для створення максимально комфортних умов роботи колективу.
Для цього існує кілька способів:
- підключення до робочої станції - принтер підключається до тієї робочої станції, яка перебуває до нього ближче всього, у результаті чого дана робоча станція стає сервером друку. Недолік такого підключення в тому, що при виконанні завдань на друк продуктивність робочої станції на якийсь час знижується, що негативно позначиться на роботі прикладних програм при інтенсивнім використанні принтера. Крім того, якщо машина буде виключена, сервер друку стане недоступним для інших вузлів.
- Пряме підключення до сервера - принтер підключається до паралельного порту сервера за допомогою спеціального кабелю. У цьому випадку він постійно доступний для всіх робочих станцій. Недолік подібного рішення обумовлений обмеженням у довжині принтерного кабелю, що забезпечує коректну передачу даних. Хоча кабель можна простягнути на 10 і більш метрів, його слід прокладати в коробах або в перекриттях, що підвищить витрати на організацію мережі.
- підключення до мережі через спеціальний мережний інтерфейс - принтер обладнується мережним інтерфейсом і підключається до мережі як робоча станція. Інтерфейсная карта працює як мережний адаптер, а принтер реєструється на сервері як вузол ЛОМ. Програмне забезпечення сервера здійснює передачу завдань на друк по мережі безпосередньо на підключений мережний принтер. У мережах із шинною топологією мережний принтер, як і робочі станції з'єднується з мережним кабелем за допомогою конектора, а при використанні «зірки» - через концентратор.
- Підключення до виділеного сервера друку - Альтернативою третьому варіанту є використання спеціалізованих серверів друку. Такий сервер являє собою мережний інтерфейс, скомпонований в окремому корпусі, з одним або декількома розніманнями (портами) для підключення принтерів. Однак у цьому випадку використання сервера друку є непрактичним.
Для кожної з задач визначається ефективний трафік ПЕГ ПО формулою:
(3.1)
Де
- середній час заняття завданням мережі,
- загальне часу роботи мережі,
Пн - у разі повного заняття мережі завданням номінальна пропускна здатність мережі, у разі фіксованого трафіку - його значення. Загальний мережевий трафік визначається за формулою:
(3.2)
ΣПЭi - сума мережевих задач. (Обмін файлами + Мережева друк і т.д.)
КСТ - коефіцієнт службового трафіку (0.05-0.07).
КЗ - коефіцієнт запасу (1,2-2.0).
NK - кількість комп'ютерів в мережі.
NC - кількість серверів в мережі.
ТСРС - середній час виконуваного завдання одного сервера.
Розраховується коефіцієнт використання мережі кісп, = "Побщ / Пном, який повинен знаходитися в межах (0, ЗЧ-0, 6). [6, c. 373]
Для розрахунку трафіку мережа розбивається на логічні сегменти за допомогою комутаторів. Сумарний трафік перераховується для кожного логічного сегменту Для кожного логічного сегмента уточнюється коефіцієнт використання мережі, як зазначено вище.
Загальний мережевий трафік для всієї мережі:
53,85 55,75 / 2 = 54.8 (Мбіт / с).(3.3)
Коефіцієнт використання всієї мережі:
(0,557 +0,557) / 2 = 0,557З(3.4)
отриманого результату можна сказати, що загальний коефіцієнт використання мережі знаходиться в нормі.
4. Вибір та обґрунтування апаратних і програмних засобів комп'ютерної мережі підприємства
Для об'єднання комп'ютерів у мережу необхідне спеціальне мережеве обладнання та програмне забезпечення. З обладнання до компонентів мережі крім власне комп'ютерів (робочих станцій і серверів) відносяться кабелі з конструкціями для їх прокладання та відповідними кабельними роз'ємами, комутатори, мережеві карти.
Для того, щоб комп'ютер можна було увімкнути в мережу, він повинен бути обладнаний мережевою картою (адаптером). Тип мережевої карти визначається мережевим програмним забезпеченням і типом кабелів, які використовуються для об'єднання комп'ютерів у мережу.
Комутатори обираються Cisco Catalist WS-CE500-24TT (рисунок 4.1).
Даний комутатор використовує кодування трафіку. Цей комутатор має досить широкі температурні межі застосування, що дозволяє встановлювати його в кабінеті адміністраторів мережі або у будь-якій іншій без використання додаткових засобів охолодження.
Комутатор Cisco Catalist WS-CE500-24TT має додатково 2 порти для передачі даних на швидкості 1000 Мбіт/с, які можна використовувати для підключення до серверів (це забезпечує більш швидкий обмін інформації сервера з робочими станціями).


Рисунок 4.1 - Комутатор Cisco Catalist WS-CE500-24TT
Таблиця 4.1
Основні характеристики комутатора Cisco Catalist WS-CE500-24TT
| Керування | GUI device manager |
| Порти | 24 порта 10/100 Мбіт/сек, 2 порта 10/100/1000 Мбіт/сек |
| Безпека | Трафік від та до GUI device manager кодується за допомогою Secure Sockets Layer (SSL) або SNMPv3. |
| Блок живлення | Вбудований |
| Рабоча температура | 0 ~ 45°C |
На робочих станціях буде використовуватися ОС Windows XP.
На сервері - Windows Server 2003.
Windows XP (кодова назва при розробці - Whistler; внутрішня версія - Windows NT 5.1) - операційна система сімейства Windows NT від компанії Microsoft. Назва XP походить від англ. experience (досвід). Назва увійшло в практику використання, як професійна версія.
На відміну від попередньої системи Windows 2000, яка поставлялася як в серверному, так і в клієнтському варіантах, Windows XP є виключно клієнтською системою. Її серверним варіантом є випущена пізніше система Windows Server 2003. Windows XP і Windows Server 2003 побудовані на основі одного і того ж ядра операційної системи, в результаті їх розвиток і оновлення йде більш-менш паралельно. Надійність ОС дозволяє використовувати Windows XP в якості основи для задач, що вимагають саме цієї властивості. Вона ідеально пристосована для роботи в якості робочої станції, де потрібна підвищена стійкість і висока продуктивність.
Будучи істинно 32-х розрядної системою, Windows XP працює в 32-х бітовою лінійної моделі пам'яті, яка дозволяє адресувати 4 Гб (понад 4-х мільярдів байт) пам'яті.
Windows XP використовує метод багато-задачності, що гарантує адекватний розподіл ресурсів процесора протягом всієї роботи системи. Це також запобігає монопольний захоплення процесора додатком і зупинку системи в тих випадках, коли програма працює нестабільно або раптово припинило роботу. Це дозволяє Windows XP працювати навіть тоді, коли інша операційна система остаточно б зависла.
Файлова система (NTFS) Windows XP вдосконалена і гранично надійна. Використовуючи транзакції, Windows XP має можливість скасувати незавершену або неправильну операцію запису, що виникає у разі збою апаратного або програмного забезпечення (наприклад, раптове відключення електроживлення під час запису файлу). Завдяки такому підходу файлова система Windows XP набагато менш схильна до руйнування при різних нештатних ситуаціях.
Windows Server 2003 (кодова назва при розробці - Whistler Server, внутрішня версія - Windows NT 5.2) - це операційна система сімейства Windows NT від компанії Microsoft, призначена для роботи на серверах. Вона була випущена 24 квітня 2003.
Windows Server 2003 є розвитком Windows 2000 Server і серверним варіантом операційної системи Windows XP. Спочатку Microsoft планувала назвати цей продукт «Windows. NET Server» з метою просування своєї нової платформи Microsoft. NET. Однак згодом ця назва була відкинуто, щоб не викликати неправильне уявлення про. NET на ринку програмного забезпечення.
Windows Server 2003 в основному розвиває функції, закладені у попередній версії системи - Windows 2000 Server. На це вказувала і версія NT 5.2 ядра системи (NT 5.0 для Windows 2000). Нижче наведені деякі з найбільш помітних змін у порівнянні з Windows 2000 Server.
Windows Server 2003 - перша з операційних систем Microsoft, яка поставляється з установленою оболонкою. NET Framework. Це дозволяє даній системі виступати в ролі сервера додатків для платформи Microsoft. NET без встановлення будь-якого додаткового програмного забезпечення.
Windows Server 2003 включає в себе наступні покращення для Active Directory - служби каталогів, що вперше з'явилася в Windows 2000:
Можливість перейменування домену Active Directory після його розгортання.
Спрощення зміни схеми Active Directory - наприклад, відключення атрибутів і класів.
Поліпшений користувальницький інтерфейс для управління каталогом (стало можливо, наприклад, переміщати об'єкти шляхом їх перетягування і одночасно змінювати властивості декількох об'єктів).
Поліпшені засоби управління груповою політикою, включаючи програму Group Policy Management Console.
За заявами Microsoft, у Windows Server 2003 велика увага була приділена безпеці системи. Зокрема, система тепер встановлюється в максимально обмеженому вигляді, без будь-яких додаткових служб, що зменшує поверхню атаки. У Windows Server 2003 також включений програмний міжмережевий екран Internet Connection Firewall. Згодом до системи був випущений пакет оновлення, який повністю зосереджений на підвищенні безпеки системи і включає декілька додаткових функцій для захисту від атак. Відповідно до американського стандарту безпеки Trusted Computer System Evaluation Criteria (TCSEC) система Windows Server 2003 відноситься до класу безпеки C2 - Controlled Access Protection.
4.1 Комп’ютерна база локальної обчислювальної мережі
Очевидно, що продуктивність ЛОМ не в останню чергу залежить від комп'ютера, який використовується як сервер. У цьому випадку, як завжди, існує можливість вибору між готовими серверами, пропонованими виробниками й постачальниками комп'ютерної техніки, і серверами самостійної зборки. При наявності певного досвіду, самостійно зібраний під замовлення сервер може скласти альтернативу готовому продукту. Велика розмаїтість компонентів не дає можливості назвати конкретні види «заліза» для закупівлі й зборки. Тому варто звернути увагу на наступні моменти.
На питання про використання шини, відповідь однозначна - PCI. Крім високої продуктивності (за рахунок 64-бітної розрядності шини), PCI - компоненти допускають програмне конфігурування. Завдяки останній обставині, можливі конфлікти між апаратними ресурсами, що підключають, майже завжди запобігають автоматично.
У сервері повинні використатися, як мінімум, вінчестери й відповідні адаптери SATA. Новітні диски даного стандарту при частоті обертання шпинделя 7200 про/хв забезпечують максимально високу швидкість передачі даних практично незалежну від завантаження дискової підсистеми.
Ідеальним корпусом буде спеціальний корпус для сервера, який оснащений потужними блоками живлення, додатковими вентиляторами, знімними заглушками й захисною передньою панеллю. Як більше економічне рішення припустиме використання корпусів типу Big Tower, що пройшли сертифікацію фірми-виробника материнської плати.
Швидкісний привід DVD-ROM не тільки заощадить час при установці ОС і прикладного ПЗ, але й виявиться надзвичайно корисним при роботі із централізованою довідковою системою.
Тому що всі підключені до мережі робочі станції будуть постійно звертатися до сервера, одним з його найважливіших компонентів є продуктивна 32-х або 64-х бітна мережна карта. Вона повинна ефективно управляти інформаційним обміном, тобто мати співпроцесор, що приймає на себе основні функції центрального процесора по обробці даних які постачаються на сервер. Для забезпечення додаткової надійності можна використати 2 і більше мережні карти одночасно.
Виходячи з вищевикладеного, пропонується наступна модель корпоративного сервера Everest® Server 2022.
Еverest® Server 2022 - універсальний сервер середнього рівня. Може використатися як сервер служб обміну електронними повідомленнями, сервера служби доменних імен, сервера служби доступу до інформаційних ресурсів. Побудований на базі продуктивної материнської плати ASUS® P5BV Intel® 3200.
Таблиця 4.2
Конфігурація сервера
| Процесор | Intel® Xeon® 3110 (3.0 GHz, 1333MHz FSB) |
| Кеш-пам'ять | 6MB L2 cache |
| Чипсет | Intel 3200 |
| Оперативна пам'ять | 4GB - 4x1GB DDR2-667 ECC |
| Слоты розширення | 1xPCI-E 16x, 2xPCI-X, 2xPCI |
| Жорсткі диски | 2xSATA 750GB |
Контролери жорстких дисків |
S-ATA кількість слотів: 4, S-ATA II, RAID: 0, 1, 5, 10, на основі Intel ICH7R, IDE кількість слотів: 1, UltraDMA 100 |
| Місця для жорстких дисків | 10 x 3,5" (гаряча заміна) |
| Пристрою уведення/висновку | DVD±RW, IDE black 3.5” FDD 1.44MB Black |
Місця для додаткових пристроїв |
1 x 3.5" (зайнято FDD) 3 x 5,25 (одне зайнято DVD±RW) |
| Відеоконтролер | на основі XGI Volari Z9s (вбудований) |
| Мережевий адаптер | 2x1000 Мбіт/с, на основі Broadcom BCM5721 |
| Порти вводу/виводу | 4xUSB 2.0, 1xCOM, D-Sub, 2xEthernet, PS/2 (клавіатура), PS/2 (миш) |
| Корпус | Chenbro server (PC611xx), БЖ 400W |
| Блоки живлення | - 2*600W |
Було прийнято рішення для офісних робітників закупити комп’ютери Hewlett Packard наступної конфігурації:
Таблиця 4.3
Конфігурація комп’ютерів
|
Також в мережі буде використовуватися два принтера Xerox лазерний Phaser 3125, так як він має можливість під’єднання до мережі.
Таблиця 4.4
Конфігурація принтера
| Принтер Xerox лазерний Phaser 3125 | |
| Інтерфейс | USB 2.0, RJ-45 |
| Тип печатки | Лазерний |
| Максимальна розв'язна здатність | 600x600 dpi |
| Драйвери для Операційної системи | Microsoft® Windows® 98/ME/2000/XP, LinuxOS |
| Споживана потужність | прибл. 10 Вт (у режимі очікування), прибл. 300 Вт (при печатці) |
| Живлення | 220 – 240 У, 50/60 Гц |
| Розміри, мм | 354 (Ш) / 210 (В) / 297.4 (Г) |
| Максимальний формат печатки | А4 |
| Процесор | 150 MHz |
| Ємність додаткового лотка | до 50 аркушів |
| Стандартний обсяг пам'яті | 8 МБ |
| Ресурс тонер-картриджа | 3 000 стор. (5%) |
| Швидкість печатки ч/б, стр/хв | 16 |
| Режим економії тонера | є |
| Місячний обсяг печатки | 5 000 сторінок |
4.2 Кабельна система
Вибір кабельної підсистеми диктується типом мережі і вибраної топологією. Необхідні ж за стандартом фізичні характеристики кабелю закладаються при його виготовленні, про що й свідчать нанесені на кабель маркування. У результаті, сьогодні практично всі мережі проектуються на базі UTP та волоконно-оптичних кабелів, коаксіальний кабель застосовують лише у виняткових випадках і то, як правило, при організації низькошвидкісних стеків в монтажних шафах.
В проекти локальних обчислювальних мереж (стандартних) закладаються на сьогодні всього три види кабелів:
-коаксіальний (двох типів):
- Тонкий коаксіальний кабель (thin coaxial cable);
- Товстий коаксіальний кабель (thick coaxial cable).
-кручена пара (двох основних типів):
- - Неекранована вита пара (unshielded twisted pair - UTP);
- - Екранована кручена пара (shielded twisted pair - STP).
-волоконно-оптичний кабель (двох типів):
- - Багатомодовий кабель (fiber optic cable multimode);
- - Одномодовий кабель (fiber optic cable single mode).
Не так давно коаксіальний кабель був найпоширенішим типом кабелю. Це пояснюється двома причинами: по-перше, він був відносно недорогим, легким, гнучким і зручним у застосуванні; по-друге, широка популярність коаксіального кабелю призвела до того, що він став безпечним і простим в установці.
Найпростіший коаксіальний кабель складається з мідної жили, ізоляції, її навколишнього, екрану у вигляді металевої сітки і зовнішньої оболонки.
Якщо кабель крім металевого обплетення має і шар «фольги», він називається кабелем з подвійною екранізацією (рисунок 1.4). За наявності сильних перешкод можна скористатися кабелем з почетвереній екранізацією, він складається з подвійного шару фольги та подвійного шару металевого обплетення.

Рисунок 4.2 - Структура коаксіального кабелю
Обплетення, її називають екраном, захищає передаються по кабелях дані, поглинаючи зовнішні електромагнітні сигнали, звані перешкодами або шумом, таким чином, екран не дозволяє перешкод спотворити дані.
Електричні сигнали передаються по жилі. Жила - це один провід або пучок проводів. Жила виготовляється, як правило, з міді. Провідна жила і металева оплетка не повинні торкатися, інакше відбудеться коротке замикання і перешкоди спотворять дані.
Коаксіальний кабель більш перешкодостійкий, загасання сигналу в ньому менше, ніж у витій парі.
Загасання - це зменшення величини сигналу при його переміщенні по кабелю.
Тонкий коаксіальний кабель - гнучкий кабель діаметром близько 5 мм. Він застосовний практично для будь-якого типу мереж. Підключається безпосередньо до плати мережного адаптера за допомогою Т-конектора.
У кабелю роз'єми називаються BNC конектори. Тонкий коаксіальний кабель здатний передавати сигнал на відстані 185 м, без його уповільненої загасання.
Тонкий коаксіальний кабель належить до групи, яка називається сімейством RG-58. Основна відмітна особливість цієї родини мідна жила.
RG 58 / U - суцільна мідна жила.
RG 58 / U - переплетені дроти.
RG 58 C/U- військовий стандарт.
RG 59 - використовується для широкосмугової передачі.
RG 62 - використовується в мережах Archet.
Товстий коаксіальний кабель щодо жорсткий кабель з діаметром близько 1 см. Іноді його називають стандартом Ethernet, тому що цей тип кабелю був призначений для даної мережевої архітектури. Мідна жила цього кабелю товщі, ніж у тонкого кабелю, тому він передає сигнали далі. Для підключення до товстої кабелю застосовують спеціальний пристрій трансивер.
Трансивер забезпечений спеціальним коннектором, який називається «зуб вампіра» або пронизують відгалужувач. Він проникає через ізоляційний шар і вступає в контакт з провідної житловий. Щоб підключити трансивер до мережного адаптера треба кабель трансівера підключити до коннектори AUI - порту до мережевої плати.
Вита пара - це два перевитих навколо один одного ізоляційних мідних дроти. Існує два типи тонкого кабелю: неекранована вита пара (UTP) і екранована кручена пара (STP) (рисунок 1.5).

Рисунок 4.3 - неекранована і екранована кручена пара
Кілька кручених пар часто поміщають в одну захисну оболонку. Їх кількість у такому кабелю може бути різним. Завивка проводів дозволяє позбутися від електричних перешкод, що наводяться сусідніми парами та іншими джерелами (двигунами, трансформаторами).
Неекранована вита пара (специфікація 10BaseT) широко використовується в ЛВС, максимальна довжина сегмента складає 100 м.
Неекранована кручена пара складається з 2х ізольованих мідних проводів. Існує кілька специфікацій, які регулюють кількість витків на одиницю довжини - залежно від призначення кабелю.
Існує 7 категорій неекранованої кручений пари:
1) Традиційний телефонний кабель, по якому можна передавати тільки мова.
2) Кабель, здатний передавати дані зі швидкістю до 4 Мбіт / с. Складається з 4х кручених пар.
3) Кабель, здатний передавати дані зі швидкістю до 10 Мбіт / с. Складається з 4х кручених пар з 9-ма витками на метр.
4) Кабель, здатний передавати дані зі швидкістю до 16 Мбіт / с. Складається з 4х кручених пар.
5) Кабель, здатний передавати дані зі швидкістю до 100 Мбіт / с. Складається з 4х кручених пар мідного дроту.
Однією з потенційних проблем для всіх типів кабелів є перехресні перешкоди.
Перехресні перешкоди - це перехресні наведення, викликані сигналами в суміжних проводах. Неекранована кручена пара особливо страждає від цих перешкод. Для зменшення їх впливу використовують екран.
Кабель, екранованої витої пари (STP) має мідну оплетку, яка забезпечує більший захист, ніж неекранована вита пара. Пари проводів STP обмотані фольгою. У результаті екранована кручена пара має прекрасну ізоляцією, що захищає дані, що передаються від зовнішніх перешкод.
Отже, STP в порівнянні з UTP менше схильна до впливу електричних перешкод і може передавати сигнали з більшою швидкістю і на великі відстані.
Для підключення витої пари до комп'ютера використовують телефонні коннектори RG-45.
У оптоволоконному кабелю цифрові дані поширюються по оптичних волокнах у вигляді модульованих світлових імпульсів. Це відносно надійний (захищений) спосіб передачі, оскільки електричні сигнали при цьому не передаються. Отже, оптоволоконний кабель не можна приховати і перехопити дані, від чого не застрахований будь-який кабель, який проводить електричні сигнали.

Рисунок 4.4 - Структура оптоволоконного кабелю
Оптоволоконні лінії призначені для переміщення великих обсягів даних на дуже високих швидкостях, так як сигнал у них практично не затухає і не спотворюється.
Оптичне волокно - надзвичайно тонкий скляний циліндр, званий житловий, покритий шаром скла, званого оболонкою, з іншим, ніж у жили, коефіцієнтом заломлення (рисунок 1.6). Іноді оптоволокно виробляють із пластику, він простіший у використанні, але має гірші характеристики в порівнянні зі скляним.
Кожне скляне оптоволокно передає сигнали тільки в одному напрямку, тому кабель складається з двох волокон з окремими конекторами. Одне з них служить для передачі сигналу, другий для прийому.
Передача по оптоволоконному кабелю не схильна до електричних перешкод і ведеться з надзвичайно високою швидкістю (в даний час до 100Мбіт/сек, теоретично можлива швидкість - 200000 Мбіт / сек). По ньому можна передавати дані на багато кілометрів.
У даному дипломному проекті буде використана «Вита пара» категорії 5Е і «Оптоволоконний кабель».
4.2.1 Технологія монтажу СКС
Найбільш серйозною проблемою при створенні СКС для роботи високошвидкісних додатків (категорія 3 і вище) є якість монтажу. За даними BICSI (Building Industry Consuling Service International) - міжнародної асоціації професіоналів телекомунікаційної промисловості, 80% всіх структурованих кабельних систем США, побудованих на компонентах категорії 5, не можуть бути кваліфіковані як системи категорії 5 внаслідок порушення правил монтажу.
Існують спеціальні вимоги і рекомендації з монтажу СКС, виконання яких гарантує збереження початкових робочих характеристик окремих компонентів, зібраних в лінії, канали і системи. Стандарти ISO / IEC 11801 та ANSI/TIA/EIA-568A встановлюють в якості вимог кілька основних правил монтажу, що передбачають методи і акуратність виконання з'єднання компонентів та організації кабельних потоків, які в значній мірі підвищують продуктивність системи і полегшують адміністрування встановлених кабельних систем.
Зменшенню спотворення переданого сигналу сприяють спеціальні методи підготовки кабелю та його параметрів завершення відповідно до інструкцій виробника, а також гарна організація кабельних потоків, розташування та монтаж телекомунікаційного устаткування, що обслуговує кабельну систему.
Ці правила особливо стосуються високопродуктивних кабелів, як мідних, так і волоконно-оптичних. Мідні кабелі особливо чутливі до зовнішніх аномалій. Наприклад, розвиток пари мідних провідників на величину, що перевищує максимально допустиму стандартами, негативно впливає на характеристики перехресних перешкод пари або пару. Порушення вимог до мінімального радіусу вигину кабелю також впливає на його робочі характеристики.
Зі збільшенням частоти передачі зростає ризик того, що неправильно змонтований кабель зробить вплив на продуктивність системи. Якщо смуга частот менше 16 Мгц, а швидкість передачі нижче 10 Мбіт / с (наприклад, 10BASE-T Ethernet), можна й не помітити, що технологія монтажу була порушена. Однак цей же кабель, що працює при ширині смуги мережі понад 50 МГц і швидкості передачі 100 Мбіт / с або вище, неправильно може функціонувати.
Для оцінки передавальних робочих характеристик компонентів СКС використовуються наступні параметри: загасання, NEXT (NearEndXtalk - перехідні перешкоди на ближньому кінці), зворотні втрати і опір постійному струму. Хоча всі вони чутливі до порушень безперервності хвильової середовища в точках завершення та в місцях виникнення дефектів, на NEXT особливо впливає розвиток пари провідників та інші впливи, що призводять до порушення балансу пари і відхилень імпедансу.
Крім спотворення сигналу, неправильне термінування може призвести до виникнення ефекту рамкової антени, який проявляється у випромінюванні сигналу з рівнями, що перевищують нормативні вимоги до випромінювання.
4.2.2 Схема побудови
Для прокладання кабельної проводки (додаток В) я рекомендую застосувати для з'єднання кабелів з кабелями інших підсистем або активним устаткуванням – Комутатори Cisco Catalist WS-CE500-24TT та конвектори RJ-45.
4.2.3 Організація робочого місця
Згідно до санітарних вимог, робочі місця знаходяться на відстані 1.20 м одне від одного, мають природне та штучне освітлення (додаток В).
В кабінетах 1 та 2 можливе збільшення кількості комп'ютерів.
Кожне робоче місце складається зі ПК, монітору, клавіатури та миші.
На робочому місці адміністратора мережі агентства нерухомості знаходиться серверний ПК, монітор, клавіатура та миша.
4.3 Клієнт-серверні компоненти
Одна з моделей взаємодії комп'ютерів в мережі отримала назву «клієнт-сервер» Кожен зі складових цю архітектуру елементів відіграє свою роль: сервер володіє і розпоряджається інформаційними ресурсами системи, клієнт має можливість скористатися ними.
Сервер бази даних являє собою версію СУБД, паралельно обробну запити, що надійшли з усіх робочих станцій. У його завдання входить реалізація логіки обробки транзакцій із застосуванням необхідної техніки синхронізації - підтримки протоколів блокування ресурсів, забезпечення, запобігання та / або усунення тупикових ситуацій.
У відповідь на користувальницький запит робоча станція отримає не «сировина» для подальшої обробки, а готові результати. Програмне забезпечення робочої станції при такій архітектурі грає роль лише зовнішнього інтерфейсу (Front - end) централізованої системи управління даними. Це дозволяє істотно зменшити мережевий трафік, скоротити час на очікування блокованих ресурсів даних в общем режимі, розвантажити робочі станції і при досить потужної центральної машині будуть використані для них більш дешеве обладнання.
Як правило, клієнт і сервер територіально відокремлені один від одного, і в цьому випадку вони входять до складу або утворюють систему розподіленої обробки даних.
Для сучасних СУБД архітектура «клієнт-сервер» стала фактично стандартом. Якщо передбачається, що проектована інформація буде мати архітектуру «клієнт-сервер», то це означає, що прикладні програми, реалізовані в її рамках, будуть мати розподілений характер, тобто частину функцій додатків буде реалізована в програмі-клієнті, інша - у програмі-сервері. Основний принцип технології «клієнт-сервер» полягає в розділенні функцій стандартного інтерактивного додатки на чотири групи:
- функції введення і відображення даних;
- прикладні функції, характерні для предметної області;
- фундаментальні функції зберігання та управління ресурсами (базами даних);
- службові функції.
Виходячи з цього поділу будь-який додаток може складатися з наступних компонентів:
- компонент подання (функції 1-ї групи);
- прикладної компонент (функції 2-ї групи);
- компонент доступу до інформаційних ресурсів (функції третій групи та протокол їх взаємодії).
Відмінності визначаються чотирма чинниками:
- які види програмного забезпечення в логічних компонентах;
- які механізми програмного забезпечення використовуються для реалізації функцій трьох груп;
- як логічні компоненти розподіляються комп'ютерами в мережі;
- які механізми використовуються для зв'язку компонент між собою.
5. Стратегія адміністрування й керування
Якщо не вдаватися в деталі, то задачі, розв'язувані в даній області, розбиваються на дві групи: контроль за роботою мережного устаткування й управління функціонуванням мережі в цілому. У першому випадку мова йде про моніторинг окремих мережних пристроїв (концентраторів, комутаторів, маршрутизаторів, серверів доступу й ін.), настроюванню і зміні їхньої конфігурації, усуненні виникаючих збоїв. Ця достатньо традиційна група задач одержала назву реактивного адміністрування (reactive management). Друга група націлена на моніторинг мережного трафіка, виявлення тенденцій його зміни й аналіз подій із метою реалізації схем пріоритеризації для забезпечення максимальної пропускної спроможності (proactive management). Сюди ж відноситься задача внесення змін у конфігурацію мережі, управління IP-адресами користувачів, фільтрація пакетів в цілях забезпечення інформаційної безпеки і ряд інших задач.
Потреба в контролі за мережею в цілому з однієї керуючої станції стала причиною появи різних архітектур платформ і додатків адміністрування. Найбільше поширення серед них набула двохрівнева розподілена архітектура “менеджер–агенти”. Програма-менеджер функціонує на керуючій консолі, постійно взаємодіє з модулями-агентами, що запускаються в окремих пристроях мережі. На агенти в такій схемі покладаються функції збору локальних даних про параметри роботи контрольованого ресурсу, внесення змін у його конфігурацію по запиті від менеджера, надання останньому адміністративної інформації.
Незважаючи на очевидні зручності двохрівневої архітектури, її застосування в реальному мережевому середовищі призводить до зростання обсягів службового трафіка і, як наслідок, до зниження пропускної спроможності, доступної додаткам. Цей ефект особливо замітний у складних сегментованних мережах, що містять велику кількість активних пристроїв. У якості часткового рішення проблеми вичерпання пропускної спроможності була запропонована трьохрівнева архітектура, у якій частина керуючих функцій делегувалася найважливішим мережним вузлам. Інстальовані в цих вузлах програми-менеджери через власну мережу агентів управляють роботою “підзвітних” їм пристроїв і в той же час самі виступають у ролі агентів стосовно основної програми-менеджера (менеджеру менеджерів), запущеної на керуючій станції. У результаті основна частина службового трафіка надається локалізованим в окремих мережних сегментах менеджерам, оскільки «спілкування» локальних менеджерів з адміністративною консоллю здійснюється тільки тоді, коли в цьому дійсно виникає необхідність.
Необхідність контролювати роботу різноманітного устаткування в гетерогенному середовищі зажадала уніфікації основних керуючих процедур. Згадана схема «менеджер - агенти» знайшла вираження в протоколі Simple Network Management Protocol (SNMP), що швидко став базовим протоколом мережевого адміністрування, і в стандарті дистанційного моніторингу RMON. Управління настільними системами звичайно здійснюється на базі стандарту Desktop Management Interface (DMI), розробленого організацією Desktop Management Task Force (DMTF).
Результат такого розвитку подій неважко передбачити наперед: індустрія ПЗ мережневого управління виявилася розділеною на три частини. Першу утворюють платформи мережного управління - аналоги операційних систем, що формують середовище для запуску додатків, але при цьому вони володіють обмеженою функціональністю. Друга група мережевих програм пов'язана з керуючими додатками виробників мережних апаратних засобів. Проте вони розраховані на управління тільки визначеною групою пристроїв і рідко дозволяють обслуговувати вироби інших компаній. Подібні додатки пропонуються практично усіма відомими постачальниками устаткування. Третя група - численні програми третіх фірм, націлені на рішення вузьких задач мережного адміністрування.
- Мережне адміністрування
Функціональна область управління, що відносяться до цієї сфери, чітко визначені в специфікаціях ISO:
• рішення проблемних ситуацій (діагностика, локалізація й усунення несправностей, реєстрація помилок, тестування);
• управління ресурсами (врахування, контроль використання ресурсів, виставлення рахунків за використані ресурси й обмеження доступу до них);
• управління конфігурацією, спрямоване на забезпечення надійного й ефективного функціонування всіх компонентів інформаційної системи;
• контроль продуктивності (збір і аналіз інформації про роботу окремих ресурсів, прогнозування ступеня задоволення потреб користувачів/додатків, заходи для збільшення продуктивності);
• захист даних (управління доступом користувачів до ресурсів, забезпечення цілісності даних і управління їхнім шифруванням).
Основним результатом тривалого розвитку галузі системного адміністрування стало те, що з функціональної точки зору основні платформи управління мережею в даний час досить схожі один на одного. Розходження між ними криються в сфері структурного виконання і, пов'язані з тими вихідними цілями, що ставилися на початкових етапах їх розробки.
Серед численних категорій користувачів ПЗ системного адміністрування усе більшої популярності набувають продукти фірм середнього розміру, які забезпечують потужними засобами вирішення досить широкого кола задач, мають інтуїтивний Web-інтерфейс і прийнятну ціну.
Останнім часом у закордонній літературі усе активніше обговорюється концепція динамічного адміністрування. Її поява відповідає загальній тенденції у світі мережного і системного адміністрування - переносу акцентів із контролю за окремими ресурсами, або їхніми групами, із керування робочими характеристиками ІС на максимальне задоволення запитів кінцевих користувачів інформаційних технологій.
Такий підхід припускає насамперед наявність засобів аналізу поводження користувачів. Результати, отримані на цьому етапі, повинні служити відправною точкою для так званого активного керування взаємодією між основними об'єктами адміністрування - користувачами, додатками і мережею. Термін “активне” означає постійне відслідковування характеру роботи користувацьких додатків і оперативне втручання в цей процес у тому випадку, коли рівень сервісу, одержуваний користувачем, не відповідає очікуваному. Для найбільш адекватного реагування на виникаючі проблеми прихильники концепції активного адміністрування закликають використовувати аналітичні засоби підтримки прийняття рішень.
5.1 Захист інформації в мережі. Загальні положення
Дослідження й аналіз численних випадків впливів на інформацію й несанкціонованого доступу до неї показують, що їх можна розділити на випадкові й навмисні.
Для створення засобів захисту інформації необхідно визначити природу погроз, форми й шляху їх можливого прояву й здійснення в автоматизованій системі. Для рішення поставленого завдання все різноманіття погроз і шляхів їх впливу приводиться до найпростіших видів і формам, які були б адекватні їхній безлічі в автоматизованій системі.
Дослідження досвіду проектування, виготовлення, випробувань і експлуатації автоматизованих систем говорять про те, що інформація в процесі введення, зберігання, обробки й передачі зазнає різним випадковим впливам.
Причинами таких впливів можуть бути:
- відмови й збої апаратури;
- перешкоди на лінії зв'язку від впливів зовнішнього середовища;
- помилки людини як ланки системи;
- системні й системотехнічні помилки розроблювання;
- структурні, алгоритмічні й програмні помилки;
- аварійні ситуації;
- інші впливи.
Навмисні погрози пов'язані з діями людини, причинами яких можуть бути певне невдоволення своєю життєвою ситуацією, сугубо матеріальний інтерес або простої розвага із самоствердженням своїх здібностей, як у хакерів, і т.д.
Немає ніяких сумнівів, що на підприємстві відбудуться випадкові або навмисні спроби злому мережі ззовні. У зв'язку із цією обставиною потрібно ретельно передбачити захисні заходи.
Для обчислювальних систем характерні наступні штатні канали доступу до інформації:
- термінали користувачів, самі доступні з яких це робочі станції в комп'ютерних класах;
- термінал адміністратора системи;
- термінал оператора функціонального контролю;
- засобу відображення інформації;
- засобу завантаження програмного забезпечення;
- засобу документування інформації;
- носії інформації;
- зовнішні канали зв'язку.
Прийнято розрізняти п'ять основних засобів захисту інформації:
- технічні;
- програмні;
- криптографічні;
- організаційні;
- законодавчі.
5.2 Облікові картки користувачів
Кожний клієнт, який використовує мережу, повинен мати облікову картку користувача в домені мережі. Облікова картка користувача (таблиця 5.1) містить інформацію про користувача, що включає ім'я, пароль і обмеження по використанню мережі, що накладають на нього. Є можливість також згрупувати користувачів, які мають аналогічні ресурси, у групи; групи полегшують надання прав і дозволів на ресурси, досить зробити тільки одну дію, що дає права або дозвіл всій групі.
Таблиця 5.1
Вміст облікової картки
| Облікова картка користувача | Елемент облікової картки | Коментарі |
| Userrname | Ім'я користувача | Унікальне ім'я користувача, вибирається при реєстрації. |
| Password | Пароль | Пароль користувача. |
| Full name | Повне ім'я | Повне ім'я користувача. |
| Logon hours | Годинник початку сеансу | Годинник, протягом якого користувачеві дозволяється входити в систему. Вони впливають на вхід у систему мережі й доступ до сервера. Так чи інакше, користувач змушений буде вийти із системи, коли його годинник сеансу, певні політикою безпеки, минут |
| Logon workstations | Імена робочих станцій, на яких користувачеві дозволяється працювати. За звичай користувач може використовувати будь-яку робочу станцію. |
5.3 Журнал подій безпеки
Система дозволяє визначити, що буде розглядатися і записано в журнал подій безпеки щоразу, коли виконуються певні дії або здійснюється доступ до файлів. Елемент ревізії показує виконану дію, користувача, який виконав його, а також дату й час дії. Це дозволяє контролювати як успішні, так і невдалі спроби яких не будь дій.
Журнал подій безпеки для умов підприємства є обов'язковим, тому що у випадку спроби злому мережі можна буде відстежити джерело.
Таблиця 5.2 включає категорії подій, які можуть бути обрані для ревізії, а також події, що покриваються кожної категорією.
Таблиця 5.2
Категорії подій для ревізії
| Категорія | Події |
| Початок і кінець сеансу | Спроби початку сеансу, спроби кінця сеансу; створення й завершення мережевих з'єднань до сервера |
| Доступ до файлів і об'єктам | Доступи до каталогу або файлу, які встановлюються для ревізії в диспетчерові файлів; використання принтера, керування комп'ютером |
| Використання прав користувача | Успішне використання прав користувача й невдалі спроби використовувати права, не призначені користувачам |
| Керування користувачами й групами | Створення, видалення й модифікація облікових карток користувача й груп |
| Трасування процесу | Початок і зупинка процесів у комп'ютері |
Таблиця 5.3 показує типи доступу до каталогів і файлам, які можна перевірити.
| Доступ до каталогу відображення імен файлів у каталозі | Доступ до файлу відображення даних, збережених у файлі |
| Відображення атрибутів каталогу | Відображення атрибутів файлу |
Таблиця 5.3
| Зміна атрибутів каталогу | Відображення власника файлу й дозволів |
| Створення підкаталогів і файлів | Зміна файлу |
| Перехід у підкаталогах каталогу | Зміна атрибутів файлу |
| Відображення власника каталогу й дозволів | Запуск файлу |
| Видалення каталогу | Видалення файлу |
| Зміна дозволів каталогу | Зміна файлових дозволів |
| Зміна власника каталогу | Зміна власника файлу |
5.4 Права користувача
Права користувача визначають дозволені типи дій для цього користувача. Дії, регульовані правами, включають вхід у систему на локальний комп'ютер, вимикання, установку часу, копіювання й відновлення файлів сервера й виконання інших завдань.
Якщо група перебуває безпосередньо в домені, учасники мають права у всіх первинних і резервних контролерах домену. У кожній робочій станції Windows в кожному комп'ютері Windows Server, який не є контролером домену, надані права застосовуються тільки до цього єдиного комп'ютера.
Для кожного користувача підприємства обов'язково встановлюються свої права доступу до інформації, дозвіл на копіювання й відновлення файлів.
5.5 Установка пароля й політика облікових карток
Для домену можна визначити всі аспекти політики пароля: мінімальну довжину пароля ( за замовчуванням 6 символів), мінімальний і максимальний вік пароля ( за замовчуванням установлюється 14 і 30 днів) і винятковість пароля, який охороняє користувача від зміни його пароля на той пароль, який користувач використовував недавно ( за звичай повинен охороняти користувачів від повторного використання їх останніх трьох паролів).
Дається можливість також визначити й інші аспекти політики облікових карток:
- чи повинна відбуватися блокування облікової картки;
- чи повинні користувачі насильно відключатися від сервера після закінчення годин початку сеансу;
- чи повинні користувачі мати можливість входу в систему, щоб змінити свій пароль.
Коли дозволене блокування облікової картки, тоді облікова картка блокується у випадку декількох безуспішних спроб початку сеансу користувача, і не більш, ніж через певний період часу між будь-якими двома безуспішними спробами початку сеансу. Облікові картки, які заблоковані, не можуть бути використані для входу в систему. Блокування облікової картки обов'язково повинна бути встановлена в підприємство, що б запобігти спробам входу в систему.
Якщо користувачі примусово відключаються від серверів, коли час його сеансу минув, то вони одержують попередження саме перед кінцем установленого періоду сеансу. Якщо користувачі не відключаються від мережі, то сервер зробить відключення примусово. Однак відключення користувача від робочої станції не відбудеться. Годинник сеансу у фірмі встановлюватися не будуть, тому що в успішній діяльності зацікавлені всі співробітники й найчастіше деякі залишаються працювати надурочно або у вихідні дні.
Якщо від користувача потрібно змінити пароль, коли він цього не зробив при простроченому паролі, він не зможе змінити свій пароль. При простроченні пароля користувач повинен звернутися до адміністратора системи за допомогою в зміні пароля, щоб мати можливість знову входити в мережу. Якщо користувач не входив у систему, а час зміни пароля підійшов, то він буде попереджений про необхідність зміни, як тільки він буде входити. Зміна свого пароля буде дозволена не для всіх користувачів, у комп'ютерних класах буде заборонено міняти пароль, ця можливість буде тільки в адміністрації мережі.
6. Розрахунки витрат на створення мережі
6.1 Визначення вартості матеріальної частини мережі
Згідно із завданням дипломного проекту необхідно визначити собівартість і ціну локально-обчислювальної мережі агентства нерухомості. Для виконання розрахунку були використані початкові дані, представлені в таблиці 6.1.1
Таблиця 6.1
Початкові дані для розрахунку
| Найменування початкових даних | Показник | Джерело отримання |
| 1. Трудомісткість проектування мережі | 144 год. | Фактичні витрати часу на проектування мережі |
| 2. Місячна ставка системного адміністратора | 1800 грн. | Дані переддипломної практики |
| 3. Кількість годин в місяці | 144 год. | Розрахунок зроблений для травня місяця 2010 року, кількість робочих днів – 18 |
| 4. Додаткова зарплата (20 %) | 20 % | Дані переддипломної практики |
| 5. Відрахування до цільових соціальних фондів | 36,4 % | Дані переддипломної практики |
| 6. Загальвиробничі витрати (%) | 100 % | Дані переддипломної практики |
| 7. ПДВ (податок на додану вартість) | 20 % | Дані переддипломної практики |
Стаття 1. Сировина та матеріали - відсутні.
Стаття 2. Комплектуючі вироби (наведені у таблиці 6.1.2)
Таблиця 6.2
Перечень технічних засобів для проектування мережі
| Найменування | Кількість | Ціна, грн. | Сума, грн. |
| Сервер | 1 | 15000 | 15000 |
| Комп'ютер Без Програмного Забезпечення | 12 | 5000 | 60000 |
| Монітор | 12 | 1700 | 22100 |
| Принтер | 2 | 4500 | 9000 |
| Комутатор | 5 | 100 | 500 |
| Кабель (ціна за метр погонний) | 18 | 2 | 2900 |
| Коннектори RJ-45 | 36 | 0.50 | 18 |
| Фільтр мережевий | 12 | 40 | 480 |
| ОС ХР Pro SP2 | 12 | 1200 | 14400 |
| OC 2003S | 1 | 3500 | 3500 |
| NOD 32 Антивірус | 12 | 600 | 7200 |
| OFFICE 2007 | 12 | 1000 | 12000 |
| Разом | 146092 |
6.2 Визначення трудомісткості настроювання мережі
Таблиця 6.3
Трудомісткість робіт
| Зміст операції | Витрати часу( год) |
| 1. Закупка технічних засобів | 48 |
| 2. Перевірка окремих технічних засобів | 12 |
| 3. Монтажні роботи | 12 |
| 4. Встановлення устаткування | 16 |
| 5. Встановлення мережного ПО | 14 |
| 6. Запуск та тестування мережі | 12 |
| Підсумок | 144 |
6.3 Розрахунок витрат на організацію й обслуговування ЛОМ
Стаття 3. Основна заробітна плата:
, (6.1)
де
– годинна тарифна ставка оператора, грн.;
– кількість годин у місяці, приймається 144 год. – вихідні дані.
Визначаємо годинну тарифну ставку оператора:
, (6.2)
де
– місячна ставка оператора, грн.
, (6.3)
Визначаємо основну заробітну плату оператора:
, (6.4)
Стаття 4. Додаткова заробітна плата:
, (6.5)
де
– додаткова заробітна плата, грн.;
– відсоток додаткової заробітної плати, приймається 10 % – вихідні дані.
, (6.6)
Стаття 5. Відрахування в соціальні фонди:
, (6.7)
де
– відрахування в соціальні фонди, грн.;
– відсоток відрахувань у соціальні фонди, приймається 34,6% – вихідні дані.
, (6.8)
Стаття 6. Загальвиробничі витрати:
, (6.9)
де
– загальвиробничі витрати, грн.;
– відсоток загальвиробничих витрат, приймається 100% – вихідні дані.
, (6.10)
Розрахунок виробничої собівартості.
, (6.11)
,
Розрахунок прибутку підприємства.
, (6.12)
де
– прибуток підприємства, грн.;
– відсоток прибутку підприємства, приймається 10% – вихідні дані.
, (6.13)
Розрахунок ціни підприємства
, (6.14)
де
– ціна підприємства, грн.
, (6.15)
Визначення суми податок на додану вартість:
, (6.16)
де
– відсоток податку на додану вартість, приймається 20% – діюча ставка
на сучасний момент.
, (6.17)
Розрахунок ціни для замовника
, (6.18)
,
Таблиця 6.4
Планова калькуляція собівартості, ціни локально-обчислювальної мережі агентства нерухомості
| Статті калькуляції | Сума, грн. | |
| Стаття 1 Матеріали | _ | |
| Стаття 2 Комплектуючи вироби | 146092 | |
| Стаття 3 Основна заробітна плата | 1800 | |
| Стаття 4 Додаткова заробітна плата | 360 | |
| Стаття 5 Відрахування в соціальні фонди | 747,36 | |
| Стаття 6 Загальвиробничі витрати | 1800 | |
| Виробнича собівартість | 150799 | |
| Прибуток підприємства | 15080 | |
| Ціна підприємства | 165879 | |
| Податок на додану вартість | 33175,8 | |
| Ціна для замовника | 199055 | |
Таким чином розрахунок показав, що собівартість проекту «Організація локально-обчислювальної мережі агентства нерухомості» складає 150799 грн., якщо цей проект продаватиметься, то його ціна для споживача складе 199055 грн. При цьому з кожного екземпляра проданого проекту буде прибуток 15080 грн.
7. Охорона праці
1) Організації робочого місця користувача ПК
Встановлене устаткування: системний блок комп'ютера, монітор, необхідні периферійні пристрої.
Проводяться роботи, що по енергетичних витратах організму відносяться до легких фізичних робіт категорії 1а , при яких витрати енергії складають 139 Вт.
Зорова робота відноситься до категорії малої точності – 5 розряд зорової напруги, найменший розмір розпізнавання об'єкту від 1,0 до 5,0 мм.
Робоче місце, має розмір 3,5 х 3 х 3 м3 . Площа, виділена для робочого місця з відеотерміналом та персональною ПК складає 10,5м2 , а об’єм – 31,5 м3 , що відповідає санітарним нормам.
2) Організація охорони праці на підприємстві
Для функціонування системи управління охороною праці на виробництві роботодавець створює відповідні служби та призначає посадових осіб, затверджує інструкції про їх обов’язки, а також контролює їх дотримання; реалізує комплексні заходи та підвищення існуючого рівня охорони праці; організовує за свої кошти проведення попереднього та періодичних медичних оглядів; розробляє та затверджує відповідні положення з охорони праці, щорічні плани-графіки навчання та перевірки знань.
Визначено такі форми навчання: інструктажі, перевірка знань посадових осіб, підвищення кваліфікації, спеціальне навчання та перевірка знань.
На робочому місці проводять вступний, первинний, повторний, позаплановий та цільовий інструктажі.
Вступний інструктаж проводиться з працівниками, які щойно прийняті на роботу. Інструктаж проводить спеціаліст відділу охорони праці.
Первинний інструктаж проводиться на робочому місці до початку роботи з новоприйнятим працівником (постійно чи тимчасово) на підприємство; працівником, який буде виконувати нову для нього роботу.
Повторний інструктаж проводиться на робочому місці з усіма працівниками: на роботах з підвищеною небезпекою - 1 раз у квартал, на інших роботах - 1 раз на півріччя.
Позаплановий інструктаж проводиться з працівниками на робочому місці або в кабінеті охорони праці: при введенні в дію нових або переглянутих нормативних актів про охорону праці, а також при внесенні змін та доповнень до них; при зміні технологічного процесу, заміні або модернізації устаткування, приладів та інструментів.
Обсяг і зміст інструктажу визначається в кожному окремому випадку залежно від причин і обставин, що спричинили необхідність його проведення.
Цільовий інструктаж проводиться з працівниками при: виконанні разових робіт, що не пов'язані з безпосередніми обов'язками за фахом; ліквідації аварії, стихійного лиха; проведенні робіт, на які оформлюється наряд-допуск.
При проведенні первинного, повторного, позапланового інструктажів, стажування та допуску до роботи особа, яка проводила інструктаж, робить запис до журналу реєстрації інструктажів, з підписами інструктованого та інструктуючого.
Державний нагляд за додержанням законодавчих та нормативних актів з охорони праці здійснюють відповідні служби, а саме : державний комітет України по нагляду за охороною праці, державний комітет України з ядерної та радіаційної безпеки, органи державного пожежного нагляду управління пожежної охорони Міністерства з надзвичайних ситуацій, органи санітарно-епідеміологічної служби при МОЗ України.
Громадський контроль здійснюють професійні спілки, в особі своїх виборних представників, або уповноважені найманими працівниками особи у разі відсутності професійної спілки.
3) Причини травматизму та профзахворювань поділяються на групи, а саме: організаційні; технічні; санітарно-гігієнічні, психофізіологічні.
-Організаційні причини повністю залежать від рівня організації праці на підприємстві. Неякісне проведення навчання та інструктажу, невиконання інструкцій, відсутність контролю з боку посадових осіб. Все це, як правило, пов’язано з низькою виробничою дисципліною.
-На робочому місці застосовані технічні засоби які повинні захистити працівника від травматизму та профзахворювань, а саме:
-ізоляція та недоступність струмопровідних частин;
-прилади мають плавкі запобіжники для захисту ланцюга від короткого замикання.
-Санітарно-гігієнічні причини пов’язані з поганим освітленням, надмірним шумом та вібрацією, недодержання параметрів мікроклімату та інше.
-Психофізіологічні причини пов’язані з нервово-психічним перевантаженням, порушення ритму праці та відпочинку та інше. Проводяться медичні огляди раз на два роки у складі терапевта, невропатолога та офтальмолога.
4) Електробезпека – система організаційних і технічних заходів та засобів, що забезпечують захист людей від шкідливої і небезпечної дії електричного струму, електричної дуги, електричного поля і статичної електрики.
Електричний струм, проходячи через тіло людини, зумовлює перетворення поглинутої організмом електричної енергії в інші види і спричиняє термічну, електролітичну, механічну і біологічну дію.
На робочому місці виконуються наступні вимоги електробезпеки:
ПК, периферійні пристрої ПК та устаткування для обслуговування, електропроводи та кабелі за виконанням та ступенем захисту відповідають класу зони за ПВЕ, мають апаратуру захисту від струму короткого замикання та інших аварійних режимів.
Лінія електромережі для живлення ПК, периферійних пристроїв ПК та устаткування для обслуговування, виконана як окрема групова три провідна мережа, шляхом прокладання фазового, нульового робочого та нульового захисного провідників. Нульовий захисний провідник використовується для заземлення (занулення) електроприймачів.
Нульовий захисний провід прокладено від стійки групового розподільчого щита. Площа перерізу нульового робочого та нульового захисного провідника в груповій три провідній мережі є більшою площі перерізу фазового провідника. ПК, периферійні пристрої ПК та устаткування для обслуговування, підключаються до електромережі тільки з допомогою справних штепсельних з'єднань і електророзеток заводського виготовлення.
Штепсельні з'єднання та електророзетки крім контактів фазового та нульового робочого провідників мають спеціальні контакти для підключення нульового захисного провідника.
Електромережу штепсельних розеток для живлення персональних ПК, периферійних пристроїв ПК та устаткування прокладено по підлозі поряд зі стінами приміщення, в металевих трубах і гнучких металевих рукавах з відводами відповідно до затвердженого плану розміщення обладнання та технічних характеристик обладнання. Металеві труби та гнучкі металеві рукави заземлені.
Захисне заземлення включає заземлюючий пристрій і провідник, що з'єднує заземлюючий пристрій з обладнанням, яке заземлюється – заземлюючий провідник.
Занулення – це навмисне електричне з'єднання з нульовим захисним провідником металевих не струмопровідних частин, які можуть опинитись під напругою в результаті пошкодження ізоляції.
5) Заходи безпеки на робочому місці
-Перед початком роботи необхідно:
-впорядкувати робоче місце;
-очистити екран відео терміналу від пилу та інших забруднень;
-відрегулювати освітленість на робочому місці, упевнитись в відсутності відбиття на екрані;
-упевнитись в наявності захисного заземлення та підключення екранного провідника до корпусів системного блока, відео терміналу;
-включити комп’ютер.
Неприпустимими дії під час виконання роботи: зберігання біля відео термінала та ПК паперу, дискет, інших носіїв інформації; забороняється торкатися одночасно екрана монітора та клавіатури; торкатися задньої панелі системного блока при включеному живленні; переключати роз’єднувачі інтерфейсних кабелів периферійних пристроїв при включеному живленні; допускати потрапляння вологи на поверхню системного блоку, ВДТ, клавіатуру та інших пристроїв; самостійно відкривати та ремонтувати обладнання.
-Після закінчення роботи :
-вимкнути електроживлення ПК у порядку, який встановлений Інструкцією користувача ПК;
-від’єднати шнури електроживлення та кабелів від електромережі;
-вимкнути вилку силового кабелю з розетки;
-прибрати робоче місце .
-Аварійна ситуація:
-коротке замикання у мережі електроживлення обладнання з можливим загоранням;
-ураженням працівника електричним струмом.
При ураженні працівника електричним струмом відключити електромережу, звільнити потерпілого від контакту із струмовідними частинами, застосовуючи діелектричні захисні засоби.
Оживлення організму необхідно проводити до повного відновлення дихання потерпілим або до прибуття лікаря.
6) Санітарно-гігієнічні вимоги
Працівник, який працює з ПК, постійно перебуває під впливом небезпечних та шкідливих виробничих факторів: електромагнітних полів, інфрачервоного та іонізуючого випромінювань, шуму і вібрації, статичної електрики. Крім цього, працівник піддається значному розумовому та психоемоційному навантаженню, напрузі зорової та м’язової діяльності.
Впродовж робочої зміни передбачено перерви для відпочинку та вживання їжі (обідні перерви). Через кожні дві години роботи за ВДТ передбачається 15 хвилин на перерва для відпочинку очей. Для психологічного розвантаження працівників, що виконують роботи з обслуговуванням ПК, створена кімнатах психологічного розвантаження під час регламентованих перерв, або наприкінці робочого дня.
7) Мікроклімат робочої зони
Параметри мікроклімату, іонного складу повітря, вміст шкідливих речовин на робочому місці, оснащеному відеотерміналом, відповідають вимогам, що наведені у таблиці 7.1 та 7.2.
Таблиця 7.1
Нормовані параметри мікроклімату для приміщень з ПК
| Пора року | Температура повітря, °С, не більше | Відносна вологість повітря, % | Швидкість руху повітря, м/с |
| Холодна | 21 – 23 | 40 – 60 | 0,1 |
| Тепла | 22 – 24 | 40 – 60 | 0,1 |
Таблиця 7.2
Рівні іонізації повітря приміщень при роботі на ПК
| Рівні | Кількість іонів в 1 см3 повітря | |
| + п | – п | |
| Мінімально необхідні | 400 | 600 |
| Оптимальні | 1500 – 3000 | 3000 – 5000 |
| Максимально допустимі | 50000 | 50000 |
8) Ергономіка та виробнича естетика робочого місця
Організація робочого місця передбачає: правильне розташування робочого місця у виробничому приміщенні; вибір виробничих меблів; раціональне компонування комп’ютерного обладнання на робочому місці; урахування характеру та особливостей трудової діяльності.
Конструкція робочого місця користувача відео терміналу забезпечує підтримання оптимальної робочої пози з такими ергономічними характеристиками: ступні ніг - на підлозі або на підставці для ніг; стегна – в горизонтальній площині; передпліччя - вертикально; лікті - під кутом 70º–90º, до вертикальної площини; зап'ястя зігнуті під кутом не більше 20º, відносно горизонтальної площини, нахил голови – 15º–20º, відносно вертикальної площини.
Все вказане обладнання розміщується на основному робочому столі з лівого боку.
Висота робочої поверхні столу для відео терміналу 680–800мм, а ширина – забезпечує можливість виконання операцій в зоні досяжності моторного поля. Розміри столу: висота – 725мм, ширина – 600–1400мм, глибина – 800мм–1000мм. Робочий стіл для відео терміналу обладнаний підставкою для ніг шириною 400мм з можливістю регулювання по висоті. Підставка має рифлену поверхню та бортик на передньому краї заввишки 10 мм.
Робоче сидіння користувача відео терміналу та персональної ПК має такі основні елементи: сидіння, спинку та знімні підлокітники. Робоче сидіння є підйомно-поворотним, регулюється за висотою, кутом нахилу сидіння та спинки. Поверхня сидіння є плоскою, передній край -заокруглений.
Екран відео термінала розташовуються на оптимальній відстані від очей користувача (800 мм).
Розташування екрану відео терміналу забезпечує зручність зорового спостереження у вертикальній площині під кутом +30º від лінії зору працівника.
Клавіатура розміщена на спеціальній, регульованій за висотою, робочій поверхні окремо від столу на відстані 300мм від краю, ближчого до працівника. Кут нахилу клавіатури складає 10º.
Колір є найбільш ефективним засобом естетичного рівня виробничого інтер’єру. За допомогою кольору вирішуються питання: забезпечення психофізіологічного комфорту; емоційно-естетичний вплив на працівника.
На робочому місці стіни фарбують у світлий колір. Що сприяє працездатності працівника, зменшує втому очей.
9) Опалення та вентиляція
Приміщення обладнане системою опалення для підтримки температури повітря не нижче встановленої. Для приміщень з електронно-обчислювальною технікою передбачено центральне опалення. Застосовують кондиціювання на робочому місці, а також природне провітрювання.
10) Виробниче освітлення
Приміщення для обслуговування, ремонту та налагодження ПК має природне і штучне освітлення. Робоче місце з відео терміналом відносно світлових прорізів розміщується так, що природне світло падає збоку, переважно зліва, на відстані не менше 1 м від стін .
Природне світло проникає через бічні світлопрорізи, зорієнтовані на північ, і забезпечують коефіцієнт природної освітленості (КПО) не нижче 1,5 %. Вікна приміщення мають регулювальні пристрої для відкривання, а також жалюзі.
Загальне освітлення виконане у вигляді переривчатих ліній світильників, що розміщуються збоку від робочого місця, паралельно лінії зору працівника. На робочому місці застосовано світильники, що відносяться до класу Н (переважно прямого світла).
Яскравість світильників загального освітлення в зоні кутів випромінювання від 50º до 90º, відносно вертикалі в подовжній і поперечній площинах складає не більше 200 кд/м2 , а захисний кут світильників є не більшим 40º.
Рівень освітленості на робочому столі є в межах 500 лк. Світильники місцевого освітлення мають напівпрозорий відбивач світла з захисним кутом 40º.
11) Захист від випромінювань
Електромагнітне випромінювання монітора відповідає нормам, а саме: напруженість змінного електричного поля не перевищує 10 В/м на відстані 0,3 м від центру екрану та 1 В/м при 0,5 м навколо монітора; напруженість змінного магнітного поля не перевищує 200 мА/м на відстані 0,3 м від центру екрану та 20 мА/м при 0,5 м навколо монітора.
Гранично допустима напруженість електростатичного поля на робочих місцях не повинна перевищувати рівнів, наведених в ДГСТ.
12) Захист від шуму та вібрації
Рівні шуму під час виконання робіт з ПК у виробничому приміщенні не перевищують 60 дБ.
На робочому місці присутня незначна вібрація, яка гаситься за рахунок віброізоляції. Віброізоляція реалізовується за допомогою спеціальної прокладки під системний блок, що послаблює передачу вібрацій робочому столу.
13) Вимоги до персоналу
Усі працівники, які виконують роботи, пов'язані з експлуатацією, обслуговуванням ПК, підлягають обов'язковому медичному огляду – попередньому під час оформлення на роботу та періодичному на протязі трудової діяльності .
Посадові особи та спеціалісти, інші працівники підприємств, які організовують та виконують роботи, пов'язані з експлуатацією ПК, проходять підготовку (підвищення кваліфікації), перевірку знань з охорони праці та питань пожежної безпеки.
Допускати до роботи осіб, що в установленому порядку не пройшли навчання, інструктаж та перевірку знань з охорони праці та пожежної безпеки, забороняється.
Забороняється допускати осіб, молодших 18 років, до самостійних робіт в електроустановках та на електрообладнанні під час профілактичного обслуговування, налагодження, ремонту ПК .
До робіт з обслуговування ПК допускаються особи, що мають кваліфікаційну групу з електробезпеки не нижче П.
14) Протипожежний захист
Приміщення по вибухово-безпечній і протипожежній безпеці відноситься до категорії В.
Приміщення за ступенем вогнестійкості відноситься до 2 ступеню.
Протипожежний захист приміщення досягається застосуванням установок автоматичної пожежної сигналізації.
Система пожежної сигналізації складається з пожежних датчиків (пристроїв для формування сигналу про пожежу), які включені у сигнальну лінію (шлейф), приймально-контрольного приладу, ліній зв'язку.
Пожежні датчики перетворююсь прояви пожежі в електричний сигнал, який по лініях зв'язку надходить до контрольно-приймального приладу. Контрольно-приймальний прилад здійснює приймання інформації від пожежних датчиків, виробляє сигнал про виникнення пожежі чи несправності, передає цей сигнал.
На підприємстві застосовуються димові датчики, які реагують на аерозольні продукти горіння.
Як засіб пожежогасіння використовується вуглекислотний вогнегасник типу ВВ-2. Він знаходиться на видному місці та кріпиться на стіні спеціальним тримачем на висоті 1,5 м від підлоги.
На робочому місці можливі причини пожеж неелектричного і електричного характеру.
При прийнятті на роботу та щороку працівники проходять інструктаж з питань пожежної безпеки.
Висновок
На основі проведеної дипломної роботи була спроектована мережа, що забезпечує належну роботу агентства нерухомості. Був забезпечений високошвидкісний доступ до Інтернету. Також, побудова мережі із встановленням віртуальних мереж забезпечила зручний механізм для боротьби з несанкціонованим доступом до службової інформації та збільшення продуктивності мережі. Об’єднання користувачів на основі мережевих адрес у віртуальні мережі виявилось зручним апаратом для мереж невеликого розміру, що забезпечує вільне переміщення користувача в межах мережі.
Схема розташування мережі представлена в додатку Е.
З розвитком бездротових технологій в подальшому можливе використання Wi – Fi точок доступу, для забезпечення виходу в мережу Інтернет та організування бездротових віртуальних локальних мереж.
Також передбачена модернізація апаратної частини ПК, так як всі складові мають свій строк «служби». Подальша модернізація також може бути викликана розвитком програмного забезпечення, що потребують більш продуктивного апаратного забезпечення.
Список літератури
1. Олифер В.Г., Олифер Н.А. Компьютерные сети. Принципы, технологии, протоколы: Учебник для вузов. 2-е изд. – СПб.: изд. «Питер», 2004
2. Майкл Дж. Мартин Введение в сетевые технологии.: Пер. с англ. – М.: Изд-во «Лори», 2002
3. Андэрсон К., Минаси М. Локальные сети. Полное руководство: Пер. с англ. – К.:ВЕК+, М.: ЭНТРОП, СПб.: КОРОНА принт, 2001
4. Гук М. Аппаратные средства локальних сетей. Энциклопедия. – СПб.: Изд-во «Питер», 2000.
5. Вишняков В.М. Сучасні технології побудови комп'ютерних мереж:/Навчальний посібник. – К.: КНУБА, 2004. – 128 с.
6. Устинова Г.М. Информационные системы менеджмента. /Учебное пособие. – СПб.: «ДиаСофтЮП», 2000
7. Тригуб С.Н. Программа сетевой академии Cisco. Вспомогательное руководство,3-е изд., с испр.: Пер. с англ. – М.:Вильямс,2005. – 1168с.
8. Википедия — свободной энциклопедииСторінка http://ru.wikipedia.org/wiki/Ethernet
9. Государственная публичная научно-техническая библиотека России (ГПНТБ России) Сторінка http://www.gpntb.ru/win/book/5/Doc3.HTML
10. Проект "О СКС" Сторінка http://ockc.ru/?p=4672
11. Гигиенические требования к видеодисплейным терминалам, персональным электронно-вычислительным машинам и организации работы Сторінка http://iomas.vsau.ru/dosug/proza/htm/saninip1.shtml
12. Сервер Информационных Технологий – содержит море аналитической информации Сторінка http://www.citforum.ru/
13. Прайс – лист компанія ЄвроКомп www.eurocomp.dp.ua
14. Прайс – лист компанія Fotomag www.fotomag.com.ua
15. Електронне періодичне видання iXBT.com www.ixbtcom
Додаток А. План приміщень

Додаток Б Схема побудови мережі агентства нерухомості

Додаток В. Схема побудови мережі агентства нерухомості в приміщені

Додаток Г Організація робочого місця

Похожие рефераты:
Автоматизація доступу до каналів комп'ютерних мереж
Оптимальне управління діяльністю авіакопанії засобами гетерогенних комп’ютерних мереж
Несанкціоноване втручання в роботу комп'ютерів
Психолого-педагогічні аспекти комп’ютерного моделювання при вивченні розділу "Геометричної оптики"
Комп’ютерні мережі. Аналіз роботи і оптимізація
Віртуальний комп'ютер (система VMware)
Комп’ютеризація навчального процесу
Методика вивчення основних послуг Інтернет
Проект локальної мережі для школи
Загальна характеристика злочинів у сфері комп’ютерної інформації
Організація та методика проведення уроку з теми "Локальні мережі"
Загальні основи побудови комп'ютерних мереж
Електроніка та мікропроцесорна техніка
Психологічні основи застосування комп'ютерів у процесі навчання