| Похожие рефераты | Скачать .docx |
Дипломная работа: Проектирование "домашней" локальной сети
РЕФЕРАТ
Пояснительная записка к дипломному проекту: 120 страницы,15 рисунков, 31 таблица, 22 источника, 3 листа чертежей формата А1.
Объект исследований: «домашняя» локальная сеть.
Предмет исследования: локальная компьютерная сеть.
В первом разделе рассмотрены общие принципы построения локальных сетей, однораноговые и иерархические сети, дана характеристика базовым технологиям ЛВС, проанализированы существующие топологи и структура ЛВС, сделан обзор существующего сетевого оборудования, рассмотрены типы соединительных линий и выполнено описание сетевых операционных систем.
Во втором разделе выполнено описание програмно-аппаратного комплекса «домашней» локальной сети, проанализирована структура локальной сети, даны рекомендации по планированию информационной безопастности, произведен расчет длины кабельних сооружений, количества требуемого оборудования.
В третьем разделе выполнен экономический расчет объекта анализа, а именно расчет на создание проекта ЛВС, расчет материальных затрат, расчет капитальных затрат на создание ЛВС, расчет экономического эффекта от создания и эксплуатации ЛВС.
В четвертом разделе проведены расчеты вентиляции, естественного и искусственного освещения, полученные значения сопоставлены с нормативными.
Результаты проектирования могут быть использованы при проектировании «домашних» и офисных локальных сетей.
ВИТАЯ ПАРА, ИНТЕРНЕТ, IP-АДРЕС, КОНФИГУРАЦИЯ,
КОНЦЕНТРАТОР, ЛОКАЛЬНАЯ СЕТЬ, СЕРВЕР, ТОПОЛОГИЯ, ХАБ
СОДЕРЖАНИЕ
ПЕРЕЧЕНЬ УСЛОВНЫХ ОБОЗНАЧЕНИЙ, СИМВОЛОВ, ЕДИНИЦ, СОКРАЩЕНИЙ И ТЕРМИНОВ
ВВЕДЕНИЕ
1 ОСНОВНЫЕ ПОНЯТИЯ И ХАРАКТЕРИСТИКИ ЛОКАЛЬНЫХ ВЫЧИСЛИТЕЛЬНЫХ СЕТЕЙ
1.1 Общие принципы организации локальных сетей
1.2 Одноранговые и иерархические сети
1.3 Топологии локальных вычислительных сетей
1.4 Аппаратные средства локальных сетей
1.5 Технологии построения локальных компьютерных сетей
1.6 Сетевое программное обеспечение
1.6.1 Сетевые операционные системы
1.6.2 Средства удаленного администрирования
1.6.3 Сравнительный анализ антивирусного ПО
1.7 Адресация в локальных сетях
2 ПРОЕКТИРОВАНИЕ «ДОМАШНЕЙ» ЛОКАЛЬНОЙ СЕТИ
2.1 Постановка задачи
2.2 Выбор конфигурации вычислительной сети
2.3 Проектирование схемы вычислительной сети
2.4 Расчет длины кабеля
2.5 Планирование информационной безопасности
2 ЭКОНОМИЧЕСКИЙ РАСЧЕТ СТОИМОСТИ ОБЪЕКТА ПРОЕКТИРОВАНИЯ
3.1 Расчет затрат на создание проекта ЛВС
3.2 Расчет материальных затрат на создание проекта локальной сети
3.3 Использование сетевого оборудования
3.4 Расчет технологической себестоимости ЛВС
3.5 Расчет капитальных затрат на создание ЛВС
3.6 Затраты при эксплуатации ЛВС
3.7 Расчет экономического эффекта от создания и эксплуатации ЛВС
4 ОХРАНА ТРУДА
4.1 Производственный микроклимат
4.2 Производственное освещение
4.2.1 Расчет искусственного освещения
4.2.2 Расчет естественного освещения помещений
4.3 Расчет вентиляции
4.4 Организация отопления
4.5 Воздействие шума
4.6 Электромагнитные излучения
4.7 Электропожаробезопасность
4.8 Эргонометрические характеристики рабочего места
ВЫВОДЫ
Перечень ссылок
ПРИЛОЖЕНИЯ
ПЕРЕЧЕНЬ УСЛОВНЫХ ОБОЗНАЧЕНИЙ, СИМВОЛОВ, ЕДИНИЦ, СОКРАЩЕНИЙ И ТЕРМИНОВ
ГВС – глобальные вычислительные сети
ЛВС - локальная вычислительная сеть
ЛС – локальные сети
ПЗУ – постоянное запоминающее устройство
САПР - системы автоматизированного проектирования
СКС – система кабельных сетей
УФИ – ультрофиолетовое излучение
ВВЕДЕНИЕ
В дипломном проекте рассматривается тема «Проектирование «домашней» локальной сети».
Объектом исследования является «домашняя» локальная сеть.
Предметом исследования является локальная компьютерная сеть.
Целью дипломного проекта является изучение аппаратных и программных средств для построения локальной сети. Для реализации данной цели требуется решить следующие задачи:
- произвести обзор аппаратных средств используемых для проектирования «домашней» локальной сети;
- рассмотреть программные средства «домашней» локальной сети;
- произвести выбор сетевого оборудования;
- осуществить проектирование схемы прокладки кабеля.
При построении локальных сетей очень важно умение разбираться в оборудовании необходимом для организации сети, архитектуре и существующих технологиях сети.
Актуальность проекта состоит в том, что данная локальная сеть является единственно возможным средством для организации эффективного функционирования «домашней» локальной сети. Данная локальная сеть проектируется с целью совместного использования общих ресурсов, таких как Интернет.
Теоретическая значимость состоит в анализе существующих технологий и применений одной из них для реализации на практике.
Этапы проектирования:
- анализ вариантов построения локальной сети;
- подбор оборудования по принципу «минимальная цена - качество»;
- осуществить подбор программного обеспечения сети;
- рассмотреть вопросы защиты и возможных угроз локальной сети;
- рассмотреть вопросы администрирования «домашней» локальной сети;
- произвести экономический расчет стоимости проектируемой сети;
- рассмотреть вопросы охраны труда на рабочих местах работников, обслуживающих локальную сеть.
Практическая значимость состоит в реализации на практике мер по проектированию, монтажу и настройке доступа к общим ресурсам локальной сети, таким как совместное использование Интернета, обновление программного обеспечения для удобства пользования и защиты локальной сети.
1 ОСНОВНЫЕ ПОНЯТИЯ И ХАРАКТЕРИСТИКИ ЛОКАЛЬНЫХ ВЫЧИСЛИТЕЛЬНЫХ СЕТЕЙ
1.1 Общие принципы организации локальных сетей
Компьютерной сетью можно считать соединение двух и более компьютеров с помощью кабеля или телефонной линии и модема, при котором становится возможен обмен данными между ними. Компьютеры, расположенные в одном помещении или здании и связанные между собой, называют локальной компьютерной сетью (LAN - Local Area Network). Количество компьютеров, подключенных к такой сети, ограничивается возможностями применяемой кабельной системы и сетевого оборудования. Несколько локальных компьютерных сетей при объединении образуют кампусную сеть (CAN - Campus Area Network), например, локальные сети расположенных по соседству зданий или корпусов одного предприятия или учебного заведения. MAN (Metropolitan Area
Network) - сеть уже городского масштаба, к которой могут быть подключены несколько кампусных или локальных сетей предприятий и организаций. WAN (Wide Area Network) - широкомасштабная сеть, охватывающая, например, несколько городов, область или край.
CAN (Global Area Network) - глобальная компьютерная сеть - это объединение нескольких широкомасштабных компьютерных сетей, например, в масштабе страны. И, наконец, сетью всех сетей является Интернет, в состав которого входят Всемирная Компьютерная Паутина (World Wide Web), система электронной почты и другие системы хранения и передачи информации.
Сеть — группа компьютеров, соединенных друг с другом с помощью специального оборудования, обеспечивающего обмен информацией между ними. Соединение между двумя компьютерами может быть непосредственным (двухточечное соединение) или с использованием дополнительных узлов связи.
Компьютерные сети представляют собой магистральные информационные структуры, состоящие из логического и физического уровней или составляющих, основным назначением которых является обмен информацией.
Физический уровень представлен компонентами сети, обеспечивающими физическое соединение между компьютерами. Такими компонентами, как правило, являются: сетевой интерфейс (сетевая карта или плата сетевого адаптера, стандартный или расширенный коммуникационный или параллельный порт или мультипортовая плата), сетевая среда передачи данных (кабель коаксиальный, двухпроводный т.н. витая пара или оптоволоконный) и узловые элементы (маршрутиризаторы, концентраторы, повторители (репитеры, хабы (hub)), переключатели (switch)) и конечные элементы (терминаторы, коннекторы, разъемы, заглушки).
Эра сетевых взаимоотношений между персональными компьютерами начиналась с простого обмена данными по коммуникационным портам (COM) двух компьютерных систем с различной архитектурой, процессорами и, конечно, операционными системами (например, VMS и IBM-PC/XT) при помощи специально предназначенных программ, управление которыми синхронизировалось вручную, а скорость передачи данных едва достигала 1К в секунду. Сейчас можно наблюдать четкое структурирование сетей на локальные и глобальные, процесс интегрирования первых во вторые, где сети с числом компьютеров в несколько сотен все еще считаются локальными, а глобальные насчитывают десятки тысяч подключенных компьютерных систем. Скорости обмена информацией достигают 200 Мбит/с, а 10Мбит/с - считается базовой начальной и низкостоимостной конфигурацией. Теперь компьютерные сети позволяют не только передать или принять информацию в прямом смысле этого понятия, но и дают множество сервисных возможностей, перечень которых постоянно расширяется. Это и удаленное администрирование, распределенные файловые системы, удаленное выполнение программ, электронная почта, удаленная печать, распределенные базы данных, системы удаленного доступа и распределенные системы управления, поисковые системы, телеконференции и многое другое.
Как уже было сказано, сети подразделяются на локальные и глобальные, но это, не единственная их классификация. Они делятся и на одноранговые и многоранговые, однопользовательские и многопользовательские, открытые и закрытые и прочие. Среди всего многообразия классификаций рассматриваются наиболее важные и часто используемые. Большинство классификационных принципов подразделения сетей на категории и виды основаны на видах и типах программного обеспечения. Иными словами, на одной и той же физической основе можно сформировать сети разных видов типов и классов.
Компьютер, который подключен к сети, называется рабочей станцией (Workstation). Компьютеры используются и в качестве управляющих центров в сети и как накопители информации. Такие компьютеры называют серверами. Если компьютеры расположены сравнительно недалеко друг от друга и соединены с помощью высокоскоростных сетевых адаптеров, то такие сети называются локальными. При использовании локальной сети компьютеры, как правило, расположены в пределах одной комнаты, здания или в нескольких близко расположенных домах. Локальная компьютерная сеть, как правило, объединяет не более сотни компьютерных систем, принадлежащих какой-либо одной структуре, и носит корпоративный характер, как по ее эксплуатации, так и по характеру системного программного обеспечения.
Принципы организации и протоколы программного обеспечения локальных и глобальных компьютерных систем могут быть как различными, так и абсолютно одинаковыми. Поэтому, нельзя относить сеть к локальной или глобальной только по признаку типа сетевого взаимодействия и базового программного обеспечения. Все сети, в том числе и глобальные, делят на коммерческие - доступ в которые и услуги сервисных служб которых платные, и некоммерческие - т.е. "условно бесплатные". Условно, означает, что какую-то плату за подключение и использование сетевых служб, а также эксплуатацию систем связи, пользователь все-таки вносит, но она несоизмеримо меньше, нежели в коммерческих системах. Коммерческие сети поддерживаются профессиональными организациями, существующими с целью предоставления сетевых услуг, и существуют с этой же целью - предоставление высококачественного коммерческого сетевого сервиса. Некоммерческие, как правило, поддерживаются на добровольных началах образовательными и информационными структурами и организациями общественного характера, не имеют четкой организации, единого управления, целенаправленного структурирования и стратегии развития.
1.2 Одноранговые и иерархические сети
Компьютерные сети, в зависимости от роли каждого конкретного подключенного к сети компьютера, делятся на два вида:
- одноранговые;
- иерархические.
В одноранговой сети все компьютеры имеют равные права, и каждый пользователь делает доступными или недоступными для общего использования ресурсы своего компьютера: файлы, принтеры и т.п. В такой сети компьютеры находят друг друга по имени или по уникальному адресу и этого оказывается достаточно для нормальной работы сети.
В иерархической сети права доступа отдельного компьютера к сетевым ресурсам и адресация, т.е. присвоение каждому конкретному компьютеру, входящему в сеть, уникального адреса, регулируется выделенным сервером. Сервер, с помощью специальных программных средств, следит за тем, чтобы адреса в сети не повторялись, и чтобы информация, посланная с одного компьютера, попала адресату и была недоступна другим пользователям сети. Управление правами доступа и распределение сетевых адресов называется администрированием и выполняется специалистами - сетевыми администраторами.
Если компьютер предоставляет свои ресурсы другим пользователям сети, то он играет роль сервера. При этом компьютер, обращающийся к ресурсам другой машины, является клиентом. Как уже было сказано, компьютер, работающий в сети, может выполнять функции либо клиента, либо сервера, либо совмещать обе эти функции.
Если выполнение каких-либо серверных функций является основным назначением компьютера (например, предоставление файлов в общее пользование всем остальным пользователям сети или организация совместного использования факса, или предоставление всем пользователям сети возможности запуска на данном компьютере своих приложений), то такой компьютер называется выделенным сервером. В зависимости от того, какой ресурс сервера является разделяемым, он называется файл-сервером, факс-сервером, принт-сервером, сервером приложений и т.д.
Очевидно, что на выделенных серверах желательно устанавливать ОС, специально оптимизированные для выполнения тех или иных серверных функций. Поэтому в сетях с выделенными серверами чаще всего используются сетевые операционные системы, в состав которых входит нескольких вариантов операционных систем, отличающихся возможностями серверных частей. Например, сетевая операционная система Novell NetWare имеет серверный вариант, оптимизированный для работы в качестве файл-сервера, а также варианты оболочек для рабочих станций с различными локальными операционными системами, причем эти оболочки выполняют исключительно функции клиента. Другим примером операционная система, ориентированной на построение сети с выделенным сервером, является операционная система Windows NT (была разработана на основе сетевой ОС Unix). В отличие от Net Ware, оба варианта данной сетевой ОС - Windows NT Server (для выделенного сервера) и Windows NT Workstation (для рабочей станции) - могут поддерживать функции и клиента и сервера. Но серверный вариант Windows NT имеет больше возможностей для предоставления ресурсов своего компьютера другим пользователям сети, так как может выполнять более широкий набор функций, поддерживает большее количество одновременных соединений с клиентами, реализует централизованное управление сетью, имеет более развитые средства защиты.
Выделенный сервер не принято использовать в качестве компьютера для выполнения текущих задач, не связанных с его основным назначением, так как это может уменьшить производительность его работы как сервера. В связи с такими соображениями в операционной системе Novell NetWare на серверной части возможность выполнения обычных прикладных программ вообще не предусмотрена, то есть сервер не содержит клиентской части, а на рабочих станциях отсутствуют серверные компоненты. Однако в других сетевых ОС функционирование на выделенном сервере клиентской части вполне возможно. Например, под управлением Windows NT Server могут запускаться обычные программы локального пользователя, которые могут потребовать выполнения клиентских функций ОС при появлении запросов к ресурсам других компьютеров сети. При этом рабочие станции, на которых установлена ОС Windows NT Workstation, могут выполнять функции невыделенного сервера.
Несмотря на то, что в сети с выделенным сервером все компьютеры в общем случае могут выполнять одновременно роли и сервера, и клиента, эта сеть функционально не симметрична: аппаратно и программно в ней реализованы два типа компьютеров - одни, в большей степени ориентированные на выполнение серверных функций и работающие под управлением специализированных серверных ОС, а другие в основном выполняющие клиентские функции и работающие под управлением соответствующего этому назначению варианта ОС. Функциональная несимметричность, как правило, вызывает и несимметричность аппаратуры - для выделенных серверов используются более мощные компьютеры с большими объемами оперативной и внешней памяти. Таким образом, функциональная несимметричность в сетях с выделенным сервером сопровождается несимметричностью операционных систем (специализация ОС) и аппаратной несимметричностью (специализация компьютеров).
В одноранговых сетях все компьютеры равны в правах доступа к ресурсам друг друга. Каждый пользователь может по своему желанию объявить какой-либо ресурс своего компьютера разделяемым, после чего другие пользователи могут его эксплуатировать. В таких сетях на всех компьютерах устанавливается одна и та же ОС, которая предоставляет всем компьютерам в сети потенциально равные возможности. Одноранговые сети могут быть построены, например, на базе ОС LANtastic, Personal Ware, Windows for Workgroup, Windows NT Workstation.
В одноранговых сетях также может возникнуть функциональная несимметричность: одни пользователи не желают разделять свои ресурсы с другими, и в таком случае их компьютеры играют роль клиента, за другими компьютерами администратор закрепил только функции по организации совместного использования ресурсов, а значит они являются серверами, в третьем случае, когда локальный пользователь не возражает против использования его ресурсов и сам не исключает возможности обращения к другим компьютерам, ОС, устанавливаемая на его компьютере, должна включать и серверную, и клиентскую части. В отличие от сетей с выделенными серверами, в одноранговых сетях отсутствует специализация ОС в зависимости от преобладающей функциональной направленности - клиента или сервера. Все вариации реализуются средствами конфигурирования одного и того же варианта ОС.
Одноранговые сети проще в организации и эксплуатации, однако, они применяются в основном для объединения небольших групп пользователей, не предъявляющих больших требований к объемам хранимой информации, ее защищенности от несанкционированного доступа и к скорости доступа. При повышенных требованиях к этим характеристикам более подходящими являются многоранговые сети, где сервер лучше решает задачу обслуживания пользователей своими ресурсами, так как его аппаратура и сетевая операционная система специально спроектированы для этой цели.
1.3 Топологии локальных вычислительных сетей
Компьютеры и другие компоненты локальной сети могут соединяться между собой различными способами. Используемая схема физического расположения сетевых компонентов называется топологией (Topology). Топология сети определяется геометрической фигурой, образованной линиями связи между компьютерами, или физическим расположением по отношению друг к другу компьютеров, связанных между собой. Топология сети может служить одной из характеристик для сравнения и классификации различных компьютерных сетей.
Выделяют пять видов топологии сети:
- общая шина;
- звезда;
- кольцо;
- ячеистая;
- смешанная.
В случае использования общей шины все компьютеры подключаются к одному кабелю, который называется шиной данных. При этом пакет будет приниматься всеми компьютерами, которые подключены к данному сегменту сети.
Быстродействие сети во многом определяется числом подключенных к общей шине компьютеров. Чем больше таких компьютеров, тем медленнее работает сеть. Кроме того, подобная топология может стать причиной разнообразных коллизий, которые возникают, когда несколько компьютеров одновременно пытаются передать информацию в сеть. Коллизия - нормальное явление, которое появляется при работе сети. Чтобы проанализировать и устранить коллизию, все компьютеры одновременно изучают возникающие на кабеле сигналы. Если сигналы, которые передаются и реально наблюдаются, не совпадают, то отмечается присутствие коллизии. Те компьютеры, которые заметили коллизию, отправляют в сеть 32-битную последовательность, которая называется jam-последовательностью. Вероятность появления коллизии возрастает с увеличением количества подключенных к шине компьютеров.

Рисунок 1.1 - Топология с «общей шиной»
Чтобы предотвратить отражение электрических сигналов, на каждом конце кабеля устанавливают терминаторы (terminators), поглощающие эти сигналы. Все концы сетевого кабеля должны быть к чему-нибудь подключены, например к компьютеру или к баррел-коннектору — для увеличения длины кабеля. К любому свободному — неподключенному — концу кабеля должен быть подсоединен терминатор, чтобы предотвратить отражение электрических сигналов (Рисунок 1.2).

Рисунок 1.2 – Подключение терминаторов
Преимуществами использования сетей с топологией «общая шина» являются значительная экономия кабеля, а так же простота создания и управления.
Недостатками - вероятность появления коллизий при увеличении числа компьютеров в сети, обрыв кабеля приведет к отключению множества компьютеров, низкий уровень защиты передаваемой информации. Любой компьютер может получить данные, которые передаются по сети.
При использовании звездообразной топологии каждый кабельный сегмент, идущий от любого компьютера сети, будет подключаться к центральному коммутатору или концентратору. Все пакеты будут транспортироваться от одного компьютера к другому через это устройство. Допускается использование как активных, так и пассивных концентраторов. В случае разрыва соединения между компьютером и концентратором остальная сеть продолжает работать. Если же концентратор выйдет из строя, то сеть работать перестанет. С помощью звездообразной структуры можно подключать друг к другу даже локальные сети.

Рисунок 1.3 - Топология «Звезда»
Использование данной топологии удобно при поиске поврежденных элементов: кабеля, сетевых адаптеров или разъемов. «Звезда» намного удобнее «общей шины» и в случае добавления новых устройств. Следует учесть и то, что сети со скоростью передачи 100 и 1000 Мбит/с построены по топологии «звезда».
Если в самом центре «звезды» расположить концентратор, то логическая топология изменится на «общую шину».
Преимуществами «звезды» является простота создания и управления, высокий уровень надежности сети, высокая защищенность информации, которая передается внутри сети (если в центре звезды расположен коммутатор).
Основной недостаток — поломка концентратора приводит к прекращению работы всей сети.
В случае использования кольцевой топологии все компьютеры сети подключаются к единому кольцевому кабелю. Пакеты проходят по кольцу в одном направлении через все сетевые платы подключенных к сети компьютеров. Каждый компьютер будет усиливать сигнал, и отправлять его дальше по кольцу. Сеть с такой топологией изображена на следующем рисунке.
В представленной топологии передача пакетов по кольцу организована маркерным методом. Маркер представляет собой определенную последовательность двоичных разрядов, содержащих управляющие данные. Если сетевое устройство имеет маркер, то у него появляется право на отправку информации в сеть. Внутри кольца может передаваться всего один маркер.
Компьютер, который собирается транспортировать данные, забирает маркер из сети и отправляет запрошенную информацию по кольцу. Каждый следующий компьютер будет передавать данные дальше, пока этот пакет не дойдет до адресата. После получения адресат вернет подтверждение о получении компьютеру-отправителю, а последний создаст новый маркер и вернет его в сеть.
Преимущества кольцевой топологии состоят в том что большие объемы данных обслуживаются эффективнее, чем в случае с общей шиной, каждый компьютер является повторителем: он усиливает сигнал перед отправкой следующей машине, что позволяет значительно увеличить размер сети, возможность задать различные приоритеты доступа к сети; при этом компьютер, имеющий больший приоритет, сможет дольше задерживать маркер и передавать больше информации.

Рисунок 1.4 - Топология «Кольцо»
К недостаткам можно отнести тот факт что обрыв сетевого кабеля приводит к неработоспособности всей сети, произвольный компьютер может получить данные, которые передаются по сети.
Данная топология подразумевает подключение каждого компьютера через отдельный кабель ко всем остальным компьютерам, находящимся в сети. Применение этого метода позволяет использовать дополнительные пути транспортировки данных. В случае обрыва какого-либо кабеля поток данных пойдет по другому пути, а сеть сможет нормально функционировать далее. Такая топология характерна для глобальных сетей и объединения нескольких удаленных сетей с применением оптоволоконных, выделенных или спутниковых каналов связи. Для локальных сетей данная топология не используется, так как требует присутствия одновременно нескольких сетевых интерфейсов на одной машине и больших объемов кабеля.
К преимуществам ячеистой топологии относят эффективную работу с большими потоками данных, высокий уровень стабильности сети из-за использования дополнительных каналов связи, высокий уровень безопасности; поток информации идет от компьютера-отправителя к получателю напрямую, что теоретически исключает перехват данных.

Рисунок 1.5 - «Ячеистая» топология
К недостаткам - потребность в наличии нескольких сетевых интерфейсов на компьютерах, входящих в сеть, большая стоимость организации сети.
Смешанная топология соединяет в себе две или более топологии, образуя тем самым завершенную сетевую структуру. На данный момент такая сеть является самой распространенной; наиболее часто объединяют звездообразную и шинную топологии.
При использовании топологии «звезда-шина» несколько сетей, имеющих звездообразную топологию, подключены к одной шине.

Рисунок 1.6 - Сеть с топологией «звезда-шина»
В данной топологии сбой на одном из компьютеров совершенно не отразится на работе сети в целом. Если же произойдет ошибка центрального компонента (концентратора), к которому подключаются компьютеры «звезды», то все они не смогут больше поддерживать связь.
В топологии «звезда-кольцо» компьютеры подключаются к центральному компоненту, как в звездообразной сети. При этом сами компоненты объединены сетью с кольцевой топологией.
Точно так же, как и в предыдущем случае, сбой одного из компьютеров сети не отразится на ее работе.

Рисунок 1.7 - Сеть с топологией «звезда-кольцо»
Сравнительный анализ топологий локально-вычислительных сетей представлен в Приложении А.
1.4 Аппаратные средства локальных сетей
В самом простом случае для работы сети достаточно сетевых карт и кабеля. Если же необходимо создать достаточно сложную сеть, то понадобится специальное сетевое оборудование.
Компьютеры внутри локальной сети соединяются с помощью кабелей, которые передают сигналы. Кабель, соединяющий два компонента сети (например, два компьютера), называется сегментом. Кабели классифицируются в зависимости от возможных значений скорости передачи информации и частоты возникновения сбоев и ошибок. Наиболее часто используются кабели трех основных категорий:
- витая пара;
- коаксиальный кабель;
- оптоволоконный кабель.

Рисунок 1.8 - Кабель с витыми парами
Для построения локальных сетей сейчас наиболее широко используется витая пара. Внутри такой кабель состоит из двух или четырех пар медного провода, перекрученных между собой. Витая пара также имеет свои разновидности: UTP (Unshielded Twisted Pair — неэкранированная витая пара) и STP (Shielded Twisted Pair — экранированная витая пара). Эти разновидности кабеля способны передавать сигналы на расстояние порядка 100 м. Как правило, в локальных сетях используется именно UTP. STP имеет плетеную оболочку из медной нити, которая имеет более высокий уровень защиты и качества, чем оболочка кабеля UTP. В кабеле STP каждая пара проводов дополнительно экранирована (она обернута слоем фольги), что защищает данные, которые передаются, от внешних помех. Такое решение позволяет поддерживать высокие скорости передачи на более значительные расстояния, чем в случае использования кабеля UTP. Витая пара подключается к компьютеру с помощью разъема RJ-45 (Registered Jack 45), который очень напоминает телефонный разъем RJ-11 (Registered Jack 11).
Витая пара способна обеспечивать работу сети на скоростях 10, 100 и 1000 Мбит/с.

Рисунок 1.9 - Коаксиальный кабель
Коаксиальный кабель состоит из медного провода, покрытого изоляцией, экранирующей металлической оплеткой и внешней оболочкой. По центральному проводу кабеля передаются сигналы, в которые предварительно были преобразованы данные. Такой провод может быть как цельным, так и многожильным. Для организации локальной сети применяются два типа коаксиального кабеля: ThinNet. (тонкий, 10Base2) и ThickNet (толстый, 10Base5). В данный момент локальные сети на основе коаксиального кабеля практически не встречаются. Скорость передачи информации в такой сети не превышает 10 Мбит/с. Обе разновидности кабеля, ThinNet и ThickNet, подключаются к разъему BNC, а на обоих концах кабеля должны быть установлены терминаторы.
В основе оптоволоконного кабеля находятся оптические волокна (световоды), данные по которым передаются в виде импульсов света. Электрические сигналы по оптоволоконному кабелю не передаются, поэтому сигнал нельзя перехватить, что практически исключает несанкционированный доступ к данным. Оптоволоконный кабель используют для транспортировки больших объемов информации на максимально доступных скоростях. Главным недостатком такого кабеля является его хрупкость: его легко повредить, а монтировать и соединять можно только с помощью специального оборудования.
Сетевые карты делают возможным соединение компьютера и сетевого кабеля. Сетевая карта преобразует информацию, которая предназначена для отправки, в специальные пакеты. Пакет — логическая совокупность данных, в которую входят заголовок с адресными сведениями и непосредственно информация. В заголовке присутствуют поля адреса, где находится информация о месте отправления и пункте назначения данных. Сетевая плата анализирует адрес назначения полученного пакета и определяет, действительно ли пакет направлялся данному компьютеру. Если вывод будет положительным, то плата передаст пакет операционной системе. В противном случае пакет обрабатываться не будет. Специальное программное обеспечение позволяет обрабатывать все пакеты, которые проходят внутри сети. Такую возможность используют системные администраторы, когда анализируют работу сети, и злоумышленники для кражи данных, проходящих по ней. Любая сетевая карта имеет индивидуальный адрес, встроенный в ее микросхемы. Этот адрес называется физическим, или МАС- адресом (Media Access Control — управление доступом к среде передачи). Порядок действий, совершаемых сетевой картой, следующий. Получение информации от операционной системы и преобразование ее в электрические сигналы для дальнейшей отправки по кабелю. Получение электрических сигналов по кабелю и преобразование их обратно в данные, с которыми способна работать операционная система. Определение, предназначен ли принятый пакет данных именно для этого компьютера. Управление потоком информации, которая проходит между компьютером и сетью.
Все чаще сетевые карты интегрируются в материнскую плату и подключаются к южному мосту. Процессор связывается с южным мостом, и всем оборудованием, что к нему подключено, через северный мост.
Локальная сеть может быть расширена за счет использования специального устройства, которое носит название «репитер» (Repeater — повторитель). Его основная функция состоит в том, чтобы, получив данные на одном из портов, перенаправить их на остальные порты. Данные порты могут быть произвольного типа: RJ-45 или Fiber-Optic.
Повторители могут выполнять функцию разделения. Если повторитель определяет, что на каком-то из портов происходит слишком много коллизий, он делает вывод, что на этом сегменте произошла неполадка, и изолирует его. Данная функция предотвращает распространение сбоев одного из сегментов на всю сеть.
Повторитель позволяет:
- соединять два сегмента сети с одинаковыми или различными видами кабеля;
- регенерировать сигнал для увеличения максимального расстояния его передачи;
- передавать поток данных в обоих направлениях.
Концентратор — устройство, способное объединить компьютеры в физическую звездообразную топологию. Концентратор имеет несколько портов, позволяющих подключить сетевые компоненты. Концентратор, имеющий всего два порта, называют мостом. Мост необходим для соединения двух элементов сети.
Сеть вместе с концентратором представляет собой «общую шину». Пакеты данных при передаче через концентратор будут доставлены на все компьютеры, подключенные к локальной сети.
Существует два вида концентраторов:
- пассивные концентраторы. Такие устройства отправляют полученный сигнал без его предварительной обработки.
- активные концентраторы (многопортовые повторители). Принимают входящие сигналы, обрабатывают их и передают в подключенные компьютеры.
Коммутаторы необходимы для организации более тесного сетевого соединения между компьютером-отправителем и конечным компьютером. В процессе передачи данных через коммутатор в его память записывается информация о МАС- адресах компьютеров.
При получении коммутатором пакетов данных он создает специальное внутреннее соединение (сегмент) между двумя своими портами, используя таблицу маршрутизации. Затем отправляет пакет данных в соответствующий порт конечного компьютера, опираясь на информацию, описанную в заголовке пакета.
Коммутатор предоставляет следующие возможности:
- послать пакет с данными с одного компьютера на конечный компьютер;
- увеличить скорость передачи данных.
Маршрутизатор по принципу работы напоминает коммутатор, однако имеет больший набор функциональных возможностей. Транспортируя информацию между различными сегментами сети, маршрутизаторы анализируют заголовок пакета и стараются вычислить оптимальный путь перемещения данного пакета. Маршрутизатор способен определить путь к произвольному сегменту сети, используя информацию из таблицы маршрутов, что позволяет создавать общее подключение к Интернету или глобальной сети.
Маршрутизаторы позволяют произвести доставку пакета наиболее быстрым путем, что позволяет повысить пропускную способность больших сетей. Если какой-то сегмент сети перегружен, поток данных пойдет по другому пути. В качестве простого маршрутизатора может быть использован обыкновенный компьютер.
1.5 Технологии построения локальных компьютерных сетей
Сетевая технология – это минимальный набор стандартных протоколов и реализующих их программно-аппаратных средств, достаточный для построения вычислительной сети. Сетевые технологии называют базовыми технологиями. В настоящее время насчитывается огромное количество сетей, имеющих различные уровни стандартизации, но широкое распространение получили такие известные технологии, как Ethernet, Token-Ring, Arcnet.
Для обеспечения согласованной работы в сетях передачи данных используются различные коммуникационные протоколы передачи данных – наборы правил, которых должны придерживаться передающая и принимающая стороны для согласованного обмена данными. Протоколы – это наборы правил и процедур, регулирующих порядок осуществления некоторой связи. Протоколы – это правила и технические процедуры, позволяющие нескольким компьютерам при объединении в сеть общаться друг с другом.
Существует множество протоколов. И хотя все они участвуют в реализации связи, каждый протокол имеет различные цели, выполняет различные задачи, обладает своими преимуществами и ограничениями.
Протоколы работают на разных уровнях модели взаимодействия открытых систем OSI/ISO. Функции протоколов определяются уровнем, на котором он работает. Несколько протоколов могут работать совместно. Это так называемый стек, или набор, протоколов.
Как сетевые функции распределены по всем уровням модели OSI, так и протоколы совместно работают на различных уровнях стека протоколов. Уровни в стеке протоколов соответствуют уровням модели OSI. В совокупности протоколы дают полную характеристику функций и возможностей стека.
Передача данных по сети, с технической точки зрения, должна состоять из последовательных шагов, каждому из которых соответствуют свои процедуры или протокол. Таким образом, сохраняется строгая очередность в выполнении определенных действий.
Кроме того, все эти действия должны быть выполнены в одной и той же последовательности на каждом сетевом компьютере. На компьютере-отправителе действия выполняются в направлении сверху вниз, а на компьютере-получателе снизу вверх.
Компьютер-отправитель в соответствии с протоколом выполняет следующие действия: Разбивает данные на небольшие блоки, называемыми пакетами, с которыми может работать протокол, добавляет к пакетам адресную информацию, чтобы компьютер-получатель мог определить, что эти данные предназначены именно ему, подготавливает данные к передаче через плату сетевого адаптера и далее – по сетевому кабелю.
Компьютер-получатель в соответствии с протоколом выполняет те же действия, но только в обратном порядке: принимает пакеты данных из сетевого кабеля; через плату сетевого адаптера передает данные в компьютер; удаляет из пакета всю служебную информацию, добавленную компьютером-отправителем, копирует данные из пакета в буфер – для их объединения в исходный блок, передает приложению этот блок данных в формате, который оно использует.
И компьютеру-отправителю, и компьютеру-получателю необходимо выполнить каждое действие одинаковым способом, с тем чтобы пришедшие по сети данные совпадали с отправленными.
Если, например, два протокола будут по-разному разбивать данные на пакеты и добавлять информацию (о последовательности пакетов, синхронизации и для проверки ошибок), тогда компьютер, использующий один из этих протоколов, не сможет успешно связаться с компьютером, на котором работает другой протокол.
До середины 80-ых большинство локальных сетей были изолированными. Они обслуживали отдельные компании и редко объединялись в крупные системы. Однако, когда локальные сети достигли высокого уровня развития и объем передаваемой ими информации возрос, они стали компонентами больших сетей. Данные, передаваемые из одной локальной сети в другую по одному из возможных маршрутов, называются маршрутизированными. Протоколы, которые поддерживают передачу данных между сетями по нескольким маршрутам, называются маршрутизируемыми протоколами.
Среди множества протоколов наиболее распространены следующие:
- NetBEUI;
- XNS;
- IPX/SPX и NWLmk;
- Набор протоколов OSI.
На данный момент Ethernet является самой распространенной технологией в локальных сетях. На базе этой технологии работает более 10 млн. локальных сетей и более 100 млн. компьютеров, имеющих сетевую карту, поддерживающую данную технологию. Существуют несколько подтипов Ethernet в зависимости от быстродействия и типов используемого кабеля.
Одним из основоположников данной технологии является фирма Xerox, разработавшая и создавшая в 1975 году тестовую сеть Ethernet Network. Большинство принципов, реализованных в упомянутой сети, используются и сегодня.
Постепенно технология совершенствовалась, отвечая возрастающему уровню запросов пользователей. Это привело к тому, что технология расширила сферу своего применения до такой среды передачи данных, как оптическое волокно или неэкранированная витая пара.
Причиной начала использования названных кабельных систем стало достаточно быстрое увеличение количества локальных сетей в различных организациях, а также низкая производительность локальных сетей, использующих коаксиальный кабель. Вместе с тем возникла необходимость в удобном и экономичном управлении и обслуживании данных сетей, чего уже не могли обеспечить устаревшие сети.
Основные принципы работы Ethernet. Все компьютеры, входящие в сеть, подключены к общему кабелю, который называется общей шиной. Кабель является средой передачи, и его может использовать для получения или передачи информации любой компьютер данной сети.
Сети Ethernet используют метод пакетной передачи данных. Компьютер-отправитель отбирает данные, которые нужно отправить. Эти данные преобразуются в короткие пакеты (иногда их называют кадрами), которые содержат адреса отправителя и получателя. Пакет снабжен служебной информацией — преамбулой (отмечает начало пакета) — и информацией о значении контрольной суммы пакета, которая необходима для проверки правильности передачи пакета по сети.
Перед тем как отправить пакет, компьютер-отправитель проверяет кабель, контролируя в нем отсутствие несущей частоты, на которой и будет происходить передача. Если такая частота не наблюдается, то он начинает передачу пакета в сеть.
Пакет будет принят всеми сетевыми платами компьютеров, которые подключены к этому сегменту сети. Сетевые карты контролируют адрес назначения пакета. Если адрес назначения не совпадает с адресом данного компьютера, то пакет отклоняется без обработки. Если же адреса совпадают, то компьютер примет и обработает пакет, удаляя из него все служебные данные и транспортируя необходимую информацию «вверх» по уровням модели OSI вплоть до прикладного.
После того как компьютер передаст пакет, он выдерживает небольшую паузу, равную 9,6 мкс, после чего опять повторяет алгоритм передачи пакета вплоть до полной транспортировки необходимых данных. Пауза нужна для того, чтобы один компьютер не имел физической возможности заблокировать сеть при передаче большого количества информации. Пока длится такая технологическая пауза, канал сможет использовать любой другой компьютер сети.
Если два компьютера одновременно проверяют канал и делают попытку отправить пакеты данных по общему кабелю, то в результате этих действий происходит коллизия, так как содержимое обоих кадров сталкивается на общем кабеле, что значительно искажает передаваемые данные.
После того как коллизия будет найдена, передающий компьютер обязан остановить передачу на небольшой случайный интервал времени.
Важным условием корректной работы сети является обязательное распознавание коллизии всеми компьютерами одновременно. Если любой передающий компьютер не вычислит коллизию и сделает вывод о правильности передачи пакета, то данный пакет попросту пропадет из-за того, что будет сильно искажен и отклонен принимающим компьютером (несовпадение контрольной суммы).
Вероятно, что утерянную или искаженную информацию повторно передаст протокол верхнего уровня, который работает с установлением соединения и идентификацией своих сообщений. Следует учитывать и то, что повторная передача произойдет через достаточно длительный интервал времени (десятки секунд), что приведет к значительному снижению пропускной способности конкретной сети. Именно поэтому своевременное распознание коллизий крайне важно для стабильности работы сети.
Все параметры Ethernet составлены так, чтобы коллизии всегда четко определялись. Именно поэтому минимальная длина поля данных кадра составляет не менее 46 байт (а с учетом служебной информации — 72 байта или 576 бит). Длина кабельной системы рассчитывается таким образом, чтобы за то время, пока транспортируется кадр минимальной длины, сигнал о коллизии успел дойти до самого отдаленного компьютера сети. Исходя из этого, при скорости в 10 Мбит/с максимальное расстояние между произвольными элементами сети не может превышать 2500 м. Чем выше скорость передачи данных, тем меньше максимальная длина сети (уменьшается пропорционально). Используя стандарт Fast Ethernet ограничивается максимальное удаление 250 м, а в случае с гигабитным Ethernet — 25 м.
Таким образом, вероятность успешного получения общей среды напрямую зависит от загруженности сети.
Постоянное возрастание уровня требований к пропускной способности сети послужило причиной разработки технологии Ethernet, скорость передачи в которой превышала 10 Мбит/с. В 1992 году был реализован стандарт Fast Ethernet, поддерживающий транспортировку информации со скоростью 100 Мбит/с. Большая часть принципов работы Ethernet остались без изменений.
Некоторые изменения произошли в кабельной системе. Коаксиальный кабель был не в состоянии обеспечить скорость передачи информации в 100 Мбит/с, поэтому ему на смену в Fast Ethernet приходят неэкранированные кабели типа витая пара, а также оптоволоконный кабель.
Выделяют три вида Fast Ethernet:
- 100Base-TX;
- 100Base-T4;
- 100Base-FX.
Стандарт 100Base-TX использует сразу две пары кабеля: UTP или STP. Одна пара необходима для передачи данных, а вторая — для приема. Перечисленным требованиям соответствуют два кабельных стандарта: EIA/TIA-568 UTP категории 5 и SТР Типа 1 компании IBM. В 100Base-TX предоставляется возможность полнодуплексного режима в процессе работы с сетевыми серверами, а также применение всего двух из четырех нар восьмижильного кабеля — две оставшиеся пары будут свободными и в дальнейшем могут быть использованы для расширения функциональности данной сети (например, на их основе возможна организация телефонной сети).
Стандарт 100Base-T4 позволяет использовать кабели категорий 3 и 5. Это происходит из-за того, что в 100Base-T4 используются четыре пары восьмижильного кабеля: одна — для передачи, а другая — для приема, остальные могут использоваться как для передачи, так и для приема. Соответственно, как прием, так и передача данных могут проводиться сразу по трем парам. Если общая пропускная способность в 100 Мбит/с распределяется на три пары, то 100Base-T4 снижает частоту сигнала, поэтому для нормальной работы вполне достаточно и менее качественного кабеля. Для организации сетей 100Base-T4 могут использоваться кабели UTP категорий 3 и 5, точно так же, как и UTP категории 5 и STP типа 1.
Стандарт 100Base-FX использует для передачи данных многомодовое оптоволокно с 62,5-микронным ядром и 125-микронной оболочкой. Данный стандарт предназначен для магистралей — соединения репитеров Fast Ethernet в пределах одного помещения. Основные преимущества оптического кабеля передались и рассматриваемому стандарту 100Base-FX: невосприимчивость к электромагнитным шумам, повышенный уровень защиты информации и увеличенные расстояния между сетевыми устройствами.
Долгое время интерфейс Firewire (высокоскоростной последовательный интерфейс Firewire, так же известный как IEEE1394) использовался в основном при обработке потокового видео. В общем-то, для этого он первоначально и проектировался. Однако, высочайшая, даже по сегодняшним меркам, пропускная способность этого интерфейса (400 Мбит/с) сделала его достаточно эффективным для современных периферийных высокоскоростных устройств, а так же для организации небольших быстродействующих сетей.
Благодаря поддержке WDM драйвера, Firewire интерфейс поддерживается операционными системами, начиная с Windows 98 Second Edition. Однако встроенная поддержка интерфейса Firewire была впервые реализована в Windows Millennium, и теперь поддерживается в Windows 2000 и Windows XP. Все операционные системы, кроме Windows 98SE также поддерживают горячую установку сети. Если Firewire контроллер присутствует в системе, Windows автоматически инсталлирует виртуальный сетевой адаптер, с возможностью прямого доступа и модификации стандартных сетевых установок.
По умолчанию Firewire сеть поддерживает TCP/IP протокол, которого вполне достаточно для решения большинства современных сетевых задач, например, функция Internet Connection Sharing (совместное использование Интернет), встроенная в операционную систему Microsoft.
Firewire обеспечивает существенное преимущество в скорости по сравнению со стандартной 100BaseT Ethernet сетью. Но это не главное преимущество Firewire сети. Более важна простота создания такой сети, доступная пользователю не самого высокого уровня подготовки. Так же важно отметить универсальность и невысокую стоимость.
Главным недостатком Firewire сети является ограниченная длинна, кабеля. Согласно спецификации, для работы на скорости 400 Мбит/с длинна кабеля не должна превышать 4,5 метров. Для решения этой проблемы используется различные варианты репитеров.
Несколько лет назад был разработан новый стандарт Ethernet — Gigabit Ethernet. На данный момент он пока еще не имеет широкого распространения. Технология Gigabit Ethernet в качестве среды транспортировки информации использует оптические каналы и экранированную витую пару. Такая среда способна десятикратно повысить скорость передачи данных, что является необходимым условием для проведения видеоконференций или работы сложных программ, оперирующих большими объемами информации.
Данная технология использует те же принципы, что и более ранние стандарты Ethernet. Кроме того, сеть, которая базируется на основе экранированной витой пары, можно осуществить посредствам перехода на технологию Gigabit Ethernet путем замены сетевых плат и сетевого оборудования, которые используются в сети, 1000Base-Х содержит сразу три физических интерфейса, параметры и характеристики которых указаны ниже:
- Интерфейс 1000Base-SX определяет лазеры с допустимой длиной излучения в промежутке 770-860 нм, мощность излучения передатчика в диапазоне от 10 до 0 дБм, при существующем соотношении ON/OFF (есть сигнал/ нет сигнала) не менее 9 дБ. Чувствительность такого приемника — 17 дБм, а его насыщение — 0 дБм.
- Интерфейс 1000Base-LX определяет лазеры с допустимой длиной излучения в промежутке 1270-1355 нм, мощность излучения передатчика в диапазоне от 13,5 до 3 дБм, при существующем соотношении ON/OFF (есть сигнал/ нет сигнала) не менее 9 дБ. Чувствительность такого приемника — 19 дБм, а его насыщение — 3 дБм.
- 1000Base-CX — экранированная витая пара, предназначенная для транспортировки данных на небольшие расстояния. Для транспортировки данных используются все четыре пары медного кабеля, а скорость передачи по одной паре составляет 250 Мбит/с. Технология Gigabit Ethernet — самая быстрая из всех существующих на данный момент технологий локальных сетей. Достаточно скоро большинство сетей будут создаваться на основе данной технологии.
Wi-Fi- технология беспроводной связи. Название это расшифровывается как Wireless Fidelity(с англ. – беспроводная точность). Предназначена для доступа на коротких дистанциях и, в то же время, на достаточно больших скоростях. Существует три модификации этого стандарта - IEEE 802.11a, b и g, их отличие друг от друга в скорости передачи данных и расстоянии на которое они могут передавать данные. Максимальная скорость работы 11/ 54/ 320 Мбит/c соответственно, а расстояние передачи порядка 100 метров. Технология удобна тем, что не требует больших усилий объединения компьютеров в сеть, позволяет избежать неудобств возникающих при прокладке кабеля. В настоящее время услугами можно воспользоваться в кафе, аэропортах, парках и др.
USB сеть. Предназначена в основном для пользователей ноутбуков, т.к. при отсутствии сетевой карты в ноутбуке она может обойтись довольно дорого. Удобство в том, что сеть может быть создана без использования сетевых карт и концентраторов, универсальность, возможность подключать любой компьютер. Скорость передачи данных 5-7 Мбит/с .Локальная сеть через электрические провода. 220В. Электрические сети не идут ни в какое сравнение с локальными и глобальными сетями. Электрическая розетка есть в каждой квартире, в каждой комнате. По дому можно протянуть десятки метров кабелей, соединив между собой все компьютеры, принтеры и прочие сетевые устройства. Но тогда каждый компьютер станет "рабочим местом", стационарно расположенным в помещении. Перенести его - значит переложить сетевой кабель. Можно установить дома беспроводную сеть IEEE 802.11b, но могут возникнуть проблемы с проникновением сигнала через стены и перекрытия, к тому же это лишнее излучение, которого в современной жизни итак хватает. А есть и иной способ - использовать уже существующие электрические провода и розетки, установленные в стенах. Единственное, что для этого потребуется - соответствующие адаптеры. Скорость сетевого подключения через электрические провода составляет 14 Мбит/с. Дальность действия - примерно 500 метров. Но стоит учитывать, что распределительная сеть - трёхфазная, а к домам подводится по одной фазе и нулю, равномерно нагружая каждую из фаз. Так что, если один пользователь подключен к одной фазе, а второй - к другой, то воспользоваться подобной системой не удастся.
Сравнительный анализ технологий локально-вычислительных сетей представлен в Приложении Б.
1.6 Сетевое программное обеспечение
1.6.1 Сетевые операционные системы
При работе с Windows XP Professional доступны многие новые более эффективные средства и технологии. При помощи дистанционного управления рабочим столом можно получить доступ к сеансу Windows с другого компьютера, также как и при работе за своим компьютером. При помощи средства «Помощник по поиску» можно быстро найти необходимые сведения. Средства «Защита файлов Windows» и «Восстановление системы» предотвращают случайное удаление важных файлов и возвращают систему в исходное состояние в случае возникновения проблем. В случае ошибки системы или программы можно отправить в корпорацию Майкрософт отчет, а также можно использовать компонент NetMeeting для проведения собрания по сети с другими пользователями в любое время. При работе на компьютере с плоскоэкранным монитором (как у переносных компьютерах) можно использовать технологию ClearType для отображения экранных шрифтов. Эта передовая технология корпорации Майкрософт, обеспечивающая четкость отображения шрифтов. Помимо этого технология Dualview позволяет использовать отдельный монитор с переносным компьютером.
Windows XP предлагает множество средств, которые необходимы в современных высокоскоростных коммуникационных сетях для работы и развлечения. В этот пакет инструментов входят средства, помогающие устанавливать и настраивать конфигурацию системных ресурсов, пользователей и групп пользователей, а также плановых системных задач. Набор стандартных программ позволяет полностью выполнить любое задание, в чем бы оно ни заключалось. Можно создавать документы и изображения, производить вычисления, планировать свое рабочее время и проводить интерактивные совещания со своими сотрудниками. Когда настанет пора отдыха, можно послушать музыку, найденную в Интернете, или поиграть в игры. Средства связи и развлекательные программы помогут хорошо отдохнуть.
Windows XP Professional обладает улучшенными возможностями для работы программ в фоновом режиме. Общая защита значительно улучшена, поэтому можно более безопасно использовать обозреватель Интернета и совершать в нем покупки. Можно также общаться с другими пользователями по сетям, не беспокоясь о сохранении конфиденциальности файлов личных данных. Быстродействие позволяет запускать большее количество программ одновременно, при этом программы работают с максимальной скоростью. Windows XP Professional надежна и устойчива, поэтому всегда можно рассчитывать на быстродействие и эффективную работу компьютера. Помимо этого достигнут максимально возможный уровень совместимости с другими программами.
Очевидно, что средства Windows XP Professional позволяют упростить использование компьютера, обеспечивают эффективность работы и возможность использования компьютера для развлечений. Например, можно при помощи средства «Дистанционное управление рабочим столом» получить доступ к рабочему компьютеру и его ресурсам из дома, а также просматривать файлы и документы на рабочем столе своего компьютера, находясь за компьютером сотрудника. При помощи программы NetMeeting можно устраивать виртуальные собрания по сети с пользователями, расположенными в любой точке земного шара, а также участвовать в обсуждениях, используя аудио- и видеоустройства и программу «Разговор». Получение справки максимально упрощено. При помощи средства «Удаленный помощник» можно отправить по электронной почте сообщение специалисту по компьютерам или сотруднику службы поддержки, который поможет решить возникшую проблему. При работе в Windows XP Professional возможно использование расширенной интерактивной справочной системы, содержащей сведения о всех средствах операционной системы, а также электронный учебник, который поможет получить дополнительные сведения о возможном решении проблемы.
Windows XP включает последнюю версию программы MSN Explorer с полным пакетом служб Microsoft, а также последний выпуск программы Internet Explorer. Пользователи получают возможность контролировать конфиденциальность и безопасность при просмотре Интернета.
При использовании Windows XP Professional работа с домашней сетью максимально упрощена. Для быстрой настройки сети используется мастер настройки сети. Для всех компьютеров в сети можно использовать общее подключение к Интернету. При этом компьютер будет защищен брандмауэром подключения к Интернету.
При использовании Windows XP Professional работа с файлами и папками выполняется более эффективно. Можно выполнять задачи с более понятным интерфейсом веб-страниц и просматривать сведения о файлах и папках. Имеется больше возможностей сопоставления определенных типов файлов с определенными программами. Помимо этого максимально упрощена автономная работа с файлами и папками. Сжатие файлов и папок с целью экономия места на компьютере выполняется просто и быстро.
При использовании Windows XP имеется возможность воспроизводить музыку, просматривать и печатать изображения, а также записывать сведения на компакт-диски. Можно создавать фильмы.
Системные требования для Windows XP Professional одно- или двухпроцессорный ПК с процессором 233 МГц. Рекомендуется процессор 300 МГц или более мощный (рекомендуется использовать процессоры семейства Intel Pentium/Celeron или AMD K6/Athlon/Duron или совместимые с данными типами процессоров).
Windows XP Home Edition - это операционная система с множеством новых функций, предоставляющих расширенные возможности для работы, средства для более быстрого и простого доступа в Интернет и для общения с друзьями и коллегами. Это наиболее надежная и стабильная операционная система в семействе Windows, которую можно использовать и для работы, и для развлечений.
Операционная система Windows XP Home Edition создана на основе Windows 2000. В ней используется 32-разрядная компьютерная архитектура и полностью защищенная модель памяти. Благодаря этому Windows XP Professional является на сегодняшний день самой надежной операционной системой. Windows XP Home Edition включает в себя все лучшие качества семейства потребительских операционных систем Windows 9х. В результате пользователь получает в свое распоряжение не только удобную в пользовании, но и высоконадежную операционную систему.
Преимущества Windows XP Home Edition:
производительность, безопасность и надежность Windows 2000;
лучшие качества предыдущих версий потребительских операционных систем Windows;
удобная в пользовании операционная система, которая отличается от всех предыдущих версий потребительских операционных систем Windows повышенной надежностью;
интегрированные дополнительные функции для повышения надежности и предотвращения неполадок в системе;
операционная система, которой легко и приятно пользоваться и которая не подведет;
операционная система Windows XP Home Edition более удобная и более быстрая.
Исследования, проведенные ведущей лабораторией, показали, что компьютер под управлением операционной системы Windows XP работает значительно быстрее и пользоваться им значительно проще, чем при использовании предыдущих версий Windows. В операционной системе Windows XP легче находить нужные данные, файлы и программы, в ней быстрее выполняются такие задачи, как настройка параметров компьютера, доступ к файлам и документам, а также их хранение и печать.
Участники исследований, которые работали с операционной системой Windows XP Professional, смогли успешно выполнить в среднем на 25,29% больше задач, чем те, которые работали с Windows 2000. Участники испытаний, которые работали с Windows XP Home Edition, смогли успешно выполнить в среднем на 17,72% больше задач, чем те, которые работали с Windows Millennium Edition.
1.6.2 Средства удаленного администрирования
Раньше программы для удаленного администрирования были нужны только на предприятиях, где одному человеку приходится обслуживать десятки, а то и сотни компьютеров, которые расположены в разных кабинетах и на разных этажах. Сегодня сфера их применения гораздо шире.
Во-первых, во многих квартирах больше одного компьютера, и между ними для более быстрой передачи информации протянута сеть. Если компьютеры стоят в разных комнатах, то программа для удаленного администрирования дает возможность работать на двух ПК одновременно.
Во-вторых, как правило, люди постоянно работают с двумя компьютерами - домашним и рабочим. Программы для удаленного администрирования позволяют через Интернет следить за тем, что происходит на другом компьютере.
Большинство программ для удаленного администрирования состоят из двух частей - сервера и клиента (его еще называют вьювер или просмотрщик). Первый устанавливается на удаленной машине, то есть, на той, которой нужно управлять. Клиентская часть ставится на компьютере, с которого вы планируете управлять другим ПК. Для того чтобы клиент работал, на удаленном ПК обязательно должна быть запущена серверная часть, поэтому при установке на удаленном ПК программу лучше сразу поместить в "Автозагрузку".
Кроме этого, если на компьютерах используется брандмауэр, нужно обязательно создать приложение, разрешающее работу с приложениями для удаленного администрирования, иначе брандмауэр может решить, что подключение к ПК - это атака извне и не допустить подключения.
Remote Administrator (Radmin) - это одна из самых популярных программ для наблюдения за удаленным компьютером среди русскоязычных пользователей. Причин тому несколько: во-первых, программа разработана российской компанией и потому имеет полноценный русский интерфейс. Во-вторых, Radmin имеет только самые необходимые средства для управления удаленным ПК и очень проста в настройке. В-третьих, программа имеет небольшой размер дистрибутива, который можно легко переслать по почте.
Radmin работает в нескольких режимах: передача файлов, полное управление, только просмотр, телнет и выключение. Есть встроенный файловый менеджер, при помощи которого файлы передаются с одного ПК на другой. Программа ведет статистику используемого трафика и может шифровать данные.
При помощи Radmin можно управлять как одним удаленным компьютером, так и сразу несколькими. Причем, для каждого можно установить свой пароль. Если требуется обеспечить повышенный уровень безопасности, можно принять дополнительные меры предосторожности: включить защиту от перебора пароля и составить список запрещенных IP-адресов.
Symantec pcAnywhere, можно назвать мечтой системного администратора. Набор возможностей, которые предлагает эта программа, просто огромен. Это - не просто средство для "подглядывания" за действиями пользователей на удаленных ПК, а мощный инструмент для управления всеми функциями компьютера. Все действия, которые администраторы, как правило, вынуждены делать, перемещаясь по зданию от одного компьютера к другому, при помощи pcAnywhere можно выполнить удаленно.
В программе есть инструмент для управления службами операционной системы, редактор для работы с реестром, средство для работы с командной строкой, возможность удаления или приостановки выполнения приложений и даже чат с пользователем. Еще одна полезная возможность - доступ к журналу событий. Заглянув в журнал, можно сразу же увидеть все действия пользователя и разобравшись с причиной проблемы, решить ее.
Менеджер файлов. Работая с pcAnywhere, можно не только копировать файлы с одного ПК на другой и удалять их, но и выполнять множество других операций. Например, определять очередность копирования, прерывать его и позже возобновлять с того же места, сравнивать папки, производить синхронизацию и т.д.
Symantec pcAnywhere не имеет триал-версии, и на официальном сайте можно лишь ознакомиться с ее возможностями.
UltraVNC 1.02. Основное преимущество этой программы перед другими приложениями - бесплатный статус. Она ничем не уступает многим коммерческим продуктам, а в некоторых случаях даже их превосходит.
Одна из интересных возможностей программы - тонкая настройка серверной части. Если по каким-то причинам нужно скрыть наличие на удаленном компьютере программы-сервера, можно вызвать окно настроек программы, щелкнув по значку в области уведомлений, и ограничить права пользователя. Например, можно запретить закрытие программы и изменение ее настроек с сервера, а также скрыть значок в системном трее, чтобы у любопытных возникало меньше вопросов.
Средства удаленного администрирования, которые реализованы в UltraVNC, наталкивают на мысль, что программа создавалась именно с мыслью о непокорных пользователях. Кроме описанных выше параметров, есть также полезная возможность блокирования мыши и клавиатуры на удаленном ПК во время сеанса подключения к нему. Если ее включить, пользователь не будет дергать мышку, мешая вам работать. Есть, кстати, и обратная по назначению возможность - режим View Only. Если его активировать, то можно будет только наблюдать за удаленным компьютером, не производя на нем никаких действий. Это удобно, если вы не хотите обнаружить свое присутствие и случайно выдать себя, задев мышь.
Все основные инструменты для управления удаленным компьютером собраны в верхней части окна вьювера. Используя эти кнопки, можно, например, выполнять на ПК команду CTRL+ALT+DEL, открывать меню "Пуск", переключаться из оконного режима просмотра в полноэкранный, обновлять экран, если картинка "подвисла", вызывать окно чата или файлового менеджера. В целом, инструменты управления очень удобны.

Рисунок 1.10 - Рабочее окно программы UltraVNC 1.02
RemotelyAnywhere - это не совсем обычная программа для администрирования. В отличие от других подобных утилит, она состоит только из одной части - сервера, а роль клиента выполняет браузер. Иными словами, устанавливать программу нужно только на том, компьютере, к которому нужно подключиться. Это очень удобно, если необходимо проводить удаленное администрирование с компьютера, на котором невозможно установить никаких программ, например, если этот компьютер стоит в учебном заведении, в Интернет-кафе или на работе.
Для работы программа задействует специальный ActiveX-компонент браузера и использует собственный протокол обмена данными. Когда сервер установлен и запущен, к компьютеру можно получить доступ, введя в браузере адрес https://ваш_IP:2000 (если необходимо работать с программой через Интернет) или https://имя_компьютера:2000 (если предполагается подключаться по локальной сети). После этого нужно указать имя пользователя и пароль, которые используются для входа в Windows на удаленном компьютере. Безопасность подключения обеспечивается NTLM-аутентификацией, защищенной 1024-битовым ключом.
После подключения в окне браузера будут выведены подробные сведения об удаленном ПК, в том числе, его конфигурация, степень заполнения жесткого диска, загруженность процессора, сетевая активность и т.д.
Все команды, доступные для выполнения, вынесены в левую часть окна и представлены в виде дерева ссылок. Их набор достаточно велик: чат, менеджер файлов, управление службами Windows, просмотр журнала событий и списка пользователей, которые подключались к компьютеру. В RemotelyAnywhere также есть планировщик заданий, который дает возможность выполнять разные задания на удаленном ПК по расписанию. Список запланированных заданий для удобства выводится в главном окне, а еще можно настроить RemotelyAnywhere на отсылку отчетов об их выполнении по электронной почте.
Несмотря на то, что все программы, выполняют одну и ту же функцию, вряд ли можно сказать однозначно, какая лучше, а какая - хуже. Богатые возможности Symantec pcAnywhere оценят администраторы, обслуживающие большие корпоративные сети, для домашнего использования на нескольких компьютерах прекрасно подойдут Remote Administrator и UltraVNC, а RemotelyAnywhere будет незаменима для тех, кто ведет мобильный образ жизни и не знает, с какого компьютера он будет выходить в Интернет в следующий раз. Но для выполнения данной работы наиболее логичным будет использование Symantec pcAnywhere.
Сравнительный анализ сетевого ПО представлен в Приложении В, Приложении О.
Согласно стоимости и рекомендациям, приведенным на сайтах в Интернете, рекомендуем использовать ПО, которое приведено в Приложении Н (Таблица Н.2).
1.6.3 Сетевое антивирусное ПО
Совсем недавно для обеспечения безопасности компьютера хватало установки антивируса, который справлялся с защитой от вирусов. Но в мире высоких технологий и Интернет - пространстве все стремительно изменяется и совершенствуется.
Сегодня средства защиты ПК представляют мощные «комбайны», сочетающие в себе разные функции, множество настроек и различные алгоритмы действия, ведь их задача по вылавливанию вирусов и вредоносных программ усложнилась. Ранее эти паразиты были виной исчезновения данных, теперь же считывают конфиденциальную и личную информацию.
Все большую популярность приобретают программные продукты, которые включают в себя и антивирус, и брандмауэр, и антиспам. Среди их многообразия хотелось бы приобрести качественную защиту с интуитивно понятными настройками и высокой скоростью работы и с автоматическим обновлением.
Цена также немаловажный фактор, а иногда и решающий. Существующие программы для обеспечения безопасности, которые уже неоднократно тестировались в различных независимых лабораториях.
Взяв эти данные за основу, и проанализировав их, стоит кратко рассмотреть эти программы для облегчения выбора.
Kaspersky Internet Security 2009/2010 – весьма популярный программный продукт, с широкими возможностями антивируса и, как оказалось, уступающий в скорости проверки только Norton Internet Security. Гибкость настроек и присутствие дополнительных функций, отсутствующих у конкурентов вывело эту программу в лидеры 2009 года.
Среди дополнительных функций:
- проверка данных, передаваемых по безопасному протоколу HTTPS;
- виртуальная клавиатура, которая является защитой от программ-перехватчиков данных с клавиатуры;
- поиск уязвимостей операционной системы и установленного программного обеспечения, и их устранение, загрузкой требуемых обновлений;
- функция анализа HIPS, которая следит за запуском всех процессов на компьютере и их прав доступа.
Теперь о недостатках: большая загрузка оперативной памяти при проверке ПК, установке программ, невозможно отключить анализатор HIPS, проблемное обновление не самой свежей версии продукта.
Стоимость лицензии на год на два компьютера равна 600 гривен. Ее продление на такой же срок обойдется в 500 гривен (Цены приведены на 01.03.2010 г.).
Norton Internet Security 2009 компании Symantec самый быстрый в установке и скорости сканирования ПК, оказался самым жадным к ресурсам оперативной памяти из всех программных продуктов. Она удобна для начинающих пользователей, не имеющих специальных знаний, так как после установки настраивать ее нет необходимости. Главное окно отображает состояние защиты ПК, где компоненты можно отключать или настраивать по своему усмотрению.
Отличительные особенности у Norton Internet Security таковы:
- при обнаружении неизвестных ей угроз используется расширенная проактивная защита SONAR (поведенческий блокиратор).
- на сайтах с авторизацией программа предложит воспользоваться встроенной функцией, которая сохраняет учетные записи, защищая Ваши данные.
Отсутствие гибких настроек и медленной реакции вирусной лаборатории на новые угрозы не добавляет очков этому продукту и повышает риск заражения компьютера.
Плюсами можно назвать удобство интерфейса программы, завидная устойчивость к сбоям и малое количество ложных срабатываний.
Цена лицензии на год (на один компьютер) – 712 гривен, ее же продление – 430.
Outpost Security Suite по своей функциональности не уступает Kaspersky Internet Security, хотя в ней отсутствуют функции проверки безопасных соединений и поиска уязвимостей. Гибкость настроек сравнима с теми, которые есть у KIS и Eset Smart Security и является наряду с удобством интерфейса преимуществом этой программы. По скорости работы он не хуже конкурентов, но значительно замедляет запуск компьютера.
Годовая лицензия на один компьютер стоит 490 гривен.
ESET NOD32 Smart Security выделился минимальной нагрузкой на оперативную память, к сожалению компенсирующейся приличной загрузкой процессора. Минусами этого антивируса являются удовлетворительное обнаружение активных руткиков, полное отсутствие поведенческого блокиратора и медленная работа вирусных лабораторий. Но есть и положительное. Это быстрая и простая установка, отличная гибкость настроек с двумя режимами работы.
Программа поставляется с годовой лицензией на три компьютера стоимостью 620 гривен.
Dr. Web Security Space очень легкий программный продукт, в который входит антивирусный модуль, антиспам, модуль для проверки HTTP-трафика и родительский контроль. Главного окна у программы нет, управление осуществляется по щелчку в трее на значке программы. Сильными сторонами можно назвать простоту установки, скорость реакции на угрозы и гибкость настроек. Общая проверка ПК долго проходит и при этом сильно загружает оперативную память и процессор. Говорить о стабильной защите компьютера не приходится.
Стоимость лицензии на два года для одного ПК – 600 гривен, ее продление еще 350 гривен.
Подводя итог, можно констатировать, что лучшее обеспечение безопасности ПК гарантирует Kaspersky Internet Security 2009, но быстродействие его довольно низкое, что компенсирует быстрая реакция лабораторий на новые угрозы.
Целью проведения данного анализа был выбор оптимального антивируса для «домашней» локальной сети, и несмотря на то что лидирующую позицию в рейтинге занимает Kaspersky Internet Security 2009, для данного проекта стоит выбрать ESET NOD32 Smart Security, так как он объединяет в себе высокое быстродействие и хороший уровень защиты.
1.7 Адресация в локальных сетях
В локальных сетях используется принцип адресации.
Присваивается IP-адрес компьютеру либо вручную (статический адрес), либо компьютер получает его автоматически с сервера (динамический адрес). Статический адрес прописывается администратором сети в настройках протокола TCP/IP на каждом компьютере сети и жестко закрепляется за компьютером.
В присвоении статических адресов компьютерам есть определенные неудобства:
- администратор сети должен вести учет всех используемых адресов, чтобы исключить повторы;
- при большом количестве компьютеров в локальной сети установка и настройка IP-адресов отнимают много времени.
Наряду с перечисленными неудобствами у статических адресов есть одно немаловажное преимущество: постоянное соответствие IP-адреса определенному компьютеру. Это позволяет эффективно применять политику IP-безопасности и контролировать работу пользователей в сети. К примеру, можно запретить определенному компьютеру выходить в Интернет или определить с какого компьютера выходили в Интернет и т.п.
Если компьютеру не присвоен статический IP-адрес, то адрес назначается автоматически. Такой адрес называется динамическим адресом, т. к. при каждом подключении компьютера к локальной сети адрес может меняться. К достоинствам динамических адресов можно отнести:
- централизованное управление базой IP-адресов;
- надежная настройка, исключающая вероятность дублирования IP-адресов;
- упрощение сетевого администрирования.
Динамический IP-адрес назначается специальной серверной службой DHCP (Dynamic Host Configuration Protocol), входящей в состав Windows Server 2003. В параметрах службы DHCP администратором сети прописывается IP-диапазон, адреса из которого, будут выдаваться другим компьютерам. Серверная служба DHCP, которая распространяет (сдает в аренду) IP-адреса называется DHCP-сервер. Компьютер, получающий (арендующий) IP-адрес из сети, называется DHCP-клиент.
Так как в своей работе мы используем Windows Server 2003 Standart, который поддерживает эту службу, то можно не приобретать IP-адрес.
DHCP может поддерживать способ автоматического динамического распределения адресов, а также более простые способы ручного и автоматического статического назначения адресов. Протокол DHCP работает в соответствии с моделью клиент-сервер. Во время старта системы компьютер, являющийся DHCP-клиентом, посылает в сеть широковещательный запрос на получение IP-адреса. DHCP – cepвер откликается и посылает сообщение-ответ, содержащее IP-адрес. Предполагается, что DHCP-клиент и DHCP-сервер находятся в одной IP-сети.
При динамическом распределении адресов DHCP-сервер выдает адрес клиенту на ограниченное время, называемое временем аренды (lease duration), что дает возможность впоследствии повторно использовать этот IP-адрес для назначения другому компьютеру. Основное преимущество DHCP – автоматизация рутинной работы администратора по конфигурированию стека TCP/IP на каждом компьютере. Иногда динамическое разделение адресов позволяет строить IP-сеть, количество узлов в которой превышает количество имеющихся в распоряжении администратора IP-адресов.
В ручной процедуре назначения статических адресов активное участие принимает администратор, который предоставляет DHCP – серверу информацию о соответствии IP-адресов физическим адресам или другим идентификаторам клиентов. DHCP-сервер, пользуясь этой информацией, всегда выдает определенному клиенту назначенный администратором адрес.
При автоматическом статическом способе DHCP-сервер присваивает IP-адрес из пула наличных IP-адресов без вмешательства оператора. Границы пула назначаемых адресов задает администратор при конфигурировании DHCP-сервера. Адрес дается клиенту из пула в постоянное пользование, то есть с неограниченным сроком аренды. Между идентификатором клиента и его IP-адресом по-прежнему, как и при ручном назначении, существует постоянное соответствие. Оно устанавливается в момент первого назначения DHCP-сервером IP-адреса клиенту. При всех последующих запросах сервер возвращает тот же самый IP-адрес.
DHCP обеспечивает надежный и простой способ конфигурации сети TCP/IP, гарантируя отсутствие дублирования адресов за счет централизованного управления их распределением. Администратор управляет процессом назначения адресов с помощью параметра «продолжительность аренды», которая определяет, как долго компьютер может использовать назначенный IP-адрес, перед тем как снова запросить его от DHCP-сервера в аренду.
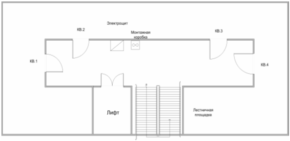
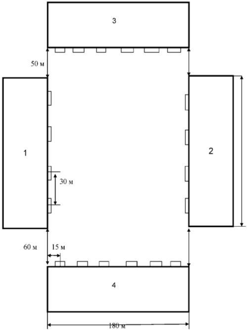
2 ПРОЕКТИРОВАНИЕ «ДОМАШНЕЙ» ЛОКАЛЬНОЙ СЕТИ
2.1 Постановка задачи
Дано: четыре жилых дома (расположенных квадратом): два дома девятиэтажные четырехподъездные 1 и 2, и два дома двенадцатиэтажные шестиподъездные 3 и 4 (считать, что в каждом доме на этаже находится четыре квартиры) (Рисунок 2.1).
Длина девятиэтажных домов:
- 120 метров, высота каждого этажа - 3 метра.
Длина двенадцатиэтажных домов
- 180 метров, высота каждого этажа - 3 метра.
Необходимо:
- спроектировать локальную сеть, объединяющую все четыре дома, таким образом, чтобы житель любой квартиры мог при желании к ней подключиться;
- обеспечить выход в сеть Интернет;
- учесть, что число квартир, которых нужно будет подключать к локальной сети, заранее не известно;
- рассчитать приблизительную стоимость создания такой сети без учета затрат на подключения к сети каждой конкретной квартиры.

Рисунок 2.1 – Общий вид расположения домов
Основными целями проектирования «домашней» локальной сети, являются:
1) совместная обработка информации;
2) совместное использование файлов;
3) централизованное управление компьютерами;
4) контроль за доступом к информации;
5) централизованное резервное копирование всех данных;
6) совместный доступ в Интернет.
Данная сеть не предполагает постоянного разделения пользователей на классы, поэтому оптимальным будет использование только двух уровней приоритета: пользователь и администратор.
Пользователь имеет ровно столько прав, сколько даст ему администратор перед началом или во время работы.
Администратор имеет доступ ко всем сетевым ресурсам, в том числе доступ к интернету сетевым принтерам и папкам, а так же может распределять права между пользователями.
Управление правами пользователей осуществляется посредством программы Symantec pcAnywhere подробно рассмотренной в первой части дипломного проекта.
2.2 Выбор конфигурации вычислительной сети
Оценка вариантов архитектуры ЛВС производится с системных позиций по основным критериям:
1) быстродействие;
2) надёжность;
3) стоимость;
4) информационная безопасность.
По этим критериям и будет выбрана подходящая конфигурация (см. таблицу 2.1)
Таблица 2.1 - Конфигурация локальной сети
| Компонент | Реализация |
| Топология | Звезда-Кольцо |
| Тип сети | Fast Ethernet |
| Линия связи | Витая пара 100Base TX |
| Сетевые адаптеры | 100BaseTX |
| Ретрансляторы | Switch |
| Управление совместным использованием ресурсов | Сеть на основе технологии Client-Server, централизованное управление ресурсами |
| Совместное использование периферийных устройств | Сетевой принтер, управление очередью с помощью ПО сервера |
| Поддерживаемые приложения | E-mail, SQL Server 2000 |
Такая конфигурация отвечает всем требованиям и подходит для данной сети. Быстродействие отказоустойчивость и безопасность обеспечивается использование топологии «звезда-кольцо» и применением технологии Fast Ethernet, а низкая стоимость, применением недорогого кабеля 100Base TX.
2.3 Проектирование схемы вычислительной сети
При выборе сетевых компонентов был использован каталог цен на компьютеры и комплектующие, предлагаемые ООО «КВАНТ». Выбранные устройства представлены ниже:
1. Физические устройства
1) Рабочие станции: материнская плата ASUS P6T; S1366, процессор Core i7 Quad; i7-930, с тактовой частотой 2.8GHz, 3 Гб ОЗУ DDR 3, HDD 500 Гб, видеокарта ATI Radeon HD 5850, с объемом памяти 1 Гб,
2) На серверной машине использована такая же конфигурация, только с ОЗУ расширенным до 12288 мб, дополнительной сетевой картой, приводом Asus DVD-RW и жестким диском 2 Тб;
3) Концентраторы COMPEX TP1016C E-net HUB 10Base-T 16 port;
4) Сетевые полноцветные лазерные принтеры CANON 3500;
5) Сетевые адаптеры встроенные.
2. Программное обеспечение
1) В качестве ОС сервера была выбрана Windows Server 2003.
2) ОС рабочей станции. Для работы пользователей, выбран Windows ХР.
3) Антивирусная защита на рабочих станциях и сервере обеспечивается посредством антивируса ESET NOD32 Smart Security.
Сервер проектируемой сети расположим в последнем подъезде дома №4.
Соединение между концентраторами COMPEX TP1016C E-net HUB 10Base-T 16 port осуществляется по межэтажным проходам, которые предусмотрены для прокладки антенных кабелей и телефонов. Концентраторы выбраны с учетом экономии средств на приобретение и монтаж оборудования.
Соединение концентраторов между подъездами осуществляем через межэтажные проходы, которые предусмотрены для вывода антенных кабелей. В целях обеспечения безопасности концентраторы размещаем в монтажные коробки, которые размещены на этажах возле электрощитов. Размещение концентраторов неудобно размещать в квартирах, т.к. усложняется их обслуживание и свободный доступ. План размещения концентраторов COMPEX TP1016C E-net HUB 10Base-T 16 port на этажах показано в Приложении Г (Рисунок Г.1). Концентраторы К1- К20 расположены на верхних этажах домов и соединены между собой. При включении всех концентраторов у нас получилось «кольцо». Такое включение выгодно тем, что при пропадании электросети на одном из концентраторов или обрыве кабеля, последующий концентратор продолжает работу, используя обходной путь. Схема расположения концентраторов на этажах показана в Приложении Г (Рисунок Г.2). Концентратор верхнего этажа соединяется с концентратором этажа, который ниже (Аналогично Рисунку 1.7).
Число абонентов «домашней» локальной сети составляет:
- дом № 1 – 144 абонента;
- дом № 2 - 288 абонентов;
- дом № 3 – 144 абонента;
- дом № 4 – 288 абонентов.
Общее число рабочих станций – 864.
Максимальное расстояние, согласно техническому описанию на концентратор, 100 метров (Приложение Д).
Для расчета длины кабеля мы должны знать точное расположение концентраторов и расстояние между ними.
При проектировании и в дальнейшем при обслуживании, составим монтажные таблицы размещения и включения концентраторов (Приложение Ж).
Чтение монтажных карт осуществляется следующим образом:
- в первом столбце находится адрес включения входа концентратора;
- во втором, расположение данного концентратора (№ дома-подъезд/ этаж);
- третьем, номер концентратора;
- четвертом, № вывода концентратора;
- пятом, выход концентратора подключен либо к рабочей станции (Квартира№…), либо к следующему концентратору (№ дома; К- № номер концентратора).
Общая нумерация концентраторов приведена в Приложении И.1.
В задании к проектированию сказано, что разводку по квартирам не делать, поэтому длину кабелей до квартир не учитываем.
Расположение концентраторов вызвано тем, чтобы рационально в дальнейшем использовать подключение рабочих станций.
План помещения, где расположена серверная станция показан в Приложении К.
2.4 Расчет длины кабеля
При расчете длины кабеля учитываются следующие очевидные положения. Каждая телекоммуникационная розетка связывается с коммутационным оборудованием одним кабелем. В соответствии со стандартом ISO/IEC 11801 длина кабелей горизонтальной подсистемы не должна превышать 90 м. Кабели прокладываются по кабельным каналам. Принимаются во внимание также спуски, подъемы и повороты этих каналов.
Существует два метода вычисления количества кабеля:
– метод суммирования;
– эмпирический метод.
Метод суммирования заключается в подсчете длины трассы каждого горизонтального кабеля с последующим сложением этих длин. К полученному результату добавляется технологический запас величиной до 10%, а также запас для выполнения разделки в розетках. Достоинством рассматриваемого метода является высокая точность. Однако при отсутствии средств автоматизации и проектировании СКС с большим количеством портов такой подход оказывается чрезмерно трудоемким.
При проектировании мы решили воспользоваться методом суммирования, т.к. эмпирический метод даст нам очень большую погрешность расчета.
Расчет начнем с подсчета магистрального кабеля проложенного по крышам домов, между верхними этажами.
Расположение домов, расстояние между домами и подъездами показано в Приложении Л.
Расстояние между концентраторами, которые установлены на верхних этажах многоэтажных домов составляют 36 м, расстояние между магистральными концентраторами дома №1 и №3 (также №3 и №2) – 86 м. Расстояние между магистральными концентраторами дома №2 и дома №4 (также как №4 и №1)– 90 м.
Общая длина магистральных кабелей составляет 928 м.
Между магистральным концентратором и концентраторами расположенными на этажах, как изображено на рисунке Г.2 (Приложение Г) рассчитаем длину требуемого кабеля. Для 12- ти этажек – 36 метров, для 9-ти этажек – 27 метров. Общая длина для подключения подъездных концентраторов составляет – 648 м.
Всего потребуется, учитывая 10% технологического запаса, запаса на разделку кабеля, затрат на прокладку кабелей в помещении серверной станции (Приложение М) - 1735 метров.
Для крепления кабелей по стенам домов рекомендуется приобрести кабель-каналы и полиэтиленовые монтажные скобы.
Для подключения концентраторов к питающей сети используется электрический кабель ПТСРВ 0,75х3.
2.5 Планирование информационной безопасности
Проанализировав возможные угрозы информационной безопасности можно выделить следующее:
воровство или вандализм;
форс-мажорные обстоятельства;
отказы источников питания и скачки напряжения;
ошибки при передаче информации;
сбои программного обеспечения;
ошибки пользователя.
Для защиты информации необходимо использовать следующие методы защиты информации:
1. При воровстве или вандализме нужно:
1) ограничить доступ паролями и ключами активации;
2) установить антивирусы на все рабочие станции и особенно на сервер;
3) ограничить доступ посторонних лиц к серверу и концентраторам;
4) установить простейшую схему защиты кабелей от воровства.
2. Поскольку возможны форс-мажорные обстоятельства то следует использовать кабель, проложенный в кабель - каналах.
3. Для предотвращения повреждения оборудования и потери информации на серверной станции, из-за скачков напряжения в сети, в сети используется источники бесперебойного питания.
4. При сбоях программного обеспечения нужно обратить особое внимание на настройку сервера и механизм выполнения транзакций.
В результате выполненных расчетов была получена полноценная удобная в пользовании, надёжная и отказоустойчивая локально-вычислительная сеть со скоростью передачи данных в 100 Мбит/сек. Данная сеть будет оставаться современной и быстродействующей ещё очень долго.
3 ЭКОНОМИЧЕСКИЙ РАСЧЕТ СТОИМОСТИ ОБЪЕКТА ПРОЕКТИРОВАНИЯ
Целью экономического расчета дипломного проекта является определение величины экономического эффекта от использования разработанной локальной вычислительной сети, качественная и количественная оценка экономической целесообразности создания, использования и развития этой сети, а также определение организационно-экономических условий ее эффективного функционирования.
Одновременно «домашняя» локальная сеть сможет обслуживать 864 рабочие станции, которые смогут работать, играть, пользоваться ресурсами сети Интернет.
В таблице 3.1 приведены исходные данные для расчетов.
В Приложении Н приведены сметные стоимости оборудования, материалов, ПО, стоимость монтажа.
Таблица 3.1 – Исходные данные
| Статьи затрат | Условные обозначения | Единицы измерения | Нормативные обозначения |
| 1. Разработка (проектирование) ЛВС | |||
| Тарифная ставка системотехника | З сист | грн/мес. | 1200 |
| Тарифная ставка обслуживающего персонала | Зперс | грн/мес. | 800 |
| Тариф на электроэнергию | Т эл/эн | грн | 0,5846 |
| Мощность модема, принтера и т.д. | WЭВМ | Вт /час | 300 |
| Стоимость сетевого оборудования | Стз | грн. | 113903,20 |
| Стоимость программного обеспечения | Спо | грн. | 12759,92 |
| Амортизационные отчисления | Ааморт | % | 25,0 |
| Изготовление ЛВС | |||
| Тариф на электроэнергию | Т эл/эн | грн. | 0,5846 |
| Мощность компьютера, принтера и т.д | WЭВМ | Вт /час | 300 |
| Тарифная ставка системотехника на месяц | Зсист | грн/мес. | 1200 |
| Норма дополнительной зарплаты | Нд | % | 25 |
| Отчисления на социальные мероприятия | Нсоц | % | 38,52 |
| Накладные затраты | Ннакл | % | 15,0 |
| НДС | Нпдв | % | 20,0 |
| Рентабельность | Р | % | 25,0 |
| Транспортно-заготовительные затраты | Нтрв | % | 4,0 |
| Суммарная мощность оборудования ЛВС | WЛВС | кВт/час | 13 |
| 2. Использование (эксплуатация) ЛВС | |||
| Тарифная ставка обслуживающего ЛВС персонала (системные администраторы) | Зперс | грн. | 1200 |
| Норма амортизационных отчислений на ЛВС | НаПЗ | % | 4 |
| Отчисление на содерждание и ремонт ЛВС | Нр | % | 10 |
3.1 Расчет затрат на создание проекта ЛВС
Выходные данные для расчёта экономического эффекта создания локальной вычислительной сети приведены в таблице 3.1.
Расчет затрат на разработку проекта проводится методом калькуляции затрат, в основу которого положенная трудоемкость и заработная плата разработчиков.
Трудоемкость разработки проекта Т рассчитывается по формуле:
Т = То + Ти + Ттоп + Тп + Тотл + Тпр + Тд, (3.1)
где То - затраты труда на описание задачи;
Ти - затраты труда на исследование структуры предприятия;
Ттоп - затраты труда на разработку топологии сети;
Тп - затраты труда на прокладку кабеля и подключение пользователей;
Тотл - затраты труда на отладку системы ЛВС на ЭВМ;
Тпр - написание программы минимизации затрат;
Тд - затраты труда на подготовку документации по задаче.
Данные о затратах на проектирование ЛВС и реализацию спроектированного комплекса в училище представлены в таблице 3.2.
Таблица 3.2 - Трудоемкость и зарплата разработчиков ЛВС
| Наименование этапов разработки ЛВС | Условные обоз начения | Фактическая трудоем-кость (чел/час) | Почасовая тарифная ставка (грн.) |
Сумма зарплаты (гр.5 * гр.4) |
| 1 | 2 | 4 | 5 | 6 |
| Описание задания ЛВС | То | 30 | 3,00 | 90,00 |
| Изучение структуры предприятия | Ти | 30 | 2,00 | 60,00 |
| Разработка топологии сети | Та | 70 | 3,00 | 210,00 |
| Прокладка кабеля и подключение пользователей | Тп | 170 | 6,00 | 1020,00 |
| Отладка системы ЛВС | Тотл | 60 | 10,00 | 600,00 |
| Написание программы минимизации затрат ЛВС | Тпр | 50 | 5,00 | 250,00 |
| Оформление документации | Тд | 20 | 2,50 | 50,00 |
| Всего: | Т | 430 | 2190,00 |
Данные по фактической трудоемкости (чел/час) предоставлены ведущим на Украине установщиком кабельных систем НПО «Квантор».
Таким образом, полученную трудоемкость по этапам разработки проекта необходимо подставить в формулу (3.1), чел./ч.:
Т = 30+30 +70 +170 +60+50+20 = 430 чел/час.
Основной фонд заработной платы разработчиков определяется по формуле:
Зпл = Т * Ч (3.2)
где Т - общая (поэтапная) трудоемкость разработки ЛВС, чел./ч.
Ч - почасовая тарифная ставка специалиста (программиста), грн.
3.2 Расчет материальных затрат на создание проекта локальной сети
Материальные затраты на создание проекта ЛВС рассчитываются исходя из необходимых затрат.
Нормы затрат материалов при разработке проекта и их цена приведены в таблице 3.3.
Таблица 3.3 - Расчет материальных и комплектующих затрат на разработку ЛВС
| Материал | Норма затрат, шт. | Фактическое количество, шт. | Цена за единицу, грн. | Сумма, грн. |
| 1.Диски CD-R | 2 - 5 | 4 | 2,50 | 10,00 |
| 2.Бумага формата А-4 | 500 - 1000 | 500 | 0,08 | 40,00 |
| Всего: | å | 50,00 | ||
| ТЗР (4%) | 0,01 - 0,04 | 2,00 | ||
| Всего: | Мв | 52,00 |
3.3 Использование сетевого оборудования
Затраты на использование сетевого оборудования рассчитываются исходя из затрат одного часа по формуле:
З = Сч * ( Тотл + Тд + Тпр), (3.3)
где Сч - стоимость работы одного часа сетевого оборудования, грн
Тотл - затраты работы на отладку сетевого оборудования, чел./ч.
Тд - затраты работы на подготовку документации, чел./ч.
Тпр - написание программы минимизации затрат, чел./ч;
Если на предприятии стоимость 1 часа работы сетевого оборудования не рассчитана, то тогда стоимость работы одного часа сетевого оборудования определяется по формуле:
Сч = Тэл/эн + Саморт + Зперс + Трем, (3.4)
где Тэл/эн - затраты на электроэнергию, грн/ч.;
Саморт - величина 1-го часа амортизации сетевого оборудования, грн.;
Зперс - почасовая зарплата обслуживающего персонала, грн.
Трем - затраты на ремонт, стоимость запасных деталей, грн.
Стоимость одного часа амортизации определяется по формуле:
Саморт = Ст/ср * На /100 * 1/ (Ч раб. сут/нд *Ксмена * Ч раб.нед/год *Ч раб.час/смена ) (3.5)
где Ст/ср - стоимость технических средств, грн - 113903,20 грн.
На - норма годовой амортизации (%) – 3%.
Ч раб. сут/нд – количество рабочих суток в неделе – 7 суток.
Ксмен – количество рабочих смен в сутки – 3 смены.
Ч раб.нед/год - количество недель на год, (52 недели/год).
Ч раб.час/смена - количество рабочих часов в смену) – 8 час/смен
Подставляя значения в формулы получаем:
Саморт = 113903,20 *25/100 * 1/ (52*7*3*8)= 3,25 грн.
(52*7*3*8) = 8736 рабочих часов в год
Тэл/эн =0,5846*0,3=0,18.
З час =Зп/месс / Кчас/месс = 800/242,66 =3.29 грн,
Кчас/мес = 8736/12мес*3смены = 242,66 часов.
Т рем =113903,20 *0,03*1/242,66=14,08 грн/час.
Сч = Тэл/эн + Саморт + Зперс + Трем = 0,18+3,25 +3.29 +14,08 = 20,8 грн/час
Подставив данные в формулу 3.3 получим:
З= Сч * ( Тотл + Тд + Тпр ) = 20,8 *(60+50+20) = 2704,00 грн.
3.4 Расчет технологической себестоимости ЛВС
Расчет технологической себестоимости создания ЛВС проводится методом калькулирования затрат (таблица 3.4).
В таблице 3.4 величина материальных затрат рассчитана в таблице 3.3, основная зарплата берется из таблицы 3.2, дополнительная зарплата берется 10 % (см.табл. 3.1) от основной зарплаты, отчисление на социальные мероприятия - 38,52% от основной и дополнительной зарплаты (вместе). Накладные затраты (15 %) от основной зарплаты.
Таблица 3.4 - Калькуляция технологических затрат на создание ЛВС
| № | Наименование статей | Условные обозначения | Затраты (грн.) |
| 1 | 2 | 3 | 4 |
| 1 | Материальные затраты | Мз | 52,00 |
| 2 | Основная зарплата | З | 2190,00 |
| 3 | Дополнительная зарплата (10% от основной зарплаты) | Зд | 219,00 |
| 4 | Отчисление на социальные мероприятия (38,52%) | Ос | 927,95 |
| 5 | Накладные затраты предприятия (15 % от основной зарплаты) | Ннакл | 328,50 |
| 6 | Затраты на использование сетевого оборудования при складывании проекта и программы ЛВС | З | 1537,30 |
| 7 | Итого ( |
СЛВС | 5253,8 |
3.5 Расчет капитальных затрат на создание ЛВС
В данном случае необходимо использовать дополнительные денежные средства для приобретения оборудования для ЛВС. Перечень необходимого оборудования представлен в приложении Н (таблица Н.1, Н.2, Н.3). Цены на перечисленное ниже оборудование взяты из прайс-листа НПО «Квантор». Компания является крупнейшим поставщиком офисной техники в восточной Украине, что гарантирует приемлемый уровень цен.
Стоимость работ по монтажу (Ст.лок.) и настройке кабельной сети предоставлена НПО «Квантор» и составляет 4647,50 грн.
Полученные результаты, приведены в таблице 3.5.
Таблица 3.5 - Капитальные затраты на создание ЛВС
| Наименование показателей | Условные обозначения | Сумма (грн.) |
| 1. Прямые затраты на создание ЛВС (Кз.оборуд+Кз.по+Ст.монтаж ) | Пр/затрат | 131310,62 |
| 2. Сопутствующие затраты на создание ЛВС (1% от Пр/затрат) | Ст.соп.затраты | 1313,11 |
| Всего | Кз/лвс | 132623,73 |
3.6 Затраты при эксплуатации ЛВС
Зарплата обслуживающего персонала рассчитывается по формуле:
Зо = Чпер * То * Тст./час * (1 +
) * ( 1 +
), (3.7)
где Чпер. - численность обслуживающего персонала, лиц – 3 человека;
То - время обслуживания системы ЛВС, часов – 8736 часов/год;
Тст/час - почасовая тарифная ставка обслуживающего персонала, грн. – 3,0 грн.;
Нд - норматив дополнительной зарплаты, 25%
Нсоц - норматив отчислений на социальные мероприятия, 38,52%.
Время обслуживания ЛВС рассчитаем по формуле:
То= Ч раб. сут/нд *Ксмена* Ч раб.нед/год * *Ч раб.час/смена (3.8)
То= (52*7*3*8)= 8736 час/год.
Численность обслуживающего персонала составляет 3 лица, поэтому зарплата обслуживающего персонала составит:
Зо=3*8736*3,00*1,25*1,3852=136137,46 грн.
Амортизационные отчисления А на использование ЛВС рассчитываются по формуле:
А = Кз/лвс *
+Слвс
*Нанм
(3.9)
где Кз/лвс - стоимость технических средств ЛВС, грн. – 113903,20 грн;
На - норма амортизационных отчислений – 4% (см. таблицу 3.1);
Слвс – себестоимость создания сети – 5253,80 грн.(см. таблицу 3.4);
Нанм – норма годовой амортизации на нематериальные активы (15%).
Для проектируемого варианта амортизационные отчисления составляют:
А=113903,20 *4/100+5253,80 *15/100=5344,20 грн.
Затраты на использованную активным сетевым оборудованием электроэнергию рассчитываются по формуле:
эл/эн = Wлвс * Тлвс * Тэл/эн (3.10)
где Wлвс -суммарная мощностьоборудования ЛВС, кВт/ч – 13 кВт/час.
Тлвс - время работы рабочих станций ЛВС за год; часов – 3 смены.
Тэл/эн - стоимость одной квт/ч. электроэнергии = 0,5846 грн.
Предполагается, что ЛВС работает постоянно, поэтому время ее работы:
Тлвс=8736 часов
Подставляя значения в формулу 3.10 получим:
Зэл/эн=13*8736*0,5846=66391,85 грн.
Затраты на ремонт и эксплуатацию технических средств определяются по формуле:
Зр = Стз *
, (3.11)
где Стз - стоимость технических средств, грн.
Нр - отчисление на эксплуатацию (содержание), ремонт ЛВС, %.
Для проектируемого варианта:
Зр=113903,20 *10/100=11390,32 грн;
результаты расчетов по затратам на все время (за год) эксплуатации ЛВС приводятся в таблице 3.6.
Таблица 3.6 - Годовые затраты при использовании ЛВС
| Виды затрат | Условные обозначе-ния | Единица измерения | Величина затрат, (грн.) |
| Зарплата обслуживающего персонала (2190,00*12) | Зо | грн. | 26280,00 |
| Стоимость электроэнергии | Зэл/эн | грн. | 66391,85 |
| Амортизационные отчисления ЛВС | А лвс | грн. | 5344,20 |
| Ремонт и эксплуатация ЛВС | Зр. | грн. | 11390,32 |
| Всего | å | грн. | 109406,37 |
3.7 Расчет экономического эффекта от создания и эксплуатации ЛВС
Рассчитаем годовой экономический эффект от внедрения кабельной сети.
Изучив спрос на подобные услуги в г. Северодонецке и проанализировав журналы учета работы в трех организациях, Homelan, Starlan, Citylan, предоставляющих подобные услуги, можно сделать следующий прогноз о коммерческом использовании проектируемого оборудования.
Стоимость подключения рабочих станций (жильцов домов) в которых смонтирована ЛВС – 100 грн. Абонентская плата за пользование услугами ЛВС в месяц – 30 грн., включение выхода в Internet – 20 грн. ежемесячно.
Таким образом анализируемая ЛВС, в случае использования ее в коммерческих целях могла бы приносить (ежемесячно) доход –
30*864+20*864 = 43200грн/мес,
За установку и подключение к ЛВС (единоразово) будет уплачено:
100*864 = 86400 грн.
Общий доход будет составлять, в год:
43200*12 + 86400 = 604800 грн.
Суммарный годовой экономический эффект от внедрения ЛВС составит разницу ежегодных затрат на обеспечение функционирования ЛВС и прибыли по всем направлениям использования:
Эг = Эк - Зф (3.12)
где Эк – доходы от коммерческого использования оборудования (604800 грн.);
Зф – годовые затраты на функционирование ЛВС (109406,37 грн.);
Таким образом Эг =495393,63 грн.
Т ок= Кз/лвс/Эг= 132623,73*12/ 495393,63 =3,2 года.
Из этого значения видно, что затраты на создание и внедрение ЛВС окупятся максимум в течение 3,5 лет (если учитывать, что не все жители домов, сразу подключатся к ЛВС, а часть вообще не будет подключаться).
Расчетные значения основных технико-экономических показателей приводятся к таблице 3.7.
Таблица 3.7 - Технико-экономические показатели разрабатываемой ЛВС
| Наименование | Условные обозначе-ния | Единицы измерения | Значение (мес.) | Значение(год) |
| Технические | ||||
| 1. Скорость передачи | Ск | Mb/s | 100 | 100 |
| 2. Потребленная мощность | W | кВт/ч | 13 | 13 |
| 3. Общая длина линий | L | м | 1735 | 1735 |
| 4. Выход в Іnternet | Да | Да | ||
| Экономические | ||||
| 1. Стоимость оборудования на создание ЛВС | Стз | грн. | 113903,20 | 113903,20 |
| 2.Совокупные капитальные затраты на создание ЛВС | Кз/лвс | грн. | 132623,73 | 132623,73 |
| 3. Зарплата разработчиков | Зр | грн. | 2190,00 | 26280,00 |
| 4.Себестоимость разработки ЛВС | Ср | грн. | 5253,8 | 5253,8 |
| 5. Годовые затраты на эксплуатацию ЛВС | Зг | грн. | 9117,20 | 109406,37 |
| 6. Годовой экономический эффект от создания и эксплуатаци ЛВС | Эг | грн. | 41282,80 | 495393,63 |
Проектируемая система ЛВС даст полученный годовой экономический эффект в сумме 495393,63 грн., что разрешит окупить затраты в течение 3,5 лет.
В процессе работы «домашней» локальной вычислительной сети можно организовать дополнительные услуги населению, а при уменьшении работ по подключению абонентов сети, сократить численность обслуживающего персонала, предусмотреть возможность подключения дополнительных, близлежащих домов, чем существенно увеличится прибыль, при минимальных затратах на приобретение дополнительного оборудования.
4 ОХРАНА ТРУДА
Совокупность факторов производственной среды, оказывающей влияние на здоровье и работоспособность человека в процессе труда называется условиями труда. Организация и улучшение условий труда на рабочем месте является одним из важных резервов производительности и эффективности труда.
Основными, при определении условий труда являются следующие вопросы:
- производственный микроклимат помещения;
- производственное освещение;
- воздействие шума и вибрации;
- электромагнитные излучения
- электропожаробезопасность;
- эргонометрические характеристики рабочего места.
4.1 Производственный микроклимат
Нормы производственного микроклимата определяют оптимальные условия для рабочей зоны и нормируются в соответствии с ГОСТ 12.1.005-88 ССБТ (Общие санитарно-гигиенические требования к воздуху рабочей зоны). Контроль параметров воздушной среды осуществляется соответствующими специалистами с помощью следующих приборов:
- термометр (температура воздуха);
- психрометр (относительная влажность);
- анемометр (скорость движения воздуха);
- актинометр (интенсивность теплового излучения);
- газоанализатор (концентрация вредных веществ).
Для рассматриваемых помещений характерны следующие показатели:
1. Комната серверной станции (Приложение М):
- температура воздуха 16-18˚С - в холодное время года, 18-20˚С - в теплое;
- относительная влажность воздуха 40-60% - в холодное время года, 55-75% - в теплое;
- скорость движения воздуха 0,2 м/с.
2. Комната технического отдела:
- температура воздуха 18-20˚ С - в холодное время года, 20-22˚С - в теплое;
- относительная влажность воздуха 40-60% - в холодное время года, 55-75% - в теплое;
- скорость движения воздуха 0,2 м/с.
3. Комната расчетного отдела:
- температура воздуха 20-22˚ С - в холодное время года, 22-24˚С - в теплое;
- относительная влажность воздуха 40-60% - в холодное время года, 55-75% - в теплое;
- скорость движения воздуха 0,2 м/с.
С целью создания комфортных условий труда, для поддержания влажности и оптимальной температуры в помещениях установлены кондиционеры (вентиляция, охлаждение, увлажнение воздуха). Система кондиционирования воздуха обеспечивает поддержание необходимых параметров микроклимата, осуществляет очистку воздуха от пыли и вредных веществ.
4.2 Производственное освещение
Освещение рабочего места - важнейший фактор создания нормальных условий труда. Правильно спроектированное и выполненное освещение обеспечивает высокий уровень работоспособности, оказывает положительное психологическое воздействие на работающего, способствует повышению производительности труда. О важности вопросов производственного освещения говорит и тот факт, что условия деятельности операторов в системе «человек -машина» связаны с явным преобладанием зрительной информации – до 90% общего объема.
Зрительную работу оператора следует отнести к 1-й категории, следовательно, освещенность должна быть не менее 300 лк (в соответствии с ДНБ В 25.28.2006).
По конструктивному выполнению искусственное освещение может быть общим или комбинированным. При общей освещенности все рабочие места получают рабочее освещение от общей установки. Комбинированное освещение наряду с общим включает местное освещение рабочего места. Исходя из требований отсутствия бликов и равномерности освещения, целесообразно выбрать общее искусственное освещение.
В соответствии с ДНБ В 25.28.2006 для искусственного освещения помещений следует применять главным образом люминесцентные лампы, у которых высокая световая отдача, продолжительный срок службы, малая яркость светящейся поверхности, близкий к естественному спектральный состав. Наиболее приемлемы лампы ЛБ (белый свет) и ЛТБ (тепло-белый свет) мощностью 20, 40 или 80 Вт. Система общего искусственного освещения должна быть выполнена потолочными или подвесными лампами, размещенными параллельно светопроемам и равномерно по потолку.
4.2.1 Расчет искусственного освещения
Светотехнические расчеты являются основой при проектировании осветительных установок. Целью расчета является определение нужного светового потока светильников, по которым в справочных таблицах находят наиболее близкое значение мощности стандартной лампы нужного типа. Считается допустимым, если световой поток выбранной стандартной лампы отличается от расчетного не более чем на -10 или +20%.
В данной дипломной работе для организации освещения серверной станции нужно сначала рассчитать площадь помещений в соответствии с предоставленным в ТЗ планом, а также основными санитарно гигиеническими нормами и требованиями (Приложения К и М).
Размер серверной комнаты: длина – 3,0 м, ширина – 5,0 м, высота – 3,0 м; разряд зрительной работы – 4.
Размер комнаты технического отдела: длина – 10,0 м, ширина – 5,0 м, высота – 3,0 м; разряд зрительной работы – 4.
Размер комнаты расчетного отдела: длина – 8,0 м, ширина – 7,0 м, высота – 3,0 м; разряд зрительной работы – 4.
Следует рассчитать систему общего освещения
Высота подвеса светильника над рабочей поверхностью:
. (4.1)
Высота помещения
. Высота рабочей поверхности стола
. Высота свеса светильника от потолка
. Итоговая высота подвеса
м
Освещаемая площадь серверной комнаты:
Sмин =15 м2
Освещаемая площадь технического отдела:
Sмин =50 м2
Освещаемая площадь расчетного отдела:
Sмин =56 м2
Индекс помещения серверной комнаты:
![]()
Индекс помещения технического отдела:
![]()
Индекс помещения комнаты расчетного отдела:
![]()
С учетом индекса помещения, коэффициентов отражения потолка стен и пола и типа выбранного светильника следует определить коэффициент светового потока η:
η =25
Световой поток принятой лампы Фл
, лм: необходимо выбрать характеристики, соответствующие типу лампы - ЛБ: напряжение – 220±22 В, продолжительность горения – 5200 ч (минимальная) и 13 000 ч (средняя), световой поток после 100 ч горения 4800+/–250 лм. Таким образом, световой поток
лм.
Необходимое количество светильников:
(4.2)
Emin
– минимальная освещенность рабочего места оператора, в соответствии со СНиП, Emin
=300 лм,
,
(коэффициент затенения для помещений с фиксированным положением оператора),
(коэффициент неравномерности освещения),
- количество люминесцентных ламп в светильнике. В данном случае выбран светильник с двумя люминесцентными лампами
.
Для серверной комнаты:
![]()
Для технического отдела:
![]()
Для комнаты расчетного отдела:
![]()
Из расчетов видно, что для серверной комнаты требуется минимум 4 светильника типа
, для технического отдела 12, для расчетного отдела 14. Полученные значения принимаем к размещению светильников.
Наилучшими вариантами размещения светильников в помещении является шахматное размещение или расположение светильников по сторонам квадрата (расстояние
между светильниками в ряду и между рядами светильников равны) при четном числе светильников. При размещении светильников с люминесцентными лампами последние располагают рядами – параллельно рядам оборудования или оконным проемам. Так же могут быть предусмотрены разрывы между светильниками.
Характеристики выбранного светильника:
- Длина ![]()
![]()
- Ширина ![]()
![]()
- Высота ![]()
![]()
- Две лампы типа
мощностью по 80
каждая.
Размеры помещения серверной комнаты – 5х3 м, техотдела – 10х5 м, расчетного отдела – 7х8 м. С учетом характеристик светильника можно получить схему рационального расположения светильников в помещении. Следует воспользоваться разработанной методикой, позволяющей рационально разместить светильники с люминесцентными лампами в помещении. По конструктивным особенностям помещение предусматривает разрывы между светильниками, если невозможно разместить все светильники в один ряд:
![]()
где
,
- длина светильника,
,
- общая суммарная длина светильников, расположенных в ряд.
Для серверной комнаты:
LΣ = 4·1.4=5,6 м >5 м
Для технического отдела:
LΣ = 12·1.4=16,8 м >5 м
Для расчетного отдела:
LΣ = 14·1.4= 19,6 м >7 м
Таким образом, из анализа величины LΣ следует, рациональным будет размещение светильников в серверной комнате в два ряда по 2 светильника в каждом, в техотделе в четыре ряда по 3 светильника в каждом, в расчетном отделе три ряда по 4 светильника, а последний ряд два светильника.
Рассчитанную систему можно проектировать.
4.2.2 Расчет естественного освещения помещений
Освещение производственных помещений влияет на состояние здоровья, продуктивность работы, качество продукции и уровень производственного травматизма. Организация правильного освещения рабочих мест, зон обработки и производственных помещений имеет большое санитарно-гигиеническое значение, способствует повышению продуктивности работы, снижения травматизма, улучшения качества выполняемых работ. И наоборот, недостаточное освещение усложняет исполнения технологического процесса и может быть причиной несчастного случая и заболевания органов зрения.
Освещение должно удовлетворять основные требования:
- быть равномерным и довольно сильным;
- не создавать различных теней на местах работы, контрастов между освещенным рабочем местом и окружающей обстановкой;
- не создавать ненужной яркости и блеска в поле зрения работников;
- давать правильное направление светового потока.
Все производственные помещения необходимо иметь светлопрорезы, которые дают достаточное естественное освещение. Без природного освещения могут быть конференц-залы заседаний, выставочные залы, раздевалки, санитарно-бытовые помещения, помещения ожидания медицинских учреждений, помещений личной гигиены, коридоры и проходы.
Коэфициент естественного освещения в соответствии с ДНБ В 25.28.2006, для III пояса светового климата составляет 1,5.
Исходя из этого произведем расчет необходимой площади оконных проемов.
Расчет площади окон при боковом освещении определяется, по формуле:
Sо = (Ln *Кз. *N0 *Sn *Кзд. )/(100 *T0 *r1) (4.3)
где Ln – нормированное значение КЕО;
Кз – коэффициент запаса (равен 1,2);
N0 – световая характеристика окон;
Sn – площадь достаточного естественного освещения;
Кзд. – коэффициент, учитывающий затенение окон противостоящими зданиями;
r1 – коэффициент, учитывающий повышение КЕО при боковом освещении;
T0 – общий коэффициент светопропускания, который рассчитывается по формуле:
T0 = T1 * T2 * T3 * T4 * T5, (4.4)
где T1 – коэффициент светопропускания материала;
T2 – коэффициент, учитывающий потери света в переплетах светопроема;
T3 – коэффициент, учитывающий потери света в несущих конструкциях;
T4 – коэффициент, учитывающий потери света в солнцезащитный устройствах;
T5 – коэффициент, учитывающий потери света в защитной сетке, устанавливаемой под фонарями, принимается равным 1.
Теперь следует рассчитать боковое освещение для зоны, примыкающей к наружной стене. По разряду зрительной работы нужно определить значение КЕО. КЕО = 1,5 нормированное значение КЕО с учетом светового климата необходимо вычислить по формуле
Ln =l*m*c, (4.5)
где l – значение КЕО (l=1.5);
m – коэффициент светового климата (m=1);
c – коэффициент солнечности климата (c=1)
Ln =1,5
Теперь следует определить отношение длины помещения Ln к глубине помещения B для серверной комнаты:
Ln /B=5/3 =1,6;
Для техотдела:
Ln /B=5/10 =0,5;
Для расчетного отдела:
Ln /B=8/7 =1,14.
Отношение глубины помещения В к высоте от уровня условной рабочей поверхности до верха окна h1 (в данном случае h1 =0,3) для техотдела:
B/h1 =10/0,3 = 3,33.
Для расчетного отдела:
B/h1 =8/0,3 = 26,6.
Для серверной комнаты не рассматривается, т.к. серверная комната не имеет оконных проемов.
Световая характеристика световых проемов N0 =9.
Кзд =1
Значение T0 =0,8*0,7*1*1*1=0,56.
Ln для 4 разряда зрительных работ равен 1,5 при мытье окон два раза в год.
Определяем r1, r1=1,5.
Кз. =1,2.
Теперь следует определить значение Sп для каждого помещения:
Для техотдела:
Sп =Ln *В=5*10=50 м2 .
Для расчетного отдела:
Sп =Ln *В=7*8=56 м2 .
Кзд. =1.
На данном этапе следует рассчитать необходимую площадь оконных проемов для каждого помещения: (Ln * Кз. *N0 *Sn *Кзд. ) / (100*T0 *r1) (4.6)
Для техотдела:
Sо = (1,5*1,2*9*50*1)/(100*0,56*1,5)=810/84= 9,6 м2 ;
Принимаем количество окон 1 штука:
S1 =9,6 м2 площадь одного окна
Высота одного окна составляет – 2 м, ширина 4,8 м.
Для расчетного отдела:
Sо = (1,5*1,2*9*56*1)/(100*0,56*1,5)=907/84= 10,8 м2 ;
Принимаем количество окон 1 штука:
S1 =10,8 м2 площадь одного окна
Высота одного окна составляет – 2 м, ширина 5,4 м.
4.3 Расчет вентиляции
В зависимости от способа перемещения воздуха вентиляция бывает естественная и принудительная.
Параметры воздуха, поступающего в приемные отверстия и проемы местных отсосов технологических и других устройств, которые расположены в рабочей зоне, следует принимать в соответствии с ГОСТ 12.1.005-76. При размерах помещения 3 на 5 метров и высоте 3 метра, его объем 45 куб.м. Следовательно, вентиляция должна обеспечивать расход воздуха в 90 куб.м/час. В летнее время следует предусмотреть установку кондиционера с целью избежания превышения температуры в помещении для устойчивой работы оборудования. Необходимо уделить должное внимание количеству пыли в воздухе, так как это непосредственно влияет на надежность и ресурс эксплуатации ЭВМ.
Мощность (точнее мощность охлаждения) кондиционера является главной его характеристикой, от неё зависит на какой объем помещения он рассчитан. Для ориентировочных расчетов берется 1 кВт на 10 м2 при высоте потолков 2,8 – 3 м (в соответствии со СНиП 2.04.05-86 "Отопление, вентиляция и кондиционирование").
Для расчета теплопритоков данного помещения использована упрощенная методика:
Q=S·h·q (4.7)
где: Q – Теплопритоки;
S – Площадь помещения;
h – Высота помещения;
q – Коэффициент равный 30-40 вт/м3 (в данном случае 35 вт/м3 )
Для данного проекта будет целесообразным использование отдельного кондиционера для каждой комнаты, поэтому, соответственно, и расчеты следует проводить для каждой комнаты в отдельности.
Для серверной комнаты теплопритоки будут составлять:
Q=15·4·35=2100 вт;
Для технического отдела теплопритоки будут составлять:
Q=50·4·35=7000 вт;
Для комнаты расчетного отдела теплопритоки будут составлять:
Q=56·4·35=7840 вт.
Кроме этого следует учитывать тепловыделение от оргтехники и людей, считается (в соответствии со СНиП 2.04.05-86 "Отопление, вентиляция и кондиционирование") что в спокойном состоянии человек выделяет 0,1 кВт тепла, компьютер или копировальный аппарат 0,3 кВт, прибавив эти значения к общим теплопритокам можно получить необходимую мощность охлаждения.
Qдоп =(H·Sопер )+(С·Sкомп )+(P·Sпринт ) (4.8)
где: Qдоп – Сумма дополнительных теплопритоков;
C – Тепловыделение компьютера;
H – Тепловыделение оператора;
D – Тепловыделение принтера;
Sкомп – Количество рабочих станций;
Sпринт – Количество принтеров;
Sопер – Количество операторов.
Дополнительные теплопритоки для серверной комнаты:
Qдоп1 =(0,1·1)+(0,3·1)+(0,3·1)=0,7;
Дополнительные теплопритоки расчетного отдела:
Qдоп2 =(0,1·2)+(0,3·1)+(0,3·1)=0,8;
Дополнительные теплопритоки для расчетного отдела:
Qдоп3 =(0,1·1)+(0,3·1)+(0,3·1)=0,7.
Итого сумма теплопритоков равна:
Для серверной комнаты:
Qобщ1 =2100+700=2800 вт.
Для технического отдела:
Qобщ2 =7000+800=7800 вт.
Для расчетного отдела:
Qобщ3 =7840+700=8540 вт.
Сумма всех теплопритоков:
Q= 2800+7800+8540=19140 вт.
В соответствии с данными расчетами необходимо выбрать целесообразную мощность и количество кондиционеров.
Для серверной комнаты будем использовать кондиционер с номинальной мощностью 3,0 кВт, для комнаты технического отдела – кондиционер мощностью 8,0 кВт, а для комнаты расчетного отдела – 8,5 кВт.
4.4 Организация отопления
Отопление предназначено для обеспечения температурных условий в помещении соответственно требований санитарных норм в холодное и переходное времена года. Обогреваться может все помещение, а также отдельные рабочие места.
Отопительные системы состоят из таких основных элементов: генератор тепла – установка, в которой тепло, полученное за счет горения или преобразованное электрической силой передается воде, пару, воздуху, нагревательные приборы, которые передают тепло воздуху, трубопроводы, по которым теплоносители передаются от генератора к нагревательным приборам.
При водяном отоплении теплоносителем являеется нагретая вода температурой до 100о С и выше. В паровых системах теплоноситель – пар – перемещается к отопительным приборам под собственным давлением.
Теплоноситель в воздушных системах – этот горячий воздух, который нагревается в калорифере, по строению различают центральное или местное воздушное отопление. В центральных системах нагретый воздух подается к помещениям по трубопроводам. Из существующих систем центрального отопления самым распространненым является система водяного отопления низкого давления. Она имеет такие санитарно-гигиенические и эксплуатационные свойства: возможность регуляции теплоотдачи отопительных приборов в зависимости от температуры внешнего воздуха, изменения температуры или расходы горячей воды; пожарная безопасность; долговечность системы (срок эксплуатации 30-50 лет); возможность размещения отопительных приборов вдоль внешних стен и под окнами; простота эксплуатации.
Эти системы используют преимущественно для отопления бытовых и общественных помещений.
Системы водяного отопления высокого давления используют для отопления производственных помещений. В таких системах температура воды составляет 130-145о С. Относительно санитарно-гигиенических характеристик водяного отопления высокого давления, то они уступают системам низкого давления.
Для отопления общественных зданий также применяют комбинируемые пароводяные системы.
Чтоб предотвратить проникновение холодного воздуха к помещениям, ворота, двери или технологические прорези оборудуют воздушными или воздушно-тепловыми завесами.
Расчет отопления серверной станции не производим, т.к. помещение серверной станции находится в одной из квартир, запитано от общей системы отопления жилых домов.
4.5 Воздействие шума
Шум - всякий нежелательный для человека звук, мешающий восприятию полезных сигналов. Для измерения шума служат шумомеры типа ШВК с фильтром ФЭ-2, а так же виброакустическая аппаратура типа RFT. Нормативным документом является ГОСТ 12.1.003-83 ССБТ.
Допустимые уровни звукового давления, уровни звука и эквивалентные им уровни шума на рабочем месте не должны превышать 20 дБ, что является областью звукового комфорта.
Источниками шума в рассматриваемых помещениях являются кондиционер, компьютер, принтер. Уровень шума - порядка 20 дБ, что не превышает допустимых уровней.
Внешний шум и вибрации в рассматриваемом помещении отсутствуют практически полностью, так как отделка выполнена с учетом требований звукоизоляции.
4.6 Электромагнитные излучения
Мониторы являются основным источником различных видов излучений (электромагнитного, ионизирующего, неионизирующего) и статического электричества. Электронно-лучевая трубка (ЭЛТ) монитора является потенциальным источником рентгеновского излучения.
В данном случае на рабочем месте установлен ПК типа IBM-PC с монитором 17" LG L1742S-SF,cеребристо-черный,TFT - монитор удовлетворяет стандарту ТСО 92.95.99 и MPR – II.
Тем не менее, в течение рабочего дня необходимо равномерно распределять и чередовать различную по степени напряженности нагрузку (ввод данных, редактирование программ, печать документов или чтение информации с экрана). При этом непрерывная работа за монитором не должна превышать четырех часов при 8 часовом рабочем дне, а количество обрабатываемых символов (знаков) 30 тыс. за 4 часа работы.
Таким образом, при использовании вышеуказанной аппаратуры и соблюдении изложенных требований условия работы за дисплеем выполнены в соответствии с основными требованиями санитарных норм и правил.
4.7 Электропожаробезопасность
Для обеспечения электробезопасности в помещении должны проверены следующие показатели:
- соответствие напряжения в сети тому на которое рассчитан ПК;
- наличие защитного заземления;
- меры защиты от перепадов в сети.
Приборы, находящиеся в помещении работают от номинального напряжения 220 В. В нашем случае применим заземление с изолированной нейтралью. Заземление выведено на заземляющий контур с сопротивлением 4 Ома. Заземление дисплеев осуществляется через системный блок ЭВМ.
Соединение ПК с сетью выполнено с помощью трехжильного медного силового кабеля с вилкой, имеющей клеммы заземления. Все провода в рабочем помещении имеют характеристики, соответствующие токам и напряжениям в сети.
При эксплуатации ЭВМ возможны возникновения следующих аварийных ситуаций:
- короткие замыкания;
- перегрузки;
- повышение переходных сопротивлений в электрических контактах;
- перенапряжение;
- возникновение токов утечки.
Обязательно наличие порошкового огнетушителя в помещении серверной станции.
4.8 Эргонометрические характеристики рабочего места
Большое значение в создании оптимальных условий труда имеет планировка рабочего места, которая должна удовлетворять требованиям удобства выполнения работ, экономии энергии и времени оператора.
Сидячая продолжительная работа вредна человеку в принципе: работник сутулится или подается вперед и его позвоночник деформируется, травмируя диски; он поднимает плечи и сгибает руки, держа их в напряжении - и естественно они начинают болеть. Пережимая сосуды, он перегружает сердце; ну а о хронических растяжениях сухожилий кистей рук и постоянно ухудшающемся зрении можно не говорить. Поза, а следовательно и здоровье, зависят, в конечном итоге, от размеров и дизайна рабочего места.
Рабочее пространство.
Научная организация рабочего пространства (Рис.4.1) базируется на данных о средней зоне охвата рук человека - 35-40 см. Ближней зоне соответствует область, охватываемая рукой с прижатым к туловищу локтем, дальней зоне - область вытянутой руки. Тонкой линией изображено фактическое положение монитора на рабочем столе сотрудника – на углу стола с левой стороны. Это приводит к значительному неудобству при работе. При работе с компьютером приходится постоянно поворачивать голову влево, что ведет к усталости шейных мышц.

Рисунок 4.1- Организация рабочего пространства
Внутренний объем. Значимым фактором является пространство под столешницей. Высота столов, использующихся на предприятии соответствует общепринятым стандартам, и составляет 74 см. Конструкция столов обеспечивает требования СанПин 2.2.2.542-96 по ширине и высоте необходимого пространства для ног.

Рисунок 4.2 - Необходимое пространство для ног
Взаимное расположение предметов на рабочем месте :
a1 - угол обзора по вертикали, 35°
a2 - угол наклона клавиатуры, 10°
h1 - высота рабочей поверхности, 79 см
h2 - высота сиденья стула, регулируется под конкретного человека
h3 - расстояние от края стола до клавиатуры, 10 см
h4 - расстояние от органов зрения оператора до экрана, 65 см
Взгляд человека направлен перпендикулярно центру экрана монитора.
При компоновке рабочего места не следует забывать о том, что наиболее важные из орудий труда следует располагать спереди и справа от человека.
Клавиатура, как наиболее часто используемое устройство ввода. Параметры этой зоны: угол - 70°, глубина - 30-40 см.
Остальные устройства - угол - 130 градусов, глубина 70-80 см.
С учетом выше приведенных данных об углах обзора, а так же зная максимальный размер зоны досягаемости правой руки (70-100 см), можно считать, что расположение рабочих предметов в моторном поле правильное.
ВЫВОДЫ
В дипломном проекте была разработана локальная домашняя сеть на 864 точки подключения, которые расположены в четырех рядом стоящих домах.
В процессе разработки было отведено значительное место теоретическим основам построения локальных сетей, практическим советам по построению домашних и офисных локальных сетей.
Так как пользователи сети могут воспользоваться либо всеми ресурсами сети, либо только их частью, было произведено деление доступа на следующие категории: общую для всех пользователей, специальную для пользователей, которые при оплате за пользование Интернетом, получают доступ в сеть Интернет и полную для администраторов и обслуживающего персонала. Для каждой категории пользователей был выделен определенный перечень функций и прав доступа.
Далее была разработана конфигурация сети, которая удовлетворяет критериям по быстродействию, надежности, стоимости, информационной безопасности.
Технология Fast Ethernet отвечает всем требованиям и подходит для домашней локальной сети. При увеличении рабочих станций сеть не надо полностью менять, а только заменить или добавить некоторые компоненты. Рекомендовано использовать смешанную топологию сети. За счет этого обеспечивается защита от разрыва кабеля, т.е. если кабель рабочей станции будет поврежден, это не приведет к выходу из строя всего сегмента сети, что обеспечивает надежность всей сети. Используется недорогой кабель типа витая пара.
В локальную сеть объединены следующие устройства:
- рабочие станции;
- серверные станции;
- концентраторы.
Проанализировав план расположения домов и помещения серверной станции, была разработана схема прокладки кабеля - внутренняя и внешняя прокладка кабеля. Внутренняя прокладка осуществляется в коридоре по кабель-каналу. Внешняя проводка проводится по крышам домов в коробах, а между домами в гофрированной полиэтиленовой защитной трубе, чем осуществляется защита кабеля от неблагоприятного воздействия окружающей среды и вандализма. Внутри гофротрубы протягивается стальная жила, которая защищает от растягивания кабеля под воздействием ветра. Кабель между этажами проложен в существующих кабель-каналах, предназначенных для прокладки кабелей связи. Выход на крышу осуществляется через кабель-канал для вывода антенн.
Для защиты информации в сети рекомендую ограничить доступ паролями и ключами активации и установить антивирусы на все рабочие станции и особенно на сервер.
В стоимость проекта не входит стоимость прокладки кабеля к рабочей станции пользователя, не учитываются и вид оборудования, которое будет использовано в качестве рабочей станции пользователем, не учитывается стоимость сетевых карт.
При разработке выяснилось, с экономической точки зрения, выгоднее поставить в подъездах концентраторы с 16 выходами, чем с 24. Во-первых мы экономим на стоимости концентраторов, порядка 6000 грн., во-вторых при дальнейшем подключении квартир, расстояние между квартирой и концентратором значительно меньше, чем улучшается качество работы и обслуживания, стоимость подключения.
Концентраторы рекомендуется поместить в монтажные коробки размещенные поблизости электрощитов, чем будет обеспечен постоянный доступ обслуживающего персонала и подача напряжения сети питания.
В проекте предусмотрено рациональное размещения концентраторов, возможность работы сети при обрыве магистрального кабеля, пропадании напряжения в сети питания.
Рекомендуется рассмотреть вопрос использования Wi-Fi технологий, для организации беспроводной связи между домами. На данном этапе стоимость применения Wi-Fi существенно увеличит цену проектируемой сети.
Основную стоимость создания локальной сети составляет стоимость оборудования и программного обеспечения.
Рекомендуется для беспрепятственного доступа в Интернет в пределах одной квартиры использовать роутеры.
Проектируемая система ЛВС даст получить годовой экономический эффект в сумме 495393,63 грн., что разрешит окупить затраты в течение 3,5 лет.
В разделе охраны труда был произведен расчет отопления, вентиляции, природного и искусственного освещений. Сравнив их с нормативными значениями, сделал вывод, что все нормы охраны труда соблюдаются.
Перечень ссылок
1. ГОСТ 12.3.002-75-ССБТ. Процессы производственные. Общие требования безопасности (с изменениями по И-1-V-80; И-2-II-91).
2. Минаев И.Я. Локальная сеть своими руками. 100% Самоучитель – М., ТЕХНОЛОГИИ- 3000, 2004 – 368 с.
3. ГОСТ 12.1.005-88-ССБТ. Общие санитарно-гигиенические требования к воздуху рабочей зоны.
4. СНиП 2.04.05 – 91 – Отопление, вентиляция, кондиционирование (с изменениями по И-1-94).
5. ГОСТ 12.1.003 – 88 – ССБТ. Общие санитарно-гигиенические требования к воздуху рабочей зоны.
6.СНиП 23-05-95. Естественное и искусственное освещение. – К.: Держстандарт, 2005 – 129с.
7. СанПин 2.2.2.542-96. Гигиенические требования к видеодисплейным терминалам, персональным электронно–вычислительным машинам и организация работы (Постановление Держнагляду от 14.07.1996г. №14). Санитарные правила и нормы. – К.: Информационно-издательский центр Дерстандарт, 1996.
8. Холмогоров В. Компьютерная сеть своими руками. Самоучитель – СПб, Питер, 2009 – 171с.
9. Сергеев А.П. Офисные локальные сети. Самоучитель – М., Вильямс, 2006 320с.
10. Кульгин М.С. Компьютерные сети. Практика построения – СПб, Питер, 2007 – 462с.
11. Жидецкий В.Ц., Джигирей В.С., Мельников А.В. Основы охраны труда. Учебник – Львов, Афиша, 2000 – 351с.
12. Нанс Б. Компьютерные сети: Пер. с англ.- М.: «БИНОМ», 2006. — 400 с.
13. Гук М.Локальные сети Novell. Карманная энциклопедия - СПб.: Питер, 2006. — 288 с.
14. Нессер Д. Дж.Оптимизация и поиск неисправностей в сетях: Пер. с англ. - К.: «Диалектика», 1996. — 384 с.
15. Компьютерные сети. Учебный курс / Пер. с англ.М.: Издательский отдел «Русская Редакция» ТОО «Channel Trading Ltd.», 2007. — 832 с.
16. Новиков Ю.В., Карпенко Д.Г.Оптоволоконная локальная сеть персональных компьютеров типа «звезда»// Информационные технологии и системы. Hardware Software Security. Тенденции и перспективы. Сборник статей / Сост. Мельников Д.Я.М., Международная академия информатизации, 2007, с. 24—33.
17. Новиков Ю.В., Карпенко Д.Г.Комбинированный метод доступа к каналу для волоконно-оптической сети компьютеров типа «кольцо»//Электроника и информатика — 97. Вторая всероссийская научно-техническая конференция с международным участием: В 2ч. Тезисы докладов.М.:МИЭТ, 2001, с.64 65.
18. Новиков Ю.В., Карпенко Д.Г.Аппаратура локальных сетей: функции, выбор, разработка.- М.: ЭКОМ, 2008.— 288 с.
19. Новиков Ю.В., Карпенко Д.Г. Волоконно-оптическая сеть персональных компьютеров типа «кольцо» //Информационные продукты, процессы и технологии. Computer-Aided Software and Hardware Engineering. М.: Технологиямашиностроения, 2008, с.66—73.
20. Мюллер С. Модернизация и ремонт персональных компьютеров. / Пер. с англ. - М.: ЗАО «Издательство БИНОМ», 2008. — 944 с
21. Новиков Ю.В., Кондратенко С.В. Локальные сети. Архитектура, алгоритмы, проектирование. - М.: ЭКОМ, 2000. — 312 с.
22. Закер К. Компьютерные сети. Модернизация и поиск неисправностей. СПб.: БХВ-Петербург, 2001. — 1008 с.
Приложение А
Сравнительный анализ топологий локально вычислительных сетей
Таблица А.1 - Сравнительный анализ топологий ЛВС
| Характеристики | Топологии вычислительных сетей | ||
| Звезда | Кольцо | Шина | |
| Стоимость расширения | Незначительная | Средняя | Средняя |
| Присоединение абонентов | Пассивное | Активное | Пассивное |
| Защита от отказов | Незначительная | Незначительная | Высокая |
| Размеры системы | Любые | Любые | Ограниченны |
Защищенность от прослушивания |
Хорошая | Хорошая | Незначительная |
Стоимость подключения |
Незначительная | Незначительная | Высокая |
| Поведение системы при высоких нагрузках | Хорошее | Удовлетворительное | Плохое |
| Возможность работы в реальном режиме времени | Очень хорошая | Хорошая | Плохая |
| Разводка кабеля | Хорошая | Удовлетворительная | Хорошая |
| Обслуживание | Очень хорошее | Среднее | Среднее |
Приложение Б
Сравнительный анализ технологий локальных сетей
Таблица Б.1- Спецификация сетевого оборудования
| Характеристики | Методы передачи информации | ||
| Ethernet | Token Ring | ArcNet | |
| Топология | Локальная типа «шина» | Кольцевая или типа «звезда-кольцо» |
Наборы сегментов типа «звезда» |
| Тип кабеля | RG–58 | Экранированная или неэкранированная витая пара |
RG–62 или RG–59 |
| Импеданс | 50 Ом | — | — |
| Сопротивление терминаторов | 50 Ом, ± 2 Ом | 100 – 200 Ом UTP, 150 Ом TP | RG–59: 75 Ом RG–62: 93 Ом |
Максимальная длина кабеля в сегменте |
185 м | 45 – 200 м (в зависимости от используемого кабеля) | В среднем: W–W: 120 м A–A: 606 м P–W или P–A: 30 м |
| Минимальный промежуток между компьютерами | 0,5 м | 2,5 м | В зависимости от используемого кабеля |
| Максимальное количество сегментов | 5 | 33 устройства MAU | Не поддерживает соединения сегментов |
| Максимальное количество компьютеров в сегменте | 30 | Неэкранированная витая пара: 72 рабочих станции, Экранированной витая пара: 260 рабочих станций | В зависимости от используемого кабеля |
ПРИЛОЖЕНИЕ Б (Продолжение)
Таблица Б.2- Спецификация сетевого оборудования
| Характеристики | Методы передачи информации | ||
| FDDI | АТМ | Apple Talk | |
| Топология | Двойное кольцо | Универсальная | Общая шина или дерево |
| Тип кабеля | Оптоволоконный | Витая пара категории 3 – витая пара категории 5, оптоволокно | Любой |
| Импеданс | - | — | — |
| Сопротивление терминаторов | 50 Ом, ± 2 Ом | 50 Ом | 50 Ом |
| Максимальная длина кабеля в сегменте | 100 м | 45 – 200 м (в зависимости от используемого коммутатора) | 300 м |
| Минимальный промежуток между компьютерами | - | 0,5 м | В зависимости от используемого кабеля |
| Максимальное количество сегментов | 2 | Не поддерживает соединения сегментов | Не поддерживает соединения сегментов |
| Максимальное количество компьютеров в сегменте | ∞ | Неэкранированная витая пара: 72 рабочих станции, Экранированной витая пара: 260 рабочих станций | 32 |
Приложение В
СРавнительный анализ сетевых операционных систем
Таблица В.1 - Сравнительный анализ сетевых операционных систем
| Характеристика | Сетевая операционная система для сервера | ||
| Windows Server 2003 | Windows Server 2008 | Windows Server 2008 R2 | |
| Производительность | ++ | + | +++ |
| Тип процессора | Pentium 200Мгц (лучше 350Мгц) | Pentium 200Mгц и выше | 1,4 ГГц (процессор с архитектурой x64) или Intel Itanium 2. |
| Объём ОЗУ необходимый для нормальной работы | 2 Гбайт | 5 Гбайт | 8 Гбайт |
| Необходимый для инсталяции объём на жёстком диске | 20 Гбайт | 22 Гбайт | 32 Гбайт |
| Совместимость с другими типами сетей | + | + | + |
| Разрядность | 32 бит | 32 бит | 32/64 бит |
| Многозадачность | + | + | + |
| Защита и надёжность | Система аутэтенди-фикации, система прослеживания тран-закций, поддержка протокола безопас-ности IP Security Protocol зеркализация дисков, поддержи-вает кластеризацию с интегрированной балансировкой нагрузки, контроль сигналов от UPS |
Система аутэтендификации, файловая система основанная на транзакциях, поддержка RAID 5 уровня, возможность распознавания сигналов от UPS | Система аутэтендификации, система прослеживания транзакций, зеркализация дисков, «горячее» резервирование дорожек диска, каналов и целых серверов, контроль сигналов от UPS |
| Простота управления | +++ | ++ | +++ |
| Интерфейс | Графический | Графический | Графический |
| Простота установки | +++ | ++ | +++ |
ПРИЛОЖЕНИЕ Г
СХЕМЫ РАСПОЛОЖЕНИЯ КОНЦЕНТРАТОРОВ

Рисунок Г.1 – Размещение концентраторов на этажах домов
а) б)
Рисунок Г.2 – Расположение концентраторов в многоэтажных домах:
а) 12-ти этажный; б) 9-ти этажный.
ПРИЛОЖЕНИЕ Д
ХАРАКТЕРИСТИКИ КОНЦЕНТРАТОРОВ COMPEX TP1016C E-net HUB 10Base-T 16 port
Таблица Д.1 – Характеристики концентратора COMPEX TP1016C E-net HUB 10Base-T 16 port
| Тип оборудования | Концентратор |
| Серия | MicroHub |
| Внешний интерфейс | 16 UTP разъемов / 1BNC / 1AUI |
| Uplink | Есть |
| Блок питания | Встроенный |
| Поддержка ОС | Не требуется |
| Потребление энергии | 25 ватт |
| Размеры внешние | 11 х 43.1 х 4.5 см |

Рисунок Д.1 – Внешний вид концентратора COMPEX TP1016C E-net HUB 10Base-T 16 port
ПРИЛОЖЕНИЕ Ж
МОНТАЖНЫЕ КАРТЫ ВКЛЮЧЕНИЯ КОНЦЕНТРАТОРОВ
Таблица Ж.1 – Монтажная таблица подключения магістрального концентратора К-1
| Приход | Расположение | Концентратор | Вывод | Направлениевключения |
| Сервер | № 4 - 6/12 |
К-1 | 1 | №2, 4,К-20, |
| -«- | 2 | №4,6,К- 2 | ||
| -«- | 3 | №4,6,К-21 | ||
| -«- | 4 | Кв. № 287 | ||
| -«- | 5 | Кв. № 285 | ||
| -«- | 6 | Кв. №284 | ||
| -«- | 7 | Кв. №283 | ||
| -«- | 8 | Кв. №282 | ||
| -«- | 9 | Кв. №281 | ||
| -«- | 10 | Кв. №280 | ||
| -«- | 11 | Кв. №279 | ||
| -«- | 12 | Кв. №278 | ||
| -«- | 13 | Кв. №277 | ||
| -«- | 14 | Кв. №276 | ||
| -«- | 15 | Кв. №275 | ||
| -«- | 16 | Резерв |
ПРИЛОЖЕНИЕ Ж
(Продолжение)
Таблица Ж.2 – Монтажная таблица подключения магістрального концентратора К-2
| Приход | Расположение | Концентратор | Вывод | Направление включения |
К-1 №4,6 |
№ 4 - 5/12 |
К-2 | 1 | №4, К-3 |
| -«- | 2 | №4, К-23 | ||
| -«- | 3 | Кв. №240 | ||
| -«- | 4 | Кв. № 239 | ||
| -«- | 5 | Кв. № 238 | ||
| -«- | 6 | Кв. №237 | ||
| -«- | 7 | Кв. №236 | ||
| -«- | 8 | Кв. №235 | ||
| -«- | 9 | Кв. №234 | ||
| -«- | 10 | Кв. №233 | ||
| -«- | 11 | Кв. №232 | ||
| -«- | 12 | Кв. №231 | ||
| -«- | 13 | Кв. №230 | ||
| -«- | 14 | Кв. №229 | ||
| -«- | 15 | Кв. №228 | ||
| -«- | 16 | Резерв |
ПРИЛОЖЕНИЕ Ж (Продолжение)
Таблица Ж.3 – Монтажная таблица подключения подъездного концентратора К-21
| Приход | Располож. | Концен. | Вывод | Направление включения |
К-1 №4,6/12 |
№ 4 - 6/8 |
К-21 | 1 | №4, К-22 |
| -«- | 2 | Кв. №274 | ||
| -«- | 3 | Кв. №273 | ||
| -«- | 4 | Кв. № 272 | ||
| -«- | 5 | Кв. № 271 | ||
| -«- | 6 | Кв. №270 | ||
| -«- | 7 | Кв. №269 | ||
| -«- | 8 | Кв. №268 | ||
| -«- | 9 | Кв. №267 | ||
| -«- | 10 | Кв. №266 | ||
| -«- | 11 | Кв. №265 | ||
| -«- | 12 | Кв. №264 | ||
| -«- | 13 | Кв. №263 | ||
| -«- | 14 | Кв. №262 | ||
| -«- | 15 | Кв. №261 | ||
| -«- | 16 | Резерв |
ПРИЛОЖЕНИЕ И
РАСПОЛОЖЕНИЕ КОНЦЕНТРАТОРОВ «ДОМАШНЕЙ» ЛОКАЛЬНОЙ СЕТИ
Таблица И.1
| № концентратора | Расположение * | № концентратора | Расположение * | № концентратора | Расположение * |
| К-1 | №4/6/12 | К-19 | №2/3/9 | К-37 | №3/1/8 |
| К-2 | №4/5/12 | К-20 | №2/4/9 | К-38 | №3/1/4 |
| К-3 | №4/4/12 | К-21 | №4/6/8 | К-39 | №3/2/8 |
| К-4 | №4/3/12 | К-22 | №4/6/4 | К-40 | №3/2/4 |
| К-5 | №4/2/12 | К-23 | №4/5/8 | К-41 | №3/3/8 |
| К-6 | №4/1/12 | К-24 | №4/5/4 | К-42 | №3/3/4 |
| К-7 | №1/1/9 | К-25 | №4/4/8 | К-43 | №3/4/8 |
| К-8 | №1/2/9 | К-26 | №4/4/4 | К-44 | №3/4/4 |
| К-9 | №1/3/9 | К-27 | №4/3/8 | К-45 | №3/5/8 |
| К-10 | №1/4/9 | К-28 | №4/3/4 | К-46 | №3/5/4 |
| К-11 | №3/1/12 | К-29 | №4/2/8 | К-47 | №3/6/8 |
| К-12 | №3/2/12 | К-30 | №4/2/4 | К-48 | №3/6/4 |
| К-13 | №3/3/12 | К-31 | №4/1/8 | К-49 | №2/1/4 |
| К-14 | №3/4/12 | К-32 | №4/1/4 | К-50 | №2/2/4 |
| К-15 | №3/5/12 | К-33 | №1/1/4 | К-51 | №2/3/4 |
| К-16 | №3/6/12 | К-34 | №1/2/4 | К-52 | №2/4/4 |
| К-17 | №2/1/9 | К-35 | №1/3/4 | ||
| К-18 | №2/2/9 | К-36 | №1/4/4 |
*- расположение № дома / №подъезда / этаж.
ПРИЛОЖЕНИЕ К
ПЛАН ПОМЕЩЕНИЯ СЕРВЕРНОЙ СТАНЦИИ
![]()
|
|
|
|

Рисунок К.1 – План помещения серверной станции
a = 3 м;
b = 5 м;
с = 10 м;
d = 7 м.
ПРИЛОЖЕНИЕ Л
РАСПОЛОЖЕНИЕ ДОМОВ «ДОМАШНЕЙ» ЛОКАЛЬНОЙ СЕТИ

Рисунок Л.1 – План расположения домов
ПРИЛОЖЕНИЕ М
РАСПОЛОЖЕНИЕ ОБОРУДОВАНИЯ И КАБЕЛЕЙ В ПОМЕЩЕНИИ СЕРВЕРНОЙ СТАНЦИИ

Рисунок М.1 – Расположение кабелей и оборудования
ПРИЛОЖЕНИЕ Н
СМЕТНАЯ СТОИМОСТЬ ОБОРУДОВАНИЯ, МАТЕРИАЛОВ И ПО
Таблица Н.1 – Сметная стоимость оборудования и материалов проектируемой локальной сети
| Наименование оборудования | Цена, единицы, грн. | Количество, единицы измерения | Общая стоимость, грн. | |
| Core i7 Quad; i7-930 2,8 GHz, ASUS P6T, 12288 mb DDR3, HDD 2 Tb, 1 Gb ATI Radeon HD 5850, Asus DVD-RW, FDD 3.5 | Сервер | 14 900,00 | 1 шт. | 14900,00 |
| Core i7 Quad; i7-930 2,8 GHz, ASUS P6T, 3072 mb DDR3, HDD 500 Gb, 1 Gb ATI Radeon HD 5850 | Рабочая станция | 12000,00 | 2 шт. | 24000,00 |
| 17" LG L1742S-SF,cеребристо-черный,TFT | Монитор | 900,00 | 3 шт. | 2700,00 |
| D-LINK DFE-520TX Ethernet 10/100 | Модем | 120,00 | 1 шт. | 120,00 |
| COMPEX TP1016C E-net HUB 10Base-T 16 port - концентратор | Концентратор | 1071,6 | 52 шт. | 55723,2 |
| FTP 5e cat | Кабель | 3,2 | 10 м | 32,0 |
| Кабель UTP 5E Cat | Кабель | 2,72 | 1735 м | 4719,2 |
| ПТСРВ 0,75х3 | Кабель | 1,7 | 72м | 122,4 |
| RJ-45 5-е кат | Разъем | 0,7 | 52 шт. | 36,4 |
| МК -2/2 15х50х20 | Монтажные коробки | 200,0 | 51 шт. | 10200,0 |
| КК –ПЭ 75х20 мм | Кабель-каналы | 27,0 | 50 м | 1350,0 |
| ВСЕГО | 113903,20 | |||
Таблица Н.2. Спецификация программного обеспечения
| Программное обеспечение | Цена (грн.) | Кол-во | Стоимость (грн.) |
| Windows Server 2003 | 1700,00 | 1 | 1700,00 |
| Microsoft Windows ХР | 800,00 | 3 | 2400,00 |
| Microsoft Office 2007 Russian | 1800,00 | 3 | 5400,00 |
| ESET Smart Security | 300,00 | 3 | 900,00 |
| IPGuard v.3.11 | 479,92 | 1 | 479,92 |
| WinRar | 500,00 | 3 | 1500,00 |
| FlashGet v.1.71 | 0 | 3 | 0 |
| Opera v.10.52 | 0 | 3 | 0 |
| Другое ПО | 380,00 | 1 | 380,00 |
| Всего | 12759,92 |
ПРИЛОЖЕНИЕ Н
СТОИМОСТЬ МОНТАЖА, УСТАНОВКИ ОБОРУДОВАНИЯ
Таблица Н.3 - Стоимость монтажа и установки оборудования
| Наименование | Количество | Цена за ед., грн. | Сумма, грн.. |
| Установка серверного оборудования | 1 | 100,00 | 100,00 |
| Прокладка кабеля в коробе | 1500 | 2,00 | 3000,0 |
| Обжим кабеля | 52 | 1,00 | 52,0 |
| Крепление монтажных коробов | 51 | 20,00 | 1020,0 |
| Подключение сетевого кабеля | 53 | 1,00 | 53,0 |
| Непредвиденные расходы 10% | 10% | - | 422,5 |
| ВСЕГО: | 4647,5 | ||
ПРИЛОЖЕНИЕ О
АНАЛИЗ СТОИМОСТИ ПО В УКРАИНЕ
| Наименование ПО | Стоимость, грн. |
| Windows 7 Home Basic 32-bit Russian 1pk DVD F2C-0020 | 659,00 |
| Windows 7 Professional 32-bit Russian 1pk DVD | 1 435,00 |
| Windows Server 2003 | 1700,00 |
| Windows XP Professional | 800,00 |
| Microsoft Office 2007 Russian | 1800,00 |
| WinRar | 500,00 |
| Windows Server Standart 2008 Russian OLP NL | 5468,00 |
| Vista Home Premium | 952,00 |
ПРИЛОЖЕНИЕ П
ХАРАКТЕРИСТИКАWINDOWS SERVER 2008
Позволяет управлять веб-сервером с помощью интернет-платформы для приложений и служб Internet Information Services 7.0. Internet Information Server (IIS) 7 и .NET Framework 3.0 формируют платформу для разработки приложений, которые связывают работников друг с другом и с данными, обеспечивая совместное использование и обработку информации.
Операционная система поддерживает виртуализацию нескольких операционных систем, среди которых Windows, Linux и ряд других, на одном сервере. Шлюз служб терминалов и группа удаленных приложений служб терминалов обеспечивают удаленный доступ и интеграцию приложений с локальным настольным компьютером, позволяя быстро и удобно развертывать приложения без использования сети VPN.
Windows Server 2008 защищает сервера сети, данные и учетные записи пользователей от сбоев и вторжений. Диспетчер серверов ускоряет установку и настройку серверов и упрощает текущее управление серверными ролями из единой консоли. Windows PowerShell, новая оболочка с интерфейсом командной строки, поддерживающая более 130 средств и встроенный язык программирования, позволяет администратору автоматизировать выполнение постоянных операций по управлению системами на нескольких серверах.
Под индивидуальные потребности пользователя разработаны две версии операционной системы. Windows Server 2008 Standard Edition разработана специально для малого бизнеса и небольших отделов компаний поддерживает основные серверные возможности для большинства серверных ролей и функций. Он поддерживает как полную установку, так и установку основных компонентов сервера.
Похожие рефераты:
Корпоративная локальная компьютерная сеть на предприятии по разработке программного обеспечения
Организация локальной сети для агентства недвижимости
Разработка и исследование имитационной модели локальных вычислительных сетей
Курс лекции по компьютерным сетям
Локальные сети на основе коммутаторов
Электронный документооборот страхового общества