| Скачать .docx |
Курсовая работа: Курсовая работа: Проектирование технологического процесса капитального ремонта двигателя Caterpillar
Сибирский государственный университет путей сообщения
Кафедра «Технология транспортного машиностроения и эксплуатация машин»
Курсовая работа
по дисциплине «Технологический процесс ремонта автомобилей»
ТПРА.МА515.17.00.00.00 ПЗ
Проектирование технологического процесса капитального ремонта двигателя Caterpillar
Руководитель
Бабич А. В
Разработал ст. гр. МА-515
Яньков А.С.
2008
Содержание
Введение
1 Проектирование технологического процесса ремонта
1.1 Краткое описание устройства, назначение, техническая характеристика
1.2 Разработка структурной схемы изделия
1.3 Разработка технологических маршрутов ремонта изделия и его сборочных единиц
1.4 Разработка технологических процессов ремонта изделия и его сборочных единиц
1.5 Выбор метода ремонта машин
2 Расчет и выбор основных параметров авторемонтного предприятия
2.1 Расчет трудоемкостей и объема работ авторемонтного предприятия
2.2 Расчет режимов времени и режимов работы предприятия
2.3 Расчет количества рабочих и штата предприятия
2.4 Выбор и обоснование производственной структуры ремонтного предприятия
2.5 Расчет площади ремонтного предприятия
2.6 Разработка схемы компоновки цехов и участков производственного корпуса
2.7 Расчет количества подъемно-транспортного оборудования
3 Проектирование участка
3.1 Краткое описание и характеристика участка
3.2 Расчет и выбор оборудования
3.3 Уточненный расчет площади участка
3.4 Выбор и обоснование схемы планировки участка
3.5 Организация охраны труда на участке
Выводы
Список использованных источников
Приложения
Введение
В процессе эксплуатации автомобиля надежность, заложенная в нем при конструировании и производстве, снижается вследствие возникновения различных неисправностей.
В поддержании технического состояния автомобилей на требуемом уровне большую роль играет система технического обслуживания и ремонта. Но при длительной эксплуатации автомобилей наступает момент, когда вследствие износа деталей надежность автомобиля снижается настолько, что восстановление его средствами эксплуатационных предприятий становится невозможным. В этом случае автомобиль подлежит капитальному ремонту.
Все основные детали автомобиля являются, достаточно сложными в конструктивно-технологическом отношении и на их изготовление затрачивается много овеществленного труда, черных и цветных металлов, в том числе легированных сталей. Не использование в дальнейшем дорогостоящих деталей, имеющих небольшие износы, и тем более деталей с допустимым износом было бы экономически не оправданным. Восстановление работоспособности и использование указанных деталей в масштабах страны является проблемой большого народнохозяйственного значения. Решение этой проблемы и является одной из основных задач авторемонтного производства.
В настоящее время авторемонтное производство представляет собой комплекс предприятий и организаций, осуществляющих и обеспечивающих процессы капитального ремонта (КР) деталей, узлов, агрегатов и автомобиля в целом. Эти процессы должны осуществляться так, чтобы обеспечить минимальные затраты, поддерживая подвижной состав автомобильного транспорта на определенном уровне технической готовности. Основной задачей КР является восстановление ресурса вышедших из строя деталей, узлов, агрегатов и автомобиля в целом.
Ремонт двигателей
Производственная программа специализированных ремонтных предприятий, отдельных фирм, особенно по ремонту двигателей, достигает нередко значительной величины.
Восстановление основных деталей, как, например, блоки и головки цилиндров, коленчатых валов, шатунов, а также сборка двигателей в указанных заводах производится на специализированных поточных линиях. Большое внимание уделяется операциям очистки и мойки агрегатов и деталей. Для этой цели применяется многостадийная струйная или ванная система очистки агрегатов, узлов и деталей, рассортированных по видам загрязнений, с применением различных моющих средств.
Такие детали как блок цилиндров, коленчатый вал (с предварительной очисткой масляных каналов) и др. после восстановления, перед сборкой подвергаются повторной мойке.
Для восстановления деталей с большим износом за границей широко применяются такие способы, как газовая и электродуговая наплавки легированной проволокой и износостойкими самофлюсующимися порошками и сплавами на основе никеля, хрома, кремния, а также газовая металлизация высоколегированными сплавами и плазменно-дуговая металлизация тугоплавкими материалами. Детали с небольшим износом подвергаются гальваническим покрытиям, преимущественно хромом. Гильзы цилиндров и коленчатые валы обрабатываются под ремонтные размеры. На всех стадиях технологии ремонта большое внимание уделяется контролю деталей и узлов и испытанию собранных агрегатов. В процессе сборки агрегатов и автомобилей широко применяются различные подъемно-транспортные средства [5].
Поскольку в настоящее время количество заказчиков кампании «Восточная Техника» существенно возрастает, по сравнению с 2005 годом, то появляется необходимость реализовать центр по обслуживанию продаваемой техники.
В частности в данном курсовом проекте рассматривается (в общих чертах) создание специализированного завода (участка) по капитальному ремонту двигателей CATERPILLAR.
Исходные данные
Тип предприятия – специализированный завод.
Вид ремонта – капитальный ремонт
Изделие – двигатель Caterpillar C32 ACERT™.
Годовая программа ремонта –
шт.
Цех разработки – сварочно-наплавочный.
1. Проектирование технологического процесса ремонта
Ремонт – это комплекс работ для поддержания и восстановления исправности или работоспособности изделия.
Капитальный ремонт осуществляется с целью восстановления исправности и ресурса изделия до уровня полного или близкого к полному, путем замены или восстановления любых его частей, включая базовые и их регулировку.
1.1 Краткое описание устройства, назначение, техническая характеристика
Объектом капитального ремонта выбран двигатель Caterpillar серии C32 с технологией ACERT™ (рисунок 1.1), устанавливаемый строительную и дорожную технику Caterpillar: самосвалы CAT 777F, гусеничные тракторы D11T / D11T CD, тяжелые колесные бульдозеры •
854K, колесные погрузчики 993K.
Двигатели серии С32 ACERT™ 12-цилиндровые, V-образные четырехтактные дизельные.
Двигатели с технологией ACERT™ удовлетворяют стандартам ЕВРО-3. По данной технологии происходит снижение вредных выбросов в процессе сгорания топлива благодаря сочетанию интеграции электронного управления воздушной и топливной системой. На данном двигателе установлен электронный модуль управления, который контролирует работу двигателя, а так же установлена электронная система впрыска топлива (электроуправляемые форсунки), которая позволяет улучшить впрыск топлива и тем самым эффективную работу двигателя.
В таблице 1.1 представлены основные характеристики выбранного двигателя.
Таблица 1.1 – Технические характеристики двигателей CAT серии С32 ACERT™
| Характеристики |
Номинальное значение |
| Рабочий объем двигателя, л. |
32,1 |
| Масса не заправленного двигателя c учетом массы маховика (приблизительно), кг. |
2949 |
| Габаритные размеры: Высота, мм Ширина, мм Длина, мм |
1404,8 1050,5 2282,3 |
| Мощность двигателей серии, кВт |
700 – 758 |
| Число цилиндров |
12 |
| Максимальный крутящий момент, Н·м |
4716 |
| Диаметр цилиндров, мм |
145 |
| Ход поршня, мм |
162 |
Для исключения обеднения смазывания моторным маслом при простое, предусмотрена система предпусковой смазки для увеличения срока службы изделия.
1.2 Разработка структурной схемы изделия
Структурная схема строится на основе изучения конструкции изделия по чертежам, схемам, описаниям и спецификациям составляющих элементов.
Используя полученные данные, изделия расчленяются на составные элементы, сборочные единицы и детали, которые располагаются по уровням их вхождения в изделие.
Каждому уровню присваивается цифровой индекс. К первому уровню относятся изделия, поступившие на ремонт. Ко второму уровню – элементы (сборочные единицы), которые могут быть демонтированы с изделия в неразобранном виде. Каждому такому элементу присваивается цифровой индекс второго уровня с учетом индекса изделия. Таким образом, в индексации заложена информация о порядковом номере элемента во втором уровне и принадлежность его к объекту ремонта (первый уровень).
Сборочным единицам, входящим в состав элемента второго уровня, присваивается индекс третьего уровня с указанием принадлежности к элементу второго уровня и к изделию. В ряде случаев в состав сборочной единицы третьего уровня могут входить сборочные единицы четвертого и более низких уровней. В индексе таких сборочных единиц их номера обозначаются последующими парами цифр.
Для деталей признак принадлежности их к сборочным единицам изделия не имеет существенного значения при разработке технологического процесса восстановления. Более важными для талей являются конструктивные и технологические признаки, т. е. подобие их форм и размеров, сходства технологических процессов восстановления. Поэтому в группу деталей с одним индексом можно включать детали различных изделий, элементов, сборочных единиц, которые могут быть восстановлены по одной технологии и на одинаковом оборудовании [2].
Результат структурного анализа представлен в виде схемы в приложении А.
Из данной схемы видно, что двигатель разборка раскладывается на электрооборудование, куда также входят электрофорсунки; систему питания и остальные элементы и сборочные единицы (СЕ). Детали и нормали не рассматриваются как отдельные составляющие, обозначены буквами «Д» и «Н».
Схема построена так, что бы каждый элемент можно было разобрать на сборочные единицы.
Имея эту схему можно разработать таблицу технологических маршрутов ремонта изделия.
1.3 Разработка технологических маршрутов ремонта изделия и его сборочных единиц
Данный раздел разрабатывается на основе структурной схемы изделия.
Таблица технологических маршрутов дает возможность определить номенклатуру ремонтных операций или видов работ и последовательность их выполнения для изделия и его сборочных единиц
Чаще всего к таким ремонтным операциям относятся:
наружная очистка и мойка изделия;
демонтаж рабочего или навесного оборудования;
разборка изделия на сборочные единицы;
мойка сборочных единиц и пропаривание картерных полостей;
разборка сборочных единиц на детали;
мойка и очистка деталей;
дефектация деталей;
комплектование и сборка сборочных единиц;
испытание и контроль сборочных единиц;
окраска сборочных единиц;
сборка изделия из сборочных единиц и элементов;
обкатка и испытание изделия;
окраска изделия.
Также включается в таблицу технологических маршрутов ремонтно-восстановительные работы.
В изделии можно выделить ряд элементов, не требующих испытания или приработки. Такими элементами могут быть внешнее оборудование, гусеничная лента, рама ходовой тележки и др. Для таких элементов контрольно-испытательные операции не предусматриваются.
В состав изделия могут входить неразборные (сварные, клепаные) сборочные единицы. Примерами таких сборочных единиц могут служить топливные и масляные баки, каркасы кабин, крылья, металлоконструкции. Для таких сборочных единиц не предусматривается их разборка на детали. В то же время возникает необходимость предусмотреть ремонт их правкой, сваркой, замену дефектных частей и другими операциями.
Обычно в практике ремонтного производства приборы систем электрооборудования, питания, гидравлики и т.д. ремонтируются комплектно на специализированных участках, где выполняются все виды разборочных, сборочных и испытательных работ [2].
В данную таблицу заносятся все элементы и сборочные единицы, на которое «разбито» изделие по структурной схеме, также отмечаются работы по восстановлению деталей и нормалей. В соответствующей графе ставится знак «+» - это обозначает выполнение данной операции или вида работ.
На основе вышесказанного по структурной схеме двигателя Caterpillar C32 (приложение А) составлена схема технологических маршрутов ремонта изделия (приложение Б).
Эта схема представляет собой две таблицы: в таблице Б1 представлены маршруты ремонта изделия, элементов и сборочных единиц, в таблице Б2 представлены маршруты ремонта и восстановления деталей и нормалей.
Из схемы видно, что кроме наружной мойки, моется каждый элемент, сборочная единица и деталь. Окраска производится сразу по всему изделию, исключения составляют крыльчатка вентилятора, шкив вентилятора, корпус крышки клапанного механизма и непосредственно крышка. Также производятся обкатка и испытания некоторых элементов и сборочных единиц.
После того, как была составлена схема технологических маршрутов ремонта изделия и его сборочных единиц, составляется таблица технологических процессов ремонта изделия.
1.4 Разработка технологических процессов ремонта изделия и его сборочных единиц
Технологические процессы (маршрутная технология) разрабатываются для каждого элемента и сборочной единицы, представленной в структурной схеме.
Перечень и последовательность операций в каждом технологическом процессе определяются функциональным назначением элемента или сборочной единицы, техническими условиями на ремонт, методом сборки, типом сборочных операций (соединение, прессование, свинчивание, сварка и т.д.), применяемых при сборке.
Иногда на этапе сборки сборочных единиц необходимо предусматривать доводочные операции, а также регулировочные работы. Для деталей, полученных в процессе разборки изделия и сборочных единиц, в зависимости от их принадлежности к соответствующим классам, устанавливается последовательность восстановления путем слесарных, станочных и других работ.
Таблица технологических процессов ремонта изделия содержит все технологические процессы для каждого элемента, сборочной единицы, деталей и нормалей. Так же таблица включает в себя трудоемкости выполнения того или иного процесса. Рассчитываются также количество рабочих мест и формируются посты.
Трудоемкость принимается по нормативным данным. Норма трудоемкости на капитальный ремонт для дизельных двигателей мощностью от 121 до 221 кВт равна 280 чел.-ч [2]. Так как у двигателя Caterpillar C32 мощность составляет 758 кВт, по разрешению руководителя курсового проекта принят коэффициент, увеличения трудоемкости k, (
).
Следовательно общая трудоемкость выполнения капитального ремонта равна,
, чел.-ч:
(1.1)
где
– нормативная трудоемкость выполнения капитального ремонта двигателя, чел.-ч, (
чел.-ч).
чел.-ч
С разрешения руководителя принимаем
чел.-ч.
Общая трудоемкость (
чел.-ч) распределена по видам работ в следующем соотношении, представленном в таблице 1.2.
Таблица 1.2 – Процентное соотношение трудоемкостей по видам работ
| Операции |
Процент от общей трудоемкости, % |
Трудоемкость, Т, чел.-ч |
| Разборочно-моечные |
31,39 |
113,00 |
| Сборочно-окрасочные |
39,84 |
143,43 |
| Испытания и обкатка |
5,00 |
18,00 |
| Ремонт систем |
4,64 |
16,7 |
| Восстановление |
19,13 |
68,87 |
| ИТОГО: |
100 |
360 |
В разборочно-моечные операции также включена дефектовка деталей, а в операции сборочно-окрасочные включена комплектовка.
Работы по восстановлению (
чел.-ч) распределены в следующем соотношении (таблица 1.3).
Таблица 1.3 – Процентное соотношение трудоемкостей по восстановительным работам
| Операции |
Процент от общей трудоемкости, % |
Трудоемкость, Т, чел.-ч |
| Металлизационные |
5,20 |
3,58 |
| Гальванические |
5,20 |
3,58 |
| Термические |
5,20 |
3,58 |
| Кузнечные |
5,20 |
3,58 |
| Сварочно-наплавочные |
10,10 |
6,95 |
| Слесарные и станочные |
35,27 |
24,30 |
| Штамповочные |
33,83 |
23,30 |
| ИТОГО: |
100 |
68,87 |
Далее в соответствии с таблицей 1.2 разбивается трудоемкость на отдельные виды работ.
После этого распределения необходимо определить фактическую трудоемкость для каждого вида работ, которая зависит от коэффициента уменьшения трудоемкости,
, чел.-ч:
(1.2)
где
- коэффициент уменьшения трудоемкости, (для годовой программы при
шт.,
) [2];
– табличная трудоемкость i-го вида работ, чел.-ч.
Например, для наружной мойки:
чел.-ч,
чел.-ч.
Для общей разборки двигателя:
чел.-ч,
чел.-ч.
Затем рассчитывается такт ремонта,
, ч:

где
– годовой фонд времени на ремонт, ч.
(1.4)
где
– число календарных дней в году, дн., (
дн.);
– число праздничных дней в году, дн., (
дн.);
– число выходных дней в году, дн., (
дн.);
– длительность рабочей смены, ч, (
ч);
- число смен, (
) [2].
Такт ремонта – отрезок времени, через который изделие поступает на разборочно-моечный участок или выходит со сборочного конвейера.
ч;

Такт ремонта одинаковый для всех видов работ.
Расчетное количество рабочих на операцию находится по формуле,
.чел.:

Для наружной мойки:

Для разборки двигателя:

Принятое количество рабочих (
) принимается самостоятельно: для разборки изделия от 2 до 4 человек, для разборки сборочной единицы 1 – 2 человека.
Для наружной мойки:
чел.
Для разборки двигателя:
чел.
Рабочее место – участок производственной площади, предназначенный для выполнения технологической операции или вида работ, занятый основным и вспомогательным оборудованием и рабочей зоной.
На рабочее место рекомендуется принимать от 1 до 4 человек для разборки (сборки) сборочных единиц, элементов.
Количество рабочих мест определяется из соотношения,
:

Для наружной мойки:

Для разборки двигателя:
Номера рабочих мест распределяются по порядку: 1, 2, 3,... и т.д.
Пост – участок производственной площади, включающий в себя несколько рабочих мест (возможно одно рабочее место). В пост объединяются рабочие места. На которых выполняются однотипные операции, на посту работают рабочие примерно одинаковой квалификации. Посты организуются для обеспечения рациональной загрузки рабочих и оборудования.
В нашем случае наружная мойка и разборка двигателя объединены в один пост.
Номер поста присваивается по порядку. Данному посту (наружная мойка – разборка двигателя) присвоен номер 1.
Количество рабочих на посту определяется суммированием расчетного количества рабочих на операцию,
, чел.:
(1.7)
Для поста №1:
чел.
Степень загрузки поста оценивается коэффициентом загрузки,
:
Рекомендуется коэффициент загрузки рабочих на посту принимать равным 0,95…1,15.
Для поста №1:
Результат представлен в виде таблицы в приложении В. Схематически таблицу технологического процесса можно представить в виде рисунка 1.2.

Рисунок 1.2 – Схема технологического процесса ремонта двигателя на постах
1.5 Выбор метода ремонта машин
На ремонтных предприятиях могут применяться необезличенный или обезличенный ремонт машин. При необезличенном ремонте все восстановленные детали или сборочные единицы устанавливаются на ту машину, с которой они были демонтированы; при обезличенном – восстановленные детали и сборочные единицы (кроме базовых) могут устанавливаться на любую из ремонтируемых машин.
Необезличенный ремонт обычно применяется в небольших ремонтных предприятиях с небольшой программой и значительной разномарочностью ремонтируемых объектов. Такой ремонт осуществляется бригадным методом, когда бригада в составе 3...4 рабочих осуществляет весь комплекс разборочно-сборочных, моечных, регулировочных работ на одной машине. Восстановление же деталей и наиболее сложные работы по ремонту сборочных единиц выполняется в ЦВИДе (цех восстановления и изготовления деталей).
Обезличенный ремонт применяется на крупных ремонтных предприятиях и может выполняться узловым или поточно-узловым методами. Эти методы предусматривают организацию специализированных рабочих мест по ремонту отдельных элементов и сборочных единиц машин.
При узловом методе сборка (разборка) машин производится на стационарных рабочих местах. При поточно-узловом – на тележечных конвейерах.
Поточно-узловой метод целесообразно применять при числе мест сборки (разборки) машин из узлов больше двух [2].
Так как на разборку и сборку принято 7 и 9 мест, то принят поточно-узловой обезличенный метод ремонта.
2. Расчет и выбор основных параметров авторемонтного предприятия
2.1 Расчет трудоемкостей и объема работ авторемонтного предприятия
Программа ремонтного предприятия предусматривает выполнение ремонта машин, дополнительных работ и работ для собственных нужд.
Программа ремонта определяет тип предприятия, метод и технологический процесс ремонта машин.
Программа ремонта выражается количеством и номенклатурой машин и определяется расчетным путем или заданием на проектирование.
Дополнительные работы, кроме основной программы ремонта, включают изготовление товарной продукции (запасных частей новых машин и оборудования, инструмента, а также товаров народного потребления).
Дополнительные работы задаются номенклатурой, массой, планируемой стоимостью или трудоемкостью изготовления этой продукции.
Работы для собственных нужд предприятия предусматривают изготовление запасных частей, ремонт собственного оборудования, изготовление и ремонт инструмента и приспособлений [2].
Суммарная трудоемкость годового объема работ рассчитывается по формуле,
, чел.-ч:
, (2.1)
где
– трудоемкость ремонта машины, чел.-ч;
– трудоемкость дополнительных работ, чел.-ч;
– трудоемкость работ для собственных нужд предприятия, чел.-ч.
При однотипности ремонтируемых машин трудоемкость ремонта определяется по формуле,
, чел.-ч:
, (2.2)
Для ремонта двигателя CAT:
чел.-ч.
Трудоемкость дополнительных работ находится по формуле,
,чел.-ч:
,(2.3)
где
– трудоемкость изготовления запасных частей новых изделий, чел.-ч;
– трудоемкость изготовления оборудования, чел.-ч.
Трудоемкость изготовления запасных частей находится по формуле,
,чел.-ч:
где
– процент трудоемкости на изготовление запасных частей, %.
Трудоемкость изготовления оборудования находится по формуле,
,чел.-ч:
где
– процент трудоемкости на изготовление оборудования, %.
Трудоемкость работ на собственные нужды определяется по формуле,
,чел.-ч:
,(2.6)
где
– трудоемкость изготовления запасных частей для собственных нужд, чел.-ч;
– трудоемкость изготовления инструмента, чел.-ч;
– трудоемкость ремонта оборудования, чел.-ч.
Трудоемкость изготовления инструмента находится по формуле,
,чел.-ч:
где
– процент трудоемкости на изготовление инструмента, %.
Трудоемкость ремонта оборудования находится по формуле,
,чел.-ч
где
- процент трудоемкости на ремонт оборудования, %.
Проценты трудоемкости на дополнительные работы и собственные нужды представлены в таблице 2.1 [2].
Таблица 2.1 - Проценты трудоемкости на дополнительные работы и собственные нужды предприятия
| Вид работ |
Процент от основной программы, % |
| Изготовление запасных частей для изделия |
11 |
| Изготовление оборудования |
24 |
| Изготовление запасных частей для собственных нужд |
4 |
| Изготовление инструмента |
2 |
| Ремонт оборудования |
3 |
Для предприятия по ремонту двигателей:
Дополнительные работы:
Собственные нужды:
Суммарная трудоемкость:
чел.-ч.
Далее трудоемкости можно разделить по видам работ по данным таблицы 2.2 [2].
Таблица 2.2 – Распределение трудоемкостей дополнительных работ и работ для собственных нужд по их видам
| Назначение работы |
Трудоемкости видов работ, % |
|||||
| Слесарные |
Станочные |
Кузнечные |
Сварочные |
Медницко-жестяницкие |
Сборочные |
|
| Изготовление запасных частей |
20 |
70 |
7 |
3 |
- |
- |
| Изготовление оборудования |
25 |
35 |
8 |
12 |
4 |
16 |
| Ремонт оборудования |
50 |
15 |
2 |
5 |
3 |
25 |
| Ремонт и изготовление инструмента и приспособлений |
25 |
65 |
3 |
4 |
3 |
- |
Результаты вычислений сведены в таблицу 2.3.
Таблица 2.3 – Распределение трудоемкости производственной программы по видам работ
| Виды работ по ремонту машин |
Трудоемкость на изделие, Ттаб, чел.-ч |
Трудоемкость на программу, Тпрог, чел.-ч |
Трудоемкость на дополнительные работы, Тдоп, чел.-ч |
Трудоемкость на собственные нужды, Тс.н., чел.-ч |
Суммарная трудоемкость на программу, Тсумм. |
|||
| Изготовление запчастей, Тз.ч., чел.-ч |
Изготовление оборудования, Ти.об., чел.-ч |
Изготовление запчастей, Тз.ч., чел.-ч |
Изготовление инструмента, Тинст., чел.-ч |
Ремонт оборудования, Тр. об., чел.-ч |
||||
| Наружная мойка двигателя |
0,68 |
5780,00 |
5780,00 |
|||||
| Разборка двигателя |
10,20 |
86700,00 |
86700,00 |
|||||
| Ремонт электрооборудования |
5,10 |
43350,00 |
43350,00 |
|||||
| Ремонт системы питания |
9,10 |
77307,50 |
77307,50 |
|||||
| Мойка элементов |
0,34 |
2890,00 |
2890,00 |
|||||
| Разборка элементов |
56,63 |
480823,75 |
480823,75 |
|||||
| Мойка сборочных единиц |
0,51 |
4335,00 |
4335,00 |
|||||
| Разборка сборочных единиц |
23,52 |
199410,00 |
199410,00 |
|||||
| Мойка деталей |
1,02 |
8670,00 |
8670,00 |
|||||
| Дефектовка деталей |
3,27 |
27816,25 |
27816,25 |
|||||
| Слесарные работы |
8,25 |
70082,50 |
57222,00 |
156060,00 |
20808,00 |
13005,00 |
39015,00 |
356192,50 |
| Станочные работы |
12,41 |
105485,00 |
200277,00 |
218484,00 |
72828,00 |
33813,00 |
11704,50 |
642591,50 |
| Кузнечные работы |
3,04 |
25865,50 |
20027,70 |
49939,20 |
7282,80 |
1560,60 |
1560,60 |
106236,40 |
| Медницко-жестяницкие работы |
24969,60 |
1560,60 |
2340,90 |
28871,10 |
||||
| Сборочные работы |
99878,40 |
3121,20 |
19507,50 |
122507,10 |
||||
| Метализационные работы |
3,04 |
25865,50 |
25865,50 |
|||||
| Гальванические работы |
3,04 |
25865,50 |
25865,50 |
|||||
| Термические работы |
3,04 |
25865,50 |
25865,50 |
|||||
| Сварочно-наплавочные работы |
5,91 |
50213,75 |
8583,30 |
74908,80 |
2080,80 |
3901,50 |
139688,15 |
|
| Штамповочные работы |
19,81 |
168342,50 |
168342,50 |
|||||
| Комплектовочные работы |
1,88 |
15967,25 |
15967,25 |
|||||
| Сборка сборочных единиц |
27,81 |
236618,75 |
236618,75 |
|||||
| Испытания сборочных единиц |
5,53 |
46962,50 |
46962,50 |
|||||
| Сборка элементов |
70,43 |
598663,50 |
598663,50 |
|||||
| Испытания элементов |
5,53 |
46962,50 |
46962,50 |
|||||
| Окраска сборочных единиц |
2,11 |
17918,00 |
17918,00 |
|||||
| Окраска элементов |
2,53 |
21530,50 |
21530,50 |
|||||
| Сборка двигателя |
12,75 |
108375,00 |
108375,00 |
|||||
| Окраска двигателя |
4,38 |
37208,75 |
37208,75 |
|||||
| Обкатка и испытания двигателя |
4,25 |
36125,00 |
36125,00 |
|||||
| Итого |
306 |
2601000 |
286110 |
624240 |
104040 |
52020 |
78030 |
3745440 |
2.2 Расчет режимов времени и режимов работы предприятия
Под режимом работы предприятия понимается равномерность выполнения работ в течение года, количество смен, продолжительность смены в часах. Выбор режима работы зависит от годового объема работ, типа предприятия и равномерности его годовой загрузки.
Дм ремонтных заводов с целью лучшего использования оборудования и производственных площадей рекомендуется принимать двухсменный режим работы. В то же время достаточно часто можно встретить предприятия с односменным режимом. Отдельные цехи с дорогостоящим оборудованием (металлорежущее, кузнечное, сварочное, контрольно-испытательное и др.) обычно работают в две смены, другие – в одну. Для цехов, имеющих непрерывный производственный процесс (литейный, термический, сушильный и др.), проектируется режим работы в три смены.
Принято: количество смен – 2.
На ремонтных предприятиях принимается пятидневная рабочая неделя с двумя выходными днями. Продолжительность сме![]()
![]()
![]()
ны и отпусков принимаются в соответствии с трудовым законодательством по данным таблицы 2.4 [2].
Таблица 2.4 - Продолжительность смены и отпусков
| Профессия |
Продолжительность смены, ч |
Число дней отпуска |
| Слесари, станочники |
8 |
15 |
| Электромонтеры, термисты, мойщики |
8 |
18 |
| Кузнецы, молотобойцы, электросварщики, медники, мотористы-испытатели |
8 |
24 |
| Маляры, гальванизаторы и аккумуляторщики |
7 |
24 |
Годовые фонды времени подразделяются на номинальные и действительные. Номинальные фонды времени учитывают полное календарное время работы в часах за год. Они рассчитываются для производственных рабочих и рабочих мест и используются при расчете явочного количества рабочих и числа рабочих мест.
Действительные годовые фонды времени в часах учитывают только фактически отработанное время рабочим. Эти фонды дают возможность произвести расчет списочного числа рабочих и количества оборудования [2].
Фонд времени рабочего места, участка, цеха находится по формуле,
,ч:
(2.9)
Для всех участков, кроме окрасочного и гальванического:
ч.
Для окрасочного и гальванического участков:
ч.
Расчет номинального фонда времени рабочего производится по формуле,
, ч:
(2.10)
Для всех участков, кроме окрасочного и гальванического:
ч.
Для окрасочного и гальванического участков:
ч.
Действительный фонд времени рабочего определяется по формуле,
, ч:
,(2.11)
где
- число дней отпуска, дн.;
- коэффициент, учитывающий потери рабочего времени по уважительным причинам. Принимается равным 0,95.
Для слесарей и станочников:
ч.
Для электромонтеров, термистов и мойщиков:
ч.
Для кузнецов, молотобойцев, электросварщиков, медников и мотористов-испытателей:
ч.
Для маляров, гальванизаторов и аккумуляторщиков:
ч.
Действительный фонд времени работы оборудования находится по формуле,
, ч:
(2.12)
где
– коэффициент, учитывающий простой оборудования в планово-предупредительном ремонте. При односменной работе принимается равным 0,98, двухсменной - 0,97.
Для всех участков, кроме окрасочного и гальванического:
ч.
Для окрасочного и гальванического участков:
ч.
Равномерность выполнения ремонтных работ в течение года оценивается тактом и ритмом ремонта.
Ритм ремонта есть величина, обратная такту:
Ритм показывает объем работ (трудоемкость), выполненный за каждый час работы предприятия [2].
2.3 Расчет количества рабочих и штата предприятия
На предприятии работают производственные и вспомогательные рабочие, инженерно-технические работники, счетно-конторский и младший обслуживающий персонал. Производственные рабочие непосредственно выполняют технологические операции по ремонту или изготовлению продукции. В их число включаются контролеры и испытатели.
Вспомогательные рабочие обслуживают основное производство. К ним относятся наладчики, транспортные и подсобные рабочие, ремонтники инструмента и оборудования, электромонтеры, кладовщики цеховых складов, уборщики производственных помещений.
Инженерно-технические работники осуществляют техническое руководство производственными процессами или занимают должности, для которых требуется квалификация инженера или техника. К ним относятся руководители подразделений предприятия, нормировщики, механики, энергетики, экономисты, лаборанты. К счетно-конторскому относится персонал, выполняющий работы по счету, отчетности, снабжению и финансированию, т.е. счетоводы, бухгалтеры, чертежники, учетчики, секретари, заведующие складами.
К младшему обслуживающему персоналу относятся дворники, курьеры, гардеробщики, уборщики служебных и бытовых помещений.
При расчете производственных рабочих определяют их явочное и списочное количество. Явочное количество определяется для обеспечения производственного процесса, а списочное — для расчета штата предприятия [2].
Расчет явочного количества производственных рабочих производится по формуле,
, чел.:
,(2.14)
где
– суммарная трудоемкость работ отделения, цеха или предприятия за расчетный период, чел.-ч.
Списочное количество производственных рабочих определяется с учетом действительного фонда времени для соответствующей профессии по формуле,
, чел.:
.(2.15)
Например, для наружной мойки:
чел.-ч;
ч.;
ч.
чел.
чел.
Расчет количества явочных и списочных рабочих целесообразно выполнить в табличкой форме (таблица 2.5).
Таблица 2.5 – Распределение производственных рабочих по видам работ
| Виды работ по ремонту машин |
Суммарная трудоемкость на программу, Тсумм. |
Фонд времени рабочего номинальный, Фн.р.,ч. |
Количество явочных рабочих, Ая, чел |
Фонд времени рабочего действительный, Фд.р.,ч. |
Количество списочных рабочих, Ас, чел |
| Наружная мойка двигателя |
5780,00 |
2018 |
23/46 |
1758 |
3 |
| Разборка двигателя |
86700,00 |
1784 |
49 |
||
| Ремонт электрооборудования |
43350,00 |
2018 |
11/22 |
1758 |
25 |
| Ремонт системы питания |
77307,50 |
2018 |
19/38 |
1794 |
43 |
| Мойка элементов |
2890,00 |
2018 |
4/8 |
1758 |
2 |
| Мойка сборочных единиц |
4335,00 |
1758 |
2 |
||
| Мойка деталей |
8670,00 |
1758 |
5 |
||
| Разборка элементов |
480823,75 |
2018 |
167/334 |
1784 |
270 |
| Разборка сборочных единиц |
199410,00 |
1784 |
112 |
||
| Дефектовка деталей |
27816,25 |
2018 |
7/14 |
1794 |
16 |
| Слесарные работы |
356192,50 |
2018 |
177 |
1784 |
200 |
| Станочные работы |
642591,50 |
2018 |
318 |
1784 |
360 |
| Кузнечные работы |
106236,40 |
2018 |
53 |
1794 |
59 |
| Медницко-жестяницкие работы |
28871,10 |
2018 |
14 |
1794 |
16 |
| Сборочные работы |
122507,10 |
2018 |
61 |
1784 |
69 |
| Метализационные работы |
25865,50 |
2018 |
13 |
1794 |
14 |
| Гальванические работы |
25865,50 |
1765 |
15 |
1491 |
17 |
| Термические работы |
25865,50 |
2018 |
13 |
1758 |
15 |
| Сварочно-наплавочные работы |
139688,15 |
2018 |
69 |
1794 |
78 |
| Штамповочные работы |
168342,50 |
2018 |
83 |
1794 |
94 |
| Комплектовочные работы |
15967,25 |
2018 |
4/8 |
1794 |
9 |
| Сборка сборочных единиц |
236618,75 |
2018 |
229/458 |
1784 |
133 |
| Сборка элементов |
598663,50 |
1784 |
336 |
||
| Сборка двигателя |
108375,00 |
1784 |
61 |
||
| Испытания сборочных единиц |
46962,50 |
2018 |
12/24 |
1794 |
26 |
| Испытания элементов |
46962,50 |
2018 |
12/24 |
1794 |
26 |
| Обкатка и испытания двигателя |
36125,00 |
2018 |
9/18 |
1794 |
20 |
| Окраска сборочных единиц |
17918,00 |
1765 |
10/20 |
1491 |
12 |
| Окраска элементов |
21530,50 |
1491 |
14 |
||
| Окраска двигателя |
37208,75 |
1765 |
9/18 |
1491 |
25 |
| Итого |
3745440,00 |
45655 |
1848 |
52302 |
2111 |
Примечание: в столбце Ая – числитель число рабочих в одну смену, знаменатель – число рабочих в две смены. Сумма – по двусменному режиму.
Общее количество работающих на предприятии определяется по формуле,
, чел.:
, (2.16)
где
– количество вспомогательных рабочих, принимается в размере от 12 до 16 % от списочного числа производственных рабочих, чел.;
– количество инженерно-технических работников, принимается в размере от 8 до 10 % от явочного числа производственных рабочих и вспомогательных рабочих, чел.;
– количество младшего обслуживающего персонала, принимается в размере от 2 до 4 % от списочного числа производственных и вспомогательных рабочих, чел.;
– количество счетно-конторских работников, принимается в размере от 4 до 6 % от списочного числа производственных и вспомогательных рабочих, чел. [2].
чел.;
чел.;
чел.;
чел.;
чел.
2.4 Выбор и обоснование производственной структуры ремонтного предприятия
Структура ремонтного предприятия определяется входящими в нее производственными и вспомогательными подразделениями.
Ремонтные предприятия могут иметь цеховую или безцеховую структуру в зависимости от количества рабочих и оборудования. Цеховую структуру целесообразно принимать, когда число производственных рабочих в цехе более 100 человек. При цеховой структуре обычно имеются:
разборочно-сборочный цех с участками (отделениями): наружной мойки; разборочно-моечным; контрольно-сортировочным; комплектовочным; ремонта двигателей; топливной аппаратуры; электроремонтным; столярно-обойным; слесарно-сборочным; ремонта систем управления, навесного и рабочего оборудования; испытания и обкатки двигателей; машин; окраски;
цех восстановления и изготовления деталей (ЦВИД) с участками (отделениями): слесарно-механическим; кузнечно-термическим; медницким; сварочным; гальваническим; ремонта полимерными материалами;
вспомогательные участки (отделения); инструментальный, ремонтно-механический, обслуживания основного производства (приготовление и раздача смазывающе-охлаждающих жидкостей, сбора, переработки отходов), цеховые лаборатории, отделы технического контроля, цеховые склады и кладовые;
на крупных ремонтных заводах: ремонтно-механический и инструментальный участки, относящиеся к категории вспомогательных, выделяются в самостоятельные подразделения, и трудоемкость этих работ не включается в программу ЦВИДа;
склады и площадки хранения ремонтного фонда.
Производственные и вспомогательные подразделения в своем составе имеют конторско-бытовые, административные помещения. В зависимости от принятого технологического процесса ремонта и системы организации производства некоторые производственные и вспомогательные помещения могут быть объединены или исключены.
При расположении нескольких цехов в одном корпусе целесообразно объединение вспомогательных служб для единого обслуживания всего производственного корпуса. Возможен и вынос части вспомогательных и служебно-бытовых служб вне производственного корпуса.
Выбор и обоснование производственной структуры проектируемого предприятия удобно проводить по форме, приведенной в таблице 2.6, заполнение которой производится на основании данных, полученных при разработке производственного процесса ремонта машины и расчета количества производственных рабочих [2].
Таблица 2.6 – Структура ремонтного предприятия
| Операции и виды работ, выполняемых в цехе, на участке, в отделении |
№ постов, входящих в состав участка, отделения |
Количество рабочих на посту |
Наименование отделения |
Количество рабочих в отделении |
Наименование участка |
Количество рабочих на участке |
Наименование цеха |
Количество рабочих в цехе |
| Наружная мойка и разборка двигателя |
1 |
23 |
Моечно-разборочный |
23/46 |
Разборочно-моечный |
201/402 |
||
| Разборка Э и СЕ |
3, 5-22 |
167 |
Разборочный |
167/334 |
||||
| Мойка Э, СЕ и Д |
23 |
4 |
Моечное |
4/8 |
||||
| Дефектовка |
24 |
7 |
Дефектовочный |
7/14 |
||||
| Комплектовка |
25 |
4 |
Комплектовочное |
4/8 |
Сборочно-испытательный |
315/630 |
||
| Сборка СЕ, Э и ДВС |
26-53 |
229 |
Сборочный |
229/458 |
||||
| Окраска двигателя |
54 |
9 |
Окрасочное |
9/18 |
||||
| Окраска СЕ и Э |
55 |
10 |
Окрасочное |
10/20 |
||||
| Обкатка и испытания ДВС |
56 |
9 |
Испытательное |
9/18 |
||||
| Испытания Э |
57 |
12 |
Испытательное |
12/24 |
||||
| Испытания СЕ |
58 |
12 |
Испытательное |
12/24 |
||||
| Ремонт электрооборудования |
2 |
11 |
Электроремонтное |
11/22 |
||||
| Ремонт системы питания |
4 |
19 |
Ремонтное |
19/38 |
||||
| Слесарные работы |
177 |
Слесарный |
177 |
Слесарно-механический |
495 |
|||
| Станочные работы |
318 |
Станочный |
318 |
|||||
| Кузнечные работы |
53 |
Кузнечный |
53 |
ЦВИД |
321 |
|||
| Медницко-жестяницкие работы |
14 |
Медницко-жестяницкое |
14 |
|||||
| Сборочные работы |
61 |
Сборочный |
61 |
|||||
| Метализационные работы |
13 |
Металлизационное |
13 |
|||||
| Гальванические работы |
15 |
Гальваническое |
15 |
|||||
| Термические работы |
13 |
Термическое |
13 |
|||||
| Сварочно-наплавочные работы |
69 |
Сварочно-наплавочный |
69 |
|||||
| Штамповочные работы |
83 |
Штамповочный |
83 |
|||||
| Итого |
1848 |
|||||||
Примечание: в числителе односменное число рабочих, в знаменателе – двусменное.
2.5 Расчет площадей ремонтного предприятия
При проектировании ремонтного предприятия расчету подлежат производственные, вспомогательные, служебно-бытовые и складские помещения.
Производственные площади (основные) укрупненно можно рассчитывать одним из следующих методов:
по количеству производственных рабочих;
по площади, занимаемой оборудованием.
По количеству производственных рабочих производственные площади находятся по формуле,
, м2:
,(2.17)
где
– наибольшее количество явочных рабочих в одну смену;
– удельная площадь на одного рабочего, м2.
Удельные площади учитывают рабочие зоны, проходы и проезды между рядами оборудования и рабочими местами. Значения удельных площадей приведены в таблице 2.7 [2].
Таблица 2.7 – Удельная площадь на одного производственного рабочего
| Наименование отделения (участка) |
Удельная площадь на одного рабочего, м2 |
| Разборочно-моечный Комплектовочное Ремонта топливной аппаратуры Электроремонтное Слесарно-сборочный Испытания и обкатка двигателей и других элементов Окрасочное Слесарно-механический Кузнечно-термический Медницкое Сварочно-наплавочное |
от 12 до 15 от 18 до 20 от 15 до 18 от 10 до 12 от 18 до 22 от 20 до 25 от 25 до 30 от 10 до 14 от 20 до 25 от 12 до 15 от 12 до 15 |
Например, для моечно-разборочного участка разборочно-моечного цеха:
чел.,
м2.
м2.
Результаты расчетов представлены в таблице 2.8.
Площади вспомогательных помещений укрупненно рассчитываются по данным таблицы 2.9.
Площади бытовых помещений рассчитываются по числу работающих в наиболее многочисленную смену. Для этих расчетов можно использовать данные, приведенные в таблицу 2.10 [2].
Таблица 2.8 – Расчет производственных площадей ремонтного предприятия
| Наименование отделения, участка, цеха |
Кол-во производственных рабочих в отделении, на участке, в цехе |
Кол-во производственных рабочих в наиболее многочисленной смене |
Удельная площадь на одного рабочего, м2/чел. |
Площадь отделения, участка, цеха, м2 |
| Моечно-разборочный |
46 |
23 |
14 |
322 |
| Разборочный |
334 |
167 |
14 |
2338 |
| Моечное |
8 |
4 |
14 |
56 |
| Дефектовочный |
14 |
7 |
15 |
105 |
| Комплектовочное |
8 |
4 |
19 |
76 |
| Сборочный |
458 |
229 |
18 |
4122 |
| Окрасочное |
18 |
9 |
27 |
243 |
| Окрасочное |
20 |
10 |
27 |
270 |
| Испытательное |
18 |
9 |
23 |
207 |
| Испытательное |
24 |
12 |
23 |
276 |
| Испытательное |
24 |
12 |
23 |
276 |
| Электроремонтное |
22 |
11 |
11 |
121 |
| Топливная аппарт. |
38 |
19 |
16 |
304 |
| Слесарный |
177 |
89 |
20 |
1780 |
| Станочный |
318 |
159 |
20 |
3180 |
| Кузнечный |
53 |
27 |
22 |
594 |
| Медницко-жестяницкое |
14 |
7 |
13 |
91 |
| Сборочный |
61 |
31 |
19 |
589 |
| Метализационное |
13 |
7 |
27 |
189 |
| Гальваническое |
15 |
8 |
18 |
144 |
| Термическое |
13 |
7 |
23 |
161 |
| Сварочно-наплавочный |
69 |
35 |
13 |
455 |
| Штамповочный |
83 |
42 |
13 |
546 |
| Всего |
1848 |
928 |
16445 |
Таблица 2.9 - Данные для расчетов площадей вспомогательных помещений
| Наименование вспомогательного помещения |
Удельная площадь на один металлорежущий станок, м2 |
Удельная площадь на одного производственного рабочего, м2 |
В процентах от производственной площади |
| Эмульсионное отделение |
от 0,20 до 0,25 |
||
| ЦРК с заточным отделением |
от 0,15 до 0,20 |
||
| Цеховые склады |
от 5 до 8 |
||
| Магистральные (межцеховые) проезды |
от 10 до 15 |
Расчет площадей вспомогательных помещений.
Площадь эмульсионного отделения находится по формуле,
, м2:
(2.18)
где
- количество станочников, чел.;
– удельная площадь на металлорежущий станок, м2, (
).
Площадь ЦРК с заточным отделением находится по формуле,
, м2:
(2.19)
где
– общее количество рабочих в смене, чел.;
– удельная площадь на одного производственного рабочего, м2, (
).
Площадь цеховых складов находится по формуле,
, м2:
(2.20)
где
- процент от производственной площади на цеховые склады, %;
– производственная площадь м2, (
).
.
Площадь магистральных проездов находится по формуле,
, м2:
,(2.21)
где
- процент от производственной площади на магистральные проезды, %
.
Расчет площадей бытовых помещений.
Площадь душевых находится по формуле,
, м2:
(2.22)
где
- удельная площадь на расчетную единицу, м2;
- число работающих в наиболее многочисленную смену, чел., (
);
– число работающих, принятое за расчетную единицу,
м2.
Результаты расчета представлены также в таблице 2.10.
Таблица 2.10 – Данные к расчету бытовых помещений и полученные значения
| Наименование помещения |
Число работающих, принятое за расчетную единицу, чел. |
Удельная площадь на расчетную единицу, м2. |
Рассчитанная площадь на всех работников, м2. |
| Душевые |
10 |
1,5 |
139,2 |
| Умывальники |
10 |
1,0 |
92,8 |
| Туалет |
15 |
3,0 |
185,6 |
| Помещения для приема пищи |
1 |
0,25 |
232 |
| Гардеробные |
1 |
0,8 |
742,4 |
Площадь конторских помещений принимается из расчета 3,5 м на одного сотрудника и 7,5 м2 на одного мастера. В конструкторском отделе – из расчета 5 м2 на один стол [2].
В производственной зоне работают 50% счетно-конторского персонала и 50% инженерно-технического персонала.
Площадь конторских помещений равна
, , м2:
(2.23)
м2.
(2.24)
м2.
(2.25)
м2.
Площади административных помещений, помещений общественного питания можно определить, используя данные таблицы 2.11.
Общая трудоемкость равна:
чел.-ч.
Для заводоуправления:
(2.26)
где
- удельная площадь на каждые 1000 чел.-ч трудоемкости ремонтных работ, м2.
м2.
Расчеты представлены также в таблице 2.11.
Таблица 2.11 - Данные для расчетов площадей административных помещений, помещений общественного питания и общезаводских складов и полученные значения
| Наименование помещений |
Удельная площадь на каждые 1000 чел.-ч трудоемкости ремонтных работ, м2 |
Полученная площадь, м2 |
| Заводоуправление |
0,5 |
1872,72 |
| Заводская лаборатория |
0,15 |
561,82 |
| Помещение общественного питания |
0,45 |
1685,45 |
| Здравпункт |
0,08 |
299,64 |
| Гараж со службами |
0,75 |
2809,08 |
| Всего |
7228,71 |
Площади складских помещений находятся по данным таблицы 2.12 по формуле,
, м2:
, (2.26)
где
– удельная площадь на 1000 чел.-ч трудоемкости ремонтных работ, м2.
Для склада горюче-смазочных материалов (ГСМ):
м2.
Таблица 2.12 – Данные для расчетов площадей общезаводских складов и полученные значения
| Наименование склада |
Удельная площадь на каждые 1000 чел.-ч трудоемкости ремонтных работ, м2 |
Полученная площадь, м2 |
| Склад ГСМ |
0,13 |
486,91 |
| Склад утиля |
0,17 |
636,72 |
| Склад лесоматериалов |
0,4 |
1498,18 |
| Склад твердого топлива |
0,95 |
3558,17 |
| Склад агрегатов |
0,35 |
1310,9 |
| Склад металлов |
0,5 |
1872,72 |
| Склад запасных частей |
0,7 |
2621,81 |
| Склад материалов |
0,3 |
1123,63 |
Результаты расчета площадей представлены в виде таблицы 2.13.
| Наименование помещения, категория площадей |
Площади и помещения, м2, размещаются |
||
| В производственном корпусе |
В отдельно стоящих зданиях и сооружениях |
На открытых площадках |
|
| Производственная |
16445 |
||
| Эмульсионное отделение |
34,98 |
||
| ЦРК с заточным отделением |
157,76 |
||
| Цеховые склады |
986,7 |
||
| Магистральные проезды |
1973,4 |
||
| Заводоуправление |
1872,72 |
||
| Заводская лаборатория |
561,82 |
||
| Помещение общественного питания |
1685,45 |
||
| Здравпункт |
299,64 |
||
| Гараж со службами |
2809,08 |
||
| Конторские |
850 |
||
| Склад ГСМ |
486,91 |
||
| Склад утиля |
636,72 |
||
| Склад лесоматериалов |
1498,18 |
||
| Склад твердого топлива |
3558,17 |
||
| Склад агрегатов |
655,45 |
655,45 |
|
| Склад металлов |
936,36 |
936,36 |
|
| Склад запасных частей |
1310,91 |
1310,91 |
|
| Склад материалов |
561,82 |
561,82 |
|
| Душевые |
139,2 |
||
| Умывальники |
92,8 |
||
| Туалет |
185,6 |
||
| Помещения для приема пищи |
232 |
||
| Гардеробные |
742,4 |
||
| Итого |
25604,02 |
11891,79 |
4681,8 |
Общая площадь производственного корпуса принимается равной 25920 м2.
Принимаем корпус прямоугольной формы с размерами:
- длина здания, L=240 м;
- ширина здания, В=108 м; (Условие L/B£3 выполняется).
При этом отношении длины и ширины обеспечивается необходимая площадь здания. Пролётов по 18 м – 6, колонны размещаем через 12 м. Схематичный план производственного корпуса представлен на рисунке 2.1.

Рисунок 2.1 – Схематический план производственного корпуса
2.6 Разработка схемы компоновки цехов и участков производственного корпуса
Компоновочный план – схема производственного корпуса с изображением на ней производственных, вспомогательных, конторско-бытовых и других структурных подразделений и помещений.
Ремонтные предприятия, как правило, размещается в моноблоке т.е. в одном корпусе, за исключением котельной, складов общезаводского назначения, открытых площадок, гаража и в отдельных случаях административного корпуса.
Схема технологического потока зависит от направления движения объекта ремонта на плане производственного корпуса.
Различают три схемы технологического потока:
прямоточный технологический поток;
Г – образный технологический поток;
П – образный технологический поток;
Прямоточная схема предусматривает движение объекта ремонта и его базовых деталей по прямому пути. В этой же линии располагаются разборочно-моечные, дефектовочные, комплектовочные и сборочные участки. Этот главный технологический поток располагается, как правило, в центральном пролете.
Компоновочные решения при Г – образном технологическом потоке предусматривает пересечение под прямым углом осей разборочного участка и общей сборке объекта ремонта. Г – образный технологический поток дает возможность получить минимальную протяженность транспортных путей, сократить потребность в подъемно-транспортном оборудовании, уменьшить длину здания и получить форму здания, близкую к квадратной.
Характерным признаком П – образной схемы технологического потока является размещение разборочно-моечного и сварочного участков в параллельных пролетах [2].
Уровень оптимизации принятого соотношения длины и ширины здания можно оценить с помощью коэффициента целесообразности формы здания,
:
где
- площадь здания, м2, (
м2);
– периметр здания по наружным стенам, м, (
м).
Данный коэффициент показывает, насколько правильно подобраны размеры здания.
Компоновка производственного корпуса представлена в приложении Г.
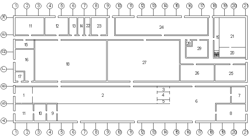
Схема компоновки выбрана П-образная, так как разборочно-моечный цех расположен в пролете Б-В, а сборочно-испытательный в пролете А-Б. часть сборочно-испытательного цеха находится в пролете Б-В.
Так как некоторые сборочные единицы и элементы проходят испытания и окраску, то расположение окрасочного (7) и испытательного (8) отделений для СЕ и элементов является обоснованным.
Также после испытательного (9) и окрасочного (10) отделений изделие хранится на небольшом складском участке (11).
В соответствии с нормами противопожарной и сантехнической безопасности взрыво- и пожароопасные участки размещены вдоль основных стен здания.
Схема имеет необходимые транспортные проезды, эвакуационные выходы и двери (ворота).
Складские помещения (склады агрегатов, металлов, запасных частей и материалов – участок 18) показаны в одной секции. Также бытовые помещения, счетно-конторское помещение и здравпункт совмещены в двухэтажном отсеке, причем бытовые помещения (19) находятся на первом этаже, а здравпункт (20) и счетно-конторское отделение (21) – на втором.
2.7 Расчет количества подъемно-транспортного оборудования
Для организации рациональной работы ПТО проводится анализ грузопотока в цехе, в пролете или в производственном корпусе. На основе тонкого анализа устанавливаются маршруты движения грузов, выявляются типы ПТО, необходимые для механизации подъемно-транспортных операций.
Укрупненно количество кранов можно принимать:
Для механического цеха (участка) – один кран на 40 – 80 м длины пролета;
Для разборочно-сборочного цеха – один кран на 30 – 50 м длины пролета
Для моечно-разборочного участка (1) принят один кран-балка грузоподъемностью 8 тонн.
Для разборочного участка (2) приняты 3 крана грузоподъемностью 3 тонн. Для сборочного участка (6) в пролете Б-В – 1 кран-балка грузоподъемностью 3 тонны, в пролете А-Б – 2 крана, грузоподъемностью 3 тонны и 1кран грузоподъемностью 8 тонн, ближе к окрасочному участку. Для участков 9, 10, 11 принято по одному крану, грузоподъемностью 8 тонн. В слесарный участок принимаем один кран грузоподъемностью 3 тонны.
3. Проектирование участка
Проектируется сварочно-наплавочный участок.
3.1 Краткое описание и характеристика участка
Данный участок предназначен для выполнения сварочно-наплавочных работ при восстановлении деталей и ремонте сборочных единиц: наплавки изношенных поверхностей деталей, сварки и ремонта поврежденных металлоконструкций и рам строительных и подъемно-транспортных машин, газопламенной резки листового проката. На этом участке могут выполняться и сварочные работы по заказам отдела главного механика и отдела главного технолога (инструментального отделения).
Для выполнения указанной номенклатуры работ на проектируемом участке необходимо иметь оборудование для ручной электродуговой и газопламенной сварки, а также установки для автоматической сварки и наплавки изношенных деталей.
Производственная программа сварочно-наплавочного участка укрупненно рассчитывается по следующим нормативам:
- годовой выпуск продукции на одного производственного рабочего участка составляет от 20 до 25 т;
- масса наплавляемого металла при ремонте одной машины, принимается равной от 10 до15 кг;
- трудоемкость сварочно-наплавочных работ при ремонте путевых машин, составляет 8-12 % от годового объема работ ремонтного предприятия.
Трудоемкость сварочно-наплавочных работ распределяется следующим образом:
подготовительные работы (очистка деталей и сборочных единиц, отжиг, разделка и т.д.) – 5 – 8 %;
газопламенная сварка и резка – 17 – 20 %;
электродуговая сварка и наплавка – 55 – 60%;
автоматическая сварка и наплавка – 15 – 20 % [2].
Детали и сборочные единицы на сварочно-наплавочный участок поступают по одному из указанных маршрутов, представленных на рисунке 3.1.
Рисунок 3.1 – Схема технологических и производственных связей сварочно-наплавочного участка
Общая трудоемкость сварочно-наплавочных работ равна,
, чел.-ч:
чел.-ч.
Распределение трудоемкостей представлено в таблице 3.1.
Таблица 3.1 – Распределение трудоемкостей сварочно-наплавочных работ
| Виды работ |
Процентное соотношение, % |
Трудоемкость, чел.-ч |
| Подготовительные работы |
6,5 |
9079,73 |
| Газопламенная сварка и резка |
18,5 |
25842,31 |
| Электродуговая сварка и наплавка |
57,5 |
80320,69 |
| Автоматическая сварка и наплавка |
17,5 |
24445,42 |
3.2 Расчет и выбор оборудования
Рабочее место для газопламенной сварки и резки комплектуется рампой для кислородного баллона и баллона с горючим газом, столом для газосварочных работ.
Количество столов для газосварочных работ принимается по количеству сварщиков, занятых на газосварочных работах.
Печь нагревательная принимается в составе технологического комплекта и предназначена для нагрева перед сваркой чугунных деталей или деталей, изготовленных из высокоуглеродистых сталей.
В состав технологического комплекта также входит верстак слесарный, стеллажи для хранения деталей, заготовок, материалов и т.д. [2].
Трудоемкость газосварочных работ равна,
, чел.-ч:
чел.-ч.
Фонд времени газосварщиков равен,
, ч:
ч.
Количество газосварщиков рассчитывается по формуле,
, чел.:
.(3.1)
чел.
В смену работает – 7 человек
Количество столов – 7 шт.
Количество рамп для баллонов – 14 шт.
Количество стеллажей – 14 шт.
Количество табуретов – 7 шт.
Рабочие места для электродуговой сварки комплектуется источниками тока, сварочными столами, стеллажами.
Количество сварочных аппаратов принимается по количеству электросварщиков.
При расчете количества электросварщиков можно руководствоваться следующим распределением трудоемкости работ по электродуговой сварке:
электродуговая сварка и наплавка на переменном токе – 65 – 75 %;
электродуговая сварка и наплавка на постоянном токе – 35 – 25 %.
Размеры сварочных кабин принимаются в зависимости от размеров свариваемых сборочных единиц или наплавляемых деталей. Обычно размеры кабин в плане устанавливают 3x3 м или 3x4 м. Если один из размеров детали или сборочной единицы превышает 1000 мм, то размер кабины выбирают таким, чтобы в ней оставалось от 2 до 4 м2 свободной площади [2].
Трудоемкость электросварочных работ равна,
, чел.-ч:
чел.-ч.
Фонд времени электросварщиков равен,
, ч:
ч.
Количество электросварщиков рассчитывается по формуле,
, чел.:
.(3.2)
чел.
В смену работает – 20 человек.
Из них:
электродуговая сварка и наплавка на переменном токе:
;(3.3)
чел;
электродуговая сварка и наплавка на постоянном токе:
; (3.4)
чел.
Сварочных аппаратов – 20 шт.
Количество трансформаторов – 14 шт.
Количество выпрямителей – 6 шт.
Количество столов – 20 шт.
Количество стеллажей – 40 шт.
Количество табуретов 20 шт.
Количество установок для автоматической наплавки рассчитывается по формуле,
, ед.:
где
– масса наплавляемого металла при ремонте одной машины, кг, принята
кг;
– годовая программа ремонта,
;
– часовая производительность установки, принимается от 0,50 до 1,20 кг/ч;
– коэффициент использования установки во времени, принимается для сварочно-наплавочного оборудования равным от 0,7 до 0,8 [2].
Вместе со сварочно-наплавочным оборудованием на участке могут быть размещены установки для напыления износостойких покрытий, в особенности плазменным и газоплавильным способом (металлизация). Эти технологии могут составлять серьезную конкуренцию наплавочным процессам. По сравнению с наплавкой металлизация обладает такими преимуществами, как минимальный нагрев и термическое влияние на восстанавливаемую деталь, возможность нанесения высоколегированных покрытий с заданными свойствами (износостойкость, жаростойкость и др.) [2].
Принимаем для наплавки под флюсом – 1 шт., для плазменной наплавки – 1шт., для вибродуговой наплавки – 1шт.
Ниже приведена таблица выбранного оборудования с размерами, количеством и площадями оборудования.
Таблица 3.2 – Ведомость оборудования
| Оборудование |
Тип, марка |
Размер, м x м |
Площадь, м2 |
Количество единиц, шт. |
Площадь общая, м2 |
| Столы для сварки |
1х1 |
1 |
27 |
27 |
|
| Рампы для баллонов |
0,6х1 |
0,6 |
14 |
8,4 |
|
| Стеллажи |
0,6х1 |
0,6 |
54 |
32,4 |
|
| Табуреты |
0,4х0,4 |
0,16 |
27 |
4,32 |
|
| Трансформаторы |
ТД-300 ТД-500 |
0,69х0,62 0,51х0,72 |
0,43 0,37 |
7 7 |
3,01 3,01 |
| Выпрямители |
ВДГ-301 ВДГ-302 ВД-500 |
1,12х0,83 1,12х0,83 0,91х0,77 |
0,93 0,93 0,70 |
2 2 2 |
1,86 1,86 1,40 |
| Автомат для наплавки под слоем флюса на токарно-винторезном станке |
А-409 1К62 |
0,8х1,5 |
1,2 |
1 |
1,2 |
| Универсальная наплавочная головка на токарно-винторезном станке |
ОКС-1252-А 1К62 |
0,8х1,5 |
1,2 |
1 |
1,2 |
| Головка для вибродуговой наплавки на токарно-винторезном станке |
ГМВК-1 1К62 |
0,8х1,5 |
1,2 |
1 |
1,2 |
| Нагревательная двухмуфельная печь |
3,25х1,75 |
5,69 |
1 |
5,69 |
|
| Обдирочно-шлифовальный станок |
ВШ-041 |
0,85х0,62 |
0,53 |
2 |
1,0 |
| Стол для поддонов |
1х1 |
1 |
1 |
1 |
|
| Ящик для песка |
0,5х1 |
0,5 |
1 |
0,5 |
|
| Всего |
94,95 |
3.3 Уточненный расчет площади участка
Расчет площади производится по площади занимаемой оборудованием.
Расчет ведется по формуле,
, м2:
,(3.6)
где
– площадь пола, занятая оборудованием, м2;
– коэффициент, учитывающий проходы, проезды и удобство работ, (
) [2].
м2;
м2.
3.4 Выбор и обоснование схемы планировки участка
Расстояние от сварочного стенда (кондуктора) до колонны и другого элемента здания и между кондукторами должно быть не менее 1,5 м.
Расстояние между параллельными сборочно-сварочными конвейерами, применяемыми для сварки крупногабаритных изделий (кабин, баков и др.), должно быть равным от 3,5 до 3,9 м.
Участки (цехи) сварки и наплавки металла относятся к категории горячих производственных подразделений, поэтому их следует размещать в изолированных помещениях. В многопролетных производственных зданиях сварочные участки изолируют от других участков огнестойкими перегородками, щитами или ширмами.
Рабочие места для электродуговой сварки размещают у «темной» глухой стены и ограждают металлическими щитами или гибкими огнестойкими шторами.
Рабочие места газопламенной сварки размещают аналогично, но без ограждения.
В качестве подъемно-транспортного оборудования для обслуживания рабочих мест рекомендуются однобалочные краны на подвесных подкрановых путях, консольно-поворотные краны, тележки на рельсовых путях, рольганги и электрокары [2].
Планировка участка представлена в приложении Д.
3.5 Организация охраны труда на участке
Уровень травматизма, качество продукции и производительность труда во многом зависят от освещенности, температурного режима и других факторов, формирующих микроклимат в помещении.
Естественное освещение осуществляется через окна, которых на участке четыре (приложение Д). Также установлены искусственные источники света. Искусственное освещение обеспечивает необходимую освещенность рабочих мест.
Также соблюдаются температурный режим, влажность, скорость движения воздуха и другие параметры микроклимата, для чего устанавливаются вытяжки, отопители и другое оборудование.
Противопожарная безопасность соблюдается установкой ящиков с песком, огнетушителей, устройством запасных выходов.
Электробезопасность соблюдается обеспечением заземления и зануления электроприборов.
По нормам санитарной безопасности сварочно-наплавочный участок расположен в изолированном помещении.
Выводы
В данной курсовой работе была поставлена задача, спроектировать завод по ремонту двигателей Caterpillar. Разработан технологический процесс, определено количество рабочих, рассчитаны производственные площади, скомпонован завод и участок.
В первой главе произошло ознакомление с устройством двигателя и была построена структурная схема изделия. Также была составлена таблицы маршрутов и процессов ремонтов, где зная трудоемкости выполнения тех или иных операций, скомпоновали участки.
Во второй главе были рассчитаны фонды времени, количество рабочих и площади помещений, а также был сформирован план производственного участка.
В третей главе был рассчитан сварочно-наплавочный участок и схематически изображена его компоновка (приложение Д).
В данном курсовом проекте задача была выполнена. Однако не выполнены следующие вопросы: компоновка цехов выполнена в сокращенном варианте, что может привести к нерациональному распределению рабочих площадей. Также мы не затронули вопрос о выборе оборудования, что приводит к невозможности определения точных капиталовложений.
Список использованных источников
1. СТО СГУПС 1.01СДМ.01-2007. Система управления качеством. Курсовой и дипломный проекты. Требования к оформлению.
2. Аксенов В. А., Бабич А. В., Евсеев Д. Г. Проектирование предприятий и технологических процессов ремонта и эксплуатации машин: Учебное пособие. – Новосибирск: Изд-во СГУПСа, 2004. – 248 с.
3. Caterpillar – Россия // www.cat.ru
4. Service Information System // https://sis.cat.com
5. Ремонт двигателей // http://azs-auto.ru/?Avtomobilizaciya:Remont_dvigatelei
Приложение
Компоновка производственного корпуса завода по ремонту двигателей
![]()
![]()

1 – Моечно-разборочный участок; 2 – Разборочный участок; 3 – Моечное отделение; 4 – Дефектовочное отделение; 5 – Комплектовочное отделение; 6 – Сборочный участок; 7 – Окрасочное отделение; 8 – Отделение испытания элементов и сборочных единиц; 9 – Отделение испытания двигателей; 10 – Отделение окраски двигателей; 11 – Штамповочный участок; 12 – Сварочно-наплавочный участок; 13 – Термическое отделение; 14 – Гальваническое отделение; 15 – Металлизационное отделение; 16 – Кузнечный участок; 17 – Медницко-жестяницкое отделение; 18 – Склады общехозяйственные; 19 - Бытовые помещения;; 20 – Здравпункт; 21 – Конторское помещение; 22 – Электроремонтное отделение; 23 – Ремонт топливной аппаратуры; 24 – Слесарный участок; 25 – Сборочный участок; 26 – Цеховые склады; 27 – Станочный участок; 28 Эмульсионное отделение; 39 – ЦРК с заточным отделением.