| Скачать .docx |
Дипломная работа: Подбор диагностического оборудования при реконструкции муниципального унитарного предприятия
Содержание
Введение
1 Требования, предъявляемые к техническому состоянию систем активной безопасности
1.1 Требования к техническому состоянию систем тормозногоуправления
1.2 Условия проведения проверки технического состояния тормозного управления
1.3 Методы проверки тормозного управления
1.3.1 Проверка рабочей тормозной системы
1.3.2 Проверка стояночной и запасной тормозной системы
1.3.3 Проверка вспомогательной тормозной системы
1.4 Требования к техническому состоянию рулевого управления
1.5 Методы проверки рулевого управления
2 Характеристика МУП «ВПАТП-7»
2.1 Парк подвижного состава
2.2 Технологический процесс ТО-1 и ТО-2, применяемое оборудование
2.3 Зона ТО-2. Расположение и имеющееся оборудование
3 Оборудование, применяемое для диагностирования систем активной безопасности
3.1 Оборудование для диагностирования тормозных систем
3.2 Оборудование для диагностирования рулевого управления
3.2.1 Оборудование для измерения люфта рулевого управления
3.2.2 Оборудование для измерения углов установки колес
3.3 Диагностическое оборудование, предлагаемое на рынке
3.3.1 Тормозные стенды
3.3.2 Стенды регулировки углов установки колес
Заключение
Список использованной литературы
Введение
Современный город немыслимо представить без развитой системы городского транспорта. Автомобильный транспорт является самым небезопасным в этой системе. За первые четыре месяца в Волгоградской области произошло более 700 ДТП, почти половина из них – с тяжкими последствиями. В 40 случаях из 100 причиной возникновения ДТП является неудовлетворительное техническое состояние автомобилей, более половины всех аварий и дорожных катастроф, вызванных техническими причинами, приходится на неисправности тормозного и рулевого управления. В условиях ПАТП, когда от исправности систем активной безопасности автобуса зависит здоровье большого числа пассажиров, следует уделять особое внимание техническому состоянию систем тормозного и рулевого управления.
В этой связи целью данной работы стоит анализ оснащенности МУП «ВПАТП-7» соответствующим диагностическим оборудованием, соответствия данного оборудования современным требованиям и, в случае отсутствия необходимого оборудования, внесение предложений по оснащению зоны ТО МУП «ВПАТП-7» оборудованием конкретной марки и модели.
1 Требования, предъявляемые к техническому состоянию систем активной безопасности
1.1 Требования к техническому состоянию систем тормозного управления
Тормозная система автомобилей, состоящая из тормозных механизмов и их привода, предназначена для снижения скорости движения вплоть до полной остановки при минимальном тормозном пути. Она позволяет сохранять заданную скорость при движении под уклон, а также обеспечивать неподвижность автомобиля на стоянках. Таким образом, тормозная система характеризует тормозные свойства автомобиля или тормозную динамику.
В соответствии с современными требованиями у автомобиля должны быть тормозные системы, выполняющие различные функции. Основная — рабочая тормозная система, предназначена для уменьшения скорости движения вплоть до полной остановки автомобиля. Стояночная тормозная система предназначена для удержания автомобиля на месте. Эти две системы в конструктивном отношении должны быть независимы друг от друга. Кроме того, автомобили оборудуются вспомогательной и запасной тормозной системой, которая выполняет функции рабочей при отказе последней.
Тормозные качества автомобилей — один из главных показателей технического состояния и пригодности их к эксплуатации. Хорошие тормозные качества автомобилей гарантируют своевременную остановку автомобиля без заноса, надежное удержание его на стоянке, а также создают у водителя уверенность при движении по дорогам с интенсивным движением.
В соответствии с ГОСТ Р 51709-2001 рабочую тормозную систему проверяют по показателям эффективности торможения и устойчивости АТС при торможении, а запасную, стояночную и вспомогательную тормозные системы - по показателям эффективности торможения согласно таблицам 1.1а и 1.1б.
Таблица 1а - Использование показателей эффективности торможения и устойчивости АТС при торможении при проверках на роликовых стендах.
| Наименование показателя | Тормозная система |
||||
| рабочая | запасная | стояночная | |||
| Эффективность торможения | Устойчивость АТС при торможении | Эффективность торможения | Эффективность торможения АТС массой: |
||
снаряжен-ной |
разрешен-ной максималь-ной | ||||
| Удельная тормозная сила | + | + | + | + | |
| Относительная разность тормозных сил колес оси | + |
||||
| Блокирование колес АТС на роликовом стенде* | + |
+ |
+ |
+ |
|
| * Используется только вместо показателя удельной тормозной силы. | |||||
Таблица 1б - Использование показателей эффективности торможения и устойчивости АТС при торможении при проверках в дорожных условиях
Наименование показателя |
Тормозная система | ||||
| рабочая | запасная | стояночная | вспомога-тельная | ||
Эффективность торможения |
Устойчивость АТС при торможении | Эффективность торможения |
|||
| Тормозной путь | + | + | |||
| Установившееся замедление* | + |
+ |
+ |
||
| Время срабатывания тормозной системы* | + |
+ |
|||
| Коридор движения | + | ||||
| Уклон дороги, на котором АТС удерживается неподвижно | + |
||||
| * Используется только вместо показателя тормозного пути. | |||||
Примечание к таблицам 1.1а, 1.1б - Знак «+» означает, что соответствующий показатель должен использоваться при оценке эффективности торможения или устойчивости АТС при торможении, знак «-» не должен использоваться.
В дорожных условиях при торможении рабочей тормозной системой с начальной скоростью торможения 40 км/ч АТС не должно ни одной своей частью выходить из нормативного коридора движения шириной 3 м [1]. Нормативы эффективности торможения АТС рабочей тормозной системой приведены в таблицах 1.2 – 1.4.
Коридор движения - часть опорной поверхности, правая и левая границы которой обозначены для того, чтобы в процессе движения горизонтальная проекция АТС на плоскость опорной поверхности не пересекала их ни одной точкой.
При проверках на стендах допускается относительная разность тормозных сил колес оси (в процентах от наибольшего значения) для осей АТС с дисковыми колесными тормозными механизмами не более 20 % и для осей с барабанными колесными тормозными механизмами не более 25 %.
Таблица 1.2 - Нормативы эффективности торможения АТС при помощи рабочей тормозной системы при проверках на роликовых стендах.
| Наименование вида АТС | Категория АТС |
Усилие на органе управления Рn, Н |
Удельная тормозная сила γт не менее |
| Пассажирские и грузопассажирские автомобили | М1 | 490 | 0,53 |
| М2, М3 | 686 | 0,46 |
Таблица 1.3 - Нормативы эффективности торможения АТС при помощи рабочей тормозной системы в дорожных условиях с использованием прибора для проверки тормозных систем.
| Наименование вида АТС | Категория АТС |
Усилие на органе управления Рn, Н |
Тормозной путь АТС Sт, м, не более |
| Пассажирские и грузопассажирские автомобили | М1 | 490 | 15,8 |
| М2, М3 | 686 | 19,6 |
Таблица 1.4 - Нормативы эффективности торможения АТС при помощи рабочей тормозной системы в дорожных условиях с регистрацией параметров торможения.
| Наименование вида АТС | Категория АТС | Усилие на органе управления Рn, Н | Установившеесязамедление jуст., м/с2, не менее | Время срабатывания тормозной системы τср, с, не более |
| Пассажирские и грузопассажирские автомобили | М1 | 490 | 5,2 | 0,6 |
| М2, М3 | 686 | 4,5 | 0,8 |
Стояночная тормозная система считается работоспособной в том случае, если при приведении ее в действие достигается:
для АТС с технически допустимой максимальной массой:
- или значение удельной тормозной силы не менее 0,16;
- или неподвижное состояние АТС на опорной поверхности с уклоном (16±1) %;
для АТС в снаряженном состоянии:
- или расчетная удельная тормозная сила, равная меньшему из двух значений:
0,15 отношения технически допустимой максимальной массы к массе АТС при проверке или 0,6 отношения снаряженной массы, приходящейся на ось (оси), на которые воздействует стояночная тормозная система, к снаряженной массе;
- или неподвижное состояние АТС на поверхности с уклоном 23±1 % для АТС категорий М1 - М3 и (31±1) % для категорий N1 - N3.
Усилие, прикладываемое к органу управления стояночной тормозной системы для приведения ее в действие, не должно превышать:
- в случае ручного органа управления:
392 Н - для АТС категории M1;
589 Н - для АТС остальных категорий.
- в случае ножного органа управления:
490 Н - для АТС категории M1;
688 Н - для АТС остальных категорий.
Стояночная тормозная система с приводом на пружинные камеры, раздельным с приводом запасной тормозной системы, при торможении в дорожных условиях с начальной скоростью 40 км/ч для АТС категорий М2 и М3, у которых не менее 0,37 массы АТС в снаряженном состоянии приходится на ось (и), оборудованную (ые) стояночной тормозной системой, должна обеспечивать установившееся замедление не менее 2,2 м/с2.
Вспомогательная тормозная система, за исключением моторного замедлителя, при проверках в дорожных условиях в диапазоне скоростей 25 — 35 км/ч должна обеспечивать установившееся замедление не менее 0,5 м/с2 для АТС разрешенной максимальной массы и 0,8 м/с2 - для АТС в снаряженном состоянии с учетом массы водителя.
Запасная тормозная система, снабженная независимым от других тормозных систем органом управления, должна обеспечивать соответствие нормативам показателей эффективности торможения АТС на стенде согласно таблице 1.5, либо в дорожных условиях согласно таблице 1.6 или 1.7. Начальная скорость торможения при проверках в дорожных условиях - 40 км/ч.
Таблица 1.5 - Нормативы эффективности торможения АТС при помощи запасной тормозной системы при проверках на стендах.
| Наименование вида АТС | Категория АТС |
Усилие на органе управления Рn, Н |
Удельная тормозная сила γт не менее |
| Пассажирские и грузопассажирские автомобили | М1 | 490 (392*) | 0,26 |
| М2, М3 | 686 (589*) | 0,23 | |
| * Для АТС с ручным органом управления запасной тормозной системы. | |||
Таблица 1.6 - Нормативы эффективности торможения АТС при помощи запасной тормозной системы в дорожных условиях с использованием прибора для проверки тормозных систем.
| Наименование вида АТС | Категория АТС |
Усилие на органе управления Рn, Н |
Тормозной путь АТС Sт, м, не более |
| Пассажирские и грузопассажирские автомобили | М1 | 490 (392*) | 28,1 |
| М2, М3 | 686 (589*) | 33,3 | |
| * Для АТС с ручным органом управления запасной тормозной системы. | |||
Таблица 1.7 - Нормативы эффективности торможения АТС при помощи запасной тормозной системы при проверках в дорожных условиях с регистрацией параметров торможения.
| Наименование вида АТС | Категория АТС | Усилие на органе управления Рn, Н | Установившеесязамедление jуст., м/с2, не менее | Время срабатывания тормозной системы τср, с, не более |
| Пассажирские и грузопассажирские автомобили | М1 | 490 (392*) | 2,6 | 0,6 |
| М2, М3 | 686 (589*) | 2,25 | 0,8 (1,0**) | |
* Для АТС с ручным органом управления запасной тормозной системы. ** Для АТС, изготовленных до 01.01.81. |
||||
Допускается падение давления воздуха в пневматическом или пневмогидравлическом тормозном приводе при неработающем двигателе не более чем на 0,05 МПа в течение:
30 мин - при выключенном положении органа управления тормозной системы;
15 мин - после полного приведения в действие органа управления тормозной системы.
Действие рабочей и запасной тормозных систем должно обеспечивать плавное, адекватное уменьшение или увеличение тормозных сил (замедление АТС) при уменьшении или увеличении, соответственно, усилия воздействия на орган управления тормозной системы.
АТС, оборудованные антиблокировочными тормозными системами (АБС), при торможениях в снаряженном состоянии с начальной скоростью не менее 40 км/ч должны двигаться в пределах коридора движения прямолинейно без заноса, а их колеса не должны оставлять следов юза на дорожном покрытии до момента отключения АБС при достижении скорости движения, соответствующей порогу отключения АБС (не более 15 км/ч). Функционирование сигнализаторов АБС должно соответствовать ее исправному состоянию.
1.2 Условия проведения проверки технического состояния тормозного управления
АТС подвергают проверке при «холодных» тормозных механизмах. «Холодный» тормозной механизм - тормозной механизм, температура которого, измеренная на поверхности трения тормозного барабана или тормозного диска, менее 100 °С.
Шины проверяемого на стенде АТС должны быть чистыми, сухими, а давление в них должно соответствовать нормативному, установленному изготовителем АТС в эксплуатационной документации.
Проверки на стендах и в дорожных условиях (кроме проверки вспомогательной тормозной системы) проводят при работающем и отсоединенном от трансмиссии двигателе, а также отключенных приводах дополнительных ведущих мостов и разблокированных трансмиссионных дифференциалах (при наличии указанных агрегатов в конструкции АТС).
Проверки в дорожных условиях проводят на прямой ровной горизонтальной сухой чистой дороге с цементно- или асфальтобетонным покрытием. Проверки на уклоне выполняют на очищенной от льда и снега твердой нескользкой опорной поверхности. Торможение рабочей тормозной системой осуществляют в режиме экстренного полного торможения путем однократного воздействия на орган управления. Время полного приведения в действие органа управления тормозной системой не должно превышать 0,2 с. Экстренное торможение - торможение с целью максимально быстрого уменьшения скорости АТС.
Управляющие воздействия на рулевое управление АТС в процессе торможения при проверках рабочей тормозной системы в дорожных условиях не допускаются. Если такое воздействие было произведено, то результаты проверки не учитывают.
Общая масса технических средств диагностирования, устанавливаемых на АТС для проведения проверок в дорожных условиях, не должна превышать 25 кг.
1.3 Методы проверки тормозного управления
1.3.1 Проверка рабочей тормозной системы
При проверках в дорожных условиях эффективности торможения АТС без измерения тормозного пути допускается непосредственное измерение показателей установившегося замедления и времени срабатывания тормозной системы или вычисление показателя тормозного пути по методике, указанной ниже, на основе результатов измерения установившегося замедления, времени запаздывания тормозной системы и времени нарастания замедления при заданной начальной скорости торможения.
Вычисление тормозного пути Sт (в метрах) для начальной скорости торможения
по результатам проверок показателей замедления АТС при торможении производится по формуле:
, (1)
где
- время запаздывания тормозной системы, с;
- время нарастания замедления, с;
- установившееся замедление,
.
При проверках на стендах относительную разность тормозных сил колес оси рассчитывают по формуле (2)и сопоставляют полученное значение с предельно допустимыми по ГОСТ Р 51709-2001. Измерения и расчеты повторяют для колес каждой оси АТС.
, (2)
где
- тормозные силы на правом и левом колесах проверяемой оси АТС, измеренные одновременно в момент достижения максимального значения тормозной силы первым из этих колес, Н;
- наибольшая из указанных тормозных сил.
Устойчивость АТС при торможении в дорожных условиях проверяют путем выполнения торможений в пределах нормативного коридора движения. Ось, правую и левую границы коридора движения предварительно обозначают параллельной разметкой на дорожном покрытии. АТС перед торможением должно двигаться прямолинейно с установленной начальной скоростью по оси коридора. Выход АТС какой-либо его частью за пределы нормативного коридора движения устанавливают визуально по положению проекции АТС на опорную поверхность или по прибору для проверки тормозных систем в дорожных условиях при превышении измеренной величиной смещения АТС в поперечном направлении половины разности ширины нормативного коридора движения и максимальной ширины АТС.
При проверках в дорожных условиях эффективности торможения рабочей тормозной системой и устойчивости АТС при торможении допускаются отклонения начальной скорости торможения от установленного значения в 40 км/ч не более ±4 км/ч. При этом должны быть пересчитаны нормативы тормозного пути формуле (3):
, (3)
где А – коэффициент, характеризующий время срабатывания тормозной системы.
По результатам выполнения проверок в дорожных условиях или на стендах вычисляют соответственно тормозной путь (1) или удельную тормозную силу
(4) и относительную разность тормозных сил колес оси (2). АТС считают выдержавшими проверку эффективности торможения и устойчивости при торможении рабочей тормозной системой, если рассчитанные значения указанных показателей соответствуют приведенным в таблицах 1-3нормативам, или, вне зависимости от достигнутой величины удельной тормозной силы, произошло блокирование всех колес АТС на роликах стенда, не оборудованного системой автоматического отключения стенда, или автоматическое отключение стенда, оборудованного системой автоматического отключения, вследствие проскальзывания любого из колес оси по роликам, при усилии на органе управления 686 Н, в соответствии с таблицами 1-3, а для осей АТС, в тормозном приводе которых установлен регулятор тормозных сил, при усилии на органе управления не более 980 Н.
, (4)
где
- сумма тормозных сил на колесах тягача или прицепа (полуприцепа), Н;
М – масса тягача или прицепа (полуприцепа) при выполнении проверки;
g – ускорение свободного падения,
.
1.3.2 Проверка стояночной и запасной тормозной системы
Проверку стояночной тормозной системы на уклоне проводят посредством размещения АТС на опорной поверхности с уклоном, равным 23±1 % для АТС категорий М1 - М3, или иному значению для АТС других категорий в соответствии с требованиями ГОСТ Р 51709-2001, затормаживания АТС рабочей тормозной системой, а затем -стояночной тормозной системой с одновременным измерением динамометромусилия, приложенного к органу управления стояночной тормозной системы, ипоследующего отключения рабочей тормозной системы. При проверке определяют возможность обеспечения неподвижного состояния АТС под воздействием стояночной тормозной системы в течение не менее 1 мин.
Проверку на стенде проводят путем поочередного приведения во вращение колеса роликами стенда в одном направлении или в противоположных направлениях и выполнения торможения колес оси АТС, на которую воздействует стояночная тормозная система. Колеса, не опирающиеся при выполнении проверки на ролики стенда, должны быть зафиксированы не менее, чем двумя противооткатными упорами, исключающими выкатывание АТС со стенда. К органу управления стояночной тормозной системы прикладывают усилие, не превышающее 589 Н в случае ручного органа управления и 688 Н в случае ножного органа управления. По результатам проверки вычисляют удельную тормозную силу по формуле (4) и сравнивают полученное значение с расчетным нормативом. Для АТС категорий М2 и М3, у которых не менее 0,37 массы АТС в снаряженном состоянии приходится на ось (и), оборудованную (ые) стояночной тормозной системой, должна обеспечивать установившееся замедление не менее 2,2 м/с2. АТС считают выдержавшим проверку эффективности торможения стояночной тормозной системы, если колеса проверяемой оси блокируются на роликах стенда, не оборудованного системой автоматического отключения, или происходит автоматическое отключение стенда, оборудованного системой автоматического отключения, вследствие проскальзывания любого из колес оси по роликам при усилии на органе управления, не превышающем нормативного значения, или если удельная тормозная сила не менее рассчитанной нормативной.
Проверку стояночной тормозной системы с приводом от пружинных камер в дорожных условиях проводят аналогично проверке рабочей тормозной системы, с соблюдением требований, предъявляемых к дорожному покрытию. Допускаются отклонения начальной скорости торможения от установленного значения в 40 км/чв пределах ±4 км/ч с условием пересчета нормативов тормозного пути по формуле (3).
Соответствие параметров запасной тормозной системы, снабженной независимым от других тормозных систем органом управления параметрам, изложенным в таблице 4, проверяется на стендах методами, установленными для поверки рабочей тормозной системы.
1.3.3 Проверка вспомогательной тормозной системы
Вспомогательную тормозную систему проверяют в дорожных условиях путем приведения ее в действие и измерения замедления АТС при торможении в диапазоне скоростей 25 – 35 км/ч. При этом в трансмиссии АТС должна быть включена передача, исключающая превышение максимальной допустимой частоты вращения коленчатого вала двигателя.
Показателем эффективности торможения вспомогательной тормозной системой в дорожных условиях является значение установившегося замедления. АТС считают выдержавшим проверку эффективности торможения вспомогательной тормозной системой, если установившееся замедление не менее 0,5 м/с2 для АТС разрешенной максимальной массы и 0,8 м/с2 - для АТС в снаряженном состоянии с учетом массы водителя.
При дорожных испытаниях сложно объективно оценить работу тормоза каждого колеса и одновременность срабатывания, а следовательно, определить характер и место возможной неисправности. Также организация проверки тормозного управления в дорожных условиях в рамках АТП осложняется отсутствием достаточной территории. Поэтому для диагностики тормозных систем предпочтение отдается тормозным стендам инерционного, силового или инерционно-силового принципа действия [3].
1.4 Требования к техническому состоянию рулевого управления
В соответствии с требованиями ГОСТ Р 51709-2001 параметры технического состояния рулевого управления должны отвечать изложенным ниже требованиям.
Изменение усилия при повороте рулевого колеса должно быть плавным во всем диапазоне его поворота. Неработоспособность усилителя рулевого управления АТС (при его наличии на АТС) не допускается.
Самопроизвольный поворот рулевого колеса с усилителем рулевого управления от нейтрального положения при неподвижном состоянии АТС и работающем двигателе не допускается.
Суммарный люфт в рулевом управлении не должен превышать предельных значений, установленных изготовителем в эксплуатационной документации, или при отсутствии данных, установленных изготовителем, предельных значений, указанных в таблице 1.8.
Таблица 1.8 – суммарные значения люфта в рулевом управлении
| Тип автомобиля | Суммарный люфт в рулевом управлении |
легковые автомобили и созданные на базе их агрегатов грузовые автомобили и автобусы |
10° |
| автобусы | 20° |
| грузовые автомобили | 25° |
Максимальный поворот рулевого колеса должен ограничиваться только устройствами, предусмотренными конструкцией АТС.
Повреждения и отсутствие деталей крепления рулевой колонки и картера рулевого механизма, а также повышение подвижности деталей рулевого привода относительно друг друга или кузова (рамы), не предусмотренное изготовителем АТС (в эксплуатационной документации), не допускаются. Резьбовые соединения должны быть затянуты и зафиксированы способом, предусмотренным изготовителем АТС. Люфт в соединениях рычагов поворотных цапф и шарнирах рулевых тяг не допускается. Устройство фиксации положения рулевой колонки с регулируемым положением рулевого колеса должно быть работоспособно.
Применение в рулевом механизме и рулевом приводе деталей со следами остаточной деформации, с трещинами и другими дефектами не допускается.
Уровень рабочей жидкости в резервуаре усилителя рулевого управления должен соответствовать требованиям, установленным изготовителем АТС в эксплуатационной документации. Подтекание рабочей жидкости в гидросистеме усилителя не допускается.
1.5 Методы проверки рулевого управления
Требованиепо работоспособности усилителя рулевого управления проверяют на неподвижном АТС сопоставлением усилий, необходимых для вращения рулевого колеса при работающем и выключенном двигателе. Требования по плавности изменения усилия при повороте рулевого колеса и по ограничителям угла поворота рулевого колеса проверяют на неподвижном АТС при работающем двигателе посредством поочередного поворота рулевого колеса на максимальный угол в каждую сторону.
Требование об отсутствии самопроизвольного поворота рулевого колеса с усилителем рулевого управления от нейтрального положения при неподвижном состоянии АТС и работающем двигателе проверяют наблюдением за положением рулевого колесана неподвижном АТС с усилителем рулевого управления после установки рулевого колеса с положение, примерно соответствующее прямолинейному движению, и пуска двигателя.
Значение суммарного люфта в рулевом управлении проверяют на неподвижном АТС без вывешивания колес с использованием приборов для определения суммарного люфта в рулевом управлении, фиксирующих угол поворота рулевого колеса и начало поворота управляемых колес.
Детали крепления рулевой колонки и картера рулевого механизма, а так же резьбовые соединения проверяют на наличие повреждений органолептически на неподвижном АТС при неработающем двигателе путем приложения нагрузок к узлам рулевого управления и простукивания резьбовых соединений.
Взаимные перемещения деталей рулевого привода, крепление картера рулевого механизма и рычагов поворотных цапф проверяют посредством поворота рулевого колеса относительно нейтрального положения на 40 - 60° в каждую сторону и приложением непосредственно к деталям рулевого привода знакопеременной силы. Для визуальной оценки состояния шарнирных соединений используют стенды для проверки рулевого привода.
Работоспособность устройства фиксации положения рулевой колонки проверяют посредством приведения его в действие и последующего качания рулевой колонки при ее зафиксированном положении путем приложения знакопеременных усилий к рулевому колесу в плоскости рулевого колеса перпендикулярно к колонке во взаимно перпендикулярных плоскостях, проходящих через ось рулевой колонки.
Устойчивость автомобиля при движении, легкость управления, нормальное сопротивление качению шин передних колес и их износ, а также расход топлива на единицу пути во многом зависят от установки управляемых (передних) колес автомобиля.
Устойчивостью автомобиля называется его свойство двигаться без опасности опрокидывания набок и скольжения вбок под воздействием поперечной силы. В зависимости от направления опрокидывания и скольжения различают продольную и поперечную устойчивость. Более вероятна и более опасна потеря поперечной устойчивости, которая происходит под действием центробежной силы, поперечной составляющей силы тяжести автомобиля, силы бокового вера, а также в результате ударов колес о неровности дороги.
Показателями поперечной устойчивости автомобиля являются максимально возможная скорость движения по кривой и угол поперечного уклона дороги (косогора). Каждый показатель может быть определен из условий поперечного скольжения колес (заноса) и опрокидывания автомобиля. Таким образом, получаются четыре фактора поперечной устойчивости:
— максимальная (критическая) скорость движения автомобиля по кривой, соответствующая началу его заноса, м/с;
— максимальная (критическая) скорость движения автомобиля по кривой, соответствующая началу его опрокидывания, м/с;
— максимальный (критический) угол косогора, соответствующий началу поперечного скольжения колес (заноса), град;
— максимальный (критический) угол косогора, соответствующий началу опрокидывания автомобиля, град [7].
Передние колеса с учетом нагрузок, которые испытывает автомобиль, устанавливаются с некоторыми отклонениями от плоскости движения автомобиля. Первоначальная установка передних колес в ходе эксплуатации нарушается, и требуется систематическая проверка и регулировка углов установки колес: угла схождения, угла развала, углов продольного и поперечного наклона шкворней.
Для грузовых автомобилей и автобусов регулируемым является только параметр угла схождения передних колёс. Углы схождения нужны для того, чтобы колёса при движении занимали прямолинейное положение. Повышенный угол схождения ведёт к износу передних шин по наружным дорожкам. Пониженный - по внешним дорожкам. Идеальным положением для эксплуатации колеса является вертикальное и прямолинейное положение, в этом случае у шины наилучшее сцепление с дорогой и наименьший износ. В теории параметры схождения должны подбираться оптимально для каждого автомобиля.
В соответствии с технической документацией контроль и регулировка углов схождения должна проводиться при каждом ТО-2. На практике из-за неудовлетворительных дорожных условий регулировку углов установки управляемых колёс требуется проводить чаще, чем при каждом ТО-2.
В этой связи для диагностики рулевого управления и регулировки углов установки управляемых колёс в условиях АТП необходимо оснастить посты в зоне ТО соответствующими диагностическими стендами.
2 Характеристика МУП «ВПАТП-7»
2.1 Парк подвижного состава
Муниципальное унитарное предприятие «Волгоградское пассажирское автотранспортное предприятие №7» располагается в Кировском районе города Волгограда по адресу ул. Генерала Шумилова, 7а. МУП «ВПАТП-7» осуществляет перевозку пассажиров на городских и дачных маршрутах.
Предприятие имеет в составе своего парка 124 автобуса. Средний возраст автобусов составляет 8,6 лет, что свидетельствует о достаточно изношенном состоянии подвижного состава. Качественный состав парка приведён в таблице 2.1. Часть подвижного состава хранится в закрытом отапливаемом помещении, рассчитанном на 15 автобусов. Остальные автобусы хранятся на открытых площадках. Площадки для открытого хранения оборудованы линиями пароподогрева, рассчитанными на 74 автобуса, для облегчения пуска холодного двигателя в зимнее время.
Таблица 2.1 - Качественный состав парка МУП «ВПАТП-7»
| Марка автобуса | Количество |
| 1. КАВЗ, САРЗ | 2 |
| 2. ПАЗ-672 | 3 |
| 3. ПАЗ-3205, 32050R, 32051А, 32051R | 3 |
| 4. ПАЗ-320401-03 | 9 |
| 5. ПАЗ-3237-01 | 1 |
| 6. Газель | 2 |
| 7. ЛиАЗ-677, 677Б | 28 |
| 8. ЛиАЗ-5256 | 7 |
| 9. ЛиАЗ-525626 | 36 |
| 10. ЛиАЗ-525626-01 | 4 |
| 11. ЛиАЗ-5293 | 1 |
| 12. Волжанин | 16 |
| 13. ЛАЗ-695 | 10 |
| 14. ЛАЗ-697 | 2 |
| Итого: 124 | |
В результате реализации Мероприятий по обновлению подвижного состава муниципальных унитарных предприятий пассажирского транспорта Волгограда с применением лизинга на период 2007 - 2010 г.г. утвержденных решением Волгоградской городской Думы от 18.07.2007 г. № 48/1164 «О Мероприятиях по обновлению подвижного состава муниципальных предприятий пассажирского транспорта Волгограда с применением лизинга на период 2007 – 2010 годов» в 2008 году муниципальное образование – городской округ Волгоград получил 92 автобуса с целью использования на общегородских маршрутах .
В 2008 году в результате реализации Мероприятий по обновлению подвижного состава на маршрутах пассажирского транспорта общего пользования с применением лизинга, утвержденных решением Волгоградской городской Думы от 18.07.2007 г.№ 48/1164, МУП «ВПАТП № 7»:
- приняты к обслуживанию 8 дачных маршрутов с дополнительным привлечением 27 автобусов;
- восстановлена работа на пяти автобусных маршрутах: № 2 с 20.06.2008 г. (6 автобусов); № 21э с 18.07.2008 г. (4 автобуса); № 23 с 01.09.2008 г. (2 автобуса); № 55 с 13.10.2008 г. (2 автобуса); № 59 с 01.12.2008 г. (4 автобуса);
- увеличено количество автобусов на ранее обслуживаемых маршрутах на 14 автобусов;
- с 01.07.2008 г. принят на обслуживание автобусный маршрут № 88 (железнодорожный вокзал – посёлок Максима Горького) с привлечением 10 автобусов [2].
На рисунке 2.1 приведена динамика изменения парка подвижного состава за период с 2000 по 2009 г.г.

Рис. 2.1 – Изменение состава парка «МУП ВПАТП-7»
2.2 Технологический процесс ТО-1 и ТО-2, применяемое оборудование
Основным назначением ТО-1 и ТО-2 является снижение интенсивности изнашивания деталей, выявление и предупреждение отказов и неисправностей путем своевременного выполнения контрольно-диагностических, смазочных, крепежных, регулировочных и других работ.
ТО-1 заключается в наружном осмотре автомобиля и выполнении в установленном объеме контрольных, крепежных, электротехнических и заправочных работ в объёме, установленном технической документацией. ТО-2 включает более углубленную проверку состояния всех механизмов и приборов. При ТО-2 отдельные агрегаты снимают с автомобиля для проверки на стендах.
Периодичность ТО устанавливается нормативами, технической документацией к подвижному составу, а также корректируется в зависимости от пробега автомобиля. Так для автобуса ЛиАЗ-525625 ТО-1 обязательно через каждые 5000 км. пробега. Если среднемесячный пробег автомобиля меньше периодичности ТО-1, то оно проводится не реже 1 раза в месяц.
ТО-2 необходимо проводить через каждые 20000 км. Если среднемесячный пробег меньше периодичности ТО-1, то ТО-2 проводится не реже двух раз в год.
В таблице 2.2 приведен перечень операций и оборудование, используемое при проведении ТО-2 автобуса ЛиАЗ-525625 [8].
Таблица 2.2 – Технологическая карта ТО-2 автобуса ЛиАЗ-525625
| Наименование операции | Место выполнения | Число мест обслуживания | Трудоемкость чел-мин | Оборудование, приспособления, инструмент | ||||||||||
| 1. Вымыть автобус | Сверху, снизу, в салоне, сзади в моторном отсеке | - | 220 | Установка для мойки автобуса щеткоструйная, струйная мойка, установка для мойки, щетка для мойки | ||||||||||
| 2. проверить герметичность впускного воздушного тракта | Сзади в моторном отсеке, в салоне через люк |
- | 25 | Приспособление специальное, ключи гаечные открытые 10, 13, 14, 17, 22 и 24 мм, отвертка 8 мм | ||||||||||
| 3. Проверить состояние муфты вентилятора | Сзади в моторном отсеке |
1 | 8,4 | Ключи гаечные открытые 12, 13, 14, 19, 22 и 24 мм. | ||||||||||
| 4. Проверить состояние опор силового агрегата | Сзади в моторном отсеке, в салоне через люк |
5 | 12 | Ключи гаечные открытые 17, 19, 22, 24, 27 мм | ||||||||||
| 5. проверить состояние трубопроводов и коллекторов системы выпуска отработавших газов | Снизу и сзади в моторном отсеке | - | 15,6 | Ключи гаечные открытые 10, 12, 13, 14 и 17 мм, ключ гаечный накидной 17 мм. | ||||||||||
| 6. Закрепить картер сцепления к двигателю | Снизу и в салоне через люк | 1 | 12 | Ключ гаечный открытый 19 мм | ||||||||||
| 7. Проверить люфт в шарнирах и шлицах карданной передачи | Снизу | 2 | 0,8 | Ключи гаечные открытые 14, 17 мм | ||||||||||
| 8. Закрепить фланцы карданного вала | Снизу | 2 | 8,6 | Ключи гаечные открытые 14, 17 мм | ||||||||||
| 9. Отрегулировать люфт в подшипниках ступиц задних колес | Справа и слева | 2 | 104 | Емкость для слива масла, ключ шестигранный 12 мм, ключ гаечный накидной 14 мм, бородок, молоток, ключ специальный гайки подшипников, зубило, вороток, воронка, шприц заправочный | ||||||||||
| 10. Проверить герметичность заднего моста | Снизу, справа и слева | - | 1,2 | Ключ шестигранный 12 мм, ключ гаечный накидной 14 и 19 мм, ключ гаечный открытый 12, 14 и 17 мм, оправка, лоток, бородок, емкость для слива масла, ключ специальный гайки подшипников с опорой, вороток, шприц заправочный, воронка | ||||||||||
| 11. проверить состояние реактивных штанг задней и передней подвесок | Снизу | 5 | 28,6 | Ключи гаечные открытые 19, 32, 41, 46, 50 и 55 мм, ключ гаечный накидной 19мм, молоток, бородок, отвертка 8 мм, плоскогубцы, рулетка | ||||||||||
| 12. Проверить правильность расположения заднего моста | Справа и снизу, слева | - | 19,4 | Ключи гаечные открытые 19 и 50 мм, ключ гаечный накидной 19 мм, отвертка 8 мм, рулетка, плоскогубцы | ||||||||||
| 13. Проверить состояние переднего шарнира А-образной рамы | Снизу | 1 | 4,8 | Ключи гаечные открытые 24, 65 мм, молоток, бородок, плоскогубцы, отвертка 8 мм. | ||||||||||
| 14. Проверить состояние А-образной рамы | Снизу | 1 | 14,6 | Агрегат сварочный ТС-500, молоток | ||||||||||
| 15. Проверить состояние колес | - | 6 | 31 | Ключи гаечные открытые 12 и 15 мм, отвертка 8 мм, плоскогубцы, воздухораздаточная коробка, манометр, приспособление для накачки шин, стенд шиномонтажный, лопатки монтажные | ||||||||||
| 16. Выполнить перестановку колес (при необходимости) | Сверху, справа и слева | 6 | 6 | Ключ гаек колес 32 мм, ключ гаечный открытый 12 мм, тележка откатная | ||||||||||
| 17. проверить состояние амортизаторов и деталей их крепления | Снизу и в салоне через люки пола | 6 | 18,6 | Ключи гаечные открытые 12, 22, 24 и 80 мм, ключ гаечный накидной 22 мм, молоток, отвертка 8 мм, приспособление | ||||||||||
| 18. Отрегулировать высоту уровня кузова | Снизу | 3 | 28 | Ключи гаечные открытые 10, 14, 17, 19 и 24 мм | ||||||||||
| 19. Проверить состояние шкворневых соединений | Справа и слева | 2 | 37,6 | Ключи гаечные открытые 12, 19, 24, 32 мм, головка сменная 27 мм, ключ с присоединительными квадратами, ключ гаечный накидной 19 мм, ключ для гаек подшипников ступиц передних колес 75 мм, молоток, бородок, отвертка 8мм, плоскогубцы, монтажка, емкость для мойки, домкрат гидравлический, подъемник, приспособление для выпресовки шкворней | ||||||||||
| 20. Проверить состояние подшипников ступиц передних колес | Справа и слева | 4 | 82,8 | Подъемник, ключ гаечный открытый 12 мм, молоток, бородок, отвертка 8 мм, плоскогубцы, ключ гаечный накидной 19 мм, головка сменная 19 мм, ключ для гаек подшипников ступиц передних колес 75 мм, монтажная лопатка, съемник подшипников, ключ для головки, щетка | ||||||||||
| 21. Проверить состояние манжет ступиц передних колес | Справа и слева | 2 | 1,6 | Молоток, бородок, оправка | ||||||||||
| 22. Отрегулировать схождение передних колес | Снизу | 1 | 34,4 | Линейка для проверки схождения колес, ключи гаечные открытые 17 и 19 мм, ключ трубный |
||||||||||
| 23. проверить люфт в шлицах и шарнирах карданного вала | Снизу |
1 | 0,6 | Ключи гаечные открытые 12 и 13 мм, плоскогубцы, люфтомер | ||||||||||
| 24. Закрепить картер рулевого механизма и стяжные болты переходника, соединяющего вал рулевого механизма с удлинительным валом | Снизу |
1 | 7,6 | Ключ гаечный открытый 22 мм, ключ гаечный накидной 24 мм | ||||||||||
| 25. Проверить состояние тормозных барабанов | Справа и слева при снятых тормозных барабанах | 4 | 102 | Ключ гаечный открытый 12 мм, ключ гаек колес 32 мм, болты-съемники, отвертка 10 мм, молоток, приспособление для крепления гаек колес, монтажные лопатки, бородок | ||||||||||
| 26. Проверить состояние колодок и фрикционных накладок | Справа и слева | 8 | 36,6 | Монтажка специальная, отвертка 8 мм, емкость для мойки | ||||||||||
| 27. проверить крепление корпусов разжимных механизмов к суппорту | Снизу |
8 | 30,4 | Ключ специальный 10 мм, бородок, молоток, ключи гаечные открытые 22 и 24 мм | ||||||||||
| 28. Проверить состояние клина, роликов, толкателей и чехлов разжимных механизмов | Справа и слева | 8 | 31,6 | Отвертка 8 мм, ключ гаечный накидной 19 мм, молоток | ||||||||||
| 29. Проверить состояние стяжных и фиксирующих пружин колодок | Справа и слева | 8 | 3 | Монтажка специальная, ключ гаечный открытый 14 мм, отвертка 8 мм | ||||||||||
| 30. Проверить состояние зубчатых колец АБС на ступицах колес | Справа и слева | 4 | 2,4 | Отвертка 8 мм | ||||||||||
| 31. Отрегулировать зазоры датчика частоты вращения колес АБС | Справа и слева | 4 | 4,1 | Ключ гаечный открытый 13 мм | ||||||||||
| 32. Проверить исправность работы АБС после проведения технического обслуживания | В кабине | - | 8,3 | - | ||||||||||
| 33. Проверить состояние электропроводки | - | - | 14,8 | Нож, отвертка 6,5 мм, ключ квадрат, контрольная лампа | ||||||||||
| 34. Довести до нормы плотность электролита в аккумуляторных батареях | Справа в отсеке аккумуляторных батарей | 2 | 3,8 | Ареометр, пробник, ключи гаечные открытые 12,13,14 и 19 мм | ||||||||||
| 35. Очистить от нагара спираль свечи накаливания | Слева в отсеке подогревателя | 1 | 3,2 | Ключи гаечные открытые 27 и 41 мм, щетка | ||||||||||
| 36. Проверить состояние уплотнителей дверей | Снаружи и в салоне | 3 | 11,8 | Отвертка 8 мм, отвертка крестообразная | ||||||||||
| 37. Проверить состояние и действие аварийно-вентиляционных люков | В салоне | 3 | 4,2 | Отвертка 8 мм, плоскогубцы | ||||||||||
| 38. Проверить состояние резиновых петель крышек | Справа и слева | 8 | 12,8 | Ключ гаечный открытый 10 мм, отвертка 8 мм | ||||||||||
| 39. Проверить состояние пола и крышек люков | В салоне и снизу | - | 26,6 | Отвертка 8 мм, молоток, дрель, набор сверл, отвертка крестообразная | ||||||||||
| 40. Проверить расположение створок дверей по высоте | В салоне и снизу | 6 | 4,2 | Ключи гаечные открытые 12. 13 и 19 мм, ключ шестигранный 12 мм, плоскогубцы, отвертка 8 мм, молоток, зубило | ||||||||||
| 41. Проверить состояние упоров осей нижних фиксаторов створок дверей | В салоне и снизу | 6 | 4,2 | Ключи гаечные открытые 10, 19 мм. Отвертка 8 мм | ||||||||||
| 42. Закрепить кронштейны направляющих роликов дверей | В салоне и кабине | 6 | 8,6 | Ключ специальный 12 мм | ||||||||||
| 43. Закрепить направляющие желоба роликов дверей | В салоне и кабине сверху | 6 | 5,4 | Ключ гаечный открытый 10 мм, ключ торцовый 10 мм | ||||||||||
| 44. Закрепить оси направляющих роликов дверей | В салоне и кабине | 6 | 3,6 | Ключи гаечные открытые 10 и 19 мм, ключ накидной 19 мм, ключ торцовый 10 мм | ||||||||||
| 45. Проверить состояние обивки сидений и травмобезопасных валиков | В салоне и кабине | - | 9,2 | Отвертка 8 мм | ||||||||||
| 46. Закрепить каркасы и спинки сидений | В салоне | - | 8,6 | Ключи гаечные открытые 12 и 17 мм, отвертка 8 мм | ||||||||||
| 47. проверить состояние подвижного основания аккумуляторных батарей | Справа в отсеке аккумуляторных батарей | 1 | 4,4 | Ключ гаечный открытый 19 мм, шприц рычажно-плунжерный, отвертка 6,5 мм | ||||||||||
| 48. Закрепить стойки, поручни и перегородки дверей | В салоне | - | 4,2 | Ключ гаечный открытый 12 мм, ключ шестигранный 6 мм, отвертка 10 мм, дрель, набор сверл, отвертка крестообразная | ||||||||||
| 49. Закрепить кронштейны ограждения стекол на створках дверей | В салоне | 10 | 2,8 | Ключ специальный 17 мм | ||||||||||
| 50. Заменить масло в картере ГМП (при достижении пробега 60 тыс. км, но не реже одного раза в год) | В салоне через люк и снизу | - | 29,4 | Ключ шестигранный 12 мм, емкость для слива масла, маслораздаточная колонка, воронка | ||||||||||
| 51. Заменить сменный фильтрующий элемент масляного фильтра ГМП (при замене масла ГМП) | В салоне или снизу | 1 | 6,1 | Ключи гаечные открытые 14, 36 мм, головка 36 мм, вороток, емкость для отработавших фильтрующих элементов | ||||||||||
| 52. Промыть фильтр грубой очистки топлива | Снизу | 1 | 27,4 | Ключи гаечные 13 и 22 мм, ключ гаечный накидной 14 мм, емкость для воды | ||||||||||
| 53. Смазать контактные поверхности ребер тормозных колодок и толкателей | Справа и слева | 16 | 2,4 | Емкость для смазки, лопатка | ||||||||||
| 54. Смазать рабочие поверхности деталей разжимных механизмов | Справа и слева | 8 | 12 | Емкость для смазки, ванна для мойки деталей, воздухораздаточная колонка | ||||||||||
| 55. Смазать подшипники ступиц передней оси | Справа и слева | 2 | 12 | Емкость для смазки, ванна для мойки деталей, лопатка деревянная | ||||||||||
Общая трудоёмкость составляет 23,5 чел-ч. Операции ТО-2 достаточно трудоёмки, однако не дают в полной мере информацию об эффективности работы систем тормозного и рулевого управления, в отличие от проверок данных систем на диагностических стендах. Проверки на стендах требуют гораздо меньших затрат времени, и при этом дают развернутую информацию о состоянии диагностируемой системы.
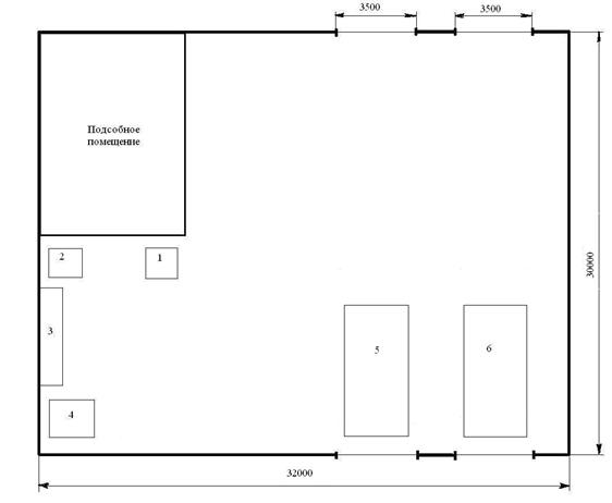
2.3 Зона ТО-2. расположение и имеющееся оборудование
Зона ТО-2 «МУП ВПАТП-7» расположена в отдельном строении, имеет два въезда и два выезда для сквозного движения автомобилей. Размеры зоны ТО-2 позволяют разместить в ней одновременно четыре автобуса. Схема зоны ТО-2 и расположения оборудования приведена на рис.1

Рис. 1 – Схема зоны ТО-2
1 – станок заклёпочный пневматический; 2 – станок вертикально-сверлильный; 3 – верстак слесарный; 4 – станок для проточки тормозных колодок и барабанов; 5 – подъёмник передвижной; 6 – подъёмник стационарный.
Проанализировав схему зоны ТО-2, можно заметить, что данное производственное помещение располагает достаточными площадями для размещения оборудования для диагностирования систем тормозного и рулевого управления.
В таблице 2.3 приведен перечень имеющегося в зоне ТО-2 оборудования и его современные аналоги.
Таблица 2.3 – Оборудование зоны ТО-2 МУП «ВПАТП-7»
| Наименование оборудования | г/в | Соответствие современным требованиям | Современные аналоги |
Подъемник передвижной ПП-24. грузоподъемность 24 т. 4 стойки с редукторным приводом, подхват за колёса. |
2008 | соответствует | Подъемник передвижной ПП-20. грузоподъемность 20 т. 4 стойки с редукторным приводом, подхват заколеса |
Подъёмник стационарный ПС-16. грузоподъемность 16 т. 4 стойки с редукторным приводом, подхват за поддомкратные площадки |
2006 | соответствует | Подъемник стационарный ПС-15. грузоподъемность 15 т. 4 стойки, подхват за поддомкратные площадки |
| Станок универсальный вертикально-сверлильный ЗИЛ 2А135 | 1987 | устарел | Редукторный вертикально-сверлильный станок JETGHD-27 |
| Станок заклепочный пневматический | 1985 | устарел | Гидро-пневматический заклёпочный станок Comec СС-30 |
| Станок для проточки тормозных колодок и барабанов пр-ва Гомельского станкостроительного завода им. С.М. Кирова | 1983 | устарел | Станок для проточки тормозных дисков, барабанов и маховиков ComecTR 1500. Станок для проточки тормозных колодок ComecTCE 560 |
Из анализа имеющегося в зоне ТО-2 МУП «ВПАТП-7» оборудования можно сделать вывод о том, что большая часть используемого оборудования сильно устарела и не соответствует современным требованиям, предъявляемым к качеству и точности обработки деталей. Так, например, современные станки для проточки тормозных барабанов и колодок обеспечивают большую точность обработки и лучшее совпадение рабочих поверхностей, чем имеющийся. Кроме того, в зоне ТО-2 отсутствует оборудование для диагностирования систем тормозного и рулевого управления, отвечающих за активную безопасность автомобиля. В связи с важностью обеспечения надежного и безотказного функционирования систем рулевого и тормозного управления, целесообразно оснастить зону ТО-2 соответствующим диагностическим оборудование
3 Оборудование, применяемое для диагностирования систем активной безопасности
В настоящее время определены два направления в диагностировании тормозных систем автомобилей:
- комплексное диагностирование, позволяющее оценить техническое состояние тормозов автомобиля в целом по величине оценочных (выходных) параметров (тормозной путь, замедление, тормозная сила, время срабатывания);
- причинное диагностирование, в процессе которого устанавливается снижение эффективности тормозов путем определения технического состояния отдельных агрегатов и элементов тормозной системы.
Комплексное диагностирование является первичным этапом, его выполняют на специальных стендах в плановом порядке с определенной периодичностью. При этом измеряют:
- тормозной путь автомобиля (путь, проходимый автомобилем с момента нажатия на тормозную педаль до полной остановки);
- замедление автомобиля при торможении;
- тормозное усилие на каждом колесе.
Сопутствующими параметрами могут быть время срабатывания тормоза каждого колеса (оси), разность величин основных параметров по отдельным колесам.
Кроме указанных выше параметров технического состояния тормозов, на стендах можно определять усилие свободного вращения колес, силу торможения, развиваемую каждым колесом, наличие блокировки, т. е. схватывания колес, усилие давления на тормозную педаль, неравномерность износа (эллипсность) тормозных барабанов.
Усилие свободного вращения колес характеризует регулировку тормозных колодок и состояние механической передачи автомобиля (трансмиссии). При оптимальной регулировке колодок и отсутствии дефектов в механической передаче усилие свободного вращения колес грузовых автомобилей находится в пределах 300—400 Н (30—40 кгс) [7].
Тормозная сила - реакция опорной поверхности на колеса автомобиля, вызывающая торможение. Торможение - процесс создания и изменения искусственного сопротивления движению автомобиля.
Тормозная сила, развиваемая каждым колесом, при одном и том же усилии давления на педаль является важным параметром, определяющим занос автомобиля при резком торможении. Нормальное разложение тормозной силы между передними и задними колесами определяется заводами-изготовителями автомобилей. Разница между силами торможения, развиваемыми правыми и левыми колесами, допускается не более 15—20 %.
Оценочным параметром эффективности тормозов в целом служит соотношение тормозной силы и веса автомобиля. Тормозная сила должна быть не менее 65 % веса автомобиля.
Усилие давления на педаль характеризует состояние гидравлического привода тормозов; оно не должно превышать при блокировке колес 500 Н (50 кгс).
Неравномерный износ тормозных барабанов по окружности характеризуется нестабильностью показаний силы торможения, проявляющейся в колебаниях стрелки прибора синхронно скорости вращения колеса (измерение лучше проводить при малых скоростях). Допустимая эллипсность тормозного барабана вызывает колебания стрелки прибора в пределах, определяемых конструкцией стенда [5].
Например, на стенде КИ-4998 для грузового автомобиля допустимое колебание стрелки прибора 10 делений, т. е. 700 Н (70 кгс).
В настоящее время разработано несколько типов стендов для диагностирования тормозов легковых и грузовых автомобилей:
- стенды для статических испытаний, на которых измерение тормозных сил осуществляют при неподвижном автомобиле и близких к нулю скоростях вращения колес;
- стенды для кинематических испытаний, где автомобиль неподвижен, вращение колес происходит с помощью роликов стенда (подвижной лентой);
- стенды для динамических испытаний, где автомобиль въезжает с определенной скоростью на динамометрические площадки и затормаживается (автомобиль и стенд воздействуют друг на друга так же, как автомобиль и дорога во время торможения).
Диагностическое оборудование предназначено для проверки технического состояния как автомобиля в целом, так и основных его узлов и систем. Техническое состояние в целом оценивается уровнем безопасности движения, воздействием на окружающую среду, тягово-экономическими характеристиками.
3.1 Оборудование для диагностирования тормозных систем
Согласно ГОСТ 25478 - 82, проверка эффективности тормозов осуществляется методами ходовых и стендовых испытаний. Методика ходовых испытаний заключается в том, что снаряженный автомобиль разгоняется на ровной площадке с сухим асфальтобетонным покрытием (коэффициент сцепления не ниже 0,6) до скорости 40 км/ч и водитель производит экстренное торможение. При этом оцениваются тормозной путь автомобиля и замедление, нормативные значения которых установлены стандартом в зависимости от типа автомобиля. Стояночная тормозная система оценивается по обеспечению неподвижного состояния при заезде автомобиля (автопоезда) на наклонную эстакаду с различными значениями уклона: для автомобиля полной массы 16 %, для легковых автомобилей и автобусов в снаряженном состоянии 23 % и для грузовых автомобилей и автопоездов в снаряженном состоянии 31 %.
При ходовых испытаниях тормозов могут применяться деселерометры (приборы для определения ускорения), но в основном используются методы визуальных наблюдений, что делает оценку технического состояния тормозов субъективной и, как следствие, недостаточно достоверной. В связи с этим в последнее время все больший акцент в организации диагностирования тормозов переносится на стендовые методы, обеспечивающие объективную оценку тормозных свойств автомобиля. Тормозные стенды подразделяются на площадочные и роликовые, а последние на стенды инерционного и силового типа. Схема площадочного тормозного стенда представлена на рис. 3.1.

Рис. 3.1 - Схема площадного тормозного стенда.
1 – площадка; 2 – датчик; 3 – ролик; 4 – колесо; 5 – пружина;
Методика диагностирования тормозов с его использованием заключается в разгоне автомобиля до скорости 6 - 12 км/ч и резком торможении при наезде колесами 4 на площадки 1 стенда. Если тормоза неэффективны, то колеса автомобиля прокатываются по площадкам стенда и последние не перемещаются. Если же тормоза эффективны, колеса затормаживаются и блокируются, а под влиянием сил инерции и сил трения между колесами и поверхностью площадок автомобиль перемещается вперед и захватывает с собой площадки. Значение не ограниченного пружинами 5 перемещения каждой площадки на роликах 3 воспринимается датчиками 2 и фиксируется измерительными приборами, расположенными на пульте. Основными преимуществами площадочных стендов являются их быстродействие, малая металло- и энергоемкость. Наиболее удобны стенды для проведения инспекторского контроля с выдачей заключения «годен - не годен». К недостаткам этих стендов следует прежде всего отнести низкую стабильность показаний из-за изменения коэффициента сцепления колес автомобиля с площадками (колеса мокрые, грязные и т. д.) и, заезда автомобиля с перекосом. Именно вследствие этих причин до сих пор не реализовано серийное производство этих стендов.
Указанные недостатки отсутствуют у стендов с беговыми роликами (барабанами), получивших широкое распространение во всем мире. На рис. 3.2 приведена принципиальная схема тормозного стенда инерционного типа.
Конструктивно он выполнен из двух пар барабанов, соединенных во избежание проскальзывания колес цепными передачами. Привод осуществляется от электродвигателя мощностью 55 - 90 кВт через редуктор и электромагнитные муфты, при отключении которых блоки барабанов становятся самостоятельными динамическими системами. Беговые барабаны соединены с маховыми массами.
Физический смысл проверки эффективности тормозов на инерционном стенде заключается в следующем. Если в реальных условиях на дороге с помощью тормозных механизмов гасится кинетическая энергия поступательно движущегося автомобиля, то на стенде, где автомобиль неподвижен, за счет действия тормозов гасится энергия вращения барабанов и маховых масс, с которой «движущаяся дорога подкатывается под автомобиль». Для обеспечения имитации реальных условий маховые массы подбираются таким образом, чтобы момент инерции их и беговых барабанов при заданной скорости вращения обеспечивал кинетическую энергию, соответствующую кинетической энергии поступательно движущейся массы автомобиля, приходящейся на одну ось.

Рис. 3.2 - Схема тормозного стенда инерционного типа с беговыми барабанами:
1 - маховик; 2 - барабаны стенда: .3 - цепная передача; 4 - электромагнитная муфта, 5 - редуктор; 6 - электродвигатель
Преимуществами тормозных стендов инерционного типа являются высокая степень точности и достоверности определения показателей (за счет обеспечения высокой стабильности коэффициента сцепления между колесами автомобиля и барабанами стенда), возможность испытаний тормозов в режимах, приближающихся к реальным, чем обеспечивается высокая информативность проверки. Однако стенды инерционного типа металлоемки (с инерционными массами до 5 т) и энергоемки. Наиболее целесообразно применение стендов данного типа при проведении приемочного контроля автомобилей с целью комплексной оценки их тормозных свойств [6].
Наибольшее распространение получили в настоящее время тормозные стенды силового типа, принципиальная схема которых показана на рис. 3.3.

Рис. 3.3 - Схема роликового тормозного стенда силового типа:
1 – рама; 2 - ролик; 3 - цепная передача; 4 - вал; 5 - мотор-редуктор; 6 - блокировочный ролик; 7 - автомобильное колесо; 8 - датчик давления.
Так же, как и инерционные, они выполнены в виде двух пар роликов, соединенных цепными передачами. Каждая пара роликов имеет автономный привод от соединенного с ним жестким валом электродвигателя мощностью 4 - 13 кВт с встроенным редуктором (мотор-редуктором). Вследствие использования редукторов планетарного типа, имеющих высокие передаточные отношения (32 - 34), обеспечивается невысокая скорость вращения роликов при испытаниях тормозов, соответствующая 2 - 4 км/ч скорости автомобиля. На роликах стенда нанесены насечка или специальное асфальтобетонное покрытие, обеспечивающее стабильность сцепления колес с роликами. Для обеспечения компактности конструкции и удобства монтажа блоки роликов установлены в общей раме. Стенд должен быть укомплектован датчиком усилия на тормозной педали и обеспечивать возможность определения максимальной тормозной силы и времени срабатывания тормозного привода. Преимуществами тормозных стендов силового типа являются их достаточно высокая точность, а низкая скорость вращения роликов при испытании тормозов определяет их высокую технологичность. К недостаткам стендов относится их металло- и энергоемкость. Наиболее удобны эти стенды при проведении операционного контроля, когда с их использованием определяется эффективность тормозов, проводятся при необходимости регулировочные работы и повторной проверкой оценивается качество выполненных регулировок. Для стендов силового типа имеются разработки по применению автоматизации процесса диагностирования, что в значительной мере повышает информативность и достоверность результатов диагностирования.
3.2 Оборудование для диагностирования рулевого управления
3.2.1 Оборудование для измерения люфта в рулевом управлении
Рулевое управление в целом проверяют прибором модели К-187. Прибор К-187 переносного типа, включает в себя динамометр со шкалой и люфтомер, который крепится на рулевом колесе; стрелка люфтомера крепится на рулевой колонке.Он позволяет определить суммарный люфт (по углу поворота рулевого колеса), а также общую силу трения, для чего передние колеса вывешивают, чтобы устранить трение шин в пятне контакта, и специальным динамометром измеряют усилие поворота рулевого колеса.
При обслуживании рулевых систем, снабженных гидроусилителем, дополнительно применяют установку модели К465М, которая позволяет определить утечку масла, давление гидравлического, насоса, производительность насоса. Износ шкворневого узла переднего моста грузового автомобиля проверяют прибором модели Т-1 [5].
Так же существуют более точные и удобные в эксплуатации приборы для измерения суммарного люфта в рулевом управлении, разработанные отечественными учеными. Например, динамометр с гидравлическим люфтомером на диске для диагностирования рулевого управления [4].
Измерительный элемент этого прибора - герметичная прозрачная ампула с жидкостью и оставленным в ней пузырьком воздуха. Опытный образец представлен на рис. 3.4.
Прибор выполнен из трех соединенных в один блок конструктивных частей: динамометра, люфтомера и присоединительного устройства.
Динамометр двухстороннего действия оснащен двумя динамометрическими рукоятками 1 со шкалами 2 и фиксаторными кольцами 7. Его пружины размещены в цилиндрическом корпусе, закрытом крышками 12.
Люфтомер скомпонован на диске 6 и представляет собой герметичную прозрачную ампулу 5, заполненную низкозамерзающей жидкостью (спиртом) с оставленным пузырьком воздуха 4. Указанная ампула проградуирована и совмещена со шкалой 3 люфтомера, состоящей из двух частей – соответственно с началом отсчета слева направо и справа налево. Диск 6 установлен во втулке 8 с возможностью вращения как влево, так и вправо. Осевое перемещение диска 6 ограничено двумя установочными винтами 11.

Рис. 3.4 - Прибор для проверки рулевого управления ДЛ-Г (динамометр-люфтомер гидромеханический):
1 – динамометрическая рукоятка; 2 – шкала динамометра; 3 – шкала люфтомера; 4 – пузырек воздуха; 5 – ампула; 6 – диск люфтомера; 7 – фиксаторное кольцо; 8 – втулка диска; 9 – кронштейн; 10 – нажимной винт; 11 – установочный винт; 12 – крышка динамометра.
Присоединительное устройство состоит из Г-образного кронштейна 9 с запрессованной в него гайкой, в которую ввинчен нажимной винт 10. Для компоновки прибора в один узел втулка 8 жестко присоединена к цилиндру динамометра сверху, а кронштейн 9 также присоединен к этому корпусу, но снизу.
Принцип работы динамометра-люфтомера. Прибор закрепляют винтом 10 к нижней или верхней точке обода рулевого колеса. При этом желательно, чтобы плоскость диска 6 была параллельна плоскости вращения указанного обода. Фиксаторные кольца 7 прижимают к крышкам 12. Прибор готов к работе.
Усилие на ободе рулевого колеса (силу трения) проверяют повертыванием обода за динамометрические рукоятки 1 из одного крайнего положения в другое. Происходит деформация пружин и вследствие этого – перемещение рукояток, а также – смещение фиксаторных колец по указанным рукояткам. Когда рукоятки отпускают, они возвращаются в исходное положение, а кольца удерживаются на них благодаря силе трения. По положению визирной линии на кольце 7 относительно штрихов шкалы 2 на рукоятке 1 находят результат измерения – максимальное усилие на ободе рулевого колеса.
Для измерения суммарного люфта повертывают рулевое колесо сначала, например, по часовой стрелке, прикладывая к рукоятке 1 заданное (нормированное) усилие и в этом положении устанавливают нуль на люфтомере, вращая диск 6. При этом левый край пузырька 4 воздуха совмещают с нулевой отметкой шкалы люфтомера – крайней риской на ампуле 5. После чего повертывают рулевое колесо в противоположном направлении, прикладывая к другой рукоятке такое же усилие. При вращении рулевого колеса ампула совершает переносное движение, а пузырек воздуха перемещается в ее полости под действием подъемной силы. Поэтому результаты измерений не зависят как от угла наклона обода рулевого колеса к горизонтальной плоскости, так и от диаметра указанного обода. По перемещению пузырька 4 относительно соответствующей шкалы люфтомера – рисок на ампуле 5 определяют люфт рулевого колеса.
При необходимости повторяют измерение с началом поворота обода рулевого колеса в противоположном направлении. Диагностирование завершено. Ослабляют винт 10 и снимают прибор с обода.
3.2.2 Оборудование для измерения углов установки колес
Проездные платформенные или реечные стенды для проверки углов установки колес, схема которых приведена на рисунке 3.5, предназначены для экспресс-диагностирования геометрического положения автомобильного колеса по наличию или отсутствию в пятне контакта боковой силы.

Рис. 3.5 - Средства контроля углов установки колес в динамическом режиме: а - проездной платформенный стенд; б - схема проездного реечного стенда;
в - схема стенда с беговыми барабанами; 1 - платформа поперечного перемещения; 2 - рейка поперечного перемещения; 3 - ведущий барабан; 4 - ведомый барабан осевого перемещения.
Когда углы установки колес не соответствуют требованиям, в пятне контакта возникает боковая сила, которая воздействует на платформу (рейку) и смещает её в поперечном направлении. Смещение регистрируется на измерительном устройстве. Какой угол установки колес надо регулировать, данные стенды не указывают. При необходимости дальнейшее обслуживание автомобиля выполняют на стендах, работающих в статическом режиме .
Платформенные стенды устанавливают под одну колею автомобиля, реечные - под две. Автомобиль проезжает через стенд со скоростью примерно 5 км/ч.
Стенды с беговыми барабанами предназначены для измерения боковых сил в местах контакта управляемых колес автомобиля с опорной поверхностью барабана. Для измерения боковых сил автомобиль устанавливают на стенде и включают электродвигатели бaрабанов. При помощи рулевого колеса, наблюдая за приборами, добиваются равенства боковых сил на обоих колесах. Если показания не соответствуют норме, регулируют схождение. В случае, если требуемого результата достичь не удалось, дальнейшее обслуживание автомобиля выполняют на стендах, работающих в статическом режиме.
Стенды с беговыми барабанами в основном предназначены для автомобилей, у которых предусмотрена регулировка только схождения. Эти стенды металлоемкие и дорогостоящие, поэтому использовать их целесообразно только на крупных АТП [9].
Стенды, (приборы) для контроля углов установки колес в статическом режиме позволяют измерять углы: продольного и поперечного наклона оси шкворня, развала, соотношения углов поворота, схождения. Эти стенды получили наибольшее распространение из-за простоты конструкции и невысокой стоимости. Функциональные возможности стендов примерно одинаковые, основные различия - в принципе измерения.
Измерение по уровню. На колесо автомобиля крепят прибор и по жидкостным уровням выставляют его «горизонт» (рис. 3.6, а). Поворачивая колеса вправо и влево, определяют, какой наклон получили уровни. Величина этих наклонов зависит от фактических значений углов установки колес. Отечественный прибор данного типа - М2142. Принцип уровня (или отвеса) заложен в измерительные системы большинства современных конструкций. Отклонение колеса от этих базовых положений считывается визуально, а в некоторых конструкциях автоматически и выдается на перфокарту или дисплей.

Рис. 3.6 - Средства контроля углов установки колес в статическом режиме:
1 - прибор с уровнями; 2 - измерительная головка с направляющими; 3 - измерительные стержни; 4 - контактный диск для крепления на колесе; .5 - проектор; 6 - источник светового луча с измерительной шкалой; 7 - зеркальный отражатель.
Измерение контактным способом. На автомобильное колесо строго параллельно его плоскости вращения крепят металлический диск. К нему по направляющим подводят прибор с подвижными измерительными стержнями. По величине утапливания стержней определяют значения углов установки колес (рис. 3.6, б). Выпускаемый в настоящее время стенд такого типа К622 предназначен для легковых автомобилей, но легко может быть модернизирован для грузовых и технологически удобен для измерения углов схождения и развала на поточных линиях технического обслуживания.
Измерение по проецируемому лучу. На автомобильное колесо крепят проектор, посылающий на экран узкий световой или лазерный луч (рис. 3.6, в). Изменяя положение колеса по соответствующим шкалам, поочередно измеряют углы установки колеса, а также геометрию базы автомобиля. Представителем стендов этого типа является модель K111 для легковых автомобилей и K62I – для грузовых.
Измерение по отраженному лучу. На автомобильное колесо крепят трехгранный зеркальный отражатель, центральное зеркало которого должно быть параллельно плоскости качения колеса. На зеркало посылают луч с визирным символом (рис. 3.6, г). Изменяя положение колеса, по положению визира на соответствующих шкалах поочередно определяют углы установки колеса. Стенды данного типа получили наибольшее распространение на АТП (модель 1119М), так как надежны, имеют высокую точность измерения, просты в работе и обслуживании. Для измерения только угла схождения применяют специальную линейку (модель 2182), которая универсальна и пригодна для всех автомобилей. Использование линейки оправдано только при отсутствии другого оборудования, так как обеспечиваемая ею точность примерно в 2 – 4 раза ниже, чем стационарных стендов, что недостаточно для современных автомобилей [6].
3.3 Диагностическое оборудование, предлагаемое на рынке
3.3.1 Тормозные стенды
В настоящее время на рынке предлагается достаточно широкая номенклатура тормозных диагностических стендов. Наибольшее распространение получили стенды силового типа. Присутствуют как стационарные, так и подкатные модели стендов. В условиях МУП «ВПАТП-7» при достаточно большой производственной программе ТО, а так же для удобства диагностирования тормозного управления перед выездом на линию, следует установить стационарный тормозной стенд.
Стенд СТС-10У-СП-11
Стенд СТС-10У-СП-11 - стационарный универсальный стенд контроля тормозных систем легковых и грузовых автомобилей, автобусов и автопоездов с нагрузкой на ось до 10 т. Результаты измерений обрабатываются на персональном компьютере и выводятся на экран. Измеряет нагрузку на ось, тормозную силу на каждом колесе, усилие на органах управления, выводит тормозные диаграммы.Определяет расчетные параметры по ГОСТ Р 51709-2001: удельную тормозную силу, относительную разность тормозных сил колес оси, асинхронность времени срабатывания тормозного привода звеньев автопоезда.Дополнительно может измерять время срабатывания тормозной системы. В таблице 3.1 приведены основные технические параметры стенда.
Таблица 3.1 – Технические параметры стенда Стенд СТС-10У-СП-11
| Диаметр колес автомобиля, мм | 520 - 1300 |
| Ширина колеи по роликам, мм | 880 - 2300 |
| Начальная скорость торможения, имитируемая на стенде, км/ч, не менее | 4,4 / 2,2 |
| Диапазон измерения тормозной силы на каждом колесе проверяемой оси, кН | 1 – 6 / 3 - 30 |
| Предел допускаемой приведенной погрешности, % | |
| Диапазон измерения усилия на органе управления, Н | 100 - 1000 |
| Предел допускаемой приведенной погрешности, % | |
| Номинальная нагрузка на ось, кг | 10000 |
| Диапазон измерения времени срабатывания тормозной системы, с | 0 – 1,5 |
| Время установления рабочего режима, мин, не более | 15 |
| Время непрерывной работы, ч, не меннее | 8 |
| Площадь под оборудование | 6,5*15 |

Рис. 1 – Размещение оборудования в рабочем положении
1 - устройство опорное правое; 2 - устройство опорное левое; 3 - шкаф силовой; 4 - шкаф приборный; 5 – фотоприёмник; 6 - стойка управления; 7 - розетка для подключения стойки управления
Стенд СТМ-8000
Стенд предназначен для контроля эффективности тормозных систем легковых, грузовых автомобилей, автобусов, а так же многоосных полноприводных автомобилей с осевой нагрузкой до 8000 кг, шириной колеи 960-2800 мм.
Стенд может применяться на станциях технического обслуживания АТС, автопредприятиях, станциях государственного технического осмотра для контроля тормозных систем в эксплуатации, при выпуске на линии, а так же при ежегодном техническом осмотре с применением средств диагностирования. Основные технические параметры стенда приведены в таблице 3.2.
Стенд обеспечивает определение следующих параметров:
- масса оси;
- усилие на органе управления;
- относительная разность тормозных сил одной оси;
- удельная тормозная сила;
- время срабатывания тормозной системы;
- овальность колес диагностируемой оси.
Таблица 3.2 – технические характеристики стенда СТМ-8000
| Диаметр колес автомобиля, мм | 520 - 1300 |
| Ширина колеи по роликам, мм | 800 - 2300 |
| Скорость торможения, имитируемая на стенде, км/ч | 3,0 / 2,3 |
| Диапазон измерения тормозной силы на каждом колесе проверяемой оси, кН | 0 - 25 |
| Предел допускаемой приведенной погрешности, % | |
| Диапазон измерения усилия на органе управления, Н | 0 - 1000 |
| Предел допускаемой приведенной погрешности, % | |
| Номинальная нагрузка на ось, кг | 8000 |
| Диапазон измерения времени срабатывания тормозной системы, с | 0 – 1,5 |
| Время установления рабочего режима, мин, не более | 15 |
| Время непрерывной работы, ч, не меннее | 8 |
| Площадь под оборудование | 6*15 |
Стенд Cartec BDE 3504-10t (spec CeSi)
Стенд CartecBDE 3504-10t (specCeSi) - компьютерный роликовый тормозной стенд для грузовых автомобилей, автобусов и автопоездов с нагрузкой на ось до 10 т. Ролики стенда имеют керамо-кремниевое покрытие, имитирующее дорожное полотно. Стенд имеет два следящих ролика. Стенд включается только тогда, когда оба следящих ролика опущены вниз (т.е. автомобиль находится на тормозном стенде), это предотвращает случайный запуск и обеспечивает дополнительную безопасность. В комплекте со стендом поставляется фундаментальная рама, значительно облегчающая подготовку фундамента диагностической линии и снижающая вероятность ошибок при установке оборудования.
Для воссоздания на стенде условий испытаний, наиболее близких к реальным дорожным условиям, автомобили необходимо диагностировать в груженном состоянии. Для этих целей в комплекте оборудования стенда имеется устройство для имитации нагрузки на автомобиль. Оно состоит из двух гидроцилиндров, устанавливаемых в смотровой канаве и прикрепляемых посредством цепей к раме или оси автомобиля. Усилие, создаваемое гидроцилиндрами, прижимает колеса автомобиля к роликам и таким образом имитирует загрузку автомобиля. В таблице 3.3 приведены технические характеристики стенда.
Стенд измеряет следующие параметры:
- масса оси;
- усилие на органе управления;
- относительная разность тормозных сил одной оси;
- удельная тормозная сила;
- время срабатывания тормозной системы;
- овальность колес диагностируемой оси;
- усилие свободного вращения колес.
Таблица 3.3 – Технические характеристики стенда CartecBDE 3504-10t
| Диаметр колес автомобиля, мм | 520 - 1300 |
| Ширина колеи по роликам, мм | 850 - 2300 |
| Скорость торможения, имитируемая на стенде, км/ч | 2,8 / 2,2 |
| Диапазон измерения тормозной силы на каждом колесе проверяемой оси, кН | 0 – 6 / 0 - 30 |
| Предел допускаемой приведенной погрешности, % | |
| Диапазон измерения усилия на органе управления, Н | 0 - 1000 |
| Предел допускаемой приведенной погрешности, % | |
| Номинальная нагрузка на ось, кг | 10000 |
| Диапазон измерения времени срабатывания тормозной системы, с | 0 – 1,5 |
| Время установления рабочего режима, мин, не более | 15 |
| Время непрерывной работы, ч, не меннее | 10 |
| Площадь под оборудование | 5*15 |
Результаты сравнительного анализа рассмотренных стендов приведены в таблице 3.4.
Таблица 3.4 – Сравнительные характеристики тормозных стендов
| Параметр сравнения | СТМ-8000 | СТС-10У-СП-11 | Cartec BDE 3504-10t (spec CeSi) |
| Измерение массы оси | + | + | + |
| Измерение усилия на органе управления | + | + | + |
| Измерение удельной тормозной силы | + | + | + |
| Измерение относительной разности тормозных сил одной оси | + | + | + |
| Измерение времени срабатывания | + | + | + |
| Определение овальности торомозных барабанов | + | - | + |
| Измерение усилия свободного вращения колес | - | - | + |
| Имитация нагрузки на автомобиль | - | - | + |
| Цена, тыс. руб. | 865 | 1080 | 894 |
Проведя сравнение трех выбранных тормозных стендов, можно заключить, что стенд фирмы Cartec, в отличие от других рассмотренных, помимо требуемых по ГОСТ Р 51709-2001 параметров тормозных систем дополнительно определяет овальность тормозных барабанов диагностируемой оси и усилие свободного вращения колес. Так же важна возможность имитации загрузки автомобиля, что позволяет оценить работу тормозной системы автобуса при движении его с пассажирами. Поэтому данный стенд является наиболее предпочтительным для установки в МУП «ВПАТП-7».
3.3.2 Стенды регулировки углов установки колес
Рассмотрим диагностические стенды для регулировки углов установки колес, пользующиеся наибольшим спросом на рынке диагностического оборудования.
Стенд КДС-5К Т
Компьютерный диагностический стенд КДС-5К Т предназначендля регулировки углов установки управляемых колёсгрузовых автомобилей и автобусов. Параметры, измеряемые стендом, пределы и погрешности измерений приведены в таблице 3.5.
Таблица 3.5 – Характеристики стенда КДС-5К Т
| Измеряемый параметр | Диапазон | Погрешность |
| Компенсация биения диска | ±5° | ±2% |
| Суммарное схождение переднее | ±7° | ±2% |
| Схождение раздельное переднее | ±3,5° | ±2% |
| Развал передний | ±7° | ±2% |
| Продольный угол наклона оси поворота колёс | ±20° | ±2% |
| Поперечный угол наклона оси поворота колёс | ±20° | ±2% |
Результаты измерений до и после регулировки выводятся на дисплей и печатающее устройство.
Цена стенда КДС-5К Т составляет 270 тысяч рублей.
Стенд Техно Вектор 4108
Компьютерный стенд регулировки углов установки колес, предназначенный для любых автомобилей с диаметром обода от 12 до 24 дюймов. Характеристики параметров, измеряемых стендом, приведены в таблице 3.6.
Таблица 3.6 - Характеристики стенда Техно Вектор 4108
| Наименование | Диапазон | Погрешность |
| Компенсация биения диска | ±5° | ±1% |
| Суммарное схождение переднее | ±8° | ±1% |
| Максимальный угол поворота колес | ±45° | ±2% |
| Развал передний | ±8° | ±1% |
| Продольный угол наклона оси поворота колёс | ±19° | ±1% |
| Поперечный угол наклона оси поворота колёс | ±19° | ±1% |
Результаты измерений до и после регулировки выводятся на дисплей и печатающее устройство.
Цена стенда составляет 250 тысяч рублей.
Стенд HunterPA100 – компьютерный стенд с инфракрасными датчиками для регулировки углов установки колес. В комплекте со стендом поставляются самоцентрирующиеся захваты на колеса, рассчитанные на диаметр обода от 10 до 24 дюймов. Инфракрасные датчики позволяют измерять углы схождения с точностью до 1’. Особенность данного стенда – отсутствие жесткого диска. Программное обеспечение построено на платформе операционной системы Linux, в качестве носителя используется флеш-карта, в следствие чего стенд практически невозможно вывести из строя программным путем. Наименование и точность измеряемых стендом параметров приведены в таблице 3.7.
Таблица 3.7 – Характеристики стенда HunterPA100
| Измеряемая величина | Точность |
| Схождение каждого колеса (частичное схождение) | 0,02° |
| Развал каждого колеса и перекрестный развал | 0,03° |
| Кастер (продольный наклон оси поворота) | 0,08° |
| Перекрестный кастер | 0,08° |
| Кастер при регулировке | 0,03° |
| Поперечный наклон оси поворота (SAI) | 0,08° |
| Перекрестный поперечный наклон оси поворота | 0,08° |
| Максимальный угол поворота | 0,09° |
| Общее (суммарное) схождение | 0,03° |
Цена стенда составляет 295 тысяч рублей.
Из трех рассмотренных диагностических стендов наиболее предпочтительным вариантом является стенд фирмы Hunter, так как он обеспечивает достаточно высокую точность измерения всех необходимых параметров в сочетании с более высокой надежностью, что обеспечивается инфракрасной связью датчиков, устанавливаемых на колеса, в отличие от лазерных или кордовых, а так же наличием стойкой к сбоям операционной системы.
Заключение
Актуальность темы данной работы обусловлена сложившейся неблагоприятной обстановкой на дорогах города, большим количеством ДТП. В сорока процентах случаев одной из причин ДТП является неудовлетворительное техническое состояние систем автомобиля, отвечающих за активную безопасность. В ДТП с участием автобусов опасности подвергается здоровье гораздо большего числа людей, чем с участием легковых автомобилей. Поэтому в условиях ПАТП особенно важно уделять повышенное внимание техническому состоянию систем активной безопасности подвижного состава.
В первом разделе работы были рассмотрены требования ГОСТ Р 51709-2001 к техническому состоянию систем тормозного и рулевого управления и методы их проверки. Методы проверки тормозных систем на диагностических стендах являются предпочтительными по отношению к проверкам в дорожных условиях, так как дорожные испытания сложно организовать в условиях ограниченной территории ПАТП, и их результаты не дают полной информации о состоянии системы в целом и отдельных ее узлов.
Во втором разделе проведен анализ оснащенности МУП «ВПАТП-7» оборудованием для диагностирования тормозного и рулевого управления. Необходимое диагностическое оборудование отсутствует, а имеющее сильно устарело. Свободные производственные площади зоны ТО-2 позволяют разместить стенды для диагностирования систем тормозного и рулевого управления.
В третьем разделе проведен анализ рынка диагностического оборудования, выбраны некоторые из подходящих диагностических стендов. Произведен сравнительный анализ стендов, выбраны оптимальные для установки в МУП «ПАТП-7» модели.
Применение данных стендов как для ТО, так и для диагностики перед выездом на линию, повысит производительность работ по техническому обслуживанию и снизит риск возникновения ДТП из-за неисправности систем тормозного и рулевого управления.
Данная тема является объемной, в рамках бакалаврской работы не может быть раскрыта в полной мере. Изучение данной темы может быть продолжено далее для более полного освещения затронутых вопросов.
Список использованной литературы
1. ГОСТ Р 51709 – 2001. Автотранспортные средства: требования безопасности к техническому состоянию и методы проверки. – М.: Изд-во стандартов, 2001. – 73 с.
2. Контрольно-счетная палата Волгограда [Электронный ресурс], 2009.
3. Осипов, А.Г. Новые устройства, повышающие достоверность диагностирования тормозных систем АТС / А.Г. Осипов // Автомобильная промышленность – М., 2009. – № 9. – С. 27 – 30.
4. Пат. 2161787 Российская Федерация. Динамометр с гидравлическим люфтомером на диске для диагностирования рулевого управления / В.Н.Хабардин, С.В.Хабардин, А.В.Хабардин; опубл. 17.06.01, Бюл. № 1. – 6с.: ил.
5. Спичкин, Г.В. Практикум по диагностированию автомобилей [Электронный ресурс] / Г.В. Спичкин, А.М. Третьяков. – М.: Высш. шк., 1986.
6. Теория авто: все об устройстве автомобиля [Электронный ресурс], 2010. –
7. Техническая эксплуатация автомобилей: конспект лекций [Электронный ресурс], 2009.
8. Технология технического обслуживания автобусов ЛиАЗ-525625 с двигателем Caterpillar-3116. – ООО «Ликинский автобус», 2004. – 276 с.
9. Устройство автомобиля [Электронный ресурс], 2007