| Скачать .docx |
Реферат: Электрические железные дороги 2
Содержание
Введение……………………………………………………………………3стр.
1. Общие сведения об устройстве электрических железных дорог ….……5стр.
1.1. Производство и распределение электроэнергии…………………...5стр.
1.1.1. Передача электроэнергии……………………………………………………8стр.
1.1.2. Распределение электроэнергии…………………………………..9стр.
1.2. Электроснабжение электрических железных дорог……………...10стр.
1.3. Тяговые подстанции………………………………………………...12стр.
1.3.1. Тяговые подстанции для электрификации железных дорог постоянного и переменного тока……………………………….13стр.
1.3.2. Комплекты функциональных блоков тяговых подстанций…..15стр.
1.3.3. Конструктивное исполнение блоков тяговых подстанций…...16стр.
1.3.4. Эксплуатационная готовность системы тягового электроснабжения……………………………………………….18стр.
2. Контактная сеть ……………………………………………………………20стр.
2.1. Простые контактные подвески…………………………………….21стр.
2.2. Цепные контактные подвески……………………………………..23стр.
2.3. Анкерные участки и их сопряжения………………………………24стр.
2.4. Устройство подвески в местах анкерных участков. Длина пролёта между опорами……………………………………………………..28стр.
Заключение………………………………………………………….31стр.
Список используемой литературы………………………………...32стр.
Введение
Первая научная работа по внедрению электрической тяги на железных дорогах появилась в России в 1837 году, т.е. в год открытия первой железной дороги Петербург - Царское Село. Это была публикация в Вестнике Министерства путей сообщения, так как инженерная мысль уже начинала работать в направлении возможной электрификации транспорта на самом начальном этапе развития, как железных дорог, так и электротехники.
В начале 1899 года создан синдикат германских электротехнических фирм "Сименс-Гальске", "Унион", "АЭГ". В том же году образован "Большой русский банковский синдикат 1899 года" для финансирования работ по электротехническому развитию. Важное место в планах, как русских банков, так и германских электроконцернов в этот период занимали проекты электрификации российских железных дорог.
Первые проекты электрификации железных дорог были разработаны в самом начале XX века выдающимся инженером, потом академиком, Генрихом Осиповичем Графтио. Он же с 1907 года начал читать курс лекций "Электрические железные дороги" студентам Петербургского электротехнического института.
В 1912 году создано учредительное общество для строительства электрифицированного участка транссибирской железнодорожной магистрали Москва-Сергиев Посад.
В 1913 году началось строительство линии, электрифицированной на постоянном токе 1200 вольт между Петербургом и Петергофом. Были сооружены две электростанции в Екатерингофе и Ораниенбауме. Однако работы были прекращены в связи с Первой Мировой войной.
После Февральской революции Временное правительство пыталось привлечь зарубежный капитал к продолжению развития электрификации России. Было получено согласие ряда иностранных компаний, в частности американских ("Вестингауз"), на продолжение работ по электрификации железных дорог.
К 1918 году в России насчитывалось около шестидесяти проектов пригородных и магистральных электрических железных дорог.
24 марта 1920 года была создана Государственная комиссия по электрификации России в состав которой входил и Отдел по электрификации железных дорог. Разработанный Комиссией план ГОЭЛРО ставил задачу создать основной транспортный скелет из таких путей, которые "соединяли бы в себе дешевизну перевозок с чрезвычайной провозоспособностью".
План предусматривал электрификацию на постоянном токе, но в качестве перспективной была рекомендована также система переменного тока промышленной частоты. Дальновидность такого решения была вполне подтверждена последующим развитием электрической тяги как в СССР, так и в мире.
В Советском Союзе первые электропоезда стали курсировать в 1926 году на участке Баку – Сабунчи. Однако эта железная дорога находилась в ведении Бакинского горсовета и являлась, по сути, городским электрическим транспортом. В состав Закавказской железной дороги НКПС СССР электрифицированный участок Баку - Сабунчинской дороги был передан только в апреле 1940 года.
На электрифицированных железных дорогах локомотивы приводятся в движение тяговыми электродвигателями, которые получают энергию от контактной сети, подключенной к тяговой электроподстанции. Электрификация железных дорог повышает пропускную и провозную способности, надёжность работы, сокращает эксплуатационные расходы, позволяет сделать железнодорожный транспорт более комфортабельным.
На электрифицированных железных дорогах имеется возможность возврата части электрической энергии в контактную сеть при движении поезда на спусках и при торможении (т.н. рекуперативное торможение). Кроме того, для выработки электроэнергии на ТЭЦ обычно используют низкосортное топливо, которое нельзя применять в тепловозах.
В контактной сети электрифицированных железных дорог в России используется постоянный электрический ток напряжением 3000 вольт или переменный однофазный ток промышленной частоты напряжением 25000 вольт. При питании переменным током (хотя это и усложняет конструкцию электровоза) значительно упрощаются устройства энергоснабжения электрических железных дорог: повышенное напряжение в контактной сети позволяет увеличить расстояние между тяговыми подстанциями при тех же потерях до 50 км (20-25 км при постоянном токе).
Кроме того, стоимость строительства контактной сети снижается в среднем на 7%, расход меди на её сооружение - в 2,5 раза.
1.1. Производство и распределение электроэнергии
Электрическая энергия один из самых важных видов энергии. Электроэнергия в своей конечной форме может передаваться на большие расстояния потребителю.
На районной (т.е. приближенной к источникам энергоресурсов) электростанции электроэнергия вырабатывается чаще всего электромашинными генераторами переменного тока. Для уменьшения потерь при ее передаче и распределении напряжение, снимаемое на выходные электрогенератора, повышается трансформаторной подстанцией. Затем электроэнергия передается по высоковольтным линиям электропередачи (ЛЭП) на большие расстояния, которые могут измеряться сотнями километров.
К ЛЭП подключен ряд распределительных подстанций, отводящих электроэнергию к местным центрам электропотребления. Поскольку далее электроэнергия передается по улицам и населенным районам, на подстанциях напряжение для безопасности еще раз понижается трансформаторами. К понижающим трансформаторам подстанций подключены линии магистральной сети. В удобных точках этой сети устанавливаются пункты ответвления для распределительной сети электропотребителей.
Эксплуатационная готовность электростанций в сетях общего пользования с частотой 50 Гц довольно высока. Это относится также и к электростанциям сети с частотой 16 2/3 Гц. В связи с этим для дальнейшего рассмотрения вопроса принимается, что отказы в системе производства электроэнергии для железных дорог не превышают 1 мин/год. Такой длительностью отказов в данном случае можно пренебречь, так как перерыв в подаче напряжения длительностью 1 мин не оказывает существенного влияния на общий процесс движения поездов.
Линии электропередачи и распределительные устройства почти всегда сооружаются с учетом резерва. В системах централизованного электроснабжения с частотой 16 2/3 Гц возможность двустороннего питания фидерных зон обеспечивает дополнительное резервирование, но с уменьшением мощности в случае выпадения одной из подстанций.
В контактных сетях с системой тока частотой 50Гц изолирующие сопряжения в местах разделения фаз также могут перемыкаться в случае выпадения подстанции, благодаря чему здесь также обеспечивается дополнительное резервирование.
Системы передачи и распределения электроэнергии структурно тесно связаны между собой, поэтому в дальнейших рассуждениях об эксплуатационной готовности системы с частотой 162/3 Гц они рассматриваются как единое целое. На железных дорогах Германии (DBAG) статистика отказов свидетельствует, что в течение года примерно 750 фидерных зон в среднем на 5 мин остаются без напряжения. Сюда включены и уже упоминавшиеся ранее отказы в системе производства электроэнергии, длительность которых невелика.
Состояние таких систем можно анализировать с помощью модели надежности Маркова. Она основана на описании однородных процессов, которое строится на следующих положениях:
· переход из состояния аi в состояние аi+ 1 зависит только от состояния аi и не зависит от предыдущих (условие зависимости);
· в достаточно коротком временнóм интервале (t ,t + Dt ) переход из одного состояния в другое зависит только от момента времени t и не зависит от предыдущего времени. Это временнóе условие постоянных переходных значений дается для контактной сети и тяговых подстанций;
· вероятность перехода Р (t , t + Dt ) зависит при этом только от длительности интервала Dt и не зависит от величины t .
Тяговые подстанции являются системами, которые могут иметь различные состояния с точки зрения работоспособности. Они считаются также классифицированными по мощности системами. Если параметр мощности рассматривать для подстанции как случайную величину, это означает способность данного объекта обеспечивать определенную мощность при соблюдении заданной технологии. Важными параметрами при этом являются также максимальная и мгновенная мощность. Определение интересных с этой точки зрения величин, характеризующих надежность, возможно только с помощью модели Маркова. В дальнейшем рассмотрении для упрощения принимается, что тяговая подстанция считается полностью работоспособной, если в рабочем состоянии находится хотя бы один фидер.
Тяговые подстанции являются высоконадежными системами, так как они в большинстве случаев имеют продольное секционирование сборных шин и часто оборудуются даже двумя, а иногда и большим числом систем сборных шин. На практике отсутствие напряжения на фидерах, питающих контактную сеть, возможно по двум причинам: в результате отключения напряжения 110кВ сети первичного электроснабжения или в связи с выходом из строя трансформаторов 110кВ/15кВ. Такое оборудование подстанций, как сборные шины, разъединители и силовые выключатели, настолько редко приводит к выходу из строя тяговых подстанций, что в дальнейшем в качестве причины выхода не рассматривается.
Случаи полного выпадения тяговой подстанции очень редки. В качестве средней продолжительности нерабочего состояния подстанции в ряде исследований называют величину 2,4мин/год. Точными данными DBAG не располагают, более того, не ведется статистика отказов трансформаторов, которые выходят из строя крайне редко. На базе анализа результатов различных исследований были приняты следующие значения для отказов в расчете на 100км линий электропередачи в год:
· для линий напряжением 110кВ, частотой 162/3Гц- 0,175 выходов из строя;
· для трансформаторов 110кВ/15кВ- 0,08 отказов.
Для использования в расчетах приняты также величины затрат времени в часах на ввод в строй после отказов в расчете на 100км линий:
· линий напряжением 110 кВ- 6- 10ч;
· трансформаторов- 20- 40ч.
Эксплуатационная готовность линий электропередачи и тяговых подстанций рассмотрена на примере опорной подстанции. На рисунке показаны структура симметричной сети, графы состояний системы и процесс определения этих состояний.
|
|
| Рис. 1 Структура и графы состояний опорной тяговой подстанции: |
На базе графов состояний и переходов от одного состояния к другому можно составить систему дифференциальных уравнений, при помощи которой с использованием приведенных ранее величин времени выхода из строя и максимальной продолжительности восстановления отказавших линий 110кВ и трансформаторов вычисляется длительность нахождения в нерабочем состоянии (эксплуатационная неготовность) этих компонентов системы электроснабжения. Она составляет 0,07мин/год.
Если при прочих равных условиях подстанция подключена к системе 110кВ как тупиковая и в то же время имеет упрощенное блочное исполнение, то при тех же значениях продолжительности ремонта длительность нахождения вне эксплуатации составит 4,4мин/год; при минимальных значениях продолжительности ремонтов этот показатель уменьшается до 2,6 мин/год. Расчетные значения достаточно близко совпадают с результатами, полученными при обработке статистических данных.
1.1.1. Передача электроэнергии
Электроэнергия, вырабатываемая генератором, отводится к повышающему трансформатору по массивным жестким медным или алюминиевым проводникам, называемым шинами. Шина каждой из трех фаз изолируется в отдельной металлической оболочке, которая иногда заполняется изолирующим элегазом (гексафторидом серы).
Трансформаторы повышают напряжение до значений, необходимых для эффективной передачи электроэнергии на большие расстояния.
Генераторы, трансформаторы и шины соединены между собой через отключающие аппараты высокого напряжения – ручные и автоматические выключатели, позволяющие изолировать оборудование для ремонта или замены и защищающие его от токов короткого замыкания. Защита от токов короткого замыкания обеспечивается автоматическими выключателями. В масляных выключателях дуга, возникающая при размыкании контактов, гасится в масле. В воздушных выключателях дуга выдувается сжатым воздухом или применяется «магнитное дутье». В новейших выключателях для гашения дуги используются изолирующие свойства элегаза.
Для ограничения силы токов короткого замыкания, которые могут возникать при авариях на ЛЭП, применяются электрические реакторы. Реактор представляет собой катушку индуктивности с несколькими витками массивного проводника, включаемую последовательно между источником тока и нагрузкой. Он понижает силу тока до уровня, допустимого для автоматического выключателя.
С экономической точки зрения, наиболее целесообразным, на первый взгляд, представляется открытое расположение большей части высоковольтных шин и высоковольтного оборудования электростанции. Тем не менее все чаще применяется оборудование в металлических кожухах с элегазовой изоляцией. Такое оборудование необычайно компактно и занимает в 20 раз меньше места, нежели эквивалентное открытое. Это преимущество весьма существенно в тех случаях, когда велика стоимость земельного участка или когда требуется нарастить мощность существующего закрытого распредустройства. Кроме того, более надежная защита желательна там, где оборудование может быть повреждено из-за сильной загрязненности воздуха.
Для передачи электроэнергии на расстояние используются воздушные и кабельные линии электропередачи, которые вместе с электрическими подстанциями образуют электросети. Неизолированные провода воздушных ЛЭП подвешиваются с помощью изоляторов на опорах. Подземные кабельные ЛЭП широко применяются при сооружении электросетей на территории городов и промышленных предприятий. Номинальное напряжение воздушных ЛЭП – от 1 до 750 кВ, кабельных – от 0,4 до 500 кВ.
1.1.2. Распределение электроэнергии
На трансформаторных подстанциях напряжение последовательно понижается до уровня, необходимого для распределения по центрам электропотребления и, в конце концов, по отдельным потребителям. Высоковольтные ЛЭП через автоматические выключатели присоединяются к сборной шине распределительной подстанции. Здесь напряжение понижается до значений, установленных для магистральной сети, разводящей электроэнергию по улицам и дорогам. Напряжение магистральной сети может составлять от 4 до 46 кВ.

Рис. 2 ТРАНСФОРМАТОРНАЯ ПОДСТАНЦИЯ близ Бергена (Норвегия).
На трансформаторных подстанциях магистральной сети энергия ответвляется в распределительную сеть. Сетевое напряжение для бытовых и коммерческих потребителей составляет от 120 до 240 В. Крупные промышленные потребители могут получать электроэнергию с напряжением до 600 В, а также с более высоким напряжением – по отдельной линии от подстанции. Распределительная (воздушная или кабельная) сеть может быть организована по звездной, кольцевой или комбинированной схеме в зависимости от плотности нагрузки и других факторов. Сети ЛЭП соседних электроэнергетических компаний общего пользования объединяются в единую сеть.
1.2. Электроснабжение электрических железных дорог
Электрифицированные железные дороги в нашей стране получают электроэнергию от энергосистем.
Энергосистема – это совокупность крупных электрических станций, объединены линиями электропередачи и совместно питающих потребителей электрической и тепловой энергией. Энергосистемы объединяют электростанции различных типов: тепловые, где используются разнообразные виды органического топлива, гидравлические и атомные.

Рис. 3 Общий вид электрифицированной железной дороги постоянного тока и питающих её устройств
Следует отметить, что нагрузки электрической тяги отличаются большой равномерностью, а это способствует более стабильной работе энергосистем. От Единой энергетической системы нашей страны питаются электрические магистрали европейской части страны, Урала, Сибири. Питание от мощных энергосистем обеспечивает бесперебойность снабжения электроэнергией потребителей, в том числе и электрического подвижного состава.
На рис. 3 изображена в несколько упрощенном для наглядности виде общая схема электроснабжения электрифицированной железной дороги условно от одной тепловой электростанции.
Трехфазный переменный ток напряжением 6—10 кВ от генераторов электростанции по кабелю проходит к повышающему трансформатору, здесь в зависимости от различных условий напряжение может быть повышено до 20. 35, 110, 220, 330, 500, 750 кВ. Эти номинальные значения напряжений предусмотрены действующими в СССР стандартами.
Затем ток по линии электоопередачи (ЛЭП) проходит к потребителям, в данном случае к тяговой подстанции. Если произойдет короткое замыкание на линии электропередачи или возникнут недопустимые перегрузки, высоковольтный выключатель отключит ее от электрической станции. Этот же выключатель используют для снятия напряжения с линии, например, при ее осмотре.
Далее ток проходит через другой высоковольтный выключатель в первичную обмотку трансформатора тяговой подстанции, который понижает напряжение переменного трехфазного тока до значения, необходимого1 для нормальной работы электроподвижного состава (э. п. с).
Устройство и работа тяговых подстанций дорог, электрифицированных на постоянном и переменном токе, резко различаются.
На тяговой подстанции постоянного тока, которая показана на рис. 2, переменный ток преобразуется в постоянный. Первоначально для этой цели использовали вращающиеся преобразователи, которые состояли из мощных двигателей переменного тока, установленных на одном валу с генераторами постоянного тока. Затем вместо тяжелых и громоздких машинных преобразователей стали применять ртутные выпрямители. В дальнейшем все ртутные выпрямители были заменены полупроводниковыми.
Выпрямленное напряжение через специальный защитный аппарат — быстродействующий выключатель — и питающую линию (фидер) подводится к контактной сети. При включенных тяговых двигателях электровоза ток от вторичной обмотки трансформатора проходит через выпрямитель, быстродействующий выключатель, фидер, контактную сеть, пускорегулирующие аппараты и тяговые двигатели в рельсы. Чтобы получить замкнутую электрическую цепь, рельсы соединяют отсасывающей линией с нулевой точкой вторичной обмотки трансформатора.
Быстродействующий выключатель автоматически отключает фидер, а, следовательно, и контактную сеть в случае перегрузки и коротких замыканий последней. Кроме того, иногда необходимо отключать контактную сеть (снимать с нее напряжение) для производства каких-либо работ, для чего также отключают быстродействующий выключатель.
Следовательно, тяговые подстанции дорог постоянного тока служат для понижения напряжения, подводимого от ЛЭП, преобразования переменного тока в постоянный и распределения электрической энергии постоянного тока по участкам контактной сети.
Если железная дорога электрифицирована на переменном токе промышленной частоты, то тяговая подстанция предназначена для понижения напряжения, подводимого ЛЭП, и распределения электрической энергии по участкам контактной сети. На линиях, электрифицированных на переменном токе, замкнутый контур тока образуется присоединением одного конца первичной обмотки трансформатора, расположенного на электровозе, к контактной сети, а другого — к рельсу и далее через отсасывающую линию к подстанции. Устройство тяговых подстанций дорог переменного тока значительно проще, поскольку выпрямление напряжения для питания тяговых двигателей осуществляется на самом подвижном составе.
Коэффициент полезного действия электрической тяги выражается произведением к. п. д. отдельных звеньев системы питания электрифицированной железной дороги: электростанции, линии электропередачи, тяговой подстанции, контактной сети и самого электровоза. Если энергия поступает от тепловой электростанции, к. п. д. которой примерно 35%, то полный к. п. д. электрической тяги составляет около 28%. С тем же примерно к. п. д. работают электрифицированные железные дороги, которые начали получать энергию от атомных электростанций. Гидроэлектростанции, к. п. д. которых достигает 85%, питают примерно одну пятую часть электрифицированных железных дорог; к. п. д. электротяги составляет при этом 60—62%.
1.3. Тяговые подстанции
Тяговая подстанция — в общем случае, электроустановка для преобразования и распределения электрической энергии.
Электроустановка — совокупность машин, аппаратов, линий и вспомогательного оборудования (вместе с сооружениями и помещениями, в которых они установлены). Может быть предназначена для производства, преобразования, трансформации, передачи, распределения электрической энергии и преобразования её в другой вид энергии.
Основным нормативным документом для создания электроустановок являются «Правила устройства электроустановок» (ПУЭ), а при эксплуатации — «Правила технической эксплуатации электроустановок потребителей» (ПТЭЭП).
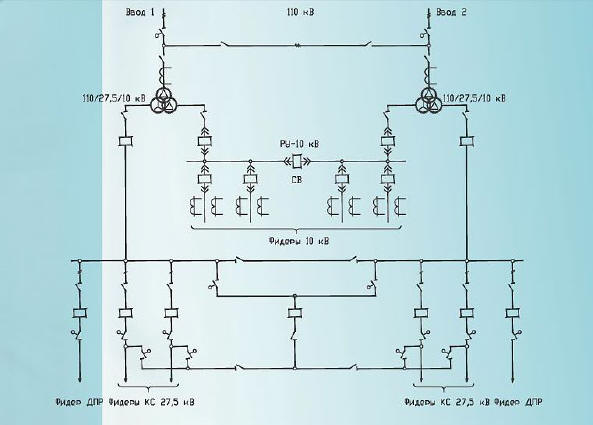
Тяговые подстанции предназначены для понижения электрического напряжения и последующего преобразования тока (только для подстанций постоянного тока 3,3 кВ) для передачи его в контактную сеть для обеспечения электрической энергией электровозов. Тяговые подстанции бывают постоянного и переменного тока.
Тяговые подстанции постоянного тока в России строятся вдоль полотна железной дороги на расстоянии 5—25 км для подстанций постоянного тока и 50—80 км для подстанции переменного тока. Это расстояние зависит как от размеров движения поездов, так и от профиля пути. Получают электроэнергию от подстанций РАО «ЕЭС России» по воздушным и кабельным линиям электропередач напряжением 10—220 кВ. Электроэнергия поступает в открытое распределительное устройство, на понижающий трансформатор. С понижающего трансформатора электроэнергия поступает на тяговый трансформатор, откуда она подаётся на преобразовательный агрегат (выпрямитель). С преобразовательного агрегата выпрямленный ток подаётся на основную и резервную системы шин и распределяется в контактную сеть через быстродействующие автоматы. В Российской Федерации номинальное напряжение выпрямленного тока нормируется Правилами технической эксплуатации железных дорог Российской Федерации и установлено на уровне 3100 В.
Тяговые подстанции переменного тока имеют то же предназначение, что и подстанции постоянного тока, за исключением того, что в них отсутствуют преобразовательные агрегаты для выпрямления тока.
Исторически сложилось так, что тяговые подстанции в России иногда были единственными источниками электрической энергии приемлемого уровня напряжения для её последующего распределения, поэтому на всех тяговых подстанциях имеется распределительное устройство для распределения и дальнейшей транспортировки электрической энергии напряжением 35—0,4 кВ как железнодорожным, так и нежелезнодорожным потребителям.
Тяговые подстанции преобразующие переменный ток высокого напряжения в постоянный ток более низкого напряжения 850 В (750-900 В) применяются и в метро.
1.3.1.
Тяговые подстанции для электрификации железных дорог
постоянного и переменного тока
Подстанции в модульном исполнении собираются из типовых модулей-контейнеров, содержащих готовые функциональные блоки. Подстанции в капитальных зданиях монтируются из укрупненных функциональных блоков (ФБ), собранных в заводских условиях.
|
|
Рис. 7 Схема основных цепей типовой тяговой подстанции постоянного тока
Таблица 1 Основные технические параметры
| Напряжение входное |
220 (110, 35, 10) кВ |
|||
| Напряжение выходное |
3,3 кВ |
|||
| Мощность преобразования |
до 10 МВт |
|||
| Количество фидеров постоянного тока |
4 - 8 шт. |
|||
| |
||||
Рис. 8 Тяговая подстанция переменного тока "Олехновичи" (Белоруссия)
|
|
Рис. 9 Схема основных цепей типовой тяговой подстанции переменного тока
Таблица 2 Основные технические параметры
| Напряжение входное |
110 (220) кВ |
| Напряжение выходное |
27,5 кВ |
| Количество фидеров контактной сети |
4-8 шт. |
| Количество фидеров ДПР |
2 шт. |
1.3.2. Комплекты функциональных блоков тяговых подстанций
Все распределительные устройства на напряжение 6 / 10 / 27,5 кВ выполнены в виде комплектных распредустройств (КРУ) внутренней установки и поставляются вместе с токопроводами, кабелями вторичных цепей и с сухими трансформаторами собственных нужд 10 / 0,4 кВ и ВЛ СЦБ 0,4/10 кВ.
|
|
Рис. 10 Машинный зал тяговой подстанции "Полтава" Южной железной дороги Украины |
Комплект ФБ общего применения ( как для ТП постоянного тока, так и для ТП переменного тока) включает в себя следующие базовые блоки: блок РУ-10 кВ, блок РУ-10 кВ ВЛ СЦБ с сухим трансформатором, блок ОПС, блок ОПУ-110 (220) кВ, блок собственных нужд постоянного и переменного тока, блок аккумуляторов, блок дизель-генератора, сухие трансформаторы собственных нужд.
В комплект ФБ для ТП постоянного тока, помимо выше упомянутых блоков общего применения, входят: ячейки фидеров РУ-3,3 кВ; ячейка запасного выключателя РУ-3,3 кВ; блок фильтрустройства; блок заземляющего разъединителя шин РУ-3,3 кВ; блок тягового выпрямителя; камера реактора отсоса.
|
|
Рис. 11 Функциональный блок РУ-10 кВ, ПВА и сухой трансформатор на тяговой подстанции постоянного тока "Броневая" Октябрьской железной дороги |
В комплект ФБ для ТП переменного тока помимо упомянутых выше блоков общего применения входят: блоки шкафов управления РУ-27,5 кВ; ячейка ввода 27,5 кВ; ячейка фидера КС 27,5 кВ; ячейка запасного выключателя 27,5 кВ; ячейка ДПР 27,5 кВ; ячейка трансформатора напряжения ТН 27,5 кВ; ячейка секционного разъединителя 27,5 кВ; ячейка компенсирующего устройства 27,5 кВ; блок конденсаторов комплектующего устройства 27,5 кВ.
|
|
|
| Рис. 12 ЗРУ-27,5 кВ на тяговой подстанции переменного тока "Олехновичи" (Белоруссия) |
Рис. 13 Ячейка ввода ЗРУ-27,5 кВ на тяговой подстанции переменного тока "Олехновичи" (Белоруссия) |
1.3.3. Конструктивное исполнение блоков тяговых подстанций
Конструктивно блоки представляют собой сборку ячеек, шкафов и панелей КРУ, объединенных несущими рамами, общим токопроводом и вторичными цепями.
|
|
Рис. 14 РУ-10 кВ на тяговой подстанции постоянного тока "Яндеба" Октябрьской железной дороги |
Разработано два варианта конструкции укрупненных функциональных блоков:
- собственно функциональные блоки, в которых все оборудование размещено на рамах (для удобства установки в капитальных или легковозводимых зданиях);
- модули, в которых функциональные блоки размещены в закрытых контейнерах, обеспечивающих установку на открытых площадках.
Конструкция контейнера представляет собой жесткий каркас, обшитый металлическими листами и утеплителем. Модуль укомплектован устройствами для освещения, подогрева и вентиляции, что обеспечивает необходимые условия для работы установленного оборудования.
|
|
Рис. 15 Модули преобразовательно - выпрямительных агрегатов на тяговой подстанции постоянного тока "Металлострой" Октябрьской железной дороги |
Типовые модули выполняются двух типоразмеров: 4,8(6.0) L * 3,2 C * 3,9 Н м;
В обоих вариантах конструктивного исполнения в блоках обеспечен свободный доступ ко всем элементам оборудования, включая шинопроводы и изоляторы, для осмотра и проведения регламентных работ. Высоковольтные вводы осуществляются шинами или кабелем; низковольтные кабели подключаются к клеммникам шкафов.
Блоки устанавливаются в зданиях на кабельный канал или ровный бетонный пол. Климатическое исполнение блоков по ГОСТ 15150-69-УХЛ, категория размещения 4.
При этом:
- Диапазон рабочих значений температур окружающего воздуха +1о С ÷ +35о С
- Нижнее значение температуры окружающего воздуха при транспортировке и хранении -50о С
|
|
Рис. 16 Машинный зал на тяговой подстанции постоянного тока "Мурманские Ворота" Октябрьской железной дороги |
Модули (контейнеры) могут устанавливаться на рельсошпальную решетку или бетонный фундамент. Климатическое исполнение модулей по ГОСТ 15150-69-У, категория размещения 1.
При этом:
- Диапазон рабочих значений температур окружающего воздуха -40о С ÷ +40о С
- Нижнее значение температуры окружающего воздуха при транспортировке и хранении -60о С
Блоки (в заводской упаковке) и модули (без упаковки) могут транспортироваться железнодорожным и автомобильным транспортом; условия транспортирования по группе С ГОСТ 23216-78.
1.3.4. Эксплуатационная готовность системы тягового электроснабжения
Длительная эксплуатационная готовность оценивается как вероятность того, что система при определенных условиях будет в полном объеме выполнять свои задачи.
На практике решающим фактором является длительность перерыва в подаче электроэнергии на электроподвижной состав. В связи с этим были проведены исследования, целью которых было определение влияния перерывов в питании от контактной сети на маршрутную скорость поезда. На основе этих исследований предложено в качестве допустимого считать 2-минутный перерыв в подаче напряжения из системы тягового электроснабжения на электроподвижной состав.
Структура системы д ля оценки надежности системы тягового электроснабжения железных дорог целесообразно представить структуру системы таким образом, чтобы были видны как взаимосвязи в системе, так и параметры отдельных ее элементов. Упрощенно ее можно рассматривать как последовательную систему, которая может быть полностью выведена из строя при отказе одной из составляющих. Таким образом, данные о выходах из строя отдельных частей и их элементов могут являться основой для оценки надежности всей системы в целом.
Система тягового электроснабжения рассчитана таким образом, чтобы в нормальных условиях был возможен режим движения с интервалом следования поездов Ј 2 мин. Основными критериями оценки при этом являются: допустимое падение напряжения, токовые нагрузки в контактной сети и мощность тяговой подстанции.
Элементы системы тягового электроснабжения после выхода из строя ремонтируются и затем используются дальше до достижения предельного срока, который, как правило, превышает нормативный. Такие элементы системы электроснабжения, как электростанции, линии электропередачи и распределительные устройства, всегда имеют резервы и поэтому обладают высокой эксплуатационной готовностью.
2. Контактная сеть
Контактная сеть - система устройств, предназначенных для передачи электрической энергии от электрических станций через тяговые подстанции электровозам, моторным вагонам, трамваям или троллейбусам. Передача электрической энергии осуществляется через скользящий контакт между контактным проводом или контактным рельсом и токосъёмником (токоприёмником) подвижного состава. Контактный провод располагается, как правило, над рельсовым путём или вдоль трассы безрельсового транспорта, а рельс - на уровне ходовых частей подвижного состава. Контактный провод прикрепляют к поддерживающим конструкциям - обычно к опорам контактной сети, реже к стенам домов и др. строениям (трамвайные и троллейбусные сети) при помощи гибких элементов (тросов и проволок), располагаемых вдоль контактного провода (цепные контактные подвески) или поперёк него (простые контактные подвески). Опоры К. с. могут быть железобетонными, стальными и деревянными. Крепление контактных подвесок к опорам осуществляют с помощью арматуры и изоляторов.
Для надёжной работы и удобства обслуживания контактной сети делят на секции. В отдельные секции выделяют перегоны и промежуточные станции, а на крупных станциях - группы электрифицированных путей. При ремонте, требующем снятия напряжения, отключают только одну секцию, не нарушая питания электроэнергией др. участков. Ж.-д. опоры К. с. используют также для подвески проводов, по которым подаётся электроэнергия к линейным ж.-д. потребителям, а также для размещения др. проводов, например телеуправления тяговыми подстанциями, всевозможными переключающими устройствами в схеме секционирования и др.
По техническим и экономическим причинам контактная сеть сооружается без резервирования. Если она находится в нерабочем состоянии, то и вся система тягового электроснабжения не работает, если нельзя использовать соседний электрифицированный путь или объездные участки.
Сама контактная сеть как система с точки зрения надежности состоит примерно из двух десятков элементов, которые соединены последовательно. При отказе одного из них выходит из строя вся система.
Выходы из строя контактной сети характеризуются разными причинами. Некоторые из них связаны с техническими параметрами элементов системы, но большая часть представляет собой внешние факторы, связанные с эксплуатацией, логистикой и окружающей средой. Согласно данным об отказах элементов контактной сети на железных дорогах Европы, приведенным в технической литературе, на 100 км пути в год приходится от 3 до 5 повреждений.
Если проанализировать причины выхода контактной сети из строя, то становится очевидным абсолютное преобладание внешних факторов. В связи с этим предлагается следующая классификация причин отказов:
· lОК - дефекты конструкции;
· lOI - дефекты монтажа и недостатки в текущем содержании;
· lO = lОК + lОI - выходы из строя контактной сети;
· lB - эксплуатационные нагрузки;
· lА - внешние причины;
· lSt = lO + lА + lB - конкретные случаи выходов из строя, связанные с определенными участками контактной сети;
· lU - отсутствие напряжения из-за выпадения подстанции или отказа силовых выключателей;
· lSy = lSt +lU - выходы из строя всей системы тягового электроснабжения.
Анализ основных причин выхода из строя контактной сети показывает, что здесь большую роль играет влияние реального эксплуатационного процесса. Отказы вследствие влияния второстепенных внешних факторов могут в значительной степени зависеть от места воздействия основной причины и отражаются на величине показателя lSt . Таким образом, для контактных сетей одной и той же конструкции lSt в значительной степени зависит от географического положения линии.
2.1. Простые контактные подвески
Простая подвеска состоит из одного провода, подвешенного на конструкциях или на опорах, расположенных на расстоянии 30—40 м друг от друга. Ее используют в искусственных сооружениях (тоннелях) железных дорог, где скорость движения не превышает 35—40 км/ч, а также в трамвайных и троллейбусных сетях.
Для обеспечения хорошего токосъема токоприемник ЭПС при движении по контактному проводу в пролете между опорами должен сохранять неизменное по высоте положение и постоянное нажатие на провод. Для выполнения этого требования служит цепная подвеска, один пролет которой (системы постоянного тока) показан на рисунке:

Рис. 17 Пролёт цепной подвески постоянного тока
Несущий трос; (НТ) подвески крепится через гирлянду изоляторов (ГИ) к консоли (К), закрепленной на опоре (О). Контактный провод (КП) с помощью струнок (С) подвешивается к НТ. Конструкция струнок вместе с другими устройствами должна обеспечить беспровесное положение КП. С помощью фиксаторов (Ф) контактный провод фиксируется на консолях опор.
На опорах контактной сети постоянного тока подвешивают также провода ВЛ ПЭ 10 кВ с полевой стороны железной дороги на деревянных кронштейнах, к которым их крепят с помощью штыревых изоляторов. К этим линиям присоединяют электроприемники железнодорожных нетяговых потребителей, расположенных вдоль железной дороги.
Для защиты контактной сети от токов короткого замыкания и обеспечения безопасности людей при их прикосновении к металлическим частям, которые могут оказаться под напряжением вследствие нарушения изоляции, опоры заземляют на рельс. Стальной заземляющий провод (ЗП) диаметром 10—12 мм прокладывается вдоль опоры и соединяет все металлические части и конструкции, расположенные ближе 5 м от проводов контактной сети, с тяговым рельсом.
Для людей опасность представляет также движущийся подвижной состав, поэтому при работах, связанных с перемещением вдоль железнодорожных путей, необходимо находиться от крайнего рельса на расстоянии не менее 2 м.
Пересечения линий электропередачи и контактной сети осуществляется в середине пролета. При этом расстояние между несущим тросом и проводами ЛЭП должно составлять 2—5 м в зависимости от напряжения.
Наибольшее распространение получила полукосая подвеска, у которой КП расположен зигзагообразно относительно оси пути, а НТ — над осью пути. Нормальный зигзаг на прямых участках пути составляет 300 мм. Зигзаги, направленные от опор, называются плюсовыми, а к опорам — минусовыми. Полукосая подвеска обеспечивает равномерный износ пластин токоприемника ЭПС благодаря поперечному смещению КП относительно средней точки токоприемника в процессе движения ЭПС.

Рис. 18 Расположение проводов полукосовой подвески в плане
2.2. Цепные контактные подвески
Цепные контактные подвески применяются на железнодорожном транспорте.
Различаются по следующим основным признакам:
• способу подвешивания контактных проводов к несущему тросу
• способу регулирования натяжения проводов
• взаимному расположению проводов, образующих подвеску в плане
• типу струн у опор
По способу регулирования натяжения проводов цепная подвеска может быть:
некомпенсированной, когда контакный провод и несущий трос анкеруют (закрепляют) на концевых опорах анкерного участка жестко и нет устройств для автоматического регулирования их натяжения;
полукомпенсированной, в которой часть проводов, например, контактный или контактный и вспомогательный, снабжена устройствами для автоматического регулирования натяжения — компенсаторами;
компенсированной, в которой все провода снабжены общими или отдельными для каждого провода компенсаторами.
По взаимному расположению проводов, образующих цепную подвеску в плане, различают вертикальную цепную подвеску, в которой провода расположены в одной вертикальной плоскости или имеют небольшое (не более 0,5 м) смещение, и косую, когда несущий трос значительно (угол наклона струн к вертикали в плоскости, перпендикулярной оси пути, превышает 20°) смещен относительно контактного провода. Косая подвеска используется на кривых участках пути и позволяет существенно уменьшить углы изменения направления контактного провода у опор в местах расположения фиксаторов (устройств, удерживающих контактный провод в требуемом положении в горизонтальной плоскости). Это повышает эластичность контактной подвески в опорных узлах, что благоприятно сказывается на токосъёме. При определенных радиусах кривых косая контактная подвеска может даже выполняться без фиксаторов. Косая подвеска значительно сложнее в монтаже и эксплуатации, правильное её содержание возможно только при высокой квалификации обслуживающего персонала, так как она обладает свойством «опрокидывания», когда контактный провод оказывается выше несущего.
В зависимости от типа струн и их расположения у опор цепная подвеска может быть:
• с простыми опорными струнами, когда струны устанавливают не далее 1-2 м от опор (см. рис. «Одинарная контаткная подвеска» выше);
• со смещёнными простыми опорными струнами, когда струны удалены от опор более чем на 2 м. В одинарной подвеске опорные простые струны устанавливают на расстоянии 4-5 м от опоры, в двойной — 5-9 м;
• рессорной, в ней струны закреплены на рессорном проводе;
• с упругими струнами, когда струны подвешивают к несущему тросу с помощью упругих элементов, например гибких полимерных стержней или рычагов, сручивающих несущий трос;
• демпфированной, в её струнах у опор установлены демпферы.
2.3. Анкерные участки и их сопряжения.
Подвеску разбивают на отдельные анкерные участки длиной 1200—1600 м, контактные провода которых механически не связаны между собой. Контактный провод в конце каждого участка закрепляют (анкеруют) на анкерных опорах, несущие тросы могут анкероваться через 7 км. При некоторой средней температуре КП располагается беспровесно и обеспечивает хороший токосъем. При изменении температуры меняется длина НТ и КП, их натяжение и стрелы провесы; условия токосъема при этом ухудшаются. Для сохранения нормального токосъема применяют несколько способов анкеровки КП и НТ на анкерных опорах.
Подвеска, у которой НТ и КП крепятся к анкерной опоре жестко, называется некомпенсированной и допускает скорости движения до 60 км/ч.
В полукомпенсированной цепной подвеске несущий трос анкеруется на анкерной опоре жестко, а контактный провод — через грузовые компенсаторы.

Рис. 19
На рисунке ниже показан анкерный участок с двусторонней компенсацией КП. Для предотвращения угона или перетягивания КП под действием разности масс грузов компенсаторов на разных анкерных опорах в середине анкерного участка его жестко фиксируют на несущем тросе отрезком вспомогательного троса длиной 15—20 м, называемым средней анкеровкой.

Рис. 20
Средняя анкеровка позволяет уменьшить зону разрушения контактной сети при обрыве КП в любой части анкерного участка.
Благодаря наличию средней анкеровки и компенсаторов при изменении температуры контактный провод получает возможность продольного перемещения вдоль пути от средней анкеровки. Несущий же трос так перемещаться не может, поэтому возникает перекос струн. Для уменьшения влияния перекоса струн и улучшения токосъема устанавливают вместо коротких струн в последних от средней анкеровки пролетах скользящие струны, перемещающиеся вдоль НТ вместе с КП.
Полукомпенсированная цепная подвеска с простыми опорными струнами применяется на железных дорогах, так как она проста по конструкции и обеспечивает бесперебойный токосъем при скоростях до 70 км/ч.
Улучшить работу подвески можно путем замены обычных струн у опор на рессорные (PC). При этом струны вверху крепят не к НТ, а к отрезку вспомогательного троса (ВТ) длиной 12—14 м, закрепленному на несущем тросе, на расстоянии 6—7 м с каждой стороны опоры, и располагают их с обеих сторон консоли симметрично.
Полукомпенсированная подвеска с рессорными струнами, допускающая скорость до 120 км/ч, широко распространена на железных дорогах.
Компенсированной цепной подвеской называют такую, в которой и НТ и КП имеют компенсаторы; может быть отдельный компенсатор на каждый провод или один компенсатор для обоих проводов. Струны такой подвески при изменении температуры сохраняют вертикальное положение, смещаясь вправо или влево вместе с контактным проводом и несущим тросом.

Рис. 21
Ниже показан способ крепления НТ и КП компенсированной подвески при анкеровке на один общий трехблочный грузовой компенсатор через коромысло.

Рис. 22
Величину натяжения КП и НТ регулируют изменением плеч на коромысле и количеством грузов ГК.
Блок компенсатора (БК) состоит из ролика (Р), укрепленного на вилке (В) и вращающегося в шариковых подшипниках (ШП). Смазка к подшипникам поступает через масленку (М), установленную на конце вала ролика. Трехблочные компенсаторы позволяют иметь вес груза, составляющий 25 % от натяжения, которое нужно создать в анкеруемых проводах. Грузы набирают из отдельных железобетонных элементов массой 25 кг каждый. Максимальные перемещения грузов при температурных изменениях не должны превышать расстояний а (между грузом и роликом) и в (между грузом и землей), величина которых определяется по специальным таблицам. Минимальная величина а и в обставляет 200 мм.
Чтобы обеспечить продольное перемещение проводов компенсированной подвески при изменениях температуры, несущий трос подвешивают на поворотных консолях. Для устройства средней анкеровки одну консоль в середине анкерного участка выполняют неповоротной и закрепляют жестко двумя оттяжками за соседние опоры. Таким образом, создается средняя анкеровка компенсированной подвески, которая допускает скорость движения поездов до 140 км/ч.
Двойная цепная подвеска отличается от одинарной наличием вспомогательного провода, расположенного между несущим тросом и контактным проводом. Его подвешивают к несущему тросу на струнах нормальной длины, а контактный провод к вспомогательному тросу — на коротких струнах.
Двойная цепная рессорная подвеска с пружинно-масляными амортизаторами между несущим тросом и вспомогательным проводом дает возможность получить удовлетворительный токосъем при скоростях 200 км/ч и выше.
Современные российские скоростные подвески допускают скорости 160 и 200 км/ч. Они используются на Московском железнодорожном узле (КС-160) и на Октябрьской железной дороге между Москвой и Санкт-Петербургом (КС-200).
Эти подвески вертикальные, компенсированные, с раздельной анкеровкой несущего троса и двойного контактного провода, с удлиненными до 20 м рессорными вспомогательными тросами и мерными струнами, поддерживающими контактные провода. Они подвешиваются на изолированных горизонтальных консолях с подкосами и с закреплением несущего троса над консолью. Усиливающий провод размещается на кронштейнах со стороны пути. Натяжение НТ марки М-120 составляет 18 кН, одного КП марки МФ-120 (сечением 120 мм2 ) — 12 кН. Укороченные анкерные участки имеют длину до 1400 м.
2.4. Устройство подвески в местах сопряжения анкерных участков. Длина пролёта между опорами.
Простейшая двухпролётная схема сопряжения анкерных участков на перегоне. Между анкерными опорами располагается одна переходная (междуанкерная) опора, на консоли которой подвешиваются провода обоих анкерных участков подвески.
Несущие тросы подвешиваются на переходной консоли в общем седле. Контактные провода подвешиваются на струнах каждый к своему несущему тросу. У переходной опоры контактные провода удерживаются в требуемом положении относительно оси пути двойным фиксатором. На прямых участках при расположении переходной и анкерных опор с одной стороны пути применяются обратные консоли или обратные фиксаторы.
В случае, если переходная опора располагается на противоположной от анкерных опор стороне пути, необходимость в обратной консоли отпадает. Также не требуется установки обратных консолей или фиксаторов на кривых участках при расположении переходных опор с внешней стороны кривой.
В месте пересечения контактных проводов устанавливается ограничительная трубка (крестовая накладка). Ограничительной трубкой оба контактных провода в месте пересечения связываются между собой таким образом, что подъём любого из контактных проводов в этом месте вызывает одновременный подъём другого провода. Этим обеспечивается спокойный проход пантографа в обоих направлениях сопряжения.
Кроме ограничительных трубок у переходных опор устанавливаются продольные (крестовые) питательные соединители, служащие для обеспечения надёжного электрического соединения проводов смежных анкерных участков.
На прямых участках контактные провода у переходных опор смещаются относительно оси пути в ту же сторону, в которую отходят анкеровочные ветви подвески. На путях с односторонним движением поездов пересечение контактных проводов располагается у переходной опоры со стороны подхода к ней поездов.
При этом контактный провод следующего по направлению движения анкерного участка располагается сверху, благодаря чему обеспечивается спокойный проход пантографа по кресту в правильном направлении также и в том случае, если ограничительная трубка почему-либо окажется сорванной.
Отходящие на анкеровку ветви подвески монтируются с постепенным повышением. Высота контактного провода в месте анкеровки делается обычно на 0,50—0,60 м больше нормальной его высоты в пролёте.
В том месте, где происходит подхват анкеровочной ветви пантографом, контактный провод анкеровочной ветви регулируется по высоте так, чтобы он был выше основного провода не менее чем на 15 см. При таком подъёме исключается возможность приёма провода на боковую (нерабочую) часть лыжи пантографа.
Так как при соскакивании с контактного провода струны, расположенной в месте подхвата анкеровочной ветви пантографом, происходит опускание анкеровочной ветви и возникает опасность попадания её под рог лыжи пантографа, в местах приёма анкеровочной ветви пантографом устанавливают иногда двойные струны. При расположении анкерной опоры с внутренней стороны кривой анкеровочная ветвь входит в габарит пантографа ближе к середине пролёта. В этих случаях разница высот контактного провода рабочей и анкеровочной ветвей в месте, где последняя входит в габарит пантографа, должна быть не менее 30 см.
При определении в таких случаях места приёма пантографом анкеровочной ветви необходимо учитывать смещение оси пантографа внутрь кривой вследствие возвышения наружного рельса.
На трёх- и четырёхпутных участках при опорах с гибкой поперечиной анкеровочные ветви средних путей пересекают контактную подвеску одного из крайних путей. Расстояние от рабочего провода до провода анкеровочной ветви в этом случае должно быть не менее 40—50 см.
Для сохранения этого расстояния при изменениях температуры и при подъёме контактной подвески пантографом контактный провод анкеровочной ветви подвешивается на струнах к несущим тросам рабочих ветвей контактной подвески в местах пересечения с ними.
В несущий трос и контактный провод такой анкеровочной ветви включаются изоляторы, располагаемые по оси междупутья между средним и крайним путями. Иногда, для того чтобы избежать слишком крутых углов отвода анкеровочных ветвей от среднего пути, их продолжают на два пролёта в каждую сторону от переходной опоры.
Сопряжение анкерных участков контактного провода может быть выполнено и без анкеровки несущего троса. В этом случае несущий трос пропускается без перерыва, анкеровочные же ветви контактного провода подвешиваются на отдельном отрезке троса, который монтируется между анкерными опорами на двух пролётах сопряжения.
Узел крепления двух контактных проводов у переходной опоры является одним из наиболее жёстких мест контактной цепной подвески. Поэтому на перегонах в последнее время применяют трёхпролётную схему сопряжения анкерных участков. В этом случае между анкерными опорами располагаются две переходные, причём переход пантографа с одного провода на другой происходит в среднем пролёте. В этом пролёте каждый из контактных проводов по мере приближения к переходной опоре, с которой он отводится на анкеровку, постепенно повышается и у переходной опоры располагается на 20 см выше рабочего контактного провода.
При таком сопряжении почти полностью устраняется опасность захвата пантографом анкеровочной ветви контактного провода, и переход пантографа с одного анкерного участка на другой получается значительно более спокойным.
Сопряжение анкерных участков по трёхпролётной схеме может быть выполнено также и без анкеровки несущего троса.
В тех случаях, когда сопряжение анкерных участков располагается в месте секционирования контактной сети, применяются сопряжения с воздушным промежутком. Такие сопряжения могут быть выполнены по трёхпролётной или четырёхпролётной схеме.
При трёхпролётной схеме сопряжения с воздушным промежутком между анкерными опорами располагаются две переходные опоры. В пролёте между переходными опорами контактные подвески смежных анкерных участков располагаются в параллельных вертикальных плоскостях на расстоянии 40 см одна от другой. Контактные провода в переходном пролёте располагаются с постепенным повышением, причём у переходных опор в приподнятый контактный провод и в его несущий трос включаются изоляторы.
В последнее время для обеспечения более плавного прохода пантографа вместо трёхпролётных применяют четырёхпролётные анкеровки с воздушным промежутком. В этом случае, между анкерными опорами размещаются три переходные опоры, причём на средней переходной опоре контактные провода располагаются в одном уровне. На остальных переходных опорах расположение проводов остаётся таким же, как на переходных опорах; при трёхпролётной схеме сопряжения с воздушным промежутком.
Переход пантографа с одной секции контактной сети на другую происходит в этом случае у средней переходной опоры, а не в середине пролёта, как при трёхпролётной анкеровке с воздушным промежутком.
Разделяемые воздушным промежутком секции контактной сети соединяются между собой электрически через продольный секционный разъединитель, который располагается на одной из переходных опор.
Сопряжение анкерных участков с нейтральной вставкой состоит из двух последовательно включённых воздушных промежутков, причём расположенная между ними нейтральная вставка может быть с обеих сторон отключена от напряжения секционными разъединителями. Длина нейтральной вставки выбирается таким образом, чтобы при проходе через неё обращающихся на данном участке поездов невозможно было одновременное замыкание пантографами обоих воздушных промежутков.
Заключение
Перевод на электрическую тягу железнодорожных линий позволил увеличить весовые нормы поездов, участковые скорости, среднесуточные пробеги локомотивов. Повысилась устойчивость работы, особенно в районах с суровыми климатическими условиями. К числу важным преимуществ электротяги является экологический фактор.
Внедрение на сети железных дорог электрической тяги способствовало ускорению перевозочного процесса, качественно изменило эксплуатационную работу железных дорог.
Сегодня электровозы и электропоезда являются основным видом тяги на российских железных дорогах. Страна по прежнему занимает первое место в мире по протяженности сети: электрифицировано 42 тыс. км железнодорожных линий, хотя это и чуть меньше половины всей российской сети, но по этим направлениям осуществляется 82,3 % объема всех перевозок.
С учетом многолетнего опыта повышения эффективности перевозок на электротяге стратегической программой развития ОАО "РЖД" до 2010 года предусмотрено осуществить перевод на электрическую тягу до 2 тыс.км железнодорожных линий. В итоге к 2010 году общая протяженность электрифицированных участков достигнет 44,5 тыс. км, на которых будет выполняться до 84% всей перевозочной работы.
Список используемой литературы
1. Шиман, "Электрические железные дороги" (перев. Гинса под редакцией П. Д. Войнаровского); Dupuy, "Traction électrique" (2-е изд.); Ernest Gerard, "Traité d'electrotraction"; Corsepius, "Die elektrische Bahnen"; H. Martin, "Production et distribution de l'energie pour la traction électrique"; Blondel et Dubois, "La traction électrique"; Roloff, "Elektrische Fernschnellbahnen"; Marechal, "Les chemius de fer électriques"; Zehme, "Handbuch der elektrischen Eisenbahnen".
2. Веников В.В., Путятин Е.В. Введение в специальность: Электроэнергетика . М., 1988
3. Лит.: Власов И. И., Марквардт К. Г., Контактная сеть, 2 изд., М., 1961.
4. Фрайфельд А. В., Марков А. С., Тюрнин Г. А., Устройство, монтаж и эксплуатация контактной сети, 2 изд., М., 1967.
5. Лит.: Марквардт К. Г., Энергоснабжение электрических железных дорог, 3 изд., М., 1965.
6. www.history.rzd.ru









