| Скачать .docx |
Курсовая работа: Экономическая эффективность выбора оптимальной схемы механизации и технологии работы причала
Министерство транспорта Российской Федерации
Новосибирская государственная академия
водного транспорта
ФГОУ ВПО
Кафедра: УРП и КЭ
Курсовой проект
По дисциплине: ”Технология и организация работы портов и складов ”
на тему:
«Экономическая эффективность выбора оптимальной схемы механизации и технологии работы причала порта »
Новосибирск 2008
Содержание
Введение
1. Исходные данные на проектирование и их анализ
1.1 Анализ грузооборота и грузопереработки порта
1.2 Транспортно-перегрузочная характеристика груза
1.3 Выбор флота и сухопутного подвижного состава
1.4 Выбор перегрузочных машин и грузозахватных устройств к ним
2. Разработка вариантов схем механизации и технологии перегрузочных работ
2.1 Расчет параметров причала
2.2 Варианты схем механизации
2.3 Описание технологии перегрузочных работ по вариантам
2.4 Расчет норм выработки и времени
2.5 Расчет потребности в перегрузочных машинах, количества причалов и их пропускной способности
2.6 Расчет продолжительности обработки судна в порту
3. Технико–экономическое обоснование выбора оптимального варианта схем механизации и технологии перегрузочных работ
3.1 Методика выбора оптимального варианта
3.2 Капиталовложения и эксплуатационные расходы по порту
3.3 Капиталовложения и эксплуатационные расходы по флоту за время его нахождения в порту
3.4 Интегральные удельные приведенные затраты по порту и флоту, выбор оптимального варианта
4. Эксплуатационно-экономические показатели работы порта
5. Технологическая документация порта
Заключение
Список рекомендуемых источников
Введение
Речной порт – это транспортное предприятие на внутренних водных путях, имеющее один или несколько причалов с прилегающей территорией и акваторией, предназначенный для перевалки груза с одного вида транспорта на другой.
На территории порта располагаются подъездные железнодорожные пути, внутрипортовые автодороги, перегрузочное оборудование, склады.
Речные порты играют большую роль в транспортной системе всей страны, как единые транспортные узлы, через которые проходят грузы, следующие в смешенном направлении. Основная деятельность порта – это выполнение перегрузочных работ по разным вариантам: из судна на железнодорожный, автомобильный транспорт, из судна на склад, из склада на железнодорожный, автомобильный транспорт. Порт осуществляет комплексное обслуживание флота, создает условия плавания и стоянки в порту, обеспечивает сохранность груза, осуществляет прием и выдачу груза, производит расчеты с клиентами, занимается заключением договоров.
Задача порта за короткий период навигации перевести наибольшее количество грузов, произвести их погрузку и выгрузку грузов работы с наименьшими простоями техники.
Цель курсового проекта – закрепление, углубление и систематизация теоретических знаний, полученных студентами при изучении дисциплины «Технология и организация работы портов и складов» при выполнении расчетов по обоснованию оптимального варианта схемы механизации и технологии перегрузочных работ.
1. Исходные данные на проектирование и их анализ
| Род груза: | песок | |
| Направление грузопотока: | Вода – ж/д | |
| Навигационный грузооборот причала: |
|
875000 т |
| Период навигации: | 200 сут. | |
| Коэффициент прохождения груза через склад: | 0,54 |
|
| Средний срок хранения груза на складе: | 10 сут. | |
| Коэффициент неравномерности поступления груза в порт: |
|
1,15 |
| Характеристики водного пути: | ||
- отметка дна относительно «0» графика |
- 4,0 м | |
| - самый низкий горизонт | СНГ | 0,2 м |
| - самый высокий горизонт | СВГ | 4 м |
| - отметка территории | ТЕР | 5 м |
1.1 Анализ грузооборота и грузопереработки порта
Анализ исходных данных следует начать с определения схемы причала. Продольный разрез причала с указанием отметок схематично представлен на рис. 1.
Рис 1. Схема причальной стенки с указанием отметок
Грузооборот и грузопереработка – есть основные показатели, характеризующие порт.
Грузооборот порта (
) –
этоколичество груза в тоннах, погруженное в суда и выгруженное из судов на собственных и причалах порта и приписанные к нему причалах за определенный интервал времени. Различают грузооборот за сутки
, за месяц
и за навигацию
.
Грузопереработка порта (
) –
этообъём перегрузочных работ, т.е. количество груза, которое перегружается на причалах порта силами и средствами порта, т.е. это объём перегрузочных работ, выполненных портом за определенный период времени (сутки, месяц, навигацию) с подразделением по родам грузов по всем вариантам грузовых работ. Грузопереработка измеряется в тоннах или тонно-операциях (т-оп.).
Варианты грузовых работ зависят от направления грузопотока.
| С воду на железную дорогу |
| Судно – вагон |
| Судно - склад |
| Склад - вагон |
Схема, отражающая грузопереработку за навигацию по вариантам грузовых работ, приведена на рис. 2.
![]()
![]()
![]()
![]()

|
|
![]() |
Рис. 2. Схема вариантов грузовых работ, выполняемых для освоения навигационного грузооборота
Определим среднесуточный грузооборот:
=
= 875000 /200 = 4375 т.
Максимальный суточный грузооборот определяем:
=
=
, т.
= 1.15 * 4375 = 5031.25 т.
Найдем грузопереработку за навигацию для каждого варианта перегрузочных работ:
= (1 – 0.54) * 87500 = 402500 т-оп.;
= 0.54 * 875000 = 472500 т-оп.;
= 472500 т-оп.;
Gн общ = 402500 + 472500 +472500 = 1347500 т-оп.;
Рассчитаем коэффициент переработки грузов:
=
1347500 /875000 = 1.54
Находим среднесуточные показатели грузопереработки по вариантам:
= (1-0.54)* 4375 = 2012.5 ,т-оп.;
Расчетные суточные показатели грузопереработки по вариантам:
= (1-0.54) * 1.15 * 4375 = 2314.38, т-оп.;
=
= 0.54 *1.15*4375 = 2716.88 , т-оп.
Общая среднесуточная грузопереработка по всем вариантам составит
Gсут общ = 2314.38 + 2716.88 + 2716.88 = 7748.14 т-оп.;
Сводим полученные показатели в таблицу 1.2.
Таблица 1.2 Грузооборот и грузопереработка
| Показатель | Обозна-чение | Всего | в т.ч. по вариантам грузовых работ | ||
Судно- Вагон |
Судно - Склад |
Склад- Вагон |
|||
| Грузооборот за навигацию, т | 875000 | - | - | - | |
| Среднесуточный грузооборот, т | 4375 | - | - | - | |
| Максимальный суточный грузооборот, т-оп. | 5031.25 | - | - | - | |
| Грузопереработка за навигацию, т-оп. | 1347500 | 404500 | 472500 | 472500 | |
| Среднесуточная грузопереработка, т-оп. | 7748.14 | 2012.5 | 2716.88 | 2716.88 | |
1.2 Транспортно-перегрузочная характеристика груза
На выбор способов перевозки и перегрузки оказывают влияние физико-химические и механические свойства грузов. Состав этих характеристик зависит от категории грузов (штучные, навалочные, лесные и др.).
Навалочными называются грузы, которые транспортируются в транспортных средствах навалом. К навалочным грузам относятся разнообразные кусковые, зернистые и порошкообразные материалы, которые перевозят и хранят без упаковки. В грузообороте всех видов транспорта навалочные грузы занимают наибольший удельный вес. Это, в основном, грузы минерального происхождения: щебень, камень, асфальт, алебастр, известь, песок и песчано-гравийная смесь, гравий, руда, уголь, соль, удобрения и другие.
По условиям перевозки и хранения навалочные грузы разделяют на грузы открытого и закрытого хранения.
К первой группе относят: уголь, руду, большинство минерально-строительных материалов (песок, песчано-гравийную смесь, гравий, щебень, камень…); ко второй группе – пищевую и поваренную соль, мел и другие грузы, которые перевозятся в крытых транспортных средствах и хранятся в закрытых складах.
Навалочные грузы первой группы хранятся на открытых складах раздельно по видам материалов. Размеры штабелей грузов определяются с учетом навигационной потребности в складской ёмкости, а также в соответствии с характеристиками перегрузочной техники.
Основными характеристиками навалочных грузов, имеющими большое значение для их перегрузки и хранения, являются:
· класс груза по ЕКНВиВ;
· насыпная плотность
в т/м
;
· удельный погрузочный объём
,
м
/т;
· влажность в %;
· размер частиц в мм;
· угол естественного откоса в состоянии покоя в градусах;
· слёживаемость, смерзаемость, текучесть при повышенной влажности;
· подверженность самовозгоранию.
Таблица 1.3
Транспортно-перегрузочные характеристики песка
| Класс груза | Н-П |
| Насыпная плотность, |
(0.5 – 0.65) т/м3 |
| Удельный погрузочный объём, |
0,5 м3 /т |
| Угол естественного откоса груза в покое | 30 - 45° |
| Особые условия хранения | нет |
1.3 Выбор флота и сухопутного подвижного состава
Для перевозки навалочных грузов, в частности камня, используются несамоходные баржи-площадки. По гарантированной глубине судового хода необходимо подобрать судно с осадкой в груженом состоянии не более 4,2 м с учётом запаса воды под днищем судна 0,2 м (приложение 5). На основании этого из «Справочника по серийным судам» или из приложения 4 выбираем и принимаем в дальнейших расчетах баржу-площадку проекта Р-56 с техническими характеристиками, представленными в табл. 1.4.
Таблица 1.4
Основные характеристики баржи-площадки проекта Р-56
| Тип судна | площадка, открытая I |
| Площадь грузовой палубы | 1200 м2 |
| Грузоподъёмность | 2800 т |
Габаритные размеры: – длина – ширина – высота |
86,0 м 17,3 м 2,85 м |
| Высота осадочной линии | 9,08 м |
Осадка: – порожнем – в полном грузу |
0,33 м 2,63 м |
Железнодорожный вагон предназначен для погрузки в него груза на причале порта и доставки до пункта назначения.
Тип железнодорожного вагона определим из следующих условий:
Отношение грузоподъёмности вагона к его вместимости не должно превышать насыпную плотность груза
. , т/м![]()
Основные характеристики вагона выбираем из справочника «Вагоны СССР» или приложения 6 и представляем в табл. 1.5.
Таблица 1.5
Технические характеристики вагона
| Тип вагона | Полувагон 4-осный, цельнометаллический, с глухим полом |
| Модель | 12-532 |
| Грузоподъёмность | 69 т |
| Объём кузова | 73м3 |
| Высота габаритная, м | 3.14 м |
Внутренние размеры кузова: – длина – ширина – высота |
12,7 м 2,88 м 2,06 м |
| Длина по осям сцепления автосцепок | 13,92 м |
Проверим выбранный вагон на соблюдение условия:
т/м![]()
т.е. условие соблюдается, что говорит о правильности выбора железнодорожного вагона.
1.4 Выбор перегрузочных машин и грузозахватных устройств к ним
Применение машин непрерывного действия, таких как, например, ленточных конвейеров, при погрузке навалочных грузов невозможно из-за большого угла наклона конвейера и сложностью подачи груза с судна на ленту.
Среди машин циклического действия рассматриваем краны портальные и мостовые. Рассматривая краны грузоподъёмностью 5, 10 и 16 т, выбираем краны грузоподъёмностью 16 т.
В качестве сравниваемых рассмотрим два варианта подъёмно-транспортных машин для перегрузки камня:
1) портальный кран КПП-16;
2) мостовой кран КМК-16.
Технические характеристики портального крана КПП-16 и мостового крана КМК-16 приведены в табл. 1.6.
Таблица 1.6
Технические характеристики кранов
| Характеристика | Кран портальный КПП-16 |
Кран мостовой КМК-16 |
| Грузоподъёмность, т | 16 | 16 |
| Вылет стрелы, м: максимальный минимальный | 30 8 |
- - |
| Колея портала/ пролёта моста, м | 10,5 | 29,0 |
| Высота подъёма, м | 25,0 | 16 |
| Глубина опускания, м | не менее 20 | 25 |
Скорости: - подъема, м/с - частоты вращения, 1/с - изменения вылета стрелы,м/с - передвижения крана, м/с - передвижения тележки, м/с |
1,25 0,025 0,80 0,50 - |
0,32 - - 2,0 0,63 |
| Суммарная мощность электродвигателей, кВт | 384 | 48,1 |
Стоимость крана, тыс. руб. с пролетом моста: 29 м |
3390,0 - - |
- 1134,0 |
Для перегрузки песка (класс груза Н-П) как портальным, так и мостовым кранами грузоподъёмностью 16 т, по таблице 1 приложения 9 выбираем грейфер проекта № 1600. Технические характеристики грейфера представлены в табл.1.7.
Таблица 1.7
Технические характеристики грейфера проекта № 1599
| Тип | четырехканатный двухчелюстной |
| Грузоподъёмность крана, т | 16 |
| Вместимость грейфера, м³ | 4,5 |
| Масса грейфера, т | 6.4 |
| Груз | песок |
| Стоимость, т.руб. | 128 |
Выполним проверочный расчет на совместимость грузозахватного устройства с перегрузочными машинами:
, т
, т
m = 4.5 * 1.54 * 1 * + 6.4 = 13.33 т.
13.33 т
16 т,
следовательно, выбранный нами грейфер, соответствует параметрам перегрузочной техники.
Для формирования штабеля открытого склада и подгребания груза в зону работы крана используем бульдозер Т-100 с характеристиками, представленными в табл. 1.8.
Таблица 1.8
Технические характеристики бульдозера Т-100
| Тип | Бульдозер гусеничный |
| Тип двигателя | дизель |
| Мощность, л.с./кВт | 100/75 |
| Расход топлива, кг/час | 20 |
| Стоимость, тыс. руб. | 150,0 |
Для зачистки вагонов после разгрузки применяем устройство для зачистки вагонов модели – 5561.
Технические характеристики устройства представлены в таблице 1.9.
Таблица 1.9
Технические характеристики устройства для зачистки вагонов
| Устройство для зачистки вагонов | Модель 5561 |
| Частота вращения щетки | 2,51/с (150 об/мин) |
| Скорость передвижения стрелы | 0,2 м/с |
| Время подъёма/опускания щетки | 3 сек |
| Масса устройства | 4820 кг |
| Установленная мощность эл. двигателей | 22,0 кВт |
| привода щетки | 15 кВт |
| подъёма щетки | 5,5 кВт |
| передвижения стрелы | 1,5 кВт |
| Расход топлива, кг/час | 10,0 |
| Цена | 1,0 млн. руб. |
2. Разработка вариантов схем механизации и технологии перегрузочных работ
2.1 Расчет параметров причала
Определим длину причала:
![]()
, м.
Длина склада у основания усечённой пирамиды с учётом пожарных проездов между причалами
, м.
Принимаем
= 10 сут.
, т
Ескл = (875000 * 1.15 /200) * 0.54 * 10 = 27 168.75 т.
Найдем высоту склада
Нскл = 10 / 1.54 = 6.5 м
Объём склада определяется через расчётную вместимость склада:
![]()
, м![]()
Объём склада определяем по формуле:
, м![]()
Следовательно, формула примет вид:
![]()
Вводим в формулу все известные численные значения и находим
Вскл = 38.5 м.
b = 38.5 – 2*6.5*1 = 25.5 м.
L = 0.9 *101 = 90.9 м.
l = 90.9 -2 * (6.5 * 1) = 77.9 м.
2.2 Варианты схем механизации
Схема механизации – это совокупность подъемно-транспортных машин, вспомогательных устройств, объединенных в определенной последовательности в соответствии с характером и особенностями грузопотока, условиями производства перегрузочных работ на причале и предназначенная для перегрузки грузов по одному или нескольким вариантам. При одной и той же схеме механизации возможна перегрузка груза по различным технологическим схемам.
Учитывая выбранные ранее типы перегрузочных машин, рассмотрим два варианта схем механизации и технологии перегрузочных работ для перегрузки камня:
I схема – с портальным краном КПП-16;
II схема – с мостовым краном КМК-16.
По каждой схеме механизации перегрузка груза осуществляется по трём вариантам грузовых работ:
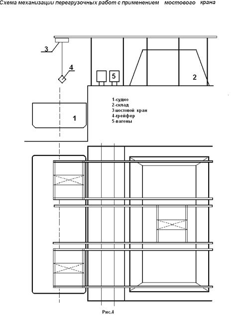
Варианты схем механизации представлены на рис. 4 и 5.


2.3 Описание технологии перегрузочных работ по вариантам
В проекте рассматривается три варианта работ и две схемы механизации, следовательно, описываем технологию перегрузочных работ по трем вариантам (судно-вагон, судно-склад, склад-вагон) и по двум схемам механизации (с участием портального и мостового кранов)
На территорию порта к причалу подано судно Р-56 (баржа-площадка грузоподъемностью 2800 тонн), загруженное песком.
1-я схема механизации
Используются: цельнометаллические вагоны (модель 12-532), портальный кран КПП-16 (грузоподъемностью 16 тонн), грейфер №1600А (вместимостью 4,5 м)
Судно-вагон
Требуется перегрузить груз из судна в железнодорожные вагоны , заведенные на территорию порта, с использованием портального крана. Крановщик направляет ГЗУ устройство, опускает его в судно, осуществляет захват груза, поднимает ГЗУ устройство, перемещает на 90 градусов, опускает на высоту 1 метр от дна вагона, производит выгрузку груза и возвращается на место захвата.
Судно-склад
Требуется перегрузить груз портальным краном из судна в склад. Крановщик направляет грейфер, опускает его в судно, осуществляет захват груза, поднимает грейфер, выполняет поворот на 180 градусов, опускает ГЗУ, производит выгрузку груза в склад и возвращается к месту захвата.
Склад-вагон
Крановщик направляет ГЗУ, опускает его в склад, осуществляет захват груза, поднимает ГЗУ, перемещает его но 90 градусов, опускает на высоту 1 метр до дна вагона, производит выгрузку груза и возвращается к месту захвата.
2-я схема механизации
Используются: цельнометаллические вагоны (модель 12-532), мостовой кран КМК-16 (грузоподъемностью 16 тонн), грейфер №1600А (вместимостью 4,5 м).
Судно-вагон
Крановщик направляет ГЗУ, опускает его в судно, производит захват груза, перемещает тележку на расстояние 16.5 метров, опускает ГЗУ в вагон на высоту 1 метр от дна, производит выгрузку груза и возвращается к месту захвата.
Судно-склад
Крановщик направляет ГЗУ, опускает его в судно, осуществляет захват груза, поднимает ГЗУ, перемещает тележку на расстояние 44 метра, опускает ГЗУ в склад, производит выгрузку груза в склад и возвращается к месту захвата.
Склад-вагон
Крановщик направляет ГЗУ, опускает его в склад, осуществляет захват груза, поднимает ГЗУ, перемещает тележку на расстояние 27.75 метров, опускает ГЗУ на высоту 1 метр от дна вагона, производит выгрузку груза и возвращается к месту захвата.
2.4 Расчет норм выработки и времени
Норма выработки – это количество груза, которое должно быть при отмеченных условиях перегружено в единицу времени (за час, смену).
Норма времени – это затраты труда (в человеко-часах) на перегрузку груза массой 1 т. в определённых производственных условиях при полном использовании производственных возможностей оборудования, применении рациональной технологии и организации перегрузочных работ.
Высоты подъёма и опускания по каждому варианту грузовых работ определяются по схеме, приведённой на рис 6.
=(5,0-0,2)м
=1,0м
=3,5м
1,0м
= 6.5 м

17,3м 1,5м 10,5м 2м 33,7 м
Рис. 6. Схема вертикального разреза причала
Схема с портальным краном
Вариант “ судно-вагон ”
Расчётное время захвата
(с) определяется по нормативам
tзах = 14, с
Время подъёма и опускания грейфера определяем
tп.гр.= t.огр.= 9.14 / 1.25 + (1+1) /2 = 8.3 с.
Время поворота стрелы
t.г.гр.= 90*60 /360*1.5 + (2+2) /2 = 12с
Время освобождения грейфера от груза определяем по Нормативам
=13 с.
Время совмещенного цикла портального крана по варианту вагон-судно
=
= 14 + 13 + 0.85 * (8.3 + 12 + 8.3 + 8.3 + 12 + 8.3) = 75.6 с.
Часовая техническая производительность работы портального крана по варианту вагон-судно рассчитывается
Рм = 3600 *4.5* 1.54 / 75.6 = 330 т/час.
Часовые и сменные комплексные нормы выработки рассчитываем соответственно
Ркнв = 0.832 * 330 * 7 = 1921.9 т/см.
Ркнв = 0.832 * 330 = 274.6 т/час.
, т.
mц = 0.77 * 4.5 * 1.54 * = 6.93 т.
где
– коэффициент заполнения грейфера грузом, определяемый по данным табл. 1 приложения 13;
– емкость грейфера, м³;
– насыпная плотность, т/м³.
Комплексная норма времени определяется также по каждому варианту грузовых работ:
, чел.-час/ т.
Так же рассчитываем время цикла по каждому варианту работ на каждую схему механизации. Расчеты предоставлены в таблице 2.4.
Таблица 2.4
Расчёт норм выработки и норм времени по элементным показателям
Наименование показателя |
Обо-зна-чение | I вариант (портальный кран) |
II вариант (мостовой кран) |
||||
| С -в | С -Скл | Скл-в | С -в | С -Скл | Скл-в | ||
| Время захвата груза грейфером, с. | 14 | 14 | 14 | 14 | 14 | 14 | |
| Время подъема грейфера с грузом, с | 8.3 | 11 | 4.3 | 8.3 | 11 | 4.3 | |
Время горизонтального пере-мещения грейфера с грузом, с: портального крана мостового крана |
12 | 22 |
12 | 2.4 |
3.16 |
2.7 |
|
| Время опускания грейфера с грузом, с | 8.3 | 11 | 4.3 | 8.3 | 11 | 4.3 | |
| Время освобождения от груза, с | 13 | 13 | 13 | 13 | 13 | 13 | |
| Время подъема порожнего ГЗУ, с | 8.3 | 6.2 | 4.3 | 8.3 | 6.2 | 4.3 | |
| Время горизонтального передвижения порожнего ГЗУ, с | 12 | 22 |
12 | 2.4 |
3.16 |
2.7 |
|
| Время опускания порожнего ГЗУ, с | 8.3 | 6.2 | 4.3 | 8.3 | 6.2 | 4.3 | |
| Время цикла, с | 75.6 | 89.7 | 64.1 | 59.3 | 59.6 | 47.3 | |
| Масса груза внутри грейфера, т | 6.93 | 6.93 | 6.93 | 6.93 | 6.93 | 6.93 | |
| Техническая производительность перегрузочной машины, т/час | 330 | 278.1 | 389.2 | 420.7 | 418.6 | 527.4 | |
Комплексная норма выработки, т/час т/см. |
|
274.6 1921.9 |
243.6 1705.3 |
323.8 2266.7 |
350 2450.1 |
366.7 2566.2 |
438.8 3071.8 |
| Количество рабочих, чел | 2 | 2 | 2 | 2 | 2 | 2 | |
Комплексная норма времени, чел-час./т |
0.007 | 0.008 | 0.006 | 0.006 | 0.0054 | 0.0045 | |
2.5 Расчет потребности в перегрузочных машинах, количества причалов и их пропускной способности
Машиноёмкость ![]()
, маш-час
где
– навигационная грузопереработка в тонно-операциях по варианту судно – вагон;
– навигационная грузопереработка в тонно-операциях по варианту склад – вагон;
– навигационная грузопереработка в тонно-операциях по варианту судно – склад;
– комплексная норма выработки фронтальной машины по варианту судно – вагон, т/ч;
– комплексная норма выработки фронтальной машины по варианту склад – вагон, т/ч;
– комплексная норма выработки фронтальной машины по варианту судно – склад, т/ч.
С использованием портального крана:
Тмч = 402500 / 274.76 + 472500 / 323.8 + 472500 / 243.6 = 4864.66 маш. час.
С использованием мостового крана:
Тмч = 402500 / 350 + 472500 / 438.8 + 472500 / 366.7 = 3515.3 маш. час.
Трудоемкость
определим по формуле:
, чел-ч.
где
– трудоемкость, т.е. потребное количество человеко-часов для освоения всего грузооборота;
– комплексная норма времени по варианту судно – вагон;
– комплексная норма времени по варианту склад– вагон;
– комплексная норма времени по варианту судно– склад.
Для портального крана:
Тмч = 402500 * 0.007 + 472500 * 0.006 + 472500 * 0.008 = 9432.5 чел. час.
Для мостового крана:
Тмч = 402500 * 0.006 + 472500 * 0.0045 + 472500 * 0.0054 = 7092.75чел. час.
Минимальное количество перегрузочных машин на причале определяется:
, ед.
где
– машиноёмкость за навигацию, маш-час;
– оперативное время работы причала в сутоки , час;
– коэффициент неравномерности поступления грузов в порт.
nм =4864.66 * 1.15/ 200 * 24 = 2 ед. – портальный кран
nм =3515.3 * 1.15/ 200 * 24 = 1 ед. – мостовой кран
Максимальное количество перегрузочных машин на причале определяется:
, ед.,
где
– длина склада, м;
– ширина пролёта эстакады, м.
(целое число - int )
nм =int (90.9 / 10.5) = 9 ед. – портальный кран
nм = int (90.9 / 12.5*3) = 3 ед. – мостовой кран
Пропускная способность причала - это максимальное количество определённого груза в тоннах, которое причал способен погрузить в суда или выгрузить из судов при имеющемся техническом оснащении и применении рациональной технологии за определённый период времени (сутки, месяц, навигацию).
При использовании на выгрузке судна нескольких однотипных фронтальных перегрузочных машин пропускная способность фронтальной части причала
определяется по формуле:
, т/сут.
Пропускная способность с использованием 2-х портальных кранов:
Пф = 7500 т/сут.
Пропускная способность с использованием 3-х мостовых кранов:
Пф = 15750 т/сут.
Расчётная интенсивность грузовой обработки судов на причале определяется
, т/судо-сут.
Iоб = 10769.2 т/судо-сут. - с использованием 2-х портальных кранов
Iоб = 22500 т/судо-сут. - с использованием 3-х мостовых кранов
Результаты расчетов по I и II вариантам схем механизации представляем в табличной форме (таблица 2.5)
Таблица 2.5
Показатели расчёта пропускной способности причала
| Показатель | Обоз-наче- ние |
Варианты схем механизации | |||||||
| I вариант (портальный кран) | II вариант (мостовой кран) | ||||||||
| С-в | С-Скл | Скл-в | Всего | С-в | С-Скл | Скл-в | Всего | ||
| 1. Грузооборот, тыс.т. | 402.5 | 472.5 | - | 875,0 | 402.5 | 472.5 | - | 875,0 | |
2. Коэффициенты -складочности -прямого варианта |
|
0.54 0.46 |
0.54 0.46 |
0.54 0.46 |
0.54 0.46 |
0.54 0.46 |
0.54 0.46 |
||
| 3.Грузопере-работка, т.т. | 402.5 | 472.5 | 472.5 | 1347.5 | 402.5 | 472.5 | 472.5 | 1347.5 | |
4.Комплексная норма выра- ботки, т/час. |
|
274.6 | 243.6 | 323.8 | - | 350 | 366.7 | 438.8 | - |
| 5. Комплексная норма времени, чел.час./т | 0.007 | 0.008 |
0.006 |
- |
0.006 |
0.0054 |
0.0045 |
- |
|
| 6.Машиноёмкость маш.час. | 4.86 | 3.52 | |||||||
| 7. Трудоёмкость, чел./час. | 2817.5 | 3780 | 2835 | 9432.5 | 2415 | 2551.5 | 2126.25 | 7092.75 | |
8. Пропускная способность причала: т/сут.. |
|
7500 | 15750 | ||||||
| 10. Количество перегрузочных машин. |
|
2 |
3 |
||||||
11. Интенсивность обработки флота: т/судо-сут. |
|
10769.2 | 22500 | ||||||
2.6 Расчет продолжительности обработки судна в порту
Произведём расчёты для I варианта схем механизации.
Время грузовой обработки определяем
, сут.
Коэффициент использования причалов по времени
определяем

Коэффициент ожидания начала грузового обслуживания определяем
![]()
Продолжительность подготовительно-заключительных операций по обработке состава в порту определяем
, сут
Валовое время нахождения судна в порту определяем
, сут.
Аналогично производим расчёты по другим сравниваемым вариантам схем механизации и технологии перегрузочных работ.
Расчёты показателей обработки флота в порту по сравниваемым вариантам представляем в таблице 2.6.
Таблица 2.6
Показатели обработки флота в порту
| Показатели | Обозна-чения | Варианты схем | |
| с портальным краном | с мостовым краном | ||
| Время грузовой обработки судна, сут. | 0,37 | 0,53 | |
| Коэффициент использования причалов по времени | 0,58 | 0,83 | |
| Коэффициент ожидания грузовой обработки | 0.69 | 2.44 | |
Время ожидания, сут. |
0,26 | 1.3 | |
| Время стоянки судна в порту, сут. | 0.63 | 1,8 | |
3. Технико–экономическое обоснование выбора оптимального варианта схем механизации и технологии перегрузочных работ
3.1 Методика выбора оптимального варианта
При сравнении нескольких возможных вариантов схем механизации и технологии перегрузочных работ основным критерием оптимальности взаимовыгодного варианта является минимум интегральных удельных приведённых затрат по порту, флоту (а более точно и по смежным видам транспорта) за время их нахождения в порту под грузовой обработкой и в её ожидании, руб./т.
В случае, если значения интегральных удельных приведённых затрат по сравниваемым вариантам будут близки, оптимальный вариант схем механизации и технологии перегрузочных работ следует определять, рассматривая дополнительно другие показатели, такие, как капиталовложения, себестоимость погрузочно-разгрузочных работ, продолжительность обработки транспортных средств, пропускная способность причалов, производительности труда, в зависимости от выбранной стратегии развития.
3.2 Капиталовложения и эксплуатационные расходы по порту
Абсолютная величина капиталовложений в строительство и оборудование причалов порта составляют:
, руб.
Капиталовложения в общепортовые сооружения
определяются по укрупнённым нормативам, отнесённым на 1 м длины причальной линии
, руб.
где
- длина причала, м;
– укрупнённый норматив капиталовложений в общепортовые сооружения, определяемый по приложению, ![]()
![]()
![]()
Капиталовложения в устройство крытых складов
, руб.
Капиталовложения на покрытие территории и открытых складских площадок
, руб.
где
– площадь покрытия, м;
– стоимость покрытия 1м2
, определяемая по приложению 17, руб./ м
.
![]()
![]()
![]()
Капиталовложения в устройство крановых путей и эстакад мостовых кранов
, руб.
где
– протяженность крановых путей, м;
– стоимость 1 м крановых путей, определяемая по приложению 17, руб./м.
![]()
![]()
![]()
Капиталовложения в устройство эстакад мостовых кранов
, руб.
где
– протяженность эстакады, м;
– стоимость 1 м эстакады, определяемая по приложению 18, руб./м;
– количество линий эстакад, равное количеству мостовых кранов.
![]()
![]()
![]()
Капиталовложения в устройство причальных и набережных сооружений. Норматив стоимости строительства 1 м длины вертикальной стенки высотой 9 м из заанкерованного металлического шпунта по приложению 19 составляет
руб./м. Поясной коэффициент строительства по приложению 17:
.
руб.
Капиталовложения в формирование парка перегрузочных машин и оборудования
, руб.
где
– количество машин i
-типа (кранов, бульдозеров и др.), ед.;
– стоимость машин i
-го типа, руб./ед.
– стоимость оборудования j
-го типа, руб./ед.
Таблица 3.1
Стоимость оборудования, руб.
| Портальный кран | 3390000 |
| Мостовой кран | 1134000 |
| Грейфер | 128000 |
| Бульдозер | 150000 |
| Зачистная машина | 1000000 |
К6 = (3390000+128000)*2 + 150000 + 1000000 = 8 186 000 руб. – портальный кран
К6 = (1134000+128000)*3 + 150000 + 1000000 = 4 936 000 руб. – мостовой кран
Удельные капиталовложения:
, руб./т
Результаты расчетов капиталовложений по порту по сравниваемым схемам механизации целесообразно представить в форме таблицы 3.2
Таблица 3.2
Капиталовложения по порту, руб.
| Наименование | Варианты схем механизации | |
I (портальный кран) |
II (мостовой кран) |
|
| К1 - капитальные вложения в общепортовые сооружения, руб. | 10 110 100 | 10 110 100 |
| К2- капитальные вложения в устройство крытых складов, руб. | 0 | 0 |
| К3 - капитальные вложения на покрытие портовой территории и открытых складов, руб. | 886 496 | 886 496 |
| К4- капитальные вложения в устройство подкрановых путей, руб. | 254 520 | 6 084 000 |
| К5 - капитальные вложения в устройство причальных и набережных сооружений, руб. | 2 836 080 | 2 836 080 |
| К6 - капитальные вложения в формирование парка перегрузочных машин и оборудования, руб. | 8 186 000 | 4 936 000 |
| Суммарные капиталовложения, руб. | 22 273 196 | 24 852 676 |
| Удельные капиталовложения по порту, руб./т. | 25.5 | 28.4 |
Рассчитаем эксплуатационные расходы по порту и себестоимость перегрузочных работ по сравниваемым вариантам.
Проектная себестоимость (руб./т) перегрузки груза массой 1 т определится делением всех эксплуатационных расходов, связанных с перегрузочными работами на причале, на расчетный навигационный грузооборот:
, руб./т,
где
– эксплуатационные расходы по порту за навигацию, связанные с выполнением перегрузочных работ, руб;
– расчетный навигационный грузооборот, т.
Оплата труда работников, занятых на погрузочно-разгрузочных работах, производится по повремённой системе:
, руб.
где
– коэффициент, учитывающий доплаты, дополнительную заработную плату и начисления к основной заработной плате, равный 0,35 – 0,55;
– коэффициент, учитывающий районную надбавку в зависимости от географического положения порта, определяемый по данным приложения 20;
– затраты труда при повремённой оплате, чел.-смен;
– сменная тарифная ставка рабочего комплексной бригады при повремённой оплате, определяемая по данным приложения 20, руб./чел.-смен;
![]()
![]()
тчч1 =9432.5 чел.час.
тчч2 =7092.75 чел.час.
Э1= (1+0.5)*1.2* 9432.5*50 = 848925 руб.-портальный кран
Э1= (1+0.5)*1.2*7092.75*50 = 638347.5 руб.- мостовой кран
Расходы на амортизацию и текущий ремонт портовых сооружений
, руб.:
![]()
где
– строительная стоимость отдельного i
-го вида портовых сооружений, руб.;
нормы ежегодных отчислений на амортизацию (таблица 1 приложения 21), %;
– нормы ежегодных отчислений на текущий ремонт i
-го вида портовых сооружений (таблица 1 приложения 21), %;
– длина причала, м;
– удельные эксплуатационные расходы по общестроительным объектам на 1 м длины причала ![]()
Таблица 3.3
Нормы амортизации и текущего ремонта, %

![]()
![]()
![]()
![]()
Расходы на амортизацию и технический ремонт перегрузочных машин
, руб.:
, руб.
где m – количество типов перегрузочных машин, ед.;
– стоимость перегрузочных машин i
-го типа и оборудования к ним, руб.;
– количество машин i
-го типа, ед.;
нормы ежегодных отчислений на амортизацию (таблица 2 приложения 21), %;
– нормы ежегодных отчислений на текущий ремонт i
-го вида перегрузочных машин и оборудования к ним (таблица 2 приложения 21), %;
![]()
![]()
![]()
Расходы на электроэнергию, топливо, смазочные и обтирочные материалы
, руб.:
![]()
где
– расходы на электроэнергию, потребляемой электродвигателями перегрузочной машиной i
-го типа, руб.;
– количество перегрузочных машин i
-го типа, имеющих электропитание, ед.;
– расходы на освещение причала, руб.;
– расходы на топливо для машин с тепловым двигателем j-го типа, руб.;
– количество перегрузочных машин с тепловым двигателем j
-го типа, ед.
Расходы на смазочные и обтирочные материалы принимаются в размере 2 % от суммарных расходов на топливо и электроэнергию и выражаются коэффициентом 1,02.
Расходы на электроэнергию, потребляемую электродвигателями одной перегрузочной машины
![]()
где
– стоимость электроэнергии, определяемая по данным приложения 22, руб. /кВт-ч;
– суммарная мощность электродвигателей перегрузочной машины (для портальных кранов – без учёта мощности механизма передвижения, кВт;
– время работы машины за навигацию, маш-час;
![]()
![]()
![]()
![]()
![]()
– коэффициент, учитывающий расход электроэнергии при опробовании машин (
= 1,02);
– коэффициент использования мощности двигателя (
= 0,7 – 0,8);
– коэффициент, учитывающий одновременную работу двигателей
(
= 0,4 – 1).
![]()
![]()
Расходы на освещение причала, руб.
![]()
где
– коэффициент потерь в сети (
= 1,05);
– освещаемая площадь i
-го объекта причала (акватории в зоне нахождения судна, фронтальной и тыловой зон территории причала, м
;
![]()
![]()
![]()
– продолжительность освещения за навигацию, ч.![]()
Расходы на топливо для машины с тепловым двигателем, руб.
![]()
где
– коэффициент, учитывающий холостую работу машины (
= 1,15);
– мощность теплового двигателя машины, кВт;
– продолжительность работы машины за расчётный период , час;
Для зачистной машины и бульдозера
tм = 200*0.6*24 = 2880 час. ![]()
– норма расхода топлива двигателя, определяемая по данным приложения 23, кг/час
Для бульдозера ![]()
![]()
Для зачистной машины ![]()
![]()
– стоимость 1 л топлива, определяемая по данным приложения 22, руб.![]()
Эмд = 1.15*(2880*26+2880*13)*25 = 3229200 руб.
Э4 = 1.02*(3826620+876567+ 322920) = 5126629 руб.- портальный кран
Э4 = 1.02*(693140+876567+ 322920) = 1930479 руб.- мостовой кран
Расходы по зимнему отстою плавучих перегрузочных установок
, руб.
,
Расходы на содержание распорядительского и обслуживающего персонала и общепроизводственные расходы
, руб.
![]()
Э6 = 0.29 * 848925 = 246188 руб.- портальный кран
Э6 = 0.29 * 638347 = 185121 руб.- мостовой кран
Распределяемые расходы (на содержание рейдово-маневрового флота, средств связи и общеэксплуатационные расходы
, руб.
![]()
Э7 = 0.2 * (848925 + 1380260 + 5126629 + 246188)= 1520400 руб.- портальный кран
Э7 = 0.2* (638347 + 1083786 + 1930479 + 185121) = 767547 руб.- мостовой кран
Результаты расчетов эксплуатационных расходов по порту по сравниваемым схемам механизации целесообразно представить в форме таблицы 3.3
Таблица 3.3
Эксплуатационные расходы по порту
| Наименование | Портальный кран | Мостовой кран |
| 848925 | 638347 | |
| 568268 | 719834 | |
| 1380260 | 1083786 | |
| 5126629 | 1930479 | |
| 0 | 0 | |
| 246188 | 185121 | |
| 1520400 | 767547 | |
| 9690670 | 5325114 | |
| ( |
11.1 | 6.1 |
3.3 Капиталовложения и эксплуатационные расходы по флоту за время нахождения его в порту
Капиталовложения по флоту рассчитаем по формуле:
, руб.,
где Кс – стоимость расчетного типа судна, руб.; 1500000 руб.
Qн – навигационный грузооборот, т;
Тн – полное навигационное время , сут.;
Gс – грузоподъемность судна (Gс = 2800 т.), т;
tгр – время грузового обслуживания судна соответственно по первому и второму вариантам, сут;
tож – время ожидания судна, сут.
Кф = (1500000*875000 /200* 2800) *0.63 = 1476563 руб. – портальный кран
Кф = (1500000*875000 /200* 2800) *1.8 = 4218750 руб. – мостовой кран
Удельные капиталовложения по флоту составят:
, руб./т,
kф= 1476563 / 875000 = 1.7 руб/т. – портальный кран
kф= 4218750 / 875000 = 4.8 руб/т. – мостовой кран
Эксплуатационные расходы по флоту за время его грузовой обработки и ожидания в течение навигации можно определить:
,
где Сс – стоимость суточного содержания судна на стоянке
Сс = (1500000 * 0,04)/205 = 293 руб./сут
Эф= 293*0.63*875000 / 2800 = 57684 руб.-портальный кран
Эф= 293*1.8*875000 / 2800 = 164812.5 руб.-мостовой кран
Удельные расходы по содержанию флота составят:
, руб./т.
Sф = 57684/ 875000 = 0.07 руб./т.
Sф = 164812.5/ 875000 = 0.19 руб./т.
3.4 Интегральные удельные приведенные затраты по порту и флоту и выбор оптимального варианта
Удельные приведённые затраты:
, руб.
, руб.
I вариант: Sп = 11.1 (руб./т);
Sф = 0,07 (руб./т);
kп = 25.5 (руб./т.);
kф = 1.7 (руб./т)
11.1 + 0.1*25.5 = 13.65 (руб./т);
0.07 +0.1*1.7 = 0.24 (руб./т);
Суммарные затраты:
0.24 +13.65 = 13.89 (руб./т).
II вариант: Sп = 6.1 (руб./т);
Sф = 0.19 (руб./т);
kп = 28.4 (руб./т);
kф = 4.8 (руб./т).
6.1 + 0.1*28.4 = 8.94 (руб./т);
0.19 +0.1*4.8 = 0.67 (руб./т);
Суммарные затраты:
8.94 + 0.67 = 9.61 (руб./т).
На основании проведенных выше расчетов в качестве предлагаемого варианта можно выбрать схему механизации с применением мостового крана, так как удельные приведенные интегральные затраты по этому варианту меньше и составляют 9.61 руб./т.
4.Эксплуатационные экономические показатели работы порта
Рассчитаем и сравним показатели экономической эффективности вариантов схем механизации. Расчет произведем в табличной форме.
Таблица 4.1
Расчет технико-экономических показателей, сравнение экономической эффективности схем механизации
| Показатель | Вариант | Отклонение | |||||
| Базовый | Предлагаемый | ||||||
| 1 | 2 | 3 | 4 | ||||
| 1. Навигационный грузооборот, т | 875000 | 875000 | 0 | ||||
| 2. Капиталовложения по порту, тыс. руб. | 22273196 | 24852672 | -2579476 | ||||
| 3.Основные фонды порта Ф0 , тыс. руб. | 22273196 | 24852672 | -2579476 | ||||
| 4. Эксплуатационные расходы, тыс. руб. | 9690670 | 5325114 | 4365556 | ||||
| 5. Себестоимость перегрузочных работ, руб./т | 11.1 | 6.1 | 5 | ||||
| 6. Удельные капиталовложения, руб./т | 25.5 | 28.4 | -5.33 | ||||
| 7. Доходная ставка |
14.9 | 8.2 | 6.7 | ||||
| 8. Доход порта |
13037500 | 7175000 | -5862500 | ||||
| 9. Прибыль порта |
3346830 | 2763095 | -583735 | ||||
| 10. Фондоотдача |
0,59 | 0,3 | -0.29 | ||||
| 11. Фондоемкость |
1,69 | 3.3 | 1.61 | ||||
12. Рентабельность где Коб.ф. – коэффициент оборотного фонда, равен 3% или 0,03. |
14.6 | 10.8 | -3.8 | ||||
| 1 | 2 | 3 | 4 | ||||
13. Среднегодовой контингент работников, задействованных на перегрузочных работах
|
10 | 7 | 3 | ||||
14. Производительность труда
|
87500 | 125000 | 37500 | ||||
| 15. Производительность труда в стоимостном выражении |
1303750 | 1025000 | -278750 | ||||
16. Уровень комплексной механизации , % |
100 | 100 | 0 | ||||
17. Степень механизации труда ,% |
100 | 100 | 0 | ||||
| 18. Валовое время обработки судна, |
0.63 | 1.8 | -1.17 | ||||
| 19. Пропускная способность причала, т/сут. | 7500 | 15750 | 8250 | ||||
| 20. Удельные приведенные затраты по порту руб./т | 13.65 | 8.94 | 4,71 | ||||
| 21. Удельные приведенные затраты по флоту, руб./т | 0,24 | 0,67 | -0.43 | ||||
| 22. Суммарные приведенные затраты по порту и флоту, руб./т | 13.89 | 9.61 | 4,28 | ||||
| 23. Условный годовой экономический эффект | Э= (13.89 – 9.61)*875000=3745000 руб. | ||||||
5.Технологическая документация порта
Технологический процесс – это система документации, полностью отражающая работу порта.
Технико-распорядительский акт определяет назначение и порядок использования технических средств порта, перечень технической вооруженности и пропускной способности причалов и рейдов, а также вспомогательные суда, схемы расположения причалов и рейдов.
Технические карты перегрузочных процессов определяют технологию погрузочно-разгрузочных работ на судах и вагонах.
Технологический процесс обработки судов отображается полными графиками обработки судов.
Плановый график обработки судов содержит грузовой план и технологический процесс с технологической картой.
Заключение
Целью курсового проекта был выбор варианта схемы механизации по критерию минимальных суммарных затрат.
Для этого мы рассматривали два варианта схем механизации: с применением портального крана и мостового крана соответственно.
В процессе выполнения работы были рассчитаны количество грузовых операций по грузообороту и грузопереработке, комплексные нормы выработки по каждой схеме и по каждому варианту работ. Определены машиноемкость и трудоемкость, пропускная способность причала и интенсивность грузовой обработки судна.
Далее рассчитали продолжительность грузовой обработки судна по сравниваемым вариантам работ.
На основании проведенных расчетов были определены эксплуатационные расходы и капиталовложения по схемам механизации.
Также проведен расчет эксплуатационных расходов и капвложений по флоту за время его стоянки в порту.
В заключение курсового проекта был проведен расчет удельных интегральных затрат по порту и флоту.
Предлагается к внедрению схема механизации с применением в качестве перегрузочной техники мостового крана. У этой схемы механизации есть свои плюсы и минусы, которые видно из данных таблицы 4.1., но в общем годовой экономический эффект от внедрения предложенной схемы составит 3745000 руб.
Список рекомендуемых источников
1. Казаков А.П., Фадеев И.П. Организация и планирование работы речных портов. Учебник для институтов водного транспорта. М.:Транспорт, 1989.-206с.
2. Казаков А.П., Технология и организация перегрузочных работ на речном транспорте. Учебник для вузов.-3-е изд., переработка и дополнения –М.:Транспорт, 1984.-416с.
Нормативно-техническая и справочно-методическая документация
3. Грейферы. Альбом 3419. (Минречфлот РСФСР. Главное управление портов, ЦПКБ). М., 1986. 116 с.
4. Грузозахватные приспособления. Каталог – справочник. Грейферы. Росречфлот. М., 1991. 81 с.
5. Единые комплексные нормы выработки и времени на погрузочно-разгрузочные работы, выполняемые в речных портах и на пристанях (Центральное бюро нормативов по труду при НИИтруда Государственного Комитета Совета Министров СССР по труду и социальным вопросам). М., 1988. Часть 1, 208 с. Часть 2, 322 с.
6. Судо-часовые нормы загрузки-разгрузки судов Минречфлота РСФСР №130 от 08.07.87). М.: Транспорт, 1987. 68 с.
7. Технические средства для перегрузочных работ. Каталог-справочник. Росречфлот. М., 1991. 78 с.

, %
,%