| Скачать .docx |
Реферат: Расчет и проектирование эксплуатационной базы
Федеральное Агентство по образованию
Федеральное Государственное образовательное
учреждение среднего профессионального образования
Красноярский строительный техникум
Специальность «Техническая эксплуатация подъемно-транспортных, дорожных, строительных машин и оборудования» (190605)
ПОЯСНИТЕЛЬНАЯ ЗАПИСКА
К курсовому проекту по ремонту дорожных машин.
На тему: «Расчет и проектирование эксплуатационной базы»
Выполнил студент гр. 08М
Семенов А.А.
Проверил преподаватель:
Альшанская А.А.
![]() |
Красноярск 2011
Красноярский Строительный техникум
ЗАДАНИЕ
На разработку курсового проекта по дисциплине Техническая эксплуатация дорожных машин автомобилей и тракторов
Студент Семенов Антон Андреевич группы 08М специальности 190629
Тема проекта__ Расчет и проектирование эксплуатационной базы ______________________________________________________________
СОДЕРЖАНИЕ ПРОЕКТА
1Теоретическая часть проекта
1.1 Введение
1.2 Технические характеристики и режим работы оборудования
1.3 Проектирование зоны технического обслуживания
1.4 Технологический процесс обслуживания
1.5 Техника безопасности, охрана труда и окружающей среды
1.6 Заключение
1.7 Список используемых источников
2 Графическая часть проекта
2.1 Лист№1 Проектирование зоны технического обслуживания
2.2 Лист №2 Графики ППР
Дата выдачи задания 25.02.11
Срок окончания проектирования 19.04.11
Руководитель проектирования Альшанская А. А.
Содержание:
Введение…………………………………………………………...4
1 Технические характеристики и режим работы……………….5
2 Проектирование зоны технического обслуживания………....7
2.1Определение норм периодичности трудоемкости и продолжительности работ…………………………………..7
2.2Расчет количества технических обслуживаний и ремонтов……………………………………………………...7
2.3 Определение численности ремонтного персонала………...14
2.4 Расчет и выбор технологического оборудования………….17
2.5 Определение числа постов технического обслуживания…18
2.6 Расчет площади зоны технического обслуживания……….19
2.7 Выбор схемы зоны технического обслуживания………….20
3 Технологический процесс……………………………………..22
3.1 Основные сведения о системе планово предупредительного ремонта ……………………………………………………...22
3.2 Процесс технического обслуживания……………………..24
4Техника безопасности, охрана труда и окружающей среды………………………………………………………...28
Заключение…………………………………………………........37
Список используемых источников…………………………….38
Введение
Неполноповоротный экскаватор ЭО-2621В-3, относящийся ко 2-й размерной группе, предназначен для механизации земляных и погрузочных работ небольших объемов. Его монтируют на пневмоколесном тракторе ЮМЗ-6КЛ. Эта машина предназначена для разработки грунтов I…IV групп и погрузки сыпучих и мелкодробленых материалов. Машина оборудована рабочим оборудованием двух видов: экскаваторным и бульдозерным. Всего же машина может быть оснащена 22 видами сменного рабочего оборудования и рабочих органов.
Основной рабочий орган экскаваторного оборудования - ковш 0,25
прямой и обратной лопаты. Кроме того, экскаватор может быть оснащен погрузочным ковшом 0,5
, крановой подвеской, вилами, телескопической рукоятью, грейфером, обратной лопатой со смешенной осью копания, гидромолотом, зубом-рыхлителем, захватом, буровым оборудованием, профильным и специальными ковшами.
В зависимости от характера работы во времени экскаваторы делятся на две большие группы: непрерывного и циклического (прерывного) действия. Экскаватор непрерывного действия имеет несколько ковшей, что позволяет ему выполнять операции по копанию и перемещению грунта одновременно. Экскаватор циклического действия оснащен одним ковшом, поэтому операции по копанию и перемещению грунта производит последовательно.
По типу ходового оборудования экскаваторы бывают: гусеничные, пневмоколесные, на специальном шасси автомобильного типа и на шасси грузового автомобиля или трактора. Экскаваторы на гусеничном ходу могут работать на слабых и переувлажнённых грунтах, в том числе на торфоразработках. Экскаваторы на пневмоколесном ходу получили широкое распространение при выполнении различных видов строительных и ремонтных работ.
1 Технические характеристики экскаватора и режим его работы
Общий вид экскаватора ЭО-2621В-3 приведен на рисунке 1

1 - топливный бак; 2 - бак рабочей жидкости; 3 - кабина машиниста; 4 - рычаг управления; 5 - гидрораспределитель; 6 - гидроцилиндр стрелы; 7 - гидроцилиндр рукояти; 8 - стрела; 9 - рукоять; 10 - гидроцилиндр ковша; 11 - ковш; 12 - рычаг; 13 - выносная опора; 14 - гидроцилиндр опоры; 15 - поворотная колонна; 16 - насосная установка; 17, 18 - рамы; 19 - гидроцилиндр отвала бульдозера; 20 - рама отвала; 21 - отвал бульдозера Рисунок 1 – Общий вид. Экскаватор ЭО-2621В-3
Технические характеристики экскаватора ЭО-2621В-3.
Таблица 1 Техническая характеристика экскаватора ЭО-2621В-3
| Базовое шасси |
МТЗ-82\80, ЮМЗ-6АКМ |
| Эксплуатационная масса |
6100кг |
| Геометрическая емкость ковша |
0,25 |
| Номинальная емкость ковша |
0,28 |
| Наибольшая глубина копания |
4,1 м |
| Наибольшая высота выгрузки |
3,2 м |
| Модель двигателя |
Д-243 |
| Наибольшая скорость |
20км/ч |
| Привод рабочего органа |
Гидравлический |
Режим работы оборудования указан в таблице 2
Таблица 2 Номинальный фонд времени работы оборудования
| Характеристика производства |
Число рабочих дней в году; дн
|
Число смен в сутки; ед
|
Продолжительность смены; ч |
Номинальный фонд времени |
|
| В сутки;ч
|
В год; ч
|
||||
| С прерывным технологическим процессом |
249 |
2 |
8 |
16 |
3984 |
2 Проектирование участка
2.1 Определение норм периодичности, трудоёмкости и продолжительности работ
На основе справочных материалов определяем нормативы периодичности, продолжительности и трудоемкости технического обслуживания и ремонта (ТО и Р.) Полученные нормативы сводим в таблицу 3.
Таблица 3 Нормативы периодичности, продолжительности и трудоемкости технического обслуживания и ремонта
| Тип машины |
Кол-во машин |
Вид работ |
Периодичность, ч |
Продолжительность, ч |
Число в цикле |
Трудоемкость |
| ЭО-2621В-3 |
90 |
ТО-1 |
50 |
1,5 |
96 |
3 |
| ТО-2 |
250 |
3 |
18 |
6 |
||
| Т |
1000 |
40 |
5 |
400 |
||
| К |
6000 |
80 |
1 |
570 |
2.2 Расчет количества и видов ТО и Р
Количество и виды ТО и Р являются исходной информацией для составления годового и месячного графиков планово – предупредительных работ на каждой машине. Количество и виды ТО и Р определяем аналитическим методом. Расчеты проводим на календарный год в зависимости от планируемой наработки на год. Прежде чем приступить к определению количества ТО и Р, необходимо найти действительный годовой фонд времени
, ч; рассчитываем по формуле:
(1)
где
– номинальный фонд времени работы оборудования, ч;
- количество часов, затрачиваемых на ремонт в планируемом году, ч;
- коэффициент использования в смену (0,8 – 0,9).
где
,
,
– продолжительность, соответственно одного ТО, текущего и капитального ремонта, ч.
,, – число в цикле, соответственно ТО, текущего и капитального ремонта, ед.
К – ремонтный цикл машины, ч.

(3)

Количество капитальных ремонтов на текущий год (
, шт.), определяют по формуле:
(4)
где
- выработка машины от предыдущего капитального ремонта, ч.
Для расчетов принимаем, что наработка экскаватора составляет 6250 ч.
![]()
Принимаем количество капитальных ремонтов равное одному.
Количество текущих ремонтов вычисляем по формуле:
(5)
где
– выработка экскаватора от предыдущего текущего ремонта, ч.
– периодичность текущих ремонтов, ч.
по таблице 3.
(6)
где
– целое число, проведенных текущих ремонтов со времени работы экскаватора от предыдущего капитального ремонта.
(7)
![]()

![]()
Принимаем число проведенных текущих ремонтов равное двум.
Определить количество вторых ТО-2
(8)
где –выработка оборудования от предыдущего второго текущего ремонта, ч.
– периодичность ТО-2. ТО-2= 250 по таблице 3
Выработку оборудования от предыдущего ТО-2 вычисляют по формуле:
(9)
(10)
![]()
![]()
Принимаем количество ТО-2 равное восьми.
Рассчитываем количество ТО-1
![]() |
(11)
где - выработка от предыдущего ТО-1,(=0).
![]()
Принимаем количество ТО-1 равное сорока восьми.
По полученным данным составляем годовой и месячный график планово-предупредительных ремонтов (ППР). Графики ППР представлены в таблицах 4 и 5
|
|
||||||||||||||||||||||
| Оборудование |
Инв. номер |
1 квартал |
2 квартал |
3 квартал |
4 квартал |
Количество ремонтов |
Общая продолжительность ремонтов, ч |
|||||||||||||||
| январь |
февраль |
март |
простои |
апрель |
май |
июнь |
простои |
июль |
август |
сентябрь |
простои |
октябрь |
ноябрь |
декабрь |
простои |
ТО-1 |
ТО-2 |
Т |
К |
|||
| ЭО-2621В-3 |
А1-9 |
ТО-2 4ТО-1 |
Т 4ТО-1 |
ТО-2 4ТО-1 |
64 |
ТО-2 4ТО-1 |
К |
5ТО-1 |
96.5 |
ТО-2 4ТО-1 |
ТО-2 5ТО-1 |
ТО-2 4ТО-1 |
28.5 |
ТО-2 5ТО-1 |
ТО-2 4ТО-1 |
Т 5ТО-1 |
67 |
48
|
8
|
2
|
1 |
256 |
| А10-19 |
Т 4ТО-1 |
ТО-2 4ТО-1 |
ТО-2 4ТО-1 |
64 |
К |
5ТО-1 |
ТО-2 4ТО-1 |
96.5 |
ТО-2 5ТО-1 |
ТО-2 4ТО-1 |
ТО-2 5ТО-1 |
30 |
ТО-2 4ТО-1 |
Т 4ТО-1 |
ТО-2 5ТО-1 |
65.5 |
48
|
8
|
2
|
1 |
256 |
|
| А20-29 |
4ТО-1 |
ТО-2 4ТО-1 |
К |
98 |
5ТО-1 |
ТО-2 4ТО-1 |
ТО-2 5ТО-1 |
27 |
Т 4ТО-1 |
ТО-2 5ТО-1 |
ТО-2 4ТО-1 |
65.5 |
Т 4ТО-1 |
ТО-2 5ТО-1 |
ТО-2 4ТО-1 |
65.5 |
48
|
8
|
2
|
1 |
256 |
|
| А30-39 |
ТО-2 4ТО-1 |
Т 4ТО-1 |
ТО-2 5ТО-1 |
62.5 |
ТО-2 4ТО-1 |
ТО-2 4ТО-1 |
К |
98 |
5ТО-1 |
ТО-2 4ТО-1 |
Т 4ТО-1 |
65.5 |
ТО-2 5ТО-1 |
ТО-2 4ТО-1 |
ТО-2 5ТО-1 |
30 |
48
|
8
|
2
|
1 |
256 |
|
| А40-49 |
ТО-2 4ТО-1 |
ТО-2 4ТО-1 |
Т 4ТО-1 |
64 |
ТО-2 5ТО-1 |
ТО-2 4ТО-1 |
ТО-2 5ТО-1 |
30 |
ТО-2 4ТО-1 |
Т 4ТО-1 |
ТО-2 5ТО-1 |
65.5 |
ТО-2 4ТО-1 |
|
5ТО-1 |
96.5 |
48
|
8
|
2
|
1 |
256 |
|
| А50-59 |
ТО-2 4ТО-1 |
ТО-2 5ТО-1 |
4ТО-1 |
28.5 |
Т 4ТО-1 |
ТО-2 5ТО-1 |
ТО-2 4ТО-1 |
65.5 |
Т 4ТО-1 |
ТО-2 5ТО-1 |
ТО-2 4ТО-1 |
65.5 |
К |
5ТО-1 |
ТО-2 4ТО-1 |
96.5 |
48
|
8
|
2
|
1 |
256 |
|
| А60-69 |
ТО-2 5ТО-1 |
ТО-2 4ТО-1 |
Т 4ТО-1 |
65.5 |
ТО-2 5ТО-1 |
ТО-2 4ТО-1 |
Т 4ТО-1 |
65.5 |
ТО-2 5ТО-1 |
ТО-2 4ТО-1 |
К |
99.5 |
5ТО-1 |
ТО-2 4ТО-1 |
ТО-2 4ТО-1 |
25.5 |
48
|
8
|
2
|
1 |
256 |
|
| А70-79 |
ТО-2 5ТО-1 |
ТО-2 4ТО-1 |
ТО-2 5ТО-1 |
30 |
ТО-2 4ТО-1 |
Т 4ТО-1 |
ТО-2 5ТО-1 |
65.5 |
ТО-2 4ТО-1 |
К |
5ТО-1 |
96.5 |
ТО-2 4ТО-1 |
ТО-2 4ТО-1 |
Т 4ТО-1 |
64 |
48
|
8
|
2
|
1 |
256 |
|
| А80-90 |
ТО-2 4ТО-1 |
ТО-2 5ТО-1 |
ТО-2 4ТО-1 |
28.5 |
Т 4ТО-1 |
ТО-2 5ТО-1 |
ТО-2 4ТО-1 |
65.5 |
К |
5ТО-1 |
ТО-2 4ТО-1 |
96.5 |
ТО-2 4ТО-1 |
Т 4ТО-1 |
ТО-2 5ТО-1 |
65.5 |
48
|
8
|
2
|
1 |
256 |
|
Таблица 4 График ППР оборудования на 2011 год
| Оборудова |
Инв. номер |
Числа месяца |
Продолжительность |
Общая продолжительность ремонтов, ч |
|||||||||||||||||||||||||||||||
| 1 |
2 |
3 |
4 |
5 |
6 |
7 |
8 |
9 |
10 |
11 |
12 |
13 |
14 |
15 |
16 |
17 |
18 |
19 |
20 |
21 |
22 |
23 |
24 |
25 |
26 |
27 |
28 |
ТО-1 |
ТО-2 |
Т |
К |
||||
| ЭО-2621В-3 |
А1-9 |
ТО-1 |
Т 8 |
Т |
Т |
Т |
Т |
ТО-1 |
ТО-1 |
ТО-1 |
4ТО-1 |
- |
Т 40 |
- |
46 |
||||||||||||||||||||
| А10-19 |
ТО-2 |
ТО-1 |
ТО-1 |
ТО-1 |
ТО-1 |
4ТО-1 |
ТО-2 |
- |
- |
9 |
|||||||||||||||||||||||||
| А20-29 |
ТО-1 |
ТО-1 1.5 |
ТО-2 |
ТО-1 |
ТО-1 |
4ТО-1 |
ТО-2 |
- |
- |
9 |
|||||||||||||||||||||||||
| А30-39 |
ТО-1 |
ТО-1 |
ТО-1 |
ТО-1 |
Т 8 |
Т 8 |
Т 8 |
Т 8 |
Т 8 |
4ТО-1 |
- |
Т 40 |
- |
46 |
|||||||||||||||||||||
| А40-49 |
ТО-2 |
ТО-1 |
ТО-1 |
ТО-1 |
ТО-1 |
4ТО-1 |
ТО-2 |
- |
- |
9 |
|||||||||||||||||||||||||
| А50-59 |
ТО-1 |
ТО-2 |
ТО-1 |
ТО-1 |
ТО-1 |
ТО-1 |
5ТО-1 |
ТО-2 |
- |
- |
10.5 |
||||||||||||||||||||||||
| А60-69 |
ТО-1 |
ТО-1 |
ТО-2 |
ТО-1 |
ТО-1 |
4ТО-1 |
ТО-2 |
- |
- |
9 |
|||||||||||||||||||||||||
| А70-79 |
ТО-1 |
ТО-1 |
ТО-2 |
ТО-1 |
ТО-1 |
4ТО-1 |
ТО-2 |
- |
- |
9 |
|||||||||||||||||||||||||
| А80-90 |
ТО-2 |
ТО-1 |
ТО-1 |
ТО-1 |
ТО-1 |
ТО-1 |
5ТО-1 |
ТО-2 |
- |
- |
10,5 |
||||||||||||||||||||||||
| Итого |
6 |
6 |
6 |
6 |
9.5 |
9.5 |
9.5 |
9.5 |
9.5 |
6 |
6 |
4.5 |
4.5 |
6 |
9.5 |
11 |
11 |
9.5 |
9.5 |
158 |
|||||||||||||||
Таблица 5 График ППР на Февраль 2011 года
2.3 Расчет численности ремонтного персонала
Объем работ по техническому обслуживанию и текущему ремонту машин определяют исходя из списочного состава обслуживаемого парка машин, трудоемкости выполняемых работ и количества технических обслуживаний и ремонтов.
Объем работ по каждому виду воздействия, чел. ч
Общую трудоемкость первого технического обслуживания, чел. ч; определяем по формуле:
(12)
Общую трудоемкость второго технического обслуживания, чел. ч; определяем по формуле:
(13)
где
- списочное число машин;
- количество технических обслуживаний;
- трудоемкость одного технического обслуживания.
Общая годовая трудоемкость работ для расчета ремонтных средств зоны ТО, чел. ч. определяем по формуле:
(14)
Расчет фондов времени рабочих и оборудования.
Номинальный годовой фонд времени рабочего, ч. определяем по формуле
(15)
где
- число дней в году;
- число выходных дней;
-
число праздничных дней в году;
- число предпраздничных дней в году;
- продолжительность смены в предпраздничный день.
=
1985
Действительный фонд времени рабочего, час, определяем по формуле:
(16)
где
коэффициент, учитывающий потери рабочего времени по уважительным причинам(болезни, административные вызовы и т.д.)
=0.96 – 0.97.

Количество производственных рабочих, чел. определяем по формуле:
(17)
где - годовой объем работ соответствующего вида, чел. ч.
![]()
Число производственных рабочих принимаем равное 10.
Количество вспомогательных рабочих, чел.
(18)
![]()
Число вспомогательных рабочих принимаем равное 2.
Количество инженерно – технических работников, чел.
(19)
где
- количество производственных рабочих, чел.
-количество вспомогательных рабочих, чел.
Число инженерно – технических работников принимаем равное 1.
Число счетно нормировочного состава, чел.
(20)
![]()
Число счетно нормировочного состава принимаем равным 1.
Численность младшего обслуживающего персонала, чел.
(21)
Число младшего обслуживающего персонала принимаем равное 1
Определяем количество рабочих занятых на ТО-1 и ТО-2;
принимаем 7
принимаем 3
где и - годовые суммарные трудозатраты по видам технического обслуживания, чел. ч;
2.4 Расчет и выбор технологического оборудования
Технологическое оборудование эксплуатационных предприятий подразделяется на основное, определяемое расчетом, и вспомогательное, которое подбирают по технологическим соображениям.
Необходимое количество технологического оборудования устанавливают в зависимости от объема работ и фондов времени работы оборудования
Годовой фонд времени работы оборудования, ч.:
(22)
где
- Коэффициент использования оборудования
=0.85-0.9-для сварочных работ
=
0.9-0.98-для грузоподъемного, заправочного,
диагностического оборудования.
=3585.6
Количество технологического оборудования, шт.
(23)
Выбираем оборудование для зоны ТО, список оборудования представлен в таблице 6.
Таблица 6 Оборудование зоны ТО
| Наименование оборудования |
Тип марки |
Количество единиц |
Мощность |
Габаритные размеры |
Занимаемая площадь |
| 1 Мотортестер |
М2-2 |
1 |
0.08 |
550×500 |
0.27 |
| 2 Стенд для проверки дизельной аппаратуры |
КИ-22205-06 |
1 |
5.6 |
1250×959 |
0.11 |
| 3 Верстак слесарный |
ВС-1 |
3 |
- |
1300×740 |
0.96 |
| 4 Нагнетатель смазочный |
С321М |
1 |
0.55 |
595×420 |
0.24 |
| 5 Установка для мойки |
196М |
1 |
36 |
1900×2280 |
0.04 |
| 6 Подъемник канавный для грузовых автомобилей |
П263 |
1 |
3.0 |
940×1070 |
0.04 |
| Дымомер |
МЕТА-01 |
1 |
- |
195×75 |
0.1 |
| Пробник аккумуляторный |
Э-108 |
1 |
- |
170×115 |
0.01 |
| Тиски |
ТС-2 |
1 |
- |
425×200 |
0.085 |
| Ящик для песка |
5133 ГОСНИТИ |
6 |
- |
1000×500 |
0.5 |
| Зарядное устройство |
ЗУ-1М |
1 |
1.5 |
480×320 |
0.15 |
| Комплект ключей гаечных |
И-154 |
1 |
- |
320×140 |
0.14 |
2.5 Определение числа постов технического обслуживания и ремонта
Прежде чем приступить к определению числа постов необходимо определить годовой фонд времени поста, ч
Годовой фонд времени поста определяется по формуле:
(24)
где - количество смен;
- число людей одновременно работающих на посту
человек.
Число универсальных постов для технического обслуживания и ремонта
(25)
где -общая годовая трудоемкость работ
Число универсальных постов принимаем равное 1.
2.6 Расчет площади зоны технического обслуживания
Площади помещений для выполнения работ по техническому обслуживанию и текущему ремонту строительных машин определяют из числа рабочих постов, площади занимаемой машинами, и площади, необходимой для проходов и проездов:
(26)
где -число постов для технических обслуживаний и текущих ремонтов;
- удельная площадь на один пост(машину), ![]()
Для экскаватора вместимостью ковша 0.25
, удельную площадь на один пост принимаем 90
.
![]()
Расчет производственных участков и отделений в зависимости от типа ремонтного предприятия, объема ремонтных работ проводят следующими способами: по рассчитанному станочному оборудованию, по количеству производственных рабочих и по площади пола, занятой оборудованием.
Площадь производственного помещения по удельной площади, приходящейся на одного рабочего, определяют из выражения
(27)
где
-удельная площадь на первого рабочего,
;
-удельная площадь, приходящаяся на каждого последующего рабочего,
;
-число людей одновременно работающих в производственном помещении.
![]()
![]()
Общую площадь участка ТО,
определяем по формуле:
(28)
2.7 Выбор схемы зоны технического обслуживания
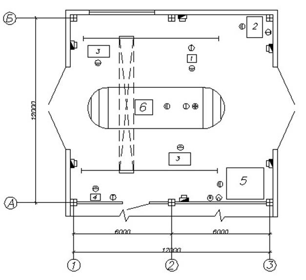
Схемы, конструкции и размеры производственных машиностроительных зданий унифицированы и регламентируются нормами Госстроя СН-118-68. Принимаем общую площадь зоны ТО по ГОСТ равную 144
(12×12)
Схема зоны технического обслуживания представлена на рисунке 2

Рисунок 2 – Схема зоны технического обслуживания
3 Технологический процесс
3.1 Основные сведения о системе планово предупредительного ремонта
Положением о планово предупредительном ремонте экскаваторов устанавливаются:
1. виды и регламенты технического обслуживания и плановых ремонтов;
2. номенклатура основной нормативно-технической документации, необходимая для планирования ремонтных нормативов;
3. принципы организации смазочно-эмульсионного хозяйства;
4. принципы организации учета и движения оборудования;
5. методы учета и контроля за соблюдением действующих правил и норм по техническому обслуживанию, ремонту и эксплуатации горного оборудования.
Основными нормативно-техническими материалами, определяющими порядок проведения технического обслуживания и текущего ремонта, является эксплуатационная документация. А основными нормативно-техническими материалами, устанавливающими технологию производства капитального ремонта, является ремонтная документация, разрабатываемая заводами-изготовителями.
Ремонт экскаватора по системе ППР предусматриваются следующие методы:
1. послеосмотровый
2. периодический
3. стандартный
Ремонт экскаваторов: послеосмотровый метод
Ремонт экскаваторов при послеосмотровом методе начинается с составления плана на основе сведений о состоянии оборудования, полученных путем его осмотра. При осмотре устанавливается характер требуемого ремонта экскаватора, сроки его выполнения и
примерные объемы. Интервалы, через которые должны выполняться ремонты, их содержание и объем заранее не планируются. Планированию подлежат лишь интервалы между осмотрами.
Недостатком этого метода является то, что оценка состояния машины, сроки и объемы ремонтов зависят от субъективных особенностей лиц, производящих ремонт экскаватора. Кроме того, затруднительно планировать ремонты на длительные сроки, так как заранее неизвестно время остановки машины, объем ремонта, потребность в запасных частях, материалах и инструментах. Ремонт экскаваторов послеосмотровым методом целесообразно применять для эпизодически используемого и мало загруженного оборудования, особенно когда отсутствует достаточно точный учет отработанного времени или выполненных объемов работ.
Ремонт экскаваторов: периодический метод
Ремонт экскаваторов методом периодических ремонтов заключается в том, что очередные осмотры и ремонты производят в заранее установленные сроки с учетом работы оборудования и его состояния. При этом осмотры проводят не для выполнения необходимого ремонта и установления его вида, как в предыдущем случае, а для выявления деталей, подлежащих ремонту, замене с целью заблаговременного изготовления новых и выполнения профилактического ремонта.
Ремонт экскаваторов при этом методе начинается с планирования продолжительности интервалов между ремонтами, последовательности чередования определенных их видов и объем ремонтных работ, который определяют путем оценки ремонтной сложности объекта. Содержание ремонтов не регламентируется. Подлежащие при их выполнении работы определяются состоянием оборудования. Следовательно, при этом методе также невозможно заранее точно спланировать потребность в запасных частях, материалах, хотя ориентировочно такие данные можно применять на основании предыдущего ремонта экскаватора. Ремонт экскаватора данным методом широко применяется для экскаваторов, работающих при переменных режимах и условиях эксплуатации.
Ремонт экскаваторов: стандартный метод
Ремонт экскаваторов стандартным методом заключается в проведении ремонта в определенные, заранее установленные сроки с принудительной заменой при каждом ремонте определенных деталей независимо от их состояния. Планированию подлежат продолжительность межремонтных периодов, объемы и содержание ремонтных работ. Недостатком метода является его высокая стоимость, вызванная тем, что замена деталей производится при невыработанном ресурсе. Для внедрения метода необходимо знать точные ресурсы всех элементов горных машин. Метод стандартных ремонтов целесообразно применять для машин, работающих при установившемся режиме, бесперебойность работы которых имеет особенно важное значение для предприятия.
3.2 Процесс технического обслуживания
Экскаваторы, поступающие с завода-изготовителя, снабжаются инструкцией по техническому обслуживанию и эксплуатации, в которой излагаются основные требования применительно к конструктивным особенностям машины.
Для обеспечения постоянной и длительной работы экскаватора, а также повышения экономичности и производительности проводится техническое обслуживание. Это система мероприятий, обеспечивающих нормальные условия работы деталей и узлов машины до достижения ими предельно допустимого износа.
Техническое обслуживание всех видов двигателей проводится в соответствии с инструкцией по их эксплуатации. В зависимости от состояния машины допускаются отступления от указанной периодичности в пределах 10% .
ЕТО включает следующие работы: очистка машины, техническое обслуживание двигателей и агрегатов, наружный осмотр узлов и механизмов, устранение неисправностей. Особое внимание обращается на состояние тормозов узлов и фрикционов; проверяется затяжка и стопорение всех доступных крепежных деталей, исправность электрооборудования, состояние системы управления, спуск конденсата из секционного охладителя и
масловлагоотделителей, продувка пневматических камер и цилиндров, состояние заправочных емкостей и смазка деталей согласно карте и схеме смазки, наличие и комплектность инструментов; при температуре ниже +5°С в случае длительных остановок сливается вода.
При ТО-1 выполняется ЕТО, очередное техническое обслуживание двигателя; осматриваются, проверяются и регулируются главная муфта, фрикционы реверсивного механизма, тормоза;
проверяются все доступные для осмотра болтовые соединения; смазываются узлы и детали согласно карте и схеме смазки.
При ТО-2 осуществляется ТО-1, очередное техническое обслуживание двигателя и других агрегатов; шарнирные соединения ковша-рукояти, рукояти-стрелы, стрелы, платформы; контролируются крепления узлов и осей рабочего оборудования, режущих кромок рабочего органа, деталей кабины; проверяются все сварные соединения, гидравлическая системе на герметичность; смазка деталей и узлов выполняется согласно схеме смазки; промываются топливные и
масляные баки; сменяется масло во всех емкостях; проверяется состояние рычагов управления, надежность крепления, промываются и регулируются все узлы экскаватора.
Техническое обслуживание гидравлических распределителей.
Срок службы экскаватора обеспечивается нормальной работой предохранительных клапанов. Поэтому в соответствии с инструкцией производится проверка давления рабочей жидкости в гидросистеме и при необходимости регулировка клапанов. Давление проверяется специальным устройством при включении насосной установки и одного из силовых цилиндров. В момент присоединения устройства к распределителю насосная установка отключается.
Гидрораспределители следует содержать в чистоте; не допускать коррозии деталей и обледенения выступающих частей золотников; устранять подтекание рабочей жидкости; своевременно производить замену изношенных уплотнений и прокладок, подтяжку креплений.
При техническом обслуживании насосов проверяется надежность креплений, отсутствие утечки масла; через каждые 100 часов работы—содержание в масле воды и механических примесей. Заменяется масло первый раз через 10 часов работы, второй — через 100 часов, в дальнейшем — через каждые 500 часов, но не реже одного раза в год.
Пуск насоса производится только на холостом ходу при заполнении рабочей жидкостью гидросистемы. Уровень масла проверяется в редукторе перед пуском и в процессе работы щупом.
Техническое обслуживание фильтров.
Для обеспечения нормальной работы экскаватора необходимо фильтры очищать от засорения: в начале через 60 часов, а затем через каждые 240 часов работы. Бак вскрывается только в не запыленном помещении. Наружные поверхности его и стаканов фильтров предварительно очищаются, промываются керосином и насухо вытираются.
Фильтры тонкой очистки несколько раз продуваются сжатым воздухом и промываются бензином. Перед сборкой промываются все детали бака и сам бак внутри.
Рабочей жидкостью гидропривода экскаваторов служат минеральные масла. Для экскаваторов ЭО-2621 рекомендуется дизельное масло Дп-11 летом и Дп-8 — зимой. Марки масел всегда указываются в инструкции, прилагаемой к экскаватору.
Масло, предназначенное для заливки в гидросистему, должно быть в опломбированной таре и снабжено паспортом. Разрешается заливать в гидросистему масло и из общей тары, но с предварительной проверкой его. Категорически запрещается применять масло, бывшее в употреблении, с содержанием механических примесей, а также смесь различных сортов.
Заправляется гидросистема только в чистом помещении из специально предназначенной тары. Бак заливается до метки «верхний уровень» на маслоуказателе. Затем двигатель запускается, чтобы рабочей жидкостью заполнились силовые цилиндры, гидромоторы и другие узлы, и масло доливается до меток. Запуск двигателя с работающими насосами при пустом баке запрещается.
Сменяется масло в гидросистеме первый раз через 240 часов работы, а в дальнейшем — 2400 часов. Внеочередная смена производится при попадании в масло воды, механических примесей и после нагрева его свыше 90° С. При смене масла шланги и трубопроводы рекомендуется разъединить по штуцерам в одном наиболее низким месте. Сливается масло перемещением рычагов управления последовательно в обе стороны относительно нейтрального положения. Заменяется масло в гидросистеме в том случае, когда экскаватор длительное время не работал.
4 Техника безопасности и охрана окружающей среды
Охрана труда - это система законодательных актов и соответствующих им социально-экономических, технических, гигиенических и организационных мероприятий, обеспечивающих безопасность, сохранение здоровья и работоспособность человека в процессе труда. Охрана труда - это дисциплина, занимающаяся выявлением и изучением производственных опасностей, профессиональных негативных воздействий и разработкой методов их предотвращения или ослабления. Это будет способствовать устранению несчастных случаев на производстве и профессиональных заболеваний работающих, аварий и пожаров.
При ТО автомобилей возможно возникновение различных ОВПФ: движущиеся автомобили, повышенная загазованность помещений отработавшими газами автомобилей. Повышенный уровень шума при испытании двигателей, опасности поражения электрическим током при работе с электроинструментом и др. При выполнении слесарных работ особое внимание следует уделять организации труда, состоянию инструмента и соблюдению правил безопасной работы. На рабочем месте слесаря по ремонту автомобиля должны быть соответствующее технологическое оборудование, приспособление и инструмент.
Часто слесарям для выполнения сборочно-разборочных работ приходится пользоваться верстаками. Для хранения инструмента в верстаках предусмотрены ящики. Рабочую поверхность верстака покрывают листовым металлом, линолеумом. Для предупреждения травмирования рабочих следует устанавливать сетчатую металлическую разделительную перегородку. Высота перегородки должна быть не менее 750 мм.
При работе на асфальтобетонном полу у верстака для предупреждения простудных заболеваний располагают деревянную решетку.
Все рабочие места должны соблюдаться в чистоте, не заграждаться деталями, оборудованием и инструментом и т.п.
В помещениях зоны ТО предусмотрены системы отопления, вентиляции, внутреннего водопровода и вентиляции.
Ручной инструмент должен быть в исправном состоянии, чистым и сухим. Его выбраковка, как и выбраковка приспособлений, должна производиться не реже одного раза в месяц.
Молотки и кувалды должны иметь бойки с гладкой, слегка выпуклой поверхностью, не косой и не сбитой, без сколов, выбоин, трещин и заусенцев. Их рукоятки и рукоятки других инструментов ударного воздействия должны быть изготовлены из древесины твердых и вязких лиственных пород без сучков и косослоя или синтетических материалов, обеспечивающих эксплуатационную прочность и надежность в Работе. Длину рукоятки выбирают в зависимости от массы инструмента: для молотка 300-400 мм, для кувалды 450-900 мм.
Отвертки должны иметь прямой стержень. Так как при кривом стержне возможны соскальзывание с головки винта или шурупа и травмирование руки. Рабочая часть должна быть с ровными плоскими боковыми гранями и не иметь сколов.
Гаечные ключи должны иметь подобраны по размерам гаек и болтов. Размер зева ключей не должен превышать размеров головок болтов и граней гаек более чем на 0,3 мм. Гаечные ключи не должны иметь трещин. Забоин, заусенцев, непараллельности губок и выработки зева. Запрещается отвертывать гайки ключами больших размеров с подкладыванием металлических пластинок между гранями болтов и гаек и губками ключа и удлинять рукоятки дополнительными рычагами, другими ключами и трубами. Острогубцы не должны иметь выщербленных рукояток. Трещин и заусениц. Губки острозубцев должны быть острыми, без повреждений, а губки плоскогубцев должны иметь несработанную насечку.
Правила техники безопасности.
Перед началом работы:
• Надеть и тщательно заправить одежду.
• Проверить исправность оборудования, приспособлений, инструментов, ограждений.
• Проверить отсутствие трещин у бойков молота, надежность их крепления и правильность взаимного расположения.
• Проверить состояние освещения.
• О всех замеченных недостатках и неисправностях, обнаруженных при осмотре, доложить мастеру.
Во время работы:
• Не допускать на рабочее место лиц, непосредственно не участвующих в работе и лиц, не имеющих разрешение на пользование данным оборудованием.
• При работе применять только те приспособления и инструмент, которые предусмотрены технологией.
• Содержать рабочее место в чистоте.
• При перерывах в работе, даже кратковременных, отключать электрооборудование от сети.
После окончания работы:
• Остановить работающее оборудование, выключить электродвигатель.
• Очистить оборудование от загрязнений и смазать в положенных по инструкции местах.
• Очистить от загрязнений инструмент и приспособления и уложить на стеллаж в предназначенное для них место.
• Доложить мастеру о замеченных во время работы неисправностях оборудования и недостатках.
Для непосредственной организации работ по созданию здоровых и безопасных условий труда работающих, предупреждению производственного травматизма в НТТП создана служба охраны труда.
Инженер по охране труда оказывает подразделениям предприятий методическую помощь в разработке инструкций по охране труда, изучает причины производственного травматизма и профессиональных заболеваний и анализирует эффективность проводимых мероприятий по их предупреждению.
В обязанности мастера входит обеспечение безопасного состояния производственных и вспомогательных помещений, открытых и закрытых стоянок, оборудования, инструмента, инвентаря, транспортных и грузоподъемных средств, наличия и направленности защитных и предохранительных устройств. Средств индивидуальной защиты.
Также контролирует соблюдение рабочими норм, правил, инструкций, приказов и указаний по охране труда, своевременную химчистку, стирку и ремонт спецодежды. Мастера обязаны не
допускать работников к самостоятельной работе без предварительного инструктажа. Обучения и проверки знаний по безопасным приемам выполнения данной работы. Кроме того, они обязаны выбраковывать инструмент и обеспечивать рабочих исправным инструментом.
На слесарных верстаках должны быть установлены защитные экраны, предназначенные для защиты окружающих от мусора возникающего во время работы на верстаке.
У каждого оборудования, требующего особый навык для работы на нем, должна быть вывешена табличка с указанием лица, ответственного за эксплуатацию данного оборудования.
При работе с электроинструментом следует соблюдать меры электробезопасности.
Из средств индивидуальной защиты слесарю по ремонту автомобилей выдают хлопчатобумажный костюм и комбинированные рукавицы. В зимнее время при наружных работах дополнительно выдают хлопчатобумажную куртку и брюки на утепленных подкладках. Безопасность слесарных работ можно обеспечить только при строгом, обязательным выполнении инструкций по охране труда. Все электростанки должны быть заземлены.
Освещение
Организация рационального освещения рабочих мест является одним из основных вопросов охраны труда. При неудовлетворительном освещении зрительная способность глаза снижается.
Естественное освещение помещений осуществляется прямым или отраженным светом неба, проникающим через световые проемы.
По конструктивным особенностям естественное освещение подразделяется на боковое» верхнее и комбинированное.
Боковое освещение осуществляется через световые проемы и окна в наружных стенах, верхнее - через световые фонари и проемы в покрытии. Комбинированное освещение применяется в помещениях, где выполняются точные зрительные работы.
По функциональному назначению искусственное освещение подразделяется на рабочее, аварийное, эвакуационное, охранное и дежурное.
Рабочее освещение следует предусматривать для всех помещений и зданий, а также для участков открытых пространств, предназначенных для работы, прохода людей и движения транспорта.
Естественный свет обладает значительной биологической и гигиенической ценностью для человека. Благодаря высокой диффузности он наиболее благоприятен для зрительной работы.
Искусственное освещение характеризуется показателем освещенности, коэффициентом пульсации освещенности и показателем ослепленности, неравномерностью освещения.
Вентиляция
Вентиляция предусматривается для обеспечения в производственных, вспомогательных и бытовых помещениях АТП параметров воздушной среды, удовлетворяющих санитарно-гигиеническим требованиям.
В основном на АТП проектируется общеобменная механическая приточно-вытяжная вентиляция, местная вытяжная и в редких случаях местная приточная вентиляция. При проектировании вентиляции должны выполняться требования СНиП 11-33-75 «Отопление, вентиляция и кондиционирование воздуха. Нормы проектирования и ГОСТ 12.4.021-75 «ССБТ Системы вентиляционные. Общие требования.».
Общеобменную механическую приточно-вытяжную вентиляцию производственных помещений без естественного проветривания необходимо проектировать, предусматривая не менее двух приточных и двух вытяжных вентиляционных установок, обеспечивающих при выключении одной из них производительность не менее 50 % требуемого воздухообмена. Если запроектированы одна приточная и одна вытяжная установки, то должны
иметься дополнительные резервные вентиляторы, включаемые автоматически при остановке основных вентиляторов, или система данного помещения должна быть соединена коллектором с системами соседних помещений для обеспечения не менее 50 % требуемого воздухообмена при остановке вентилятора основной системы.
Общеобменная вытяжная и местная вытяжная вентиляция (местные отсосы) должны быть отдельными.
При выполнении слесарно-механических работ необходимо поддерживать температуру помещения не ниже +16° С.
Противопожарная безопасность
Пожарная безопасность АТП должна отвечать требованиям, строительным нормам и правилам, типовым правилам пожарной безопасности для предприятий автомобильного транспорта.
Основными причинами возникновения пожаров на АТП являются неосторожное обращение с огнем, нарушение правил пожарной безопасности, нарушение режима эксплуатации устройств, нарушение правил хранения легковоспламеняющихся и горючих жидкостей, самовозгорание смазочных и обтирочных материалов.
В качестве первичных средств пожарной защиты используют широкий ассортимент различных огнетушащих средств. К наиболее распространенным относятся следующее:
Вода - оказывает разбавляющее и охлаждающее действие. Ее используют, как в чистом виде, так и с добавками различных поверхностно-активных веществ.
Огнетушащие пены - получают смешиванием газа и жидкости. Различают химическую и воздушно-механическую пены. Огнетушащие пены используют для тушения легковоспламеняющихся и горючих жидкостей, твердых горючих веществ.
Порошковые Огнетушащие составы - также в основном приводят к торможению реакции горения, а, кроме того, они вызывают разбавление горючей среды.
Для локализации и ликвидации небольших загораний и пожаров на начальной стадии их развития применяют первичные средства тушения, к которым относятся переносные и передвижные огнетушители, ящики с песком, асбестовые покрывала, резервуары с водой и др.
В данной зоне ТО находится один пожарный щит, расположенный в легкодоступном месте для всех рабочих зоны. На этом щите, окрашенном в красный цвет, имеется: ведро, имеющее
конусную фору, большой топор, штыковая лопата, двухсторонний лом, длинный специальный крюк. Возле пожарного шита, находится пожарный ящик, заполненный мелкозернистым, сухим песком, предназначенным для тушения огня. Ящик должен находится в заполненном состоянии, поэтому при необходимости песок досыпают.
Для оповещения о пожаре на АТП используют электронную пожарную сигнализацию, телефонную связь и на отдельных объектах радиосвязь на ультракоротких волнах. Связь автоматического действия, которая применяется, является более совершенной, т.к. она позволяет автоматически обнаружить возникший пожар и передать сообщение о нем в ближайшую пожарную часть. В ней используются автоматические извещатели, которые делятся на тепловые, дымовые, пламенные (световые), ультразвуковые и комбинированные.
Безопасность людей, сохранение транспортных средств при пожаре зависят от своевременной и правильной их эвакуации. Для эвакуации людей разрабатывают планы эвакуации и намечают эвакуационные пути с учетом расположения эвакуационных выходов. Вывешивают планы эвакуации из помещений на видных местах..
Для данной зоны основным эвакуационным выходом являются гаражные ворота.
Для устранения условий, которые могут привести к пожарам и загораниям, необходимо все электроустановки оборудовать аппаратами защиты от токов короткого замыкания. Соединять и заделывать концы жил проводов и кабелей необходимо при помощи прессовки, сварки, пайки или специальных зажимов.
Все корпуса двигателей. Пусковой аппаратуры, светильников должны быть заземлены. В качестве заземляющих магистралей используются металлические конструкции здания, стальные трубы электропроводки и специально прокладываемая стальная полоса 4...40 мм. Сопротивление заземляющего устройства не должно превышать 4 Ом. Для заземления в осветительных установках используется нулевой рабочий провод сети.
При извещении рабочего персонала о пожаре не должно возникнуть паники. Все должны двигаться по задание запланированных маршрутах проходящих от переходной канавы к
воротам. Если есть возможность локализовать пожар в ручную, до приезда пожарной службы, необходимо принять всевозможные мера, но с условием что, не будет создана опасность для жизни рабочих данного АТП.
Охрана окружающей среды
Проблема охраны окружающей среды и рационального использования природных ресурсов является одной из наиболее актуальных среди глобальных общечеловеческих проблем, так как от ее решения зависит жизнь на земле, здоровье и благосостояние человечества.
Определенную долю в загрязнение окружающей среды вносят эксплуатируемые на АТП автомобили. На долю автомобильного транспорта приходится 13,3 % общего выброса загрязняющих веществ в атмосферу. В сточных водах содержатся эмульгированные нефтепродукты, отработанные моечные и охлаждающие растворы, щелочные, кислотные. Термические и гальванические сбросы.
В нашей стране имеется система природоохранительного законодательства. Также существует система контроля за состоянием окружающей среды. При нарушении закона об окружающей среде людей, ответственных за состояние среды привлекают к административной ответственности.
Для снижения вредного воздействия на окружающую среду при его проектировании, строительстве и эксплуатации должны выполняться природоохранительные мероприятия.
Вокруг предприятия должна быть санитарно-защитная зона шириной не менее 50 м. Эту зону озеленяют и благоустраивают. Зеленые насаждения обогащают воздух кислородом, поглощают углекислый газ, шум, очищают воздух от пыли и регулируют микроклимат.
Производство с вредными выделениями сосредоточено на окраине города.
С целью поддержания чистоты атмосферного воздуха в пределах норм предусматривает предварительную очистку вентиляционных и технологических выбросов с их последующим рассеиванием в атмосфере.
Сокращение вредных выбросов двигателями автомобилей можно добиться различными путями и, прежде всего поддержание исправного технического состояния автомобиля. На АТП двигатели должны регулироваться на токсичность и дымность отработавших газов. Контроль при эксплуатации автомобилей на содержание СО и СН должен проводиться после ремонта агрегатов, систем и узлов, влияющих на содержание СО и СН.
Для сокращения расхода воды в последнее время широко внедряют системы оборотного водоснабжения, которые позволяют повторно использовать бывшую в употреблении воду после ее очистки в специальных устройствах. В АТП главным образом применяют механические, химические, физико-химические и биологические методы очистки.
Заключение
В течение всего времени эксплуатации состояние экскаватора контролируют по определенной системе.
В процессе эксплуатации качество работы экскаваторов снижается главным образом из-за износа, деформации и полного разрушения отдельных деталей. При этом нарушается регулирование, изменяются зазоры сопряжений, ослабевает крепление деталей, вследствие чего теряется точность выполнения операций, снижается производительность.
Для поддержания экскаваторов в рабочем состоянии проводят следующие основные мероприятия: организуют систематическое техническое обслуживание машин путем своевременной очистки и протирки их, регулирования, смазывания, заправки водой и топливом; устраняют возникшие неисправности, заменяя или ремонтируя детали и узлы. Первая часть этих мероприятий предусматривает организацию технического обслуживания, вторая — организацию ремонта.
В нашей стране принята единая для всех строительных организаций система технического обслуживания и ремонта машин; которая представляет собой комплекс взаимосвязанных положений и норм, определяющих организацию и порядок проведения работ по техническому обслуживанию и ремонту изделий для заданных условий эксплуатации с целью обеспечения показателей качества, предусмотренных в нормативных документах. Строительные машины направляют на техническое обслуживание и ремонт по разработанному графику после того, как они отработают установленное число часов. Техническое обслуживание выполняют в обязательном порядке, а ремонт — по необходимости.![]()
Список используемых источников
http://hidrotechnik.ru/klas.html
http://www.techstory.ru/techinfo/eo2621v3_tech.htm
Радичев В.А. Грузовые автомобили 2001 г.
Беднарский В.В. ТО и ремонт автомобилей 1999 г.
Карагодин В.И. Ремонт автомобилей 2003 г.
Устинов А.Н. Эксплуатация автомобилей 1992 г.
Ананьев С.И. Автомобильный транспорт 1996 г.
Виноградов В.Н. Основное положение по ТО и ремонту 2004 г.
Каталог инструментов – Оборудование оснастка и инструмент автомеханика.
Савинов А.М. Проектирование помещений на АТП 2000 Г.
Митюхин Н.Н. Типовая инструкция по охране труда и технике безопасности 2008





ние