| Скачать .docx |
Реферат: Контрольная работа по Строительству 2
Завдання 1
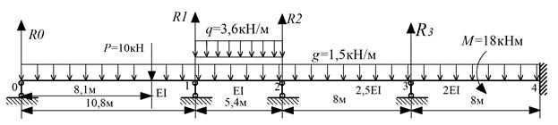
Сходні данні:
.
Розрахункова схема представлена на (рис. 1).

Рис.1
1.1 Ступінь статичної невизначуваності (розрахункова схема (рис.1)):
![]()
де С – кількість опорних в’язей. С= 7 – число в’язей. Т
Тому ступінь статичної невизначуваності: ![]()
Таким чином , задана балка має 4 «зайві» в’язі.
1.2 Виконуємо розрахунок на постійне навантаження
за допомогую рівнянь трьох моментів.
Розрахункову схему нерозрізної балки (рис.1) замінімо стандартною схемою (рис.2,а).

Рис.2
Рівняння трьох моментів длязаданоїсхемимаютьвигляд:
![]()



Тут позначено:
- фіктивні опорні реакції на опорі і
в прогонах li
ili
-1
відповідно.
Для визначення фіктивних опорних реакцій необхідно побудувати епюри від зовнішнього навантаження в цих прогонах, як окремих однопрогонових балках (рис.2в).
Будуємо епюри MF , QF і обчислюємо фіктивні опорні реакції.
Фіктивні реакції опор визначаємо з додатку 1 [1].
Ділянка I |
Будуємо епюри MF , QF . Обчислюємо фіктивні опорні реакції:
|
Ділянка II |
Будуємо епюри MF , QF . Обчислюємо фіктивні опорні реакції:
|
Ділянка III |
Будуємо епюри MF , QF . Обчислюємо фіктивні опорні реакції:
|
Ділянка III |
Будуємо епюри MF , QF . Обчислюємо фіктивні опорні реакції:
|
Після підстановки в рівняння трьох моментів маємо:
![]()



Остаточномаємо:
![]()
![]()
![]()
![]()
Вирішуємосистему рівнянь трьох моментів вMathcadeі отримуємо:

Строїмо огібну епюру моментов (рис.2 г).
Складуємо епюру від зовнішнього навантаження в прогонах балки (рис.2в) з огібной епюрою моментів (рис.2д) і будуємо епюру
(рис.2е).
1.3 Обчислення поперечних сил
Формула для обчислення поперечних сил у довільному перерізі будь-якого прогону нерозрізної балки:
,
де
епюра від зовнішнього навантаження в прогонах, як окремих однопрогонових балках (рис.2г).
Зводимо обчислення поперечних сил у табл.1.
Таблиця 1
| QI , кН | QII , кН | QIII , кН | QIV , кН | ||||
| 8,88 | -17,33 | 15,7 | -11,9 | 14,2 | -14,6 | 8,9 | -3,1 |
Будуємо епюри
(рис.2е).
2. Розрахунок нерозрізної балки на постійне навантаження.

Рис.3
Обчислення фіктивних реакцій
![]()
![]()
![]()
![]()
![]()
Перевірка опорних реакцій:
; ![]()
![]()
; ![]()
Рівняння 4х моментів:
![]()




Вирішуємосистему рівнянь трьох моментів вMathcadі отримуємо:
![]()
Зводимо обчислення моментів для нерозрізної балки на постійне навантаження у табл.2.
Таблиця 2
№ ділянки |
0 | 1/4l | 1/2l | 3/4l | l |
| 1 | 0.000 | 12.343 | 13.750 | 4.223 | -16.240 |
| 2 | -16.240 | -8.323 | -3.140 | -0.690 | -0.974 |
| 3 | -0.974 | 5.816 | 6.607 | 1.397 | -9.813 |
| 4 | -9.813 | -0.133 | 3.547 | 1.227 | -7.093 |
Зводимо обчислення поперечних сил для нерозрізної балки на постійне навантаження у табл.3.
Таблиця 3
№ ділянки |
0 | 1/4l | 1/2l | 3/4l | l |
| 1 | 6.596 | 2.546 | -1.504 | -5.554 | -9.604 |
| 2 | 6.877 | 4.852 | 2.827 | 0.802 | -1.223 |
| 3 | 4.895 | 1.895 | -1.105 | -4.105 | -7.105 |
| 4 | 6.340 | 3.340 | 0.340 | -2.660 | -5.660 |
Будуємо епюри
і
від постійного навантаження (рис.3).
3. Розраховуємо балку на тимчасові навантаження методом моментних фокусів.
3.1 Обчислюємо фокусні співвідношення за формулами
і
. (1)
Обчислимо фокусні співвідношення для розрахунковоїсхеми (рис.4)

Рис.4


3.2 Визначаємо опорні моменті на лівому и правому кінцях навантаженого прогону за формулами
(1)
де -
- фіктивні опорні реакції на опорі і
в прогоні li
.
Перша розрахункова схема від навантаження Р (рис.5а). Фіктивні реакції опор визначаємо з додатку 1 [1], та маємо


Тоді з (1) маємо

Друга розрахункова схема від навантаження q (рис.6a). Фіктивні реакції опор визначаємо з додатку 1 [1], та маємо
![]()

Третя розрахункова схема від навантаження М (рис.7a). Фіктивні реакції опор визначаємо з додатку 1 [1], та маємо
![]()

3.3
Обчислюємо опорні моменти через ліві фокусні співвідношення (
)
Третя розрахункова схема від навантаження М (рис.7a).
3.4
Обчислюємо опорні моменти через праві фокусні співвідношення (
)
Перша розрахункова схема від навантаження Р (рис.5а).
Друга розрахункова схема від навантаження q (рис.6a).
Будуємо епюри
від кожного тимчасового навантаження окремо (рис.5в),6в), 7в).

Рис.5

Рис.6

Рис.7
3.5 Обчислення поперечних сил
Формула для обчислення поперечних сил у довільному перерізі будь-якого прогону нерозрізної балки:
.
Зводимо обчислення поперечних сил у табл.2.
Таблиця 2
| QI , кН | QII , кН | QIII , кН | QIV , кН | |||
| НавантаженняP | 3,09 | -0,653 | 0,2 | |||
| 1,34 | -8,66 | |||||
| Навантаження q1 | -0,29 | 1,2 | -0,37 | |||
| 8,88 | -10,56 | |||||
3.6 Обчислення ординат огинаючих епюр
Ординати епюри M у I прольоті
| Навантаження | 0 | 1/4l | 1/2l | 3/4l | l | |
| Постійне | 0.000 | 12.343 | 13.750 | 4.223 | -16.240 | |
| Тимчасове | 1 | 0.000 | 3.607 | 7.213 | 10.820 | -12.570 |
| 2 | 0.000 | -0.775 | -1.550 | -2.325 | -3.100 | |
| 3 | 0.000 | -0.019 | -0.038 | -0.056 | -0.075 | |
| Розра-хункові | Mmax | 0.000 | 15.949 | 20.963 | 15.043 | -16.240 |
| Mmin | 0.000 | 11.549 | 12.163 | 1.841 | -31.985 | |
Ординати епюри Q у I прольоті
| Навантаження | 0 | 1/4l | 1/2l | 3/4l | 3/4l | l | |||
| Постійне | 6.596 | 2.546 | -1.504 | -5.554 | -5.554 | -9.604 | |||
| Тимчасове | 1 | 1.340 | 1.340 | 1.340 | 1.340 | -8.660 | -8.660 | ||
| 2 | -0.290 | -0.290 | -0.290 | -0.290 | -0.290 | -0.290 | |||
| 3 | -0.070 | -0.070 | -0.070 | -0.070 | -0.070 | -0.070 | |||
| Розра-хункові | Qmax | 7.936 | 3.886 | -0.164 | -4.214 | -5.554 | -9.604 | ||
| Qmin | 6.236 | 2.186 | -1.864 | -5.914 | -14.574 | -18.624 | |||
Будуємо огинаючи епюри
(рис.8)

Рис8
Будуємо огинаючи епюри
(рис.9).
![]()
![]()

Рис.9
Література
1. В.А. Баженов, О.В.Шишов Будівельна механіка, Київ, КНУАБ, 2008.



