| Скачать .docx |
Курсовая работа: Проектирование предприятий по производству кондитерских изделий
КУРСОВАЯ РАБОТА
на тему: «Проектирование предприятий по производству кондитерских изделий»
Киров 2011
Содержание.
Оглавление
1.1 Общие сведения………………………………………………………….5
1.2 Генеральный план предприятия………………………………………...6
1.3 Требования к устройству зданий и сооружений.
2.Состав и технологическая связь помещений предприятия. 11
3.Требования к устройству помещений производственного здания. 15
4.Санитарно-технические требования к помещениям. 17
4.1 Требования к водоснабжению и канализации………………………..17
4.2 Требования к вентиляции, кондиционированию, отоплению, освещению помещений и условиям труда работающих……………………...19
4.3 Требования к содержанию помещений и оборудования…………….22
Введение.
Кондитерская промышленность является важной отраслью пищевой индустрии. Она вырабатывает пищевые продукты высокой калорийности и усвояемости.
Кондитерская промышленность России включает около 1400 предприятий, в том числе 178 кондитерских фабрик (70 из них – предприятия средней и большой мощности) и более 1200 кондитерских цехов при хлебозаводах и пищекомбинатах.
Кондитерское производство отличается широким ассортиментом изделий (более 3000 наименований). Для него характерно многообразие технологических схем и оборудования. Все кондитерские изделия делят на две группы: сахарные и мучные. Для выработки каждой подгрупп изделий используется не только определенный набор сырья, но и различные методы его обработки с учетом состава и физико-химических свойств полуфабрикатов и качественных показателей готовых изделий.
Развитие всех отраслей неразрывно связано с проектированием, которое предопределяет технический уровень производства и эффективность капитальных вложений. [3]
Все строения можно подразделить на здания и сооружения. Здания, в свою очередь, подразделяются на гражданские (жилые и общественные) и производственные (промышленные и сельскохозяйственные). К сооружениям относят инженерные постройки (объекты) предназначенные для выполнения каких-либо технических задач.
Строительное направление включает в себя решение следующих основных задач:
1) расчет и проектирование промышленных и гражданских зданий I и II уровней ответственности (сооружений) различного назначения в кирпичном, каркасном, легкосборном исполнении;
2) разработка архитектурно-планировочных решений зданий (сооружений) и генпланов размещения объекта;
3) проверка несущей способности строительных конструкций;
4) организация строительства (реконструкции) объектов строительства, ориентированная на подрядчика;
5) инженерное обеспечение зданий (сооружений) и рабочих мест: связь, сигнализация, освещение, отопление, вентиляция, кондиционирование, водоснабжение и т.д.;
6) проектирование автодорог, ж/д тупиков и др.;
7) проектирование вспомогательных зданий и сооружений, административные и бытовые корпуса, столовые, гаражи, проходные, прачечные и т.д. [7]
1. Общая часть
1.3 Общие сведения.
Кондитерские фабрики малой мощности производят до 12 тыс. кондитерских изделий в год.
На кондитерских предприятиях малой мощности возможно вырабатывать любой вид кондитерских изделий. [2]
Все кондитерские изделия разделяются на два основных вида – сахаристые и мучные.
Сахаристые: карамель, конфеты мягкие, шоколад и шоколадные изделия, драже, пастило-мармеладные изделия, халва, ирис, восточные сладости.
Мучные: печенье, пряники, торты, пирожные, кексы, вафли. (прохор)
Данная фабрика относятся к универсальным (ассортиментным) кондитерским предприятиям, так как выпускает разнообразный и широкий ассортимент кондитерских изделий и имеющие в своем составе несколько производств (карамельное, конфетное, бисквитное, пастило-мармеладное, дражейное и пр.). Это наиболее рациональный тип предприятий, на которых реализованы передовые достижения эксплуатации поточно-механизированных линий. Такие предприятия имеют единое складское, энергетическое, транспортное и ремонтные службы.
Достоинством фабрик универсального типа является возможность одновременной отправки в торговую сеть кондитерских изделий в широком ассортименте без предварительной подсортировки на промежуточных торгово-складских базах. [3]
1.2 Генеральный план предприятия
Генеральный план предприятия в широком смысле представляет собой комплексное решение вопросов размещения всех зданий, сооружений и устройств предприятия в горизонтальной и вертикальной плоскостях, сети транспортных и инженерно-технических коммуникаций, организации обслуживания и охраны предприятия и благоустройства территории.(мамонт)
Застройка и планировка территории должны увязываться с застройкой и планировкой соседних предприятий и прилегающих жилых районов города с соблюдением санитарно-защитных зон.
Кондитерские фабрики относятся к промышленным предприятиям, располагаемым в городах. В санитарном отношении они являются безвредными. [4]
В генеральных планах предприятий следует предусматривать:
а) функциональное зонирование территории с учетом технологических связей, санитарно-гигиенических и противопожарных требований, грузооборота и видов транспорта;
б) рациональные производственные, транспортные и инженерные связи на предприятиях, между ними и селитебной территорией;
в) кооперирование основных и вспомогательных производств и хозяйств, включая аналогичные производства и хозяйства, обслуживающие селитебную часть города или населенного пункта;
г) интенсивное использование территории, включая наземное и подземное пространства при необходимых и обоснованных резервах для расширения предприятий:
д) организацию единой сети обслуживания трудящихся;
е) возможность осуществления строительства и ввода в эксплуатацию пусковыми комплексами или очередями:
ж) благоустройство территории (площадки);
з) создание единого архитектурного ансамбля в увязке с архитектурой прилегающих предприятий и жилой застройкой;
и) защиту прилегающих территорий от эрозии, заболачивания, засоления и загрязнения подземных вод и открытых водоемов сточными водами, отходами и отбросами предприятий;
к) восстановление (рекультивацию) отведенных во временное пользование земель, нарушенных при строительстве. [6]
Также необходимо обеспечить правильную и четкую организацию грузовых и людских потоков: потоки сырья, готовой продукции и топлива на территории предприятия должны быть, по возможности, раздельными без взаимных пересечений. [4]
Производственный корпус следует размещать фасадом на улицу с отступлением от красной линии не менее чем на 5 м. полосу земли между красной линией и производственным зданием рекомендовано засаживать декоративными растениями, ограждающими этот корпус от уличной пыли.
Въезд и выезд, вход и выход на территорию и с территории размещен в одном пункте, в котором устанавливаются ворота рядом с проходной. Там же размещается пожарно-сторожевая охрана, бюро пропусков и табельная. Также целесообразно разместить отдел кадров и отдел сбыта.
Вся свободная площадь дворов должна быть озеленена. [1]
При проектировании генерального плана железнодорожные пути следует располагать параллельно продольной оси площадки, чем обеспечивается необходимая длина погрузочно-разгрузочного фронта при наименьшей протяженности путей. [4]
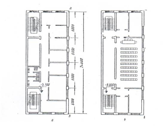
Рис. 1. Генеральный план кондитерской фабрики малой мощности.
1 – производственный корпус; 2 – котельная; 3 – навес для тары; 4 – проходная; 5 – автовесы; 6 – склад смазочных материалов; 7 – площадка для стоянки автомашин; 8 – резервуар для воды; 9 – трансформаторная подстанция.

1.3 Требования к устройству зданий и сооружений
В соответствии с противопожарными нормами кондитерские фабрики, в которых технологические процессы не связаны с переработкой легко воспламеняющихся и взрывоопасных продуктов, по пожарной опасности технологического процесса производства относятся к группе В. По степени огнестойкости к I и II степени.
Для того чтобы соблюсти противопожарные разрывы и не превысить нормальные размеры стройплощадки, следует стремиться к постройке на ней как можно меньше отдельных зданий.
Строительными нормами длина производственных зданий не ограничивается в случае применения только огнестойких конструкций. При использовании сгораемых конструкций (хотя бы только перекрытий) необходимо здание разделить поперечными стенами – брандмауэрами.
Через 50-60 м по длине здания всегда необходимо устраивать температурные швы, где устанавливаются рядом парные колонны и по ним прокладываются парные балки.
Минимальная высота (от пола до пола) производственных помещений не менее 3,6 м. дальнейшее увеличение этой высоты должно быть кратным модулю – 1,2 м.
Высота бытовых и конторских помещений 3,6 м.
Высота одноэтажных зданий (от пола до низа прогонов) 3,8; 5,0 м и выше.
Высота этажей многоэтажных фабрик обычно принимается 4,8 м.
При проектировании следует стремиться к минимальному разнообразию типов сборных строительных элементов. Шаг колонн (пролетов) следует делать одного размера для всего здания.
К основным конструкциям здания относятся фундаменты, стены, колонны, перекрытия, лестницы, оконные и дверные проемы, перегородки.
Стены делаются преимущественно из кирпича на цементном растворе. При большой высоте для придания устойчивости стенам делаются пилястры (местные уширения).
Колонны железобетонные.
Лестницы по требованиям пожарной безопасности ограждаются капитальными стенами.
Оконные проемы в несущих стенах могут размещены только между несущими простенками. Отсутствие оконных проемов в пролетах, прилегающих к углам, увеличивает прочность здания.
Двери в производственных помещениях делаются двухстворчатые шириной 1390 мм, высотой 2300 мм и 1290×2000 мм. В капитальных наружных стенах дверные проемы делаются на первом этаже в склад сырья, экспедицию и т.д.
Полы в варочных, рецептурных и других производственных помещениях, а также в лабораториях должны быть из керамических плиток; в складских – из литого асфальтобетона или цемента; в конторских – паркетные, деревянные или ксилолитовые.
Перегородки в помещениях с влажностью выше 70% следует делать железобетонные, керамзитобетонные с цементной затиркой и побелкой или облицовкой плитками. В остальных помещениях делают кирпичные и сборные гипсобетонные.
Внутренняя отделка. Кирпичные стены, потолки штукатурятся и окрашиваются. Железобетонные сборные балки, плиты, стеновые панели в местах соединений затираются цементным раствором и окрашиваются. По специальному назначению стены некоторых помещений (варочных) покрываются облицовочной плиткой. В остальных производственных помещениях их плитки делается панель. [1]
2. Состав и технологическая связь помещений предприятия
Все помещения, которыми должна располагать кондитерская фабрика, можно подразделить на следующие группы:
А. Складские помещения.
Б. Производственные помещения.
В. Подсобно-производственные помещения.
Г. Бытовые помещения.
Д. Административно-хозяйственные помещения.
Е. Помещения для энергетического оборудования (котельная, трансформаторная, компрессорная и т.д.).
Ж. Надворные постройки и сооружения.
Некоторые производственные по технологическим соображениям цехи целесообразно располагать в изолированных помещениях. Наиболее часто применяется поэтажное размещение производственных цехов с расположением общих складских помещений в нижних этажах. [1]
В подвальном этаже располагаются склады сырья, бумаги, кладовые, протирочное отделение, яйцебитня, пудрильная, отделение слива молока, бойлерная, сепараторная.
На первом этаже фабрики размещены отделение по выработке розничных сортов конфет, бисквитно-вафельный цех, обжарочное отделение, упаковочное отделение, склад готовой продукции.
Картонажный цех, подготовительное отделение и склад готовой продукции удобно сообщаются с вышележащими этажами грузовыми лифтами.
На втором этаже фабрики расположены карамельно-ирисный цех, упаковочное отделение, пастило-мармеладный цех, варочное, стерилизационное отделения, кладовая, моечная, сушка лотков, лаборатория, контора. Выработка драже отделена от карамельного цеха ширмой, подвешенной к перекрытию.
На третьем этаже и четвертом размещены административные помещения. [4]
Производственные помещения и цехи предприятия должны быть расположены так, чтобы обеспечить поточность технологических процессов и отсутствие встречных и перекрещивающихся потоков сырья и готовой продукции. Запрещается их расположение в подвальных и полуподвальных помещениях. [5]
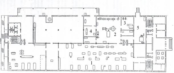
Рис. 2. Универсальная кондитерская фабрика малой мощности. План подвального этажа.
1 – помещение приема патоки; 2 – протирочное отделение; 3 – пудрильная; 4 – отделение слива молока; 5 яйцебитня; 6 – паточная станция; 7 – бойлерная, сепараторная, насосная;

Рис. 3. План первого этажа.
1 – цех выработки розничных сортов конфет; 2 – варочное отделение; 3 – отделение выработки вафельных листов; 4 – помещение для слива патоки; 5 – обжарочное отделение;

Рис. 4. План второго этажа.
1 – карамельно-ирисный цех; 2 – упаковочное отделение; 3 – пастило-мармеладный цех; 4 – варочное отделение; 5 – стерилизационное отделение;

Рис. 5. План третьего и четвертого этажей. Административно-хозяйственные помещения.

3. Требования к устройству помещений производственного здания
Устройство помещения это его конфигурация, размещение внутри здания и относительно других помещений здания, количество и расположение входов, выходов, оконных проемов и т.д.
Дражейное отделение размещено в общем помещении с основным цехом, от которого оно отделено ширмой, не доходящей до пола на 2 м.
Площадь дражейных отделений определяется путем размещения оборудования с учетом свободной площади для выстаивания корпусов, расфасовки и упаковки. Площадь для фасовки и упаковки принимается из расчета 15 м2 на 1 т расфасовываемой и упаковываемой продукции. При ориентировочном подсчете производственной площади для выработки драже принимается, что на 1 м2 можно выработать в год 1,5 т драже.
Дражировочные котлы на участке накатки и глянцовки устанавливаются на расстоянии 1,5 – 1,8 м один от другого. (проз)
Поперечные проходы у торцовых стен шириной в самом узком месте не менее 1,5 м.
Разрывы между оборудованием и стенами не менее 1 м. столы, площадки, сборники могут примыкать к стенам. [1]
Иногда выработку драже приходится размещать на нескольких этажах. В этом случае рекомендуется на верхнем этаже располагать участки по приготовлению массы, выработке корпусов и накатке, а на нижнем этаже – глянцевание и упаковку. Это позволяет осуществлять передачу драже на отделку самотеком.
При установке в дражейном отделении или цехе поточных линий по производству драже с накатными и карамельными корпусами длина помещения должна быть не менее 45 – 50 м. При отсутствии помещения такой длины поточные линии можно располагать на двух-трех этажах. [4]
Рис. 3. Отделение выработки драже при конфетном или карамельном цехе (пунктиром показана ширма):
1 – стол; 2 – стол для отливки ликерных корпусов; 3 – темперирующая машина; 4 – дражировочный котел; 5 – дозатор для драже; 6 – стол для расфасовки драже в картонные коробки; 7 – автомат для расфасовки драже в целлофановые пакеты; 8 – стол для упаковки драже в короба; 9 – место для выстойки корпусов.

4. Санитарно-технические требования к помещениям
Все предприятия независимо от их организационно-правовой формы и ведомственной принадлежности обязаны соблюдать действующее в РФ санитарное законодательство и осуществлять контроль за его выполнением в соответствии с СанПиН 2.3.4.545-96 «Производство хлеба, хлебобулочных и кондитерских изделий».
Санитарные правила распространяются на строящиеся, реконструируемые и действующие организации торговли, рынки, базы, склады продовольственного сырья и пищевых продуктов, а также индивидуальных предпринимателей. [5]
4.1 Требования к водоснабжению и канализации
Предприятия по производству кондитерских изделий обеспечиваются водоснабжением и канализацией.
Водоснабжение предприятий должно производиться присоединением к ним их к централизованной сети водопровода, а при отсутствии его – устройством внутреннего водопровода от артезианских скважин. При отсутствии водопровода и артезианских скважин выбор источников водоснабжения должен согласовываться с органами госсанэпиднадзора.
Качество воды, используемой для технологических, питьевых и хозяйственно-бытовых нужд, должно соответствовать требованиям ГОСТа "Вода питьевая. Гигиенические требования и контроль за качеством".
Артезианские скважины и запасные резервуары должны иметь зоны санитарной охраны не менее 25 м. За их санитарно-техническим состоянием и за качеством воды должен быть установлен систематический контроль.
В случае использования непитьевой (технической) воды для технических нужд (охлаждение компрессоров, поливка территории, подводки к смывным бачкам и писсуарам в туалетах и т.п.) следует предусматривать на предприятии раздельные системы водоснабжения: питьевого и технического. Соединения между системами питьевого и технического водопровода не допускаются, трубопроводы этих систем водоснабжения должны быть окрашены в отличительные цвета.
За качеством воды, подаваемой в резервуары и производственные цеха должен быть установлен систематический контроль в соответствии с ГОСТом "Вода питьевая. Гигиенические требования и контроль за качеством" в сроки, установленные органами госсанэпиднадзора (химический анализ проводится не реже одного раза в квартал, бактериологический - не реже одного раза в месяц).
Помещения водяных баков для запасной воды должны быть изолированы, пломбироваться и содержаться в чистоте.
Очистка и дезинфекция водобаков должна производиться не реже одного раза в квартал.
В производственных помещениях следует предусматривать:
- подводку холодной и горячей воды питьевого качества с установкой смесителей к точкам водозабора для нужд технологии;
- смывные краны из расчета один кран на 500 м площади в цехах, но не менее одного смывного крана на помещение;
- раковины для мытья рук в цехах с подводкой холодной и горячей воды со смесителем, снабженные мылом (дезинфицирующим раствором), разовым полотенцем или электросушителем для рук. Раковины должны располагаться в каждом производственном цехе при входе, а также в местах, удобных для пользования ими, на расстоянии более 15 м от рабочего места.
Для питьевых целей устанавливают питьевые фонтанчики, сатураторные установки или питьевые бачки на расстоянии не более 75 м от рабочего места.
Вода в бачках должна заменяться ежедневно, бачки должны быть опломбированы.
Для системы горячего водоснабжения должна использоваться вода, отвечающая требованиям ГОСТа "Вода питьевая. Гигиенические требования и контроль за качеством".
Запрещается использование горячей воды из системы водяного отопления для технологических процессов, санитарной обработки оборудования и помещений.
Устройство системы канализации предприятий должно отвечать требованиям СНиП "Канализация. Наружные сети и сооружения", "Внутренний водопровод и канализация зданий", а также требованиям настоящих СанПиН.
Для удаления производственных и хозяйственно-бытовых сточных вод предприятия должны быть присоединены к общегородской канализации или иметь самостоятельную канализацию и очистные сооружения.
Внутренняя система канализации производственных и хозяйственно-бытовых сточных вод должна быть раздельной с самостоятельным выпуском в дворовую сеть.
Запрещается сброс в открытые водоемы производственных и бытовых вод без соответствующей очистки, а также устройство поглощающих колодцев. [5]
4.2 Требования к вентиляции, кондиционированию, отоплению, освещению помещений и условиям труда рабочих
Производственные цехи и участки, вспомогательные и санитарно-бытовые помещения должны быть оборудованы приточновытяжной вентиляцией в соответствии с требованиями действующих норм и правил.
Источники выделения влаги и тепла (заварочные, дрожжевые, ошпарочные котлы и др.) необходимо оборудовать местными отсосами, вытяжными зонтами.
Источники выделения пыли (тестомесильные, мешковыбивальные и др. машины) должны быть снабжены аспирационными устройствами (пылесосами и т.д.).
Содержание нетоксичной пыли (мучной, сахарной) в воздухе производственных помещений не должно превышать 6 мг на 1 м воздуха.
На рабочих местах у печей, а также у шкафов окончательной расстойки для защиты от выходящих горячих паров и газов необходимо предусмотреть воздушное душирование на уровне зоны дыхания.
В местах погрузки хлебобулочных и кондитерских изделий из экспедиции через открытые дверные проемы необходимо предусмотреть защитные тепловые завесы или другие приспособления, препятствующие попаданию наружного воздуха в помещение экспедиции в холодное время года.
Порядок эксплуатации и ухода за вентиляционными устройствами на каждом предприятии должен быть установлен в соответствии со специальными инструкциями, разработанными предприятием.
Контроль за эксплуатацией вентиляторных установок возлагается на технический персонал.
Микроклимат помещений должен соответствовать "Санитарным нормам микроклимата производственных помещений", СНиП "Отопление, вентиляция и кондиционирование воздуха. Нормы проектирования", а в части технологии - в соответствии с нормами технологического проектирования.
Уровни шума в производственных помещениях на рабочих местах не должны превышать значений для данных видов работ, определенных санитарными нормами допустимых уровней шума на рабочих местах. Станки, машины, аппараты должны иметь виброгасящие устройства, а уровень вибрации не должен превышать санитарных норм.
Производственные и вспомогательные помещения, за исключением холодных складов, котельной, трансформаторной подстанции, должны быть обеспечены отоплением в соответствии с требованиями СНиП "Отопление, вентиляция и кондиционирование воздуха", "Производственные здания", "Административные и бытовые здания", при этом предпочтительнее использование системы водяного отопления как наиболее гигиеничной.
Нагревательные приборы отопления должны быть легко доступными для очистки от пыли.
Оборудование, сироповарочные котлы, паропроводы, трубопроводы горячей воды и другие источники значительных выделений конвекционного и лучистого тепла должны иметь теплоизоляцию, температура на поверхности которой не должна превышать 45°С.
Естественное и искусственное освещение в производственных и вспомогательных помещениях должно соответствовать требованиям СНиП "Естественное и искусственное освещение. Нормы проектирования" и "Нормам технологического проектирования".
Во всех производственных и вспомогательных помещениях должны быть приняты меры к максимальному использованию естественного освещения. Световые проемы не должны загромождаться производственным оборудованием, готовыми изделиями, полуфабрикатами, тарой и т.п. как внутри, так и вне помещения.
Остекленная поверхность световых проемов окон, фонарей и т.п. должна регулярно очищаться от пыли и копоти.
Разбитые стекла в окнах необходимо немедленно заменять целыми. Запрещается устанавливать в окнах составные стекла и заменять остекление фанерой, картоном и т.п.
Источники освещения производственных цехов и складов должны быть заключены в специальную взрывобезопасную арматуру: люминисцентные - в зависимости от типа, лампы накаливания - в закрытые плафоны.
Запрещается размещать светильники непосредственно над открытыми (открывающимися) технологическими емкостями, варочными котлами, кремосбивальными машинами, столами для отделки кремовых изделий.
Для осмотра внутренних поверхностей аппаратов и емкостей допускается использование переносных ламп напряжением не выше 12 В, заключенных в защитные сетки.
Осветительные приборы и арматура должны содержаться в чистоте и протираться по мере загрязнения.
В случае изменений в назначении производственного помещения, а также при перестановке или замене одного оборудования другим осветительные установки должны быть переоборудованы и приспособлены к новым условиям в соответствии с нормами освещенности.
Во избежание взрывов пыли в помещениях для хранения и подготовки муки должны предусматриваться: скрытая электропроводка, вынесение за пределы этих помещений электровыключателей и рубильников, использование герметичных светильников с защитной сеткой.
Наблюдение за состоянием и эксплуатацией осветительных приборов должно возлагаться на технически подготовленных лиц. [5]
4.3 Требования к содержанию помещений и оборудования
Складские помещения должны быть сухими, чистыми, отапливаемыми, с хорошей вентиляцией (температура - не ниже 8°С, относительная влажность воздуха - 70-75%), оборудованными специальными помещениями для разгрузки сырья и погрузки готовой продукции и обеспечены навесами для защиты от атмосферных осадков, целиком закрывающими транспортные средства. Для транспортирования сырья и готовой продукции должны быть предусмотрены раздельные грузоподъемники.
Пол в складских помещениях должен быть плотным без щелей, зацементированным, стены должны быть гладкими. В складском помещении должны быть предусмотрены холодильные камеры для хранения скоропортящегося сырья и полуфабрикатов. В складах пищевой продукции хранение непищевых материалов и пахучих хозяйственных товаров (мыло, стиральные порошки и др.) запрещается.
В составе производственных цехов предприятий в соответствии с требованиями "Санитарных норм проектирования промышленных предприятий" должны быть выделены в отдельные помещения термические (горячие) цехи; моечные помещения, требующие особого гигиенического режима.
Перед входом в производственные помещения должны быть предусмотрены коврики, смоченные дезинфицирующим раствором.
Стены производственных помещений на высоту не менее 1,75 м должны быть облицованы глазурованной плиткой или другими материалами, дающими возможность проводить влажную уборку, либо окрашены светлой краской.
Потолки и стены выше панелей в производственных помещениях и вспомогательных цехах должны быть побелены клеевыми или окрашены водоэмульсионными красками.
Покраску и побелку потолков и стен необходимо производить по мере необходимости, но не реже двух раз в год.
Полы во всех производственных помещениях должны быть водонепроницаемыми, не скользкими, без щелей и выбоин, с удобной для очистки и мытья поверхностью с соответствующими уклонами к трапам. В помещениях с агрессивными стоками для отделки полов должны быть использованы кислото- и щелочеупорные покрытия. Участки полов на проездах для внутрицехового транспорта должны быть отделаны ударопрочными плитами.
Для отделки полов, стен и потолков должны применяться материалы, разрешенные органами госсанэпиднадзора.
Уборка производственных, вспомогательных, складских и бытовых помещений должна производиться уборщицами (совмещение не допускается), а уборка рабочих мест - самими рабочими.
Предприятия должны иметь бытовые помещения в соответствии с нормами технологического проектирования предприятий, вырабатывающих кондитерские и хлебобулочные изделия.
Бытовые помещения для работников производственных цехов следует оборудовать по типу санпропускников.
В гардеробных необходимо обеспечить раздельное хранение верхней, домашней, рабочей одежды и обуви.
Бельевые для чистой и грязной санитарной одежды должны быть размещены в отдельных помещениях, иметь окна приема и выдачи одежды.
Двери в туалет, в кабину туалета устраиваются типа "метро". Туалетная кабина должна быть оснащена кронштейном для туалетной бумаги. На дверях кабины должно быть напоминание: "Сними санитарную одежду".
При умывальниках, в шлюзах туалетов должны быть раковины, туалетная бумага, мыло, электрополотенце, дезинфицирующий раствор для обработки рук, вешалка для халатов и дезковрик перед входом в туалет.
Душевые должны размещаться рядом с гардеробными, иметь преддушевые, оснащенные вешалками и скамьями.
Количество мест в душевых следует определять в соответствии со СНиП по числу работающих в наибольшую смену.
Пункты общественного питания (пункты питания) должны быть в составе бытовых помещений или в отдельных зданиях. При отсутствии столовых на предприятиях должны быть комнаты для приема пищи.
Число посадочных мест рассчитывается по количеству работающих в многочисленную смену.
Перед входом в пункты питания должны быть предусмотрены вешалки для санитарной одежды, умывальники с подводкой горячей и холодной воды, мыло, электрополотенце.
Оборудование, аппаратура должны быть расположены таким образом, чтобы обеспечить поточность технологического процесса и свободный доступ к ним.
Все части оборудования и аппаратуры, соприкасающиеся с продуктами, должны быть изготовлены из материалов, разрешенных органами госсанэпиднадзора для применения в продовольственном машиностроении и пищевой промышленности.
Поверхность оборудования и инвентаря должна быть гладкой и легко подвергаться очистке, мытью и дезинфекции.
Ножи на вальцовках по окончании работ очищаются.
должны регулярно механически очищаться и промываться горячей водой с содой по мере загрязнения.
Тележки, этажерки и весы должны промываться горячей водой и просушиваться досуха ежедневно.
Каждая линия, подающая муку в силос, должна быть оборудована мукопросеивателем и магнитным уловителем металлических примесей.
Инвентарь, посуда, внутрицеховая тара и т.п., используемые при производстве кондитерских изделий с кремом, должны быть строго промаркированы по этапам технологического процесса. Запрещается использование немаркированного инвентаря, посуды и др., а также - с не соответствующей маркировкой. [5]
5. Заключение
В результате выполненных в данной курсовой работе исследований показано, что оптимальные устройства, планирование и оборудование предприятия по производству кондитерских изделий напрямую связаны с эффективностью деятельности предприятия. Однако выполнение всех необходимых требований по усовершенствованию организации по устройству и планированию предприятия связано с рядом проблем.
Здания и сооружения для предприятий по производству кондитерских изделий должны отвечать ряду технологических, архитектурно-строительных, экологических, санитарно-гигиенических требований.
Технологические требования предполагают такое устройство здания, которое создает возможность рациональной организации производства кондитерских изделий с применением современной техники.
Архитектурно-строительные требования предполагают прочность зданий, строительство индустриальными методами, соответствую оформление фасада предприятия. Архитектура здания должна гармонично сочетаться с окружающей застройкой.
Экономические требования предусматривают наименьшие затраты средств как при строительстве, так и при эксплуатации торгового здания.
Санитарно-гигиенические требования определяют устройство систем вентиляции, отопления, освещения, водоснабжения и канализации. Они необходимы не только для создания надлежащих условий работы персонала, но и для нормального производства кондитерских изделий.
Все помещения фабрики должны быть взаимосвязаны, чтобы обеспечить кратчайший путь движения сырья до готовых изделий.
В торцовых сторонах здания размещаются два грузовых лифта. Один – для подачи на производство сырья, потребляемого в небольших количествах и подаваемого не механизированным способом. Второй – для спуска в склад готовой продукции и подачи тары на производство.
Свободное помещение административно-конторских помещений, куда имеют доступ посторонние лица, с производственными цехами должно быть исключено, и располагаются они в основном на верхних этажах зданий.
Таким образом, при устройстве и планировании кондитерского предприятия, необходимо соблюдать требования, связанные с технологическими, экономическими, архитектурно-строительными и др. факторами.
Необходимо оснастить предприятие современным технологическим оборудованием, поточными линиями, внутренним транспортом и т.д.
Важным вопросом при совершенствовании и рационализации устройства и планирования торгового предприятия необходимо уделить больше внимания возможности реконструкции, ремонта и модернизации производственных площадей, а также самого здания предприятия.
Список литературы.
1. Мамонтов К. Я., Мамонтова М. М. «Основы проектирования кондитерских фабрик», Издательство «Высшая школа», Москва, 1967.
2. НТП-АПК 1.20.02.001-04 «Нормы технологического проектирования предприятий малой мощности по производству кондитерских изделий».
3. Олейникова А. Я. Магомедов Г. О. «Проектирование кондитерских предприятий», Санкт-Петербург ГИОРД, 2005.
4. Прохоров В. Р., Рахманова К. И. «Проектирование кондитерских предприятий», Москва, 1964.
5. СанПиН 2.3.4.545-96 «Производство хлеба, хлебобулочных и кондитерских изделий».
6. СНиП II-89-80 «Генеральные планы промышленных предприятий».
7. http://www.biotin-kirov.ru/index.php?id=26