| Скачать .docx |
Курсовая работа: Проектирование и расчет фундаментов мелкого и глубокого заложения одноэтажного производственного
КОСТРОМСКАЯ
ГОСУДАРСТВЕННАЯ
СЕЛЬСКОХОЗЯЙСТВЕННАЯ АКАДЕМИЯ
Кафедра «Строительные конструкции»
Курсовой проект
на тему «Проектирование и расчет
фундаментов мелкого и глубокого заложения одноэтажного
производственного здания»
Выполнил :
студент 4 курса 1 группы
архитектурно-строительного факультета
Виноградов В. С.
Приняла : Примакина Е. И.
Кострома 2003 г.
Оглавление.
1. Краткая характеристика здания
2. Основные сведения о строительной площадке
3. Оценка свойств отдельных пластов грунта
4. Оценка геологического строения площадки
5. Расчет фундаментов мелкого заложения:
расчет первого сечения
расчет второго сечения
6. Расчет фундаментов глубокого заложения:
расчет первого сечения
расчет второго сечения
7. Выбор сваебойного оборудования
8. Устройство котлована
9. Устройство водопонижения
10. Список используемой литературы
1.Краткая характеристика проектируемого здания.
- Назначение и основные особенности проектируемого здания.
Данное здание является промышленным. Оно имеет размеры в плане в осях 96x120 м. Количество этажей в данном здании 1. Полная высота здания от спланированной отметки до карниза 13 м. Условная отметка чистого пола первого этажа 0.000 м выше спланированной отметки земли на 0.15 м.
- Конструктивное решение здания.
Данное здание с полным каркасом, несущие стены – навесные панели. Толщина наружных стен 300 мм. Несущими конструкциями являются колонны. Фундамент в данном здании является нагруженным с эксцентриситетом.
2.Основные сведения о строительной площадке.
Местные условия строительной площадки.
Абсолютные отметки поверхности строительной площадки: 142.99 м, 143.95 м, 144.91 м. Рельеф площадки ровный, спокойный и имеет уклон 1.8 %.
Геологическое строение площадки.
Геологическое строение площадки характеризуется геологическими выработками – скважинами №1, №2, №3 из которых с глубины 1.5 м, 3.5 м, 8 м, 13.5 м, отобраны образцы грунта для лабораторных испытаний.
3.Оценка свойств отдельных пластов грунта
1слой - насыпь.
2слой - пылевато-глинистый грунт.
Определяем число пластичности по формуле
Ip =WL -Wp =23.5-17.0=6.5 по таблице 1.8 [1]- грунт супесь
т.к. 1 < Ip £ 7
WL – влажность на границе текучести;
Wp – влажность на границе пластичности.
Определяем показатель текучести:
IL =(W-Wp )/Ip =(15.4-17)/6.5= -0.246
В соответствии с табл. 1.9 [1] тип грунта супесь, разновидность которого по показателю текучести - твердая т.к. IL <0.
По степени влажности Sr определяем водонасыщенность грунта.


т/м3
e=(2.68-1.716)/1.716=0.56 - коэффициент пористости грунта.
Sr =0.154*2.68/(0.56*1)=0.737 - грунт влажный, т.к. 0.5< Sr £0.8 по табл. 1.6 [1].
W - природная влажность грунта;
r- природная плотность грунта т/м3 ;
rs - плотность частиц т/м3 ;
rd - плотность сухого грунта т/м3 ;
rw =1 т/м3 - плотность воды.
Для предварительной оценки набухаемости грунта находим показатель просадочности. Этим свойством обладают только пылевато-глинистые грунты. Грунт считается просадочным, если Sr <0.8 и показатель просадочности находится в диапозоне:
![]()
![]()
![]()
![]()
![]()
![]()
![]()
![]()
![]()


П=(0.616-0.56)/(1+0.56)=0.036
eL - коэффициент, соответствующий влажности на границе текучести.
e - коэффициент пористости природного грунта.
Грунт считается набухающим, если П>0.3(п.10.2.1[1]).
Вывод: грунт- супесь твердая, влажная, непросадочная, ненабухающая, малопучинистая.
3 слой -пылевато-глинистый грунт.
Определяем число пластичности по формуле
Ip =WL -Wp =34.3-18.0=16.3 по таблице 1.8 [1] – грунт суглинок т.к. 7 < Ip £ 17
Определяем показатель текучести:
IL =(W-Wp )/Ip =(30-18)/16.3= 0.736
В соответствий с табл. 1.9 [1] тип грунта суглинок, разновидность
которого по показателю текучести - мягкопластичный т.к. 0.5 < IL £ 0.75
Oпределяем коэфициент пористости грунта.

т/м3
e=(2.54-1.4769)/1.4769=0.7198
Определяем степень влажности грунта. По степени влажности определяем водонасыщенность грунта.

Sr =0.3*2.54/(0.7198*1)=1.058 - грунт насыщенный водой т.к. Sr >0.8 по табл. 1.6 [1].
Находим показатель просадочности.

![]()
П=(0.66-0.7198)/(1+0.7198)= -0.035
В соответствие с п.10.2.1[1] – грунт не просадочен.
Вывод: грунт- суглинок мягкопластичный, насыщенный водой, не просадочный, не набухаемый, сильнопучинистый.
4 слой - пылевато-глинистый грунт.
Определяем число пластичности по формуле
Ip =WL -Wp =40.8-19.8=21 по таблице 1.8 [1] – грунт глина т.к. Ip >17
Определяем показатель текучести:
IL =(W-Wp )/Ip =(26.3-19.8)/21= 0.3095
В соответствий с табл. 1.9 [1] тип грунта глина, разновидность, которой по показателю текучести – тугопластичная т.к. 0.25 < IL £ 0.5
Oпределяем коэффициент пористости грунта.

т/м3
e=(2.47-1.59)/1.59=0.55
Определяем степень влажности грунта. По степени влажности определяем водонасыщенность грунта.

Sr =0.263*2.47/(0.55*1)=1.181 - грунт насыщенный водой т.к. Sr >0.8 по табл. 1.6 [1].
Находим показатель просадочности.

![]()
П=(0.82-0.55)/(1+0.55)=0.17
В соответствие с п.10.2.1[1] – грунт не просадочен.
Вывод: грунт- глина тугопластичная, насышенная водой, не просадочная, не набухаемая, среднепучинистая.
5 слой - песок
Для определения типа грунта по крупности частиц необходимо суммировать данные процентного содержания частиц по табл.1.5 [1]
Частиц >2 мм - 12.3% в то время как для гравелистого песка частиц должно быть более 25%.
Частиц 2 - 0.5 мм - 12.3+31.9=44.2% - в то время как для крупного песка частиц должно быть более 50%.
Частиц 0.5 - 0.25 мм - 12.3+31.9+22.8=67% >50% - находят песок средней крупности.
Определяем коэффициент пористости грунта.

т/м3
e=(2.74-1.645)/1.645=0.67 – по e - средней плотности т.к. 0.55<0.67<0.7 по табл. 1.7 [1].
Определяем степень влажности:

Sr =0.24*2.74/(0.67*1)=0.988 – грунт насыщенный водой т.к. Sr >0.8 по табл. 1.16 [1].
Вывод: грунт- песок средней крупности, средней плотности, насышенный водой, практически непучинистый.
Сводная таблица физических свойств грунтов.
| Физические хар-ки | Наименование инженерно-геолог. элементов | супесь твердая, влажная, непросадочная, ненабухающая, малопучинистая. | суглинок мягкопластичный, насыщенный водой, не просадочный, не набухаемый, сильнопучинистый. | глина тугопластичная, насышенная водой, не просадочная, не набухаемая, среднепучинистая. | Песок средней крупности, средней плотности, насышенный водой, практически непучинистый. |
| 1.r , т/м3 | 1.98 | 1.92 | 2.01 | 2.04 | |
| 2. rd , т/м3 | 1.716 | 1.4769 | 1.59 | 1.645 | |
| 3. r s , т/м3 | 2.68 | 2.54 | 2.47 | 2.74 | |
| 4.g , кН/м3 | 19.8 | 19.2 | 20.1 | 20.4 | |
| 5. gd , кН/м3 | 17.16 | 14.769 | 15.9 | 16.45 | |
| 6. gs , кН/м3 | 26.8 | 25.4 | 24.7 | 27.4 | |
| 7.W, % | 15.4 | 30 | 26.3 | 24 | |
| 8.Wp , % | 17.0 | 18 | 19.8 | - | |
| 9. WL , % | 23.5 | 34.3 | 40.8 | - | |
| 10.e | 0.56 | 0.7198 | 0.55 | 0.67 | |
| 11.Sr | 0.737 | 1.058 | 1.181 | 0.988 | |
| 12.Ip | 6.5 | 16.3 | 21 | - | |
| 13.IL | -0.246 | 0.736 | 0.3095 | - | |
Сводная таблица механических характеристик грунтов.
| Мехаческие хар-ки | Наименование инженерно-геолог. Элементов | супесь твердая, влажная, непросадочная, ненабухающая, малопучинистая. | суглинок мягкопластичный, насыщенный водой, не просадочный, не набухаемый, сильнопучинистый. | глина тугопластичная, насышенная водой, не просадочная, не набухаемая, среднепучинистая. | песок средней крупности, средней плотности, насышенный водой, практически непучинистый. |
| - деформационные- | |||||
| 14.E , Мпа | 28.86 | 14.54 | 17.756 | 24.892 | |
| 15.mo по комп. Исп. Мпа-1 | 0.03 | 0.073 | - | - | |
| - прочностные- | |||||
| 16.сII (уд.сцеп.) кПа | 12 | 18 | 55 | - | |
| 17.jII (уг.вн.трен.) град | 23 | 16 | 18 | 30 | |
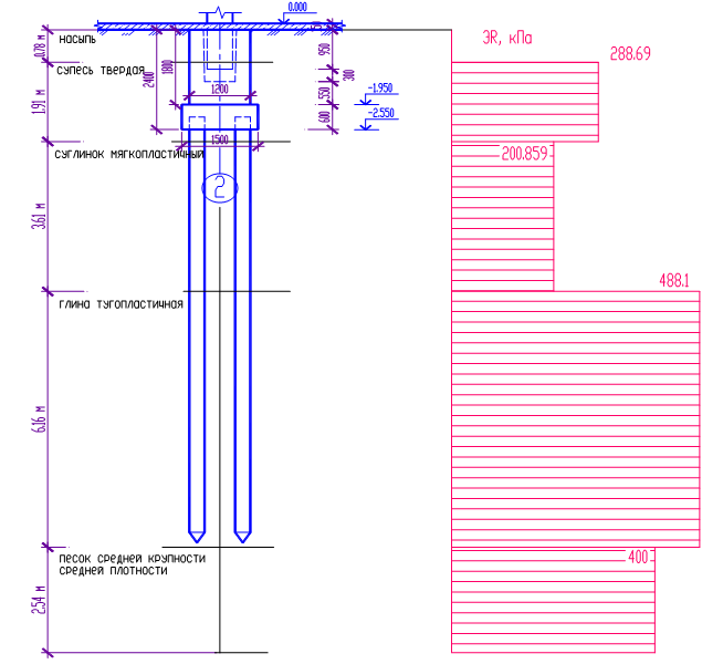
| 18.Ro (ус.рас.соп.) кПа | 288.69 | 200.859 | 488.1 | 400 | |
4. Оценка геологического строения площадки.
Грунт строительной площадки имеет слоистое напластование, с залеганием слоев, близких к горизонтальным и выдержанным по мощности. В толще грунтов залегают подземные воды.
Геологические изыскания производились в июле.
Абсолютные отметки подземных вод:
Скв.N 1 – 140.30 м
Скв.N 2 – 141.90 м
Скв.N 3 – 143.00 м
Уровень грунтовых вод 2.69, 2.05, 1.91 м, т.е. в неблагоприятный период фундаменты здания могут оказатся в подтоплении, в таком случае необходимо будет предусмотреть усиленную гидроизоляцию и подсыпку из непучинистых материалов.
5.Расчет фундамента мелкого заложения.
Расчет первого сечения под колонну среднего ряда.
Определяем глубину заложения фундаментов.
По конструктивным: особенностям здания и сечению колонны 1400х500 подбираем тип подколонника Д с сечением 2100х1200, с размерами стакана 1500х600 по низу, 1650х650 по верху и глубиной 1250.
|
Определим расчетную глубину промерзания
df =dfn ·kn ; kn =0.56 (т. 5.9 [1]) df =1.8·0.56=1.008 м. d ³ 1.008 м.
По геологическим: в качестве естественного основания принимаем 2 слой супесь твердая, влажная, непросадочная, ненабухающая, малопучинистая. d³ 0.78 м.
По гидрогеологическим: d< 2.69 м.
Окончательная глубина заложения фундамента 2.4 м от спланированной отметки земли. Рабочим слоем является грунт – супесь твердая, подстилающими грунтами – суглинок, глина и песок.
Предварительно определяем размеры фундамента условно считая его центрально нагруженным квадратной формы.
кН
кПа
кН/м3
м

|
|
|
|
|

Учтем прямоугольность фундамента
м ![]()
м
принимаем ФД11-3
м
м
м3
Учитываем что фундамент внецентренно нагружен и определяем эксцентриситет.
кНм
кН
кН/м3
Приводим нагрузку к подошве фундамента
Вес фундамента ![]()
кН
Объем грунта ![]()
м3
Момент у подошвы фундамента ![]()
кНм
найдем средний удельный вес грунта выше подошвы фундамента

![]()
кН/м3
-вес грунта
![]()
кН

м
определим относительный эксцентриситет и сравним его с допустимым

![]()
![]()
![]()
![]()
2 – я комбинация
кНм
кН
![]()
![]()
кН

м

![]()
![]()
Определяем вид эпюры контактных давлений. Эпюра имеет трапециевидную форму т.к. ![]()
![]()



кПа

кПа
q – нагрузка от оборудования, людей, складируемых материалов и изделий. Согласно п.3.2 [4] принимается не менее 2 кПа.
Проверка под углом подошвы фундамента

![]()
т/м3
– удельный вес грунтов залегающих выше подошвы фундамента.
![]()
т/м3
– удельный вес грунтов залегающих ниже подошвы фундамента на глубину 0.5b.
кПа![]()
![]()
![]()
![]()
![]()
![]()
м![]()
gс1 , gс2 – коэф. условий работы таб.5.11[1].
к – коэф. зависящий от того как были определены с и j.
Мg, Мс и Мq коэф. принимаемые по таб.5.12[1].
kz – коэф. зависящий от b.
d1 – глубина заложения фундаментов.
кПа
кПа![]()
![]()
Следовательно проверка прочности основания выполняется т.е. размеры фундамента подобраны верно.
Расчет по несущей способности основания.
,
где F=2734.231 кН – расчетная нагрузка на основание; Fu – сила предельного сопротивления основания; gс – коэф. условий работы принимаемый для глинистых грунтов – 0.9; gn – коэф. надежности по назначению сооружений принимаемый для сооружения II класса равным 1.15.
Fu =b`×l`×(Ng ×xg ×l`×gI +Nq ×xq ×gI `×d+Nc ×xc ×cI ),
где b`=b-2×eb =3-2×0.086=2.828 м – приведенные ширина и длина фундамента
l`=l-2×el =3.6-2×0.2=3.2 м
eb , el – эксцентриситеты приложения нагрузок.
Ng , Nq , Nc – безразмерные коэф. определяемые по таб.5.28[1]
Ng =5.87; Nq =10.66; Nc =20.72
xg =1-0.25/h=1-0.25/(l`/b`)=1-0.25/(3.2/2.828)=0.779 – коэф. формы подошвы фундамента
xq =1+1.5/h=1+1.5/1.13=2.33
xc =1+0.3/h=1+0.3/1.13=1.27
Fu =2.828×3.2×(5.87×0.779×3.2×11.052+10.66×2.33×18.5×2.4+20.72×1.27×12)=14301.012 кН
14301.012×0.9/1.15=11192.096 кН>2734.231 кН, т.е. несущая способность основания при принятых размерах фундамента обеспечена.
Расчет осадки основания методом эквивалентного слоя.
Построим эszp и эszg
![]()

кПа
|
|

szgi = Sgi ×hi – где gi - удельный вес грунта(при наличии подземных вод определяется с учетом взвешивающего действия воды), hi -мощность слоя.
с учетом взвешивающего действия воды.
![]()
кПа
![]()
кПа
![]()
кПа
![]()
кПа
![]()
кПа
![]()
кПа
![]()
![]()
кПа![]()
Aw=f(l/b;n) - таб.5.6[5]
![]()
м
![]()
м
Определим модуль деформации
2 слой-супесь ![]()
![]()
кПа
кПа
кПа
кПа

кПа

кПа
![]()

![]()
![]()


кПа
3 слой-суглинок
![]()
![]()
кПа
кПа
кПа
кПа

кПа

кПа
![]()

![]()
![]()


кПа
4 слой-глина ![]()
м ![]()
кПа
кПа
кПа
кПа

кПа


![]()
кПа
м
м

кПа
d – диаметр штампа d=0.277 м, w=0.79 – коэффициент, b, n – т. 1.15 [1]
м
м
м
м
м
м
![]()
![]()
![]()
h – мощность сжимаемого слоя, z- расстояние от середины сжим. слоя до конца распространения осадки.




![]()
м
Что гораздо меньше предельной 8 см таб.5.26[1].
Проверяем прочность подстилающего слоя.
![]()
кПа
кПа
кПа

![]()
![]()
м
![]()
кН/м3
![]()
кН/м3
кПа![]()
![]()
![]()
![]()
![]()
![]()
![]()
м

кПа
условие выполняется
Расчет второго сечения под колонну крайнего ряда.

Первая комбинация
Предварительно определяем размеры фундамента условно считая его центрально нагруженным квадратной формы.
кН
кПа
кН/м3
м

м
Учтем прямоугольность фундамента
![]()
м
принимаем ФД11-3
м
м
м3
Учитываем что фундамент внецентренно нагружен и определяем эксцентриситет.
кНм
кН
кН/м3
![]()
кН
![]()
м3
![]()
кНм
![]()
кН/м3
![]()
кН
![]()
кН

м

![]()
![]()
![]()
![]()
Вторая комбинация
кНм
кН
![]()
кНм

м

![]()
![]()
Определяем вид эпюры контактных давлений.

кПа

кПа
Проверка под углом подошвы фундамента
![]()
![]()
кПа ![]()
![]()
![]()
![]()
![]()
![]()
![]()
м

кПа
кПа ![]()
![]()
Следовательно проверка прочности основания выполняется т.е. размеры фундамента подобраны верно.
Расчет осадки основания методом эквивалентного слоя.
Построим эszp и эszg
![]()

кПа

![]()
![]()
кПа
![]()
![]()
м
![]()
м
м
м
м
м
м
м
кПа
кПа
кПа
![]()
![]()
![]()




![]()
м
Что гораздо меньше предельной 8 см таб.5.26[1].
Проверяем прочность подстилающего слоя.
![]()
кПа
кПа
кПа

![]()
![]()
м
кН/м3
кН/м3
кПа ![]()
![]()
![]()
![]()
![]()
![]()
![]()
м

кПа
![]()
Условие выполняется т.е. размеры фундамента подобраны верно.
6. Расчет фундамента глубокого заложения.
Расчет фундамента под первое сечение.
Проектируем свайный фундамент с забивными железобетонными сваями и монолитным ростверком. Глубину заложения верха ростверка принимаем из конструктивных соображений 1.8 м. Высоту ростверка принимаем равной 0.6 м. Величина заделки сваи в ростверк принимаем 0.3 м. В качестве естественного основания принимаем глину тугопластичную.
Предварительно принимаем сваю С10 – 30 длиной 10 м квадратного сечения 0.3х0.3 м. Определим несущую способность одной сваи
кН
кНм
кН
кНм
кН
кН/м3
м
![]()
длина сваи
длина сваи без учета защемления в ростверке
несущая способность одной сваи
м
м
м
м
м
м
м
м
м
м
м
м
кПа
кПа
кПа
кПа
кПа
кПа 
![]()
![]()
![]()
![]()
м2
![]()
м
кПа
м

кН
hi – мощность итого слоя.
zi – глубина заложения итого слоя с поверхности до середины слоя.
По т. 9.1 [2] R кПа.
По т. 9.2 [2] fi кПа
По т. 9.3 [2] gc = 1, gс R = 1, gcf = 1,
u – периметр одной сваи.
А – площадь поперечного сечения.
Определяем допустимую расчетную нагрузку на одну сваю
PCB
=766.105кН gg
=1 - коэф. надежности по грунту.
Определяем необходимое число свай
n=3.508шт.
принимаем
шт.

Определим нагрузку приходящуюся на каждую сваю во внецентренно нагруженном фундаменте.
![]()
кН - вес подколонника;
![]()
кН – вес ростверка;
![]()
![]()
- коэф. надежности по нагрузке;
![]()
м3
![]()
м3
![]()
м3
![]()
м3
![]()
кН/м3
![]()
кН
![]()
кН
![]()
кНм
![]()
кНм
м
м –расстояния от центра сваи до осей соответственно.

кН

кН
1.2×PCB
=919.326 кН > Pmax
Неравенства выполняются, следовательно проверка условий работы крайних свай показала, что свайный фундамент запроектирован рационально.
Свайный фундамент с висячими сваями условно принимают за массивный жесткий фундамент глубокого заложения, контур которого ограничен размерами ростверка, свай и некоторым объемом грунта.
![]()
![]()
град.
![]()
кН
![]()
м
![]()
м
![]()
м3
![]()
м3
![]()
кН/м3
![]()
кН
![]()
кН
![]()
кНм
![]()
кНм



кПа

кПа
![]()
![]()
кН/м3
кН/м3
![]()
кПа ![]()
![]()
![]()
![]()
![]()
![]()

кПа
![]()
![]()
![]()
Неравенства выполняются, значит размеры фундамента подобраны верно.
Расчет осадки основания
![]()

кПа
кПа
![]()
![]()
кПа
![]()
м
![]()
м

Определим модуль деформации.
4 слой-глина
кПа;
кПа;
кПа;
кПа
;
м; ![]()

кПа

кПа
![]()

м;
м

кПа
5 слой-песок
;
м; ![]()
кПа;
кПа;
кПа;
кПа

кПа

кПа
![]()

м;
м

кПа
м;
м;
м;
м
;
;
кПа;
кПа
;

![]()
м
Что гораздо меньше предельной 8 см таб.5.26[1].
Расчет фундамента под второе сечение.
Проектируем свайный фундамент с забивными железобетонными сваями и монолитным ростверком. Глубину заложения верха ростверка принимаем из конструктивных соображений 1.8 м. Высоту ростверка принимаем равной 0.6 м. Величина заделки сваи в ростверк принимаем 0.3 м. В качестве естественного основания принимаем глину тугопластичную.
Предварительно принимаем сваю С8 – 30 длиной 8 м квадратного сечения 0.3х0.3 м. Определим несущую способность одной сваи.
кН;
кНм;
кН;
кНм;
кН;
кН/м3
![]()
м
![]()
м
![]()
м;
м;
м;
м; ![]()
м;
м;
м;
м;
м;
кПа;
кПа;
кПа;
кПа;
кПа
;
;
;
![]()
м2
![]()
м
кПа
м

кН
Определяем допустимую расчетную нагрузку на одну сваю
PCB
=617.696 кН
Определяем необходимое число свай.
n=2.3 шт.
принимаем
шт.

Определим нагрузку приходящуюся на каждую сваю во внецентренно нагруженном фундаменте.
![]()
кН
![]()
кН
;
; ![]()
![]()
м3
![]()
м3
![]()
м3
![]()
м3
![]()
кН/м3
![]()
кН
![]()
кН
![]()
кНм
![]()
кНм
м
м

кН

кН
; 1.2×PCB
=741.24 кН > Pmax
Неравенства выполняются, следовательно проверка условий работы крайних свай показала, что свайный фундамент запроектирован рационально.
Свайный фундамент с висячими сваями условно принимают за массивный жесткий фундамент глубокого заложения, контур которого ограничен размерами ростверка, свай и некоторым объемом грунта.
![]()
град. ![]()
![]()
кН
![]()
м
![]()
м
![]()
м3
![]()
м3
![]()
кН/м3
![]()
кН
![]()
кН
![]()
кНм
![]()
кНм



кПа

кПа
кН/м3
![]()
кН/м3
;
кПа;
;
; ![]()
;
; ![]()

кПа
кПа
![]()
![]()
Расчет осадки основания


![]()
![]()
м
![]()
м
м
м
м
м
![]()
![]()
кПа
кПа



![]()
м
Что гораздо меньше предельной 8 см таб.5.26[1].
7. Выбор оборудования для забивки свай.
Определяем минимальную энергию удара по формуле 8.21 [1].
![]()
Дж
а=25 Дж/кН – коэф.;
Fv – расчетная нагрузка, допускаемая на одну сваю.
Из т. 9.5 [5] выбираем дизель молот С – 995 с энергией удара 33 кДж.
Расчет отказа сваи.
формула 9.12 [5]
h = 1500 кН/м2 стр. 207 [5], M = 1 стр. 207 [5],
A = 0.09 м2 , площадь поперечного сечения сваи
m1 = 2600 кг, масса молота
m2 = 2250 кг, масса сваи
m3 = 1250 кг, масса ударной части
E2 = 0.2 коэффициент восстановления удара
м
Что больше допустимого 0.002 м, т.е. сваебойное оборудование подобрано верно.
8. Устройство котлована.
Глубина котлована 2.4 м. При устройстве котлована запроектированы естественные откосы с уклоном 1:1. Размеры котлована понизу – 100.2х123.6 м2 , по верху – 105х128.4 м2 . На основании стр.26[10] и гл.7 [6] подобрана следующая землеройная машина:
Экскаватор с гидравлическим приводом при работе обратной лопатой ЭО-4121 мощностью 95 кВт, объемом ковша 1 м3 .
9. Защита котлована от подземных вод.
Водопонижение осуществляем с помощью открытого водоотлива и производим в течение всего времени устройства фундаментов и других подземных частей здания, расположенных ниже уровня подземных вод, до тех пор, пока нагрузки от конструкции не превысят возникающее гидростатическое давление и не обеспечат устойчивость подземных сооружений от всплывания.
Открытый водоотлив осуществляется прямо из котлована насосами. Для сохранения природного сложения грунтов оно должно вестись с опережением земляных работ в определенной последовательности. Вода откачивается из приямков, куда она поступает из канавок глубиной 0.3-0.5 м, расположенных по периметру котлована с уклоном i=0.01-0.02 в сторону приямков. Приямки устраивают не ближе 1 метра от граней фундамента. По мере разработки котлована приямки заглубляются вместе с канавками. Приямки заглубляются не менее чем на 0.7-1 м, и уровень воды в них поддерживается на 0.3-0.5 м ниже дна вырытого котлована.
10. Список используемой литературы.
1. Справочник проектировщика «Основания,фундаменты и подземные сооружения ». Под редакцией Е.А. Сорочана, Ю.Г. Трофименкова. М.,1985.
нова, М., Стройиздат, 1984.
2. СНиП 2.02.01 – 83 «Основания зданий и сооружений», М., 1985.
3. СНиП 2.02.03 – 85 «Свайные фундаменты», М., 1986.
4. СНиП 2.01.07 – 85 «Нагрузки и воздействия», М., 1988.
5. Н.А. Цытович «Механика грунтов. Краткий курс», М., 1983.
6. В.А. Веселов «Проектирование оснований и фундаментов» М.,1990.
7. Руководство по выбору проектных решений фундаментов НИИОСП им. Н.М. Герсева
8. Е.Г. Кутухтин «Конструкции промышленных и сельскохозяйственных зданий и сооружений», М., 1995.
9. Примакина Е. И. «Методические указания на расчет оснований под ФМЗ и свайные»
10. Цыбакин С.В. «Методические указания на производство земляных работ»