| Скачать .docx |
Реферат: Принципы организации внутреннего пространства
Содержание:
Классификация общественных зданий______________________________4
Общие планировочные элементы__________________________________6
Принципы организации внутреннего пространства___________________11
Приёмы объёмно-планировочных решений_________________________16
Требования пожарной безопасности_______________________________17
Схемы композиционного построении планов_______________________18
Литература____________________________________________________23
Классификация общественных зданий
Гостиница - структура по приему туристов, предназначенная для размещения туристов в строении или в комплексе строений, которая предоставляет туристам соответствующим образом оборудованные комнаты или квартиры, оказывает специфические услуги, имеет бюро обслуживания и площади для сервировки столов в помещении.
Категории классификации гостиниц следующие: 5, 4, 3, 2, 1-звездные;
Гостиница-квартира - структура по приему туристов, предназначенная для размещения туристов в строении или в комплексе строений, состоящих из квартир или однокомнатных номеров, оборудование которых обеспечивает хранение и приготовление пищи, а также сервировку стола в их помещении.
Категории классификации гостиниц-квартир следующие: 5,4,3,2-звездные;
Мотель - структура по приему туристов, предназначенная для размещения туристов, расположенная, как правило, за чертой населенного пункта, в непосредственной близости от важных дорожных магистралей, оборудованная и обустроенная как для размещения и питания туристов, так и для парковки транспортных средств в условиях полной безопасности.
Категории классификации мотелей следующие: 3, 2, 1-звездные;
Туристическая вилла - структура по приему туристов со сравнительно ограниченной вместимостью, предназначенная для размещения туристов и действующая в отдельном строении, расположенном, как правило, в зонах, представляющих интерес для туризма, которая оказывает туристам специфические услуги.
Категории классификации вилл следующие: 5, 4, 3, 2, 1-звездные;
Бунгало - структура по приему туристов с ограниченной вместимостью, предназначенная для размещения туристов, выполненная, как правило, из дерева или из других легких материалов, соответствующих климатическим условиям данной географической зоны.
Категории классификации бунгало следующие: 3, 2, 1-звездные;
Туристический пансион - структура по приему туристов, расположенная в городской или сельской местности, предназначенная для размещения туристов, вместимостью от 3 до 20 комнат, действующая в частных домах или в отдельных зданиях, которая обеспечивает и приготовление пищи, и сервировку стола.
Категории классификации туристических пансионов следующие: 4, 3, 2, 1-звездные;
Агротуристический пансион - структура по приему туристов, расположенная в сельской местности, предназначенная для размещения туристов, вместимостью от 3 до 20 комнат, действующая в частных домах или в отдельных зданиях, которая частично обеспечивает питание туристов продуктами собственного производства.
Категории классификации агротуристических пансионов следующие: 3, 2, 1-звездные;
Кемпинг - сезонная структура по приему туристов, предназначенная для размещения туристов в деревянных домиках, палатках или домиках-прицепах, обустроенная таким образом, чтобы обеспечивать парковку транспортных средств, приготовление пищи и оказание дополнительных услуг.
Категории классификации кемпингов следующие: 4, 3, 2, 1-звездные;
Лагерь отдыха - комплекс строений, как правило, вилл или бунгало, расположенный на определенной территории, который обеспечивает туристам услуги по размещению, питанию и широкий спектр дополнительных туристических услуг (развлекательные, спортивные, культурные и т.д.).
Категории классификации лагерей отдыха следующие: 3, 2-звездные;
Детский лагерь - комплекс строений вместимостью до 10 кроватей в одной комнате, размещенный на определенной территории, который обеспечивает детям и подросткам в возрасте от 7 до 16 лет услуги по размещению, питанию и широкий круг дополнительных специфических услуг.
Категории классификации детских лагерей следующие: 2, 1-звездные;
Квартира или комната, арендуемая в частных жилищах - структура по приему туристов, предназначенная для размещения туристов, состоящая из ограниченного количества площади в частном жилье, которая в том числе обеспечивает возможность приготовления пищи совместно с хозяином жилья.
Категории классификации квартир или комнат, арендуемых в частных жилищах, следующие: 3, 2, 1-звездные;
Ботель - структура по приему туристов, используемая для размещения туристов на водных суднах (морских/речных судах), специально оснащенных для путешествия или в качестве плавучей гостиницы, укрепленная на якоре в портах или в специальных местах. Категории классификации ботелей следующие: 5, 4, 3, 2, 1-звездные.
Общие планировочные элементы
Мотели располагают на автострадах на расстоянии 500 —1000 км один от другого, вблизи больших городов, а также излюбленных мест для экскурсий и отдыха в отпускной период. Выбор участка для строительства следует производить с учетом оптимального обеспечения мотеля водой, электроэнергией, газом, свежими продуктами питания, стиркой белья.
Гостиницы, заправочные станции и станции технического обслуживания автомобилей не следует размещать рядом с мотелями, однако они должны находиться достаточно близко. Относительно автострады мотель располагается так, чтобы свет фар не беспокоил проживающих. Следует избегать размещения мотелей на холмистой территории из-за шума при торможении и при включении моторов автомобилей.
Подъезды. Необходимо учитывать протяженность пути торможения (при скорости 100 км/ч — около 150 м, при скорости 70 км/ч — около 70 м). График движения посетителей: кратковременная остановка у конторы для получения номера, затем подъезд к открытой стоянке, стоянке под навесом или к гаражу, расположенным по возможности недалеко от номера. Выезд из мотеля — также мимо конторы для контроля и сдачи ключей.
Размеры. В отличие от городских гостиниц мотели, как правило, одноэтажные, свободно расположенные на земельном участке. При неравномерной сезонной загрузке мотелей рекомендуется строить на участке несколько небольших жилых корпусов (на 4-8 номеров каждый) с самостоятельными затворами и задвижками на вводах сетей водоснабжения, газоснабжения и электроснабжения. Строительство отдельно стоящих корпусов обходится дороже блокированной застройки. Крытые подъезды к конторе следует устраивать низкими, чтобы исключить возможность проезда грузовых автомобилей на территорию мотеля.

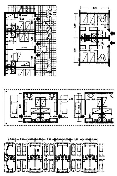
1. Номера мотеля с входной дверью и окном только с одной стороны. Показаны варианты расстановки мебели разных типов.
2. Номера мотеля с окнами с двух сторон. Такая планировка усложняет охрану номеров.
3. Крытые стоянки автомобилей между блоками номеров мотеля; такие блоки, объединенные по 3 или 6, образуют жилую группу.
4. Блоки из четырех номеров с крытыми стоянками между ними.

1. Расположение номеров уступами в плане. Слева контора и квартира управляющего.
2. Два двухместных номера с тамбурами (для холодного климата) и отдельный одноместный номер, используемый либо самостоятельно, либо как дополнительное помещение при двухместном номере (для детей).
3. Входной тамбур с совмещённым санузлом отделяют номер от автомобильной стоянки, что улучшает звукоизоляцию номера.
4. Расположение номеров уступами в плане, с входами только с одной стороны.
5. Мотель с автомобильными стоянками при каждой группе номеров и расположенным отдельно рестораном, обслуживающим не только проживающих в мотеле.
В мотеле следует предусмотреть просторную гостиную (холл), рассчитанную на одновременное пребывание всех проживающих, с нишами для чтения и писания писем, столами для игр, с радиоприемником, телевизором, киоском для продажи сувениров и т.п. Телефонные кабины должны быть оборудованы сиденьями и письменными принадлежностями, картами, телефонными справочниками и т.п., поскольку они предназначены только для междугородных переговоров.
Номера по размерам должны быть больше, чем номера городских гостиниц. Площадь номеров от 4х4 до 5х5 м, с ванной и иногда с нишей для приготовления пищи, даже в тех случаях, когда номер одноместный.
Для объединения двух смежных номеров в двухкомнатный номер в перегородке между ними предусматривается дверь. Поскольку большинство проживающих проводят в номере только одну ночь (до 90%), оборудование номеров шкафами, комодами и т.п. излишне; устраивается лишь большая открытая гардеробная стенка, в которой все вещи находятся на виду и поэтому вряд ли могут быть забыты.
Подсобные и служебные помещения: центральная прачечная, проектируемая из расчета стирки пяти комплектов постельного белья на 1 место в мотеле (1 комплект в употреблении, 3 комплекта в бельевой, 1 комплект — в прачечной); камера хранения уборочного инвентаря, в которой иногда хранится тележка для перевозки чистого и грязного белья, а также мыло, моющие средства, туалетная бумага, пылесосы, веники, щетки, тряпки и т.п.; кладовая для садового инструмента, лестниц, снегоочистителя, садовой мебели и т.д.
Гаражи по возможности должны находиться в непосредственной близости от номеров. Подъезды, территория парка, пешеходные дорожки следует дренировать, поскольку проживающие выходят из номера непосредственно наружу. Игровые площадки должны быть удалены от жилых номеров с тем, чтобы не тревожить спящих.

1. Генплан к рис, с рестораном между блоками номеров.
2. Хороший обзор всей территории мотеля с контрольного поста на въезде и выезде.

Принципы организации внутреннего пространства
Благоприятные условия жизнедеятельности человека в гостиницах обеспечиваются благодаря созданию комфорта как в самом здании гостиницы, так и на территории, прилегающей к ней. Общий комфорт внутреннего пространства гостиниц является интегрирующим понятием. Оно включает экологический, функциональный и эстетический комфорт среды любого помещения гостиницы.
Экологический комфорт создаётся оптимальным для организма человека сочетанием температуры, влажности, скорости движения воздуха и воздействия лучистого тепла.
Важным компонентом микроклимата любого помещения является инсоляция (облучение помещений солнечными лучами и естественное освещение). Продолжительность инсоляции для многих помещений гостиниц в соответствии с санитарными нормами и правилами должна составлять не менее трёх часов в день. В помещениях гостиниц, где люди проводят большую часть суток, должен быть всегда чистый и свежий воздух и нормальный шумовой режим.
Функциональный комфорт определяет удобство эксплуатации любого помещения. Он обеспечивает защиту от окружения, безопасность и осуществление всех функциональных процессов жизнедеятельности человека: сон, питание, отдых, личная гигиена, развлечения, деловые контакты и др. Разделение всех процессов жизнедеятельности человека в помещениях осуществляется приёмами функционального зонирования как общего пространства гостиницы с выделением функциональных блоков, так и микрозонированием. Микрозонирование осуществляется также посредством рационального набора оборудования и его оптимального размещения в любом интерьере.
Эстетический комфорт предопределяет положительный эмоциональный настрой человека. Это обеспечивается благодаря средствам и приёмам, с помощью которых достигается объединение всех элементов интерьера в единое для восприятия целое. Эстетический комфорт интерьера зависит, в первую очередь, от гармоничности предметно-пространственного окружения, от того, насколько достигнута целостность и согласованность его элементов.
Эстетическая организация среды, или достижение красоты интерьера, включает множество разнообразных задач. Главные из них – это композиция пространства, цветовое решение и отделка поверхностей, хозяйственная (дизайнерская) форма оборудования и мебели, решение декоративных деталей, освещение, озеленение и др.
Высота помещений по нормам не менее 2,8 м. Общие номера проектируются из расчета не менее 3 м2 и 12 м3 на одно место, а одноместные номера — 6 —8 м2 и 18 —20 м3 на место.
Общая площадь гостиницы, приходящаяся на одно место, 35 — 40 м2, в том числе на номера —50 —60% (в американских гостиницах — 70%).
Умывальник располагается в углу номера, у перегородки и по возможности вблизи водопроводного стояка, к которому возможен доступ из коридора
Шкаф и постель по возможности встраивают так, чтобы в номере оставалось достаточно свободной площади.
Для повышения звукоизоляции между коридором и номером устраивают двойные двери, встроенные стенные шкафы, иногда— встроенные умывальники, душевые кабины, раздельные или совмещенные санузлы с ванной и унитазом. Ванны при номерах теперь устанавливают почти повсеместно, особенно в двухкомнатных номерах. В передней или шлюзе устраивают вешалки для верхней одежды. Глубина шкафов для одежды в ФРГ большей частью равна 0,6 м, в США преимущественно устраиваются шкафы-гардеробы с нишей для одевания.
Окна располагают не по оси номера, а несколько сдвинув от оси в сторону, благодаря чему изголовье кровати находится не под окном. Перед окнами по возможности оставляют свободное место для удобства открывания и обзора. В двухкомнатных номерах за счет части площади гостиной возможно устройство лоджии. Многокомнатные номера целесообразно размещать в угловых частях здания . В двухместных номерах кровати ставят одну за другой вдоль поперечной перегородки; в просторных двухместных номерах кровати ставят перпендикулярно стене.
Оснащение и отделка номеров: отделка — простая, гигиеничная, прочная, моющаяся. Перегородки — звуконепроницаемые, окна — с двойными переплетами, освещение – общее и настольное. Звонок и телефон с длинными шнурами — у кровати, рядом с письменным столом. У кровати — шнуровой настенный выключатель, иногда — кнопка для дистанционного запирания дверей. Предусматривается розетка для подключения пылесоса. Покрытие пола в номерах — деревянное или ковровое, а ванной — метлахская плитка; пол перед умывальником в номере также из керамических плиток, заглубленный на 1 см.
Мебель в номере: кровать размером 0,9х1,95 м (иногда откидная), в небольших номерах служит также и в качестве дивана; шкаф для платья, белья, шляп и обуви, а также для грязного белья глубиной 60 см, шириной 50 см; оптимальная ширина 75 —100 см; ночной столик размером 40х40 см, 2 кресла и диван, 1 стол, подставка для чемоданов 50х80 см высотой 40 см, скамеечка для снимания сапог, умывальник, позади зеркала — шкафчики для медикаментов, вешалка для полотенец.




Габариты функциональных зон и проходов на основе антропологических данных: А - стена, Б - низкая мебель.
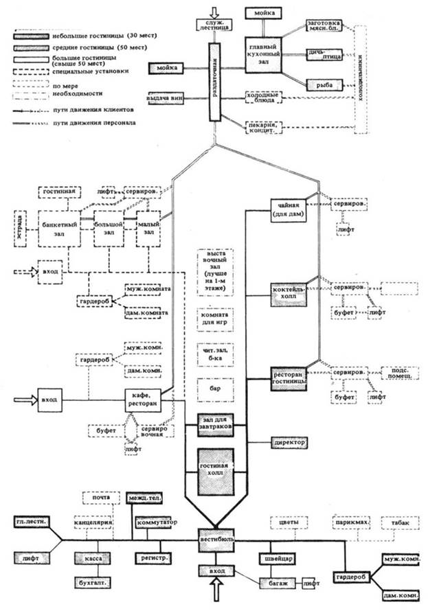
Характер планировочной организации мебели зависит также от типа функционального блока гостиницы в котором она размещается. Так, например, номенклатура вида мебельных изделий приёмно-вспомогательных помещений с вестибюлем зависят от функции помещений этой группы, а также от динамики технологических процессов, происходящих в них.
Приёмы объёмно-планировочных решений
Первоначально здание гостиницы строилось в виде массива, отдельно располагаемого или сопряженного с окружающими общественными и жилыми зданиями. Длительный поиск наилучших планировочных решений привел к созданию пространственной композиции, специально предназначенной для деятельности, выполняемых в гостиницах. Помещения для ночевки туристов обосабливаются от помещений, связанных с оказанием иных услуг туристам.
Соответствующие помещения распределяются в различные функциональные (архитектурные) блоки.
Основные принципы, принимаемые во внимание при сооружении здании гостиниц, таковы:
1. Здание (или комплекс зданий) должны органически вписываться в окружающую среду, сохраняя особенности городского или сельского ландшафта.
2. Следует учитывать природно-климатические факторы, температуру и влажность воздуха, количество осадков, инсоляцию, скорость и направление ветра и пр.
3. Архитектурное, конструктивное и планировочное решения здания не должны быть чрезмерно дорогими. Планировка здания должна обеспечивать экономичность его эксплуатации. Основные усилия проектантов направляются на рациональное сочетание текущих и единовременных затрат.
4. При проектировании здания определенную роль играют рекламные соображения: обеспечение оформления фасада, подчеркивающего престижность гостиницы; установление рекордов определенного направления (постройка самого высокого здания, самого экзотичного здания и т.д.); расположение витрин гостиничных торговых центров и пр.
5. Планировка здания должна обеспечивать рациональную организацию обслуживания и соответствующий комфорт проживающим, отвечать функциональным требованиям.
6. Здание должно соответствовать эстетическим, техническим, санитарно-гигиеническим, экологическим нормам и рекомендациям. Следует предусматривать возможность реконструкции здания.
7. Необходимо соблюдать условия экономичности процесса строительства здания.
Проектирование гостиниц осуществляется на основе документов нормативного и рекомендательного характера. Содержание этих документов различается по странам и по гостиничным цепям.
В проекте гостиницы регламентируются показатели объема здания, площади застройки, стоимости строительства, материалов, конструкций, инженерного оборудования, предприятий питания, дополнительных услуг проживающим указывается число мест и номеров, а также соотношение мест, размещаемых в номерах разной вместимости.
Требования пожарной безопасности
Здания, в которых будут располагаться гостиницы, отели, санатории должны соответствовать строительным нормам и правилам СНиП 21-01-97* Пожарная безопасность зданий и сооружений», НПБ 104-03 «Системы оповещения и управления эвакуацией людей при пожарах в зданиях и сооружениях» - эти нормы устанавливают требования пожарной безопасности к системам оповещения и управления эвакуацией людей при пожарах в различных зданиях и сооружениях, также другие нормативы которые имеют отношение к пожарной безопасности.
Основные требования и меры по обеспечению пожарной безопасности гостиниц, отелей, санаториев прописаны в Правилах Пожарной безопасности ППБ 01-03 в разделе III. Здания для проживания людей:
125. В номерах гостиниц, кемпингов, мотелей и общежитий должны быть вывешены планы эвакуации на случай пожара.
126. Все прибывающие в гостиницу, кемпинг, мотель, общежитие граждане должны быть ознакомлены (под роспись) с правилами пожарной безопасности.
127. В гостиницах, кемпингах, мотелях и общежитиях, предназначенных для проживания иностранных граждан, памятки о мерах пожарной безопасности должны выполняться на нескольких языках.
128. В помещениях зданий для проживания людей (гостиницы, кемпинги, мотели, общежития, школы-интернаты, дома для престарелых и инвалидов, детские дома и другие здания за исключением жилых домов) запрещается пользоваться электронагревательными приборами (в том числе кипятильниками, электрочайниками, электроутюгами, электроплитками), не имеющими устройств тепловой защиты, без подставок из негорючих теплоизоляционных материалов, исключающих опасность возникновения пожара.
129. Обслуживающий персонал зданий для проживания людей (гостиницы, кемпинги, мотели, общежития, школы-интернаты, дома для престарелых и инвалидов, детские дома и другие здания за исключением жилых домов) должен быть обеспечен индивидуальными средствами фильтрующего действия для защиты органов дыхания, которые должны храниться непосредственно на рабочем месте обслуживающего персонала.
Кроме этого, указанные здания высотой 5 и более этажей должны быть обеспечены индивидуальными спасательными устройствами (комплектом спасательного снаряжения или лестницей навесной спасательной) из расчета одно устройство на каждые 30 человек, находящихся на этаже здания. Индивидуальные спасательные устройства должны храниться в доступном для каждого человека на этаже месте, имеющем соответствующее обозначение указательным знаком пожарной безопасности. Каждое индивидуальное спасательное устройство должно быть снабжено биркой с указанием двух ближайших помещений, оборудованных приспособлениями для крепления устройства.
Схемы композиционного построении планов





Литература:
1.Байлик С.И. Гостиничное хозяйство. Проблемы, перспектива,
сертификация. – К.: ВИРА-Р, 2001.
2.Байлик С.И. Проектирование и эксплуатация гостиниц. – К., 1995.
3.Колчанова Г.И. Интерьер современных гостиниц «Издательство
литературы по строительству» М.: 1971.
4.Лукьянова Л.Г. Интерьер гостиниц. – К.: Выща шк., 1991.
5.Манучарова Н.Д. Мебелировка и эстетическое оформление
гостиниц «Выща школа», 1973.
6.Москалёва В.Н. Гостиницы большой вместимости. – Челябинск, 1993.