| Скачать .docx |
Реферат: Типы сварных монтажных соединений в конструкциях мостов. Способы сварки
Государственное образовательное учреждение
высшего профессионального образования
Омский государственный технический университет
Кафедра «Оборудование и технология сварочного производства»
РЕФЕРАТ
по дисциплине: «История развития сварочного производства»
на тему: «Типы сварных монтажных соединений в конструкциях мостов.
Способы сварки»
Выполнил:
Студент гр. ЗС-110
Сафронов И.В.
Проверил:
к.т.н., доцент
Шестель Л.А.
Омск – 2010-2011 г.г.
Введение
Сваркакак способ получения неразъемного соединения материалов открывает широкие возможности снижения трудоемкости изготовления и монтажа конструкций, расширяет возможности использования в конструкциях рациональных типов сечений, позволяющих существенно снизить металлоемкость, при создании сварных конструкций должно быть обеспечено комплексное решение научных проектных и производственных задач, включая раз работку хорошо свариваемых сталей, методов расчета и конструирования сварных соединений и узлов, наиболее полно отвечающих их действительной работе, создание высоко производительных сварочных процессов, оборудования и материалов, а также изыскание новых конструктивных форм, отвечающих требованиям высокой технологичности изготовления и заводской готовности конструкций.
Тема сварки при изготовлении и монтаже строительных конструкций очень обширна. Разнообразие строительных металлических конструкций столь велико, специфика их проектирования, изготовления и строительства весьма разнообразны.
Использование сварных монтажных соединений в конструкциях мостов широко распространено во всем мире. В мировой практике сварного мостостроения имеются большие научно-технические успехи в области проектирования, изготовления, монтажа и сварки автодорожных и городских мостов. Во всем мире ежегодно изготавливается порядке 50-60 тысяч тонн мостовых конструкций. Новые разработки технологий дуговой сварки и материалы находят применение при изготовлении и монтаже мостовых конструкций.
Типы сварных монтажных соединений в конструкциях мостов. Способы сварки
Для сварных монтажных соединений мостовых конструкций допускается применять следующие способы электродуговой сварки:
– автоматическую под флюсом сплошной проволокой с металлохимической присадкой на подкладках;
– автоматическую и полуавтоматическую под флюсом сплошной проволокой, в том числе по ручной подварке корня шва;
– механизированную самозащитной порошковой проволокой (вертикальных швов);
– полуавтоматическую сплошной и порошковой проволокой в среде защитных газов;
– ручную.
Типы монтажных соединений и способы сварки должны соответствовать требованиям:
1. ГОСТ 8713-79 «Сварка под флюсом. Соединения сварные. Основные типы, конструктивные элементы и размеры»;
2. ГОСТ 11533-75 «Автоматическая и полуавтоматическая сварка под флюсом. Сварные соединения под острыми и тупыми углами. Основные типы, конструктивные элементы и размеры»;
3. ГОСТ 5264-80 «Ручная дуговая сварка. Соединения сварные. Основные типы, конструктивные элементы и размеры»;
4. ГОСТ 11534-75 «Ручная дуговая сварка. Соединения сварные под острыми и тупыми углами. Основные типы, конструктивные элементы и размеры»;
5. ГОСТ 14771-76 «Дуговая сварка в защитном газе. Соединения сварные. Основные типы, конструктивные элементы и размеры».
Для сложных конструкций и новых технологий, кроме того, надлежит руководствоваться инструкциями по технологии монтажной сварки, разрабатываемыми специализированными научно-исследовательскими институтами.
Условные обозначения сварных монтажных соединений в соответствии с вышеуказанными стандартами приведены в таблице 1.
Таблица 1. Типы и условные обозначения на чертежах КМ и КМД швов сварных монтажных соединений в соответствии с ГОСТ 2.312, ГОСТ 8713, ГОСТ 5264 и ГОСТ 16098
| Условное обозначение и тип сварного соединения | Подготовка кромок | Форма и характеристика швов | Способы сварки | Обозначение на чертежах КМ и КМД |
| С4 стыковое |
без скоса кромок |
односторонний |
АФП – автоматическая под флюсом на съемной подкладке | |
| С18 стыковое |
со скосом кромок |
односторонний |
АФП – автоматическая под флюсом на съемной подкладке | |
| С8 стыковое |
со скосом одной кромки |
односторонний |
Р – ручная, горизонтальный или вертикальный шов на вертикальной плоскости | |
| С15 стыковое |
со скосом двух кромок |
двусторонний |
Р – ручная, горизонтальный или вертикальный шов на вертикальной плоскости | |
| С25 стыковое |
со скосом четырех кромок |
двусторонний |
Р – ручная, горизонтальный или вертикальный шов на вертикальной плоскости | |
| Т3 тавровое |
без скоса кромок |
двусторонний |
АФ – автоматическая и полуавтоматическая под флюсом, Р – ручная |
продолжение Таблицы 1
| Т6 тавровое |
со скосом одной кромки |
односторонний |
Р – ручная | |
| Т7 тавровое |
со скосом одной кромки |
двусторонний |
АФ – автоматическая и полуавтоматическая под флюсом, Р – ручная |
|
| Т8 тавровое |
со скосом двух кромок |
двусторонний со сплошным проплавлением |
АФ – автоматическая и полуавтоматическая под флюсом, Р – ручная |
|
| Т9 тавровое |
со скосом двух кромок |
двусторонний без сплошного проплавления |
Р – ручная | |
| Н1 нахлесточное |
без скоса |
односторонний |
АФ – автоматическая и полуавтоматическая под флюсом, Р – ручная |
|
| Н2 нахлесточное |
без скоса |
двусторонний |
АФ – автоматическая и полуавтоматическая под флюсом, Р – ручная |
* – длина шва (проставляется при необходимости);
** – катет, мм.
По взаимному положению свариваемых элементов различают стыковые, угловые, тавровые и нахлесточные соединения (рис. 1, ГОСТ 2601-84 «Сварка металлов. Термины и определения основных понятий»).

Рис. 1. Типы сварных монтажных соединений:
а) стыковые, односторонние и двусторонние; б) угловое; в) тавровое; г) нахлесточное
По расположению в пространстве на момент сварки швы могут быть в нижнем, горизонтальном, вертикальном и потолочном положениях (рис. 2, ГОСТ 11969-79 «Сварка плавлением. Основные положения и их обозначения»).

Рис. 2. Пространственное положение швов при монтажной сварке
а) нижнее; б) горизонтальное; в) вертикальное; г) потолочное
Независимо от пространственного положения и типа шва монтажные сварные соединения в мостах должны обеспечивать передачу всех расчетных усилий, действующих в соединяемых элементах. Прочность сварных соединений при статических испытаниях должна быть не ниже прочности основного металла; показатели ударной вязкости, относительного удлинения и твердости по металлу шва и по линии сплавления должны отвечать принятым требованиям.
При проектировании сварных конструкций предпочтение следует отдавать стыковым соединениям (С), выполняемым механизированными способами. Угловые (У), тавровые (Т) и нахлесточные (Н) соединения, если они необходимы на монтаже, должны выполняться преимущественно в нижнем положении и тоже механизированными способами. Следует избегать протяженной потолочной, горизонтальной и вертикальной ручной дуговой сварки узлов и конструкций.
Стыковые односторонние соединения в нижнем положении (рис. 1а слева) должны выполняться автоматической сваркой с применением различных типов подкладок с обратным формированием корня шва.
Стыковые соединения с двусторонними швами (рис. 1а справа) допускаются в конструкциях, которые в процессе сборки и сварки могут быть перекантованы, или в местах, требующих сплошного проплавления в вертикальном или горизонтальном положениях (стыки ребер со вставками, соединения ребер опорных диафрагм с продольными ребрами и т.д.).
Для стыковых односторонних или двусторонних соединений поясов балок при соответствующем обосновании допускается полуавтоматическая или ручная сварка взамен автоматической.
Форму подготовки кромок, тип соединения, пространственное положение шва и способ сварки следует указывать в чертежах КМ. При последующей разработке ППСР форма подготовки кромок должна уточняться в соответствии с назначаемой технологией сварки.
При проектировании стыковых сварных соединений горизонтальных листов с изменением их толщины в зоне стыка необходимо с нижней стороны, где устанавливаются формирующие съемные подкладки, предусматривать горизонтальную площадку шириной не менее 70 мм.
При изменении в зоне сварного стыка ширины листа следует оставлять прямолинейные площадки по кромкам на длину 100-150 мм в каждую сторону от шва для установки выводных планок или выводные планки со стороны уширения делать с соответствующими скосами.
Сварку на монтаже мостов применяют главным образом для соединения основных несущих конструкций стальных пролетных строений сплошностенчатых двутавровых и L-образных балок, составных и цельноперевозимых блоков коробчатых сечений, настильных листов ортотропных плит, ребристых плит (рис. 3). Конструкция монтажных соединений должна обеспечивать беспрепятственное выполнение сварки на всей длине шва.

Рис. 3. Схемы поперечных сечений стальных пролетных строений со сварными монтажными стыками
а) балочное; б) коробчатое из цельноперевозимых коробок полной заводской готовности; в) коробчатое, собираемое на монтаже из L-образных балок
1 – продольные сварные стыки; 2 – ортотропные плиты; 3 – фрикционно-болтовые стыки поперечных балок ортотропных плит; 4 – гдавные двутавровые балки; 5 – цельноперевозимые коробки; 6 – L-образные элементы; 7 – ребристые нижние плиты; 8 – вертикальные сварные стыки поперечных ребер; 9 – стыки поясов роббер; 10 - вставки
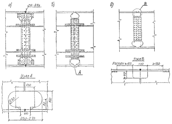
Монтажные стыки двутавровых, L-образных и коробчатых сплошностенчатых балок могут быть цельносварными (рис. 4) и комбинированными фрикционно-сварными (рис. 5). На выбор типа стыка в определенной степени влияет способ монтажа пролетных строений. При сборке пролетных строений на берегу с последующим перемещением их на опоры предпочтение отдается цельносварным стыкам; при навесной полунавесной и уравновешенно-навесной сборке целесообразно применение комбинированных стыков.

Рис. 4. Конструкция цельносварного стыка главных балок (а) и подготовка его к сварке (б):
1 – вставка стенки; 2 – вставки ребер; 3 – вставка верхнего пояса; l –длина вставки; принимается в зависимости от ширины и толщины пояса; b – 400-600 мм, в зависимости от марки сварочного трактора

Рис. 5. Конструкция комбинированного фрикционного сварного стыка
а) стык в сборе; б) начальная стадия сборки; в) вариант стыка;
узел А – технологическое отверстие у нижнего пояса; узел В – технологическое отверстие у верхнего пояса
В комбинированных фрикционно-сварных стыках главных балок стыковые сварные соединения верхнего пояса рекомендуется проектировать без вставки, т.е. «совмещенными», с расположением стыковых швов поясов в одном сечении с осью симметрии болтового соединения стенки. Величина требуемого зазора в соединении верхнего пояса обеспечивается, как правило, при заводском изготовлении.
Допускается в отдельных случаях проектировать монтажные блоки главных балок с прирезаемым на монтаже припуском длины верхнего пояса на одном из торцов блока. Прирезка припуска выполняется в этом случае без дополнительного монтажа блока.
В зоне стыкового шва верхнего пояса в стенках стыкуемых блоков необходимо предусматривать скругленные вырезы высотой и шириной не менее 50 мм для пропуска формирующих подкладок (рис. 5, узел В), или симметричные вырезы по рис. 5б.
В зоне стыкового шва нижнего пояса в стенке необходимо предусматривать технологическое отверстие для пропуска удлинительной приставки сварочного автомата высотой не менее 140 мм от верхней плоскости пояса. Боковые кромки отверстия очерчивают по полуокружности радиусом 60 мм с центром, отнесенным от оси стыкового шва на 70-75 мм, находящимся на высоте 80 мм от верхней плоскости поясного листа. Торец обрыва стенки должен находиться на расстоянии 55 мм от оси шва для беспрепятственного прохода удлинительной приставки, а после заварки роспуска и зачистки границ плавного перехода стенки к металлу пояса – на расстоянии не менее 50 мм от границы стыкового шва пояса (рис. 5, узел А).
Допускается конструкция сварного стыка верхнего пояса со вставкой.
Поперечные и продольные стыки нижних ребристых плит и стыки примыкания нижних плит к поясам главных балок выполняют автоматической односторонней сваркой встык на подкладках с обратным формированием корня шва. Вертикальные стыки стенок главных балок сваривают механизированным способом. Продольные и поперечные ребра нижних ребристых плит сваривают, как правило, механизированным способом или ручной дуговой сваркой.
Все угловые швы, в том числе проектные роспуски, по нижним ребристым плитам выполняют полуавтоматической или ручной дуговой сваркой (рис. 6).

Рис. 6. Цельносварной стык ребристой плиты
1 – вставка; 2 – ребро продольное; 3 – лист плиты; 4-7 – последовательность сварки
Продольные и поперечные стыковые швы настильного листа ортотропных плит, а также стыки примыкания к поясам главных балок выполняют автоматической сваркой на подкладках различного типа с обратным формированием корня шва.
Стыки продольных ребер ортотропных плит допускается выполнять по рис. 7 (сеч. А-А) без приварки прокладки. В случаях, если проектное расстояние между торцами продольных ребер соседних плит превышает 100 мм, для обеспечения устойчивости листа настила в районе стыка при действии монтажных и расчетных нагрузок следует приваривать вставку между стыковыми накладками продольных ребер к нижней плоскости листа настила.

Рис. 7. Болтосварные стыки ортотропных плит между собой и с главными балками
1 – накладка; 2 – прокладка; 3 – ребро; 4 – настильный лист
Элементы связей с узловыми фасонками можно объединять на высокопрочных болтах или ручной дуговой сваркой. В соединениях домкратных балок и опорных диафрагм с главными балками предпочтение следует отдавать фрикционным соединениям на высокопрочных болтах.
Монтажную сварку выполняют в соответствии с утвержденным технологическим процессом, устанавливающим последовательность сборо-сварочных операций на конкретном объекте, применяемую оснастку, инструмент, оборудование, сварочные материалы, режим сварки и порядок наложения швов, операции по контролю качества.
Заключение
Список используемой литературы:




