| Скачать .docx |
Дипломная работа: Многоэтажное жилое здание
Министерство образования и науки Российской Федерации
Алтайский государственный технический университет им. И.И. Ползунова.
Кафедра теории и истории архитектуры
Пояснительная записка к курсовой работе №2 по архитектуре:
"Многоэтажное жилое здание"
Выполнил: Кошман А.
Руководитель: Халтурина Л.В.
Барнаул - 2005
1. Исходные данные для проектирования
1.1 Краткая характеристика природно-климатических условий места строительства
1.2 Краткая характеристика здания
2. Объемно-планировочное решение
3.1 Конструктивная схема и система
3.4 Внутренние стены и перегородки
Лист 1: фасад 1-9.
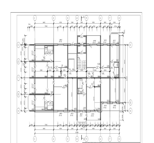
Лист 2: план первого этажа.
Лист 3: план типового этажа.
Лист 4: разрез А-Д.
Лист 5: план перекрытий.
Лист 6: план кровли.
Лист 7: узел А, козырек над входом.
Введение
Крупнопанельная строительная система имеет преимущества в экономичности и быстроте возведения. Недостатками стали малая возможность перепланировки и архитектурная невыразительность жилой застройки.
В настоящее время большинство панельных зданий перестали удовлетворять требованиям строительной теплотехники, в частности, по сопротивлению наружной стены теплопередаче. В целях экономии многие задания подверглись реконструкции с целью увеличения значения коэффициента сопротивления теплопередаче, которая заключалась в утеплении наружных стен здания эффективными материалами, а также замене окон и балконных дверей, что способствовало уменьшению теплопотерь здания. В данном проекте рассматривается способ реконструкции здания с целью повышения коэффициента сопротивления теплопередаче.
1. Исходные данные для проектирования
Проект представляет собой проект реконструкции двухсекционного 5-этажного 36-квартирного жилого дома в г. Иркутск. Проект разрабатывается на основании задания, выданного кафедрой ТИАрх.
1.1 Краткая характеристика природно-климатических условий места строительства
Место строительства - г. Иркутск
Строительный климатический район - 1В
Температура наиболее холодных суток (обеспеченностью 0,92) - 24,3°С
Температура наиболее холодной пятидневки (обеспеченностью 0,92) - 36°С
Период со среднесуточной температурой < 8°С: продолжительность 240 суток
ср. температура - 8,5°С
Снеговой район - V
Снеговая нагрузка - 3,2 кПа
Господствующее направление ветров: декабрь-февраль - ЮЗ
июнь-август - З
Нормативная глубина промерзания грунта -
Рельеф местности ровный, уровень грунтовых вод до 10 м не обнаружен
1.2 Краткая характеристика здания
Класс здания - II
Степень долговечности - II
Степень огнестойкости - II
Класс функциональной пожарной опасности - Ф1.3
Расчётная температура и влажность в помещениях.
Жилые комнаты - 21 °С
Кухни - 18 °С
Ванные комнаты - 25 °С
Санузлы - 18 °С
Лестничные клетки - 16 °С
2. Объемно-планировочное решение
9-этажный 36-квартирный жилой дом с подвальным этажом и холодным чердаком. Здание прямоугольное в плане и расстоянием в осях: 1-8 - 27 м, А-Е - 12 м. Данное здание является односекционным. Общая высота здания - 29,66 м, высота этажа - 3 м, высота подвала - 2,9 м. Ориентация здания - меридиональная. Вход в здание осуществляется через двойной тамбур. Сообщение между этажами осуществляется с помощью маршевой лестницы и лифта.
Вход в подвал осуществляется с лестничной клетки. Вход в квартиры осуществляется с лестничной площадки через коридор.
Планировка квартиры сделана с учётом принципа функционального зонирования помещений: жилые комнаты разделены с кухней и санузлом прихожей.
В 2-комнатных квартирах общая и индивидуальная зоны совмещены, в 3-4-комнатных квартирах - разделены между собой. Зона летних помещений представлена балконами. Балконы и лоджии устраиваются со 1 по 9 этажи.
2.1 Расчёт ТЭП
Строительный объём: 42х14,4х19,4 = 11733,12 м3 ;
Площадь застройки: 14,4х42 = 460,8 м2
Площадь квартиры:
2-комн: 13,06 + 3,68 + 7,30 + 19,58 + 3,16 + 4, 20= 50,98 м2 ;
2-комн: 9,71 + 4,20 + 4,20 + 3,68 + 4,74 + 9,60 + 23,40 = 59,53 м2 ;
3-комн: 17,57 + 4,20 + 8,26 + 9,71 + 3,68 + 10,65 + 4,20 + 4,94 + 2,96 = 66,17 м2 ;
4-комн: 17,57 + 8,26 + 8,43 + 10,13 + 9,60 + 3,68 + 4,20 + 5,87 + 4,20 = 71,94 м2 .
Площадь здания: ( (50,98 + 59,53 + 66,17 + 71,94 + 24,85 (лестничная площадка)) х2) х5 = = 2734,7 м2
3. Конструктивное решение
3.1 Конструктивная схема и система
Конструктивная схема здания - стеновая с несущими продольными и поперечными стенами и опиранием плит перекрытия по четырём сторонам. Пространственная устойчивость здания достигается связями между вертикальными и горизонтальными элементами.
3.2 Фундамент
В здании устроен свайный безростверковый фундамент. Плиты перекрытия опираются на ж/б сваи через оголовки. Пространство выше уровня земли до перекрытия первого этажа закрывается цокольными панелями.
Для защиты от осадков вокруг здания по периметру устраивается отмостка шириной 1100 мм из асфальтобетона по щебеночной подготовке.
3.3 Стены наружные
В качестве наружной стены используется трехслойные панели толщиной 300 мм. Снаружи панель отделана слоем водонепроницаемого бетона толщиной 25 мм, изнутри -
слоем цементно-песчаной штукатурки толщиной 15 мм. При реконструкции было произведено утепление полужесткими минераловатными плитами, толщиной 230 мм с последующим устройством вентилируемого фасада. Конечная стена, таким образом, имеет вид:

Горизонтальный стык панелей - платформенный. Вертикальный стык - закрытый. При стыках панелей используются связи типа "петля-скоба". Такие конструкции стыков обеспечивают герметичность и теплостойкость места стыка.
3.4 Внутренние стены и перегородки
В качестве внутренних стен применяются ж/б панели толщиной 160 мм. Стыки внутренних панелей скрепляются связями и замоноличиваются. Панели изготовляются из легкого бетона марки не менее 100 толщиной 180 мм. Несущая способность панелей в зоне примыкания к вертикальным стыкам повышается за счёт конструктивного армирования. Звукоизоляция панелей обеспечивается их толщиной, звукоизоляция места стыка - заведением панелей и плит в стыки не менее чем на 50 мм и устройством бетонных или растворных шпонок. В устья стыка заводятся упругие прокладки.
Перегородки выполняются из гипсобетонных плит размером "на комнату": однослойных внутри квартиры и двойных со звукоизоляционной воздушной прослойкой между квартирами.
3.5 Перекрытия
В качестве перекрытия в данном проекте применяются плоские ж/б плиты толщиной 160 мм из бетона марки не менее 200. Для формирования пространственной жесткости здания плиты перекрытия соединяются между собой и с несущими стенами стальными связями, которые привариваются к строповочным петлям и выпускам арматуры. В плитах предусмотрены горизонтальные каналы диаметром 25 мм для скрытой электропроводки, а также отверстия для вентиляционных блоков размерами 840х270 мм
Чердачное перекрытие выполняется аналогично междуэтажному за исключением конструкции пола.
3.6 Крыша
В данном проекте предусмотрена чердачная теплая безрулонная крыша с уклоном i = 0.053. В качестве плит покрытия используются утеплённые кровельные ж/б панели толщиной 360 мм.
Гидроизоляция покрытия осуществляется путём заводского нанесения слоя гидроизолирующей мастики на верхнюю поверхность плиты.
Для водоотвода с покрытия применяются лотковые панели. Водоотвод здания - внутренний организованный, осуществляется путём сбора влаги с покрытия в лотковые панели, затем через водоотводные воронки по трубам в систему канализации. Воронки располагаются по одной на секцию в средней лотковой панели.
3.7 Лестницы и лифты
Для сообщения между этажами здания и в целях эвакуации в здании предусмотрена маршевая лестница с П-образными полнотелыми маршами с фризовыми ступенями. Размер лестничного марша 1200х2400мм. Лестничные площадки опираются на поперечные стены и имеют размеры 3000х1500 мм.
Лестничная клетка имеет естественное освещение через оконные проёмы 1510х1510 мм, устроенные в наружных стенах. Лифтовая кабина имеет габариты 1900х1900 мм, она не связывается с остальными конструкциями.
3.8 Окна и двери
Окна в здании принимаются по теплотехническому расчёту, для полученного значения требуемого сопротивления теплопередаче рекомендуются окна и балконные двери с двухкамерным стеклопакетом из стекла с твёрдым селективным покрытием.
Спецификация окон и балконных дверей:
| Номер |
Маркировка |
Размеры |
Количество |
||
| Первый этаж |
Типовой этаж |
Общее |
|||
| 1 |
ОРСП 15-18 |
1510х1810 |
2 |
2 |
18 |
| 2 |
ОРСП 15-15 |
1510х1510 |
3 |
4 |
35 |
| 3 |
ОРСП 15-12 |
1510х1210 |
2 |
2 |
18 |
| 4 |
ОРСП 15-9 |
1510х910 |
6 |
6 |
54 |
| 5 |
БРСП 21-9Л |
2070х910 |
2 |
2 |
18 |
| 6 |
БРСП 21-7,5 |
2070х760 |
2 |
2 |
18 |
| 7 |
БРСП 21-7,5Л |
2070х760 |
6 |
6 |
54 |
Спецификация дверей:
| Номер |
Маркировка |
Размеры |
Количество |
||
| Первый этаж |
Типовой этаж |
Общее |
|||
| 1 |
ДГ 21-6 |
2070х670 |
4 |
4 |
36 |
| 2 |
ДГ 21-6Л |
2070х670 |
4 |
4 |
36 |
| 3 |
ДГ 21-10 |
2070х1010 |
2 |
2 |
18 |
| 4 |
ДГ 21-10Л |
2070х1010 |
2 |
2 |
18 |
| 5 |
ДГ 21-9 |
2070х910 |
7 |
7 |
63 |
| 6 |
ДГ 21-9Л |
2070х910 |
5 |
5 |
45 |
| 7 |
ДГ 21-13 |
2070х1310 |
4 |
4 |
36 |
| 8 |
ДН 24-10 |
2410х1010 |
4 |
0 |
4 |
Крепление оконной коробки к откосам осуществляется шурупами, ввинчиваемыми в деревянные антисептированные пробки (по 2 на откос). Снаружи нижняя грань оконного проёма накрывается сливом.
Уплотнение притворов дверей осуществляется упругими прокладками, которые наклеиваются в четвертях коробки. Дверные полотна навешиваются на 2 петли.
Вход в здание расположен посередине главного фасада здания и служит входом в жилую часть здания. По требованиям строительной теплотехники на входе устроен двойной тамбур, предотвращающий проникновение уличного холодного воздуха в помещения в холодное время года. Глубина тамбура - 2000мм. Над тамбуром устроен козырек из консольной ж/б плиты. Детали крепления плиты показаны на листе 7 графической части.
Теплотехнический расчёт наружной стены
Согласно СНиП II-3-79 значение сопротивления теплопередачи стены Rтр 0 следует принимать не менее требуемого значения сопротивления теплопередаче R0 , определяемое из условий энергосбережения и санитарно-гигиенический условий.
Определение Rтр 0 из санитарно-гигиенических условий:
| Rтр 0 = |
n · (tв - tн ) |
| Δtн · αв |
n - коэффициент, принимаемый в зависимости от положения наружной стены по отношению к наружному воздуху;
tв - расчётная температура внутреннего воздуха;
tн - расчётная зимняя температура наружного воздуха;
Δtн - нормативный перепад между температурой внутреннего воздуха и температурой внутренней поверхности ограждающей конструкции;
αв - коэффициент теплоотдачи внутренней поверхности ограждающей конструкции.
| Rтр 0 = |
1 · (21 - (-24,7)) |
= 1,31 м2 ·°С / Вт |
| 4 · 8,7 |
Определение Rтр 0 из условий энергосбережения:
ГСОП = (tв - tот. пер) zот. пер.
tв - расчётная температура внутреннего воздуха;
tот. пер. - средняя температура отопительного периода;
zот. пер. - продолжительность периода со среднесуточной температурой ниже или равной 8°С
ГСОП = (19 - (-5,6)) · 222 = 5461
По таблице 1б [1] определяем Rтр 0 методом интерполяции: Rтр 0 = 3,31 м2 ·°С / Вт. В дальнейшем принимается наибольшее значение требуемого сопротивления теплопередаче Rтр 0 = 3,31 м2 ·°С / Вт
Определение термического сопротивления теплопередаче:

В качестве наружной стены принимаем трехслойные панели толщиной 300 мм.
Условия эксплуатации здания:
Зона влажности - сухая;
Влажность внутреннего воздуха при температуре 21°С - 55%
В зависимости от зоны влажности и влажности внутреннего воздуха по приложению 2 принимаем условия эксплуатации А.
| Номер слоя |
Наименование слоя |
Плотность γ, кг/м3 |
Расчётный коэффициент теплопроводимости λ, Вт/ (м · °С) |
Толщина слоя δ, м |
| 1 |
Наружный отделочный слой из водонепроницаемого бетона |
1800 |
0,76 |
0,025 |
| 2 |
Внутренний отделочный слой из цементно-песчаного раствора |
1800 |
0,76 |
0,015 |
| 3 |
Несущий слой из тяжелого бетона |
500 |
1,74 |
0,05 |
| 4 |
Утеплитель минераловатный |
100 |
0,056 |
0,11 |
| 5 |
Несущий слой из тяжёлого бетон |
2500 |
1,74 |
0,10 |
| R0 = |
1 |
+ |
δ1 |
+ |
δ2 |
+ |
δ3 |
+ |
δ4 |
+ |
1 |
| αв |
λ1 |
λ2 |
λ3 |
λ4 |
αв |
αв - коэффициент теплоотдачи внутренней поверхности ограждающей конструкции;
αн - коэффициент теплоотдачи наружных стен;
δ - толщина слоя;
λ - расчётный коэффициент теплопроводности материала слоя.
| R0 = |
1 |
+ |
0,025 |
+ |
0,015 |
+ |
0,05 |
+ |
0,10 |
+ |
0,10 |
+ |
1 |
| 8,7 |
0,76 |
0,76 |
1,74 |
1,74 |
0,056 |
23 |
R0 = 2,083 м2 ·°С / Вт
Т. к. R0 < Rтр 0 , то при реконструкции здания необходимо утепление наружных стен.
Утепление стен выполняется жесткими минераловатными плитами с последующим устройством вентилируемого фасада. Плотность минераловатного утеплителя γут = 100 кг/м3 , коэффициент теплопроводности λут = 0,06 Вт/ (м · °С)

Так как принято устройство вентилируемого фасада, то необходимо сделать перерасчёт величины R0 при αн = 12.
| R0 = |
1 |
+ |
0,025 |
+ |
0,015 |
+ |
0,05 |
+ |
0,10 |
+ |
0,10 |
+ |
1 |
| 8,7 |
0,76 |
0,76 |
1,74 |
1,74 |
0,056 |
12 |
R0 = 2,123 м2 ·°С / Вт
| R0 + |
δут |
+ |
δшт |
= Rтр 0 |
| λут |
λшт |
δут = (Rтр 0 - R0 ) · λут, δут = (3,31 - 1,867) · 0,06 = 0,071 м
Согласно номенклатуре утеплителя принимаем толщину утеплителя 8 см - четыре плиты толщиной 2 см.
Определение Rтр 0 заполнения световых проёмов:
ГСОП = (tв - tот. пер) zот. пер.
ГСОП = (21 - (-8,5)) · 240 = 7080
Определяем Rтр 0 методом интерполяции:
Rтр 0 = 0,65 м2 ·°С / Вт
По данному значению Rтр 0 подбираем заполнение проёмов таким образом, чтобы их сопротивление теплопередачи было больше Rтр 0 .
Для данного значения Rтр 0 подходят окна и балконные двери с двухкамерным стеклопакетом из
стекла с мягким селективным покрытием с R0 = 0,68 м2 ·°С / Вт.
Наружные стены после утепления отделываются фасадными плитами.
Внутренние стены оштукатуриваются и отделываются в соответствие с типом помещения.
Потолки в помещениях выравнивают цементно-песчаным раствором и наносят слой побелки.
Конструкции полов:
лестничные клетки и другие внеквартирные помещения - половая плитка;
сан. узлы и ванные комнаты - кафельная плитка;
кухни - линолеумом;
остальные помещения - дощатый пол по лагам.
Проектируемый жилой дом обеспечен следующим инженерным оборудованием:
водопровод: хозяйственно-питьевой от внешней сети;
канализация: хозяйственно-бытовая с выпуском в городскую сеть;
отопление: котельная на газовом и твёрдом топливе;
вентиляция: естественная и приточно-вытяжная;
электроснабжение: от внешней сети с напряжением 380/220 В;
освещение: лампами накаливания и люминесцентными лампами;
устройства связи: телеантенна, телефонная линия;
оборудование санузлов: умывальник, ванна и унитаз.
оборудование кухни: электроплита, раковина.
Список литературы
1. Архитектура гражданских и промышленных зданий: Учебник в 5-ти томах, Т.3. Жилые здания/под ред.К. К. Шевцова/.2-е изд. М.: Стройиздат, 1983. - 239 с.
2. Маклакова Т.Г., Нанасова С.М., Шарапенко В.Г. Проектирование жилых и общественных зданий: учеб. пособие для ВУЗов/Под ред. Т.Г. Маклакова. - М.: Издательство АСВ, 2000. - 280 с
3. Шерешевский И.А. Конструирование гражданских зданий. - Л.: Стройиздат, 2005,-176с.
4. СНиП II-3-79 Строительная теплотехника.
5. СНиП 23-01-99 Строительная климатология.
6. СНиП 2.01.07-85 Нагрузки и воздействия.
7. СНиП 21-01-97 Пожарная безопасность зданий и сооружений.
8. СНиП 2.08.01-89 Жилые здания.
9. ГОСТ 6619-88 Двери деревянные внутренние для жилых и общественных зданий. Типы и конструкции.
10. ГОСТ 24698-81 Двери деревянные наружные для жилых и общественных зданий. Типы и конструкции.
11. ГОСТ 21.101-97 СПДС. Основные требования к проектам и рабочей документации.
12. Гост 21.501-93 СПДС. Правила выполнения архитектурно-строительных рабочих чертежей.
Приложения


