| Скачать .docx |
Курсовая работа: Проект производства работ на строительство трехэтажного жилого дома в г Калуга
Министерство образования культуры и спорта
Калужской области
ГОУ СПО «Коммунально-Строительный Техникум»
г. Калуга
Курсовой проект
Технология и организация строительного производства
Проект производства работ на строительство трехэтажного жилого дома в городе Калуга
Пояснительная записка
ГОУ СПО "КСТ" 2005 270103 О-41 КПТ
СОДЕРЖАНИЕ
1. Задание.
2. Технико-экономические показатели по проекту
3. Разработка календарного плана.
3.1 Ведомость подсчёта номенклатуры работ.
3.2 Подсчёт объёмов работ.
3.3 Ведомость подсчёта объёмов работ и трудоемкости.
3.4 Объединение работ в комплексе по циклам.
3.5 Выбор методов организации и способов производства работ.
3.6 Выбор средств механизации.
3.7 Календарный план выполнения работ последовательным и поточным методом, сравнение вариантов.
4. Разработка технологической карты.
4.1 Область применения карты.
4.2 Технико-экономические показатели строительного процесса.
4.3 Технология выполнения строительного процесса.
4.4 Подсчёт объёмов работ и трудоемкости.
4.5 Калькуляция трудовых денежных затрат.
4.6 Материально-технические ресурсы.
4.7 График выполнения работ.
4.8 Организация труда рабочих.
4.9 Контроль качества.
4.10 Охрана труда и техника безопасности при выполнении строительного процесса.
5. Проектирование строй-генплана.
5.1 Назначение строй-генплана.
5.2 Расчёт бытовок и складских площадей.
5.3 Определение потребности временного энергоснабжения строй – генплана.
6. Охрана окружающей среды, техника безопасности и противопожарная защита на строй площадке.
Литература.
2. Технико-экономические показатели
Площадь застройки – 637,3м²
Строительный объём – 5704м²
Трудоёмкость - 1975чел-дни.
Время строительства – 91день.
Трудоемкость на 1м³ здания - 21,7м³
3. Разработка календарного плана
Календарный план проектный документ, в котором в соответствии с характером и объёмом строительно-монтажных работ устанавливаются целесообразная последовательность работ на основе правильно разработанной технологии производства работ.
Рассчитываются сроки строительства, как объекта в целом, так и отдельных строительных работ (Процессов).
Календарный план служит основой для планирования, обеспечения строительства рабочей силой, строительными материалами, конструкциями, деталями, а так же средствами механизации.
При последовательном методе строительства сокращается потребление ресурсов, но при этом возрастает срок строительства. По этому в основном в строительстве применяют поточный метод производства строительно-монтажных работ.
Целью поточного метода производства строительных работ является обеспечение непрерывного и ритмичного производства работ, равномерного использования денежных средств. Применение поточного метода в строительстве увеличивает выпуск продукции, повышает качество и снижает трудоемкость работ в целом всего строительства.
Строительство ведётся по трём циклам:
1. Подземный цикл – выполняется поточным методом продолжительность цикла – 24 день.
2. Надземный цикл – выполняется поточным методом продолжительность цикла – 32 день.
3. Отделочный цикл – выполняется поточным методом продолжительность цикла – 35 день.
Общий срок продолжительности работ 91 дней.
| 1 | 2 | 3 | 4 | 5 | 6 |
| 18 | Кирпичная кладка перегородок ½ кирпича | По ведомости | м² | 134,4 | 3-11 |
| 19 | Устройство подмостей | V=Lпер*bпод | м² | 13 | 6-1-30 |
| 20 | Заполнение оконных проемов | V=Pокна*n/100 | 100 м | 0,7 | 6-1-14 |
| 21 | Монтаж перекрытий | По чертежу | шт | 85 | 4-1-7 |
| 22 | Монтаж лестничных площадок | По чертежу | шт | 9 | 4-1-10 |
| 23 | Монтаж лестничных маршей | По чертежу | шт | 9 | 4-1-10 |
| 2 этаж | |||||
| 24 | Кирпичная кладка наружных стен | По ведомости | м³ | 164 | 3-3 |
| 25 | Устройство подмостей | V=Vкл | 10 м³ | 16,4 | 3-16 |
| 26 | Кирпичная кладка внутренних стен. | По ведомости | м³ | 99 | 3-3 |
| 27 | Устройство подмостей | V=Vкл | 10 м³ | 9,9 | 3-16 |
| 28 | Кирпичная кладка перегородок ½ кирпича | По ведомости | м² | 134,4 | 3-11 |
| 29 | Устройство подмостей | V=Vкл | м² | 13 | 6-1-30 |
| 30 | Заполнение оконных проемов | По ведомости | 100 м | 1 | 6-1-14 |
| 31 | Монтаж перекрытий | V=Lпер*bпод | шт | 85 | 4-1-7 |
| 32 | Монтаж лестничных площадок | V=Pокна*n/100 | шт | 6 | 4-1-10 |
| 33 | Монтаж лестничных маршей | По чертежу | шт | 6 | 4-1-10 |
| 3 этаж | |||||
| 34 | Кирпичная кладка наружных стен | По ведомости | м³ | 164 | 3-3 |
| 35 | Устройство подмостей | V=Vкл | 10 м³ | 16,4 | 3-16 |
| 36 | Кирпичная кладка внутренних стен. | По ведомости | м³ | 99 | 3-3 |
| 37 | Устройство подмостей | V=Vкл | 10 м³ | 9,9 | 3-16 |
| 38 | Кирпичная кладка перегородок ½ кирпича | По ведомости | м² | 134,4 | 3-11 |
| 1 | 2 | 3 | 4 | 5 | 6 |
| 39 | Устройство подмостей | По ведомости | м² | 13 | 6-1-30 |
| 40 | Заполнение оконных проёмов | V=Vкл | м² | 1 | 6-1-14 |
| 41 | Монтаж перекрытий | По ведомости | 100 м | 93 | 4-1-7 |
| 42 | Заливка швов | 100 м² | 5,1 | 4-1-26 | |
| 43 | Кладка стен выше чердачного перекрытия | По ведомости | м³ | 39,4 | 3-3 |
| 44 | Устройство стропильной крыши | 100 м² | 113 | 4-1-8 | |
| 45 | Устройство кровли | Vкр=Vкр | м² | 6,86 | 6-1-8 |
| 46 | Устройство пароизоляции | V=Sчер.пр. | м² | 6,86 | 6-1-8 |
| 47 | Укладка утеплителя | V=Vпар. | м² | 448,9 | 11-37 |
3.2 Разработка календарного плана
1. Разработка грунта экскаватором:
Нк=1,92
![]()
Ко =1,03
с=13м
d=50,32м
а=с+2е=13+2∙0,96=14,92м
в=d+2e=50,32+2∙0,96=52,24м
=
(13∙50,32+14,92∙52,24+(13+14,92)(50,32+52,24)=0,32(654,16+779,42+2789,63)=1289,64м³
2. Объём фундамента:
Vфунд =cdНк=13∙50,8∙1,92=946,9,5м³
3. Добор грунта вручную:
Vр.д. =Sкот. ∙0,1=760∙0,1=76м³
Sкот =760 м³
4. Устройство песчаной подушки:
Vп.п. =Lсм ∙bпод. ∙0,1=320,2∙1,2∙0,1=24,4м³
5. Монтаж фундаментных подушек и блоков:.
Подушки: 4,4×1,2=42шт Блоки: 2,4×6=284шт
2,4×1,6=31шт 1,2×6=99шт
2,4×0,6=30шт 1,5×6=14шт
1,2×0,8=10шт 0,6×6=100шт
Итого: 103шт 497шт
6. Устройство горизонтальной гидроизоляции:
Vг.г = Lсм н. ∙n=395,4∙0,7=92,26м2
Vг.г = Lсм н. ∙n=211,06∙1,6=184,5м2
Гдеn-ширина слоя гидроизоляции;
Lсм н - длина наружной стены фундамента.
7. Устройство вертикальной гидроизоляции
Vв.г= Pa ∙hг =211,06*1,6=337,7м2
где hг-высота гидроизоляционного слоя.
8. Монтаж перекрытий над подвалом: 67шт
9. Заливка швов:
V=Lреб ∙n=6∙76=456м2
Где Lреб - длина плиты перекрытия;
n - Количество плит.
10. Монтаж карнизных плит: 113шт
11. Устройство стропильной крыши: 692,3м² (смотри технологическую карту)
12. Устройство кровли:
V=Vкр ;
V=692,3м2
13. Устройство пароизоляции:
V=Sчер. пер =448,9м2
Sчер. пер - площадь чердачного перекрытия.
14. Устройство утеплителя:
V =448,9 м2
15. Монтаж лестничных площадок:
1 Этаж: 9шт
2,3 Этаж: 6шт
16. Монтаж лестничных маршей:
1 Этаж: 9шт
2,3 Этаж: 6шт
17. Кирпичная кладка наружных и внутренних стен (перегородок в ½ кирпича)
| № п/п |
Номер оси |
Размер стены | Площадь стены |
Проёмы | Площадь проёма |
Площадь за вычетом проёмов |
Толщина стены |
Объем кладки на этаж |
|||
| L (м) | h (м) | L (м) | h (м) | Кол-во | |||||||
| Наружные стены | |||||||||||
| 1 | Б-Б | 48,9 | 2,8 | 136,9 | 1,4 | 1,5 | 11 | 23,1 | 106,3 | 0,64 | 68,0 |
| 0,9 | 1,5 | 2 | 2,7 | ||||||||
| 0,8 | 1,5 | 4 | 4,8 | ||||||||
| 2 | 2−2 | 12 | 2,8 | 33,6 | 0,9 | 1,5 | 4 | 5,4 | 0,3 | 0,64 | 0,2 |
| 0,8 | 1,5 | 4 | 4,8 | ||||||||
| 3 | Г-Г | 48,9 | 2,8 | 136,9 | 1,4 | 1,5 | 11 | 23,1 | 106,3 | 0,64 | 68,0 |
| 0,9 | 1,5 | 2 | 2,7 | ||||||||
| 0,8 | 1,5 | 4 | 4,8 | ||||||||
| 4 | 12−12 | 12 | 2,8 | 33,6 | 0,9 | 1,5 | 4 | 5,4 | 23,4 | 0,64 | 15,0 |
| 0,8 | 1,5 | 4 | 4,8 | ||||||||
| 5 | A-A | 4,8 | 2,8 | 13,4 | 13,4 | 0,38 | 5,1 | ||||
| 6 | Д-Д | 7,2 | 2,8 | 20,2 | 20,2 | 0,38 | 7,7 | ||||
| Итого | 164,0 | ||||||||||
| Внутренние стены | |||||||||||
| 1 | 3−3 | 4,5 | 2,8 | 12,6 | 12,6 | 0,25 | 3,2 | ||||
| 2 | 4−4 | 5,5 | 2,8 | 15,4 | 15,4 | 0,25 | 3,9 | ||||
| 3 | 5−5 | 12 | 2,8 | 33,6 | 33,6 | 0,38 | 12,8 | ||||
| 4 | 6−6 | 6 | 2,8 | 16,8 | 0,9 | 2 | 1 | 1,8 | 15,0 | 0,25 | 3,8 |
| 5 | 7−7 | 6 | 2,8 | 16,8 | 0,9 | 2 | 1 | 1,8 | 15,0 | 0,25 | 3,8 |
| 6 | 8−8 | 6 | 2,8 | 16,8 | 16,8 | 0,38 | 6,4 | ||||
| 7 | 9−9 | 12 | 2,8 | 33,6 | 33,6 | 0,38 | 12,8 | ||||
| 8 | 10−10 | 6 | 2,8 | 16,8 | 16,8 | 0,25 | 4,2 | ||||
| 9 | 11−11 | 4,5 | 2,8 | 12,6 | 12,6 | 0,25 | 3,2 | ||||
| 10 | В-В | 48,9 | 2,8 | 136,9 | 0,9 | 2 | 5 | 9 | 119,1 | 0,38 | 45,3 |
| 1,1 | 2 | 4 | 8,8 | ||||||||
| Итого | 99,0 | ||||||||||
| Перегородки | |||||||||||
| 48 | 2,8 | 134,4 | 134,4 | 134,4 | |||||||
3.3 Ведомость подсчёта объёмов работ и трудоемкости
| № п/п |
Наименование работ |
Объём работ | Трудоемкость | Затраты механизмов | Состав звена | ||||||||||||
| Ед. изм | Кол-во | ЕНиР | Норма на ед. |
Всего чел-час. |
Кол-во чел-дней. |
Наимен Механизма |
Норма на ед. маш-см |
Кол-во маш-см |
Профессия | Разряд | |||||||
| I | II | III | IV | V | VI | ||||||||||||
| 1 | 2 | 3 | 4 | 5 | 6 | 7 | 8 | 9 | 10 | 11 | 12 | 13 | |||||
| Нулевой цикл | |||||||||||||||||
| 1 | Разработка грунта экскаватором | 100 м³ | 12,9 | 2-1-11 | 5,3 | 68,4 | 8,5 | Д-271А | Экс-щик | ||||||||
| 2 | Добор гранта в ручную | м³ | 76 | 2-1-43 | 1,3 | 98,8 | 12,4 | Земл-коп | |||||||||
| 3 | Устройство песчаной подушки | м³ | 24,4 | СНиП2-82 | 1,76 | 42,9 | 5,4 | Земл-коп | |||||||||
| 4 | Монтаж фундаментных подушек | шт | 103 | 4-1-1 | 0,63 | 64,9 | 8,1 | БК 100 АС | Монтажник | ||||||||
| 5 | Монтаж фундаментных блоков | шт | 497 | 4-1-3 | 0,66 | 328,0 | 41,0 | БК 100 АС | Монтажник | ||||||||
| 6 | Устройство вертикальной гидроизоляции | м² | 337,7 | 11-32 | 0,125 | 42,2 | 5,3 | Изоляторщик | |||||||||
| 7 | Устройство горизонтальной гидроизоляции | м² | 276,8 | 11-33 | 0,11 | 30,4 | 3,8 | Изолировщик | |||||||||
| 8 | Засыпка пазух | м³ | 342,7 | 2-1-34 | 0,77 | 263,9 | 33,0 | Земл-коп | |||||||||
| 9 | Подсыпка грунта под полы подвала | м³ | 180,4 | 2-1-56 | 0,7 | 126,3 | 15,8 | Земл-коп | |||||||||
| 10 | Заливка швов | 100 м² | 4,6 | 4-1-26 | 4 | 18,3 | 2,3 | Бетонщик | |||||||||
| 11 | Монтаж перекрытий над подвалом | шт | 67 | 4-1-7 | 0,72 | 48,2 | 6,0 | БК 100 АС | Монтажник | ||||||||
| 12 | Заделка монолитных участков | м³ | 5,5 | 4-1-31 | 1,5 | 8,3 | 1,0 | Бетонщик | |||||||||
| Надземный цикл 1Этаж |
|||||||||||||||||
| 13 | Кирпичная кладка наружных стен | м³ | 164 | 3-3 | 3,1 | 508,4 | 63,6 | Каменщик | |||||||||
| 14 | Устройство подмостей | 10 м³ | 16,4 | 3-16 | 0,72 | 11,8 | 1,5 | Каменщик | |||||||||
| 15 | Кирпичная кладка внутренних стен | м³ | 99 | 3-3 | 3,2 | 316,8 | 39,6 | Каменщик | |||||||||
| 16 | Устройство подмостей | 10 м³ | 9,9 | 3-16 | 0,72 | 7,1 | 0,9 | Каменщик | |||||||||
| 17 | Кирпичная кладка перегородок 1/2 кирпича | м² | 134,4 | 3-11 | 0,42 | 56,4 | 7,1 | Каменщик | |||||||||
| 18 | Устройство подмостей | м² | 13 | 6-1-30 | 0,3 | 3,7 | 0,5 | Каменщик | |||||||||
| 19 | Заполнение оконных проёмов | 100 м | 1,4 | 6-1-14 | 5,8 | 8,2 | 1,0 | Плотник | |||||||||
| 20 | Монтаж перекрытий | шт | 85 | 4-1-7 | 0,72 | 61,2 | 7,7 | БК 100 АС | Монтажник | ||||||||
| 21 | Монтаж лестничных площадок | шт | 9 | 4-1-10 | 0,22 | 2,0 | 0,2 | БК 100 АС | Монтажник | ||||||||
| 22 | Монтаж лестничных маршей | шт | 9 | 4-1-10 | 0,22 | 2,0 | 0,2 | БК 100 АС | Монтажник | ||||||||
| 2 Этаж | |||||||||||||||||
| 23 | Кирпичная кладка наружных стен | м³ | 164 | 3-3 | 3,1 | 508,4 | 63,6 | Каменщик | |||||||||
| 24 | Устройство подмостей | 10 м³ | 16,4 | 3-16 | 0,72 | 11,8 | 1,5 | Каменщик | |||||||||
| 25 | Кирпичная кладка внутренних стен | м³ | 99 | 3-3 | 3,2 | 316,8 | 39,6 | Каменщик | |||||||||
| 26 | Устройство подмостей | 10 м³ | 9,9 | 3-16 | 0,72 | 7,1 | 0,9 | Каменщик | |||||||||
| 27 | Кирпичная кладка перегородок 1/2 кирпича | м² | 134,4 | 3-11 | 0,42 | 56,4 | 7,1 | Каменщик | |||||||||
| 28 | Устройство подмостей | м² | 13 | 6-1-30 | 0,3 | 3,7 | 0,5 | Каменщик | |||||||||
| 29 | Заполнение оконных проёмов | 100 м | 1,4 | 6-1-14 | 5,8 | 8,2 | 1,0 | Плотник | |||||||||
| 30 | Монтаж перекрытий | шт | 85 | 4-1-7 | 0,72 | 61,2 | 7,7 | БК 100 АС | Монтажник | ||||||||
| 31 | Монтаж лестничных площадок | шт | 6 | 4-1-10 | 0,22 | 1,3 | 0,2 | БК 100 АС | Монтажник | ||||||||
| 32 | Монтаж лестничных маршей | шт | 6 | 4-1-10 | 0,22 | 1,3 | 0,2 | БК 100 АС | Монтажник | ||||||||
| 3 Этаж | |||||||||||||||||
| 33 | Кирпичная кладка наружных стен | м³ | 164 | 3-3 | 3,1 | 508,4 | 63,6 | Каменщик | |||||||||
| 34 | Устройство подмостей | 10 м³ | 16,4 | 3-16 | 0,72 | 11,8 | 1,5 | Каменщик | |||||||||
| 35 | Кирпичная кладка внутренних стен | м³ | 99 | 3-3 | 3,2 | 316,8 | 39,6 | Каменщик | |||||||||
| 36 | Устройство подмостей | 10 м³ | 9,9 | 3-16 | 0,72 | 7,1 | 0,9 | Каменщик | |||||||||
| 37 | Кирпичная кладка перегородок 1/2 кирпича | м² | 134,4 | 3-11 | 0,42 | 56,4 | 7,1 | Каменщик | |||||||||
| 38 | Устройство подмостей | м² | 13 | 6-1-30 | 0,3 | 3,7 | 0,5 | Каменщик | |||||||||
| 39 | Заполнение оконных проёмов | 100 м | 1,4 | 6-1-14 | 5,8 | 8,2 | 1,0 | Плотник | |||||||||
| 40 | Монтаж перекрытий | шт | 93 | 4-1-7 | 0,72 | 67 | 8,4 | БК 100 АС | Монтажник | ||||||||
| 41 | Заливка швов | 100 м² | 5,1 | 4-1-26 | 4 | 20,4 | 2,6 | ||||||||||
| 42 | Кладка стен выше чердачного перекрытия | м³ | 39,4 | 3-3 | 2,8 | 110,3 | 13,8 | Каменщик | |||||||||
| 43 | Монтаж Ж/Б корнизных плит | шт | 113 | 4-1-8 | 0,42 | 47,5 | 5,9 | ||||||||||
| 44 | Устройство стропильной крыши | 100 м² | 6,92 | 6-1-8 | 52,35 | 362,4 | 45,3 | Плотник | |||||||||
| 45 | Устройство кровли | м² | 692,30 | 6-1-8 | 0,21 | 145,4 | 18,2 | Жестянщик | |||||||||
| 46 | Устройство пароизоляции | м² | 448,9 | 11-37 | 0,11 | 49,4 | 6,2 | Изолировщик | |||||||||
| 47 | Укладка утеплителя | м² | 448,9 | 11-32 | 0,38 | 170,6 | 21,3 | Изолировщик | |||||||||
| Итого | 622,5 | ||||||||||||||||
3.4 Объединение работ в комплексы по циклам
| № комплекса | № п/п |
Наименование работ | Кол-во чел. Дни. |
Всего по комплексам |
| 1 | 2 | 3 | 4 | 5 |
| Нулевой цикл | ||||
| 1 | 1 | Разработка грунта экскаватором | 8,5 | 8,5 |
| 2 | 1 | Добор грунта вручную | 12,4 | 17,4 |
| 2 | Устройство песчаной подушки | 5,4 | ||
| 3 | 1 | Монтаж фундаментных подушек | 8,1 | 49,1 |
| 2 | Монтаж фундаментных блоков | 41 | ||
| 4 | 1 | Устройство горизонтальной гидроизоляции | 5,2 | 42,1 |
| 2 | Устройство вертикальной гидроизоляции | 4,5 | ||
| 3 | Засыпка пазух | 33 | ||
| 5 | 1 | Подсыпка грунта под полы подвала | 15,8 | 24,1 |
| 2 | Монтаж перекрытий над подвалом | 6 | ||
| 3 | Заливка швов | 2,3 | ||
| Итого | 141,2 | |||
| Надземный цикл | ||||
| 1 Этаж | ||||
| 6 | 1 | Кирпичная кладка наружных стен | 63,6 | 66,04 |
| 2 | Устройство подмостей | 1,5 | ||
| 3 | Заполнение оконных проёмов | 1,04 | ||
| 7 | 1 | Кирпичная кладка внутренних стен | 39,6 | 68,33 |
| 2 | Устройство подмостей | 0,9 | ||
| 3 | Кирпичная кладка перегородок в 1/2 кирпича | 7,1 | ||
| 4 | Устройство подмостей | 0,5 | ||
| 5 | Монтаж плит перекрытия | 7,7 | ||
| 6 | Монтаж лестничных площадок | 0,2 | ||
| 7 | Монтаж лестничных маршей | 0,2 | ||
| 2 Этаж | ||||
| 8 | 1 | Кирпичная кладка наружных стен | 63,6 | 66,04 |
| 2 | Устройство подмостей | 1,5 | ||
| 3 | Заполнение оконных проёмов | 1,04 | ||
| 9 | 1 | Кирпичная кладка внутренних стен | 39,6 | 68,05 |
| 2 | Устройство подмостей | 0,9 | ||
| 3 | Кирпичная кладка перегородок в 1/2 кирпича | 7,1 | ||
| 4 | Устройство подмостей | 0,5 | ||
| 5 | Монтаж плит перекрытия | 7,7 | ||
| 6 | Монтаж лестничных площадок | 0,2 | ||
| 7 | Монтаж лестничных маршей | 0,2 | ||
3.6 Выбор средств механизации
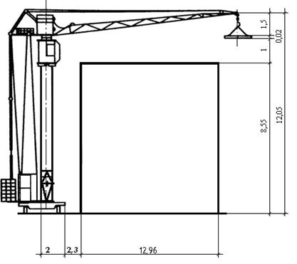
Вертикальная привязка крана КБ-100АС

Высота крана:
Hкр=Hзд+Hзап+Нзл+Нстр=8,55+1+0,22+3=196+2.3+
=17.51
Технические характеристики:
Грузоподъемность - 5 тон.
Вылет стрелы – 20 м.
Высота подъёма – 33 м.
Скорость – 10-2 м/с
Подъём груза – 0,5
Посадка груза - 0,1
Скорость перемещения – 1,8
Установленная мощность электродвигателя 38,2 кВт
Подъёмник ТП-2 (С-447)

Подъёмник предназначен для подъема строительных материалов при строительстве зданий до 6 и 9 этажей. Подъёмник стационарный, при работе мачта подъёмника крепится к стене специальными креплениями.
Модель ТП-2 (С-447)
Грузоподъемность – 0,5т
Высота подъёма до 17м
Скорость подъёма груза 0,38 м/с
Мощность электродвигателя 3 кВт
Габарит груза платформы:
Длина – 1,5м
Ширина – 1м
Масса – 1400кг
4. Разработка технологической карты
4.1 Область применения карты
Технологическая карта разработана на устройство стропильной крыши трёх этажного дома с размерами в осях 14,4м и 48,9м. Площадью скатов 692,3м²
4.2 Технико-экономические показатели
Трудоемкость на весь объём работ:
Нормативная: 361,5чел-час.
Принятая: 320чел-час.
Выработка на одного рабочего в смену:
Нормативная: 19,56м²
Принятая: 17,31м²
Продолжительность выполнения работ.
Объём работ 692,3м²
4.3 Технология выполнения строительного процесса
До начала монтажа стропильной системы должны быть выполнены все работы по монтажу чердачного перекрытия. Работу по установке стропилначинают с укладки по внутренним стенам лежней, а по наружным мауэрлатов. Мауэрлаты предварительно антисептируют путём глубокой пропиткой или обмазки пастойантисептированные мауэрлаты укладывают с прокладкой по ним двух слоёв толя со стороны стены.
На лежни устраивают стойки через 6 м, временно раскрепляют схватками, ставят подкосы и укладывают прогон. Затем на прогоне и мауэрлатах производят разбивку положения стропильных ног. Врубка стропильных ног в мауэрлат производится врубкой в зуб. У конька стропильные ноги попарно соединяют в пол дерева. Для придания пространственной жёсткости стропильных ног к ним крепят на гвоздях ригели, скрепляя каждую пару стропильных ног с обеих сторон. Далее после установки стропильных ног по ним устраивают обрешётку. Обрешётка выполняется из бруска сечением 50мм × 50 мм. Бруски обрешётки укладываются вдоль конька через 510мм.
На карнизных свесах выполняется сплошная дощатая обрешётка. Устройство обрешётки начинают сразу же вслед за установкой первых четырех – пяти стропильных ног.
3.4 Подсчёт объёмов работ

Sкр=2Sтр+2Sтрап
Sтр=14×7=49 м²
2Sтр=Sтр+Sтр=49+49=98 м²
Sтрап= H(a+b)/2=7(48,9×36)/2=297,15 м²
2Sтрап=297,15*2=594,3 м²
Sкр=2Sтр+2Sтрап=98+594,3=692,3 м²
4.5 Калькуляция трудовых и денежных затрат
| Обоснование ЕНиР и д.р. |
Состав работ | Ед. изм. | Объём работ |
Норма времени на ед. изм. Чел-час. |
Расценка на ед. изм. Руб-коп. |
Затраты труда на весь объём работ чел-час. |
Стоимость затрат труда на весь объём работ. |
| § 6-1-8 2 |
Укладка на место мауэрлатов |
100м² | 6,923 | 1,5 | 0-78,1 | 10,4 | 5,4 |
| § Е 6-1-8 3б |
Установка на место стропил | 100м² | 6,923 | 35 | 18-23 | 242,3 | 126,2 |
| § Е 6-1-8 | Укладка выверка и правка обрешетки | 100м² | 6,923 | 14,5 | 7-55,0 | 99,5 | 52,3 |
| § Е 6-1-9 | Сборка всего каркаса слуховых окон | 100м² | 6,923 | 1,35 | 0-70,3 | 9,3 | 4,9 |
| Итого | 361,5 | 188,7 | |||||
4.6 Материально-технические ресурсы
| Наименование | Ед. изм. | Кол-во |
Материалы, полуфабрикаты, изделия. 1. Доски б – 50мм 2. Бруски 3. Гвозди 4. Бревно для стропил 5. Антисептическая паста 6. Толь 7. Поковки |
м³ м³ кг м³ кг м² кг |
0,7 6 13 21 30 9 20 |
Оборудование инструменты и приспособления. 1. Пила поперечная 2. Пила - ножовая 3. Уровень 4. Отвес 5. Молоток 6. Топор 7. Рулетка металлическая 8. Нивелир с рейками 9. Электродрель 10. Инвентарные подмости на козелках 11. Дисковая электропила 12. Подъемник |
шт шт шт шт шт шт шт шт шт шт шт шт |
2 2 1 2 3 3 2 1 1 7,5 1 1 |

4.8 Организация труда рабочих
Состав рабочих по профессии и квалификации (5 человек) звено состоит из плотников:
1разр (подсобный рабочий) – 1 чел.
2разр – 2 чел.
3разр – 1 чел.
4разр – 1 чел.
Распределение работы между исполнителями:
Сначала два плотника (4разр-1 и 2разр-1) производят заготовку и укладку мауэрлатов. В это время оставшиеся рабочие (1разр-1, 2разр-1 и 3разр-1) начинают выполнять работы по установке стропил, закончив укладку мауэрлатов, рабочие (4разр-1 и 2разр-1) присоединяются к рабочим (1разр-1, 2разр-1 и 3разр-1), делают врубку стропильных ног, установку стоек, укладку прогонов они заканчивают вместе. Затем всё звено плотников приступает к укладке брусков обрешётки, уложив некоторые количество брусков обрешётки, уложив некоторые количество трое рабочих (4разр-1, 2разр-1 и 1разр-1) начинают выполнять работы по устройству слуховых окон, а в это время рабочие (3разр-1 и 2 разр-1) делают работы по устройству обрешётки.
4.9 Контроль качества
Организация и схема операционного контроля качества работ.
| Наименование операции | Контроль качества работ. | ||||||||
| Производителем работ | Мастером | Состав | Способ | Время | |||||
| 1 | 2 | 3 | 4 | 5 | |||||
| Подготовительные работы | − | Должны быть выполнены работы по монтажу чердачного перекрытия, устройства карниза, возведению и монтажу дощатых труб и вентиляционных стояков сверх чердачного перекрытия и крыши. Все элементы стропил (мауэрлаты, подкосы, стропильные ноги) заранее заготовляются по шаблонам и подают на чердачное перекрытие. | Визуально | До начала монтажа | |||||
| Укладка мауэрлатов | − | Мауэрлаты антисептируют путём пропитки и обмазки устройство гидроизоляции со стороны стены (2 слоя толя) | Визуально | Инструментально | |||||
| По внутренней стены укладывают лежни по наружным мауэрлатах | До укладки мауэрлатов | ||||||||
| Устройство стоек | - | На лежень устанавливают стойки, временно закрепив их схватками, устраивают подкосы. Прогоны, подкосы и стойки скрепляют стальными скобами. | Визуально | ||||||
| Устройство стропил | - | Производят разработку на прогоне и мауэрлатах проектного положения стропильных ног, выбирают гнёзда и укладывают в них стропильные ноги. Скрепление стропильной системы производится скобами и болтами. | Инструментально | ||||||
| Проверка правильности проектного положения всех установленных элементов | Инструментально | ||||||||
1 |
2 | 3 | 4 | 5 | |||||
| Устройство слуховых окон | - | После прибивки брусков делают в обрешётке вырезы для слуховых окон и монтируют их. | |||||||
| Устройство обрешётки | - | Устройство обрешётки начинают после установки четырёх стропильных ног. Бруски прибивают от карниза к коньку | |||||||
Отклонение в размерах несущих конструкций.
| Отклонения | Величина, допускаемая отклонением мм. |
По длине конструкции По высоте конструкций и опор В расстояниях между осями конструкции Конструкций по вертикали Отдельных сжатых элементов конструкций от проектного положения |
± 20 ± 10 ± 10 ± 0,2 % 1/300 длины элемента. |
| Смещение центра опорных узлов от центра опорных площадок | ± 10 |
В глубине врубок В размерах поперечных сечений |
± 2,5 ± 2 |
В расстояниях между центрами рабочих болтов и нагелей в соединениях: Для входных отверстий Для входных отверстий поперёк волокон |
± 2 2% толщины патока, но не более 5 мм |
| В расстояниях между центрами гвоздей со стороны забивки в гвоздевых соединениях | ± 2 |
4.10 Охрана труда и техника безопасности при выполнении строительного процесса
При монтаже деревянных элементов и конструкций соблюдаются основные меры техники безопасности. Перед началом работ следует проверить исправность и прочность насадки деревянных рукояток инструментов. Для прохода рабочих по перекрытиям без пола надо укладывать по балкам временные настил шириной не менее 70 см.
На перекрытиях, допуска только сборка и пригонка конструкций; работы по изготовлению недостающих деталей (Рубка тёска и прочее) в указаниях местах не разрешаются.
При использовании электрифицированного инструмента к работе допускается только лица прошедшие соответствующее производственное обучение. Особенное внимание должно быть удалено обеспечению безопасности работ связанных с антисептированием и огнезащитной обрешётки древесины в частности.
Запрещается допускать к работе по антисептированию, а ток же по погрузке, разгрузке и распаковки химикатов, лиц не прошедших специальное обучение. Сосуды с химикатами должны быть закрыты плотными крышками. Рабочие должны быть обеспечены защитными костюмами, очками, рукавицами и респираторами.
5. Проектирование строй - генплана
5.1 Назначение строй - генплана
В составе проекта производства работ разрабатывается строительный генеральный план на строительства отдельного здания (сооружения) или на выполнение отдельных видов строительных, монтажных или специальных строительных работ, в зависимости от того, на что разрабатывается проект. На строительном генеральном плане даются детальные решения по организации той части строительного хозяйства площадки, которая непосредственно связано с возведением данного здания или сооружения и охватывает территорию, непосредственно примыкающая к нему. Строительный генеральный план разрабатывается с указанием границ строительной площадки и видов ее ограждений, действующих и временных подземных, надземных и воздушных сетей и коммуникаций, постоянных и временных дорог, схем движения средств транспорта и механизмов, мест установки строительных и грузоподъемных машин с указанием путей и их перемещения и зон действия, размещение постоянных, строящихся и временных зданий и сооружений, опасных зон, площадок и помещении складирования материалов и конструкций, расположение помещений для санитарно – бытового обслуживание строителей, а так же зон повышенной опасности.
Исходными данными для разработки строительного генерального плана служат:
Решения строительного генерального плана в составе проекта организации строительства:
Комплексный сетевой график или календарный план производства работ:
Технологические карты.
Графическая часть строительного генерального плана в составе проекта производства работ выполняется, как правило, в масштабе 1:200 и 1:500 и содержит основном те же элементы, что и строительный генеральный план в проекте организации строительства.
Строительный генеральный план уточняет принципиальные решения, принятые в проекте организации строительства и, как и всякий рабочий чертёж, должен содержать детальные и исчёрпывающие данные , необходимые для реализации проектных решений в натуре.
Расчётно-пояснительная записка должна содержать уточнённые расчёты и обоснования потребности строительства во временном строительном хозяйстве на основе натуральных (физических) объёмов работ, определённых по данным рабочей документации (Рабочего проекта), а так же конкретные технические решения по выбору строительных машин механизированных установок, временных зданий, сооружений и др.
5.2 Расчёт бытовок и складских помещений
Расчёт бытовых помещений (вагончиков).
Максимальное число рабочих – 38 человек.
S=38∙1,7=64,6
Принимаем число вагончиков размером 7,3×2,9 и контору 7,3×2,9
Расчёт уборных:
Из расчёта 1-го очка на 25 человек, принимаем 2очка Площадь уборной 7,2 м² (2,4×3)
Расчёт складских помещений:
Объём кладки на этаж составляет 271,1 м², В 1 м² - 400 кирпичей.
Qкир=271,1∙400 108440 =
Норма хранения кирпича 0,7


Принимаю 2 склада площадью
=96,8 м²
Железобетонные изделия:
Лестничные площадки – принимаем 3 штабеля по 3 шт.
Монтаж лестничных маршей – принимаем 4 штабеля по 2 шт.
Плиты перекрытия:
1,5×6 – Принимаем 5 штабелей по 8 шт.
1×6 – Принимаем 3 штабеля по 8 шт.
Электроснабжение:
Рт.р.
=1,1
Рт.р.
=
∑Рс =6+38,2+3,1+0,27=47,57
∑Ров
=![]()
∑Рон
=![]()
Норма освещения:
1. Контора на 100 м²=1,5кВт
2. Бытовки на 100 м²=1,2кВт
3. Склад на 100 м²=0,5кВт
4. Внутриплощадочная дорога 1 км=2,5кВт
5. Охранное освещение 1км=1,5кВт
6. Кран=38,2кВт
7. Подёмник=3кВт
8. Штукатурная станция=3,1кВт
9. Малярная станция=0,27кВт.
6. Охрана окружающей среды
Проектные решения по охране окружающей среды заключается во всемирной локализации неблагоприятного воздействия строительного производства на земляные и воздушные ресурсы нашей страны.
Задача состоит в умении неблагоприятных последствий такого воздействия и восстановление нарушенного строительными работами экологического равновесия.
К данным мероприятием относятся:
1. Выделение минимально необходимой полосы отвода земель для проектируемого проекта и работы строительного подразделения.
2. Рекультивация нарушенных земель, приведение их в состояние, пригодное для использования их по назначению. Необходимость рекультивации распространяется на земляные сооружения, места выемок грунта всех видов, включая карьеры, а также нарушение состояния земель без их занятия, проведение изыскательных работ.
3. Выбор способов производства работ, обеспечивающих минимальное нарушение состояния окружающей среды; соблюдение санитарных норм при расположении складов горюче-смазочных материалов, мест стоянок, машинных парков и др.
Техника безопасности, охрана труда и противопожарная защита
Требование правил безопасного выполнения СМР следует учитывать на всех этапах организации строительного производства.
К технологическим мероприятиям по охране труда относится:
1. Меры по устранению возможных нарушений прочности элементов при монтаже и кладке.
2. Правильный подбор существующих и разработка новых устройств и приспособлений для безопасного выполнения работ.
3. Разработка мер по обеспечению электро-безопасности.
4. Обеспечение безопасности при применении токсичных материалов.
5. Обеспечение безопасности при работе в зимних условиях.
6. Организация сан - гигиенического и бытового обслуживания рабочих на стройплощадке.
7. Выбор искусственного освещения стройплощадки, рабочих мест, проходов и проездов.
8. Безопасное складирование материалов.
9. ограждение безопасных зон.
10.Устройство временных автодорог.
Особое внимание уделяется пожарной безопасности.
1. Надо указать места расположения пожарных щитов пожарной безопасности и ответственных лиц.
2. Наличие и состав средств пожаротушения.
3. Расположение пожарных гидрантов.
4. Наличие мест для курения.
5. Наличие площадок по складированию огнеопасных материалов.
6. Размещение мест для производства сварочных работ.
7. Наличие и расположение знаков ССБТ и плакатов о мерах безопасности.
8. Обустройство стройплощадки пожарной связью и сигнализацией.
Литература
1. М.П. Зимин "Технология и организация строительного производства".
2. СНиП III-4-80 Техника Безопасности в строительстве М. Стройиздат 1981г.
3. ЕНиР сборник Е4.
4. Альбом средств механизации ремонтно-строительных работ. Стройиздат Ленинград.
5. А.Д. Любарский "Технология и организация строительного производства", "Охрана труда".
6. А.Н. Смирнов
7. С.Д. Химунин "Указания по технологии ремонтно-строительного производства и техническим картам на работы при капитальном ремонте жилых домов" М. Строительства 1977г. Книга №2.
8. С.С. Добронравов справочник "Строительные машины и оборудование".
9. ЕНиР №3
10. ЕНиР №6
11. ЕНиР №8
12. ЕНиР №11