| Скачать .docx |
Реферат: Основание под фундамент
Основание под фундамент
Геологические породы, залегающие в верхних слоях земной коры, используемые в строительных целях, называют грунтами. Грунты представляют собой скопление частиц (зерен) различной величины, между которыми находятся поры (пустоты). Грунты, непосредственно воспринимающие нагрузки от здания или сооружения, называются основаниями. Основания бывают искусственными или естественными.
Естественные основания делятся: скальные и нескальные.
Скальные грунты - вулканические, метаморфические и изверженные горные породы с жесткой связью между зернами минералов (граниты, песчаники, базальты, известняки) это наиболее прочные основания зданий и сооружений. К водорастворимым и размягчаемым в воде скальным породам относятся гипсы, ангидриты, глинистые сланцы, некоторые виды песчаников.
Крупнообломочные грунты несцементированные скальные грунты, могут быть прочным основанием. Делятся на щебенистые, дресвяные.
В зависимости от крупности частиц песка разделяются на гравелистые, крупные, средней крупности, мелкие и пылеватые. В зависимости от плотности сложения или пористости песчаные грунты бывают плотные, средней плотности и рыхлые. В зависимости от степени влажности или степени заполнения объема водой различают песчаные грунты маловлажные, влажные и насыщенные водой. Плавуны - это увлажненные мелкозернистые и пылеватые пески с глиняными примесями (не годятся для строительства).
Глинистые грунты - связные грунты с размерами плоских частиц, скреплены силами внутреннего сцепления. Они пластичны. К глинистымгрунтам относятся - суглинки и супеси, содержащие примеси песка. В зависимости от степени влажности или степени заполнения пор водой различают грунты маловлажные, влажные и насыщенные водой. Грунты в водонасыщенном состоянии становятся текучими и называются плавунами.
Насыпные грунты - искусственные насыпи, образованные в результате культурной и производственной деятельности человека. Глубина заложения фундамента от уровня земли на глинистых грунтах должна быть, как правило ниже глубины зимнего промерзания на 15-20 см.
Грунтовые воды - образуются в результате проникновения в грунт атмосферных осадков.
Грунты, имеющие в своем составе лед, называют мерзлыми . Промерзания некоторых грунтов может вызвать их пучение.
Исследования грунтов
Работа грунта под нагрузкой проходит следующим образом. Под действием нагрузки от фундаментов в грунтовом основании возникает давление, величина которого зависит от собственного веса грунта и от веса здания или сооружения. Давление от собственного веса грунта, зависящие, в свою очередь от объемного веса грунта и от глубины заложения фундамента, называют природным (бытовым) давлением. Давление от веса здания или сооружения называют дополнительным давлением.
Искусственные основания
Искусственные основания бывают 2-х видов :
- основания, создаваемые уплотнением;
- основания, создаваемые укреплением.
Грунты оснований уплотняют поверхностным трамбованием тяжелыми трамбовками в виде усеченного конусавесом 1,5-3 т, поднимаемыми краном на высоту 3-4 м и сбрасывании на уплотняемую поверхность. Такой способ применяемый при уплотнении насыпных и просадочных грунтов, носит название поверхностного. Глубинное уплотнения производят «грунтовыми сваями» - забивкой сердечника в виде деревянной конической сваи. При слабых грунтах часто заменяют их песчаными подушками. Песок укладывают слоями толщиной 150 - 200 мм и уплотняют трамбовками или поверхностными вибраторами с поливкой воды.
Термический способ укрепления грунта состоит в нагнетании в толщину грунта под давлением через трубы воздуха, нагретого до 600°- 800°С, или в сжигании горючих продуктов, подаваемых в герметически закрытую скважину под давлением. Обожженный грунт приобретает свойства керамического тела, не намокает и не набухает.
Цементация грунтов осуществляется нагнетанием в грунт через забитые в нею трубы цементной суспензии, цементно - глинистых растворов.
Силикатизация состоит в инъекции через трубы в грунт растворов жидкого стекла и хлористого кальция и применяется для укрепления песчаных пылеватых грунтов, плывунов и макропористых грунтов. Инъекция делается на глубину 15-20 м и более, а радиус распространения силикатизации достигает 1 м.
По образцам грунтов и скважин, проходимых бурением, или из шурфов (шурф -небольшая геологическая выработка, яма) составляют разрезы (колонки) и геологические профили расположения слоев грунтового массива по характерным направлениям.
Фундаменты
Требования предъявляемые к фундаментам:
1) прочность;
2) устойчивость, на опрокидывание и скольжение в плоскости подошвы фундамента;
3) устойчивость к агрессивным грунтовым водам;
4) стойкость к атмосферным факторам (морозостойкость; пучение грунтов при замерзании);
5) соответствие по долговечности сроку службы здания;
6) индустриальность;
7) экономичность.
По конструктивной схеме фундаменты разделяются на: ленточные, столбчатые или отдельно стоящие, сплошные и свайные (см. рис. 7).
Стоимость фундаментов от общей стоимости здания составляет: с бесподвальнымрешением 8-10%; с подвалом 12-15%, а трудоемкость составляет 10-15%.
Ленточные фундаменты
Монолитные ленточные фундаменты (рис. 9.).
В простейшем случае - прямоугольные. В большинстве случаев для передачи давления на основание, не превышающего нормативного давления на грунт, приходится уширять подошву фундамента (рис.10).
Глубина заложения фундаментов должна соответствовать глубине залегания того слоя грунта, который можно принять за естественное основание.
Необходимо также учитывать глубину промерзания грунта. Нормативная глубина промерзания указана в СниПе.
При пучинистых грунтах глубину заложения фундаментов следует считать ниже на 100 мм глубины промерзания.
В непучинистых грунтах глубина заложения фундамента не зависит от глубины промерзания.
Фундаменты из бутового камня не отвечают требованиям индустриального строительства (затруднена механизация работ, снижаются темпы строительства, особенно в зимнее время).
Применение бутобетонных и бетонных фундаментов позволяют шире использовать механизацию при их возведении.
Сборные ленточные фундаменты : (рис. 11.)
Для наружных стен 400, 500, 600мм;
Высота фундаментного блока - 580 мм;
Шов для блоков - 20 мм
![]()
От одной глубины заложения монолитного ленточного фундамента к другой переходят постепенно с устройством уступов.
Отношение высоты уступа к его длине должно быть не более 1:2, причем высота уступа должна быть не больше 0,5м, а длина - не менее 1м. На более прочных грунтах отношение высоты уступа к его длине допускается не более 1:1, а высота уступа - не более 1м.
Если здание возводится на сборных фундаментах, высоту уступа можно принимать равной высоте унифицированного блока, т.е. 0,6м; в этом случае длина уступа должна быть не менее 1,2 м.
Расстояние между осями швов - 600 мм (по высоте).
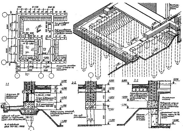
Блоки укладываются с перевязкой швов в шахматном порядке. Длина - 1180 мм; 2380 мм (собачки) дополнительная толщина - 180 мм. Фундаментные блоки со швами с железобетонным раствором, на железобетонных подушках высотою - 300 мм, шириною до 2.80 м (рис. 12).
Прерывистые фундаменты под несущие стены (рис.8-б).
Монолитные железобетонные пояса в районах с повышенной сейсмичностью. Арматурные стержни + заливка бетоном 5-6 см.
Фрагменты монолитных участков: на углах в местах расположения коммуникаций.
Ленточные панельные фундаменты (рис.14.).
В крупнопанельных зданиях отдельные блоки фундаментов и стен подвалов целесообразно заменять крупноразмерными элементами. Они состоят из сквозных бескаркасных ферм (панелей и блоков или ребристых панелей - подушек).
Столбчатые фундаменты (рис. 15, 16, 17.).
Когда давление на грунт меньше нормативного, ленточные фундаменты целесообразно заменять столбчатыми. Фундаментные столбы (бетонные или железобетонные) перекрывают железобетонными фундаментными балками, на которых возводятся стены. Чтобы устранить выпирание фундаментной балки при пучении грунта, под ней устраивают подушку из песка или шлака толщиной 0,5 м.
Сплошные фундаменты (рис. 13.).
При слабых или неоднородных грунтах, а также при очень больших нагрузках на колонны во избежание неравномерной осадки фундаменты объединяют систему (ребристой) железобетонной плиты.
При сплошных фундаментах обеспечивается равномерная осадка, что особенно важно для каркасно-панельных и крупнопанельных зданий повышенной этажности. Кроме того, он хорошо защищает подвалы от проникновения грунтовой воды при высоком ее уровне, когда пол подвала подвергается снизу большому гидростатическому давлению.
Свайные фундаменты .
Они применяются, когда достижение естественного основания экономически или технически невыполнимо из-за большой глубины его заложения призначительныхнагрузках, а также в других случаях.
Различают сваи-стойки (опирающиеся на толщину прочного грунта), висячие сваи, которые удерживаются в слабом грунте за счет его уплотнения и передают нагрузку на грунт трением, возникающем между сваей и грунтом (рис.18.).
В зависимости от способа погружения в грунт применяют забивные, набивные, буронабивные, сваи-оболочки, буроопускные и винтовые сваи.
Забивные железобетонные и деревянные сваи погружают с помощью копров, вибропогружателей и вибровдавливающих агрегатов.
Железобетонные сваи могут изготавливаться цельными и составными (из отдельных секций).
Деревянные забивные сваи устраивают там, где существуют постоянные температурно - влажностные условия (рис. 19, 20, 21, 22, 23, 24, 25.).
Набивные сваи, устраивают методом заполнения бетонной или иной смесью предварительно пробуренных, пробитых или выштампованных скважин. Нижняя часть скважин может быть уширена с помощью взрывов (сваи с камуфлетной пятой).
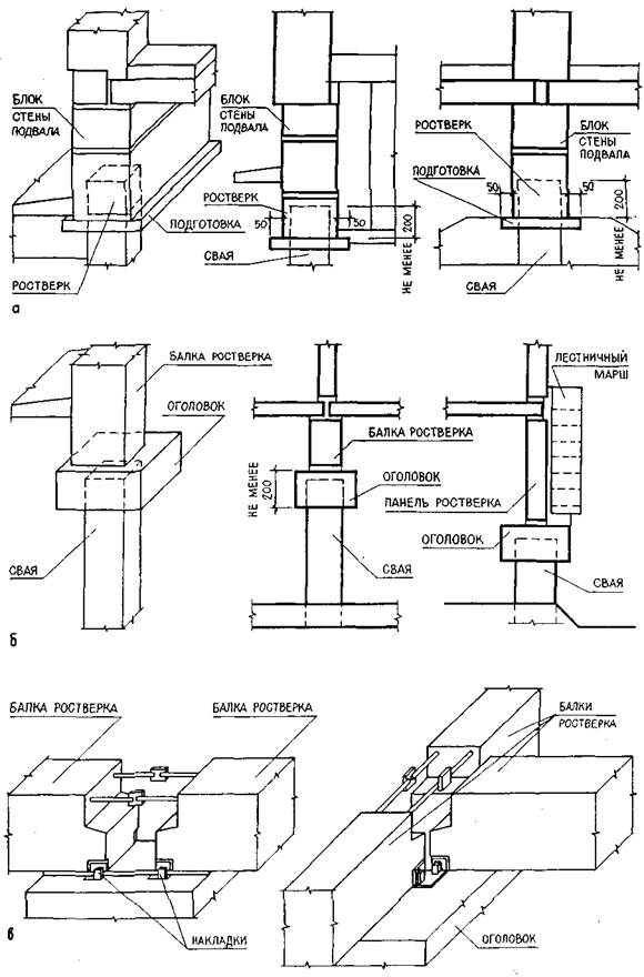
Буроопускные сваи отличает от набивных то, что в скважину устанавливают готовые железобетонные сваи с заполнением зазора между сваей и скважиной песчано-цементным раствором (рис.20.).
На верхние концы свай или на специальные уширения верхних концов (оголовки) укладывают "балки или плиты - ростверки. Они применяются сборные (железобетонные) или монолитные. В последнее время разработаны конструктивные решения свайных фундаментов "без ростверков (рис.23, 25).
В плане сваи могут состоять из одиночных свай - под опоры; лент свай - под стены с расположением в один или более рядов; кустов свай; сплошного свайного поля – под тяжелые сооружения (рис. 20, 21, 22).
Защита зданий от грунтовых вод
Для защиты стен бесподвальных зданий от капиллярной влаги во всех стенах в цоколе укладывают горизонтальную гидроизоляцию из 2-х слоев толя, рубероида или слоя жирного цементного раствора состава 1:2 толщиной 20-30 мм на 150-200 мм ниже уровня пола первого этажа и на 150 200 мм выше отметки тротуара или отмостки.
Фундаменты, находящиеся в агрессивной среде (при наличии в грунтовой воде агрессивных составов), выполняют из бетона на пуццолановом портландцементе и шлакопортландцементе, кроме случаев щелочной активности, когда можно применять цемент любых видов, кроме пуццоланового и шлакопортландцемента.
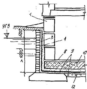
При напорах воды от 0,1 до 0,2 м для защиты подвала от проникновения воды под пол подвала укладывают слой мягкой жирной глины толщиной 250 мм и бетонную подготовку толщиной 100-200 мм. Наружную поверхность стен изолируют штукатуркой цементным раствором с последующей обмазкой горячим битумом за 2 раза и забивкой слоем мягкой жирной глины толщиной 200-250 мм (рис. 26).
При напорах воды от 0,2 до 0,8 м возникает опасность всплывания пола, поэтому пол искусственно утяжеляют. В этих случаях на грунт укладывают бетонную подушку толщиной 100-150мм, поверхность которой выравнивают цементным раствором или слоем асфальта толщиной 20-25 мм с последующей наклейкой по битумной или асфальтовой мастике гидроизоляционного ковра из 2-х или 3-х слоев рубероида, гидроизола, бризола. Для предохранения этой части гидроизоляционного ковра от механических повреждений устраивают защитную стенку толщиной 120 мм из хорошо обожженного кирпича, выкладываемую на цементном растворе.
При больших напорах воды, когда уровень грунтовых вод превышает уровень пола подвала более чем на 0,8 м, пол устраивают в виде плоской железобетонной плиты, загруженной стенами дома, или в виде плиты с ребрами верх.
На плоскую железобетонную плиту, (а при ребристой - в промежутках между ребрами), укладывают тяжелый бетон, по которому устраивают чистый пол.
Эффективность применения того или иного типа фундаментов зависит от объема, стоимости, трудоемкости и расхода материалов.
Свайные фундаменты экономичнее ленточных на 32-34% по стоимости, на 40% по затрате бетона и на 80% по объему земляных работ. Такая экономия позволяет снизить затраты стали увеличиваться - 1 - 3 кг на 1 м2 .
| Фундаменты | Объем фундамента |
Трудоемкость | Стоимость | Расход стали | Расход цемента |
| Бутовые | 100 | 100 | 100 | 0 | 100 |
| Бутобетонные | 52 | 58 | 68 | 100 | 120 |
Сборные бетонные (сплошные) |
52 | 55 | 85 | 100 | 150 |
Сборные бетонные пустотельные |
40 | 53 | 75 | 100 | 115 |
КОНСТРУКЦИИ ЛЕНТОЧНЫХ ФУНДАМЕНТОВ
![]() |
![]() |
![]() |
![]() |
Из сплошных стеновых фундаментных блоков |
Из пустотелых блоков | Вариант с устройством подвала. | Монолитный фундамент |
![]() |
![]() |
|
|
| На песчаной подушке | Бутовый фундамент с кирпичной облицовкой | Бетонный фундамент | |
1- фундаментная плита; 2 - фундаментный блок; 3 - стеновой блок;
4 - монолитный бетон
КОНСТРУКЦИИ СТОЛБЧАТЫХ ФУНДАМЕНТОВ
| А | Б | 1-1 |
А - Конструкция на фундаментной подушке; Б – Конструкция фундамента стаканного типа 1 - наружная цокольная панель; 2 – пирамидальное основание колонны; 3 – фундаментная балка; 4 – фундаментный стакан. |
||
Рис. 7.
ЛЕНТОЧНЫЕ ФУНДАМЕНТЫ ДЛЯ ОБЫЧНЫХ УСЛОВИЙ
![]() |
а – сборный сплошной; б – сборный прерывистый; в – монолитный; г – монолитный с отдельно стоящими колоннами; д – сборно – монолитны й
Рис. 8.
| ПЛАН ФУНДАМЕНТА | ОБЩИЙ ВИД СОПРЯЖЕНИЯ ФУНДАМЕНТОВ | |
| ПОД НАРУЖНУЮ И ВНУТРЕННЮЮ СТЕНУ | ||
![]() |
||
| ФУНДАМЕНТЫ В ЗДАНИЯХ С ПОДВАЛОМ | ||
| ПОД НАРУЖНЫЕ СТЕНЫ | ПОД ВНУТРЕННИЕ СТЕНЫ | |
![]() |
||
| ФУНДАМЕНТЫ В ЗДАНИЯХ БЕЗ ПОДВАЛА | ||
| ПОД НАРУЖНЫЕ СТЕНЫ | ПОД ВНУТРЕННИЕ СТЕНЫ | |
![]() |
||
Рис. 9.
ЛЕНТОЧНЫЕ МОНОЛИТНЫЕ ФУНДАМЕНТЫ КИРПИЧНЫХ И КРУПНОБЛОЧНЫХ ЗДАНИЙ
| ПЛАН ФУНДАМЕНТА | ОБЩИЙ ВИД СОПРЯЖЕНИЯ ФУНДАМЕНТОВ ПОД НАРУЖНУЮ И ВНУТРЕННЮЮ СТЕНЫ | НЕПРОХОДНЫЕ ПОДПОЛЬНЫЕ КАНАЛЫ ПРИ ПОЛАХ ПО ГРУНТУ |
![]() |
||
| СЕЧЕНИЯ ФУНДАМЕНТОВ (ПРИ УРОВНЕ ГРУНТОВЫХ ВОД НИЖЕ ПОЛА ПОДВАЛА) | ||
|
![]() |
|
ГИДРОИЗОЛЯЦИЯ ПОДВАЛОВ ПРИ НАПОРЕ ГРУНТОВЫХ ВОД ДО 0,2 м; 1м И БОЛЕЕ ОТНОСИЬЕЛЬНО ПОЛА ПОДВАЛА |
||
![]() |
||
Рис. 10.
СБОРНЫЕ ЖЕЛЕЗОБЕТОННЫЕ ФУНДАМЕНТНЫЕ ПОДУШКИ И БЕТОННЫЕ БЛОКИ
|
ПЛАН ФУНДАМЕНТА
|
1,3 – блок подушка с предварительно-напряженной арматурой; 2 – укороченный стеновой блок; 4 – укороченная фундаментная подушка 5 – стеновой фундаментный блок |
|
КОНСТРУКЦИЯ СПЛОШНЫХ ФУНДАМЕНТОВ
|
А - перекрестная конструкция; Б, В - варианты устройствасплошной фундаментной плиты; Г - коробчатая конструкция фундаментов. |
Рис. 11.
ЖЕЛЕЗОБЕТОННЫЕ ПЛИТЫ И БЛОКИ ДЛЯ ЛЕНТОЧНЫХ ФУНДАМЕНТОВ ПО СЕРИИ1.112-1, ВЫПУСК 1 И 2
| СЕЧЕНИЕ | ДЛИНЫ мм |
МАРКИ | ЭСКИЗЫ | ПРИМЕЧАНИЯ | ||
Шир., мм |
Выс., мм |
|||||
| ПЛИТЫ | 3200 2800 2400 2000 1600 1400 1200 1000 800 600 |
500 | 1180; 780 |
Ф32; Ф32-8 Ф28; Ф28-8 Ф24; Ф34-8 Ф20; Ф20-8 |
|
Плиты формуются из бетона марка 150; 200, армированного стальными сетками, расположенными у подошвы. Сетки со швом рабочей арматуры 100; 150 (● Ø 6+9) и монтажной 250;150 (● Ø 4,5) изготавливаются из стержней периодического профиля контактной точечной электросваркой. * В марку плит с усиленным армированием добавляется индекс «У», например Ф16У. Чертежи плит содержатся во 2-ом выпуске серии 1.112 -1. |
| 300 | 2380; 1180; 780 |
Ф16;Ф16-12;Ф16-8 Ф14;Ф14-12;Ф16-8 Ф12;Ф12-12;Ф12-8 Ф10;Ф10-12;Ф10-8 |
||||
2380; 1180 |
Ф8; Ф8-12 Ф6; Ф6-12 |
|||||
| БЛОКИ СПЛОШНЫЕ | 600 500 400 300 600 500 400 |
580 |
2380; 880 |
ФБС6; ФБС6-9 ФБС5; ФБС5-9 ФБС4; ФБС4-9 ФБС3; ФБС3-9 |
|
Блоки формуются из бетона марки 100, усиленные – из бетона марки 200. В марку усиленных блоков добавляется индекс «У», например ФБС6-У
|
280 |
1180 |
ФБСН-6 ФБСН-5 ФБСН-4 |
||||
ЛЕНТОЧНЫЕ БЛОЧНЫЕ ФУНДАМЕНТЫ КИРПИЧНЫХ КРУПНОБЛОЧНЫХ ЗДАНИЙ
| ПЛАН ПОДОШВЫ ФУНДАМЕНТА | ОБЩИЙ ВИД НАРУЖНОЙ СТЕНЫ |
![]() |
![]() |
| ПЛАН СТЕН ТЕХНИЧЕСКОГО ПОДПОЛЬЯ (ПОДВАЛА) | СЕЧЕНИЯ ФУНДАМЕНТОВ (ПРИ УРОВНЕ ГРУНТОВЫХ ВОД НИЖЕ ПОЛА ПОДВАЛА) |
![]() |
![]() |
Рис.12.
ПЛИТНЫЙ ФУНДАМЕНТ ПОД ЗДАНИЕ ПОВЫШЕННОЙ ЭТАЖНОСТИ
ПЛАН ФУНДАМЕНТА 14 – ти ЭТАЖНОГО ЗДАНИЯ С КИРПИЧНЫМИ СТЕНАМИ
![]() |
ТИПЫ ОТВЕРСТИЙ |
ОБЩИЙ ВИД ФУНДАМЕНТА У ПРОДОЛЬНОЙ СТЕНЫ | ПЛАН СОПРЯЖЕНИЯ СЕТОК ПЛИТЫ ОСНОВАНИЯ |
![]() |
Рис. 13.
ФУНДАМЕНТЫ ПАНЕЛЬНЫХ ЗДАНИЙ – ЛЕНТОЧНЫЕ ПЛИТНЫЕ
| ПЛАНПОДОШВЫ ФУНДАМЕНТА И СТЕН ТЕХНИЧЕСКОГО ПОДПОЛЬЯ | ОБЩИЙ ВИД СОЧЛЕНЕНИЯ СТЕН |
![]() |
|
| СЕЧЕНИЯ ФУНДАМЕНТОВ (ПРИ УРОВНЕ ГРУНТОВЫХ ВОД НИЖЕ ПОЛА ПОДВАЛА) | |
![]() |
|
| ДЕТАЛИ СОЧЛЕНЕНИЯ ЦОКОЛЬНЫХ ПАНЕЛЕЙ | |
![]() |
|
Рис. 14.
ФУНДАМЕНТЫ КАРКАСНЫХ ЗДАНИЙ
И ОТДЕЛЬНО СТОЯЩИЕ ФУНДАМЕНТЫ
![]() |
а – план фундамента каркасного здания; б – план здания на отдельно стоящих фундаментах; в – опирание стены на столбчатый фундамент; г – ж – опирание цоколей на сборные башмаки.
Рис. 15.
СТОЛБЧАТЫЕ ФУНДАМЕНТЫ
|
1 – фундамент, 2 – цокольная панель, 3 – ригель, 4 – панель стены, 5 – колонна, 6 - настил |
||
СТОЛБЧАТЫЕ ФУНДАМЕНТЫ МАЛОЭТАЖНЫХ ЗДАНИЙ |
|||
ПЛАН ФУНДАМЕНТА |
РАЗРЕЗ 1-1 |
||
|
|
1 – столб; 2 – рандбалка; 3 – стена; |
|
Рис. 16.
СТОЛБЧАТЫЕ ЖЕЛЕЗОБЕТОННЫЕ ФУНДАМЕНТЫ
ПОД ЗДАНИЕ СО СВЯЗЕВЫМ КАРКАСОМ (СЕРИЯ ИИ - 04)
| ФРАГМЕНТ МАРКИРОВОЧНОГО ПЛАНА | |
![]() |
|
![]() |
Рис. 17.
МОНОЛИТНЫЙ ФУНДАМЕНТ
![]() |
СВАЙНЫЕ ФУНДАМЕНТЫ
![]() |
А – сваи стойки, Б - В – сваи висячие
Рис. 18.
| ПРИЗМАТИЧЕСКИЕ ЖЕЛЕЗОБЕТОННЫЕ ЗАБИВНЫЕ СВАИ СПЛОШНОГО СЕЧЕНИЯ | КРУГЛЫЕ ПОЛЫЕ СВАИ-ОБОЛОЧКИ ЦЕЛЬНЫЕ И СОСТАВНЫЕ |
|||
| С КРУГЛОЙ ПОЛОСТЬЮ | ДЕТАЛИ СТЫКОВКИ СВАЙ-ОБОЛОЧЕК БОЛТОВОЙ СТЫК ПРИ ОБЩЕЙ ДЛИНЕ СВАИ ДО 48 М |
|||
![]() |
||||
| ФУНДАМЕНТЫ КИРПИЧНЫХ И КРУПНОБЛОЧНЫХ ЗДАНИЙ | СВАЙНЫЕ ФУНДАМЕНТЫ С МОНОЛИТНЫМ ЖЕЛЕЗОБЕТОННЫМ РОСТВЕРКОМ | |||
ПЛАН СВАЙНОГО ПОЛЯ И МОНОЛИТНЫХ РОСТВЕРКОВ |
ОБЩИЙ ВИД ФУНДАМЕНТОВ В ТОРЦЕ ЗДАНИЯ | |||
![]() |
||||
Рис. 19.
СВАЙНЫЕ ФУНДАМЕНТЫ
![]() |
|||||
РАЗРЕЗЫ 1-1 2-2 |
|||||
|
Прочный грунт Слабый грунт |
|
Слабый грунт |
|
|
| ВИДЫ СВАЙ | |||||
1 2 3 4 5 6 7 8 9
|
10 11
|
||||
1-4 – бетонные и железобетонные сваи квадратные, круглые, сплошные, пустотелые; 5-6 – набивные обычные и с уширенной пятой; 7-8 – камуфлетные; 9 – с шарнирно раскр. упорами; 10 – призматические; 11 – свая в лидерной скважине
Рис. 20.
КОНСТРУКЦИИ СВАЙНЫХ ФУНДАМЕНТОВ
| СОПРЯЖЕНИЕ СБОРНОГО ОГОЛОВКА ПОД ОДИНОЧНУЮ СВАЮ | ОДНОРЯДНОЕ РАСПОЛОЖЕНИЕ СВАИ | ШАХМАТНОЕ РАСПОЛОЖЕНИЕ СВАЙ | ДВУХРЯДНОЕ РАСПОЛОЖЕНИЕ СВАЙ | КУСТ СВАЙ ПОД ОДИНОЧНУЮ КОЛОННУ |
|
|
|
|
|
1 – свая; 2 – сборный оголовок; 3 – монолитный железобетонный ростверк;
4 – железобетонный ростверк под колонну
Рис. 21.
| СВАЙНЫЙ БЕЗРОСТВЕРКОВЫЙ ФУНДАМЕНТ | СВАЙНЫЕ ФУНДАМЕНТЫ БЕЗ РОСТВЕРКОВ И ОГОЛОВКОВ |
|
|
1 – свая; 2 – оголовок; 3 – цокольная панель; 4 – перекрытия; 5 – колонна; 6 – ригель
Рис. 25.
ФУНДАМЕНТЫ ПАНЕЛЬНЫХ ЗДАНИЙ НА КОРОТКИХ СВАЯХ
СО СБОРНЫМ ЖЕЛЕЗОБЕТОННЫМ РОСТВЕРКОМ
| ПЛАН СВАЙНОГО ПОЛЯ | СЕЧЕНИЯ ФУНДАМЕНТОВ |
![]() |
|
| ПЛАН РАСКЛАДКИ РОСТВЕРКОВ, ФУНДАМЕНТНЫХ БАЛОК И ЦОКОЛЬНЫХ ПАНЕЛЕЙ | ОБЩИЙ ВИД И ДЕТАЛИ ФУНДАМЕНТА ПОД СРЕДНЕЙ ЧАСТЬЮ ЗДАНИЯ |
![]() |
|
ПЛАН ПЕРЕКРЫТИЯ НАД ТЕХНИЧЕСКИМ ПОДПОЛЬЕМ |
|
![]() |
|
Рис. 22.
УЗЛЫ СВАЙНЫХ ФУНДАМЕНТОВ
![]() |
а – при решении цоколя из блоков; б – то же, из сборных панелей;
в – узлы соединения сборного ростверка
Рис. 23.
ФУНДАМЕНТЫ ПАНЕЛЬНЫХ ЗДАНИЙ НА СВАЯХ С ОГОЛОВКАМИ И СБОРНЫМ ЖЕЛЕЗОБЕТОННЫМ РОСТВЕРКОМ
ПЛАН РАСКЛАДКИ БАЛОК РОСВЕРКА И СВАЙНОГО ПОЛЯ |
СОПРЯЖЕНИЕ БАЛОК РОСТВЕРКА С ОГОЛОВКОМ У ДЕФОРМАЦИОННОГО ШВА | |
![]() |
||
| СЕЧЕНИЯ ФУНДАМЕНТОВ | ||
![]() |
||
| СОПРЯЖЕНИЕ БАЛОК РОСТВЕРКА С ОГОЛОВКОМ | ОБЩИЙ ВИД ФУНДАМЕНТА В СРЕДНЕЙ ЧАСТИ ЗДАНИЯ | |
![]() |
||
Рис. 24.
ГИДРОИЗОЛЯЦИЯ ФУНДАМЕНТОВ
ПРИ НАПОРЕ ГРУНТОВЫХ ВОД НЕ МЕНЕЕ 200 мм |
ПРИ НАПОРЕ ГРУНТОВЫХ ВОД 200-1000 мм |
|
|
ПРИ НАПОРЕ ГРУНТОВЫХ ВОД СВЫШЕ 1000 мм |
|
|
|
1 – рулонная гидроизоляция; 2 – окрасочная гидроизоляция; 3 – оклеечная гидроизоляция; 4 – защитная стенка из кирпича; 5 – стеклоткань;
6 – деформационный шов; 7 – глина; 8 – пол подвала; 9 – стяжка;
10 – железобетонная плита; 11 – пригрузочный слой из бетона;
12 – подготовка
Рис. 26.

































































