| Скачать .docx |
Реферат: Контрольная работа: Монтажная схема балочной площадки
ОГЛАВЛЕНИЕ
ВВЕДЕНИЕ
1. Исходные данные
2. Расчет балок настила
3. Расчет центрально сжатой колонны
4. Монтажная схема
ВВЕДЕНИЕ
В данном проекте произведены два расчета и приведена монтажная схема балочной площадки:
1. Расчет балок настила, со схемами балочной клетки нормального типа и расчетной схемой
2. Расчет центрально сжатой колонны.
1. Исходные данные
- Пролет L=13,6 м
- Шаг колонB=6,6 м
- Шаг балок настилаa=2,1 м
- Отметка верха настилаH=9,9 м
- Нормативная временная нагрузкаpH =2500 кг/м2
- Толщина железобетонного настилаt=12 см
- Сталь С245Ry =2400 кг/см2
- плотность железобетона rВ =2500 кг/м3
- относительный прогиб балок настила
=![]()
2. Расчет балок настила

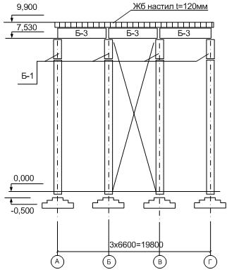
Рис. Схема балочной клетки нормального типа: 1 – колонна; 2 – главные балки; 3 – балки настила
Расчетная схема

Сбор нагрузок на 1 м2 настила
Таблица 1
| № п/п |
Наименование нагрузки |
Нормативная нагрузка, кг/м2 |
Коэффициент перегрузки, gr |
Расчетная нагрузка, кг/м2 |
| 1 |
Временная полезная нагрузка, pH |
2500 |
1,2 |
3000 |
| 2 |
Вес железобетонного настила (rB х t=2500 х 0,12=300) |
300 |
1,1 |
330 |
| 3 |
Вес металлических балок |
30 |
1,05 |
32 |
| Итого: |
gН =2830 |
g=3362 |
||
Нормативная нагрузка на балку настила:
qH = gН +a=2830 x 2,1=5943 кг/м=59,43 кг/см
Расчетная погонная нагрузка на балку настила:
q=g x a = 3362 х 2,1 = 7060,2 кг/м
Максимальный изгибающий момент:
Mmax
=
=
=38442,8 кг/м
Проверка прочности изгиба элементов:
s=
<Ry,
Откуда выражаем требуемый момент сопротивления балки Wтр:
Wтр=
=
=1601,8 см3

h — высота двута вра; b — ширина полки; s — толщина стенки; t — средня я толщи на полки; R — радиус внутрен него закругления ; r — радиус закругления полки
Балки двутавровые (ГОСТ 8239-89)
Таблица 2
| Номер двутавра |
Размеры |
Площадь поперечного сечения, см2 |
Масса 1 м, кг |
Справочные значения для осей |
|||||||||||
| h |
b |
s |
t |
R |
r |
X – X |
Y – Y |
||||||||
| не более мм |
Ix , |
Wx , |
ix , |
Sx , |
Iy , |
Wy , |
iy , |
||||||||
| см4 |
см3 |
см |
см3 |
см4 |
см3 |
см |
|||||||||
| 10 |
100 |
55 |
4,5 |
7,2 |
7,0 |
2,5 |
12,0 |
9,46 |
198 |
39,7 |
4,06 |
23,0 |
17,9 |
6,49 |
1,22 |
| 12 |
120 |
64 |
4,8 |
7,3 |
7,5 |
3,0 |
14,7 |
11,50 |
350 |
58,4 |
4,88 |
33,7 |
27,9 |
8,72 |
1,38 |
| 14 |
140 |
73 |
4,9 |
7,5 |
8,0 |
3,0 |
17,4 |
13,70 |
572 |
81,7 |
5,73 |
46,8 |
41,9 |
11,50 |
1,55 |
| 16 |
160 |
81 |
5,0 |
7,8 |
8,5 |
3,5 |
20,2 |
15,90 |
873 |
109,0 |
6,57 |
62,3 |
58,6 |
14,50 |
1,70 |
| 18 |
180 |
9 0 |
5,1 |
8,1 |
9,0 |
3,5 |
23,4 |
18,40 |
1290 |
143,0 |
7,42 |
81,4 |
82,6 |
18,40 |
1,88 |
| 20 |
200 |
100 |
5,2 |
8,4 |
9,5 |
4,0 |
26,8 |
21,00 |
1840 |
184,0 |
8,28 |
104,0 |
115,0 |
23,10 |
2,07 |
| 22 |
220 |
110 |
5,4 |
8,7 |
10,0 |
4,0 |
30,6 |
24,0 0 |
2550 |
232,0 |
9,13 |
131,0 |
157,0 |
28,60 |
2,27 |
| 24 |
240 |
115 |
5,6 |
9,5 |
10,5 |
4,0 |
34,8 |
27,30 |
3460 |
289,0 |
9,97 |
163,0 |
198,0 |
34,50 |
2,37 |
| 27 |
270 |
125 |
6,0 |
9,8 |
11,0 |
4,5 |
40,2 |
31,50 |
5010 |
371,0 |
11,20 |
210,0 |
260,0 |
41,50 |
2,54 |
| 30 |
300 |
135 |
6,5 |
10,2 |
12,0 |
5,0 |
46,5 |
36,50 |
7080 |
472,0 |
12,30 |
268,0 |
337,0 |
49,90 |
2,69 |
| 33 |
330 |
140 |
7,0 |
11,2 |
13,0 |
5,0 |
53,8 |
42,20 |
9840 |
597,0 |
13,50 |
339,0 |
419,0 |
59,90 |
2,79 |
| 36 |
360 |
145 |
7,5 |
12,3 |
14 ,0 |
6,0 |
61,9 |
48,60 |
13380 |
743,0 |
14,70 |
423,0 |
516,0 |
71,10 |
2,89 |
| 40 |
400 |
155 |
8,3 |
13,0 |
15,0 |
6,0 |
72,6 |
57,00 |
19062 |
953,0 |
16,20 |
545,0 |
667,0 |
86,10 |
3,03 |
| 45 |
450 |
160 |
9,0 |
14,2 |
16,0 |
7,0 |
84,7 |
66,50 |
27696 |
1231,0 |
18,10 |
708,0 |
808,0 |
101,00 |
3,09 |
| 50 |
500 |
170 |
10,0 |
15,2 |
17,0 |
7,0 |
100,0 |
78,50 |
39727 |
1589,0 |
19,90 |
919,0 |
10 43,0 |
123,00 |
3,23 |
| 55 |
550 |
180 |
11,0 |
16,5 |
18,0 |
7,0 |
118,0 |
92,60 |
55962 |
2035,0 |
21,80 |
1181,0 |
1356,0 |
151,00 |
3,39 |
| 60 |
600 |
190 |
12,0 |
17,8 |
20,0 |
8,0 |
138,0 |
108,00 |
76806 |
2560,0 |
23,60 |
1491,0 |
1725,0 |
182,0 0 |
3,54 |
Принимаем двутавр № 55: Wx =2035,0 см3 (Wx =2035,0 см3 >Wтр =1601,8 см3 ), Jх =55962 см4 .
Проверяем прогиб балки:
=
=
=0,00193<0,004![]()
жесткость обеспечена.
3. Расчет центрально сжатой колонны

Геометрическая длина колонны l:
l=H-tн -hб.н. -hг.б. +c=990-12-55-170+50= 803 см.
tн = 12 см – толщина настила;
hб.н = 55 см – высота балки настила;
hг.б
= 170 см – высота главной балки; ![]()
l0 – расчетная длина:
l0 =m х l = l, так как m = 1для данной расчетной схемы.
Продольная сила в колонне:
N=g x L x B x 1,02 = 3362х13,6х6,6х1,02=307809 кг
Проверка устойчивости центрально сжатых стержней:
s =
<Ry
yc
, где yc
=1
Требуемая площадь сечения колонны:
Аmp
=![]()
адаем j = 0,7:
Аmp
=
=
=183,2 см2
Принимаем двутавр с параллельными гранями полок I40K2
A = 218,69 cм2 , iy =10,12 cм.
Гибкость относительно оси Y:
ly
=
=
=80, при этом j = 0,686.
Проверка устойчивости:
s =
=
= 2052<2400 кг/см2
Устойчивость обеспечена.
Коэффициенты j продольного изгиба центрально-сжатых элементов
(СНиП II-23-81*)
| Гиб-кость |
Коэффициенты j для элементов из стали с расчетным сопротивлением Ry , МПа (кгс/см2 ) |
|||||||||||
| l |
200 (2050) |
240 (2450) |
280 (2850) |
320 (3250) |
360 (3650) |
400 (4100) |
440 (4500) |
480 (4900) |
520 (5300) |
560 (5700) |
600 (6100) |
640 (6550) |
| 10 20 30 40 50 60 70 80 90 100 110 120 130 140 150 160 170 180 190 200 210 220 |
988 967 939 906 869 827 782 734 665 599 537 479 425 376 328 290 259 233 210 191 174 160 |
987 962 931 894 852 805 754 686 612 542 478 419 364 315 276 244 218 196 177 161 147 135 |
985 959 924 883 836 785 724 641 565 493 427 366 313 272 239 212 189 170 154 140 128 118 |
984 955 917 873 822 766 687 602 522 448 381 321 276 240 211 187 167 150 136 124 113 104 |
983 952 911 863 809 749 654 566 483 408 338 287 247 215 189 167 150 135 122 111 102 094 |
982 949 905 854 796 721 623 532 447 369 306 260 223 195 171 152 136 123 111 101 093 086 |
981 946 900 846 785 696 595 501 413 335 280 237 204 178 157 139 125 112 102 093 085 077 |
980 943 895 839 775 672 568 471 380 309 258 219 189 164 145 129 115 104 094 086 079 073 |
979 941 891 832 764 650 542 442 349 286 239 203 175 153 134 120 107 097 088 080 074 068 |
978 938 887 825 746 628 518 414 326 267 223 190 163 143 126 112 100 091 082 075 069 064 |
977 936 883 820 729 608 494 386 305 250 209 178 153 134 118 105 094 085 077 071 065 060 |
977 934 879 814 712 588 470 359 287 235 197 167 145 126 111 099 089 081 073 067 062 057 |
| Примечание. Значение коэффициентов j в таблице увеличены в 1000 раз. |
||||||||||||


Технические характеристики двутавров стальных горячекатаных с параллельными гранями полок СТО АСЧМ 20-93 представлены в таблице.
| Профиль |
Размеры профиля мм |
Площадь |
Масса 1 м |
Справочные величины для осей |
||||||||||
| h |
b |
S |
t |
R |
сечения см2 |
длины кг |
Ix, см4 |
Wx см3 |
Sx см3 |
ix см |
Iy, см4 |
Wy см3 |
iy см |
|
| 20 К1 |
196 |
199 |
6,5 |
10 |
13 |
52,69 |
41,4 |
3846 |
392,5 |
216,4 |
8,54 |
1314,4 |
132,1 |
4,99 |
| 20 К2 |
200 |
200 |
8 |
12 |
13 |
63,53 |
49,9 |
4716 |
471,6 |
262,8 |
8,62 |
1601,4 |
160,1 |
5,02 |
| 25 К1 |
246 |
249 |
8 |
12 |
16 |
79,72 |
62,6 |
9171 |
745,6 |
410,7 |
10,73 |
3089,9 |
248,2 |
6,23 |
| 25 К2 |
250 |
250 |
9 |
14 |
16 |
92,18 |
72,4 |
10833 |
866,6 |
480,3 |
10,84 |
3648,6 |
291,9 |
6,29 |
| 25 К3 |
253 |
251 |
10 |
15,5 |
16 |
102,21 |
80,2 |
12154 |
960,8 |
535,4 |
10,9 |
4088,6 |
325,8 |
6,32 |
| 30 К1 |
298 |
299 |
9 |
14 |
18 |
110,80 |
87 |
18849 |
1265,1 |
694,7 |
13,04 |
6240,9 |
417,5 |
7,51 |
| 30 К2 |
300 |
300 |
10 |
15 |
18 |
119,78 |
94 |
20411 |
1360,7 |
750,6 |
13,05 |
6754,5 |
450,3 |
7,51 |
| 30 К3 |
300 |
305 |
15 |
15 |
18 |
134,78 |
105,8 |
21536 |
1433,7 |
806,9 |
12,64 |
7104,4 |
465,9 |
7,26 |
| 30 К4 |
304 |
301 |
11 |
17 |
18 |
134,82 |
105,8 |
23381 |
1538,2 |
852,8 |
13,17 |
7732,3 |
513,8 |
7,57 |
| 35 К1 |
342 |
348 |
10 |
15 |
20 |
139,03 |
109,1 |
31249 |
1827,4 |
1001,2 |
14,99 |
10541,7 |
605,8 |
8,71 |
| 35 К2 |
350 |
350 |
12 |
19 |
20 |
173,87 |
136,5 |
40296 |
2302,6 |
1272,7 |
15,22 |
13585,3 |
776,3 |
8,84 |
| 40 К1 |
394 |
398 |
11 |
18 |
22 |
186,81 |
146,6 |
56147 |
2850,1 |
1559,3 |
17,34 |
18921,9 |
950,8 |
10,06 |
| 40 К2 |
400 |
400 |
13 |
21 |
22 |
218,69 |
171,7 |
66623 |
3331,2 |
1936,3 |
17,45 |
22412 |
1120,6 |
10,12 |
| 40 К3 |
406 |
403 |
16 |
24 |
22 |
254,87 |
200,1 |
78041 |
3844,4 |
2139,9 |
17,5 |
26199,5 |
1300,2 |
10,14 |
| 40 К4 |
414 |
405 |
18 |
28 |
22 |
295,39 |
231,9 |
92773 |
4481,8 |
2513,2 |
17,72 |
31026,2 |
1532,2 |
10,25 |
| 40 К5 |
429 |
400 |
23 |
35,5 |
22 |
370,49 |
290,8 |
120292 |
5608 |
3198,6 |
18,02 |
37914,2 |
1895,7 |
10,12 |
Примечание. Sx – статический момент полусечения; Ix ,Iy – моменты инерции; Wx ,Wy – моменты сопротивления; ix ,iy – радиусы инерции.
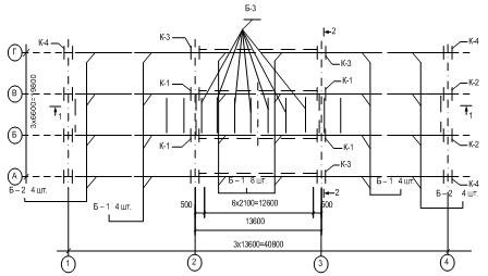
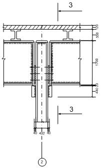
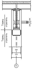
4. МОНТАЖНАЯ СХЕМА

1-1

2-2


монтажный балочный настил колонна

Узел 1 3-3