| Скачать .docx |
Реферат: Проектирование и конструирование монолитных железобетонных конструкций для зданий промышленн
Министерство образования и науки Российской Федерации
Государственной образовательное учреждение высшего профессионального образования
«Санкт-Петербургский государственный горный университет»

Кафедра строительства горных предприятий и подземных сооружений
КУРСОВОЙ ПРОЕКТ
Вариант №7
|
По дисциплине: __________________________________________________________
(наименование учебной дисциплины согласно учебному плану)
Пояснительная записка
Тема: Проектирование и конструирование монолитных железобетонных конструкций
для зданий промышленного типа.
|
|
|
Выполнил: студент гр. _______ _________________ /_________________/ (подпись) (Ф.И.О.)
ОЦЕНКА: _____________
Дата: ___________________
|
|
(должность) (подпись) (Ф.И.О.)
Санкт-Петербург
2011
Аннотация
В данном курсовом проекте рассчитано и сконструировано монолитное железобетонное перекрытие, колонна первого этажа и столбчатый фундамент под колонну для 4-х этажного здания промышленного типа без подвала. Размер внутреннего помещения: длина 28 м, ширина 24 м, высота этажа 3,8 м. Несущие наружные стены из кирпича толщиной 51 см с внутренними пилястрами высотой 250 мм в местах опирания ригелей. Кровельное перекрытие – ж/б плиты по металлической ферме, которая опирается только на несущие стены. Район строительства – г. Петрозаводск.
Курсовой проект состоит из пояснительной записки, состоящей из 49 листов, и графической части - чертежа на А1.
The summary
In the given course project the monolithic faro-concrete blocking, the column of the first floor and the posting base under it was calculated and constructed, the heating engineering calculation for 4 floors building of an industrial type without a cellar was executed. The size of internal rooms of a building is 28 х 24 m , height of the floor of 3,8 m. Bearing outside walls from a brick by thickness 51 sm with internal pilasters in height 25 sm in places leaning of the main beams. The roofing blocking is steel farm, which leans on the bearing walls. Area of construction is Petrozavodsk.
The course project consists of an explanatory slip consisting of 49 sheets, and graphic part - drawing on А1.
| 1. Выбор материалов………………………………………………………………………… |
5 |
| 2. Компоновка балочного перекрытия…….………………..……………………………… |
5 |
| 3. Расчёт плиты перекрытия ………….……………………………………………………. |
6 |
| 4. Расчет прочности второстепенной балки Б-2…………………….…………………….. |
15 |
| 5. Расчёт прочности главной балки Б-1…………………………………………………..... |
25 |
| 6. Расчёт колонны первого этажа…………………………………………………............... |
33 |
| 7. Армирование отверстий и проемов в плитах ……………………………….................. |
39 |
| 8. Расчет столбчатого фундамента под колонну……… …………..……………………... |
39 |
| 9. Определение конечной осадки фундамента колонны….…………..………………….. |
45 |
| 10. Список используемой литературы……………………………………………………... |
49 |
Для плиты перекрытия, второстепенной и главной балки, колонн 1-го этажа, фундамента принимаем бетон проектного класса по прочности на сжатие В25, коэффициент условий работы
Rb
= 14,5 МПа; Eb
= 30∙10-3
МПа; Rbt
= 1,05 МПа [4].
Для армирования плиты перекрытия, второстепенной и главной балки, колонн 1-го этажа, а также фундамента предварительно принимаем арматуру класса АIII с
Rs = Rsс = 365 МПа [4].
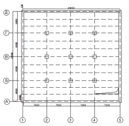
2. Компоновка балочного перекрытия.
В соответствии с заданием требуется спроектировать четырехэтажное здание промышленного типа, без подвала, с размерами в плане между внутренними гранями стен
м
,
м
. Стены кирпичные несущие толщиной 510 мм
(2 кирпича). Привязка разбивочных осей стен принята равной 120 мм
. Высота этажей между отметками чистого пола
м
. Нормативная нагрузка на всех междуэтажных перекрытиях
, в том числе кратковременная
. Междуэтажные железобетонные перекрытия опираются на наружные кирпичные стены и внутренние железобетонные колонны.
Кровельное покрытие опирается только на наружные стены. В качестве несущих элементов кровельного перекрытия используются сборные железобетонные фермы. Классы бетона и арматуры выбираются самостоятельно в соответствии с действующими нормативными документами.
В состав пола междуэтажных перекрытий входят: покрытие из асфальтобетона толщиной
, бетонное основание толщиной
.
Выбираем поперечное расположение главных балок, что повышает жесткость здания в поперечном направлении. При рекомендуемой величине пролетов второстепенных балок от 5,0 до 7,0 м и главных балок - от 6,0 до 8,0 м [2], в зависимости от интенсивности нагрузки на здание с заданными размерами на плане принимаем 4 пролета главных балок по 6000 мм каждый и 4 пролета второстепенных балок, каждый по 7000 мм. При рекомендуемом шаге второстепенных балок (расстоянии между второстепенными балками) от 1,7 до 2,5 м [2] принимаем одинаковую его величину, равную 2 м.

Рис. 1. Схема расположения главных и второстепенных балок ребристого перекрытия
3. Расчет плиты перекрытия.
3.1 Сбор нагрузки на плиту перекрытия.
Постоянная нагрузка:
,
где
- нагрузка от веса плиты (с учетом коэффициента надежности):
где
плотность железобетона:
;
толщина плиты перекрытия: принимаем
согласно критерию для минимальной толщины монолитных неразрезных балочных плит [2]:
;
коэффициент надежности: принимаем
[2];
ускорение свободного падения:
;
;
нагрузка от веса пола (с учетом коэффициента надежности):
![]()
где
плотность асфальтобетона:
;
плотность бетонного основания:
;
толщина асфальтобетона:
;
- толщина бетонного основания:
;
коэффициент надежности: принимаем
[2];
ускорение свободного падения:
;
![]()
Подставив найденные значения, окончательно получим:
![]()
Временная нагрузка:
![]()
‒ длительная нормативная нагрузка:
;
кратковременная нормативная нагрузка:
;
коэффициент надежности для длительной нагрузки: принимаем
[2];
коэффициент надежности для кратковременной нагрузки: принимаем
[2].
Итого:
.
Нормативные и расчетные нагрузки, действующие на 1 м2 перекрытия.
Таблица 1
| Вид нагрузки |
Нормативная нагрузка, Н/м2 |
Коэффициент надежности |
Расчетная нагрузка, Н/м2 |
| 1. Постоянная |
|||
| 1.1.Собственный вес плиты: |
1750 |
1,1 |
1925 |
| 1.2.Собственный вес пола: |
1280 |
1,2 |
1536 |
| 2. Временная |
|||
| 2.1. Длительная: |
6000 |
1,2 |
7200 |
| 2.2. Кратковременная: |
1500 |
1,2 |
1800 |
| Итого |
12461 |
3.2 Определение расчетных размеров пролетов плиты.
Для определения расчетных пролетов плиты необходимо задаться размерами поперечного сечения второстепенных балок [2]:
т.к.
, то принимаем
;
т.к.
, то принимаем ![]()
За расчетные пролеты плиты (длина ее короткой стороны
) принимаем:
в средних пролетах – расстояния в свету между гранями второстепенных балок, а в крайних – расстояния от граней второстепенных балок до середины площадок опирания плиты на стену.
При глубине заделки плиты в стену a3 = 120 мм (полкирпича) получим:

Для определения расчетных пролетов плиты в длинном направлении задаемся размерами поперечного сечения главных балок [2]:
т.к.
мм
, то принимаем
;
т.к.
, то принимаем
.
При ширине главных балок 300 мм и глубине заделки плиты в стены а3 = 120 мм (полкирпича):

При соотношении длинной и короткой сторон плиты, а именно
[2], плита условно рассчитывается как балочная неразрезная, многопролетная, работающая, в основном, в коротком направлении.
3.3 Расчёт изгибающих моментов в плите перекрытия.
Расчетные изгибающие моменты в неразрезной балочной плите определяются с учетом перераспределения усилий в следствие возникновения пластических деформаций бетона и арматуры:
- в крайних пролетах:

- в средних пролетах и над средними опорами:

- над второй и предпоследней опоре:

|
|
|
|
|
|
|
|
|
|
|
|
|
|
|
|
|
|
Рис. 2. К расчету многопролетной балочной плиты:
а) расчетная схема; б) эпюры изгибающего момента М
3.4 Уточнение толщины плиты.
Для монолитного ребристого перекрытия принимаем бетон класса В25 с расчетным сопротивлением сжатию Rb
= 14,5 МПа [4] (коэффициент условия работы
согласно прил. 3 [2]), стержневую арматуру периодического профиля класса А-III с расчетным сопротивлением продольному растяжению
=355 МПа.
Подбор арматуры требует уточнения толщины плиты. Для этого, предварительно задавшись процентом армирования
(оптимальный процент армирования для плиты
[2]), необходимо определить относительную высоту сжатой зоны плиты, для которой необходимо выполнение условия (1):
(1),
где
процент армирования:
;
расчетное сопротивление арматуры растяжению: ![]()
расчетное сопротивление бетона сжатию: ![]()
граничное значение относительной высоты сжатой зоны:
определяется согласно п. 3.12* [4] по формуле:

где
характеристика сжатой зоны бетона:
,
где α – коэффициент, принимаемый равным 0,85 для тяжелого бетона;
напряжение в арматуре: для принятой ненапрягаемой арматуры класса А-III
;
предельное напряжение в арматуре сжатой зоны: для принятых условий работы
МПа
;
подставляя найденные значения, находим:

т.о. можно убедиться в выполнении условия (1):
![]()
Минимальная рабочая толщина плиты [2]:
,
где
максимальный изгибающий момент:
;
расчетное сопротивление бетона сжатию. ![]()
ширина рассматриваемого участка плиты:
;
коэффициент, определяемый согласно прил. 4 [2] в зависимости от
:
;
![]()
Полная высота сечения плиты:
где а – толщина защитного слоя бетона: согласно п. 5.4 [4] для рабочей продольной арматуры плиты а ≥ 15 мм, т.о. принимаем а = 20 мм;
![]()
Толщина плиты монолитных междуэтажных перекрытия промышленных зданий принимается не менее 60 мм [1], следовательно, принимаем толщину плиты h = 70 мм. Тогда рабочая (полезная) высота плиты перекрытия будет составлять:
![]()
3.5 Расчет площади поперечного сечения арматуры.
Армирование плиты, согласно заданным параметрам, производится сетками. Принимаем армирование сварными сетками с использованием арматуры класса А-III с расчетным сопротивлением продольному растяжению
=355 МПа.
Определение параметра
[2]:
,
где
изгибающий момент;
расчетное сопротивление бетона сжатию: ![]()
ширина рассматриваемого участка плиты:
;
рабочая высота плиты:
.
Определение расчетного значения площади арматуры:
,
где
изгибающий момент;
коэффициент, принимаемый согласно прил. 4 [2] в зависимости от относительной высоты сжатой зоны
;
рабочая высота плиты:
;
расчетное сопротивление арматуры растяжению:
МПа.
Примеры расчета площади арматуры:
- в крайних пролетах:
;
по таблице в прил. 4 [2] находим (интерполяцией) соответствующее значение
, тогда имеем:
;
- в средних пролетах и над средними опорами:
;
по таблице в прил. 4 [2] находим (интерполяцией) соответствующее значение
и получим:
;
- над второй и предпоследней опорой:
;
по таблице в прил. 4 [2] находим (интерполяцией) соответствующее значение
и получим:
.
Окончательный выбор продольной рабочей арматуры в плите перекрытия представлен в табл. 2.
3.6 Проверка по проценту армирования.
Процент армирования вычисляется следующим образом [2]:
μ
=
,
где
фактическая площадь арматуры, определяемая по табл. 1 прил. 5 [2];
- площадь бетона;
ширина рассматриваемого участка плиты:
;
рабочая высота плиты:
.
Полученные значения фактического процента армирования представлены в табл. 2.
Определение количества, диаметра арматуры и фактического процента армирования для плиты перекрытия.
Таблица 2
| Сечение |
Расчетные характеристики |
Количество и диаметр арматуры |
|
µ , % |
|||
| М , Н×м |
|
h |
|
||||
| Крайних пролетов |
4352 |
0,12 |
0,9360 |
2,62 |
|
2,55 |
0,5 |
| Средних пролетов и над средними опорами |
2523 |
0,07 |
0,9633 |
1,48 |
|
1,70 |
0,3 |
| Над второй и предпоследней опорами |
2884 |
0,08 |
0,958 |
1,70 |
|
1,70 |
0,3 |
Полученные значения фактического процента армирования удовлетворяют соответствующим рекомендациям [1], в которых оптимальный процент армирования для плиты составляет
.
Окончательно принимаем сварные плоские сетки (при расчетном диаметре рабочих стержней более 5 мм [2]) по ГОСТ 23279-85 «Сетки арматурные сварные для железобетонных конструкций и изделий», при необходимо учесть величину изгибающего момента при назначении шага арматурных стержней (расстояния между стержнями). Для сечения крайних пролетов принимаем легкую сетку
шириной 200 см и длиной 350 см с шагом продольных и поперечных стержней, равным 100 мм, над первой и предпоследней опорой – сетку
шириной 95 см и длиной 350 см с шагом продольных стержней 100 мм и шагом поперечных стержней 150 мм, в сечении средних пролетов – сетку
шириной 200 см и длиной 350 см с шагом продольных и поперечных стержней 200 мм, над средними опорами – сетку
шириной 95 см и длиной 350 см с шагом продольных и поперечных стержней 200 мм. Т.о. на каждую плиту длиной
необходимо по 2 сетки каждого типа.
4. Расчет прочности второстепенной балки Б-2.
4.1 Определение моментов и поперечных сил.
Второстепенная балка, крайними опорами которой служит стена, а промежуточными – главные балки, работает и рассчитывается как неразрезная многопролетная конструкция.
Расчетные средние пролеты исчисляются как расстояния в свету между гранями главных балок, а за расчетные крайние пролеты принимаются расстояния между гранями главных балок и серединами площадок опирания на стены.
При предварительно назначенной ширине ребер главных балок
и глубине заделки второстепенных балок в стены а3
= 250 мм имеем:

|
||
![]() |
||
Рис.3. Опалубочная схема второстепенной балки
В качестве материала для второстепенной балки, как и для всех железобетонных конструкций, используется бетон класса В25 с расчетным сопротивлением сжатию
Rb
= 14,5 МПа (коэффициент условий работы принимается равным
), и стержневая арматура: рабочая класса А-III с расчетным сопротивлением растяжению
= 365 МПа и
поперечная класса А-I с RS = 225 МПа.
Нагрузка на второстепенные балки передается от плиты, причем при подсчете нагрузок неразрезностью плиты пренебрегают. Если на перекрытие действует равномерно распределенная нагрузка, то нагрузку на второстепенные балки также считают равномерно распределенной. Чтобы учесть упругое защемление второстепенных балок на опорах, к постоянной нагрузке добавляют четверть временной.
Расчетная постоянная и временная нагрузки соответственно на второстепенную балку с грузовой площадью шириной lпл , равной шагу второстепенных балок 2 м, будут находиться согласно формулам [2]:
,
,
где
постоянная нагрузка на 1
перекрытия (см. табл.1):
;
временная нагрузка на 1
перекрытия (см. табл.1):
;
ширина грузовой площади при расчете второстепенной балки:
;
собственный вес 1 м
балки:
,
где
ширина второстепенной балки:
;
высота второстепенной балки:
;
высота плиты:
;
плотность железобетона:
;
ускорение свободного падения:
;
![]()
.
.
Расчетные изгибающие моменты и перерезывающие силы в неразрезных балках (табл.3 и табл.4) с равными или отличающимися не более чем на 10% пролетами в соответствии с перераспределением усилий вследствие пластических деформаций определяются с помощью таблиц (прил. 2 [2]) по формулам:

где a* , b* , g* , d* - табличные коэффициенты;
lвт – пролет второстепенных балок: lвт = 7000 мм.
Результаты вычислений представлены в табл.3 и табл. 4.
Изгибающие моменты М в четырехпролетных неразрезных балках, загруженных равномерно распределенной нагрузкой.
Таблица 3
| х/l |
Влияние q |
Влияние р |
Расчётные моменты |
|||||
| α* |
Мq , Н∙м |
β*max |
β*min |
Мpmax , Н∙м |
Мpmiп , Н∙м |
Мmax , Н∙м |
Мmin , Н∙м |
|
| 0,2 |
0,0586 |
40406,34 |
0,0693 |
-0,0107 |
45841,95 |
-7078,05 |
86248,29 |
33328,29 |
| 0,4 |
0,0771 |
53162,61 |
0,0986 |
-0,0214 |
65223,90 |
-14156,10 |
118386,51 |
39006,51 |
| 0,6 |
0,0557 |
38406,71 |
0,0879 |
-0,0321 |
58145,85 |
-21234,15 |
96552,56 |
17172,56 |
| 0,8 |
-0,0057 |
-3930,31 |
0,0374 |
-0,0431 |
24740,10 |
-28510,65 |
20809,79 |
-32440,96 |
| 0,9 |
-0,0514 |
-35441,74 |
0,0163 |
-0,0677 |
10782,45 |
-44783,55 |
-24659,29 |
-80225,29 |
| 1,0 |
-0,1070 |
-73779,50 |
0,0134 |
-0,1205 |
8864,10 |
-79710,75 |
-64915,40 |
-153490,25 |
| 1,1 |
-0,0586 |
-40406,34 |
0,0145 |
-0,0721 |
9591,75 |
-47694,15 |
-30814,59 |
-88100,49 |
| 1,2 |
-0,0200 |
-13790,56 |
0,0300 |
-0,0500 |
19845,00 |
-33075,00 |
6054,44 |
-46865,56 |
| 1,4 |
0,0271 |
18686,21 |
0,0736 |
-0,0464 |
48686,40 |
-30693,60 |
67372,61 |
-12007,39 |
| 1,5 |
0,0357 |
24616,15 |
0,0804 |
-0,0446 |
53184,60 |
-29502,90 |
77800,75 |
-4886,75 |
| 1,6 |
0,0343 |
23650,81 |
0,0771 |
-0,0429 |
51001,65 |
-28378,35 |
74652,46 |
-4727,54 |
| 1,8 |
-0,0014 |
-965,34 |
0,0417 |
-0,0403 |
27584,55 |
-26658,45 |
26619,21 |
-27623,79 |
| 1,9 |
-0,0300 |
-20685,84 |
0,0310 |
-0,0610 |
20506,50 |
-40351,50 |
-179,34 |
-61037,34 |
| 2,0 |
-0,0714 |
-49232,30 |
0,0357 |
-0,1071 |
23615,55 |
-70846,65 |
-25616,75 |
-120078,95 |
Пример расчета момента М
(для участка
):
;
;
;
;
.
Поперечные силы Q в четырехпролетных неразрезных балках, загруженных равномерно распределенной нагрузкой.
Таблица 4
| x/l |
Влияние q |
Влияние p |
Расчетные поперечные силы |
|||||
| g * |
Qq , Н |
d * max |
d * min |
Qpmax , Н |
Qpmin , Н |
Qmax , Н |
Qmin , Н |
|
| 0,0 |
0,39290 |
38702,22 |
0,4464 |
-0,0535 |
42184,80 |
-5055,75 |
80887,02 |
33646,47 |
| 0,2 |
0,19290 |
19001,42 |
0,2717 |
-0,0788 |
25675,65 |
-7446,60 |
44677,07 |
11554,82 |
| 0,4 |
-0,07100 |
-6993,78 |
0,1461 |
-0,1533 |
13806,45 |
-14486,85 |
6812,67 |
-21480,63 |
| 0,6 |
-0,20710 |
-20400,18 |
0,0660 |
-0,2731 |
6237,00 |
-25807,95 |
-14163,18 |
-46208,13 |
| 0,8 |
-0,40710 |
-40100,98 |
0,0247 |
-0,4319 |
2334,15 |
-40814,55 |
-37766,83 |
-80915,53 |
| 1,0 |
-0,60710 |
-59801,78 |
0,0134 |
-0,6205 |
1266,30 |
-58637,25 |
-58535,48 |
-118439,03 |
| 1,0 |
0,53570 |
52768,59 |
0,6027 |
-0,0670 |
56955,15 |
-6331,50 |
109723,74 |
46437,09 |
| 1,2 |
0,33570 |
33067,79 |
0,4187 |
-0,0830 |
39567,15 |
-7843,50 |
72634,94 |
25224,29 |
| 1,4 |
0,13550 |
13347,29 |
0,2742 |
-0,1385 |
25911,90 |
-13088,25 |
39259,19 |
259,04 |
| 1,5 |
0,03570 |
3516,59 |
0,2190 |
-0,1833 |
20695,50 |
-17321,85 |
24212,09 |
-13805,26 |
| 1,6 |
-0,06430 |
-6333,81 |
0,1755 |
-0,2398 |
16584,75 |
-22661,10 |
10250,94 |
-28994,91 |
| 1,8 |
-0,26430 |
-26034,61 |
0,1222 |
-0,3865 |
11547,90 |
-36524,25 |
-14486,71 |
-62558,86 |
| 1,9 |
-0,36430 |
-35885,01 |
0,1106 |
-0,4749 |
10451,70 |
-44878,05 |
-25433,31 |
-80763,06 |
| 2,0 |
-0,04643 |
-4573,54 |
0,1071 |
-0,5714 |
10120,95 |
-53997,30 |
5547,41 |
-58570,84 |
Пример расчёта поперечной силы (для участка
):

За расчетные моменты и поперечные силы у опор принимают их значение по граням главных балок:
,
,
где Моп – наибольший момент (по модулю) на оси опоры;
Qоп – наибольшая поперечная сила справа или слева от оси опоры;
lвт – пролет второстепенных балок: lвт = 7000 мм;
ширина второстепенной балки:
;
ширина второстепенной балки:
.
Подставив полученные значения соответствующих моментов и поперечных сил, получим:
1) при
:
![]()
![]()
2) при
:
![]()
![]()
|
|
|
|
|
|
|
|
|
|
|
|
|
|
|
|
|
|
|
|
Рис. 4. Эпюры изгибающих моментов и перерезывающих сил:
а) расчетная схема; б) эпюры моментов; в) эпюры перерезывающих сил
4.2 Уточнение принятых размеров второстепенной балки.
Минимальная рабочая высота балки:
,
где М max – максимальный (по модулю) изгибающий момент в пролете или на грани опоры: принимаем величину момента над второй опорой М max = 153490,25 Н∙м;
коэффициент, определяемый согласно прил. 4 [2], зависящий от класса бетона, класса стали и процента армирования;
расчетное сопротивление бетона сжатию: ![]()
b
– ширина рассматриваемого сечения: для второстепенной балки
.
Относительная высота сжатой зоны балки:
,
где
процент армирования: для второстепенной балки примем
;
расчетное сопротивление арматуры растяжению: ![]()
расчетное сопротивление бетона сжатию: ![]()
.
По ξ определяем А0 : А0 = 0,18, следовательно, имеем:
.
Т.о. окончательная высота сечения балки находится как:
hвт = h0 + a ,
где а
– толщина защитного слоя бетона: согласно п. 5.5 [4]
мм
, т.о. принимаю
;
ранее принятую высоту второстепенной балки корректируем: принимаем h0
=
мм, тогда:
hвт = 550 + 30 = 580 (мм) = 0,58 (м).
Выполним проверку принятых размеров второстепенной балки по максимальной перерезывающей силе:
,
где
максимальная (по модулю) перерезывающая сила: принимаем величину перерезывающей силы над первой опорой (слева)
= 118439,03 Н;
.
Неравенство верно, следовательно, выбранный размер поперечного сечения второстепенной балки подходит для заданных нагрузок.
4.3 Расчет продольной рабочей арматуры.
1) Расчет продольной арматуры над опорами:
на участках отрицательных изгибающих моментов, т. е. у опор, где плита попадает в растянутую зону, площадь арматуры определяется как в прямоугольном сечении.
- для
:
.
По полученному
из табл. 1 прил. 4 [2] для
выбираем значение коэффициента
= 0,905:
;
- для
:
.
Данному значению соответствует
= 0,924:
.
2) Расчет продольной арматуры в пролётах:
на этих участках плита попадает в сжатую зону, и площадь арматуры определяется так же, как и для балок таврового сечения.
Для этого необходимо выбрать расчётную ширину полки для балок монолитного ребристого перекрытия в соответствии с условиями (2) по ее ограничению:
- расчетная величина таврового сечения
принимается равной расстоянию между осями соответствующих балок (но не более 1/3 пролета балки), если выполняется условие:
;
-
, если выполняется условие:
;
где
высота плиты перекрытия:
м;
высота второстепенной балки:
м.
Проверим выполнение одного из условий (2):
принимается значение
из двух следующих:

Примем меньшее значение
= 2 м. Затем определим положение нейтральной оси: если М /
< М
, где М
– максимальный (по модулю) изгибающий момент в пролете балки, то нейтральная ось будет проходить в ребре балки и сечение должно рассчитываться как тавровое. Если наоборот, то нейтральная ось будет проходить в полке, и сечение рассчитывается как прямоугольное.
Найдем значение по формуле:
;
- для крайних пролётов:
>
=> сечение рассчитывается как прямоугольное:
,
= 0,927;
.
- для средних пролётов:
>
=> сечение рассчитывается как прямоугольное:
,
= 0,948;
.
Определение количества, диаметра арматуры для второстепенной балки.
Таблица 5
| Сечение |
Расчётная площадь поперечного сечения арматуры |
Количество и диаметр стержней, класс арматуры |
Фактическая площадь поперечного сечения арматуры |
| Над первой опорой ( |
8,40 |
3Ø20 А-III |
9,41 |
| Над второй опорой ( |
6,47 |
3Ø18 А-III |
7,63 |
| Крайние пролёты ( |
6,36 |
3Ø18 А-III |
7,63 |
| Средние пролёты ( |
4,63 |
3Ø14 А-III |
4,62 |
В сжатых зонах пролетов второстепенной балки конструктивно в качестве продольной монтажной арматуры примем арматурные стержни 2Ø6 А-I.
4.4 Расчет поперечной рабочей арматуры.
Т.к. высота второстепенной балки составляет более 300 мм (hвт = 580 мм), независимо от расчета необходимо использовать хомуты в качестве поперечной арматуры [2].
Для крепления хомутов в пролетах второстепенной балки в верхней зоне принимаем конструктивно стержни класса A-I Ø6. При этом проверим выполнение условия:
,
где
- ширина ребра второстепенной балки;
- расчетное сопротивление бетона растяжению;
- рабочая высота второстепенной балки;
максимальная (по модулю) перерезывающая сила: принимаем величину перерезывающей силы над второй опорой
= 118439,03 Н;
>
;
условие выполняется, следовательно, поперечная арматура ставится из конструктивных соображений.
Максимальное расстояние между хомутами (шаг хомутов):
(м).
Т.о. шаг расположения хомутов на опорах балки составляет:
£ h
/3 и £ 500 мм;
h
/3 = 580/3 = 193 мм. Принимаем
= 150 мм.
Шаг расположения хомутов в пролетах балки составляет:
£ 3h
/4 и £ 500мм;
3h
/4 = 3∙580/4 = 435 мм. Принимаем
= 400 мм.
Рассчитывается нагрузка на хомуты:
1) Нагрузка на приопорные хомуты:
,
2) Нагрузка на хомуты в пролете:
,
где
число срезов одного хомута:
;
площадь поперечного сечения одного среза: для выбранного класса арматуры
;
расчетное сопротивление хомута растяжению (при расчете на поперечную силу): для выбранного класса арматуры
;

Определяется перерезывающая сила, которую воспринимает арматура вместе с бетоном:

Условие выполнено, следовательно, отогнутая арматура по расчету не требуется.
Т.о. в качестве поперечной арматуры принимаем закрытые двухсрезные хомуты: в пролетах из арматуры класса A-I Ø6 с шагом
= 400 мм, в сечениях опор – из арматуры того же класса и диаметра стержня с шагом
= 150 мм.
5. Расчет прочности главной балки Б-1.
При ориентировочной ширине колонны bк = 300 мм и глубине заделки в стену
a3 = 250 мм, получим размеры крайних и средних пролетов главной балки соответственно:

![]() |
|
Рис. 5. Опалубочная схема главной балки
5.1 Определение моментов и перерезывающих сил.
Нагрузка на главную балку передается от второстепенных в виде сосредоточенных сил: постоянной G и полезной (временной) P .
Постоянная нагрузка равна [2]:
,
где
собственный вес пола:
,
где
нормативная нагрузка от собственного веса 1м2
пола (т.е. без учета коэффициента надежности): согласно пункту 3.1 находится как
;
lвт – пролет второстепенных балок: lвт = 7000 мм = 7 м;
шаг второстепенных балок (короткая сторона плиты):
;
n – коэффициент надежности по нагрузке: принимаем n = 1,1 [2];
![]()
собственный вес плиты перекрытия:
,
где
высота плиты:
;
плотность железобетона:
;
;
собственный вес второстепенной балки:
,
где
высота второстепенной балки:
;
ширина второстепенной балки:
;
;
собственный вес главной балки:
,
где
высота главной балки:
;
ширина главной балки:
;
пролет главных балок:
6000 мм = 6 м;
.
Подставив найденные значения, получим:
![]()
Расчетная полезная нагрузка определяется из зависимости [2]:
,
где рн – нормативная полезная нагрузка, действующая на 1м2 перекрытия (т.е. без учета коэффициента надежности): согласно пункту 3.1 находится как
.
Подставив необходимые величины, получим:
.
Расчетные изгибающие моменты и перерезывающие силы в неразрезных балках (табл.6 и табл.7) в случае равных или отличающимися не более чем на 10% пролетов можно определить с помощью таблиц (прил. 6 [2]) по формулам:
![]()
где a, b, g, d - табличные коэффициенты.
Результаты вычислений представлены в табл. 6 и табл. 7.
Изгибающие моменты М в четырехпролетных неразрезных балках, загруженных сосредоточенными силами.
Таблица 6
| x / l |
Влияние G |
Влияние Р |
Расчётные моменты |
|||||
| α |
Mg , Н∙м |
βmax |
βmin |
Mpmax , Н∙м |
Mpmin , Н∙м |
Mmax , Н∙м |
Mmin , Н∙м |
|
| 0 |
0 |
0 |
0 |
0 |
0 |
0 |
0 |
0 |
| 0,33 |
0,238 |
39364,25 |
0,286 |
-0,048 |
198198 |
-33264 |
237562,248 |
6100,248 |
| 0,66 |
0,143 |
23651,63 |
0,238 |
-0,095 |
164934 |
-65835 |
188585,628 |
-42183,372 |
| 1,00 |
-0,286 |
-47303,30 |
0 |
-0,321 |
0 |
-222453 |
-47303,300 |
-269756,256 |
| 1,33 |
0,079 |
13066,28 |
0,206 |
-0,127 |
142758 |
-88011 |
155824,284 |
-74944,716 |
| 1,66 |
0,111 |
18358,96 |
0,222 |
-0,111 |
153846 |
-76923 |
172204,956 |
-58564,044 |
| 2,00 |
-0,190 |
-31425,20 |
0,095 |
-0,286 |
65835 |
-198198 |
34409,76 |
-229623,24 |
Пример расчета момента М
(для участка
):
;
![]()
;
;
.
Поперечные силы Q в четырехпролетных неразрезных балках, загруженных сосредоточенными силами.
Таблица 7
| x / l |
Влияние G |
Влияние Р |
Расчётные поперечные силы |
|||||
| γ |
Qg , Н |
δmax |
δmin |
Qpmax , Н |
Qpmin , Н |
Qmax , Н |
Qmin , Н |
|
| 0 |
0,714 |
19682,12 |
0,857 |
-0,143 |
98983,5 |
-16516,5 |
118665,624 |
3165,6 |
| 1 |
-1,286 |
-35449,9 |
0,036 |
-1,321 |
4158 |
-152575,5 |
-31291,876 |
-188025,4 |
| 1 |
1,095 |
30184,77 |
1,274 |
-0,178 |
147147 |
-20559 |
177331,77 |
9625,8 |
| 2 |
-0,905 |
-24947,2 |
0,286 |
-1,191 |
33033 |
-137560,5 |
8085,77 |
-162507,7 |
Пример расчёта поперечной силы (для участка
):

За расчетные моменты у опор принимаем их значение по граням колонн (ширина колонны bк = 300 мм ) [2]:
![]()
![]()
|
|
|
|
|
|
|
|
|
|
|
|
|
|
|
|
|
|
|
|
|
|
|
|
|
|
|
|
|
|
|
|
|
|
|
|
|
|
|
|
|
Рис.6. Эпюры изгибающих моментов и перерезывающих сил:
а) расчетная схема; б) эпюры моментов; в) эпюры перерезывающих сил
5.2 Уточнение размеров главной балки.
Расчеты производим аналогично расчетам для второстепенной балки.
Минимальная рабочая высота главной балки:
,
где М max – максимальный (по модулю) изгибающий момент в пролете или на грани опоры: принимаем величину момента над второй опорой М max = 269756,256 Н∙м;
коэффициент, определяемый согласно прил. 4 [2], зависящий от класса бетона, класса стали и процента армирования;
расчетное сопротивление бетона сжатию: ![]()
b
– ширина рассматриваемого сечения: для главной балки
.
Относительная высота сжатой зоны балки:
, А0
= 0,18,
где μ – оптимальный процент армирования: μ = 0,8%;
Rs – расчётное сопротивление арматуры растяжению: R s = 365 МПа;
![]()
Окончательная высота сечения балки находится как:
h = h0 + a ,
где а
– толщина защитного слоя бетона: согласно п. 5.5 [4]
мм
, т.о. принимаю
;
ранее принятую высоту главной балки корректируем: принимаем h0
=
мм, тогда:
h = 600 + 30 = 630 (мм) = 0,63 (м).
Проверка принятых размеров по максимальной перерезывающей силе:
,
где
- ширина ребра главной балки;
- расчетное сопротивление бетона сжатию;
- рабочая высота второстепенной балки;
максимальная (по модулю) перерезывающая сила: принимаем величину перерезывающей силы над второй опорой
= 188025,4 Н.
=
= 913,5 кН;
913500 Н
188025,4 Н.
Неравенство верно, следовательно, выбранный размер поперечного сечения второстепенной балки подходит для заданных нагрузок.
5.3 Расчет продольной рабочей арматуры.
Расчеты производим по тому же принципу, что и для второстепенной балки.
1) Расчет продольной арматуры над опорами:
- x/ l = 1:
,
= 0,905;
![]()
- x/ l = 2:
,
= 0,920;
![]()
2) В пролётах:
т.к.
принимается значение
из двух следующих:

Примем меньшее значение
= 2 м. Затем определим положение нейтральной оси: если М /
< М
, где М
– максимальный (по модулю) изгибающий момент в пролете балки, то нейтральная ось будет проходить в ребре балки и сечение должно рассчитываться как тавровое. Если наоборот, то нейтральная ось будет проходить в полке, и сечение рассчитывается как прямоугольное.
Найдем значение по формуле:
;
- для крайних пролётов:
>
=> сечение рассчитывается как прямоугольное:
,
= 0,917;
.
- для средних пролётов:
>
=> сечение рассчитывается как прямоугольное: 172204,956
,
= 0,939;
.
Определение количества, диаметра арматуры для главной балки.
Таблица 8
| Сечение |
Расчётная площадь поперечного сечения арматуры |
Количество и диаметр стержней (мм), класс арматуры |
Фактическая площадь поперечного сечения арматуры |
| Над первой опорой ( |
13,61 |
4Ø22 А-III |
15,20 |
| Над второй опорой ( |
11,40 |
4Ø20 А-III |
12,56 |
| Крайние пролёты ( |
11,83 |
4Ø20 А-III |
12,56 |
| Средние пролёты ( |
8,67 |
4Ø18 А-III |
10,18 |
5.4 Расчет поперечной рабочей арматуры.
В качестве поперечной рабочей арматуры в пролетах главной балки принимаем конструктивно стержни класса A-I Ø8. При этом проверим выполнение условия:
,
где
- ширина ребра главной балки;
- расчетное сопротивление бетона растяжению;
- рабочая высота главной балки;
максимальная (по модулю) перерезывающая сила: принимаем величину перерезывающей силы над первой опорой
= 118665,624 Н;
<
.
Условие не выполняется, значит, находим шаг расстановки стержней:

Т.о. шаг расположения стержней составляет:
£ h
/3 и £ 500 мм;
h /3 = 600/3 = 200 мм.
Нагрузка на арматурный стержень:
![]()
Составляющая поперечной силы, воспринимаемая арматурой и бетоном:
кН.
326 кН > 118,666 кН
отогнутая арматура по расчету не требуется.
Таким образом, в качестве поперечной арматуры принимаем стержни класса А-I диаметром 8 мм с фактической площадью сечения одного стержня А
s
= 0,503 см2
с шагом
= 400 мм в пролете и
= 150 мм в сечениях опор.
6. Расчет колонны первого этажа.
Принимаем к расчету наиболее нагруженную колонну среднего ряда. Расчет прочности колонны производится в наиболее нагруженном сечении – у обреза фундамента.
Нагрузку на колонну с учетом ее веса определяем от трех вышележащих междуэтажных перекрытий (кровельное перекрытие опирается только на наружные стены). В качестве расчетной схемы колонны условно принимаем сжатую со случайным эксцентриситетом стойку, защемленную в уровне обреза фундамента и шарнирно закрепленную в уровне середины высоты главной балки.
Предварительно назначим колонну с размерами cечения шириной b
= 300 мм и высотой h
= 300 мм, с защитным слоем бетона а
= 20 мм (п. 5.5 [4]). Характеристики используемого бетона: класс В25, Rb
= 14,5 МПа; Rbt
= 1,05 МПа; Eb
= 30∙10-3
МПа;
. Характеристики используемой арматуры: класс A-III, RS
=
RSC
=
365 МПа, ES
= 20∙10-4
МПа.
6.1 Сбор нагрузок на колонну первого этажа.
Постоянная нагрузка (с учетом собственного веса колонны):
,
где
собственный вес плиты и конструкции пола вышележащих перекрытий:
,
где т – количество перекрытий: т = 3 при 4-этажном здании;
g – нормативная нагрузка от собственного веса плиты и пола: g = 3,03 кН (см. пункт 3.1);
lвт – пролет второстепенных балок: lвт = 7000 мм = 7 м;
шаг второстепенных балок (короткая сторона плиты):
;
![]()
собственный вес второстепенной балки вышележащих перекрытий:
,
где
высота второстепенной балки:
;
высота плиты:
;
ширина второстепенной балки:
;
плотность железобетона:
;
![]()
собственный вес главной балки вышележащих перекрытий:
,
где
высота главной балки:
;
ширина главной балки:
;
пролет главных балок:
6000 мм = 6 м;
![]()
собственный вес колонн 1-го этажа:
,
где
высота этажа:
3,8 м;
b , h – предварительно назначенные размеры сечения колонны: 300х300 мм;
т = 1 – для рассматриваемого случая с несущими наружными стенами (учитываются колонны только первого этажа);
![]()
Подставив найденные значения, имеем:
.
Расчетная временная нагрузка вычисляется согласно формуле:
,
где
нормативное значение временной нагрузки, равной сумме длительной и кратковременной соответственно:
;
.
Найденные значения нагрузок суммируем с учетом коэффициентов надеж ности по нагрузк е g t , значения которых приняты согласно п.п. 2.2, 3.3 соответствующего нормативного документа [5]. Результаты вычислений представлены в табл. 8.
Нормативные и расчетные нагрузки, действующие на колонну первого этажа.
Таблица 8
| Нагрузка |
Нормативная нагрузка, кН |
Коэффициент надежности |
Расчетная нагрузка, кН |
| Постоянная: |
|||
| вес плиты и пола |
127,3 |
1,1 |
140 |
| вес второстепенных балок |
5,6 |
1,1 |
6,2 |
| вес главных балок |
8,5 |
1,1 |
9,4 |
| вес колонн |
0,8 |
1,1 |
0,9 |
| Временная: |
945,0 |
1,2 |
1134,0 |
| Итого: |
1290,5 |
6.2 Проверка принятых размеров колонны.
Определяется расчетная длина колонны [2]:
,
где 1,0 – коэффициент учета жесткости закрепления опор для рассматриваемого случая;
0,15 м – расстояние от обреза фундамента до уровня чистого пола;
высота главной балки с учетом толщины плиты перекрытия:
м;
.
Т.к. для рассматриваемой колонны прямоугольного сечения с симметричной арматурой класса A-III выполняется условие
[2],
где h – высота сечения колонны, то такую колонну при наличии случайного эксцентриситета можно рассчитывать как центрально-сжатую по условию [2]:
или
(2),
где N – расчетная продольная сила: N = G + P с учетом коэффициентов надежности (см. пункт 6.1);
g b , j – коэффициент условия работы и продольного изгиба колонны соответственно:
при
коэффициент g
b
= 1;
, где α
=
, j
b
, j
r
– коэффициенты, принимаемые по табл. 7 [2] в зависимости от гибкости колонны и соотношения длительных нагрузок к полным;
Rb - расчетное сопротивление бетона сжатию: для бетона класса В25 Rb = 14,5 МПа;
расчетное сопротивление арматуры cжатию: для арматуры класса A-III
МПа;
Ab , Asc – площади поперечного сечения бетона и арматуры соответственно;
m – процент армирования.
При расчете центрально-сжатой колонны, определение площади сечения бетона и арматуры произведем по найденным нагрузкам и характеристикам материала, для этого предварительно зададимся:
- процентом армирования: согласно рекомендациям в табл. 12 [1] для сжатых элементов прямоугольного сечения с характеристикой
минимальный процент армирования составляет m
min
= 0,2%;
- значениями g b , j : примем g b =1, j = 1.
Тогда, выражая площадь сечения колонны из выражения (2), получим:
.
Размеры сторон сечения колонны:
.
Отношение длительной временной и расчетной полной нагрузки соответственно:
;
где длительная нагрузка находится по формуле:
Nдл
=
.
Гибкость колонны:
.
По найденным значениям
= 13 и
= 0,7 по табл. 7 [2] находим недостающие коэффициенты: j
b
= 0,858; j
r
= 0,8825.
Коэффициент α находится через предварительно заданный процент армирования
(m
= 0,2%): α
=
=
;
Определяется фактическое значение коэффициента продольного изгиба:
.
Определяется площадь сечения сжатой арматуры:
![]()
Проверка выполнения условия (2) для центрально-сжатого элемента:
.
Условие по несущей способности сжатой конструкции (колонны) выполняется, следовательно, принятый материал и размеры поперечного сечения колонны удовлетворяют заданным нагрузкам.
Т.о. окончательно принимаем размеры сечения колонны
.
6.3 Выбор поперечной арматуры в сечении колонны.
Согласно рекомендациям [2], поперечные стержни в сварном каркасе назначаются конструктивно диаметром 6 мм из арматуры класса A-I с шагом S
20ds
, где ds
= 16 мм – диаметр продольной арматуры.
Т.о. в качестве поперечной арматуры принимаем замкнутые двухсрезные хомуты из арматуры класса А-I диаметром 6 мм с фактической площадью сечения одного стержня А s ф = 0,283 см2 и шагом расстановки S = 300 мм.
Определение количества и диаметра продольной арматуры для колонны.
Таблица 9
| Расчётная площадь поперечного сечения арматуры |
Количество и диаметр стержней, мм, класс арматуры |
Фактическая площадь поперечного сечения арматуры |
| 5,40 |
4 Ø16 А-III |
8,04 |
В данном случае отличием фактической площади поперечного сечения арматуры от расчетной на 49% можно пренебречь в связи с требованиями к минимальному диаметру и количеству продольной арматуры колонны [2].
7. Армирование отверстий и проемов в плитах.
При устройстве проема в междуэтажном перекрытии для лестничного марша допускается не усиливать проем специальными стержнями или бортиками, если сам проем устанавливается между двумя второстепенными балками. Т.о. примем расположение лестничного проема в указанной области, произведя при этом сгущение распределительной и рабочей арматуры, а именно установим два стержня с промежутками, равными 50 мм [2].
Конструктивный расчёт лестничного марша.
Примем длину ступеньки
, а высоту ступеньки
, высота этажа
, тогда количество ступенек будет равно:
(ступенек).
Т.к. количество лестничных пролетов составляет 2 шт., то каждый из них будет содержать
(ступенек). Одна из ступенек является площадкой, следовательно,
ступенек.
Длина одного лестничного пролёта:
.
8. Расчет столбчатого фундамента под колонну .
Расчет фундамента выполняем под колонну среднего ряда, которая работает как центрально сжатый элемент. Фундамент под колонну среднего ряда считается как центрально-нагруженный.
8.1 Расчет геометрических параметров столбчатого фундамента.
Усилия от расчетной нагрузки определяются приблизительно, путём деления расчётных нагрузок на средний коэффициент надежности по нагрузке:
,
где γ t = 1,1 – средний коэффициент надежности по нагрузке для грунтов в природном залегании [5].
1) Предварительная расчетная площадь подошвы фундамента:
,
где
– сопротивление грунта давлению по подошве фундамента: R0
= 180 кПа;
расчетная глубина заложения фундамента с учетом теплового режима:
где d
– глубина сезонного промерзания грунтов: согласно нормативному документу (СНиП 2.01.01- 82 «Строительная климатология и геофизика») d
= 1,34 м;
kf
– коэффициент, учитывающий тепловой режим здания: выберем kf
= 1,1 – для отапливаемых помещений; итого
;
средний объемный вес грунта выше подошвы фундамента: ![]()
Итого получим:
.
2) Предварительное определение длины стороны фундамента:
при центрально-загруженном фундаменте принимаем квадратную форму основания фундамента, длина стороны которого равна:
.
Предварительно принимается фундамент с размерами на плане 2,8 м ´ 2,8 м и расчетной площадью Аф р = 7,84 м2 .
3) Давление на подошву грунта:

следовательно, расчет ведем на продавливание плитной конструкции (фундамента).
4) Определение полезной минимальной высоты фундамента: назначим размеры подколонника, а именно ширину и высоту bп х hп = 0,4 м х 0,4 м, тогда полезная минимальная высота фундамента будет равна
,
где Rbt – расчетное сопротивление бетона класса В25 осевому сжатию по первой группе предельных состояний: Rbt = 1,05 МПа.
По данной высоте фундамента назначаем количество и размер ступеней с соблюдением условий:
(с шагом 50 мм); причем для первой ступени:
, где
ширина первой ступени фундамента;
высота первой ступени фундамента; для последующих ступеней:
, где
ширина ступеней фундамента;
высота ступеней фундамента.
Для данной расчетной высоты фундамента возьмем две ступени:
, тогда
;
, тогда
.
Тогда полезная высота фундамента будет составлять:
![]()
5) Определение высоты фундамента с учетом величины защитного слоя:
примем а0
= 70 мм (п.5.5 [4]), тогда высота фундамента составит ![]()
При найденной глубине промерзания для заданного района строительства окончательно принимаем глубину заложения фундамента, равную dф = 1,5 м, т.о. размеры подколонника в поперечном сечении составят bп х hп = 0,40 м х 0,73 м.
6) Фактическая ширина подошвы фундамента:
![]()
7) Окончательно принимаем фундамент с размерами на плане 2,3 м ´ 2,3 м и фактической площадью плитной его части Аф = b 2 = (2,3)2 = 5,29 м2 .
![]()
Рис. 7. Расчетная схема фундамента под колонну
8.2 Проверка плиты основания фундамента на продавливание.
,
где
расчетная продавливающая сила, вычисляемая по формуле:
,
где
фактическая площадь основания фундамента:
;
площадь большего основания пирамиды продавливания: ![]()
где
, тогда
;
коэффициент, зависящий от вида бетона: для тяжелого бетона
(п. 3.42 [4]);
средний периметр граней пирамиды продавливания:
;
высота фундамента без учета толщины защитного слоя арматуры:
;
![]()
Условие выполняется:
, следовательно, принятые геометрические параметры фундамента подходят под заданный вид нагрузки.
8.3 Расчет параметров армирования столбчатого фундамента.
1) Изгибающий момент в сечении I-I:
,
где
давление на грунт со стороны фундамента: P
= 150 кПа;
ширина первой ступени фундамента;
![]()
2) Расчетная рабочая площадь арматуры в сечении I-I:
,
где
ширина фундамента:
;
расчетное сопротивление арматуры класса А-III растяжению: RS
=365 МПа;
высота фундамента без учета толщины защитного слоя арматуры:
;
![]()
3) Аналогично найдем изгибающий момент и расчетную рабочую площадь арматуры в сечении II-II:
![]()
![]()
Т.о. в качестве фактической (расчётной) рабочей площади арматуры примем наибольшее из полученных значений, т. е. ![]()
Определение количества и диаметра продольной арматуры для фундамента под колонну.
Таблица 10
| Расчётная площадь поперечного сечения арматуры |
Количество и диаметр стержней (мм), класс арматуры |
Фактическая площадь поперечного сечения арматуры |
| 6,7 |
6 Ø12 А-III |
6,79 |
Принимаем для армирования фундамента тяжелую сетку 2 типа
шириной и длиной, равными 230 см с шагом продольных и поперечных стержней 200 мм.
Для сопряжения колонны с фундаментом в последнем монтируют вытянутый подколонник, который скрепляется с колонной посредством стыковки арматуры внахлестку. Согласно п. 5.38 [4] стыки сварных каркасов в рабочем направлении должны иметь длину перепуска (нахлестки) l не менее величины lan , определяемой по формуле:

но не менее lan = l an d , где значения w an , Dl an и l an , а также допускаемые минимальные величины lan определяются по табл. 37 [4].
Опираясь на данные таблицы, для заданных условий, а именно при установке стыков арматуры периодического профиля внахлестку в сжатом бетоне, имеем следующие значения параметров:
w an = 0,65;
Dl an = 8;
l an min = 15;
lan min = 200 мм;
Rs – расчётное сопротивление арматуры растяжению: для арматуры класса А-III равно
R s = 365 МПа;
Rb - расчетное сопротивление бетона сжатию: для бетона класса В25 Rb = 14,5 МПа;
d – диаметр продольной арматуры: ранее было принято d = 16 мм.
Подставив данные значения, получим длину перепуска продольной арматуры:
(мм);
(мм).
Округлив до сантиметра, окончательно примем длину перепуска продольной арматуры lan = 40 см.
Армирование подколонника производим аналогично колоннам, а именно в качестве продольной арматуры принимаем стержни 4 Ø16 А-III, в качестве поперечной – хомуты А-I Ø 6 мм.
9. Определение конечной осадки фундамента колонны.
1) Определение мощности элементарного слоя
: данная мощность должна удовлетворять условию
2) Определение напряжения, вызванного собственным весом грунта:
, где
напряжение на рассматриваемом i
-ом слое грунта;
напряжение, соответствующее вышележащему элементарному слою грунта;
hi – мощность элементарного слоя;
γ i – соответствующий объемный вес грунта.
а) Напряжение на «нулевом уровне» (слоя грунта, лежащего выше подошвы фундамента до поверхности):
(кПа).
б) Напряжения слоев грунта, лежащих ниже подошвы фундамента:
![]()
(кПа);
(кПа);
(кПа);
(кПа);
(кПа);
(кПа).
3). Определение напряжений от дополнительной нагрузки:
, где
давление на грунт со стороны фундамента;
коэффициент, зависящий от формы подошвы фундамента, соотношения сторон прямоугольного фундамента и относительной глубины
(табл.1 прил.2 обязат. [3]):
(*), где
глубина от подошвы фундамента до рассматриваемого слоя);
фактическая ширина фундамента.
В процессе вычислений возникает необходимость нахождения промежуточных значений
и
, которые находятся методом интерполяции. Этот метод можно представить в виде формулы:
где
- вычисленное значение относительной глубины по формуле (*);
и
- значения коэффициентов, для которых вычисленное значение
является промежуточным, т.е.
и которым соответствуют значения ![]()
а) Напряжение выше подошвы фундамента:
![]()
б) Напряжения ниже подошвы фундамента:






Расчет фундамента ведется до тех пор, пока не выполнится условие:
. Данное условие выполняется при
, а именно
15 кПа ≤ 19,68 кПа. Т.о. в следующих пунктах рассчитаем осадку фундамента до соответствующего слоя.
4). Определение средней осадки фундамента для каждого слоя:
, где
- среднее значение напряжения от дополнительной нагрузки на грунт;
мощность i-
го слоя грунта;
модуль деформации i-
го слоя грунта;
n – количество слоев грунта: n = 2;
β – безразмерный коэффициент, равный 0,8 [3].
Найдем осадку для каждого слоя, испытывающего значительное давление (1 слой – супесь, 2 слой – песок):
5). Определение полной осадки фундамента:
, где n
– количество слоев грунта:
n = 2.
Т.о. окончательно получим:
мм < 80 мм, что удовлетворяет предельному значению осадки
для производственных одноэтажных и многоэтажных зданий с полным железобетонным каркасом (прил. 4 реком. [3]).
Найденные величины напряжений
и
.
Таблица 11
| № |
|
|
|
|
|
|
|
|
| 1 |
0,70 |
18 |
39,06 |
7,81 |
0,70 |
0,80 |
0,800 |
120,0 |
| 2 |
0,63 |
18 |
50,40 |
10,08 |
1,33 |
1,50 |
0,488 |
73,2 |
| 3 |
0,60 |
20 |
62,40 |
12,48 |
1,93 |
2,14 |
0,308 |
46,2 |
| 4 |
0,60 |
20 |
74,40 |
14,88 |
2,53 |
2,81 |
0,200 |
30,0 |
| 5 |
0,60 |
20 |
86,40 |
17,28 |
3,13 |
3,48 |
0,140 |
21,0 |
| 6 |
0,60 |
20 |
92,40 |
19,68 |
3,73 |
4,14 |
0,100 |
15,0 |
10. Список используемой литературы:
1. Бондаренко В.М., Суворкин Д.Г. Железобетонные и каменные конструкции / Учебник для студентов ВУЗов по специальности «Пром. и гражд. строит-во». М.: Изд-во «Высш. школа», 1987.
2. Очнев В.Н., Деменков П.А., Потемкин Д.А. Строительное дело. Монолитные железобетонные конструкции / Методические указания по курсовому проектированию. СПГГИ, СПб, 2009.
3. СНиП 2.02.01-83. Основания зданий и сооружений. М.: Стройиздат,1985.
4. СНиП 2.03.01.-84. Бетонные и железобетонные конструкции. М.: ЦИТП Госстроя СССР,1989.
5. СНиП 2.01.07-85*. Нагрузки и воздействия. М.: ЦИТП Госстроя СССР,1989.

