| Скачать .docx |
Реферат: Разработка календарного плана строительства
Содержание
1. Анализ ОПР
1.1 План первого этажа М 1:200 2
1.2 Поперечный разрез М 1:200 3
1.3 Экспликация помещений 4
2. Принятые строительные конструкции 5
2.1 Спецификация сборных ж/б элементов 6
2.2 План перекрытий М 1:200 7
3. О пределение объема котлована 8
3.1 План и разрез котлована
3.2 Сечение фундаментов М 1:50 9
3.3 Раскладка фундаментных плит и блоков 10
4. Ведомость потребности в основных строительных материалах
5. Разработка календарного плана 11
5.1 Определение номенклатуры и объемов работ 12
5.2 Определение трудоемкости работ и затрат машинного времени 16
5.3 Определение продолжительности строительства здания 21
5.4 Календарный план 22
6. Библиографический список 23
1. Анализ ОПР
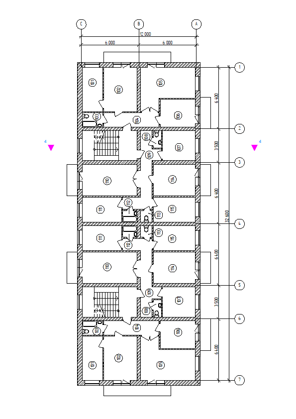
1.1 План первого этажа М 1:200

1.2 Поперечный разрез М 1:200

1.3 Экспликация помещений

2. Принятые строительные конструкции
В данной работе для определения объёмов строительно - монтажных работ приняты следующие строительные конструкции и изделия :
1. Фундаменты - сборные железобетонные .
Фундаментные плиты размерами :
ФП 1200*300*2400;
ФП 1200*300*1200;
Фундаментные б локи размерами:
ФБ 500*600*2400;
ФБ 500*600*1200 ;
ФБ 500*600*900 мм.
2. Стены – кирпичные .
Толщина наружных стен - 510 мм , внутренних - 380 мм , перегородок - 120 мм .
Утеплитель - пенополистирол .
3. Оконные проемы : пластиковые ПВХ
4. Дверные проемы : наружные металлические, внутренние деревянные: глухие и с остеклением
5. Плиты перекрытий и покрытия - сборные железобетонные.
ПК 6000*1500*220 мм ,
ПК 3300*1500*22 0 мм ,
6. Кровля – скатная, с покрытием кровельной сталью.
7. Покрытие полов - линолеум , в туалетах - керамическая плитка .
8. Отделка , инженерное оборудование - по паспорту .
2.1 Спецификация сборных железобетонных элементов
| N , п/п | Наименование элементов | Эскиз | Объем бет. в 1 1 эл-те, м3 | Вес 1 элемента, т | Кол-во | Общий объем бетона, м3 |
| 1 | 2 | 3 | 4 | 5 | 6 | 7 |
| 1 | Фундаментные плиты ФП 1200-300-2400 |
![]() |
0,85 | 2,08 | 65 | 55,25 |
| 2 | Фундаментные плиты ФП 1200-300-1200 |
![]() |
0,43 | 1,05 | 2 | 0,86 |
| 3 | Фундаментные блоки ФБ 500-600-2400 |
![]() |
0,72 | 1,75 | 240 | 172,8 |
| 4 | Фундаментные блоки ФБ 500-600-1200 |
![]() |
0,36 | 0,88 | 40 | 14,4 |
| 5 | Фундаментные блоки ФБ 500-600-900 |
![]() |
0,27 | 0,66 | 52 | 14,04 |
| 6 | Плиты перекрытия ПК 6000*1500*220 |
![]() |
1,98 | 4,85 | 190 | 376,2 |
| 7 | Плиты перекрытия ПК 3300*1500*220 |
![]() |
1,1 | 2,7 | 30 | 33,0 |
3. О пределение объема котлована
3.1 План и разрез котлована
3.2 Сечение фундаментов М 1:50
4.Ведомость потребности в основных строительных материалах
N , п/п |
Наименование работ | Ед. измерения | Количество |
| 1 | Фундаментные плиты | М3 | 56,11 |
| 2 | Фундаментные блоки | М3 | 201,24 |
| 3 | Плиты перекрытий | М3 | 409,2 |
| 4 | Кирпич | М3 | 1062,76 |
| 5 | Линолеум | М2 | 1540,8 |
| 6 | Керамическая плитка | М2 | 79,2 |
5. Разработка календарного плана
Календарный план в строительстве - документ по планированию , в котором на основе объемов строительно - монтажных работ и принятых организационных и технологических решений определяют последовательность и сроки осуществления строительства .
Календарный план является основным документом в составе проекта организации строительства и проекта производства работ .
В соответствии с календарным планом строительства , разрабатывается календарный план обеспечения , график потребности в рабочих кадрах и материально - технических ресурсах .
Структура , состав и степень детализации основных данных календарного плана зависит от назначения документации , в состав которых входит календарный план , и определяется периодами работ , которому он посвящен , уровням руководства, для которого предназначен и временем когда он разрабатывается .
Основным параметром , определяющим весь остальной состав календарного плана , является период времени , на который он разрабатывается . В календарный план строительства , входящим в состав проекта организации строительства , таким периодом является год , квартал , месяц , декада , неделя , день .
В календарных планах выполнения работ в составе технологической карты в зависимости от объемов и продолжительности работ , этот период является день , смена и час .
| 5.1 Определение номенклатуры и объемов работ. | ||||||
| N п/п | Виды работ |
Правила подсчета, эскизы, формулы |
Ед. изм. по СНиП |
Кол-во | Таблица, СНиП | |
1. Земляные работы |
||||||
1 |
Планировка площади строительства |
К габаритам здания добавлены 10 м с каждой стороны (33,62+20)*(12,8+20)= 1698,6 |
1000 м2 |
1,7 |
СНиП IV -2-82. Прил.т.1 табл.1-116 |
|
2 |
Разработка и перемещение грунта бульдозером | Плодородный слой снимается на 20 см 1698,6*0,2= 351,7 |
1000 м3 |
0,35 |
табл.1-29 п.1 | |
3 |
Разработка котлована экскаватором |
Сумма верхней и нижней площадей поверхности котлована делится пополам и умножается на высоту |
1000 м3 |
1,28 |
||
4 |
Подчистка грунта вручную | 7% от объема разработки экскаватором 1275,5*0,07= 89,3 |
100 м3 |
0,9 |
табл.1-79 п.1 | |
5 |
Обратная засыпка котлована |
Vобр.к. =(0,55+1,55)/2 kр.о. *Р*Н Длина = 35+(1,92+0,92)/2= 31,4 м Ширина = 14+1,42= 15,82 Р= (31,4+15,82)*2=94,4 Vобр.к. =(0,55+1,55)/2*1,05*94,4*2,4=184,9 |
1000 м3 |
0,185 |
табл.1-29 п.1 | |
2. Основания фундаментов |
||||||
| 6 | Монтаж фундаментных плит ФП 1200*300*2400 |
По чертежам раскладки фундаментов |
100 шт. | 0,65 | табл.7-1 | |
| 7 | Монтаж фундаментных плит ФП 1200*300*1200 |
100 шт. | 0,02 | табл.7-1 | ||
| 9 | Монтаж фундаментных блоков ФБ 500*600*2400 |
100 шт. | 2,4 | табл.7-1 | ||
| 10 | Монтаж фундаментных блоков ФБ 500*600*900 |
100 шт. | 0,52 | табл.7-1 | ||
| 11 | Монтаж фундаментных блоков ФБ 500*600*1200 |
100 шт. | 0,4 | табл.7-1 | ||
| 12 | Устройство монолитных фундаментов | Равен объему монолитных участков | 100 м3 |
0,022 | табл.6-1 | |
3. Конструкции подземных помещений |
|||||
| 13 | Устройство гидроизоляции а) горизонтальной б) вертикальной |
Определяется умножением толщины фундаментов на их периметр 0,5*177,48= 88,74 Определяется умножением высоты изолируемых стен на их периметр 2,4*363= 872 |
100 м2 100 м2 |
0,9 8,72 |
табл.8-4 табл.8-4 |
| 17 | Штукатурка цоколя | Определяется умножением высоты цоколя на его длину по периметру здания 1,2*51,12= 61,34 |
100 м2 | 0,61 | табл.15-151 |
4. Стены |
|||||
| 18 | Кирпичная кладка наружных стен | Определяется умножением площади стен, за вычетом проемов, на проектную толщину |
м3 | 556,35 | табл.8-5 |
| 19 | Кирпичная кладка внутренних стен | См. п. 18 |
м3 | 494,25 | табл.8-5 |
| 20 | Устройство кирпичных перегородок, толщиной 120 мм |
Определяется умножением длины перегородок на их высоту 94,3*2,58*5 = 1216 |
100 м2 | 12,16 | табл.8-5 |
| 21 | Устройство ж/б перемычек | По проекту | 100 шт. | 1,3 | |
| 22 | Установка вентиляционных блоков |
По проекту | 100 шт. | 0,04 | табл.7-49 |
5. Лестницы |
|||||
| 23 | Монтаж лестничных площадок |
По проекту | 100 шт. | 0,18 | табл.7-41 |
| 24 | Монтаж лестничных маршей |
100 шт. | 0,18 | табл.7-41 | |
| 25 | Установка на лестничных маршах и площадках металлических ограждений | По проекту | т | 0,62 | табл.9-17 |
6. Устройство подоконных досок |
|||||
| 26 | Укладка подоконных досок | По проекту | 100 шт. | 1,1 | |
7. Перекрытия и покрытия |
|||||
| 26 | Монтаж плит перекрытия ПК 6000*1500*220 ПК 3300*1500*220 ПК 7000*1500*220 |
По чертежам плит перекрытий |
100 шт. | 1,9 0,3 0,1 |
табл.7-39 |
8. Плиты лоджий, балконов и др. |
|||||
| 27 | Устройство экранов ограждений |
По проекту | 100 шт. | 0,3 | табл.7-47 |
| 28 | Гидроизоляция по балконам | Определяется умножением длины балкона на его вынос (3,3*1,5*30)+(7*1,6*10)= 149 |
100 м2 | 1,49 | табл.11-3 |
| 29 | Устройство цементной стяжки | Определяется умножением длины балкона на его вынос |
100 м2 | 1,49 | табл.11-8 |
9. Заполнение проемов |
|||||
| 30 | Заполнение оконных проемов |
Деревянные и металлические оконные и дверные блоки измеряются умножением ширины на их высоту по наружному обводу коробок | 100 м2 | 1,35 | табл.10-13 |
| 31 | Заполнение дверных проемов |
100 м2 | 2,83 | табл.10-13 | |
| 32 | Заполнение балконных проемов |
100 м2 | 1,89 | табл.10-22 | |
10. Устройство кровли |
|||||
| 33 | Устройство пароизоляции |
Объем работ по покрытию кровель следует исчислять по полной площади покрытия | 100 м2 | 3,91 | табл.12-9 |
| 34 | Устройство плиточного утеплителя |
100 м2 | 3,91 | табл.12-9 | |
| 35 | Отделка кровельной сталью | Умножение горизонтальной проекции крыши на коэффициент уклона 1:4 = 3,91*1,118=4,37 |
100 м2 | 4,37 | табл.12-1 |
| 36 | Устройство деревянных конструкций кровли | Рассчитывается по площади скатов | 100 м2 | 4,37 | |
11. Полы |
|||||
| 36 | Устройство оснований |
Fосн = Fпола | 100 м2 | 16,2 | табл.11-8 |
| 37 | Гидроизоляция полов |
Fгидр = Fпола | 100 м2 | 16,2 | табл.11-9 |
| 38 | Тепло- и звукоизоляция плитная |
Fзвукоизол = Fпола | 100 м2 | 16,2 | табл.11-7 |
| 39 | Покрытие полов а) керамическая плитка б) линолеум |
Определяется площадью между внутренними стенами или перегородками | 100 м2 | 0,8 15,4 |
табл.11-20 |
12. Внутренняя отделка |
|||||
| 40 | Отделка поверхностей под окраску а) стен б) потолков |
По фактической площади отделки стен, перегородок, колонн, балок и других конструкций | 100 м2 | 38,0 16,2 |
табл.15-59 |
| 41 | Штукатурка внутренних поверхностей а) стен б) оконных и дверных откосов |
100 м2 | 38,0 1,63 |
табл.15-56 | |
| 42 | Окраска стен | Исчисляется без вычета проемов |
100 м2 | 40,2 | табл.15-152 |
| 43 | Масляная окраска а) оконных заполнений б) дверных заполнений |
Вычисляется с учетом коэффициентов для окон - 2,8 ; для дверей – 2,4 |
100 м2 | 5,32 5,26 |
табл.15-159 |
| 44 | Остекление окон и дверей | Определяется по наружному обводу коробок |
100 м2 | 6,07 |
|
13. Разные работы |
|||||
| 45 | Устройство основания под отмостку |
Vотм =Fотм * h 107,21*0,05 =5,36 |
м3 | 5,36 | табл.11-1 |
| 46 | Покрытие отмостки асфальтобетонной смесью |
100 м2 | 1,07 | табл.11-13 | |
Расчет объема кирпичной кладки:
Объем кирпичной кладки по оси А: (0,51*32,6*16,5)-(0,51*112,5) = 216,9 м3
Объем кирпичной кладки по оси В: (0,38*32,6*13,9)- (0,38*115,5) = 128,3 м3
Объем кирпичной кладки по оси С: (0,51*32,6*16,5)- (0,51*81,3) = 232,9 м3
Объем кирпичной кладки по оси 1: (0,51*12,78*16,5)- (0,51*34,8) = 89,8 м3
Объем кирпичной кладки по оси 2: (0,38*11,76*13,9)- (0,38*10,5) = 58,1 м3
Объем кирпичной кладки по оси 3: (0,38*11,76*13,9)- (0,38*12,6) = 57,3 м3
Объем кирпичной кладки по оси 4: (0,38*11,76*13,9) = 62,1 м3
Объем кирпичной кладки по оси 5: (0,38*11,76*13,9)- (0,38*12,6) = 57,3 м3
Объем кирпичной кладки по оси 6: (0,38*11,76*13,9)- (0,38*10,5) = 58,1 м3
Объем кирпичной кладки по оси 7: (0,51*12,78*16,5)- (0,51*34,8) = 89,8 м3
5.2 Определение трудоемкости работ и затрат машинного времени
N п/п |
Виды работ | Объем работ | Трудоемкость работ | Затраты машинного времени | |||||||
Ед.изм. |
Кол-во |
Норма на ед. в чел. часах |
На весь объем | Норма на ед. в чел. часах |
На весь объем | ||||||
Чел- час |
Чел- дн |
Маш-час | Маш-дн | ||||||||
| 1 | 2 | 3 | 4 | 5 | 6 | 7 | 8 | 9 | 10 | 11 | |
| 1 | Планировка площади строительства | 1000 м2 |
1,7 | - | - | - | 0,33 | 0,56 | 0,07 | § Е2-1-36 | |
| 2 | Разработка котлована экскаватором | 100 м3 |
12,8 | - | - | - | 4,5 | 57,6 | 7,2 | § Е2-1-8 | |
| 3 | Подчистка грунта вручную |
1 м3 |
51,7 | 1,5 | 77,55 | 9,69 | - | - | - | § Е2-1-47 | |
| 4 | Обратная засыпка котлована |
1 м3 |
245 | 0,81 | 198,45 | 24,8 | - | - | - | § Е2-1-58 | |
| Итого: | 34,49*1,5=51,74 | 7,27 | |||||||||
| 5 | Монтаж фундаментных плит ФП 1200*300*2400 |
шт. |
65 | 0,78 | 50,7 | 6,33 | 0,26 | 16,9 | 2,11 | § Е4-1-1 | |
| 6 | Монтаж фундаментных плит ФП 1200*300*1200 |
шт. | 2 | 0,63 | 1,26 | 0,16 | 0,21 | 0,42 | 0,05 | § Е4-1-1 | |
| 7 | Монтаж фундаментных блоков ФБ 500*600*2400 |
шт. |
240 | 0,78 | 187,2 | 23,4 | 0,26 | 62,4 | 7,8 | § Е4-1-1 | |
| 8 | Монтаж фундаментных блоков ФБ 500*600*900 |
шт. |
52 | 0,45 | 23,4 | 2,925 | 0,15 | 7,8 | 0,975 | § Е4-1-1 | |
| 9 | Монтаж фундаментных блоков ФБ 500*600*1200 |
шт. |
40 | 0,45 | 18 | 2,25 | 0,15 | 6 | 0,75 | § Е4-1-1 | |
| 10 | Устройство монолитных фундаментов | 1 м3 |
2 | 2,2 | 4,4 | 0,55 | - | - | - | § Е4-1-53 | |
| Итого: | 35,615*1,5=53,423 | 11,69 | |||||||||
| 11 | Устройство гидроизоляции а) горизонтальной б) вертикальной |
100 м2 | 0,9 8,72 |
8,3 10 |
7,47 87,2 |
0,94 10,9 |
- | - | - | § Е3-2 |
| 12 | Штукатурка цоколя | 100 м2 | 0,61 | 10,5 | 6,405 | 0,80 | - | - | - | § Е8-1-2 |
| Итого: | 12,64*1,5=18,96 | - | ||||||||
| 13 | Кирпичная кладка наружных стен | 1 м3 | 475,5 | 3,2 | 1521,6 | 190,2 | - | - | - | § Е3-3 |
| 14 | Кирпичная кладка внутренних стен | 1 м3 | 413,4 | 3,2 | 1322,9 | 165,36 | - | - | - | § Е3-3 |
| 15 | Устройство кирпичных перегородок, толщиной 120 мм | 1 м2 | 1216 | 0,8 | 972,8 | 121,6 | - | - | - | § Е3-12 |
| 16 | Установка вентиляционных блоков |
1блок | 4 | 1,5 | 6 | 0,75 | 0,38 | 1,52 | 0,19 | § Е4-1-14 |
| 16 | Устройство ж/б перемычек | 1 проем | 130 | 0,45 | 58,5 | 7,3 | 0,15 | 19,5 | 2,4 | § Е3-16 |
| Итого: | 485,21*1,5=727,82 | 2,59 | ||||||||
| 17 | Монтаж лестничных площадок | 1 элемент | 18 | 0,92 | 16,56 | 2,07 | 0,23 | 4,14 | 0,518 | § Е4-1-10 |
| 18 | Монтаж лестничных маршей | 1 элемент | 18 | 0,92 | 16,56 | 2,07 | 0,23 | 4,14 | 0,518 | § Е4-1-10 |
19 |
Установка на лестничных маршах и площадках металлических ограждений | 1 м | 30,8 | - | - | - | 0,37 | 11,4 | 1,425 | § Е4-1-11 |
| Итого: | 4,14*1,5=6,21 | 2,46 | ||||||||
| 20 | Укладка подоконных досок | 1 элемент | 55 | 0,4 | 22 | 2,75 | - | - | - | |
| Итого: | 2,75*1,5=4,125 | - | ||||||||
| 21 | Монтаж плит перекрытия ПК 6000*1500*220 ПК 3300*1500*220 |
1 шт. |
190 30 |
0,72 0,72 |
136,8 21,6 |
17,1 2,7 |
0,18 0,18 |
34,2 5,4 |
4,275 0,675 |
§ Е4-1-7 |
| Итого: | 19,8*1,5=29,7 | 4,95 | ||||||||
| 22 | Устройство экранов ограждений |
1 элемент | 30 | 0,48 | 14,4 | 1,8 | 0,16 | 4,8 | 0,6 | § Е4-1-9 |
| 23 | Гидроизоляция по балконам | 100 м2 | 1,49 | 6 | 8,94 | 1,12 | - | - | - | § Е11-37 |
| 24 | Устройство цементной стяжки | 100 м2 | 1,49 | 23,0 | 34,27 | 4,28 | - | - | - | § Е19-43 |
| Итого: | 7,2*1,5=10,8 | 0,6 | ||||||||
| 26 | Заполнение оконных проемов | 100 м2 | 1,35 | 20 | 27 | 3,38 | 10 | 13,5 | 1,688 | § Е6-13 |
| 27 | Заполнение дверных проемов | 100 м2 | 2,83 | 18 | 42,84 | 5,36 | 9 | 25,47 | 3,184 | § Е6-13 |
| 28 | Заполнение балконных проемов | 100 м2 | 1,89 | 16 | 30,24 | 3,78 | 8 | 15,12 | 1,89 | § Е6-13 |
| Итого: | 12,52*1,5=18,78 | 6,76 | ||||||||
| 29 | Устройство пароизоляции | 100 м2 | 3,91 | 6,7 | 26,197 | 3,28 | - | - | - | |
| 30 | Устройство плитного утеплителя | 1 м2 | 391 | 0,36 | 140,76 | 17,6 | - | - | - | § Е11-41 |
| 31 | Отделка кровельной сталью | 1 м2 | 457 | 0,36 | 164,52 | 20,57 | - | - | - | § Е7-6 |
| 32 | Устройство деревянных конструкций кровли | 100 м2 | 4,37 | 29,2 | 127,6 | 15,9 | ||||
| Итого: | 57,4*1,5=86,1 | - | ||||||||
| 32 | Устройство оснований |
100 м2 | 16,2 | 11,5 | 186,3 | 23,29 | - | - | - | § Е19-38 |
| 33 | Гидроизоляция полов | 100 м2 | 16,2 | 1,8 | 29,16 | 3,65 | - | - | - | |
| 34 | Тепло- и звукоизоляция плитная | 1 м2 | 1620 | 0,36 | 583,2 | 72,9 | - | - | - | § Е11-41 |
| 35 | Покрытие полов а) керамическая плитка б) линолеум |
1 м2 | 79,2 1540,8 |
0,59 0,15 |
46,728 231,12 |
5,84 28,89 |
- - |
- - |
- - |
§ Е19-19 § Е19-13 |
| Итого: | 134,57*1,5=201,86 | - | ||||||||
| 36 | Отделка поверхностей под окраску а) стен б) потолков |
100 м2 | 38,0 9,8 |
70,5 89,0 |
2679 872,2 |
334,88 109,03 |
- - |
- - |
- - |
|
| 37 | Штукатурка внутренних поверхностей а) стен б) оконных и дверных откосов |
100 м2 1 м2 |
38,0 163 |
49,5 2,0 |
1881 326 |
235,13 40,75 |
- - |
- - |
- - |
|
| 38 | Окраска стен | 100 м2 | 40,2 | 26,4 | 1061,3 | 132,66 | - | - | - | § Е8-1-15 |
| Итого: | 852,45*1,5=1278,68 | - | ||||||||
| 41 | Устройство основания под отмостку | 100 м2 | 1,07 | 4,3 | 4,601 | 0,58 | - | - | - | § Е17-33 |
| 42 | Покрытие отмостки асфальтобетонной смесью | 100 м2 | 1,07 | 4,6 | 4,922 | 0,62 | - | - | - | § Е17-34 |
| Итого: | 1,2*1,5=1,8 | - | ||||||||
Итого: Q смр=2490 чел-дн
| Трудоемкость работ, не включенных в номенклатуру | |||
| 43 | Общие неучтенные работы | 20% от Q смр | 498 |
| 44 | Внутриплощадочные работы |
5% от Q смр | 124,5 |
| 45 | Сантехнические Работы |
10% от Q смр | 249 |
| 46 | Электротехнические работы |
5% от Q смр | 124,5 |
| 47 | Благоустройство территории |
0,5% от Q смр | 12,45 |
| 48 | Сдача объекта | 0,5% от Q смр | 12,45 |
| Итого: | 1020,9 | ||
Общая трудоемкость работ составит:
Q смр + Q пр = 2490+1020,9=3510,9 чел-дн
5.3 Определение продолжительности строительства здания и количество рабочих
Нормативная продолжительность строительства, Т, определяется по СНиП 1.04-03-85 и составляет 7 месяцев. Т = 7 * 24 = 168 дней.
Общее количество людей, необходимых для строительства N = Qобщ / Т = 3510,9 / 168 = 20,9 = 21 чел. Принимаем 21 человек; 3 бригады: 1- 14 чел; 2 – 4 чел; 3 – 3 чел.
№ п\п |
Виды работ | Трудоемкость работ,чел-дн |
% | Кол. рабочих | Кол. смен | Продол. в днях |
1 2 3 4 5 6 7 8 9 10 11 10 11 12 13 14 |
Земляные работы Устройство фундаментов Конструкции подземных помещений Кирпичная кладка стен. Лестницы Перекрытия и покрытия Плиты лоджий Устройство кровли Внутренняя отделка Заполнение проемов Укладка подоконных досок Полы Разные работы Сантехнические работы Работы электрические Внутриплощадочные, благоустройство, сдача проекта |
51,74 53,42 18,96 727,82 6,21 29,7 10,8 86,1 1278,68 18,78 4,13 201,86 1,8 249 124,5 149,4 |
1,5 1,52 0,54 20,73 0,18 0,85 0,3 2,5 36,4 0,54 0,12 5,75 0,05 4,73 2,4 2,84 |
1 бр 1 бр 1 бр 1 бр 1 бр 1 бр 1 бр 1 бр 1 бр 1 бр 1 бр 1 бр 1 бр 2 бр 3 бр 1 бр |
1 1 1 2 1 1 1 1 2 1 1 1 1 2 2 1 |
4 4 1,5 26 0,5 2,5 1 6,5 46 1,5 0,5 15 0,5 31 21 11 |
| 3510,9 | 100% |
6. Библиографический список
1. Гаевой А .Ф., Усик С.А. Курсовое и дипломное проектирование. Промышленные и гражданские здания/Ленинград. Стройиздат. 1987
2. СНиП IV -2-82 Часть IV глава 2, том 1. Сметные нормы и правила/Госстрой СССР, Москва. Стройиздат. 1985
3. СНиП IV -2-82 Часть IV глава 2, том 2. Сметные нормы и правила/Госстрой СССР, Москва. Стройиздат. 1983
4. СНиП 1. 04-03-85 Строительный каталог. Часть2. Типовые проекты предприятий, зданий и сооружений/СССР. ЦИТП. 1987
5. ЕНиРы.






