| Скачать .docx |
Курсовая работа: Курсовая работа: Отопление и вентиляция жилого здания Теплотехнический расчет
Федеральное агентство по образованию
Ангарская государственная техническая академия
Кафедра промышленного и гражданского строительства
Пояснительная записка
по курсовому проекту
«Отопление и вентиляция жилого здания»
Выполнил
Студент гр. ПГС – 05 - 1
Марков Я. С.
Проверил
Кузьмин С.И.
Ангарск 2008
Содержание
1 Исходные данные
2 Теплотехнический расчет ограждающих конструкций
3 Отопление
3.1 Определение тепловых нагрузок на систему отопления
3.2 Конструирование системы отопления
3.3 Расчет нагревательных приборов
3.4 Гидравлический расчет систем водяного отопления
3.5 Подбор оборудования теплового пункта
4 Вентиляция
4.1 Расчет воздухообменов
4.2 Конструирование систем вентиляции
Литература
1 Исходные данные
1. Проектируемое здание имеет:
- не отапливаемый подвал без окон и чердачное помещение;
- высоту этажа - 2,7 м;
- наружные двери двойные деревянные с тамбуром;
- остекление двойное в деревянных переплетах.
2. Теплоснабжение здания осуществляется от ТЭЦ.
3. Район строительства – г. Вологда
- Этажность – 4;
- Расчетная высота здания – 13,5 м
- Материал стен – Кирпич (глиняный обыкновенный (ГОСТ530-80) на цементно-песчаном растворе);
- Система отопления – двухтрубная с верхней разводкой трубопроводов;
- Тип нагревательных приборов – чугунные секционные радиаторы М-140 АО fc = 0,33 экм;
- Расчетная температура теплоносителя в системе отопления:
tr = 95 0C
Т1 = 150 0С
Т2 = 70 0С
- Располагаемое давление р = 10 м.в.ст.;
- Вариант кухонной плиты – газовая 4-х конфорочная;
Первая группа исходных данных определяет тепло-технические показатели наружных ограждающих конструкций здания. Данные приняты по варианту 7, из СНиПа и приведены в таблице 1.1.
Таблица 1.1
Характеристика ограждающей конструкции
| Конструкция | Параметр | ||
| R0, |
λ, |
S, |
|
1. Наружная стена 2. Остекление 3. Пол 4. Перекрытие 5. Наружная дверь |
— 0,42 1,2 1,3 0,35 |
0,52 — — — — |
6,62 — — — — |
Вторая группа исходных данных характеризует расчетные параметры наружного и внутреннего климата. Данные приведены в таблице 1.2
Характеристика наружного и внутреннего климата принята из СНиПа и приведена в таблице 1.2.
Таблица 1.2
Характеристика наружного и внутреннего климата
| Параметр | Единицы измерения | Обозначение | Значение |
| 1. Температура наиболее холодной пятидневки | 0С | -32 | |
| 2. Температура наиболее холодных суток | 0С | -37 | |
| 3. Температура наружного воздуха категории Б холодного периода | 0С | -30,6 | |
4. Температура внутреннего воздуха в помещении: - жилая комната (рядовая) - жилая комната (угловая) - кухня - санузел - ванная - коридор - лестничная клетка |
0С 0С 0С 0С 0С 0С 0С |
tв tв tв tв tв tв tв |
20 22 16 16 25 16 12 |
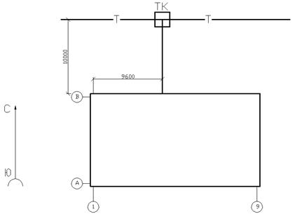
Конструктивная схема здания приведена на Рис. 1.1.

Рис. 1.1
2 Теплотехнический расчет ограждающих конструкций
Теплотехнический расчет выполняется для наружной стены по методике [1, 9]. Целью расчета является определение толщины основного слоя ограждения и коэффициента теплопередачи К (сопротивление теплопередачи R0) конструкции.
Сопротивление теплопередачи, как правило, определяется на основе экономической целесообразности [5, 9], но в любом случае не должно быть менее требуемого:
(2.1)
где
- коэффициент тепловосприятия, Вт/м2 ∙ 0С. Определяется по [10];
- расчетная температура внутреннего воздуха 0С. (см. табл.1.2);
- расчетная температура наружного воздуха 0С;
- нормативная разность температур между температурой внутреннего воздуха и температурой внутренней поверхности, 0С. Принимаем по [9];
n – поправочный коэффициент к расчетной разности температур принимается по[9].
Расчетная температура наружного воздуха
в формуле (2.1) принимается в зависимости от массивности ограждения:
- при массивном -
равна температуре наиболее холодной пятидневки
;
- при легкой массивности -
равна температуре наиболее холодных суток
;
- при средней массивности – средней между
и
. Массивность ограждения оценивается по величине коэффициента тепловой инерции D. Для конструкции из m слоев D определяется по формуле:
(2.2)
где
- термическое сопротивление слоя, м2 ∙ 0С/Вт;
- коэффициент теплоусвоения материала i – го слоя, Вт/м2 ∙ 0С (см.табл.1.1);
- толщина i – го слоя в конструкции, м;
- коэффициент теплопроводности материала i – го слоя, Вт/м2 ∙ 0С (см.табл.1.1).
При значении D более 7 конструкция оценивается как «массивная», при D менее 4 – как «легкая», а в остальных случаях – как «средней массивности».
Так как в начальный момент толщина конструкции неизвестна, то обычно принимаем
=
, соответствующую массивному ограждению и затем определяем
по (2.1).
![]()
Исходя из полученного значения
, вычисляем минимально – допустимую толщину основного слоя конструкции δст:
![]()
где
- коэффициент теплоотдачи наружной поверхности Вт/м2 ∙ 0С принимаем по [10];
Для однослойной конструкции:
(2.3)
Округляем полученное значение
до стандартного δк.сm размера ограждающей конструкции (в большую сторону) и проверяем соответствие степени массивности Dсm ограждения толщиной δк.сm, принимаемой в начале расчета D.
![]()
(2.4)
Если предположение о массивности ограждения подтверждается, то расчет ведем дальше, если нет, то принимаем расчетное значение
в (2.1), соответствующее
, и вычисления (2.1 – 2.4) повторяем до того момента, пока не будет достигнуто соответствие между принимаемой и расчетной массивностью ограждения.
=>Ограждение средней массивности, предположение о массивности не подтвердилось, следовательно, принимаем среднее значение между
и
:
![]()
![]()
=>
=>Ограждение средней массивности, предположение о массивности подтвердилось.
Далее определяем фактическое сопротивление теплопередачи ограждения
:
![]()
![]()
И коэффициент теплопередачи ![]()
![]()
Проверяем условие:
(2.5)
Если (2.5) выполняются, то значения δк.сm,
и
принимаются для дальнейшего использования, если нет, то увеличивают δк.сm и расчет повторяют.
=> условие выполнилось.
3 Отопление
3.1 Определение тепловых нагрузок на систему отопление
Тепловая нагрузка системы отопления (С.О.)
определяется потребностью в тепле отдельных помещений здания:
(3.1)
где n – количество отапливаемых помещений.
Потребность в тепле отдельных помещений рассчитывается из уравнений теплового баланса:
![]()
где
- основные теплопотери помещения в результате теплопередачи через ограждения, Вт;
- добавочные теплопотери, Вт;
- расход тепла на нагрев поступающего в помещение воздуха, Вт;
- тепловыделения в помещении, Вт.
Основные теплопотери помещения определяются суммарной суммой тепловых потоков
через отдельные ограждающие конструкции по уравнению теплопередачи через плоскую стенку [1,3]:
;
![]()
где
- расчетная температура наружного воздуха по параметрам «Б», 0С (см.табл.1.2.);
- расчетная площадь –i-го ограждающей конструкции, м2;
n – поправочный коэффициент (см. п.2).
Добавочные теплопотери через ограждающие конструкции принимают в долях основных потерь ![]()
![]()
где β – доля добавочных потерь тепла.
В жилых зданиях рекомендуется следующие добавки [5,8]:
- для наружных вертикальных ограждений (стены, окна, двери), обращенные на север, восток, северо-восток и северо-запад, β1 = 0,1; на юго-восток и запад – β1 = 0,05;
- в угловых помещениях β2 = 0,05 для каждой стены, окна, если одно из ограждений обращено на север, восток, северо-восток и северо-запад и β2 = 0,1 в других случаях;
- для наружных дверей при высоте здания Н, м, β3 принимается в размере:
β 3 = 0,27 Н – для двойных дверей с тамбуром;
β3 = 0,34 Н – для двойных дверей без тамбура;
β3 = 0,22 Н – для одинарных дверей.
Расход тепла на нагрев поступающего в помещение воздуха определяется только для жилых комнат из условия подогрева санитарной нормы вентиляционного воздуха ![]()
Это количество тепла определяется по формуле [8]:
![]()
где
- количество соответственно инфильтрационного или вентиляционного воздух, кг/ч. Определяется по норме наружного воздуха [8] и площади помещения F.
- теплоемкость воздуха, кДж/кг0С.
Норма вентиляционного воздуха для жилых зданий составляет 3 кг/ч на 1 м2 помещения и соответственно:
![]()
- плотность воздуха от температуры t можно приблизительно вычислить по формуле:
кг/м3
Расчет общих потерь тепла помещениями рекомендуется вести в табличной форме (см. табл. 3.1).
Таблица 3.1
Расчет потерь тепла в помещениях
| № помещения | Назначение, tн 0С | Ограждающая конструкция, ориентация | Площадь ограждения, м2 | Коэффициент теплопередачи К, Вт/м3∙ 0С | Разность температур tH = tH , 0С | n |
Вт |
Добавки |
Вт |
Вт |
Вт |
Вт |
Вт |
|||||||||||||
β 1 |
β 2 |
β 3 |
||||||||||||||||||||||||
| 1 | 2 | 3 | 4 | 5 | 6 | 7 | 8 | 9 | 10 | 11 | 12 | 13 | 14 | 15 | 16 | |||||||||||
| 101 | Ж.К. 22 | НС, С ДО, С НС, З ПЛ. |
8,13 2,25 17,31 14,75 |
0,88 3,3 0,88 0,83 |
52,6 | 1 1 1 0,6 |
376,32 390,56 801,25 386,37 |
0,05 0,05 0,05 |
18,82 19,53 40,06 |
395,14 410,09 841,31 386,37 |
782,06 | 309,75 | 2505,22 | |||||||||||||
| 102 | Ж.К. 20 | НС, С ДО, С ПЛ. |
8,64 2,25 18,88 |
0,88 3,3 0,83 |
50,6 | 1 1 0,6 |
384,72 375,71 475,75 |
0,1 0,1 |
38,47 37,57 |
423,19 413,28 475,75 |
962,97 | 396,48 | 1878,71 | |||||||||||||
| 103 | Кх. 16 | НС, С ДО, С ПЛ. |
7,02 2,25 15,34 |
0,88 3,3 0,83 |
46,6 | 1 1 0,6 |
287,88 346,01 355,99 |
0,1 0,1 |
28,79 34,6 |
316,67 380,61 355,99 |
322,14 | 731,13 | ||||||||||||||
| 104 | Кх. 16 | НС, С ДО, С ПЛ. |
7,02 2,25 15,34 |
0,88 3,3 0,83 |
46,6 | 1 1 0,6 |
287,88 346,01 355,99 |
0,1 0,1 |
28,79 34,6 |
316,67 380,61 355,99 |
322,14 | 731,13 | ||||||||||||||
| 105 | Ж.К. 20 | НС, С ДО, С ПЛ. |
8,64 2,25 18,88 |
0,88 3,3 0,83 |
50,6 | 1 1 0,6 |
384,72 375,71 475,75 |
0,1 0,1 |
38,47 37,57 |
423,19 413,28 475,75 |
962,97 | 396,48 | 1878,71 | |||||||||||||
| 106 | Ж.К. 22 | НС, С ДО, С НС, В ПЛ. |
8,37 2,25 17,31 14,75 |
0,88 3,3 0,88 0,83 |
52,6 | 1 1 1 0,6 |
387,43 390,56 801,25 386,37 |
0,05 0,05 0,05 |
19,37 19,53 40,06 |
406,8 410,09 841,31 386,37 |
782,06 | 309,75 | 2516,88 | |||||||||||||
| 107 | Ж.К. 22 | НС, Ю ДО, Ю НС, З ПЛ. |
8,13 2,25 16,71 14,25 |
0,88 3,3 0,88 0,83 |
52,6 | 1 1 1 0,6 |
376,32 390,56 773,47 373,28 |
0,05 0,05 0,05 |
18,82 19,53 38,67 |
395,14 410,09 812,14 373,28 |
755,55 | 299,25 | 2446,95 | |||||||||||||
| 108 | Ж.К. 20 | НС, Ю ДО, Ю ПЛ. |
8,64 2,25 18,88 |
0,88 3,3 0,83 |
50,6 | 1 1 0,6 |
384,72 375,71 475,75 |
0,1 0,1 |
38,47 37,57 |
423,19 413,28 475,75 |
962,97 | 396,48 | 1878,71 | |||||||||||||
| 109 | Ж.К. 20 | НС, Ю ДО, Ю ПЛ. |
7,02 2,25 14,82 |
0,88 3,3 0,83 |
50,6 | 1 1 0,6 |
312,59 375,71 373,45 |
0,1 0,1 |
31,26 37,57 |
343,85 413,28 373,45 |
755,89 | 311,22 | 1575,25 | |||||||||||||
| 110 | Кх. 16 | НС, Ю ДО, Ю ПЛ. |
7,02 2,25 14,82 |
0,88 3,3 0,83 |
46,6 | 1 1 0,6 |
287,88 346,01 343,92 |
0,1 0,1 |
28,79 34,6 |
316,67 380,61 343,92 |
311,22 | 729,28 | ||||||||||||||
| 111 | Кх. 16 | НС, Ю ДО, Ю ПЛ. |
7,02 2,25 14,82 |
0,88 3,3 0,83 |
46,6 | 1 1 0,6 |
287,88 346,01 343,92 |
0,1 0,1 |
28,79 34,6 |
316,67 380,61 343,92 |
311,22 | 729,28 | ||||||||||||||
| 112 | Ж.К. 20 | НС, Ю ДО, Ю ПЛ. |
7,02 2,25 14,82 |
0,88 3,3 0,83 |
50,6 | 1 1 0,6 |
312,59 375,71 373,45 |
0,1 0,1 |
31,26 37,57 |
343,85 413,28 373,45 |
755,89 | 311,22 | 1575,25 | |||||||||||||
| 113 | Ж.К. 20 | НС, Ю ДО, Ю ПЛ. |
8,64 2,25 18,88 |
0,88 3,3 0,83 |
50,6 | 1 1 0,6 |
384,72 375,71 475,75 |
0,1 0,1 |
38,47 37,57 |
423,19 413,28 475,75 |
962,97 | 396,48 | 1878,71 | |||||||||||||
| 114 | Ж.К. 22 | НС, Ю ДО, Ю НС, В ПЛ. |
8,13 2,25 16,71 14,25 |
0,88 3,3 0,88 0,83 |
52,6 | 1 1 1 0,6 |
376,32 390,56 773,47 373,28 |
0,05 0,05 0,05 |
18,82 19,53 38,67 |
395,14 410,09 812,14 373,28 |
755,55 | 299,25 | 2446,95 | |||||||||||||
| 201 | Ж.К. 22 | НС, С ДО, С НС, З |
8,13 2,25 17,31 |
0,88 3,3 0,88 |
52,6 | 1 1 1 |
376,32 390,56 801,25 |
0,05 0,05 0,05 |
18,82 19,53 40,06 |
395,14 410,09 841,31 |
782,06 | 309,75 | 2118,82 | |||||||||||||
| 202 | Ж.К. 20 | НС, С ДО, С |
8,64 2,25 |
0,88 3,3 |
50,6 | 1 1 |
384,72 375,71 |
0,1 0,1 |
38,47 37,57 |
423,19 413,28 |
962,97 | 396,48 | 1402,96 | |||||||||||||
| 203 | Кх. 16 | НС, С ДО, С |
7,02 2,25 |
0,88 3,3 |
46,6 | 1 1 |
312,59 375,71 |
0,1 0,1 |
28,79 34,6 |
341,38 410,31 |
322,14 | 429,55 | ||||||||||||||
| 204 | Кх. 16 | НС, С ДО, С |
7,02 2,25 |
0,88 3,3 |
46,6 | 1 1 |
312,59 375,71 |
0,1 0,1 |
28,79 34,6 |
341,38 410,31 |
322,14 | 429,55 | ||||||||||||||
| 205 | Ж.К. 20 | НС, Ю ДО, Ю |
8,64 2,25 |
0,88 3,3 |
50,6 | 1 1 |
384,72 375,71 |
0,1 0,1 |
38,47 37,57 |
423,19 413,28 |
962,97 | 396,48 | 1402,96 | |||||||||||||
| 206 | Ж.К. 22 | НС, С ДО, С НС, В |
8,37 2,25 17,31 |
0,88 3,3 0,88 |
52,6 | 1 1 1 |
387,43 390,56 801,25 |
0,1 0,1 0,1 |
19,37 19,53 40,06 |
406,8 410,09 841,31 |
782,06 | 309,75 | 2130,51 | |||||||||||||
| 207 | Ж.К. 22 | НС, Ю ДО, Ю НС, З |
8,13 2,25 16,71 |
0,88 3,3 0,88 |
52,6 | 1 1 1 |
376,32 390,56 773,47 |
0,1 0,1 0,1 |
18,82 19,53 38,67 |
395,14 410,09 812,14 |
755,55 | 299,25 | 2073,67 | |||||||||||||
| 208 | Ж.К. 20 | НС, Ю ДО, Ю |
8,64 2,25 |
0,88 3,3 |
50,6 | 1 1 |
384,72 375,71 |
0,1 0,1 |
38,47 37,57 |
423,19 413,28 |
962,97 | 396,48 | 1402,96 | |||||||||||||
| 209 | Ж.К. 20 | НС, Ю ДО, Ю |
7,02 2,25 |
0,88 3,3 |
50,6 | 1 1 |
312,59 375,71 |
0,1 0,1 |
31,26 37,57 |
343,85 413,28 |
755,89 | 311,22 | 1201,8 | |||||||||||||
| 210 | Кх. 16 | НС, Ю ДО, Ю |
7,02 2,25 |
0,88 3,3 |
46,6 | 1 1 |
287,88 346,01 |
0,1 0,1 |
28,79 34,6 |
416,67 380,61 |
311,22 | 486,06 | ||||||||||||||
| 211 | Кх. 16 | НС, Ю ДО, Ю |
7,02 2,25 |
0,88 3,3 |
46,6 | 1 1 |
287,88 346,01 |
0,1 0,1 |
28,79 34,6 |
416,67 380,61 |
311,22 | 486,06 | ||||||||||||||
| 212 | Ж.К. 20 | НС, Ю ДО, Ю |
7,02 2,25 |
0,88 3,3 |
50,6 | 1 1 |
312,59 375,71 |
0,1 0,1 |
31,26 37,57 |
343,85 413,28 |
755,89 | 311,22 | 1201,8 | |||||||||||||
| 213 | Ж.К. 20 | НС, Ю ДО, Ю |
8,64 2,25 |
0,88 3,3 |
50,6 | 1 1 |
384,72 375,71 |
0,1 0,1 |
38,47 37,57 |
423,19 413,28 |
962,97 | 396,48 | 1402,96 | |||||||||||||
| 214 | Ж.К. 22 | НС, Ю ДО, Ю НС, В |
8,13 2,25 16,71 |
0,88 3,3 0,88 |
52,6 | 1 1 1 |
376,32 390,56 773,47 |
0,05 0,05 0,05 |
18,82 19,53 38,67 |
395,14 410,09 812,14 |
755,55 | 299,25 | 2073,67 | |||||||||||||
| 401 | Ж.К. 22 | НС, С ДО, С НС, З Пт. |
8,13 2,25 17,31 14,75 |
0,88 3,3 0,88 0,71 |
52,6 | 1 1 1 0,9 |
376,32 390,56 801,25 495,77 |
0,05 0,05 0,05 |
18,82 19,53 40,06 |
395,14 410,09 841,31 495,77 |
782,06 | 309,75 | 2614,62 | |||||||||||||
| 402 | Ж.К. 20 | НС, С ДО, С Пт. |
8,64 2,25 18,88 |
0,88 3,3 0,71 |
50,6 | 1 1 0,9 |
384,72 375,71 562,2 |
0,1 0,1 |
38,47 37,57 |
423,19 413,28 562,2 |
962,97 | 396,48 | 1965,16 | |||||||||||||
| 403 | Кх. 16 | НС, С ДО, С Пт. |
7,02 2,25 15,34 |
0,88 3,3 0,71 |
46,6 | 1 1 0,9 |
287,88 346,01 456,79 |
0,1 0,1 |
28,79 34,6 |
316,67 380,61 456,79 |
322,14 | 831,93 | ||||||||||||||
| 404 | Кх. 16 | НС, С ДО, С Пт. |
7,02 2,25 15,34 |
0,88 3,3 0,71 |
46,6 | 1 1 0,9 |
287,88 346,01 456,79 |
0,1 0,1 |
28,79 34,6 |
316,67 380,61 456,79 |
322,14 | 831,93 | ||||||||||||||
| 405 | Ж.К. 20 | НС, С ДО, С Пт. |
8,64 2,25 18,88 |
0,88 3,3 0,71 |
50,6 | 1 1 0,9 |
384,72 375,71 610,45 |
0,1 0,1 |
38,47 37,57 |
423,19 413,28 610,45 |
962,97 | 396,48 | 2013,41 | |||||||||||||
| 406 | Ж.К. 22 | НС, С ДО, С НС, В Пт. |
8,37 2,25 17,31 14,75 |
0,88 3,3 0,88 0,71 |
52,6 | 1 1 1 0,9 |
387,43 390,56 801,25 495,77 |
0,05 0,05 0,05 |
19,37 19,53 40,06 |
406,8 410,09 841,31 495,77 |
782,06 | 309,75 | 2626,28 | |||||||||||||
| 407 | Ж.К. 22 | НС, Ю ДО, Ю НС, З Пт. |
8,13 2,25 16,71 14,25 |
0,88 3,3 0,88 0,71 |
52,6 | 1 1 1 0,9 |
376,32 390,56 773,47 495,77 |
0,05 0,05 0,05 |
18,82 19,53 38,67 |
395,14 410,09 812,14 495,77 |
755,55 | 299,25 | 2569,44 | |||||||||||||
| 408 | Ж.К. 20 | НС, Ю ДО, Ю Пт. |
8,64 2,25 18,88 |
0,88 3,3 0,71 |
50,6 | 1 1 0,9 |
384,72 375,71 610,45 |
0,1 0,1 |
38,47 37,57 |
423,19 413,28 610,45 |
962,97 | 396,48 | 2013,41 | |||||||||||||
| 409 | Ж.К. 20 | НС, Ю ДО, Ю Пт. |
7,02 2,25 14,82 |
0,88 3,3 0,71 |
50,6 | 1 1 0,9 |
312,59 375,71 479,18 |
0,1 0,1 |
31,26 37,57 |
343,85 413,28 479,18 |
755,89 | 311,22 | 1680,98 | |||||||||||||
| 410 | Кх. 16 | НС, Ю ДО, Ю Пт. |
7,02 2,25 14,82 |
0,88 3,3 0,71 |
46,6 | 1 1 0,9 |
287,88 346,01 441,3 |
0,1 0,1 |
28,79 34,6 |
316,67 380,61 441,3 |
311,22 | 827,36 | ||||||||||||||
| 411 | Кх. 16 | НС, Ю ДО, Ю Пт. |
7,02 2,25 14,82 |
0,88 3,3 0,71 |
46,6 | 1 1 0,9 |
287,88 346,01 441,3 |
0,1 0,1 |
28,79 34,6 |
316,67 380,61 441,3 |
311,22 | 827,36 | ||||||||||||||
| 412 | Ж.К. 20 | НС, Ю ДО, Ю Пт. |
7,02 2,25 14,82 |
0,88 3,3 0,71 |
50,6 | 1 1 0,9 |
312,59 375,71 441,3 |
0,1 0,1 |
31,26 37,57 |
343,85 413,28 441,3 |
755,89 | 311,22 | 1643,1 | |||||||||||||
| 413 | Ж.К. 20 | НС, Ю ДО, Ю Пт. |
8,64 2,25 18,88 |
0,88 3,3 0,71 |
50,6 | 1 1 0,9 |
384,72 375,71 610,45 |
0,1 0,1 |
38,47 37,57 |
423,19 413,28 610,45 |
962,97 | 396,48 | 2013,41 | |||||||||||||
| 414 | Ж.К. 22 | НС, Ю ДО, Ю НС, В Пт. |
8,13 2,25 16,71 14,25 |
0,88 3,3 0,88 0,71 |
52,6 | 1 1 1 0,9 |
376,32 390,56 773,47 478,96 |
0,05 0,05 0,05 |
18,82 19,53 38,67 |
395,14 410,09 812,14 478,96 |
755,55 | 299,25 | 2552,63 | |||||||||||||
| А | Л.К. | НД, С НС, С ДО, С Пт. Пл. |
2,4 7,02 10,35 31,2 31,2 |
4 0,88 3,3 0,71 0,83 |
42,6 | 1 1 1 0,9 0,6 |
408,96 263,17 1455,01 849,31 661,9 |
0,1 0,1 |
3,645 |
1490,66 26,32 145,5 |
1899,62 289,49 1600,51 849,31 661,9 |
5300,83 | ||||||||||||||
QC.О. = 108544,3 Вт
Примечание:
1. Номер помещения состоит из номера этажа и порядкового номера по плану здания;
2. Условные обозначения: Ж.К. – жилая комната; л.к. – лестничная клетка; НС – наружная стена; ДО – окно с двойным остеклением; Пл – пол; Пт - потолок; Наружная дверь.
Бытовое тепловыделение
следует учитывать только для жилых помещений и кухонь в размере 21 Вт на м2 площади этих помещений.
QC.О. = 108544,3 Вт
После определения теплонедостатков здания по формуле (3.1) необходимо выполнить проверку величины
по укрупненным показателям:
![]()
где
- удельная тепловая характеристика здания, Вт/м3 ∙ 0С;
- усредненная температура воздуха отапливаемых помещений, 0С
- объем здания по наружному обмеру, м3.
Удельную тепловую характеристику вычисляют по формуле [1];

где Р – периметр здания, м;
S – площадь здания, в плане, м2;
и
- суммарные площади соответственно остекления и вертикальных наружных ограждений в здании, м2;
Н – высота здания, м;
,
,
- коэффициент теплопередачи соответственно наружной стены, остекления, потолка и пола, Вт/м2 ∙ 0С.

Вт
Определяется невязка
между
и
по формуле:
![]()
![]()
3.2 Конструирование системы отопления
Конструирование системы отопления заключается в выборе и размещении в здании основных ее элементов: нагревательных приборов; трубопроводов и арматуры; оборудования теплового пункта и КИП.
В качестве нагревательных приборов используются чугунные секционные радиаторы типа МС. Размещаются нагревательные приборы под окнами и у наружных стен помещения. Количество нагревательных приборов в одном помещении определяется конструктивными соображениями и расчетом.
Трубопроводы системы отопления делятся на следующие типы:
- магистрали;
- стояки (главный и рядовые);
- подводки к нагревательным приборам.
Магистральные трубопроводы прокладываются вдоль фасадных стен здания с уклоном не менее
и располагаются на чердаке (система отопления с верхней разводкой). В этом случае теплоноситель из теплового пункта в подающую магистраль подается по главному стояку (гл. ст.). На чердаке магистрали устанавливаются на расстоянии 1-1,5 м от наружной стены. Магистральные трубопроводы покрывают тепловой изоляцией.
Главный стояк рекомендуется прокладывать в вертикальном канале (штробе) и покрывать тепловой изоляцией.
Рядовые стояки размещаются симметрично относительно узла ввода (теплового пункта) с соблюдением следующих основных правил:
- необходимо стремиться к сокращению общего количества стояков за счет двухстороннего присоединения нагревательных приборов и соединения, последних на сцепке;
- стояк в лестничной клетке обосабливается от нагревательных приборов других помещений и выполняется по однотрубной проточной схеме;
- для уменьшения риска выпадения влаги на внутренней поверхности ограждений стояки размещают в наружных углах помещений.
Диаметр стояков принимается постоянным по всей длине. В межэтажных перекрытиях стояки не закрепляют, а прокладывают в гильзах с возможностью перемещения.
Подводки к нагревательным приборам устанавливаются без уклона при длине менее 500 мм.
Запорно-регулирующая арматура устанавливается в случаях:
- вентиль и пробковый кран на каждом стояке здания (при числе этажей более 3-х);
- у отопительных приборов в случае невозможности регулировки теплового потока самим прибором;
- на разветвлениях трубопроводов (вентили или задвижки);
- у нагревательных приборов лестничных клеток арматура не устанавливается.
Воздухосборную арматуру предусматривают в высших местах магистральных трубопроводов для системы.
Оборудование теплового пункта здания предназначено для подготовки воды перед ее подачей в систему отопления и состоит из задвижек (вентилей), грязевиков, водоструйного элеватора, обратного клапана, регулятора расхода. Из контрольно-измерительных приборов устанавливаются манометры и термометры на подающем и обратном трубопроводах. Располагается тепловой пункт в подвале в отдельном помещении.
3.3 Расчет нагревательных приборов
Целью расчета является определение поверхности нагревательных приборов и их конструктивных параметров (количество секций, длины приборов). Расчет выполняем для Ст. 4, проходящего по жилым комнатам.
Тепловой поток нагревательного прибора QН.П.. должен компенсировать общие теплонедостатки помещения:
.
Необходимая для этого поверхность нагревательных приборов определяем из уравнения теплопередачи:
,
где
- теплоотдача одного эквивалентного квадратного метра поверхности прибора при стандартных условиях (открытая установка у наружной стены, одностороннее присоединение при подаче теплоносителя по схеме "сверху вниз":
- поправочный коэффициент, учитывающий влияние на теплоотдачу секционного нагревательного прибора числа его секций
.
Так как перед началом расчетов
бывает неизвестно, то значение
принимаем ориентировочно (
) и затем уточняем по рассчитанному
.
- поправочный коэффициент, учитывающий способ подводки теплоносителя к прибору [5]. При схеме подводки теплоносителя "сверху-вниз"
.
- коэффициент, учитывающий способ установки прибора. Если у нагревательного прибора установлен экран в виде щитка, не доходящего до пола, то
.
Для чугунных радиаторов
определяем по формуле:
[Вт/экм]
где
- разность между средней температурой поверхности нагревательного прибора
и температурой воздуха
, 0С.
Температура прибора
зависит от конструкции стояка и вычисляется как среднеарифметическое между температурами воды на входе
и выходе
из нагревательного прибора. В двухтрубных стояках для всех нагревательных приборов температуру
можно принимать одинаковой и равной средней между температурами теплоносителя в подающей tг и обратной tо магистралях системы отопления.
Расход теплоносителя по стояку определяется по выражению:
, [кг/ч]
[кг/ч]
где
- тепловая нагрузка на стояк, Вт равна сумме тепловых нагрузок всех нагревательных приборов
, присоединенных к данному стояку.
Для секционных нагревательных приборов определяем число секций
, округляя значение до ближайшего целого числа.
,
где
- площадь поверхности одной секции, экм [1,3].
![]()
![]()
![]()
![]()
![]()
![]()
![]()
![]()
![]()
![]()
![]()
![]()
![]()
![]()
![]()
![]()
![]()
![]()
![]()
![]()
3.4 Гидравлический расчет систем водяного отопления
Гидравлический расчет выполняется для определения диаметров трубопроводов системы. Правильный выбор диаметров обеспечивает при заданном располагаемом напоре теплоносителя подачу в систему отопления расчетного количества горячей воды, а, следовательно, и необходимого тепла. Так как перемещение теплоносителя по трубопроводам сопровождаются потерей давления, то принцип выбора диаметра может быть формализован в виде:
(3.1)
где
- располагаемое давление в системе отопления, Па;
- потери давления в системе отопления, Па.
Располагаемое давление в системе отопления складывается из двух составляющих:
,
где
- давление, развиваемое насосом (или после элеватора), Па;
- поправочный коэффициент. Для однотрубных систем -
;
- естественное давление, возникающее вследствие охлаждения воды в нагревательных приборах, Па.
Естественное давление определяется по формуле :
, (3.1)

где Q – тепловая нагрузка i –го прибора, Вт;
hi – вертикальное расстояние от центра охлаждения прибора в стояке до центра узла ввода, м.
Давление после элеватора
зависит от коэффициента смещения uи разности давления перед элеватором (
). (См. график рис. 3.4.1.) [1].
Рис. 3.4.1. Зависимость давления после элеватора от коэффициента смещения при различных (
).
Коэффициент смещения находится по формуле:
,
![]()
где
- температура воды соответственно в наружных тепловых сетях, в подающей и обратной магистралях системы отопления, 0С.
![]()
![]()
Потери давления в системе отопления (сопротивление системы)
определяются по методике [1,3] и в общем виде выражены формулой:

где
- потери давления на i-ом участке трубопровода постоянного диаметра
и при неизменном расходе теплоносителя
.
Суммирование
производится по значениям потерь давления в последовательно соединенных участках, составляющих главное циркуляционное кольцо системы отопления (г.ц.к.). За г.ц.к. принимается цепочка последовательно расположенных трубопроводов по ходу движения теплоносителя, начиная от теплового пункта через расчетный стояк и по обратной магистрали до теплового пункта.
В однотрубных системах циркуляционное кольцо проходит через сам стояк в целом.
За расчетный стояк в системе отопления принимается наиболее загруженный и удаленный от теплового пункта стояк.
Потери давления на участке трубопровода вычисляются как сумма потерь давления на трение
и в местных сопротивлениях z:
.
Потери давления на трение
в трубопроводе диаметром
длиной
можно рассчитать по известным формулам:
(3.2.)
,
где
- коэффициент сопротивления трения;
- скорость движения теплоносителя в трубопроводе, м/с;
- плотность теплоносителя, кг/м3;
- критерий Рейнольдса [1];
K - абсолютная шероховатость материала трубы, мм. Для стали K- мм;
- диаметр трубопровода, мм.
В инженерной практике для вычисления
обычно применяются различные вспомогательные таблицы и номограммы [1, 3, 4], что в значительной степени упрощает расчёты. Формулу (3.2.) представляют в виде:
(3.3.)
где
- удельная потеря давления на трение, Па/м. Определяется по соответствующим таблицам [1, 3];
- длина трубопровода с постоянным расходом
и диаметром
, м.
Так как потери давления зависят от искомого параметра d, то рассматриваемая задача имеет множество решений и для облегчения выбора одного значения d вводят дополнительные ограничения:
- скорость теплоносителя должна находиться в пределах 0,5 – 1,2 м/с;
- значение диаметра должно соответствовать одному из стандартных, устанавливаемых ГОСТом размеров [1,8];
- потери давления в Г.Ц.К. не должны превышать располагаемого давления в системе.
Последнее условие можно легко выполнить, если при определении d ориентироваться на среднее значение потерь давления Rср:
(3.4)
где
- общая длина Г.Ц.К., м.
Па
Потери давления в местных сопротивлениях
вычисляется по формуле:
(3.5)
где
- сумма коэффициентов местных сопротивлений на участке.
Местным сопротивлением является: запорно-регулирующая арматура, места поворота и изменение диаметра трубопроводов, нагревательные приборы и т.п. Численные значения коэффициентов z для каждого вида местных сопротивлений приводятся в справочной литературе [1, 3].
Таким образом, общий алгоритм определения
сводится к следующему:
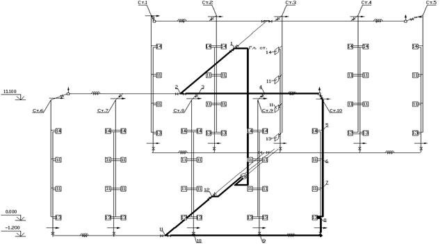
1. Вычерчиваем аксонометрическую схему системы отопления с нагревательными приборами и арматурой, указываем тепловые нагрузки нагревательных приборов.
2. Нумеруем стоянки (Ст.1, Ст.2 и т.д.). Вычисляем тепловые нагрузки на стояки системы отопления и выбираем расчётный стояк. Определяем тепловую нагрузку по стоякам и заносим в табл. 3.2.
Таблица 3.2
Тепловая нагрузка стояков
№ стояка |
Тепловая нагрузка, Вт |
1 2 3 4 5 6 7 8 9 10 |
9357,48 9071,95 5300,83 9071,95 9357,48 9357,48 9071,95 5057,52 9071,95 9357,48 |
3. Определяем главное циркуляционное кольцо системы (г.ц.к.), которое разбиваем на участки, начиная от узла ввода (Рис. 3.4.2). За отдельный участок принимаем отрезок г.ц.к, на котором постоянный расход теплоносителя. Участки нумеруем двумя цифрами – начало и конец участка (табл. 3.3.). На схеме наносится длина участка и его тепловая нагрузка
(графа 2).
4. Вычисляем расход теплоносителя (графа 3)
![]()
5. Используя номограммы гидравлического расчета [4], по Gуч. выбираем dуч. таким образом, чтобы соответствующее ему значение удельной потери давления на трение Rуч. было близко к
, (3.4) а скорость wуч. находилась в пределах 0,2-1,2 м/с. Данные заносим в графы 5-7.
6. Вычисляем потери давления на трение на участке
(графа 8).
7. По скорости w (графа 5) -вычисляем динамическое давление (графа 9).
8. Используя схему С.О., определяем сумму коэффициентов местных сопротивлений Σς на участке [1,3,4](графа 10) и потери давления Z.
9. Сумма потерь давления на трение
в местных сопротивлениях Z дает полные потери давления на участке (графа 12).
10. Суммируя потери давления на всех участках г.ц.к., определяем потери давления в системе отопления.
.
11. Проверяем условие (3.6.): ![]()
![]()
![]()

Рис. 3.4.2.
Таблица 3.3
Гидравлический расчёт системы отопления
№ участка |
Qуч,, Вт |
Gуч, кг/ч |
l, м |
w, м/с |
d, мм |
R, Па/м |
R∙ l, Па |
(w 2/2)ρw | ∑ζ | Z, Па |
R∙ l +Z, Па |
| 1 | 2 | 3 | 4 | 5 | 6 | 7 | 8 | 9 | 10 | 11 | 12 |
| УВ – 1 | 108544,3 | 3739,33 | 15,7 | 0,284 | 65 | 18 | 282,6 | 39,52 | 2,5 | 98,8 | 381,4 |
| 1 – 2 | 51273,86 | 1766,37 | 5,98 | 0,145 | 65 | 5 | 29,9 | 10,31 | 10 | 103,1 | 133 |
| 2 – 3 | 23486,95 | 809,12 | 1,44 | 0,115 | 50 | 4 | 5,76 | 6,48 | 10 | 68,32 | 74,08 |
| 3 – 4 | 18429,43 | 634,89 | 5,2 | 0,087 | 50 | 2,4 | 12,48 | 3,71 | 2 | 7,42 | 19,9 |
| 4 – 5 | 9357,48 | 322,36 | 8,29 | 0,071 | 40 | 2,4 | 19,9 | 2,47 | 12,5 | 30,86 | 50,76 |
| 5 – 6 | 6594,29 | 239,57 | 2,7 | 0,073 | 32 | 3,2 | 8,64 | 2,61 | 2 | 5,22 | 13,86 |
| 6 – 7 | 4520,62 | 155,73 | 2,7 | 0,074 | 25 | 5 | 13,5 | 2,68 | 2 | 5,36 | 18,86 |
| 7 – 8 | 2446,95 | 84,29 | 2,7 | 0,041 | 25 | 1,4 | 3,78 | 0,82 | 2 | 1,64 | 5,42 |
| 8 – 9 | 9357,48 | 322,36 | 6,61 | 0,071 | 40 | 2,4 | 15,86 | 2,47 | 7 | 17,29 | 33,15 |
| 9 – 10 | 18429,43 | 634,89 | 5,2 | 0,087 | 50 | 2,4 | 12,48 | 3,71 | 2 | 7,42 | 19,9 |
| 10 – 11 | 23486,95 | 809,12 | 2,29 | 0,115 | 50 | 4 | 9,16 | 6,48 | 10 | 68,32 | 77,48 |
| 11 – 12 | 51273,86 | 1766,37 | 5,2 | 0,145 | 65 | 5 | 26 | 10,31 | 10 | 103,1 | 129,1 |
| 12 – УВ | 108544,3 | 3739,33 | 3,0 | 0,284 | 65 | 18 | 54 | 39,52 | 2,5 | 98,8 | 152,8 |
∑=1109,71 Па
1354,55 Па
![]()
![]()
![]()
948,185 < 1109,71 < 1219,095 – условие выполнилось
3.5 Подбор оборудования теплового пункта
Расчет водоструйного элеватора сводится к определению диаметра горловины dг и сопла dс:
, см;
см
см
см
где u – коэффициент смещения элеватора.
Gс.о. – расход теплоносителя в системе отопления, кг/ч;
Dpс.о. – гидравлическое сопротивление системы, Па.
4 Вентиляция
4.1 Расчет воздухообменов
При расчете вентиляции жилых зданий производительность системы принимается по расчетному воздухообмену для кухонь, санузлов и ванных комнат [2,5].
Схема вентиляции в жилых зданиях предусматривает удаление воздуха из этих помещений посредством естественной канальной вентиляции, а его возмещение происходит за счет наружного воздуха, поступающего путем инфильтрации во все помещения квартиры. Расчетный воздухообмен в санузлах и ванных комнатах равен 25 м3/ч; в кухнях нормируется в зависимости от типа и мощности установленных плит [5]:
- электрическая плита – 60 м3/ч;
- газовая 4-х конфорочная плита – 90 м3/ч;
- газовая 2-х конфорочная плита – 60 м3/ч.
4.2. Конструирование систем вентиляции
В жилых зданиях устраивается общеобменная вытяжная естественная нерегулируемая канальная вентиляция.
Конструктивно системы вентиляции состоят из четырёх основных элементов:
- вытяжной решётки;
- вентиляционного канала;
- воздухосборного короба;
- вентиляционной шахты.
Размещение в здании удовлетворяет следующим требованиям:
- вытяжные решётки устанавливаются в каждом вентилируемом помещении;
- от каждой решётки исходит свой вентиляционный канал: допускается объединять одним горизонтальным воздуховодом решетки, расположенные рядом в одной квартире (санузел-ванная комната)
- прокладывать каналы в наружных стенах запрещается;
- отдельные каналы от одноименных помещений могут объединяться на чердаке утепленным воздухосборным коробом или выходить непосредственно наружу;
- высота вентиляционной шахты зависит от горизонтального расстояния l от ее оси до конька крыши и ориентировочно может быть вычислена:
![]()
где hн и hч – отметки соответственно конька крыши и чердака, м;
Радиус действия одной системы (горизонтальное расстояние от оси шахты до оси наиболее удаленного канала) не должен превышать 8 м.
Все элементы вентиляционной системы могут быть изготовлены индивидуально или из типовых элементов [3].
м.
Литература
1. Справочник проектировщика. Внутренние санитарно-технические устройства. В 2-х ч./Под ред. И.Г. Староверова. Ч.I. Отопление, водопровод, канализация. – М.: Стройиздат, 1975.-429с.
2. Справочник проектировщика. Внутренние санитарно-технические устройства. В 2-х ч./Под ред. И.Г. Староверова. Ч.II. Вентиляция и кондиционирование воздуха. – М.: Стройиздат, 1976.-509с.
3. Щекин Р.В. и др. Справочник по теплоснабжению и вентиляции. В 2-х ч. – Киев: Будивельник, 1976.
4. Тихомиров К.В. Теплотехника, теплогазоснабжение и вентиляцияМ.: Стройиздат, 1991.-272 с.
5. Отопление и вентиляция жилых зданий. – М.: Стройиздат, 1990.-24 с.
6. Богословский В. Н., Щеглов Б.П., Разумов Н. П.. - М.: Стройиздат, 1980.-295 с.
7. СНиП 2.01.01-82 Строительная климатология и геофизи ка. - М.: Стройиздат, 1983.-136 с.
8. СНиП 2.04.05-86 Отопление, вентиляция и кондиционирование воздуха. – М.: Стройиздат, 1988.-60 с.
9. СНиП II-3-79** Строительная теплотехника. М.: Стройиздат, 1979.-32 с.
10. СНиП 2.08.01-89 Жилые здания. – М.: Стройиздат, 1990.-15 с.
11. СНиП 460-74 Временная инструкция о составе и оформлении строительных рабочих чертежей зданий и сооружений. Раздел 7. Отопление и вентиляция.– М.: Стройиздат, 1979.-31 с.