| Скачать .docx |
Реферат: Понятие о гражданских зданиях и их классификация
Понятие о гражданских зданиях и их классификация
По назначению гражданские здания подразделяются на жилые и общественные.
К жилым домам относятся:
- многоквартирные жилые дома;
- индивидуальные жилые дома;
- жилые дома усадебного типа;
- общежития - для длительного проживания людей;
- гостиницы - для кратковременного проживания;
- дома - интернаты.
К общественным зданиям относятся:
1. Здания предназначенные для всех видов жизнедеятельности людей:
- школы;
- детские сады;
- ясли;
- больницы;
- магазины и др.
2. Здания государственного или большого культурного значения:
- театры;
- музеи;
- здания правительственных учреждений;
- дворцы культуры;
- спортивные сооружения.
По этажности гражданские здания различают в зависимости от расположения пола к тротуару или отмостке:
- этаж, пол которого расположен не ниже тротуара или отмостки, называют надземным этажом;
- этаж, пол которого расположен ниже тротуара или отмостки, но не более чем на половину высоты помещения называют цокольным или полуподвальным;
- этаж, пол которого ниже тротуара или отмостки более чем на половину, называют подвальным;
- этаж, встроенный в пространство чердака называют мансардным.
Основные требования, предъявляемые к зданиям:
1) функциональная целесообразность (полное соответствие назначению здания);
2) прочность;
3) устойчивость;
4) долговечность (по СНИПу существует 3 степени долговечности: срок службы здания 100 лет; 50 лет; 20 лет);
5) По классу ответственности
6)
7) огнестойкость (в Беларуси существует 8 степеней огнестойкости);
8) эксплутационные требования - создание условий труда, быта, находящихся в здании;
9) экономичность (зависит от рационального выбора материалов и методов работ);
10) архитектурно - художественные требования.
По роду материала наружных стен здания подразделяются на деревянные и каменные.
По этажности здания бывают:
- малоэтажные (до 2 эт.);
- средней этажности (3-5 эт.);
- повышенной этажности (6-9 эт.);
- многоэтажные здания (10-25 эт.);
- высотные здания (более 25 эт.)/
Все здания делятся на 4 класса:
□ класс - здания удовлетворяют повышенным требованиям (любой этажности);
□ класс - жилые и общественные здания до 9 этажей массового строительства;
□ класс - жилые и общественные здания средней этажности до 5 этажей;
□ класс - здания, которые удовлетворяют минимальным требованиям, до 2 этажей.
Для каждого класса в зависимости от назначения здания нормами предусмотрены определенные степени долговечности, огнестойкости, эксплуатационные нормы, а также учитывается степень влагостойкости, морозостойкости, огнестойкости и т. д.
Основные положения модульной системы
Размеры строительных конструкций должны быть скоординированы и взаимно увязаны.
Совокупность правил, порядок координации и назначение размеров объемно-планировочных и конструктивных элементов, изделий и оборудования составляет Единую модульную систему в строительстве - ЕМС.
Цель применения ЕМС - создание основы для унификации, типизации и стандартизации в проектировании, производстве строительных конструкций и изделий. Модуль = 300
Применяются укрупненные и дробные модули (см. рис.2).
Для точного определения взаимного расположения вертикальных элементов несущего остова здания (стен и колонн) в архитектурных и конструктивных чертежах применяют систему модульных разбивочных осей. Линий продольных осей обычно маркируют буквами, линии поперечных - цифрами.
Номинальный (модульный) размер обозначает проектное расстояние между модульными разбивочными осями здания или условный размер конструктивного элемента, включающий соответствующий части швов и зазоров, назначенный в соответствии с правилами модульной системы.
Конструктивный размер - проектный размер конструктивного элемента, строительного изделия или оборудования, отличающийся от номинального размера, как правило, на величину нормативного зазора.
Натурный размер - фактическое расстояние между разбивочными осями построенного здания и сооружения или фактические размеры его частей или элементов (см. рис.3).
Укрупненные модули применяют для назначения размеров зданий и сооружений - ширины, длины и высоты зданий, шагов колонн, расстояний между несущими конструкциями, высот этажей, размеров пролетов (ферм, балок, плит). Основные и дробные - для обозначения толщины плитных и листовых материалов, размеров зазоров между элементами, сечение колонн, балок, перемычек, элементов конструкций и деталей.
Совокупность таких элементов как фундаменты, стены отдельные опоры перекрытия носит название несущего остова здания. В зависимости от вида несущего остова различают основные конструктивные схемы зданий:
1. Здания с несущими стенами (бескаркасные);
2. Здания с неполным каркасом;
3. Каркасные здания.
В зданиях с несущими стенами нагрузку от перекрытий, крыши и др. воспринимают стены: продольные, поперечные или одновременно и продольные и поперечные.
В каркасных зданиях вся нагрузка передается на каркас, то есть систему связанных между собой вертикальных элементов (колонн) и горизонтальных (прогонов и ригелей).
Конструктивные схемы бескаркасных зданий
А) несущие продольные стены (см. рис.4);
Б) поперечные несущие стены (см. рис.4);
В) со стенами несущими в обоих направлениях (см. рис.4).
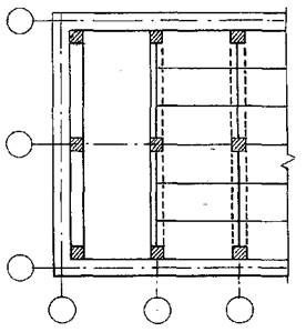
Конструктивные схемы со смешанным каркасом
А) продольное расположение ригелей (см. рис. 5);
Б) поперечное расположение ригелей (см. рис. 5).
Конструктивные схемы каркасных зданий
А) с продольным расположением ригелей (см. рис.6);
Б) с поперечным расположением ригелей (см. рис. 6);
В) с перекрестным расположением ригелей (см. рис. 6);
Г) безригельное решение (см. рис. 6).

Рис. 1.
МОДУЛЬНАЯ СИСТЕМА КООРДИНАЦИИ РАЗМЕРОВ
Рис. 2 .
а - пространственная система модульных плоскостей; б - взаимосвязь укрупненных модулей в плоскости
МАРКИРОВКА КООРДИНАЦИОННЫХ (РАЗБИВОЧНЫХ) ОСЕЙ
И ПРИВЯЗКА КОНСТРУКЦИЙ
Рис. 3. а - маркировка осей; б - привязка стен; в, г - привязка колонн
(в - «нулевая» привязка наружных граней колонн; г - их привязка на расстоянии а)
ЗДАНИЯ С НЕСУЩИМИ СТЕНАМИ
ПРОДОЛЬНЫМИ ПОПЕРЕЧНЫМИ
Рис. 4.
ЗДАНИЯ С НЕПОЛНЫМ КАРКАСОМ
ПРОДОЛЬНОЕ РАСПОЛОЖЕНИЕ ПОПЕРЕЧНОЕ РАСПОЛОЖЕНИЕ
РИГЕЛЕЙ РИГЕЛЕЙ
Рис. 5.
КАРКАСНЫЕ ЗДАНИЯ
С ПРОДОЛЬНЫМ РАСПОЛОЖЕНИЕМ РИГЕЛЕЙ
|
С ПОПЕРЕЧНЫМ РАСПОЛОЖЕНИЕМ РИГЕЛЕЙ
|
ПЕРЕКРЕСТНОЕ РАСПОЛОЖЕНИЕ РИГЕЛЕЙ
|
БЕЗРИГЕЛЬНАЯ СИСТЕМА
|
Рис. 6.