| Скачать .docx |
Курсовая работа: Проектирование трехэтажного кирпичного дома
Содержание
Задание
1. Общая часть
1.1 Район строительства
2. Конструктивная характеристика основных элементов здания
2.1 Фундаменты. Отмостка
2.2 Стены
2.3 Перекрытия и полы
2.4 Перегородки
2.5 Окна и двери
2.6 Крыша и кровля
2.7 Лестницы
2.8 Наружная и внутренняя отделка здания
2.9 Сантехническое и специальное оборудование
3. Теплотехнический расчет наружной стены
6. Список литературы
Приложение
Задание
Район строительства: г. Москва.
Уровень грунтовых вод: 2,1м.
Тип крыши: 4-х скатная.
Количество этажей: 3
Предусмотреть балконы.
Номенклатура квартир: 1-3-3-1.
1. Общая часть
1.1 Район строительства
Проектируемое здание будет строиться в г. Москва, который находится в строительно-климатическом районе IIВ и характеризуется следующими климатическими данными: температура наружного воздуха средняя по месяцам: январь - 9,4˚C, февраль - 8,5˚C, март - 3,6˚C, апрель +4,9˚C, май +12,9˚C, июнь +17,0˚C, июль +19,3˚C, август +17,4˚C, сентябрь +11,7˚C, октябрь +5˚C, ноябрь - 4,6˚C, декабрь - 6,9˚C. Средняя температура наиболее холодных суток
= - 32˚C и наиболее холодной пятидневки
= - 25˚C; зона влажности и наружного климата В
. Средняя скорость ветра в январе месяце составляет 4,9 м/сек.
1.2 Общая характеристика проектируемого здания.
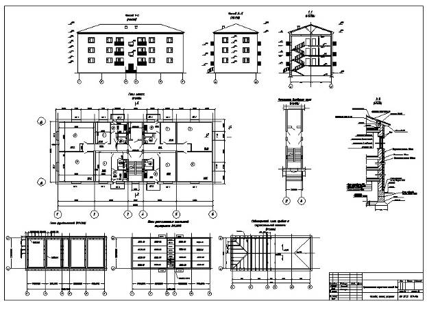
Проектируемое здание - 2 подъездный 3 этажный кирпичный жилой дом на 12 квартир. Класс здания - 2, степень долговечности и огнестойкости - 2, (срок службы не менее 50 лет).
По конструктивной схеме здание бескаркасное, с несущими наружными и внутренними поперечными стенами.
Объемно-планировочное решение - здание имеет прямоугольную форму в плане с размерами в осях: ширина 12м., длина 30,6м., высота этажа 3,0м., высота здания от уровня земли до конька кровли 14,4м.
2. Конструктивная характеристика основных элементов здания
2.1 Фундаменты. Отмостка
Фундаменты под стенами приняты ленточные сборные железобетонные с опорной подушкой шириной 1,2м и толщиной 300мм.
Глубина заложения фундаментов принята по расчету и составляет 1,2 м.
Отмостка предусмотрена по всему периметру здания и решена в виде асфальтированной полосы на щебеночном основании шириной 100см, с уклоном от стены равным 2%.
2.2 Стены
Наружные стены предусмотрены из пустотелого рядового керамического кирпича с утеплителем и принята по расчету толщиной 590 мм. Внутренние стены выполнены из керамического кирпича толщиной 380мм.
Кладка ведется по многорядной системе привязки швов и кирпича марки 150 на цементно-песчаном растворе марки 100
Гидроизоляция стены предусмотрена из двух слоёв рубероида на битумной мастике уложенных по верхнему обрезу фундамента.
Фундаментные блоки с наружной стороны обмазываются горячим битумом за два раза.
2.3 Перекрытия и полы
Несущая часть перекрытий принята в виде сборочных ж/б панелей с круглыми пустотами толщиной 220мм опирающихся на наружные и внутренние поперечные несущие стены.
Стыки между плитами заделываются цементным раствором марки 150.
Пространственная жесткость здания обеспечивается за счет связи плит между собой и с несущими стенами при помощи стальных анкеров.
В проекте приняты три типа полов: в жилых комнатах - дощатые, в кухнях и в прихожей из линолеума, в санузлах из керамических плиток.
Конструкции полов приведены в таблице:
| Конструкция пола |
Тип покрытия, материал |
Толщина слоев |
|
|
Доски шпунтовочные Лаги 80 х 40 через 500 Прокладка из ДВП Плита перекрытия |
29 40 11 220 |
|
|
Керамическая плитка на цементно-песчаном растворе Гидроизоляция на битумной мастике Бетонная стяжка Плита перекрытия |
15 5 40 220 |
2.4 Перегородки
Перегородки - из легкого бетона высотой на комнату. Межкомнатные перегородки 80 мм, межквартирные перегородки - двухслойные с воздушной прослойкой толщиной 240 мм.
Перегородки опираются на плиты перекрытия через слой цементного раствора и крепятся к стенам и перекрытиям ершами и скобами.
Санузлы располагаются в отдельных сантехнических кабинах совмещенного типа.
2.5 Окна и двери
Окна приняты с раздельными деревянными пролётами, остекление двойное.
Двери приняты одно - и двухпольные, наружные - деревянные, внутренние с щитовыми дверными полотнами, глухие.
Оконные створки и деревянные полотна крепятся соответствующими коробками при помощи навесов. Крепление оконных и дверных блоков в проёмах осуществляется при помощи ершей или гвоздей на двух уровнях с каждой стороны проёма.
2.6 Крыша и кровля
Крыша - деревянная стропильная система. Кровля здания четырёх скатная, уклон кровли равен i=20. Толщина утеплителя принята 200мм.
2.7 Лестницы
Основные лестницы приняты сборные ж/б, двухмаршевые, состоящие из целых маршей с полнотелыми ступенями и цельных площадок.
Лестничные площадки опираются на боковые стены лестничной клетки, лестничные марши - на выступы площадок и крепится к ним. Ограждение лестницы высотой 0,9 м предусмотрено в виде стальной решётки с деревянными поручнями, стойки ограждения крепятся к стальным закладным деталям сбоку марша.
Вход на чердак предусмотрен с площадки третьего этажа по стальной стремянке шириной 0,6 м через люк размером 0,6 х 0,8 м, закрытый огнестойкой крышкой.
Вход с улицы на лестничную клетку решен в виде крыльца. Крыльцо запроектировано в виде ж/б плиты опирающейся на бетонную подготовку.
2.8 Наружная и внутренняя отделка здания
Наружная отделка из отборного керамического кирпича под расшивку, цоколь отделывается терразитовой штукатуркой. Оконные перелёты и дверные полотна покрываются масленой краской, подоконные сливы покрываются кровельной сталью, ограждения балконов отделывается асбестоцементными экранами.
Внутренняя отделка: стены и перегородки жилых комнат и передней оклеиваются обоями. Стены кухонь, санузлов и ванных комнат покрываются масленой краской на высоту 1,8м и местами облицовываются керамической плиткой. Стены лестничных клеток покрываются масленой краской за два раза, потолки белятся.
2.9 Сантехническое и специальное оборудование
Водопровод - хозяйственно питьевой от городской сети.
Канализация - хозяйственно-фекальная в городскую сеть, с установкой унитазов, ванн, умывальников, раковин и моек.
Отопление центральное, водяное, система однотрубная. Нагревательные приборы - чугунные радиаторы.
Вентиляция естественная.
Газоснабжение от городской сети с установкой кухонных газовых плит и водонагревателей.
Электроснабжение от городской сети с установкой скрытой проводки (II категории).
Электроосвещение лампами накаливания от сети 220/380В без установки кухонных электроплит.
Устройство связи - радиотрансляция, коллективные телеантенны, телефонные вводы.
3. Теплотехнический расчет наружной стены
Исходные данные:
· Место строительства - г. Москва.
· Температура наиболее холодной пятидневки обеспеченностью 0,92: ![]()
· Температура наиболее холодных суток обеспеченностью 0,92: ![]()
· Период со средней суточной температурой воздуха ![]()
· Средняя температура периода со средней суточной температурой воздуха ![]()
1. Градусосутки отопительного периода:
![]()
- расчетная температура внутреннего воздуха, применяемого согласно ГОСТ 12.1.005-08
![]()
- средняя температура периода со средней суточной температурой воздуха
(СНиП 23.01-99)
![]()
- продолжительность периода со средней суточной температурой воздуха
(СНиП 23.01-99)
![]()
![]()
2. Требуемое сопротивление теплопередаче, исходя из санитарно - гигиенических условий и условий комфортности :
![]()
n - коэффициент, принимаемый в зависимости от положения наружной поверхности ограждающей конструкции к наружному воздуху (СНиП II-3-79*, т.3)
n=1
![]()
- расчетная зимняя температура наружного воздуха, равная средней температуре наиболее холодной пятидневки обеспеченностью 0,92
![]()
- нормативный температурный перепад между температурой внутреннего воздуха и температурой внутренней поверхности ограждающей конструкции (т.2, СНиП II-3-79*)
![]()
- коэффициент теплоотдачи внутренней поверхности ограждающих конструкций (т.4, СНиП II-3-79*)
![]()
![]()
Однако, исходя из рекомендаций СНиП II-3-79*, сопротивление теплопередаче ограждающих конструкций принимаем из таб.1б, исходя из условий энергосбережения.
Для жилых помещений с градусосутками отопительного периода
, приведенное сопротивление теплопередаче ограждающих конструкций (для стен) будет равно (после интерполяции):
![]()
Все дальнейшие расчеты ведем по наименьшему значению
, т.е. по
![]()
Назначаем конструкцию наружной стены:

Состав ограждающей конструкции.
| Наименования слоя |
|
|
|
|
|
| 1. Цементно-песчаный р-р. |
1800 |
0,015 |
0,93 |
11,09 |
0,016 |
| 2. Кирпичная кладка |
1800 |
0,380 |
0,81 |
10,12 |
0,469 |
| 3. Утеплитель - пенополиуретан (ТУ 67-87-75) |
40 |
|
0,04 |
0,42 |
|
| 4. Кирпичная кладка |
1800 |
0,130 |
0,81 |
10,12 |
0,16 |
| 5. Цементно-песчаный р-р. |
1800 |
0,030 |
0,93 |
11,09 |
0,032 |
3. Сопротивление теплопередаче ограждающей конструкции равно:
![]()
- коэффициент теплоотдачи внутренней поверхности ограждающей поверхности:
![]()
-термическое сопротивление ограждающей конструкции:
![]()
- коэффициент теплоотдачи (для зимних условий) наружной поверхности (т.6. СНиП II-3-79*)
![]()
Термическое сопротивление слоя многослойной ограждающей конструкции:
![]()
- толщина слоя, м
- расчетный коэффициент теплопроводности материала соя, принимаемый по прил.3 СНиП II-3-79*
Таким оброзом, термическое сопротивление конструкции равно:
![]()
Термическое сопротивление конструкций как сумма термических сопротивлений слоев:
![]()
Этим выражение необходимо найти неизвестное значение
(толщина утеплителя):
![]()
![]()
![]()
Тогда общая толщина стены:
![]()
Без учета штукатурки ![]()
4. Определение глубины заложения ленточных фундаментов.
Исходные данные:
,
, здание имеет подвал полы устраиваются по утепленному цокольному перекрытию
, т.к. грунты в основание фундамента неоднородного сложения
определяется как средневзвешенное
, УГВ![]()
Сумма абсолютных значений среднемесячных отрицательных температур воздуха:
![]()
Нормативная глубина сезонного промерзания крупных песков:
![]()
Расчетная глубина промерзания грунта у фундамента:
![]()
Расстояние от промерзшего грунта до грунтовых вод:
![]()
С учетом того, что грунты в основании представлены глинами и суглинками глубина заложения фундамента должно быть не менее расчетной глубины промерзания грунта. Проектом принимается граница заложения фундамента 1,2 м.
5. Расчет лестницы.
Исходные данные: лестница двухмаршевая, высота этажа
, ширина марша
, уклон i=1: 2, размеры ступеней: высота подступёнка
, ширина проступи b-300мм.
Решение:
1.
Высота лестничного марша: ![]()
2.
Число подступёнков в марше: ![]()
3.
Число подступней в марше: ![]()
4. Длина горизонтальной проекции марша: d=9*300=2700мм
5. Ширина лестничной клетки: В = а+400+а=1200+300+1200=2,7м.
6.
Длина лестничной клетки:
, где С1=1,3м - ширина этажей, С2=1,3 - ширина промежуточной площадки.
6. Список литературы
1. И.А. Шерешевский "Конструирование гражданских зданий" Стройиздат, 1981г.
2. СНиП II-3-79* "Строительная теплотехника". М., 1999г.
3. СНиП 2.01.99г. "Строительная климатология геофизика"
4. СНиП 2.02.83г. "Основы зданий и сооружений"
5. ГОСТ 21.103-73 "Общие требования к текстовым документам"
6. ГОСТ 21.101-79 "Основные требования к чертежам".
Приложение


