| Скачать .docx |
Курсовая работа: Проектирование сборных железобетонных плит перекрытия, ригелей и колонн многоэтажного производственного здания
1. Исходные данные
1. Плита - ребристая;
2. Ригель сечением - прямоугольным;
3. Пролет - средний;
4. Размер ячейки вдоль -5,9 м, поперек – 6,3 м здания;
5. Количество этажей – 4;
6. Высота этажа – 4,2 м;
7. Нормативная нагрузка от массы:
- кровли – 1,3 кНм2 ;
- пола – 1,5 кНм2 ;
8. Толщина пола – 11 см;
9. Район проектирования – II;
10. Нормативная временная нагрузка:
- длительная – 2,8 кНм2 ;
- кратковременная – 3,5 кНм2 ;
- полная – 6,3 кНм2 .
2. Разработка конструктивной схемы сборного перекрытия

Рис. 1 План расположения ригелей и панелей
Длина здания в осях равна произведению продольного размера ячейки на число ячеек вдоль здания.
Ширина здания в осях равна произведению поперечного размера ячейки на число ячеек поперёк здания.
Привязку стен здания и их толщину принимаю 200 и 640 мм (рис. 1).
Для обеспечения жёсткости здания в поперечном направлении и во избежание утяжеления надоконных перемычек принимаю поперечное расположение ригелей по осям простенков и продольное - панелей перекрытия. Номинальная ширина каждой панели принимается одинаковой для всего перекрытия в пределах 1,3…1,7 м, и вычисляется по формуле:
![]()

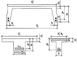
Рис. 2 Поперечное сечение панелей перекрытия
Принимаю b н =1,575 м, hп =350 мм, tп =65 мм . (рис. 2).
3. Проектирование панели сборного перекрытия
3.1 Конструктивная схема

Рис. 3 Ригель прямоугольного сечения, ребристая панель
Ребристая панель устанавливается на прямоугольные ригели поверху и закрепляется сваркой закладных деталей.
![]()
![]()
3.2 Расчетная схема и нагрузки

Рис. 4 Расчетная схема панели
Поскольку возможен свободный поворот опорных сечений, расчётная схема панели представляет собой статически определимую однопролётную балку, загруженную равномерно распределённой нагрузкой, в состав которой входят постоянная, включая вес пола и собственный вес панели, и временная.
Нормативная нагрузка (кН/м2 ) от собственной массы панели определяется, как:
, где
ρ = 2500 кг/м3 — плотность железобетона;
Аполн — площадь поперечного сечения панели по номинальным размерам, м2 ;
![]()
Апуст — суммарная площадь пустот в пределах габарита сечения, м2 .

Подсчёт нормативных и расчётных нагрузок с подразделением на длительно и кратковременно действующие выполняется в табличной форме.
Таблица 1. Нормативные и расчётные нагрузки на панель перекрытия
| Наименование нагрузки | На 1м2 панели | На 1 погонный метр панели | |||
| нормативная, кН/м2 | коэффициент надёжности | расчётная, кН/м2 | нормативная, кН/м2 | расчётная, кН/м2 | |
| 1. Постоянная (длительно действующая) | |||||
| а) От собственного веса панели | 2,54 | 1,1 | 2,79 | 4,0 | 4,39 |
| б) От собственного веса конструкции пола | 1,5 | 1,3 | 1,95 | 2,36 | 3,07 |
| Итого | 4,74 | 6,36 | 7, 4 6 | ||
| 2. Временная нагрузка | |||||
| в) Длительно действующая часть нагрузки | 2,8 | 1,2 | 3,36 | 4,41 | 5,29 |
| г) Кратковременно действующая часть нагрузки | 3,5 | 1,2 | 4,2 | 5,51 | 6,61 |
| Итого | 7,56 | 9,92 | 11,9 | ||
| Всего | 12,3 | 16,28 | 19,36 | ||
| В том числе длительная нормативная | 10,77 | ||||
3.3 Статический расчет
Для выполнения расчётов по первой и второй группам предельных состояний нужно вычислить следующие усилия:
— изгибающий момент (кН·м) от полной расчётной нагрузки:
![]()
— изгибающий момент (кН·м) от полной нормативной нагрузки:
![]()
— изгибающий момент (кН·м) от нормальной длительно действующей нагрузки:
![]()
![]()
— поперечная сила (кН) от полной расчётной нагрузки:
![]()
3.4 Расчет по I группе предельных состояний
3.4.1 Исходные данные
Панель перекрытия запроектирована из тяжёлого бетона класса В25 , подверженного тепловой обработке при атмосферном давлении.
В зависимости от принятого класса бетона по табл. 12, 13, 18 [1] определяю характеристики бетона, которые свожу в таблицу.
Таблица 2. Характеристика бетона
| Класс бетона на сжатие | Коэффициент условий работы бетона (табл. 15 [2]) γв2 | Расчётные сопротивления для предельных состояний. МПа | Начальный модуль упругости, МПа Еb | |||
| Первой группы | Второй группы | |||||
| Rb | Rbt | Rb, ser | Rbt, ser | |||
| В25 | 1 | 14,5 | 1,05 | 18,5 | 1,6 | 27·103 |
| 0,9 | 13,05 | 0,95 | — | — | ||
Примечание: при расчёте по первой группе предельных состояний
Rb и Rbt следует принимать с коэффициентом γb 2 =0.9
Класс арматуры принимаю в соответствии с указаниями п. 2.19 а, б, в и п. 2.24[1]. В зависимости от класса арматуры по таблицам 19, 20, 22, 23, 29 [1] определяю характеристики арматуры и заношу в таблицу.
Таблица 3. Характеристики арматуры
| Класс арматуры, диаметры | Расчётные сопротивления для предельных состояний. МПа | Модуль упругости арматуры, МПа Es | |||
| Первой группы | Второй группы | ||||
| Rs | Rsw | Rsc | Rs, ser | ||
| А – I | 225 | 175 | 225 | 235 | 210·103 |
| А – III (10…40 мм) | 365 | 290 | 365 | 390 | 200·103 |
| Вр – I (4 мм) | 365 | 265 | 365 | — | 170·103 |
При расчёте прочности нормальных и наклонных сечений поперечное сечение панели приводится к тавровому профилю.

Рис. 5 К расчету прочности нормальных сечений
Вводимая в расчёт ширина полки приведённого сечения
для ребристых панелей не должна превышать:
а) ширину панели поверху
;
б)
,
где
;
в) 12·
+b - для сечений при
(п. 3.16 [1]).
Принимаю
.
Рабочая высота (см) сечения панели:
, где
а — расстояние от наиболее растянутого края сечения до центра тяжести растянутой арматуры панели, принимаю в соответствии с назначенной толщиной защитного слоя по п. 5.5 [1], для ребристых панелей (расположение арматуры в два ряда по высоте) – 50…60 мм.
![]()
3.4.2 Расчет прочности нормальных сечений
Расчёт прочности нормальных сечений производится в соответствии с п. 3.16 [1] (рис. 5). Предполагаю, что продольной сжатой арматуры по расчёту не требуется.
Требуемую площадь сечения растянутой арматуры определяю в зависимости от положения нейтральной оси

При соблюдении условия нейтральная линия располагается в полке.
Параметр α0 определяется с учётом свесов полки:

По таблице 7 [2] определяю коэффициент ν
= 0,976
и подсчитываю требуемую площадь растянутой арматуры (см2
)
![]()
По таблице 8 [2] принимаю 4Ø16 А– III A S =8,04 см2
Размещение принятой арматуры должно производиться в соответствии с п. 5.12; 5.18 [1]
После размещения принятой арматуры провожу корректировку значений а и h0 :
a = 20+16+16/2 =44 мм
h 0 = h – a = 350 – 44 = 306 мм = 30,6 см
Проверка прочности нормального сечения
Для проверки прочности определяю положение нейтральной оси из условия:

При соблюдении условия нейтральная ось проходит в полке . Тогда высота сжатой зоны (см) вычисляется по формуле:

Несущая способность сечения (Н·см):
![]()
Несущая способность считается достаточной, т. к. ![]()
3.4.3 Расчет прочности наклонных сечений на действие поперечных сил
Необходимость расчёта определяется условием (п. 3.32 [1])
![]()
Для тяжёлого бетона φb 3 =0,6 . Правая часть неравенства минимальная несущая способность бетонного сечения на восприятие поперечной силы.

Условие не выполняется. Поперечная арматура определяется расчетом.

Рис. 6 Конструктивные требования к расположению поперечных стержней в ребрах панелей и в балках

Диаметр поперечных стержней принимаю из условия свариваемости их с продольной арматурой.
Таблица 4. Соотношения диаметров свариваемых стержней при контактной точечной сварке
Диаметры стержней одного направления, мм |
18;20 |
| Наибольшие допустимые диаметры стержней другого направления, мм | 5 |
Для поперечных стержней, устанавливаемых по расчёту, должно удовлетворяться условие:
, где
qsw — погонное усилие в поперечных стержнях в пределах наклонного сечения (Н/см);
— площадь сечения поперечной арматуры в см2
ASW 1 =0,196 см2 — площадь сечения одного стержня поперечной арматуры (1 Ø 5 А– III );
n — число хомутов в поперечном сечении; зависит от количества каркасов в панели.
n =2 , т. к. два продольных ребра.
![]()

φf
— коэффициент, учитывающий влияние сжатых полок в тавровом сечении, принимается не более 0,5
.
Только в этой формуле
.
![]()
- условие выполняется.
Принимаю Ø5 Вр– I шаг 150 мм.

Рис. 7 К расчету прочности наклонного сечения
Длина проекции опасного наклонного сечения (см) на продольную ось элемента (рис7):

Поперечное усилие (Н), воспринимаемое бетоном:
, где
С=С0 =66,3 см=70 см – округленное до целого числа шагов хомутов (в большую сторону);
φb 2 =2 для тяжёлого бетона.
![]()
Поперечное усилие, воспринимаемое хомутами, пересечёнными наклонной трещиной, определяется по формуле:
![]()
Проверка прочности наклонного сечения производится из условия:

Условие прочности соблюдается.
Проверка прочности наклонной полосы между трещинами на действие сжимающих напряжений производится из условия:
![]()
Здесь
, но не более 1,3.
![]()
![]()
![]()
- условие соблюдается.
3.4.4 Расчет полки ребристой панели
Полка панели считается защемленной в продольных рёбрах и свободно опёртой на поперечные торцовые рёбра. Поскольку отношение длинной стороны полки к короткой больше двух, то полка панели рассчитывается в направлении короткой стороны как балка шириной b=1 м с защемленными опорами (рис. 8).

Рис. 8 К расчету полки ребристой панели
Расчётным пролётом полки является расстояние в свету между продольными рёбрами панели.
Нагрузкой на полку является собственный вес полки, конструкции пола и временная нагрузка на междуэтажное перекрытие. Расчётная нагрузка на полку (кН/м):
, где
ρ =2500 кг/м3
q/
и
— полная нагрузка и нагрузка от собственного веса панели в кН/м2
h/ f — толщина полки панели в метрах
![]()
Расчётный изгибающий момент в полке (кН·м):
![]()
Площадь сечения рабочей арматуры полки панели определяю как для прямоугольного сечения высотой h/ f и шириной b=100 см.
Рабочая высота сечения (см. рис. 8):
, где
а — расстояние от центра тяжести рабочей арматуры до растянутой грани полки; принимается равным 1,5 см (п. 5.6 [1]).
![]()
Полка панели армируется сеткой с поперечной арматурой класса А– III . Продольная распределительная арматура диаметром 4 мм из арматуры класса Вр – I , шаг 250 мм.
Для определения необходимой площади арматуры, укладываемой вдоль расчётного пролёта полки, подсчитываю параметр α0 :
![]()
По таблице 7 [2] нахожу значение относительного плеча внутренней пары сил ν = 0,966
Площадь растянутой арматуры (см2 ) на 1 м длинной стороны полки:
![]()
Шаг и диаметр рабочей арматуры подбираю по требуемой площади сечения арматуры AS 1 по сортаменту (табл. 8 [2]). Принимаю Ø6 А– III с A S =1,42 см2 . Шаг S рабочей арматуры принимаю равным 200 мм (п. 5.20 [1]).
Площадь сечения арматуры:
![]()
AS
0
— площадь сечения одного стержня в см2
![]()
S — шаг стержней 200 мм.
3.4.5 Армирование панелей
Ребристая панель армируется продольными сварными каркасами, расположенными в рёбрах и сварной сеткой в полке. Продольные арматурные каркасы образуются из рабочих (нижних) стержней класса А–III, определённых расчётом прочности нормальных сечений панели, и верхних (монтажных) стержней диаметром 10 мм, объединенных поперечными стержнями, шаг и диаметр которых получены расчётом прочности наклонных сечений или определены конструктивными требованиями (см. рис. 6).
Сетка помещается в нижней части полки и отгибается в верхнюю зону вблизи ребра с обеспечением надлежащей анкеровки поперечных стержней (рис. 9).
Петли для подъёма закладываются в продольных рёбрах. Петли должны быть надёжно заанкерены.

Рис. 9 Анкеровка рабочей арматуры
Для монтажных петель применяется арматура класса А–I (п. 1.13 [1]). Диаметр петель назначается по требуемой площади поперечного сечения (см2 ) одной петли, определяемой при условии распределения веса плиты на три петли с учётом коэффициента динамичности 1,4 (п. 1,13 [1]) и коэффициента, учитывающего отгиб петли 1,5.
, где
— нормативная нагрузка от собственного веса панели в кН/м2
— конструктивная ширина и длина панели в м.
RS — расчётное сопротивление арматуры класса А–I в МПа.
![]()
Принимаю 4Ø10 А – I петли с A S = 0,785 см2 каждая.
3.5 Расчет панелей по предельным состояниям II группы (по раскрытию трещин и деформациям)
К трещиностойкости панелей перекрытия предъявляются требования 3–й категории (п. 1.16, табл. 2;3 [1]), согласно которым предельно-допустимая ширина продолжительного раскрытия трещин [ a crc 2 ] =0,3 мм.
Предельно-допустимый прогиб панели определяю согласно п. 1,20 [1]
[ f ] = 2,5 см
Определение ширины раскрытия трещин и прогибов производится от нагрузки с коэффициентом надёжности по нагрузке γ f = 1.
3.5.1 Проверка трещиностойкости
Расчёт ширины раскрытия трещин не производится при соблюдении условия (п. 4.5 [1]):
Mr . < Mcrc , где
Mr. — момент внешних сил относительно оси, проходящей через ядровую точку, наиболее удаленную от растянутой грани сечения. Для изгибаемого элемента он равен изгибающему моменту с коэффициентом надёжности по нагрузке γ f = 1 , то есть, равен Мн =68,46·105 Нсм (см. п. 3.3 ПЗ);
Mcrc — момент, воспринимаемый сечением, нормальным к продольной оси элемента, при образовании трещин и определяемый по формуле:
Mcrc = Rbt , ser · Wpl · 100 – Mrp , где
Mrp — момент усилия Р относительно той же оси, что и для определения Mr .
Для изгибаемых элементов без предварительного напряжения усилие Р рассматриваю как внешнюю растягивающую силу, определяемую по формуле в Н:
P = ( σs · AS + σ / s · A / S ) ·100,
σs и σ/ s — напряжения в нижней и верхней продольной арматуре, численно равные значениям потерь предварительного напряжения от усадки бетона по поз. 8 таб. 5 [1] как для арматуры, натягиваемой на упоры. Для бетона класса В–25 σs = σ / s = 35 (МПа).
Здесь и далее предполагается отсутствие сжатой (верхней) арматуры, то есть A / S = 0.
Р = (35 ·8,04) · 100 =28140 Н
Значение Mrp определяю (Н ·см) по формуле:
Mrp = P · (eop + r), где
еор — эксцентриситет приложения силы Р относительно центра тяжести приведённого сечения (см):
![]()
r — расстояние от центра тяжести приведённого сечения до верхней ядровой точки (см):
![]()
Для определения геометрических характеристик сечение панели должно быть приведено к эквивалентному по моменту инерции — к тавровому.

α = ES / Eb = 200 ·103 / 27 ·103 = 7,4
Ared = b/ f · · h/ f · + (h – h/ f) · b + α · AS = 151 ·6 + (35 – 6) · 20 + 7,4 · 8,04 =1545,5 см2
Sred = b/ f · · h/ f · (h – 0,5 · h/ f ) + 0,5 · b · (h - h/ f )2 + α · AS · а = 151 · 6 · (35 – 0,5 · 6) + 0,5 ·20 ·
(35 – 6)2 + 7,4 · 8,04 · 4,4 =37663,78 см 3
y = h – x = Sred / Ared = 37663,78 / 1545,5 = 24,37 см
х = h – у = 35 – 24,37 = 10,63 см
![]()

Wred = Jred / y = 176339,7 / 24,37 = 7235,9 см 3
Wpl = γ · Wred = 1,75 ·7235,9 = 12662,8 см 3
γ — коэффициент, учитывающий пластические свойства бетона и зависит от вида эквивалентного сечения; принимается для таврового сечения 1,75
r = 7235,9 /1545,5 = 4,68 см
Mrp = 28140 · (19,97 + 4,68) =693651 Н·см
Mcrc =1,6 ·12662,8 ·100 – 693651 =13,3 · 105 Н·см
Mr =68,46·105 Нсм >Mcrc = 13,3 · 105 Н·см
Условие не соблюдается. Необходимо провести расчёт ширины раскрытия трещин, нормальных к продольной оси панели.
Проверяется ширина раскрытия трещин (мм) при продолжительном действии длительных нагрузок (п. 4.14 [1]):
, где
δ — коэффициент, принимаемый равным 1 для изгибаемых элементов;
η — коэффициент, принимаемый равным 1 для стержневой арматуры периодического профиля;
φ1 = 1,60 – 15 · μ при продолжительном действии нагрузок;
— коэффициент армирования сечения, принимаемый равным отношению площади сечения бетона (при рабочей высоте h0
и без учёта сжатых свесов полок), но не более 0,02
![]()
φ1 = 1,6 – 15 · 0,013 =1,405
σas — напряжение в стержнях крайнего ряда продольной рабочей арматуры;
ES — модуль упругости арматуры;
d — диаметр арматуры в мм.
Для определения σas необходимо подсчитать параметры сечения после образования трещин (п. 4.28 [1]):
![]()
М — изгибающий момент от постоянных и временных длительных нагрузок при коэффициенте надёжности по нагрузке γf = 1 (Н·см), т.е. Мн дл = 45,29·105 Нсм (см. п. 3.3 ПЗ)

ν — коэффициент, характеризующий упругопластическое состояние бетона сжатой зоны; при длительном действии нагрузки ν = 0,15.
Относительная высота сжатой зоны бетона сечения с трещиной:

β = 1,8 для тяжёлого бетона;
μ — коэффициент армирования
![]()

Высота сжатой зоны:
x = ξ · h 0 = 0,103 · 30,6 =3,15 см
При x = 3,15 см < h/ f =6 см, то сечение рассматривается, как прямоугольное с шириной b = b/ f = 151 см вторично определяются μ, δ, φf λ, ξ.
![]()


![]()
Напряжение (МПа) в растянутой арматуре в сечении с трещиной:
![]()
Находим
- условие удовлетворяется.
3.5.2 Проверка жесткости
Прогиб панели (см) определяется по формуле:
, где
к = 5 / 48 — для равномерно загруженной свободно опёртой балки;
1 / r — величина кривизны (1 / см);
l0 — расчётный пролёт панели в см.
Величина прогиба ограничивается эстетическими требованиями, поэтому расчёт прогибов производится на длительное действие постоянных и длительных нагрузок (п. 1.20 [1]).
, где
М — изгибающий момент от постоянных и длительных нагрузок при γf = 1, т.е. Мн дл = 45,29·105 Нсм (см п. 3.3 ПЗ).
z, φf , ζ — параметры сечения с трещиной в растянутой зоне, определённые (в п. 3.5.1 ПЗ) при действии момента от постоянных и длительных нагрузок при γ f =1; ν = 0.15;
Z = 29,09 см; φ f =0; ξ = 0,099
Ψb = 0,9 — коэффициент, учитывающий неравномерность распределения деформаций крайнего сжатого волокна бетона по длине участка с трещинами (п. 4.27 [1]);
ΨS — коэффициент, учитывающий работу растянутого бетона на участке с трещинами:
Ψ S = 1,25 – φ ls · φm ≤ 1
Здесь φ ls =0,8 при длительном действии нагрузок;

Ψ S = 1,25 – 0,8· 0,387 = 0,94
![]()
- условие удовлетворяется.
Исходные данные для расчёта плиты по программе RDT
![]()
![]()
![]()
Программа РДТ2 результаты счета:
При действии постоянных и длительных нагрузок:
Прогиб F= 2.58
Жесткость: достаточна -- резерв 12.76 процентов
Ширина нормальных трещин ACRC2=.143 мм
Трещиностойкость: достаточна -- резерв 52.24 процентов
Момент трещинообразования MCRC= 97347.05 кгс*см
При действии постоянных, длит. и кратковрем. нагрузок:
Прогиб F 3.45 см
Жесткость: не достаточна -- дефицит 14.90 процентов
Ширина нормальных трещин ACRC1=.189 мм
Трещиностойкость: достаточна -- резерв 52.66 процентов
Момент трещинообразования MCRC= 97347.05 кгс*см
4. Проектирование ригеля
4.1 Конструктивная схема ригеля
Для повышения жёсткости каркасов, экономии материалов и уменьшение конструктивной высоты перекрытия ригели рекомендуется проектировать неразрезными. Он состоит из отдельных сборных железобетонных элементов, объединённых в неразрезную систему при монтаже.

Рис. 10 Конструктивные параметры сечения ригеля
Ориентировочная высота ригеля может быть вычислена по формуле:
, где
l2 — расстояние между разбивочными осями поперёк здания, см;
q / = 12,3 кН / м2 — расчётная нагрузка на 1 м2 панели, кН/м2 (табл. 1 ПЗ)
l1 — расстояние между разбивочными осями вдоль здания, м.

Высоту ригеля принимаем кратной 5 см.
4.2 Расчетная схема ригеля и нагрузки
Расчётный пролёт среднего ригеля - расстояние между гранями колонн, м:
l о ср = l 2 - bk
bk – размер сечения колонны (ориентировочно принимаю 0,3 м).
l о ср = 6,3 – 0,3 = 6,0 м
Расчётная постоянная нагрузка на ригель, кН/м, определяется путём умножения постоянной нагрузки на 1 м2 , подсчитанный при расчёте панели, на ширину грузовой площади, равной номинальной длине панели, с учётом веса 1 п.м. ригеля принятого сечения:
, где
Ариг – площадь поперечного сечения ригеля, м2
Ариг = b p · hp + 0,0675
bp ≈ (0,3-0,4) hp ≥ 200
bp =(0,3-0,4) ·70=30 см=0,3 м
Ариг =0,3 ·0,7 + 0,0675 = 0,2775 м2
γ f – коэффициент надёжности по нагрузке, принимается равным 1,1;
- расчётная нагрузка от собственного веса панелей и веса пола;
lпан –номинальная длина панели, при опирании панели поверху ригеля l пан = l 1 = 5,9 м
![]()
Расчётная временная нагрузка.
![]()
где P ’= 7,56 кН /м2 – временная нагрузка, кН/м2 ; (табл. 1 ПЗ)
l1 – длина, м.
Полная нагрузка на ригель будет равна:
q = qp + P = 35,6 + 44,6 =80,2 кН /м2
4.3 Статический расчет
Изгибающие моменты в сечениях ригеля определяются с учётом перераспределения усилий. Подсчёт ординат огибающей эпюры производится по формуле:
Mi = βi ∙ q ∙ l 0 2
Мi – изгибающий момент, кН∙м;
βi – коэффициент определённый по данным рис. 3 [2]
l0 –расчётный пролёт среднего ригелей, м.
M + 6 = β 6 ∙ q · l 0 2 = 0,018 80,2 · 6 2 = 51,97 кН · м
M + 7 = β 7 ∙ q · l 0 2 = 0,058 ·80,2 ·6 2 = 167,46 кН · м
M + max = β max ∙ q · l 0 2 = 0,0625·80,2 ·6 2 = 180,45 кН · м
M – 5 = β 5 ∙ q · l 0 2 = -0,091 ·80,2 ·6 2 = -262,74 кН · м
M – 6 = β 6 ∙ q · l 0 2 = -0,041 ·80,2 ·6 2 = -118,38 кН · м
M – 7 = β 7 ∙ q · l 0 2 = -0,014 ·80,2 ·6 2 = -40,42 кН · м
4.4 Расчет по предельным состояниям первой группы
4.4.1 Исходные данные
Для ригелей рекомендуется: применять бетоны классов В20-В30, рабочую арматуру - из арматурной стали класса А-III, поперечную – из арматурной стали классов А-III или А-II.
4.4.2 Расчет прочности нормальных сечений
По максимальному значению изгибающего момента уточняется размер поперечного сечения ригеля. Ввиду определения изгибающих моментов с учётом образования пластических шарниров значения коэффициентов ξ и α0 ограничиваются соответственно величинами 0,25 и 0,289 в опорном сечении.
По принятым значениям параметров сечения ригеля проверяется условие:
![]()
Полезная (рабочая) высота сечения ригеля, см. h 0 = h – a = 70 – 5= 65 см
h = 70 см – принятая высота сечения, см;
b = 30 см – ширина сечения ригеля, см;
а – 5 см при расположении арматуры в два ряда;
а – 3 см при расположении арматуры в один ряд;
М – наибольший по абсолютной величине опорный изгибающий момент, Н см.
![]()
Принимаем:
h = 60 см – принятая высота сечения, см;
b = 25 см – ширина сечения ригеля, см;
h 0 = h – a = 60 – 5= 55 см
Подбор требуемого сечения производим в следующем порядке:
· На опоре.
![]()
По табл. 7 [2] определяется относительное плечо внутренней пары сил ν = 0,843
Определяется требуемая площадь сечения продольной арматуры, см2 ;
![]()
По сортаменту [2, табл. 8] подбираем необходимое количество стержней арматуры с площадью As ≥ As 1 и диаметром не менее 12 мм.
Принимаю 3 Ø 28 А– III с Аф s = 18,47 см2
· В пролёте .
![]()
По табл. 7 [2] определяется относительное плечо поперечной силы ν = 0,898
Определяется требуемая площадь сечения продольной арматуры, см2 ;
![]()
По сортаменту [2, табл. 8] подбираем необходимое количество стержней арматуры с площадью As ≥ As 1 и диаметром не менее 12 мм.
Принимаю 4 Ø 18 А– III с Аф s = 10,18 см2
· Монтажная арматура.
![]()
По табл. 7 [2] определяется относительное плечё поперечной силы ν = 0,995
Определяется требуемая площадь сечения продольной арматуры, см2 ;
![]()
По сортаменту [2, табл. 8] подбираем необходимое количество стержней арматуры с площадью As ≥ As 1 и диаметром не менее 12 мм.
Принимаю 2 Ø 20 А– III с Аф s = 6,28 см2
4.4.3 Построение эпюры материалов
Для двухрядной арматуры:
а = 5 см
h 0 = h – a = 60 –5 =55 см
1-1 :
Определение высоты сжатой зоны, см.
![]()
Определяется несущая способность сечения, Н∙см,
М u 1 = Rb ∙ b · х ∙ ( h 0 – 0,5 · x ) ∙ 100 = 13,05 · 25 · 11,39 ·(55 – 0,5 · 11,39) · 100 = 183,22 · 105 кН · м
Определение высоты сжатой зоны, см.
![]()
Определяется несущая способность сечения, Н∙см,
М u 2 = Rb ∙ b · х ∙ ( h 0 – 0,5 · x ) ∙ 100 = 13,05 · 25 · 5,69 ·(55 – 0,5 · 5,69) · 100 96,82 · 105 кН · м
Для однорядной арматуры:
а = 3 см
h 0 = h – a = 60 –3 =57 см
3-3 :
Определение высоты сжатой зоны, см.
![]()
Определяется несущая способность сечения, Н∙см,
М u 3 = Rb ∙ b · х ∙ ( h 0 – 0,5 · x ) ∙ 100 = 13,05 · 25 · 7,03 ·(57 – 0,5 · 7,03) · 100 = 122,67 · 105 кН · м
4-4 :
Определение высоты сжатой зоны, см.
![]()
Определяется несущая способность сечения, Н∙см,
М u 4 = Rb ∙ b · х ∙ ( h 0 – 0,5 · x ) ∙ 100 = 13,05 · 25 · 20,66 ·(57 – 0,5 · 20,66) · 100 = 314,57 · 105 кН · м
5. Проектирование колонны первого этажа
5.1 Конструктивная схема
Колонны многоэтажных промышленных зданий состоят из сборных ж/б элементов длиной, кроме элемента 1-го этажа, равной высоте этажа. Для опирания ригелей перекрытия колонны снабжены консолями. Стыки элементов колонн для удобства работ по соединению устраиваются на расстоянии 500—800 мм выше уровня панелей перекрытия.

5.2 Расчетная схема, нагрузки, усилия
Нагрузка на колонну собирается как сумма опорных давлений на консоли по всем этажам здания и веса самой колонны.
Полное расчётное усилие, кН, в колонне вычисляется по формуле:
, где
1,1 – сумма коэффициентов;
l 2 = 6,3 м – расстояние между разбивочными осями поперёк здания, м;
q = 80,2 кН/ м2 – расчётная полная нагрузка на ригель, кН/м;
P = 44,6 кН – расчётная временная погонная нагрузка на ригель кН/м;
h э = 4,2 м – высота этажа, м;
n э = 4 – количество этажей;
q пола = 1,95 кН/ м2 – расчётная нагрузка от веса пола,кН/м2 [табл. 1 ПЗ];
l 1 = 5,9 м – расстояние между разбивочными осями вдоль здания, м;
q н кр = 1,3 кН/ м2 – нормативная нагрузка от веса кровли,кН/м2 ;
γf кр = 1,3 – коэффициент надёжности по нагрузке для кровли;
q сн = 1,2 кН/ м2 – нормативная снеговая нагрузка, кН/м2 , [3] для IIрайона проектирования;
bk , hk = 0,3 х 0,3 м – размеры сечения колонны
γк f = 1,1 - коэффициент надёжности по нагрузке для собственного веса колонны

Расчетное усилие в колонне от кратковременных нагрузок, кН:
, где
- расчетное значение кратковременной части временной нагрузки [табл. 1 ПЗ]
Расчетное усилие в колонне от длительных нагрузок, кН:
![]()
5.3 Расчет колонны по предельным состояниям I группы
5.3.1 Расчет прочности в эксплуатационной стадии
Порядок расчета:
- Задаемся классом бетона В-25 и классом арматуры А-III;
- Определяем требуемую площадь поперечного сечения колонны из условия гибкости, см2
, где
φ = 0,8 – ориентировочный коэффициент продольного изгиба.
Принимаю площадь поперечного сечения колонны b × h = 35 × 35 см .
Находим lо :
![]()
Расчетное сечение колонн

h = 35 см b = 35 см а = 6 см а’ = 6 см h 0 = h – a = 35 – 6 = 29 см
Фактически, идеально-сжатых железобетонных элементов не существует, поэтому при расчете по прочности на действие сжимающей продольной силы вводят эксцентриситет е0 , приравнивая его к еа (е0 = еа ) – наибольшему из случайных эксцентриситетов.
1. еа = l0 /600 = 391/600 = 0,652 см – искривление при изготовлении;
2. еа = h/30 = 35/30 = 1,17 см – неоднородная плотность бетона, а также смещение каркасов к одной из граней;
3. еа = 1 см – неточность при монтаже.
Принимаем еа max = е0 = 1,17 см.
Под действием внецентренно - приложенной силы N гибкие элементы изгибаются, что приводит к увеличению начального эксцентриситета, поэтому в элементах с гибкостью λ = l0 /i>14 – влияние эксцентриситета е0 учитывается путем умножения е0 на коэффициент η.
Таким образом расстояние от продольной силы до точки приложения равнодействующей в растянутой арматуре определяется по формуле:
![]()
Значение коэффициента η определяется по формуле:
, где
-
условная критическая сила, при которой стержень теряет устойчивость.
-
коэффициент, учитывающий влияние длительного действия нагрузки на прогиб элемента в предельном состоянии.
,
где
β = 1 – коэффициент, учитывающий тип бетона;
- коэффициент, принимаемый равным
;
0,26
Составляем таблицу для определения необходимого количества арматуры методом попыток, с использованием программы RNS.
Таблица 5
| Продольное армирование 4 Ø А–III | Ø16 |
| 1. |
8,04 |
| 2. |
41980200 |
3.
>
1 |
1,05 |
| 4. |
12,73 |
| 5. |
16,27 |
| 6. Дефицит,% | |
| 7. Резерв,% | 1,12% |
Заключением расчета прочности ствола колонны является проверка прочности с подобранной симметричной арматурой, согласно пункту 3.20 СНиПа.
Порядок проверки:
- Определяем
по пункту 3.12
- Определяем из формулы (37)
:
- проводим уточнение величины
из формулы (38,39):
- Находим
- По формуле (36) делаем проверку прочности:
![]()
- прочность обеспечена.
Литература
1. СНиП 2.03.01-84* Бетонные и железобетонные конструкции. М:, 1996 г.
2. Проектирование сборных железобетонных плит перекрытий многоэтажных производственных зданий: Методические указания к курсовому проекту №1 / Сост. В.И. Саунин, В.Г. Тютнева.– Омск; СибАДИ, 2007 г.
3. СНиП 2.01.07–85* Нагрузки и воздействия. М:, 1996 г.
4. Проектирование сборных железобетонных ригелей и колонн многоэтажных производственных зданий: Методические указания к курсовому проекту №1 / Сост. В.И. Саунин, В.Г. Тютнева.– Омск; СибАДИ, 2007 г.
>
1