| Скачать .docx |
Курсовая работа: Проект балочной площадки
Министерство общего и профессионального образования РФ
Кафедра строительных конструкций
Курсовой проект по дисциплине
"Металлические конструкции"
2009 г.
Реферат
В курсовом проекте выбрана схема проектируемой балочной площадки; произведен расчет стального настила; подобраны и проверены балки настила; рассчитана наиболее нагруженная главная балка площадки; определены расчетные усилия и произведена компоновка сечения с наибольшим изгибающим моментом и на расстоянии
от опоры.
Произведена расстановка ребер жесткости и проверена местная устойчивость стенки. Рассчитана опорная часть балки, поясные швы. Произведен расчет монтажного стыка главной балки; наиболее нагруженной колонны; оголовка колонны; базы колонны.
Все расчеты произведены в соответствии с нормативной документацией.
Содержание
Исходные данные
1. Выбор схемы балочной клетки
2. Расчет стального настила
3. Компоновка балочной клетки
4. Определение высоты и размеров главной балки
5. Расчет соединения поясов со стенкой
6. Изменение сечения балки по длине
7. Правка местной и общей устойчивости элементов главной балки
8. Расстановка ребер жесткости
9. Расчет монтажного стыка главной балки
10. Расчет опорной части главной балки
11. Подбор и компоновка сечения сквозной колонны
12. Расчет базы колонны
13. Расчет оголовка колонны
Литература
Исходные данные
1. Шаг колонн в продольном направлении, А = 15 м.
2. Шаг колонн в поперечном направлении, В = 6 м.
3. Габариты площадки в плане, 3А×3В.
4. Отметка верха настила – 11 м.
5. Величина полезной нагрузки, р = 22 кН/м2 .
6. Допустимый относительный прогиб настила 1 /200 .
7. Тип колонны: сквозная.
1. Выбор схемы балочной клетки
Балочная клетка представляет собой систему пересекающихся несущих балок, предназначенных для опирания настила перекрытий. В зависимости от схемы расположения балок балочные клетки подразделяются на 3 типа: упрощенные, нормальные и усложненные. В упрощенной балочной клетке нагрузка от настила передается непосредственно на балки, располагаемые параллельно короткой стороне перекрытия, затем на вертикальные несущие конструкции (стены, стойки). В балочной клетке нормального типа балки настила опираются на главные балки, а те на колонны или другие конструкции. В усложненной балочной клетке балки настила опираются на вспомогательные, которые крепятся к главным балкам.
Толщина настила зависит от полезной нагрузки:
при полезной нагрузке 10 кПа – tн = 6 мм
при полезной нагрузке 10 – 20 кПа – tн = 8 мм
при полезной нагрузке более 20 кПа – tн = 10 мм.
Тип балочной клетки выбирают путем анализа различных вариантов, сравнивая расход металла, технологические требования.
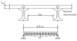
2. Расчет стального настила

t н – толщина настила; f – прогиб; l н – допустимый пролет; а.б.н. – шаг балок настила
При временной распределенной нагрузке 22 кПа принимаем толщину настила 10 мм .
Толщина настила на изгиб с распором можно вычислить приближенно из условия заданного предельного прогиба по формуле:
где ![]()
Е1 – цилиндрическая жесткость настила.
При коэффициенте Пуассона ν = 0,3 (для стали) Е1 определяется по формуле:
![]()

![]()
3. Компоновка балочной клетки
Сравним 2 варианта компоновки балочной клетки:
I вариант.
Пролет главной балки делим на 19 промежутков по 78,9 см.
Определяем вес настила, зная, что 1м2 стального листа толщиной 10 мм весит 78,5 кг.
g = 78,5 кг/м2
= 0,785 кН/м2
Нормативная нагрузка на балку настила:
qn = (pn + gn )·a = (22 + 0,785)·0,789 = 28,88 кН /м = 0,29 кН /см
Расчетная нагрузка на балку настила:
q = (np ·pn +ng ·gn )·a = (1,2·22 + 1,05·0,785)·0,789 = 21,48 кН /м
Расчетный изгибающий момент для балки настила длинной 6 м :
![]()
Требуемый момент сопротивления балки:
![]()
Принимаем двутавр №30 по ГОСТ 8239–72, имеющий: I = 7080 см4 , W =472 , вес g = 36,5 кг/м , ширину полки 13,5 см.
Проверяем на прогиб:
f = (5/384)· ql4 / EI
Принятое сечение балки удовлетворяет условиям прогиба и прочности, т. к. W = 597 см3 > Wтр = 390,5 см3 .
Общую устойчивость балок настила проверять не надо т. к. их сжатые пояса надежно закреплены в горизонтальном направлении приваренным к ним настилом.
Определяем расход металла на 1м2 перекрытия: настил – 78,5 кг/м2 , балки настила g/ a = 42,2/0,789 = 53,5 кг/м2 .
Весь расход металла: 78,5 + 53,5 = 132 кг/м2 = 1,32 кН/м2 .
Рисунок 1 – Схема блочной клетки (нормальный вариант)
II вариант (усложненная компоновка)

Рисунок 2 – Схема блочной клетки (усложненный вариант)
Принимаем настил, как и в I варианте.
Расстояние между балками настила а = 600/8 = 75 см < 78 см.
Пролет балки настила l = 3,75 м.
Нормативная и расчетная нагрузка на нее:
qн = (22 + 0,785)·0,750 = 17,1 кН/м = 0,171 кН/см.
q = (1,2·22 + 1,05·0,785)·0,75 = 20,42 кН/м
Расчетный изгибаемый момент и требуемый момент сопротивления балки
![]()
![]()
Примем I 20 , имеющий: I = 1840 см4 , W = 184 см3 , g = 21 кг/м.
Проверяем только прогиб балки, т. к. W = 184 см3 > Wтр = 145 см3 .
![]()
Принятое сечение удовлетворяет условиям прочности и прогиба.
Определяем нормативную и расчетную нагрузку на вспомогательную балку:
![]()

Определяем расчетный изгибающий момент и требуемый момент сопротивления вспомогательной балки:
![]()
![]()
Принимаем I 55 , имеющий: I = 55150см4 ; W = 2000 см3
ширину и толщину полки
b = 18 см, t = 1,65 см, g = 89,8 кг/м
Т.к. W = 2000см3 > Wтр = 1873 см3 , проверяем балку на прогиб
![]()
Затем проверяем общую устойчивость вспомогательных балок в середине пролета, в сечении с наибольшими нормальными напряжениями. Их сжатый пояс закреплен от поперечных смещений балками настила, которые вместе с приваренным к ним настилом образуют жесткий диск. В этом случае за расчетный пролет следует принимать расстояние между балками настила l0 = 75 см.
Исходя из условий формулы
![]()
в сечение l/2
;
при τ = 0 и с1 = с получаем
![]()
Подставляя значения δ в формулу, получаем:

Поскольку 5,62 > 4,17, принятое сечение удовлетворяет требованиям прочности, устойчивости и прогиба.
Суммарный расход металла
78,5 + 21/0,75 + 89,8/3,75 = 133,455 кг/м2
По расходу материала I вариант выгоднее.
4. Определение высоты и размеров главной балки

Рисунок 3 – Расчетная схема и усилия в главной балке
![]()
![]()
Найдем усилия:
![]()
![]()
![]()
Минимальная высота сечения сварной балки из условия жесткости при f/ l =1/200 должна быть (см. с. 91 (II)):
hmin / l = 1/30 , откуда
hmin = 1500/30 = 50
При расчете по эмпирической формуле толщина стенки составит
tст = 7 + 3·500/1000 = 8,5 мм .
Принимаем таблицу стенки 10 мм (четного размера).
Оптимальная высота балки при tст = 10 мм будет:
![]()
где k = 1,15 – для сварных балок.
Назначаем высоту балки 170 см.
Проверяем принятую толщину стенки из условия действия касательных напряжений:
tст = 3 Q/2 hRs γc = 3·1275000/2·170·13500·1 = 0,8 см < 1 см ,
т.е. условие удовлетворяется.
Проверяем условие, при соблюдении которого не требуется постановка продольных ребер в стенке
![]()
Принятая стенка толщиной 10 мм удовлетворяет прочности на действие касательных напряжений и не требует постановки продольного ребра для обеспечения местной устойчивости.
Подбираем сечение сварной балки:
I = W ( h/2) = 20787·(170/2) = 1766895 см4
Iст = tст · hст 3 /12 = 1·(170 – 2 tn )3 /12 = 1·(170 – 2·2)3 /12 = 381191 см4 –
момент инерции стенки.
где hст = h – 2 tn = 170 – 2·2 = 166 см.
tn = 2 см – принимаемая толщина полки.
Момент инерции полок:
In = I – Iст = 1766895 – 381191 = 1385704 см 4 .
h0 = h – tn = 170 – 2 = 168 см –
расстояние между центрами тяжести полок.
Площадь сечения одной полки
An = 2In /h0 2 = 2·1385704/1682 = 98 см 2 .
Ширинаполкиbn = An /tn = 98/2 = 49 см .
Принимаем сечение полок 500×20 мм.
Проверяем принятую ширину (свес) поясов bn по формуле, исходя из обеспечения их местной устойчивости:

условие удовлетворяется тоже, при упругопластической работе сечения балки
![]()
где hcn = h – 2 tn = 170 – 2·2 = 166 см .
Проверяем принятое сечение на прочность
Фактический момент инерции
I = (tст – hст 3 /12) + 2a2 An = (1·1663 /12) + 2·842 ·100 = 1792391 см 4 ,
где a = h0 /2 = 168/2 = 84 см .
Фактический момент сопротивления
W = I/( h/2) = 1792391/85 = 21087 см3 .
Напряжение по формуле составит
σ = M/ W = 4781·105 /21087 = 226,7 < 230 МПа = Ry γc ,
условие удовлетворяется.
Проверяем касательные напряжения по нейтральной оси сечения у опоры балки
τ = QS/ Itст = 1275000·11844/1792391·1 = 8425 Н/см2 = 84 МПа < Rs γc = =135 МПа .
где S – статический момент полусечения
S = An ·(h0 /2) + (Aст /2)·(hст /4) = 100·84 + (1·166·166/2·4) = 11844 см 3
Полная площадь сечения баки
А = 166·1 + 2·100 = 366 см2
Масса 1 м балки (без ребер жесткости):
а = 366·100 (7850/106 ) = 287 кг/м , а с ребрами жесткости 1,03·287 =
= 296 кг/м .
5. Расчет соединения поясов со стенкой
Сдвигающее усилие Т , приходящееся на 1 см длины балки составит:
T = τ·tст =QSn /I = 1275·8400/1792391 = 6 кН ,
где Sn – статический момент пояса (сдвигаемого по стыку со стенкой) относительно нейтральной оси:
Sn = An ·( h0 /2) = 10·84 = 8400 см3 .
Сдвигающая сила Т воспринимается двумя швами, тогда минимальная толщина этих швов при длине lw = 1 см , будет
kf ≥ QSn / n· I·( βRw )· γc = T/2·( βRw )· γc = 6000/2·1·1·16200 = 0,185 см,
где ( βRw ) – меньшее из произведений коэффициента глубины проплавления (β f или β z ) на расчетное сопротивление, принимаемое по условному срезу металла на границе сплавления шва (Rwzγwz ); при γ wt = γ wz = = 1 и для автоматической сварки проволокой d = 2 мм марки СВ – 08А (по ГОСТ 2246 – 70*) β f = 0,9 имели
β fRwfγ wf = 0,9·180·1 = 162 МПа.
Принимаем конструктивно минимальную толщину шва kf = 7 мм , рекомендуемую при толщине пояса 17 – 22 мм (см. табл. 3.3. с. 62 [II]).
6. Изменение сечения балки по длине

Рисунок 4 – К изменению сечения по длине
Место изменения сечения принимаем на расстоянии 1 /6 пролета от опоры. Сечение изменяем уменьшением ширины поясов. Разные сечения поясов соединяем сварным швом встык электродами Э42 без применения физических методов контроля.
Определяем расчетный момент и перерезывающую силу в сечении:
x = l/6 = 15,6 = 2,5 м
M1 = [ qx·( l – x)]/2 = [170·2,5·(15 – 2,5)]/2 = 2656 кН·м = 265600 кН·см
Q1 = q·( l/2 – x) = 170·(15/2 – 2,5) = 850 кН
Определяем требуемый момент сопротивления и момент инерции измененного сечения исходя из прочности сварного стыкового шва, работающего на растяжение:
![]()
![]()
Определяем требуемый момент инерции поясов (Iст = 381191 см4 )
In 1 = I1 – Iст = 1154725 – 381191 = 773534 см4
Требуемая площадь сечения поясов
An 1 = 2 In 1 / h01 = 2·773534/1682 = 54,8 см2
Принимаем пояс 280×20 мм , An 1 = 56 см2
Принимаемый пояс удовлетворяет рекомендациям
bn 1 > 18 см, bn 1 >170/10 = 17 cм
Определяем момент инерции и момент сопротивления уменьшенного сечения:
I1 = Iст + 2b1 tn ·(h0 /2)2 = 381191 + 2·28·2·(168/2)2 = 1171463 cм 4
W1 = 2I1 /h = 2·1171463/170 = 13782 cм 3
σ max = M1 /W1 = 265600/13782 = 19,3 кН /см 2 < Rсв = 0,85·23 = 19,55 кН /см 2
7. Проверка общей и местной устойчивости элементов главной балки
1) Проверка прочности балки.
Проверяем максимальные нормальные напряжения в поясах в середине балки:
σ = Mmax / C1 W = 478100/1,1 = 20,6 кН/см2 < R = 23 кН/см2
Проверяем максимальное касательное напряжение в стенке на опоре балки:
![]()
![]()
Проверяем местные напряжения в стенке под балкой настила
σm = F/ tст · lм =128,88/1·17,5 = 7,36 кН/см2 < R,
где F = 2·21,48·6/2 = 128,88 кН – опорные реакции балок настила
lм = b + 2 tn = 13,5 + 2·2 = 17,5 см – длина передачи нагрузки на стенку банки.
Проверяем приведенные напряжения в месте изменения сечения балки (где они будут максимальны):
![]()
где ![]()
![]()
![]()
Проверки показали, что прочность балки обеспечена.
2) Проверяем общую устойчивость балки в месте действия максимальных нормальных напряжений, принимая за расчетный пролет l0 – расстояние между балками настила в середине пролета балки, где учтены пластические деформации:
и ![]()

где
, так как τ = 0
и С1
= С
В месте уменьшенного сечения балки (балка работает упруго и δ = 1 )

Проверки показали, что общая устойчивость балки обеспечена.
3) Проверка прогиба не производится, так как h = 170 > 50 см = hmin
Рисунок 5 – Схема монтажного стыка главной балки
8. Расстановка ребер жесткости
Определяем необходимость постановки ребер жесткости:
![]()
λст = 2,2 – при действии местной нагрузки на пояс балки.
Вертикальные ребра жесткости необходимы. Кроме того, в зоне учета пластических деформаций необходима постановка ребер жесткости под каждой балкой настила, т. к. местные напряжения в стенке в этой зоне не допустимы. Определяем длину зоны использования пластических деформаций в стенке по формуле:

Определяем средние значения М и Q на расстоянии х = 157,9 см . от опоры под балкой настила
M2 = [ qx·( l – x)]/2 = [170·1,579 (15 – 1,579)]/2 = 1801 кН·м = 180100 кН·см
Q = q·( l/2 – x) = 170·(15/2 – 1,579) = 1006,5 кН
Определяем действующие напряжения:
![]()
где W = 20787 см3 из определения высоты и размеров главной балки.
![]()
σм = 7,36 кН/см2 (из расчета балки на устойчивость)
Определяем критические напряжения:

где h0 = hc т , λусл = λст = 4,9
Rср
= 13,5 кН/см2
Размеры отсека a1 / h0 = M = 0,95 и δм /σ = 7,36/8,46 = 0,86

По таблице 7.6. (с. 158 [I]) при δ = 1,9; a/ h0 = 0,9 предельное значение σм /σ = 0,109
Расчетное значение σм /σ = 0,86 > 0,109
σкр определяем по формуле:
где скр = 33,1 по табл. 7.4 (с. 155 [I]) при δ = 1,9
Определяем σмкр
![]()
где ![]()
с1 = 11 по табл. 7.5 (с. 156 [I]) при δ = 1,9
a1 /2 hст = 157,9/2·166 = 0,47
Подставляем все значения в формулу
![]()
Устойчивость стенки обеспечена и постановка ребер жесткости на расстоянии а1 = 157,9 см возможна.
Определяем размеры ребер жесткости ширина bp = hст /30+40 = 1660/30 + 40 = 95 мм
Примем bp = 120 мм
толщина ![]()
Примем tp = 7
9. Расчет монтажного стыка главной балки
Рисунок 6 – Схема опорной части главной балки
Стык делаем в середине пролета балки, где М = 4781 кН·м и Q = 0 .
Стык осуществляем высокопрочными болтами d = 20 мм
из стали «селект», имеющий по таблице 6.2
; обработка поверхности газопламенная. Несущая способность болта, имеющего две плоскости трения:
![]()
где ![]()
γб
= 0,85
:
т. к. разница в номинальных диаметрах отверстия и болта больше 1 мм ;
М = 0,42 и γн = 1,02;
Принимая способность регулирования натяжения болта по углу закручивания, k = 2 – две плоскости трения.
Стык поясов. Каждый пояс балки перекрываем тремя накладками сечениями 500×12 мм и 2×220×12 мм , общей площадью сечения
An = 1,2·(50 + 2·22) = 112,8 см2 > An = 100 см2
Усилие в поясе определяем по формуле:
Mn = MIn /I = 4781·1385704/1792391 = 3696 кН ·м
Nn = Mn /h0 = 3696/1,68 = 2200 кН
где I, In , h0 – из расчета главной балки
Количество болтов для прикрепления накладок рассчитываем по формуле:
n = Nn / QВБ = 2200/132 = 16,6
Принимаем 16 болтов.
Стык стенки. Стенку перекрываем двумя вертикальными накладками сечением 320×1560×8 мм .
Определяем момент, действующий на стенку
Мст = MIст / I = 4781·381191/1792391 = 1016 кН·м
Принимаем расстояние между крайними по высоте рядами болтов:
amax = 1660·2·80 = 1500
Находим коэффициент стыка ![]()
= Mст
/
mamax
QВБ
= 101600/2·150·132 = 2,56
Из таблицы 7.8 (с. 166 [I]) находим количество рядов болтов по вертикали k .
при
= 2,56
k
= 13
Принимаем 13 рядов с шагом 125 мм.
Проверяем стык стенки по формуле:
![]()
![]()
Проверяем ослабление нижнего растянутого пояса
Ап.нт = 2,0·(50 – 2·5,785) = 86,86 см2 > 0,85 А n = 0,85·100 = 85 см2
Ослабление пояса можно не учитывать.
Проверяем ослабление накладок в середине стыка четырьмя отверстиями
= 112,8 – 4·2·1,2·5,785 = 57,2 см2
< 0,85
An
= 85 см2
.
Принимаем накладки толщиной 18 мм
= 1,8·(50+2·22) – 4,2·1,8·5,785=85,9
cм2
>0,85
An
= 85 см2
10. Расчет опорной части главной балки
Опорная реакция балки F = 1275 кН
Определяем площадь смятия торца ребра
![]()
где Rсм.т. = 35,5 кН/см2 = 355 МПа (прил. 4 [I]).
Принимаем ребро 280×14 мм ,
Ар = 28·1,4 = 39,2 см2 >35,9 см2 . Проверяем опорную стойку балки на устойчивость относительно оси Z. Ширина участка стенки, включенной в работу опорной стойки:
![]()
Аст = АР + tc т · bст = 39,2 + 1·19,45 = 58,65 см2
Iz = 1,4·283 /12 + 19,45·13 /12 = 2562 cм4
![]()
λ = hст / iz = 166/6,6 = 25,1 по приложению 7 (I) φ = 0,947
![]()
Рассчитываем прикрепление опорного ребра к стенке балки двусторонними швами полуавтоматической сваркой проволокой СВ
– 08Г2
. Предварительно находим параметры сварных швов и определяем минимальное значение β
. По таблице 5.1 (I) принимаем
= 215 МПа = 21,5 кН/см2
; по прилож. 4 (I) –
=165 МПа = 16б5 кН/см2
, по табл. 5.4. (I)
βш = 0,9; βс = 1,05
βш
·
= 0,9·21,5 = 19,3 кН/см2
>
βc
·
= 1,05·16,5 = 17,32 кН/см2
Определяем катет сварных швов по формуле:
![]()
Принимаем швов kм = 7 мм.
Проверяем длину рабочей части шва:
lм = 85·βс · kм = 85·1,05·0,7 = 62,5 см < hc т = 166 см
Ребро привариваем к стенке по всей высоте сплошными швами.
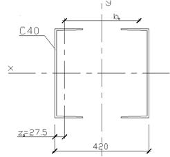
11. Подбор и компоновка сечения сквозной колонны
Постоянная нагрузка от собственного веса колонны – 1,5 кПа . Расчетное усилие в стержне колонны:
N = 1,01·(np ·p + ng ·g) ·A·B = 1,01·(1,2·22 + 1,05·1,5) ·15·6 = 2540 кН
Длина колонны: l0 = 11 – 0,01 – 0,3 – 1,72 = 8,97 м
Зададимся гибкостью λ = 60 и находим φ = 0,785 (по прил 7 [1]), площадь сечения
Aтр = N/( φ· R) =2540/0,785·28 = 115,5 см2 ,
где R = 28 кН/м2 – расчетное сопротивление для стали марки Вст 3nc6 – 2 радиус инерции:
imp = l0 / λ = 897/60 = 14,95
По сортаменту ГОСТ 8240 – 72* принимаем два швеллера 40 со значениями А = 2·61,5 = 123 см3 ; ix = 15,7 см .
Рассчитываем гибкость относительно оси х
λх = 897/15,7 = 57; φх = 0,800 (прил. 7)
Проверяем устойчивость относительно оси х
σ = N/φ A = 2540/0,8·123 = 25,8 кН/м2 < R = 28 кН/см2

Рисунок 7 – Сечение сквозной колонны
Расчет относительно свободной оси.
Определяем расстояние между ветвями колонны из условий равноустойчивости колонны в двух плоскостях λпр = λх , затем требуемую гибкость относительно свободной оси у-у по формуле:
![]()
Принимаем гибкость ветви равной 30 и находим ![]()
Полученной гибкости соответствуют радиус инерции iy = 897/48 = 18,7 см; и требуемое расстояние между ветвями b = i· y/0,44 = 18,7/0,44 = 42 см
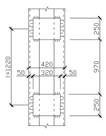
Полученное расстояние должно быть не менее двойной ширины полок швеллеров плюс зазор, необходимый для оправки внутренних поверхностей стержня bтр = 2·115 + 100 = 330 мм < 42 см , следовательно принимаем ширину колонны = 420 мм.
Проверка сечения относительно свободной оси.
Из сортамента имеет: I1 = 642 см4 ; i1 = 3,23 см; z0 = 2,68 см .
Iy = 2·[642 + 61,5·(21 – 2,75)2 ] = 42250 см4
Расчетная длина ветви lb = λ1 · i1 = 30·3,23= 97 см
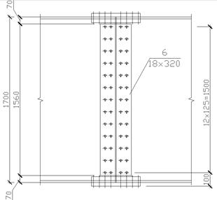
Принимаем расстояние между планками 97 см м сечение планок 10×250 мм, тогда
Iпл = 1·253 /12 = 1302 см4
Радиус инерции сечения стержня относительно свободной оси
![]()
Гибкость стержня относительно свободной оси
λу = 897/18,5 = 48,5
Для вычисления приведенной гибкости относительно свободной оси надо проверить отношение погонных жесткостей планки и ветви
Iпл /b0: I1 /lв = Iпл ·lв /I1 b0 = 1302·122/642·36,5 = 6,7 >5
Здесь b0 = 42 – 2·2,75 = 36,5 см – расстояние между ветвями в осях.
Приведенную гибкость вычисляем по формуле при отношении погонных жесткостей планки и ветвей более 5.
![]()
Т.к. λпр = λх , напряжение можно не проверять, колонна устойчива в двух плоскостях.

Рисунок 8 – К проверке сечения относительно свободной оси
Расчет планок
Расчетная поперечная сила:
Qусл = 0,27А = 0,27·123 = 33,21 кН
Поперечная сила, приходящаяся на планку одной грани.
Qпл = Qусл /2 = 33,21/2 = 16,6 кН
Изгибающий момент и поперечная сила в месте прикрепления планки
Мпл = Qпл · lb /2 = 16,6·122/2 = 1012 кН·см
Fпл = Qlb / ba = 16,6·122/36,5 = 55,5 кН
Принимаем приварку планок к полкам швеллеров угловыми швами с катетом шва kш = 0,8 см.
= 200 МПа, βш
= 0,8
Необходима проверка по металлу шва. Расчетная площадь шва
Ауш = kш · lш = 0,8·(25 – 2·0,8) = 18,72 см2
Момент сопротивления шва
Wш = kш · l2 ш /6 = 0,8·(25 – 2·0,8)2 /6 = 73 см3
Напряжение в шве от момента и поперечной силы:
σуш = Мпл / Wш = 1012/73 = 13,86 кН/см2
τуш = Fпл /Ауш = 55,5/18,72 = 2,9 кН/см2
Проверяем прочность шва по равнодействующему напряжению:
![]()
Размеры планки 320×250×10
12. Расчет базы колонны
Требуемая площадь плиты из условия смятия бетона найдем по формуле:
![]()
где Rсм.б = γ· Rb , для В 12,5 => Rb = 7,5 МПа : γ = 1,2
Rc м.б. = 1,2·7,5 = 9 МПа
Принимаем плиту размером 55×60 см
Апл = 55×60 = 3300 см2 ; σф = N/ Aпл
σф = N/ Aпл = 2540/3300·10-1 = 7,7 МПа < Rсм.б = 9 МПа
Толщину плиты принимаем из расчета отдельных участков.
М = σф ·а2 /2 = 770·92 /2 = 31185 Н·см = 0,31 кН·м
Проверим работу среднего участка плиты 1, заключенного между ветвями и опертыми по четырем сторонам. Отношение сторон составит
b/ a = 404/400 = 1,01
Требуемый момент сопротивления сечения плиты составит W = M/ Ry γc = = 31185/20500 = 1,52 см3 ,
где Ry = 205 МПа – при толщине листов 21 – 40 мм.
При толщине табл. 5.5 (с. 137 II) вычисляем изгибающие моменты для полос шириной 1 см
Ма = α1 ·σф ·а2 = 0,05·770·402 = 61600 Н·см
Мв = α2 ·σф ·а2 = 0,048·770·402 = 59136 Н·см
при b/ a = 1,01 ; α1 = 0,05; α2 = 0,048
Требуемую толщину плиты определяем по Ма :
![]()
Принимаем плиту толщиной 40 мм.
Высота листов траверсы:
h = N/β f · kш · Rуш γс · nш = 2540000/0,7·1·18000·1·1·4 = 50,3 см
где kш = 10 мм , n = 4 – число швов.
Принимаем высоту траверсы = 50 см.
Анкерные болты принимаем конструктивно диаметром 24 мм .
Размеры фундамента в плане принимают на 15 – 20 см в каждую сторону от опорной плиты.
LФ ×ВФ = 80×90 см
![]()
условие прочности фундамента соблюдаются. Глубина заделки анкеров диаметром 24 мм должна быть не менее 850 мм .
Рисунок 9 – Схема базы колонны
13. Расчет оголовка колонны
Рисунок 10 – Схема оголовка колонны
Принимаем толщину опорной плиты оголовка 20 мм .
При kш = 0,8 см , высота ребра составит:
hp = N/4 βf · kш · Rуш ·γуш ·γс = 2540000/4·0,7·0,8·18000·1·1 = 62 см .
Принимаем высоту ребра 62 см .
Длина ребра lp = 320 мм = z
lp = 28 + 2 + 2 = 32
Толщина ребра:
tp = N/ lp · Rs = 2540000/0,32·33200 = 2,4 см
Принимаем tp = 25 мм
Rs = 332 МПа
z – расчетная длина распределения местного давления опорных ребер балки.
Проверяем напряжение в швах, прикрепляющих ребра оголовка к плите при kш = 12 мм .
σ = N/ βf · hш ·Σ lш = 2540000/0,7·1,2·154 = 19635 Н/см2 = 196,35 МПа < < Rуш ·γуш ·γс = 200 МПа,
где Σ lш = 2·42 + 2·(40 – 5) = 154 см
Ветви колонны приваривают к опорной плите швами толщиной 6 – 8 мм .
Размер плиты оголовка назначаем конструктивно 500×460 мм.
Литература
1. Металлические конструкции. Учебник для вузов. Под редакцией Е.И. Беленя – М.: Стройиздат, 1986 г.
2. Примеры расчета металлических конструкций. Учебное пособие для техникумов. Мандриков А.П. – М.: Стройиздат, 2001 г.
3. Методические указания. Сост. И.В. Слепнев. Краснодар, 2006 г.