| Похожие рефераты | Скачать .docx |
Курсовая работа: Тушение пожара торгово оптовой базы 20000 кв.м
КУРСОВАЯ РАБОТА
Тема: Тушение пожара торгово оптовой базы 20000 кв.м
Введение
1. Основная часть (расчетно-пояснительная записка)
1.1 Оперативно-тактическая оценка объекта
1.2 Тактический замысел
1.3 Расчет параметров пожара на момент
1.3.1 Сообщения о пожаре
1.3.2 Прибытия на пожар первого подразделения
1.3.3 Введения сил и средств первым подразделением
1.4 Оценка пожарных подразделений по определению времени боевого развертывания и реализации тактических возможностей первого прибывшего подразделения
1.5 Карточка боевых действий 1 караула
1.6 Расчет сил и средств для тушения пожара
1.7 Расчет параметров пожара по установленному расчетом сил и средств повышенному рангу пожара и до локализации
1.8 Расчёт оптимальности работы насосно–рукавных систем пожарной техники работающей по подаче огнетушащих веществ
1.9 Организация тушения возможного пожара РТП (организация связи, взаимодействие подразделений пожарной охраны, участие администрации объекта, определение объема работ, постановка конкретных задач и отдание распоряжений
1.10 Схема организации связи и управления силами и средствами на пожаре
1.11 Совмещенный график изменения параметров развития и тушения пожара
1.12 График сосредоточения и введения сил и средств во времени
1.13 Рекомендации участникам тушения пожара (РТП, НШ, НТ и представители объекта)
Список используемой литературы
Введение
Основной боевой задачей по тушению пожара является достижение локализации и ликвидации пожара в сроки и в размерах, определяемых возможностями привлеченных к его тушению сил и средств пожарной охраны.
Выполнение основной боевой задачи обеспечивается силами пожарной охраны - личным составом органов управления и подразделений пожарной охраны.
Для выполнения боевых задач используются различные средства: пожарные машины, приспособленные для целей пожаротушения автомобили, пожарное оборудование и вооружение, средства индивидуальной защиты органов дыхания, огнетушащие вещества, аварийно-спасательное оборудование и техника, системы противопожарной защиты объектов, средства связи, инструменты и оборудование для оказания первой медицинской помощи.
Для успешного выполнения боевой задачи необходимо:
своевременное сосредоточение сил и средств на пожаре;
активные наступательные действия с учетом решающего направления.
Тушение пожара это боевые действия, направленные на спасение людей, имущества и ликвидацию пожара (ликвидация горения). Тушение пожаров является одной из основных функций системы обеспечения пожарной безопасности.
Продолжительность боевых действий подразделений определяется временем, необходимым для выполнения боевой задачи на пожаре, и зависит от условий боевой обстановки, количества, боеготовности и боеспособности подразделений. Они начинаются с момента выезда подразделений на пожар и заканчиваются моментом восстановления их боеготовности (постановка в боевой расчет) после выполнения боевой задачи на пожаре.
В процессе тушения пожаров большой объем работы выполняют по вскрытию и разборке конструкций, особенно в зданиях цехов старой постройки. Для этой цели РТП привлекает дополнительные силы и средства, использует специальные пожарные машины и механизированный инструмент. При вскрытии конструкций нельзя допускать повреждений несущих конструкций перекрытий и перегородок. Необходимо помнить, что горение в воздушных прослойках перекрытий и перегородок ослабляет несущие конструкции и приводит к их обрушению. Поэтому сначала вскрывают конструкции и ликвидируют горение в местах сочленения несущих элементов, опор и узлов, а затем в местах интенсивного горения. При вскрытии конструкций устанавливают постоянное наблюдение за состоянием несущих элементов, а также подготавливают пути отхода личного состава на случай обвалов и обрушения. Поскольку перекрытия несут большую нагрузку от производственного оборудования, при разборке конструкций, контрольных вскрытиях, создании разрывов в перекрытиях, снятии металлической подшивки с потолка и других работах несущие элементы следует предохранять от повреждений.
1. Основная часть (расчётно-пояснительная записка)
1.1 Оперативно-тактическая характеристика оптово-торговой базы
Оперативно-тактическая характеристика
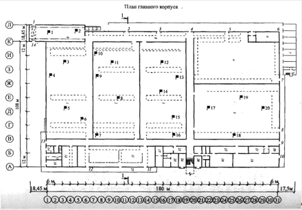
Здание оптовой базы одноэтажное, имеет размеры в плане 120 х180 м.
Стены кирпичные толщиной 510 мм. Колонны железобетонные сечением 400 х 400 мм. Здание разделено на складские помещения противопожарными стенами. Перегородки кирпичные толщиной 125 мм. Покрытие совмещенное из сборных железобетонных плит по железобетонным фермам (Пф = 1,5 ч). Утеплитель из несгораемого материала. Кровля – из 3-х слоев рубероида на битумной мастике.
Дверные проемы в наружных и противопожарных стенах имеют размеры 3 х 3 м, в перегородках 1,4 х 2,2 м. Полы асфальтовые. Вентиляция – приточно-вытяжная с механическим побуждением. Электроснабжение от электросети напряжением 380/220 В.
Здание оборудовано внутренним пожарным водопроводом, на котором установлены внутренние пожарные краны. Одновременно можно использовать 2 пожарных крана. Автоматических установок обнаружения и тушения пожара в здании не имеются.
Пожарная нагрузка в складских помещениях составляет 120:180
.
Объяснение условных обозначений, употребляемых на плане.


Схема 1. Оптово-торговая база
![]()
|
|
|

Схема 2.
Таблица1. Наименование частей, тип и количество прибывающей техники
| Номервызова | Вариант задания |
| 0 | |
| 1 | ПЧ-4 АЦ-40 (131)137 АЦ-40 (131)137 |
| 2 | ПЧ-1 АЦ-40 (375)Ц1-А АН-40 (433422) АСО- 12(66)90А СПЧ-1 АЦ-40 (375)Ц1-А НПС-110(131) ПЧ-5 АЦ-40(433362) АЛ-30 (131)Л21 ПЧ-13 АЦ-40(433362) АТ-3 (131)Т2 |
3 |
ПЧ-3 АЦ-40 (131)137 ПЧ-15 АЦ-40(433362) ПЧ-6 АЦ-40 (375)Ц1 АВ-40 (375Н)Ц 50А ПЧ-19 АНР-40 (433362) |
| 4 | СПЧ-3 АЦ-40 (133Г1)181ПЧ-7 АЦ-40 (131)137 ППЧ-8 АЦ-30 (53А)106Б ПЧ-2 АЦ-40(433362) |
Таблица 2. Время нахождения подразделений в пути
| Время нахождения подразделений в пути, мин | |
| Варианты задания | |
| Номервызова | 0 |
| 1 | 6 |
| 2 | 8 10 13 16 |
| 3 | 17 18 20 20 |
| 4 | 22 24 25 29 |
1.2 Тактический замысел
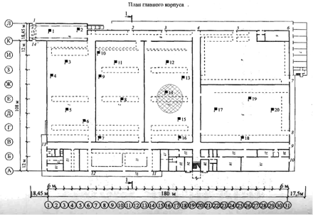
Пожар возник в 6:00, на складе культтоваров, место пожара 14, из-за короткого замыкания электропроводки, находящейся над стеллажом. Охранник, охранявший склад, почувствовал запах дыма и немедленно сообщил в пожарную охрану. Сообщение о пожаре в ПЧ поступило через 8 минут после его возникновения.В начальной стадии развития пожар будет иметь круговую форму, при его дальнейшем развитии, он может принимать различные формы.К моменту прибытия и подачи огнетушащих средств первым подразделением, пожар может охватить часть стеллажей. Распространяться пожар будет по стеллажам с культтоварами. Объекту присвоен 2 номер вызова, согласно расписанию выездов.
1.3 Расчет параметров пожара до момента введения сил и средств первым подразделением
Определение параметров пожара на момент сообщения в пожарную охрану
1) Vл линейная скорость распространения горения, (м/мин):
Vл = 0,5 м/мин ([4] раздел 1.2)-склады товароматериальных ценностей.
2) Определение пути, пройденного огнём.По тактическому замыслу время до сообщения tд.с в пожарную охрану о пожаре 8 минут, что является выполнением условия:tд.с. <10 минут, и следовательно формула определения пути пройденного огнем будет иметь следующий вид:
L=0,5Vл
t1
=0,5х0,5х8=2 [м],
3) Определение формы площади пожара.
Принимая во внимание место возникновения пожара и путь пройденный огнем, определяю форму площади пожара: круговая.

Схема 3.
4) Определение площади пожара.
Так как площадь пожара круговая, то площадь находится по следующей формуле:
Sп
=p
L2
= 3,14
22
=12,5 [м2
].
5) Определение периметра пожара.
В виду того, что форма площади пожара круговая, периметр находится по формуле:
Рп
= 2p
L=2х3,14х2=12,5 , [м]
6) Определение фронта пожара:
имея круговую форму пожара, определение фронта пожара будет следующей
Фп
= 2p
L =2х3,14
2=12,5 [м];
7) Определение скорости роста площади пожара.
Скорость роста площади пожара (Vs ) определяется по формуле :
Vs
=
=
=1,57 [м2
/мин.]
8) Определение скорости роста периметра пожара.
Скорость роста периметра пожара (Vр ) определяется по формуле:
Vр
=
=12,5/8=1,57 [м/мин.]
9) Определение скорости роста фронта пожара.
Скорость роста фронта пожара (Vф ) определяется по формуле:
Vф =
=12,5/8=1,57 [м/мин.]
Определение параметров пожара на момент прибытия первого подразделения
1) Определение времени прибытия первого подразделения.
Время прибытия первого подразделения на место вызова складывается из времени до сообщения в ПЧ, времени сбора личного состава караула по тревоге и времени следования подразделения от ПЧ до места вызова.
По требованиям нормативов по ПСП время сбора tсб по тревоге равно 1 минуте. Время следования берется из расписания выездов пожарных подразделений или рассчитывается по отдельной формуле.
tприб.1 =tд.с. +tсб. +tсл.1 =8+1+6=16, [мин.]
где
tсл.1 =6 минутам - время следования первого подразделения от ПЧ до места вызова, берется из расписания выездов пожарных подразделений.
2).Определение пути, пройденного огнём.
Путь, пройденный огнём на момент прибытия первого подразделения, определяется по формуле:
L=5Vл
+Vл
(tприб.1
-t1
) =5
0,5+0,5
(16-10)=5,5 [м].
Принимая во внимание путь пройденный огнем определяю форму площади пожара: круговую.

Схема 4.
3) Определение площади пожара.
при круговой форме развития пожара:
Sп
=p
L2
= 3,14
5,52
=95 [м2
].
4) Определение периметра пожара.
Рп
= 2p
L=2х3,14х5,5=35 , [м]
5) Определение фронта пожара:
при круговой форме с дальнейшим распространением пожара
Фп
= 2p
L=2х3,14
5,5=35 , [м];
6) .Определение скорости роста площади пожара.
Vs
=
=95/16=6 [м2
/мин.],
7) Определение скорости роста периметра пожара.
Для круговой формы площади пожара:
Vр
=
=35/16=2,1 [м/мин.]
8) Определение скорости роста фронта пожара.
Скорость роста фронта пожара (Vф ) определяется по формуле:
Vф =
=35/16=2,1[м/мин.].
Определение параметров пожара на момент введения сил и средств первого подразделения
1) Определение времени свободного развития горения.
Эта величина складывается из времени прибытия первого подразделения и времени затраченного на боевое развертывание, которое по требованию наставления по ПСП равно 6-8 минут. Принимаю среднее значение - 7 минут.
tсв. =tд.с. +tсб. +tсл.1 +tб.р. =8+1+7+7=25 [мин.]
2) Определение пути, пройденного огнём.
Путь пройденный огнем на момент введения сил и средств первого подразделения определяется по формуле:
L=0,5Vл
t1
+Vл
(tсв.
-t1
) =0,5х0,5х10+0,5х(23-10)=9 [м].
3) Определение формы площади пожара.Принимая во внимание путь пройденный огнем, определяю форму площади пожара: круговая.

Схема 5
4) Определение площади пожара.
при угловой форме развития пожара:
Sп
=p
L2
= 3,14
92
=254 [м2
].
5) Определение периметра пожара.
Рп
= 2p
L=2х3,14х9=56,5, [м]
6) Определение фронта пожара:
при круговой форме с дальнейшим распространением пожара
Фп
= 2p
L =2х3,14
9=56,5 [м];
7) .Определение скорости роста площади пожара.
Vs
=
=254/23=11 [м2
/мин.],
8) Определение скорости роста периметра пожара.
Для круговой формы площади пожара:
Vр
=
=56,5/23=2,45 [м/мин.]
9) Определение скорости роста фронта пожара.
Скорость роста фронта пожара (Vф ) определяется по формуле:
Vф =
=56,5/23=2,45 [м/мин.].
1.4 Оценка пожарных подразделений по определению времени боевого развертывания и реализации тактических возможностей первого прибывшего подразделения
На пожаре идет борьба за выигрыш времени, т.е. чем раньше мы приступим к тушению, тем успешнее ликвидируем пожар и с меньшим ущербом. Продолжительность боевого развертывания является функцией множества различных постоянных и переменных факторов, что обуславливает трудность разработки его аналитических зависимостей.
В общем виде продолжительность боевого развертывания можно описать моделью:
τ б.р = f (Nл.с. , Na , Р, L, М, В г , В с , t°, hэ , α, П, Nэ , hc ,Y, О) + ε,
где: Nл.с — численность боевого расчета;
Na , P — количество используемого пожарно-технического вооружения и его масса соответственно;
L — длина рукавной линии;
М — участок, местности, где проводится боевое развертывание;
В г — время года;
В с — время суток;
t° — температура окружающей среды;
hc — глубина снега;
α — угол уклона местности;
П — вид пожарного автомобиля;
Nэ , hэ — количество и высота этажа соответственно;
Y — условия боевого развертывания (задымленность);
О — обученность личного состава;
ε — случайная компонента, учитывающая влияние неучтенных факторов.
Постоянными факторами являются: Nл ,с, Na , P, Nэ , hэ .
Переменными факторами — М, В г , В с , t°, α П ,Y, О, ε.
Как показывает практика, и подтверждают эксперименты, основное влияние на продолжительность боевого развертывания оказывают влияние количество пожарных, проводящих его, количество и масса используемого пожарно-технического вооружения (ПТВ) и расстояние, на которое оно перемещается. Это позволяет сделать некоторые упрощения математической модели для определения времени боевого развертывания.
Расчет времени боевого развертывания
Время года — зима; время суток — ночь при лунном освещении; место пожара — склад культтоваров оптовой базы; расстояние от гидранта до места пожара - 40 м.
Характеристика: участок местности — уклон -50 , возраст пожарных — более 50 лет.
На тушение пожара прибыло 2 отделения, укомплектованные личным составом на 90 %, ПЧ-4 2 АЦ-40(131)137, с боевым расчетом 12 чел., включая начальника караула и водителей.
Первое отделение на АЦ-40(131)137, проводит боевое развертывание и подает звеном ГДЗС ствол РС-70 на локализацию горения от АЦ. Второе отделение устанавливает АЦ на ПГ – 3, прокладывает магистральную линию и подает звеном ГДЗС ствол РС-70.
Выбираем схему боевого развертывания:

Схема 6
1) Определяем количество рукавов в магистральной линии
(рукава)
Разбиваем боевое развертывание второго отделения на две фазы:
- пожарный № 3, 4 и водитель устанавливают АЦ на ПГ и прокладывают магистральную линию на 4 рукава d = 77 с разветвлением РТ-80 к месту пожара;
- командир отделения, пожарный №1 и пожарный №2 снимают СИЗОДы с автомобиля, одевают их, берут фонарь, радиостанцию и направляются к АЦ первого отделения, от АЦ первого отделения проводят предварительное боевое развертывание. Время боевого развертывания на горизонтальном участке местности, будет определяться временем, за которое пожарные установят АЦ на гидрант, проложат магистральную линию и проведут предварительное боевое развертывание с подачей ствола РС-70.
1) Определяем время установки АЦ на ПГ и прокладки магистральной линии на 4 рукава d = 77 с разветвлением РТ-80 к месту пожара;
![]()
Значение коэффициента А, учитывающего, сколько раз в среднем пожарный преодолевает расстояние L:
![]()
Принимаем. А = 1, так как в любом случае пожарный преодолевает расстояние L. Определяем значения коэффициентов β1 и β2 , учитывающих долю расстояния, преодолеваемую пожарными без ПТВ и с ПТВ:
![]()
Итого общая масса ПТВ, переносимого пожарными 49,7 кг. На одного пожарного приходится 16,5 кг, следовательно, коэффициент β3 будет равен:
β3 = 1, 26
Определяем время установки автомобиля на гидрант тремя пожарными ![]()
Определяем значение коэффициента Кс , учитывающего влияние снежного покрова:
![]()
Определяем значение коэффициента Кн. , учитывающего влияние времени суток (НБО):
![]()
Определяем значение коэффициента Кв , учитывающего влияние возраста пожарных:
![]()
Определяем значение коэффициента, учитывающего влияние уклона местности, Кп (-5):
![]()
Определяем значение коэффициента, учитывающего влияние температуры окружающей среды
(-5), Kt
=1
Определяем значение коэффициента, учитывающего влияние всех учтенных переменных факторов:
![]()
2 ) Определяем время предварительного боевого развертывания от АЦ 1 отделения звеном ГДЗС с подачей ствола РС-70.
По схеме развития пожара на момент прибытия первого подразделения определим длину рабочей линии: ![]()
Определяем количество рукавов в рабочей линии:
![]()
Общее время предварительное боевое развертывание от АЦ 1 отделения с подачей ствола РС-70 составит :
![]()
где:
А = 1/Nзв (1+L/13 B ) -1 + 0,5 1ЗВ /L(N3 B –
1)![]()
Принимаем А = 1, так как в любом случае пожарный преодолевает расстояние L;
![]()
пожар караул насосный огнетушащий
Итого общая масса ПТВ, переносимого одним звеном составит 76,6 кг. На одного газодымозащитника приходится 25,5 кг, следовательно, коэффициент β3 будет равен: 1,42
Определяем значение коэффициента Км
, учитывающего влияние покрытия участка местности:![]()
Определяем значение коэффициента Кн.
, учитывающего влияние времени суток (НБО): ![]()
Определяем значение коэффициента Кв
, учитывающего влияние возраста пожарных: ![]()
Определяем значение коэффициента, учитывающего влияние уклона местности, Кп
(-5): ![]()
Определяем значение коэффициента, учитывающего влияние температуры окружающей среды
(-5), Kt
=1
Определяем значение коэффициента, учитывающего влияние всех учтенных переменных факторов:
![]()
Определим время подготовки к боевому развертыванию,
:
Таблица 3. Действия звена ГДЗС при подготовке к боевому развертыванию
| № боевого расчета | Действия | Время, с |
| Командир звена | - снимает фонарь - снимает рацию - снимает СИЗОД с автомобиля - проводит боевую проверку |
1,2 1,2 1 60 |
| Газодымозащитник № 1 | - снимает 2 рукава d = 51 - соединяет 2 рукава между собой - присоединяет рукава к ПА - снимает СИЗОД с автомобиля - проводит боевую проверку |
3 3 1,5 1 60 |
| Газодымозащитник № 2 | - снимает 1 рукав d = 51 - соединяет 1 рукав между собой - открепляет лом - открепляет ствол РС-70 - прикрепляет ствол к рукаву - снимает СИЗОД с автомобиля - проводит боевую проверку |
1,5 1,5 1,2 1,1 1,5 1 60 |
Как видно из таблицы 3, наибольшее время при подготовке к боевому развертыванию тратит Газодымозащитник № 2, поэтому: ![]()
3) Общее время боевого развертывания на горизонтальном участке местности, будет определяться временем, за которое пожарные установят АЦ на гидрант, проложат магистральную линию и проведут предварительное боевое развертывание ![]()
4) Определяем время боевого развертывания первого отделения.
Первое отделение затратит такое же время, что и второе при подаче звеном ГДЗС ствола РС-70, что составит 3,8 мин. Принимаем наибольшее время боевого развертывания – 4 мин
1.5 Карточка боевых действий 1 караула
действий _1__караула (смены) пожарного подразделения 9 ОФПС 4 ПЧ на пожаре № _53_, происшедшем _____09.12.2010_______
1. Наименование организации (объекта), ведомственная принадлежность (форма собственности, адрес) ____Оптово-торговая база____Мичурина 50___
2. Характеристика организации (объекта) ___120х180_м___одноэтажное____IIСО_______категория В________
3. Кем охраняется организация (объект), кто обнаружил пожара ___________ ___обнаружил охранник склада_________________
4. Время:
возникновения пожара ___6:30__________________________________
обнаружения пожара ____6:31____площадь______1,5_ м2 _________
сообщения о пожаре _____6:38_______площадь_______12,5___ м2 ____
выезда дежурного караула (смены) ____6:39_______________________
прибытия на пожар ____6:46_____площадь_____95__ м2 _________
подачи первого ствола ____6:50____площадь______176___ м2 _______
вызова дополнительных сил ___6:38____площадь____12,5___ м2 ___
локализация ______6:52______площадь_______200_ м2 ______
ликвидация 7:40 возвращения в часть (место постоянной дислокации)7:55
5. Водоснабжение:_____ПГ-3___К-200 Н-40____40м_________
6. Способы подачи воды: от емкостей автоцистерн ____4________
с установкой на водоисточник ___АЦ-40______40м_______________
подвоз воды ____-_________________________________
подача воды в перекачку__-________________________
(количество и вид используемой техники, длина магистральной линии)
7. Обстановка на пожаре ____из двери склада идет дым ________________ (что и где горело, ход развития и тушения пожара, действия формирований ДПО и населения до прибытия пожарных подразделений, действия пожарных подразделений)
8. Оценка действий: РТП-1 _____удовлетворительно________ РТП-2 и последующих_______удовлетворительно________
Начальников участков (секторов) тушения пожара ____удовлетворительно_________
Пожарных подразделений _____ удовлетворительно ______________
9. Особенности тушения пожара: необходимость большого количества воды___создание оперативного штаба на пожаре__6:50_____ДСПТ__________создание участков (секторов) тушения пожара __6:51_локализация пожара_______6:52___ ликвидация пожара___7:40_____
10. Обстоятельства, способствующие развитию пожара: ___
усложняющие обстановку: ____-________________________________
11. Кем (чем) потушен пожар: _______ФПС________________
11.1. С использованием техники организаций (объектов):___-_____
11.2. С использованием сил и средств опорных пунктов тушения крупных пожаров____-______________________________
11.3. С применением ГДЗС ______________________
одно звено_____________ два или более звеньев____50 мин_______
12. С какими службами было организовано взаимодействие: _____администрация объекта_______________________________________
13. Не прибыли подразделения предусмотренные расписанием выездов и планом привлечения сил и средств __________-__________
14. Неисправность в работе пожарной техники:
_______-_________________________
15. Причина и виновник пожара (если установлено)___устанавливается___________________________
16. Результаты пожара:
16.1. Спасено людей ___-_______чел., из них;
а) пожарными ____-__________ ;
б) формированиями ДПО ___-__ ;
в) населением ________-__________
16.2. Погибло при пожаре и какая причина______-_______________
16.3. Пострадало людей ___________-____________________________
16.4. Уничтожено строений __________-_________________________
16.5. Погибло животных _______________-________________________
16.6. Сумма ущерба, причиненного пожаром ______устанавливается________
16.7. Общая стоимость спасенного имущества __устанавливается_____________
17. Израсходовано огнетушащих веществ ______87__м3_______________
18. Случаи нарушения правил охраны труда и техники безопасности работниками пожарной охраны____не имели____________________
при этом: погибло ______-__________________________ чел.
пострадало ____________-___________________________ чел.
19. Выводы, предложения и принятые меры: __проведен разбор пожара с караулом________________________________________________________
Приложения: планы, схемы, фотоснимки и др.
Руководитель подразделения пожарной охраны П.В. Ткачук (И.О.Ф.)
" _10_ " __декабря _ 2010 года.
1.6 Расчет сил и средств для тушения пожара
1. Определение площади пожара
L=0,5Vл
t1
+Vл
(tсв.
-t1
) =0,5х0.5х10+0.5х(20-10)=7,5 м
SП = p×L2 =3,14х7,52 =176[м2 ],
2.Определение площади тушения пожара
Для круговой формы пожара площадь тушения будет равна:
Sт = π h (2L – h)=157 м2 ,
где:
h = 5 м – глубина тушения ручными стволами;
3.Определение требуемого расхода воды на тушение пожара
Интенсивность подачи воды составит 0,3 л/с*м2 ([6] Раздел 2.3)
Требуемый расход воды на тушение пожара составит:
![]()
4. Определение требуемого расхода воды на защиту
![]()
5. Определение общего расхода воды
![]()
6. Определение требуемого количества стволов на тушение и на защиту
Для тушения и защиты принимаем стволы РС-70 с расходом 7,4 л/с при напоре у ствола 40 м.
стволов РС-70
7 .Определение фактического расхода воды
![]()
8.Определим водоотдачу наружного водопровода
Водоотдача кольцевой водопроводной сети рассчитывается по формуле:
Qк
сети
= (D/25)2
Vв
= (200/25)2
2=128 [л/с],
где:
D – диаметр водопроводной сети, [мм];
25 – переводное число из миллиметров в дюймы;
Vв – скорость движения воды в водопроводе, которая равна:
- при напоре водопроводной сети H=40 м вод.ст. -Vв =2 [м/с].
Наружный водопровод обеспечивает требуемый расход.
9 .Определение требуемого запаса воды для тушения пожара и защиты объекта.
На объектах, где запас воды для целей пожаротушения ограничен, проводится расчёт требуемого запаса воды для тушения и защиты, а так как наш объект достаточно обеспечен водой, то расчет не требуется
10. Определение предельного расстояния подачи огнетушащих средств
Lпред
=
=
=396 [м]
где:
Нн – напор на насосе, который равен 90-100 м вод.ст.;
Нразв –напор у разветвления, который равен 40-50 м вод.ст.;
Zм –наибольшая высота подъёма (+) или спуска (-) местности на предельном расстоянии, [м];
Zств - наибольшая высота подъёма (+) или спуска (-) ствола от места установки разветвления или прилегающей местности на пожаре, [м];
S- сопротивление одного пожарного рукава, ();
Q- суммарный расход воды одной наиболее загруженной магистральной рукавной линии, [л/с] (приложение 8);
"20"- длина одного напорного рукава, [м];
11. Определим требуемое количество пожарных автомобилей
С учетом использования насосов на полную тактическую мощность, требуемое количество пожарных автомобилей составит:
![]()
где:
0,8 – коэффициент полезного действия пожарного насоса;
Qн – производительность насоса пожарного автомобиля, [л/с].
13. Определение требуемой численности личного состава для тушения пожара
Nл.с.
= Nгдзс
3+ Nавт.
1+ Nсв.
1 = 8
3 + 2
1 + 1 = 27 человек
где:
Nгдзс -количество звеньев ГДЗС
Nавт. – количество пожарных автомобилей, установленных на водоисточники и подающих огнетушащие средства. Личный состав при этом занят контролем за работой насосно-рукавных систем из расчёта: 1 человек на 1 автомобиль;
Nсв. – количество связных, равное количеству прибывших на пожар подразделений.
14 Определим требуемое количество отделений
отделений
Согласно расписанию выездов гарнизона, по второму номеру вызова на пожар прибывают 7 отделений на основной пожарной технике.
Из них:
· по первому номеру 2 АЦ , укомплектованность 90 %, таким образом
человек
· по второму номеру 5АЦ, укомплектованность 85%, таким образом
человек.
![]()
Вывод о достаточности сил и средств
Сил и средств, для ликвидации пожара по второму номеру достаточно.
1.7 Расчет параметров пожара по установленному расчетом сил и средств повышенному рангу пожара и до локализации
Определение параметров пожара на момент введения сил и средств вторым подразделением
1 Определение времени введения сил и средств вторым подразделением
![]()
Определение пути, пройденного огнем
2,5+5+0,5
0,35 (8-6)=8 м
3 Определение площади пожара
SП = p×L2 =3,14х82 =200 [м2 ],
4 Определение скорости роста площади пожара
![]()
На этот период наступит локализация пожара, так как Qф >Qтр . На момент прибытия третьего подразделения, сил и средств будет достаточно, а последующие подразделения будут подавать стволы на защиту кровли и соседних помещений.
5.Определение площади тушения пожара
Для круговой формы пожара площадь тушения будет равна:
Sт = π h (2L – h)=172 м2 ,
где:
h = 5 м – глубина тушения ручными стволами;
6 .Определение требуемого расхода воды на тушение пожара
Интенсивность подачи воды составит 0,3 л/с*м2 ([6] Раздел 2.3)
Требуемый расход воды на тушение пожара составит:
![]()
6. Определение требуемого расхода воды на защиту
![]()
7. Определение общего расхода воды
![]()
8. Определение требуемого количества стволов на тушение и на защиту
Для тушения и защиты принимаем стволы РС-70 с расходом 7,4 л/с при напоре у ствола 40 м.
стволов РС-70 (принимаем 5 стволов РС-70 и 2 ствола ствола РС-70 со свернутым насадком)
9 .Определение фактического расхода воды
![]()
Qф >Qтр
Определение времени прибытия СПТ на пожар
Время прибытия СПТ к месту вызова соответствует времени прибытия к месту вызова третьего подразделения.
tспт =tд.с. +tсб. +tсл.3 = 8 + 1 + 10 = 19 мин
Определение времени локализации
Продолжительность периода локализации зависит от быстрого проведения разведки пожара, оценки обстановки, скорости сосредоточения фактического расхода огнетушащих средств (Qф >Qтр. ), тактически грамотного управления боевыми действиями подразделений, участвующих в тушении пожара, и других факторов.
Время локализации пожара определяется по формуле:
лок. =c в. +(c л. N c л.1 )=20+(8-6)=22 мин
где:
cл.N-
время следования N-го подразделения.
1.8 Расчёт оптимальности работы насосно – рукавных систем пожарной техники работающей по подаче огнетушащих веществ
Расчет оптимальности насосно-рукавной системы АЦ, подающей воду от ПГ-3
1.Определяем расстояние до объекта
Согласно схеме водоснабжения расстояние от гидранта до объекта 60 м
2 Определяем количество рукавов в магистральной линии
рукава d = 77мм
3 Определяем условный предельный расход по магистральной линии

,
Где:
10 – напор на разветвлении;
У = -5 – уклон местности;
Нств = 40 м.
4. Предельный расход магистральной линии равен:
![]()
5. Определяем напор на насосной установке ПА по наиболее нагруженной магистральной линии:

6 Схема подачи стволов

Схема 7
Расчет оптимальности насосно-рукавной системы АЦ, подающей воду от ПГ-6
1.Определяем расстояние до объекта
Согласно схеме водоснабжения расстояние от гидранта до объекта 120 м
2 Определяем количество рукавов в магистральной линии
рукавов d = 77мм
3 Определяем условный предельный расход по магистральной линии

,
Где:
10 – напор на разветвлении;
У = -5 – уклон местности;
Нств = 40 м.
4. Предельный расход магистральной линии равен:
![]()
5. Определяем напор на насосной установке ПА по наиболее нагруженной магистральной линии:

6 Схема подачи стволов

Схема 8
1.9 Организация тушения возможного пожара первым РТП
Таблица 5 Учет сил и средств
| Пчвзаимодействующейслужбы | Времяприбытия | Численностьбоевогорасчета | Боевая задача, время получения | УчастокТушенияпожара № |
Времявведенияпервого ствола |
Время Убытия с места пожара |
| ПЧ-4 | 6:46 | АЦ 6 чел. АЦ 6 чел. |
Командиру 1-го отделения: 6:46 Установить АЦ у входа. Подать звеном ГДЗС ствол РС-70 на тушение. Командиру 2-го отделения: 6:46 Установить АЦ на ПГ №3, проложить 1 магистральную линии Ø 77, РТ-80 установить у входа. Подать на тушение звеном ГДЗС ствол РС -70. |
1 1 |
6:50 6:50 |
|
| ПЧ-1 | 6:47 | АЦ 6 чел. АЦ 6 чел. |
Установить АЦ на ПГ №6. Подать звеном ГДЗС 2 ствола РС-70 на тушение внутри склада. Подать на тушение звеном ГДЗС 2 ствола РС -70. |
2 1 |
6:52 6:52 |
Таблица 6 Учет участков тушения пожара
| № УТП | Начальник УТП | Боевая задача | Количество | Стволы | ||||||
| л/с | Отде лений | Зв. ГДЗС | А | Б | плс | гпс | свп | |||
| 1 | Начальник караула ПЧ-4 | Предотвращение распространения и тушение пожара на складе культтоваров. | 9 | 3 | 3 | 3 | ||||
| 2 | Начальник караула ПЧ-1 | Предотвращение распространения и тушение пожара на складе. | 12 | 4 | 4 | 4 | ||||
Таблица 7 Учет распоряжений и информации
| Время | Что передано | Кому передано | Кто передал | Кто принял |
| 6:46 | Прибыл к месту пожара. Из двери склада идет дым. Разведка. | ЦУС | РТП-1 | ЦУС |
| 6:46 | Установить АЦ на ПГ – 3. Подать звеном ГДЗС ствол РС-70 на тушение. | Командиру 2-го отделения | РТП-1 | Командир 2-го отделения |
| 6:46 | Подать звеном ГДЗС ствол РС-70 на тушение. Выставить КПП. | Командиру 1-го отделения | РТП-1 | Командир 1-го отделения |
| 6:50 | Горят стеллажи культтоваров на складе на площади 170 кв.м, на тушение подали 2 ствола РС-70. | ЦУС | РТП-1 | ЦУС |
| 6:47 | Прибыл к месту пожара. | ЦУС | Нач. караула СПЧ-2 | ЦУС |
| 6:47 | Установить АЦ на ПГ №6. Подать звеном ГДЗС 2 ствола РС-70 на тушение внутри склада. Подать на тушение звеном ГДЗС 2 ствола РС -70. Подать ствол РС-70 от АЦ ПЧ-4 | Начальнику караула ПЧ-1 | РТП-1 | Начальник караула ПЧ-1 |
| 6:49 | Прибыл к месту пожара. | ЦУС | РТП-2 | ЦУС |
| 6:49 | Прибыл к месту пожара. | ЦУС | Нач. караула ПЧ-5 | ЦУС |
| 6:50 | Создан оперативный штаб. | ЦУС | РТП-2 | ЦУС |
| 6:51 | Подано звеньями ГДЗС 3 ствола А на тушение и 2 ствола А на защиту. | ЦУС | РТП-2 | ЦУС |
| 6:51 | Локализация пожара. | ЦУС | РТП-2 | ЦУС |
| 6:52 | Прибыл к месту пожара. | ЦУС | Нач. караула ПЧ-13 | ЦУС |
| 7:40 | Ликвидация пожара | ЦУС | РТП-2 | ЦУС |
Вывод: по результатам анализа обстановки и расчетам, можно сделать вывод, что успех тушения пожара зависит от слаженности и правильности действий личного состава под четким руководством РТП.
1.10 Схема организации связи и управления силами и средствами на пожаре

Рисунок 9
1.11 Совмещенный график изменения параметров развития и тушения пожара

Рисунок 10
1.12 Документы штаба
Для умелого управления силами и средствами на пожаре необходимо отчетливо знать истинную обстановку, в которой оказались подразделения при выполнении поставленной задачи. Учитывая, что обстановка быстро меняется, оперативный штаб непрерывно заботится о сборе, изучении и обобщении данных о развитии пожара, действиях подразделений, опасных факторах пожара, возможности их возникновения на участках тушения.
1.13 Рекомендации руководителю тушения пожара
· По прибытию произвести разведку, уточнить о результатах эвакуации людей, степень задымления помещений;
· Отдать распоряжение об организации штаба пожаротушения, включая в его состав представителей администрации. Назначить начальника штаба, начальника тыла;
· Определить пути продвижения к очагу пожара, его размеры и вероятные направления распространения;
· Выяснить у администрации места расположения и наиболее ценного оборудования, степень угрозы ему от огня и дыма, необходимость, порядок, очередность и выполнение мероприятий по его эвакуации;
· Определить решающее направление на пожаре, необходимое количество сил и средств, для ликвидации горения, спасения людей и эвакуации имущества, способы и приемы боевых действий;
· Поставить задачи подразделениям, организовать их взаимодействие и обеспечить выполнение поставленных задач;
· Непрерывно следить за изменениями обстановки на пожаре;
· Организовать БУ, назначить начальников БУ и поставить им задачи;
· Поддерживать непрерывную связь с ЦУС;
· Все основные решения по тушению пожара принимать после консультации и согласования их со специалистами объекта,;
· Обеспечить безопасные условия работ личного состава;
· Сосредоточить резерв сил и средств в безопасной зоне;
· Определить направления, очередность и типы вводимых стволов для тушения и защиты конструкций с учетом места горения.
Рекомендации начальнику оперативного штаба пожаротушения.
· Развернуть и организовать работу штаба, введя в его состав представителей от администрации объекта;
· Организовать боевые участки и произвести расстановку сил и средств по БУ;
· Изучить обстановку на пожаре путем организации непрерывной разведки и получения данных от начальников боевых участков;
· В соответствии с обстановкой внести коррективы в оперативный план пожаротушения;
· При необходимости вызвать дополнительные силы и средства;
· Докладывать РТП и сообщать диспетчеру гарнизона оперативную информацию об обстановке на пожаре;
· Проверить сосредоточение и расстановку сил и средств на пожаре, в соответствии с заданием и оперативным планом пожаротушения;
· Создать из прибывших подразделений резерв;
· Определить место сосредоточения резерва пожарной техники и личного состава;
· Организовать связь на пожаре и оповещение в опасной зоне о путях эвакуации и месте сосредоточения, правилах ТБ, предупреждении о недопущении паники и нервозности;
· Самостоятельно принимать решения, не терпящие отлагательства, с последующим докладом о них РТП;
· Обеспечить контроль за исполнением приказаний руководителя тушения пожара и штаба;
· Подготовить схему развития и тушения пожара, которую совместно со своими предложениями по ликвидации пожара представить РТП;
· Организовать взаимодействие со специальными службами объекта;
· Проконтролировать высылку техники согласно расписанию выездов;
· Вести учет прибывших сил и средств, отданных распоряжений РТП и подчиненным лицам, выполнение проводимых мероприятий;
· Вести оперативную документацию штаба;
· Рекомендации начальнику тыла
Произвести разведку водоисточников, выбор насосно-рукавных систем, встречу и расстановку на водоисточники пожарной техники;
· Обеспечить, при необходимости, через диспетчера "Водоканала" повышение напора в водопроводной сети;
· Организовать прокладку магистральных линий в соответствии с заданием РТП, НШ и оперативного плана пожаротушения;
· Создать резерв пожарных рукавов для магистральных линий из расчета 1 рукав на каждые 100 метров;
· Произвести расчет необходимого количества пожарной и специальной техники и пожарных рукавов, подготовить схему расстановки техники и прокладки магистральных линий, которую совместно со своими предложениями о потребном количестве сил и средств представить на рассмотрение РТП;
· Обеспечить использование пожарной техники на полную мощность, наблюдая за ее работой, и обеспечить бесперебойную подачу воды на пожар;
· О расстановке сил и средств, прокладке магистральных линий немедленно докладывать в штаб пожаротушения;
· Вести учет работы техники, рукавов и количества ГСМ в пожарных автомобилях;
· Определить резерв техники и смену работающих на пожаре подразделений и отдых для них;
· Принимать меры к обеспечению личного состава боевой одеждой и средствами защиты органов дыхания;
· Обеспечить общественный порядок и охрану места пожара и рукавных линий;
· Резерв пожарной техники сосредоточить с западной стороны здания;
· Организовывать своевременное обеспечение пожарной техники горюче-смазочными и другими эксплуатационными материалами;
· При необходимости организовать работу КПП и медпункта, определив им место около штаба пожаротушения;
· Организовать заправку воздушных баллонов и, в случае необходимости доставку резервных баллонов;
· При затяжном пожаре (более 5 часов) организовать питание личного состава. При температуре ниже 20 0 С производить смену личного состава, отдых в теплых помещениях.
Начальник боевого участка (НБУ) обязан:
· проводить разведку пожара, сообщать о ее результатах РТП;
· обеспечивать спасание людей и имущества на БУ и выполнение иных решений РТП, в том числе по ограничению прав должностных лиц и граждан на территории БУ;
· проводить расстановку сил и средств на БУ;
· обеспечивать подачу огнетушащих веществ на боевых позициях;
· организовывать пожарную связь на БУ;
· запрашивать, при необходимости, дополнительные силы и средства для решения поставленных задач;
· организовывать на БУ в установленном порядке работу звеньев ГДЗС;
· обеспечивать выполнение правил охраны труда, доводить до участников тушения пожара информацию о возникновении угрозы для их жизни и здоровья;
· докладывать РТП информацию о выполнении поставленных задач, причине пожара и лицах, причастных к его возникновению, принимать меры к сохранению обнаруженных на БУ возможных вещественных доказательств, имеющих отношение к пожару.
Рекомендации ответственному за охрану труда
За охрану труда (за безопасность личного состава на пожаре) отвечает РТП или лицо, им назначенное.
На них возлагаются вопросы обеспечения безопасности личного состава при работе по тушению пожара на данном объекте:
o – обеспечить своевременный вывод пожарных из опасной зоны при угрозе обрушения конструкций здания или взрыва установок и аппаратов;
· соблюдение мер безопасности от поражения электрическим током;
· подача сигнала на отход с боевых позиций при угрозе вскипания или выброса нефти и нефтепродуктов из горящего резервуара;
· обеспечение безопасности пожарных при эвакуации опасных веществ и материалов, а также при наличии токсичных продуктов горения;
· создание безопасных условий работы пожарных при разборке конструкций и сбрасывании их с высот; обеспечение мер безопасности личного состава работающего на больших высотах;
· обеспечение безопасности работы в зоне радиоактивного и ядовитого заражения;
· предупреждение личного состава, работающего на пожаре, о возможных иных опасных явлениях, сопровождающих пожар (провалы, разгерметизация или разрушение пожаровзрывоопасных аппаратов и др.).
Список используемой литературы
1. Федеральный закон о пожарной б ез опасности № 69 1995г.(с изменениями и дополнениями).
2. Приказ МВД России № 257 от 05 июля 1995г (с изменениями и дополнениями от 06 мая 2000г. № 477).
3. Я.С. Повзик "Пожарная тактика". – М. : "ЗАО Спецтехника" 2000 г.
4. В.П. Иванников, П.П. Клюс. "Справочник руководителя тушения пожара".- М: "Стройиздат" 1987г.
5. Приказ МЧС России № 630 от 31 декабря 2002 г "Правила по охране труда в подразделениях Государственной противопожарной службы МЧС России".
6. Д.Ю. БучельниковС.Ю. БучельниковД.С. КолмогоровС.И.Осипенко "Методические указания по выполнению курсовой работы." Екатеринбург 2008.
Похожие рефераты:
Организация и тактика тушения пожаров на нефтепромысле г. Перми
Проектирование пожарного депо с детальной проработкой постов технического обслуживания
Организация тренировок по эвакуации персонала образовательных учреждений при пожаре
Тушение пожаров на железнодорожном транспорте
Организация и ведение спасательных работ при пожарах
Причины возникновения пожаров в жилых и общественных зданиях
Организация и тушение пожаров в театрах и культурно-зрелищных учреждениях
Осмотр места происшествия при расследовании пожаров
Природные пожары, их характеристика,особенности лесных пожаров