| Скачать .docx |
Реферат: Виробниче освітлення
Виробниче освітлення
Зміст
1. Значення раціонального освітлення
2. Основні світлотехнічні поняття і визначення
3. Класифікація систем виробничого освітлення
4. Нормування і розрахунок природного освітлення
5. Нормування природного освітлення
6. Розрахунок природного освітлення
7. Нормування і розрахунок штучного освітлення
8. Вимірювання освітленості
1. Значення раціонального освітлення
Зір - один з головних інформаторів людини про навколишній світ. Близько 90% всієї інформації про зовнішній світ надходить в наш мозок саме через очі. Фізіологи називають очі частиною головного мозку, винесеного на периферію для контакту із зовнішнім середовищем.
Неправильно проведене освітлення завдає значної шкоди зору працівників.
Навпаки, при хорошому освітленні усувається напруження ока, полегшується розрізнення об’єктів, швидшає темп роботи.
Світло стимулює діяльність всього організму.
Правила гігієни праці вимагають максимального використання природної освітленості, оскільки сонячне світло здійснює біологічну оздоровлюючу дію на організм.
Дія ця викликається не тільки ультрафіолетовим випромінюванням (більша частка його через звичайне віконне скло в приміщення не проникає), але і випромінюваннями видимого спектра, до яких протягом тисячоліть пристосувалося око людини. Природне світло створює у людей відчуття безпосереднього зв'язку з навколишнім світомі заспокійливо діє на нервову систему.
Забезпечення гігієнічно раціональних умов освітлення у виробничих приміщеннях сприяє тривалому збереженню працездатності, призводить до зростання продуктивності праці і до поліпшення якості продукції, що випускається.
Проведені дослідження впливу вібрації, низької освітленості, запорошеності, шуму, що впливають одночасно, показали, що найбільшу негативну дію на продуктивність праці здійснюють вібрації (38,9%) і освітленість (33,1%), менше - запорошення (21,1%) і шум (5,1%). Результати хронометричних досліджень за процесомбуріння перфоратором типу ПР-ЗОК в умовах прохідницького забою Березовського рудника показали, що збільшення освітленості забою з 1-2 до 20 лк призводить до скорочення часу буріння на 15%, а до 10 лк - на 18% і дозволяє збільшити тривалість провітрювання забою після вибухових робіт і тим самим поліпшити умовипраці.
Тому важливо забезпечувати на робочих місцях раціональне освітлення (прийнятне освітлення при мінімальних витратах).
Завданнями раціонального освітлення є:
1. Поліпшення зорових умов праці.
2. Створення сприятливої виробничої обстановки.
3. Зменшення небезпеки виробничого травматизму.
2. Основні світлотехнічні поняття і визначення
Вони поділяються на кількісні і якісні.
До кількісних відносять такі поняття:
Світловий потік (F) - потік променистої енергії, що оцінюється за зоровим відчуттям, характеризує потужність світлового потоку. Одиниця світлового потоку - люмен (лм).
1 лм - світловий потік, що випромінюється точковим джерелом світла в тілесному куті - 1 стерадіан при силі світла, яка дорівнює 1 канделі.
Стерадіан - тілесний кут з вершиною в центрі сфери, який вирізує на поверхні сфери площу, що дорівнює площі квадрата із стороною, довжина якого дорівнює радіусу сфери.
Сила світла (I) - характеризує просторову густину світлового потоку в певному напрямі. Одиниця сили світла кандела (кд).
1кд - сила світла, яка випромінюється в перпендикулярному напрямі абсолютно чорним тілом з площі 1/600000 м2 при температурі затвердіння платини і тиску 101325 ньютонів на квадратний метр (Н/м2 ).
Яскравість поверхні L (кд/м2 ) - поверхневагустина сили світла. Одиниця яскравості - кандела на квадратний метр (кд/м2 ). Це яскравість плоскої поверхні, яка випромінює в перпендикулярному напрямі з кожного квадратного метра силу світла, яка дорівнюєодній канделі. Для цієї самої одиниці застосовуєтьсядруга назва - нит (нт).
Освітленість (Е) - поверхнева густина світлового потоку, дорівнює світловому потоку, що падає на елемент поверхні, віднесеного до площі освітлюваної поверхні. Одиниця освітленості - люкс (лк). Це освітленість поверхні площею 1 квадратний метр при світловому потоці, що падає на неї і дорівнює1 люмену.
Коефіцієнт віддзеркалення (r) є відношенням відбитого тілом світлового потоку Fв до падаючогоFп :
. (1.1)
Віддзеркалення світлового потоку поверхнями залежить від їх забарвлення і будови. Залежно від властивостей тіла віддзеркалення світлового проміння може бути дзеркальним (від полірованих і шліфованих поверхонь) або розсіяним. Практично всі тіла відбивають світловий потік, який падає на них, за змішаним принципом.
До якісних показників відносять такі:
Характеристика фону.
Фон - це поверхня, яка прилягає до даного об'єкта в процесі проведення зорової роботи. Фон розрізняють: темний (r<0,2), середній (0,2<r<0,1), світлий (r>0,1).
Контраст об'єкта з фоном К - характеризує відношення яскравості даного об'єкта і фону:
, (1.2)
де Lо - яскравість об'єкта;
Lф - яскравість фону.
Видимість V - характеризує здатність ока сприймати об'єкт. Залежить від освітленості, розміру об'єкта, його яскравості і контрасту. Вона виражає відношення контрасту дійсного до контрасту граничного:
, (1.3)
де Кгр - граничний контраст, тобто якнайменший помітний оком контраст, при невеликому зменшенні якого об'єкти стають невидимими.
Показник засліпленості характеризує досконалість освітлювальної установки (системи):
Коефіцієнт пульсації освітленості (для люмінесцентних ламп).
Показник дискомфорту (оцінює дискомфорт блиску віддзеркалюваних поверхонь).
3. Класифікація систем виробничого освітлення
Виробниче освітлення може бути класифіковано:
1. За видом джерела світла:
а) природне освітлення;
б) штучне освітлення.
2. За конструкцією: природне - бічне, верхнє, комбіноване.
Суміщене освітлення - коли до природного додається штучне.
Штучне освітлення - загальне (рівномірне, локалізоване), комбіноване (загальне і місцеве); застосування одного місцевого освітлення забороняється.
При комбінованій системі освітлення частка загального повинна складати 10% норми для комбінованого освітлення, але не менше 50 лк при використанні ламп розжарювання і не менше 150 лк для газорозрядних (люмінесцентних) ламп.
3. За призначенням:
робоче освітлення (для нормальної діяльності);
аварійне (для продовження роботи, де можуть виникнути тяжкі наслідки при припиненні роботи робочого освітлення. При цьому якнайменша освітленість повинна складати не менше5% від робочого освітлення при системі загального освітлення, але не менше 2 лк усередині приміщення і 1 лк - для території підприємства;
евакуаційне освітлення - встановлюється в місцях, небезпечних для проходження людей. Якнайменша освітленість - 0,5 лк на межах основних проходів усередині приміщення і 0,2 лк на відкритих територіях.
спеціальне: охоронне, чергове, еритемне опромінення, бактерицидне опромінення.
4. Нормування і розрахунок природного освітлення
Природне освітлення в будь-якій точці приміщення характеризується коефіцієнтом природного освітлення (КПО). КПО є вираженим у відсотках відношеннямосвітленості, яка створюється в деякій точці приміщення світлом неба, до одночасної освітленостіточки, що знаходиться зовні приміщення на відкритому просторіі яка освітлюється розсіяним світлом всього небосхилу. Аналітично КЕО виражається формулою
, (1.1)
де Евн - освітленість усередині приміщення, лк;
Ез - освітленість зовнішня на горизонтальній поверхні, лк.
Отже, КПО показує, яку частку від одночасної горизонтальної освітленості на відкритому просторі при дифузному світлі небосхилу складає освітленість в даній точці приміщення.
Введення відносної одиниці - коефіцієнта природного освітлення - пов'язано з непостійністю в приміщеннях природного освітлення в часі, яке пояснюється природними особливостями сонячного і небесноговипромінювань (час дня, пора року, метеорологічні умови (хмарність) і властивостей земного покриву, що віддзеркалює світло).
Якнайменша розрахункова освітленість, яка створюється природним світлом в приміщенні, визначається при зовнішній освітленості, яка дорівнює 5000 лк.
5. Нормування природного освітлення
Відповідно до СНИП II-1-79 нормоване значення КПО - для будівель, розміщених в I, II, IV, V поясах світлового клімату, визначається за формулою
, (1.5)
де еIII - значення КПО, що визначається за СНіП залежно від характеристики зорової роботи; коливається від 10% до 0/1% відповідно для I-VIII розрядів зорової роботи;
m - коефіцієнт світлового клімату, визначається в залежності від географічного району розташування будівлі (для V поясу - 0,8; для I поясу - 1,2) (місто Суми знаходитьсяв IV світловому поясі, як і майже вся Україна, для якого m= 0.9);
с - коефіцієнт сонячності клімату, визначається за таблицею в залежності від орієнтації вікон будівлі відносно сторін горизонту і географічного району розташування будівлі на території країни, можливі значення лежать в межах 0,65 - 1,0.
6. Розрахунок природного освітлення
Існує декілька методів визначення значення КПО, у тому числі точковий, метод Данилюка, орієнтовний метод.
Орієнтовно - необхідну площу світлових прорізів можна визначити з формули (1.6) залежно від площі підлоги. Для бічного освітлення
(1.6)
де Sв - площа віконних прорізів;
Sп - площа підлоги;
hв - світлова характеристика вікна залежить від конфігурації і розмірів вікон і приміщень;
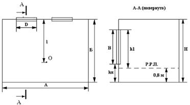
Зокрема, hв залежить від відношення довжини приміщення А до глибини приміщення Б. Необхідно мати на увазі, що за довжину приміщення береться довжина стіни з вікнами, а за глибину приміщення береться відстань від вікон до протилежної стіни (див рис 1.1).
Kз - коефіцієнт запасу (30-50%) (Кз = 1,3-1,5);
Kбуд - коефіцієнт, що враховує затемнення вікон будівлями, що стоять навпроти вікон;
tпро - загальний коефіцієнт світлопроникнення визначається з добутку 5 коефіцієнтів, що враховують
tо= t1* t2* t3* t1* t5, (1.7)
де t1 - світлопроникний матеріал вікна;
t2 - конструкцію вікон;
t3 - забрудненість;
t1 - несучі конструкції;
t5 - наявність сонцезахисних пристроїв;

Рисунок 1.1 - Схема приміщення
r1 - коефіцієнт, що враховує вплив світла, відбитого від внутрішніх поверхонь приміщення, залежить від розмірів приміщення і коефіцієнтів віддзеркалення стелі, стін, робочої поверхні.
Формула 1.6 може бути використана в двох варіантах:
1. Знаючи тип роботи і площу підлоги, можна знайти необхідну площу вікон.
2. Маючи приміщення з відомими вікнами, визначити відповідність площі вікон розряду зорових робіт, тобто знайти фактичне значення КПО:
(1.8)
При визначенні коефіцієнтів hв та r1 необхідно мати на увазі, що довжиною приміщення є довжина стіни з вікнами, а глибиною - відстань від зовнішньої стіни з вікнами до протилежної стіни в приміщенні.
Допускається відхилення фактичної освітленості від нормованої на - 5+10%.
Основні санітарні вимоги до проектування і улаштування природного освітлення:
У всіх будівлях повинні бути вжиті заходи до максимального використання природного освітлення.
Доцільно вбудувати одне велике вікно, ніж декілька невеликих тієї самої сумарної площі.
Вікна повинні розміщуватися на однаковій відстані один від одного і від кутів будівлі (відстань між вікнами не повинна перевищувати двократної ширини вікна).
Верхній край вікна повинен розміщуватися по можливості ближче до стелі.
Світло повинне падати на робоче місце з лівого боку.
7. Нормування і розрахунок штучного освітлення
В СНиП 11-1-79 записано, що при улаштуванні штучного освітлення необхідно намагатися використовувати газорозрядні лампи. За неможливості або економічної доцільностіможна, як виняток, застосувати лампи розжарювання.
Джерела світла штучного освітлення характеризуються:
напругою живлення, споживаною потужністю;
економічними характеристиками (термін служби в годинах, світловіддачею);
світлотехнічною характеристикою (загальний світловий потік);
конструкційними характеристиками (розміри ламп, форма і розміри цоколя).
Переваги і недоліки існуючих джерел штучного освітлення
Газорозрядні лампи. Переваги:
1) більш довговічні (5000 тисяч годин горіння);
2) більша світловіддача (50 - 130 лм/Вт);
3) задовільний спектральний склад світла, який можливо корегувати, підбираючи необхідний тип лампи: ЛБ - лампи білого світла, ЛД - лампи білого світла, ЛДЦ - лампи з поліпшеною кольоропередачею, ЛТБ - лампи тепло-білого світла.
Недоліки:
1) складніші в експлуатації;
2) улаштуванні;
3) дорожчі;
1) стробоскопічний ефект - це помилкове сприйняття людиною стану речей внаслідок пульсації світлового потоку від люмінесцентних ламп з частотою пульсації змінного струму (50Гц): предмети, що обертаються з такою частотою здаються нерухомими і можуть (методи боротьби: застосування світильників з декількома лампами, причому сусідні лампи включають в різні фази пульсації за допомогою індукційних і ємнісних опорів, тобто штучно зміщують фази);
5) час загоряння до 10 хв.;
6) наявний ефект старіння (до кінця терміну роботи початковий світловий потік зменшується до 50%).
Лампи випускаються потужністю до 120 ватів марки:
ЛД - лампи денного світла;
ЛБ - лампи білого світла;
ЛХБ - лампи холодно-білого світла;
ЛТБ - лампи тепло-білого світла;
ЛДЦ - з поліпшеною кольоропередачею.
Лампи розжарювання
Те, що позитивне для газорозрядних, негативне для ламп розжарювання, і навпаки: не економічні, недосконалий спектральний склад, але немає пульсації, простота конструкції, експлуатація за потужністю до 1500 Вт. Термін служби до 1000 годин.
Світильники.
Світильники - це комплект, що складається з джерела світла, освітлювальної арматури і підвідних дротів. Вони класифікуються:
1 За розподілом світлового потоку в просторі (прямого світла, розсіяного, віддзеркаленого);
2 За формою кривої сили світла (рівномірного, концентрованого, косинусного, синусного);
3 Залежно від виконання, призначення, способу установки.
Світильники характеризуються коефіцієнтом використання світлового потоку h=0,5-1.
Існують щілисті світловоди.
Щілистий світловод - це циліндрична труба великої довжини. Більша частина внутрішньої поверхні труби по всій довжині покрита шаром, що дзеркально відбиває світло.
Потужні лампи встановлені в торцях світловоду - за межами освітлюваного приміщення (дуже важливо для вибухонебезпечних виробництв). Нижня частина труби (щілина) виконана з прозорого матеріалу, через яку світло проходить і освітлює приміщення.
8. Вимірювання освітленості
Вимірювання освітленості здійснюється люксметром типу Ю-16, Ю-17, Ю-117.
Люксметр складається з селенового фотоелемента і стрілкового гальванометра, який градуйований, Лк.
Принцип роботи - під дією світла у фотоелементі (селенова пластинка) виникає фотострум, який вимірюється гальванометром.
Допускається відхилення фактичної освітленості від нормованої в нижню сторону не більше, ніж на 10%.
Збільшення освітленості (в порівнянні з нормами) до будь-кого практично досяжної величини - бажано. Обмежує в першу чергу перевитрату електроенергії і вартість освітлювальної техніки.
При проектуванні штучного освітлення допускається перевищення фактичної освітленості над нормованою не більше ніж на 20%.
Вимоги до улаштування штучного виробничого освітлення
Освітленість на робочому місці повинна відповідати характеру виконуваної роботи.
Згідно з СНиП II-1-79 всі роботи за зоровими умовами підрозділяються на 8 розрядів у залежності від розміру об'єкта розпізнання:
I - розмір об'єкта розпізнання менше 0,15 мм;
VIII - загальний нагляд за ходом технологічного процесу.
Створення рівномірного розподілу яскравості на робочій поверхні за рахунок вибору відповідної системи освітлення і типу світильників.
Оптимальна спрямованість світлового потоку.
Рівномірна освітленість в часі. Спеціальне включеннягазорозрядних ламп.
Необхідний спектральний склад випромінювань.
Зведення до мінімуму чинників: тепловиділень, випромінювання, шуму, зменшення вибухової небезпеки, пожежної і електронебезпеки.
Зручність і надійність експлуатації.
Розрахунок штучного освітлення. Методи розрахунку
Існують декілька методів розрахунку штучного освітлення:
1 за методом коефіцієнта використання світлового потоку;
розрахунок точковим методом;
розрахунок методом питомої потужності. Метод наближений, пов'язує необхідну потужність системи освітлення і площу приміщення (інспекторський). Існують таблиці, де від розряду зорової роботи подається необхідне значення питомої потужності, яку повинна забезпечити система освітленняВт/м2 .
Розрахунок за методом коефіцієнта використання світлового потоку:
’ (1.9)
де Fл - необхідний розрахунковий світловий потік однієї лампи для забезпечення освітленості Емін , яку вимагає СНиП. Необхідна мінімальна освітленість береться за СНиП. Вона залежить від розряду та підрозряду зорової роботи, виду джерела світла та системи освітлення, лк;
S - площа підлоги, м2 ;
Кз - коефіцієнт запасу (Кз = 1,5 - 2);
Z - коефіцієнт, що враховує нерівномірність освітлення (відношення середньої освітленості до мінімальної), для ламп розжарювання Z=1,15, для люмінесцентних ламп - Z=1,1;
η - коефіцієнт використання світлового потоку світильника в частках одиниці (від 0, 2 до 0,8), він залежить від:
а) типу світильника;
б) коефіцієнта віддзеркалення стелі, стін і робочої поверхні;
в) індексу приміщення I:
, (1.10)
де А та В - довжина та ширина приміщення;
hр - висота підвісу світильників над робочою поверхнею;
N - кількість світильників, допускається округлення - 10% + 20%;
n - кількість ламп у світильнику.
Точковий метод розрахунку.
, (1.11)
де Fл - необхідний розрахунковий світловий потік однієїлампи, лм;
μ - коефіцієнт, що враховує вплив віддалених джерел світла;
ΣЕ - сумарна умовна освітленість від найближчих світильників, визначається за графіками просторових ізолюкс.
Для кожного типу світильника побудовані графіки просторових ізолюкс.
Точковий метод розрахунку передбачає і другий варіант - пов'язує освітленість і силу світла:
(1.12)
де Iα сила світла в напрямі від джерела на дануточку робочої поверхні, кд;
r - відстань від світильника до розрахункової точки, м;
α - кут між нормаллю до робочої поверхні і напрямом світлового потоку від джерела світла.
Розрахунок освітленості від світлових рядів застосовується при розрахунку освітленості від рядів газорозрядних ламп.
Розрахункова формула має вигляд:
, (1.13)
де Ф´ - необхідна густина світлового потоку світловогоряду, лм/м;
Е - мінімальна освітленість за СНиП, лк;
К - коефіцієнт запасу;
hp - висота підвісу світильника над робочою поверхнею;
μ - коефіцієнт, що враховує віддалені джерела світла, можна взяти μ=1,1;
ΣE - сума умовної освітленості від усіх напіврядів світильників, визначається за графіками лінійних ізолюкс.
Розміщення світильників
Бажано розмістити їх по сторонах квадрата з довжиною сторони L= (1,1-1,6) hp .

Рисунок 1.2 - Схема розміщення світильників
Для ліній, що світяться, теж відстань між лініями повинна дорівнювати L.
Відстань від стіни до світильника або до лінії, що світиться, повинна складати l=0,3-0,5 L.
Порядок розрахунку штучного освітлення:
Задати або вибрати вихідні дані: розміри приміщення, вид виконуваної роботи, вид джерела світла, система освітлення та ін.
Вибрати тип світильника залежно від категорії виробництва з пожежної небезпеки і від метеорологічних умов.
Скласти в масштабі план приміщення.
Розмістити світильники на плані.
Вибрати норму штучної освітленості за СНиП П-1-79.
Вибрати метод розрахунку.
Розрахувати необхідний світловий потік однієї лампи.
Підібрати найближчу стандартну лампу.
Перевірити значення фактичної освітленості (відхилення фактичної освітленості від норми допускається -10 +20%).
Особливості розрахунку аварійного освітлення, евакуаційного, місцевого освітлення визначаються їх призначенням і вимогам до них.