| Скачать .docx |
Реферат: Экспертиза архитектурно-строительной части проекта здания
МЧС РОССИИ
САНКТ-ПЕТЕРБУРГСКИЙ УНИВЕРСИТЕТ
ГОСУДАРСТВЕННОЙ ПРОТИВОПОЖАРНОЙ СЛУЖБЫ
Кафедра пожарной безопасности зданий и сооружений
КУРСОВОЙ ПРОЕКТ
По дисциплине пожарная безопасность объектов и населенных пунктов
Тема: экспертиза архитектурно-строительной части проекта здания
Руководитель: майор вн.сл.Дорожкин А.С
Выполнил: студент учебной группы0641 ГМУ
Вариант № __
Дата сдачи на проверку |
Подпись исполнителя | Подпись руководителя |
Дата защиты _____________________
Оценка _____________________
Санкт-Петербург
2009
Кафедра пожарной безопасности зданий и сооружений
ЗАДАНИЕ
НА ВЫПОЛНЕНИЕ КУРСОВОГО ПРОЕКТА
по теме экспертиза архитектурно-строительной части проекта здания
Студент учебной группы 0641 ГМУ
Репка Максим Сергеевич
( Ф.И.О.)
Содержание курсового проекта:
1. Краткая характеристика объекта
2. Проверка соответствия проектных решений требованиям пожарной безопасности:
· проверка соответствия огнестойкости здания и строительных конструкций;
· экспертиза противопожарных преград;
· экспертиза объемно-планировочных решений;
· экспертиза эвакуационных путей и выходов;
· экспертиза противодымной защиты;
· экспертиза противовзрывной защиты;
· экспертиза технических решений, обеспечивающих успешную работу пожарных.
3. Разработка технических решений по устранению выявленных недочетов.
4. Предписание.
5. Графическая часть (на формате А4)
Руководитель:
ст.преподаватель кафедры ПБЗиС
майор вн. службы А.С. Дорожкин
«___»____________ 20__ г.
Введение
Современная строительная индустрия характеризуется следующими традициями: использование новых эффективных строительных материалов и конструкций (как отечественных, так и импортных), увеличение размеров зданий и инженерных сооружений (далее сооружений), строительство зданий повышенной этажности, объединение зданий различного назначения в единый комплекс. Это изменяет подход к предъявлению ряда требований пожарной безопасности при проектировании, строительстве, реконструкции зданий и сооружений, а так же обуславливает необходимость изменения нормативных документов по строительству.
Основными отличиями новых нормативных документов (Федеральных законов, сводов правил и национальных стандартов), которые разработаны в соответствии с рекомендациями международных организаций по стандартизации и нормированию, являются следующие [31]:
– приоритетность требований, направленных на обеспечение безопасности людей при пожаре (по сравнению с другими противопожарными требованиями);
– применимость противопожарных требований к объектам защиты на стадиях проектирования, строительства и эксплуатации, включая реконструкцию, ремонт и изменение функционального назначения;
– существенное развитие классификационной основы противопожарного нормирования для более объективного и дифференцированного учета функционального назначения зданий и инженерных сооружений, а так же конструкций и материалов, из которых они построены.
Одним из направлений деятельности Государственной противопожарной службы является проведение нормативно-технической работы. Во многих создаваемых проектах зданий и сооружений работники проектных организаций допускают отступления от требований нормативных документов и не в полной мере учитывают изменения, периодически вносимые в нормативную базу.
Цель дисциплины «Пожарная безопасность в строительстве» – научить обучаемых осуществлять надзор за соблюдением требований норм и правил пожарной безопасности при проектировании, строительстве, реконструкции и эксплуатации зданий и сооружений различного назначения.
Курсовой проект по дисциплине «Пожарная безопасность в строительстве» является завершающим этапом изучения дисциплины и в тоже время важной формой обучения и контроля знаний, умения и навыков обучаемых при проведении нормативно-технической работы государственного пожарного надзора.
Целью курсового проекта является закрепление теоретического курса, отработка практических навыков экспертизы архитектурно – строительной части проекта, отработка навыков работы с нормативно – технической литературой.
1. Краткая характеристика объекта
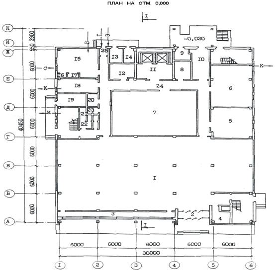
Унифицированное здание магазина "Одежда", торговой площадью 1000 м2
ЭКСПЛИКАЦИЯ ПОМЕЩЕНИЙ
Но- мер |
Наименование | Площадь м. кв. |
1 2 3 4 5 6 7 8 9 10 11 12 13 14 15 16 17 18 19 20 21 22 23 24 25 26 27 28 29 30 31 32 33 |
Торговые залы Тамбур торгового зала Витрина Помещение тепловой завесы Кладовая белья Помещение для хранения тары и обменного фонда контейнеров Кладовая одежды Помещение для хранения упаковочных материалов и инвентаря Камера для мусора Приёмочная Разгрузочная площадка Кладовая галантереи Электрощитовая Помещение для охраны Гардеробная Кабина для переодевания Душевая Мастерская мелкого ремонта оборудования и инвентаря Тепловой пункт Гладильная Помещение личной гигиены женщин Санузлы Помещение для хранения уборочного инвентаря, моющих и дезинфицирующих средств Коридоры Тамбур Мастерская подгонки готового платья Кладовая головных уборов и чулочно-носочных изделий Рекламно-декорационная мастерская Конторские помещения Кабинет директора Комната персонала Машинное помещение лифта Венткамеры |
1000,00 7,65 27,44 11,61 40,03 56,87 357,02 11,08 5,90 17,22 36,46 13,07 5,91 4,88 34,06 1,35 1,62 18,88 12,44 13,03 4,06 9,55 6,64 230,29 2,25 10,25 27,47 14,62 21,23 18,04 35,95 26,70 86,00 |
Характеристика путей эвакуации
Ширина:
- наружных дверей – 1,0 м;
- внутренних дверей – 0,8 м;
- лестничных маршей – 1,3 м;
- лестничных площадок – 1,2 м;
- коридоров – 1,4 м.
Высота:
- этажа – 3,1 м;
- наружных дверей – 2,1 м;
- внутренних дверей – 1,9 м;
уклон лестничных клеток – 1:2,1.
Отделка стен:
- коридоров – древесноволокнистые плиты;
- лестничных клеток – водоэмульсионная краска




2. Экспертиза архитектурно-строительной части объекта
2.1.Проверка соответствия степени огнестойкости здания и строительных конструкций
Огнестойкость здания – способность его, сохранять несущие функции и ограничивать распространение пожара в течении определенного времени.
Степень огнестойкости здания – классификационная характеристика объекта, определяемая показателями огнестойкости и пожарной опасности строительных конструкций [1].
Различают требуемую и фактическую степени огнестойкости здания.
Требуемая степень огнестойкости здания – минимальная степень огнестойкости, регламентируемая главой СП, соответствующей назначению здания (то есть та степень огнестойкости, не ниже которой должно обладать проектируемое здание). Ее определяют в зависимости от следующих параметров (факторов):
- функционального назначение здания;
- этажности здания;
- площади этажа (площади пожарного отсека);
- наличия автоматических установок пожаротушения;
- специфические.
Фактическая степень огнестойкости здания (та, которой здание обладает) – классификационная характеристика, определяемая числовыми значениями показателей огнестойкости и фактическими пределами распространения огня по строительным конструкциям.
Для проверки условия пожарной безопасности должны выполняться условия, при которых фактическая степень огнестойкости должна быть не ниже требуемой: Оф >Отр .
Показателем огнестойкости строительной конструкции является предел огнестойкости строительной конструкции.
Предел огнестойкости конструкции – показатель огнестойкости конструкции, определяемый временем от начала огневого испытания при стандартном температурном режиме до наступления до одного из нормируемых для данной конструкции предельных состояний по огнестойкости[1].
Требуемый (минимальный) предел огнестойкости строительной конструкции – нормируемый показатель огнестойкости, который регламентируется [2] для каждой основной строительной конструкции здания в зависимости от требуемой степени огнестойкости здания.
Фактический предел огнестойкости строительной конструкции – тот предел огнестойкости, которым обладает данная конструкция. Определяют путем натурных огневых испытаний либо по справочному материалу, либо расчетным путем для конструкции, которая является аналогичной для данной конструкции.
Условие пожарной безопасности: nф >nтр .
Методика проверки соответствия показателей огнестойкости строительных конструкций, и здания в целом противопожарным требованиям состоит в следующем:
1. Определяем требуемую степень огнестойкости здания.
2. Определяем числовые значения требуемых (минимальных) пределов огнестойкости и максимально допустимых (максимальных) пределов распространения огня для каждой основной строительной конструкции в зависимости от требуемой степени огнестойкости здания.
3. Определяем числовые значения фактических пределов огнестойкости.
4. Проверяем соблюдение условий пожарной безопасности
5. Делаем вывод о соответствии каждой проверяемой конструкции противопожарным требованиям СП 2.
Если хотя бы одна из проверяемых конструкций здания имеет показатели, не соответствующие противопожарным требованиям СП 2, то и здание в целом не соответствует требованиям пожарной безопасности (не соблюдается условие пожарной безопасности).
Требуемая степень огнестойкости здания.
Требуемая степень огнестойкости здания клуба не ниже IIв соответствии со СП 2.
Определение предела огнестойкости строительных конструкций.
Несущие стены и стены лестничных клеток.
| Легкий железобетон бетон плотностью 0,8 т/м3 . Размеры панели 6000х1500х200 мм, рабочая арматура стержневая диаметром 14 мм, толщина защитного слоя из бетона из бетона 25 мм, суммарная внешняя сила приложена по центру стены, отношение длительно действующей части нагрузки к полной нормативной равно 0,3. |
1 .Поскольку отношение высоты панели к ее толщине составляет:
,разрешается пользоваться табл. 4 (п. 2,24 пособия)
2. Расстоляние от оси арматуры до обогреваемой поверхности плиты.
![]()
3. Учитывая, что бетон отличается от эталонного, согласно п. 2,15 пособия, умножаем величины (tс , а) на коэффициент (К1 =1,1)
![]()
![]()
4. По табл. 4 данным значениям соответствует предел огнестойкости 3 ч.
5. Предел огнестойкости анализируемой конструкции уточняем по формуле:![]()
=3*1*1,5=4,5ч
где ![]()
ф=1,5, так как толщина строительной конструкции (с учетом поправок) составляет tс =220>200мм (п. 1,24 пособия)
6. Предел распространения огня по железобетонным конструкциям равен нулю (Lд =0).
6. Данные строительные конструкции возможно использовать в зданиях Iстепени огнестойкости (СП2)
Ненесущие стены и перегородки .
| Трехслойные панели на деревянном каркасе с обшивной с двух сторон асбоцементными листами и со средним слоем из минераловатных плит, толщина 120 мм. |
1. По =0,5ч
2. Lд <40см (табл. 14 п. 7.в пособия)
3. Данные строительные конструкции возможно использовать в зданиях IIIстепени огнестойкости (СП2)
Колонны.
| Стальная колонна с огнезащитой из штукатурки по сетке, толщина защиты 30 мм |
1. Для определения предела огнестойкости будем использовать формулу интерполяции.
![]()
2. Lд =0, (табл. 11 п. 5.а пособия)
3. Данные строительные конструкции возможно использовать в зданиях IIIстепени огнестойкости (табл. СП2)
Междуэтажные перекрытия и покрытия .
| Плита перекрытия (покрытия) из легкого железобетона (керамзитобетон). Размеры плиты 5700х1200х300 мм. Рабочая арматура первого ряда выполнена из стержней диаметром 12 мм, а нижнего ряда (в пролете) 10 мм. Класс арматуры А-III. Защитный слой состоит из бетона толщиной 50 мм. Опирание по двум сторонам. Плита содержит восемь круглых диаметром 80 мм, расположенных вдоль конструкции. Отношение длительно действующей части нагрузки к полной нормативной равно 1 |
1. Определим эффективную толщину tпэ плиты (п. 2,27 пособия)

2. Учитывая, что бетон отличается от эталонного (п.,15 пособия)
Tпб =tпэ *К1 =266,5*1,1=293,15мм
3. Определим расстояние от обогреваемой поверхности конструкции до оси арматуры.
А=аб *К1 +0,5d1 =50*1,1+0,5*10=60мм
4. Определим величину соотношения Lу /L
![]()
Следовательно, можно пользоваться табл. 8 пособия. Пт =3ч
5. Определяем фактический предел огнестойкости анализируемой конструкции с учетом зависимости:
Пф = Пт *ф1*ф2*ф3*=3*1,2*1*2=7,2ч
Где ф1=1,2 – для арматуры класса А !!!
![]()
Для определения ф3, (п. 2,21) пособия вычисляем отношение площадей поперечного сечения арматуры над опорой и в пролете.
![]()
По табл. 1 ф3=2
6. Предел распространения огня по железобетонным конструкциям равен нулю (Lд =0).
7. Данные строительные конструкции возможно использовать в зданиях Iстепени огнестойкости (табл. 1 СП2)
Балки перекрытий .
| Железобетонная балка. Бетон легкий. Сечение балки 90х90. Рабочая арматура стержневая. Класс арматуры А-IV. Расстояние до оси арматуры 30 мм. Отношение длительно действующей части нагрузки к полной нормативной равно 1,0. Нагрев балки с трех сторон. |
1. Учитывая, что балка при пожаре будет обогреваться с трех сторон, а бетон – легкий, правомерно пользоваться табл. 7.
2. Вид бетона отличается от эталонного, следовательно, по п.2,15 пособия ширину балки и толщину защитного слоя умножаем на К1 =1,1
Ь=90*1,1=99мм
А=30*1,1=33мм
3. Определяем Пт по табл. 7
Учитывая, что ширина анализируемой конструкции и среднее расстояние от ее поверхности до оси арматуры занимают промежуточные значения, выполняем двойную линейную интерполяцию по формуле:
![]()
![]()
За окончательный результат определения Пт принимаем минимальный, т.е. 0,76ч
4. Вычисляем Пф по формуле:
Пф = Пт *ф1*ф2*=0,73*0,95*1=0,7ч
Где ф1=0,95 – для арматуры класса А !V
![]()
5. Предел распространения огня по железобетонным конструкциям равен нулю (Lд =0).
6. Данные строительные конструкции возможно использовать в зданиях Iстепени огнестойкости (табл. СП 2)
Косоуры и балки лестничных клеток.
| Стальные с огнезащитой фосфатным покрытием при толщине не менее 20 мм. |
1. По =1ч
2. Данные строительные конструкции возможно использовать в зданиях Iстепени огнестойкости (табл. СП 2)
Таблица № 2.1.
Экспертиза строительных конструкций
№ п/п |
Наименование и характеристика строительных конструкций |
Принято проектом | Ссылка на проект |
В здании какой степени огнестойкости разрешается применять, О мах | Требуется по ФЗ |
Ссылка на НПА |
Вывод |
| Пф Ч | Птр, ч | ||||||
| 1 | 2 | 3 | 5 | 6 | 7 | 9 | 10 |
| 1 | Несущие стены и стены лестничных клеток | 3 | ПЗ | II |
1,5 | ФЗ №123-ФЗ | + |
| 2 | Ненесущие стены и перегородки | 0.75 | ПЗ | II | 0,25 | ФЗ №123 | + |
| 3 | Колонны | 2,69 | ПЗ | II | 1,5 | ФЗ №123 | + |
| 4 | Покрытия и междуэтажные перекрытия | 1,675 | ПЗ | II | 0,75 | ФЗ №123 | + |
| 5 | Балки (ригели) перекрытий | 1,49 | ПЗ | III | 1,5 | ФЗ №123 | - |
| 6 | Косоуры и балки лестниц | 2,5 | ПЗ | II | 1 | ФЗ №123 | + |
Фактическая степень огнестойкости здания.
В соответствии со СП 2 фактическая степень огнестойкости здания будет равна наименьшей степени огнестойкости применяемых в нем строительных конструкций, в данном случае здание клуба фактически обладает IIIСО, что не соответствует требуемой степени огнестойкости, поэтому необходимо перепроектировать материал строительных конструкций.
2.2. Проведение экспертизы объемно- планировочных решений здания.
Объемно-планировочные решения – технические решения по взаимному разрешению съемных элементов здания и в плане и по высоте.
Принципы, обеспечивающие пожарную безопасность:
1. Деление зданий на противопожарные отсеки.
Противопожарный отсек – часть здания, выделенная противопожарными преградами с целью ограничения распространения пожара и обеспечения возможности его успешного тушения.
При необходимости деление здания на противопожарные отсеки исходит из допустимой площади между противопожарными стенами, допустимого количества этажей, степени огнестойкости или по функциональному назначению частей здания.
2. Деление пожарных отсеков здания на пожарные секции или отдельные помещения.
Пожарная секция – это часть здания, выделенная противопожарными преградами, в пределах которой размещаются родственные по функциональному назначению, пожарной опасности, роду применяемых средств тушения процесса для ограничения распространения пожара и успешного его тушения.
Принципы разделения пожарных отсеков на секции:
- разделение различных по пожарной опасности процессов;
- разделение процессов изоляции помещений по функциональному назначению;
- изоляция помещений с открытым выделением тепла или искр от взрыво- и пожароопасных помещений;
- разделение процессов или мест хранения материальных ценностей по роду применяемых огнегасительных веществ;
- изоляция помещений с массовым пребыванием людей от взрыво – пожароопасных помещений;
- изоляция взрывоопасных процессов от помещений с электрооборудованием общепромышленного исполнения;
- изоляция процессов и мест хранения материалов, способных выделять при хранении или нормальных условиях особо вредные вещества;
- изоляция помещений с особо ценными материалами и оборудованием.
3. Взаимное расположение элементов в плане и по этажам здания.
Проверку объемно-планировочных решений здания выполняется в виде таблицы.
Таблица № 2.2.
Экспертиза объемно – планировочных решений
| № | Вопрос, подлежащий проверке | Принято проектом | Требования СП |
Вывод о соотвествии |
| 1 | Этажность | Запроектировано трех-этажное здание магазина одежды | СП 4 Наибольшее число этажей для здания магазина II степени огнестойкости – пять | + |
| 2 | Площадь пожарных отсеков | Площадь этажа составляет 1213,5 м2 | Площадь этажа между противопожарными стенами в здании II степени огнестойкости не должна превышать 2500 м2 | + |
| 3 | Размещение помещений в плане и по этажам | Помещения для хранения тары и обменного фонда контейнеров, кладовая одежды расположены не у наружных стен. | Кладовые горючих товаров и товаров в горючей упаковке следует размещать у наружных стен. | - |
| Площадь кладовых менее 700 м2 | Кладовые следует разделять на отсеки площадью не более 700 м2 | + |
||
| 5 | Высота этажа | Высота этажа 3,1 м | Высоту помещения от пола до потолка общественных зданий следует принимать не менее трех метров | + |
| 6 | Изоляция л/к и подвального этажа в здании | Запроектированы три лестницы типа Л1 | В зданиях 1 и 2 степени огнестойкости лестница с первого до второго или с цокольного до первого этажа может быть открытой и при отсутствии вестибюля. | + |
Вывод:
В результате проведенной экспертизы объемно – планировочных решений проекта здания магазина мы выявили, что они не соответствуют требованиям СП 4. Необходимо предусмотреть размещение кладовых у наружных стен.
2.3 ПРОВЕРКА ПРОТИВОПОЖАРНЫХ ПРЕГРАД.
Противопожарная преграда - конструкция в виде стены, перегородки, перекрытия или объемный элемент здания, предназначенные для предотвращения распространения пожара в примыкающие к ним помещения в течение нормируемого времени .
К противопожарным преградам относятся противопожарные стены, перегородки, перекрытия, зоны, тамбуры шлюзы, двери, окна, люки, клапаны .
Противопожарная дверь (окно, люк) - конструктивный элемент, служащий для заполнения проемов в противопожарных преградах и препятствующий распространению пожара в примыкающие помещения нормируемого времени .
Анализ пожаров показывает, что при отсутствии или неправильном устройстве противопожарных преград пожар быстро распространяется, охватывая большие площади. В следствии этого пожарные подразделения не могут быстро локализовать пожар и приступить к его тушению.
При экспертизе противопожарных преград необходимо:
- определить необходимость, требуемое количество и расположение противопожарных стен;
- составить перечень степени соответствия конструктивного исполнения противопожарных преград требованиям НПА;
- сравнить проектные решения противопожарных преград (огнестойкость, опирание, устойчивость, сочленение, защита проемов и так далее) с предъявляемыми требованиями;
- выяснить необходимость устройства противопожарных зон, местных противопожарных преград и выполнить проверку конструктивного исполнения в части соответствия требованиям правил пожарной безопасности.
Проверку противопожарных преград выполняем в виде таблицы.
Таблица 2.3.
Проверка противопожарных преград.
| N п/п | Вопросы ,подлежащие проверке | Предусмотрено проектом | Ссылка на проект | Требуется по нормам | Ссылка на нормы | Вывод |
| 1 | 2 | 3 | 4 | 5 | 6 | 7 |
| 1 | Перегородки перекрытия вент. камеры | В помещении вент. камеры перегородка 3-го типа, перекрытие 1-го типа, незащищенная дверь | План 1 этажа | Вент. камеры должны иметь п/п перегородки 1-го типа, п/п перекрытия 3-го типа, п/п дверь 2-го типа |
СП4 СП4 п. 1.55 п. 1.55 п. 1.86 |
Не соответствует Соответствует Не соответствует |
| 2 | Наличие противопожарных дверей | Информация не предоставлена | Характеристика объекта | Двери кладовых для хранения горючих материалов должны иметь предел огнестойкости 0,6 ч | П 1,84 СП4 |
Не соотв |
| 3 | Отделение кладовых от торгового зала | Кладовые одежды отделены от торгового зала противопожарными перегородками 1го типа | План здания | Кладовые горючих товаров в горючей упаковке необходимо отделят противопожарными перегородками | П. 1.75 СП4 * |
соотв |
| 4 | Отделка стен коридоров и лестничных клеток | Стены коридоров отделаны ДВП, стены лестничных клеток покрашены водоэмульсионной краской |
Характеристика путей эвакуации | В зданиях всех степеней огнестойкости, кроме V, не допускается выполнять облицовку из горючих материалов стен коридоров и лестничных клеток | СП4 п. 1.5 |
Не соответствует соответствует |
Вывод: В результате экспертизы противопожарных преград обнаружены следующие нарушения требований пожарной безопасности:
- отделка стен коридоров горючими материалами;
- в помещении вент. камеры не предусмотрена п/п дверь;
- предоставить информацию о наличии противопожарных дверей;
- Противопожарные перегородки для помещений вентиляционной камеры и помещений для кладовых горючих материалов необходимо запроектировать 1-го типа.
2.4 ПРОВЕРКА ЭВАКУАЦИОННЫХ ПУТЕЙ И ВЫХОДОВ.
Эвакуация представляет собой процесс организованного самостоятельного движения людей из помещений, в которых имеется возможность воздействия на них опасных факторов пожара. Эвакуацией также следует считать несамостоятельное перемещение людей, относящихся к мало мобильным группам населения, осуществляемое обслуживающим персоналом. Она осуществляется по путям эвакуации через эвакуационные выходы.
Эвакуация людей- это вынужденный процесс движения людей из зоны, где имеется возможность воздействия на них опасных факторов пожара .
Эвакуационный выход- выход, ведущий в безопасную при пожаре зону .
Защита людей на путях эвакуации обеспечивается комплексом объемно-планировочных эргономических конструктивных, инженерно-технических организационных мероприятий.
Эвакуационные пути в пределах помещения должны обеспечивать безопасную эвакуацию людей через эвакуационные выходы из данного помещения без учета применяемых в нем средств пожаротушения и проводимой защиты .
За пределами помещений защиту путей эвакуации следует предусматривать из условия обеспечения безопасной эвакуации людей с учетом функциональной пожарной опасности выходящих на эвакуационный путь, численности эвакуируемых, степени огнестойкости и класса конструктивной пожарной опасности здания, количества эвакуационных выходов с этажа или здания в целом.
Каждый объект должен иметь такое объемно-планировочное и техническое исполнение, чтобы эвакуация людей до наступления предельно допустимых значений опасных факторов пожара, а при нецелесообразности эвакуации была обеспечена защита людей в объекте. Для обеспечения эвакуации необходимо:
- установить количество, размеры и соответствующее конструктивное исполнение эвакуационных путей и выходов;
- обеспечить возможность беспрепятственного движения людей по эвакуационным путям;
- организовать при необходимости управление.
Таблица 2.4
Проверка эвакуационных путей и выходов
| N п/п | Вопросы ,подлежащие проверке | Предусмотрено проектом | Ссылка на проект | Требуется по нормам | Ссылка на нормы | Вывод |
| 1 | 2 | 3 | 4 | 5 | 6 | 7 |
| 1 | Количество эвакуационных выходов | С первого этажа – 3 выхода Со второго – 3 выхода |
Проект | Из зданий с массовым пребыванием людей требуется принимать не менее двух эвакуационных выходов | СП1 п. 4.3 |
Соотв |
| 2 | Рассредоточение эвакуационных выходов | рассредоточены | Проект | При наличии двух и более эвакуационных выходов ини должны располагаться рассредоточенно | СП1 п. 4.3 |
Соотв |
| 3 | Высота эвакуационных путей и выходов | Наружные двери – 2,1 м Внутренние – 1,9 м Коридоры – 3,1м |
Проект | Высота эвакуационных путей и выходов. Путей – ≥ 2 м Выходов - ≥ 2 м |
СП1 п. 4.6, 4.13 |
Не соотв |
| 4 | Ширина эвакуационных выходов | Наружные двери – 1 м Внутренние – 0,8 м Лестничные марши – 1,3 м Лестничные площадки – 1,2 м |
Проект Исходные данные |
Ширина выхода больше или равно 0,8 м Ширина путей больше или равно 1 м Ширина площадки больше или равно ширины марша Ширина марша больше или равно 1,2 м |
СП1 п. 4.6, 4.17 СП1 п. 4.17 |
Соотв Не соотв Не соотв Соотв |
| 5 | Отделка эвакуационных путей | Коридоры–ДВП Лестничных клеток-водоэмульсионная краска |
Исходные данные | Отделка эвакуационных путей не допускается горючими материалами | СП1 П. 6.25 |
Не соотв Соотв |
| 6 | Уклон лестничных маршей | 1:2,1 | Исходные данные | Уклон не более 1:2 | СП1 п. 1.94 |
Соотв |
| 7 | Направление открывания дверей | Нет данных | проект | Двери на эвакуационных путях открываются по ходу эвакуации | СП1 п. 4.12 |
Не соотв |
| 8 | Наличие уплотнений и устройств для самозакрывания в дверях, ведущих в общие холлы, коридоры | -//-//- | -//-//- | В дверях на путях эвакуации, ведущие в общие коридоры следует предусматривать устройство для самозакрывания и уплотнение в притворах | СП1 П. 6.18 |
Не соотв |
| 9 | Освещение лестничных клеток | Запроектировано естественное освещение | проект | Лестничные клетки следует проектировать естественным освещением через наружные окна | СП1 п. 1.102 |
Соотв |
| 10 | Разобщенность эвакуационных выходов для покупателей и персонала | раздельно | проект | Эвакуационные выходы для посетителей и персонала должны быть разобщены | СП1 п. 1.102 |
Соотв |
11 |
Количество ступеней в марше | Лестница в фойе – 11 подъёмов, наружные лестницы - 4 подъёма, на боковой вход –3 | План 1и 2 этажа | Число подъёмов в одном марше между площадками должно быть не менее 3 и не более 16 | СП1 п.1.90 |
соответствует |
| 12 | Размер ступени в марше | Информация не предоставлена | Лестничные марши и площадки должны иметь ограждения с поручнями. При высоте лестницы более 45 см. следует предусматривать ограждения с перилами |
СП1 п. 1.91 СП1 п. 6.2 |
Не соответствует | |
| 3 | Высота от уровня тротуара | Высота площадки от уровня тротуара 0,45 м. | План 1 этажа | Наружные лестницы (или их части) и площадки высотой от уровня тротуара более 0,45 м при входах в здание должны иметь ограждения | СП1 |
соответствует |
| 10 | Наибольшее расстояние до ближайшего эвакуационного выхода | Наибольшее расстояние в зале от наибольшей удалённой точки до эвакуационного выхода 30 м | План 1 этажа | Наибольшее расстояние от наибольшей удалённой точки залов объёма до 5 тыс кв м до ближайшего эвакуационного выхода 50 м | СП1 п. 1.109 т. 8 |
Соответствует |
Вывод : в результате экспертизы эвакуационных путей и выходов обнаружены следующие нарушения требований пожарной безопасности:
- Ширина лестничного марша менее ширины входа на лестничную клетку с наиболее населённого этажа, т.е. менее 1,35 м.;
- Ширина эвакуационных выходов в свету из помещений с пребыванием более 50 человек предусмотрена менее 1,2 м.;
- Уклон лестниц на путях эвакуации предусмотрен более быть 1:1.
2.5 ЭКСПЕРТИЗА ПРОТИВОДЫМНОЙ ЗАЩИТЫ.
Противодымная защита- комплекс организационных и технических средств, направленных на предотвращение воздействия на людей дыма, повышенной температуры и токсичных продуктов горения.
Система противодымной защиты объектов должна обеспечивать незадымление, снижение температуры и удаление продуктов горения и термического разложения на путях эвакуации в течение времени, достаточного для эвакуации людей, коллективную защиту людей и защиту материальных ценностей.
Нормируемые технические решения на противодымной защите зданий подразделяются на объёмно- планировочные , конструктивные, специальные.
К объёмно-планировочным относят решения , предусматривающие деление объектов здания на пожарные отсеки и секции, изоляцию путей эвакуации от смежных помещений, изоляцию помещений с пожароопасными технологическими поцессами и разрушение их в плане и по этажам здания.
Конструктивные решения предусматривают применение дымонепроницаемых ограждающих конструкций с достаточным пределом огнестойкости и соответствующей защитой в них дверных и технологических проёмов, отверстий для прокладки коммуникации, применение специальных конструкций и конструктивных элементов для удаления дыма в желаемом направлении.
Специальные технические решения предусматривают создание систем дымоудаления с механическим или естественным побуждением, а также систем, обеспечивающих избыточное давление воздуха в защищаемых объемах: лестничных клетках, шахтах лифтов, тамбурах шлюзах и др.
ПРОВЕРКА ТЕХНИЧЕСКИХ РЕШЕНИЙ, ОБЕСПЕЧИВАЮЩИХ УСПЕШНУЮ РАБОТУ ПОЖАРНЫХ.
Таблица 2.6
Проверка технических решений, обеспечивающих успешную работу пожарных
| N п/п | Вопросы ,подлежащие проверке | Предусмотрено проектом | Ссылка на проект | Требуется по нормам | Ссылка на нормы | Вывод |
| 1 | 2 | 3 | 4 | 5 | 6 | 7 |
1 |
Наличие выходов на кровлю | Один выход на кровлю неполные 1000м2 площади кровли | План 2 этажа | Число выходов на кровлю и их расположение следует предусматривать в зависимости от функциональной пожарной опасности и размеров здания, но не менее, чем один выход на каждые полные и неполные 1000м2 площади кровли здания с бесчердачным покрытием для зданий классов Ф1, Ф2, Ф3 и Ф4 | ФЗ №123 п. 8.3 |
Соответствует |
| 2 | Зазор между маршами лестниц | Ширина зазора между маршами лестниц в свету менее75мм | План 1 и2 этажа | Между маршами лестниц и между поручнями ограждений лестничных маршей следует предусматривать зазор шириной в плане в свету не менее 75мм | ФЗ №123 п. 8.9 | Не соответствует |
| 3 | Ограждения | На кровле здания ограждение не предусмотрено | Фасад | Независимо от высоты здания ограждения, соответствующие требованиям ГОСТ 25772, следует предусматривать для эксплуатируемых плоских кровель, балконов, лоджией, открытых наружных лестниц, лестничных маршей и площадок | ФЗ №123 п. 8.11 | Не соответствует |
Вывод: В результате проверки технических решений, обеспечивающих успешную работу пожарных ,выявлены следующие нарушения требований пожарной безопасности:
- Ширина зазора между маршами лестниц в свету менее75мм;
- Не предусмотрено ограждение на кровле.
3. ИЖЕНЕРНО - РАСЧЁТНАЯ ЧАСТЬ ПРОЕКТА
Расчет фактического времени эвакуации людей из зала
Проверить расчетным методом условие безопасной эвакуации людей при пожаре. Рассчитать фактическое время эвакуации людей из торгового зала на 1 этаже и сравнить с необходимым временем эвакуации (требуемым).
![]() |
Рис. 1
Рассчитаем время эвакуации из торгового зала
Эвакуационный путь из помещения торгового зала разделим на следующие участки:
1. по торговому залу L=18м; б=30м
2. через дверные проемы L=0м; б=3м (сумма трех дверей)
Определяем время эвакуации на первоначальном участке.
1. Плотность людского потока
![]()
где N – количество человек.
площадь зала – 18*30=540 м2
количество людей 540/3=180 чел
f – средняя площадь горизонтальной проекции человека (f=0,1 для взрослых в домашней одежде).
L – длина участка, м
б – ширина участка, м
![]()
1.1. По табл. 2 ГОСТ 12.1.004-91 определяем скорость и интенсивность людского потока.
G=6,5 м/мин
V=90 м/мин
1.2. Время эвакуации
![]()
2. Определяем время эвакуации на последующих участках
2.1. Время эвакуации со второго участка.
![]()
т.к. g2 >gмах =16,5 для горизонтальных путей (приложение2 ГОСТ 12.1.004-91), то необходимо рассчитать время задержки.

при вдв
>1,6 м то qпр
=8,5
N=400 чел. – эвакуируется через эвакуационный выход
Т.к. l=0 м, то τ2 =τзад =1,36 мин
3. Полное время эвакуации.
Ϊэв =t1 +t2 =0.2+1.36=1,56 мин
Министерство Российской Федерации по делам гражданской
обороны, чрезвычайным ситуациям и ликвидации последствий
стихийных бедствий
(наименование территориального органа МЧС России)
___________________________________________________________________________________________________ (указывается адрес места нахождения территориального органа МЧС России, номер телефона, ___________________________________________________________________________________________________
электронный адрес)
___________________________________________________________________________________________________ (наименование органа государственного пожарного надзора)
___________________________________________________________________________________________________ (указывается адрес места нахождения органа ГПН, номер телефона, электронный адрес)
Предписание N ____
по устранению нарушений требований пожарной безопасности
(полное наименование юридического лица, фамилия и инициалы индивидуального предпринимателя ___________________________________________________________________________________________________ (гражданина), владельца собственности, имущества и т.п.)
"__" ________ 20__ г. проведено обследование (проверка)___________________________
___________________________________________________________________________________________________
(должность, звание, фамилия, инициалы государственного инспектора по пожарному надзору, ___________________________________________________________________________________________________
проводившего мероприятие по надзору, наименование объекта надзора и его адрес)
совместно с ________________________________________________________________________________________
(указываются должности, фамилии и инициалы лиц,
___________________________________________________________________________________________________
участвующих в мероприятии по надзору)
В целях устранения выявленных при обследовании (проверке) нарушений требований пожарной безопасности в соответствии с Федеральным законом от 21 декабря 1994 г. № 69-ФЗ "О пожарной безопасности" необходимо выполнить следующие мероприятия:
№ п/п |
Вид нарушения требований пожарной безопасности с указанием мероприятия по его устранению и конкретного места выявленного нарушения | Пункт (абзац пункта) нормативного акта и нормативный акт, требования которого нарушены | Отметка о выполнении (указывается только выполнение) |
| 1 | 2 | 3 | 4 |
| 1 | Несущие стены, колонны предусмотреть с пределами огнестойкости не менее R90 | ТРоТПБ ФЗ №123-ФЗ ст.31, 32, 57, 87 табл.21 | |
| 2 | Предусмотреть двери венткамер противопожарными 2 типа | ТРоТПБ ФЗ №123-ФЗ ст.88 табл. 23,24,25 | |
| 3 | Предусмотреть ограждение на кровле | ТРоТПБ ФЗ №123-ФЗ ст.90 | |
| 4 | Предусмотреть ширину маршей не менее 1,35 м | СП 1 п.7.1.5 | |
| 5 | Размещение кладовых горючих товаров запроектировать у наружных стен |
СП 4 п.4 |
Предложенные мероприятия являются обязательными для руководителей организаций, должностных лиц, юридических лиц и граждан, на которых возложена в соответствии с законодательством Российской Федерации обязанность по устранению нарушений требований пожарной безопасности.
При несогласии с предписанными мероприятиями Вам предоставляется право обжаловать настоящее предписание в порядке, установленном для обжалования постановлений и решений по делам об административных правонарушениях.
Настоящее предписание вступает в законную силу одновременно со вступлением в законную силу постановления о назначении административного наказания (решения по жалобе, протесту).
Проверка выполнения предписания по устранению нарушений требований пожарной безопасности будет проведена в рамках внепланового мероприятия по надзору в ________________ года.
(квартале, месяце)
В соответствии со статьей 38 Федерального закона от 21 декабря 1994г. № 69-ФЗ "О пожарной безопасности" ответственность за нарушение требований пожарной безопасности несут: собственники имущества; руководители федеральных органов исполнительной власти; руководители органов местного самоуправления; лица, уполномоченные владеть, пользоваться или распоряжаться имуществом, в том числе руководители организаций; лица, в установленном порядке назначенные ответственными за обеспечение пожарной безопасности; должностные лица в пределах их компетенции.
Ответственность за нарушение требований пожарной безопасности для квартир (комнат) в домах государственного, муниципального и ведомственного жилищного фонда возлагается на ответственных квартиросъемщиков или арендаторов, если иное не предусмотрено соответствующим договором.
________________ ______________________________________________________
(подпись) (должность, фамилия, инициалы государственного инспектора)
"__" ____________ 20__ г.
________________ __________________________________
(подпись) (должность, фамилия, инициалы)
"__" ____________ 20__ г.
Литература
1. Баратов А.Н., Пчелинцев В.А. Пожарная безопасность: Учебное пособие. - М.: Изд-во АСВ, 1997.
2. Беляев А.В., Вагин А.В., Жуков И.В. Пожарная безопасность в строительстве: Методические рекомендации по проверке соответствия архитектурно-строительных и инженерно-технических решений проектов зданий противопожарным требованиям нормативных документов / Под общей ред. В.С. Артамонова. – СПб.: Санкт-Петербургский университет ГПС МЧС России, 2009. - 31 с.
3. Вагин А.В., Жуков И.В. Пожарная безопасность в строительстве: Рабочая программа учебной дисциплины по специальности 280104.65 «Пожарная безопасность» / Под общей редакцией В.С. Артамонова. – СПб.: Санкт-Петербургский университет ГПС МЧС России, 2009. – 38с.
4. Государственный пожарный надзор: Учебник для вузов МЧС России / Под общ. ред. канд, соц. наук Г.Н. Кириллова. – СПб.: Санкт-Петербургский университет ГПС МЧС России, 2006. - 396 с.
5. Есин В.М., Сидорук В.И., Токарев В.Н. Пожарная профилактика в строительстве. Ч.1. Пожарная профилактика систем отопления и вентиляции: Учеб. – М.: ВИПТШ МВД РФ, 1995.
6. Здания, сооружения и их устойчивость при пожаре. Часть I «Строительные материалы, их пожарная опасность и поведение в условиях пожара»: Учебник / Артамонов В.С., Гилетич А.Н., Демёхин В.Н., Дешевых Ю.И., Крейтор В.П., Ненашев Ю.П., Свыдына Ю.В., Серков Б.Б.; Под ред. Г.Н. Кириллова. – СПб.: Санкт-Петербургский университет ГПС МЧС России, 2006. - 142 с.
7. Климушин Н.Г., Новиков В.Н. Противопожарная защита зданий повышенной этажности. – М.: Стройиздат, 1989.
8. Кривошеев И.Н. Инспектору госпожнадзора о безопасности людей при пожаре. - М.: Стройиздат, 1990.
9. Лукинский В.М., Демехин В.Н. и др. Методические рекомендации по работе с пособием по определению пределов огнестойкости конструкций, пределов распространения огня по конструкциям и групп возгораемости материалов. – СПб.: СПб ВПТШ МВД РФ, 1997.
10. Пожарная профилактика в строительстве. Учебник / Б.В.Грушевский, А.И.Яковлев, И.Н.Кривошеев и др.; Под ред. В.Ф. Кудаленкина. - М.: ВИПТШ МВД СССР, 1985.
11. Пожарная профилактика в строительстве: Учебник для пожарно-техн. училищ / Б.В.Грушевский, Н.Л.Котов, В.И. Сидорук и др. – М.: Стройиздат, 1989.
12. Пожарная профилактика систем отопления и вентиляции: Учебник / Ю.А.Кошмаров, М.П.Башкирцев, И.Т. Светашов, В.И. Сидорук. – М.: ВИПТШ МВД СССР, 1981.
13. Пособие по определению пределов огнестойкости конструкций, пределов распространения огня по конструкциям и групп возгораемости материалов / ЦНИИСК им. Кучеренко. – М.: Стройиздат, 1985. – 56 с.
14. Ройтман М.Я. Противопожарное нормирование в строительстве. - М.: Стройиздат, 1985.
15. Сидорук В.И. Пожарная профилактика систем отопления. – М.: Стройиздат, 1987.
16. Строительное черчение и рисование. Учеб. / Ю.И. Короев – М.: «Высшая школа», 1983.
17. Федеральный закон РФ «О Пожарной Безопасности». ФЗ №69 от 21.12.1994 г.
18. Федеральный закон РФ «Технический регламент о требованиях пожарной безопасности» ФЗ №123 от 22.07.2008 г.
19. ГОСТы «Единая система конструкторской документации».
20. ГОСТы «Система проектной документации для строительства».
21. ГОСТ Р 53292-2009 ГОСТ Р «Огнезащитные составы и вещества для древесины и материалов на ее основе. Общие требования. Методы испытаний»
22. ГОСТ Р 53293-2009 ГОСТ Р «Пожарная опасность веществ и материалов. Материалы, вещества и средства огнезащиты. Идентификация методами термического анализа»
23. ГОСТ Р 53294-2009 ГОСТ Р «Материалы текстильные. Постельные принадлежности. Мягкие элементы мебели. Шторы. Занавеси. Методы испытаний на воспламеняемость»
24. ГОСТ Р 53295-2009 ГОСТ Р «Средства огнезащиты для стальных конструкций. Общие требования. Метод определения огнезащитной эффективности»
25. ГОСТ Р 53296-2009 ГОСТ Р «Установка лифтов для пожарных в зданиях и сооружениях. Требования пожарной безопасности»
26. ГОСТ Р 53309-2009 ГОСТ Р «Здания и фрагменты зданий. Метод натурных огневых испытаний. Общие требования»
27. ГОСТ Р 53307-2009 ГОСТ Р «Конструкции строительные. Противопожарные двери и ворота. Метод испытаний на огнестойкость» взамен ГОСТ 30247.2-97
28. Административный регламент министерства РФ по делам гражданской обороны, чрезвычайным ситуациям и ликвидации последствий стихийных бедствий по исполнению государственной функции по надзору за выполнением федеральными органами исполнительной власти, органами исполнительной власти субъектов РФ, органами местного самоуправления, организациями, а также должностными лицами и гражданами установленных требований пожарной безопасности. Приказ МЧС России № 517 от 1 октября 2007 г.
29. СП 1.13130.2009 Эвакуационные пути и выходы.
30. СП 2.13130.2009 Обеспечение огнестойкости объектов защиты.
31. СП 4.13130.2009 Ограничение распространения пожаров на объектах защиты. Требования к объемно-планировочным и конструктивным решениям.
32. СП 5.13130.2009 Системы противопожарной защиты. Установки пожарной сигнализации и пожаротушения автоматические. Нормы и правила проектирования.
33. СП 7.13130.2009 Отопление, вентиляция и кондиционирование. Противопожарные требования.
34. СП 12.13130.2009 Определение категорий помещений, зданий и наружных установок по взрывопожарной и пожарной опасности.
