| Скачать .docx |
Реферат: Контрольная работа: Общие сведения о ленточных конвейерах
Содержание:
1. Общие сведения о ленточных конвейерах.
1.1 Ленточные конвейеры с резинотканевой лентой.
1.1.1 Описание наиболее распространенных видов лент.
1.1.2 Барабаны.
1.1.3 Поддерживающие роликоопоры.
1.1.4 Приводы
1.1.5 Натяжные устройства.
1.1.6 Загрузка конвейеров.
1.1.7 Разгрузка конвейера.
2. Патентное изыскание.
Список используемой литературы.
1. Общие сведения о ленточных конвейерах
Ленточные конвейеры являются наиболее распространенным типом транспортирующих машин непрерывного действия во всех отраслях промышленности. Из более чем полумиллиона конвейерных установок, эксплуатирующихся в нашей стране, 90% составляют ленточные конвейеры. Они используются в горнодобывающей промышленности — для транспортирования руд полезных ископаемых и угля при открытой разработке, в металлургии — для подачи земли и топлива, на предприятиях с поточным производством—для транспортирования заготовок между рабочими местами и т. д.
Обычно ленточные конвейеры имеют тяговый элемент 7 (рис.1) в виде бесконечной ленты, являющейся и несущим элементом конвейера, привод 13, приводящий в движение барабан 14, натяжное устройство 2 с барабаном 3, груз 1, роликовые опоры 6 на рабочей ветви ленты и 5 на холостой ветви ленты, отклоняющий барабан 8, загрузочное устройство 4 и разгрузочные устройства 9 и 10, разгрузочный желоб // и устройство 12 для очистки ленты. Все элементы конвейера смонтированы на раме.

Рис.1 Схема стационарного наклонно-горизонтального конвейера.
1.1 Ленточные конвейеры с резинотканевой лентой
1.1.1 Описание наиболее распространенных видов лент
Наиболее широко распространены резинотканевые ленты (рис. 2; ГОСТ 20—76),состоящие из резинотканевого послойного тягового каркаса 1 и наружных резиновых обкладок 2, предохраняющих каркас от механических повреждений и от воздействия на него влаги, газов, агрессивных сред. В зависимости от условий эксплуатации и назначения изготовляют ленты общего назначения, морозостойкие, теплостойкие, пищевые и негорючие. В зависимости от типа ленты установлены диапазоны температур окружающей среды.

Рис.2 Резинотканевая и резинотросовая конвейерная ленты
Так же широко распространены: ленты с перегородками, гофрированными выступами и бортами, трубчатые и др.
1.1.2 Барабаны
В ленточных конвейерах различают приводные, концевые, натяжные и отклоняющие, служащие для изменения направления движения ленты, барабаны (рис.3). Чем больше диаметр барабана, тем меньше напряжение от изгиба ленты и тем больше срок ее службы. При эксплуатации лент установлено, что резинотканевую ленту обычно приходится заменять из-за ее расслаивания, которое происходит от многократных изгибов ленты на барабанах. Барабаны ленточных конвейеров унифицированы. В качестве основной характеристики, используемой при выборе барабанов из установленного ряда типоразмеров, принята нагрузочная способность барабана. Для неприводных барабанов нагрузочная способность определяется как нагрузка от натяжения ветвей ленты, огибающей барабан, а для приводных барабанов, кроме того, следует учесть еще и максимальный передаваемый крутящий момент.

Рис.3 Барабаны: а-приводной; б-хвостовой и откланяющий; в, г- с футеровкой.
1.1.3 Поддерживающие роликоопоры
Чтобы лента под влиянием собственной силы тяжести и веса груза не провисала, на раме конвейера устанавливают поддерживающие роликоопоры. Ролики являются самыми многочисленными элементами конвейеров. Их ежегодно выпускают миллионы штук. От надежной и долговечной работы роликоопор зависят в большой степени надежность и долговечность всей машины, а также потребляемая ею энергия, эксплуатационные затраты и т. п.
Различают: легкого, тяжелого типа; обрезиненные; амортизирующие; дисковые; гирляндные и др. роликоопоры.
1.1.4 Приводы
Назначение привода — обеспечить движение тягового элемента конвейера с грузом. Создание необходимой тяговой силы конвейера обеспечивается силой трения, возникающей между лентой и поверхностью приводного барабана.
Привод (рис.4) состоит из двигателя 1, редуктора 3, барабана 5,а также муфт 2 к 4, соединяющих двигатель с редуктором и. редуктор с валом барабана.

Рис.4 Схема привода конвейера . Ленточные конвейеры с различными типами приводов
Ленточные конвейеры могут иметь следующие виды приводов: единичный головной однобарабанный (рис.4, а) или двухбарабанный (рис.4,6), раздельный (на головном и хвостовом барабанах (рис.4, в) и комбинированный — двухбарабанный в головной части и однобарабанный в хвостовой части (рис.4, г). На1 длинных и тяжелонагруженных конвейерах для преодоления местных и линейно распределенных сопротивлений необходимо очень большое натяжение S ленты (рис.4,д), что ведет к увеличению мощности привода и массы движущихся элементов конвейера и требует дальнейшего увеличения натяжения .
1.1.5 Натяжные устройства
Эти устройства предназначены для создания необходимого натяжения ленты, обеспечивающего сцепление ее с приводным барабаном без проскальзывания, а также для ограничения провисания ленты между опорами и компенсации вытяжки ленты в процессе эксплуатации. Натяжные устройства подразделяются на устройства, создающие нерегулируемое натяжение в ленте, и устройства, регулирующие натяжение ленты в зависимости от значения крутящего момента на приводном барабане.

1.1.6 Загрузка конвейеров
Загрузочное устройство должно обеспечить плавную подачу груза на движущуюся ленту, при этом для предупреждения повреждения и изнашивания ленты скорость подачи груза и направление его движения должны быть близки к скорости и направлению движения загружаемой ленты. Конвейер можно загрузить в любой точке его трассы. Однако обычно загрузку производят около хвостового барабана. Насыпные грузы обычно загружают с помощью воронки и лотка, устанавливаемого под воронкой (рис.6). Ширина лотка в начальной части В1 = 0,5В и в конечной части В2 = (0,6-0,7) В, где В — ширина конвейерной ленты. После выхода из лотка груз рассыпается по ленте и занимает ширину, примерно равную 0,8В.
При транспортировке грузов (кроме угля) с кусками размером свыше 80 мм загрузочные пункты необходимо оборудовать амортизационными устройствами.

Рис.6 Лоток для сыпучих грузов.
1.1.7 Разгрузка конвейера
Наиболее простым и удобным способом разгрузки конвейеров, не требующим специальных устройств, является сброс груза с концевого барабана, (рис.7, а). Однако в ряде случаев возникает необходимость осуществлять разгрузку в различных точках по длине конвейера. Например, в литейном производстве одним конвейером подают формовочную землю к бункерам нескольких формовочных машин, расположенным вдоль линии конвейера. В этом случае применяют специальные разгрузочные устройства, наиболее простыми из которых являются плужковые разгружатели, т. е. щиты, устанавливаемые на ленте под углом к потоку груза (рис.7,6). При этом груз, двигаясь вдоль щита» сбрасывается с ленты на одну или на обе стороны (рис.7,в). Не» достатком плужковых разгружателей является повышенный износ ленты, поэтому их нецелесообразно применять при больших скоростях движения ленты (свыше 1,6—2,0 м/с) и при транспортировании абразивных и крупнокусковых грузов.

Рис.7 Разгрузка конвейера.
2. Патентное изыскание
Патент № 308940 «Натяжное устройство»
Целью изобретения является увеличение длины хода натяжного барабана.
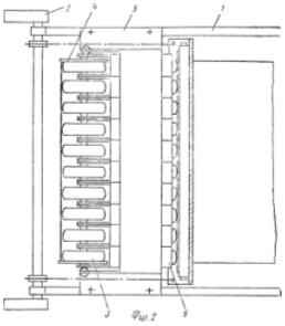
Для этого в направляющих предложенного устройства, снабженных отверстиями, установлены переставные ползуны, взаимодействующие с винтами и фиксируемые, например, штырями на раме конвейера. На фиг. 1 изображено натяжное устройство в момент перемещения барабана при закрепленных ползунах; на фиг. 2 — то же, в момент перемещения ползунов при закрепленных гайках.

Устройство состоит из барабана 1, натяжных винтов 2 и гаек 3 подвижных по направляющим 4 рамы конвейера. Винты 2 свободными концами упираются в ползуны 5. Барабан 1огибается тяговым органом 6 конвейера. Для натяжения тягового органа конвейерана раме с помощью штырей 7, вставляемых в отверстия направляющих 4, закрепляют опорные ползуны 5. При вращении винтов 2 гайки 3 вместе с барабаном 1 перемещаются по направляющим рамы конвейера, создавая при этом натяжение тягового органа 6.
После вывинчивания винтов 2 гайки 3 фиксируют на раме штырями. Завинчивая винты 2, перемещают ползуны 5 до сближения их с гайками. После этого фиксирует штырями ползуны 5 и продолжают, опять вывинчивания винты 2, перемещать гайки вместе с натяжным барабаном. Так повторяют до тех пор, пока не создается необходимое натяжение тягового органа 6.
Патент № 546529 «Приводной барабан ленточного конвейера»
Цель: снижение трудоемкости замены футеровки. Это достигается тем, что цилиндрический корпус снабжен клиновидными секторами с футеровкой и закрепленным в центральной части по окружности цилиндрического корпуса кольцом с отверстиями, в которых размещены выступы, выполненные на одних концах секторов, а другие концы закреплены на торцах цилиндрического корпуса.
На фиг. 1 показан приводной барабан, продольный разрез; на фиг. 2-то же, вид по стрелке А на фиг. 1; на фиг. 3-сечение по Б-Б на фиг. 1; на фиг. 4-узел крепления футеровки в кольце на цилиндрическом корпусе барабана; на фиг. 5-сечение по В-В на фиг. 4; на фиг. 6-развертка секторов футеровки; на фиг. 7-сектор, вид в плане; на фиг. 8-сечение сектора по Г-Г на фиг. 7; на фиг. 9-сечение сектора по Д-Д на фиг. 7.

Приводной барабан имеет цилиндрический корпус 1, установленный посредством опор 2 на валу 3. На цилиндрическом корпусе расположены клиновидные сектора 4 с футеровкой 5. Одни концы секторов закреплены на установленном в центральной части цилиндрического корпуса кольце 6 посредством размещенных в отверстиях 7 кольца выступов 8. С торцевой стороны барабана сектора 4 крепятся к цилиндрическому корпусу 1 при помощи болтов 9.
Слой футеровки 5 имеет напуски 10, благодаря чему при затяжке болтов 9 клиновидные сектора, соприкасаясь между собой краями футеровки, расклинивают друг друга. В результате достигается напряженное состояние и сдвигающая рабочая нагрузка воспринимается как одно целое. Кольцо 6 осуществляет силовую связь футеровок обеих половин барабана с цилиндрическим корпусом.
Патент № 568577 «Устройство для натяжения и центрирования конвейерной ленты»
Целью изобретения является повышение эффективности равномерного натяжения и центрирования ленты. Это достигается тем, что барабан выполнен в виде подвижных в продольном направлении бочкообразных роликов, а .механизм упругого поджатия - в виде взаимодействующего с ними эластичного напорного рукава, причем крайние ролики снабжены ребордами. На фиг.1 показано предлагаемое устройство для натяжения и центрирования конвейерной ленты с (перемещаемым корпусом; на фиг.2 -устройство с неподвижным корпусом.


Устройство для натяжения и центрирования конвейерной ленты включает раму1, натяжной элемент 2 и барабан с механизмами перемещения и упругого поджатия. Барабан выполнен в виде подвижных в продольном направлении бочкообразных роликов 3, крайние из которых имеют реборды 4. Диаметр роликов может соответствовать диаметру приводного барабана.
Механизм перемещения устанавливается на корпусе 5 и состоит из опор 6, скользящих в направляющих планках 7, и натравляющих роликов 8. Планки присоединяются винтами 9 к корпусу. Корпус связан с натяжным элементом 2 и расположен подвижно на раме. Опоры снабжены прижимными элементами 10.
Механизм упругого поджатия включает эластичный напорный рукав 11. взаимодействующий через стальную ленту 12 с прижимными элементами 10.
Устройство работает следующим образом.
В зависимости от деформации ленты по ее. ширине осуществляется перемещение роликов 3, которые выравнивают натяжение ленты. Величина перемещения регулируется напорным рукавом 11. Благодаря равномерному натяжению обеспечивается центрированное (прямолинейное) перемещение ленты.
Список используемой литературы:
1. Александров М.П. Подъемно-транспортные машины: учеб. для спец. вузов. -М.: Высш. шк.,1985
2. Патенты: №308940«Натяжное устройство»
№ 546529 «Приводной барабан ленточного конвейера»
№ 568577 «Устройство для натяжения и центрирования конвейерной ленты».