| Скачать .docx |
Реферат: Оптимизация функциональной системы культурно-просветительского учреждения на примере музея Ч
ФГОУ ВПО Урал ГУФК
БАШКИРСКИЙ ИНСТИТУТ ФИЗИЧЕСКОЙ КУЛЬТУРЫ (ФИЛИАЛ)
Факультет социально-культурного сервиса и туризма
Кафедра технологии и организации туризма
Дисциплина: Техника и технологии в СКСТ
ОПТИМИЗАЦИЯ ФУНКЦИОНАЛЬНОЙ СХЕМЫ КУЛЬТУРНО-ПРОСВЕТИТЕЛЬНОГО УЧРЕЖДЕНИЯ НА ПРИМЕРЕ МУЗЕЯ «Чингизхан»
Курсовая работа
Логинова А.Ю
Студентка 3 курса, 31 группы
Научный руководитель: к.с.н., доцент кафедры технологии и организации туризма Костенко Ю.О.
Дата регистрации________________________
Уфа, 2008
ОГЛАВЛЕНИЕ
ВВЕДЕНИЕ 3
ГЛАВА 1. ОБЩИЕ СВЕДЕНИЯ О МУЗЕЯХ
1.1 Определение музея как культурного сооружения, влияние музея на общественность. 6
1.2 Категории и классификации музеев 10
ГЛАВА 2. ФУНКЦИОНАЛЬНАЯ СХЕМА МУЗЕЯ «ЧИНГИЗХАН»
2.1 Краткая характеристика музея 21
2.2 Распределение помещений по функциональным блокам 23
2.3 Анализ функциональной схемы 26
ГЛАВА 3. ВНЕСЕНИЕ ПРЕДЛОЖЕНИЙ ПО ОПТИМИЗАЦИИ ФУНКЦИОНАЛЬНОЙ СХЕМЫ МУЗЕЯ «ЧИНГИЗХАН»
3.1 Плюсы и минусы функциональной схемы 29
3.2 Предложения по оптимизации функциональной схемы
«Чингизхан» 32
ЗАКЛЮЧЕНИЕ 37
СПИСОК ИСПОЛЬЗОВАННЫХ ИСТОЧНИКОВ 40
ПРИЛОЖЕНИЯ 41
ВВЕДЕНИЕ
Есть места и события, актуальность которых не подлежит сомнению. Знать о них - значит мыслить современно, стать их частью - значит быть современным.
Актуальность темы культурно-просветительного учреждения в непохожести каждого музея на другие музеи и учреждения культуры. Музеи должны придавать городам и национальный престиж, и флер культурной общительности. Они должны прикрывать собой и коммунально-политические, и градостроительные прорехи. «Они должны,- как писал журналист Вольфганг Пент, - заботиться о коммунальной идентичности как когда- то соборы. Они должны скреплять общность, как в переносном смысле, так и в прямом».
В современную эпоху музеи – это показ «теней» прошлого. Музей воскрешает утраченные образы, утраченные связи вещей. Сегодня следует использовать как место альтернативное привычному миру, отделить его от привычной среды. Сделать его местом решительно не похожим на другие места в мире. Выделить его из обычной среды.
В сегодняшнем мире глобализации, лавинообразном распространении массовой поп – культуры, каждая территория особо нуждается в обретении своего особого имиджа. Сегодня всё пристальнее люди всматриваются в те вещи, которые ещё сохраняют старое значение, «особость» каждой отдельной территории.
Истинное предназначение музеев на своих территориях - сохранить эту самую «особость» каждой отдельной территории. Не стоит сегодня воспринимать музеи как кладбище вещей (если ими не пользуются, то вещи умирают). В музеях вещи должны рассказывать о прежнем человеческом опыте, о минувшей эпохе, об опыте искусства и творчества ушедших поколений. А также о вкладе именно этой территории в историю региона, страны, а может мира?
Музей следует не модернизировать, не приспосабливать, а сделать более актуальным для современного общества.
Вторая половина XX столетия стала временем больших концептуальных новаций в музейном мире. Дискуссии о социальной роли музея, начавшись еще в период между двумя мировыми войнами, практически не сходили со страниц музееведческой периодики. Могут ли музеи сохранять качества научного учреждения и при этом обращаться к массовой аудитории? Можно ли сбалансировать научность и развлекательность? Какое влияние может оказать музей на развитие общества и на окружающую среду?
На основании вышесказанного, выбор темы «оптимизация функциональной схемы музея на примере музея «Чингизхан» » является актуальной.
Объектом данной курсовой работы является музей «Чингизхан», а предметом - функциональная схема музея. Цель, поставленная в работе, состоят во внесение предложений по оптимизации функциональной схемы музея «Чингизхан».
В соответствии с целью, объектом и предметом, были поставлены следующие задачи:
1) изучить общие сведения о музеях;
2) изучить музей «Чингизхан», как объект курсовой работы. Изучить
функциональную схему музея «Чингизхан»;
3) проанализировать функциональную схему музея «Чингизхан»;
4) внести предложения по изменению функциональной схемы.
Основу курсовой работы составил материал периодической печати, а так материалы и разработки опытных музееведов, взятые в музее «Чингизхан» и из Всемирной сети интернет.
Исходя из цели и задач, была выбрана следующая структура работы: введение, три главы, заключение, библиография и приложения.
В первой главе рассматриваются общие сведения о том, что собой представляет музей как культурно-просветительское учреждение, как он влияет на общественные массы. Рассматриваются виды музеев, категории и классификации.
Во второй главе представлен анализ функциональной схемы музея «Чингизхан». Дана характеристика музею, рассматриваются основные требования к музею.
В третьей главе работы отмечаются плюсы и минусы функциональной схемы, а так же разрабатываются предложения по оптимизации функциональной схемы места фонда.
Вся работа построена на применении сравнения музея «Чингизхан» с принятыми стандартами по распределению и проектированию помещений и блоков, в соответствии с которыми и разрабатываются предложения по оптимизации функциональной схемы культурно-просветительского учреждения на примере музея «Чингизхан».
ГЛАВА 1. ОБЩИЕ СВЕДЕНИЯ О МУЗЕЯХ
1.1. Определение музея как культурного сооружения, влияние музея на общественность
Слово «музей» происходит от греческого «museion» и латинского «museum» - «храм». Музей - место, посвященное наукам и искусствам. Музей - учреждение, которое занимается собиранием, изучением, хранением и показом предметов и документов, характеризующих развитие природы и человеческого общества и представляющих историческую, научную или художественную ценность.
Он состоит из трех частей: коммуникатор (музейный коллектив), канал (экспозиция), музейная аудитория. Музеи - это еще и место, где мы когда-то бывали, куда можно вернуться; это один из объектов культуры, отражающий культурные реалии определенной исторической эпохи, и одновременно средство формирования культуры. Таким образом, музеи это ещё и память каждой отдельной территории, каждого города или посёлка. Детская аудитория традиционно является приоритетной категорией музейного обслуживания. Кроме того, сейчас уже ни у кого не вызывает сомнения, что приобщение к культуре следует начинать с самого раннего детства, когда ребенок стоит на пороге открытия окружающего мира.
На всем протяжении своего существования феномен музея являлся объектом самого пристального внимания и изучения. С момента своего появления в европейской культуре Нового времени музей не только отражает важные тенденции развития "культуры и общества, но, будучи наделенным особым смыслом как «инстанция вечности», со временем начинает оказывать все большее влияние на развитие социокультурной сферы.
«Музеон» в греческой мифологии был местом, где чтили Муз - дочерей Мнемозины. Реально существовавшая Академия Платона уже действовала как музей, но сменивший её в Александрии «Музеон» Птоломея был и Академией, и центром культуры, местом воспоминаний, а не только местом для коллекций и выставок вещей и книг.
На протяжении прошедшего столетия сложилась тенденция рассматривать музей как один из важнейших структурообразующих элементов всей современной западной культуры. Музей и музейность как таковая- это характеристика развития культуры в переломные, кризисные эпохи, когда культура уже не может справиться с осмыслением собственного многообразия. В такие периоды собирающий осколки утраченной целостности музей и его возросшая роль в культуре становятся объектами пристального внимания и критики. Однако можно заметить, что в виде претензий к музею деятели культуры и широкие слои населения зачастую выражают обеспокоенность не столько различными сторонами деятельности собственно музея, сколько путями развития культуры и общества.
Долгие годы музеи оставались учреждением для хранения, классификации и экспонирования предметов искусства. Сегодня существовавшая четкая грань между рынком и музеем стала более размытой.
В Австрии с 1980 года наметилась тенденция к частичной правовой свободе, когда федеральным музеям было позволено заниматься коммерческой деятельностью, а полученные доходы использовать на собственные нужды. Музеи напрямую могли использовать пожертвования и деньги спонсоров. Их больше не надо было перечислять министру финансов или обходным путем через Союз музеев использовать для своего музея. В результате был принят федеральный закон о правовом положении государственных музеев. По закону содержание коллекций и недвижимость остались в собственности государства. Было подчеркнуто научное предназначение музеев. Всем музеям были гарантированы бюджетные ассигнования, так называемое базисное финансирование. Все остальные поступления музеев остались в сфере частично–правовой свободы. Причём, те музеи, директора, которых за прошедшие годы не заботились о пополнении своего бюджета, подвергались штрафам за малоэффективную работу.
Музей на пороге смены времён представляется как значительная манифестация национального самоутверждения. Как лицо, как брэнд каждой территории. Музей – учреждение, глубоко и неоспоримо укоренившееся в общественном сознании. Музей, как социальный институт, должен быть сохранён.
На сегодняшний день практика Музейных ресурсных центров в стране очень широка. Она прошла успешную апробацию, на примере Приволжского федерального округа. В Нижнем Новгороде появился Нижегородский центр гостеприимства, в Саратове на базе «Музейного Объединения» появился в 2001 году Музейный ресурсный центр, в Новосибирске - «Сибирское музейное партнерство» имеет «Инновационный музейный центр». В Красноярске - ассоциация «Открытый Музей». Активно работает Сибирская Байкальская ассоциация туризма. С 1998 г. успешно работает Череповецкое музейное объединение, осуществляя ряд крупных проектов на Федеральном уровне. В 1998 году в связи с антикризисной программой «Музейное дело в Карелии», было создано Музейное агентство. Это новая инфраструктурная форма музейной организации, призванная обеспечить адаптацию музеев к новым социально–экономическим условиям. На базе музейного агентства республики Карелия появились Издательский центр, Информационный центр, Межмузейный профессионально-консультативный центр. В этот же период появились и первые туристско-информационные центры в 5 городах Калининградской области.
Важнейшими задачами подобных центров являются:
-Создание единого информационного банка данных.
- Осуществление мониторинга рынка культурных и туристских ресурсов региона.
-Организация информационного и консультативного обеспечения по вопросам музейно-туристской деятельности.
-Разработка программ и проектов, направленных на развитие музейных и туристских объектов.
-Организация научно-практических конференций, обучающих семинаров, профессионально- консультативная деятельность.
-Участие в рекламной, издательской, маркетинговой, выставочно-презентационной деятельности.
- Проведение PR-компаний музея и иных форм представительской деятельности региона.
- Объединение ресурсов и использование их в соответствии с современными требованиями.
1.2. Категории и классификации музеев
В будущее мы входим, оглядываясь на прошлое
П. Валери
Систематизация музеев — разделение музеев на группы по одному или нескольким признакам. Необходимость систематизации возникает на определенном историческом этапе развития музейного мира, когда возрастает число музеев и появляется разнообразие форм музейных учреждений.
Понятие «музей» утверждается в русском языке вместе с утверждением музея как культурной формы в 19 в. В связи с дифференциацией науки в том же столетии начинают выделяться музеи разных профилей — художественные, археологические, этнографические, сельскохозяйственные, музеи наглядных пособий и т.д. В 1920-е гг., в период формирования государственной музейной сети, сложилась сложная систематизация, учитывавшая профили, а также статус, ведомственные подчиненности.
Принципы группировки определяются поставленной целью — научной, административно-управленческой, юридической и т.п. В настоящее время наиболее употребимо деление на следующие группы, принадлежность к которым часто находит отражение в официальном названии музея. - профильные группы музеев;
- группы музеев по типу хранимого наследия;
- группы музеев по роду деятельности и адресату (типы музеев) ;
- группы музеев по собственнику;
- группы музеев по масштабу деятельности (административно-территориальному признаку);
- группы музеев по статусу.
Кроме этого разделения, из многообразия музейного мира исторически выделились большие группы музеев, обладающие, помимо названных, дополнительной значимой характеристикой.
-мемориальные музеи;
-краеведческие музеи.
Помимо собственно музеев, в музейном мире функционировали и функционируют учреждения, не являющиеся в полном смысле слова музеями.
- протомузейные формы;
- учреждения музейного типа;
- виртуальные музеи.
Одной из важнейших категорий классификации является профиль музея, то есть его специализация. Основополагающим признаком классификации здесь выступает связь музея с конкретной наукой или видом искусства, техникой, производством и его отраслями. В зависимости от структуры профильной дисциплины или отрасли знаний эти основные профильные группы делятся на более узкие.
Исторические музеи [CU1] - это все музеи, базирующиеся на системе исторических наук;
- общеисторические музеи (широкого профиля); например Государственный Исторический музей в Москве;
- археологические музеи; например археологический музей-заповедник «Танаис»;
- этнографические музеи; например Российский этнографический музей в Петербурге;
- военно-исторические музеи; например, Центральный музей Великой Отечественной войны 1941 — 1945 гг. в Москве;
- музеи политической истории; например Музей политической истории России в Петербурге;
- музеи истории религии; например Музей истории религии в Петербурге;
- историко-бытовые музеи, воссоздающие или сохраняющие картину быта различных слоев населения, при этом в отличие от этнографических музеев они документируют не этнические, а социально-психологические особенности быта, которые наиболее ярко проявляются в интерьерах жилищ; например Музей городского быта «Старый Владимир»;
- монографические музеи, посвященные конкретному лицу, событию, учреждению, коллективу; например, Музей Г. К. Жукова в с. Жуково Калужской обл., Музей обороны Ленинграда;
- прочие исторические музеи; например, Музей истории Москвы, Музей истории политической полиции России XIX–XX вв. в Петербурге.
Художественные музеи - все музеи характеризующиеся принадлежностью к истории искусств и искусствоведению:
- музеи изобразительного искусства (национального и зарубежного); например, Русский музей в Петербурге, Музей изобразительных искусств им. А. С. Пушкина в Москве;
- музеи декоративно-прикладного искусства; например, Всероссийский музей декоративно-прикладного и народного искусства в Москве;
- музеи народного искусства; например, Музей народного искусства Научно-исследовательского института художественной промышленности в Москве, Музей палехского искусства в г. Палех Ивановской области; Музей «Вятские народные художественные промыслы» в г. Киров;
- монографические; например, Музей-усадьба И.Е. Репина «Пенаты», Музей фресок Дионисия в с. Ферапонтово Кирилловского р-на Вологодской обл.;
-прочие художественные музеи.
Естественно-научные музеи - это центры, опирающиеся в своей деятельности на естественные науки. К этому профилю относятся музеи биологические, ботанические, зоологические, геологические, минералогические, палеонтологические, антропологические, экологические и пр. Из наиболее крупных - Зоологический и Музей Горного института в Петербурге, Музей Дарвина (широкого профиля) в Москве.
Антропология наряду с этнографией лучше всего представлена в Кунсткамере в Петербурге.
Технические музеи - музеи, связанные с техническими науками, производством: политехнические, технические, авиации, транспорта, связи, судостроения, горного дела, железнодорожного транспорта, музеи отдельных предприятий, памятники истории техники и другие: всемирно известный Политехнический музей в Москве, Музей железнодорожного транспорта в Петербурге, Музей авиации и космонавтики в Москве, Музей связи в Петербурге. Горное дело прекрасно представлено в Музее горного института в Петербурге.
Литературные музеи - все музеи, посвященные развитию литературы, жизни и деятельности поэтов и писателей. Например, Музей Анны Ахматовой и музей-квартира Александра блока в Петербурге и значительное количество аналогов не только в Москве, но и во многих провинциальных городах и усадьбах. Особо следует отметить Пушкинские горы неподалеку от Пскова и музей-усадьбу А.Н.Некрасова «Карабиха» близ Ярославля.
Музеи комплексные - музеи, сочетающие в себе два или более основных профиля, что отражается на составе фондов, деятельности и организационной структуре: историко-художественные, историко-архитектурные (как самостоятельное соединение исторической и искусственной специализации), сельскохозяйственные (соединение естественнонаучной и исторической профилировки) и др. Самыми распространенными среди них являются краеведческие музеи, сочетающие как минимум историческую и естественно-научную специализацию, ведь их собрания документируют нетолько историю, но и природу края..
Комплексным профилем обладают и музеи-ансамбли, созданные на основе памятников архитектуры, их интерьеров, окружающей территории и различных сооружений. В зависимости от характера ансамбля они могут быть историко-художественными, историко-архитектурными, историко-культурными музеями. Архитектурно-этнографический профиль имеет, например, Костромской музей народной архитектуры и народного быта, историко-архитектурным и художественным профилем обладает один из крупнейших музеев Московской области — «Новый Иерусалим».
Наряду с профильной классификацией используется и не совпадающее с ней типологическое деление музеев. Существует типология по признаку общественного назначения музеев, в соответствии с которой они делятся на научно-исследовательские, научно-просветительные и учебные музеи.
1.Научно-исследовательские музеи функционируют при научно-исследовательских институтах и академиях наук, в состав которых они обычно входят в качестве структурных подразделений. Их фонды используются в научных целях, а экспозиции ориентированы прежде всего на специалистов. Примером этого типа музеев может служить Научный музей Института мозга Российской академии медицинских наук, или, например, Музей внеземного вещества в составе Института геохимии и аналитической химии Российской академии наук (Москва). В музейной экспозиции представлены коллекции метеоритов и лунных образцов, а также приборы — инструменты дистанционного исследования состава атмосферы, грунта и других характеристик больших планет.
2.К самому распространенному типу относятся научно-просветительные музеи. Они тоже занимаются исследовательской работой, но поскольку ориентированы прежде всего на массового посетителя, их фонды широко используются в культурно-образовательных целях. Таковы, например, Политехнический музей и Музей изобразительных искусств им. А. С. Пушкина в Москве, Эрмитаж и Музей антропологии и этнографии в Петербурге.
3. Главное назначение учебных музеев — обеспечить наглядность и предметность процессу образования и подготовки кадров. Этот тип музеев существует, в основном, при различных учебных заведениях и специальных ведомствах — Музей лесоводства им. Г.Ф. Морозова Петербургской лесотехнической академии, Музей декоративно-прикладного искусства Петербургского высшего художественно-промышленного училища. В отдельных случаях фонды и экспозиции учебных музеев могут быть недоступны для массового посетителя. Таковы, например, некоторые музеи криминалистики системы Министерства внутренних дел.
Существует и другая типология музеев, в соответствии с которой выделяют музеи коллекционного типа и музеи ансамблевого типа. В ее основе лежит деление по такому признаку, как способ осуществления музеями функции документирования. Музеи коллекционного типа строят свою деятельность на основе традиционного собрания вещественных, письменных, изобразительных материалов, соответствующих их профилю. В основе деятельности музеев ансамблевого типа лежат памятники архитектуры с их интерьерами, прилегающей территорией, природной средой. Функцию документирования они выполняют путем сохранения или воссоздания ансамбля недвижимых памятников и присущего им окружения. Наиболее распространенные формы этого типа музеев — музей под открытым небом, дворец-музей, дом-музей, музей-квартира, музей-мастерская.
Среди музеев под открытым небом - Кирилло-Белозерский историко-архитектурный и художественный музей-заповедник, Бородинский военно-исторический музей-заповедник. Соловецкий историко-архитектурный и природный музей-заповедник. Ансамбль Соловецкого монастыря. XVI–XIX вв.
Историко-архитектурный и этнографический музей-заповедник «Кижи» включен в список всемирного культурного и природного наследия ЮНЕСКО. Он образован в 1969 г. на острове Кижи, соседних островах и прилегающей к ним части побережья Онежского озера. Музей включает свыше 70 памятников народного деревянного зодчества — культового и гражданского, часть из которых привезена из различных районов Карелии.
Особую типологическую группу образуют и мемориальные музеи: мемориальное здание, где сохранена или воссоздана на документальной основе мемориальная обстановка, в которой жил человек или происходило событие. Что касается профиля мемориального музея, то он определяется содержанием события или характером деятельности человека, которому посвящен.
Существуют и другие принципы классификации, не совпадающие ни с профильным делением, ни с типологией. В основе классификации музеев может лежать административно-территориальный признак, в соответствии с которым различаются республиканские, краевые, областные, районные музеи. По принадлежности (юридическому положению) музеи делятся на государственные, общественные и частные.
1. Г [CU2] осударственные музеи являются собственностью государства и финансируются из государственного бюджета. Большая их часть находится в ведении Министерства культуры РФ.
2. Вместе с тем существует значительная группа государственных музеев, которые подчиняются не органам управления культурой, а различным министерствам и ведомствам, решая поставленные ими задачи. Это так называемые ведомственные музеи; они финансируются из государственного бюджета через Министерство финансов и соответствующие ведомства. (Зоологический музей Московского университета им. М. В. Ломоносова, находящийся в ведении Министерства общего и профессионального образования, Центральный музей железнодорожного транспорта России Министерства путей сообщения (Петербург), Медицинский музей Российской академии медицинских наук, Военно-медицинский музей Министерства обороны (Петербург)).
3. К категории общественных музеев относятся музеи, созданные по инициативе общественности и действующие на общественных началах, но под научно-методическим руководством государственных музеев. Финансируют общественные музеи те учреждения, при которых они созданы. До 1978 г. в значении «общественныи музеи» использовался термин «народный музей».
4. В последнее десятилетие ушедшего столетия в России стали складываться условия для возрождения частных музеев, то есть музеев, в основе которых лежат собрания, принадлежащие частным лицам, но доступные для изучения и осмотра. В 1993 г. в Москве был зарегистрирован первый частный художественный музей — Русский национальный музей искусств. В его фондах представлены произведения русской и западноевропейской живописи, скульптуры, графики, декоративно-прикладного искусства.
Культурные центры получивших достаточно широкое распространение в последней трети XX в. Музейные коллекции и экспозиции заняли в них не единственное и отнюдь не главное место. Основной акцент сделан на объединении изолированных друг от друга областей знаний, отдельных наук и мира искусства, с тем, чтобы преодолеть культурную разобщенность и сблизить людей и социальные группы (Национальный центр искусства и культуры имени Жоржа Помпиду в Париже, или Центр Бобур, как его обычно называют по имени расположенной рядом с ним старинной улицы и пустыря, на котором возведено здание).
Детские музеи
В XX в. получил распространение новый тип специализированного музея, который предназначается исключительно для детской аудитории и создается с учетом своеобразия процесса приобретения знаний ребенком. Его появление было связано с осознанием того, что поведение детей отнюдь не является неорганизованным и стихийным, а напротив, руководствуется четкими, но отличными от взрослых людей правилами. Первый детский музей был создан в 1899 г. в нью-йоркском районе Бруклин. В его основу легли минералы, раковины, чучела птиц и другие экспонаты, которые Бруклинский институт искусств, переехав в новое здание, оставил вместе с домом для экспериментальной работы с детьми. Он должен стать тем местом, где дети могут не только рассматривать экспонаты, но и познавать мир путем опытов и экспериментов. В музее появились мастерские и образовательные клубы, со временем он пополнился библиотекой, анатомической и ботанической лабораториями, кинотеатром, художественными, историческими, техническими коллекциями. В настоящее время примерно 300 из существующих в мире детских музеев находятся в США.
В европейском регионе детские музеи стали активно создаваться с 1970-х гг. Особую известность приобрели Инвенториум в Городе науки и техники Ла Виллет в Париже, Детская студия при Национальном центре искусства и культуры им. Ж. Помпиду в Париже, Детский музей в Эдинбурге, Детский музей в музейном квартале Вены, «Музеон» в Гааге. В 1990-е гг. самостоятельные детские музеи и детские центры при традиционных музеях появились в российских городах.
Вся экспозиционная и образовательная работа в детских музеях строится с учетом возрастных особенностей ребенка и использует разработанные музейной педагогикой методики, с тем чтобы дети учились и постигали мир в процессе игры, творчества и общения. Они могут изучать строение скелета животного с помощью головоломок из костей, решать на компьютере логические задачи, определять по каталогу образцы полезных ископаемых, собирать детали на простых конвейерах.
Экомузеи
В начале XX в. явственно обозначилась и с каждым десятилетием набирала все большую силу тенденция к сохранению in situ исторического окружения — архитектурных памятников, ансамблей, фрагментов культурно-исторической среды. В сочетании с идеями регионального развития и поисками путей к обновлению и демократизации традиционного музея она привела к появлению нового типа музейного учреждения, получившего название «экомузей».
Термин «экомузей», придуманный и данный им музеологом Югом де Варином в 1971 г., не принято расшифровывать как «экологический музей», поскольку это музей не только природы или окружающей среды. Его замысел гораздо шире и связан с комплексным пониманием среды обитания человека. Экомузей — это заповедник, т. к. он способствует сохранению и оценке местного природного и культурного наследия. Экомузей — это и школа, ибо он вовлекает местных жителей в свою деятельность по изучению и охране наследия и способствует более ясному осознанию ими своего будущего». Таким образом, экомузей не замыкается в себе, а активно взаимодействует с окружающим миром.
Воплощенные в жизнь проекты показывают, что организационная структура этих учреждений в каждом отдельном случае различна. Это может быть и парк-музей, и этнографический музей-заповедник под открытым небом, и центр промышленного наследия. Вместе с тем всем им присущи некоторые общие характеристики.
Экомузей посвящен человеку, его природному и культурному окружению.
В составе экомузея могут находиться коллекции традиционного типа, то есть государственные фонды, подлежащие обычному контролю и хранению. Но все-таки основное достояние экомузея — это орудия труда и предметы обихода, вещи повседневные и серийные. Некоторые из них после изучения и инвентаризации вновь возвращаются владельцам и попадают в свое обычное окружение. Ведь деятельность экомузея состоит не только в музеефикации объектов, но и в сохранении умений, навыков, технического мастерства.
Формы деятельности экомузея могут быть самыми различными: работа экомузея не только развивает интерес жителей к своему району и культуре, но и обеспечивает их участие в планировании своего будущего.
Объединившиеся в группу специалисты собрались в 1984 г. в Квебеке на Первый международный семинар «Экомузей и новая музеология», где была выработана единая позиция по общим вопросам и принята декларация о целях и основных принципах нового движения.
ГЛАВА 2. ФУНКЦИОНАЛЬНАЯ СХЕМА МУЗЕЯ «ЧИНГИЗХАН»
2.1. Краткая характеристика музея
Музеи – одно из важнейших явлений социально-культурной жизни общества. В Уфе открылся Музей современного искусства РБ им. Наиля Латфуллина.
В январе этого года исполнилось пять лет, как Уфе открылся музей современного искусства РБ им. Наиля Латфуллина. Многие о нем слышали, многие его посетили, многие стали друзьями музея и его завсегдатаями. Но широкая публика мало знакома с историей создания музея. В 1992 году, когда не стало Наиля Латфуллина, основателя группы художников «Чингизхан», «чингизханы» решили, что вместо запланированной групповой выставки открыть первую персональную, теперь уже посмертную, выставку Наиля. Открытие состоялось 11 декабря в Уфимской художественной галерее, где было представлено более ста живописных полотен из его мастерской, из БГХМ им. В.В. Нестерова, из музеев и частных коллекций Казани, а так же из частных собраний Уфы. На этой же выставке было принято решение о создании в Уфе музея им. Латфуллина. Но само торжественное открытие, музея современного искусства его имени, состоялось только 9 января 2002 года, в день, когда Наилю Латфуллину исполнилось бы 50 лет. Через полгода в стенах нового музея, 20 современных авторов Башкортостана представили по одной работе, посвященной Всемирному курултаю башкир; перед открытием выставки, табличка с названием «Творческое объединение «Чингизхан». Музей современного искусства РБ им. Н. Латфуллина» красовалась над входом в музей. Под этим названием музей и был зарегистрирован.
Председателем творческого объединения «Чингизхан», по сегодняшний день является, Василь Ханнанов.
Сегодня «Чингизхан» является уже неким брендом, под маркой которого координируются различные художественные, в их числе масса молодежных, проекты.
2.2. Распределение помещений по функциональным блокам
Для музеев часто используют исторические объекты с подходящими помещениями, а также холодные так называемые «современные» музеи.
Под функциональным комплексом понимается ограниченное объединение музейных служб, обеспечивающих максимально эффективное выполнение одной из основных или нескольких функций.
Экспозиционно-выставочный комплекс является пространственной основой здания. «Гибкая» организация пространства в таких помещениях достигается за счет их членения передвижными перегородками и щитами, а в наиболее оборудованных выставочных залах - и за счет изменения высоты помещения. Система освещения так же должна быть мобильной и создавать многовариантную световую среду (см. рис.1).
Экспозиционная зона представляет собой группу помещений с различными планировочными решениями: анафиландным, кольцевым, радиальным. Конкретное архитектурно-планировочное решение экспозиции определяется ее тематической структурой, составом экспонируемых музейных предметов и техническими возможностями самого зала.
В первом этаже может располагаться лишь небольшая часть экспозиции. Основная же часть, как правило. Размещается на втором этаже здания. При наличии большого количества этажей они могут быть заняты экспозицией полностью или частично. Однако многоэтажное расположение экспозиции в старых и приспособленных зданиях создает неудобство для посетителей.
Зона обслуживания включает: вестибюли, гардеробы, киоски, буфеты, медпункт, курительные и туалетные комнаты. Территориально эта зона размещается на первом этаже, вблизи от входа.
Зона подготовки об обслуживания экспозиций и выставок - помещения для художественно-оформительской и технической подготовки экспозиций и временных выставок. Эти помещения следует располагать вблизи выставочных залов или под ними, связав их системами лестниц и лифтов.
Фондовый комплекс состоит из зоны хранения, зоны централизованного учета фондов, зоны консервации, зоны профилактики и упаковки.
Зона хранилищ состоит из собственно хранилищ, кабинетов хранителей при них. Номенклатура помещений для хранения зависит прежде всего от типов хранящихся объектов. Для фондов должны быть представлены, как минимум два помещения: для органических и неорганических материалов. Располагаться такие помещения могут как в цокольном, так и на первом, втором и других этажах.
В научно-исследовательский комплексе объединены информационно-исследовательская и научно-техническая зона.
В информационно-исследовательскую зону входят библиотека с читальным залом, кабинеты научных сотрудников, помещения научного архива музея, конференц-зал. Помещения этой зоны не должны располагаться в подвальных этажах.
Научно-техническая зона представляет собой группу помещений редакционно-издательской и копировально-множительной служб, фотолаборатории. Как правило, эти помещения располагаются в цокольном этаже.
В административно-хозяйственном комплексе выделяют две зоны. Административная зона - это кабинет директора и его заместителей, приемная, секретариат, канцелярия, отдел кадров, бухгалтерия и помещения для общественных организаций.
Хозяйственная зона состоит помещений отделов снабжений, музейных служителей, уборщиц, рабочих по зданию и другого обслуживающего персонала, а так же складов и гаражей.
В составе инженерно-технического комплекса выделяют: зона технического обеспечения (помещения для кондиционеров, теплоцентр, бойлерная, трансформаторная и др.); зона оперативного контроля и связи, объединяет помещения пультов охранной и пожарной сигнализации; зоны производственных мастерских (столярная, слесарная, мастерские и др.).
2.3. Анализ функциональной схемы
Содержание экспонатов и обслуживание посетителей составляют основу, деятельности музеев, определяют структуру, состав и площади помещений (табл. 1, 2).
Таблица 1
Содержание экспонатов
| Функция |
Место |
| Показ |
Экспозиционные и выставочные залы |
| Сбор и хранение |
Фондохранилище, реставрационные мастерские |
| Изучение |
Рабочие комнаты |
Таблица 2
Обслуживание посетителей
| О бслуживание посетителей |
|
| Функция |
Место |
| Прием |
Вестибюль, кинолекционный зал, кружковые |
| Показ |
Экспозиционные и выставочные залы |
| Информация |
Информационные службы, библиотека |
В составе каждого комплекса целесообразно выделить зоны, представляющие собой группы помещений, объединенных как функциональным значением, так и расположением в здании музея.
Экспозиционно-выставочный комплекс музея «Чингизхан» представлен двумя залами: большой и малый выставочные залы, которые дифференцируются в соответствии с функциональным назначением каждой.
Зона обслуживания состоит из гардероба и туалетной комнаты.
Зона организации и проведения обслуживания имеет отдельную комнату, кинолекционный зал отсутствует, но имеется видео аппаратура, которая располагается в большом выставочном зале.
Фондовый комплекс музея «Чингизхан» представлен несколькими помещениями, в виде квартир, находящихся отдельно от музея.
Научно-исследовательский комплекс не имеет отдельного помещения, а находится в помещении совместно с зоной организации и проведения массовой работы.
Административно-хозяйственный комплекс существует как две отдельные системы: административная зона - кабинет директора, отдел кадров, бухгалтерия и помещения для общественных организаций - находится отдельно от основного музейного комплекса; хозяйственная зона - располагается возле экспозиционно-выставочного комплекса.
В зависимости от преимущественного использования помещений посетителями или сотрудниками музея они разделяются на две основные зоны: А - посетительскую, Б - служебную. Помещения и функциональные зоны музея приведены в табл. 3
Таблица 3
Помещения и функциональные зоны музея
| № п . п. |
Вид помещений по назначению |
Функциональные зоны музея |
|
| А - посетительская |
Б - служебная |
||
| 1. |
Основные |
Постоянная экспозиция, временные выставки |
Фондохранилища |
| 2. |
Вспомогательные |
Кинолекционный зал, кружковая, зона отдыха, помещения для информации |
Рабочие помещения сотрудников, лаборатории, мастерские, библиотека |
| 3. |
Обслуживающие |
Вестибюль, гардероб, буфет, киоск, курительные, санузлы |
Служебный вестибюль, хозяйственные кладовые, помещения для инвентаря, санузлы, технические помещения |
.
ГЛАВА 3. ВНЕСЕНИЕ ПРЕДЛОЖЕНИЙ ПО ОПТИМИЗАЦИИ ФУНКЦИОНАЛЬНОЙ СХЕМЫ
3.1. Плюсы и минусы функциональной схемы
Музей современного искусства РБ им. Н. Латфуллина «Чингизхан», представляет собой небольшое подвальное помещение, в котором выставляют свои работы молодые, и уже известные, художники Башкортостана, чем и вызвано отдельное местонахождение некоторых зон, входящих в состав музея.
Экспозиционная зона, как уже упоминалось, состоит из двух залов: большого и малого выставочного. Малый выставочный зал относится к залам временных выставок. Такая планировка соответствует требованиям, т.к «Гибкая» организация пространства в таких помещениях достигается за счет их членения перегородками. Одноэтажная композиция создает максимум удобств, как в отношении взаимного размещения основных помещений, так и освещения. Преимущества этого типа планировки - возможность тесной связи с природой, трансформаций и расширения музея в целом и отдельных его разделов, сокращение путей перемещения посетителей. Минусов в такой планировке не прослеживается.
Зона обслуживания состоит только из двух компонентов: туалетная комната и гардероб. В небольших музеях касса, киоск и контроль могут быть объединены в одном месте. В данном случае они располагаются в зоне организации и проведения обслуживания. Другие помещения в музее отсутствуют, но это отсутствие и объясняет ненадобность их в небольшом музее. Плюсом зоны обслуживания является близкое ее расположение ко входу.
Зона организации и проведения обслуживания имеет отдельную комнату. Здесь включено и информационное бюро. Минус - кинолекционный зал отсутствует, хотя имеется видео аппаратура, которая располагается в большом выставочном зале.
Зона организации и обслуживания экспозиций и выставок, как отдельное помещение, отсутствует, но она входит в состав отдельно находящихся помещений, что можно отнести к минусам функциональной схемы.
Экспозиционные залы должны иметь технологическую связь с фондохранилищем и мастерскими. При проектировании их на разных этажах необходимо предусмотреть грузовой лифт для доставки экспонатов. Фондовый комплекс музея «Чингизхан» представлен несколькими помещениями, в виде квартир, находящихся отдельно от музея, что в соответствии с функциональной схемой является большим минусом, но при этом они имеют собственно хранилище, кабинеты хранителей при них. И для небольших музеев возможно объединение в одном хранилище родственных материалов.
Научно-исследовательский комплекс не имеет отдельного помещения, а находится в помещении совместно с зоной организации и проведения массовой работы, но в небольших музеях этот комплекс может быть сведен к помещению для научных сотрудников, библиотеки и фотолаборатории. В музее «Чингизхан» эти блоки распределены между зоной обслуживания, административно-хозяйственным комплексом.
Административно-хозяйственный комплекс существует как две отдельные системы: административная зона - кабинет директора, отдел кадров, бухгалтерия и помещения для общественных организаций - находится отдельно от основного музейного комплекса и входят в состав одного функционального блока; хозяйственная зона - располагается возле экспозиционно-выставочного комплекса, и не имеет отдельных помещений отделов.
Инженерно-технический комплекс как самостоятельный не существует, его функции распределяются между основными функциональными блоками.
3.2 Предложения по оптимизации функциональной схемы
«Чингизхан»
Централизованная музейная система имеет, как правило, следующую структуру:
- головной музей;
- филиалы;
- музеи на правах отделов (секторов) головного музея или филиалов;
- самостоятельные экспозиции в отдельных зданиях, чаще всего в музеефицированных памятниках истории и культуры.
При организации централизованных музейных систем одной из первоочередных задач является разработка генерального плана. К его составлению должны привлекаться музеи, научные учреждения, общественность, органы охраны памятников, творческие союзы, заинтересованные министерства и ведомства. В генеральном плане уточняется профиль существующих музеев; определяются тематика экспозиций, планируемых на перспективу, место их размещения, состояние памятников истории и культуры, намеченных для музеефикации; сроки реставрационных работ; время открытия новых экспозиций и возможность комплексного обслуживания всей системы музеев с учетом нового строительства. Генеральный план разрабатывается с участием архитекторов на основе научной концепции, определяющей характер развития музейного дела региона. В централизованных музейных системах при разработке научной концепции и генерального плана вносятся существенные изменении.
Наряду с традиционными формами деятельности в работе музея с посетителями должны внедряться и такие, как показ работы реставраторов, открытый доступ в фонды и др.
Научно-фондовая работа в централизованных системах характеризуется и другими серьезными изменениями, прежде всего ростом основного фонда. Такой сдвиг возможен в результате проведения совместных экспедиций по комплектованию материалов, а также более широкому развитию связей музеев с научными учреждениями, архивами, предприятиями, учебными заведениями, вузами, как одному из следствий создания централизованной системы. Две трети фондовых поступлений приходится на филиалы, тогда как до централизации они составляли лишь одну треть. В связи с этим насущной задачей является увеличение площадей фондохранилищ.
Перспективным следует считать создание объединенных специализированных фондохранилищ по отдельным видам музейных предметов. При этом создаются наиболее благоприятные условия для хранения музейных предметов в режиме, соответствующем тому или иному материалу. Объединенное специализированное хранение позволяет поднять научный уровень работы с фондами, способствует повышению квалификации сотрудников, занимающихся изучением определенных видов музейных памятников. Создаются также условия для значительного повышения оборота музейных фондов, поскольку усиливается использование коллекций исследователями, а также средствами массовой информации.
В зданиях для централизованного хранения фондов рекомендуется создавать комплексные реставрационные отделы, лаборатории и мастерские, обслуживающие филиалы объединения. В составе помещений необходимо предусматривать специальные выставочные залы для новых поступлений и отреставрированных экспонатов общей площадью 400 - 600 м2 .
Выявление, взятие на учет и комплектование фондов проводятся по профильной принадлежности музея. В зависимости от значимости экспонатов фонды музея разделяются на основные и научно-вспомогательные. Функциональную программу музей выполняет специфическими средствами.
Архитектурный аспект проблемы включает необходимость иметь специальные помещения для хранения фондов по видам экспонатов, рабочие помещения для сотрудников фондов, хранения научного архива, резервные площади для регулярного пополнения коллекций, возможность обновления постоянной экспозиции и устройства выставок.
Прирост музейных фондов в год составляет в среднем 3 - 4 %. Таким образом, фонды большинства музеев удваиваются каждые 25 - 30 лет. Развитие музея в основном приходится на долю фондохранилищ, включает проведение мероприятий по сохранности экспонатов в экспозиционных залах, но в основном - в фондах.
В зависимости от величины музея и его значимости в системе предусматривается от одной общей реставрационной мастерской до комплекса мастерских и лабораторий. Прогрессивной формой обслуживания музея в условиях централизации их фондов является организация базовых фондохранилищ, мастерских и лабораторий.
Наряду с традиционными формами деятельности в работе музея с посетителями должны внедряться и такие, как показ работы реставраторов, открытый доступ в фонды и др.
Предложение по оптимизации функциональной схемы музея, на примере музея «Чингизхан», сводятся к предложению постройки корпуса под блок фондохранилища, что приведет к упрощению функциональной схемы и удобному и быстрому доступу к фондам. При централизации появится возможность создания объединенных отделов и служб, ориентированных на решение задач. Структура объединения является в этом отношении достаточно гибкой, легко приспосабливаемой к местной специфике. Актуальным является выделение особого структурного подразделения для разработки архитектурно-художественных решений и функционального оснащения музейных экспозиций.
Решающими факторами, определяющими величину музея, являются количество, состав фондов и динамика поступлений.
Распределение площадей между основными группами помещений зависит от профиля музея, его величины и значимости. За основу расчета площадей музеев принимается экспозиционная площадь, которая, как правило, составляет половину общей площади музея (45 - 55 %). Ориентировочные соотношения площадей следующие:
- экспозиционные залы - 45 - 55 %;
- фондохранилища - 20 - 25 %;
- вспомогательные и обслуживающие помещения - 25 - 35 %.
Для всех профилей музеев, кроме мемориальных, характерна следующая закономерность в распределении экспозиционных площадей в различных по величине городах: с ростом численности населения города показатели площади на 1 тыс. жителей уменьшаются.
Такой же характер носит зависимость количества посещений в городах с различной численностью населения: чем меньше город, тем большее количество посещений на 1 тыс. жителей в год. Обратная зависимость имеет место в распределении экспонатов в экспозиции и фондах.
После централизации в музеях наблюдается процесс быстрого и систематического роста общего числа посетителей. Резко увеличивается также число проведенных экскурсий, массовых мероприятий в целом по объединенному музею, расширяется их тематика, внедряются новые формы массовой научно-просветительной работы, увеличивается процент экскурсионного обслуживания посетителей. Успехи в развитии научно-просветительной работы достигаются благодаря внедрению комплекса организационно-методических и архитектурных мероприятий. Среди них: создание централизованных отделов и секторов экскурсионной работы, научной пропаганды, методики научно-просветительной работы руководства филиалами, внемузейной работы и рекламы музея. Благодаря этому значительно увеличивается контингент посетителей, а также возможность широко внедрять практику комплексных экскурсий.
Большое значение для повышения научного, идейного и профессионального уровня массовой работы имеет коренная перестройка системы подготовки и повышения квалификации кадров. Она имеет целью охватить различными формами обучения всех без исключения научных сотрудников, экскурсоводов и руководящих работников среднего звена. Музей должен стать центром профессиональной подготовки кадров. Рекомендуется в объединенном музее организация школ для штатных и внештатных сотрудников.
ЗАКЛЮЧЕНИЕ
Основными видами деятельности музеев является: формирование и хранение коллекций, научно-исследовательская работа, организация постоянной экспозиции, устройство выставок, культурно-просветительная деятельность. Актуальность каждого музея в его непохожести на другие музеи и учреждения культуры.
Представленная курсовая работа по теме «Оптимизация функциональной схемы культурно-просветительного учреждения на примере музея «Чингизхан»» состоит из введения, трех глав, заключения, библиографии и приложений. В ходе проведенной работы было:
1. Изучены общие сведения о музеях, где повествуется об истории создания музеев, влияние музеев на общественность, как культурного сооружения. Музей - место, посвященное наукам и искусствам, характеризующих развитие природы и человеческого общества и представляющих историческую, научную или художественную ценность.
Он состоит из трех частей: коммуникатор (музейный коллектив), канал (экспозиция), музейная аудитория.
2. Изучен музей «Чингизхан», как объект курсовой работы. В январе этого года музею современного искусства РБ им. Наиля Латфуллина исполнилось пять лет. Сегодня «Чингизхан» является уже неким брендом, под маркой которого координируются различные художественные, в их числе масса молодежных, проекты. В ходе проведения работы было затронуто изучение функциональной схемы музея «Чингизхан»;
3. Проведен анализ функциональной схемы музея «Чингизхан», в соответствии с делениями на блоки. Под функциональным комплексом понимается ограниченное объединение музейных служб, обеспечивающих максимально эффективное выполнение одной из основных или нескольких функций;
4. Предложение по оптимизации функциональной схемы музея, сводятся к предложению постройки корпуса под блок фондохранилища, т.к фондовый комплекс музея «Чингизхан» представлен несколькими помещениями, в виде квартир, находящихся отдельно от музея, что в соответствии с функциональной схемой является большим минусом; это позволит оптимизировать функциональную схему и приведет к упрощению функциональной схемы, удобному и быстрому доступу к фондам. Но как уже упоминалось выше, музей «Чингизхан» состоит из нескольких отдельно находящихся блоков, по причине того, что «Чингизхан» является объединением художников, и основателей этого музея, поэтому объединение всех блоков в одном здании на сегодняшний день является проблемой до конца не решенной и может служить перспективой дальнейшей работы по этой теме.
Основу курсовой работы составил материалы периодической печати, а так же материалы и разработки опытных музееведов, взятые в музее «Чингизхан», национальной библиотеки им. З.Валиди и из Всемирной сети интернет.
В первой главе приведены общие сведения о музеях. Что собой представляет музей как культурное сооружение на сегодняшний день и как он влияет на общественность. Были рассмотрены категории и классификация музеев.
Во второй главе работы опубликованы результаты изучения функциональной схемы музеев, стандарты, предъявляемые к музеям. Дана характеристика музею современного искусства РБ им. Н. Латфуллина «Чингизхан», рассматриваются основные требования к музею.
Наряду с традиционными формами деятельности в работе музея с посетителями должны внедряться и такие, как показ работы реставраторов, открытый доступ в фонды и др. В третей главе работы отмечены плюсы и минусы функциональной схемы и внесены предложения по оптимизации функциональной схемы фондохранилища.
Завершают работу приложения с функциональными схемами блоков музея «Чингизхан» и предложением схемы фондохранилища в общем комплексе музея.
СПИСОК ИСПОЛЬЗОВАННЫХ ИСТОЧНИКОВ
1. . Музееведение. Исторические и краеведческие музеи /И.В. Дубов изд-во дом С.-Петербургского государственного ун-та, 2004. - с.303 - 327.
2. Музееведение. Выпуск 1 /Редколлегия: И.М.Акбулатова, З.Н.Ситдикова, М.З.Ассадуллина. - Уфа, 1995. С. 250 -258.
3. Музееведение. Музеи исторического профиля /Под ред.проф. В.Хербста. - Москва: «Высшая школа», 1988. - С. 5 - 8.
4. Словарь сочетания слов русского языка. /под ред. Л.Н.Денисова, В.В.Морковкина. - 2-ое изд., исправл. - Москва: «Русский язык», 1983. 367 с.
5. Ханнанов В. Как это все начиналось // В.Ханнанов. - Высоко Художественный журнал №1, 2005. - С. 9
6. Ханнанов В. Музею современного искусства РБ им. Н. Латфуллина - 5 лет // В. Ханнанов. - Высоко Художественный журнал №6, 2007. - С. 5 - 7.
7. http://skm.solkam.ru/index.php?razdel=stat&text=stat7_04 - 24.19 Кб
8. www.den-za-dnem.ru/
9. www.museum.ru/
10. http://otz-109.feldgendler.ru
11. http://planetadisser.com/
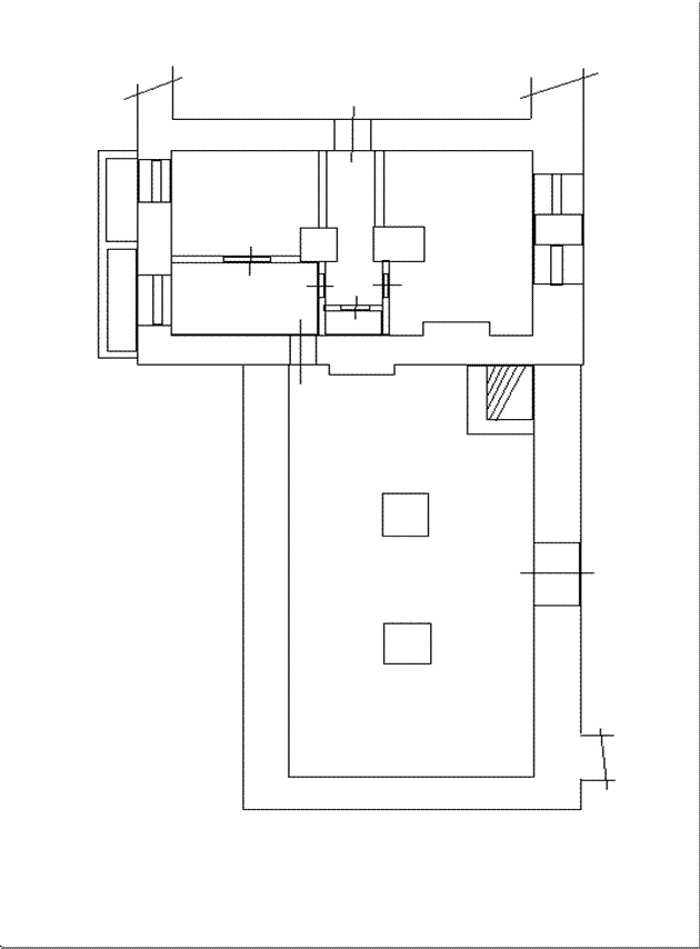
ПРИЛОЖЕНИЕ 1
Функциональная схема музея

ПРИЛОЖЕНИЕ 1.1
Функциональная схема музея «Чингизхан»

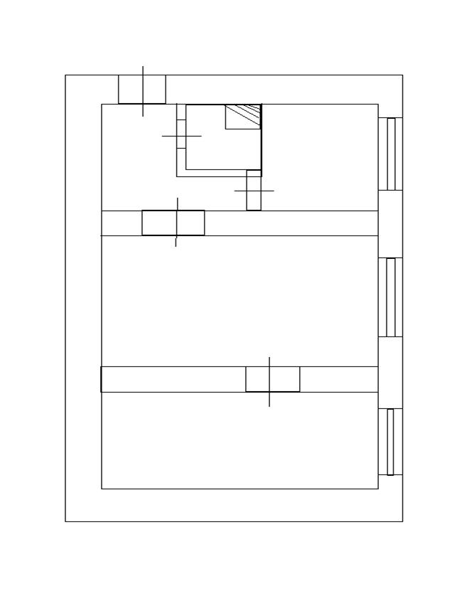
ПРИЛИЖЕНИЕ 2
Функциональна схема фонда

ПРИЛИЖЕНИЕ 2.1
Функциональна схема фонда

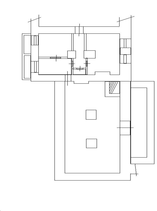
ПРИЛОЖЕНИЕ 3.
Функциональна схема административного блока и фонда
ПРИЛОЖЕНИЕ 3.1
Функциональна схема административного блока и фонда

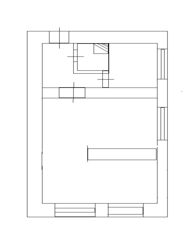
ПРИЛОЖЕНИЕ 4
Предложения по оптимизации функциональной схемы музея «Чингизхан»

ПРИЛОЖЕНИЕ 4.1
Предложения по оптимизации функциональной схемы музея «Чингизхан»
[CU1] На все термины надо давать ссылку на источник – откуда их взяла
[CU2] После точек везде пробел. Ниже тоже – где цифры