| Скачать .docx | Скачать .pdf |
Реферат: Расчет и конструирование типового оборудования
МИНИСТЕРСТВО ОБРАЗОВАНИЯ И НАУКИ УКРАИНЫ
ВОСТОЧНОУКРАИНСКИЙ НАЦИОНАЛЬНЫЙ
УНИВЕРСИТЕТ
ИМЕНИ ВЛАДИМИРА ДАЛЯ
ТЕХНОЛОГИЧЕСКИЙ ИНСТИТУТ (г. Северодонецк)
КОНСПЕКТ ЛЕКЦИЙ по дисциплине
"РАСЧЕТ И КОНСТРУИРОВАНИЕ
ТИПОВОГО ОБОРУДОВАНИЯ"
для студентов специальности 7.090220 "Оборудование химических предприятий и производств строительных материалов" (в 2-х частях)
Часть 1. " Расчет и конструирование тонкостенных аппаратов"
Северодонецк 2009
Конспект лекций по дисциплине "Расчет и конструирование типового оборудования" для студентов специальности 7.090220 "Оборудование химических предприятий и производств строительных материалов" (в 2-х частях). Часть 1." Расчет и конструирование тонкостенных аппаратов" / Сост. И.М. Генкина. – Северодонецк, ТИ, 2009 – 239 с.
Составитель: И.М. Генкина, ст. преподаватель СОДЕРЖАНИЕ
I. Общие сведения . . . . . . . . . . . . . . . . . . . . . . 4
1. Общий объем дисциплины и объем лекций 4
II. Конспект лекций . . . . . . . . . . . . . . . . . . . . . 13
Лекция 1. Введение . . . . . . . . . . . . . . . . . . . . 13
Лекция 2. Материалы, применяемые для изготовления
химического оборудования . . . . . . . . . . . . . . 18
Лекция 3. Основы теории тонкостенных оболочек.
Уравнение Лапласа . . . . . . . . . . . . 22
Лекция 4. Основы теории тонкостенных оболочек.
Приложение безмоментной теории расчета тонкостенных
оболочек к расчету корпусов тонкостенных аппаратов . . . . 30
. . . . . .
Лекция 5. Основы теории тонкостенных оболочек. Оценка
прочности тонкостенных сосудов . . . . . . . . . . . . . . . . . . . . . . 35
. . .
Лекция 6 . Элементы моментной теории тонкостенных
оболочек . . . . . . . . . . . . . . . . . . . . . . . . . . . . . . 40
Лекция 7 . Общие требования к сосудам, работающим под
давлением . . . . . .. . .
Лекция 8. Конструкции обечаек и днищ . . .
Лекция 9. Расчет элементов аппаратов, нагруженных
внутренним избыточным давлением
Лекция 10. Расчет элементов аппаратов, нагруженных
наружным давлением
Лекция 11. Аппараты с рубашками . . . . . . .
Лекция 12. Расчет цилиндрических обечаек при
совместном действии нагрузок нескольких видов
Лекция 13 . Укрепление отверстий в стенках аппаратов .
Лекция 14. Конструкции и расчет фланцевых соединений
. . . .
Лекция 15. Конструкции и выбор опор и строповых
устройств аппаратов .
Приложения
I. Общие сведения
1. Общий объем дисциплины и объем лекций
Дисциплина "Расчет и конструирование типового оборудования" изучается студентами дневной и заочной формы обучения специальности 7.090220 "Оборудование химических предприятий и производств строительных материалов" в 7 и 8 семестрах.
Общий объем дисциплины и объем лекций в соответствии с рабочим учебным планом приведены в таблице 1.
Таблица 1
| Форма обучения |
Курс |
Семестр |
Общий объем дисциплины, час. |
Объем лекций, час. |
| Дневная |
4 |
7 |
162 |
42 |
| 8 |
162 |
28 |
||
| Всего |
324 |
70 |
||
| Заочная |
4 |
7 |
162 |
8 |
| 8 |
162 |
6 |
||
| Всего |
324 |
14 |
Конспект лекций состоит из двух частей: часть 1 – " Расчет и конструирование тонкостенных аппаратов" и часть 2 – "Расчет и конструирование сосудов высокого давления".
II. Конспект лекций
Лекция 1. Тема " Введение "
Рассматриваемые вопросы: Задачи курса, его предмет и содержание. Понятие машины и аппарата. Классификация химического оборудования. Тонкостенные аппараты и аппараты высокого давления. Специфичность работы химического оборудования. Порядок проектирования оборудования. Основные этапы проектирования. Требования к проектируемому оборудованию.
1.1. Задачи курса, его предмет и содержание
Курс РК ТУ (Расчет и конструирование типового оборудования) является одной из профилирующих дисциплин по специальности 7.090220 "Оборудование химических предприятий и производств строительных материалов".
Данная дисциплина относится к циклу профессионально ориентированных дисциплин при подготовке инженеровмехаников химических и смежных производств.
Целью изучения данной дисциплины является ознакомление с основами расчета и конструирования машин и аппаратов химических производств.
Курс РК ТУ включает в себя теоретические основы расчетов химического оборудования, изучение типовых конструкций элементов машин и аппаратов, а также изучение нормативнотехнической документации, регламентирующей конструкции, требования к изготовлению и методы расчета на прочность, жесткость и устойчивость.
Методы расчета и конструирования, изученные в курсе РК ТУ, используются при выполнении курсовой работы по данной дисциплине, курсового проекта по оборудованию химических производств, дипломного проекта и в дальнейшей инженерной практике.
В самом названии дисциплины "Расчет и конструирование
…" отражена связь этих процессов при проектировании нового оборудования. Расчет и конструирование всегда идут параллельно и влияют друг на друга. При проектировании нового оборудования сначала выбирается принципиальная конструкция, определяются основные параметры машины или аппарата и его основные размеры. Однако, в процессе выбора конструкции необходимо проводить предварительные расчеты, позволяющие подобрать типовые конструктивные элементы: опоры, фланцы, контрольно-измерительную и запорную арматуру и т.д. После проверочного расчета на прочность могут измениться некоторые размеры, а иногда и конструкция устройств. В процессе проектирования для выбора оптимального варианта конструкции нередко приходится просчитывать несколько вариантов конструктивных решений. 1.2. Классификация химического оборудования и специфичность его работы
Классификацией называется логическая операция, состоящая в разделении всего изучаемого материала на группы по обнаруженным сходствам и различиям. С помощью классификации изучаемые предметы могут быть организованы в систему, позволяющую установить связи между этими предметами и закономерности, определяемые этими связями.
В основу классификации могут быть положены разные признаки, однако они должны быть существенными, определяющими основные свойства классифицируемых предметов.
В основу классификации химического оборудования положены два признака:
– характер технологического процесса;
– общность конструктивных форм, технологии изготовления, применения материалов.
Для определения характера технологического процесса может быть использовано определение машины и аппарата.
Машиной называют механизм или комплекс механизмов, совершающие определенные целесообразные движения с целью преобразования энергии или совершения работы.
Аппарат можно определить как ограниченное пространство, в котором происходят процессы, сопровождаемые изменением химических свойств, температуры и агрегатного состояния перерабатываемого материала.
В соответствии с этими определениями химическое оборудование разделяют на машины химических производств и химическую аппаратуру.
К машинам химических производств относится технологическое оборудование, в котором определяющим является механическое воздействие рабочих органов машины на объект обработки. К машинам химических производств относят:
– машины для измельчения (дробилки и измельчители);
– машины для разделения сыпучих материалов на фракции (сита, классификаторы);
– машины для получения однородных смесей (смесители, мешалки);
– машины для транспортирования или подачи материала (транспортеры, питатели, дозаторы);
– машины для выделения твердой фазы из жидкостей или газов (фильтры, центрифуги, сепараторы); – машины с вращающимися барабанами.
К химическим аппаратам относят:
– теплообменные аппараты;
– колонные аппараты;
– реакторы;
– котлы;
– выпарные аппараты; – емкостные аппараты.
В пределах каждой из названных групп оборудования существует более подробное деление.
Используя второй признак классификации (общность конструктивных форм, технологии изготовления, применения материалов), химическую аппаратуру разделяют на тонкостенные аппараты и аппараты высокого давления
(толстостенные).
Любой аппарат можно рассматривать как емкость, в которую встроены дополнительные устройства. Корпуса таких аппаратов состоят из типовых элементов: обечаек, днищ, штуцеров, люков, фланцевых соединений, опорных узлов. Конструкции большинства из этих элементов стандартизованы и унифицированы по типоразмерам. Задачей этого курса и является изучение конструкций типовых элементов аппаратов и методов их расчета.
Специфичность работы химического оборудования заключается в наличии следующих факторов:
– широкого диапазона применяемых рабочих давлений и температур;
– коррозионной агрессивности, взрывоопасности, пожароопасности и вредности многих рабочих сред;
– непрерывного характера большинства производственных процессов;
– разнообразного агрегатного состояния рабочих сред.
![]()
Наличие этих факторов требует соблюдения определенных правил при конструировании, расчете, изготовлении и испытании химического оборудования. Основные требования к проектированию, расчету и эксплуатации аппаратов, работающих под давлением, излагаются в Правилах Госнадзорохрантруда (ДНАОП 0.00-1.07-94 « Правила будови та безпечної експлуатації посудин, що працюють під тиском» 8 ), отраслевом стандарте ГСТУ 3–17–191–2000 « Посудини та апарати стальні зварні. Загальні технічні умови» 7 и ряде других стандартов, которые также будут изучаться далее.
1.3. Порядок проектирования и требования к проектируемому оборудованию
Разработка конструкторской документации при проектировании нового оборудования включает следующие стадии:
– техническое задание;
– техническое предложение;
– эскизный проект;
– технический проект;
– рабочий проект.
На стадии технического задания исполнитель по исходным данным, полученным от заказчика, разрабатывает техническое задание и согласует его с заказчиком.
На стадии технического предложения изучается информационный материал и проводятся эксперименты с целью выявления вариантов возможных решений. Производится конструктивная проработка вариантов и проверка их на патентную чистоту и конкурентоспособность. Производят сравнительную оценку рассматриваемых вариантов и выбор оптимального варианта с обоснованием этого выбора.
Техническое предложение после согласования и утверждения является основанием для разработки эскизного (технического) проекта.
На стадии эскизного проекта принимается и разрабатывается конкретное конструкторское решение, определяющее устройство изделия. Производится конструкторская проработка вариантов составных частей изделия. Производится оценка изделия по показателям качества (надежности, технологичности, стандартизации и унификации, экономическим, эстетическим, эргономическим показателям). С целью проверки принципов работы изделия и его составных частей возможно изготовление и испытания макетов.
Эскизный проект после согласования и утверждения служит основанием для разработки технического проекта или рабочей конструкторской документации.
Технический проект должен содержать окончательные технические решения, дающие полное представление об устройстве разрабатываемого изделия, и исходные данные для разработки рабочей документации.
На стадии технического проекта разрабатываются чертежи общего вида изделия, при необходимости некоторых оригинальных или наиболее важных сборочных единиц и деталей, выполняются все необходимые расчеты, подтверждающие работоспособность изделия. При этом уточняют номенклатуру покупных изделий, выполняют согласование применения покупных изделий, а также согласование габаритных, установочных и присоединительных размеров с заказчиком или основным потребителем. Технический проект после согласования и утверждения служит основанием для разработки рабочей конструкторской документации.
На стадии рабочего проекта выполняется полный комплект рабочих чертежей всех сборочных единиц и деталей изделия для изготовления и сборки опытного образца, а после корректировки документов – для серийного производства изделия.
Итак, при проектировании любого оборудования на первой стадии проводится анализ существующих конструкций и выбор одной из них как прототипа с последующей модернизацией либо разрабатывается принципиально новая конструкция. После этого выполняются необходимые технологические, прочностные, кинематические и др. расчеты. Особое внимание уделяется безопасности проектируемого оборудования. Специфичность работы оборудования в химической промышленности (работа при высоких температурах, давлении, в химически агрессивных, взрывоопасных, пожароопасных, токсичных средах) накладывает особую ответственность при выборе конструкторских решений, проведении расчетов и подбору стандартных изделий. Основными требованиями при конструировании являются:
– эффективность и надежность оборудования;
– рациональный выбор конструкционных материалов;
– прочность, жесткость и устойчивость конструкции;
– применение стандартных узлов и деталей;
– технологичность конструкции;
– удобство ремонта, монтажа и демонтажа;
– удобство транспортировки;
– соблюдение норм техники безопасности; – достаточный срок службы; – дизайн.
При этом под эффективностью оборудования понимается его производительность и экономичность в изготовлении и эксплуатации, повышение полезной отдачи оборудования.
Надежность – свойство изделия выполнять заданные функции, сохраняя свои эксплуатационные показатели в заданных пределах в течение требуемого промежутка времени.
Под технологичностью конструкции понимаются свойства конструкции, определяющие ее приспособленность к достижению оптимальных затрат при производстве, эксплуатации и ремонте. Свойства, определяющие технологичность конструкции, должны быть заложены при проектировании.
Удельный вес каждого из перечисленных требований зависит от конструкции и назначения оборудования. Однако для всех без исключения конструкций первостепенную роль играет экономический фактор. Именно экономические соображения позволяют найти разумный предел использования каждого показателя.
Контрольные вопросы к лекции 1 1. Какие вопросы изучаются в курсе РК МАХП?
2. Как связаны между собой расчет и конструирование?
3. Что такое классификация и для чего она необходима?
4. По каким признакам классифицируют химическое оборудование?
5. Как классифицируют химическое оборудование?
6. В чем заключается специфичность работы химического оборудования?
7. Стадии проектирования нового оборудования. Содержание стадий.
8. Основные требования при конструировании оборудования.
Лекция 2. Тема "Материалы, применяемые для изготовления химического оборудования"
Рассматриваемые вопросы: Требования к материалам. Факторы, влияющие на выбор материалов. Факторы, зависящие от внешних условий. Факторы, связанные со свойствами материала. Влияние различных факторов на свойства материалов. Краткие сведения об основных физикомеханических характеристиках материалов. Влияние свойств рабочей среды на выбор материала. Скорость коррозии. Коррозионная стойкость материалов. Виды коррозии. Влияние температуры и давления на выбор материала. Жаростойкость и жаропрочность. Прочность при статических и динамических нагрузках. Явления ползучести и релаксации. Тепловая хрупкость и хладноломкость. Классификация сталей. Цветные металлы и сплавы. Прокладочные материалы.
2.1. Требования к материалам
Эффективность и надежность разработанного оборудования определяется не только правильным выбором конструкции и ее прочностью, но и рациональным выбором материалов. Правильный выбор материала влияет на прочность и технологичность конструкции, определяет срок службы изделия.
Современные химические производства характеризуются широким диапазоном рабочих давлений (от вакуума до высоких избыточных давлений), большим интервалом рабочих температур при коррозионноактивных, токсичных, пожаро- и взрывоопасных рабочих средах. Многие узлы и детали машин и аппаратов испытывают одновременно значительные механические нагрузки и коррозионное воздействие среды при
высоких или низких температурах. Поэтому к
конструкционным материалам для химического оборудования предъявляется комплекс требований, которые обусловлены конструкцией, технологией изготовления и безопасной
эксплуатацией оборудования:
1) достаточная коррозионная стойкость в агрессивной среде при заданной концентрации, температуре и давлении, определяемая скоростью проникновения коррозии, а также жаростойкость и стойкость против возможных видов коррозионного разрушения (коррозионное растрескивание, межкристаллитная, водородная, карбонильная коррозии, азотирование стали, графитизация);
б) достаточная механическая прочность при заданных давлении и температуре с учетом специфических требований, предъявляемых при эксплуатации оборудования
(жаропрочность, теплоустойчивость, длительная прочность, учет тепловой хрупкости и хладноломкости, устойчивость при знакопеременных или повторных нагрузках и др.);
в) способность материала свариваться с обеспечением высоких механических свойств и коррозионной стойкости сварных соединений, возможность обработки материала резанием, давлением, а также термической обработки (технологические свойства материала ).
Выбор материалов определяется рядом факторов, которые можно разделить на две группы:
– факторы, связанные со свойствами данного материала (физико-механические свойства, технологические свойства);
– факторы, зависящие от внешних рабочих условий (свойства рабочей среды, температура, давление).
К физико-механическим свойствам относятся:
– предел прочности или временное сопротивление R m (МПа);
– предел текучести R e (МПа);
– условный предел текучести R p 0,2 или R p 1,0 (МПа); – модуль упругости при растяжении E (МПа); – ударная вязкость KCU (МДж/м2 );
–
коэффициент теплопроводности (Вт/м С); – коэффициент линейного расширения ( С-1
). К технологическим свойствам относятся:
– свариваемость;
– обрабатываемость давлением и резанием.
Остановимся подробнее на перечисленных физикомеханических характеристиках материалов.
Предел прочности – механическое напряжение, при превышении которого происходит разрушение тела. Предел прочности определяют как отношение максимальной нагрузки, предшествующей разрушению, к исходному сечению образца.
Необходимо также сделать замечание, касающееся термина "временное сопротивление". Прочность является функцией времени нахождения под нагрузкой. При кратковременном воздействии один и тот же образец может выдержать гораздо большие нагрузки, чем при длительном. При низких температурах (<0,3Тпл ) влияние времени менее ощутимо, чем при высоких. Поэтому для низких температур предел прочности можно считать с достаточной точностью характеристикой материала без указания времени испытания. При высоких температурах обязательно указывается время испытания, и термин "временное сопротивление" является более подходящим по смыслу, чем термин "предел прочности".
Предел текучести – механическое напряжение, при превышении которого удлинение образца начинает возрастать без увеличения действующей на него силы. Другими словами, предел текучести – это наименьшее напряжение, при котором происходит необратимая пластическая деформация образца без заметного увеличения растягивающей нагрузки.
Ярко выраженную площадку текучести имеют, как правило, пластичные металлы и сплавы (рис.2.1). Для материалов, на диаграмме растяжения которых площадка текучести отсутствует
(штриховая линия), определяют условный предел текучести R p 0,2 или R p 1,0 , который соответствует напряжению, вызывающему остаточное удлинение соответственно 0,2 или 1,0%.
Рис. 2.1. Типичная кривая растяжения с площадкой текучести для конструкционной стали
Упругие свойства металлов характеризуются значениями модуля упругости E
и коэффициентом Пуассона
.
Модуль упругости – отношение нормального напряжения в поперечном сечении цилиндрического образца к относительному удлинению при его растяжении. Модуль упругости – это коэффициент пропорциональности между напряжением σ и относительной деформацией δ вдоль оси нагружения при одноосном нагружении. В литературе можно встретить другое название этой характеристики: модуль растяжения, модуль Юнга - в честь английского ученого Томаса Юнга (1773-1829 гг.), изучавшего упругое поведение стержней.
Линейное соотношение между напряжением и деформацией
Е
называют законом Гука - в память о работах другого английского ученого - Роберта Гука (1635-1703 гг.), впервые установившего линейную зависимость между нагрузкой и удлинением. Предельное напряжение в области упругой деформации (участок 0A на рис.2.1), где выполняется линейная зависимость между приложенным напряжением и вызываемой им деформацией, т.е. закон Гука, называется пределом пропорциональности.
Для материалов, работающих в условиях ударных нагрузок, большое значение имеет такая характеристика прочности, как ударная вязкость (сопротивление удару), которая представляет собою отношение величины работы, затрачиваемой на разрушение образца при испытании ударной (динамической) изгибающей нагрузкой, к площади поперечного сечения образца в ослабленном специальным надрезом месте разрушения. Для испытаний изготавливают стандартные образцы квадратного сечения с надрезом (концентратором напряжения) посередине.
Ударная вязкость, в зависимости от вида концентратора напряжения, обозначается символами KCU, KCV или KCT. Первые две буквы КС обозначают ударную вязкость, а буквы U, V и T - вид концентратора напряжения: U - образец с Uобразным надрезом; V - образец с V-образным надрезом; Т - образец с нанесенной трещиной усталости. Испытания образцов с концентраторами напряжений V и T проводят в случае использования металлов и сплавов для ответственных конструкций.
При проектировании теплообменной аппаратуры большое значение имеют коэффициенты теплопроводности и теплового расширения материала. Коэффициент теплопроводности – коэффициент пропорциональности между плотностью теплового потока и градиентом температуры. Характеризует способность вещества проводить тепло; численно равен количеству энергии, проходящей в единицу времени через единичное сечение образца, на концах которого создана разность температур в один градус.
Коэффициент теплового расширения – величина, характеризующая относительное увеличение размеров тела из определенного материала при увеличении его температуры на один градус. Коэффициенты линейного расширения во всех трех направлениях для большинства тел равны.
2.2. Влияние различных факторов на свойства материалов. Влияние свойств рабочей среды на выбор материала
В большинстве случаев основным фактором для выбора материалов химических аппаратов являются свойства рабочей среды. Коррозионная стойкость материала при заданной концентрации среды, температуре и давлении определяет долговечность химического оборудования.
Коррозионную стойкость оценивают в основном количественными показателями в зависимости от вида коррозии. Для сплошной коррозии основные количественные показатели коррозии и коррозионной стойкости: глубина проникновения коррозии, линейная скорость коррозии и время проникновения коррозии на допустимую глубину.
При невозможности или нецелесообразности определения количественных показателей коррозионной стойкости допускается использовать качественные показатели, например, изменение внешнего вида поверхности. На основе качественного показателя дают оценку "стоек-не стоек" или "годен-не годен".
В общем случае для изготовления химической аппаратуры должны использоваться конструкционные материалы, скорость коррозии которых не превышает 0,1 мм/год.
Эрозионное воздействие среды (разрушение поверхностного слоя металла под действием ударяющихся в него твердых частиц, капель или потока жидкости или газа) учитывают при значительных скоростях движения среды: жидкостей – более 20 м/с, газов – более 100 м/с или при наличии в среде абразивных частиц.
При конструировании химической аппаратуры необходимо учитывать также и другие виды коррозионного разрушения материалов: коррозионное растрескивание, межкристаллитную, водородную и карбонильную коррозию, азотирование и графитизацию стали.
Коррозионное растрескивание металла наблюдается в ряде случаев в аппаратах, выполненных из легированных сталей и работающих при повышенных давлении и температуре, при совместном действии коррозионной среды и растягивающих напряжений. Разрушение металла при коррозионном растрескивании происходит с образованием трещин внутри кристаллов и по их границам. При наличии в металле напряжений сжатия коррозионное растрескивание не происходит.
Ускоренное растрескивание аппаратов из хромоникелевых сталей с содержанием хрома около 18 % и никеля около 8 % , находящихся под постоянно действующей нагрузкой, имеет место в растворах NaCl, MgCl2 , ZnCl2 , LiCl, H2 S, морской воде.
Латуни обнаруживают склонность к коррозионному растрескиванию в среде аммиака. Хромомолибденовые стали подвержены коррозионному растрескиванию при повышенном содержании кислорода и щелочей в питательной воде. Питательная вода обычного состава (содержание кислорода не более 0,15 мг/л; хлоридов – не более 0,03 мг/л; концентрация щелочей – не более 5 %) не вызывает коррозионного растрескивания. Основные меры защиты металла от коррозионного растрескивания: сведение к минимуму уровня напряжений, снижение местной концентрации напряжений, подбор соответствующих материалов, систематический анализ и контроль содержания кислорода, хлоридов, щелочей в составе рабочей среды.
Межкристаллитная коррозия
свойственна аустенитным хромоникелевым сталям. При работе их при температурах выше 400 С по границам зерен образуются карбиды хрома. В результате границы зерен обедняются хромом, что приводит к снижению коррозионной стойкости и ударной вязкости. Склонность стали к межкристаллитной коррозии можно предотвратить ограничением в стали содержания углерода до величины менее 0,04 % и добавлением легирующих элементов, предотвращающих образование карбида хрома (титана, ниобия).
Явление водородной коррозии наблюдается в аппаратах высокого давления при контакте со средой, содержащей газообразный водород. Водородная коррозия стали происходит в результате гидрогенизации ее карбидной фазы водородом, поглощенным металлом при контакте с водородсодержащей технологической средой:
Fe
3
C H
2
CH
4
Fe
В результате водородной коррозии изменяется структура стали, происходит межкристаллитное растрескивание; прочностные и пластические характеристики стали необратимо ухудшаются, приводя к преждевременным поломкам и разрушениям. Интенсивность химического взаимодействия водорода с карбидной составляющей стали зависит от температуры и давления водорода, а также от степени легирования стали карбидообразующими элементами. Основной способ защиты стали от водородной коррозии – введение сильных карбидообразующих элементов, повышающих устойчивость карбидной составляющей (хрома, молибдена, титана, ванадия). Однако следует учитывать, что применение сталей, легированных дорогостоящими компонентами, может существенно повысить стоимость оборудования и не всегда может быть приемлемо по техническим причинам, например, из–за отсутствия поковок необходимых размеров из легированной стали. Для защиты стали от водородной коррозии можно футеровать или плакировать сталь материалом, обладающим низкой водородопроницаемостью.
Карбонильная коррозия
наблюдается в средах, содержащих значительное количество оксида углерода. Оксид углерода, взаимодействуя с металлической поверхностью деталей, образует карбонильное соединение с железом – пентакарбонил железа FeCO
5
. Продукты коррозии постепенно переходят с поверхности металла в газовую фазу. Карбонильная коррозия представляет собой разновидность поверхностной коррозии материала в газовой технологической среде и сопровождается уменьшением толщины стенки. Основными факторами, определяющими стойкость стали в среде окиси углерода, являются парциальное давление окиси углерода, температура и химический состав стали. Наиболее стойки к карбонильной коррозии стали, содержащие не менее 18% хрома. Высокую стойкость имеют цветные металлы и сплавы. Алюминий практически не подвергается карбонильной коррозии.
Азотирование
стали наблюдается в установках синтеза аммиака, где атомарный азот диффундирует в поверхностный слой металла и взаимодействует с железом и легирующими элементами, образуя нитриды, придающие хрупкость азотированному слою. Азотирование стали сопровождается значительным увеличением объема металла насыщенного азотом слоя, что приводит к появлению значительных напряжений растяжения в материале под азотированным слоем. Исследования показали, что заметное азотирование углеродистых и низколегированных сталей наблюдается при температурах выше 300 С, среднелегированных – при температурах выше 380 С, высоколегированных аустенитных – при температурах выше 400 С.
Графитизация
– явление, связанное с разрушением карбида железа и образованием цепочек свободного графита в основном в зоне сварных швов. Это явление характерно для углеродомолибденовых сталей в области температур 475 – 600С и приводит к снижению ударной вязкости. Для предотвращения графитизации в сталь вводят добавки хрома (не менее 0,6 – 0,8 %).
2.3. Влияние температуры и давления на выбор материала
При выборе материалов для аппаратов, работающих под давлением при низких и высоких температурах, необходимо учитывать, что механические свойства материалов существенно изменяются в зависимости от температуры. Как правило, прочностные свойства металлов и сплавов повышаются при низких температурах и понижаются при высоких. Понижение прочностных свойств при высоких температурах обусловлено происходящими в металле структурными и фазовыми превращениями. В большинстве случаев для химической аппаратуры, предназначенной для работы при высоких температурах, применяют специальные марки жаропрочных сталей, характеризуемых достаточной механической прочностью и стабильностью структуры при высоких температурах. Наряду с жаропрочностью эти металлы должны обладать также и жаростойкостью , т. е. способностью противостоять коррозионному воздействию среды в условиях длительной работы при высоких температурах.
При статическом приложении нагрузки важными характеристиками для оценки прочности материала являются предел прочности или временное сопротивление Rm и предел текучести Re (или условный предел текучести R p 0,2 ).
При динамическом приложении нагрузки кроме указанных выше характеристик необходимо учитывать также и величину ударной вязкости
. Для многих углеродистых и легированных сталей ударная вязкость при низких температурах (обычно ниже минус 40 °С) резко понижается, что исключает применение этих материалов в таких условиях. Ударная вязкость для большинства цветных металлов и сплавов (меди и ее сплавов, алюминия и его сплавов, никеля и его сплавов), а также хромоникелевых сталей аустенитного класса при низких температурах, как правило, уменьшается незначительно, и пластические свойства этих материалов сохраняются на достаточно высоком уровне, что и позволяет применять их при рабочих температурах до минус 254 С.
Кроме указанных механических характеристик, при выборе материала для сосудов и аппаратов, работающих под давлением при высоких температурах, учитывают такие свойства, как ползучесть, длительная прочность материала, релаксация, стабильность структуры, тепловая хрупкость, а для сосудов и аппаратов, работающих при пониженных температурах – склонность к хладноломкости.
Явления ползучести и релаксации наблюдаются в сталях при длительной работе при высоких температурах в условиях напряженного состояния. Ползучестью называют способность стали медленно и непрерывно деформироваться под действием постоянной нагрузки при высоких температурах. Сопротивление стали ползучести – основной критерий, по которому судят о теплоустойчивости стали. Теплоустойчивость – это способность стали противостоять ползучести.
Релаксацией называют процесс самопроизвольного уменьшения механических напряжений в деформированных телах, не сопровождающийся изменением деформации (англ. relaxe –расслабляться, смягчаться). При релаксации деформация детали не увеличивается, а напряжение в ней снижается.
Важным фактором для оценки свойств сталей при выборе их для работы в области высоких температур является стабильность структуры . Нарушение стабильности структуры заключается в склонности некоторых сталей к графитизации, межкристаллитной коррозии и тепловой хрупкости.
Тепловой хрупкостью
стали называют снижение ударной вязкости при длительной работе в области температур 450 – 600С. При этом остальные показатели механических свойств практически не изменяются. Тепловая хрупкость характерна для низколегированных хромоникелевых сталей. Для предотвращения тепловой хрупкости хромоникелевые стали стабилизируют добавками молибдена, вольфрама, ванадия.
![]()
Снижение ударной вязкости наблюдается и при работе сталей в области отрицательных температур. Резкое снижение ударной вязкости при отрицательных температурах получило название хладноломкости
. При этом предел прочности, предел текучести и модуль упругости сталей возрастают. Однако увеличение значения предела прочности и предела текучести при понижении температуры не учитывается при определении допускаемых напряжений. За расчетную температуру при температурах ниже 20С принимают температуру 20С. Однако, при выборе материала для работы в области отрицательных температур необходимо учитывать критическую температуру хладноломкости, при которой величина ударной вязкости составляет 60 % начального значения при нормальной температуре.
2.4. Классификация сталей
Сплавы системы железо – цементит классифицируют следующим образом:
– сплавы, содержащие не более 0,02% углерода, называют техническим железом;
– сплавы, содержащие от 0,02 до 2,14% углерода, относят к сталям;
– сплавы, содержащие от 2,14 до 6,67% углерода, называют чугуном.
Существует несколько методов классификации сталей: по содержанию легирующих элементов, по числу компонентов (элементов, определяющих свойства стали), по микроструктуре и по назначению.
В зависимости от содержания легирующих элементов стали можно разделить на три группы: низколегированные – содержащие менее 2,5% легирующих добавок; среднелегированные – от 2,5 до 10%; высоколегированные – более 10%.
Классификация сталей по микроструктуре несколько условна. Характерные для какого-либо класса структуры получаются в результате различных режимов термической обработки. Подразделение сталей на классы приведено в таблице 2.1. Более подробно характеристики сталей различных классов рассматриваются в методических указаниях к практическим занятиям [].
Таблица 2.1 Подразделение сталей на классы
| Класс стали |
Марка стали |
| Углеродистый |
Ст3сп, Ст3пс, Ст3кп2, 10, 20, 15К, 16К, 18К, 20К, 20ЮЧ |
| Низколегированный марганцовистый, кремнемарганцовистый |
16ГС, 17ГС, 17ГС1, 09Г2С, 10Г2СФ, 10Г2С1, 10Г2, 10Г2С1Д,09Г2, 09Г2СЮЧ, 09Г2СФБ, 16ГМЮЧ |
| Низколегированный хромомолибденовый, хромомолибденованадиевый |
12МХ, 12ХМ, 12Х1МФ, 15ХМ, 10Х2ГНМ, 1Х2М1,20Х2МА |
| Мартенситный |
15Х5,15Х5М,15Х5ВФ, 12Х8ВФ, 20Х13, Х9М, 12Х13 |
| Ферритный |
08Х13, 08Х17Т, 15Х25Т |
| Аустенитно – ферритный |
08Х22Н6Т, 12Х21Н5Т, 08Х18Г8Н2Т, 15Х18Н12С4ТЮ |
| Аустенитный |
10Х14Г14Н4Т, 08Х18Н10Т, 08Х18Н12Б, 10Х17Н13М2Т, 02Х18Н11, 08Х17Н15М3Т, 03Х17Н14М3, 12Х18Н12Т, 02Х8Н22С6, 03Х19АГ3Н10Т, 07Х13АГ20, 12Х18Н10Т, 12Х18Н9Т, 03Х21Н21М4ГБ |
| Сплавы на железоникелевой и никелевой основе |
16Х28МДТ, 03Х28МДТ, ХН32Т |
Стали ферритного класса содержат мало углерода, свыше 13% хрома или более 2,5% кремния.
Стали перлитного класса содержат мало легирующих примесей.
Стали мартенситного класса закаливаются на мартенсит при охлаждении на воздухе. В основном, это среднелегированные стали.
Стали аустенитного класса после закалки имеют аустенитную структуру. Это высоколегированные, коррозионностойкие, жаропрочные и жаростойкие стали с высоким содержанием хрома, марганца или титана.
По назначению стали делят на стали обыкновенного качества, качественные конструкционные и стали с особыми свойствами (теплоустойчивые, жаростойкие, жаропрочные, коррозионностойкие и т.д).
Стали имеют следующее обозначение:
1) углеродистые обыкновенного качества – стали этой группы обозначаются буквами Ст и цифрами 0, 1, 2, 3, 4, 5, 6, буква Г указывает на повышенное содержание марганца в стали. В обозначении стали последовательно указываются марка стали (Ст0 – Ст6), степень раскисления (кп, пс, сп) и категория требований (2-5), например Ст3сп3. Чем больше число в обозначении марки, тем больше содержание углерода и, следовательно, выше прочность и ниже пластичность стали;
2) качественные, углеродистые конструкционные – обозначают двумя цифрами, показывающими среднее содержание углерода в сотых долях процента, например 20 (для обозначения котельных марок в конце ставится буква К, например 20К);
3) легированные – обозначают комплексом цифр и букв, причем первые две цифры указывают содержание углерода в сотых долях процента, затем последовательно идут буквы, означающие наличие в стали того или иного легирующего элемента, за каждой из букв одной или двумя цифрами указывается примерное содержание данного элемента в процентах (отсутствие цифр означает, что содержание данного элемента не превышает 1,5 %, за исключением молибдена и ванадия, содержание которых в большинстве сталей составляет 0,1 - 0,3%).
Буквенные обозначения в марках стали: Г – марганец, С – кремний, Х – хром, Н – никель, М – молибден, В – вольфрам, Ф – ванадий, Т – титан, Д – медь, Ю – алюминий. Б – ниобий, Р – бор, Ч – редкоземельные металлы (скандий, иттрий, лантан и лантаноиды), Е – селен, К – кобальт, П – фосфор, Ц – цирконий, А – азот (в конце обозначения не ставится). Наличие в конце обозначения буквы А означает высококачественную сталь.
Особо высококачественные стали имеют в конце букву Ш.
Углеродистые стали в зависимости от степени раскисления и характера затвердевания металла разделяют на спокойные, полуспокойные и кипящие стали. При маркировке кипящую, полуспокойную и спокойную стали обозначают символами "кп", "пс" и "сп".
Раскисление – процесс удаления из жидкого металла кислорода, находящегося в виде оксида FeO (традиционное название - закись железа) и способствующего хрупкому разрушению при горячей деформации.
Кипящие стали раскисляют только марганцем (неполное раскисление). Поэтому в этих сталях содержится повышенное количество закиси железа, которая при затвердевании металла частично взаимодействует с углеродом, образуя пузырьки CO. Всплывая в верхнюю часть слитка и удаляясь из жидкого металла с увеличением объема, пузыри CO создают впечатление кипения стали, что и обусловило ее название. Спокойные стали раскисляют марганцем, кремнием и алюминием (полное раскисление). Эти стали содержат минимальное количество закиси железа и затвердевают "спокойно" без газовыделения. Полуспокойные стали представляют стали промежуточного типа.
В верхней части слитка спокойной стали образуется усадочная раковина и околоусадочная рыхлость, удаляемые при прокатке обрезкой или обрубкой. В слитке кипящей стали за счет большого количества газовых пузырей, компенсирующих уменьшение объема металла при его застывании, усадочная раковина отсутствует.
В зависимости от нормируемых механических свойств сталь изготовляют по категориям 2-22, указанным в таблице 2.2. Чем выше категория стали, тем больше число нормируемых характеристик либо выше показатели, которым они должны соответствовать, и, следовательно, выше качество стали.
2.5. Цветные металлы и сплавы
Цветные металлы и сплавы нашли широкое применение при изготовлении химического оборудования благодаря таким свойствам, как высокая коррозионная стойкость в различных средах, хорошая теплопроводность, высокие литейные свойства, пластичность, незначительное снижение ударной вязкости при отрицательных температурах.
Медь обладает наивысшей после серебра электропроводностью и теплопроводностью, устойчива к атмосферной коррозии.
В химическом машиностроении медь используют как хороший теплопроводный материал, а также как материал для прокладок. Используют и сплавы меди с другими металлами: латуни – сплавы меди с цинком; бронзы – сплавы меди с оловом, кремнием, марганцем, алюминием, бериллием. Латуни представляют собой двойные или многокомпонентные медные сплавы, где цинк является основным легирующим элементом. По сравнению с медью, они обладают более высокой прочностью, коррозионной стойкостью, упругостью, технологичностью. В многокомпонентных (специальных) латунях, кроме цинка, содержатся другие легирующие элементы, такие как алюминий, железо, марганец, олово, свинец, кремний, мышьяк. Бронзами называют сплавы меди, в которых в которых цинк не является основным легирующим элементом. Бронзы делят на оловянные, в которых основным легирующим элементом является олово, и безоловянные, не содержащие олово в качестве легирующего элемента.
Таблица 2.2 – Нормируемые характеристики в зависимости от категории стали
| Нормируемая характеристика |
Категория |
||||||||||||||||||||
| 2 |
3 |
4 |
5 |
6 |
7 |
8 |
9 |
1 0 |
1 1 |
1 2 |
1 3 |
1 4 |
1 5 |
1 6 |
1 7 |
1 8 |
1 9 |
2 0 |
2 1 |
2 2 |
|
| Химический состав |
+ |
+ |
+ |
+ |
+ |
+ |
+ |
+ |
+ |
+ |
+ |
+ |
+ |
+ |
+ |
+ |
+ |
+ |
+ |
+ |
+ |
| Механические свойства при растяжении и изгибе в холодном состоянии |
+ |
+ |
+ |
+ |
+ |
+ |
+ |
+ |
+ |
+ |
+ |
+ |
+ |
+ |
+ |
+ |
+ |
+ |
+ |
+ |
+ |
| Ударная вязкость KCU при температуре +20°С |
+ |
+ |
|||||||||||||||||||
| Ударная вязкость KCU после механического старения при температуре +20°С |
+ |
+ |
+ |
+ |
+ |
+ |
+ |
+ |
|||||||||||||
| Ударная вязкость KCU при: |
|||||||||||||||||||||
| –20°С |
+ |
+ |
|||||||||||||||||||
| –40°С |
+ |
+ |
|||||||||||||||||||
| –50°С |
+ |
+ |
|||||||||||||||||||
| –60°С |
+ |
+ |
|||||||||||||||||||
| –70°С |
+ |
+ |
|||||||||||||||||||
| Предел текучести про повышенной температуре |
+ |
+ |
|||||||||||||||||||
| Предел текучести про повышенной температуре, ударная вязкость KCU при одной из минусовых температур и после механического старения |
+ |
||||||||||||||||||||
| Ударная вязкость KCU при: |
|||||||||||||||||||||
| +20°С |
+ |
||||||||||||||||||||
| 0°С |
+ |
||||||||||||||||||||
| –20°С |
+ |
||||||||||||||||||||
| –20°С |
+ |
||||||||||||||||||||
Никель имеет высокую коррозионную стойкость во многих средах и широко применяется в аппаратах органического синтеза, в фармацевтической и пищевой промышленности, где требуется высокая чистота продукта. Из-за дефицитности никеля его применяют для облицовки внутренней поверхности аппаратов. Кроме чистого никеля находят применение его сплавы с медью (монель) и молибденом (хастеллой). Эти сплавы более устойчивы в агрессивных средах, особенно в растворах кислот, чем чистый никель.
Алюминий отличается высокой пластичностью и теплопроводностью, имеет высокую коррозионную стойкость во многих средах. Его применяют для изготовления деталей сложной формы, прокладок, облицовки внутренней поверхности аппаратов. Сплавы алюминия с кремнием (9 – 13%) называются силуминами. Такие сплавы обладают очень высокой стойкостью в азотной кислоте.
Титан и его сплавы отличаются высокой прочностью и коррозионной стойкостью, имеют малый удельный вес (почти вдвое легче стали), хорошо обрабатываются давлением, свариваются. Титан и его сплавы имеют низкий коэффициент линейного расширения, высокую жаропрочность и не склонны к хладноломкости.
Цирконий обладает высокой коррозионной стойкостью в растворах щелочей, в кислотах различных концентраций. Имеет малый удельный вес и достаточно высокую прочность. Цирконий – серебристо-белый металл, твердый, тугоплавкий; плотностью 6,50 г/см³, температура плавления 1855°С. Химически очень стоек (на воздухе покрывается защитной пленкой окиси циркония ZrO2 ). Сплавы на основе циркония используют в ядерной энергетике. Цирконий входит также в состав сплавов для изготовления химической аппаратуры, хирургических инструментов и пр. Сверхтугоплавкие карбид (температура плавления 3800°С), борид и нитрид циркония - материалы для жаростойкой керамики.
Тантал
по коррозионной стойкости не уступает платине. Выдерживает высокие температуры (температура плавления 2850С).
2.6. Прокладочные материалы
Прокладочные материалы, служащие для уплотнения фланцевых соединений, должны обладать достаточной упругостью и прочностью для восприятия внутреннего избыточного или наружного давления и температурных деформаций, химической стойкостью в агрессивных средах, теплостойкостью.
Во фланцевых соединениях аппаратов и трубопроводов применяют уплотнительные прокладки из различных неметаллических материалов (паронита, фторопласта, асбеста, резины), металлов и комбинированные прокладки. Тип и материал прокладок выбирают в зависимости от конкретных условий работы: давления, температуры и степени агрессивности среды.
Асбест
является минералом, способным расщепляться на тонкие волокна. Из асбеста изготовляют картон асбестовый толщиной 2 – 10 мм для изготовления прокладок, шнуры и набивки асбестовые для уплотнения сальниковых соединений. Асбест используют для изготовления комбинированных асбометаллических прокладок. Асбест используют при температурах не более 300С.
Паронит
состоит из асбестового волокна, синтетических каучуков, наполнителей и вулканизаторов. Выпускается в виде листов толщиной от 0,4 до 6 мм. Стоек во многих средах при температурах от минус 182 до плюс 450С.
Фторопласт
относится к фторсодержащим полимерам. Наиболее широко применяется фторопласт-4. Детали из фторопласта-4 получают прессованием в холодном состоянии с последующим спеканием. Фторопласт-4 хладотекуч, т.е. способен деформироваться при нагружении, поэтому прокладки из фторопласта помещают в замкнутый объем (соединения типа "шип – паз"). По химической стойкости фторопласт-4 превосходит все известные пластмассы: не растворяется в растворителях, устойчив к щелочам и кислотам, не набухает в воде и не горит. Применяют до температур, не превышающих 250С.
Резиновые прокладки изготовляют из технической листовой резины. Кроме того, выпускают фасонные изделия: шнур круглого и квадратного сечения, манжеты, кольца. Резина техническая листовая выпускается пяти типов: кислото-щелочестойкая, теплостойкая, морозостойкая, масло-бензостойкая и пищевая. Техническая резина применяется в диапазоне температур от минус 30 до плюс 50 С, теплостойкая резина имеет верхний предел температур до 90 - 140 С, а морозостойкая – нижний предел до минус 45 С.
В последнее время для изготовления высоконадежных прокладок используют уплотнительный материал на основе терморасширенного графита (ТРГ). Уплотнительный материал нового поколения ГРАФЛЕКС на основе ТРГ имеет высокую термостойкость и негорючесть, минимальную газопроницаемость, высокую химическую стойкость, экологическую чистоту.
Прокладки ГРАФЛЕКС используют на условное давление до 100 МПа и расчетную температуру от минус 200 до плюс 1000 °С.
Контрольные вопросы к лекции 2
1. Общие требования к материалам.
2. Факторы, влияющие на выбор материалов.
3. Факторы, зависящие от внешних условий.
4. Факторы, связанные со свойствами материала.
5. Влияние свойств рабочей среды на выбор материала.
6. Скорость коррозии.
7. Коррозионная стойкость материалов.
8. Виды коррозии.
9. Изменение свойств сталей при повышенных температурах.
10. Изменение свойств сталей при пониженных температурах.
11. Классификация и обозначение сталей.
12. Основные цветные металлы и сплавы, применяющиеся для изготовления химического оборудования.
13. Выбор прокладочных материалов.
14. Основные прокладочные материалы.
Лекция 3. Тема " Основы теории тонкостенных оболочек.
Уравнение Лапласа"
Рассматриваемые вопросы: Элементарные сведения из геометрии поверхностей вращения. Тонкостенные оболочки. Срединная поверхность. Главные сечения. Главные радиусы кривизны. Осесимметричная оболочка. Безмоментная теория. Уравнение равновесия элемента (уравнение Лапласа).
3.1. Элементарные сведения из геометрии поверхностей вращения
Основными формами элементов сосудов и аппаратов являются оболочки вращения.
Тонкостенными следует считать оболочки, толщина которых не превышает 10 % от внутреннего диаметра, т.е.
S
0
,1
, (3.1)
D
где S – толщина оболочки;
D – внутренний диаметр оболочки.
Такие сосуды и аппараты эксплуатируются при внутреннем избыточном давлении менее 10 МПа.
Оболочкой вращения называют оболочку, срединная поверхность которой образована вращением какой-либо плоской кривой вокруг оси, лежащей в ее плоскости. При этом кривая расположена по одну сторону от оси. Так, сфера образована вращением полуокружности вокруг ее диаметра, конус – вращением отрезка прямой, расположенного под углом к оси вращения, цилиндр – вращением отрезка прямой, расположенного параллельно оси.
Срединной поверхностью оболочки называют поверхность, равноудаленную от внутренней и наружной поверхностей оболочки.
На рисунке 3.1 срединная поверхность оболочки вращения получена вращением отрезка плоской кривой АВ
вокруг оси S S
, лежащей в плоскости отрезка.
При вращении любая точка С описывает окружность радиусом r , называемую параллельным кругом .

Кривая пересечения срединной поверхности плоскостью, проходящей через ось, называется меридианом
(первым главным сечением). Радиус кривизны срединной поверхности в направлении меридиана называется первым главным радиусом кривизны
.
m
O C
1 .
Кривую пересечения оболочки плоскостью, перпендикулярной меридиану в какой-либо точке С
, называют вторым главным сечением. Радиус кривизны срединной поверхности в направлении, перпендикулярном меридиану в какой-либо точке С
, называют вторым главным радиусом кривизны
.
к O C
2 .
Определим главные радиусы кривизны для наиболее часто встречающихся форм оболочек в корпусах и деталях аппаратов. На рисунках 3.2 –3.4 показаны главные радиусы кривизны для
следующих оболочек:
для цилиндра: rm = Ґ ; rк = R; для сферы: rm = rк = R ;
r
для конуса: rm
= Ґ
; rк
=
.
Рис. 3.2. Главные радиусы кривизны для цилиндра

Рис. 3.3. Главные радиусы кривизны для сферы

Рис. 3.4. Главные радиусы кривизны для конуса
Оболочка называется осесимметричной, если она нагружена силами, распределенными симметрично вокруг оси; краевыми силами, равномерно распределенными по параллельному кругу оболочки; краевыми моментами, равномерно распределенными по параллельному кругу и действующими в плоскости меридианов.
На элемент срединной поверхности осесимметричной оболочки вращения действуют силы и изгибающие моменты, вызывающие меридиональные
и кольцевые
напряжения.


Рис. 3.6. Элемент тонкостенной оболочки
3.2. Уравнение равновесия элемента (уравнение Лапласа)
Выделим элемент на срединной поверхности оболочки вращения и рассмотрим равновесие этого элемента. Элемент выделяем с помощью двух сечений по параллельным кругам и двух сечений, проходящих через ось и меридианы оболочки
(рисунок 3.7).

Рис. 3.7. Выделение элемента на срединной поверхности оболочки

Рис. 3.8. Силы, действующие на элемент срединной поверхности

Сумма проекций действующих на элемент сил на ось Z , совпадающую с нормалью к поверхности выделенного элемента в точке С :
(3.2)
(3.3)
sin x
получим:
Разделив на , придем к выражению вида
0 . (3.6)
Разделив уравнение (3.6) на толщину оболочки S и учитывая, что
T U
S
к
и S
m
, получим уравнение
. (3.7)
Теорию расчета оболочек, в которой для определения меридиональных и кольцевых напряжений учитывают только растягивающие и сжимающие усилия, называют безмоментной теорией.
Основным исходным уравнением безмоментной теории является уравнение Лапласа (Лаплас Пьер Симон (1749-1827), французский астроном, математик и физик, см. Приложение):
, (3.8)
где – меридиональное напряжение;
– кольцевое напряжение;
– первый главный радиус кривизны; к – второй главный радиус кривизны; P – внутреннее избыточное давление; Sp – расчетная толщина стенки оболочки.
Контрольные вопросы к лекции 3
1. Какие оболочки называют тонкостенными?
2. Что такое срединная поверхность, параллельный круг, меридиан?
3. Какое сечение называют первым и вторым главным сечением?
4. Какие напряжения действуют в стенках сосуда?
5. Запишите уравнение Лапласа и объясните смысл входящих в нег0 величин.
6. Чем характеризуется безмоментная теория?
Лекция 4. Тема " Основы теории тонкостенных оболочек. Приложение безмоментной теории расчета тонкостенных оболочек к расчету корпусов тонкостенных аппаратов"
Рассматриваемые вопросы: Приложение безмоментной теории расчета тонкостенных оболочек к расчету корпусов тонкостенных аппаратов. Уравнение равновесия зоны. Частные случаи применения безмоментной теории к расчету сосудов. Тонкостенный цилиндр, нагруженный внутренним газовым давлением. Тонкостенная сферическая оболочка, нагруженная внутренним газовым давлением.
4.1. Уравнение равновесия зоны
Аппараты, рассчитываемые по безмоментной теории тонкостенных оболочек, должны удовлетворять следующим обязательным условиям:
–
толщина стенок должна быть малой, т.е. S
D
0,1. Вследствие малой толщины стенки можно считать, что нормальные напряжения растяжения (сжатия) не изменяются по толщине
стенки;
– по форме аппарат обязательно должен представлять собой тело вращения;
– нагрузка должна быть симметричной относительно оси вращения (осесимметричной).
Основное исходное уравнение безмоментной теории – уравнение Лапласа (3.8). Неизвестными в данном уравнении являются напряжения m
и к
. Очевидно, что для определения двух неизвестных необходимо использовать еще одно уравнение. Таким уравнением является уравнение равновесия зоны
.
Рассмотрим уравнение равновесия зоны оболочки. Кольцевым сечением выделим зону на произвольном уровне mn
(рисунок 4.1). Кольцевое сечение – сечение оболочки конической поверхностью, образующие которой пересекают поверхность оболочки под прямым углом, а значит, величина этой образующей равна второму главному радиусу кривизны
.
На зону оболочки действуют следующие нагрузки:
– интенсивность давления среды q на данном уровне mn ;
– вес содержимого в зоне G ;
– сила упругости – меридиональная сила U .

Радиус кривизны кольцевого сечения
АВ
.
Радиус параллельного круга
r BA A C к
sin .
Составим условие равновесия выделенной зоны: алгебраическая сумма проекций всех сил на ось хх равна нулю.
U
2 r
sin q r
2
G
0. (4.1)
Отсюда находим величину меридиональной силы U :
G q r 2
U . (4.2)
2 r sin
Меридиональное напряжение
U
. (4.3)
S
Величину кольцевого напряжения к
определяют из уравнения Лапласа (3.8), подставляя значение m
, рассчитанное по формуле (4.3).
Итак, для определения напряжений в любом сечении тонкостенной осесимметричной оболочки по безмоментной теории необходимо решить два уравнения – уравнение равновесия зоны и уравнение равновесия элемента (уравнение Лапласа).
4.2. Частные случаи применения безмоментной теории к расчету сосудов
Тонкостенный цилиндр, нагруженный внутренним газовым давлением
Запишем уравнение Лапласа (3.8) для цилиндра:
. (4.4)
R
Из уравнения Лапласа кольцевое напряжение

Рис.4.2. Цилиндр, нагруженный внутренним газовым давлением
Уравнение равновесия зоны для цилиндра:
U 2 R P R2
0
. (4.6)
Из уравнения равновесия зоны
P R
U . (4.7)
2
Меридиональное напряжение
U P R
m
. (4.8)
S 2S
Сравнивая формулы (3.12) и (3.15), получим:
. (4.9)
Анализируя выражение (4.9), приходим к выводу, что в сварных аппаратах цилиндрической формы продольные сварные швы являются более нагруженными, чем кольцевые. Поэтому требования к продольным швам выше, чем к кольцевым.
Тонкостенная сферическая оболочка, нагруженная внутренним газовым давлением

Рис.4.3. Сферическая оболочка, нагруженная внутренним газовым давлением
Для сферической оболочки первый и второй радиусы кривизны равны радиусу оболочки:
R
. (4.10)
Уравнение Лапласа для сферической оболочки:
. (4.11)
R
Из уравнения Лапласа можно найти только сумму напряжений:
P
. (4.12)
S
Уравнение равновесия зоны для сферической оболочки:
U 2 r
sin P r2
0
, (4.13)
где r R
sin .
Из уравнения равновесия зоны (рис. 3.20) получим, что
P R
U , (4.14)
2S
а, следовательно, меридиональное напряжение
U P R
m . (4.15)
S 2S
Тогда из уравнения (4.11) определяем кольцевое напряжение
P R P R P R
к m
. (4.16)
S 2S 2S
Сравнивая значения напряжений для цилиндрической и сферической оболочек одинакового радиуса R , нагруженных внутренним давлением P , заключаем, что кольцевые напряжения в сферической оболочке в два раза ниже, чем в цилиндрической. Практическое значение этого вывода заключается в том, что для элементов сферической формы общие напряжения будут ниже, чем в элементах цилиндрических и других форм. Поэтому в аппаратах больших диаметров применяют полусферические днища, меньшая толщина которых приводит к экономии металла, снижению веса.
Контрольные вопросы к лекции 4
1. Почему уравнения Лапласа недостаточно для определения главных напряжений в стенках сосуда? Какое уравнение используют совместно с уравнением Лапласа?
2. Привести уравнение Лапласа для цилиндра, нагруженного внутренним газовым давлением.
3. Привести уравнение Лапласа для сферической оболочки, нагруженной внутренним газовым давлением.
4. Каково соотношение величин меридиональных и кольцевых напряжений в цилиндрической и сферической оболочках?
Лекция 5. Тема " Основы теории тонкостенных оболочек.
Оценка прочности тонкостенных сосудов"
Рассматриваемые вопросы: Напряжения изгиба, возникающие в стенках тонкостенного сосуда. Главные напряжения в тонкостенных оболочках. Оценка прочности тонкостенных сосудов. Определение расчетной толщины стенки для цилиндрической, сферической и конической оболочки.
5.1. Напряжения изгиба, возникающие в стенках тонкостенного сосуда
![]()
Исходным уравнением для расчета на прочность тонкостенных оболочек по безмоментной теории служит уравнение Лапласа (3.8). При расчете по безмоментной теории учитываются только растягивающие напряжения m
и к
, называемые главными напряжениями. Однако, строго говоря, под действием внутреннего давления стенка цилиндрической оболочки работает не только на растяжение, но и на изгиб. Для оценки величины напряжения изгиба
и
рассмотрим деформацию элемента АВ
цилиндрической оболочки под действием внутреннего давления (рисунок 5.1). Здесь R
– радиус цилиндра до нагружения внутренним давлением Р
; R+ R
– радиус цилиндра с учетом упругой деформации от давления Р.

Рис. 5.1. Деформация цилиндрической оболочки от внутреннего давления
В результате упругой деформации участок дуги АВ принимает размеры А'В' под действием растягивающих кольцевых сил Т . Кроме этого, элемент дуги изменяет свою кривизну под действием кольцевых изгибающих моментов Mи , действующих в плоскости параллельного круга.
По закону Гука относительное удлинение
к P R . (5.1)
E E S
Под влиянием изгибающего момента Mи
изменяется радиус кривизны элемента на величину R
, которую можно определить
1 1 1 1
.
R R R R R R R R
Изгибающий момент пропорционален изменению кривизны
Mи E J , (5.2)
R R
где J - момент инерции.
Пренебрегая величиной R как малой по сравнению с R , получим
Mи E J . (5.3)
R
С учетом (5.1)
P
Mи J . (5.4)
S
Напряжения изгиба
, (5.5)
где W - момент сопротивления изгибу.
Для прямоугольного элемента длиной l и высотой S
l S 2 l S 3
W
; J
. (5.6)
6 12
Подставив выражения (5.4) и (5.6) в (5.5), получим
. (5.7)
Отсюда видно, что напряжения изгиба, возникающие в стенке цилиндрической оболочки под действием внутреннего давления, не зависят от толщины стенки, радиуса и материала цилиндрической оболочки и составляют половину величины внутреннего давления. Сопоставляя величины растягивающих напряжений и напряжений изгиба, видим, что напряжения изгиба малы по сравнению с напряжениями растяжения m
и
.
Поэтому в практических расчетах изгибающие моменты в тонкостенных цилиндрах не учитывают и расчет проводят только с учетом растягивающих напряжений по безмоментной теории.
4.4. Оценка прочности тонкостенных сосудов
Согласно безмоментной теории, в каждом элементе тонкостенного сосуда действуют два главных напряжения
и
Третье главное напряжение – радиальное – сжимающее напряжение. В тонкостенных обечайках радиальное напряжение практически не изменяется по толщине стенки и не превышает величины действующего давления, поэтому по сравнению с главными напряжениями полагают
0 .

Рис.5.2. Главные напряжения
Для оценки прочности малого элемента тела, находящегося в сложном напряженном состоянии, используют различные теории прочности в зависимости от принятого критерия прочности. Для пластичных материалов, к которым относят стали, используют III теорию прочности (приложение), по которой главную роль в наступлении опасного состояния (перехода упругих деформаций в пластические) играют касательные напряжения. Пластические деформации возникают, когда максимальное касательное напряжение достигает предельного значения, равного полуразности наибольшего и наименьшего главных напряжений.
![]()
Главные напряжения, действующие в тонкостенной оболочке, нагруженной внутренним избыточным давлением к
m
r
. По III теории прочности касательное напряжение ,
равное полуразности наибольшего
и наименьшего r
главных напряжений, не должно превышать половины допускаемых напряжений, действующих при одноосном нагружении:
(5.8)
2 2 2
или

Рис. 5.3. К определению расчетной толщины стенки
Используя формулу (3.4) для определения кольцевых напряжений и учитывая, что радиус срединной поверхности R Dc
2, получим значение расчетной толщины стенки
P Dc
. (5.10)
Sp
2 к
Подставив вместо кольцевого напряжения значение допускаемого напряжения и введя для сварных сосудов коэффициент прочности сварных швов , получим
P Dc
. (5.11)
Sp
2
Заменив средний диаметр на внутренний диаметр ( D
c
D
S
p
) в соответствии с рисунком 5.3, получим формулу для расчета толщины стенки цилиндрической обечайки, нагруженной внутренним избыточным давлением:
Sp
. (5.12)
Аналогично можно получить формулу для расчета толщины стенки сферической оболочки:
(5.13)
. (5.14)
Рис. 5.4. К расчету конической обечайки
Учитывая, что для конической обечайки
, получим
формулу для расчета толщины стенки конической обечайки:
Sp
, (5.15)
где Dк - расчетный диаметр конической обечайки.
Контрольные вопросы к лекции 5
1. Оцените величину напряжений изгиба в тонкостенных оболочках.
2. Какие главные напряжения действуют в тонкостенных оболочках? Какие напряжения являются наибольшими?
3. На основе какой теории прочности оценивают прочность тонкостенных оболочек?
4. Как определяют толщину цилиндрической, сферической и конической оболочек?
Лекция 6. Тема "Элементы моментной теории тонкостенных оболочек "
Рассматриваемые вопросы: Причины возникновения краевых нагрузок. Краевая сила и краевой момент. Краевая задача. Распорная краевая сила. Уравнения совместимости деформаций. Определение краевых сил и моментов. Краевые напряжения. Длинные и короткие обечайки.
6.1. Причины возникновения краевых нагрузок
При расчете оболочек по безмоментной теории их края рассматривались свободными. В реальных конструкциях машин и аппаратов края оболочек соединяются с другими оболочками или другими деталями (днищами, фланцами и т.п.). В таких узлах сопряжения возникают дополнительные, так называемые краевые нагрузки, вызывающие местные напряжения изгиба в материале сопрягаемых элементов. Вследствие закрепления края оболочки и ограничения свободной деформации возникают реакции заделки края оболочки: краевая сила Q 0 и краевой момент M 0 . Считают, что край оболочки нагружен равномерно распределенными по краю оболочки краевой силой Q 0 и радиальным краевым моментом M 0 .
Причинами возникновения краевых нагрузок являются:
– заделка края оболочки (рисунок 6.1);
– изменение геометрических размеров (рисунок 6.2а ) или формы оболочки при переходе от одного сечения к другому
(рисунок 6.2б,в,г );
– изменение нагрузки или технологических параметров
(рисунок 6.3);
– изменение физико-механических свойств материала (модуля упругости, коэффициента линейного расширения, коэффициента Пуассона и др.) (рисунок 6.4).
а б
в г
а – соединение с толстым плоским днищем; б – соединение с трубной решеткой; в – соединение с фланцем; г – соединение с кольцом жесткости
Рис. 6.1. Примеры заделки края оболочек
а б
в г
Рис. 6.2. Примеры изменения геометрических размеров (формы) оболочек
Рис. 6.3. Изменение нагрузки или технологических параметров
1 – обечайка из коррозионностойкой стали; 2 – обечайка из углеродистой стали
Рис. 6.4. Изменение физико-механических свойств материала
6. 2. Краевая задача. Определение краевых сил и моментов
Определение усилий, моментов и напряжений, вызванных действием краевых сил и моментов, составляет цель краевой задачи.
Рассмотрим цилиндрический сосуд с коническим днищем, нагруженный внутренним избыточным давлением Р (рисунок 6.5а ). Если представить, что коническая и цилиндрическая части сосуда под действием давления могут деформироваться свободно, то очевидно из рисунка 6.5б , что радиальные и угловые перемещения сопрягаемых частей сосуда будут различны:
к
; θ
а б
Рис. 6.5. Цилиндрический сосуд с коническим днищем
Однако, края оболочек жестко связаны между собой и не допускают относительного перемещения. Радиальные и угловые перемещения края цилиндрической части от действующих внешних и краевых нагрузок в силу условия совместности деформаций должны быть равны перемещениям края конической части.
В результате в месте соединения цилиндрической и конической оболочек на края оболочек действуют равномерно распределенные по окружности краевые нагрузки: краевая сила Q 0 и краевой момент M 0 . Кроме того, при соединении оболочек под углом, возникает распорная краевая сила Q , равная проекции меридиональной силы U на плоскость параллельного круга стыкового сечения и противоположно направленная (рисунок 6.6).
Рис. 6.6. Соединение цилиндрической и конической оболочек
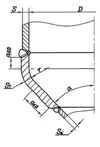
Для определения краевых сил и моментов конструкцию разделяют на отдельные элементы (оболочки) и заменяют действие этих частей друг на друга силами и моментами, приложенными к краю. Далее составляют уравнения совместности деформаций. При составлении и решении уравнений совместности деформаций следует учитывать знаки. Положительными считают радиальные перемещения , если радиус кривизны увеличивается и угловые перемещения , если край оболочки поворачивается наружу.
Рассмотрим узел сопряжения сферической и цилиндрической оболочек сосуда, нагруженного внутренним избыточным давлением (рисунок 6.7).
Рис. 6.7. Соединение сферической и цилиндрической оболочек
Разделим конструкцию на элементы и приложим заданную внешнюю нагрузку (внутреннее давление Р
), неизвестные краевые нагрузки, а также распорную силу Q
, действующую на край сферической оболочки. Примем за положительные радиальные перемещения края оболочки от ее оси и угловые перемещения
в направлении по часовой стрелке. Составим с учетом этого правила знаков уравнения совместности радиальных и угловых деформации для правой части оболочек:
(6.1)
где – соответственно радиальные и
0 0 0 0 угловые деформации края цилиндрической оболочки под действием нагрузок Р, Q
0
и M
0
;
P
с
, с
Q Q
0 0 ,
М
с
0 ,
P
с
, с
Q Q
0 ,
М
с
0 – соответственно радиальные и угловые деформации края сферической оболочки под действием нагрузок Р, Q
, Q0
и M0
.
Деформации, а, следовательно, и напряжения, вызванные краевыми нагрузками, имеют локальный характер и действуют в точках, близких к нагруженному краю.
Для цилиндров краевые силы и моменты оказываются существенными в пределах зоны протяженностью 2,5 DS
от края оболочки. Однако необходимо учитывать, что при небольших длинах обечаек краевые нагрузки, возникающие на одном крае, могут влиять на деформации другого края. Такие обечайки называют короткими.
Выражения для определения перемещений, входящих в уравнения (6.1) для различных схем нагружения приводятся в справочной литературе 3 . После определения краевых нагрузок вычисляют напряжения на краю оболочки:
p M m m
(6.2)
p M
Максимальное напряжение
max max m
; к
. (6.3)
Для узла соединения обечаек должно выполняться условие:
, (6.4)
где – коэффициент прочности сварного шва;
– допускаемое напряжение материала обечаек.
При конструировании аппаратов следует иметь в виду, что на величину краевых воздействий влияют конструкция узла и свойства материала. В жестких соединениях возникают большие краевые воздействия. С увеличением пластичности материала краевой эффект проявляется в меньшей степени вследствие большей податливости материала деформациям.
При расчете стальных оболочек с плавными переходами между сопрягаемыми частями толщину стенок можно определять по безмоментной теории, учитывая только мембранные напряжения. В случае применения сравнительно хрупких материалов, таких как чугун, или наличия в конструкции узлов с резкими переходами расчет следует проводить с учетом краевых напряжений. При этом увеличение толщины стенок имеет характер местного усиления в зоне действия краевых нагрузок.
В инженерной практике обычно стальные сварные сосуды и аппараты рассчитывают по безмоментной теории с последующей проверкой прочности тех узлов, где действуют краевые нагрузки.
Контрольные вопросы к лекции 6
1. Какие нагрузки называют краевыми? Каковы причины их возникновения?
2. Распорная сила и причины ее появления.
3. Цель краевой задачи.
4. Уравнения совместности деформаций.
5. Как определяют напряжения в краевой зоне?
6. Характер краевых напряжений.
7. Длинные и короткие обечайки.
Лекция 7. Тема "Общие требования к сосудам, работающим под давлением"
Рассматриваемые вопросы: Основные термины. Емкостные аппараты. Общие требования к конструкции. Общие требования к изготовлению. Требования к конструкции и изготовлению цилиндрических обечаек и корпусов из них.
Общие требования к конструкции и изготовлению сосудов, работающих под давлением, регламентируются отраслевым стандартом ГСТУ 3-17-191-2000 "Сосуды и аппараты стальные сварные. Общие технические условия" 7 и правилами Госнадзорохрантруда ДНАОП 0.00-1.07 "Правила устройства и безопасной эксплуатации сосудов, работающих под давлением"
7 .
7.1. Основные термины
В дальнейшем будем использовать терминологию, установленную отраслевым стандартом 7 .
Сосуд – герметично закрытая емкость, предназначенная для проведения химических, тепловых и других технологических процессов, а также для хранения и перевозки газообразных, жидких и других веществ. Границей сосуда являются входные и выходные штуцера.
Аппарат – сосуд, оборудованный внутренними устройствами и предназначенный для проведения химико-технологических процессов. Аппараты в зависимости от их конструкции и осуществляемого в них технологического процесса имеют различные названия: колонные аппараты, реакторы, автоклавы и др.
Сосуды и аппараты состоят из следующих основных элементов: цилиндрического корпуса, днищ (или днища и крышки), штуцеров (для присоединения трубопроводов, арматуры, контрольноизмерительных приборов), люков, лючков, опор, строповых устройств, фланцевых соединений, внутренних устройств.
Элемент сосуда – сборочная единица или деталь сосуда, предназначенная для выполнения одной из основных функций сосуда. Элементы сосудов и аппаратов соединяются между собой, как правило, сваркой.
Сборочная единица – изделие, составные части которого подлежат соединению между собой сваркой, свинчиванием, развальцовкой и другими сборочными операциями.
7.2. Емкостные аппараты
В химической, нефтехимической, нефтеперерабатывающей и других отраслях промышленности любой физико-химический процесс требует, прежде всего, наличия емкости, ограниченной корпусом. Эти корпуса по условиям протекающих в них процессов должны быть достаточно прочными и в подавляющем большинстве случаев герметичными.
Емкостной аппарат – это сосуд, главной технической характеристикой которого является объем внутреннего пространства.
Емкостные аппараты или емкости могут быть оснащены нагревателями, мешалками и другими устройствами, предназначенными для осуществления различных технологических процессов.
Корпус – основная сборочная единица, состоящая из обечайки и днищ и составляющая основу сосуда.
Главным составным элементом корпуса является обечайка.
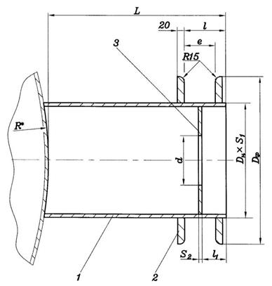
Обечайка – цилиндрический или конический элемент замкнутого профиля, открытый с обоих торцов.
В основном емкостные аппараты имеют цилиндрические обечайки. Конические обечайки применяются, как правило, в качестве днищ и переходов.
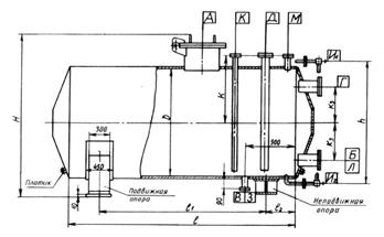
В зависимости от технологического назначения аппараты могут быть в горизонтальном, вертикальном и наклонном исполнении. С точки зрения возможности уменьшения толщины стенки, а следовательно, и массы аппарата, предпочтение следует отдавать вертикальному исполнению, особенно для аппаратов, работающих при небольшом избыточном давлении. В этих случаях исключаются дополнительные изгибающие напряжения в обечайке от силы тяжести аппарата и среды, имеющие место в горизонтальных аппаратах, лежащих на седловых опорах. Однако с точки зрения технологии процесса и удобства обслуживания горизонтальный аппарат часто оказывается более подходящим.
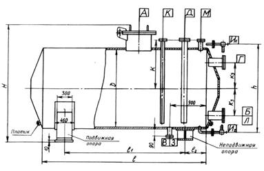
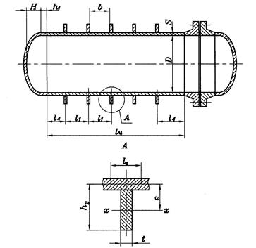
Рис.7.1. Горизонтальный емкостной аппарат
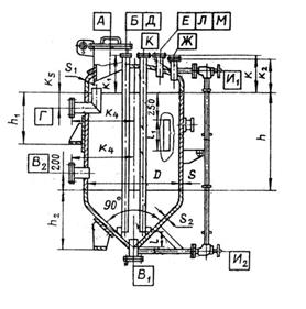
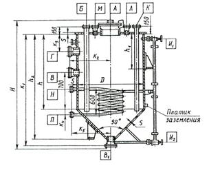
Рис.7.2. Вертикальный емкостной аппарат с эллиптическими днищами
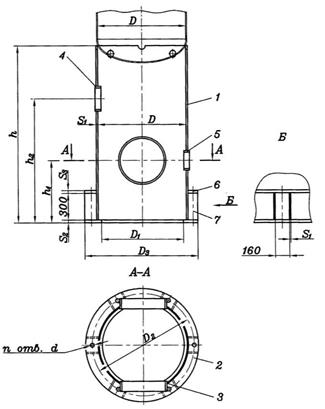
Днищем называется элемент емкостного аппарата, который ограничивает корпус снизу или сверху (вертикальные аппараты) и с боков (горизонтальные аппараты), составляя с ним одно целое.
Днище – неотъемная часть корпуса сосуда, ограничивающая внутреннее пространство с торца.
Днища могут быть эллиптические, сферические, конические и плоские. Наибольшее распространение получили эллиптические днища. Эллиптические днища стандартизованы и применяются в горизонтальных и вертикальных аппаратах с внутренним диаметром от 0,4 до 4 м при давлении от 0,07 МПа до 10 МПа. При диаметре корпуса больше 4 м применяются сферические днища.
Конические днища применяются в основном в нижней части вертикальных цилиндрических аппаратов, если это требуется по условиям технологического процесса (для жидких и сыпучих сред при необходимости их непрерывного или периодического удаления через нижний спуск). Днища с углом при вершине 60° применяются для вязких жидкостей и суспензий, с углом 90° – для невязких жидкостей.
Рис.7.3. Вертикальный емкостной аппарат с нижним коническим днищем
В горизонтальных аппаратах с диаметром больше 1,5 м, работающих под наливом и небольшим избыточным давлением (до 0,07 МПа) также целесообразно применять конические днища с большим углом при вершине (140°).
Рис.7.4. Горизонтальный емкостной аппарат с коническими днищами с углом при вершине в 140°
Элементы корпусов цельносварных аппаратов соединяются между собой сваркой и для доступа к внутренней части аппарата, его осмотра, обслуживания и ремонта должны иметь люки.
Люк – устройство, обеспечивающее доступ к внутреннему пространству аппарата.
В разъемных корпусах со съемной крышкой люки не устанавливают.
Крышка – отъемная часть корпуса сосуда, закрывающая внутреннее пространство.
В процессе эксплуатации емкостного аппарата в него периодически или непрерывно входит исходный поток среды на обработку и выводится обработанная среда. Этот технологический процесс может включать нагрев или охлаждение среды в аппарате и ее перемешивание, при этом осуществляется непрерывный контроль за уровнем жидкости в аппарате, измеряются температура и давление среды. Указанные процессы и действия осуществляются путем присоединения к аппарату труб, запорной арматуры (краны, вентили, задвижки), уровнемеров, манометров, термометров, термопар, предохранительного клапана, а также путем введения в рабочий объем аппарата трубного пучка, мешалки или погружного насоса.
Рис.7.5. Емкостной аппарат со змеевиком
Рис.7.6. Емкостной аппарат с крышкой
В подавляющем большинстве случаев трубы, арматура, измерительные приборы и технологическое оборудование имеют разъемное присоединение к аппарату, что обусловлено удобством их осмотра, ремонта и замены. Разъемное присоединение к аппарату осуществляется при помощи фланцевых штуцеров или резьбовых бобышек.
Штуцер – устройство для присоединения к сосуду трубопроводов, арматуры и КИП.
Патрубок – отрезок трубы или фасонная деталь в виде отрезка трубы.
Корпуса аппаратов могут иметь рубашки. Рубашки в емкостной аппаратуре предназначены для нагревания или охлаждения обрабатываемой среды через стенку корпуса аппарата. По конструкции рубашки бывают несъемные (приварные) и съемные. Последние крепятся к корпусу аппарата при помощи фланцев и применяются в тех случаях, когда требуется периодическая чистка корпуса под рубашкой от накипи (для улучшения теплообмена) или требуется периодический осмотр зоны внутри рубашки.
Рис.7.7. Аппарат с рубашкой
7.3. Общие требования к конструкции
1. Конструкция сосудов должна обеспечивать работоспособность, надежность, долговечность и безопасность в течение расчетного срока службы и предусматривать возможность проведения технического освидетельствования, полного опорожнения, очистки, промывки, продувки, ремонта, эксплуатационного контроля металла и сварных соединений.
2. Устройства, препятствующие наружному и внутреннему осмотрам сосуда (мешалки, змеевики, рубашки, тарелки, перегородки и другие устройства), должны быть, как правило, съемными.
3. Конструкция внутренних устройств должна обеспечивать удаление воздуха из сосуда при гидравлическом испытании и воды - после гидравлического испытания.
4. На каждом сосуде должен быть предусмотрен вентиль, кран или другое устройство, позволяющее осуществлять контроль за отсутствием давления в сосуде перед его открыванием.
5. При проектировании сосудов должны учитываться требования "Правил перевозки грузов железнодорожным, водным или автомобильным транспортом".
6. Расчет на прочность сосудов и их элементов должен проводиться согласно действующей нормативной документации.
7. Сосуды должны иметь строповые устройства (захватные приспособления) для проведения погрузочно-рагрузочных работ и установки сосуда в проектное положение.
8. Базовые диаметры сосудов должны приниматься по ГОСТ 9617.
9. Сосуды должны быть снабжены необходимым количеством люков и смотровых лючков, обеспечивающих осмотр, очистку и ремонт сосудов, а также монтаж и демонтаж разборных внутренних устройств.
Сосуды с внутренним диаметром более 800 мм должны иметь люки, а с внутренним диаметром 800 мм и менее - лючки. Внутренний диаметр круглых люков должен быть не менее 400 мм, размеры овальных люков по осям в свету должны быть не менее 325 400. Внутренний диаметр лючков или размер наименьшей оси овальных лючков должен быть не менее 80 мм.
Крышки люков должны быть съемными. Крышки массой более 20 кг должны быть снабжены подъемно-поворотными или другими устройствами для их открывания и закрывания.
Для проверки качества приварки колец, укрепляющих отверстия для люков и штуцеров, должно быть предусмотрено резьбовое контрольное отверстие в кольце, если оно приварено снаружи, или в стенке, если кольцо приварено с внутренней стороны сосуда.
10. В зависимости от расчетных параметров и характера рабочей среды сосуды разделяются на группы, в соответствии с которыми определяются требования к конструкции, расчету, изготовлению и безопасной эксплуатации сосуда. Группа аппарата указывается в паспорте сосуда и в технической характеристике на чертеже общего вида сосуда.
7.4. Общие требования к изготовлению
1. Предприятие - изготовитель должно иметь разрешение органа Госнадзорохрантруда Украины на изготовление подведомственных ему сосудов.
2. Качество и свойства материалов должны соответствовать требованиям стандартов и подтверждаться сертификатами предприятия-поставщика. При отсутствии или неполноте сертификата необходимо произвести необходимые испытания, подтверждающие соответствие материалов требованиям с оформлением результатов испытания протоколом. Данные сертификатов или заменяющих их документов заносятся в паспорт сосуда.
Материалы должны иметь полную маркировку (марку стали, номер партии плавки, номер листа) и храниться в условиях, исключающих повреждение и гарантирующих сохранность маркировки.
7.5.Требования к конструкции и изготовлению цилиндрических обечаек и корпусов из них
![]()
Требования регламентируются отраслевым стандартом ГСТУ 317-191-2000 7 и Правилами ДНАОП 0.00-1.07 8 .
1. При сварке обечаек и труб, приварке днищ к обечайкам должны применяться стыковые швы с полным проплавлением.
2. Обечайки диаметром D
1000 мм должны изготовляться не более, чем с двумя продольными швами. Обечайки диаметром D > 1000 мм должны изготовляться из листов максимально возможной длины, причем вставки допускаются шириной не менее 400 мм для сосудов 1 - 4 групп и не менее 200 мм для сосудов 5 группы.
![]()
Рис.7.8. Ширина вставки между продольными швами
3. Ширина листов между кольцевыми швами должна быть не менее 800 мм, ширина замыкающей вставки - не менее 400 мм, за исключением случаев, когда к обечайке приваривается фланец, трубная решетка или конический переход. В этих случаях длина обечайки указывается на чертеже.
![]()
Рис.7.9. Ширина листов между кольцевыми швами
4. Продольные швы смежных обечаек для аппаратов 1 - 4 групп должны быть смещены относительно друг друга на величину трехкратной толщины наиболее толстого элемента, но не менее чем на 100 мм между осями швов. Это требование относится и к смещению швов при вальцевании обечаек способом карт.
![]()
5. Допускается изготовление обечаек способом вальцевания карт, сваренных в плоском положении из нескольких листов. В смежных листах допускается наличие поперечных швов, выполненных со смещением (рисунок 7.11б). Обечайки, вальцованные из карт, допускается изготовлять с перекрестными швами (рисунок 7.11а).
а б
Рис.7.11. Обечайки из карт
а – обечайки из карт с перекрестными швами; б – обечайки из карт со смещенными швами
6. Сварные швы не должны перекрываться опорами или иными элементами. Расстояние между краем сварного шва сосуда и краем шва приварки элемента должно быть не менее толщины стенки сосуда, но не менее 20 мм.
7.
В стыковых сварных соединениях элементов разной толщины должен быть предусмотрен плавный переход от одного элемента к другому путем постепенного утонения более толстого элемента. Угол наклона поверхностей перехода не должен превышать 20. Допускается сварка без скоса, если разница в толщине не превышает 30% толщины более тонкого элемента и не превышает 5 мм.
20°m
Рис.7.12. Скос при сварке элементов разной толщины
8. Смещение кромок листов В , измеренное по срединной поверхности, в стыковых соединениях, обеспечивающих прочность сосуда, не должно превышать B =0,1S , но не более 3 мм.
При этом B
1
0 5
, (S
1
S
2
) B
; B
2
0 5
, (S
1
S
2
) B
.
Рис.7.13. Смещение кромок листов
9. Отверстия для люков, лючков и штуцеров для аппаратов 1 - 4 групп должны располагаться вне сварных швов, особенно продольных. Допускается расположение отверстий на кольцевых сварных швах без ограничения диаметра отверстия, а на продольных - при диаметре отверстия не более 150 мм.
Контрольные вопросы к лекции 7
1. Что понимают под терминами "сосуд" и "аппарат"?
2. Дайте определения основных составных частей корпуса аппарата.
3. Сформулируйте основные требования к конструкции аппаратов.
4. Сформулируйте основные требования к изготовлению аппаратов.
5. Требования к сварным швам обечаек и корпусов из них.
6. Как сваривают стыковые сварные соединения элементов разной толщины?
7. Как следует располагать отверстия в обечайках?
Лекция 8. Тема "Конструкции обечаек и днищ"
Рассматриваемые вопросы: Типовые конструкции цилиндрических обечаек корпусов аппаратов. Днища выпуклые, конические, сферические неотбортованные, плоские. Требования к изготовлению днищ.
8.1. Типовые конструкции цилиндрических обечаек корпусов аппаратов
Обечайка – цилиндрический или конический элемент замкнутого профиля, открытый с торцов. (См. приложение )
Цилиндрические обечайки являются одним из основных элементов химических аппаратов. Из них образуется корпус аппарата, они входят составной частью в различные внутренние и наружные устройства аппаратов. Обечайки в основном изготовляют вальцовкой из листового проката, реже из труб.
Обечайки из листового проката имеют внутренний базовый диаметр по стандарту ГОСТ 9617-76 "Сосуды и аппараты. Ряды диаметров". Внутренний диаметр обечайки выбирается из стандартного ряда: 400, (450), 500, (550), 600, (650), 700, 800, 900, 1000, (1100), 1200, 1300, 1400, (1500), 1600, (1700), 1800, (1900),
2000, 2200, 2400, 2500, 2600, 2800, 3000, 3200, 3400, 3600, 3800,
4000, 4500 мм. Обечайки с внутренними диаметрами, которые приведены в скобках, допускается использовать для изготовления рубашек сосудов и т аппаратов.
Обечайки из труб имеют наружный базовый диаметр. Наружный диаметр обечаек из труб рекомендуется принимать из следующего ряда: 133, 159, 168, 219, 273, 325, 377, 426, 480, 530,
630, 720, 820, 920, 1020,1120, 1220, 1320, 1420 мм.
Корпуса химических аппаратов состоят из одной или нескольких цилиндрических обечаек, соединенных между собой и с концевыми элементами кольцевыми сварными швами. В качестве концевых элементов применяются фланцы и днища различной конструкции.
При сварке корпуса сосуда или аппарата должны применяться, как правило, стыковые двухсторонние швы с полным проплавлением. Односторонние швы применяются в тех случаях, когда невозможно применить двустороннюю сварку. При этом сварка осуществляется на съемной или остающейся подкладке.
Вальцованные обечайки должны иметь как можно меньше сварных швов, особенно продольных, поэтому листы для их изготовления следует выбирать возможно больших размеров.
Объем сосудов и аппаратов должен соответствовать стандарту ГОСТ 13372-67 "Сосуды и аппараты. Ряд номинальных объемов". Стандарт устанавливает следующий ряд номинальных объемов сосудов и аппаратов: 0,01; 0,016; 0,025; 0,04; 0,063; 0,1; 0,125; 0,16; 0,2; 0,25; 0,32; 0,4; 0,5; 0,63; 0,8; 1,0; 1,25; 1,6; 2,0; 2,5; 3,2; 4,0; 5,0; 6,3; 8,0; 10,0; 12,5; 16,0; 20,0; 25,0; 32; 40; 50; 63; 80; 100; 125;
1690; 200; 250; 320; 400; 500 м3 .
Корпуса аппаратов имеют следующие основные конструкции:
– с фланцем и днищем (рисунок 8.1); фланец может быть плоский приварной или приварной встык, днища могут быть плоские, выпуклые или конические; – с фланцами с обеих сторон (царга);
– с днищами с обеих сторон (рисунок 8.2); днища могут быть выпуклыми или коническими, отбортованными или без отбортовки;
– с рубашками различной конструкции (рисунок 8.3);
– с кольцами жесткости или внутренними перегородками
(рисунки 8.4, 8.5).
Рис. 8.1. Обечайка с фланцем и плоским днищем
а б
Рис. 8.2. Обечайки с выпуклыми или коническими днищами
а – обечайка с отбортованными днищами; б – обечайка с неотбортованными днищами
а б
Рис. 8.3. Обечайки с рубашками
а – обечайка с U – образной рубашкой; б – обечайка с цилиндрической рубашкой
Рис. 8.4. Обечайки с кольцами жесткости
Рис. 8.5. Обечайки с внутренними перегородками
Кроме этого, корпус аппарата может состоять из цилиндрических обечаек разного диаметра, соединенных между собой коническими переходами (рисунок 8.6). Корпуса аппаратов могут быть вертикальными или горизонтальными.
Рис. 8.6. Обечайки, соединенные коническим переходом
8.2. Конструкции днищ
Днища, так же как и обечайки, являются одним из основных элементов химических аппаратов. Цилиндрические корпуса как горизонтальных, так и вертикальных аппаратов с обеих сторон ограничиваются днищами. Днище может быть приварено к обечайке, т. е. являться неотъемной частью корпуса сосуда. Днище может являться составной частью отъемной крышки.
Наиболее распространенными формами днищ являются: эллиптические, полусферические, сферические неотбортованные, конические отбортованные и неотбортованные. Эллиптические отбортованные днища
![]()
Конструкция и размеры эллиптических отбортованных днищ регламентируются ГОСТ 6533-78 "Днища эллиптические отбортованные стальные для сосудов, аппаратов и котлов". Днища изготовляют из углеродистых, легированных и двухслойных сталей с толщиной стенки от 4 до 120 мм. Диаметры цилиндрической отбортованной части от 133 до 1420 мм при базовом наружном диаметре и от 250 до 4500 мм при базовом внутреннем диаметре. Высота эллиптической части H
0,25D
, радиус днища R D
. Полусферические днища
Полусферические днища применяют в аппаратах, работающих
а –
эллиптическое днище б
– полусферическое
днище
Рис. 8.7. Выпуклые днища
Сферические неотбортованные днища
![]()
Сферические неотбортованные днища применяют в аппаратах, работающих под наливом или при давлении P
0,07МПа, за исключением сосудов, работающих под вакуумом. Допускается применять в качестве элемента фланцевых крышек при давлениях P
1,6МПа в сосудах 1…4-й групп и сосудах, работающих под вакуумом. 0,8D
Рис. 8.8. Сферическое неотбортованное днище а – сферическое неотбортованное днище; б – фланцевая крышка
Рис. 8.9. Сосуд со сферическими неотбортованными днищами
Конические днища
1) Конические отбортованные днища с углами при вершине 60 и 90
(ГОСТ 12619-78)
Применяют в аппаратах, работающих под давлением, при диаметрах аппарата от 400 до 4000 мм.
Рис. 8.10. Коническое отбортованное днище
2)
Конические неотбортованные днища с углами при вершине 60,90 и 120 (ГОСТ 12620-78)
Применяют в аппаратах, работающих под наливом или при давлении P
0,07МПа.
3) Конические неотбортованные днища с углом при вершине 140
(ГОСТ 12621-78)
Применяют в горизонтальных аппаратах, работающих под наливом или при давлении P
0,07МПа.
Рис. 8.11. Аппарат с коническими днищами с углом 140
Наряду с коническими днищами в аппаратах применяют конические переходы, соединяющие обечайки разных диаметров (рисунок 8.6).
Плоские днища
1) Плоские отбортованные днища (ГОСТ 12622-78)
Изготовляют из листовой стали и применяют в аппаратах, работающих под наливом или при давлении P
а – с базовым наружным диаметром; б – с базовым внутренним диаметром
Рис. 8.12. Плоские отбортованные днища
2) Плоские неотбортованные днища (ГОСТ 12623-78)
Днища применяют в аппаратах, работающих под наливом или
0,07МПа. Конструкцию днищ на рисунке б при
а – с базовым наружным диаметром; б – с базовым внутренним диаметром
Рис. 8.13 – Плоские неотбортованные днища
3) Днища из поковок
Для аппаратов, работающих под давлением, применяются плоские днища, изготовленные из поковок.
а – плоское кованое днище; б – плоское днище с кольцевой
проточкой
Рис. 8.14. Плоские кованые днища
8.3. Требования к изготовлению днищ
1. Выпуклые днища изготовляют штамповкой из плоских круглых заготовок, цельных или сваренных из нескольких частей. Способы раскроя заготовок регламентируются ГСТУ 3-17-1912000 (рисунок 8.15).
Рис. 8.15. Способы раскроя днищ
2. Допускается изготовлять выпуклые днища из штампованных лепестков и кругового сегмента. Количество лепестков не регламентируется. Если по центру днища расположен штуцер, то круговой сегмент допускается не изготовлять.
3. Сварные швы заготовок должны быть смещены относительно друг друга и относительно швов смежных обечаек на величину не менее 3-х толщин, но не менее 100 мм.
4. Отклонение внутреннего диаметра цилиндрической части отбортованных днищ не должно быть более
1% от номинального диаметра. Относительная овальность должна быть не более 1%.
5. Для выпуклых днищ контроль формы осуществляют шаблоном. У плоских днищ контролируется их плоскостность после приварки.
Рис. 8.16. Контроль формы эллиптических днищ шаблоном
Рис. 8.17. Контроль формы полусферических днищ шаблоном
Контрольные вопросы к лекции 8
1. Конструкции днищ, применяющихся в аппаратах, работающих под давлением.
2. Какие днища называют выпуклыми?
3. Что такое отбортовка днищ? Какие днища изготовляют с отбортовкой? Назначение отбортовки.
Лекция 9. Тема "Расчет элементов аппаратов, нагруженных внутренним избыточным давлением"
Рассматриваемые вопросы: Определение расчетных параметров. Расчетная температура. Расчетное рабочее и пробное давления. Допускаемые напряжения. Коэффициенты прочности сварных швов. Прибавки к расчетным величинам. Условия применения расчетных формул. Расчет цилиндрических обечаек, нагруженных внутренним избыточным давлением. Расчет толщины стенки однослойной обечайки. Расчет выпуклых днищ. Расчет конических обечаек и днищ. Расчет сферических неотбортованных днищ и крышек. Расчет плоских днищ и крышек. Расчет крышек с дополнительным краевым моментом.
9.1. Определение расчетных параметров
Приведенные методы расчета применимы для сосудов и аппаратов, работающих в условиях однократных статических нагрузок под внутренним избыточным давлением менее 10 МПа. Если сосуды и аппараты работают при многократных статических нагрузках, но количество циклов нагружения не превышает 103 , то такая нагрузка в расчетах на прочность условно считается однократной.
![]()
Расчетные температуры не должны превышать для углеродистых сталей 380 С, для низколегированных сталей 420С и для аустенитных сталей 525 С.
Расчет применим при соблюдении требований ГСТУ 3-17-1912000 [] и ДНАОП 0.00-1.07 [].
Элементы корпусов стальных сварных сосудов и аппаратов рассчитывают на прочность для рабочих условий и условий испытания.
Расчетная температура
Расчетная температура стенки – температура, при которой определяются физико-механические характеристики, допускаемые напряжения и проводится расчет на прочность элементов сосуда.
![]()
За расчетную температуру стенки сосуда или аппарата принимают наибольшее значение температуры стенки. При температуре стенки ниже 20С за расчетную температуру при определении допускаемых напряжений принимают температуру 20С.
Если невозможно провести тепловые расчеты или измерения и в тех случаях, когда во время эксплуатации температура стенки сосуда или аппарата повышается до температуры среды, соприкасающейся со стенкой, за расчетную температуру следует принимать наибольшую температуру среды, но не ниже 20С.
Давление
Давление внутреннее (наружное) – избыточное давление, действующее на внутреннюю(наружную) поверхность стенки аппарата.
Под расчетным давлением в рабочих условиях для элементов сосудов и аппаратов следует понимать давление, на которое производится их расчет на прочность. Если на элемент сосуда или аппарата действует гидростатическое давление, составляющее пять или более процентов от рабочего давления, то расчетное давление повышают на величину гидростатического давления.
Гидростатическое давление, действующее на элемент сосуда, определяется по формуле
Рг с
g Hс
10 6
, (9.1)
где
– плотность рабочей среды в аппарате; g
– ускорение свободного падения; Hc
– высота среды в аппарате.
Для защиты сосудов и аппаратов от возможного повышения давления выше допустимого, они снабжаются предохранительными устройствами (предохранительными клапанами и др.).
При действии предохранительных клапанов давление в сосуде или аппарате не должно превышать избыточное рабочее давление более чем на 0,05 МПа для сосудов, работающих под давлением до 0,3 МПа, на 15 % – для сосудов под давлением от 0,3 до 6,0 МПа и на 10 % – для сосудов под давлением свыше 6,0 МПа.
При повышении давления в сосуде или аппарате во время
действия предохранительных устройств более чем на 10% по сравнению с рабочим, элементы аппарата должны рассчитываться на давление, равное 90% давления при срабатывании предохранительного устройства.
Давление в сосуде во время действия предохранительного клапана может быть определено по формуле
Рк
, (9.2)
где Рраб - рабочее давление в сосуде.
Расчетное давление в рабочих условиях без учета
гидростатического давления следует определять по формуле
0,9 Рк при Рраб 6,0 МПа
Рр
, (9.3) Рраб
при Рраб
6,0 МПа
а с учетом гидростатического давления
Рр Рг при Рг 0,05 Рраб
Р
. (9.4) Рр
при Рг
0,05 Рраб
Под пробным давлением в сосуде или аппарате следует понимать давление, при котором проводится испытание сосуда или аппарата на прочность и герметичность.
Испытание стальных сварных сосудов и аппаратов должно проводиться пробным давлением, определяемым по формуле
Рпр
, (9.5)
гд0
– допускаемое напряжение для материала сосуда при е температуре 20 С, МПа;
допускаемое напряжение для материала сосуда при – расчетной температуре, МПа.
Под расчетным давлением в условиях испытаний следует понимать давление, которому подвергаются сосуды во время пробного испытания, включая гидростатическое давление, если оно составляет пять и более процентов от пробного давления.
Расчет на прочность элементов аппаратов (обечаек, днищ) для условий испытаний проводить не требуется, если расчетное давление в условиях испытания будет меньше, чем расчетное давление в рабочих условиях, умноженное на 1,35
.
Допускаемые напряжения
Допускаемое напряжение для сталей при расчете по предельным нагрузкам стальных сварных сосудов и аппаратов, работающих при статических однократных нагрузках, определяют по механическим характеристикам сталей с учетом коэффициентов запаса.
Допускаемое напряжение для сталей определяют: для углеродистых и низколегированных сталей по формуле
n
в n
д
R 5
гд R e минимальное значение предела текучести при е – расчетной температуре;
– минимальное значение 0,2 %-ого условного предела текучести при расчетной температуре (напряжение, при котором остаточное удлинение составляет 0,2 %);
R m минимальное значение временного сопротивления – (предела прочности) при расчетной температуре;
105 – среднее значение предела длительной прочности за
105 ч при расчетной температуре;
/ 105 – средний 1 %-ный предел ползучести за 105 ч при расчетной температуре;
–минимальное значение 1 %-ого условного предела текучести при расчетной температуре (напряжение, при котором остаточное удлинение составляет 1 %);
n т коэффициент запаса прочности по пределу
– текучести; n в коэффициент запаса прочности по временному
– сопротивлению (пределу прочности); n д коэффициент запаса прочности по пределу
– длительной прочности; n п коэффициент запаса прочности по пределу – ползучести.
Предел ползучести используют для определения допускаемого напряжения в тех случаях, когда отсутствуют данные по пределу длительной прочности или по условиям эксплуатации необходимо ограничить величину деформации (перемещения).
При отсутствии данных по условному пределу текучести при 1 %–ном остаточном удлинении допускаемое напряжение для аустенитной стали определяют по формуле (9.6).
Допускаемое напряжение для двухслойных сталей
определяется по формуле
|
|
|
|
|
|
|
|
|
|
|
|||
, (9.8)
гд
– допускаемые напряжения при расчетной температуре для е
материалов соответственно основного и плакирующего
(коррозионностойкого) слоев; п – толщины соответственно основного и плакирующего слоев;
C n – прибавка для компенсации коррозии и эрозии материала соответственно основного и плакирующего слоев.
При определении допускаемого напряжения по формуле (9.8) толщина плакирующего слоя принимается минимальной при
, если
, то толщина плакирующего слоя принимается максимальной.
Для сталей, широко используемых в химическом машиностроении, допускаемые напряжения и расчетные значения предела текучести и временного сопротивления приведены в приложениях пособия [1].
В условиях испытания допускаемое напряжение определяют:
для углеродистых и низколегированных сталей
R
e20
или R
20p0,2
, (9.9) n т
для аустенитных сталей
R
20p0,2
или R
20p1,0
, (9.10)
n т
гд R
e
20
минимальное значение предела текучести при е – температуре 20 С;
–
минимальное значение условного 0,2 %–ого предела текучести при температуре 20 С (напряжение, при котором остаточное удлинение составляет 0,2 %);
–
минимальное значение условного 1 %–ого предела текучести при температуре 20 С (напряжение, при котором остаточное удлинение составляет 1 %).
Коэффициенты запаса прочности должны соответствовать значениям, приведенным в таблице 9.1.
Таблица 9.1
Значения коэффициентов запаса прочности
| Условия нагружения |
Коэффициент запаса прочности |
|||
| n т |
n в |
n д |
n п |
|
| Рабочие условия |
1,5 |
2,4 |
1,5 |
1,0 |
| Условия испытания: |
||||
| гидравлические |
1,1 |
– |
– |
– |
| пневматические |
1,2 |
– |
– |
– |
| Условия монтажа |
1,1 |
– |
– |
– |
В случае, если допускаемое напряжение для аустенитных сталей определяют по формуле (9.6), коэффициент запаса прочности n т по пределу текучести R p 0, 2 для рабочих условий следует принимать равным 1,3.
При расчете на прочность сварных элементов сосудов и аппаратов в расчетные формулы следует вводить коэффициент прочности сварных соединений :
–
продольного шва цилиндрической или конической
– обечаек;
–
– кольцевого шва цилиндрической или конической обечаек;
–
– сварных швов колец жесткости;
– – поперечного сварного шва для укрепляющего кольца;
– сварних швов выпуклых и плоских днищ и крышек.
–
Для бесшовных элементов сосудов и аппаратов 1
.
Для определения коэффициента прочности сварных соединений необходимо установить группу сосуда в зависимости от расчетного давления, температуры стенки и характера рабочей среды по таблице 9.2.
Объем контроля сварных соединений сосудов и их элементов радиографическим методом или ультразвуковой дефектоскопией должен соответствовать указанному в таблице 9.3.
Коэффициент прочности сварного шва принимается по таблице
9.4.
Таблица 9.2
Группа сосудов
| Группа сосуда |
Расчетное давление, МПа (кгс/см2 ) |
|
Характер рабочей среды |
| 1 |
Выше 0,07 (0,7) |
Независимо |
Взрывоопасная или пожароопасная или 1, 2 классов опасности по ГОСТ 12.1.007–76 |
| 2 |
Выше 0,07 (0,7) до 2,5 (25) |
Выше 400 |
Любая, за исключением указанной для 1 группы сосудов |
| Выше 2,5(25) до 5,0 (50) |
Выше 200 |
||
| Выше 4,0 (40) до 5,0 (50) |
Ниже минус 40 |
||
| Выше 5,0 (50) |
Независимо |
||
| 3 |
Выше 0,07(0,7) до 1,6 (16) |
Ниже минус 20, выше 200 до 400 |
|
| Выше 1,6 (16) до 2,5 (25) |
До 400 |
||
| Выше 2,5 (25) до 4,0 (40) |
До 200 |
||
| Выше 4,0 (40) до 5,0 (50) |
От минус 40 до 200 |
||
| 4 |
Выше 0,07 (0,7) до 1,6 (16) |
От минус 20 до 200 |
|
| 5а |
До 0,07 (0,7) |
Независимо |
Взрывоопасная или пожароопасная или 1, 2, 3 классов опасности по ГОСТ 12.1.007–76 |
| 5б |
Взрывобезопасная и пожаробезопасная, 4 класса опасности по ГОСТ 12.1.007–76 |
Таблица 9.3
Объем контроля сварных соединений сосудов
| Группа сосуда |
Длина контролируемого участка швов в % от длины каждого шва |
| 1, 2 3 4, 5а 5б |
100 не менее 50 не менее 25 не менее 10 |
Таблица 9.4
Значения коэффициентов прочности сварных швов
| Вид сварного шва |
Коэффициент прочности сварных швов при длине контролируемых швов от общей длины, % |
|
| 100 |
от 10 до 50 |
|
| Стыковой или тавровый с двусторонним сплошным проваром, выполняемый автоматической и полуавтоматической сваркой |
1,0 |
0,9 |
| Стыковой с подваркой корня шва или тавровый с двусторонним сплошным проваром, выполняемый вручную |
1,0 |
0,9 |
| Стыковой, доступный сварке только с одной стороны и имеющий в процессе сварки металлическую подкладку со стороны корня шва, прилегающую по всей длине шва к основному металлу |
0,9 |
0,8 |
| Втавр, с конструктивным зазором свариваемых деталей |
0,8 |
0,65 |
| Стыковой, выполняемый автоматической и полуавтоматической сваркой с одной стороны с флюсовой или керамической подкладкой |
0,9 |
0,8 |
| Стыковой, выполняемый вручную с одной стороны |
0,9 |
0,65 |
При расчете сосудов и аппаратов необходимо учитывать прибавку С к расчетным толщинам элементов сосудов и аппаратов.
Прибавку к расчетным толщинам следует определять по формуле
С С1
С2
С3
, (9.11)
| гд е |
С 1 прибавка для компенсации коррозии и эрозии; – |
| С 2 прибавка для компенсации минусового допуска; – |
|
| С 3 прибавка технологическая. |
–
Прибавка для компенсации коррозии и эрозии принимается с учетом условий эксплуатации, расчетного срока службы, скорости коррозии.
Прибавка С 1 определяется по формуле
С1
Сэ
, (9.12)
гд П скорость проникновения коррозии; е –
срок службы аппарата;
–
Сэ прибавка для компенсации эрозии.
–
Эрозионное воздействие среды (разрушение поверхностного слоя металла под действием ударяющихся в него твердых частиц, капель или потока жидкости или газа) учитывают при значительных скоростях движения среды: жидкостей – более 20 м/с, газов – более 100 м/с или при наличии в среде абразивных частиц.
В курсовом и дипломном проектировании принимают Сэ
0
.
При двухстороннем контакте внутренних элементов сосуда с коррозионными средами прибавка для компенсации коррозии и эрозии должна учитывать сумму скоростей проникновения коррозии с каждой стороны.
Прибавка С 2 принимается по стандартам на прокат в зависимости от толщины листа по таблице
9.5 для двухслойных и по таблице 9.6 для однослойных сталей.
Прибавку С 2 учитывают в том случае, когда ее значение превышает 5 % от номинальной толщины листа.
Технологическая прибавка С
3
предусматривает компенсацию утонения стенки элемента сосуда при технологических операциях – вытяжке, штамповке, гибке и т. п. В зависимости от принятой технологии эту прибавку следует учитывать при разработке рабочих чертежей. В курсовом и дипломном проектировании принимают С
3
0
.
Таблица 9.5 Предельные отклонения и толщина коррозионностойкого слоя двухслойных сталей (в миллиметрах)
| Толщина листа |
Предельное отклонение |
Толщина коррозионностойкого слоя |
Толщина листа |
Предельное отклонение |
Толщина коррозионностойкого слоя |
| 4 5 |
+0,30 –0,50 |
0,7 – 1,1 0,8 – 1,2 |
28 |
|
3,5 – 5,0 |
| 30 |
|
||||
| 6 |
+0,25 –0,60 |
1,0 – 1,6 |
32 |
|
4,0 – 6,0 |
| 8 |
|
2,0 – 3,0 |
34 |
|
|
| 10 |
|
36 |
|
||
| 12 |
|
38 |
|
||
| 14 |
|
40 |
|
||
| 16 |
|
2,5 – 3,5 |
42 |
|
|
| 18 |
|
45 |
|
||
| 20 |
|
48 |
|
||
| 22 |
|
3,0 – 4,0 |
50 |
|
|
| 25 |
|
55 |
|
||
| 26 |
|
60 |
|
Таблица 9.6
Предельные отклонения листового проката из однослойных сталей
в миллиметрах
| Толщина листа |
3 |
4; 5 |
6 |
8 – 12 |
14 – 25 |
26 – 30 |
32 – 34 |
| Предельное отклонение |
|
+0,30 –0,50 |
+0,25 –0,60 |
+0,30 –0,80 |
+1,40 –0,80 |
+1,50 –0,90 |
+1,60 –1,00 |
Продолжение таблицы 9.6
| Толщина листа |
36 – 40 |
42 – 50 |
55; 60 |
65; 70 |
75; 80 |
85; 90 |
95; 100 |
| Предельное отклонение |
+1,70 –1,10 |
+1,80 –1,20 |
+1,80 –1,30 |
+1,80 –1,60 |
+1,80 –2,20 |
+1,9 0 –2,50 |
+2,00 –2,70 |
9.2. Расчет цилиндрических обечаек, нагруженных внутренним избыточным давлением
Расчет толщины стенки однослойной обечайки
Расчетная толщина стенки S p , мм, определяется по формуле
Sp
,
(9.13)
гд P расчетное внутреннее избыточное давление, МПа; е –
D внутренний диаметр обечайки, мм;
–
– допускаемое напряжение для материала обечайки при расчетной температуре, МПа;
– коэффициент прочности продольных сварных швов.
Исполнительную толщину стенки обечайки определяют по формуле
S Sp
C
(9.14)
и округляют до ближайшего большего значения стандартной толщины листа листового проката.
Для принятого значения S рассчитывают допускаемое внутреннее избыточное давление по формуле
. (9.15)
При этом должно выполняться условие P P
.
Расчетные формулы применимы при отношении толщины стенки к диаметру:
![]()
дляобечаеки труб приD200 мм;
0,3 длятруб приD200 мм.
D
Обечайки, изготовленные из двухслойной стали
При расчете аппаратов из двухслойных сталей в качестве первого приближения толщину стенки обечайки следует определять по допускаемому напряжению для материала основного слоя по формулам (9.13) и (9.14). После назначения исполнительной толщины стенки обечайки и определения толщины плакирующего слоя по таблице 9.5 рассчитывается допускаемое напряжение по формуле (9.8). По полученному допускаемому напряжению уточняется толщина стенки по формулам (9.13) и (9.14). Расчет производится до совпадения исполнительной толщины стенки обечайки, определенной расчетом, и принятой.
Допускаемое внутреннее избыточное давление определяется по формуле (9.15).
9.3. Расчет выпуклых днищ
Расчетную толщину стенки днища, мм, определяют по формуле
S
1p
, (9.16)
гд P расчетное внутреннее избыточное давление, МПа; е –
R радиус кривизны в вершине днища по внутренней
– поверхности, мм;
коэффициент прочности сварных швов;
–
допускаемое напряжение материала днища при
– расчетной температуре, МПа.
Радиус кривизны в вершине днища определяют по формуле
D 2
R
. (9.17)
4H
R = D – для стандартных эллиптических днищ с высотой выпуклой части H = 0,25D ; R = 0,5D – для полусферических днищ с H = 0,5D.
Для днищ, изготовленных из одной заготовки, коэффициент прочности сварных швов
=1, для днищ, изготовленных из нескольких заготовок, коэффициент
следует определять по таблицам 9.2 и
9.3.
Исполнительную толщину стенки днища рассчитывают по формуле
S
1
S
1p
C
. (9.18)
Размеры эллиптического днища принимают по стандарту, а исполнительную толщину полусферического днища округляют до ближайшего большего значения стандартной толщины листового проката.
Допускаемое внутреннее избыточное давление рассчитывают по формуле
. (9.19)
При этом должно выполняться условие P P
.
Расчетные формулы для эллиптических днищ применимы при выполнении условий: 0,002
9.4. Расчет конических обечаек и днищ
Рассмотрим расчет соединения цилиндрической и конической обечаек с тороидальным переходом. Такая конструкция часто встречается на практике, так как стандартные конические днища, применяемые в аппаратах, работающих под давлением, имеют отбортовку, т. е. тороидальный переход.
Рис. 9.1. Соединение обечаек с тороидальным переходом
Для соединения обечаек с тороидальным переходом (рисунок 9.1) расчетные длины переходных частей a1 и a2 определяют по формулам:
a1
C
, (9.20)
a2 C , (9.21)
где S т исполнительная толщина стенки тороидального – перехода конической обечайки.
Для предварительного расчета длин переходных частей рекомендуется принять значение S т равным исполнительной толщине стенки цилиндрической обечайки S .
Для конической обечайки с тороидальным переходом расчетный диаметр Dк определяют по формуле
Dк
D 2 r 1
cos 0 7
, a1
sin , (9.22)
где r – внутренний радиус отбортовки конического днища.
Расчетную толщину стенки гладкой конической обечайки, мм, нагруженной внутренним избыточным давлением определяют по формуле
S
кр
, (9.23)
гд P расчетное внутреннее избыточное давление, МПа; е –
D к расчетный диаметр гладкой конической обечайки, мм;
–
коэффициент прочности продольных сварных швов;
–
допускаемое напряжение для материала конической
– обечайки при расчетной температуре, МПа;
половина угла при вершине конической обечайки, – град.
Исполнительную толщину стенки определяют по формуле
S
к
S
кр
С
, (9.24)
и округляют до ближайшего большего значения стандартной толщины листового проката.
После определения исполнительной толщины стенки гладкой конической обечайки при несовпадении полученной толщины S к с предварительно принятой толщиной S т , по формуле (9.20) уточняют расчетную длину переходной части a1 , а по формуле (9.22) – расчетный диаметр гладкой конической обечайки. После этого по формулам (9.23) и (9.24) уточняют исполнительную толщину стенки обечайки. Расчет проводят до совпадения полученной толщины стенки Sк с предварительно принятой толщиной S т .
Допускаемое внутреннее избыточное давление определяют по формуле
P
. (9.25)
Расчетные формулы применимы:
– если половина угла при вершине конического элемента составляет
70 o ;
– при соотношении между толщиной стенки S
1
, диаметром D
и углом
в пределах
0,001 S
1
cos
0,050;
D
– для соединения цилиндрической и конической обечаек с тороидальным переходом при условии
0 r D 0,3
.
Расчет тороидального перехода, а также обечаек без тороидального перехода, с укрепляющим кольцом и с цилиндрической обечайкой меньшего диаметра приведен в пособии 1 и рекомендован для самостоятельного изучения.
9.5. Расчет сферических неотбортованных днищ и крышек
Расчетную толщину стенок крышек и днищ определяют методом последовательных приближений.
Рис. 9.2. Расчетная схема сферического неотбортованного днища
Предварительно толщину стенки следует определять по формуле
S
. (9.26)
где
– коэффициент прочности сварного шва для
сферического сегмента, соединенного сваркой из двух или нескольких частей;
допускаемое напряжение для материала
– сферического сегмента при расчетной температуре.
Исполнительную толщину днища S
1
определяют с учетом прибавок к расчетной толщине. По полученному значению S
1
определяют коэффициент
по формуле
(9.27)
гд D внутренний диаметр цилиндрической обечайки, мм; е –
S исполнительная толщина стенки цилиндрической
– обечайки;
C сумма прибавок к расчетной толщине стенки
– обечайки, мм;
угол между касательной к сферическому сегменту
– (днища) в краевой зоне и вертикалью;
отношение допускаемых напряжений материалов
– цилиндрической обечайки и сферического днища.
Тригонометрические функции определяют по формулам:
![]()
гд
допускаемое напряжение для материала е – цилиндрической обечайки при расчетной
температуре.
Расчетную толщину стенки днища в краевой зоне определяют по формуле
S
,
(9.28)
гд
коэффициент прочности кольцевого сварного шва по е – краю днища.
Если исполнительные толщины стенки днища, определенные по условиям их прочности в центральной и краевой зонах, совпадают, расчет прекращают.
В противном случае расчет продолжают в следующем порядке. Рассчитывают новое значение коэффициента
, исходя из исполнительной толщины стенки в краевой зоне. После этого рассчитывают новое значение исполнительной толщины днища S
и сравнивают его с предыдущим. Расчет производят до совпадения двух последних значений исполнительных толщин стенки днища S1
.
За исполнительную толщину стенки принимают большее из двух значений из условий прочности их в центральной и краевой зонах
S
1
max S
1
; S
1
.
Допускаемое избыточное давление определяют по формуле
P
min P1
; P2
, (9.29)
где P 1 – допускаемое избыточное давление из условия прочности краевой зоны;
P 2 – допускаемое избыточное давление из условия прочности центральной зоны.
Допускаемое избыточное давление из условия прочности краевой зоны определяется по формуле
P1
; (9.30)
Допускаемое избыточное давление из условия прочности центральной зоны определяется по формуле
P2
. (9.31)
Расчетные формулы применимы при отношении толщины стенки днища к радиусу сферы
S
1
C 0,1
R
и значении внутреннего радиуса сферического днища в пределах
0,85D R D.
Для днищ, нагруженных внутренним избыточным давлением, расчетные формулы применимы при дополнительном условии
S
1
C
0,002.
R
9.6. Расчет плоских круглых днищ и крышек
Исполнительную толщину плоских круглых днищ определяют по формуле
S1
S1р
С
, (9.32)
где С
– сумма прибавок к расчетной толщине днища.
Расчетную толщину плоских круглых днищ сосудов и аппаратов, работающих под внутренним избыточным или наружным давлением, рассчитывают по формуле
S1p
, (9.33)
где K – коэффициент, зависящий от конструкции днища; Ko – коэффициент ослабления днищ отверстиями; Dp – расчетный диаметр.
Коэффициент конструкции K и расчетный диаметр D p определяют в зависимости от конструкции днища по таблице 9.7.
Значение коэффициента ослабления Ko для днищ, имеющих одно отверстие, определяют по формуле
Ko
, (9.34)
где d диаметр отверстия в днище.
–
Значение коэффициента Ko для днищ, имеющих несколько отверстий, определяют по формуле
Ko
, (9.35)
где di
диаметр отверстия в днище, i 1 2 3
, , Kn
;
–
n количество отверстий в днищах.
–
Таблица 9.7.
Значения коэффициента K в зависимости от конструкции днищ
| Тип |
Схема |
Условия закрепления |
Коэффициент конструкции |
||||
| 3 |
|
0,25 |
0,45 0,41 |
||||
| 4 |
|
0,5 0,5 S 1
|
0,41 0,38 |
||||
| 9 |
|
max S;0,25S 1
|
S C
|
||||
| 1
|
|||||||
| 10 |
|
0,5 0,5 S 1
0,25S
1
30
o
|
0,41 0,38 |
Коэффициент Ko определяют для наиболее ослабленного диаметрального сечения.
Максимальную сумму для длин хорд отверстий в наиболее ослабленном диаметральном сечении определяют согласно рисунку 9.3 по формуле
. (9.36)
Рисунок 9. 3 Рисунок 9. 4
Для днищ без отверстий коэффициент ослабления Ko принимают равным 1.
Допускаемое давление на плоское днище определяют по формуле
. (9.37)
Формулы для расчета плоских днищ справедливы при выполнении условия
Расчет допускается проводить и при 0,11
, но при этом допускаемое давление, рассчитанное по формуле (9.37) необходимо умножить на поправочный коэффициент
![]()
9.6. Расчет плоских круглых крышек с дополнительным краевым моментом
а б
Рис.9.5. Плоская крышка с дополнительным краевым моментом
а – без паза; б – с пазом (например, под продольную перегородку в распределительной камере теплообменника)
Расчетную толщину плоских круглых крышек с дополнительным краевым моментом, нагруженных внутренним избыточным давлением, определяют по формуле
S1p
, (9.38)
где K6 – безразмерный коэффициент;
D p – расчетный диаметр крышки, равный среднему диаметру прокладки Dсп .
Значение коэффициента ослабления K
o
определяют по формуле (9.34) или по формуле (9.35), если
0,7 Dp
. Отверстия для болтов в расчет не принимают.
K6
, (9.39)
где
– безразмерный коэффициент;
D3
– диаметр болтовой окружности. Значение
определяют по формуле
, (9.40)
где F п реакция прокладки;
–
F бм болтовая нагрузка в условиях монтажа;
–
F Q равнодействующая внутреннего давления.
–
Расчет равнодействующей внутреннего давления FQ ,реакции прокладки F п и болтовой нагрузки Fб будет рассмотрен далее при изучении фланцевых соединений (лекция ).
Для крышки, имеющей паз для перегородки значение коэффициента K6 для определения толщины S1 в месте паза (рисунок 9.5б) рассчитывают с учетом усилия от сжатия прокладки в пазе по формуле
K6
, (9.41)
где S 4 – толщина перегородки (рисунок 9.5б ).
Толщину плоской крышки в месте уплотнения S2 определяют по формуле
S2 , (9.42)
где
. (9.43)
В формуле (9.42) индекс р указывает на то, что величина относится к рабочему состоянию или испытаниям; а индекс м – к состоянию монтажа.
Значение коэффициента K7 определяют по формуле
K7
0 8
, D3
Dсп
1
. (9.44)
Толщину края плоской круглой крышки вне зоны уплотнения S3 (рисунок 9.5а ) определяют по формуле
S3
max K7
Ф 0 6 Ф D
; , 2
C
, (9.45)
где D2 наименьший диаметр наружной утоненной части – крышки, (рисунок 9.5а ).
Исполнительную толщину крышек определяют с учетом прибавки.
Допускаемое давление для плоской круглой крышки с дополнительным краевым моментом определяют по формуле
P
. (9.46)
Контрольные вопросы к лекции 9
1. Как определяется расчетная температура?
2. Понятие рабочего и расчетного давления.
3. Что такое пробное давление?
4. Как определяется гидростатическое давление среды в аппарате и когда оно учитывается при определении расчетного давления?
5. Сформулируйте условие необходимости расчета аппарата в условиях испытания.
6. Какие механические характеристики материала учитывают при определении допускаемых напряжений?
7. Как определяют коэффициент прочности сварных швов?
8. Как формируется прибавка к расчетной толщине стенки?
9. Что такое исполнительная толщина стенки?
10. В чем различие расчета эллиптических и полусферических днищ?
11.Что такое коэффициент ослабления?
12.Как определить наиболее ослабленное диаметральное сечение?
13.В каких местах определяется толщина плоской круглой крышки с дополнительным краевым моментом?
Лекция 10. Тема "Расчет элементов аппаратов, нагруженных наружным давлением"
Рассматриваемые вопросы: Наружное давление в аппаратах. Понятие об устойчивости формы. Длинные и короткие обечайки. Расчет длинных обечаек. Расчет коротких обечаек. Расчет однослойных цилиндрических обечаек. Обечайки, изготовленные из двухслойной стали. Эллиптические и полусферические днища, нагруженные наружным давлением. Сферические неотбортованные днища и крышки, нагруженные наружным давлением. Гладкие конические обечайки, нагруженные наружным давлением.
10.1. Наружное давление в аппаратах
Цилиндрические обечайки корпусов аппаратов, нагруженные наружным давлением или работающие под вакуумом, находятся в менее благоприятных условиях по сравнению с обечайками, нагруженными внутренним избыточным давлением, и требуют большей толщины стенки. В стенках аппарата, работающего под наружным давлением, возникают напряжения сжатия. Наружное давление вызывает нарушение цилиндрической формы обечайки, увеличивая имеющиеся первоначальные отклонения, являющиеся следствием неточности изготовления. При этом в обечайке кроме напряжений сжатия возникают напряжения изгиба.
10.2. Понятие об устойчивости формы. Длинные и короткие обечайки
Потеря работоспособности аппарата, нагруженного наружным давлением, может произойти в результате нарушения прочности или потери устойчивости формы.
Явление потери устойчивости формы происходит при напряжениях меньших предела текучести материала обечайки. Наружное давление, под действием которого начинает искажаться первоначальная форма оболочки, называется критическим. Величина критического давления зависит от геометрических размеров и механических свойств материала обечайки. Под действием критического давления поперечное сечение обечайки приобретает волнообразную форму, причем число волн зависит от отношений S
D
и l
D
и может равняться 2, 3, 4 и т.д.
Цилиндрические обечайки, работающие под наружным давлением, принято делить на длинные и короткие. Критическая длина, разделяющая обечайки на длинные и короткие, определяется по формуле
lкр
, (10.1)
где k 1642 1
, 2
.
Здесь – коэффициент Пуассона, который для стали равен 0,3.
10.3. Расчет длинных обечаек
На длинных обечайках под действием наружного давления возникает две волны сжатия, т.е.
происходит сплющивание.
Рис. 10.1. Сжатие длинных обечаек
Критическое давление определяется по формуле Бресса для стальных обечаек
Р
кр
. (10.2)
В действительности работать при давлениях, близких к критическому, недопустимо. Из-за отклонений формы сосудов, возникших при их изготовлении, потеря устойчивости происходит при давлениях в 1,5 – 2 раза меньших критического. Поэтому рабочее давление определяют как
Р
Рраб
, (10.3)
ny
где n y – коэффициент запаса устойчивости.
10.4. Расчет коротких обечаек
При расчете коротких обечаек учитывается влияние заделки краев обечайки. На коротких обечайках число волн может быть 3, 4 и более (до n = 25).
Рис. 10.2. Сжатие коротких обечаек
Разному числу волн соответствует разное критическое давление. Задача сводится к определению минимального критического давления. Критическое давление для стальных обечаек определяют по формуле Мизеса (Мизес Рихард, 1883-1953, немецкий математик и механик, в 1933 году эмигрировал из фашистской Германии сначала в Турцию, а затем в США, был профессором Гарвардского университета):

где R – внутренний радиус обечайки.
Ориентировочно число волн для получения минимального критического давления можно определить по формуле
n
. (10.5)
или графически:
Рис.10.3. График для определения числа волн
Так как полученное число волн является ориентировочным, то расчет критического давления производят для значений (n
2) и за критическое давление принимают наименьшее из полученных значений давления.
10.5. Расчет однослойных цилиндрических обечаек
Расчетную толщину стенки определяют по формуле
Sp
, (10.6)
P расчетное наружное давление; где –
K2 коэффициент, определяемый по номограмме – (рис.10.4) в зависимости от коэффициентов K1 и K3 .
Коэффициент K1 определяют по формуле
ny P
K1
0 36
, E 10 6
, (10.7)
ny коэффициент запаса устойчивости; где –
E модуль продольной упругости материала обечайки – при расчетной температуре.
Рис.10.4. Номограмма для определения коэффициента K2
Коэффициент запаса устойчивости при расчете сосудов и аппаратов на устойчивость по нижним критическим напряжениям в пределах упругости следует принимать:
–
для рабочих условий ny
2 4
, ;
–
для условий испытаний и монтажа ny
1 8
, .
Коэффициент K3 определяют по формуле
K3
l D
, (10.8)
где l – расчетная длина гладкой обечайки.
Длину примыкающего элемента l3 определяют по формуле
H
для выпуклых днищ ; 3
для конических обечаек
D
l3
max r
sin ; с отбортовкой но не более
, , (10.9) 6 tg
длины конического элемента ;
D для конических обечаек без отбортовки ,
6 tg но не более длины конического элемента ;
где
половина угла при вершине конической обечайки.
–
Исполнительную толщину стенки S определяют по формуле
S Sp
C
. (10.10)
Допускаемое наружное давление определяют по формуле
P
P
, (10.11)
| где |
P – допускаемое давление из условия прочности; П |
| P E – допускаемое давление из условия устойчивости. Допускаемое давление из условия прочности определяется по формуле |
Р
. (10.12) П
Допускаемое давление из условия устойчивости в пределах упругости определяется по формуле
20 8 10 , 6 D E 100 S C 2 5 ,
Р , (10.13)
Е n y B 1 l D
где B1
= minмпп
н
, ; , D D
пп
ь . (10.14)
1 0 9 45 Ч э
пп по l 100 Ч(S - C )пппю
10.6. Обечайки, изготовленные из двухслойной стали
При расчете обечаек из двухслойной стали, нагруженных наружным давлением учитывается только основной слой. В этом случае при определении исполнительной толщины стенки в качестве прибавки на коррозию принимается максимальная толщина плакирующего слоя.
10.7. Эллиптические и полусферические днища, нагруженные наружным давлением
Расчетную толщину стенки приближенно определяют по формуле
S1p
, (10.15)
где K э коэффициент приведения радиуса кривизны – эллиптического днища.
Для предварительного расчета Kэ принимают равным 0,9 для эллиптических днищ и 1,0 – для полусферических днищ. Исполнительную толщину днища определяют по формуле
S1
S1p
C
. (10.16)
После назначения исполнительной толщины определяют расчетное значение коэффициента Kэ по формуле
, (10.17)
где
x . (10.18)
После этого по формуле (10.15) уточняют значение толщины стенки днища. Расчет производят до совпадения исполнительной толщины стенки днища, определенной двумя последними расчетами. Допускаемое наружное давление рассчитывается по формуле
Р
Р
, (10.19)
где допускаемое давление из условия прочности P , (10.20)
П
а допускаемое давление из условия устойчивости в пределах упругости
P E
. (10.21)
10.8. Сферические неотбортованные днища и крышки, нагруженные наружным давлением
Толщину стенки сферического сегмента днища или крышки определяют как и при внутреннем давлении по формулам (9.26) и (9.28) с последующей проверкой по формуле (10.22). Допускаемое наружное давление определяют по формуле
Р
Р
, (10.22)
где – допускаемое избыточное давление из условия прочности краевой зоны;
P допускаемое избыточное давление из условия
Е
– прочности центральной зоны.
Допускаемое наружное давление из условия прочности в центральной зоне определяется по формуле Р
. (10.23) П
Допускаемое наружное давление из условия устойчивости в пределах упругости определяется по формуле
P E
. (10.24)
Коэффициент K определяют по таблице в зависимости от параметра .
Таблица 10.1 Значение коэффициента К
| Расчетные модели |
R Значение коэффициента К при отношении
|
||||||||
| 25 |
50 |
75 |
100 |
150 |
200 |
250 |
300 |
350 и выше |
|
| Днище |
0,33 |
0,19 |
0,17 |
0,15 |
0,13 |
0,12 |
0,12 |
0,11 |
0,11 |
| Крышка |
0,46 |
0,30 |
0,25 |
0,22 |
0,19 |
0,17 |
0,16 |
0,13 |
0,12 |
10.8. Гладкие конические обечайки, нагруженные наружным
давлением
Расчетную толщину стенки приближенно определяют по формуле
Sкр
, (10.25)
где K 2 – безразмерный коэффициент;
P – расчетное наружное давление;
DE – эффективный диаметр конической обечайки.
Коэффициент K2 следует определять по номограмме в зависимости от коэффициентов K1 и K3 .
Коэффициент K1 определяют по формуле (10.7).
Коэффициент K3 определяют по формуле
K3
, (10.26)
DE
где l E – эффективная длина конической обечайки.
Эффективная длина конической обечайки определяется по формуле
D D1
, (10.27)
lE
2 sin
где D 1 – диаметр меньшего основания конической обечайки.

Рисунок 10.3 – Основные размеры конического перехода
Эффективный диаметр конической обечайки
DE
,
(10.28) Для предварительного расчета эффективного диаметра конической обечайки DE рекомендуется принять значение Sк равным исполнительной толщине стенки S цилиндрической обечайки диаметром D , соединяемой с конической обечайкой.
Исполнительную толщину стенки конической обечайки определяют по формуле
Sк
Sкp
C
. (10.29)
При несовпадении полученной толщины конической обечайки с принятой для предварительного расчета толщиной уточняют эффективный диаметр конической обечайки по формуле (10.28), значение коэффициента K3 по формуле (10.26), коэффициента K2 , расчетную толщину стенки по формуле (10.25). Расчеты продолжают до совпадения полученной исполнительной толщины стенки конической обечайки с предварительно принятой.
Допускаемое давление определяют по формуле
P
P
, (10.30)
где P П – допускаемое давление из условия прочности;
P E – допускаемое давление из условия устойчивости;
Допускаемое давление из условия прочности определяют по формуле Р
, (10.31)
П
где Dк – расчетный диаметр гладкой конической обечайки, который определяется по формуле (9.22)
![]()
–
B1
. (10.33)
Контрольные вопросы к лекции 10
1. В чем проявляются отличия при нагружении сосуда внутренним и наружным давлением?
2. Какое давление называется критическим?
3. Как проявляется потеря устойчивости формы?
4. Понятие длинных и коротких обечаек.
5. Как определяется расчетная длина гладкой цилиндрической обечайки?
6. По каким критериям определяется толщина цилиндрической обечайки?
7. Особенности расчета обечаек их двухслойных сталей.
8. Чем отличается расчет эллиптических днищ от полусферических днищ?
9. В каких зонах рассчитывается толщина сферических неотбортованных днищ?
10. Чем отличается расчет конических обечаек от цилиндрических?
Лекция 11. Тема "Аппараты с рубашками"
Рассматриваемые вопросы: Назначение рубашек. Конструкции и область применения неразъемных рубашек. Условия применения расчетных формул. Расчет сосудов с рубашками. Расчет мест соединения рубашки с корпусом.
11.1. Конструкции и область применения неразъемных рубашек
Для нагрева или охлаждения среды в сосудах и аппаратах применяются внутренние и наружные теплообменные устройства.
К внутренним устройствам относятся змеевики, трубные пучки и другие теплообменные элементы.
К наружным теплообменным устройствам относятся рубашки. Рубашка сосуда – теплообменное устройство, состоящее из оболочки, охватывающей корпус сосуда или его часть, и образующее совместно со стенкой корпуса сосуда полость, заполненную теплоносителем. Рубашки могут устанавливаться на вертикальных и горизонтальных аппаратах. Наибольшее применение имеют рубашки на вертикальных аппаратах. Рубашки могут быть неразъемными и съемными. Съемные рубашки предназначены для сосудов, изготовленных из материалов, которые плохо свариваются с углеродистой сталью (чугун, цветные металлы и т.д.). Съемные рубашки также применяются в тех случаях, когда по условиям эксплуатации требуется периодическая чистка и осмотр корпуса под рубашкой.
Неразъемные рубашки привариваются к корпусу сосуда. Неразъемные рубашки являются более простыми по конструкции и получили наиболее широкое применение из-за простоты изготовления и надежности в работе.
По конструкции сосуды с неразъемными рубашками подразделяют на следующие типы:
– сосуды с цилиндрическими рубашками (рис. 11.1); – сосуды с U-образными рубашками (рис. 11.2); – сосуды с рубашками из полутруб (рис. 11.5).
Цилиндрические рубашки применяют для вертикальных стальных сварных сосудов и аппаратов. Внутренний диаметр рубашек – от 1500 до 3100 мм, внутреннее избыточное давление в рубашке – не более 0,6 МПа, температура стенки от минус 70 до плюс 300 °С.
Цилиндрическая рубашка представляет собой сварную цилиндрическую обечайку, концентрично охватывающую цилиндрическую часть корпуса аппарата и приваренную к корпусу аппарата в верхней и нижней части с помощью конуса или кольца.
Рис. 11.1. Сосуды с цилиндрическими рубашками:
а – сопряжение рубашки с корпусом при помощи отбортовок; б – сопряжение рубашки с
корпусом при помощи колец
Внутренний диаметр рубашек с эллипсоидным днищем для вертикальных стальных сварных сосудов и аппаратов составляет от 325 до 3200 мм, внутреннее избыточное давление в рубашке не более 1,6 МПа, температура стенки от минус 70 до плюс 300 °С.
Стальная сварная рубашка с эллипсоидным днищем состоит из цилиндрической обечайки, концентрично охватывающей цилиндрическую часть корпуса аппарата и приваренной к корпусу аппарата в верхней части с помощью конуса или кольца, и эллипсоидного днища. В зависимости от конструкции нижней части корпуса аппарата (без штуцера или со штуцером в нижнем днище) рубашки могут иметь два исполнения:
1 – рубашки без штуцера в нижней части днища корпуса аппарата; 2 – рубашки со штуцером в нижней части днища корпуса аппарата.
Для рубашек со штуцером в нижней части днища корпуса аппарата сопряжение рубашки с днищем корпуса может быть выполнено с помощью отбортовки или через обечайку меньшего диаметра.
а – сопряжение рубашки с корпусом при помощи отбортовок; б – сопряжение рубашки с корпусом при помощи колец
Рис. 11.2. Сосуды с U-образными рубашками
Конические днища рубашек могут иметь угол при вершине 90 или 60°.
Внутренний диаметр рубашек с коническим днищем с углом при вершине 90° вертикальных стальных сварных сосудов и аппаратов составляет от 450 до 3200 мм, внутреннее избыточное давление в рубашке не более 1,6 МПа, температура стенки от минус 70 до плюс 300 °С.
Внутренний диаметр рубашек с коническим днищем с углом при вершине 60° вертикальных стальных сварных сосудов и аппаратов составляет от 450 до 2400 мм, внутреннее давление в рубашке не более 1,6 МПа, температура стенки от минус 70 до плюс 300 °С.
Стальная сварная рубашка с коническим днищем состоит из цилиндрической обечайки, концентрично охватывающей цилиндрическую часть корпуса аппарата и приваренной к корпусу аппарата в верхней части с помощью конуса или кольца, и конического днища. Коническое днище рубашки приваривается к коническому днищу аппарата с помощью отбортовки.
U-образные и цилиндрические рубашки изготовляют с торообразними отбортовками с углами конуса 30 и 45° (рис.11.3а ) и с кольцами (рис.11.3б ) для присоединения к корпусу аппарата. Стандартные рубашки выполняют с отбортовкой с углом 45° и радиусом отбортовки 50 мм.
Рис. 11.3. Сопряжение рубашки с корпусом а – при помощи отбортовки; б – при помощи кольца
Сопряжение рубашки с днищем приведено на рисунке 11.4.
а
б
а – коническое; б – кольцевое
Рис. 11.4. Сопряжение рубашки с днищем
Рубашки из полутруб со змеевиковыми каналами применяют для вертикальных стальных сварных сосудов и аппаратов диаметром от 600 до 3000 мм при внутреннем давлении в рубашке не более 6,3 МПа и температуре стенки от минус 70 до плюс 300 °С.
![]()
![]()
![]()
![]()
Рубашка из полутруб со змеевиковыми каналами представляет собой полость из полутрубы, приваренную по винтовой линии к цилиндрической обечайке корпуса. На днище аппарата полутрубу приваривают по спирали. Теплоноситель подается отдельно в цилиндрическую и донную часть рубашки. Наружный радиус применяемых полутруб для аппаратов с внутренним диаметром от 600 до 1000 мм составляет R
28,5 мм (рисунок 11.6); для аппаратов с внутренним диаметром от 1200 до 3000 применяются полутрубы с наружным радиусом 28,5 и 44,5 мм. Шаг приварки полутруб составляет t
95 мм для труб с R
28,5 мм и t
125мм для труб с R
44,5 мм. Высота h
22 для труб с R
28,5 мм и h
35 мм для труб с R
44,5 мм.
1 – рубашка из полутруб; 2 – отвод; 3 – фланец; 4 – змеевик; 5 – фланец
Рис. 11.5. Сосуды с рубашками из полутруб
Рис. 11.6. Конструктивные элементы рубашек из полутруб
Для интенсификации процесса теплопередачи к корпусу сосуда может привариваться направляющая спираль, позволяющая значительно увеличить скорость движения охлаждающей жидкости. Конструкция рубашки с направляющей спиралью приведена на рис. 11.7.
Рис.11.7. Конструкция рубашки с направляющей спиралью
11.2. Расчет сосудов с рубашками
Введем следующие обозначения для сосудов с рубашками: Ð – расчетное давление в сосуде;
Ð 1 – расчетное давление в рубашке;
D – внутренний диаметр сосуда; D 1 – внутренний диаметр рубашки; S – толщина стенки обечайки сосуда;
S 1 – толщина стенки обечайки рубашки;
–
допускаемое напряжение материала обечайки сосуда при расчетной температуре;
– допускаемое напряжение материала обечайки рубашки при расчетной температуре6
C – сумма прибавок к расчетной толщине стенки обечайки сосуда;
C c – сумма прибавок к расчетной толщине стенки обечайки рубашки.
Условия применения расчетных формул
1.
Расчетные формулы применимы при условии, что в рубашке действует внутреннее избыточное давление P
2
0
.
2. Расчетная температура не превышает следующих значений:
– 380 °С – для углеродистой стали;
– 420 °С – для низколегированной стали; – 525 °С – для аустенитной стали.
3.
При N 103
производят проверку на малоцикловую прочность.
4. Для сосудов с U – образной или цилиндрической рубашкой расчетные формулы применимы при соотношении:
– диаметров
D
1
1 2
, ;
D
– толщины стенки и диаметров
0 001
, ![]()
– толщин стенок
S
1
1 2
, .
S
5. Для сопряжений при помощи конуса расчетные формулы применимы для углов
,
и радиуса отбортовки
r
0
e
0
0 5
, S
1
, 1
cos
где r 0 внутренний радиус кривизны отбортовки для
– конических переходов; e 0 расстояние от середины стенки рубашки до наружной
– стороны стенки сосуда;
угол конического сопряжения.
–
Расстояние e 0 определяют по формуле
e0
0,5 D1
S1
D 2S
.
6. Расчетные формулы для сопряжений применимы при условии полной проварки сварных швов.
7. Расчетные формулы для сопряжения при помощи кольца применимы при исполнительной толщине кольца h 0 равной:
h0
1 5
, S1
äëÿ U î áðàçí î é ðóáàø êè
;
0 5 , D S h0 S1 äëÿ öèëèí äðè÷åñêî é ðóáàø êè .
8. Диаметр окружности сопряжения рубашки с днищем d 1 сосуда согласно рисунку 11.5 должен удовлетворять условию
d1
0 4
, D1
.
При выполнении этого условия расчет сопряжения рубашки с днищем сосуда не проводят.
Порядок расчета
Расчет сосудов с рубашками производят в следующем порядке:
1. Определение расчетных параметров для корпуса сосуда и рубашки.
2. Определение толщин стенок элементов корпуса сосуда сначала по давлению в сосуде, затем по давлению рубашки (для тех элементов, которые испытывают давление рубашки). Сравнение полученных толщин и выбор большего значения толщины.
3. Определение допускаемых давлений для элементов сосуда по окончательному значению толщины стенок элементов.
4. Расчет толщин стенок обечайки и днища рубашки от действия давления в рубашке и определение допускаемого давления.
5.
Проверка условия d
1
0 4
, D
1
и расчет мест соединения рубашки с корпусом сосуда.
Сопряжение рубашки с корпусом сосуда при помощи конуса
Расчетная схема сопряжения рубашки с корпусом сосуда при помощи конуса приведена на рисунке 11.3а
. Угол конуса принимают равным 45
.
Вспомогательные параметры определяют по формулам:
– коэффициент осевого усилия
A
D D1
d12
, (11.1)
D1 2
где d 1 – диаметр окружности сопряжения рубашки с днищем, который принимается по стандарту на рубашки;
– коэффициент, учитывающий расстояние между корпусом сосуда и рубашкой
; (11.2)
– коэффициент радиуса конической отбортовки
, (11.3)
где r 0 – радиус отбортовки сопряжения рубашки с днищем, который принимается по стандарту на рубашки равным 50 мм;
– коэффициент длины сопряжения
(11.5)
; (11.6)
– относительная эффективная несущая длина конуса
. (11.8)
где
– расчетный коэффициент прочности сварного шва сосуда; p1
– расчетный коэффициент прочности сварного рубашки;
– коэффициент прочности сварного кольцевого шва сосуда;
T1 – коэффициент прочности сварного кольцевого шва рубашки.
Коэффициент сопряжения при помощи конуса
B
X
; X
2
; X
3
, (11.9)
где X1 , X2 , X3 – вспомогательные величины.
Вспомогательные величины определяются по формулам:
X1 ; (11.10)
; (11.11)
X3 f4 . (11.12)
Коэффициенты прочности f 1 – f 4 определяют графически или рассчитываю по формулам, приведенным в пособии.
Толщину стенки конуса рассчитывают методом итерации, причем в качестве исходного значения
S 1 при определении вспомогательных параметров по формулам (11.2) – (11.9) берут исполнительную толщину стенки цилиндрической рубашки.
Расчетную толщину стенки конуса определяют по формуле
S1p
, (11.13)
где p1
– коэффициент прочности сварного продольного шва рубашки, обычно принимается равным коэффициенту прочности сварных швов аппарата. Исполнительная толщина стенки конуса
S1
S1p
Cc
.
(11.14)
Исполнительная толщина стенки конуса может получиться больше толщины стенки обечайки рубашки. В этом случае следует повторить расчет тех вспомогательных параметров, которые зависят от значения S 2 и определить новое значение толщины стенки конуса. Расчет продолжают до совпадения предварительно принятой толщины стенки S 2 и полученной в результате расчета толщины стенки конуса.
| 2 |
|
|
|
|
| D
1
|
|
|||
Допускаемое избыточное давление в рубашке
B
. (11.15)
A
Контрольные вопросы к лекции 11
1. Назначение рубашек.
2. Отъемные и неотъемные рубашки. Их преимущества и недостатки.
3. Основные конструкции неотъемных рубашек.
4. Особенности расчета аппаратов с рубашками.
5. Сопряжение рубашек с корпусом сосуда.
Лекция 12. Тема "Расчет цилиндрических обечаек при совместном действии нагрузок нескольких видов"
Рассматриваемые вопросы: Виды нагружений. Расчет цилиндрических обечаек при нескольких видах нагрузок: давлении, осевых сжимающих или растягивающих усилиях, внешнем изгибающем моменте.
12.1. Расчет цилиндрических обечаек при нескольких видах нагрузок: давлении, осевых сжимающих или растягивающих усилиях, внешнем изгибающем моменте
В реальных условиях на элементы корпуса аппарата могут одновременно действовать несколько нагрузок:
– внутреннее давление;
– наружное давление;
– осевое растягивающее усилие;
– осевое сжимающее усилие; – изгибающий момент; – поперечное усилие.
Так, например, на обечайку аппарата с перемешивающим устройством, кроме давления, будет действовать как осевое сжимающее усилие нагрузка от веса перемешивающего устройства и его привода (рисунок 12.1). На обечайки колонных аппаратов, установленных на открытых площадках, кроме давления, действует изгибающий момент от ветровой нагрузки (рисунок 12.2). Усилия от опорных нагрузок на обечайки горизонтальных аппаратов являются примером действия поперечного усилия (рис.12.3). Примером осевого растягивающего усилия может быть вес устройства, например питателя, присоединенного к нижней части аппарата с помощью фланцевого соединения (рисунок
12.4).
Рис.12.1. Аппарат с перемешивающим устройством
Рис.12.4. Горизонтальный аппарат, работающий под вакуумом и его расчетная схема
Нагрузки могут компенсировать друг друга или наоборот, действовать как бы в одном направлении.
При действии внутреннего давления в стенках аппарата возникают напряжения растяжения. Дополнительные напряжения растяжения может вызвать только осевое растягивающее усилие. Поэтому в случае совместного действия внутреннего давления и осевого растягивающего усилия сначала определяют расчетную толщину от действия каждой из нагрузок, а исполнительную толщину определяют по их сумме.
Расчетная толщина стенки от действия осевого растягивающего усилия определяется по формуле
Sp
, (12.1)
где F – расчетное осевое растягивающее усилие;
– коэффициент прочности кольцевого сварного шва.
Исполнительную толщину стенки обечайки без учета нагрузки, возникающей от действия внутреннего давления, определяют по формуле
S S
p
C
(12.2)
и проверяют по допускаемому осевому растягивающему усилию
F
. (12.3)
При этом должно выполняться условие F
![]()
При совместном действии нагрузок толщина стенки обечайки определяется из условия прочности или устойчивости от действия соответствующего давления, а затем проводится проверка условия устойчивости по формуле
1 0
, , (12.4)
где P – расчетное наружное давление; F – расчетное осевое сжимающее усилие;
М –расчетный изгибающий момент;
Q – расчетное поперечное усилие;
Р – допускаемое наружное давление;
F
– допускаемое осевое сжимающее усилие; М
– допускаемый изгибающий момент; Q
– допускаемое поперечное усилие.
Если одна или более из указанных нагрузок отсутствуют, то в формуле (12.4) соответствующее слагаемое не учитывается.
Внутреннее давление и осевое растягивающее усилие в формуле (12.4) не учитываются, так как при их совместном действии с другими нагрузками (осевым сжимающим усилием, изгибающим моментом, поперечным усилием) они создают напряжения противоположного знака, что создает запас прочности.
Все действующие нагрузки, входящие в формулу (12.4) определяются соответствующими методами расчета. Определение расчетного давления рассмотрено в лекции 9. Осевое сжимающее усилие обычно определяется как вес той части аппарата, которая его создает. Изгибающим моментом обычно является момент от действия ветровой нагрузки. Поперечное усилие, вызванное действием опор, будет определено далее при изучении опорных нагрузок в лекции .
Допускаемые нагрузки, входящие в формулу (12.4), рассчитываются по формулам, приведенным ниже.
Допускаемое осевое сжимающее усилие следует рассчитывать по формуле
F
F
, (12.5)
где допускаемое осевое сжимающее усилие F из условия прочности
П
F D S C S C
, (12.6)
П
а допускаемое осевое сжимающее усилие в пределах упругости F E из условия устойчивости
min F ; F , если l D 10
F
E E1 E2
, (12.7)
F E1 , если l D 10
где F E1 – допускаемое осевое сжимающее усилие из условия местной устойчивости в пределах упругости; F E2 – допускаемое осевое сжимающее усилие из условия общей устойчивости в пределах упругости.
Допускаемое осевое сжимающее усилие F E1 определяют по формуле
F E1
, (12.8)
а допускаемое осевое сжимающее усилие F E2 – по формуле
F E2
ny
, (12.9)
где
– гибкость элемента.
Гибкость определяют по формуле:
, (12.10)
где l np – приведенная расчетная длина.
Приведенную расчетную длину l np принимают в зависимости от схемы аппарата.
При этом должно выполняться условие F
![]()
Допускаемый изгибающий момент рассчитывают по формуле
M
M
, (12.11)
где допускаемый изгибающий момент M из условия прочности рассчитывают по формуле
П
М 0 25
, D F
, (12.12)
П П
а допускаемый изгибающий момент M из условия устойчивости в пределах упругости – по
Е
формуле М 0 285
, D F
. (12.13)
Е Е1
При этом должно выполняться условие М
![]()
Допускаемое поперечное усилие рассчитывают по формуле
Q
, (12.14)
Q , (12.15)
П
а допускаемое поперечное усилие Q E из условия устойчивости в пределах упругости
![]()
Контрольные вопросы к лекции 12
1. Какие нагрузки, кроме давления, могут действовать на корпуса аппаратов? Приведите примеры таких нагрузок.
2. Как учитывается одновременное действие нескольких нагрузок?
3. В чем заключается разница расчета на совместное действие нагрузок при внутреннем и наружном
давлении в аппарате?
Лекция 13. Тема "Укрепление отверстий в стенках аппаратов"
Рассматриваемые вопросы: Конструкции укрепляющих элементов. Определение необходимой площади укрепления. Определение основных расчетных величин. Расчетные длины штуцеров. Расчетная ширина зоны укрепления. Коэффициент прочности сварных соединений. Условие укрепления одиночных отверстий. Определение допускаемого давления. Понятие взаимовлияющих отверстий. Учет взаимного влияния отверстий. Последовательность расчета взаимовлияющих отверстий. Укрепление взаимовлияющих отверстий в аппаратах, работающих под внутренним избыточным давлением. Укрепление взаимовлияющих отверстий в аппаратах, работающих под наружным давлением.
13.1. Типовые конструкции укрепления отверстий
В сосудах и аппаратах предусматриваются технологические и резервные штуцера, штуцера для установки контрольно-измерительных и предохранительных устройств, а также люки для доступа внутрь аппарата.
Наличие отверстий в обечайках, переходах и днищах сосудов и аппаратов под штуцера и люки ослабляет их прочность как за счет уменьшения площади поперечного сечения соответствующего элемента, так и за счет концентрации напряжений. Концентрация напряжений имеет явно выраженный местный характер и распространяется на часть детали, находящуюся в непосредственной близости к отверстию.
Увеличение толщины стенки всего элемента для того, чтобы максимальные напряжения не превышали допускаемых, нерационально. Более эффективно компенсировать ослабление, вызванное отверстием, путем укрепления его края утолщением, располагая добавочный материал в зоне возникновения максимальных напряжений, то есть как можно ближе к краю отверстия.
Укрепление отверстий в стенках аппаратов производится избыточной толщиной стенки укрепляемого элемента, штуцера, накладным кольцом и другими способами.
Основным видом укрепления отверстий является укрепление при помощи “избыточной” толщины стенки штуцера. Укрепление отверстия накладным кольцом применяется, как правило, в том случае, если укрепления за счет стенки штуцера недостаточно для обеспечения необходимой прочности. Заготовки накладных колец выполняются чаще всего круглой формы. Укрепляющие кольца изготовляются предпочтительно цельными. Допускается изготовлять их из частей, но не более чем из четырех. При этом сварные швы должны выполняться с проваром на полную толщину кольца. В каждом укрепляющем кольце или каждой его части, если сварка частей производится после установки их на сосуд, должно быть не менее одного контрольного отверстия с резьбой М10 1,5 для пневматического испытания герметичности сварных швов избыточным давлением 0,4 – 0,6 МПа, но не более расчетного давления сосуда. При эксплуатации аппарата контрольное отверстие остается открытым для обнаружения возможной течи. Контрольное отверстие должно располагаться в нижней части кольца или его части по отношению к сосуду, установленному в рабочем положении. Укрепляющие кольца должны прилегать к поверхности укрепляемого элемента. Допускается зазор между поверхностями укрепляющего кольца и укрепляемого элемента не более 3 мм. Зазор контролируется щупом по наружному диаметру укрепляющего кольца. Минимальная толщина укрепляющего кольца составляет 6 мм. Наружный диаметр укрепляющего кольца не должен превышать двух диаметров укрепляемого отверстия. Штуцера привариваются как к обечайке (днищу), так и к укрепляющему кольцу сварным швом со сплошным проваром. Если несколько штуцеров расположены настолько близко друг к другу, что накладные укрепляющие кольца взаимно перекрываются, для них применяется общее накладное кольцо круглой либо овальной формы.
Укрепление отверстия при помощи отбортовки улучшает внешний вид аппарата, однако является более трудоемким по сравнению с вышеописанными конструкциями и не всегда обеспечивает необходимую прочность.
Укрепление отверстий торообразной вставкой обеспечивает высокую прочность и технологичность конструкции и в то же время улучшает внешний вид аппарата.
Рисунок 13.1 – Типовые конструкции укрепления отверстий а , б – вварным штуцером; в – накладным кольцом; г – двумя накладными кольцами; д – отбортовкой; е – торообразной вставкой; ж – вварным укрепляющим кольцом; з – штуцером произвольной формы
Укрепление вварным кольцом обеспечивает достаточную прочность, улучшает внешний вид аппарата, но является технологически трудоемким, поэтому сравнительно редко применяется в химическом аппаратостроении.
Укрепление штуцером произвольной формы обеспечивает высокую прочность, улучшает внешний вид, является достаточно технологичным и применяется для укрепления центральных отверстий в эллиптических, а также любых отверстий в полусферических днищах.
Определение необходимой площади укрепления
Считается, что площадь сечения укрепляющего металла должна быть равна площади сечения удаленного металла за вычетом площади сечения металла допустимого неукрепляемого отверстия (рисунок 13.2)
![]()
Рис.13.2. Определение необходимой площади укрепления
При диаметре штуцера d d
0
площадь удаленного металла за вычетом площади сечения металла допустимого неукрепляемого отверстия равна
2 f S d d0
, (13.1)
где d – внутренний диаметр штуцера; d 0 – диаметр допустимого неукрепляемого отверстия.
Площадь f может быть сформирована разными способами укрепления, т.е. располагаться по штуцеру, корпусу, укрепляющему кольцу.
13.2. Одиночные отверстия
Определение расчетного диаметра одиночного отверстия, не требующего укрепления
Отверстие считается одиночным, если ближайшее к нему отверстие не оказывает на него влияния, что имеет место, когда расстояние между наружными поверхностями смежных штуцеров b
в соответствии с рисунком 13.3 удовлетворяет условию b
C ,
(13.2)
гд
расчетные диаметры укрепляемого элемента по центру е укрепляемых отверстий, мм;
S исполнительная толщина стенки укрепляемого
– элемента (обечайки, перехода или днища), мм;
С сумма прибавок к расчетной толщине стенки
– укрепляемого элемента, мм.
Рис.13.3. Расположение смежных штуцеров
Расчетный диаметр укрепляемых элементов D p определяется по формулам:
– для цилиндрической обечайки и полусферического днища
D ;
(13.3)
– для конической обечайки, перехода или днища
; (13.4)
–
для эллиптического днища при H 0 25
, D
D p , (13.5)
гд D внутренний диаметр цилиндрической обечайки или е – выпуклого днища;
D к внутренний диаметр конической обечайки, перехода
– или днища по центру укрепляемого отверстия
(рисунок 13.4);
H – высота выпуклой части днища без отбортовки; x расстояние от центра укрепляемого отверстия до оси
– эллиптического днища (рисунок 13.5);
половина угла при вершине конической обечайки.
–
Рис.13.4. Размещение штуцера на коническом переходе
Рис.13.5. Размещение штуцера на эллиптическом днище
а – смещенный штуцер; б – штуцер, ось которого расположена по нормали к поверхности днища Расчетный диаметр одиночного отверстия d 0 , не требующего дополнительного укрепления при избыточной толщине стенки сосуда, определяется по формуле
d0
C ,
(13.6)
где S p расчетная толщина стенки укрепляемого элемента.
–
Если расчетный диаметр укрепляемого отверстия d p удовлетворяет условию
d p
d0
,
(13.7)
то дальнейших расчетов укрепления отверстия проводить не требуется, т.е. отверстие не требует укрепления.
Если условие (13.7) не выполняется, необходимо выполнить расчет укрепления отверстия.
Расчетный диаметр отверстия в стенке обечайки, перехода, днища или вварного кольца d p при наличии штуцера с круглым поперечным сечением, ось которого совпадает с нормалью к поверхности в центре отверстия
d p
d 2 Cs
,
(13.8)
гд d внутренний диаметр штуцера; е –
C s сумма прибавок к расчетной толщине стенки штуцера.
–
Расчетный диаметр отверстия для смещенного штуцера на эллиптическом днище (рисунок 13.5а )
dp
.
(13.9)
Для цилиндрических и конических обечаек в случае приварки наклонного штуцера, ось которого расположена в плоскости продольного сечения обечайки (рисунок 13.6б ) расчетный диаметр отверстия определяется по формуле
dp
d 2 Cs
/cos2
,
(13.10)
гд
угол между осью наклонного штуцера и нормалью к е – поверхности цилиндрической или конической обечайки, а также выпуклого днища.
а б
Рис. 13.6. Размещение штуцеров на цилиндрических или конических обечайках
а – смещенный штуцер в площади поперечного сечения обечайки; б – наклонный штуцер
![]()
Для цилиндрических и конических обечаек в случае, когда ось штуцера расположена в площади поперечного сечения обечайки (рисунок 13.6а
), расчетный диаметр отверстия определяется по формуле d p
max d; 0,5 t2 Cs
, (13.11)
гд t длина отверстия в окружном направлении, мм.
е –
Расчетные толщины стенок
Расчетные толщины стенок укрепляемых элементов, кроме толщины стенки эллиптического днища, определяются в соответствии с изложенными ранее методами расчета от действия соответствующего давления.
Расчетную толщину стенки эллиптического днища S p , работающего под внутренним избыточным давлением, определяют по формуле
Sp
,
(13.12)
гд P – расчетное внутреннее избыточное давление в сосуде
е или аппарате;
[ ]– допускаемое напряжение для материала
эллиптического днища при расчетной температуре;
– коэффициент прочности сварных швов днища.
![]()
Если ось сварного шва днища (обечайки) удалена от наружной поверхности штуцера на расстояние более чем три толщины укрепляемого элемента, то коэффициент прочности этого сварного соединения при расчете укрепления отверстий следует принимать равным 1
. В исключительных случаях, когда сварной шов пересекает отверстие или удален от наружной поверхности штуцера на расстояние менее 3 S
, принимают 1
в зависимости от вида и качества шва.
Расчетная толщина стенки штуцера S 1 p , нагруженного внутренним избыточным или наружным давлением, определяется по формуле
S1p
,
(13.13)
где [ ]
1
– допускаемое напряжение для материала штуцера при расчетной температуре;
– коэффициент прочности продольного сварного шва штуцера (для штуцеров, выполненных из бесшовных труб 1
1 0
, ).
Если плоскость, проходящая через продольный шов вальцованного штуцера и ось этого штуцера, образует угол
не менее 60º с плоскостью продольного осевого сечения цилиндрической или конической обечайки в соответствии с рисунком 13.7, коэффициент прочности сварного шва принимают 1
1
. В остальных случаях коэффициент принимают в зависимости от вида и контролируемой длины сварного шва, т.е. по группе аппарата
Рис. 13.7. Учет продольного сварного шва штуцера, вваренного в обечайку
При расчете S 1 p можно предварительно выбрать трубу и определить внутренний диаметр штуцера d по наружному диаметру трубы и толщине стенки трубы, либо приближенно подставить вместо внутреннего диаметра условный проход штуцера. Материал штуцеров принимают обычно такой же, как и корпуса аппарата. При отсутствии в стандартах на трубы или люки данного материала, принимают материал, близкий по свойствам к материалу аппарата. Поэтому прибавку для компенсации коррозии для штуцера принимают равной прибавке для компенсации коррозии для корпуса аппарата (обечайки или днища). Прибавку для компенсации минусового допуска для труб принимают равной 15% от толщины стенки трубы. Для обечаек люков, изготовленных вальцовкой из листового проката, прибавку для компенсации минусового допуска принимают по таблицам для листового проката.
Исполнительную толщину стенки штуцера S 1 , нагруженного внутренним избыточным или наружным давлением, определяют по формуле
S1
S1p
Cs
.
(13.14)
гд C s сумма прибавок к расчетной толщине стенки штуцера.
е –
Толщину стенки трубы принимают из ряда: 3; 3,5; 4; 4,5; 5 и т.д. Предпочтительное применение имеют трубы 57 3; 57 3,5; 89 4; 108 4; 159 6.
13.3.Определение основных расчетных величин
Расчетные длины штуцеров
Расчетные длины внешней и внутренней частей круглого штуцера, участвующие в укреплении отверстия и учитываемые при расчете l 1 p и l 3 p (рисунок 13.8) определяются по формулам:
l1p
;
(13.15) l3p
,
(13.16)
гд S 1 исполнительная толщина стенки штуцера; е –
l 1 – исполнительная длина внешней части штуцера (вылет штуцера или люка); l 3 – исполнительная длина внутренней части штуцера;
C s1 прибавка к расчетной толщине стенки штуцера для – компенсации коррозии и эрозии.
Расчетная ширина зоны укрепления
Ширину зоны укрепления в обечайках, переходах и днищах L o определяют по формуле
Lo
C .
(13.17)
При отсутствии торообразной вставки или вварного кольца
L . (13.18)
Расчетную ширину укрепляющего кольца l 2 p определяют по формуле
l2p
,
(13.19)
где S 2 – исполнительная толщина укрепляющего кольца, мм;
l 2 – исполнительная ширина укрепляющего кольца, мм.
Коэффициент прочности сварных соединений
Если ось сварного шва обечайки (днища) удалена от наружной поверхности штуцера на расстояние более чем три толщины укрепляемого элемента3S
, то коэффициент прочности этого сварного соединения при расчете укрепления отверстий следует принимать 1
. Если сварной шов удален от наружной поверхности штуцера на расстояние менее 3S
, принимают 1
в зависимости от вида и качества сварного шва.
13.4. Условие укрепления одиночных отверстий
Расчетная схема укрепления отверстия приведена на рисунке 13.8.
![]()
Расчет укрепления отверстия основан на принципе компенсации. Для формулирования принципа рассматривают площади сечения “избыточного” металла внешней части штуцера A
1
, укрепляющего кольца A
2
, внутренней части штуцера A
3
, укрепляемого элемента A
4
и компенсируемую площадь сечения металла, удаленного из стенки сосуда для вварки штуцера A
. Под “избыточным” понимают необходимый для укрепления отверстия металл в сечении стенки укрепляемого элемента (обечайки, днища) и штуцера, расположенный вне соответствующих расчетных толщин Sp
C
, S1
p
Cs
, S
1
C
s
C
s1
и не выходящий за границы зоны укрепления l
p
, l
1
p
, l
2
p
, l
3
p
.
Рис. 13.8. Расчетная схема укрепления одиночного отверстия
Условие укрепления одиночного отверстия имеет вид
A1
A2
A3
A4
A.
(13.20)
“Избыточный” металл внешней части штуцера A 1 определяют по формуле
A1
l1p
S1
S1p
Cs 1
,
(13.21)
| гд е |
l 1p расчетная длина внешней части круглого штуцера, – участвующая в укреплении отверстия; |
| S 1 исполнительная толщина стенки штуцера; – |
|
| S 1p расчетная толщина стенки штуцера; – |
|
| C s сумма прибавок к расчетной толщине внутренней – части стенки штуцера; |
отношение допускаемых напряжений материалов
– штуцера и укрепляемого элемента.
Площадь поперечного сечения укрепляющего кольца A 2 , участвующую в укреплении отверстия, определяют по формуле
A2
,
(13.22)
гд l 2 p расчетная ширина укрепляющего кольца; е – S 2 исполнительная толщина укрепляющего кольца;
–
отношение допускаемых напряжений укрепляющего
2
– кольца и укрепляемого элемента.
“Избыточный” металл внутренней части штуцера A 3 определяют по формуле
A3
l3p
S1
Cs
Cs1 1
,
(13.23)
гд l 3p расчетная длина внутренней части круглого штуцера, е – участвующая в укреплении отверстия; S 1 исполнительная толщина стенки штуцера;
–
C s1 прибавка для компенсации коррозии и эрозии к – расчетной толщине стенки штуцера.
“Избыточный” металл укрепляемого элемента A 4 , участвующий в укреплении отверстия, определяют по формуле
A4
lp
S Sр
C ,
(13.24)
гд lp расчетная ширина зоны укрепления в окрестности е – штуцера или торообразной вставки;
S исполнительная толщина стенки укрепляемого – элемента;
S p расчетная толщина стенки укрепляемого элемента;
–
C сумма прибавок к расчетной толщине стенки – укрепляемого элемента.
Компенсируемую площадь отверстия A определяют по формуле
A 0 5
, d
p
dop
Sp
,
(13.25)
гд d p расчетный диаметр отверстия; е – d op расчетный диаметр.
–
Расчетный диаметр определяется по формуле
dop
0 4
, D
p
S C .
(13.26)
Отношения допускаемых напряжений определяются по формулам:
– для штуцера
;
(13.27)
– для укрепляющего кольца
, (13.28)
где , [ ]
1
, [ ]
2
– допускаемые напряжения для материалов соответственно укрепляемого элемента, штуцера и укрепляющего кольца при расчетной температуре.
Предпочтительной схемой укрепления является укрепление без накладного кольца, т.е. с помощью избыточной толщины стенки штуцера. Поэтому условие укрепления (13.20) сначала проверяется для схемы укрепления без использования накладного кольца. Если условие укрепления не выполняется при принятых толщинах стенок штуцера и укрепляемого элемента, то для выполнения условия увеличивают толщину стенки штуцера до возможной величины (это возможно при небольшой разнице левой и правой части неравенства). Если в условии укрепления левая часть неравенства значительно превосходит правую, то в этом случае применяют накладное кольцо, площадь которого и определяется разницей левой и правой части неравенства.
Определение допускаемого давления
Допускаемое внутреннее избыточное давление P определяется по формуле
2 K
[ ]P V , (13.29)
где K 1 – безразмерный коэффициент;
V – коэффициент понижения прочности. Коэффициент K 1 принимают равным

гд
– коэффициент прочности сварных соединений обечаек и
е днищ;
1
коэффициент прочности продольного сварного – соединения штуцера.
Если укрепленный элемент работает под наружным давлением, то допускаемое давление определяется по формуле
P
P
,
(13.31)
гП – допускаемое наружное давление в пределах пластичности, д определяемое как допускаемое внутреннее избыточное е давление для обечайки (днища) с отверстием по формуле
(13.29);
E – допускаемое наружное давление в пределах упругости для обечайки (днища) без отверстий (см. лекцию 10): по формуле (10.13) для цилиндрической обечайки
![]()
по формуле (10.21) для выпуклых днищ
P E
.
13.5. Учет взаимного влияния отверстий Если не выполнено условие
![]()
Рис. 13.9. Расчетные схемы укрепления взаимовлияющих отверстий
а – при размещении отверстий на цилиндрической обечайке; б – при размещении отверстий по
нормали к поверхности; в – при размещении отверстий со смещенными штуцерами
13.6. Последовательность расчета взаимовлияющих отверстий
Укрепление отверстий в аппаратах, работающих под внутренним избыточным давлением
Расчет таких отверстий выполняется следующим образом:
1) для каждого из этих отверстий проверяется условие укрепления и выполняется, если необходимо, укрепление отверстий;
2) проверяется необходимость укрепления перемычки между отверстиями, для чего должно быть определено допускаемое давление для перемычки P в , по формуле
P в
V ,
(13.32)
гд V 1 коэффициент понижения прочности. е –
Если допускаемое давление для перемычки меньше расчетного давления
Р Р
, в
то производят укрепление взаимовлияющих отверстий общим накладным кольцом либо увеличивают толщину стенки укрепляемого элемента (обечайки или днища).
При раздельном укреплении каждого отверстия коэффициент понижения прочности может быть определен по формуле

Параметры с одним штрихом и двумя штрихами в формуле (13.33) относятся соответственно к элементам укрепления первого и второго отверстия.
Если ось сварного шва обечайки (днища) удалена от наружных поверхностей обоих штуцеров более чем на три толщины стенки укрепляемого элемента, 3 S
, и не пересекает перемычку (рисунок 13.10), коэффициент прочности сварного шва в формулах (13.32–13.34) следует принимать 1
. В остальных случаях коэффициент
принимают в зависимости от вида и объема контролируемых швов, т.е. по группе аппарата.
Коэффициенты прочности продольных сварных швов штуцеров принимают равными
1
и
![]()
1
, если соответствующие сварные швы составляют на окружности штуцеров с линией, соединяющей центры отверстий (рисунок 13.10) центральные углы не менее 60°. В остальных случаях принимают 1
в зависимости от вида и объема контролируемых швов.
Рис.13.10. Размещение продольных сварных швов на смежных штуцерах, вваренных в обечайку
При совместном укреплении двух взаимовлияющих отверстий общим накладным кольцом коэффициент понижения прочности определяют по формуле

гд L 2 расчетная ширина зоны укрепления при использовании е – общего укрепляющего кольца для двух отверстий, мм.
Расчетная ширина зоны укрепления L 2 определяется по формуле
L2
min b l
; 2p
l2p
.
(13.35)
Коэффициент K 3 для цилиндрических и конических обечаек определяется по формуле
K3
0 5
, 1
cos2
,
(13.36)
где
– угол, определяемый в соответствии с рисунком 13.3.
Таким образом, для отверстий расположенных на одной направляющей обечайки 0
и K
3
1
.
![]()
Для отверстий, расположенных в сечении, перпендикулярном оси обечайки, 90
o
и K
3
0 5
, . Для выпуклых днищ принимают K
3
1
.
Рис.13.11. Совместное укрепление взаимовлияющих отверстий
а – круглым накладным кольцом; б – кольцом произвольной формы
Укрепление отверстий в аппаратах, подверженных наружному давлению
Расчет укрепления взаимовлияющих отверстий в аппаратах, подверженных наружному давлению, проводится для каждого из этих отверстий отдельно так же, как и при внутреннем давлении.
Допускаемое наружное давление определяется следующим образом.
Определяют допускаемое давление из условия прочности для каждого из отверстий по формуле (13.29)
[ ]P 1,2 2 K 1 S C [ ] V
D p S C V
Затем определяют допускаемое давление для перемычки по формуле (13.32)
P
в
2 K
1
S C V
1
.
0 5 , Dp Dp S C V1
Меньшее из полученных значений принимается за допускаемое давление из условия прочности
Р min P ; P ; Р . (13.37)
П 1 2 в
Допускаемое давление в пределах упругости определяют для обечайки или днища без отверстий (см. лекцию 10):
по формуле (10.13) для цилиндрической обечайки
Р Е
по формуле (10.32) для конических обечаек и днищ
по формуле (10.21) для выпуклых днищ
Допускаемое наружное давление определяют по формуле
При невыполнении условия прочности укрепление производится аналогично укреплению при
внутреннем избыточном давлении.
Контрольные вопросы к лекции 13
1. Почему необходимо укрепление отверстий в стенках аппаратов?
2. Какими конструктивными элементами выполняют укрепление отверстий?
3. Как определяется площадь, подлежащая компенсации?
4. Какие отверстия считаются одиночными?
5. Понятие диаметра отверстия, не требующего укрепления.
6. Как определяется расчетный диаметр отверстия?
7. Как определяется расчетный диаметр укрепляемого элемента?
8. Как определяется коэффициент прочности сварных соединений для штуцера и укрепляемого элемента?
9. Условие укрепления одиночного отверстия.
10. Как определяются площади, входящие в условие укрепления?
11. В каком случае отверстия считаются взаимовлияющими?
12. Что такое перемычка?
13. Как конструктивно выполняют укрепление взаимовлияющих отверстий?
14. В какой последовательности выполняют расчет укрепления взаимовлияющих отверстий при внутреннем избыточном давлении?
15. В чем заключаются особенности расчета укрепления взаимовлияющих отверстий при наружном
давлении?
Лекция 14. Тема "Конструкции и расчет фланцевых соединений"
Рассматриваемые вопросы: Конструкции фланцевых соединений. Требования, предъявляемые к разъемным соединениям. Типы фланцевых соединений. Нагрузки, действующие во фланцевых соединениях. Опасные сечения. Определение расчетных параметров. Расчет нагрузок. Расчет болтов (шпилек). Расчет прокладок. Расчет фланцевого соединения на прочность. Расчет фланцевого соединения на жесткость. 14.1. Конструкции фланцевых соединений
Требования, предъявляемые к разъемным соединениям
К разъемным соединениям предъявляют следующие требования:
– герметичность при заданной температуре и давлении;
– достаточная прочность и жесткость;
– допустимость быстрой и многократной сборки и разборки; – технологичность изготовления;
– взаимозаменяемость.
Конструкция фланцевого соединения
Всем этим требованиям удовлетворяют фланцевые соединения – одно из самых распространенных соединений в машиностроении и аппаратостроении.
Фланцевое соединение включает в себя два фланца или фланец с крышкой (заглушкой) с прокладкой между ними, соединенных болтами или шпильками. Фланцы, крышки, заглушки и прокладки стандартизованы по условному проходу или диаметру и условному давлению. Весь непрерывный ряд размеров фланцев по диаметрам и давлению разбит на ряд условных (номинальных) давлений и условных проходов (номинальных размеров). Условный проход определяет не только размеры трубы, но и размеры предназначенного для нее фланца. Величина условного прохода определяет наружный диаметр трубы, а ее внутренний диаметр зависит от толщины стенки трубы. Так, для труб с условным проходом DN
50 наружный диаметр трубы равен 57 мм, а внутренний диаметр изменяется в зависимости от толщины стенки трубы.
Ряд условных проходов, в мм: 10, 15, 20; 25, 32, 40; 50, 65, 80, 100, 125; 150, (175); 200 и т.д. Ряд условных давлений для арматурных фланцев, в МПа: 0,1; 0,25; 0,6; 1,0; 1,6; 2,5; 4,0; 6,3; 8,0; 10; 16; 20. Ряд условных давлений для аппаратных фланцев, в МПа: 0,3; 0,6; 1,0; 1,6; 2,5; 4,0; 6,3; 8,0; 10; 16.
Введение понятий условного прохода и условного давления позволило свести к минимуму все многообразие размеров труб и фланцев. Все типы фланцев из соображений взаимозаменяемости на данный условный проход и условное давление имеют одинаковые присоединительные размеры. Фланцы выбираются по расчетной температуре и расчетному давлению на ближайшее большее условное давление.
Типы фланцевых соединений
По назначению
различают фланцы аппаратные и фланцы для арматуры и трубопроводов. Фланцы этих двух типов регламентируются разными стандартами и отличаются по конструкции, размерам и применению. Базовым размером для аппаратных фланцев является внутренний диаметр. Аппаратные фланцы изготовляют с внутренним диаметром не менее 400 мм и применяют для разъемов корпусов аппаратов и люков. Базовым размером фланцев для арматуры и трубопроводов является условный проход (номинальный размер). Фланцы для арматуры и трубопроводов изготовляют с условным проходом DN
10мм и более и применяют в качестве фланцев штуцеров аппаратов и соединений трубопроводов.
По конструкции фланцы разделяют на:
– фланцы плоские приварные;
– фланцы приварные встык;
– свободные фланцы на приварном кольце.
1, 2 – фланцы; 3 – болт; 4 – гайка; 5 – прокладка; 6 – втулка (обечайка)
Рис. 14.1. Конструкции плоских приварных аппаратных фланцев
а – с гладкой уплотнительной поверхностью; б – типа "выступ-впадина"; в –типа "шип-паз"
1, 2 – фланцы; 3 – шпилька; 4 – гайка; 5 – прокладка Рис. 14.2. Конструкции приварных встык аппаратных фланцев
а – типа "выступ-впадина"; б – типа "шип-паз"; в – с уплотнительной поверхностью под прокладку
восьмиугольного сечения
1 , 2 – фланцы; 3 – прокладка; 4 – болт; 5 – гайка; 6 – патрубок
Рис. 14.3. Конструкции плоских приварных фланцев для арматуры и трубопроводов а – с соединительным выступом (с гладкой уплотнительной поверхностью); б – типа "выступ-
впадина"
1, 2 – фланцы; 3 – прокладка; 4 – болт (шпилька); 5 – гайка
Рис. 14.4. Конструкции приварных встык фланцев для арматуры и трубопроводов
а – с соединительным выступом; б –типа "выступ-впадина"; в – типа "шип-паз"; г – с
уплотнительной поверхностью под прокладку овального сечения
1, 2 – фланец; 3 – прокладка линзовая; 4 – шпилька; 5 – гайка
Рис. 14.5. Фланцевое соединение с приварными встык арматурными фланцами и уплотнительной поверхностью под линзовую прокладку
14.2. Выбор конструкции фланцев, уплотнительной поверхности и материалов для элементов фланцевого соединения
Фланцы плоские приварные и приварные встык могут быть аппаратными и для трубопроводов, а свободные фланцы на приварном кольце – только для арматуры и трубопроводов. Плоский приварной фланец представляет собой плоское кольцо, приваренное к краю обечайки или трубы. Плоские приварные аппаратные фланцы применяют при условном давлении до 1,6 МПа включительно и температуре от минус 70 до плюс 300 °С. Плоские приварные фланцы для арматуры и трубопроводов применяют при условном давлении до 2,5 МПа. Фланец приварной встык имеет коническую втулку и приваривается к обечайке или трубе стыковым швом. Эти фланцы применяются при более высоких нагрузках, чем плоские приварные фланцы. Фланцы аппаратные приварные встык рекомендуется применять при условном давлении до 6,3 МПа с неметаллическими прокладками и до 16 МПа с металлической прокладкой при температуре от минус 70 до плюс 600 °С. Фланцы приварные встык для арматуры и трубопроводов применяют при условном давлении до 20 МПа. Аппаратные фланцы имеют круглую форму, арматурные фланцы могут изготовляться круглыми и квадратными.
Свободный фланец состоит из свободного кольца и кольцевого бурта, привариваемого к трубе. Преимуществами свободных фланцев являются легкое совмещение отверстий для болтов при сборке соединений путем поворота фланца и возможность изготовления кольца фланца из другого материала (например, более прочного или более дешевого, чем материал труб). Свободные фланцы применяют при давлениях не более 2,5 МПа.
1, 2 – фланцы; 3 – прокладка; 4 – болт (шпилька); 5 – гайка; 6 –труба; 7,8 – кольца Рис. 14.6. Конструкция свободных фланцев на приварном кольце а – с соединительным выступом; б – типа "выступ-впадина"
Фланцы могут иметь различную форму уплотнительных поверхностей:
– гладкая уплотнительная поверхность (или с соединительным выступом);
– "выступ-впадина";
– "шип-паз";
– под металлическую прокладку восьмиугольного или овального сечения; – под линзовую прокладку (только для арматурных фланцев).
Плоские приварные фланцы изготовляют с гладкой уплотнительной поверхностью, поверхностью типа "выступ-впадина" и "шип-паз". Фланцы приварные встык изготовляют с уплотнительными поверхностями типа "выступ-впадина", "шип-паз" и под металлическую прокладку восьмиугольного (для аппаратных фланцев) или овального сечения и линзовую прокладку (для фланцев арматуры и трубопроводов).
Форма уплотнительной поверхности выбирается по свойствам рабочей среды, температуре и давлению (т.е. по группе аппарата). Фланцы с гладкой уплотнительной поверхностью не применяют для аппаратов 1 и 2 групп. Фланцы с уплотнительной поверхностью типа "шип-паз" рекомендуются для прокладок, которые необходимо помещать в замкнутый объем и для герметизации сред с высокой проникающей способностью, например, для высокотемпературных органических теплоносителей. Фланцы приварные встык с уплотнительной поверхностью под металлическую прокладку восьмиугольного сечения рекомендуются при условном давлении от 6,3 до 16,0 МПа.
Фланцы могут быть изготовлены из однородного материала (цельные) или из двух материалов (облицованные или наплавленные). Арматурные фланцы изготовляются только цельными. Аппаратные фланцы из недорогих углеродистых и низколегированных сталей изготовляют цельными, а фланцы из нержавеющих коррозионностойких сталей изготовляют цельными только при небольших размерах. Фланцы больших диаметров изготовляют составными, при этом несущая часть фланца выполняется из недорогих углеродистых и низколегированных сталей, а соприкасающиеся со средой поверхности защищают облицовкой или наплавкой из коррозионностойкой стали. Материал фланца выбирают по стандарту на фланцы, такой же как материал корпуса или трубы или ближайший по свойствам.
Рис. 14.7. Конструкции плоских приварных фланцев, облицованных и наплавленных коррозионностойкой сталью а – облицованный листом из коррозионностойкой стали; б – наплавленный
коррозионностойкой сталью
Рис. 14.8. Конструкции приварных встык фланцев, облицованных и наплавленных коррозионностойкой сталью а – облицованный листом из коррозионностойкой стали; б – наплавленный коррозионностойкой
сталью
Материал прокладок выбирается в зависимости от свойств рабочей среды, температуры и давления. Для изготовления прокладок используют неметаллические материалы (паронит, фторопласт, картон асбестовый, резину и др.), металлы (стали марок 08, 08Х13, 08Х18Н10Т, алюминий, медь и др.). Прокладки могут быть комбинированными – асбест в металлической обкладке, полимеры в сочетании с металлами и др.
Рис. 14.9. Типы прокладок
а – плоская; б – круглого сечения, в – асбометаллическая; г – спирально-навитая; д – овального сечения; е – восьмиугольного сечения; ж – зубчатая; з – линзовая
Рис. 14.10. Плоская прокладка
Рис. 14.11. Прокладка овального сечения
Рис. 14.12. Прокладка восьмиугольного сечения
Рис. 14.13. Линзовая прокладка
Рис. 14.14. Прокладка из терморасширенного графита
1 – лента металлическая; 2 – лента наполнителя; 3 – наружное кольцо; 4 – внутреннее кольцо
Рис.14.15. Типы спирально-навитых прокладок
а – основных типов А и Б (без ограничительных колец); б – типа В (с наружным ограничительным кольцом); в – типа Г (с внутренним ограничительным кольцом); г – типа Д (с внутренним и наружным ограничительными кольцами)
Общая классификация фланцев по назначению, конструкции и форме уплотнительной поверхности приведена в табл. 14.1.
Таблица 14.1 Классификация фланцев
| По назначению |
Фланцы аппаратные |
Фланцы для арматуры и трубопроводов |
|||
| По конструкции |
Круглые |
Круглые или квадратные |
|||
| Цельные, наплавленные, облицованные |
Цельные |
||||
| Плоские приварные |
Приварные встык |
Плоские приварные |
Приварные встык |
Свободные на приварном кольце |
|
| С гладкой уплотнительной поверхностью (с соединительным выступом) |
+ |
– |
+ |
+ |
+ |
| Выступ-впадина |
+ |
+ |
+ |
+ |
+ |
| Шип-паз |
+ |
+ |
+ |
+ |
+ |
| Под восьмиугольную металлическую прокладку (или овальную) |
– |
+ |
– |
+ |
– |
| Под линзовую прокладку |
– |
– |
– |
+ |
– |
14.3. Нагрузки, действующие во фланцевых соединениях.
Опасные сечения
Не смотря на конструктивную простоту фланцевого соединения, в процессе эксплуатации в нем возникают сложные пространственные деформации. При расчете необходимо учитывать, что все детали соединения связаны между собой, но при этом каждая деталь обладает определенной прочностью и жесткостью, что определяет нагрузки и деформации каждой детали и соединения в целом.
Фланцевые соединения обычно нагружены внутренним избыточным или наружным давлением, а также, в ряде случаев, осевыми силами и изгибающими моментами. Значительные нагрузки на фланцы создаются болтами в условиях затяжки соединения. При повышенной температуре среды в аппарате элементы фланцевого соединения нагреваются неодинаково, при этом температура болтов устанавливается обычно ниже температуры фланцев. Вследствие теплового расширения деталей фланцевого соединения в болтах (шпильках) могут возникать значительные температурные усилия.
Таким образом, на фланцевое соединение действуют следующие нагрузки:
– внутреннее или наружное избыточное давление;
– осевые силы;
– изгибающие моменты;
– усилия затяжки болтов; – температурные усилия.
В результате воздействия внешних нагрузок в диаметральных сечениях фланца возникают изгибающие моменты, под действием которых втулка (обечайка) будет находиться в напряженном состоянии. Если втулка цилиндрическая (плоский приварной фланец), опасным сечением является сечение в месте приварки фланца к обечайке. Если втулка фланца коническая (фланец приварной встык), опасными являются сечения в месте соединения плоскости фланца с втулкой и втулки с обечайкой. В указанных сечениях напряжения возникают в осевом (меридиональные напряжения) и тангенциальном (кольцевые или окружные напряжения) направлениях.
14.4. Последовательность расчета фланцевых соединений
Фланцевое соединение рассчитывают на прочность, жесткость (герметичность) и малоцикловую усталость.
Расчет фланца на прочность заключается в определении эквивалентных напряжений в опасных сечениях и сравнении этих напряжений с допускаемыми напряжениями.
Расчет фланца на жесткость (герметичность) заключается в определении угла поворота фланца и сравнения его с допускаемой величиной угла поворота.
Расчет фланцевых соединений производится в следующей последовательности:
1. Определяется тип фланца (плоский приварной или приварной встык) по давлению, температуре и диаметру.
2. Определяется тип уплотнительной поверхности по свойствам рабочей среды или группе аппарата.
3. Выбираются фланцы (крышка) по соответствующим стандартам и определяются их размеры (вычерчивается эскиз).
4. Уточняется материал фланца, крышки, болтов или шпилек, прокладки.
5. Выбирается прокладка по соответствующему стандарту и определяются ее размеры.
6. Определяют расчетную температуру элементов фланцевого соединения.
7. Определяют допускаемые напряжения для материала болтов и фланцев.
8. Рассчитывают податливости элементов фланцевого соединения.
9. Определяют коэффициент жесткости фланцевого соединения.
10. Производят расчет нагрузок.
11. Выполняют расчет болтов на прочность.
12. Выполняют расчет мягких прокладок на смятие.
13. Выполняют расчет фланца на прочность.
14. Выполняют расчет фланца на жесткость. 15. При необходимости выполняют расчет на малоцикловую усталость.
14.5. Определение расчетных параметров
Расчетные температуры элементов фланцевого соединения
Расчетные температуры элементов фланцевого соединения зависят от расчетной температуры аппарата и наличия теплоизоляции.
Таблица 14.2
Расчетные температуры элементов фланцевого соединения
| Фланцы изолированные |
Фланцы неизолированные |
||
| tф |
t б |
tф |
t б |
| t |
0 97 , t |
0 96 , t |
0 85 , t |
t расчетная температура стенки аппарата, °С;
–
t ф расчетная температура фланца, °С;
–
t б расчетная температура болтов (шпилек), °С.
–
Допускаемые напряжения
Допускаемые напряжения для материалов болтов (шпилек) определяются по формулам:
если расчетная температура болтов (шпилек), изготовленных из углеродистых сталей не превышает 380 °С, низколегированных – 420 °С, аустенитных – 525 °С
Re ; (14.1)
[ ]б
n т
если расчетная температура болтов (шпилек) превышает указанную выше
R R R
[ ]
б
min e
; m 10
/
5
; p1 0 10
, / 5
, (14.2) n
т n
д n
п
где R e – минимальное значение предела текучести материала болтов (шпилек) при расчетной температуре, МПа;
105 – среднее значение предела длительной прочности за 105 ч при расчетной температуре, МПа;
0 10 / 5 – средний 1%-ный предел ползучести за 105 ч при расчетной температуре, МПа;
n т – коэффициент запаса прочности по пределу текучести; n д – коэффициент запаса прочности по пределу длительной прочности; n п – коэффициент запаса прочности по пределу ползучести.
Коэффициенты запаса прочности по пределу текучести приведены в таблице 14.3.
Коэффициент запаса прочности по пределу длительной прочности следует принимать равным n
д
1 8
, .
Коэффициент запаса прочности по пределу ползучести принимается равным n
п
1 1
, .
Таблица 14.3 Значение коэффициента запаса прочности по пределу текучести
| Материал болтов (шпилек) |
Коэффициент запаса прочности по пределу текучести n т |
|||
| рабочие условия |
условия испытания |
|||
| затяжка не контролиру-ется |
затяжка контролиру-ется |
затяжка не контролиру-ется |
затяжка контролиру-ется |
|
| Углеродистые стали при:
|
2,6–2,8 |
2,4 |
2,1 |
1,8 |
|
|
2,3 |
2,1 |
1,7 |
1,6 |
| Аустенитные стали |
1,9 |
1,8 |
1,4 |
1,3 |
R т – минимальное значение временного сопротивления (предела прочности) материала болтов
(шпилек) при расчетной температуре.
Допускаемые напряжения для наиболее распространенных материалов болтов (шпилек) приведены пособии 2 .
Допускаемые напряжения материала фланца [ ] и [ ]20
принимаются пособию [1].
Дальнейшие расчеты рассмотрим для плоских приварных фланцев для опасного сечения S 0 .
Расчет фланцев приварных встык производится аналогичным образом, но для двух опасных сечений: S 0 и S 1 . Последовательность расчета и расчетные формулы для приварных встык фланцев приведены в пособии [2].
Расчетная схема плоских приварных фланцев приведена на рис. 14.16.
Допускаемые напряжения для материала плоских приварных фланцев в сечении толщиной S 0
(рис.14.16) при расчете на статическую прочность:
в рабочих условиях
[ ] ; (14.3)
в условиях затяжки
[ ; (14.4)
в условиях испытания
, (14.5)
где R
p0 2
, , R20
p0 2
,
минимальное значение условного предела текучести материала фланца соответственно при расчетной и температуре 20 °С, МПа;
R
m
, R
m
20
минимальное значение временного сопротивления (предела прочности) материала фланца соответственно при расчетной и температуре 20 °С, МПа.
а – с гладкой уплотнительной поверхностью; б – типа „выступ-впадина”; в –типа „шип-паз”
Рис. 14.16. Расчетная схема для плоских приварных фланцев
Для углеродистых и низколегированных сталей в формулах (14.3)–(14.5) вместо минимальных значений условных пределов текучести R p 0,2 и R20 p 0,2 необходимо подставлять минимальные значения пределов текучести при расчетной температуре – R e и температуре 20°С – R e 20 соответственно.
Расчет фланцевого соединения для условий испытания производить не требуется, если расчетное давление в условиях испытания меньше, чем расчетное давление в рабочих условиях, умноженное на 1 35
, [ ]20
/[ ].
Расчет вспомогательных величин
Эффективную ширину плоской прокладки определяют по формулам:
![]()
![]()
b
0
b
n
при b
n
15
мм; (14.6) b0
3 8
, b
n
при b
n
15
мм, (14.7)
гд b n исполнительная ширина прокладки, мм.
е –
Для металлических прокладок восьмиугольного сечения
b0 0 25 , bn . (14.8)
Линейная податливость неметаллической прокладки определяется по формуле
уn
hn
K
, (14.9)
E n D cn b n
| гд е |
h n толщина прокладки; – |
| K коэффициент обжатия прокладки; – |
|
| E n модуль упругости прокладки; – |
|
| Dcn средний диаметр прокладки. |
–
Для металлических и асбометаллических прокладок у
n
![]()
Основные характеристики прокладок для фланцевых соединений аппаратов приведены в таблице
14.4.
Таблица 14.4 Характеристики прокладок
| Тип и материал прокладки |
Коэффициен т удельного давления на прокладку m |
Удельное давление обжатия прокладки q обж , МПа |
Допускаемо е удельное давление [q ], МПа |
Коэффиц иент обжатия прокладк и K |
Модуль упругости прокладки
МПа |
| Плоская из резины с твердостью по Шору А до 65 единиц |
0,50 |
2 |
18 |
0,04 |
|
| Плоская из резины с твердостью по Шору А более 65 единиц |
1,00 |
4 |
20 |
0,09 |
|
| Плоская из паронита при толщине не более 2 мм |
2,50 |
20* |
130 |
0,90 |
0,02 |
| Плоская из картона асбестового при толщине 1 – 3 мм |
2,50 |
20 |
130 |
0,90 |
0,02 |
| Плоская из фторопласта-4 при толщине до 3 мм |
2,50 |
10 |
40 |
1,00 |
0,02 |
| Асбометаллическая в оболочке из алюминия, меди или латуни, сталей марок: 05КП, 12Х18Н10Т |
3,25 3,50 3,75 3,75 |
38 46 53 63 |
– – – – |
– – – – |
0,04 0,04 0,05 0,05 |
| Прокладка восьмиугольного сечения из сталей марок: 08Х13, 08Х18Н10Т |
5,50 6,50 |
125 180 |
– – |
– – |
– – |
Продолжение таблицы 14.4
| Тип и материал прокладки |
Коэффициен т удельного давления на прокладку m |
Удельное давление обжатия прокладки q обж , МПа |
Допускаемо е удельное давление [q ], МПа |
Коэффи циент обжатия проклад ки K |
Модуль упругости прокладки
МПа |
| Прокладка спиральнонавитая |
1,50 |
27 |
– |
– |
– |
| Прокладка ТРГ неармированная с обтюратором |
2,0 |
4,0 |
200 |
– |
11,1q *** |
| Прокладка ТРГ армированная без обтюратора |
2,5 |
4,0 |
120 при t =2 мм** 100 при t =3 мм** |
– |
11,1q *** |
| Прокладка ТРГ армированная с обтюратором |
2,0 |
4,0 |
200 |
– |
11,1q *** |
| Для сред с высокой проникающей способностью (водород, гелий, легкие нефтепродукты, |
|||||
|
Толщина прокладки в свободном состоянии. q – удельное давление на прокладку при затяжке, МПа. |
|||||
Податливость болтов (шпилек) следует определять по формуле:
l yб
, (14.10)
| гд е |
l б расчетная длина болта (шпильки); – |
| fб площадь поперечного сечения болта (шпильки) по – внутреннему диаметру резьбы (принимается по таблице 14.5); |
|
| 20 Е б модуль продольной упругости материала болта – (шпильки) при температуре 20 °С; |
n – количество болтов (шпилек).
Таблица 14.5 Площадь поперечного сечения болта (шпильки)
| Диаметр болта (шпильки) d, мм |
20 |
24 |
27 |
30 |
36 |
42 |
48 |
52 |
56 |
| Площадь поперечного сечения болта по внутреннему диаметру резьбы f б , мм2 |
225 |
324 |
430 |
520 |
760 |
1045 |
1380 |
165 7 |
191 1 |
| Примечание – В случае применения шпилек с проточкой значение площади поперечного сечения шпильки определяется по диаметру проточки. |
|||||||||
Расчетная длина болта (шпильки) рассчитывается по формуле
l
б0
0,28 d для болта
, (14.11) l
б
l
б0
0,56 d для шпильки
гд l б0 расстояние между опорными поверхностями гайки и е – головки болта (для шпилек – между опорными поверхностями гаек); d – наружный диаметр болта (шпильки).
Для расчетных давлений 2,5 МПа и более следует применять шпильки.
Эквивалентная толщина плоского приварного фланца S
Угловая податливость фланца
Yф , (14.12)
гд
безразмерные коэффициенты; е
Е20 модуль продольной упругости материала фланца при
– 20 ºС;
h толщина фланца в месте контакта с прокладкой.
–
Коэффициент
определяется по формуле
, (14.13)
где ,
1
, j
– безразмерные коэффициенты.
Коэффициент рассчитывается по формуле
D S
. (14.14)
Коэффициент
рассчитывается по формуле
D , (14.15)
гд D н наружный диаметр фланца.
е –
Коэффициент
рассчитывается по формуле
. (14.16)
Коэффициент j рассчитывается по формуле
j h S0
. (14.17)
Фланцевое соединение может состоять из двух фланцев (одинаковых или разных по конструкции) или фланца с крышкой (например, в люках). Если фланцы отличаются по конструкции или материалу, то необходимо вышеприведенные коэффициенты и угловую податливость рассчитывать для каждого фланца. В соединении фланца с крышкой рассчитывают угловую податливость фланца и крышки.
Угловая податливость плоской крышки
Xкр
y
кр
20 3
, (14.18)
Е кр h кр
гд X кр – безразмерный коэффициент.
е
![]()
где кр
толщина плоской крышки соответственно в зоне уплотнения и на наружном диаметре; Ккр
– безразмерный коэффициент.
Kкр
Dн
Dсп
, (14.20)
гд D сп средний диаметр прокладки.
е –
Плечи моментов сил определяют по формулам:
![]()
b 0 5
, Dб
Dсп
; (14.21) e 0 5
, Dсп
D Sэ
, (14.22)
где D б диаметр болтовой окружности;
–
S э эквивалентная толщина втулки фланца.
–
Определение коэффициента жесткости фланцевого соединения
Коэффициент жесткости фланцевого соединения, нагруженного внутренним избыточным или наружным давлением и внешней осевой силой
J , (14.23)
где
b
. (14.24)
При стыковке одинаковых по размерам фланцев:
y
ф1
y
ф2
y
ф
;
e1
e2
e
.
Следовательно,
, (14.25)
где
b . (14.26)
Для соединения с плоской крышкой
, (14.27)
где
b . (14.28)
Для фланцев с металлической прокладкой J 1. 14.6. Расчет фланцевого соединения на прочность
Расчет нагрузок
Равнодействующая внутреннего избыточного или наружного давления
Q
д
0 785
, Dсп
2
Р
, (14.29)
где Р расчетное внутреннее избыточное или наружное – давление (для вакуума или наружного давления P<0 ).
Реакция прокладки в рабочих условиях
Rn
Dсп
bo
m P
, (14.30)
где m коэффициент удельного давления на прокладку.
–
При определении нагрузок от температурных деформаций расчетные температуры фланцев, крышки, болтов (шпилек), трубной решетки, следует уменьшить на температуру, при которой происходит сборка фланцевого соединения (20 °С).
Нагрузка, возникающая от температурных деформаций фланцевого соединения
Qt
20
, (14.31)
где
b
; (14.32)
,
коэффициенты линейного расширения материала соответственно фланцев и болтов (шпилек);
t б – расчетная температура соответственно фланцев и болтов (шпилек).
Коэффициенты линейного расширения сталей, получивших наибольшее распространение для изготовления фланцев и болтов (шпилек), приведены в таблице 14.6.
Нагрузка, возникающая от температурных деформаций, при стыковке одинаковых фланцев (с гладкой уплотнительной поверхностью и под прокладку восьмиугольного сечения) Q t , Н, определяется по формуле
![]()
E б E
Нагрузка, возникающая от температурных деформаций в соединении фланца с плоской крышкой Q t , Н, определяется по формуле
Qt
20
, (14.35)
гд– коэффициент линейного расширения материала крышки, е 1/ °С.
Коэффициент
определяется по формуле
b2
. (14.36)
Таблица 14.6
Расчетное значение коэффициента линейного расширения сталей
| Марка стали |
Расчетное значение коэффициента линейного расширения |
|||||
| 100 |
200 |
300 |
400 |
500 |
||
| Ст3, 20, 20К |
11,6 |
12,6 |
13,1 |
13,6 |
14,1 |
|
| 35 |
11,1 |
11,9 |
13,2 |
13,4 |
13,9 |
|
| 40 |
11,3 |
12,0 |
13,3 |
13,3 |
13,3 |
|
| 09Г2С, 16ГС, 17ГС, 17Г1С, 10Г2С1, 10Г2 |
13,0 |
14,0 |
15,3 |
16,1 |
16,2 |
|
| 12ХМ, 12МХ, 15ХМ, 15Х5М, 15Х5М-У |
11,9 |
12,6 |
13,2 |
13,7 |
14,0 |
|
| 35Х, 40Х, 38ХА |
13,4 |
13,3 |
14,0 |
14,8 |
14,8 |
|
| 20ХН3А |
11,0 |
12,0 |
13,0 |
13,5 |
14,0 |
|
| 30ХМА |
12,3 |
12,6 |
12,9 |
13,9 |
14,2 |
|
| 25Х1М1Ф |
11,3 |
12,7 |
12,9 |
13,9 |
14,2 |
|
| 03Х18Н11, 08Х17Н12М2Т, 08Х17Н15М3Т |
16,6 |
17,0 |
18,0 |
18,0 |
18,0 |
|
| 45Х14Н14В2М |
16,6 |
17,0 |
18,0 |
18,0 |
18,0 |
|
| 25Х2М1Ф |
12,5 |
12,9 |
13,3 |
13,7 |
14,0 |
|
| 37Х12Н8Г8МФБ |
15,9 |
18,0 |
19,2 |
21,5 |
22,4 |
|
| 08Х22Н6Т, 08Х21Н6М2Т |
9,6 |
13,8 |
16,0 |
16,0 |
16,5 |
|
| 12Х18Н10Т, 12Х18Н12Т, 03Х17Н14М3, 10Х17Н13М2Т, |
16,6 |
17,0 |
18,0 |
18,0 |
18,0 |
|
| 10Х17Н13М3Т, 08Х18Н10Т, 08Х18Н12Т |
||||||
| 03Х21Н21М4ГБ |
14,9 |
15,7 |
16,6 |
17,3 |
17,5 |
|
| 06ХН28МДТ, 03ХН28МДТ |
15,3 |
15,9 |
16,5 |
16,9 |
17,3 |
|
| 08Х18Г8Н2Т |
12,3 |
13,1 |
14,4 |
14,4 |
15,3 |
|
| ХН35ВТ |
14,8 |
15,1 |
15,5 |
15,9 |
16,1 |
|
| 08Х15Н24В4 |
14,5 |
15,5 |
16,3 |
16,8 |
17,2 |
|
| Примечание – Промежуточные значения коэффициента |
||||||
Болтовая нагрузка в условиях монтажа
Pб
max Pб1
;Рб2
;Рб3
, (14.37)
где Р б1 – болтовая нагрузка от совместного действия
внутреннего избыточного или наружного давления среды, осевой силы и изгибающего момента;
Р б2 болтовая нагрузка, необходимая для начального – смятия прокладки;
Р б3 болтовая нагрузка из условия обеспечения прочности – болтов (шпилек).
Болтовая нагрузка P б1
Рб1
, (14.38)
где F
внешнее осевое усилие, действующее на фланцевое – соединение ( F
0, если усилие сжимающее); М
внешний изгибающий момент, действующий на – фланцевое соединение.
При отсутствии внешнего осевого усилия F и внешнего изгибающего момента М болтовая нагрузка P б 1 , МПа, определяется по формуле
Рб1
J Qд
R
n
Q
t
. (14.39)
Нагрузка от температурных деформаций Q
t
учитывается только при Q
t
0.
Если коэффициент жесткости фланцевого соединения J 1
, в расчетах принимается J1
. Болтовая нагрузка, необходимая для начального смятия прокладки, определяется по формуле
Pб2
0 5
, D
cn
b0
qобж
; (14.40)
Болтовая нагрузка из условия обеспечения прочности болтов (шпилек), определяется по формуле
Pб3
0 4
, [ ]б
20
n fб
, (14.41)
0
– допускаемое напряжение для материала болтов (шпилек)
гд
е при температуре 20 °С; п количество болтов (шпилек).
–
Для условий вакуума или наружного давления
Pб
max Pб2
;Pб3
. (14.42)
Расчет болтов (шпилек)
Условие прочности болтов (шпилек):
в условиях монтажа
Pб
[ ]20
; (14.43) б1 б
n f
б
в рабочих условиях
[ ] , (14.44)
гд
напряжение в болтах (шпильках) в условиях монтажа е – (при температуре 20 °С);
напряжение в болтах (шпильках) при расчетной
– температуре в рабочих условиях;
P
б
приращение нагрузки на болты (шпильки) в рабочих – условиях.
. (14.45)
D
При отсутствии внешнего осевого усилия F
и внешнего изгибающего момента М
приращение болтовой нагрузки P
б
, МПа, определяется по формуле
Pб
1 J Qд
Qt
. (14.46)
Для условий вакуума или наружного давления
[ ] . (14.47)
При проверке прочности болтов для рабочих условий с учетом нагрузки на болты от стесненности температурных деформаций допускаемое напряжение может быть увеличено на 30 %. Расчет прокладок
Условие прочности мягких прокладок
Pб
[ ]q
, (14.48)
q
D cn b n
гд [ ]q – допускаемое удельное давление на прокладку. е
Расчет фланца на прочность
Рассмотрим расчет на прочность плоского приварного фланца. Для плоских приварных фланцев опасным сечением является сечение в месте приварки фланца к обечайке. Расчет фланца на прочность заключается в определении эквивалентных напряжений в опасных сечениях и сравнении этих напряжений с допускаемыми напряжениями, определенными по формулам (14.3) – (14.5).
При затяжке в опасном сечении возникают меридиональные и кольцевые напряжения на внутренней и наружной поверхности обечайки. Фланец может соединяться с обечайкой непосредственно или через цилиндрическую втулку большей толщины, чем обечайка. Толщина цилиндрической втулки для стандартных фланцев указана в стандарте. Если при расчете цилиндрической обечайки от давления толщина ее получилась меньше, чем толщина рекомендованной втулки, то фланец соединяют с обечайкой через переходную втулку рекомендованной стандартом толщины.
Изгибающий момент от болтовой нагрузки
M01
Pб
b.
(14.49)
Меридиональные напряжения в цилиндрической втулке (обечайке) при затяжке фланцевого соединения для плоских приварных фланцев: на наружной поверхности втулки на внутренней поверхности втулки ,
где
максимальное напряжение изгиба во втулке в месте – приварки ее к фланцу:
. (14.50)
где
2
T Dн D 1 8 55
, lg Dн D 1
; (14.51)
2
1 05 , 1 945 , D н D D н D 1
Если фланец приварен непосредственно к обечайке, S 0 S , где S толщина стенки обечайки.
Приращение меридиональных напряжений в цилиндрической втулке (обечайке) в рабочих условиях для плоских приварных фланцев:
; (14.52)
, (14.53)
гдем
– приращение напряжения, возникающего в меридиональном направлении в цилиндрической втулке (обечайке) в рабочих условиях от действия внешних нагрузок,
, (14.54)
– приращение напряжения, возникающего в меридиональном направлении от изменения изгибающего момента в рабочих условиях,
, (14.55)
где M
01
– приращение изгибающего момента от болтовой нагрузки.
Приращение изгибающего момента от болтовой нагрузки
e.
(14.56)
При отсутствии осевого усилия и внешнего изгибающего момента приращение изгибающего момента от болтовой нагрузки определяют по формуле
M01
Pб
b Qд
e.
(14.57)
Окружные напряжения в цилиндрической втулке (обечайке) при затяжке соединения для плоских приварных фланцев:
23
0 3
, 1
; (14.58)
24
0 3
, 1
. (14.59)
Приращения окружных напряжений в цилиндрической втулке (обечайке) в рабочих условиях для плоских приварных фланцев:
; (14.60)
. (14.61)
Условия статической прочности плоских приварных фланцев в сечении толщиной S 0 :
при затяжке соединения
в рабочих условиях
где
– меридиональное напряжение на наружной поверхности втулки в рабочих условиях;
– меридиональное напряжение на внутренней поверхности втулки в рабочих условиях;
– окружное напряжение на наружной поверхности втулки в рабочих условиях;
– окружное напряжение на внутренней поверхности втулки в рабочих условиях;
0
– допускаемое напряжение в рабочих условиях.
Меридиональные и окружные напряжения для плоских приварных фланцев в сечении толщиной S 0 в рабочих условиях определяются по формулам:
; (14.64)
; (14.65)
; (14.66)
. (14.67)
14.7. Расчет фланцевого соединения на жесткость
Угол поворота фланца при затяжке соединения, рад
, (14.68)
где M
01
изгибающий момент от болтовой нагрузки.
Приращение угла поворота фланца в рабочих условиях
, (14.69)
где01
приращение изгибающего момента от болтовой нагрузки.
Условие жесткости (герметичности) фланцевого соединения
], (14.70)
где [
допускаемый угол поворота фланца, рад.
–
Для плоских приварных фланцев: в рабочих условиях [ ] 0,013
; в условиях испытания [ ] 0,017
.
Фланцы приварные встык рассчитывают в такой же последовательности. Отличие в расчете состоит в том, что проверяют условия прочности в двух опасных сечениях. Подробно расчет приварных встык фланцев рассмотрен в пособии [2].
Контрольные вопросы к лекции 14
10. Требования к разъемным соединениям.
10. Классификация фланцев по назначению и конструкции.
10. Типы уплотнительных поверхностей.
10. Крепежные изделия фланцевых соединений.
10. Материалы элементов фланцевого соединения.
6. Перечислите нагрузки, действующие во фланцевых соединениях.
7. Опасные сечения.
8. Как определяется расчетная длина болта (шпильки)?
9. Как определяется высота фланца?
10. Что такое коэффициент жесткости фланцевого соединения?
11. Как определяется болтовая нагрузка?
12. От чего зависит нагрузка от температурных деформаций?
13. В чем заключается расчет болтов?
14. Как действуют меридиональные и окружные напряжения?
15. В чем заключается расчет на прочность?
16. В чем заключается расчет на жесткость?
Лекция 15. Тема "Конструкции и выбор опор и строповых устройств аппаратов"
Рассматриваемые вопросы: Конструкции опор вертикальных аппаратов. Лапы опорные. Опоры стойки. Цилиндрические опоры. Конструкции опор горизонтальных аппаратов. Выбор опор. Расчет обечаек вертикальных аппаратов на прочность от воздействия опорных нагрузок. Расчет необходимости применения подкладных листов для вертикальных аппаратов на лапах. Расчет необходимости применения подкладных листов для горизонтальных аппаратов на седловых опорах. Конструкции строповых устройств. Выбор строповых устройств.
15.1. Конструкции опор вертикальных аппаратов
Вертикальные аппараты могут быть установлены на стойках, лапах или цилиндрических опорах. Обычно в помещениях аппараты устанавливаются на стойках или на лапах. Аппараты на лапах устанавливают на межэтажных перекрытиях или специальных стальных конструкциях. На открытых площадках аппараты устанавливают на цилиндрических или конических опорах. Все перечисленные типы опор стандартизованы.
Лапы опорные
Конструкция и основные размеры опорных лап приведены в ГОСТ 26296-84 "Лапы опорные подвесных вертикальных сосудов и аппаратов".
Опорные лапы изготовляют следующих исполнений:
1 – штампованные;
2 – сварные;
3 – сварные с увеличенным вылетом для изоляции;
4 – штампованные с увеличенным вылетом для изоляции.
На рисунках 15.1 и 15.2 приведены конструкции соответственно штампованной и сварной лап (исполнения 1 и 2). Лапы исполнений 3 и 4 с увеличенным вылетом для изоляции имеют такую же конструкцию, но несколько большие размеры с учетом размещения изоляции.
1 – скоба; 2 – накладной лист
Рис. 15.1. Штампованная опорная лапа
1 – пластина; 2 – ребро; 3 – накладной лист
Рис. 15.2. Сварная опорная лапа
Лапы изготовляют в основном из углеродистой стали. Выбирают типоразмер лапы по допускаемой нагрузке на одну лапу. Допускаемая нагрузка определена при допускаемом напряжении материала лапы 130 МПа и модуле упругости 1,8105
МПа. Число лап принимают по конструктивным соображениям: от двух до четырех. Обечайку аппарата рассчитывают на прочность от опорных нагрузок и при недостаточной несущей способности обечайки применяют накладные листы. Накладной лист приваривают к обечайке сплошным односторонним швом, толщина накладного листа должна быть не менее толщины обечайки. В случае приварки к аппарату из коррозионностойкой стали лап из углеродистой стали независимо от несущей способности обечайки устанавливают накладные листы из коррозионностойкой стали для исключения контактной коррозии. Сварку опорной лапы и приварку ее к обечайке или накладному листу производят сплошным двухсторонним швом.
Опоры – стойки
Опоры-стойки применяют для аппаратов с эллиптическими или коническими днищами.
Типы, конструкция и размеры опор-стоек приведены в ГСТУ 3-17-192-2000 "Опори–стояки вертикальних апаратів". Стандарт устанавливает пять типов опор: тип 1 – опора из листового проката для аппаратов с эллиптическими и коническими днищами; тип 2 – опора из труб для аппаратов с эллиптическими днищами; тип 3 – опора из уголка для аппаратов с эллиптическими днищами; тип 4 – опора облегченная для аппаратов с эллиптическими и коническими днищами; тип 5 – опора из двутавра для аппаратов с эллиптическими днищами.
Опоры типа 1 имеют два исполнения: 1 – сварные; 2 – штампованные. Количество опор стоек – 3 или 4.
1 – ребро; 2 – пластина; 3 – подкладной лист
Рис.15.3. Опора из листового проката для аппаратов с эллиптическими днищами типа 1 исполнения 1
Рис.15.4. Опора из листового проката для аппаратов с коническими днищами типа 1 исполнения 1
1 – скоба; 2 – накладка; 3 – подкладной лист
Рис.15.5. Опора-стойка из листового проката типа 1 исполнения 2
1 – пластина; 2 – стойка; 3 – подкладной лист
Рис.15.6 – Опора-стойка из труб
1 – пластина; 2 – стойка; 3 – заглушка; 4 – подкладной лист
Рис.15.7. Опора-стойка из уголка
1 – пластина; 2 – стойка; 3 – подкладной лист
Рис.15.8. Опора-стойка облегченная
1 – пластина; 2 – стойка; 3 – заглушка; 4 – подкладной лист
Рис.15.9. Опора-стойка из двутавра
Опоры изготовляют из листового проката, уголков и двутавра из стали Ст3сп, труб – из стали 10. Допускается применять другие марки стали с механическими характеристиками не ниже, чем у указанных сталей. Требования к установке подкладных листов и методов сварки такие же, как и для опор лап.
Цилиндрические опоры
Типы, конструкция и основные размеры опор приведены в ГСТУ 3-17-193-2000 "Опори вертикальних апаратів". Стандарт устанавливает пять типов опор:
тип 1 – опора облегченная цилиндрическая; тип 2 – опора цилиндрическая с местными косынками; тип 3 – опора цилиндрическая с внешними стойками под болты; тип 4 – опора цилиндрическая с кольцевым опорным поясом; тип 5 – опора коническая с кольцевым опорным поясом.
Опора типа 1 состоит из цилиндрической обечайки 1, к которой приваривается кольцо 2. В обечайку вварены лаз 3 и укрепляющие кольца 4 та 5 .
Опора типа 2 отличается от опоры типа 1 тем, что к обечайке 1 и кольцу 2 приварены косынки
6 .
Опора типа 3 отличается от опоры типа 1 тем, что к обечайке 1 и кольцу 2 приварены ребра 7 с планками 6.
Опора типа 4 отличается от опоры типа 1 тем, что к обечайке 1 и кольцу 2 приварены ребра 7 с верхним кольцом 6.
Опора типа 5 состоит из конической обечайки 1, к которой приварена цилиндрическая обечайка 2 , и верхнее 3 и нижнее 4 опорные кольца. Между верхним и нижним кольцами приварены ребра 8. В коничскую обечайку вварен лаз 5 и укрепляющие кольца 6 и 7.
1 – обечайка; 2 – кольцо; 3 – лаз; 4, 5 – укрепляющие кольца Рис. 15.10. Опора цилиндрическая облегченная (типа 1)
1 – обечайка; 2 – кольцо; 3 – лаз; 4, 5 – укрепляющие кольца; 6 – косынка
Рис. 15.11. Опора цилиндрическая с местными косынками (типа 2)
1 – обечайка; 2 – кольцо; 3 – лаз; 4, 5 – укрепляющие кольца; 6 – планка; 7 – ребро Рис. 15.12. Опора цилиндрическая с наружными стойками под болты (типа 3)
1 – обечайка; 2 – кольцо нижнее; 3 – лаз; 4, 5 – укрепляющие кольца;
6 – кольцо верхнее; 7 – ребро
Рис. 15.13. Цилиндрическая опора с кольцевым опорным поясом (типа 4)
1 – обечайка коническая; 2 – обечайка цилиндрическая; 3 – кольцо верхнее;
4 – кольцо нижнее; 5 – лаз; 6, 7 – кольца укрепляющие; 8 – ребро Рис. 5.14. Опора коническая с кольцевым опорным поясом (типа 5)
Опоры изготовляют из углеродистых и низколегированных сталей. Материал опор выбирается в зависимости от условий эксплуатации. При приварке к аппарату из коррозионностойкой стали опоры из углеродистой стали должна быть предусмотрена переходная обечайка из коррозионностойкой стали для исключения контактной коррозии. Высота цилиндрических опор должна быть не менее 600 мм. Для вентиляции полости опоры в верхней части должно быть не менее двух отверстий диаметром 100 мм. При сварке опор с днищами, имеющими сварные швы, в опорах необходимо предусмотреть люки-лазы для доступа к сварным швам днища. В этом случае отверстия для вентиляции не предусматриваются.
Опоры выбираются по приведенным нагрузкам: максимальной и минимальной. Максимальную приведенную нагрузку определяют по большему из значений:
![]()
Q
max
4M1
F1
или Q
max
4M2
F2
, (15.1) D D
где М 1 и F 1 – расчетный изгибающий момент и осевое сжимающее усилие в месте присоединения опорного кольца в рабочих условиях;
М 2 и F 2 – то же в условиях испытаний.
Минимальная приведенная нагрузка
4M3
F4
, (15.2)
Q min D
где М 3 и F 4 – расчетный изгибающий момент и осевое сжимающее усилие в месте присоединения опорного кольца в условиях монтажа. По приведенным нагрузкам определяют тип опор и конструктивные размеры опоры по стандарту.
15.2. Конструкции опор горизонтальных аппаратов
Горизонтальные аппараты независимо от их размещения (в помещении или на открытой площадке) устанавливают на седловых опорах. Типы, конструкция и основные размеры опор приведены в ОСТ 26-2091-81 "Опоры горизонтальных сосудов и аппаратов. Конструкция". Стандарт устанавливает 3 типа опор в зависимости от диаметра аппарата, каждый тип предусматривает несколько исполнений в зависимости от нагрузки:
тип 1 – опоры для сосудов и аппаратов диаметром от 159 до 630 мм, который имеет два
исполнения по нагрузкам:
исполнение 1 – от 10 до 40 кН, исполнение 2 – от 16 до 80 кН;
тип 2 – опоры для сосудов и аппаратов диаметром от 800 до 2000 мм, который имеет три
исполнения по нагрузкам:
исполнение 1 – от 80 до 250 кН, исполнение 2 – от 160 до 400 кН, исполнение 3 – от 300 до 450 кН;
тип 3 – опоры для сосудов и аппаратов диаметром от 2200 до 4000 мм, который имеет три
исполнения по нагрузкам:
исполнение 1 – от 250 до 630 кН, исполнение 2 – от 500 до 1400 кН, исполнение 3 – от 900 до 1200 кН.
1 – лист опорный; 2 – плита опорная; 3 – ребро
Рис. 15.15. Опора неподвижная типа 1 исполнения 1
1 – лист опорный; 2 – плита опорная; 3 – ребро; 4 – лист подкладной
5 – болт М16
Рис. 15.16. Опора подвижная типа 1 исполнения 1:
1 – лист опорный; 2 – плита опорная; 3-5 – ребра;
6 – втулка резьбовая; 7 – шайба
Рис. 15.17. Опора неподвижная типа 2
1 – лист опорный; 2 – плита опорная; 3-6 – ребра; 7 – втулка резьбовая; 8 – шайба
Рис. 15.18. Опора неподвижная типа 3:
Число опор, располагаемых вдоль аппарата, определяют расчетом. В зависимости от длины и массы аппарата число опор может быть равно двум или более. При этом одна опора должна быть неподвижной, остальные – подвижными для компенсации температурных удлинений аппарата. Скольжение подвижной опоры происходит по подкладному листу или по металлоконструкции. Для этого в опорной плите подвижной опоры предусмотрены пазы под фундаментные болты. Фундаментные болты у подвижной опоры следует снабжать контргайками и не затягивать (устанавливать с зазором 1-2 мм).
Опорный лист приваривается к аппарату прерывистым швом по периметру. Сварку деталей опоры и приварку опоры к опорному листу выполняют сплошным односторонним швом. Опоры для сосудов и аппаратов диаметром до 3200 мм должны привариваться к корпусу на предприятии- изготовителе. Опоры для сосудов и аппаратов диаметром более 3200 мм допускается поставлять отдельно, при этом опорные листы должны быть приварены к корпусам на предприятииизготовителе. При транспортировке опор отдельно от аппаратов в центральном ребре опоры предусматривают для строповки два отверстия диаметром 60 мм.
Материал опор в зависимости от температуры рабочей среды и температуры самой холодной пятидневки (если аппарат расположен на открытой площадке) должен выбираться по таблице 15.1:
Таблица 15.1
| Исполнение по материалу |
Температура, ° С |
Материал |
|
| рабочей среды |
самой холодной пятидневки не ниже |
||
| 1 |
От минус 40 до 350 |
Минус 40 |
Сталь Ст3пс4 ДСТУ |
| 2 |
От минус 40 до 475 |
Сталь 16ГС категория 15 ГОСТ 19282-73 |
|
| 3 |
Ниже минус 40 до минус 70 |
Минус 60 |
Сталь 09Г2С категория 9 ГОСТ 19282-73 |
Обозначение седловых опор включает в себя нагрузку, радиус опоры и исполнение по материалу. У подвижных опор впереди ставится буква "П": Опора 360 – 646 – 1 ОСТ 26-2091-81; Опора П 360 – 646 – 1 ОСТ 26-2091-81.
В опорах типов 2 и 3 при массе пустого аппарата до 16400 кг должны быть предусмотрены втулки резьбовые под регулировочные винты, которые применяются для установки аппарата в горизонтальном положении. Узел регулировочного винта приведен на рисунке 15.19.
После выверки аппарата на фундаменте и затвердевания бетонной подливки, регулировочные винты, а также болты М16, служащие для крепления подкладного листа к подвижной опоре, должны быть удалены. Резьбовые отверстия заполняются антикоррозионной мастикой. Гайки и контргайки фундаментных болтов не должны затягиваться. Между гайкой и шайбой должен оставаться зазор 1-2 мм.
1 – болт М16; 2 – втулка резьбовая; 3 – шайба; 4 – винт регулировочный;
5 – гайка; 6 – болт фундаментный М24; 7 – гайка М24; 8 – пластина опорная
Рис. 15.19. Крепление опоры
15.3. Выбор опор
Выбор типа опоры зависит от рабочего положения аппарата (горизонтальный или вертикальный), от способа установки аппарата (на фундаменте или металлоконструкции; в цеху или на открытой площадке), от соотношения высоты и диаметра аппарата.
После выбора типа и количества опор определяют нагрузку на одну опору по весу аппарата в рабочих условиях и подбирают по соответствующему стандарту опору по допускаемой нагрузке.
15.4. Расчет обечаек вертикальных аппаратов на прочность от воздействия опорных нагрузок
Расчетный диаметр элемента, нагруженного опорными узлами, определяют по формуле:
![]()
где D – внутренний диаметр цилиндрической обечайки или выпуклого днища;
D к – внутренний диаметр конической обечайки в
сечении, соответствующем половине высоты опорного узла;
– половина угла при вершине конической обечайки;
R – радиус сферического днища;
x – расстояние между осью эллиптического днища и серединой опорного узла;
H – высота выпуклой части днища по внутренней поверхности без учета цилиндрической обечайки.
Для обечайки, нагруженной опорным узлом, определяют местные допускаемые усилия F
i
.
В основу расчета обечаек, нагруженных несущими ушками, опорными лапами или седловыми опорами, положено предельное напряжение изгиба
, определяемое из условия достижения предельного состояния балки прямоугольного сечения, вырезаемой из обечайки.
Расчет необходимости применения подкладных листов для вертикальных аппаратов на лапах
Расчетная схема приведена на рисунке 15.20.
Рис. 15.20. Расчетная схема
Опорные лапы присоединены к цилиндрическим или коническим обечайкам. Направление действия усилия принимают параллельно оси обечайки. Расчет заключается в определении несущей способности обечайки (допускаемого усилия на обечайку в области опорного узла F
1
) и сравнения с расчетным усилием F
1
. При выполнении условия прочности F
1
считается, что несущая способность обечайки достаточна; при невыполнении условия прочности необходимо применить подкладной лист и проверить несущую способность обечайки с подкладным листом.
S C
Расчетные формулы применяют при 0,05.
D p
Расчетное усилие, действующее на опорную лапу
![]()
где G вес сосуда в рабочих условиях;
–
M изгибающий момент, действующий на обечайку в
– сечении, где расположены опорные узлы; n – число опор.
Расстояние между точкой приложения опорного усилия и обечайкой или подкладным листом
5
принимают равным e
1
l
1
. 6
При условии точного монтажа, обеспечивающего равномерное распределение нагрузки между всеми опорными лапами, при n = 4
усилие можно определять по формуле
G M
F = 1
4 + D + 2 e + S + S
1 2
F 1
.
(15.5)
Несущую способность обечайки в месте приварки опорной лапы без подкладного листа определяют по формуле
2
F1
F 1
= i
h
K e
7
1
S - C
1
,
(15.6)
где
– предельное напряжение изгиба;
h 1 и D p , определяется графически или
K
7
– коэффициент, зависящий от соотношений D
p
2 S C
расчетным путем.
Предельное напряжение изгиба
nT
,
(15.7) i
K1
K 2
где K1
коэффициент, определяемый в зависимости от
и
–
;
допускаемое напряжение материала обечайки;
–
n т запас прочности по пределу текучести;
–
коэффициент, представляющий отношение местных
– мембранных напряжений к местным напряжениям
изгиба;
коэффициент, учитывающий степень нагрузки
– общими мембранными напряжениями;
K 2 коэффициент.
–
![]()
Значение 1
для опор лап без подкладного листа принимается равным
Коэффициент 2 определяют по формуле
, (15.8)
гд m
общее мембранное напряжение; е –
коэффициент прочности сварных швов обечайки, – расположенных в области опорного узла. Значение коэффициента K 2 принимается равным:
для рабочих условий – 1,2; для условий испытания и монтажа – 1,0.
Коэффициент K 1 определяется по формуле (15.9) или по рисункам 15.21, 15.22

При невыполнении условия (15.6) необходимо применить подкладной лист и проверить несущую способность обечайки с подкладным листом в месте приварки опорной лапы.
Рис. 15.21. Коэффициент K
1
при ![]()
Несущую способность обечайки в месте приварки опорной лапы с подкладным листом определяют по формуле
F
1
F
1
= K e + Si
8
b 3
1
S - C
2 2
,
(15.11)
где K
8
– коэффициент, определяемый графически или расчетным путем;
i
– предельное напряжение изгиба.
При определении предельного напряжения изгиба коэффициент
для опор лап с подкладным листом принимается равным 1
0,4
.
При невыполнении условия прочности обечайки с подкладным листом необходимо либо увеличить толщину обечайки до выполнения условия, либо увеличить число опор.
15.5. Расчет обечаек горизонтальных аппаратов от опорных нагрузок
Расчетные схемы приведены на рисунке 15.23, 15.24.
Рис. 15.23. Расчетная схема
Расчетные формулы применяют при
![]()
гд
– угол охвата седловой опоры опорным листом ; е
S 2 толщина опорного листа.
–
В качестве основной расчетной схемы для определения опорных усилий, моментов и поперечных усилий принимают балку кольцевого сечения, шарнирно опертую в местах расположения опор
(рис.15.23).
Распределенная нагрузка эквивалентного сосуда определяется по формуле
G
q =
, (15.12)
L
где G – вес аппарата в рабочих условиях или условиях испытания; L – длина сосуда.
Опорные усилия для сосуда, опирающегося симметрично на две седловые опоры
F1
F2
= 0,5G
(15.13)
Изгибающие моменты определяют в сечениях обечайки над опорами M 1 и между опорами M 2 в сечениях, где они имеют наибольшие значения.
Для сосуда, опирающегося симметрично на две седловые опоры, изгибающие моменты равны:
над опорой
M1
= 0,5 q
l1
2
.
(15.14)
между опорами
M
2
= F .
(15.15)
Поперечное усилие в сечении обечайки над опорой
Q F (15.16)
L
Расчет несущей способности обечайки производят для двух сечений: – в сечении между опорами; – в области опорного узла.
Проверка несущей способности обечайки в сечении между опорами
Для аппаратов, работающих при внутреннем избыточном давлении, производят следующие проверки:
а) условие прочности в сечении между опорами
Условие прочности сосуда, работающего под внутренним избыточным давлением, определяется по формуле
P D 4 M K
2 17
,
(15.17)
+
4 S - C D S - C 2
где К 17 – коэффициент, учитывающий частичное заполнение жидкостью, определяется расчетным путем или графически.
б) условие устойчивости в сечении между опорами
М2
1,0 ,
(15.18)
M
где М – допускаемый изгибающий момент, определяемый по формуле
М 0,25 D D S C S C . (15.19)
Для сосудов, работающих под наружным давлением, производят проверку условия устойчивости
P M2
1,0 .
(15.20) +
P M
Проверка несущей способности обечайки в области опорного узла
Рис. 15.24.
а) проверка несущей способности
Проверку несущей способности производят сначала для обечайки без подкладного листа.
Условие прочности
F 1
min F 2
, F 3
,
(15.21)
где F 2 – допускаемое опорное усилие в осевом направлении; F 3 – допускаемое опорное усилие в окружном направлении.
Допускаемое опорное усилие в осевом направлении
F
2
=
i
2
D S - C S - C
K
18
K
20
,
(15.22) 0,7
допускаемое опорное усилие в окружном направлении
F
3
= 0,9
i 3
K D S - C S - C
22
K
24
K
25
,
(15.23)
где
- предельные напряжения изгиба, определяемые по формуле (15.7).
При определении предельных напряжений изгиба
необходимо рассчитать два значения коэффициента
и коэффициента К
1
и принять то значение К
1
, которое дает меньшее предельное напряжение изгиба.
Коэффициенты К
18
, К
20
,К
22
,К
24
,К
25
определяются в зависимости от угла обхвата опоры
и параметров: параметр, определяемый расстоянием до днища
a S - C
= 2,83 ,
(15.24)
D D
параметр, определяемый шириной пояса опоры
b
= 0,91 .
(15.25) D S - C
При невыполнении условия прочности (15.21) требуется применение подкладного листа. Выбирают подкладной лист и проверяют несущую способность обечайки с подкладным листом. При выполнении условия
b 2
K1 9
D + 1,5 b
(15.26)
прочность проверяют по формуле
F 1
1,5 min F 2
, F 3
,
(15.27)
где F 2 и F 3 определяют по тем же формулам, что и для обечайки без подкладного листа, но значение их изменяется из-за изменения величины коэффициентов.
б) проверка устойчивости в области опорного узла Проверку устойчивости следует проводить по формуле
1,0 ,
(15.28)
где P = 0 – для сосудов, работающих под внутренним избыточным давлением;
F e – эффективное осевое усилие от местных мембранных напряжений, действующих в области опоры.
D
F = F e 1
K21
K23
.
(15.29)
4 S - C
15.6. Типы и конструкции строповых устройств
Подъем и перемещение аппаратов при монтаже и демонтаже осуществляется подъемнотранспортными средствами с помощью строповки. Для обеспечения надежности и безопасности строповки на аппаратах предусматривают специальные строповые устройства: крюки, ушки, цапфы или монтажные штуцера. Строповые устройства стандартизованы.
На вертикальных аппаратах применяют крюки, цапфы, монтажные штуцера и ушки. Крюки, цапфы и монтажные штуцера на вертикальных аппаратах следует размещать выше центра тяжести аппарата.
На горизонтальных аппаратах применяют ушки, цапфы и монтажные штуцера.
Крюки, ушки и цапфы рассчитаны на грузоподъемность не более 320 кН. Монтажные щтуцера допускают грузоподъемность до 2500 кН. Удлиненные монтажные штуцера допускают грузоподъемность до 1000 кН.
Конструкция крюков двух исполнений – сварного и штампованного – приведена соответственно на рисунках 15.25 и 15.26.
Конструкция ушек приведена на рисунке 15.27. Конструкция цапф приведена на рисунке 15.28.
1 – скоба; 2 – пластина
Рис. 15.25. Крюк сварной а – крюк; б – скоба; в – пластина
1 – скоба левая; 2 – скоба правая
Рис. 15.26. Крюк штампованный а – крюк; б – скоба левая; в – скоба правая
1 – серьга; 2 – пластина
Рис. 15.27. Ушко а – ушко; б – серьга
1 – труба; 2 – кольцо; 3 – заглушка
Рис. 15.28. Цапфа Конструкция монтажных штуцеров приведена на рисунках 15.29 и 15.30. Монтажный штуцер состоит из обечайки 1 , к которой приварен фланец 2 и косынки 3 . В обечайку вварено ребро 4 . В зависимости от исполнения количество ребер составляет от 1 до 3. Штуцер приваривают к обечайке аппарата или к подкладному листу.
1 – обечайка, 2 – фланец, 3 – косынка, 4 – ребро
Рис. 15.29. Штуцер монтажный а – штуцер, б –косынка
1 – обечайка, 2 – фланец, 3 – ребро
Рис. 15.30. Штуцер монтажный удлиненный
13.7. Выбор строповых устройств
Строповые устройства выбирают по усилию на одно строповое устройство
1,25G
F
, ( 15.30)
n
где G – вес аппарата при монтаже, n – количество строповых устройств.
Для вертикальных аппаратов обычно используют два строповых устройства, но число ушек может быть n 2; 3; 4.
Строповые устройства следует размещать как можно выше центра масс аппарата. Для горизонтальных аппаратов используют 4 цапфы. Материал строповых устройств – углеродистая сталь марок Ст3сп5, Ст3Гсп5.
При выборе метода строповки учитывают:
– массу, габариты, конфигурацию и расположение центра масс;
– метод подъема и установки на фундамент;
– количество грузоподъемных средств и конструкцию стропового устройства; – высоту и конфигурацию фундамента.
Схема строповки в одной или двух проекциях приводится на первом листе общего вида аппарата. На схеме строповки указывается положение центра масс аппарата, расстояние от центра масс до строповых устройств и угол между стропами.
Контрольные вопросы к лекции 15
1. Конструкция опор- стоек.
2. Конструкция опор-лап.
3. Цилиндрические и конические опоры.
4. Конструкция седловых опор.
5. Как определить нагрузку на одну опору?
6. В каких случаях требуется установка подкладных листов?
7. Влияет ли точность монтажа на нагрузку на опоры?
8. Сформулируйте условия необходимости подкладного листа.
9. Как определяются размеры подкладных листов?
10. Типы строповых устройств.
11. Определение нагрузки на одно строповое устройство. 12. Как располагают строповые устройства?
СПИСОК ЛИТЕРАТУРЫ
1. Конструювання і розрахунок сталевих зварних посудин та апаратів. Обичайки та днища: /Укл. О.І. Барвін, І.М. Гєнкіна, В.В.Іванченко, Г.В. Тараненко, Ю.Н. Штонда. Навч. посібник. – Луганськ: Вид-во Східноукр. нац.. ун-ту імені Володимира Даля, 2005. – 300 с.
2. Конструювання і розрахунок сталевих зварних посудин та апаратів. Фланцеві з'єднання: /Укл. О.І. Барвін, І.М. Гєнкіна, В.В.Іванченко, Г.В. Тараненко, Ю.Н. Штонда. Навч. посібник. – Луганськ: Вид-во Східноукр. нац.. ун-ту імені Володимира Даля, 2007. – 306 с.
3. Конструювання і розрахунок сталевих зварних посудин та апаратів. Стропові пристрої. Опори:/ Укл. І.М. Гєнкіна, В.В. Іванченко, Г.В. Тараненко, Ю.М. Штонда. Навч. посібник. – Луганськ: Вид-во Східноукр. нац. ун-ту імені Володимира Даля, 2008. – 289 с.
4. Смирнов Г.Г., Толчинский А.Р., Кондратьева Т.Ф. Конструирование безопасных аппаратов для химических и нефтехимических производств. – Л.: Машиностроение, 1988. – 303 с.
5. Расчет и конструирование машин и аппаратов химических производств. Примеры и задачи. Под ред. Михалева М.Ф. – Л.: Машиностроение, 1988. – 303 с.
6. ГСТУ 3–17–191–2000. Посудини та апарати стальні зварні. Загальні технічні умови. – Державний комітет промислової політики України, 2000. – 301 с.
7. ДНАОП 0.00-1.07-94. Правила будови та безпечної експлуатації посудин, що працюють під тиском. (зі змінами та доповненнями) –Київ. Видавництво "Основа", 1998.– 374 с.
8. ГСТУ 3-17-193-2000. Опори вертикальних апаратів. Типи та основні розміри. Державний комітет промислової політики України, 2000. – 39 с.
9. ГОСТ 6533–78. Днища эллиптические отбортованные стальные для сосудов, аппаратов и котлов. Основные размеры. – М.: Издательство стандартов, 1985.
10. ГОСТ 8731–74. Трубы стальные бесшовные горячедеформированные. Технические требования. М.: Изд–во стандартов, 1978. – 7 с.
11. ГОСТ 8732–74. Трубы стальные бесшовные горячедеформированные. Сортамент. М.: Изд–во стандартов, 1978. – 11 с.
12. ГОСТ 9617-76. Сосуды и аппараты. Ряды диаметров. – М.: Издательство стандартов, 1976. – 3 с.
13. ГОСТ 10885–85. Сталь листовая горячекатанная двухслойная коррозионностойкая. Технические условия. – М.: Издательство стандартов, 1985.
14. ГОСТ 12816 - 80. Фланцы арматуры, соединительных частей трубопроводов на Ру от 0,1 до 20,0 МПа. Общие технические требования.
15. ГОСТ 12820 - 80. Фланцы стальные плоские приварные на Ру от 0,1 до 2,5 МПа. Конструкция и размеры.
16. ГОСТ 12619–78. Днища конические отбортованные с углами при вершине 60 и 90°. Основные размеры. М.: Изд–во стандартов, 1978. – 22 с.
17. ГОСТ 12620–78. Днища конические неотбортованные с углами при вершине 60, 90 и 120º. Основные размеры. М.: Изд–во стандартов, 1978. – 11 с.
18. ГОСТ 12621–78. Днища конические неотбортованные с углом при вершине 140º. Основные размеры. М.: Изд–во стандартов, 1978. – 3 с.
19. ГОСТ 12622–78. Днища плоские отбортованные. Основные размеры. М.: Изд–во стандартов,
1978. – 4 с.
20. ГОСТ 12623–78. Днища плоские неотбортованные. Основные размеры. М.: Изд–во стандартов, 1978. – 4 с.
21. ГОСТ 13372-78. Сосуды и аппараты. Ряд номинальных объемов. – М.: Издательство стандартов, 1978. – 2 с.
22. ГОСТ 14249–89. Сосуды и аппараты. Нормы и методы расчета на прочность. – М.: Издательство стандартов, 1989.
23. ГОСТ 19903–74. Прокат листовой горячекатанный. Сортамент. – М.: Издательство стандартов, 1974.
24. ГОСТ 24755–89. Сосуды и аппараты. Нормы и методы расчета на прочность укрепления отверстий. М.: Изд–во стандартов. 1989. – 31 с.
25. ГОСТ 25221–82. Сосуды и аппараты. Днища и крышки сферические неотбортованные. Нормы и методы расчета на прочность. – М.: Издательство стандартов, 1989. – 6 c.
26. ГОСТ 25859-83. Сосуды и аппараты стальные. Нормы и методы расчета на прочность при малоцикловых нагрузках. М.: Изд-во стандартов, 1983. – 30 с
27. ГОСТ 25867–89. Сосуды и аппараты. Сосуды с рубашками. Нормы и методы расчета на прочность. М.: Изд–во стандартов, 1989. – 79 с.
28. ГОСТ 26202-84. Сосуды и аппараты. Нормы и методы расчета на прочность обечаек и днищ от опорных нагрузок.
29. ГОСТ 26296 - 84. Лапы опорные подвесных сосудов и аппаратов. Основные размеры.
30. ГОСТ 28759.1-90. Фланцы сосудов и аппаратов. Типы и параметры. М.: Изд-во стандартов, 1991. – 8 с.
31. ГОСТ 28759.2-90. Фланцы сосудов и аппаратов стальные плоские приварные. Конструкция и размеры. М.: Изд–во стандартов, 1991. – 26 с.
32. ГОСТ 28759.3-90. Фланцы сосудов и аппаратов стальные приварные встык. Конструкция и размеры. М.: Изд-во стандартов, 1991. – 22 с.
33. ГОСТ 28759.4-90. Фланцы сосудов и аппаратов стальные приварные встык под прокладку восьмиугольного сечения. Конструкция и размеры. М.: Изд-во стандартов, 1991. – 11 с.
34. ГОСТ 28759.5-90. Фланцы сосудов и аппаратов. Технические требования. М.: Изд-во стандартов, 1991. – 7 с.
35. ГОСТ 28759.6-90. Прокладки из неметаллических материалов. Конструкция и размеры. Технические требования. М.: Изд–во стандартов, 1991. – 10 с.
36. ГОСТ 28759.7-90. Прокладки асбометаллические. Конструкция и размеры. Технические требования. М.: Изд-во стандартов, 1991. – 7 с.
37. ГОСТ 28759.8-90. Прокладки металлические восьмиугольного сечения. Конструкция и размеры. М.: Изд-во стандартов, 1991. – 5 с.
38. ГОСТ 12.1.007-76. Вредные вещества. Классификация и общие требования безопасности. –
М.: Издательство стандартов, 1988. – 4 с.
39. ОСТ 26–2002–83. Люки с плоскими крышками стальных сварных сосудов и аппаратов. Конструкция. Издание официальное, 1991. – 13 с.
40. ОСТ 26–2003–83. Люки со сферическими крышками стальных сварных сосудов и аппаратов. Конструкция. Издание официальное, 1991. – 7 с.
41. ОСТ 26–2008–83. Крышки плоские люков стальных сварных сосудов и аппаратов. Конструкция. Издание официальное, 1991. – 15 с.
42. ОСТ 26–2009–83. Крышки сферические люков стальных сварных сосудов и аппаратов. Конструкция. Издание официальное, 1991. – 10 с.
43. ОСТ 26 - 2091 - 81. Опоры горизонтальных сосудов и аппаратов. Конструкция, размеры и технические требования.
44. АТК 24. 200.02 - 90 Заглушки фланцевые стальные. Конструкция, размеры и технические требования.
45. АТК 24.200.04-90. Альбом типовых конструкций. Опоры цилиндрические и конические вертикальных аппаратов. Типы и основные размеры. – 23 с.
46. РД 26–11–05–85. Сосуды и аппараты из двухслойной стали. Нормы и методы расчета на прочность.
47. РД 26-15-88. Сосуды и аппараты. Нормы и методы расчета на прочность и герметичность фланцевых соединений. М.: НИИхиммаш, 1988. – 63 с.
48. Методические указания к выбору конструкционных материалов для стальных сварных сосудов и аппаратов для студентов специальности 7.090220/ Сост. А.И. Барвин, И.М. Генкина, В.В. Иванченко, Д.А. Куликов, В.Г. Табунщиков, Ю.Н. Штонда. – Северодонецк, СТИ, 2003. – 41 с.
49. Методические указания к расчету цилиндрических обечаек стальных сварных сосудов и аппаратов для студентов специальности 7.090220 / Сост. А.И. Барвин, И.М. Генкина, В.В. Иванченко, В.Г. Табунщиков, Г.В. Тараненко, Ю.Н. Штонда. – Северодонецк, СТИ, 2002. – 83 с.
50. Расчет выпуклых и плоских днищ и крышек, конических обечаек, днищ и переходов стальных сварных сосудов и аппаратов. Методика и примеры расчета / Сост. А.И. Барвин, И.М. Генкина, В.В. Иванченко, Д.А. Куликов, В.Г. Табунщиков, Г.В. Тараненко, Ю.Н. Штонда. – Северодонецк, СТИ, 2003. – 122 с. 51. Методические указания к расчету на прочность укрепления отверстий в обечайках, переходах и выпуклых днищах стальных сварных сосудов и аппаратов для студентов специальности 7.090220 / Сост. А.И. Барвин, И.М. Генкина, В.В. Иванченко, Д.А. Куликов, В.Г. Табунщиков, Г.В Тараненко, Ю.Н. Штонда. – Северодонецк: СТИ, 2003. – 56 с.
52. Розрахунок на міцність, жорсткість і герметичність фланцевих з’єднань посудин та апаратів.
Методика і приклади розрахунку. – Сєвєродонецьк. СТІ, 2005. – 68 с.
53. Методичні вказівки до вибору фланцевих з’єднань посудин та апаратів для студентів спеціальності 7.090220. / Укл. О.І Барвін, В.В. Іванченко, І.М. Гєнкіна, В.Г. Табунщіков, Г.В. Тараненко, Ю.М. Штонда. – Сєвєродонецьк: СТІ, 2006. – 94 с.


