| Скачать .docx |
Реферат: Проектирование локальной вычислительной сети для административного учреждения
Цель работы
Спроектировать локальную вычислительную сеть для административного учреждения, имеющего два корпуса - 20 этажей и 4 этажа. Здания находятся на расстоянии 20 метров друг от друга. Количество компьютеров – 400, помимо этого во втором корпусе располагается конференц-зал, где необходимо реализовать беспроводную связь, с учетом что он рассчитан на 200 мест. Дорогой прект, высокая степень безопасности.
Базовая сеть строится на основе 100baseTX.
Магистраль, проложенная между корпусами строится на основе GigabitEtherNet(1000Base-t), кабель прокладывается под землей.
Способ подключения к интернету – беспроводной. (Двухсторонний обмен данными через спутник).
Теория
Локальная сеть
Сетью называют группу компьютеров, соединенных между собой при помощи специальной аппаратуры, обеспечивающей обмен данными между любыми компьютерами данной группы. Компьютеры могут соединяться друг с другом непосредственно либо через промежуточные узлы связи.
Компьютер, подключенный к сети называют рабочей станцией. Компьютер, предназначенный для управления сетью и концентрации данных называют сервером.
Сервер (обычно высокопроизводительный компьютер) запускает сетевую операционную систему и управляет потоком данных, передаваемых по сети. Отдельные рабочие станции и периферийные устройства подключаются к серверу.
Рабочая станция представляет собой обычный компьютер, работающий под управлением собственной операционной системы , но содержащий сетевой адаптер и физически соединенный кабелями с сервером. Кроме того, рабочая станция запускает специальную программу, называемую сетевой оболочкой, которая позволяет ей обмениваться данными с сервером, другими рабочими станциями и прочими устройствами в сети. Сетевая оболочка позволяет рабочей станции использовать файлы, хранящиеся на сервере, так же легко, как и находящиеся на ее собственных дисках.
В локальной вычислительной сети (ЛВС или LAN – Local Area Network) компьютеры расположены недалеко друг от друга и соединены высокоскоростными адаптерами (со скоростями передачи данных 1-10 или 100 Мбит/сек).
Преимущества ЛВС:
· возможность совместного использования дорогостоящих периферийных устройств (принтеры, сканеры, коммуникационные устройства);
· возможность организации и улучшения связи между людьми, использование общих данных;
· возможность объединения средств обслуживания обработки данных.
Топология ЛВС
Термин «топология», или «топология сети», характеризует физическое расположение компьютеров, кабелей и других компонентов сети. Топология — это стандартный термин, который используется профессионалами при описании основной компоновки сети. Топология сети обуславливает ее характеристики. В частности, выбор той или иной топологии влияет на :
* состав необходимого сетевого оборудования
* характеристики сетевого оборудования;
* возможности расширения сети;
* способ управления сетью.
В нашем случае топологией сети является Звезда. Концепция топологии сети в виде звезды пришла из области больших ЭВМ, в которой головная машина получает и обрабатывает все данные с периферийных устройств как активный узел обработки данных. Этот принцип применяется в системах передачи данных. Вся информация между двумя периферийными рабочими местами проходит через центральный узел вычислительной сети.
Топология в виде звезды является наиболее быстродействующей из всех топологий вычислительных сетей, поскольку передача данных между рабочими станциями проходит через центральный узел (при его хорошей производительности) по отдельным линиям, используемым только этими рабочими станциями. Частота запросов передачи информации от одной станции к другой невысокая по сравнению с достигаемой в других топологиях.
Производительность вычислительной сети в первую очередь зависит от мощности центрального файлового сервера. Он может быть узким местом вычислительной сети. В случае выхода из строя центрального узла нарушается работа всей сети. Центральный узел управления – файловый сервер реализует оптимальный механизм защиты против несанкционированного доступа к информации. Вся вычислительная сеть может управляться из ее центра.
Стандарт 100BASE-TX
Стандарт Fast Ethernet IEEE 802.3u появился значительно позже стандарта Ethernet – в 1995 году. Его разработка в первую очередь была связана с требованием повышения скорости передачи информации. Однако переход с Ethernet на Fast Ethernet позволяет не только повысить скорость передачи, но и существенно отодвинуть границу перегрузки сети (что обычно гораздо важнее). Поэтому популярность Fast Ethernet постоянно растет.
Вместе с тем надо учитывать, что стандартные сегменты Fast Ethernet имеют свои особенности и недостатки, которые далеко не очевидны, но которые обязательно надо учитывать. Создатели Fast Ethernet сделали все возможное для облегчения перехода на новую скорость, однако, в каком-то смысле Fast Ethernet – это уже другая, новая сеть.
Если сравнивать набор стандартных сегментов Ethernet и Fast Ethernet, то главное отличие – полный отказ в Fast Ethernet от шинных сегментов и коаксиального кабеля. Остаются только сегменты на витой паре и оптоволоконные сегменты.
Для объединения компьютеров в сеть 100BASE-TX необходимо применение кабелей с неэкранированными витыми парами (UTP) категории 5 или выше, что связано с требуемой пропускной способностью кабеля. В настоящее время это самый популярный тип сети Fast Ethernet. Длина кабеля не может превышать 100 метров (стандарт, правда, рекомендует ограничиваться длиной сегмента в 90 метров, чтобы иметь 10-процентный запас). Используется топология пассивная звезда с концентратором в центре. Только сетевые адаптеры должны быть Fast Ethernet, и концентратор должен быть рассчитан на подключение сегментов 100BASE-TX.
Общая структура сети
Корпусы располагаются на расстоянии 20 метров друг от друга.

Вертикальная проводка
Примерное количество витой пары в 20-ти этажном здании – 400 метров, в 4-х этажном здании-60 метров. Используется неэкранированная витая пара 5-ой категории (UTP 5). Коммутаторы соединены между собой посредством 100BASE-TX, промежуточный коммутатор из второго корпуса соединен с основным посредством витой пары через порт GigabitEthernet (1000Base-T).
Информационная структура сети.
Основной коммутатор - DELL PowerConnect M6220.
Промежуточные коммутаторы - D-link DGS-3100-48P.
Этажные коммутаторы - ProSafe 24-Port Gigabit Smart Switch.
Точки доступа - D-Link AirPremierAG DWL-7700AP.

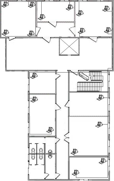
Горизонтальная схема проводки
Схема для 19-ти этажей 20-ти этажного административного здания. Примерное количество витой пары -- 260 метров на каждый этаж. Используется неэкранированная витая пара 5-ой категории (UTP 5).

Схема для 1-го этажа 20-ти этажного административного здания. Этаж включает в себя серверную и конференц-зал, Примерное количество витой пары -- 110 метров. Используется неэкранированная витая пара 5-ой категории (UTP 5).

Данные схема разработаны с учетом характерных особенностей здания. Кабели будут расположены вдоль стены, в специально отведенных для них каналах. Протяжка кабеля на верхние этажи осуществляется на лестничном проеме. Подсобное помещение на первом этаже корпуса используется как серверная, где располагаются сервера и основной коммутатор.
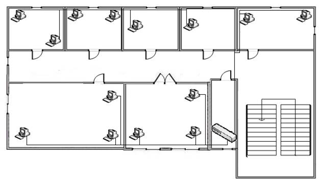
Схема для 4-х этажного корпуса. Примерное количество витой пары -- 210 метров. Используется неэкранированная витая пара 5-ой категории (UTP 5).
Необходимое оборудование.
1.
В первом, двадцатиэтажном здании мы будем использовать в качестве коммутаторов на каждом этаже ProSafe 24-PortGigabitSmartSwitchwithStaticRouting (GS724TR).
Подводя итоги развития ИТ-индустрии в 2008 году, журнал «VARBusiness» назвал его лучшим продуктом в категории «оборудование для связи и сетей передачи данных». Он обеспечивает высокий уровень безопасности, расширенные возможности по управлению трафиком и высокую надежность для растущих сетей предприятий малого и среднего бизнеса. Это функционально насыщенная, недорогая, надежная и простая в управлении альтернатива полностью управляемым коммутаторам для тех заказчиков, которым не нужен интерфейс командной строки (CLI).
Характеристики:
Совместимость с сетевыми протоколами и стандартами :
*IEEE 802.3 10BASE-T
*IEEE 802.3u 100BASE-TX
*IEEE 802.3ab 1000BASE-T
*IEEE 802.3z 1000BASE-X
*IEEE 802.3x full-duplex flow control;
Количество портов : 24;
Задержка в сети : максимум 5 микросекунд (при передаче 64-байтных пакетов между 1000 Mbps и 1000 Mbps);
Полоса пропускания :48 Gbps;
Производительность : * Буфер: 750 Кбайт;
Размер базы данных: 8000 адресов MAC (media access control) на систему
Адресация: 48-битные MAC-адреса
Среднее время работы между отказами (MTBF): GS724TR – 265 404 часа (~30 лет);
Питание:
Энергопотребление: 36.8 Вт
Универсальный вход 100-240В перем.тока/50-60 Гц;
Физические характеристики:
Размеры: 43 x 440 x 205 mm
Вес: 3.10 кг
Цена : 11,820.00 руб.(23 штуки)
2 .В качестве промежуточных коммутаторов можно использовать D-link DGS-3100-48P.
Серия управляемых стекируемых коммутаторов второго уровня D-Link DGS-3100-48P обладают функцией обеспечения безопасности сетей и контроля доступа. Эти функции безопасности гарантируют не только доступ в сеть авторизованных пользователей, но и предотвращение распространения по всей сети вредоносного трафика, вызванного активностью вирусов/червей, и увеличивает сетевую безопасность в целом.
Характеристики:
Интерфейсы:
48 портов 10/100/1000BASE-T
4 комбо-порта SFP
Консольный порт RS-232;
Полоса пропускания:
- для линейной топологии: до 10 Гбит/с
- для кольцевой топологии: до 20 Гбит/с;
Производительность:
Коммутационная матрица -116 Гбит/с
Скорость пересылки пакетов – 86.31 Mpps
Размер таблицы МАС-адресов - 8 К
Размер буфера - 1.5 Мб
Поддержка Jumbo-фреймов: 10,240 байт;
Безопасность:
Port security: 16 МАС-адресов на порт
Управление широковещательным/ однонаправленным штормом
Private VLAN
Link Safeguard Engine;
Стоимость : 55 200р.(2 штуки)
3. Основной коммутатор. DELL PowerConnect M6220.
Это один из новейших коммутаторов корпорации Dell, обладающий рядом усовершенствованных базовых коммутационных возможностей, который предназначен специально для модульного корпуса PowerEdge M1000e для серверов. Этот коммутатор третьего уровня с 24 портами (16 внутренних и четыре внешних) предусматривает возможность объединения в стек и обеспечивает дополнительные каналы восходящей связи 10 Gigabit Ethernet, а также поддерживает последнюю версию протокола IP (IPv6), предоставляя широкие возможности масштабирования.
Характеристики:
Количество портов коммутатора:
4 x Ethernet 10/100/1000 Мбит/сек;
Внутренняя пропускная способность:
128 Гбит/сек;
Поддержка стандартов:
AutoMDI/MDIX, IPv6,
IEEE 802.1p (Priority tags),
IEEE 802.1q (VLAN),
IEEE 802.1d (Spanning Tree),
IEEE 802.1s (Multiple Spanning Tree);
Размеры (ШxВxГ):
267 x 31 x 258 мм ;
Вес: 2.7 кг;
Стоимость: 49 622 руб.
4. Сервера, один сервер будет почтовым и прокси сервером, другой же будет файловым хранилищем, первый сервер также будет служить DNS,DHCPи почтовым сервером.
DEPO Storm 4250R4S - Высоконадежный и производительный четырехпроцессорный сервер масштаба предприятия. Обеспечивает непрерывность бизнес-процессов и отличается высокой надежностью и безотказностью работы. Избыточная система питания и охлаждения позволяет эффективно поддерживать высокий уровень работоспособности сервера.
Основой DEPO Storm 4250R4S является набор микросхем nVidia nForce Professional 3400 (MCP55-Pro) + AMD8132, обеспечивающий возможность установки четырех процессоров AMD Opteron 8xx. Конструктив сервера обеспечивает установку до 10 жестких дисков. Диски имеют возможность "горячей" замены и объединения их в RAID-массивы. Возможна установка до 64Гб оперативной памяти ECC REG DDRII-667 SDRAM. Сервер оснащается отказоустойчивым блоком питания мощностью 3x1000Вт, включенным по схеме 2+1. Модель выполнена в конструктиве Tower, опционально может устанавливаться в стойку (высота 4U).
Характеристики:
Процессор:
2xIntelXeonMP 7440 QuadCore
КЭШ 16 Mb ,FSB 1066 MHz
Чипсет Intel® 7300 (Clarksboro).
Коммуникации:
Двухканальный интегрированный Gigabit Ethernet на контроллере Intel® 87575EB.
Оперативная память:
Устанавливается до 192Гб оперативной памяти 667/533MHz FB-DIMM (Fully Buffered DIMM) DDR2 ECC SDRAM. Обмен с памятью происходит с чередованием по четырем каналам. Поддерживается технология “зеркалирования” памяти.
Стоимость: 473299руб.(2 штуки)
5. Комплект для беспроводного выхода в интернет:
*DVB
Приемник
(TeVii S660 (DVB-S2)).
DVB-карта - Ядро спутникового Интернета. Осуществляет обработку данных, полученных со спутника, и выделение полезной информации. TeVii S660 - универсальный приемник данных в спутниковых стандартах DVB-S2 и DVB-S . Приемник широко используется для подключения к Спутниковому Интернет на серверах, в мультисервисных спутниковых сетях для приема данных на удаленных станциях. Модель работает в сетях провайдеров нового перспективного стандарта DVB-S2. Помимо этого, DVB-карта может применяться для приема мультимедиа информации со спутника, включая видео стандартной и высокой четкости, аудиопотоки. Модель TeVii
DVB-карта протестирована на полную совместимость со всеми провайдерами Спутникового Интернет, предоставляющих сегодня услуги в России.
Характеристики:
Типтюнера: Silicon tuner "Montage"
Контроллер: Conexant
Входное сопротивление: 75 Om
Входной диапазон: 950~2150 MHz
Уровень сигнала: -70~-20dBm
Тип модуляции: QPSK/8PSK, Auto FEC
Символьная скорость: 2~30 MS/s
FEC: 1/2,2/3,3/4,5/6,7/8 и автоматический
DiSEqC: 1.0, 1.1, 1.2, 2.0, USALS
Коммутация: 22KHz
Шина: PCI-Express
Цена: 3960 руб.
*спутниковая антенна, 3,7м. Supral СТВ-3,7
Лепестковая(офсетная).Офсетные антенны за счёт смещения фокуса «тарелки» (точки максимального сигнала), устанавливаются практически вертикально, и потому проще в обслуживании. Диаметр антенны выбирается в соответствии с метеоусловиями и уровнем сигнала необходимого спутника. 
выпускаются с рефлекторами из алюминиевых сплавов и не подвержены коррозии даже при неумышленном нарушении порошкового покрытия. Supral не имеют в своих конструкциях пластиковых элементов, что позволяет им работать в более жестких климатических условиях.
Характеристики : Фокусное расстояние, мм 2000
Диапазон частот, Ггц : 10,95-12,75
Коэффициент усиления (11,3 Ггц), дб :51
Ширина луча, град: 0,4
Уровень кроссполяризации не более, дб :30
Отношение фокуса к диаметру :0,54
Масса антенны + база, кг :490
Цена:160000 руб.
*Спутниковый конвертер,кабель
. GI-108 Supreme - спутниковый конвертер с круговой поляризацией Golden Interstar Circular Single LNB GI-108 Supreme с уровнем собственных шумов до 0.2 дБ.
Характеристики:
Коэфициент шума 0,2 dB (Тур.)
Входной диапазон: 11,7 — 12,75 ГГц
Выходной диапазон :950 — 2000 МГц
Частота гетеродина: 10,75 ГГц
Корпус: Влагозащищенный
Цена: 3 500,00 р.
Цена за весь комплект для беспроводного выхода в интернет: 168500 руб.
6. Точка доступа D-Link AirPremierAG DWL-7700AP.
Двухдиапазонная внешняя беспроводная точка доступа соответствующая стандартам IEEE 802.11 a/b/g. Точка доступа обеспечивает большой радиус действия и поддерживает соединение на скорости до 54 Мбит/с (108 Мбит/с в Турбо режиме). DWL-7700AP идеально подходит для провайдеров Интернет для создания хот-спотов и предоставления доступа в Интернет пользователям, находящимся вне здания. Точку доступа можно использовать на заводах, промышленных комплексах, в колледжах и университетских городках, аэропортах, гольф-клубах, побережьях и многих других общественных местах.
Характерстики:
Тип: Wi-Fi точка доступа
Стандарт беспроводной связи: 802.11n, частота 2.4 ГГц
Защита информации: WEP, WPA, WPA2
Мощность передатчика: 15 dBM
Радиус действия внутри помещения: 100 м
Радиус действия вне помещения: 300 м
Макс. скорость беспроводного соединения: 300 Мбит/с
Стоимость: 3 680руб.
7. Кабель с неэкранированными витыми парами (UTP) категории 5.(базовая сеть)
8. Кабель волоконно оптический ЭКБ-БПР. (магистраль)
Стоимость сети
| Наименование | Количество | Стоимость Общая (за штуку) руб. |
| Коммутатор ProSafe 24-Port Gigabit Smart Switch with Static Routing | 23 | 271900(11,820) |
Промежуточные коммутаторы D-link DGS-3100-48P. |
2 | 110400 (55 200) |
| Основной коммутатор DELL PowerConnect M6220 | 1 | 49 622 |
| Сервер DEPO Storm 4250R4S | 2 | 946600 (473299) |
| Комплект для беспроводного выхода в интернет: | 1 | 168500 |
| Кабель с неэкранированными витыми парами (UTP) категории 5 | 6932м | 48524 (7(м)) |
| Точка доступа D-Link AirPremierAG DWL-7700AP | 5 | 18400(3 680) |
| Кабель волоконно оптический | 40 | 960(24) |
| ИТОГО: | 1613946р. |
Вывод
Прокладка проводов несмотря на сложности прокладки их по зданию, дает положительный эффект в последующем отсутствии проблем, связанных с помехами при различного рода неблагоприятных метеоусловиях. Также прокладка кабеля является более дешевым методом подключения здания к сети интернет.
Однако при подключении беспроводной сети создаются другие немаловажные преимущества, как мобильность при использовании выхода в интернет ( подключение ноутбуков, КПК, смартфонов через wi-fi), возможность видоизменять сеть, без каких либо трат.
В конечном счете, для того или иного случая или предприятия выбирается своя форма сети, которая будет наиболее полезна для данного предприятия или же будет являться показателем скупости или глупости того человека, который решил сэкономить на столь необходимом и немаловажном сегодня атрибуте каждой компании локальная сеть.