| Скачать .docx |
Курсовая работа: Курсовая работа: Разработка плана изготовления и расчет операционных размеров деталей газотурбинной установки
Мiнiстерство освiти та науки України
Нацiональний аерокосмiчний унiверситет iм. М.Є. Жуковського ”ХАІ”
Кафедра 204
Пояснювальна записка до курсового проекту
з дисципліни «Технологія газотурбобудування»
на тему: «Розробка плану виготовлення і розрахунок операційних розмірів деталі ГТУ»
Содержание
Введение
1. Анализ рабочего чертежа детали
1.1 Назначение детали, условия работы
1.2 Обоснование выбора материала: химический состав, физико-механические характеристики, технологические свойства
2. Определение показателей технологичности детали
2.1 Качественная оценка технологичности
2.2 Количественная оценка технологичности
3. Выбор метода получения заготовки
3.1 Обоснование выбранного метода получения заготовки
3.2 Определение массы и степени сложности заготовки
4. Определение количества ступеней обработки основных поверхностей детали
5. Разработка предварительного плана обработки детали
6. Расчет припусков и операционных размеров на диаметральные поверхности
7. Расчет припусков и операционных размеров на обработку торцевых поверхностей
7.1 Определение припусков
7.2 Разработка и анализ размерной схемы обработки торцевых поверхностей детали
7.3 Расчет технологических размерных цепей торцевых поверхностей детали
8. Проектирование заготовительной операции и разработка
чертежа заготовки
9. Оформление конечного варианта плана технологического процесса изготовления вала
Заключение
Список использованной литературы
Введение
Прогресс авиадвигателестроения в значительной мере определяет развитие современной авиации. Совершенствование авиационных деталей, в свою очередь, выдвигает новые требования к технологии их изготовления. Рост рабочих температур и давлений требует все более широкого использования высокопрочных и жаропрочных сплавов, тенденция сокращения числа деталей приводит к усложнению их геометрических форм, а снижение удельной массы двигателя обуславливает применение деталей малой жесткости.
Успешная реализация конструктивных решений в большей степени определяется технологией. Проектируемые технологические процессы должны обеспечивать повышение производительности труда и качества изделий при одновременном снижении затрат на их изготовление. Решение этих задач во многом зависит от рационального построения размерных связей в процессе обработки, обоснованного назначения припусков на обработку допусков операционных размеров.
Всякое необоснованное установление допусков на размеры деталей приводит к удорожанию производства. Излишнее ужесточение допусков вызывает потребность в точном оборудовании и оснастке, более точных (а значит, и более дорогих) заготовках. Чрезмерное расширение поля допуска затрудняет обработку на предварительно настроенных станках и увеличивает объем пригоночных работ в процессе сборки изделия.
Эффективность технологического процесса существенно зависит также от рационального выбора припусков. Чрезмерные припуски влекут за собой перерасход материала и требуют введения дополнительных технологических переходов, увеличивая расход режущего инструмента и электроэнергии, трудоемкость обработки и в конечном итоге – себестоимость продукции. Ввиду высокой стоимости авиационных материалов уменьшение припусков обычно окупает затраты на изготовление точных заготовок, однако необоснованно заниженные припуски не обеспечивают удаления дефектной части поверхностного слоя и достижения заданной точности, увеличивая вероятность брака.
Даже при сравнительно малых масштабах производства для получения заготовок деталей применяют такую обработку давлением, как горячая штамповка, прессование, волочение, чеканка и т.п. При этом обязательны определенное расположение волокон и надлежащая уковка материала. Свободная ковка в авиадвигателестроении применяется уже редко. Высокие требования к качеству материала заставляют применять особые виды контроля, основанные на применении изотопов и ультразвука.
Для изготовления многих деталей становится обычным применение различных методов точного литья. Почти все основные детали двигателей подвергаются термической или термохимической обработке. Это обстоятельство приводит к усложнению технологического процесса и удлинению цикла обработки. Выбор места термообработки в плане технологического связан обычно с целым рядом особых соображений, касающихся как качества детали, так и возможностей проведения механической обработки.
Производство авиационных двигателей отличается особой тщательностью контроля. Все ответственные детали и узлы, как правило, подвергают стопроцентному всестороннему контролю, который заключается в проверке качества материала, правильности формы, размеров, взаимного расположения поверхностей, качества поверхностей, весовой сбалансированности, а также качества соединения деталей, особенно неразъемных. Уделяя большое внимание качеству изделий, в то же время заботятся об экономике производства, добиваясь высокой производительности и низкой себестоимости изготовления авиационных двигателей. Эта задача решается путем совершенствования технологических процессов и использования наиболее рациональных форм организации производства.
1. Анализ чертежа детали
1.1 Описание конструкции детали, ее назначение и условия работы
Деталь представляет собой шестерню. Деталь образована цилиндрическими поверхностями и плоскостями.
Деталь работает в тяжелых условиях, под действием значительных изгибных напряжений, постоянно сопротивляется скручиванию, поэтому материал детали должен быть достаточно прочным, иметь пластическую, вязкую сердцевину и поверхностную твердость.
Между рабочим чертежом детали, условиями ее эксплуатации и технологическим процессом ее изготовления существуют тесные связи.
1. Материал, общие размеры и конфигурация детали дают возможность установить способ получения заготовки детали, оценить примерный объем и трудоемкость обработки, наметить типы потребного оборудования. Присутствие сложных поверхностей предопределяет необходимость использования специального оборудования.
2. Требуемая точность поверхностей в чертеже определяет необходимые методы обработки.
3. Взаимная координация поверхностей в чертеже определяет базы, способы установки, последовательность операций технологического процесса.
4. Заданная в чертеже термическая и химико-термическая обработка дает преставление о месте этой обработки в технологическом процессе и о разделении процесса на этапы.
Условия работы детали: диапазон рабочих температур и давлений, условия нагружения и виды нагрузок, установленный ресурс, наличие электрических и магнитных полей, использование рабочих жидкостей и смазочных материалов, контактирование с химически активными веществами – все эти факторы определяют физико-механические свойства материала детали, которые необходимо обеспечить в процессе ее изготовления.
1.2 Обоснование выбора материала: химический состав, физико-механические характеристики, технологические свойства
Материал шестерни должен обладать высокой прочностью и иметь высокую поверхностную твердость, так как деталь работает в тяжелых условиях, поэтому в данном случае целесообразно применение конструкционных сталей, например сталь 30ХМА.
Вид поставки – штамповка.
Назначение – улучшаемые и цементируемые детали, от которых требуется высокая прочность и вязкость сердцевины, а также высокая поверхностная твердость, работающая при больших скоростях и повышенных удельных давлениях под действием ударных нагрузок.
Таблица 1.1
| С |
Cr |
Mn |
Si |
P |
S |
Ni |
Cu |
| не более |
|||||||
| 0.26-0.33 |
0.8-1.10 |
0.40-0.70 |
0.17-0.37 |
0.025 |
0.025 |
0.30 |
0.30 |
Таблица 1.2
| Механические свойства |
|||||||
| Сечение, мм |
s0.2 , мПа |
sВ , мПа |
д5 , % |
ш, % |
KCU, Дж/м2 |
HB |
HRCэ |
| Штамповка. Нитроцементация HRC55…60 |
|||||||
| Образцы |
735 |
930 |
12 |
55 |
59 |
||
Таблица 1.3
Технологические свойства:
| Температура ковки |
| Начала 1220, конца 800. Сечения до 200 мм охлаждаются в зольниках, более 200 мм - в печах. |
| Свариваемость |
| ограниченно свариваемая. Способы сварки: РДС, КТС. Рекомендуется подогрев и последующая термообработка. |
| Обрабатываемость резанием |
| После нормализации при НВ 364 и B = 860 МПа K тв.спл. = 0.45, K б.ст. = 0.25. |
| Склонность к отпускной способности |
| Не склонна |
| Флокеночувствительность |
| малочувствительна |
2. Определение показателей технологичности детали
2.1 Качественная оценка технологичности
Данная деталь представляет собой тело вращения цилиндрической формы переменного диаметра. Вдоль оси вращения детали выполнено сквозное отверстие так же переменного диаметра. Наличие ряда нетехнологических поверхностей, обуславливает применение специального режущего инструмента и оборудования. К таким поверхностям относятся, в данном случае, зубчатая и шлицевая поверхности. Деталь имеет внутреннею зубчатую и внешнюю шлицевую поверхности. Для их получения необходимо применять специальные методы обработки, такие как зубо- и шлицедолбление.
Что же касается технологичности геометрической формы, то шестерни в этом смысле нетехнологичны, поскольку операции нарезания зубьев выполняется в основном малопроизводительными методами.
Требования точности формы и расположения поверхностей детали обусловлены необходимостью обеспечить надежную работу зубчатого зацепления
2.2 Количественная оценка технологичности
Средний квалитет точности
. Коэффициент точности обработки
![]()
Так как
, то деталь по точности является технологичной .
Средняя шероховатость детали ![]()
Коэффициент шероховатости
![]()
Так как
, то деталь технологична по шероховатости.

Рис.1 Схема нумерации основных поверхностей детали
Деталь имеет 10 основных поверхностей.
3. Выбор метода получения заготовки
3.1 Обоснование выбранного метода получения заготовки
Выбор метода получения заготовки является многовариантной задачей. С точки зрения сокращения затрат времени и средств на механическую обработку целесообразно выбирать заготовки, которые по форме, размерам, точности и качеству поверхности возможно полнее соответствовали бы параметрам готовой детали. Но при этом будут увеличиваться текущие и единовременные затраты на получение заготовки в заготовительном цехе. С другой стороны, упрощением формы заготовки, снижением требований к ее точности и качеству можно значительно уменьшить затраты на ее изготовление. Но в этом случае снизится коэффициент использования материала и увеличатся затраты на обработку такой заготовки в механическом цехе.
Основными факторами, определяющими вид заготовки, являются материал детали, ее конфигурация, габаритные размеры и, что немаловажно, условия ее работы.
Исходя из осесимметричной формы детали, а также необходимости получения для дальнейшей ее обработки благоприятного распределения внутренних напряжений, заготовку получаем штамповкой на кривошипном горячештамповочном прессе.
Это связано со следующими преимуществами данного метода:
- повышенная точность размеров получаемых на КГШП поковок из-за постоянства хода пресса и определенности нижнего положения ползуна, что позволяет уменьшить отклонения размеров поковок по высоте, поковки также не контролируют на сдвиг. Жесткое и надежное направление ползуна КГШП и применение штампов с направляющими колонками и втулками ограничивает относительные сдвиги верхней и нижней частей поковки до десятых долей миллиметра, что повышает точность горизонтальных размеров поковки.
- увеличение коэффициента использования материала вследствие более совершенной конструкции штампов, снабженных верхним и нижним выталкивателями, что позволяет уменьшить штамповочные уклоны, припуски и напуски и тем самым приводит к экономии металла и уменьшению последующей обработки поковок резанием. Колебания вертикальных размеров поковок при штамповке на прессах объясняется различной величиной упругих деформаций штампа и пресса в связи с колебаниями температуры и объема заготовки, но тоже не составляет значимой величины. Уменьшение штамповочных уклонов (внутренние штамповочные уклоны 3˚; наружные штамповочные уклоны 2˚) позволяет получить более совершенную форму заготовки, а значит уменьшить припуски на механическую обработку и повысить коэффициент использования материала.
- более высокая производительность данного метода по сравнению с молотами, что важно в условиях серийного производства;
- снижение себестоимости продукции за счет снижения расхода металла и эксплуатационной стоимости.
Для того, чтоб деталь была технологичной, необходимо выполнить такие требования:
1) использовать высокопроизводительные технологические методы обработки;
2) обработку поверхностей по возможности необходимо осуществлять без специального инструмента и оборудования;
3) Деталь должна иметь поверхности, удобные для установки;
4) заданные точность и шероховатость поверхностей должны быть обоснованы и соблюдено требование соответствия между шероховатостью и точностью.
3.2 Определение массы и степени сложности заготовки
Масса заготовки определяется по формуле
,
где mд – масса детали.
.
Плотность стали 30ХМА с= 7850 кг/м3 , а объем детали определяем в программе Компас.
![]()
Степень сложности поковки определяется по формуле:
![]()
степень сложности поковки относится к С4 .
Таблица 3.1
Допуски основных поверхностей заготовки
| № поверхности |
Размер детали, мм |
Допуск на размер, мкм |
Точность |
Допуск заготовки |
Точность |
Rz |
| 1-9 |
115 |
350 |
h12 |
+1.7 -0.9 |
IT16 |
200 |
| 1-10 |
65 |
300 |
h12 |
+1,7 -0.9 |
IT16 |
200 |
| 1-4 |
60 |
300 |
h12 |
+1.7 -0.9 |
IT16 |
200 |
| 4-5 |
22 |
210 |
h12 |
+1.6 -0.8 |
IT17 |
200 |
| 2 |
Ç70 |
300 |
h12 |
+1.7 -0.9 |
IT16 |
200 |
| 3 |
Ç50 |
50 |
h12 |
+1.7 -0.9 |
IT16 |
200 |
| 6 |
Ç114 |
350 |
H12 |
+1.7 -0.9 |
IT16 |
200 |
| 7 |
Ç45 |
300 |
H7 |
+1.2 -0.6 |
IT16 |
200 |
| 8 |
Ç80 |
250 |
H12 |
+1.7 -0.9 |
IT16 |
200 |
4. Определение количества ступеней обработки основных поверхностей детали
При определении необходимого и достаточного количества ступеней обработки отдельных поверхностей для обеспечения заданных характеристик точности формообразующих размеров, формы и качества поверхности с достаточной для практических целей точностью, воспользуемся зависимостями:
1) число ступеней обработки необходимое для обеспечения заданной точности:
,
где Тзаг – допуск размера заготовки; Тдет – допуск размера детали.
2) число ступеней обработки необходимое для обеспечения заданной шероховатости:
3)
,
где Rzзаг – шероховатость поверхности заготовки;
Rzдет – шероховатость поверхности готовой детали.
Результаты расчета необходимого числа ступеней обработки для поверхностей детали приведены в табл. 4.1.
| Nп/п |
Размер, мм. |
Точность (кв./допуск, мкм) |
Шероховатость
|
Число ступеней обработки |
Точность по ступеням обработки (квалитет) |
Шероховатость по ступеням обработки |
Методы обработки |
|||||||||||
| Д |
З |
Д |
З |
Д |
З |
|
|
|
1 |
2 |
3 |
4 |
1 |
2 |
3 |
4 |
||
| 2 |
Æ70 |
|
|
10 |
200 |
2 |
3.3 |
3 |
|
|
|
80 |
20 |
10 |
1.Точение черновое 2.Точение получистовое 3.Точение чистовое |
|||
| 3 |
Æ50 |
|
|
5 |
200 |
3.8 |
4.1 |
4 |
|
|
|
|
120 |
80 |
35 |
5 |
1.Точение черновое 2.Точение получистовое 3. Точение чистовое 4.Шлифование |
|
| 6 |
Æ114 |
|
|
12,8 |
200 |
1,8 |
2,9 |
3 |
|
|
|
50 |
25 |
12,5 |
1.Точение черновое 2.Точение получистовое 3.Точение чистовое |
|||
| 7 |
Æ60 |
|
|
10 |
200 |
4,2 |
3.3 |
4 |
|
|
|
|
120 |
60 |
20 |
10 |
1.Точение черновое 2.Точение получистовое 3.Точение чистовое 4.Шлифование |
|
| 8 |
Æ45 |
|
|
20 |
200 |
2,1 |
2,5 |
3 |
|
|
|
80 |
40 |
20 |
1.Сверление 2.Зенкерование 3.Развертывание |
|||
| 1-9 |
115 |
|
|
20 |
200 |
1.9 |
2.5 |
2 |
|
|
80 |
20 |
1.Точение черновое 2.Точение чистовое |
|||||
| 4-5 |
22 |
|
|
20 |
200 |
1.8 |
2.3 |
2 |
|
|
80 |
20 |
1.Точение черновое 2.Точение чистовое |
|||||
| 1-10 |
65 |
|
|
20 |
200 |
1.7 |
2.3 |
2 |
|
|
80 |
20 |
1.Точение черновое 2.Точение чистовое |
|||||
| 1-4 |
60 |
|
|
20 |
200 |
1.7 |
2.3 |
2 |
|
|
80 |
20 |
1.Точение черновое 2.Точение чистовое |
|||||
Табл.4.1
5. Разроботка предварительного плана обработки детали
Исходными данными для разработки маршрутного технологического процесса изготовления детали являются заданный чертеж детали и тип производства.
При проектировании маршрутного технологического процесса необходимо разработать графический план обработки заготовки, установить состав и последовательность операций, указав для каждой операции обрабатываемые поверхности, методы их обработки и характеристики точности, схемы установок и позиции, тип оборудования.
Для проектирования плана обработки рациональна определенная последовательность решений:
· составление укрупненного плана обработки заготовки, устанавливающего рациональную последовательность формообразующих операций, а также наличие и место в плане обработки термических, слесарных, контрольных и других вспомогательных операций;
· выявление конструкторских баз расположения поверхностей и отсчета координатных размеров связей с ними исходных поверхностей заготовки и необрабатываемых поверхностей детали.
Весь план обработки состоит из четырех этапов: черновой получистовой, чистовой и отделочный.
1. Черновой этап состоит из черновых операций, на которых снимается до 60-70 % припуска на обработку. На этом этапе достигается равномерное распределение припусков на дальнейшую обработку, и удаляются дефекты на поверхности заготовки.
2. Получистовой этап обработки выполняется, как правило, в той же последовательности, что и черновая обработка, но более точно, с меньшими режимами резания, при этом устраняют коробление, возникшее после первого этапа.
3. На чистовом этапе снимается до 30 % припуска, и детали придается окончательная форма.
4. Отделочный этап включает операции, обеспечивающие заданную точность и чистоту рабочей поверхности.
Для большинства операций соблюдается принцип совмещения и постоянства баз, и такие базы называются чистыми. Исключение составляют первые операции, на которых базы уступают по точности и качеству обрабатываемым поверхностям. Это черновые базы, которые могут быть использованы только один раз и для координации только одной из обрабатываемых поверхностей. То есть обработку детали начинаем с той поверхности, которая будет служить установочной базой для дальнейших операций.
Обработку поверхностей точным взаимным расположением включаем в одну операцию, и выполняем за одно закрепление заготовки. А черновую и чистовую обработки заготовок со значительными припусками выделяем в отдельные операции, так как совмещение черновых и чистовых переходов в одной операции приводит к снижению точности обработки вследствие повышенного износа инструмента на черновых операциях.
План обработки строим так, чтобы последними обрабатывались поверхности, к которым предъявляются повышенные требования по точности, а в начале те поверхности, к точности которых предъявлены меньшие требования. При определении последовательности переходов операции, предусматриваем опережающее выполнение тех переходов, которые подготавливают возможность осуществления следующих за ними переходов.
Последовательность операций отражена в плане обработки.
6. Расчет припусков и операционных размеров на диаметральные поверхности
Величину минимального припуска на диаметральные поверхности определяют по формуле:
,
где Rzi-1 и hi-1 – соответственно шероховатость и глубина дефектного слоя на предыдущей ступени обработки; Дi-1 – величина пространственных отклонений на предыдущей ступени обработки; еi – погрешность установки детали в данной ступени обработки.
Величина пространственных отклонений определяется по формуле:
,
где Дкор – величина коробления поковки; Дсм – величина смещения поковки.
Величина пространственных отклонений в процессе обработки полностью не исчезает, а значительно уменьшается по величине. Величина остаточных отклонений определяется по величине коэффициента уточнения формы.
.
Номинальный припуск:
,
где Ti-1 – допуск размера на предыдущей обработке.
Максимальный припуск для:
1) валов
,
2) отверстий
.
Минимальный припуск для:
1) валов
,
2) отверстий
.
Расчетный диаметр для:
1) валов
,
2) отверстий
.
Результаты расчета операционных припусков и операционных размеров диаметральных поверхностей нормативным методом приведены в табл. 6.2, а расчетно-аналитическим методом в табл. 6.1.
Таблица 6.1
| № |
Элементарная пов-ть детали. Технологический маршрут ее обработки |
Элементы припуска, мкм. |
Расчетный припуск, мкм |
Допуск размера Т, мм |
Расчетный припуск 2Zном.р мм. |
Расчетный размер D, мм. |
Принятые размеры, мм. |
Принятые припуски, мм. |
Операционные размеры, мм. |
||||||
| Rz |
h |
D |
e |
2Zmin.p |
T |
2Zном.р |
Dp. |
Dmax. |
Dmin. |
2Zmax |
2Zmin |
||||
| Поверхность 7[Æ 60 h7 (-0.03)] |
|||||||||||||||
| Штамповка |
200 |
250 |
780 |
– |
– |
+1.2 -0.6 |
– |
64.926 |
67.2 |
65.4 |
– |
– |
66 -0.6+1.2 |
||
| 5 |
Точение черновое |
120 |
120 |
46.8 |
250 |
2538.16 |
-0.3 |
3.138 |
61.788 |
61.9 |
61.6 |
5.6 |
3.5 |
61.9-0.3 |
|
| 20 |
Точение получистовое |
60 |
60 |
39 |
140 |
775.228 |
-0.12 |
1.075 |
60.713 |
60.8 |
60.68 |
1.22 |
0.8 |
60.8-0.12 |
|
| 30 |
Точение чистовое |
20 |
20 |
31.2 |
60 |
373.122 |
-0.046 |
0.503 |
60.205 |
60.3 |
60.254 |
0.546 |
0.38 |
60.3-0.046 |
|
| 95 |
Шлифование |
10 |
10 |
15.6 |
25 |
159.96 |
-0.03 |
0.205 |
60 |
60 |
59.97 |
0.33 |
0.254 |
60-0.03 |
|
| Поверхность 3 [Æ 50 H8 (+0.06)] |
|||||||||||||||
| Штамповка |
200 |
250 |
780 |
– |
– |
+1.2 -0.6 |
- |
44.614 |
44.2 |
42.4 |
- |
- |
43-0.6+1.2 |
||
| 10 |
Растачивание черновое |
120 |
120 |
132.6 |
140 |
2484.9 |
+0.46 |
3.084 |
47.698 |
47.96 |
47.5 |
5.56 |
3.3 |
47.5+0.46 |
|
| 25 |
Растачивание получистовое |
80 |
80 |
110.5 |
60 |
771.08 |
+0.19 |
1.231 |
48.929 |
49.99 |
48.8 |
1.49 |
0.84 |
48.8+0.19 |
|
| 35 |
Растачивание чистовое |
35 |
35 |
88.4 |
25 |
446.58 |
+0.12 |
0.638 |
49.567 |
49.62 |
49.5 |
0.82 |
0.51 |
49.5+0.12 |
|
| 90 |
Шлифование |
5 |
5 |
44.2 |
25 |
323.73 |
+0.06 |
0.443 |
50 |
50.06 |
50 |
0.56 |
0.38 |
50+0.06 |
|
Таблица 6.2
| № |
Элементарная пов-ть детали. Технологический маршрут ее обработки |
Расчетный припуск, мм |
Допуск размера Т, мм |
Расчетный припуск 2Zном.р мм. |
Расчетный размер D, мм. |
Принятые размеры, мм. |
Принятые припуски, мм. |
Операционные размеры, мм. |
|||||
| 2Zmin.p |
T |
2Zном.р. |
Dp. |
Dmax. |
Dmin. |
2Zmax |
2Zmin |
||||||
| Поверхность 2 [Æ 70 h12 (-0.3)] |
|||||||||||||
| Штамповка |
- |
+1.7 -0,9 |
- |
75,55 |
77,7 |
75,1 |
- |
- |
76+1.7-0,9 |
||||
| 10 |
Точение черновое |
2 |
-0.74 |
2,9 |
72,65 |
72,7 |
71,96 |
5.74 |
2.4 |
72,7-0.74 |
|||
| 25 |
Точение получистовое |
0,85 |
-0.46 |
1,59 |
71,06 |
71,1 |
70,64 |
2.06 |
0,86 |
71,1-0.46 |
|||
| 35 |
Точение чистовое |
0,6 |
-0.3 |
1,06 |
70 |
70 |
69,3 |
1.8 |
0.64 |
70-0.3 |
|||
| Поверхность 6 [Æ114h12 (-0.35)] |
|||||||||||||
| Штамповка |
- |
+1,7 -0,9 |
- |
119,66 |
121,7 |
119,1 |
- |
- |
120-0,9+1,7 |
||||
| 5 |
Точение черновое |
2 |
-0,85 |
2,9 |
116,76 |
116,8 |
115,95 |
5.75 |
2.3 |
116,8-0,85 |
|||
| 20 |
Точение получистовое |
0,85 |
-0.46 |
1,7 |
115,06 |
115,1 |
114,64 |
2.16 |
1.85 |
115,1-0.46 |
|||
| 30 |
Точение чистовое |
0,6 |
-0.35 |
1.06 |
114 |
114 |
113,65 |
1.45 |
0.64 |
114-0.35 |
|||
| Поверхность 8 [Æ 45 H8 (+0.25)] |
|||||||||||||
| 5 |
Сверление |
0,55 |
+0,62 |
- |
43,14 |
43,72 |
43,1 |
- |
- |
43,1+0.62 |
|||
| 40 |
Зенкерование |
0,5 |
+0,39 |
1,12 |
44,26 |
44,59 |
44,3 |
1,499 |
0,58 |
44,3+0.39 |
|||
| 95 |
Развертывание |
0,35 |
+0,25 |
0,74 |
45 |
45,25 |
45 |
0,95 |
0,41 |
45+0.25 |
|||
7. Расчет припусков и операционных размеров на обработку торцевых поверхностей
7.1 Определение припусков
Величину минимального припуска на обработку торцевой поверхности определяют по формуле:
,
где Rzi -1 и hi -1 – соответственно шероховатость и глубина дефектного слоя на предыдущей ступени обработки; Дi -1 – величина пространственных отклонений на предыдущей ступени обработки; еi – погрешность установки детали в данной ступени обработки.
Номинальный припуск:
,
где Ti -1 – допуск размера на предыдущей обработке.
Результаты расчета операционных припусков на обработку торцевых поверхностей нормативным и расчетно-аналитическим методом сведены в табл. 7.1.
Таблица 7.1
| Номер торца |
Маршрут обработки |
Эл-ты припуска, мкм |
Расчетный припуск Zmin.р, мм |
|||
| Rz |
h |
D |
e |
|||
| 1,9 |
Штамповка |
200 |
250 |
1800 |
- |
- |
| Подрезка торца черновая |
80 |
80 |
108 |
200 |
0,71 |
|
| Подрезка торца чистовая |
20 |
20 |
72 |
40 |
0.31 |
|
| 4,5,10 |
Штамповка |
- |
||||
| Подрезка торца Черновая |
0,65 |
|||||
| Подрезка торца чистовая |
0,2 |
|||||
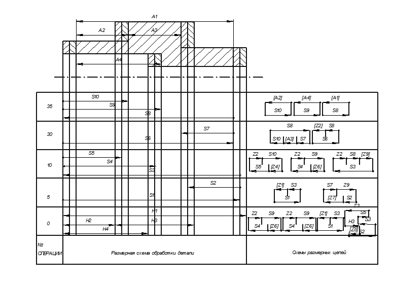
7.2 Разработка и анализ размерной схемы обработки торцевых поверхностей детали
Расчёт линейных операционных размеров начинают с построения размерной схемы технологического процесса. Основой для построения схемы служит план технологического процесса.
Размерную схему необходимо строить, располагая эскизами плана обработки детали, следующим образом. Вычерчивают контур готовой детали, утолщёнными линиями указывают координаты торцов поверхностей в соответствии с координацией размеров на рабочем чертеже.
С учётом количества обрабатываемых торцевых поверхностей на эскизе детали условно показывают операционные припуски вплоть до соответствующего размера заготовки. Затем все исходные, промежуточные и окончательные торцевые поверхности нумеруются слева направо.
Через пронумерованные поверхности проводятся вертикальные линии. Между вертикальными линиями, начиная с последующей операции, с учётом эскизов обработки, указывают технологические размеры (обозначаем Sn ). Размер представлен в виде стрелок с точкой, причём точка совмещена с установочной базой, а стрелка своим остриём упирается в ту поверхность, которую мы получили на данной операции, после снятия соответствующего межоперационного припуска.
После построения размерной схемы мы можем составить размерные цепи. В качестве замыкающих звеньев выступают конструкторские размеры или размеры припусков, в качестве составляющих, искомых звеньев, выступают операционные размеры, которые функционально связывают торцевые поверхности на всех операциях от заготовительной до окончательной.
Размерная схема представлена на рис. 7.1

Рис. 7.1. Размерная схема
7.3 Расчет технологических размерных цепей торцевых поверхностей детали
Выявление и расчет технологических размерных цепей начинают с двухзвенных цепей. А затем в такой последовательности, чтобы в каждой цепи имелось только одно неизвестное звено. Остальные звенья уже определены расчетом предыдущих размерных цепей. Для выполнения этого условия необходимо начинать выявление и расчет цепей в последовательности, обратной выполнению операций в технологическом процессе изготовления шестерни.
Любой замкнутый контур на размерной схеме, включающий в себя только один конструкторский размер или один припуск, образует технологическую размерную цепь.
Значения минимальных припусков Zi-jmin на формообразующие операции принимаем из расчета операционных размеров-координат нормативным методом и заносим в табл. 7.2. Определив Zi-jmin составляем исходные уравнения размерных цепей относительно Zi-jmin:
![]()
где Хr min – наименьший предельный размер увеличивающего звена размерной цепи;
Хq max – наибольший предельный размер уменьшающего звена размерной цепи;
nr – число увеличивающих звеньев;
nq – число уменьшающих звеньев.
Обозначим определяемый операционный размер ХХ, тогда если искомый размер является уменьшающим звеном, получаем:
![]()
А если искомый размер является увеличивающим звеном, то:
![]()
Определив величины XX max, XX min на размеры ХХ, устанавливаем допуск на операционный размер дХ.
Полученные расчетные уравнения и значения операционных размеров заносим в таблицу 7.2. Далее по заранее составленным уравнениям рассчитываем номинальные размеры и предельные отклонения операционных припусков. Вычисленные значения вносим в табл. 7.2.
| Замыкающий размер |
Исходное уравнение |
Расчетный размер, мм |
T, мм |
Принятый размер, мм |
Предельное значение припуска, мм |
| A2 =60+0.3 |
A2 =S10 |
60 |
+0.09 |
60+0.09 |
|
| A4 =65+0.3 |
A4 =S9 |
65 |
+0.3 |
65+0.3 |
|
| A1 =150-0.3 |
A1 =S8 |
115 |
-0.08 |
115-0.08 |
|
| A3 =22-0.21 |
A3 =S8 -S10 -S7 |
A3min =S8min -S10max -S7max ; S7max =S8min -S10max -A3min =114,92-60-21,79=33,13 |
+0.04 |
33,+0.04 |
A3 =115-0,08 -600,009 -330,04 =22-0,21 |
| Z2min =0.31 |
Z2min =S6 -S8 |
Z2min =S6min -S8min ; S6min =Z2min +S8max =0,31+115=115,31 |
-0.35 |
115,7-0.35 |
Z2 =115,7-0.35 -115-0.08 =0.7-0.35 +0.08 |
| Z4min =0.2 |
Z4 =S10 +Z2 -S5 |
Z4min =S10min +Z2min -S5max; S5max =S10min +Z2min -Z4min =59,91+0,31-0,2=60,02 |
+0.046 |
59,9+0.046 |
Z4 =60+0.09 +0.7-0.35 +0.08 -59,9+0.046 = =0,8-0,504 +0.08 |
| Z6min =0.2 |
Z6 =S9 +Z2 -S4 |
Z6min =S9min +Z2min -S4max ; S4max =S9min +Z2min -Z6min =64,7+0,31-0,2=64,81 |
+0.3 |
64,5+0.3 |
Z6 =65+0.3 +0.7-0.35 +0.08 -64.5+0.3 = =1.2-0.95 +0.08 |
| Z9min =0.31 |
Z9 =S8 +Z2 - S3 |
Z9min =S8min +Z2min -S3max ; S3max =Z2min +S8min +Z9min =114.92+0.31-0.31=114.92 |
+0.3 |
114.7+0.3 |
Z9 =114,92-0.08 +0.70.08 -0.35 -114.7+0.3 = =0.92-0.43 +0.08 |
| Z1min =0.71 |
Z1 =S1 –S3 |
Z1min =S1min -S3max ; S1min =Z1min +S3max =0.71+114.92=115.63 |
-0.3 |
116,3-0.3 |
Z1 =116,3-0.3 –114.9+0.3 = =1.4-0.6 |
| Z7min =0.2 |
Z7 =S7 +Z9 -S2 |
Z7min =S7min +Z9min -S2 max ; S2max =S7min +Z9min -Z7min =33.09+0.31-0.2=33.2 |
+0.21 |
32.9+0.21 |
Z7 =33+0.04 +0.92-0.43 +0.08 - -32.9+0.21 =1,02-0.64 +0.12 |
| Z5min =0.65 |
Z5 =S4 +Z1 -H4 |
Z5min =S4min +Z1min -H4max ; H4max =S4min +Z1min -Z5min =64.81+0.71-0.65=64.87 |
+1.3 -0.7 |
63.3-0.7 +1.3 |
Z5 =64.5+0.3 +1.4-0.6 - -63.3-0.7 +1.3 =2.6-1.9 +1.0 |
| Z3min =0.65 |
Z3 =S5 +Z1 -H2 |
Z3min =S5min +Z1min -H2max ; H2max =S5min +Z1min -Z3min =60.02+0.71-0.65=60.08 |
+1.3 -0.7 |
58.8-0.7 +1.3 |
Z3 =59.9+0.046 +1.4-0.6 -58.8-0.7 +1.3 = =2.6-1.9 +0.746 |
| Z10min =0.71 |
Z10 =S1 –H1 |
Z10min =S1min -H1max ; H1max =S1min -Z10min =115.93-0.71=115.22 |
+1.3 -0.7 |
114-0.7 +1.3 |
Z10 =116,3-0.3 -114-0.7 +1.3 = =2.3-1.6 +0.7 |
| Z8min =0.71 |
Z8 =H3 +S2 +S5 -S3 -Z3 |
Z8min =H3min +S2min +S5min -S3max -Z3max H3min =S3max +Z8min +Z3max -S2min -S5min = =114.92+0.71+0.65-32.99-59.974=23.316 |
+1.3 -0.7 |
25-07 +1.3 |
Z8 =25-0.7 +1.3 +32,9+0.21 +59.9+0.046 - -114.7+0.3 +3.346-1.9 +0.746 =4.515-3.09 +5.85 |
Метод выполнения заготовки для деталей машин определяется назначением и конструктивными особенностями детали, материалом, технологическими требованиями. Выбор заготовки определяет метод ее получения и припуски на ее изготовление. Припуск представляет собой слой металла, подлежащий в процессе обработки удалению, чем обеспечиваются необходимые размеры, класс точности и величины шероховатости поверхности. Установление оптимальных припусков является важнейшим технологическим показателем.
Для разработки чертежа поковки и операции штамповки используются следующие исходные данные:
1. Материал детали: сталь 20Х;
2. Точность изготовления поковки: поскольку производство серийное, то возникает необходимость удешевления стоимости изготовления, уменьшения времени на выполнение операции и увеличения стойкости инструмента, поэтому принимаем II класс точности заготовки;
3. Группа стали – М1, поскольку поковка изготавливается из низколегированной стали с содержанием легирующих элементов менее 2% [12, с. 4].;
4. Конфигурация поверхности разъема штампа – плоская ( П );
5. Степень сложности – С2 [12, с. 5].
Степень сложности определяем по отношению объема поковки GП к объему геометрической фигуры, в которую вписывается поковка.
Заготовку получаем штамповкой на ковочном молоте. Допуски на размеры и штамповочные уклоны приняты по ГОСТу 7505-55.
8 . Оформление конечного варианта плана технологического процесса изготовления шестерни
Наиболее существенное влияние на последовательность обработки поверхностей детали оказывает характер размерной связи. Анализируя форму детали и проставленные на рабочем чертеже размеры, можно установить, что основными технологическими базами могут служить:
1. Торцы детали – в качестве опорной базы, лишающей заготовку одной степени свободы.
2. Наружные поверхности в качестве направляющих баз.
3. Внутренние поверхности, лишающие заготовку четырех степеней свободы.
При обработке желательно свести к минимуму погрешность установки, чтобы обеспечить требования к точности и шероховатости поверхностей. Этого можно добиться, предварительно подготовив базы – торец и отверстие заготовки.
На чертеже детали в качестве конструкторской базы для диаметральных размеров принята ось детали, однако, исходя из невозможности использования оси в качестве технологической базы, в качестве установочных используем внешние и внутренние цилиндрические поверхности.
Анализируя чертеж детали, можно сказать, что для обеспечения наибольшей точности получаемых линейных размеров целесообразнее всего в качестве установочных баз использовать торцы 1, 7, поскольку с ними связано наибольшее количество размеров.
Первый этап технологического процесса – заготовительный – предполагает получение заготовки детали. Для данного способа (штамповка на кривошипном горячештамповочном прессе) точность получаемых размеров на уровне 16 квалитета, а шероховатость RZ = 160мкм.
На втором этапе проводим черновую обработку детали, которая включает в себя черновую обработку основных технологических баз, снятие корки, образовавшейся в процессе штамповки.
Следующим этапом технологического процесса является получистовая обработка поверхностей. На этом этапе выполняются формообразующие операции такие как: точение наружных и внутренних цилиндрических поверхностей вращения, сверление радиальных отверстий, точение фасок и галтелей, фрезерование пазов.
Материал детали – сталь 30ХМА. Для создания благоприятного распределения внутренних напряжений и формирования необходимой структуры материала, а также физико-механических свойств проводится химико-термическая обработка – нитроцементация с последующей закалкой и отпуском.
Чистовая обработка детали производится на шлифовальных операциях для придания поверхностям вращения шестерни заданной точности и шероховатости.
В конце технологического процесса проводятся операции окончательного контроля и консервации детали, предназначенные для контроля всех геометрических параметров детали и предохранения ее от внешних воздействий.
Заключение
В результате выполнения данного курсового проекта в соответствии с общими правилами разработки технологических процессов был решён комплекс задач размерного анализа: построена оптимальная размерная структура техпроцесса, определена рациональная последовательность операций, рассчитаны припуски, операционные размеры и допуски. Предшествовали этому такие важнейшие этапы, как выбор вида исходной заготовки, метода её изготовления, определение технологических баз, разработка вариантов технологического маршрута обработки. Это позволило обоснованно подходить к размерным расчётам с учётом всех особенностей конкретного технологического процесса
Перед разработкой технологического процесса изготовления детали – вала-шестерни был детально проанализирован чертеж детали на вопрос ее технологичности.
Разработка технологического процесса начиналась с составления плана его этапов, в котором предварительно была намечена последовательность обработки различных поверхностей.
Последовательность операций обработки детали приняли согласно предварительно разработанному плану этапов технологического процесса.
При разработке переходов операций были учтены правила теории базирования в целях получения кондиционных размеров без ужесточения технологических допусков, точности приспособлений, что в конечном итоге удешевляет производство и повышает его экономические показатели.
Также были рассчитаны припуски на обработку и операционные размеры поверхностей вращения и плоских торцевых поверхностей вала нормативным и расчетно-аналитическим методом. После сравнения результатов были найдены оптимальные варианты значений припусков.
По результатам расчета припусков на диаметральные поверхности и торцевые поверхности был спроектирован чертеж заготовки.
Список используемой литературы
1. Сорокин В.Г. и др. Марочник сталей и сплавов. – М.: Машиностроение, 1989. – 640 с.
2. Справочник технолога-машиностроителя. В 2-х т. Т. 1. / Под ред. А.Г. Косиловой и Р.К. Мещерякова.– 4-е изд., перераб. и доп. – М.: Машиностроение, 1985. 656 с., ил.
3. Справочник технолога-машиностроителя. В 2-х т. Т. 2. / Под ред. А.Г. Косиловой и Р. К. Мещерякова.– 4-е изд., перераб. и доп. – М.: Машиностроение, 1985. 496 с., ил.
4. Методы обработки поверхностей. Методические рекомендации по выполнению лабораторных работ. А. Ф. Горбачев, А.М. Мунгиев, С.В. Худяков, С.В. Яценко. Харьков, ХАИ – 46 с.
5. Якушев А.И., Воронцов Л. Н., Федотов Н.М. Взаимозаменяемость, стандартизация и технические измерения. М.: “Машиностроение”, 1987г.
6. Проектирование поковок, оснастки и технологических процессов горячей объемной штамповки/ В. К. Борисевич, Ю.И. Чебанов. – Учеб. пособие по курсовой работе «Обработка металлов давлением». – Харьков, Харьк. авиац. ин-т, 1992. – 66 с.
7. Брюханов А.Н. Ковка и объемная штамповка. Учебное пособие для машиностроительных вузов. Изд. 2-е, перераб. и доп. М., «Машиностроение», 1975. 408 с. с ил.