| Скачать .docx |
Курсовая работа: Расчет металлорежущих инструментов
МИНИСТЕРСТВО ОБРАЗОВАНИЯ И НАУКИ УКРАИНЫ
ДОНЕЦКИЙ НАЦИОНАЛЬНЫЙ ТЕХНИЧЕСКИЙ УНИВЕРСИТЕТ
Механический факультет
Кафедра «Металлорежущие станки и инструменты»
КУРСОВОЙ ПРОЕКТ
По дисциплин е : «Металлорежущий инструмент»
На тему: «Расчет металлорежущих инструментов»
ПК 04.29.86.00.00.000
Исполнитель
Студент гр. МС 05а А.Е. Кондратенко
Консультант Ю.А. Гринев
Нормоконтролер И.В. Киселева
ДОНЕЦК 2008
ЗАДАНИЕ
Обрабатываемый материал cталь ст.5
1. Спроектировать долбяк для обработки зубчатых колес m=3.75 мм, z1 =25, z2 =40, Ст. 7-D.
2. Спроектировать комбинированную развертку для обработки отверстий d1 =20H7 мм, d2 =28H7 мм, l1 =28 мм l2 =35 мм, Ra=2.5 мкм.
3. Спроектировать протяжку для обработки шлицевой втулкиD-2×35F7×41.6+0.2 ×8±0.018, L=31 мм, Rz=40
4. Разработать карту наладки для заточки долбяка по задней поверхности
РЕФЕРАТ
Объект исследования: протяжка шлицевая, развертка комбинированная, долбяк для обработки зубчатых колес,
Цель работы: спроектировать указанные инструменты и разработать карту наладки для заточки долбяка по задней поверхности.
В курсовом проекте приведены расчеты всех параметров и размеров указанных инструментов, выбраны материалы для изготовления инструмента.
Разработаны рабочие чертежи рассчитываемых инструментов.
ПРОТЯЖКА, РАЗВЕРТКА, ЗАГОТОВКА, ДОЛБЯК, ХВОСТОВИК, МОДУЛЬ, ДОПУСК,ЗУБ, ПРОФИЛЬ.
СОДЕРЖАН ИЕ
ВВЕДЕНИЕ
1 РАСЧЕТ ШЛИЦЕВОЙ ПРОТЯЖКИ
1.1 Исходные данные для расчета комбинированной протяжки
1.2 Выбор конструкции и материала протяжки
1.3 Выбор типа хвостовика и его размеров
1.4 Определение профиля и геометрических пораметров зубьев протяжки
1.5 Выбор станка
1.6 Расчет шлицевой части протяжки
1.7 Определение конструктивных размеров протяжки
1.8 Расчет резьбового соединения
2 РАСЧЕТ КОМБИНИРОВАННОЙ РАЗВЕРТКИ
2.1 Исходные данные для расчета комбинированной развертки
2.2 Диаметр развертки
2.3 Геометрические параметры развертки
2.4 Распределения зубьев развертки
2.5 Глубина стружечной канавки
2.6 Хвостовик развертки
3 РАСЧЕТ ДОЛБЯКА
3.1 Исходные данные для проектирования долбяка
3.2 Определение дополнительных технологических данных, необходимых длярасчета долбяка
3.3 Определение геометрических параметров долбяка
3.4 Определение размеров долбяка в исходном сечении
3.5 Определение исходных расстояний долбяка
3.6 Определение высоты долбяка
3.7 Определение размеров долбяк по передней поверхности
ЗАКЛЮЧЕНИЕ
СПИСОК ИСПОЛЬЗОВАННОЙ ЛИТЕРАТУРЫ
ВВЕДЕНИЕ
Целью данного курсового проекта является расчет и проектирование металлорежущих инструментов: протяжка шлицевая, развертка комбинированная и долбяк для обработки зубчатых колес.
Протягивание является одним из наиболее высокопроизводительных процессов обработки деталей резанием. Высокая производительность процесса протягивания объясняется тем, что одновременно находится в работе несколько зубьев инструмента с большой суммарной длиной режущих кромок. Протягивание позволяет получать поверхности высокой точности (6-го – 8-го квалитетов точности) и низкой шероховатости (Ra=0.63-0.25 мкм).
Наиболее широкое применение получили протяжки для обработки шлицевых отверстий. При центрировании шлицевой втулки на валу, по внутреннему диаметру, для обеспечения более высокой точности центрирования необходимо протягивать одной протяжкой внутренний диаметр, шлицевые канавки и фаски.
Комбинированные развертки используют при обработки ступенчатых отверстий, высокой точности, небольших и средних диаметров, в крупносерийном и массовом производстве.
Долбяки применяют для изготовления прямозубых и косозубых цилиндрических зубчатых колес внутреннего и внешнего зацепления. Зацепление долбяка с зубчатым колесом в процессе нарезания аналогично зацеплению коррегированной зубчатой передачи
1 РАСЧЕТ ШЛИЦЕВОЙ ПРОТЯЖКИ
1.1 Исходные для расчета комбинированной протяжки
Исходными данными для расчета комбинированной шлицевой протяжки группового резания являются:
- материал обрабатываемой детали сталь 38ХМ;
- внешний диаметр шлицев D=41.6+0.2 мм ;
- внутренний диаметр шлицев d=35F7 мм;
- число шлицев n=2;
- ширина шлицев b=8±0.018 мм;
- способ центрирования шлицевого соединения: по D;
- длина втулки, которая протягивается, L=31 мм;
- длина всей втулки (включая ту часть которая протягивается), Lв =61h12мм
- шероховатость обработки Rz 40
1.2 Выбор конструкции и материала протяжки
1.2.1 Анализ и техническое обоснование принятой конструкции протяжки
Конструктивные особенности, суммарная длина и технологичность изготовления шлицевых протяжек во многом зависят от принятой последовательности срезания припуска, т.е. от комбинации зубьев, которые обрабатывают те или иные элементы шлицевой втулки.
При обработке втулки для шлицевого соединения с центрированием по внешнему диаметру (D) или боковым поверхностям шлицев (b) протяжка имеет только фасочные и шлицевые группы зубьев. При центрировании по внутреннему диаметру шлицев протяжка должна содержать дополнительно круглые зубья.
В нашем случае пртяжка является сборной и состоит из стержня и двух сменных лезвий, которые вводятся в призматические пазы стержня протяжки и закрепляются в них с помощью шайбы и 4-х штифтов.
В нашем случае фаски в основании шлицевых пазов отсутствуют, следовательно сменные лезвия будут иметь только шлицевые зубья.
Преимуществами данной конструкции протяжки по сравнению с плоской протяжкой являются:
- лучшее центрирование данной протяжки относительно обрабатываемой втулки;
- возможность замены предельно сточенных лезвий новыми;
- меньший расход быстрорежущей стали ,идущей на производство сменных лезвий.
1.2.2 Выбор материала протяжки
Материал режущей части протяжки выбирается в зависимости от обрабатываемого материала, его физико-механических свойств, типа протяжки, характера производства. В данном случаематериалом режущей части протяжки является быстрорежущая сталь Р6М5, материалом стержня протяжки является сталь 40ХМ [3,стр. 7,табл. 1].
1.3 Выбор типа хвостовика и его размеров
Тип хвостовика и его размеры выбирают в зависимости от вида патрона протяжного станка, преимущество следует отдавать быстросменным патронам.
Диаметр хвостовика должен быть меньше диаметра предварительно обработанного отверстия D0 не менее, чем на 0,3 мм для свободного входа хвостовика в деталь.
Do =35F7 мм;
мм, принимаем
мм [3, стр.8, табл.2].
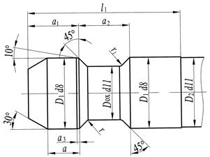
Таблица 1.1 – Основные размеры хвостовиков под быстро сменные патроны, в мм
| D1 | D2 | a | a1 | a2 | r | r1 | a3 | Fox | l1 |
| 32 | 25 | 20 | 32 | 32 | 0.4 | 1.6 | 1.0 | 490.9 | 96 |
![]() |
Рисунок 1.1 - Основные размеры хвостовика протяжки
1.4 Определение профиля и геометрических пораметров зубьев протяжки
1.4.1 Выбор размеров и профиля стружечных канавок
У протяжек шаг черновых и переходных зубьев на всех частях протяжки принимается одинаковым и равным
, мм
где L – длина обрабатываемой втулки;
К =1,9- для групповой схемы резания [3,стр.8].
мм.
![]() |
Рисунок 1.2 – Форма и размеры профиля зубьев протяжки
Таблица 1.2 – Размеры профилей зубьев протяжки в (мм).
| t | h | r | q | R | Fa |
| 11 | 4.5 | 2.25 | 4 | 7 | 15.9 |
Для обеспечения нормальной работы протяжки без вибраций и удовлетворительного качества обработанной поверхности должно выполняться неравенство
2 £ Zодн £ 6...7,
где
- количество одновременно работающих зубьев
![]()
![]()
Целая часть показывает минимальное количество одновременно работающих зубьев Zmin , а величина Zmax = Zmin +1 – максимальное количество одновременно работающих зубьев.
![]()
1.4.2 Выбор геометрических параметров протяжки
Величины передних углов зубьев протяжки зависят от обрабатываемого материала [3, стр.10, табл.4]. Передний угол g влияет на усилие протягивания, чистоту обработанной поверхности и стойкость протяжки. Для черновых и переходных зубьев величина переднего угла выбирается в зависимости от обрабатываемого материала.
Задний угол a выбирается в зависимости от точности обработки [3, стр.10, табл.4]. Задний угол aслужит для уменьшения трения задней поверхности зуба об обрабатываемую поверхность. С увеличением заднего угла уменьшается величина износа по задней поверхности зуба протяжки. Однако с увеличением заднего угла ослабляется режущая кромка и ухудшается отвод тепла от зуба протяжки; это ограничивает величину заднего угла. Кроме того, величина заднего угла на черновых зубьях ограничена тем, что при значительных величинах задних углов протяжка быстро теряет диаметральные размеры после перетачивания по передней поверхности.
На калибрующих зубьях, для которых важно сохранить поперечные размеры, задний угол меньше, чем в черновых. Кроме того, для сохранности размера при перетачиваниях на задних гранях калибрующих зубьев у протяжек для внутреннего протягивания шлифуют цилиндрические ленточки шириной f=0,2-0,6 мм. Калибрующие зубья протяжек для цилиндрических отверстий допускается изготовливать без ленточек.
Таблица 1.3 – Геометрические параметры протяжек группового резания
| Вид зубьев | Передние углы g в зависимости от обрабатываемого материала | Задние углы a в зависимости от точности обработки |
| Сталь 38ХМ | 10-й квалитет и ниже | |
| св. HB 180 | ||
| Черновые, переходные | 15° | 3° |
| Чистовые | 5° | 2° |
| Калибрующие | 5° | 2° |
1.4.3 Определение подъемов на зуб
Черновые зубья протяжки объединены в группы по два зуба в каждой. Подъем на черновую группу рассчитывается по формуле
Sz ч = Fакт /(L×Kдоп ), мм/гр,
где Fакт – активная площадь стружечной канавки зубьев протяжки
Kдоп =3 – минимально допустимый коэффициент заполнения стружечной канавки [3,стр.10,табл. 5],
Kдоп приннимаем равным 3.3, так как b≥1,2 ÖD [3,стр.10,прим. 1],
![]()
мм/гр., принимаем ![]()
На переходной части протяжки зубья также объединены в двузубые группы. Подъем на переходную группу выбирается в зависимости от найденной Szч [3,стр.11,табл.7].
Таблица 1.4 - Подъем на переходную группу зубьев протяжки
| Подъем на черновых зубmях Szч, мм | Припуск на переходные зубmz Апер, мм | Количество переходных секций | Распределение припуска по секциям, мм | ||
| 1 секция | 2 секция | 3 секция | |||
| 0,16 | 0,32 | 2 | 0.214 | 0.106 | - |
Подъем зубьев на чистовой части, число чистовых и калибрующих зубьев зависит от точности обработки, квалитета и шероховатости обработанной поверхности [3,стр.11,табл.8].
Чистовые зубья протяжки выполняют несекционированными с подъемом на каждый зуб.
Таблица 1.5 – Подъем зуб ье в на чистовой части, число чистовых и калибрую щ их зуб ье в
| Вид зубьев | Шлицевые | |
| Общий припуск на чистовые зубья на диаметр,мм | 0,08 | 0,08 |
| Число чистовых зубьев с подъемом Sz= 0,02 | 1 | 2 |
| Число чистовых зубьев с подъемом Sz = 0,01 | 2 | - |
| Число калибрующих зубьев | 4 | 3 |
1.5 Выбор станка
1.5.1 Расчет сил резания при протягивании
Для выбора станка необходимо определить силы резания, которые возникают при протягивании на разных частях комбинированной протяжки. Максимальные силы резания возникают при работе черновых зубьев, поэтому при выборе станка учитывают только их.
Сила резания, которая возникает во время работы черновых зубьев протяжки, зависит от параметров среза и обрабатываемого материала
P=SZ pb1 Zmax , Н,
где SZ – подъем на группу зубьев, мм/зуб;
р=3140 H/мм2 – удельная сила резания, которая приходится на единицу длины режущей кромки зуба, Н/мм2 [3, стр. 12,табл.10];
Zmax – максимальное число одновременное работающих зубьев;
b1 - длина режущей кромки одного зуба, мм.
мм
где b – ширина шлицевого паза, мм,
Zі =2 – количество зубьев в группе шлицевой части протяжки,
n – количество шлицев.
![]()
![]()
1.5.2 Выбор модели станка
Для эффективной работы станков необходимо их оптимальное использование по мощности. Наиболее рациональным является использование мощности станка на (80-90)%. По максимальной рассчитанной силе резанияP=12057.6 выбираем станок модели 7Б510 [3,стр.13, табл.11].
Таблица 1.6 - Характеристики протяж ного станк а 7Б510
Номинальное тяговое усилие станка Q, Н Максимальная длина рабочего хода, гг |
100000 1250 |
| Границы скорости рабочего хода протяжки в м/мин | 1-9 |
| Мощность электродвигателя, квт | 10 |
Минимальный размер от торца хвостовика протяжки к первому зубу, который режет lс т = l1 +l2 +l3 +l4 |
190 + Lв |
1.5.3 Определение скорости резания
Скорость резания при протягивании значительно меньше, чем при других видах обработки. В зависимости от обрабатываемого материала, конструкции и материала протяжки, подачи, характера выполняемой работы, требований к точности и чистоте поверхности скорость резания по стали и чугуну составляет, как правило, от 0,5 до 15 м/мин.
Выбраная скорость резания должна быть проверена по мощности станка. Необходимая мощность станка N определяется по известной величине усилия протягивания Р и назначенной скорости V с учетом КПД станка, который принимается равным 0,8...0…0,9. Мощность резания определяется зависимостью
N=0,13PV, квт,
Скорость резания Vпринимаем равной 5 м/мин [3, стр.13, табл. 9].
квт
1.5.4 Проверка протяжки на прочность
Для того, чтобы в процессе работы не состоялось разрыва протяжки, необходимо сделать ее проверку на прочность по опасному сечению. Опасным сечением протяжки является то,в котором ее диаметр минимальный. В зависимости от размеров обрабатываемой втулки опасным может быть сечение, которое проходит через минимальный диаметр хвостовика, или сечение, которое проходит по впадине первого зуба. Необходимо проверить выполнение двух условий:
1) условие отсутствия опасности разрыва протяжки по хвостовику
Рдоп ³Qh,
где Рдоп - допустимое разрывное усилие для хвостовика, Н,
Q – тяговое усилие станка, Н,
h=0.9 – КПД станка.
Допустимое разрывное усилие для хвостовика рассчитывается по формуле
Pдоп = Fox ×[sp ]×Kи , Н
где Fox – площадь опасного сечения, мм2 ;
[sp ] – допустимое напряжение на растягивание:
для стали 40Х – [sp ] = 250 Мпа[3, стр.14].
Kи – коэффициент, который учитывает влияние изгиба протяжки (Kи = 0,9).
,
![]()
2) Следовательно условие отсутствия опасности разрыва протяжки по хвостовику выполняется.
3) условие отсутствия опасности разрыва протяжки по впадине первого зуба
,
где Dоп = Do – 2h - минимальный диаметр протяжки в сечении, которое проходит по впадине первого зуба,
Do =d– диаметр отверстия до протягивания, мм,
h – глубина стружечной канавки, мм,
[sр ] – допустимое напряжение материала протяжки на разрыв:
для быстрорежущей стали [sр ] = 400 Мпа [3, стр.14].
![]()

Следовательно условие отсутствия опасности разрыва протяжки по впадине первого зуба выполняется.
1.6 Расчет шлицевой части протяжки
1.6.1 Припуск на шлицевые зубья
В нашем случае, припуск снимаемый шлицевыми зубьями расчитывается по следующей формуле
Аш = Dmax -d – EId . , мм,
где d– диаметр отверстия до протягивания, мм,
Dmax – максимальный внешний диаметр втулки, которая протягивает, с учетом допуска и разбивание, мм,
dmax = d+T±d,
T =0.2 мм– допуск на диаметр,
d - величина изменения диаметра отверстия после протягивания, разбивание (+), усадка (-),
При обработке конструкционных сталей или чугунов происходит разбивание отверстия. Величина разбивания составляет d=(0,005-0,01) мм. Примем d=+0,01 мм.
EId =0.025 мм– нижнее отклонение диаметра отверстия до протягивания .
dmax = 41.6+0.2+0.01=41.81 мм,
Аш = 41.81 - 35 – 0.025= 6.785. мм.
Весь припуск Аш снимают черновые, переходные и чистовые зубья протяжки.
Припуск на черновую часть рассчитывают по формуле
Ашч = Аш – (Аш пер + Аш чист ), мм,
где Аш пер =0.32 мм– припуск, снимаемый переходными зубьями протяжки,
Аш чист =0.08 мм– припуск, снимаемый чистовыми зубьями протяжки.
Ашч = 6.785 – (0.32 + 0.08)=6.385 мм.
1.6.2 Расчет количества зубьев
Количество черновых секций
, шт.
где Sшч =0.16– подъем на зуб в черновых секциях.
,
принимаем
.
Количество черновых зубьев
Zшч =2ішч .+1
Единица прибавляется из-за того, что первый зуб протяжки выполняется без подъема - его диаметр равняется диаметру предварительно обработанного отверстия с нижним отклонением. Это делается для того, чтобы избежать случайного увеличения нагрузки на первый зуб из-за неравномерности припуска, побочных включений в металл и др.
.
Количество переходных зубьев
Zшпер =2ішпер ,
где ішпер =2 [3,стр.11,табл. 7]- количество переходных секций.
![]()
Количество чистовых зубьев Zшчист =2 [3,стр.11,табл.8]. Количество калибрующих зубьев Zшкал =3 [3,стр.11,табл. 8].
1.6.3 Расчет допуска на ширину шлицев протяжки
Ширина шлицев на протяжке должна обеспечить ширину паза шлицевой втулки в пределах поля допуска. Во время работы происходит разбивание паза. поэтому допуск на изготовление шлицев протяжки не совпадает с допуском на ширину паза шлицевой втулки. Взаимное расположение полей допусков паза и шлица протяжки показано на рис. 1.3.
Рисунок 1.3 – Положение полей допусков на ширину шлица протяжки
Допуск рассчитывается по формуле:
bu =bo +eSo –p,
где bи =8 мм- номинальная ширина шлица протяжки,
bo =8 мм- номинальная ширина шлица втулки,
еso = +0.018- верхнее отклонение размера ширины шлица втулки,
eio =-0.018- нижнее отклонение размера ширины шлица втулки,
To - допуск размера ширины шлица втулки,
Tи - допуск размера ширины шлица протяжки,
ESи - верхнее отклонение размера ширины шлица протяжки,
EIи - нижнее отклонение размера ширины шлица протяжки,
- разбивание ширины шлица протяжки,
∆1 – накопленная погрешность окружного шага шлицев протяжки
∆2 - допуск параллельности боковых поверхностей зубьев протяжки относительно оси центров на 500 мм длины,
∆3 – допуск симметричности зубьев относительно оси центров в поперечном разрезе зуба протяжки.
∆1 = 0.010 мм [3,стр.26 ,табл.17],
∆2 = 0.012 мм [3,стр.26 ],
∆3 = 0.016 мм [3,стр.26 ].
мм.
bu =8+0.018–0.022= 7.996 мм.
1.6.4 Параметры выкружок
Шлицевые черновые и переходные зубья группируются в секции, причем первые зубья в каждой секции имеют на боковых сторонах выкружки для распределения стружки по ширине, а вторые выполняются без выкружок, заниженные по диаметру на 0,02-0,04 мм для компенсации упругой деформации металла втулки. Радиус выкружки выбирается графически так, чтобы ширина первого зуба секции была приблизительно на половину меньше ширины второго зуба. Глубина выкружки должна быть не меньше 3Sz ..
Чистовые зубья выполняют не секционированными с подъемом на каждый зуб. Выкружок на чистовых и калибрующих зубьях нет.
![]() |
Рисунок 1.4 – Профиль черновых и переходных шл и цевых зубьев с
выкружками
В нашем случае b =8 мм, f = 2 мм, RB=50 мм [3,стр.20, табл. 16].
1.6.5 Расчет длины шлицевой части протяжки
Для повышения точности обработанной поверхности шаг чистовых и калибрующих зубьев принимают меньшим, чем шаг черновых зубьев tчист = (0,7-0,8) t, гг.
ℓш = (Zш ч + Zш пер )*t +(Zш чистый + Zш кал )* tчист , мм.
мм.
1.7 Определение конструктивных размеров протяжки
1.7.1 Определение диаметров зубьев
Все черновые и переходные зубья в шлицевой части протяжки объединены в группы. В пределах каждой группы зубья отличаются между собой шириной, между группами - диаметром.
Диаметры первых зубьев групп определяют путем приложения двойного подъема на зуб к диаметру первого зуба предыдущей группы
di+1 = di + 2 Szч , мм.
Диаметр второго зуба группы выполняются меньшим по диаметру на 0,02-0,04мм для компенсации упругой деформации обрабатываемого металла.
Зубья на чистовых частях протяжки выполняют несекционированними, т.е. диаметр каждого следующего зуба рассчитывается по формуле:
di+1 = di + 2 Sz истч , мм.
Диаметры последнего чистового зуба и всех калибрующих одинаковые и равны максимальному диаметру обработанной втулки с учетом допуска на разбивку.
Все расчеты представлены в Приложении А.
1.7.2 Передняя и задняя направляющие
Передняя направляющая предназначена для установки обрабатываемой втулки соосно с протяжкой, благодаря чему снимается равномерный припуск по всему периметру отверстия.
За длину передней направляющей принимается расстояние от конца переходного конуса до первого режущего зуба, включая ширину первой впадины между зубьями.
Задняя направляющая предназначенная для того, чтобы исключить возможность перекоса обработанной детали и повреждение обработанной поверхности в момент выхода из нее последнего зуба протяжки.
Длина передней направляющей выбирается в зависимости от отношения длины втулки, которая протягивается L, к ее диаметру D:
при L/D£1,5 lпн = L;
при L/D>1,5 lпн = 0,75L, но длина ее не должна быть меньше 40 мм.
В нашем случае ,исходя из чертежа детали, длина передней направляющей будет равна сумме длин части втулки, имеющей шлицевые пазы и части втулки в которой шлицевые пазы отсутствуют. В итоге длину передней направляющей принимаем равнойLв = 61 мм.
Форма и размеры передней и задней направляющих зависят от размеров отверстия и типа протяжки. В нашем случае длина задней направляющей будет равна 45 мм [3,стр. 23, табл.17].
Диаметр передней направляющей будет равен 35е8 мм; диаметр задней направляющей будет равен 41.6+0.2 мм .
1.7.3 Шейка и переходной конус
Эти элементы предназначены для соединения хвостовика протяжки с ее рабочей частью. Длина переходной шейкидолжна обеспечить возможность присоединения протяжки к патрону протяжного станка.
Переходной конус выполняется для обеспечения легкого ввода направляющей протяжки в обрабатываемую втулку. Длина переходного конуса равна 10-20 мм, в зависимости от диаметра. Примем l3 =15 мм.
Минимальная длина шейки определяется в зависимости от типа станка и длины обрабатываемой детали.
l2 = lст – l3 – l4 , мм,
где lст - минимальный размер от торца хвостовика протяжки до первого режущего зуба (см. табл. 1.6),
l3 – длина переходного конуса, мм,
l4 – длина передней направляющей, мм.
lст =190+L=190+61=251 мм.
l2 = 251 – 15 – 61 = 175 мм.
Рассчитанную длину увеличиваем на 15мм для более свободного оперирования хвостовиком. После увеличения l2 =175+15=190 мм.
Диаметр переходной шейки принимается меньшим чем диаметр хвостовика на 0,3-1 мм с допуском по h14. Диаметр переходной шейки примем равным
31h14 мм. Шейка обрабатывается с чистотой поверхности Ra3,2 и используется для маркировки протяжки и сварки.
1.7.4 Общая длина протяжки
Общая длина протяжки рассчитывается как сумма длин все составных частей протяжки
L= l1 + l2 + l3 + l4 +lш +l5 , мм,
где l5 – длина задней направляющей.
L=96+190+15+61+539+45=946 мм
Длина протяжки не должна превышать величины, которые допускаются технологическими возможностями ее изготовления, и параметрами станка . В нашем случае длина протяжки ,которая допускается технологическими возможностями ее изготовления, равна 1300 мм [3, стр.23, табл. 18].
946 ≤ 1300,
следовательно данное условие выполняется.
1.8 Расчет резьбового соединения
Так как шайба будет закреплена двумя винтами,то определим силу, действующую на каждый винт
![]()
где Р - сила резания, которая возникает во время работы черновых зубьев протяжки, в Н,
n – количество винтов.
![]()
Запишем условие прочности на растяжение
![]()
где
- допустимое напряжение на растяжение, в Мпа,
для стали ст 45 -
=180 Мпа
F – площадь поперечного сечения винта, в мм2
![]()
где d1 - наружный диаметр винта.
Следовательно

Определи наружный диаметр винтов
мм.
Принимаем винт М8 – 6gc наружным диаметром резьбы равным 8 мм.
2 РАСЧЕТ КОМБИНИРОВАННОЙ РАЗВЕРТКИ
2.1 Исходные данные для расчета комбинированной развертки
- номинальный диаметр меньшего отверстия D1 =20Н7 мм;
- номинальный диаметр большего отверстия D2 =28H7 мм;
- длина сверления первой ступени l1 =28 мм;
- длина сверления второй ступени l2 =35 мм;
- шероховатость обработанного отверстия Ra =2,5 мкм.
Так как диаметр обрабатываемого отверстия меньше 50мм, то развертку выполним цельной[2,стр. 24].
2.2 Диаметр развертки
![]()
где Dimin – минимальный диаметр соответствующей ступени отверстия;
Вi – верхнее предельное отклонение диаметра отверстия;
р – допуск на разбивание отверстия, р=0,015 мм[2,стр. 25].
![]()
![]()
Рисунок 2.1 Схема расположения полей допусков отверстий
2.3 Геометрические параметры развертки
Передний угол для получистовой развертки примем g=0°, а задний угол α=8°[2,стр. 25]. Величина заднего угла выберается одинаковой на режущей и калибрующей частях. На калибрующей части выполняется ленточка f=0.2 мм.
Угол наклона зубьев целесообразно выполнить равным нулю, что упрощает технологию изготовления развертки.
Главный угол в плане φ на заборной части зависит от свойств обработанного материала. Так как обрабатываемым материалом является сталь,то φ=12° [2,стр. 25].
Длина калибрующей части развертки определяется зависимостью
![]()
где
мм – величина калибрующей части стачивания при одной переточке
- число переточек;
мм;
мм.
длина заборной части ступени
;
где
- минимальный диаметр заборной части;
t – глубина резания принимаем 0.125 мм ;
m2 =1 - 3 мм (в зависимости от диаметра розвертки) [2,стр. 25];
примем для меньшего отверстия m2 =2мм;
для большего отверстия m2 =3мм;
мм;
мм;
тогда
мм;
мм;
Длина рабочей части ступени
;
где Lф =1 мм – длина фаски, [2,стр. 25];
Lок =5мм – величина обратного конуса [2,стр. 25];
мм;
мм.
Чтобы исключить повреждение обработанной поверхности при выводе развертки из отверстия, конец калибрующей части необходимо выполнить по радиусу равному 3-5 мм
Число зубьев развертки определяется зависимостью:
;
;
;
принимаем для всех ступеней развертки число зубьев 8 [2,стр. 27, табл. 6].
2.4 Распределения зубьев развертки
Для устранения огранки отверстия распределения зубьев развертки должно быть неравномерным, разность между соседними угловыми шагами определяется зависимостью
,принимаем
;
Определим значения угловых шагов

Рисунок 2.2 Распределения зубьев развертки
![]()
![]()
![]()
![]()
![]()
2.5 Глубина стружечной канавки
Глубину стружечной канавки целесообразно выполнять переменой, что позволяет использовать для всех стружечных канавок фрезу с постоянным профільнім углом. Тогда глубину канавка можно определить зависимостью
![]()
Где
- угол, соответствующий ширине спинки;
ν – угол профиля фрезы, принимаем 90º ;
с – ширина спинки зуба, приведена в таблице
Таблица 2.1 Ширина спинки зуба
| d,мм | Z1-1 | Z2-2 | Z3-3 | Z4-4 |
| 20 | 1.0 | 1.3 | 1.1 | 1.2 |
| 28 | 1.2 | 1.5 | 1.3 | 1.4 |
Рисунок 2.3 Размеры стружечной канавки
Угол соответствующий ширине спинки для Ø20 мм
![]()
![]()
![]()
![]()
Тогда глубина стружечной канавки
![]()
![]()
![]()
![]()
Угол соответствующий ширине спинки для Ø28 мм
![]()
![]()
![]()
![]()
Тогда глубина стружечной канавки
![]()
![]()
![]()
![]()
2.6 Хвостовик развертки
Хвостовик комбинированной развертки принимаем цилиндрический диаметром 20 мм. Это делается с целью закрепления инструмента в плавающем патроне, так как у отверстия есть погрешность изготовления, а инструмент надо установить по центру. С помощью конического хвостовика, который закрепляет инструмент жестко, это осуществить невозможно.
3 РАСЧЕТ ДОЛБЯКА
3.1 Исходные данные для проектирования долбяка
- модуль колес mк =3.75 мм;
- профильный угол aк
=
;
- числа зубьев шестерни Z1 =25 и колеса Z2 =40;
- степень точности колес, которые нарезаются: 7-D;
- материал обрабатываемых колес: сталь ст.5.
3.2 Определение дополнительных технологических данных, необходимых для расчета долбяка
Диаметры делительных окружностей :
мм
мм
Диаметры окружностей выступов:
мм
мм
Диаметры окружностей впадин:
мм
мм
Диаметры основных окружностей :
мм
мм
Высота головки зуба :
мм
Толщина зуба по делительной окружности :
мм
Шаг по делительной окружности зубьев колес :
мм
Межцентровое расстояние передачи :
мм
Действительный угол зацепления в передаче

где A1,2 - межосевое расстояние в зубчатой передаче, рассчитывается по формуле теории зубчатого зацепления, мм.
3.3 Определение геометрических параметров долбяка
3.3. 1. Передний угол на вершине долбяка
Данный долбяк является чистовым, следовательно передний угол принимается γв = 5° [1,стр. 25].
3.3. 2 Профильный угол долбяк а
Чтобы уменьшить искривление профиля, связанного с наличием угла γв , профильный угол исходного контура долбякаaи при изготовлении принимается больше, чем профильный угол колес, которые нарезаются, aк . Он определяется по формуле
,
где aк – профильный угол обрабатываемого колеса;
aв и gв – задний и передний углы при вершине долбяка соответственно.

3.3. 2 Задний угол на вершине
Для стандартных довбяковaв = 60 [1,стр. 25].
Необходимо проверить выполнение условия:


следовательно условие выполняется.
3.4 Определение размеров долбяка в исходном сечении
Для того, чтобы было возможно нарезать долбяком данную пара зубчатых колес, необходимо чтобы у долбяка и колес, которые нарезаются, совпадали следующие параметры: модуль (m1 = m2 = mи ). Кроме того, необходимо, чтобы шаг долбяка был равным шагу зубчатых колес, которые нарезаются,
tdи
=td1
=td2
![]()
3.4.1. Толщина зуба на делительной окружности долбяка по нормали.
![]()
где d = 0.045- боковой зазор в передаче[1,стр. 49, табл. 1].
![]()
3.4. 2 Высота зуба долбяка
Для того, чтобы внутренний диаметр долбяка во время нарезания не контактировал с внешним диаметром колеса, высота зуба долбяка принимается равной:
hи
= 2,5m![]()
haи
= hfи
= 1,25m![]()
3.4.3 Делительный диаметр долбяк
Номинальный делительный диаметр долбяка Ddи =100 мм [1,стр. 50, табл. 4].
3 .4.4 Число зуб ье в долбяка

![]()
3.4.5 Теоретический диаметр основной окружности
![]()
3.4.6 Диаметр внешней окружности долбяка
![]()
3.4.7 Диаметр внутренней окружности долбяка
![]()
![]()
3.4.8 Боковой задний угол в плоскости, параллельной оси долбяка
где - dн =3°- номинальный задний угол[1,стр. 27].
3.4.9 Угол давления на вершине зуба

3.4.10 Толщина зуба на вершине
,
где
=0.0153,
=0.0584;
![]()
3.5 Определение исходных расстояний долбяк а
Расчет долбяка в основном сводится к определению оптимальных значений исходных расстояний для конкретных условий работы. Проектный расчет должен обеспечить получение идентичных размеров зубьев колеса, которое нарезается, за весь срок службы долбяка, исключая опасность подрезания ножки или неполной обработки головки зуба изношенным довбяком, а также образование большой переходной кривой новым долбяком.
3.5. 1 Определение положительного исходного расстояния долбяк а
При расчете долбяка необходимо принимать максимальное значение коэффициента смещения xmax . Это повышает качество обрабатываемой поверхности и точность профиля колеса, которое нарезается.
Максимальный коэффициент смещения ограничивается: 1) заострением зуба долбяка; 2) интерференцией с переходнымикривыми, которая может возникнуть в процессе зацепления зубчатых колес, нарезанных данным долбяком.
Одним из ограничений при выборе величины исходного расстояния aн является недопустимость заострения вершин зубьев долбяка, что имеет место при больших величинах aн и может привести к быстрому износу вершины зуба. Во избежание этого зуб долбяка должен иметь по окружности выступов некоторую минимальную толщину зуба Samin .
Минимальная толщина зуба долбяка по окружности выступов определяется по формуле
Samin =к*m,
где к = 0.26– коэффициент, который зависит от модуля [1,стр. 28].
![]()
Рассчитываем действительную толщину зуба нового долбякапо окружности выступов по формуле
,
где xmax = 0.46 - максимальный коэффициент смещения, определяется графически [1,стр. 28];

и проверяем выполнение условия
Saи ³Samin .
![]()
следовательно условие выполняется.
Выбранное значение коэффициента смещения необходимо проверить на отсутствие интерференции с переходными кривыми. Для этого должны быть соблюдены следующиеусловия:
первое условие отсутствия переходной кривой на зубьях шестерни
ρ1 - ρи1 ≥0,
где
, мм - наибольший радиус кривизны профиля зуба шестерни,
![]()
- наибольший радиус кривизны профиля зуба долбяка при нарезании шестерни,
aи1 – угол зацепления в передаче шестерня- долбяк,

Аи1
– межцентровое расстояние в передаче шестерня- долбяка,
.
![]()
![]()
![]()
ρ1 - ρи1 =6.549 – 5.606 =0.943 ≥ 0,
следовательно условие выполняется.
Второе условие отсутствия переходной кривой на зубе колеса
ρ2 — ρи2 ≥0,
где , мм - наибольший радиус кривизны профиля зуба колеса,
![]()
![]()
, мм - наибольший радиус кривизны профиля зуба долбяка при нарезании колеса,
aи2 – угол зацепления в передаче колесо- долбяк,
![]()
Аи2 – межцентровое расстояние в передаче колесо- долбяк,
, мм.
![]()
![]()
![]()
ρ2 — ρи2 =16.732 – 15.405 = 1.327 ≥ 0,
следовательно условие выполняется.
Так как при избранном xmax опасности интерференции по заострению зуба не возникнет, то положительный коэффициент смещения долбяка ξн принимается равным xmax=0.46.
Положительное исходное расстояние aн передней поверхности долбяка от исходного сечения определяется по формуле
, мм.

3.5. 2 Отрицательное исходное расстояние долбяка
Отрицательное исходное расстояние долбяка определяет размеры долбяка после всех переточек. Толщина долбяка, которая осталась, ограничивается: 1) прочностью зубьев долбяка; 2) срезанием кромок зубьев колес, которые нарезаются, прямолинейным участком ножки зуба долбяка; 3) подрезанием зубьев колес, которые нарезаются.
Допустимая величина среза кромки колеса ∆R зависит вот условий работы передачи, степени точности и назначается конструктором. Если срезание кромки не допускается, то ∆R=0.
Минимальный коэффициент смещения ξmin, при котором высота среза кромки колеса будет равняется допустимой величине ∆R, определяется по формуле
,
.
;
![]()
![]()
Рассчитанное значение ξmin проверяют на отсутствие подрезания зуба колеса.
Подрезание исключается, если выполняется условие
.
,
следовательно условие выполняется.
Максимальное отрицательное исходное расстояние предельно сточенного долбяка
определяется по формуле
, мм.

3.6 Определение высоты долбяка
3.6. 1 Максимально возможная величина стачивания долбяка вдоль его оси
, мм.
![]()
3.6. 2 Высота долбяка
Так как рассчитанная величина возможного стачивания долбяка Н превышает максимально допустимую по технологическим возможностям шлифования высоту долбяка Ви = 28мм [1,стр. 50, табл. 4], то как окончательную высоту долбяка принимается величина Ви=28мм,.
Выберем вариант расположения исходного сечения долбяка.
Так как ан =16.413 мм>0,5Ви =14 мм и ас =14.272мм> 0,5Ви =14 мм ,тоположительное исходное расстояние ан =ас = 0,5Ви =14 мм[2,стр. 31, пункт 2].
3.7 Определение размеров долбяк по передней поверхности
3.7. 1 Внешний диаметр нового долбяка
, мм,
где aн - станочный угол зацепления нового долбяка
.

![]()
3.7. 2 Толщина зуба на делительной окружности по нормали
..
![]()
3.7. 3 . Высота головки зуба долбяка по передней поверхности
, мм.
![]()
ЗАКЛЮЧЕНИЕ
В ходе проделанной работы был произведён расчёт и проектирование заданных режущих инструментов, разработаны их рабочие чертежи, приведенные в приложении с указанием предельных отклонений их размеров и шероховатостей на поверхности инструмента.
СПИСОК ИСПОЛЬЗОВАНОЙ ЛИТЕРАТУРЫ
1. Методичні вказівки до виконання проекту з дисципліни “Різальний інструмент”.Розрахунок інструментів для обробки зубчастих коліс та шліцьових валів./ Укладачі: І.О. Малишко, І.В. Кисельова.- Донецьк: ДНТУ, 2007.- 53 с.
2. Методические указания к выполнению контрольных работ по курсу «Проектирование и производство металлорежущих инструментов»/ Сост.: И.А. Малышко, С.Л. Толстов. -Донецк: ДПИ,1991.-39с.
3. Методичні вказівки до виконання курсового проекту з дисципліни „Різальні інструменти”.Розрахунок комбінованої протяжки для обробки шліцьової втулки/ Укладачі: І.В. Кисельова.- Донецьк: ДНТУ, 2008.- 29 с.
4. Справочник инструментальщика / И.А. Ординарцев и др.- Л.: Машиностроение, 1987.-846 с.
5. Мягков В.Д. Допуски и посадки: В 2 т.- Машиностроение, 1982.


