| Скачать .docx |
Курсовая работа: Точные расчеты
Курсовая работа
по дисциплине:
"Метрология, стандартизация и сертификация"
на тему: "Точные расчеты"
Содержание
1. Расчет калибров для контроля размеров цилиндрических поверхностей
2. Расчет посадки с зазором
3. расчет посадки с натягом
4. Расчет размерных цепей
Литература
1. Расчет калибров для контроля размеров цилиндрических поверхностей
Задание: Определить предельные и исполнительные размеры калибров для контроля отверстия Æ 17F9, вала Æ 17h9 и контркалибров к ним. Построить схему расположения полей допусков деталей и калибров для их контроля.Расчет размеров калибра-пробки для контроля отверстия Æ 17F9.
Выписываем предельные отклонения из табл. 1.36 /1/ отверстияÆ 17F9:
ES = +59 мкм, EI = +16 мкм.
Предельные размеры отверстия /4/:
Dmax = D + ES = 17,000 + 0,059 = 17,059 мм,
где: Dmax – наибольший предельный размер отверстия, мм,
D – номинальный размер соединения, мм,
ES – верхнее предельное отклонение размера отверстия, мм.
Dmin = D+EI = 17,000 + 0,016 = 17,016 мм
Размеры проходного (ПР) и непроходного (НЕ) калибров, служащие для отсчета отклонений /4/:
ПР=Dmin =17,016 мм;
НЕ=Dmax =17,059 мм.
Данные для расчета калибра-пробки (табл. 8.1 /4/):
Z=8 мкм, Y=0 мкм, H=3 мкм, 
=0
Предельные размеры проходной стороны нового калибра /7/:
ПРmax
=
;
ПРmin
=
.
Исполнительный размер проходной стороны калибра, проставляемый на рабочем чертеже:
ПРисп.
=
.
Изношенный размер калибра /4/:
ПРизнош.
=
.
Рассчитаем предельные размеры непроходной стороны нового калибра по формулам 1.5 и 1.6 /4/:
НЕmin
=
;
НЕmax
=
.
Исполнительный размер непроходной стороны:
НЕисп.
=
.
Произведем расчет размеров калибра-скобы для контроля вала Æ 17h9.
Предельные отклонения вала Æ 17h9 (табл. 1.35 /1/:
ei=-0,043 мм, es=0 мм.
Определяем предельные размеры вала:
dmax
=
;
dmin
=
.
Определим размеры проходной (ПР) и непроходной (НЕ) стороны калибра-скобы, служащие для отсчета отклонений:
ПР=dmax =17,000мм;
НЕ=dmin =16,957мм.
Данные для расчета калибра-скобы выписываем из таблицы 8.1 /4/:
Z1 =8 мкм, Y1 =0 мкм, a1 =0 мкм, H1 =5 мкм, Hp =2 мкм.
Рассчитаем предельные размеры проходной стороны калибра-скобы:
ПРmax
=
;
ПРmin
=
.
Исполнительный размер проходной стороны калибра по формуле (1.10) /4/:
ПРисп.
=
.
Изношенный размер проходной стороны калибра по формуле (1.11) /4/:
ПРизнош.
=
.
Предельные размеры непроходной стороны калибра-скобы по формулам (1.12) и (1.13) /4/:
НЕmin
=
;
НЕmax
=
.
Исполнительный размер непроходной стороны калибра по формуле:
НЕисп.
=![]()
Расчет размеров контрольного калибра для скобы (контркалибра).
Рассчитаем предельные размеры проходной стороны калибра по формулам (1.15) и (1.16) /4/:
К-ПРmin
=
;
К-ПРmax
=
.
Исполнительный размер проходной стороны контркалибра по формуле:
К-ПРисп.
=
.
Предельные размеры контркалибра для контроля износа по формулам:
К-Иmax
=
;
K-Иmin
=
.
К-Иисп.
=
.
Предельные размеры непроходной стороны контркалибра:
К-НЕmax
=
;
К-НЕmin
=
.
Исполнительный размер непроходной стороны контркалибра:
К-НЕисп.
=![]()
Схемы расположения полей допусков отверстия и калибра-пробки, вала и калибра-скобы и контркалибра приведены на рис.1.1, 1.2 и 1.3.

Рис. 1.1. Схема расположения полей допусков отверстия Æ17F9 и полей допусков калибра-пробки для его контроля

Рис. 1.2. Схема расположения полей допусков вала Æ17h9, калибра-скобы и контркалибра к нему

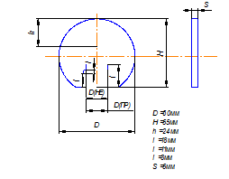
Рис.1.3. Эскиз калибр-скобы
2. Расчет посадки с зазором
Задание. Подобрать посадку для подшипника скольжения, работающего длительное время с постоянным числом оборотов n = 1000 об/мин и радиальной нагрузкой R = 3000 Н. Диаметр шипа (вала) d = 80 мм, длина l= 95 мм, смазка – масло сепаратное Т. Подшипник разъемный половинный (с углом охвата 1800 ), материал вкладыша подшипника – БрАЖ9-4 с шероховатостью Rz1 = 3,2 мкм, материал цапфы (вала) – сталь 40 с шероховатостью Rz2 = 1,25 мкм.
Находим среднее давление по формуле 2.9 /4/:
![]()
Находим угловую скорость вращения вала по формуле 2.6 /4/:
![]()
Для сепараторного масла по таблице 8.2 находим
50
0
=0,014 Па×с и значение степени n=1,85 из таблицы 8.3. Принимаем для наименьшего функционального зазора SminF
t=700
С и определяем
1
=
70
0
по формуле:
![]()
Из таблицы 8.4 /4/ для
и угла охвата
=1800
находим k=0,972 и m=0,972.Определяем критическую толщину масляного слоя по формуле (2.4) /4/, принимая kж.т.
=2
![]()
Определяем предельный минимальный функциональный зазор по формуле 2.7 /4/, подставляя в нее значения соответствующих параметров:


По таблице выбираем посадку по SminF = 30мкм. Скользящих посадок выбирать не следует, т.к. они не имеют гарантированного зазора (Smin = 0) и применяются главным образом для центрирования. Ближайшей посадкой будет посадка Æ80Н7/f7 c наименьшим зазором Smin = 36мкм (табл. 1.47 /1/, предпочтительные поля допусков).
При малых зазорах могут возникнуть самовозбуждающиеся колебания в подшипнике; если
, создается возможность вибрации вала и, значит, неустойчивого режима работы подшипника. Таких значений
следует избегать.
Определим значение
для выбранной посадки.
Сначала находим относительный зазор
:
![]()
Из уравнения (2.9) /4/ находим коэффициент нагруженности подшипника![]()
![]()
И уже из уравнения (2.10) /4/ определяем ![]()
![]()
Как уже говорилось, таких посадок следует избегать.
Выбираем другую ближайшую посадку из табл.1.47 /1/: Æ80H7/e8. Для этой посадки Smin =72мкм.
![]()
![]()
![]()
Условие выполняется.
Здесь нужно учесть, что мы производим расчет для наихудшего (маловероятного) случая, когда в соединении "цапфа-вкладыш" при сборке получен минимальный зазор Smin .
Поэтому проверим, обеспечивается ли для выбранной посадки (Æ80H7/e8, Smin Т =72мкм, Smax Т =161мкм)
при Smin жидкостное трение.
Для этого определим наименьшую толщину масляного слоя по уравнению (2.2) /4/:
![]()
а затем найдем запас надежности по толщине масляного слоя из формулы (2.4) /4/:
![]()
Расчет показывает, что посадка по наименьшему зазору выбрана правильно, так как при Smin =72мкм обеспечивается жидкостное трение и создается запас надежности по толщине масляного слоя. Следовательно, табличное значение Smin =72 мкм для выбранной посадки можно принять за SminF =72 мкм.
Теперь определим наибольший функциональный зазор по формуле (2.8) /4/ при t=500 C:


Проверим, обеспечивается ли при этом зазоре жидкостное трение. Найдем c, hmin , kж.т. :
;
;
;
;
.
Расчеты показывают, что жидкостное трение обеспечивается.
Запас на износ определяем по формуле (2.12) /4/ :
, где
,
;
.
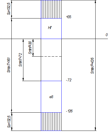
Строим схему полей допусков для посадки с зазором с указанием Smin Т ,Smax Т ,SminF ,SmaxF , Sи (рис.2.1.).

Рис.2.1 Схема расположения полей допусков деталейпри посадке с зазором.
Задание. Рассчитать и выбрать посадку с натягом для соединения вала и втулки (d=60мм, d1 =0мм, d2 =240мм, l=50мм), которое работает под воздействием крутящего момента Мкр =8Н×м. Запрессовка механическая. Материал обеих деталей - сталь 45.
Определяем рэ по формуле (3.4) /4/:
,
где
- крутящий момент стремящийся повернуть одну деталь относительно другой (Н м);
- осевое продольное сдвигающее усилие (Н). В нашем случае равно нулю;
d – номинальный диаметр соединения (м);
l – длина соединения (м);
f – коэффициент трения.
Определяем коэффициенты Ламе по формулам (3.5) и (3.6) /4/:
;

где
и
- коэффициенты Пуассона для материалов деталей соединения.
Определяем Nmin по формуле (3.1) /4/:
![]()
где
и
- модуль упругости материалов соединяемых деталей, Па.
Находим поправки к расчетному натягу, используя формулы (3.7) и (3.8), и определяем NminF по формуле (3.9) /4/:
![]()
Принимаем ut =0 и uц =0, исходя из условий задачи.
![]()
![]()
Определяем допустимое удельное давление на контактирующих поверхностях по формулам (3.10) и (3.11) /4/:


В качестве рдоп
выбирается
.
Определяем величину наибольшего натяга Nmax по формуле (3.12):
![]()
Находим поправки к наибольшему натягу и определяем NmaxF по формуле (3.13) /4/:
u=15мкм, ut =0, uц =0, uуд =0,78
![]()
Выбираем по таблице 1.49 /1/ посадку по наибольшему функциональному натягу NmaxF , при которой создавался бы запас прочности соединения и запас прочности деталей:Æ60 H7/s6, для которой NmaxT =72 мкм (£NmaxF ), NminT =23 мкм (³NminF )
Определяем для выбранной посадки запас прочности соединения при сборке и при эксплуатации по формулам (3.14) и (3.15) /4/:
![]()
![]()
Для правильно выбранной посадки запас прочности соединения при сборке Nз.с. всегда должен быть меньше запаса прочности соединения при эксплуатации Nз.э. , потому что Nз.с. нужен только в момент сборки для случая возможного снижения прочности материала деталей и увеличения силы запрессовки из-за перекоса деталей, колебания коэффициента трения и т.д.
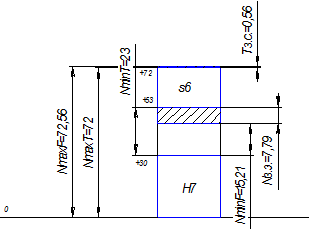
Строим схему расположения полей допусков выбранной посадки (рис.3.1)
Изменить рисунок согласно расчетам

Рис.3.1. Схема расположения полей допусков деталей при посадке с натягом
4. Расчет размерных цепей

Для расчета размерной цепи используем метод максимума-минимума.
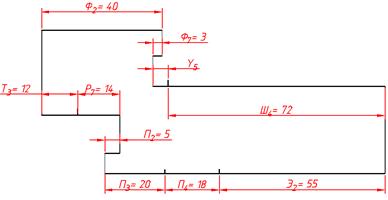
Назначим допуски, и предельные отклонения на размеры если допуски на зазор Y5 составляют: верхнее +0,2 ; нижнее -0,3 .
Определяем величину зазора Y5

Y5 – является замыкающим звеном. Зазор должен быть в пределах 5,2 мм до 4,7 мм. Поле допуска на размер 500 мкм
Таблица 4.1.
| Аi ном, мм | I, мкм | IT9, мкм | Аi ммпринятое |
| Т3 =12 → | 1,08 | 43 | |
| Р7 =14 → | 1,08 | 43 | |
| П3 =20 → | 1,31 | 52 | |
| П4 =18 → | 1,31 | 43 | |
| Э2 =55 → | 1,86 | 74 | |
| Ф7 =3 → | 0,55 | 25 | |
| П2 =5 ← | 0,73 | 30 | |
| Ш4 =72 ← | 1,86 | 74(128) | |
| Ф2 =40 ← | 1,56 | 62 | |
| Σ | 11,34 | 446(500) |
Определяем среднее количество единиц допуска:
единиц.
Определяем квалитет, данное количество единиц соответствует:
IT9=45 единиц
Допуски составляющих размеров находим в табл. 1.8 /1/ и записываем их в таблицу.
Сумма допусков составляющих звеньев получилась меньше допуска замыкающего звена. Чтобы уравнение удовлетворялось увеличим допуск одного из составляющих звеньев. Этим звеном будет – Ш4.
![]()
Занесем принятые значения допусков в таблицу.
Назначим отклонения звеньев Т3 , Р7 , П3 , Э2 в минус т.к. они являются охватываемыми, а для звеньев П2 , Ф2 , П4 , Ф7 , в плюс охватываемые. Допуск на замыкающее звено "плюс-минус" следовательно допуск на звено Ш4 рассчитаем.
![]()
![]()
![]()
![]()
![]()
![]()
Заносим полученные данные в таблицу.
Размер замыкающего звена находится в пределах допуска указанного в условии задания. При необходимости можно увеличить допуски на все звенья, рассчитав цепь с помощью "теоретико-вероятностного" метода.
Произведем расчет размерной цепи теоретико-вероятностный методом, данный метод позволяет назначать менее жесткие допуски составляющих звеньев при том же допуске конечного звена.
Определяем величину зазора Y5
Y5 – является замыкающим звеном. Зазор должен быть в пределах 5,2 мм до 4,7 мм. Поле допуска на размер 500 мкм.
Таблица 4.2.
Аi ном мм |
i мкм |
i2 | IT11 мкм |
(IT)2 | TAi мкм принято |
Аi мм принятое |
| Т3 =12 → | 1,08 | 1,17 | 110 | 12100 | 110 | |
| Р7 =14 → | 1,08 | 1,17 | 110 | 12100 | 110 | |
| П3 =20 → | 1,31 | 1,72 | 130 | 16900 | 130 | |
| П4 =18 → | 1,31 | 1,72 | 110 | 12100 | 110 | |
| Э2 =55 → | 1,86 | 3,46 | 190 | 36100 | 190 | |
| Ф7 =3 → | 0,55 | 0,3 | 60 | 3600 | 60 | |
| П2 =5 ← | 0,73 | 0,53 | 75 | 5625 | 75 | |
| Ш4 =72 ← | 1,86 | 3,46 | 190 | 36100 | 355 | |
| Ф2 =40 ← | 1,56 | 2,43 | 160 | 25600 | 160 | |
| Σ | 15,9 | 160225 (250000) |
Определяем среднее количество единиц допуска:
![]()
![]()
Определяем квалитет, данное количество единиц соответствует:
IT11=100 единицы
Допуски составляющих размеров находим в табл. 1.8 /1/ и записываем их в таблицу.
Так как
меньше допуска на размер замыкающего звена, то увеличим допуск на один из размеров - Ш4
.

Занесем принятые значения допусков в таблицу.
Назначим отклонения звеньев Т3 , Р7 , П3 , Э2 в минус т.к. они являются охватываемыми, а для звеньев П2 , Ф2 , П4 , Ф7 , в плюс охватываемые. Допуск на замыкающее звено "плюс-минус" следовательно допуск на звено Ш4 рассчитаем.Рассчитаем середины полей допусков.
![]()
![]()
![]()
![]()
![]()
![]()
![]()
![]()
![]()
![]()
![]()
Рассчитываем верхнее и нижнее отклонение звена Ш4 :
![]()
![]()
Заносим полученные данные в таблицу.
Литература
1. Допуски и посадки: Справочник в 2-х ч./ Под ред. В.Д.Мягкова. – 5-е изд., перераб. и доп. - Л.: Машиностроение, 1978. – 544с.
2. Е.В.Перевозникова, М.П.Худяков. Метрология, стандартизация, сертификация. Учебное пособие. Часть 1 "Метрология". Северодвинск. Севмашвтуз, 2007. – 88 с.
3. Е.В.Перевозникова, М.П.Худяков. Метрология, стандартизация, сертификация. Учебное пособие. Часть 3 "Сертификация". Северодвинск. Севмашвтуз, 2007. – 100 с.
4. Перевозникова Е.В. Методические указания по выполнению курсовой работы по дисциплине "Метрология, сертификация и стандартизация" на тему "Точностные расчеты". Северодвинск: Севмашвтуз, 2004 – 46 с.