| Скачать .docx |
Курсовая работа: Изготовление журнального столика на уроках технологии в школе
МИНИСТЕРСТВО ОБРАЗОВАНИЯ РФ
МАГНИТОГОРСКИЙ ГОСУДАРСТВЕННЫЙ УНИВЕРСИТЕТ
Кафедра общетехнических дисциплин
Курсовая работа
По дисциплине
«Основы творческо-конструкторской деятельности»
На тему:
«Изготовление журнального столика»
Магнитогорск 2008
Содержание
Введение
1. Теоретические сведения
1.1 Сущность журнального столика
1.2 Выбор возрастных характеристик обучаемых
1.3 Выбор объекта деятельности
1.4 Выбор методик преподаваний занятий
2. Технология изготовления столика
2.1 Технологическая карта
2.2 Расчёт материала и экономическое обоснование изготовления столика
3. Разработка творческого проекта
3.1 Чертёж столика
3.2 Эргономическое обоснование изготовления столика
Заключение
Список литературы
Введение
Актуальностью изготовления журнальных столиков был тот фат, что подобные изделия, очень востребуемы в обществе, и являются как средством украшения интерьера, так и непосредственно вещью для его прямого назначения. Несомненно, они имеются, практически, во многих домах! Стеклянные журнальные столики создают незабываемый уют в любом доме.
На уроках технологии на педагогической практике с ребятами из 8-го класса, предусматривалось изготовление на предстоящую выставку (по уроку «Технология») нескольких изделий. Одним из проектов, для выставки, было изготовление журнального столика.
Цель: формирование личности учащихся, сплочение коллектива, физическое развитие детей.
Задачи:
1. Дидактическая – обучение навыкам чтения чертежей и технологических карт;
2. Воспитание внимательности при пошаговом изготовлении изделия;
3. Творческая – формирование креативного мышления и творческого видения готового изделия.
1. Теоретические сведения
1.1 Сущность журнального столика
Журнальные столы появились примерно 300 лет тому назад в Англии. В закрытых клубах по интересам собирались сливки общества, вели интеллектуальные беседы, читали газеты и журналы, которые выкладывались на специальных столах – это и были первые журнальные столики. Сегодня журнальные столики представлены в огромном ассортименте в любом мебельном салоне. Кроме того, можно заказать их эксклюзивное изготовление.
Современные журнальные столики не утратили первоначального назначения, напротив, они стали многофункциональнее. Сегодня журнальный стол в гостиной – центральный элемент интерьера, определяющий уют помещения, от которого во многом зависит степень удобства и комфорта в часы отдыха. Желательно, чтобы стол журнальный был всегда под рукой – не вставая с дивана или кресла, мы могли бы дотянуться до любимых газет, журналов, книг, пульта от телевизора, а также расставленных на столе фруктов, легких закусок, сладостей или напитков. Журнальный столик выручит и во время застолий, превратившись на вечер в сервировочный журнальный стол.
С учетом таких богатых функциональных возможностей, которые могут предоставлять журнальные столы, каждый может купить журнальный стол в соответствии со своими потребностями. Это может быть самый простой стеклянный журнальный стол на четырех ножках, журнальный стол трансформер, обычный деревянный стол журнальный со стеклом, раскладной журнальный стол или обычный стол журнальный. Выбор в пользу того или иного изделия не будет сложным.
Неважно, что вы выберете – круглый журнальный стол или овальный журнальный столик, стол журнальный стеклянный или деревянный журнальный столик, стол стеклянный журнальный трансформер или стол журнальный складной – купить можно любой журнальный стол, главное, чтобы он подходил к интерьеру.
Дизайнеры любят все многофункциональное и практичное, из которого можно сделать что-то новенькое и концептуальное. Столы журнальные, особенно стеклянные журнальные столы, – «непаханое поле» для разработчиков мебели, которые постоянно выдают все новые идеи относительно форм столов и стилистики, в которой они могут быть выполнены, опираясь, впрочем, на классику.
Так, итальянские журнальные столы узнаваемы по изогнутым ножкам, украшенным резьбой, и роскошно инкрустированным столешницам. Такие журнальные столы из Италии являются, скорее, предметами роскоши, а мебелью для ежедневной эксплуатации. Журнальные столы Италия (например, знаменитый итальянский круглый стол) можно купить в специализированных мебельных салонах. Там же какой-нибудь эксклюзивный журнальный столик Италия или стол журнальный круглый из бронзы привезут под заказ
В последнее время особой популярностью пользуются журнальные столики в стиле минимализма. Никакой вычурности, отсутствие украшений и инкрустаций, строгие и простые линии, максимальная функциональность и практичность – вот основные черты, присущие журнальным столам, выполненным в этом стиле, как, например, современные итальянские журнальные столики некоторых производителей.
Немецкие дизайнеры добавили минимализму функциональности, что, впрочем, не сделало этот стиль более насыщенным в плане дизайна, но зато обогатило практические возможности эксплуатации таких столов, превратив обычные с виду журнальные столики в журнальные столы трансформеры. Так, это могут быть столы журнальные со встроенными выдвижными ящиками, стеклянные журнальные столики трансформеры, столы стеклянные журнальные раскладные и даже журнальные стеклянные столы, трансформация которых осуществляется при помощи компьютера. Купить журнальный столик в соответствии с вашими представлениями о функциональности на самом деле очень просто!
Деревянный или стеклянный журнальный столик купить? Таким вопросом задаются многие, кто решил купить столик журнальный. Между тем, выбор гораздо шире. Если вам нужен именно деревянный журнальный столик – продажа осуществляется в любом мебельном салоне, так что вопрос, где купить журнальный столик из дерева очень легко решаем. Другой вопрос, если нужен мраморный или эксклюзивный стеклянный стол журнальный – продажа осуществляется в специализированных салонах мебели.
Как видим, журнальные столы – это не просто привычные всем столики журнальные различной формы, это еще и множество моделей, обладающих самыми разными функциональными возможностями и выполненных с учетом оригинальных дизайнерских разработок. Чтобы не потеряться в таком многообразии, нужно четко представлять себе – с какой целью покупается стол журнальный.
1.2 Выбор возрастных характеристик обучаемых
Изготовление столика предлагается ученикам 8-го класса, как изделие для выставки по дисциплине технология.
Ребятам такого возраста (13–14 лет), под силу данные творческие работы. Однако, для реализации изготовлений подобных изделий, в классе необходимо создать психологически комфортную атмосферу. Необходимо проявить уважительное отношение к каждому ученику, добиться чувства уверенности в посильности даваемых ему заданий. Для этого необходимо используйте эффект «синдрома справедливости» когда класс видит, что у преподавателя нет «любимчиков», что он доброжелателен, справедлив в оценках. Тогда коллектив единомышленников успешно решит сложные задачи. Определив некоторые ориентиры, определив концептуальные факты, следует со всей откровенностью сказать ещё об одном аспекте.
В настоящее время учителю технологии предоставлена немалая свобода для реализации авторских программ на уроках. Сегодня программа, оставаясь для учителя ориентиром, оставляет ему достаточно простора для того, чтобы строить самостоятельную работу по собственному усмотрению. Он может сам выбирать подход изучения разделов, корректировать время на их прохождение, включать материал, связанный с местными особенностями и традициями.
Всё это реально позволяет освободить систему обоснования своей методики преподавания от догматизма и устаревших подходов, которые основательно обременили педагогику трудового обучения, воспитания. Но в этих условиях возникает много неясностей с организацией содержанием производительного труда учащихся. Нужен ли он вообще, а если нужен, то, в каких формах. Делая попытки использовать время, отводимое в учебных планах на общественно полезный производительный труд учащихся (включая производственную практику) для других целей.
Конечно, успешно организовать детский труд не так просто. Для этого нужны специальные условия. Если нет реальных возможностей для организации полноценного производительного труда, то следует вообще отказаться от него, а не превращать дело в фарс. Главное условие, которое необходимо при этом соблюдать, – чтобы труд был продуктивным, чтобы школьники видели и понимали, что их деятельность приносит реальную пользу. Сюда входит и отбор основных форм организации работы учащихся, и особые требования к выполнению безопасных приёмов труда, и научная организация рабочего места, и соблюдение технологической дисциплины.
Таким образом, профессионализм учителя технологии во многом определяется уровнем его методической подготовки. Наиболее эффективные средства для решения учебно-воспитательных задач могут быть найдены (иногда интуитивным путем) в итоге длительной школьной деятельности, а могут стать результатом освоения достижений педагогической науки.
1.3 Выбор объекта деятельности
Для изготовления столика ребятам было предложено принести разработки столиков на листах, для выбора, среди них, одной для непосредственного его изготовление. Несомненно, для изготовления изделий, ребята сами предлагают свои темы.
Изготовление столика на уроках технологии с учащимися, должно сформировать у них следующие навыки:
умение разработок примеров, для решений изготовления своих изделий;
принятие, конечного, выбора изделия, для реализации его изготовления;
правильную процедуру процесса технологии изготовления;
подсчёт востребуемых, для изготовления изделия, материалов и инструментов;
непосредственное изготовление своего изделия и выполнение к ней пояснительной записки.
Несомненно, при изготовлении любого изделия, перед началом его реализации необходимо предоставить учащимся теоретическую часть, которая включает в себя не только процесс и технологию производства изделия, но и его исторический момент зарождения, а так, же дополнительные сведения, которые раскрывают скрытые представления изделия.
Для изготовления светильника, ребятам предлагается выбрать одно из предлагаемых для его производства изделие.
а). Фасонный, вырезной столик.
б). Столик с стеклянной столешницей и деревянными ножками.
в). Столик с стеклянной столешницей и металлическими ножками.
г). Деревянный столик.

Рис. 1.3.
| Вариант |
Потребное оборудование и инструменты |
Время изготовления, Час |
Материалы и комплектующие детали |
| А |
Электролобзик и набор пилок, стамески, фрезерный и шлифовальный станок. |
20 |
Древесина (сосна), фурнитура. |
| Б |
Циркуляра, сверлильный, фуговальный и шлифовальный станок. |
6 |
Древесина (сосна), стекло, фурнитура. |
| В |
Ножовка по металлу, сверлильный станок. |
8 |
Металлические трубки, стекло, фурнитура. |
| Г |
Электролобзик и набор пилок, стамески, циркуляра, фуговальный, фрезерный и шлифовальный станок. |
10 |
Древесина (сосна), фурнитура. |
Окончательный выбор решения, со стороны ребят, для изготовления столика пал на вариант – б).
1.4 Выбор методик преподаваний занятий
Наше общество, войдя в третье тысячелетие, столкнулось с ситуацией, когда образование должно подготовить новое поколение людей к жизни в условиях, которые ещё полностью не сформированы, и к решению задач, которые однозначно ещё не сформулированы.
В школе «Технология» – интегративная образовательная область, синтезирующая научные знания из курсов математики, физики, химии, биологии и показывающая их использование в промышленности, энергетике, связи, сельском хозяйстве и других направлениях деятельности человека.
Но сфера воздействия уроков технологии видится гораздо шире, чем техническое и естественнонаучное просвещение. Именно преобразовательная суть предмета «Технология» делает приоритетным в работе учителя следующие задачи: сформировать у своих учеников социальную позицию полноправных и ответственных хозяев жизни; помочь им в будущем адаптироваться к жестким требованиям, предъявляемым рыночной экономикой; стать «авторами» формирующейся социально-экономической среды России.
Между тем трудовое обучение как учебный предмет является совершенно уникальным образованием. Если школьные общеобразовательные дисциплины, как правило, опираются на базовые науки, излагающие их основы, то каждый труд конкретен. В связи с этим невозможно научить некоему абстрактному труду и тем более нескольким разным направлениям трудовой деятельности, предусмотренным школьными программами. Да и в этом ли должна состоять цель трудового обучения? Поэтому если рассматривать трудовое воспитание исходя из интересов школьника, а в глобальном масштабе – из интересов общества, то его главной целью следует считать самореализацию личности, развитие её индивидуальных качеств.
Отсюда напрашивается вывод, что в трудовом обучении нельзя быть автократом и сдерживать инициативу учащихся, нужно идти навстречу детям и предоставлять больше возможностей для выбора вида трудовой деятельности предлагать более широкий спектр работ на уроках труда, поощрять инициативу.
Процесс трудового обучения сложен и многообразен. Методика трудовой подготовки – одно из самых молодых направлений в педагогической науке. Хотя подготовка профессиональных преподавателей труда ведется в стране уже более тридцати лет, надо признать, что существуют сложности в решении специфических учебных задач, обусловленные недостаточной проработкой методологических основ.
Методика преподавания технологии как область, педагогических знаний предполагает выделение следующих направлений в деятельности школьного учителя.
1. Обоснование задач трудового обучения. Необходимость раскрытия их воспитательного и образовательного значения связана с тенденциями развития науки и техники, требованиями современного производства к трудовой подготовке молодежи. Технология, рассматриваемая как сфера производства и как отрасль званий, охватывает материальный и социальный аспекты человеческой деятельности. Показывать тесную взаимосвязь между ними значит формировать у подрастающего поколения идеологию преобразовательной продуктивной творческой деятельности.
2. Обоснование содержания учебного материала. Это одна из важнейших проблем решаемых как методическая задача учителями технологии и предпринимательства. Речь идёт не только о вычленении из больших объёмов знаний, накопленных человечеством в различных областях деятельности, тех, которые позволят дать школьникам наиболее ясные представления о теоретических основах и практике производственных процессов. Методические аспекты систематизации учебного материала, превращения знаний и умений, по крупицам рассматриваемых на уроках технологии, в стройную структуру, владея которой школьник получает достаточную профессиональную подготовку, сложная дидактическая задача. Решить, какой материал имеет наибольшую воспитательную и образовательную ценность, способен только учитель, овладевший критериями его отбора. Выработка таких критериев и входит в задачи методики.
З. Организация процесса обучения. Отдельное направление, где методика играет главенствующую роль. По существу это четкое выделение деятельности учителя и деятельности учеников, органически связанных между собой. Принципы и способы построения учебного процесса при преподавании технологии, хотя и имеют много общего с преподаванием других школьных предметов, отличаются рядом специфических факторов. Сюда входит и отбор основных форм организации работы учащихся, и особые требования к выполнению безопасных приёмов труда, и научная организация рабочего места, и соблюдение технологической дисциплины.
В общем, при изготовлении светильника учащимся предоставляется иллюстрационно – графический и словесный метод, при преподавании уроков. Таким образом, ребята учатся читать графические чертежи и технологические карты изготовления изделия, и подсказками со стороны учителя, на практике, лучше воспринимают и понимают последовательность действий и непосредственный процесс изготовления изделия. Такой метод преподавания уроков технологии является наиболее эффективными. Школьники постепенно подготавливаются к тому, чтобы любая их созидательная деятельность была подчинена достижению нескольких конкретных целей:
· целесообразность производства;
· экономическая эффективность;
· экологичность продукта и его производство.
Таким образом, в содержании проектного метода заложен сознательный и творческий выбор человеком оптимальных способов преобразовательной деятельности из масс альтернативных подходов.
Сложность подбора творческого проекта связана со многими факторами. Школьники, должны сами решить и предложить приемлемые для них направления их деятельности. Различные аспекты целенаправленного воздействия на развитие потенциала школьников давно и успешно рассматриваются психолого-педагогической наукой.
2. Технология изготовления
2.1 Технологическая карта
| Порядок выполнения работ |
Содержание работ |
Необходимое оборудование |
Необходимые инструменты |
| Изготовление заготовки для ножки. |
Необходимо взять дубовый брус, диаметром примерно 155 мм. Далее нужно остругать брус, выдерживая необходимые размеры и углы. |
Электрорубанок, электрофуганок, циркулярная пила. |
Линейка, уголок, карандаш. |
| Высверливание отверстия под нагель. |
Нужно взять брус и высверлить отверстие в торцевой части, следуя заданным размерам. |
Сверлильный станок. |
Сверло, керно. |
| Выборка проушины |
Для начала делаем два пропила по заданным размерам, а затем производим выборку оставшейся в проушине древесины. |
Циркулярная пила, |
Измерительные инструменты, стамеска. |
| Изготовление нагеля. |
Вытачиваем цилиндр, по заданным размерам. |
Станоктокарный. |
Стамески токарные, наждачная бумага. |
| Отделочные работы. Изготовление столешницы. |
Производим шлифовку всей поверхности ножки и нагеля, далее покрываем эти детали мооилкой и снова шлифуем. Вырежем из стекла прямоугольник по заданным размерам, а потом в обозначенных местах пробурим круглые отверстия. Зашлифуем торцы столешницы. |
Шлифовальный станок. Стеклорез, шлиф, машинка. |
Наждачная бумага. Шлифовальная бумага и паста. |
| Сборка. |
Совмещая отверстия в столешнице и ножках, вставляем нагеля, предварительно смазанные клеем |
||
| Окончательная отделка. |
Покрываем деревянные части изделия воском, для защиты от внешних воздействий |
Машинка для нанесения воска. |
Восковой круг. |
2.2 Расчёт материала и экономическое обоснование изготовления столика
Всё необходимое для изготовления столика было найдено в складе школьной мастерской. Все станки и используемые при изготовлении инструменты также были школьными. Следовательно, затраты явились не значительными.
Однако, если бы это производство было не школьным, а производственным, то затраты на изготовления столика были бы следующими:
Затраты для изготовления одного столика составят – 350 руб.
Расчёт для изготовления одного столика:
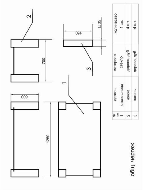
· кусок бруса, размером 2500х150х150 мм, стоимостью 30 руб.,
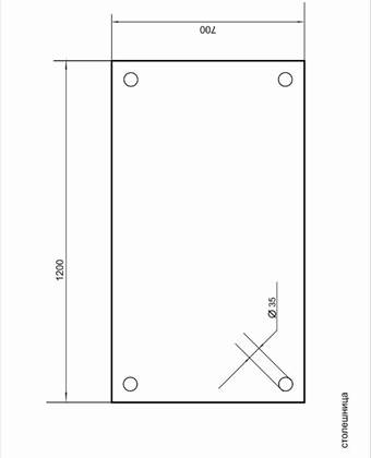
· стекло, размером 1200х700 мм, цена которого 300 руб.;
· штапик (для нагеля), размером 600х35х35 мм, стоимостью 5 руб.
Себестоимость одного столика будет составлять примерно 350 руб. Конечная стоимость столика, с учётом потраченной энергии и сил столяра, а так же оригинальное исполнение и художественная образность изделия, будет составлять от 1500 до 3000 рублей.
Потребителем данного изделия может выступать любой человек, в не зависимости от пола, возраста и религии исповедания. Подобные изделия, очень востребуемы в обществе, и являются как средством украшения интерьера, так и непосредственно вещью для его прямого назначения. Различные варианты исполнения, оригинальный современный дизайн и широкие функциональные возможности обеспечивают любые запросы потребителей.
3. Чертёж столика
3.1 Общий чертёж столика
3.1.1 Чертёж ножки столика

3.1.2 Чертёж столешницы столика

3.2 Эргономическое обоснование изготовления столика

Наши отношения с предметным миром не могут быть ограничены любованием эстетическими достоинствами внешней формы. Практическое назначение предметов, обращение с ними требуют своего осмысления. Вопросами проектирования удобных орудий труда, быта, а в целом – созданием комфортной предметно-пространственной среды для самых различных процессов жизнедеятельности человека занимается эргономика.
В её задачи входит всестороннее изучение функциональных особенностей и возможностей человека в процессе его деятельности и взаимодействии с окружающими предметами.
Человек соизмерял создаваемый им предметный мир со своими физическими параметрами и физиологическими возможностями своего организма.
Непосредственно данное изделие – «Журнальный столик», несёт в себе следующие эргономические задачи:
· центральный элемент интерьера, определяющий уют помещения, от которого во многом зависит степень удобства и комфорта в часы отдыха;
· всегда под рукой – не вставая с дивана или кресла, мы можем дотянуться до любимых газет, журналов, книг, пульта от телевизора, а также расставленных на столе фруктов, лёгких закусок, сладостей или напитков;
· столик выручит и во время застолий, превратившись на вечер в сервировочный журнальный стол.
Заключение
Я считаю что, идя на такой урок и произнося «А сейчас будет урок технологии…» ученик не будет бояться, что ему трудно даётся этот предмет и он опять получит низкий балл. Такой урок поможет внести в обучение технологии – этого непростого предмета радость познания, творческого поиска, уверенность в том, что всё будет понятно, а также интересно и увлекательно, как в детективном романе: Одна глава заканчивается на самом интригующем месте, и все с нетерпением ждут продолжения.
Проведенный мною анализ литературы, показал, что преподавание подобных уроков (самостоятельных практических работ – реализация собственных проектов), эффективно на самом начальном этапе преподавания технологии. Использование подобных нестандартных уроков как нельзя лучше оживляет учебно-воспитательный процесс, повышает интерес к предмету. Ведь очень важно в преподавания предмета, заинтересовать предметом, научить посещать этот урок с жаждой получить новые знания, вести постоянный творческий поиск, открывать в себе скрытые таланты и просто «любить» предмет.
Учителя же могут использовать такие уроки при подготовке открытых уроков, внеклассных мероприятий, они, подтолкнут к поиску новых оригинальных форм и методов обучения, воплощению учителями своих дидактических идей. Такие новые формы работы позволяют реализовать все ведущие функции обучения: воспитательную, образовательную и развивающую на основе идеи педагогики сотрудничества, когда учитель не просто с предметом идёт к детям, а с детьми к предмету.
На мой взгляд, практиковать подобные уроки следует всем учителям, но превращать нестандартные уроки в главную форму работы, вводить их в систему нецелесообразно из-за большой потери времени учителя при подготовке качественного нестандартного урока.
Список литературы
1. http://easystroy.ru
2. http://mebelinich.ru/
3. http://steklostol.ru/
4. http://www.bsn.ru/
5. http://www.dominterior.ru
6. http://www.neopoliscasa.ru
7. http://www.mebel01.ru
8. http://www.russia-italy.ru