| Скачать .docx |
Реферат: Облицовка поверхности гипсокартонными листами
ФЕДЕРАЛЬНОЕ АГЕНТСТВО ПО ОБРАЗОВАНИЮ
государственное образовательное учреждение среднего профессионального
образования
«Кемеровский государственный профессионально-педагогический колледж»
(КемГППК)
![]() |
МЕТОДИЧЕСКАЯ РАЗРАБОТКА УРОКА ПРОИЗВОДСТВЕННОГО ОБУЧЕНИЯ ПО ТЕМЕ: ОБЛИЦОВКА ПОВЕРХНОСТИ ГИПСОКАРТОННЫМИ ЛИСТАМИ
Пояснительная записка
КП 050501.ОМПО.00.00 ПЗ
Студент гр. ПО(с)-061
____________ Чуйков А. А.
Руководитель:
________ Новоселова С. Н.
СОДЕРЖАНИЕ
Введение 4
1 Анализ учебного плана и примерной программы 6
2 Характеристика темы 10
3 Учебно-воспитательные задачи темы 12
4 Педагогические технологии 14
5 Планирование учебного процесса по теме 20
6 Подбор учебно-производственных работ 22
7 Расчет и подготовка учебно-материальной базы для изучения темы 24
8 Разработка учебно-технической документации 30
9 Подготовка мастера профессионального обучения к занятиям 32
10 Методика проведения занятий 37
11 Воспитательная работа мастера в процессе изучения темы 40
Литература 42
Приложение А Инструкционная карта 43
Приложение Б Карточки-задания
44
Приложение В Инструкция по технике безопасности 46
Приложение Г Тесты 47
Приложение Д Критерии оценок 50
Приложение Е Ролевая игра 51
![]() |
ВВЕДЕНИЕ
История разв
ития производственного образования в России ведет свое начало с тех далеких времен, когда человек начал делать инструменты, приспособления и другие орудия для охоты, возделывания земли. Обучение ремеслам велось в роду, в семье, передавалось от отца к сыну. С появлением ремесленничества основным обучающим подростков стал мастер-ремесленник. Боясь конкуренции, мастер-ремесленник не передавал своим ученикам секреты мастерства. Обучение на протяжении 10 - 15 лет проводилось вприглядку, слепо копируя приемы работы учителя. Подготовка основной массы рабочих осуществлялась непосредственно в процессе производства на фабриках, заводах или в кустарных ремесленных мастерских. В царской России до начала ХХ века сеть ремесленных и технических училищ была ничтожна, но в 1910 году их было около 2000.
Специфику развития профессионального образования можно выделить в историю профессиональной школы в следующие периоды: период 1917-1920 г. характеризуется тем, что было введено обязательное обучение подростков от 15 до 18 лет, работающих на предприятиях. Подростки должны были заниматься 6 раз в неделю по 2
часа после работы. Был издан декрет о 8-ми часовом рабочем дне. Труд малолетних до 14 лет запрещался. Вводилось обязательное профессионально-техническое обучение всех рабочих в возрасте от 18 до 40 лет.
Методика производственного обучения развивается на основе изучения и обобщения передового опыта работы лучших училищ и мастеров производственного обучения. Основная цель и задача предмета заключается в том, чтобы помочь мастерам профессионального обучения глубже уяснить задачи и содержание профессионального обучения, успешно и эффективно организовать учебно-воспитательный процесс, целесообразно подбирать методы и приемы обучения и воспитания учащихся в училищах, раскрыть
содержание работы мастера в учебных мастерских и на предприятиях, дать
студентам необходимые сведения по вопросам общей методики профессионального обучения. Для правильного ведения производственного обучения мастерам нужно глубоко знать педагогику, психологию, физиологию, хорошо владеть методикой воспитательной работы методикой профессионального обучения.
Мастер профессион
ального обучения – это особая фигура в педагогическом коллективе профессионального учебного заведения, многообразны и сложны его задачи и служебные обязанности. Мастер производственного обучения – это основной учитель профессии, организатор внеклассной воспитательной работы и жизнедеятельности ученического коллектива закрепленной за ним учебной группы, наставник молодежи, юношей и девушек, вступающих в трудовую жизнь.
Современный специалист должен владеть не только профессиональными знаниями, умениями, навыками, но и обладать такими качествами, как самостоятельность в планировании, выборе методов и средств реализации программы, проявлять ответственность за выполняемую работу, быть способным самостоятельно и эффективно решать проблемы в области профессиональной деятельности.
В настоящее время существует множество различных образовательных учреждений. Наиболее рациональным и эффективным, на мой взгляд, является высшее учебное профессиональное, многоуровневое, многопрофильное профессиональное образование, а также учреждения, где может осуществляться одновременная подготовка рабочих, техников и инженеров нового типа. Так же, важным является создание при профессиональных образовательных учреждениях всех уровней, собственных политехнических классов, учебных центров с сочетанием в них общеобразовательной и профессиональной подготовки, позволяющей выпускникам общеобразовательных школ выбрать профессию, специальность.
1 АНАЛИЗ УЧЕБНОГО ПЛАНА И ПРИМЕРНОЙ ПРОГРАММЫ
Каждый сборник директивной педагогической документации состоит из объяснительной записки, квалификационной характеристики, учебного плана, сводно-тематического и тематических планов, учебных программ, списка литературы и наглядных пособий.
Объяснительная записка включает в себя материал, необходимый для правильного понимания задач обучения, обоснованного выбора наиболее рациональных форм и методов обучения. В ней даны цели и особенности подготовки рабочих по профессии, обоснование содержания и объема требуемых знаний, краткое разъяснение структуры учебного плана, формы организации производственного обучения и работы по спецпредмету, указания о возможных изменениях и дополнениях.
Квалификационная характеристика берется из единого тарифно-квалификационного справочника (ЕТКС) в соответствии с той профессией и тем разрядом, который присваивается выпускнику училища и предусматривает более широкую подготовку, чем предусмотрено ЕТКС. Это создает условия для последующего профессионального роста молоды
х рабочих. Квалификационная характеристика состоит из двух основных разделов: «Должен знать» и «Должен уметь», а также перечень вопросов по технике безопасности, научной организации труда на производстве, по управлению производством и т.п.
Учебный план основан на квалификационной характеристике. В учебном плане дается перечень учебных предметов, определяется порядок и последовательность их изучения по полугодиям и курсам, указывается количество часов, отводимых на каждый предмет в неделю, го
д и за весь курс обучения. Кроме того, перечисляются выносимые на экзамен предметы, устанавливается режим учебных занятий, время на консультации. Сетка часов содержит понедельное распределение часов на изучение предмета, то есть интенсивность изучения, которая определяет часовой профиль предмета.
Различают восходящий, нисходящий и горизонтальный профили.
Восходящий профиль – недельное число часов растет от полугодия к полугодию, нисходящий – уменьшается, горизонтальный – постоянная интенсивность изучения.
Период изучения каждого предмета в учебном плане определен в зависимости от его важности для профессиональной подготовки. На производственное обучение отводится приблизительно 60% учебного времени, в зависимости от типа училища. Все предметы сгруппированы в три цикла. Ведущим является профессионально-технический цикл, в который входят специальная технология и производственное обучение.
В общетехнический цикл входят: общая технология производства, техническое черчение, электротехника и т.п.
Кроме профессионально-технических циклов в учеб
ных планах средних профессиональных училищ выделен общеобразовательный цикл. Все циклы взаимосвязаны.
Сводно-тематический план определяет, как сочетаются в процессе обучения и спецтехнологии иногда сводно-тематические планы составлены и на другие предметы. По остальным предметам даются тематические планы, в которых определено количество часов на изучение каждой темы предмета. Сводно-тематические и тематические планы являются ориентировочными, в них можно вносить изменения.
Учебная программа разрабатывается на основе учебного плана и определяет содержание, объем и последовательность теоретического и производственного обучения. Расположение учебного материала в программах может быть линейным или концентрическим. При линейном расположении каждая последующая часть учебного материала базируется на предыдущей и ее продолжает. При конце
нтрическом - имеет место возвращение к ранее изученному учебному материалу на более высоком уровне. Для всех специальностей программой спецтехнологии предусмотрено: изучение требований техники безопасности, пожарной безопасности, гигиены труда и промышленной санитарии.
Учебная программа является обязательной для выполнения в каждой учебной группе. Вместе с тем разрешается корректирование программы с целью отражения новейших достижений техники, технологии и строительного производства, изменение последовательности и перераспределения времени на изучение тем.
Сборник программной документации согла
сован с Департаментом НПО Кемеровской области и утвержден Директором начального профессионального образовательного учреждения, также рассмотрен на заседании методической комиссии.
Рабочий учебный план согласован департаментом НПО Кемеровской области, утвержден директором НПО и рассмотрен на заседании методической комиссии.
Профессия: Штукатур - маляр.
Сборник программной документации состоит из теоретического обучения; производственного обучения.
В рабочем плане на обязательное обучение выделено всего 836 часов. Из них на общеобразовательную подготовку - 125 часов, гуманитарный цикл - 125 часов, обществоведение - 74 часа, физическое воспитание - 54 часа;
На профессиональную подготовку - 318 часов, общетехнический цикл - 159 часов: электротехника - 34 часа, строительное черчение - 54 часа, материаловедение - 71 час;
На общепрофессиональный цикл - 140
часов: охрана труда в строительстве - 50 часов, экономика отрасли и предприятия – 36 часов, основы строительного производства - 30 часов;
На профессиональный цикл - 1510 часов. На базовый курс - 600 часов.
Производственное обучение - 432 часа; специальный курс - 1078 часов: технология отделочных строительных работ - 172 часа, производственная
практика по специальности - 480 часов, производственное обучение - 426 часов.
Итого: 2946 часов.
Консультации - 350, экзамены - 96, факультатив - 190, эффективное поведение на рынке труда - 20, здоровье - 60;
![]() |
2 ХАРАКТЕРИСТИКА ТЕМЫ
На основании анализа учебного плана, сводно-тематического плана, программы производственного обучения н
а тему программы № 15 «Работа с гипсокартонными листами» отводится 24 часа. Данная тема изучается группой строителей по специальности «Штукатур-маляр (строительный), плиточник» на 1 курсе обучения во 2 полугодии, в мае месяце.
На период обучения учебным планом отводится 6 часов в неделю.
Тема программы «Работа с гипсокартонными листами» включает в себя 4 урока производственного обучения:
- урок 1 «Разметка поверхности и монтаж металлического каркаса»;
- урок 2 «Монтаж гипсокартонных листов»;
- урок 3 «Облицовка поверхности гипсокартонными листами»;
- урок 4 «Ремонт гипсокартонных обшивок»;
На тему урока «Облицовка поверхности гипсокартонными листами» отводится 6 часов. Данная тема очень важна для учащихся, так как в настоящее время гипсокартон очень актуален и широко используется в строительстве. Тема урока «Облицовка поверхности гипсокартонными листами» связана с дисциплинами: «Строительные материалы», «Охрана труда», «Специальная технология» а также с темами: «Подготовка поверхности под облицовку гипсокартонными листами», «Крепление профиля к потолку и полу», «Крепления гипсокартонных листов», «Свойства и назначение гипсокартонных листов».
До изучения темы программы учащиеся должны знать теоретический курс по темам «Облицовка поверхности гипсокартонными листами»; «Инструменты, применяемые для облицовки стен гипсокартонными листами», а также основные правила охраны труда, техники безопасности, организации рабочего места.
Во время изучения темы «Облицовка поверхности гипсокартонными
листами» учащиеся должны выполнить следующие учебно-производственные работы:
- разметка поверхности стен и потолка для крепления направляющих и стоечных профилей;
- монтаж металлического каркаса;
- резка гипсокартонных листов по заданным размерам;
- срезка кромки г
ипсокартонного листа «кромочным» рубанкам;
- монтаж гипсокартонных листов к металлическому каркасу;
3 УЧЕБНО-ВОСПИТАТЕЛЬНЫЕ ЗАДАЧИ ТЕМЫ
Профессиональ
ное обучение является основной профессиональной подготовкой учащихся. Цель производственного обучения при изучении темы, является:
- обучающая – научить учащихся основным приемам монтажа гипсокартона электрифицированным инструментом в соответствии с технологическими нормами;
- воспитательная – воспитывать в учащихся трудолюбие, бережность, наблюдательность;
- развивающая – развивать у учащихся память, логику, творческое мышление;
При изучении нового материала учащиеся должны закрепить и усовершенствовать ранее приобретенные умения и навыки: читать чертежи, пользоваться измерительными инструментами, шаблонами, угольниками.
Учащиеся допускаются к выполнению работ только после прохождения ими вводного инструктажа, а также инструктажа по технике безопасности непосредственно на рабочем месте, который повторяют при переходе на другую работу или при изменении условий работы.
В производственных помещениях необходимо соблюдать все правила внутреннего распорядка. Подходить к рабочим местам только через установленные проходы. В процессе работы необходимо содержать рабочее место в чистоте. По окончании работы необходимо убирать рабочее место, выключать все приборы. Нельзя находиться в производственном помещении без спецодежды. Обо всех случаях нарушения правил внутреннего распорядка необходимо ставить в известность мастера.
Работающие на ручных операциях должны быть внимательными,
не пользоваться неисправным оборудованием, выполнять все правила техники безопасности. Запре
щается перелезать через ограждения, заграждать проходы между рабочими местами.
При изучении новой темы применяем такие методы организации труда, как демонстрация наглядных пособий, трудовых операций и упражнений, самостоятельные наблюдения учащихся, письменное инструктирование. Для приобретения учащимися технических навыков и умений используем ручные инструменты, механизмами.
При изучении новой темы учащиеся должны развивать активность, самостоятельность и познавательный интерес. Необходимо сформировать у учащихся определенное отношение к окружающей их действительности, к коллективу. В процессе производственного обучения необходимо привить учащимся уважительное отношение к труду, воспитывать чувство хозяина, бережливое отношение к общественной собственности, трудовой дисциплине, сформировать нормы и правила поведения. Необходимо развивать внимание, память, наблюдательность.
На данном уроке используются следующие цели:
- обучающая – научить учащихся основным приемам монтажа гипсокартона электрифицированным инструментом в соответствии с технологическими нормами;
- воспитательная – воспитывать в учащихся трудолюбие, бережность, наблюдательность;
- развивающая – развивать у учащихся память, логику, творческое мышление;
![]() |
4 ПЕДАГОГИЧЕСКИЕ ТЕХНОЛОГИИ
Педагогическая технология связана с реализацией педагогического процесса в конкретных условиях обучения или воспитания.
Педагогическая технология также не может быть построена без конкретного алгоритма вза
имодействия участников процесса, в противном случае это будет хаос. Педагогическая технология не может не иметь цели как диагностируемого результата взаимодействия участников процесса, так как взаимодействие без цели не имеет смысла.
В педагогическую систему входят цели обучения, содержание обучения, организационные формы, способы осуществления педагогического процесса, ученики и учителя. Эта структура однозначно определяет педагогическую технологию. При этом под способами понимается взаимодействие педагога и учеников по определенному алгоритму.
Наличие только одной модели педагогического процесса еще не означает, что она может быть легко реализована в реальности, так как педагогическая технология определяется еще готовностью «принять» эту модель учениками, педагогами для конкретного содержания и целей образования.
Особый интерес имеет представление понятия педагогическая технология на трех уровнях: методологическом, обобщенном и конкретном (методическом). На методологическом уровне понятие «педагогическая технология» представляет собой педагогическую категорию. Обобщенные педагогические технологии представляют теоретические модели – технологии будущих обучения и воспитания.
Рассмотрение педагогической технологии как многоуровневого понятия вполне приемлемо, но при этом нарушается главное свойство технологии - ее гарантированность и возможность диагностирования цели. Поэтому более приемлемо использование понятия «технология» для практической реализации
педагогического процесса по цепочке: процесс – модель – технология – результат.
Сегодня понятие «технология» употребляется в педагогике в трех смыслах: как синоним понятий «методика» или «форма организации обучения»; как совокупность уже и
спользованных в конкретной педагогической системе методов, средств и форм; как совокупность и последовательность специально разработанных методов, средств и форм, позволяющих получить личность с заданными свойствами.
Наиболее приемлемым считается понятие «технологии обучения», так как провести диагностику знаний, умений и навыков можно с достаточно высокой степенью точности. В структуру технологии обучения входит:
- предварительная диагностика уровня усвоения учебного материала;
- организация деятельности учащихся по освоению и закреплению учебного материала;
- контроль качества усвоения материала;
- выбор приемов, методов дополнительной работы с группой или отдельными учащимися;
- диагностика причин отставания учащихся;
- выбор методики, снимающей пробелы в знаниях и опыте учащихся всей группы.
Усвоение студентом учебного материала осуществляется в процессе постепенного перехода от репродуктивной к продуктивной (творческой) деятельности, что справедливо и для любой технологии обучения. А чтобы процесс обучения стал технологическим, необходимо выполнение следующих требований:
- постановка диагностичной цели (с указанием уровня усвоения).
- проведение объективного контроля эффективности процесса и определение уровня достижения поставленной цели.
- достижение конечного результата с точностью не менее 70% (по данному уровню усвоения).
Существуют ра
зличные подходы к определению понятия «технология - организованное, целенаправленное, преднамеренное педагогическое влияние и воздействие на учебный процесс;
- содержательная техника реализации учебного процесса;
- описание процесса достижения планируемого результата обучения;
- составная процессуальная часть дидактической системы;
- детально продуманная модель совместной педагогической деятельности по проектированию, организации и проведению учебного процесса с обеспечением комфортных условий для учащихся и учителей;
- системная совокупность и порядок функционирования всех личностных, инструментальных и методологических средств, используемых дня достижения цели.
В совокупности различные определения понятия «технологии обучения» позволяют выделить следующую схему-цепочку: цель – средство – правило – результат.
Учебный процесс, построенный не на основе методики, а с использованием технологизации, имеет следующие преимущества:
- четко определяется конечная цель, т.е. цель диагностична;
- поскольку цель диагностична, то можно разработать объективные методы контроля ее достижения;
- методические разработки, ориентированные в основном на педагога, могут быть заменены разработками, определяющими структуру и содержание учебно-познавательной деятельности учащихся через методы, средства, формы.
Для практической реализации технологий обучения большинство педагогов идет не по пути разработки новых, ранее неизвестных моделей педагогического процесса, а использует хорошо зарекомендовавшие себя, разработанные ранее. Полученная при этом технология обучения получает название по наименованию соответствующей модели. Существуют классификации технологий обучения, когда в основу положены мышление,
деятельность, общение. Если в основу полож
ено мышление, то это технологии программированного обучения, организационно - деятельностные игры, дифференцированное обучение. Для общения это технологии: бригадно-лабораторный способ, коллективный способ обучения, коллективная творческая деятельность, коллективная познавательная деятельность.
Производственное обучение – самостоятельная часть учебного процесса в профессиональном учебном заведении; для него характерны все общие закономерности процесса обучения в целом. Вместе с тем, процесс производственного обучения характерен специфическими особенностями в части целеполагания, содержания, логики, дидактических принципов, организационных форм, методов, средств обучения.
Во-первых, для процесса производственного обучения приоритетным является формирование профессиональных умений и навыков учащихся перед формированием профессиональных знаний. Знания являются основой умения, но главной целью, определяющей специфику производственного обучения как части процесса профессионального образования учащихся, являются профессиональные умения и навыки. Это обусловливает высокие требования к мастеру профессионального обучения как к специалисту-профессионалу, определяет выбор и способы применения форм, методов и методических приемов процесса обучения. В деятельности мастера профессионального обучения, по сравнению с деятельностью преподавателей, значительно снижается «удельный вес» информационной функции и усиливается направляющая, инструктивная функция. Ведущим методом производственного обучения выступают упражнения, особое значение приобретает демонстрация трудовых приемов и способов, использование учебной и производственной документации.
Во-вторых, производительный труд учащихся – основное средство производственного обучения, который не является самоцелью, но без него производственное обучение невозможно. Участие учащихся в
производительном труде, необходимость самостоятельного принятия решений в разнообразных производственных ситуациях объективно определяют высокие требования к уровню познавательной и 
учебно-производственной активности учащихся. Все это влияет на определение содержания и структуры педагогической технологии производственного обучения.
В-третьих, тесная взаимосвязь теории и практики. Это определяет необходимость координации изучения специальных предметов и производственного обучения таким образом, чтобы теория, как правило, опережала практику как по содержанию, так и по времени изучения; высокого уровня специальных знаний мастера профессионального обучения; осуществления тесных межпредметных связей в деятельности мастеров и преподавателей специальных предметов.
В-четвертых, структура процесса производственного обучения – сочетание обучения учащихся в специально организованных условиях (учебных мастерских, учебных лабораториях, на учебных участках, полигонах, в учебных хозяйствах, на учебных установках и т.п.) и в условиях реального производства.
В-пятых, специфика средств осуществления процесса производственного обучения. Наряду с дидактическими средствами обучения особое значение приобретает учебно-материальное оснащение учебно-производственного процесса: оборудование, рабочие инструменты, контрольно-измерительные средства, оснастка, техническая и технологическая документация.
Все эти особенности процесса производственного обучения в значительной степени определяют его технологию.
Технология фронтально-группового производственного обучения в учебной мастерской является наиболее распространенной в профессиональных образовательных учреждениях. В основе ее лежит урок производственного обучения.
В практике производственного обучения в учебных мастерских
характерны такие виды письменного инструктирования учащихся:
- инструкционные карты – применяются при освоении и отработке трудовых приемов, способов, опера
ций, видов работ;
- инструкционно-технологические и технологические карты – применяются при освоении трудовых процессов, при выполнении учебно-производственных работ комплексного характера.
- тренажеры – технические средства обучения, моделирующие условия и содержание производственной деятельности человека, позволяющие создавать оптимальные условия для эффективного формирования профессиональных знаний, умений и навыков, необходимых для выполнения этой деятельности.
На данном уроке применяются элементы игровой технологии, элементы бригадной технологии.
5 Планирование учебного процесса по теме
Под планированием производственного обучения понимается система мер, направленных на создание условий, обеспечивающих качественную профессиональную практическую подготовку квалифицированных рабочих и специалистов в профессиональных учебных заведениях.
Задачи планирования производственного обучения:
- обеспечение полного и своевременного выполнения учебных планов и программ;
- обеспечение правильного подбора учебно-производственных работ, соответствующих программам производственного обучения, распределение их между учебными группами, полной и равномерной загрузки учащихся, рационального использования учебно-материального оснащения учебного заведения;
- создание условий для рациональной организации и своевременного материально - технического оснащения производственного обучения;
- определение объема и сроков выпуска продукции, изготавливаемой учащимися в процессе производственного обучения, обеспечение целесообразного и экономного использования финансовых и материальных ресурсов, выделяемых на производственное обучение;
- планирование работы мастера производственного обучения.
Элементы планирования производственного обучения:
- педагогически обоснованный подбор учебно-производственных работ учащихся, разработку на этой основе перечня таких работ;
- планирование учебно-производственной деятельности группы на определенный отрезок времени;
- планирование производственного обучения при не фронтальной организации учебного процесса.
На тему программы №15 «Работа с гипсокартонными листами»
отводится 24 часа т.е. 4 урока производственного обучения.
Таблица 5.1 - Распределение темы на уроки
| № уроков и тема |
Учебные цели урока |
Воспитательные цели урока |
Развивающие цели урока |
| Облицовка поверхности гипсокартонными листами |
Научить учащихся основным приемам монтажа гипсокартона на металлический каркас электрофицированным инструментом в соответствии с технологическими нормами; |
Воспитывать в учащихся трудолюбие, бережность, наблюдательность; |
Развивать у учащихся память, логику, творческое мышление; |

В таблице 5.2 приведен план производственной деятельности в учебных мастерских учащихся группы штукатуров - маляров на май 2009 года.
Таблица 5.2 - План производственной деятельности группы
| Наименование тем программы |
Кол-во часов на тему |
Наименование учебно-производственных работ |
Кол-во работ на группу |
Норма времени для учащихся на единицу работ, час |
Всего часов на групповое задание |
Примечание |
| Тема программы №15 «Работа с гипсокартонными листами» Тема урока: «Облицовка поверхности гипсокартонными листами» |
24 6 |
Крепление гипсокартонных листов к металлическому каркасу |
30 |
1,4 |
2,8 |
6 ПОДБОР УЧЕБНО-ПРОИЗВОДСТВЕННЫХ РАБОТ для изучения темы
Подбор учебно-производственных работ имеет целью перевод рекомендаций и
установок учебной программы производственного обучения в собственно содержание процесса обучения. Это определяет важность и сложность этого элемента планирования.
При подборе учебно-производственных работ руководствуются следующими основными общедидактическими требованиями:
- производственная ценность основных объектов учебно- производственного труда учащихся;
- типичность для профессии, возможность овладения, современной техникой и технологией, передовыми методами труда;
- составление по содержанию, техническим и технологическим требованиям, трудности и сложности требованиями программы производственного обучения;
- постепенное усложнение как в пределах одной темы, так и процесса производственного обучения в целом;
- посильность для выполнения учащимися по степени сложности и точности, норме времени, объему необходимых знаний, физическим усилиям;
- разнообразие (по форме, по размерам, включаемым приемам и операциям, применяемым материалам, техническим требованиям к качеству).
В таблице 6.1 представлен перечень учебно - производственных работ.
7 РАСЧЕТ И ПОДГОТОВКА УЧЕБНО-МАТЕРИАЛЬНОЙ БАЗЫ ДЛЯ ИЗУЧЕНИЯ ТЕМЫ
Формирования умений и навыков учащихся происходит в процессе учебно-произв
одственного труда, связанного с использованием сырья, материалов оборудования, инструментов и приспособлений. Все это составляет материально-технические средства производственного обучения.
Другая составная часть средств производственного обучения - учебно-методическое оснащение. Это средства обучения, обеспечивающие педагогическую сторону учебно-воспитательного процесса: учебники, учебные и наглядные пособия, технические средства обучения, учебно-методическая документация и пособия, справочные, нормативные, дидактические материалы и т. д.
Оснащение и планировка учебных мастерских должны соответствовать типу учебного заведения, характеру подготавливаемых профессий и особенностям производства.
Мастерские, как правило, размещают на первом этаже. Площадь под них отводится с учетом возможного расширения.
Общие требования к планировке учебных мастерских:
мастерские должны быть приспособлены для проведения занятий по соответствующей программе производственного обучения с применением современных методов, организационных форм и технических средств обучения;
мастерские должны иметь отделения с учетом специфики каждой профессии, а также инструментальные и материальные кладовые;
если мастерская рассчитана на одновременное обучение нескольких групп, то участки отделяют друг от друга, чтобы учащиеся не ходили через рабочую зону учебной группы;
в мастерских на видном месте должна быть аптечка с медикаментами для оказания первой помощи и бак с холодной кипяченой водой;
обязательно наличие в мастерской необходимого противопожарного инвентаря;
в мастерской вывешивается доска показателей группы.
Рабочее место мастера является важным звеном в организации учебно-производственного процесса: оно должно обеспечивать эффективность занятий и снижение потеть рабочего вре
мени мастера.
Организация рабочего места мастера должно соответствовать современным методам обучения, требованиям научной организации труда, конструктивно-техническим, эстетическим и санитарно-гигиеническим нормам.
Основные требования к рабочему месту мастера следующие:
мастеру должно быть удобно, наблюдать за работой учащихся, а учащимся хорошо видны показываемые им во время коллективного инструктажа приемы работ, экспонаты, наглядные пособия, чертежи, технологические карты и т. д.;
перед рабочим местом мастера должна быть свободная зона, где на складных скамейках или стульях располагаются учащиеся во время коллективного инструктажа; после инструктажа их убирают в подмостье рабочего места мастера;
в зависимости от профессии на рабочем месте устанавливается оборудование, на котором мастер демонстрирует изучаемые приемы;
для повышения эффективности учебного процесса рабочее место оборудуется техническими средствами;
рабочее место оснащается необходимыми инструментами, приспособлениями, а также устройствами для хранения и демонстрации наглядных пособий, документации и т. п.
Под рабочим (учебным) местом понимается определенная часть площади мастерской или цеха, находящаяся в ведении отдельного учащегося или бригады учащихся с наиболее целесообразным расположенным на ней оборудованием, приспособлениями, инструментами и материальными, необходимыми для выполнения учебно-производственных заданий.
Рабочее место необходимо организовывать таким образом, чтобы были обеспечены
условия для прохождения всех тем программы производственного обучения.
Организация рабочего места должна способствовать снижению утомляемости учащихся, исключать бесцельное расходование их сил, так как проведение упражнения в то время, когда учащиеся утомлены, сильно замедляет формирование навыков. На каждом рабочем месте должны быть обеспечены безопасные условия труда, сохранность оборудования.
Учащихся надо учить соблюдению основных требований к организации рабочих мест:
все необходимое для работы должно находиться под рукой, так чтобы можно было сразу найти нужный предмет;
инструменты, приспособления и материалы располагают так, чтобы их можно было брать соответствующей рукой: что берут правой рукой - справа, левой – слева; наиболее часто употребляемые во время работы инструменты размещают поближе;
все используемые предметы рекомендуется располагать примерно на уровне пояса;
не следует класть один предмет на другой или на отделанную поверхность обрабатываемого изделия;
документацию надо держать в удобном для пользования и защищенном от загрязнения месте;
заготовки и готовые детали следует хранить так, чтобы они не загромождали, проходы и не приходилось часто нагибаться или принимать неудобное положение, когда надо брать или укладывать их;
легкие предметы рекомендуется класть выше тяжелых.
Каждое рабочее место должно быть хорошо освещено, нельзя допускать, чтобы свет падал в глаза учащемуся. Свет должен быть по возможности рассеянным, не давать резких теней и бликов. Лучше всего
пользоваться
индивидуальным освещением.
Многолетний опыт обучения свидетельствует, что правильная организация рабочих мест учащихся способствует повышению производительности и культуры их труда, соблюдение техники безопасности.
Организация рабочего места должна также отвечать современным эстетическим требованиям.
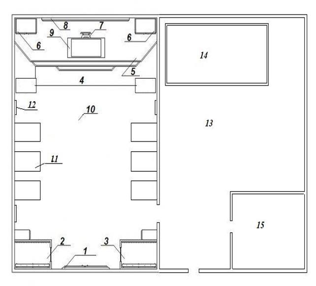
Научная организация труда на рабочем месте предполагает, прежде всего рациональный трудовой процесс, снижение утомляемости учащихся, устранение лишних и неудобных движений, что обеспечивает высокую производительность труда и качество работы (рис.7.1)

Рисунок 7.1 План схема учебной мастерской 
1 – стенд по теме «облицовка поверхности гипсокартонными листами»;
2 – кабинки;
3 – кабинки;
4 – ящик для измерительных приборов;
5 – подиум;
6 – ящики для инструментов;
7 – рабочее место мастера ПО;
8 – доска;
9 – стол мастера ПО;
10 – учебные мастерские;
11 – рабочее место учащихся;
12 – стенды по охране труда;
13 – склад;
14 – место для складирования гипсокартонных листов;
15 – раздевалка;
Учебно - материальное оснащение представлено в таблицах 7.1, 7.2, 7.3
Таблиц
а 7.1- Оборудование, инструменты, приспособления
| Наименование |
Характеристика (тип, марка, модель и т.п.) |
Количество |
Примечание |
|
| на 1 учащегося |
на группу (15 человек) |
|||
| Верстак |
столярный 1500х600х900, шт. |
1 |
15 |
|
| Рубанок |
кромочный, металлический, шт. |
1 |
15 |
|
| Рулетка измерительная |
пластмассовая 2,5 м, шт. |
1 |
15 |
|
| Угольник |
деревянный, 90°, шт. |
1 |
15 |
|
| Саморезы |
металлические, 25 мм, шт. |
20 |
300 |
|
Таблица 7.2 - Материалы и заготовки
| Наименование |
Характеристика (тип, марка, модель и т.п.) |
Количество |
Примечание |
|
| на 1 учащегося |
на группу (15 человек) |
|||
| Гипсокартон |
обычный, 2500х1200х12,5 мм, шт. |
1 |
15 |
|
| Профиль |
направляющий, металлический, 50х40, шт. |
2 |
30 |
|
| Профиль |
стоечный, металлический, 50х50, шт. |
2 |
30 |
|
Таблица 7.3 
- Наглядные пособия
| Наименование |
Содержание |
Количество |
Примечание |
|
| на 1 учащегося |
на группу (15 человек) |
|||
| Инструкционно -технологическая карта |
Монтаж гипсокартонных листов в соответствии с технологическими условиями |
1 |
16 |
|
| Плакат |
Инструменты, применяемые при работе с гипсокартонном |
- |
1 |
|
| Стенд |
Инструкции по технике безопасности при отделочных работах |
- |
1 |
|
| Таблица |
Критерии оценок при монтаже гипсокартонных листов к металлическому каркасу |
1 |
16 |
|
| Карточки - задания |
Технология работы с гипсокартонными листами |
- |
8 |
|
| Тесты |
Тест предназначен для промежуточного контроля усвоения основных вопросов |
- |
8 |
2 варианта |
| Инструкции по ТБ |
Техника безопасности при выполнении гипсокартонных работ |
1 |
16 |
|
| Ролевые игры |
Работа с гипсокартонными листами |
- |
5 |
5 минут |
8 РАЗРАБОТКА УЧЕБНО-ТЕХНИЧЕСКОЙ ДОКУМЕНТАЦИИ
Учебно-техническая документация имеет большое значение в профессиональном обучении. К ней относятся: чертежи, эскизы, схемы, учебно-технические и учебн
о-технологические требования, инструкционные, инструкционно - технологические карты, карточки-задания, карты контроля и самоконтроля, критерии оценок, справочные таблицы, учебные алгоритмы и т.д.
Инструкционная карта - применяется при изучении трудовых приемов и операций, раскрывает рациональную последовательность, правила, средства, способы контроля и самоконтроля выполнения трудовых приемов, составляющих операцию.
Инструкционно - технологическая и технологическая карты -применяются при выполнении работ комплексного характера, раскрывают технологическую последовательность, режимы, технологические требования, средства и рациональные способы труда при выполнении учебно-производственных работ (приложение А)
Учебные алгоритмы - применяются при обучении учащихся обслуживанию, диагностики неисправностей, наладке, регулировке сложного оборудования, содержат четкие правила и последовательность работы в различных типичных ситуациях.
Карточки - задания применяются при обучении учащихся в сложных производственных условиях, содержат задания по изучению устройства и работы сложного производственного оборудования, способы его обслуживания, наладки, регулировки, а также обобщению накопленного опыта (приложение Б)
Тесты - применяются для выявления у учащихся уровня сформированности знаний и умений, используются в соответствии с методикой измерения уровня знаний и оценкой результатов на уроках во время актуализации или закрепления знаний (приложение Г)
Наглядные пособия (плакаты, таблицы, схемы) – передают информацию в графическом и схематизированном форматах. Позволяют показать внешний вид и структуру изучаемых объектов. Применяются в целях создания зрительного представления изучаемого объекта.
Инструк
ции – отображают общепризнанные правила той или иной предметной области (приложение В)
Образец - эталон – позволяет получить точное представление о внешнем виде, размерах, взаимосвязи и масштабных соотношениях объектов. Применяются в процессе выполнения упражнений и при самостоятельной работе учащихся.
Ролевая игра – широко применяется на уроках производственного и теоретического обучения. Учащиеся принимают активное участие в игре, что способствует улучшению их восприимчивости к новому. Как правило, используется для актуализации или закрепления материала (приложение Е)
9 ПОДГОТОВКА МАСТЕРА ПОФЕССИОНАЛЬНОГО ОБУЧЕНИЯ К ЗАНЯТИЯМ
Качество под
готовки мастера производственного обучения к занятиям имеет важное значение для успешной педагогической деятельности. Готовясь к занятиям он проектирует, «моделирует» деятельность свою и учащихся. И очень важно, чтобы эта предварительная модель была как можно ближе к реальности.
Реальное проектирование предстоящего учебного процесса требует глубокого знания теории обучения и воспитания, большого личного опыта практической работы, творческого анализа достижений педагогического опыта.
Подготовительная работа мастера к занятиям включает 2 основных этапа:
- перспективную подготовку к учебному году;
- изучение очередной темы учебной программы и текущего урока;
В содержании подготовительной работы на каждом из этих этапов можно выделить: личную подготовку, подготовку учебно-материального оснащения занятий и планирование учебного процесса.
План урока 10.11.2009
Мастер ПО: Чуйков А. А.
Тема программы №15: Работа с гипсокартонными листами.
Тема урока: Облицовка поверхности гипсокартонными листами.
Цели урока:
- обучающая – научить учащихся основным приемам монтажа гипсокартона электрифицированным инструментом в соответствии с технологическими нормами;
- воспитательная – воспитывать в учащихся трудолюбие, бережность, наблюдательность;
- развивающая – развивать у учащихся память, логику, творческое мышление;
Тип урока: Урок по выполнению комплексных работ.
Методы и методические приемы: Словесные, наглядные, практические.
Материально-техническое оснащение: Верстаки, кромочные рубанки, рулетки измерительны
е, угольники, саморезы, гипсокартон, профиль стоечный, профиль направляющий, инструкционно - технологическая карта, стенды плакаты, таблицы, карточки задания, тесты, инструкции по ТБ, ролевые игры.
Технология: Элементы игровой технологии, элементы бригадной технологии.
Ход урока
1 Организационный момент – 5 минут:
- проверка присутствующих учащихся по списку.
- осмотр внешнего вида на наличие спецодежды.
- проверка готовности учащихся к уроку.
2 Вводный инструктаж – 35 минут:
а) сообщение темы программы, темы урока, разъяснение целей урока.
б) актуализация знаний учащихся:
проверить знания учащихся по карточкам - задания (приложение Б) проверить знания учащихся по вопросам:
- назовите виды конструкций облицовок стен?
- как располагаются продольные и поперечные стыки ГВЛ (ГКЛ)?
- какие дефекты могут возникать при работе с ГКЛ?
в) объяснение темы урока «облицовка поверхности гипсокартонными листами» с демонстрацией наглядных пособий и показом трудовых приемов и операций.
- технология работы с гипсокартонными листами;
- организация рабочего места
- правила техники безопасности и охраны труда (приложение В);
- контроль качества работы;
г) закрепление материала урока:
работа учащихся по тестам (приложение Г);
предложить учащимся воспроизвести трудовые приемы;
д) подвести итоги вводного инструктажа:
- выдать учащимся задание на урок;
- указать норму времени на выполнение учебно-производственных работ
(таблица 6.1)
- разъяснить критерии оценок (приложение Д)
- распределить учащихся по рабочим местам.
3 Текущий инструктаж – 5 часов:
а) упражнения учащихся;
- подготовка материала;
- разметка заготовки по заданным размерам;
- сборка каркаса;
б) самостоятельная работа учащихся:
сбор каркаса из металлического профиля и крепление гипокартонных листов к каркасу;
в) целевые обходы мастера с проверкой:
- организация рабочего места;
- умение применять инструменты и приспособления;
- соблюдение последовательности выполнения работ;
- соблюде![]()
ние правил ТБ;
- правильность выполнения трудовых приемов и операций;
- умение применять инструкционные карты;
- контроль качества;
г) проведение мастером индивидуальных и коллективных инструктажей.
4 Заключительный инструктаж
а) подведение итогов урока, сообщение о достижении целей урока;
б) выставление оценок учащимся в журнал учета;
в) анализ результатов (разбор лучших работ, анализ характерных ошибок, их причины и способы их устранения)
г) выдача домашнего задания: составить красворд по теме «Работа с гипсокартонном;
д) сообщение темы следующего урока: Ремонт поврежденных участков
ГКЛ перегородок
е) у![]()
борка мастерской.
Конспект вводного инструктажа.
Тема: Облицовка поверхности гипсокартонными листами
| При облицовка поверхности используйте цельные листы везде, где возможно. Отрезайте лист гипсокартона по длине так, чтобы конец листа приходился на опорные балки, перекладины, стойки или косяки. Для того, чтобы правильно отрезать лист по длине, сначала установите его так, чтобы конец его выступал за край, до которого вы планируете положить гипсокартонное покрытие. Измерьте необходимую длину при помощи рулетки. Затем воспользуйтесь специальным инструментом для гипсокартона - рейсшиной и пометьте ножом на листе гипсокартона место начала и конца разреза. Проведите специальным ножом надрез по длине листа гипсокартона. Хлопните по одной из сторон листа. Гипсокартон должен сломаться ровно по месту сделанного вами надреза. При этом не разорвется бумага, покрывающая сердечник гипсокартона снизу. Поэтому для того, чтобы полностью отделить куски листа, проведите лезвием ножа по месту разреза, чтобы разделить и заднее покрытие. Иная технология монтажа гипсокартона применяется, когда вам нужно разрезать лист гипсокартона в местах, где есть внутренние углы. Для выполнения подобных разр сердечник гипсокартона с обратной стороны. Другой способ выполнить разрез для внутреннего угла – сначала закрепить лист гипсокартона в том месте, где вы делаете перекрытие, и затем ножом - инструментом для гипсокартона, сделать нужное отверстие. Разметка. С помощью трассировочного шнура задают ось перегородки по полу. Отмечают расположение дверных проемов. Затем с помощью отвеса и трассировочного шнура переносят ось на прилегающие стены и потолок. Монтаж направляющих гипсокартона. Тыльную сторону направляющих профилей оклеивают звукоизол Монтаж стоек гипсокартона. Профили-стойки вставляют сначала в нижний, затем в верхний профили. Стойка должна входить в направляющую на потолке минимум на 20 мм. Затем профили выравнивают строго по вертикали с шагом между осями 600 мм. Открытая сторона должна смотреть в направлении монтажа гипсокартона - это классическая немецкая установка. Существует альтернативный, "американский", вариант конструкции из гипсокартона, когда в направлении монтажа обращен только первый, пристенный, профиль. Обшивка первой стороны. Обшивку начинают с гипсокартонных листов полной ширины - 1200 мм. Для крепления листов гипсокартона используют саморезы по металлу длиной 25 мм с шагом 250 мм. При двухслойной обшивке шаг саморезов на первом слое - 750 мм. Также необходимо смещение вертикального шва между ГКЛ на один шаг профилей - 600 мм. Поэтому второй слой начинают с листа половинной ширины - 600 мм, закрепляя его саморезами длиной 35 мм с шагом 250 мм.
|
10 МЕ![]()
ТОДИКА ПРОВЕДЕНИЯ ЗАНЯТИЯ
Как правило, в ходе урока производственного обучения осуществляются сразу все учебные функции, но доминирует одна, например, ознакомление учащихся с новым материалом или контроль и оценка результатов обучения. Остальные функции носят вспомогательный характер – например, проверка знаний выступает в качестве условия подготовки к проработке с учащимися новой темы. Рассмотрим этапы занятий производственного обучения подробнее.
Организационный этап, предполагает проверку явки учащихся, контроль их готовности к занятиям и их психологическую подготовку к занятиям. От общей обстановки ведения занятий во многом зависит успех работы.
На этом организационно-подготовительном этапе может осуществляться распределение по рабочим местам, раздача инструментов и заготовок, назначение дежурных. Если мастер сочтет нужным, он сообщает ученикам особенности хода настоящего занятия или концентрирует внимание учащихся на задачах, которые необходимо решить.
Второй этап – по усмотрению мастера – может быть, а может и отсутствовать. Назовем его актуализацией опорных знаний. Так называют восстановление в памяти учащихся, выявление актуальных для изучения нового материала, базовых знаний. Формы могут быть различными – это и специально организованный контроль знаний, и проверка результатов домашнего задания, и диалог во время последующего объяснения учебного материала.
Третий этап урока – обязательный на каждом занятии – вводный инструктаж. Он предваряет практическую часть урока и носит самый разнообразный характер в зависимости от темы занятия.
Главной составной частью вводного инструктажа при изучении операций является методически правильный и квалифицированный показ мастером трудовых приемов, которые должны усвоить учащиеся.
На уроках самостоятельного изготовления учебно-производственных
изделий вводный инструктаж включает сообщение о назначении изделия, его
применении, обязательный показ эталонного изделия. Далее следует подробный разбор технологической последовательности изготовления изделия. Он включает в![]()
себя показ применяемых инструментов и приспособлений, демонстрацию необходимых приемов, предупреждение о возможных ошибках.
Мастер на вводном инструктаже приводит типичные ошибки, обычно характерные при обучении, указывает причины, их вызывающие или меры предупреждения.
Уместно подчеркнуть: при проведении вводного инструктажа следует широко использовать средства наглядности.
Обязательным элементом вводного инструктажа является инструктаж по безопасным приемам работ.
Мастер вправе не планировать на этом этапе урока опрос- как понят учащимися объясняемый технологический материал. Закрепление такого материала может осуществляться и в самом процессе работы учащихся.
Серьезным недостатком, встречающимся у молодых мастеров, является изложение на вводном инструктаже теоретического материала. Следует предметно показать важность этих знаний для практики, а не подменять собой преподавателя специальной технологии.
Следующий этап урока производственного обучения - практические работы учащихся, которые могут носить характер самый разнообразный – упражнений и самостоятельной работы, лабораторно – практических работ и игры учебно-производственного характера.
Этот этап совпадает с текущим инструктированием мастера, когда осуществляется достоверный контроль понимания учащимися нового материала. Целевым обход назван потому, что рабочие места проверяются с четко намеченными целями. Таковыми могут быть:
проверка организации рабочих мест учащихся;
контроль соблюдения безопасных приемов труда;
соблюдение технологической последовательности обработки учебно–
производственных изделий;
ме![]()
жоперационный контроль качества и соблюдения технических требований;
приемка и оценка выполненных работ.
Целевые обходы могут носить и другой характер, но последний из названных нами дает мастеру материал для последующего подведения итогов.
Текущий инструктаж может быть индивидуальным, групповым или фронтальным и диктуется необходимостью.
Если мастер заметил неправильное выполнение трудовых приемов или операций, он должен повторно показать на рабочем месте, как следует делать. Если же имеет место небрежное отношение к оборудованию или оснастке, нерациональное использование рабочего времени, индивидуальный инструктаж может носить характер строгого внушения.
Завершает занятие заключительный инструктаж и уборка рабочих мест в мастерских. Традиционно он включает в себя:
подведение итогов выполнения учебных задач;
разбор допущенных ошибок и выявление их причин;
анализ выполнения правил техники безопасности или технологической дисциплины;
сообщение результатов работы каждого;
объявление, что необходимо проработать дома.
11![]()
ВОСПИТАТЕЛЬНАЯ РАБОТА МАСТЕРА В ПРОЦЕССЕ ИЗУЧЕНИЯ ТЕМЫ
Воспитательная работа в педагогической деятельности очень важна, многогранна и характеризуется разнообразием форм. Непосредственно в учебной группе воспитательную работу с учащимися проводят мастера производственного обучения и преподаватели.
Воспитательный процесс – организованное, целенаправленное руководство воспитанием учащихся в соответствии с целями, поставленными обществом.
Главное назначение воспитательного процесса – это формирование личности молодого человека, необходимого и полезного обществу, всесторонне развитого человека с высоким потенциалом, желающего и умеющего трудиться, эстетически и физически развитого. Чем целесообразней организованна деятельность, чем разумнее строится общение, тем эффективнее протекает воспитательный процесс. Участвуя в различных видах общественно-полезной деятельности, учащиеся фактически приобщаются к деятельности общества, занимают определенное место в обществе, утверждают свои социальные позиции.
Мастер должен не только включить учащихся в деятельность, но и в отношения, складывающиеся в процессе деятельности.
В процессе изучения тему урока мастер ставит следующие воспитательные задачи и соответственно пути их решения:
- воспитывать чувство ответственности – учащиеся будущие работники производства, создатели экономики общества, в котором будут жить;
- прививать трудолюбие, сознательное отношение к труду – благосостояние и материальное положение человека зависят только от качества его работы;
- воспитывать бережное отношение к оборудованию, инструментам, приспособлениям;
- воспитывать инициативу и самостоятельность в трудовой деятельности – существу![]()
ет несколько способов выполнения того или иного трудового приема, учащимся предлагается самим выбирать способ выполнения учебно-производственных работ;
- воспитывать бдительность в соблюдении правил техники безопасности и охраны труда – на производстве очень много различного оборудования и приспособлений, неосторожное отношение к которым может привести к травмам.
Большое значение для успешной воспитательной деятельности имеет высокий уровень общей культуры мастера, его кругозор. Опытный мастер производственного обучения является образцом поведения для учащихся, поэтому он личным примером может показать уверенность, ответственность, настойчивость, целеустремленность, требовательность к себе, самостоятельность и организованность.
Способом создания ситуации успеха мастер способствует формированию, особенно у «слабых» учащихся, уверенность в своих силах.
ЛИТЕРАТУРА
1 Жуков, Г.Н. Основы педагогических знаний мастера производственного обучения [Текст] : Учеб. пособие. – Кемерово / Г.Н.Жуков. – Изд-во Кемеровск. гос. проф.-пед. колледжа, 2001. – 236 с., ил.
2 Зубрилина, С.Н. Справочник отделочнка [Текст] : Серия "Справочники", - Ростов-на-Дону / С.Н.Зубрилина. – Феникс, 2002. – 320 с.
3 Ивлев, А.А. Отделочные строительные работы [Текст] : Учеб. для нач. проф. образования / А.А.Ивлев![]()
. – М.: ПрофОбрИздат, 2002. – 488 с.
4 Кругликов, Г.И. Методика профессионального обучения с практикумом [Текст] : Учеб. пособие для студ. высш. учеб. заведений / Г.И.Кругликов. – М.: Издательский центр "Академик", 2005. – 228 с., ил.
5 Скакун, В.А. Организация и методика профессионального обучения [Текст] : Учебное пособие / В.А.Скакун. – М.: ФОРУМ: ИНФРА – М, 2007 – 336 с.: ил. – ( Профессиональное образование)
6 Журавлёв, И. П. Штукатур. Мастер отделочных строительных работ. [Текст] : Учебное пособие для учащихся профессионально- технических училищ/ И. П. Журавлёв. – М.: Ростов на Дону: изд-во «Феникс», 2000. – 320 с.
7 Сборник учебных планов и программ для подготовки квалифицированных рабочих в проф-тех. училищах- М., 2000. – 105с.
8 Петрова, И.В. Общая технология отделочных работ [Текст]: учеб.
пособие для нач. проф. Образования/ И.В. Петрова – М.: Издательский дом «Академия», 2006. – 192 с.
9 www/ alveststroy/ ru/ articles_ 10/ htm
10 www/ deptno, Lipetsk, ru/../ shtukatur. Doc.
11 www. Rem 2 . ru/ modules. Php



