| Скачать .docx |
Курсовая работа: Трансферт технологий в иновационной деятельности
Содержание:
1.2. Формы трансферта технологий во внешнеэкономической деятельности. 8
1.2.1. Объекты интеллектуальной собственности. 11
1.2.2. Формы трансферта технологий. 17
1.2.3. Прямой и непрямой путь трансферта технологий. 30
1.2.4. Финансирование трансферта технологий. 33
2.1. Краткая характеристика предприятия. 35
2.2. Характеристика инновационной деятельности на предприятии ......... 48
2.3. Комплексная характеристика нововведения ........................................ 51
2.4. Обоснование и выбор проекта............................................................... 57
2.5. Обоснование эффективности инновационного проекта ....................... 62
2.7. Организация реализации проекта. 76
Заключение. 78
Список используемой литературы. 79
Введение
В России наличие собственного эффективного машиностроения является одним из основных элементов обеспечения национальной безопасности. Уровень выпускаемого оборудования характеризуют степень развития и потенциал страны, обеспечивают её независимость. Это определяет необходимость рассматривать развитие машиностроения как одно из приоритетных направлений государственной экономической политики.
Инновации необходимы для достижения успешного развития предприятия. В противном случае с усилением конкуренции, изменением конъюнктуры рынка и технологий, внедрением нововведений другими фирмам оно потеряет свои позиции. Любой инновационный проект, являясь проектом инвестиционным, требует учета различного рода факторов, которые могут оказать влияние на финансово-экономические показатели. Поэтому при отборе инновационных проектов важно учитывать именно финансовые критерии, такие как стоимость проекта, формы и методы его финансирования.
Для предприятий результирующим показателем является доход. Данный показатель и факторы, оказывающие влияние на его изменение, дают возможность определить резервы и пути повышения доходности предприятия и обеспечения его конкурентоспособности. Таким образом, исследуемая тема является актуальной и важной для осуществления предприятием производственно-хозяйственной и финансовой деятельности.
Объектом исследования данной курсовой работы является Открытое акционерное общество «Энергомашкорпорация» Производственный Комплекс Завод Металлоконструкций.
Целью данной работы является закрепление теоретических знаний, полученных при изучении дисциплины, и развитие практических навыков организации инновационной деятельности на ОАО ЭМК ПК «ЗМК».
В связи с этой целью необходимо решить следующие задачи:
-проанализировать инновационную деятельность предприятия;
-провести тщательный анализ хозяйственной деятельности предприятия;
-рассчитать экономическую эффективность инновационного проекта;
-определить уровень устойчивости и чувствительности проекта исходя из возможного изменения прогнозируемых факторов;
Для достижения цели используются статистические данные, экономико-математический, технико-экономический методы анализа.
1. Теоретическая часть
1.1 Понятие технологии
Технология (от греч. techne — искусство, мастерство, умение, плюс ... логия) - совокупность приемов и способов обработки и переработки различных сред.
Дисциплина, изучающая эти явления, также получила название технологии. Она представляет собой совокупность приемов получения новых знаний о процессах обработки (переработки) различных сред. Общность подхода к предмету исследования в технологии предопределила и расширение видов обрабатываемых (перерабатываемых) сред, к которым стали относить не только материальные ресурсы (металл, химические вещества, растительную продукцию, в том числе дерево, пластмассы, стекло, минеральное сырье, продукты переработки сельскохозяйственного производства), но и нематериальные ресурсы (информацию, проектные и научные разработки, зрелища, искусство, законотворчество, управление, финансовые и страховые услуги и т. п.).
Задачей технологии как науки является выявление физических, химических, механических, коммерческих, социальных, экологических и прочих закономерностей о природе превращения обрабатываемых сред из одного вида в другой целью определения и использования в широкой практике наиболее эффективных производственных процессов. Изучение их временных тенденций позволяет осуществлять прогнозирование направлений и темпов развития технологий и производства. Это направление в науке получило название - технодинамики.
Технологией также называют сами операции добычи, переработки, транспортирования, складирования, сбережения, передачи прав владения, продажи и т.д., которые являются частью производственного процесса.
Понятие "технология" обычно рассматривается в связи с конкретной отраслью производства. Различают технологию:
· строительства;
· химическую;
· получения конкретного продукта (например связанного азота, аммиачной селитры, серной кислоты);
· проектирования и конструирования;
· социальную;
· обработки информации;
· штамповки металла;
· печатания денег;
· банковского и страхового дела;
· продвижения и власти...и т.д.
Совокупность технологических операций составляет технологический процесс, в результате которого происходит качественное изменение обрабатываемых сред, их формы, строения, материальных (технических) и потребительских свойств. Наиболее общим содержанием понятия "технология" является совокупность приемов и способов переработки различных сред. Его мы и будем далее подразумевать при рассмотрении функций инновационного менеджмента.
Исходя из такого представления технологии каждую из их множества можно считать производственной, так как любая из них предназначена для производства нового качества исходного материала. Однако в зависимости от специализации предприятия как организационной формы производственного процесса складывается определенный приоритет в технологии (главная - основная, обеспечивающая - вспомогательная), ее развитии и лицензировании применения передобществом (государством).
По мере развития науки и техники технологии непрерывно обновляются. В тенденциях развития современных производственных технологий прослеживав три основных направления:
· переход от дискретных (циклических) технологий к непрерывным (поточным) производственным процессам как наиболее эффективным и экономичным;
· внедрение замкнутых (безотходных) технологических циклов в составе производства как наиболее экологически нейтральных;
· повышение наукоемкости технологий "высоких" и "новейших" технологий как наиболее приоритетных в бизнесе.
Результатом применения технологий в производственном процессе является продукт (работа, услуга) как конечный результат производственной деятельности человека (общества), обусловленный спросом на него. В зависимости от возможности использования потребителем различают три вида продукта :
· материальный (ПМ);
· энергетический(ПЭ);
· интеллектуальный (ПИ).
Эти три вида продукта являются самостоятельными, непересекающимися множествами, которые взаимодействуют между собой по кольцевой схеме в различных соотношениях и комбинациях (рис 1).

Сущность системного подхода раскрывается в методике его организации, т. е. в выделении объекта системного анализа (вещества, явления, процесса, структуры), границы раздела внешней и внутренней среды объекта, целевой функции и структуры объекта, описания и критериев оценки состояния объекта, классификации элементов и способах их агрегирования.
1.2.Формы трансферта технологий
Как известно, различают следующие виды инноваций:
· технологические;
· создание нового рынка;
· освоение нового источника поставки сырья или полуфабриката;
· реорганизация системы управления.
Технологические инновации подразделяются следующим образом (табл. 1).
Таблица1
Технологические инновации
| Вид | Степень новизны | Внедрение | ||
| Радикальная | Инкрементальная | Результат | Место | |
| Продуктовая | Существенно отличается от ранее выпускавшихся продуктов по области применения характе-ристикам, комплек-тующим, материалам и полуфабрикатам за счет применения новых и/или сочетания существующих технологий в новом применении | Улучшает качественные или стоимостные харак-теристики уже сущест-вующего продукта за счет использования бо-лее эффективных ком-плектующих, мате-риалов и полуфабри-катов, частичного изменения одной или ряда технических под-систем (для сложного продукта) | Новая (усовершенствованная) инновационная продукция | На рынке |
| Процессная | Освоение новых методов произвдства, изменения в оборудовании и/или орга-низации производства, обеспечивающих создание новых или усовершенст-вованных продуктов, выпуск которых старыми методами или на старом оборудовании невоз-можен, существенное повышение эффектив-ности производства | Освоение усовершенст-вованных методов производства, изменения в оборудовании и/или организации производства. | Прочая инновационная продукция | В производственном процессе |
Все меры, подходящие для улучшения конкурентоспособности продукции, увеличения производительности или показателей деятельности предприятия, вместе взятые, определяют продвижение инноваций. С технологической точки зрения инновация определяется как введенное в практику изобретение, такое, например, как новый вид товара или производственный процесс.
Трансферт технологий, таким образом, рассматривается как один из аспектов инновационного процесса и представляет собой передачу научно-технических знаний и опыта для оказания научно-технических услуг, применения технологических процессов, выпуск продукции. Критерии наличия факта передачи – активное применение переданной технологии для производственных целей.
Основными формами трансферта технологий являются:
· передача патентов на изобретения:
· патентное лицензирование;
· торговля беспатентными изобретениями;
· передача технической документации;
· передача «ноу-хау»;
· передача технологических сведений, сопутствующих приобретению или аренде (лизингу) оборудования и машин;
· информационный обмен в персональных контактах на семинаpax, симпозиумах, выставках и т.п.;
· инжиниринг;
· научные исследования и разработки при обмене учеными и специалистами;
· проведение различными фирмами совместных исследований разработок;
· организация совместного производства;
· организация совместных предприятий.
При этом необходимо отметить побудительные мотивы деятельности со стороны покупателей и продавцов технологий
Продажа технологии — один из основных инструментов проникновения и закрепления на рынке. Она, как правило, связана и с товарной экспансией (поставка оборудования, проекты предприятий «под ключ») и с сопутствующими сделками на поставки сырья, материалов, комплектующих изделий, полуфабрикатов приносящих продавцу дополнительный доход. Экспорт технологии прямо пропорционален числу зарубежных патентов, заключение соглашения на передачу технологии часто является результатом предшествующего патентования инновации за рубежом.
Охотнее идут на передачу технологии:
- малые и средние предприятия;
-предприятия, выпускающие многие виды продукции;
-фирмы с высоким научно-техническим потенциалом;
-предприятия, владеющие инновациями как побочными продуктами НИОКР или второстепенными технологическими процессами.
Покупка технологии способствует повышению конкурентоспособности промышленности, активизации экспорта, уменьшению зависимости от импорта. Полученная технология может стать кагором при создании собственных технологий, развитии национальной сферы НИОКР. Многие страны, в частности Германия и Япония, придавали особое значение импорту технологий, в результате в 1980-х годах ФРГ возглавила список экспортеров готовых изделий, а Япония заняла второе место. Государство, широко использующее импорт своего экономического и социального развития, формирует национальное законодательство, благоприятствующее притоку технологий (преференциальный режим валютного регулирования, касающийся платежей и переводов в иностранной валюте, льготный налоговый режим, специальные условия внутреннего кредитования и финансирования).
1.2.1. Объекты интеллектуальной собственности. Правовая охрана технологий
Рынок технологий приобретает для человеческого общества огромное значение — суммарная стоимость создаваемых в мире технологий в настоящее время достигает 60% от величины всего общественного валового продукта, что обусловливает большие объемы продаж. Приобретая технологии, фирмы за относительно короткий срок достигают мирового уровня качества и высокой конкурентоспособности производимой продукции, получают новые рынки сбыта и увеличивают объемы экспорта. В то же время, предоставляя технологии, они проникают на рынки стран, куда экспорт товаров затруднен или не выгоден, и таким образом оказывают влияние на цены и конъюнктуру рынка, расширяют поставки сырья, устанавливают контроль над приобретателем технологии.
Специфичность таких товаров, как результаты творческого труда, накладывает отпечаток на функционирование рынка технологий, создавая значительные отличия между ним и другими рынками. Так, к особенностям торговли на нем относятся: длительный и многообразный характер сотрудничества, частое использование комбинации нескольких носителей технологии (например, экспорт и аренда промышленного оборудования, научно-техническая кооперация, совместное предпринимательство), более сложные процедуры оформления сделок и др.
Обмен результатами творческой деятельности (особенно в науке, технике и управлении) является важнейшим фактором прогресса. Поэтому государство контролирует эту сферу и, создавая предпосылки для разработки более эффективных результатов, пресекает попытки граждан использовать достижения человеческого разума во вред обществу. В частности, оно обеспечивает защиту результатов творческого труда граждан и организаций путем введения правового института интеллектуальной собственности.
Объекты интеллектуальной собственности, являющиеся творениями человеческого разума, подразделяют на:
· произведения, охраняемые авторским правом (научные труды литературные и художественные произведения, конструкторские чертежи, программы для ЭВМ, базы данных, исполнительская деятельность артистов, фонограммы и радиопередачи и др.);
· промышленную собственность (изобретения, полезные модели, промышленные образцы, товарные знаки и знаки обслуживания, фирменные наименования, «ноу-хау» и др.).
Предметом охраны по авторскому праву являются все произведения литературы, науки и искусства независимо от способа и формы их выражения. Охрана произведения возникает без всякой государственной регистрации, лишь на основании факта создания произведения.
В отличие от объектов авторского права охрана изобретений и других объектов промышленной собственности гораздо сильнее (как правило, запрещается несанкционированная имитация охраняемых признаков). Критериями охраноспособности изобретения обычно являются новизна, изобретательский уровень и промышленная применимость (либо их аналоги в законодательстве других стран). Эти критерии вводятся специальным законодательством и уточняются в нормативных актах патентного ведомства (специального государственного органа, обеспечивающего охрану прав на объекты промышленной собственности, в Российской Федерации таким ведомством является «Роспатент»).
К промышленным образцам обычно относится художественно-конструкторское решение изделия, определяющее его внешний вид. Промышленному образцу предоставляется правовая охрана, если он является новым, оригинальным и промышленно применимым (критерии охраноспособности в других странах аналогичны).
Промышленный образец признается новым, если совокупность его существенных признаков, определяющих эстетические и (или) эргономические особенности изделия, не известна из сведений, ставших общедоступными в мире до даты приоритета промышленного образца.
Промышленный образец признается оригинальным, если его существенные признаки обусловливают творческий характер эстетических особенностей изделия.
Промышленный образец признается промышленно применимым, если он может быть многократно воспроизведен путем изготовления соответствующего изделия.
Термин «ноу-хау» впервые был применен в США в судебном деле Дюранда против Брауна в 1916 г. и означал умение или мастерство что-либо сделать с минимумом усилий. В настоящее время законодательство многих развитых стран мира определяет «ноу-хау» как организационную или коммерческую информацию, составляющую секрет производства. Понятие «ноу-хау» включает не только различного рода технические знания и опыт, не имеющие правовой охраны, но и знания (опыт) административного, экономического, финансового или иного порядка.
Хорошо известно, что без знания «ноу-хау» в большинстве случаев невозможно воспроизвести промышленно освоенную новую технику и тем более совершенствование, а также создание ее последующих поколений. В настоящее время, не имея «ноу-хау», практически нельзя применять изобретения, права на которые приобретены у сторонних лиц, являющихся разработчиками (авторами). В силу этого «ноу-хау» приобретает значительную ценность и может являться объектом купли-продажи
Герберт Штумпф в своей книге «Договор о передаче "ноу-хау" в качестве примера приводит один из возможных перечней сведений, составляющих «ноу-хау» предприятия, который по утверждению автора, не претендует на полноту. Выделяя техническую и коммерческую сферу деятельности, он относит к коммерческой тайне:
1) в технической сфере:
· конструкционные чертежи;
· результаты опытов и их протоколы;
· перечень проведенных исследовательских работ, общепринятые таблицы и результаты расчетов в их специальном применении для производства определенного продукта;
· статистические расчеты;
· формулы и рецепты;
· данные о качестве материалов;
· список деталей;
· чертежи поставляемого оборудования, включая инструкции по обработке;
· перечни норм, которые дают сведения о результатах проведенных работ по разработке норм;
· данные о произведенных улучшениях; •рабочие планы с указанием времени и допусков;
· инструкции по технологии (например, предписания по тепловому режиму);
· чертежи;
· документация по изготовлению;
· отчеты о произведенной продукции;
· оптимальные количества стандартных деталей;
· акты приемочных испытаний;
· строительные отчеты, перечни аппаратуры;
· количественные калькуляции для наружного монтажа; данные работ по программированию;
· обучение персонала другого предприятия;
2) в коммерческой сфере:
· картотеку клиентов
· картотеку поставщиков;
· данные об организации производства;
· документацию о программировании в коммерческой сфере;
· документацию об организации сбыта и распространения;
· данные о финансировании;
· методы рекламы;
· обучение коммерческого персонала другого предприятия.
Патент удостоверяет приоритет, авторство изобретения, полезной модели или промышленного образца и исключительное право на их использование. В случае товарного знака свидетельство удостоверяет приоритет товарного знака, исключительное право владельца на товарный знак в отношении товаров, указанных в свидетельстве.
Приобретая или передавая технологии, защищенные патентами или другими охранными документами, важно знать сроки действия этих документов. В разных странах они различны, хотя и близки друг к другу. Так, например, в Российской Федерации патент на изобретение действует в течение 20 лет, а свидетельство на полезную модель — в течение 5 лет, считая с даты их приоритета. Действие свидетельства на полезную модель продлевается патентным ведомством по ходатайству патентообладателя, но не более чем на 3 года. Патент на промышленный образец действует в течение 10 лет, считая с даты приоритета. Его действие также может быть продлено, но не более чем на 5 лет.
Патентовладелец может разрешить за вознаграждение другим лицам применение охраняемого патентом объекта промышленной собственности. Это осуществляется путем выдачи лицензии, т.е. заключаемого в письменной форме лицензионного договора.
1.2.2. Формы трансферта технологий
Наличие множества видов объектов интеллектуальной собственности, каждый из которых регулируется законодательно несколько иначе, чем другие, имеет следствием большое разнообразие форм передачи технологии.
Обычно основные формы передачи технологий делятся по своему экономическому содержанию на некоммерческие (безвозмездные) и коммерческие (возмездные).
Некоммерческие формы передачи технологии:
· научно-технические публикации (доклады, конференции, каталоги, выставки, описания патентов);
· обмен результатами исследований посредством личных контактов и посещений научно-исследовательских учреждений и промышленных предприятий (стажировки, командировки и др.);
· обмен производственно-техническими достижениями и опытом по долгосрочным программам.
Некоммерческий трансферт технологий чаще всего используется в области научных исследований фундаментального характера. Он обычно сопровождается небольшими расходами (особенно валютными) и может поддерживаться как по государственной линии, так и на основе фирменных и личных контактов.
Коммерческие формы передачи технологии:
· передана объектов промышленной собственности (патенты на изобретения, свидетельства на промышленные образцы и на полезные модели), за исключением товарных знаков, знаков обслуживания и коммерческих наименований, если они не являются частью сделок по передаче технологии;
· «ноу-хау» и технический опыт в виде технико-экономических обоснований, моделей, образцов, конструкций, чертежей, спецификаций, технологической оснастки и инструмента, услуг консультантов и подготовки кадров;
· технические и технологические знания.
К особенностям коммерческого трансферта технологий относятся:
· высокая степень монополизации, поддерживаемая принятой системой охраны прав промышленной собственности, и вследствие этого слабость позиции покупателя (в отличие от потребительского рынка - это рынок продавца);
· высокая норма прибыли (большая разница между ценой и стоимостью;
· асимметричное разделение на страны-импортеры (развивающиеся страны) и государства, которые одновременно являются экспортерами и импортерами (развитые страны);
· большой объем технологического трансферта внутри транснациональных корпораций.
Соглашения «под ключ» и соглашения «под готовую продукцию»
Во многих странах широко распространены соглашения «под ключ». Они предполагают поручение фирме-исполнителю (подрядчику) научно-технических разработок, поставок необходимого оборудования и строительства промышленного или иного объекта от стадии проектирования до поставок и монтажа оборудования. Позволяя заинтересованным сторонам приступить к выпуску высокотехнологичной продукции, не имея для этого соответствующего научно-технического задела, соглашения «под ключ» не только обеспечивают возможность приобретения определенных технических и управленческих знаний, но и обходятся заказчику дешевле, чем самостоятельное выполнение всего комплекса работ. Однако строительство заводов «под ключ», закупка комплектного оборудования, отдельных объектов техники и другие торговые операции, по которым «ноу-хау» не передается, позволяют только временно, в пределах морального старения, эксплуатировать закупленную новую технику, но не дают возможности ее воспроизвести, создать более совершенную, а следовательно, ликвидировать наметившееся или сложившееся отставание.
Соглашения «под готовую продукцию» являются более совершенной формой соглашений и отличаются тем, что покупатель получает предприятие в свое распоряжение только производства продукции.
Лицензионные соглашения
Лицензионные соглашения предусматривают передачу на определенный срок прав, вытекающих из интеллектуальной деятельности в области науки и техники. Их можно классифицировать следующим признакам.
По степени автономности — лицензии самостоятельные и зависимые (сублицензии). Сублицензию предоставляет лицензиат, являющийся владельцем полной или исключительной лицензии, на основании прав, предоставленных ему в соответствии с лицензионным договором.
По виду объектов промышленной собственности, права на которые передаются, - изобретения и полезные модели, промышленные образцы, «ноу-хау», товарные знаки или фирменные наименования (франчайзинг).
По способам охраны объектов промышленной собственности:
· патентные — лицензии на использование технических решений, защищенных патентами или другими аналогичными охранными документами;
· беспатентные — лицензии, предметом которых являются разработки (технологии), не имеющие правовой защиты (например, «ноу-хау»). Передача «ноу-хау» может осуществляться по разным каналам, в том числе и без заключения лицензионного соглашения, например, при демонстрации приемов работы, обучении технического персонала, установке и наладке оборудования, решении задач организационного, управленческого характера, изменении технологического процесса в соответствии с требованиями лицензиата и др.;
· смешанные — передача «ноу-хау» и прав, охраняемых патентами. Часто приобретение «ноу-хау» осуществляется при заключении лицензионных договоров вместе с патентными или авторскими правами. Обычно лицензии на патенты и «ноу-хау» прилагаются к договорам купли-продажи оборудования (особенно комплектного, такого, как технологические линии предприятий и т.п.).
Основными отличиями передачи «ноу-хау» являются:
· большой риск, связанный с раскрытием конфиденцисмьного существа «ноу-хау» до заключения контракта и утечкой «ноу-хау» от получателя третьим лицам после заключения контракта;
· необратимый характер передачи «ноу-хау»;
· постоянно присутствующий временной фактор;
· неопределенность периода сохранения конфиденциальности «ноу-хау» (быстрое развитие технологии делает общедоступным «ноу-хау», являвшееся секретным).
По объему прав на использование технологии:
· простая (неисключительная) лицензия — лицензиар, предоставляя лицензиату право на использование объекта промышленной собственности, сохраняет за собой все права, подтверждаемые патентом, в том числе и на предоставление лицензий третьим лицам;
· исключительная лицензия — лицензиату передается исключительное право на использование объекта промышленной собственности в пределах, оговоренных договором, с сохранением за лицензиаром права на его использование в части, не передаваемой лицензиату;
· полные лицензии применяются в некоторых зарубежных странах. Они представляют собой патентные лицензии, в соответствии с которыми в полном объеме предоставляются права на изобретение на весь срок действия патента. В законодательстве РФ понятие полной лицензии существовало до 1992 г., и вновь принятым Патентным законом не предусмотрено. Предоставление полной лицензии близко по значению к продаже патента и отличается от нее тем, что патентообладатель при продаже полной лицензии остается прежний, а право на использование изобретения передается лишь на срок действия патента.
По праву лицензиара использовать усовершенствования объекта лицензии, осуществленные лицензиатом. Некоторые лицензии предоставляют лицензиару право использовать усовершенствования объекта лицензии, осуществленные лицензиатом (возвратные лицензии), другие лицензии такого права лицензиару не дают.
Передача лицензий является наиболее распространенным способом коммерческого трансферта технологий и осуществляется в тех случаях, когда доход от продажи лицензии превышает издержки по контролю использования лицензии и упущенную выгоду при отказе от монополии на передаваемую технологию на данном рынке. При этом часто по лицензиям передаются не самые новые технологии, а так называемые технологии промежуточного поколения.
Главное, что лицензируемая технология является товаром лишь в том случае, когда она надлежащим образом оформлена комплектом технологической документации, воспроизводима с заданным уровнем выхода годных изделий и сертифицирована.
Промышленная кооперация
Стороны, объединившиеся для организации кооперированного производства, осуществляют интенсивный технологический обмен для достижения этой цели. Соглашения о производственной кооперации идут дальше прямых или взаимных поставок (продаж и закупок) продукции или оказания услуг и создают между сторонами длительную общность интересов, направленных на получение дополнительной взаимной выгоды.
К кооперационным соглашениям относятся соглашения, предметом которых являются:
- осуществление специализированного производства узлов и де талей по технологии одного из партнеров;
- взаимное предоставление технологии с последующим обменом и сборкой;
- совместная разработка изделий, включая проектирование, изготовление и сборку.
Совместные предприятия
Совместные предприятия позволяют объединить усилия, знания и опыт в производстве новой для данного рынка продукции, разделить совместный риск заинтересованных партнеров из разных стран. Ни одна из других форм сотрудничества не создает у участников такую степень заинтересованности в конечном успехе проекта.
Здесь вопросы передачи технологии решаются двумя путями.
1. Самостоятельные соглашения или контракт на передачу технологии в соответствующей форме (лицензия на патент, передача «ноу-хау», техническая помощь и содействие, инжиниринг), которые заключаются одновременно с соглашением о создании совместного предприятия и иногда рассматриваются как часть этого соглашения.
2. Передаваемая технология, информация, знания по управлению и маркетингу рассматриваются как вклад одной из сторон в уставный капитал совместного предприятия в нематериальной форме.
Однако неправильная оценка этого вклада может нанести совместному предприятию ощутимый ущерб. Если завышается стоимость, например технологии, искажается общая структура капитала совместного предприятия, и владелец технологии будет получать завышенные доходы и высокую долю капитала в случае прекращения его деятельности. Даже если вложенная технология устареет или «ноу-хау» утратит свой секретный характер, она все равно сохранит свою ценность, поскольку технология капитализирована. Более того, ее стоимость может расти по мере увеличения активов совместного предприятия.
Однако получение технологии в начале деятельности совместного предприятия может сыграть важную роль, поскольку при этом экономятся денежные средства. Кроме того, инвестор будет заинтересован в постоянном совершенствовании вложенной технологий поскольку он прямо участвует в получении прибыли от реализации объекта технологии.
Техническая помощь
Соглашения и контракты о предоставлении технических услуг и помощи оформляются двумя способами:
1) являются главным предметом соглашения;
2) включаются разделом в соглашение о передаче технологии или поставках оборудования.
Объект контракта о предоставлении технической помощи — «неосязаемый» товар, т. е. технические услуги, выполнение исследований, обучение и подготовка кадров, но в нем имеются элементы инжиниринговых услуг, подрядных работ, контрактов на аренду приборов и инструментов.
В контракт вносятся:
- положение о неразглашении полученных в процессе обучения конфиденциальных сведений;
- вопросы бытового устройства инструкторов и обучающихся;
- транспортные расходы, обязательства по страхованию и услуги переводчиков за счет принимающей стороны;
- меры по содействию обеих сторон друг другу в получении виз и разрешений на работу для стажеров и инструкторов.
Формы вознаграждения за различные виды обучения оговариваются в контракте или включаются в лицензионное соглашение о передаче технологии. Отдельные виды обучения осуществляются безвозмездно (например, командированный лицензиаром или поставщиком технологии специалист по монтажу и наладке оборудования обучает местных рабочих и мастеров).
Лизинг (финансовая аренда)
Из всех видов аренды, используемых в международной коммерческой практике, позволяющей с минимумом затрат модернизировать производство, наиболее распространена долгосрочная аренда — лизинг. В лизинговых операциях, участвуют три стороны: арендодатель, арендатор и поставщик (производитель). Арендодателем выступает специализированная лизинговая компания, опериующая финансами и контролируемая банками или крупными промышленными компаниями. Арендатором является производственное или торговое предприятие, арендующее средства производства, доставки, распределения. Поставщик - производственное или торговое предприятие, производящее или поставляющее оборудование и технологию через арендодателя арендатору
Лизинговая компания выкупает у поставщика оборудование и технологию и сдает его в аренду на определенный оговоренный срок. По истечении срока аренды арендатор обязан вернуть оборудование лизинговой компании или выкупить его в свою собственность по остаточной стоимости.
Арендатор заключает арендный договор с лизинговой компанией. Лизинговый контракт предусматривает срок аренды, условия и сумму выплат арендной платы, валюту платежей, обязательства и гарантии по содержанию в исправности полученного оборудования и его возвращения или выкупа по истечении срока аренды.
Специфика лизинга применительно к передаче технологии состоит в:
· аренде прав и технологии как таковой;
· опасности риска, связанного с нарушением прав третъих лиц. В большинстве лизинговых сделок патентные риски являются ответственностью арендодателя, если в контракте нет «патентной оговорки», регламентирующей взаимоотношения сторон в случае предъявления арендатору патентных претензий и исков от патентовладельца или исключительного лицензиата;
· том, что арендатор по окончании срока аренды оборудования, технологии имеет право использовать переданное ему «ноу-хау», если в контракте нет соответствующей оговорки;
· том, что возможен лизинг лицензий. Арендодатель покупает право использования патента на определенный срок и на определенной, территории с правом предоставления сублицензии и по контракту передает это право в аренду арендатору. То есть купленная лизинговой компанией лицензия передается арендатору в форме своеобразной сублицензии. Такие соглашения могут заключаться в пакете с лизинговым контрактом на технологическое оборудование и самостоятельно.
Франчайзинг
Франчайзинг, коммерческая концессия — передача или переуступка на коммерческих условиях разрешения продавать чьи-либо товары или оказывать услуги в некоторых областях.
Франшиза как разрешение или право продажи некоторых товаров или оказания определенных услуг является одной из коммерческих форм технологического обмена, взрывной рост популярности, которой обусловлен происходящей во всем мире перестройкой структур управления производством и значительным увеличением числа малых предприятий.
Являясь особой, сложной программой лицензирования товарного знака или фирменного наименования, франшиза означает практику передачи фирме-франчайзи права использования созданных фирмой франчайзером особых приемов и методов ведения бизнеса под товарным знаком франчайзера. Это могут быть методы управления, планирования финансов, особенности производства товаров или услуг, подготовки персонала, приемы рекламирования товаров или услуг и другие элементы деловых отношений фирмы-франчайзера. Отмечается, что в зависимости от вида бизнеса лицензионное соглашение такого типа может требовать от фирмы-франчайзи использования всех элементов корпоративного имиджа франчайзера, включая особую форму одежды персонала, внешний и внутренний дизайн здания предприятия, стандарт качества товаров и услуг. При этом соглашение дает право франчайзи пользоваться всей интеллектуальной собственностью франчайзера, в том числе инструкциями, руководствами для персонала, деловыми советами, «ноу-хау» товарными знаками и другими материалами, относящимися к методам управления делами фирмы.
Рост сделок по франчайзингу явился следствием высокой ночной мобильности и гибкости этой формы коммерческой деятельности и передачи технологии:
· для франчайзера (предоставляющего франшизу) такая сделка позволяет быстро внедриться на новом рынке без значительных инвестиций;
· франчайзи (получателю франшизы) контракт позволяет начать новый вид деловой активности с меньшей опасностью неудачи и провала, благодаря поддержке со стороны франчайзера, включающей передачу определенных навыков, приемов и услуг, а также оказание помощи и обучение персонала;
· для потребителя франчайзинг расширяет выбор товаров на местном рынке с соответствующим (часто гарантирован-фирменным качеством и конкурентными ценами.
По критериям федеральной торговой комиссии США сделки типа «франчайзинг» характеризуются следующими основными особенностями:
1) получатель франшизы продает товары или оказывает услуги, качество которых должно быть не ниже аналогичных у франчайзера;
2) получатель франшизы действует на рынке, используя товарный знак, знак обслуживания, фирменное наименование или другой коммерческий знак франчайзера;
3) франчайзер контролирует действия получателя франшизы и называет ему существенную помощь в деятельности и управлении.
Инжиниринговые услуги
Услуги типа «инжиниринг» (совокупность проектных и практических работ, относящихся инженерно-технической области и необходимых для осуществления консультационных, технологических, строительных проектов) возникли в развитых странах в 1960-е годы и к настоящему времени получили распространение в связи с ростом капиталовложений в основные фонды предприятий и необходимостью повышения эффективности их освоения. Обострение конкуренции за высококвалифицированных специалистов, способных «оживить» и заставить эффективно работать все более дорогую и сложную технику, привело к закреплению (к середине 1970-х годов) в зарубежной управленческой лексике терминов «человеческий капитал» и «человеческий ресурс». Именно применение высококвалифицированного человеческого ресурса способствует максимальному сокращению сроков ввода объектов в эксплуатацию, ускорению отдачи капитала.
Большое разнообразие возникающих технических, коммерческих, финансовых, юридических, административных и других вопросов требует привлечения значительного числа специалистов разного профиля. Увеличение численности штатных сотрудников фирмы не всегда бывает желательным, поэтому более выгодным представляется использование труда специалистов инженерно-консультативных фирм. Они помогают сократить сроки осуществления проектов, быстро получить специальные знания и опыт в области техники, технологии, организации и управления производством и сбытом, а также (очень часто) уменьшить необходимые инвестиции, снизить производственные затраты на единицу продукции, повысить эффективность капиталовложений. Поскольку консультант независим от администрации заказчика, он способен объективно оценить ситуацию, сложившую фирме, лучше разглядеть имеющиеся недостатки и упущения, поставив о них в известность заказчика. Большой опыт консультанта по решению аналогичных задач на многих предприятиях ему глубже вникнуть в суть проблемы и найти более эффективное решение. По-видимому, это является причиной того, что иностранные Фирмы прибегают к услугам консультантов даже в тех случаях, когда та или иная работа может быть выполнена собственными силами без расширения штата.
По роду оказываемых услуг в развитых странах различают четыре группы фирм, предоставляющих инжиниринговые услуг».
Инженерно-консультативные фирмы обычно не имеют собственной производственной базы, хотя в отдельных случаях у них есть опытное производство. Их сфера деятельности — выполнение работ типа «инжиниринг» без последующих поставок машин и оборудования или строительства объектов. Они обычно предоставляют либо полный комплекс инженерных услуг, либо услуги связанные с модернизацией или расширением существующих объектов.
Инженерно-строительные организации подразделяются на инженерно-строительные фирмы и компании.
Инженерно-строительные компании, представляющие собой многочисленную группу, выполняют заказы на предпроектные услуги, включая маркетинг, материально-техническое снабжение, подготовку кадров и пр., без последующих поставок оборудования или осуществления строительства.
Инженерно-строительные фирмы оказывают комплекс услуг, связанных с проектированием промышленных и иных объектов, а также выполнением строительных работ, поставкой, установкой и монтажом оборудования, пуском объектов в эксплуатацию, т.е. выполняют заказы на условиях «под ключ» или на условиях «готовой продукции».
Консультативные фирмы по вопросам организации и управления оказывают значительный объем услуг, главным образом по проблемам руководства, организации и управления предприятиями, организации производства и сбыта и т.д.
Поскольку методы управления предприятиями составляют часть его технологии организации выпуска конкурентоспособной продукции, эти методы в качестве объектов «ноу-хау» становятся се более распространенным и ценным товаром. Этот товар разрабатывается и представляется для продажи не только наиболее крупными фирмами, успешно организовавшими выпуск другой профильной) продукции, но и специально учреждаемыми для оказания управленческих услуг фирмами управленческого консультирования.
Инженерно-исследовательские фирмы специализируются на разработке технологических процессов и материалов, решении проблем, связанных с промышленным или коммерческим освоением технических новшеств, занимаются изучением рынков, составлением смет, наблюдением за пуском оборудования в эксплуатацию, иногда осуществляют изготовление специального оборудования.
Поскольку для российских организаций сделки типа «инжиниринг» являются сравнительно новым видом деятельности метим некоторые их преимущества перед другими видами торговых сделок:
1) меньшая по сравнению с поставками оборудования зависимость объема продаж услуг от производственной базы;
2) стимулирование роста торговли оборудованием и лицензиями;
3) они выгодны не только при осуществлении крупных, проектов, но и при проведении небольших объемов работ какого-либо одного профиля (например, анализа юридической состоятельности одного из контрактов заказника с третьим лицом).
Главное отличие инжиниринга от «ноу-хау» состоит в том, что при оказании инжиниринговых услуг подразумевается обязательное проведение конкретного, оговариваемого в контракте комплекса работ по заданию заказчика или применительно к его требованиям. При простой передаче «ноу-хау» это вовсе не обязательно. Таким образом, инжиниринг — это одна из возможных форм передачи «ноу-хау» в ходе выполнения конкретного комплекса работ, зафиксированного в контракте. Передача «ноу-хау» при этом может быть оформлена лицензионным соглашением.
1.2.3. Прямой и непрямой путь трансферта технологий
Существенной проблемой для предприятий, нуждающихся в трансферте технологий, часто является их недостаточная компетентность в вопросах приобретаемой технологии (например, в тех случаях, когда эта технология является дополнительной к той, которая составляет основу уже имеющегося производства). В том случае они нуждаются в компетентных посредниках. В их задачу должен входить сбор информации о спросе и предложении на определенные услуги трансферта технологий и установление надлежащих контактов. Этот путь трансферта технологий называется непрямым, в отличие от прямого, при котором обходятся без посредников.
Различают следующие формы прямого трансферта технологий:
· от университетов — промышленным предприятиям;
· от научно-исследовательских институтов — промышленным предприятиям;
· личный трансферт технологий при найме персонала;
· обмен между промышленными предприятиями и их филиалами путем заказов и доставок;
· между сотрудничающими промышленными предприятиями когда последние формируют стратегические объединения;
· ярмарки, выставки, съезды.
Все учреждения, занимающиеся внедрением инновационных технологий (не только университеты, научно-исследовательские институты, но также и промышленные предприятия с собственными исследовательскими отделами) могут быть названы «источниками технологии». Учреждения, находящиеся на балансе государства, обычно служат интересам общества, т.е. их деятельность служит общественному прогрессу и общественным интересам, и в принципе доступна всем желающим, по крайней мере путем лицензирования.
Прежде всего это очевидно для университетов и научно-исследовательских институтов, ориентированных на фундаментальные исследования, в случае которых «ноу-хау» поступает экспертам через публикации. Это приводит к ситуации, в которой результаты, полученные в ходе фундаментальных исследований и найденные выгодными с финансовой точки зрения, также поступают к экспертам прямо через публикации до того, как могут быть предприняты меры к защите патента. В Германии и многих других странах патенты защищают только новые изобретения, на которые подано прошение о патентовании, опубликованные изобретения не защищаются. Иначе обстоит дело в США, где соблюдается принцип «первого изобретателя». Это означает, что обладателем патента может стать не тот, кто первым подал заявку на патент, а тот, кто сможет доказать, что именно он и является изобретателем.
Очень удачным путем является так называемый личный трансферт технологий. Найм квалифицированного персонала может стимулировать внедрение нового «ноу-хау» на промышленном предприятии. Для осуществления подобного трансферта необходимо знать, какое «ноу-хау» необходимо предприятию. Это может показаться очевидным, однако это является чрезвычайно важным для выживания промышленного предприятия, в особенности в стадии технологических изменений.
Трансферт технологий от одного промышленного предприятия к другому трудно проследить. Без особых условий (равных инвестиций, договоров о сотрудничестве или стратегических альянсов и т.п.) промышленное предприятие не будет делиться новыми идеями с другими предприятиями. В этом отношении даже промышленные предприятия, относящиеся к одной и той же сфере деятельности, считают других скорее конкурентами, чем партнерами. Трансферт технологий между промышленными предприятиями особенно эффективен, если стороны представляют собой взаимодополняющие отрасли промышленного производства и способны расширить круг производимой продукции, не находясь в конкурентных отношениях друг с другом. В настоящее время, «инновационные коммерческие предприятия», нанятые третьими лицами для исследований, не занимают значительный сегмент рынка.
Часто нуждающиеся в услугах по трансферту технологий должны срочно удовлетворить спрос в тех сферах, с рыночными условиями в которых они не знакомы, а иногда и вовсе не имеют понятия о ситуации на рынке. Изменение традиционных форм производства и замена последних на новые технологии часто приводят к банкротству бизнеса. Для того чтобы предотвратить это, часто с поддержкой государства создаются агентства, целью деятельности которых является посредничество в процессе технологического трансферта. В их задачу входят сбор информации о спросе и предложении на определенные услуги трансферта технологий и установление надлежащих контактов. Этот путь трансферта технологий называется непрямым и включает:
· агентства по трансферту технологий, которые обычно поддерживаются правительством, с региональной или международной сферами деятельности;
· представителей по трансферту технологий в университетах;
· представителей по трансферту технологий в НИИ;
· электронный трансферт технологий (например, базы данных).
1.2.4. Финансирование трансферта технологий
Для финансирования закупок технологии предприятия используют собственные ресурсы или заемные в форме кредитов.
Необходимость иметь средства для закупки технологии смягчается тем, что на начальном этапе требуется не вся сумма, а лишь стартовые капиталовложения. Это тесно связано с практикуемой формой платежа за технологию после начала производства и коммерческой реализации продукции на рынке.
Теоретически возможно освоить заимствованную технологию безденежных затрат на начальном этапе, расплатившись с продавцом на условиях роялти (ежегодных отчислений) после освоения производства продукции и получив необходимое технологическое оборудование, оснастку и отдельные виды материалов, комплектующих изделий на условиях лизинга, компенсационных или бартерных сделок. Однако на практике для финансирования соглашений по трансферту технологий требуются стартовые средства, составляющие 20 — 30% общей стоимости технологии.
Существует возможность использовать и услуги банков рисковых капиталов. Такие банки создаются для коммерциализации инноваций и активно участвуют в процессе поиска и передачи технологий. В последнее время их сеть активно расширяется. Так, во Франции зарегистрированы свыше 200 подобных банков, в США — свыше 3000. Как правило, банки рискового капитала более охотно несут совокупный риск, поэтому для привлечения их финансовых ресурсов необходимо использовать и собственные средства, привлекать других партнеров.
Местом для поиска и нахождения источников финансирования могут служить национальные и международные биржи технологий. Различают постоянно действующие технологические биржи, как правило, использующие международные банки данных по технологиям, а также биржи отраслевой направленности или посвященные пионерным направлениям развития науки и техники (биотехнология, мехатроника и т.д.).
Для финансирования трансферта технологий заинтересованными сторонами создаются совместные предприятия, в которых прямые инвестиции одного из учредителей используются для коммерциализации технологических достижений другого.
2. Практическая часть
2.1. Краткая характеристика предприятия
1.1.Полное и сокращенное наименование предприятия
Открытое акционерное общество "ЭНЕРГОМАШКОРПОРАЦИЯ" Производственный комплекс Завод металлоконструкций сокращенно - ОАО «ЭМК» ПК ЗМК.
1.2. Дата регистрации предприятия.
24 сентября 2001 года
1.3. Почтовый и юридический адрес предприятия: индекс, республика, область и т. д.
Почтовый: 308017 Белгородская область, г. Белгород, ул. Волчанская 165
Юридический: 656037 г. Барнаул, пр-т Калинина, 26
ИНН 2907006008, КПП 222401001
1.4. Подчиненность предприятия.
ОАО «Энергомашкорпорация»
1.5. Вид деятельности.
Производство строительных конструкций
1.6.Организационно-правовая форма предприятия.
Открытое акционерное общество
1.7. Форма собственности.
Собственность иностранных юридических лиц
1.8. Включено в государственный реестр Российской Федерации предприятий-монополистов:
-федеральный: не включено
-местный: не включено.

1.10. Местонахождение.

Производственная деятельность ОАО «ЭМК» ПК - завод металлоконструкций осуществляется в основном на рынке объектов капитального строительства и нестандартного оборудования в качестве поставщика строительных и мостовых металлоконструкций.
Номенклатура выпускаемой продукции ОАО «ЭМК» ПК ЗМК для отраслей:
Строительство:
- Строительные конструкции
- каркасы производственных зданий
- каркасы общественных зданий
- Гидротехнические сооружения портов
- Быстровозводимые здания каркасного типа
- Спортивные сооружения, катки, бассейны, стадионы
- Ангары
- Торговые комплексы
- Эстакады, галереи
Транспортное строительство:
- Металлические мосты, путепроводы
- Эстакады
- Переходы
Энергетика:
- Опоры линий электропередач, осветительные мачты
Металлургия:
- Каркасы печей, прокатных станов, агломерационных и обогатительных фабрик
Связь:
- Телевизионные, радиотрансляционные мачты и башни
Нефтегазопереработка:
- Воздухо- и газоочистительные установки
- Резервуары для хранения нефти и нефтепродуктов
Прочее:
- Нестандартное оборудование (шахтные крепи, думпкары)
- Монументальные сооружения, конструкции памятников
- Дорожные ограждения оцинкованные, окрашенные
- Емкости, бункера
- Дымовые трубы
- Башни водонапорные
- Водоочистные установки
Услуги:
- Сварка и поставка двутавровых балок с высотой стенки 360-2200 мм
- Горячее цинкование всех видов металлоконструкций
Потребители
Строительные металлоконструкции по своему характеру являются продукцией производственно-технического назначения, реализация которой, как правило, сопровождается оказанием покупателю услуг промышленного характера, таких, как проектирование и монтаж.
Спрос на строительные металлоконструкции является производным от общего ритма деловой жизни региона, таким образом, покупатели строительных металлоконструкций географически сосредоточены в основном в регионах со стабильным экономическим климатом.
Покупателей строительных металлоконструкций условно можно разделить на две группы: различного рода строительные и подрядные организации, выполняющие функции посредников, и непосредственно потребители, предпочитающие прямые закупки у производителей. В обоих случаях процесс покупки осуществляется профессионально подготовленными специалистами.
На рынке металлоконструкций действует меньшее число покупателей в сравнении с рынками потребительских товаров; большинство покупателей представляют собой крупные монтажные предприятия и организации, частично сами изготавливающие простые металлоконструкции на своих производственных базах (см.табл.2).
Таблица 2
Основные потребители продукции ОАО «ЭМК» ПК-ЗМК:
| Белгородская область | Россия | Зарубежные страны |
| ОАО «СУ-5 Белстрой» | СТС « Промет» | ООО «ТИЛТС» Латвия |
| ОАО « Белэнергомаш» | ОАО «ЭМК» ГТ ТЭЦ | Компания «БЕТА-ТЭК» Турция |
| УКС Администрации | ОАО"Стальмонтаж» ЭССМУ | Prodema LLC(USA) Дом России» |
| ООО «ЭМК-Белгород» | ЗАО «Рейнесанс Корпорейшен» | |
| ЗАО «Энергомашсервис» | ООО « Компания Электростройсервис» | |
| Завод сильфонных компенсаторов | ОАО «ЭМК-Атоммаш» | |
| ЗАО « Краснояружский бройлер » | «Ремтехноснаб-Тэлком» | |
| ЗАО «Томаровская ПМК» | ЗАО «Энергия» |
Поскольку число заказчиков на рассматриваемом рынке ограничено, то между производителями металлоконструкций существует жёсткая конкуренция в борьбе за покупателя, где немалую роль играет географическое положение завода производителя и его близость к металлургическим заводам, производящим металлопрокат.
В соответствии с изложенным существуют следующие особенности рынка для рассматриваемого производственного комплекса:
1) При малых объемах заказа - от 50 до 500 тонн цены на простые строительные металлоконструкции у нас выше, чем у заводов металлоконструкций, расположенных вблизи производителей металлопроката, пользующихся постоянными скидками по цене на его приобретение. С увеличением объёма поставки (более 500 тонн) стоимость металлоконструкций нашего производства становится конкурентоспособной.
2) Средний статистический вес заказов по текущему году составляет 172 тонны. В основном это металлоконструкции высокой технологической сложности, за которые не берутся производители, расположенные в близи мет комбинатов, специализирующиеся на простых конструкциях.
3) Достигнутая в настоящее время месячная производительность товарного выпуска позволяет брать в производство крупные заказы с объёмом 1000 и более тонн с довольно сжатыми сроками поставки, что не под силу другим производителям.
Следовательно, на сегодняшний день сегмент рынка для рассматриваемого производственного комплекса это - технологически сложные металлоконструкции с объёмом заказов от 50 до 500 тонн и крупные заказы со сжатыми сроками поставки в объёме более 1000 тонн.
Таким образом, для расширения существующего сегмента рынка и его сохранения следует придерживаться следующих принципов в качестве основополагающих для маркетинговой коммуникативной политики:
1. разработка и реализация отдельных стратегий коммуникации для каждого конкретного клиента и установление личных отношений, располагающих к сотрудничеству;
2. предоставление профессиональным покупателям необходимой и полной технической информации о продукции и ее достоинствах;
3. создание и поддержание положительного имиджа предприятия путем стабильных поставок качественной продукции и выполнения договорных обязательств;
4. разработка и выполнение комплексной и регулярной программы по связям с общественностью, включающей в себя рекламную, научно-исследовательскую, общественную деятельность и охватывающей перспективные географические и отраслевые сегменты рынка;
5. ориентация на создание и развитие между производителем и потребителем технико-экономического сотрудничества на подрядных условиях, выражающегося в полной ответственности поставщика за сооружение объекта.
Конкуренция
Производственная деятельность ОАО «ЭМК» ПК - завод металлоконструкций осуществляется в основном на рынке объектов капитального строительства и нестандартного оборудования в качестве поставщика строительных и мостовых металлоконструкций.
Следует отметить, что в течение 2004 года не проводилось углубленных маркетинговых исследований конъюнктуры рынка металлоконструкций.
Острый дефицит финансовых ресурсов вынуждает потенциальных заказчиков проводить объемные маркетинговые исследования и тендерные торги, стремясь выбрать изготовителя металлоконструкций, предлагающего более выгодные условия и низкую цену, что создает дополнительные трудности при получении заказа.
В целом в Российской Федерации у ПК ЗМК более двух десятков крупных конкурентов на рынке строительных металлоконструкций, наиболее успешно работающие из них: Челябинский Ленинградский, Череповецкий и Энгельский заводы металлоконструкций (см. табл.2). Наиболее интенсивное строительство ведется в Москве, Санкт Петербурге и их областях, а также в близлежащих к ним регионах. Значительно увеличить объем заказов с этих территорий проблематично сказывается наличие местного промышленного потенциала, а также конкуренция со стороны иностранных фирм (Турции, Финляндии, Швеции) прочно осевших в данных регионах, следует отметить, что в 2004 году отдел продаж активизировал работу в этих регионах и как результат увеличение доли заказов с данных регионов в общем объеме договоров более 60%.
На рынке города Белгорода предприятий, аналогичных ОАО «ЭМК» ПК ЗМК по производственным мощностям и объемам выполняемых заказов, нет. Среди мелких предприятий можно было бы назвать такое как Завод нестандартного оборудования, изготовляющий нестандартное оборудование и металлоконструкций.
Таблица 3
Основные конкуренты ОАО «ЭМК» ПК ЗМК на рынке металлоконструкций:
| Белгородская область | Россия | Зарубежные страны |
| ЗАО Котельный завод «Энергомашсервис» | ЗАО «Воронежстальмост» | ОАО «Днепропетровский завод металлоконструкций им. И.В.Бабушкина», Украина |
| Завод нестандартного оборудования г.Белгород | ЗАО «Челябинский завод металлоконструкций» | ЗАО «Актюбинский завод металлоконструкций» |
| Борисовский завод мостовых конструкций | ООО «Ленинградский завод металлоконструкций» | ЗАО «Донецкий завод металлоконструкций», Украина |
| ОАО «Энгельский завод металлоконструкций» | Фирма «Одак», Турция |
Но, проанализировав строительный рынок и сделав вывод, что соревноваться с небольшими фирмами в изготовлении мелких заказов, не требующих применения высоких технологий, довольно бесперспективно, завод выбрал приоритетным направлением крупные, сложные, тоннажные заказы, такие, как металлические мосты, опоры ЛЭП, опоры сотовой связи, каркасы промышленных зданий.
Все вышеперечисленные действия ОАО «ЭМК» ПК ЗМК являются шагом к прорыву в конкурентной борьбе на рынках металлоконструкций России. Однако, на белгородском рынке завод занимает монопольное положение.
Анализ динамики основных технико-экономических показателей предприятия:
Основные технико-экономические показатели деятельности предприятия сведем в таблицу 4.
Таблица 4
Основные технико-экономические показатели
| № | Наименование показателя | 2004 г. | 2005 г. |
| 1 | Объем производства оцинкованной продукции, т. | 23500 | 24000 |
| 2 | Объем продаж или выручка от реализации, тыс. руб. | 498033 | 857354 |
| 3 | Себестоимость проданных товаров, тыс. руб. | 404527 | 663621 |
| 4 | Прибыль от продаж, тыс. руб. | 60025 | 94221 |
| 5 | Прибыль до налогообложения, тыс. руб. | 20024 | 56729 |
| 6 | Чистая прибыль, тыс. руб. | 6084 | 38801 |
| 7 | Рентабельность продаж по прибыли от продаж, % | 0,12 | 0,11 |
| 8 | Рентабельность активов по прибыли до налогообложения, % | 0,03 | 0,1 |
| 9 | Рентабельность продаж по чистой прибыли, % | 0,01 | 0,05 |
| 10 | Рентабельность собственного капитала по чистой прибыли, % | 0,03 | 0,37 |
| 11 | Затраты на 1 рубль товарной продукции, руб./руб. | 0,88 | 0,89 |
| 12 | Среднегодовая стоимость основных производственных фондов, тыс. руб. | 294080,50 | 290448,50 |
| 13 | Фондоотдача, руб./руб. | 1,69 | 2,61 |
| 14 | Фондоемкость, руб./руб. | 0,59 | 0,38 |
| 15 | Среднегодовая численность работников, чел. | 871 | 737 |
| 16 | Среднегодовая выработка одного работника, тыс. руб./чел. | 571,79 | 1030,38 |
| 17 | Средняя заработная плата, руб. | 118994 | 147791 |
| 18 | Среднегодовая стоимость оборотных активов, тыс. руб. | 266565 | 363532 |
| 19 | Коэффициент оборачиваемости оборотных активов | 1,87 | 2,36 |
| 20 | Коэффициент текущей ликвидности | 0,80 | 0,53 |
| 21 | Коэффициент общей платежеспособности | 1,45 | 1 |
Показатели рентабельности более полно, чем прибыль, характеризуют окончательные результаты хозяйствования, потому что их величина показывает соотношение эффекта с наличными или использованными ресурсами. Их применяют для оценки деятельности предприятия и как инструмент инвестиционной политике и ценообразовании.
Рентабельность продаж по прибыли от продаж
![]()
2004:![]()
2005:![]()
Рентабельность активов по прибыли до налогообложения
![]()
2004:![]()
2005:![]()
Рентабельность продаж по чистой прибыли
![]()
2004:![]()
2005:![]()
Рентабельность собственного капитала по чистой прибыли
![]()
2004:![]()
2005:![]()
Анализируя полученные данные можно сделать вывод об увеличении всех видов рентабельности, что говорит о повышении прибыли с каждого рубля затрат, с каждого рубля продаж. Что в целом носит положительный характер, не смотря на незначительную величину этих коэффициентов.
Наиболее обобщающим показателем себестоимости продукции, выражающим её прямую связь с прибылью, является уровень затрат на 1 рубль товарной продукции.
Непосредственное влияние на изменение уровня затрат на 1 руб. товарной продукции оказывают факторы, которые находятся с ним в прямой функциональной связи: изменение объёма выпущенной продукции, её структуры, изменение уровня цен на продукцию, изменение уровня удельных переменных затрат, изменение суммы постоянных затрат.
Затраты на 1 рубль проданной продукции, р./р.
2004:![]()
2005:![]()
Оценка эффективности использования ОС основана на применении общей для всех ресурсов технологии оценки, которая предполагает расчет и анализ показателей отдачи и емкости.
Показатели отдачи характеризуют выход готовой продукции на 1 руб. ресурсов.
Показатели емкости характеризуют затраты или запасы ресурсов на 1 руб. выпуска продукции.
Обобщающим показателем эффективности использования ОС является фондоотдача.При расчете показателя учитываются собственные и арендованные ОС, не учитываются ОС, находящиеся на консервации и сданные в аренду. Показатель фондоотдачи анализируют в динамике за ряд лет, поэтому объем продукции корректируют на изменение цен и структурных сдвигов, а стоимость ОС - на коэффициент переоценки. Повышение фондоотдачи ведет к снижению суммы амортизационных отчислений, приходящихся на один рубль готовой продукции или амортизационной емкости.
Другим важным показателем, характеризующим эффективность использования ОС, является фондоемкость ОС.Изменение фондоемкости в динамике показывает изменение стоимости ОС на один рубль продукции и применяется при определении суммы относительного перерасхода или экономии средств в основные фонды.
Среднегодовая величина основных фондов
![]()
2004:![]()
2005:![]()
Фондоотдача основных фондов, р./р.
![]()
2004: ![]()
2005:![]()
Фондоемкость продукции, р./р.
![]()
2004:![]()
2005:![]()
Анализируя данные таблицы можно сделать вывод об увеличении объема продаж продукции с 498033тыс.руб. до 759392,38тыс.руб. Соответственно возросла и отдача основных фондов на 0,92 и естественно при этом снизился показатель фондоёмкости с 0,59 до 0,38 руб./руб
Среднегодовая величина основных фондов уменьшилась на 3632тыс.руб. это поспособствовало увеличению рентабельности основных фондов на 13%.
Рациональное использование персонала предприятия – непременное условие, обеспечивающее бесперебойность производственного процесса и успешное выполнение производственных планов.Достаточная обеспеченность предприятий нужными трудовыми ресурсами, их рациональное использование, высокий уровень производительности труда имеют большое значение для увеличения объемов продукции и повышения эффективности производства.
Среднегодовая выработка одного работника, т.р./чел.
![]()
2004:![]()
2005:![]()
Среднегодовая величина оборотных активов, т.р
![]()

Коэффициент оборачиваемости оборотных активов


Среднегодовая величина оборотных активов увеличилась на 96967тыс.руб. и составила 363532тыс.руб. Коэффициент оборачиваемости увеличился с 1,87 до 2,36.Положительная тенденция наблюдалась в уменьшении продолжительности одного оборота на 39,97дн.
Коэффициент текущей ликвидности. Дает общую оценку ликвидности активов, показывая, сколько рублей текущих активов приходится на один рубль текущих обязательств. Логика исчисления данного показателя заключается в том, что предприятие погашает краткосрочные обязательства в основном за счет текущих активов; следовательно, если текущие активы превышают по величине текущие обязательства, предприятие может рассматриваться как успешно функционирующее (по крайней мере теоретически). Значение показателя можно варьировать по отраслям и видам деятельности, а его разумный рост в динамике обычно рассматривается как благоприятная тенденция. В западной учетно-аналитической практике приводится нижнее критическое значение показателя - 2; однако это лишь ориентировочное значение, указывающее на порядок показателя, но не на его точное нормативное значение.
2004: ![]()
2005: ![]()
Коэффициент общей платежеспособности (КОП) характеризует способность предприятия покрыть все свои обязательства (краткосрочные и долгосрочные) всеми имеющимися активами. Этот коэффициент рассчитывается по формуле:
![]()
![]()
![]()
Из вышеизложенного видно, что все показатели ниже нормативного значения. Т.о. мы можем сделать вывод, что предприятие является неплатежеспособным.
2.2. Характеристика инновационной деятельности на предприятии
ОАО "Энергомашкорпорация" Производственный комплекс - Завод металлоконструкций (ранее - Белгородский завод металлоконструкций) находится в 600 км к югу от Москвы на территории Центрального Федерального округа. Завод начал строиться в 1971 году и первая очередь его была сдана 29 декабря 1973 года. Эта дата и считается днем рождения Белгородского ЗМК. Последняя 4-я очередь была принята Государственной комиссией в январе 1978 года. Завод вошел в состав Всесоюзного объединения "Стальконструкция" Министерства Монтажных и Специальных Строительных работ СССР (ММСС СССР) в ряду уже действовавших 17 заводов металлоконструкций.
Белгородская область располагается в крупнейшем железорудном бассейне страны - Курской магнитной аномалии. Широкое промышленное освоение ее богатств началось лишь в 70-х годах 20-го столетия. В Курской и Белгородской областях развернулись работы по созданию мощной базы черной металлургии. Началось сооружение горнорудных предприятий. Вот тогда в 1970 году, для обеспечения строящихся объектов стальными конструкциями, постановлением Совета Министров СССР было принято решение построить в Белгороде завод металлоконструкций. Проект был разработан в 1970-1975 годах институтом "ЦНИИ
ПРОЕКТСТАЛЬКОНСТРУКЦИЯ". Проектная мощность завода по расчетам института составляла 190 тыс. тонн металлоконструкций в год при численности работающих 3000-3500 человек.
Все основные цеха расположены под одной крышей главного корпуса, площадью 119 тыс. м. кв. На территории находится собственная лаборатория, гараж, котельная и прочие вспомогательные службы для обеспечения жизнедеятельности завода. Закрытые складские площади, собственная железнодорожная ветка и близость автомобильных магистралей позволяют осуществлять хранение и удобную отгрузку продукции. Площади завода достаточны для проведения контрольной сборки крупногабаритных конструкций: мостов, башен, монументальных сооружений.
Нашими первыми и самыми крупными заказчиками были Михайловский, Стойленский, Лебединский ГОКи. География поставок продукции расширялась год от года. Период широкого промышленного строительства в нашей стране - 70-80 е годы был самым успешным в истории Белгородского ЗМК. В 12 пятилетке, в 1989 году был выпущен рекордный объем металлоконструкций. За год - 107,1 тыс. тонн. Ни одна крупная стройка тех лет не обходилась без наших конструкций: это и автогиганты ЗИЛ, ГАЗ, КАМАЗ, ВАЗ, металлургические предприятия "Серп и молот" (Москва), Новолипецкий меткомбинат, Руставский меткомбинат (Грузия), Череповецкий мет комбинат, Воронежское авиационное предприятие (ВАПО), комбинат "Североникель" г. Мончегорск, Мурманской обл., Воскресенское ПО "Минудобрения" и многие другие.
В 80-90 е годы, в связи с сокращением промышленного строительства, объемы производства резко упали. Но завод не останавливался никогда. Руководству удалось сохранить все производственные мощности, парк оборудования, специалистов. Оказавшись в сложных экономических условиях, в поисках новых направлений развития, завод осваивал множество смежных видов продукции, в том числе машиностроительную: навесное оборудование для тракторов Чебоксарского завода, городские пассажирские автобусы марки ЛИАЗ 5256, шахтные крепи, шахтные клети, сельскохозяйственное кормоуборочное оборудование: пресс - подборщики, навесные грабли.
Интересными и очень почетными страницами в истории завода были заказы на монументальные сооружения скульптора Зураба Церетели в 1993-1995 годах. Это каркасы для двух памятников Христофору Колумбу к 500-летию открытия Америки, Главный Монумент Мемориала на Поклонной горе к 50-летию Победы, 6 бронзовых икон для храма Георгия Победоносца там же, конструкции главного купола и звонниц для Храма Христа Спасителя, памятник 300-летию Российского Флота в Москве. Нашим коллективом были изготовлены уникальные конструкции покрытия стадиона Лужники в городе Москве (колонны, радиальные балки, наружное кольцо, табло). К 850-летию Москвы было реконструировано 13 объектов в историческом центре столицы, за что завод был награжден почетной грамотой Правительства Москвы.
В 1998 году завод вошел в состав "Энергомашкорпорации". Появились новые рынки сбыта. Помимо строительных металлоконструкций освоено изготовление металлических мостов, понтонных наплавных мостов для министерства обороны, опор ЛЭП, конструкции электростанций.
В 1999 году с приходом директора Конева И.В. началось настоящее возрождение завода, началась трудная работа за возвращение предприятию лидирующего места среди производителей металлоконструкций страны. Руководством корпорации было принято решение о масштабном техническом перевооружении производства и внедрении новых технологий. Перед коллективом поставлена задача достигнуть выпуска 50 тыс. тонн металлоконструкций в год (большую часть из них - оцинкованных). Сейчас завод работает стабильно, наращивает темпы выпуска товарной продукции, работники нашего предприятия получают высокую заработную плату.
В 2000 году система качества предприятия сертифицирована по международной системе ИСО 9000. В 2002 году получен немецкий сертификат качества ТUV.
27 марта 2002 г. получено свидетельство об аттестации центральной лаборатории измерительной техники и метрологии. Свидетельство об аттестации удостоверяет, что центральная лаборатория измерительной техники и метрологии ОАО "Энергомашкорпорация" ПК - ЗМК удовлетворяет требованиям системы неразрушающего контроля Госгортехнадзора России.
27 августа 2002 г. ОАО "Энергомашкорпорация" ПК - ЗМК выдана лицензия Госатомнадзора России. Лицензия дает право на изготовление оборудования для атомных станций по номенклатуре ПК - ЗМК.
22 октября 2002 г. германским органом по сертификации TUV NORD CERT продукция ОАО "Энергомашкорпорация" ПК - ЗМК с защитным покрытием, выполненным методом горячего цинкования, признана соответствующей немецким нормам DIN EN ISO 1461: 1999- 03. Испытания проводились согласно параграфа 22 Гамбургских строительных правил, что дает право ОАО "Энергомашкорпорация" ПК - ЗМК использовать в маркировке своей оцинкованной продукции U-знака и поставлять продукцию в Германию.
Политика в области качества
· максимальное удовлетворение требований потребителей в отношении качества, комплектности и своевременности поставки
· достижение технического уровня продукции, превышающего уровень ведущих фирм в области производства металлических конструкций
· создание репутации предприятия как надежного поставщика продукции
· обеспечение условий безопасной эксплуатации продукции для потребителей, гарантирование обществу экологической безопасности производства
В 2004 году получен сертификат серии ИСО 9001.
2.3. Комплексная характеристика нововведения
По данным НП "Центр по развитию цинка", в Европе около 90% строительных конструкций защищено от коррозии не краской, а цинком, а в городской инфраструктуре, в дорожном и транспортном строительстве эта цифра достигает 100%. Внутренний российский рынок горячецинкованных металлоконструкций находится в начальной стадии формирования. В России менее десятка предприятий, занимающихся горячим цинкованием, и все они расположены в Европейской части России.
В связи с бурным ростом дорожного строительства и развитием других отраслей экономики России применение горячего цинкования является наиболее перспективным и экономически результативным способом защиты металлоконструкций от коррозии. В дорожном и транспортном строительстве это: - элементы мостов, путепроводов, развязок, тоннелей, - подъемные механизмы мостов, балки кранового оборудования, - шумопоглащающие ограждения вдоль дорог, - уличные и дорожные ограждения, барьеры безопасности, - столбы и мачты освещения, антенны, флагштоки, рекламные щиты, - элементы ограждения путей, подвески силового кабеля, стрелки, - склады, вокзалы. В городской инфраструктуре: - фонари и мачты освещения, - опоры оснащения спортивных, игровых площадок, зон отдыха, - торговые места, зонтичные навесы, автобусные остановки, телефонные будки, закрытые переходы, защитные жалюзи витрин. В энергетике: - мачты линий электропередач, элементы крепления проводов, нефте-газопроводы, трансформаторные будки, несущие конструкции, элементы буровых установок.
В этой связи требуется:
- увеличить производительность цеха;
- значительно снизить трудоемкость производства;
- уменьшить время простоев оборудования;
- увеличить объемы реализации.
Проект А
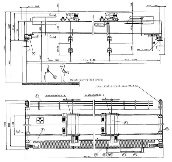
Для реализации предполагаемого проекта ОАО «ЭМК» ПК ЗМК необходимо приобрести оборудование - мостовой электрический двухбалочный двухтележечный кран с дистанционным управлением.
Техническая характеристика
| грузоподъемность крана | 10000кг |
| грузоподъемность каждой грузовой тележки | 5000 кг |
| количество грузовых тележек | 2 |
| группа режима использования (ISО) | |
| крана | А5 |
| механизмы | М6 |
| высота подъема | 8,5 метра |
| пролет | 28,5 метра |
| скорость подъема | 4,0/0,67 м/мин две скорости |
| скорость передвижения тележки | 25/6,3 м/мин; две скорости |
| скорость передвижения крана | 25/6,3 м/мин; две скорости |
| мощности электродвигателей | |
| подъема | 4,8/0,8 kW, 50% ПВ |
| передвижения тележки | 2*0,45/0,11 kW, 40% ПВ |
| передвижения крана | 2*1,3 / 0,30 kW, 40% ПВ |
| токопитание | 3*380 v; 50 Нz |
| управление | -радиоуправление |
| -с подвесного пульта, передвигающегося независимо от грузовой тележки | |
| напряжение управления | 48 v |
| тип подкранового рельса | КР70 |
| статическая нагрузка на колесо | 90,6 kN |
| температурный режим использования | -10... .+40 град. |

Рис.5. Мостовой электрический двухбалочный двухтележечный кран с дистанционным управлением.
Главные мостовые балки и концевые балки коробчатой конструкции.
По всей длине одной главной балки устроена площадка обслуживания (галерея), калитка входа на галерею оборудована концевым выключателем, отключающим кран при ее открытии.
Ходовые колеса тележки и крана выполнены из хром-молибденовой стали. Все передачи имеют закрытые редукторы с шлифованными зубчатыми колесами.
Все электродвигатели асинхронные, короткозамкнутые, двухскоростные, со встроенными дисковыми электромагнитными тормозами, термисторной защитой.
Электродвигатели подъема оборудованы независимыми дополнительными охладителями.
Для обеспечения работы в специфицированных условиях, электродвигатели имеют чугунные корпуса, оборудованы антиконденсатными подогревателями для внерабочего состояния и выполнены в тропическом исполнении, все электрошкафы и направляющие кабельных токоподводов выполнены из нержавеющей стали, все кабели имеют резиновую изоляцию, кабельные вводы имеют специальное уплотнение.
Оборудование включает:
· ограничитель грузоподъемности крана и сигнал красного света при его срабатывании;
· канатоукладчики грузового троса для тяжелого режима использования;
· ограничители верхнего/нижнего положения грузозахватного органа;
· одноступенчатый ограничитель для снижения скорости передвижения крана при подходе к торцевым упорам;
· двухступенчатые концевые выключатели для снижения скорости и остановки грузовых тележек при подходе к крайним положениям моста;
· систему от столкновения с краном, работающем на общих подкрановых путях;
· мигающий свет при передвижении крана;
· защиту от повышенного и пониженного подходящего к крану напряжения;
· главный контактор;
· главный электрический выключатель с защитой;
· штепсельные соединения кабелей токоподвода, кабеля пульта управления, соединения электродвигателей;
· звуковой сигнал (сирена).
Обе системы управления краном, радио и с подвесного пульта, позволяют работать любой из тележек в отдельности и двумя тележками синхронно.
Кран полностью окрашен на заводе - производителе, толщина покрытия 70 мкн.
Кран выполнен в соответствии с Правилами по кранам ГГТН РФ (ПБ10-382-00), с краном поставляется паспорт, техническая документация в трех экземплярах на русском языке в объеме требования Правил по кранам, сертификат соответствия Госстандарта РФ. В соответствии с внедряемым мероприятиям отделом маркетинга разработаны стратегии для всех сегментов рынка, основанные на увеличении доли продаж, в связи с ростом производства на предприятии.
Проект В
Замена цинко-никелевого сплава на никелевый порошок.
Физико-химические свойства:
Латинское название Niccolum (Ni);
химический элемент VIII группы периодической системы Менделеева;
атомный номер 28;
атомная масса 58,69.
Серебристо-белый металл; плотность 8,90 г/см3, tпл 1455 °С;
ферромагнитен (точка Кюри 358 °С);
очень стоек к действию воздуха, воды.
Историческая справка:
Достоверное открытие - 1751год. Сто лет назад этот металл считали ни к чему не пригодной разновидностью меди, за которую шахтеры Юго-Восточной Германии ошибочно приняли смесь никеля с мышьяком. Свое название, никель получил от немецкого слова Nickel. Так называли злого духа, якобы мешавшего горнякам.
Применение:
Никель используют в производстве нержавеющей и других легированных сталей (около 70% потребления), сплавов (14%), аккумуляторов, в химической промышленности и порошковой металлургии, в качестве антикоррозионных покрытий (никелирование), как катализатор многих химических процессов.
Химический состав (никель карбонильный в порошке)
Физические характеристики, гарантированные существующей НТД
|
Обоснование и выбор проекта
Главная задача этого раздела – предоставление сведений о перспективности новых проектов, экономической целесообразности и рискованности инвестиций на основе интегральной оценки самих проектов и внешних условий, в которых они будут осуществлены.
Для анализа портфеля и отбора проектов, предлагаемых к реализации, необходимо выделить критерии с соответствующими показателями относительной значимости (табл. 4). Отбор проектов с помощью перечня критериев нацелен на выявление общего представления о проекте (его достоинствах и недостатках) путем установления соответствия проектов каждому из критериев установленного перечня.
Процедура экспертизы проектов проводится методом балльных оценок, где по каждому критерию экспертным путем проекту присваивается количественное значение от 0 до 10 баллов.
Таблица 4
Перечень критериев для экспертной оценки инновационных проектов
| № | Наименование критериев | Значимость критерия |
| 1 | Цели и стратегии в производственно-хозяйственной и инновационной деятельности | |
| 1.1 | Соответствие проекта текущей стратегии предприятия | 1 |
| 1.2 | Соответствие проекта потенциалу организации | 0,9 |
| 1.3 | Соответствие проекта требованиям организации к нововведениям | 0,8 |
| 1.4 | Соответствие проекта отношению организации к риску | 0,8 |
| 2 | Рыночные критерии | |
| 2.1 | Вероятность коммерческого успеха проекта | 0,8 |
| 2.2 | Оценка общей емкости и доли рынка | 0,7 |
| 2.3 | Вероятность сбыта продукции | 0,8 |
| 2.4 | Соответствие проекта имеющимся каналам распределения | 0,7 |
| 3 | Экономические критерии | |
| 3.1 | Стоимость и время разработки проекта | 0,6 |
| 3.2 | Время на реализацию проекта | 0,6 |
| 3.3 | Оценка стартовых затрат на проект | 0,5 |
| 3.4 | Прибыльность проекта | 0,7 |
| 4 | Производственные критерии | |
| 4.1 | Наличие необходимых производственных мощностей | 0,7 |
| 4.2 | Потребность в дополнительном оборудовании | 0,3 |
| 4.3 | Потребность в дополнительной рабочей силе | 0,3 |
| 5 | Организационные критерии | |
| 5.1 | Соответствие проекта структуре организации | 0,3 |
| 5.2 | Потребность в дополнительных служащих для реализации проекта | 0,3 |
| 5.3 | Наличие информационной базы | 0,2 |
| 6 | Научно-технические критерии | |
| 6.1 | Вероятность технического успеха проекта | 0,7 |
| 6.2 | Потребность в дополнительных разработчиках | 0,3 |
После отбора критериев, проведем экспертизу проектов методом балльных оценок. Результаты оценки проектов представим в таблице 5.
Таблица 5
Результаты экспертной оценки
| Наименование критерия | Проект А | Проект B | ||||||
| Оценки экспертов | Ср. ариф. | Оценки экспертов | Ср. ариф. | |||||
| 1 | 2 | 3 | 1 | 2 | 3 | |||
| 1 | ||||||||
| 1.1 | 8 | 9 | 9 | 8,67 | 9 | 8 | 10 | 9,00 |
| 1.2 | 7 | 7 | 6 | 6,67 | 9 | 9 | 8 | 8,67 |
| 1.3 | 8 | 8 | 9 | 8,33 | 8 | 9 | 9 | 8,67 |
| 1.4 | 6 | 7 | 5 | 6,00 | 9 | 10 | 9 | 9,33 |
| 2 | ||||||||
| 2.1 | 9 | 8 | 9 | 8,67 | 10 | 9 | 9 | 9,33 |
| 2.2 | 9 | 9 | 9 | 9,00 | 9 | 9 | 9 | 9,00 |
| 2.3 | 10 | 9 | 10 | 9,67 | 10 | 9 | 10 | 9,67 |
| 2.4 | 9 | 8 | 8 | 8,33 | 9 | 8 | 9 | 8,67 |
| 3 | ||||||||
| 3.1 | 5 | 6 | 5 | 5,33 | 10 | 9 | 9 | 9,33 |
| 3.2 | 6 | 7 | 5 | 6,00 | 9 | 9 | 9 | 9,00 |
| 3.3 | 4 | 4 | 5 | 4,33 | 10 | 9 | 10 | 9,67 |
| 3.4 | 6 | 5 | 7 | 6,00 | 10 | 10 | 10 | 10,00 |
| 4 | ||||||||
| 4.1 | 8 | 8 | 9 | 8,33 | 9 | 8 | 9 | 8,67 |
| 4.2 | 9 | 9 | 9 | 9,00 | 9 | 9 | 8 | 8,67 |
| 4.3 | 6 | 5 | 6 | 5,67 | 6 | 5 | 6 | 5,67 |
| 5 | ||||||||
| 5.1 | 9 | 9 | 8 | 8,67 | 10 | 9 | 8 | 9,00 |
| 5.2 | 3 | 4 | 3 | 3,33 | 4 | 4 | 3 | 3,67 |
| 5.3 | 5 | 6 | 5 | 5,33 | 5 | 5 | 6 | 5,33 |
| 6 | ||||||||
| 6.1 | 8 | 8 | 7 | 7,67 | 9 | 10 | 9 | 9,33 |
| 6.2 | 5 | 4 | 5 | 4,67 | 3 | 5 | 4 | 4,00 |
Затем необходимо критериям присвоить веса в зависимости от их значимости, на основе чего можно будет определить интегральную балльную оценку и приоритет проектов (табл. 6).
Таблица 6.
Интегральная балльная оценка и приоритетность проектов
№ п/п |
Принятая относительная значимость критерия | Среднеарифметические оценки проектов |
Среднеарифметические оценки проектов с учетом значимости критериев | ||
| А | В | А | В | ||
| 1 | |||||
| 1.1 | 1 | 8,67 | 9,00 | 8,67 | 9,00 |
| 1.2 | 0,9 | 6,67 | 8,67 | 6,00 | 7,80 |
| 1.3 | 0,8 | 8,33 | 8,67 | 6,66 | 6,94 |
| 1.4 | 0,8 | 6,00 | 9,33 | 4,80 | 7,46 |
| 2 | |||||
| 2.1 | 0,8 | 8,67 | 9,33 | 6,94 | 7,46 |
| 2.2 | 0,7 | 9,00 | 9,00 | 6,30 | 6,30 |
| 2.3 | 0,8 | 9,67 | 9,67 | 7,74 | 7,74 |
| 2.4 | 0,7 | 8,33 | 8,67 | 5,83 | 6,07 |
| 3 | |||||
| 3.1 | 0,6 | 5,33 | 9,33 | 3,20 | 5,60 |
| 3.2 | 0,6 | 6,00 | 9,00 | 3,60 | 5,40 |
| 3.3 | 0,5 | 4,33 | 9,67 | 2,17 | 4,84 |
| 3.4 | 0,7 | 6,00 | 10,00 | 4,20 | 7,00 |
| 4 | |||||
| 4.1 | 0,7 | 8,33 | 8,67 | 5,83 | 6,07 |
| 4.2 | 0,3 | 9,00 | 8,67 | 2,70 | 2,60 |
| 4.3 | 0,3 | 5,67 | 5,67 | 1,70 | 1,70 |
| 5 | |||||
| 5.1 | 0,3 | 8,67 | 9,00 | 2,60 | 2,70 |
| 5.2 | 0,3 | 3,33 | 3,67 | 1,00 | 1,10 |
| 5.3 | 0,2 | 5,33 | 5,33 | 1,07 | 1,07 |
| 6 | |||||
| 6.1 | 0,7 | 7,67 | 9,33 | 5,37 | 6,53 |
| 6.2 | 0,3 | 4,67 | 4,00 | 1,40 | 1,20 |
| Интегральная оценка проектов с учетом значимости критериев | 139,67 | 164,68 | 87,77 | 104,57 | |
| Приоритетность проектов | + | + | |||
После анализа сведений о перспективности новых технологических решений, оформленных в виде проектов, экономической целесообразности, рискованности инвестиций на основе интегральной оценки самих инновационных решений и внешних условий, выявили, что из двух проектов, предлагаемых к реализации в ОАО ЭМК ПК «ЗМК», в настоящей работе, приоритетным является проект В.
Оценка инновационного потенциала предприятия
Один из методов оценки инновационного потенциала предприятия основан на трехкомпонентном показателе типа финансовой ситуации. Каждый из компонентов данного показателя рассчитывается следующим образом.
,
где ![]()
![]()
![]()
![]()
![]()
При оценке уровня инновационного потенциала в каждой из рассмотренной выше компонент предлагается учитывать величину затрат, связанных с реализацией инновационных проектов.
,
где ![]()
1. Высокий уровень инновационного потенциала {1;1;1}.
2. Средний уровень инновационного потенциала {0;1;1}.
3. Низкий уровень инновационного потенциала {0;0;1}.
4. Нулевой инновационный потенциал {0;0;0}
Данные для расчета представлены в таблице 7
Таблица 7
| № | Наименование параметра | 2005 год |
| 1 | Источники собственных средств | 0 |
| 2 | Внеоборотные активы | 483950 |
| 3 | Запасы | 215349 |
| 4 | Долгосрочные кредиты и займы | 105815 |
| 5 | Краткосрочные кредиты и займы | 7892 |
| 6 | Величина затрат на освоение проекта А | 5700 |
| 7 | Величина затрат на освоение проекта В | 900 |
Проект А:
тыс.руб.
тыс.руб.
тыс.руб.
Проект В:
тыс.руб.
тыс.руб.
тыс.руб.
Определим элементы трехкомпонентного показателя:
,
![]()
Сведем все полученные данные в таблицу 8.
Таблица 8
| Показатель | Проект А | Проект В |
| -704999 | -700199 | |
| -697107 | -692307 | |
| -591292 | -586492 | |
| {0;0;0} | {0;0;0} |
В нашем случае получим
- это свидетельствует о том, что предприятие имеет нулевой инновационный потенциал, т.е. характеризуется отсутствием или дефицитом источников формирования затрат.
2.5. Обоснование эффективности инновационного проекта
Производственная программа – это развернутый или комплексный план производства и продажи продукции, характеризующий годовой объем выпуска, номенклатуру, качество и сроки, требуемые рынком товаров и услуг.
Проектом предусматривается увеличение производственной программы выпуска оцинкованных металлоконструкций (см. таблицу 9
Таблица 9
Производственная программа выпуска оцинкованных металлоконструкций по годам, тонн
| Объем выпуска, т. | Годы реализации проекта | ||||
| 2005 | 2007 | 2008 | 2009 | 2010 | |
| Оцинкованные металлоконструкции | 24000 | 24500 | 25000 | 25500 | 26000 |
На основе производственной программы можно рассчитать выручку от реализации (см. таблицу 10)
Таблица 10
Планируемый объем продаж оцинкованных металлоконструкций по годам
| Показатель | Годы реализации проекта | ||||
| 2005 | 2007 | 2008 | 2009 | 2010 | |
| Объем выпуска, тонн | 24000 | 24500 | 25000 | 25500 | 26000 |
| Цена за ед., руб. | 9767 | 9756 | 9744 | 9734 | 9767 |
| Объем продаж, тыс. руб. | 234408 | 239022 | 243600 | 248217 | 253942 |
Таблица 11
Дополнительный объём продаж продукции
| Показатель | Годы | |||
| 2007 | 2008 | 2009 | 2010 | |
| Дополнительный объём выпуска в натуральных единицах, тонн | 500 | 1000 | 1500 | 2000 |
| Цена за единицу продукции, руб. | 9767 | 9756 | 9744 | 9734 |
| Объём продаж, тыс.руб. | 4883,5 | 9756 | 14616 | 19468 |
Производственная программа предполагает покупку нового оборудования, поэтому произойдут изменения в составе и структуре основных производственных фондов. Эти изменения показаны в таблице 12.
Таблица 12
Структура основных фондов
| Основные фонды | Действующие | 2007 | 2008 | 2009 | 2010 | ||||||
| Общая потреб-ность в ОФ |
Прирост ОФ | Общая потребность в ОФ | Прирост ОФ | Общая потребность в ОФ | Прирост ОФ | Общая потребность в ОФ | При-рост ОФ | Общая потребность в ОФ | Прирост ОФ | ||
| 1. Здания и сооружения | 160106 | 160106 | - | 160106 | - | 160106 | - | 160106 | - | 160106 | - |
| 2. Машины и оборудование | 272538 | 275958 | 20 | 275958 | - | 275958 | - | 275958 | - | 275958 | - |
| 3.Транспортные средства | 1740 | 1740 | - | 1740 | - | 1740 | - | 1740 | - | 1740 | - |
| 4. Прочие | 19284 | 19284 | - | 19284 | - | 19284 | - | 19284 | - | 19284 | - |
| Итого | 453668 | 453688 | - | 453688 | 453688 | 453688 | 453688 | ||||
Рассчитаем потребность в ресурсах на производственную программу (см. таблицу 13).
Таблица 13
Материалы для оцинкования
| Вид работ | Ед.измер. | Объем на 1 тн. | Цена за ед., руб. | Сумма затрат на 1тн, руб |
| Цинк, ЦО, ЦОА | кг | 43,82 | 50 | 2190,90 |
| Никелевый порошок | кг | 0,15 | 800 | 120 |
| Итого | 49,97 | 2310,90 |
Таблица 14
Потребность в ресурсах на производственную программу
Ресурсы (на весь V) |
Базовый год на весь объём руб. |
2007 | 2008 | 2009 | 2010 |
| Общая потребность | Общая потребность | Общая потребность | Общая потребность | ||
| 1.Материалы для оцинкования | 55461600 | 56617050 | 57772500 | 58927950 | 60083400 |
| 2.Вспомогательные материалы | 13895,04 | 14184,52 | 14474,00 | 14763,48 | 15052,96 |
| 3.Топливно-энергетически ресурсы | 5177,76 | 5285,63 | 5393,5 | 5501,37 | 5609,240 |
| Итого | 55480672,8 | 56636520,2 | 57792368 | 58948214,85 | 60104062,2 |
Рассчитаем сумму текущего запаса материальных ресурсов по формуле:
![]()
тыс.руб.
тыс.руб.
В связи с предлагаемым мероприятием произойдет изменение себестоимости продукции. Произведем расчет экономии/перерасхода по отдельным калькуляционным статьям затрат. Полные годовые издержки на продукцию представим в таблице 15:
Таблица 15
Полные годовые издержки на продукцию
| Наименование статей затрат | На ед., руб. | На весь объем, тыс.руб. | На ед., руб. | На весь объем, тыс.руб. | На ед., руб. | На весь объем, тыс.руб. |
| Базовый | 2007 | 2008 | ||||
| Материалы для оцинкования | 2310,90 | 55461600 | 2310,90 | 56617050 | 2310,90 | 57772500 |
| Вспомогательные материалы | 578,96 | 13895,04 | 578,96 | 14184,52 | 578,96 | 14474 |
| Транспортно-заготовительные расходы | 200,00 | 4800 | 200,00 | 4900 | 200,00 | 5000 |
| Топливно-энергетические ресурсы | 215,74 | 5177,76 | 215,74 | 5285,63 | 215,74 | 5393,5 |
| Основная заработная плата | 757,37 | 18176,88 | 757,37 | 18555,57 | 757,37 | 18934,25 |
| Дополнительная заработная плата | 90,88 | 2181,12 | 90,88 | 2226,56 | 90,88 | 2272 |
| Начисления на заработную плату | 249,39 | 5985,36 | 249,39 | 6110,06 | 249,39 | 6234,75 |
| Общепроизводственные расходы | 908,85 | 21812,4 | 909,05 | 22271,83 | 909,05 | 22726,25 |
| Общезаводские расходы | 833,11 | 19994,64 | 838,62 | 20411,195 | 837,76 | 20827,75 |
| Внепроизводственные расходы | 217,66 | 5223,84 | 220,31 | 5397,67 | 221,02 | 5525,50 |
| Полная себестоимость | 6362,86 | 55558847 | 6371,22 | 56716393 | 6371,07 | 57873888 |
| Наименование статей затрат | На ед., руб. | На весь объем, тыс.руб. | На ед., руб. | На весь объем, тыс.руб. |
| 2009 | 2010 | |||
| Материалы для цинкования | 2310,90 | 58927950 | 2310,90 | 60083400 |
| Вспомогательные материалы | 578,96 | 14763,48 | 578,96 | 15052,96 |
| Транспортно-заготовительные расходы | 200,00 | 5100,00 | 200,00 | 5200 |
| Топливно-энергетические ресурсы | 215,74 | 5501,37 | 215,74 | 5609,24 |
| Основная заработная плата | 757,37 | 19312,94 | 757,37 | 19691,62 |
| Дополнительная заработная плата | 90,88 | 2317,44 | 90,88 | 2362,88 |
| Начисления на заработную плату | 249,39 | 6359,45 | 249,39 | 6484,14 |
| Общепроизводственные расходы | 909,05 | 23180,68 | 909,04 | 23635,1 |
| Общезаводские расходы | 836,35 | 21244,31 | 834,41 | 21660,86 |
| Внепроизводственные расходы | 221,50 | 5648,33 | 222,16 | 5776,16 |
| Полная себестоимость | 6370,14 | 59031378 | 6368,85 | 60188873 |
Для реализации мероприятия необходимо взять кредит. Основная сумма кредита выплачивается равными долями в течение четырех лет. Сумма кредита составляет 5700 тыс.руб. под 15% годовых.
Рассчитаем полное погашение кредита и сумму процентов за него (табл.16).
Таблица 16
Возврат кредита и суммы процентов за кредит, тыс.руб.
| Показатели | Годы реализации проекта | ||||
| 2006 | 2007 | 2008 | 2009 | 2010 | |
| Сумма кредита | 900 | - | - | - | - |
| Остаток на н.г. | 900 | 900 | 775 | 550 | 225 |
| Возврат кредита | - | 225 | 225 | 225 | 225 |
| ∑%за кредит | - | 135 | 116,25 | 82,50 | 33,75 |
тыс.руб.
тыс.руб.
тыс.руб.
тыс.руб.
Рассчитаем денежные потоки для финансового планирования (по 3-м видам деятельности, включая источники). Для этого составим таблицу 16.
Таблица 16
План денежных потоков для финансового планирования по 3видам деятельности проекта
| Денежные потоки | 2006 | 2007 | 2008 | 2009 | 2010 |
| 1.Денежный поток от инвестиционной деят-ти | -900 | ||||
| 1.1.Покупка оборудования | -20 | ||||
| 1.2.Подготовка производства | -145,35 | ||||
| 1.3.Прирост оборотных средств | -734,65 | ||||
| 2.Денежный поток от финансовой деят-ти | 900 | 225 | 225 | 225 | 225 |
| 2.1.Сумма кредита | 900 | ||||
| 2.2.Возврат кредита | 225 | 225 | 225 | 225 | |
| 3.Денежный поток от операционной деят-ти | - | 1295,40 | 2577,55 | 3851,20 | 5120,03 |
| 3.1.Доход от продаж | 4883,5 | 9756 | 14616 | 19468 | |
| 3.1.1.Δ Объем продаж | 500 | 1000 | 1500 | 2000 | |
| 3.1.2.Цена за единицу продукции | 9767 | 9756 | 9744 | 9734 | |
| 3.2.Полная себестоимость | 3185,61 | 6371,07 | 9555,21 | 12737,7 | |
| 3.2.1.Амортизация | 5 | 5 | 5 | 5 | |
| 3.2.2.Проценты за кредит | 135 | 116,25 | 82,50 | 33,75 | |
| 3.3.Прибыль до налогообложения | 1697,89 | 3384,93 | 5060,79 | 6730,3 | |
| 3.4.Налог на прибыль(24%) | 407,49 | 812,38 | 1214,59 | 1615,27 | |
| 3.5.Чистая прибыль | 1290,40 | 2572,55 | 3846,20 | 5115,03 |
На основе производственной программы, прогноза финансовых результатов, потока наличности формируется модель дисконтирования денежных потоков, представленная в таблице 16.
Таблица 16
Денежные потоки для финансового планирования, руб.
| Денежный поток | Год реализации проекта | ||||
| 2006 | 2007 | 2008 | 2009 | 2010 | |
| 1. Инвестиционная деятельность | -900 | ||||
| 2. Финансовая деятельность | 900 | 225 | 225 | 225 | 225 |
| 3. Операционная деятельность | 1295,40 | 2577,55 | 3851,20 | 5120,03 | |
| 4. Сальдо денежных потоков (1+2+3) | 0 | 1070,40 | 2352,55 | 3626,20 | 4895,03 |
| 5. ЧДП(1+3) | -900 | 1295,40 | 2577,55 | 3851,20 | 5120,03 |
| 6. Коэффициент дисконтирования (20%) | 1 | 0,83 | 0,69 | 0,58 | 0,48 |
| 7.ЧТДС(5*6) | -900,00 | 1079,50 | 1789,96 | 2228,70 | 2469,15 |
| 8.ЧТДС нарастающим итогом. | -900,00 | 179,50 | 1969,46 | 4198,17 | 6667,32 |
Расчет показателей эффективности проекта
1.Чистая текущая дисконтированная стоимость -NPV. Характеризует общий абсолютный результат инвестиционной деятельности, ее конечный эффект. Этот показатель еще носит название интегрального экономического эффекта. Определяется как разность денежных притоков и оттоков, разновременные величины которых приводятся в сопоставимый вид путем приведения к первому году осуществления проекта, т.е. путем умножения на соответствующий коэффициент дисконтирования.
NPV=
, где
Рк - чистый денежный поток в течение Т лет проекта, руб.;
r – ставка дисконтирования;
- коэффициент дисконтирования; (ti...tm), (K1…Kт) - горизонт расчета.
тыс.руб.
В соответствии с правилами принятия решений NPV > 0, проект эффективен.
2. Внутренняя норма доходности – IRR- это норма дисконта, при которой величина приведенных эффектов равна инвестициям, т.е. это норма дисконта, при которой NPV=0.
Для расчета IRR выбирают два значения коэффициента дисконтирования r1<r2 таким образом, чтобы на интервале r1-r2, NPV меняла знак с положительного на отрицательный и на оборот. Формула имеет следующий вид, %:
![]()
где r1 и r2 - нижняя и верхняя ставки дисконтирования соответственно, %.
Пусть r2 = 300%
Таблица 17
| Показатели | 2006 | 2007 | 2008 | 2009 | 2010 |
| ЧДП | -900 | 1295,40 | 2577,55 | 3851,20 | 5120,03 |
| Коэффициент дисконтирования (r=300%) | 1 | 0,25 | 0,063 | 0,016 | 0,004 |
| Чистая текущая дисконт. стоимость | -900 | 323,85 | 161,0969 | 60,175 | 20,00012 |
| Чистая текущая дисконт. стоимость нарастающим итогом | -900 | -576,15 | -415,053 | -354,878 | -334,878 |
![]()
В соответствии с правилом принятия решения, если IRR > r проектного, 286,61>20 - проект эффективен.
3. Индекс рентабельности определяется как отношение приведенных притоков (ЧДПt) к приведенным оттокам (Кк)

![]()
Правило принятия решения:
если PI>1, то проект эффективен;
если PI<1, то проект неэффективен;
если PI=1, то это граница и проект требует доработки.
PI=
>1,
Следовательно, проект эффективен.
4. Период возврата инвестиций:
![]()
где tх- количество лет с отрицательным эффектом в дисконтированном денежном потоке нарастающим итогом; NPVt - NPV имеющее отрицательный эффект в году tx;
ДДПt+1 - дисконтированный денежный поток с положительным эффектом в году (t+1).
5. Период окупаемости проекта:
Ток=Твоз-Тин,
где Тин - период вклада инвестиций, лет;
Ток=1,83-1=0,83года
Таким образом, период возврата инвестиций меньше жизненного цикла проекта, что также говорит о его эффективности. Все показатели нашли отображение на финансовом профиле, который подтверждает вывод о целесообразности проекта.
6. Финансовый профиль проекта
![]()
|
|
|

Рис.7. Финансовый профиль проекта
Вывод: Т.о. на основе рассчитанных показателей делаем следующие выводы:
тыс. руб. >0 это говорит о том, что проект имеет положительный интегральный экономический эффект, проект эффективен.
Индекс рентабельности - PI = 8,41 > 1 значит проект эффективен. Мы на 1 руб. капиталовложений получаем 8,41 руб. дохода.
Внутренняя норма доходности (IRR) составляет 286,61%, а цена авансирования капитала r1=20 %, т.о. IRR>r1 это говорит о том, что цена авансирования капитала ниже порогового значения.
Срок окупаемости (Тд) составил 0,83 года, что меньше срока функционирования проекта.
Анализ финансового профиля показал, что максимальный денежный отток составил 900тыс. руб.; период возврата инвестиций составляет 1,83 года.
Проведенные расчеты говорят о том, что данный проект эффективен.
2.6. Экспертиза инновационного проекта и разработка механизма управления рисками
Экономическая экспертиза проекта предполагает проведение факторного анализа устойчивости и чувствительности инновационного проекта, с целью определения "узких мест".
Проведем процесс исследования устойчивости и чувствительности проекта по следующим показателям:
1. Затраты на приобретение оборудования;
2. Годовой объем заказов.
Эти показатели в данном инновационном проекте наиболее подвержены изменениям и могут привести к срыву реализации проекта и существенному снижению его эффективности.
Для анализа изменяем анализируемые показатели:
1. Затраты на приобретение оборудования увеличивается на 10%;
2. Годовой объем заказов уменьшается на 10%.
При этом остальные показатели остаются без изменений, т.е. базовыми.
1) Увеличение затрат на приобретение оборудования на 10%
Рассчитаем потребность и стоимость оборудования, результаты представим в виде таблицы 18:
Таблица 18
Потребность в оборудовании в базовых ценах
| Оборудование | Кол-во | Цена, руб. | Сумма, руб. |
| Оснастка | 4 | 5000 | 20000 |
| Итого: | 20000 |
Проведем аналогичные расчеты, но уже с учетом увеличения затрат на приобретение оборудования (таблица 19).
Таблица 19
Потребность в оборудовании с учетом увеличения стоимости
| Оборудование | Кол-во | Цена, руб. | Сумма, руб. |
| Оснастка | 4 | 5500 | 22000 |
| Итого: | 22000 |
Так как стоимость затрат на приобретение оборудования возросла на 10%, потребность предприятия в инвестициях также возросла.
Для реализации мероприятия необходимо взять кредит. Основная сумма кредита выплачивается равными долями в течение четырех лет. Сумма кредита составляет 902 тыс.руб. под 15% годовых.
Рассчитаем полное погашение кредита и сумму процентов за него (табл.20).
Таблица 20
Возврат кредита и суммы процентов за кредит, тыс.руб.
| Показатели | Годы реализации проекта | ||||
| 2006 | 2007 | 2008 | 2009 | 2010 | |
| Сумма кредита | 902 | - | - | - | - |
| Остаток на н.г. | 902 | 902 | 676,5 | 451 | 225,5 |
| Возврат кредита | - | 225,5 | 225,5 | 225,5 | 225,5 |
| ∑%за кредит | - | 135,3 | 101,48 | 67,65 | 33,83 |
тыс.руб.
тыс.руб.
тыс.руб.
тыс.руб.
Рассчитаем денежные потоки для финансового планирования (по 3-м видам деятельности, включая источники). Для этого составим таблицу 21.
Таблица 21
План денежных потоков для финансового планирования по 3видам деятельности проекта
| Денежные потоки | 2006 | 2007 | 2008 | 2009 | 2010 |
| 1.Денежный поток от инвестиционной деят-ти | -902 | ||||
| 1.1. Покупка оборудования | 22 | ||||
| 1.2. Подготовка производства | 145,35 | ||||
| 1.3. Прирост оборотных средств | 734,65 | ||||
| 2.Денежный поток от финансовой деят-ти | 902 | 225,5 | 225,5 | 225,5 | 225,5 |
| 2.1.Сумма кредита | 902 | ||||
| 2.2.Возврат кредита | 225 | 225 | 225 | 225 | |
| 3.Денежный поток от операционной деят-ти | - | 1295,90 | 2578,05 | 3851,70 | 5120,53 |
| 3.1.Доход от продаж | 4883,5 | 9756 | 14616 | 19468 | |
| 3.1.1.Δ Объем продаж | 500 | 1000 | 1500 | 2000 | |
| 3.1.2.Цена за единицу продукции | 9767 | 9756 | 9744 | 9734 | |
| 3.2.Полная себестоимость | 3185,61 | 6371,07 | 9555,21 | 12737,7 | |
| 3.2.1.Амортизация | 5,5 | 5,5 | 5,5 | 5,5 | |
| 3.2.2.Проценты за кредит | 135,3 | 101,48 | 67,65 | 33,83 | |
| 3.3.Прибыль до налогообложения | 1697,89 | 3384,93 | 5060,79 | 6730,3 | |
| 3.4.Налог на прибыль(24%) | 407,49 | 812,38 | 1214,59 | 1615,27 | |
| 3.5.Чистая прибыль | 1290,40 | 2572,55 | 3846,20 | 5115,03 |
На основе производственной программы, прогноза финансовых результатов, потока наличности формируется модель дисконтирования денежных потоков, представленная в таблице 22.
Таблица 22
Денежные потоки для финансового планирования, руб.
| Денежный поток | Год реализации проекта | ||||
| 2006 | 2007 | 2008 | 2009 | 2010 | |
| 1. Инвестиционная деятельность | -902 | ||||
| 2. Финансовая деятельность | 902 | -225,5 | -225,5 | -225,5 | -225,5 |
| 3. Операционная деятельность | 1295,90 | 2578,05 | 3851,70 | 5120,53 | |
| 4. Сальдо денежных потоков (1+2+3) | 0 | 1070,4 | 2352,547 | 3626,2 | 4895,028 |
| 5. ЧДП(1+3) | -902 | 1295,90 | 2578,05 | 3851,70 | 5120,53 |
| 6. Коэффициент дисконтирования (20%) | 1 | 0,8333333 | 0,6944444 | 0,5787036 | 0,4822531 |
| 7.ЧТДС(5*6) | -902,00 | 1079,92 | 1790,31 | 2228,99 | 2469,39 |
| 8.ЧТДС нарастающим итогом. | -902,00 | 177,92 | 1968,23 | 4197,22 | 6666,61 |
Проект по этому фактору устойчив и нечувствителен, т.к. 6666,61>0
Затем необходимо определить предельное негативное значение анализируемого показателя, при котором сохраняется экономическая целесообразность реализации проекта (см. табл.23).
Таблица 23
План денежных потоков по 3видам деятельности проекта
| Денежные потоки | 2006 | 2007 | 2008 | 2009 | 2010 |
| 1.Денежный поток от инвестиционной деят-ти | -7568,00 | ||||
| 1.1.Покупка оборудования | -6688,00 | ||||
| 1.2.Подготовка производства | -145,35 | ||||
| 1.3.Прирост оборотных средств | -734,65 | ||||
| 2.Денежный поток от финансовой деят-ти | -902,00 | 225,50 | 225,50 | 225,50 | 225,50 |
| 2.1.Сумма кредита | 902,00 | ||||
| 2.2.Возврат кредита | 225,00 | 225,00 | 225,00 | 225,00 | |
| 3.Денежный поток от операционной деят-ти | 1295,90 | 2578,05 | 3851,70 | 5120,53 | |
| 3.1.Доход от продаж | 4883,50 | 9756,00 | 14616,00 | 19468,00 | |
| 3.1.1.Δ Объем продаж | 500,00 | 1000,00 | 1500,00 | 2000,00 | |
| 3.1.2.Цена за единицу продукции | 9767,00 | 9756,00 | 9744,00 | 9734,00 | |
| 3.2.Полная себестоимость | 3185,61 | 6371,07 | 9555,21 | 12737,70 | |
| 3.2.1.Амортизация | 5,50 | 5,50 | 5,50 | 5,50 | |
| 3.3.Прибыль до налогообложения | 1697,89 | 3384,93 | 5060,79 | 6730,30 | |
| 3.4.Налог на прибыль(24%) | 407,49 | 812,38 | 1214,59 | 1615,27 | |
| 3.5.Чистая прибыль | 1290,40 | 2572,55 | 3846,20 | 5115,03 | |
| 5. ЧДП(1+3) | -7568,00 | 1295,90 | 2578,05 | 3851,70 | 5120,53 |
| 6. Коэффициент дисконтирования (20%) | 1,00 | 0,83 | 0,69 | 0,58 | 0,48 |
| 7.ЧТДС(5*6) | -7568,00 | 1079,92 | 1790,31 | 2228,99 | 2469,39 |
| 8.ЧТДС нарастающим итогом. | -7568,00 | -6488,08 | -4697,77 | -2468,78 | 0,61 |
Уровень устойчивости и чувствительности инновационного проекта определим как относительное отклонение в процентах:
где
Х – исходное значение показателя;
х – негативное предельное значение показателя.
![]()
Получен очень хороший показатель, что свидетельствует об отсутствии чувствительности проекта к изменению рассматриваемого фактора.
2) Уменьшение годового объема заказов на 10%
Рассчитаем денежные потоки для проекта (по 3-м видам деятельности, включая источники). Для этого составим таблицу 24.
Таблица 24
План денежных потоков по 3видам деятельности проекта
| Денежные потоки | 2006 | 2007 | 2008 | 2009 | 2010 |
| 1.Денежный поток от инвестиционной деят. | -900 | ||||
| 1.1. Покупка оборудования | -20 | ||||
| 1.2. Подготовка производства | -145,35 | ||||
| 1.3. Прирост оборотных средств | -734,65 | ||||
| 2.Денежный поток от финансовой деят. | 900 | 225 | 225 | 225 | 225 |
| 2.1.Сумма кредита | 900 | ||||
| 2.2.Возврат кредита | 225,00 | 225,00 | 225,00 | 225,00 | |
| 3.Денежный поток от операционной деят. | 161259,32 | 158654,03 | 156032,99 | 153446,72 | |
| 3.1.Доход от продаж | 215362,35 | 215119,80 | 214855,20 | 214634,70 | |
| 3.1.1.Δ Объем продаж | 22050,00 | 22050,00 | 22050,00 | 22050,00 | |
| 3.1.2.Цена за единицу продукции | 9767,00 | 9756,00 | 9744,00 | 9734,00 | |
| 3.2.Полная себестоимость | 3185,61 | 6371,07 | 9555,21 | 12737,70 | |
| 3.2.1.Амортизация | 5,00 | 5,00 | 5,00 | 5,00 | |
| 3.3.Прибыль до налогообложения | 212176,74 | 208748,73 | 205299,99 | 201897,00 | |
| 3.4.Налог на прибыль(24%) | 50922,42 | 50099,70 | 49272,00 | 48455,28 | |
| 3.5.Чистая прибыль | 161254,32 | 158649,03 | 156027,99 | 153441,72 | |
| 5. ЧДП(1+3) | -900 | 161259,32 | 158654,03 | 156032,99 | 153446,72 |
| 6. Коэффициент дисконтирования (20%) | 1,00 | 0,83 | 0,69 | 0,58 | 0,48 |
| 7.ЧТДС(5*6) | -900 | 134382,76 | 110176,41 | 90296,85 | 74000,16 |
| 8.ЧТДС нарастающим итогом. | -900 | 133482,76 | 243659,17 | 333956,02 | 407956,18 |
Затем необходимо определить предельное негативное значение анализируемого показателя, при котором сохраняется экономическая целесообразность реализации проекта (см. табл.25).
Таблица 25
План денежных потоков по 3видам деятельности проекта
| Денежные потоки | 2006 | 2007 | 2008 | 2009 | 2010 |
| 1.Денежный поток от инвестиционной деят. | -900 | ||||
| 1.1. Покупка оборудования | -20 | ||||
| 1.2. Подготовка производства | -145,35 | ||||
| 1.3. Прирост оборотных средств | -734,65 | ||||
| 2.Денежный поток от финансовой деят. | 900 | 225 | 225 | 225 | 225 |
| 2.1.Сумма кредита | 900 | ||||
| 2.2.Возврат кредита | 225,00 | 225,00 | 225,00 | 225,00 | |
| 3.Денежный поток от операционной деят. | - | 3440,62 | 1013,07 | -1414,07 | -3838,76 |
| 3.1.Доход от продаж | 7706,16 | 7697,48 | 7688,02 | 7680,13 | |
| 3.1.1.Δ Объем продаж | 789,00 | 789,00 | 789,00 | 789,00 | |
| 3.1.2.Цена за единицу продукции | 9767,00 | 9756,00 | 9744,00 | 9734,00 | |
| 3.2.Полная себестоимость | 3185,61 | 6371,07 | 9555,21 | 12737,70 | |
| 3.2.1.Амортизация | 5,00 | 5,00 | 5,00 | 5,00 | |
| 3.3.Прибыль до налогообложения | 4520,55 | 1326,41 | -1867,19 | -5057,57 | |
| 3.4.Налог на прибыль(24%) | 1084,93 | 318,34 | -448,13 | -1213,82 | |
| 3.5.Чистая прибыль | 3435,62 | 1008,07 | -1419,07 | -3843,76 | |
| 5. ЧДП(1+3) | -900 | 3440,62 | 1013,07 | -1414,07 | -3838,76 |
| 6. Коэффициент дисконтирования (20%) | 1,00 | 0,83 | 0,69 | 0,58 | 0,48 |
| 7.ЧТДС(5*6) | -900 | 2867,18 | 703,52 | -818,33 | -1851,25 |
| 8.ЧТДС нарастающим итогом. | -900 | 1967,18 | 2670,71 | 1852,38 | 1,13 |
Уровень устойчивости и чувствительности инновационного проекта определим как относительное отклонение в процентах:
где
Х – исходное значение показателя;
х – негативное предельное значение показателя.
![]()
Получен очень хороший показатель, что свидетельствует об отсутствии чувствительности проекта к изменению рассматриваемого фактора.
Результаты исследования устойчивости и чувствительности проекта по факторам риска представлены в таблице 26.
Таблица 26
Результаты исследования устойчивости и чувствительности проекта
| Фактор | Ед. измерения | Исход. значение | Предельн. значение | Уровень чувствительности | Значение NPV при 10% изменении показателя | Вывод |
| Затраты на приобретение оборудования | тыс.руб | 22. | 6688 | 30300% | 6666,61 | Фактор не влияет на устойчивость проекта |
| Годовой объем заказов | тонн | 24500 | 789 | 96,78% | 407956,18 | Степень устойчивости проекта очень высокая |
Проведем анализ рисков, не учтенных в выше изложенных расчетах (таблица 27).
Таблица 27
Анализ рисков проектов
| Фактор риска | Вероят-ность наступле-ния | Метод управления риском | Вероятность снижения |
| Уменьшение спроса на продукцию | 20% | Активная рекламная деятельность, наработка постоянного круга клиентов | 80% |
| Повышение издержек | 30% | Введение жесткой системы контроля за расходованием материальных и энергетических ресурсов. | 70% |
| Уплата повышенных отчислений и налогов | 10% | Слежение за изменениями в налоговом законодательстве. | 90% |
| Форс-мажорные обстоятельства | 10% | Заключение страхового договора со страховой компанией. |
90% |
| Перерасход величины ФОТ | 30% | Планированием расхода ФОТ и поручением этой работы высококвалифицированным специалистам. | 70% |
Снижение намеченных объемов производства и реализации продукции вследствие уменьшения производительности труда, простоя оборудования или недоиспользования производственных мощностей, потерь рабочего времени, отсутствия необходимого количества исходных материалов, повышенного процента брака ведет к недополучению запланированной выручки.
Подобный риск не будет иметь места в результате осуществления проекта. Производительность повыситься, недостатка производственных мощностей также не предвидится. Т.о. риск недополучения запланированной выручки, обусловленный подобного рода факторами, практически отсутствует.
Снижение цен, по которым намечается реализовать продукцию, в связи с недостаточным качеством, неблагоприятным изменением рыночной конъюнктуры, падением спроса, ценовой инфляцией приводит к вероятным потерям. Снижение цен на продукцию в связи с неблагоприятными изменениями конъюнктуры, по прогнозам, не намечается, как и падение спроса. А вот что касается ценовой инфляции, то предприятие не может ее избежать. И в силу того, что это внешняя угроза, никак не может на нее повлиять.
Повышение издержек, обусловленные перерасходом материалов, сырья, топлива, энергии, высоких транспортных расходов, торговых издержек, накладных и других побочных расходов, ведут к потерям. Такого рода риск всегда существует. Однако проект нацелен на повышение эффективности производственного процесса, к тому же покупаемое современное оборудование позволит свести этот риск к минимуму. Помимо этого предприятие может застраховать себя от него введением жесткой системы контроля за расходованием материальных и энергетических ресурсов. Так как предприятие получает часть сырьевых материалов по железной дороге, существует риск повышения транспортных расходов, вследствие увеличения железнодорожных тарифов.
Перерасход намеченной величины фонда оплаты труда вследствие превышения расчетной численности либо вследствие выплаты более высокого, чем запланировано, уровня заработной платы отдельным работникам. От подобного вида риска предприятие может себя застраховать точным планированием расхода ФОТ и поручением этой работы высококвалифицированным специалистам.
Уплата повышенных отчислений и налогов, если в процессе осуществления бизнес-плана ставки отчислений и налогов изменятся в неблагоприятную для предпринимателя сторону. В ближайшее время не ожидается повышения налоговых ставок, однако, в силу того, что проект рассчитан на 4 года, подобный риск весьма реален.
Не следует упускать из виду и возможности потерь в виде штрафов, естественной убыли, а также обусловленных стихийными бедствиями. От риска, связанного с возникновением форс-мажорных обстоятельств предприятие может себя обезопасить, заключив страховой договор со страховой компанией.
2.7. Организация реализации проекта
В данном разделе приведем календарный план реализации проекта, где указаны вопросы, которые необходимо решить на каждом из выделенных этапов (таблица 28).
Таблица 28
План реализации проекта
| № | Наименование этапа | Сроки | Ответственные лица | Круг вопросов |
| 1. | Прединвести-ционная стадия | 01.01.07г. – 30.06.07г. |
· генеральный директор | · Анализ имеющихся вариантов инновационного проекта; · Решение о приобретении оборудования; · Анализ рынка. |
| 3. | Покупка и монтаж оборудования | 01.10.07г. – 30.12.07г. |
· директор по производству · коммерческий директор · начальник отдела сбыта |
· Покупка оборудования; · Установка оборудования; · Обучение кадров. · Закупка материальных ресурсов и создание их запасов. · Пуск оборудования. |
| 4. | Производство и реализация продукции | с 01.01.08г. |
· коммерческий директор · начальник отдела сбыта · главный технолог |
· Заключение договоров на реализацию продукции; · Реализация продукции |
В таблице 29 укажем возможные причины прекращения реализации проекта на ОАО ЭМК ПК "ЗМК"
Таблица 29
Условия прекращения реализации проекта
| Этап | Причина |
| 1.Приобретение и поставка оборудования | · срыв поставки оборудования |
| 2. Монтаж оборудования | · неквалифицированный новый персонал · некачественный монтаж оборудования · несоответствие деталей оборудования |
| 3.Производство и реализация продукции | · отсутствие спроса на продукцию · неприемлемое качество необходимых сырья и материалов · резкое повышение цен на сырье и материалы |
Заключение
Курсовой проект состоит из двух частей – теоретической и проектной. В теоретической части освещались вопросы, связанные трансфертом технологий в инновационной деятельности. Трансферт технологий представляет собой передачу научно-технических знаний и опыта для оказания научно-технических услуг, применения технологических процессов, выпуска продукции.
На основании анализа товарного рынка, конкуренции, производственно-хозяйственной и финансовой деятельности ОАО «ЭМК» ПК ЗМК, проведенного в данной курсовой работе, а также расчета и оценки эффективности мероприятия по увеличению объемов производства и реализации, делаем следующие выводы:
- ОАО «ЭМК» ПК ЗМК был и остается одним из крупнейших производителей оцинкованных металлоконструкций в Российской Федерации и странах СНГ;
- продукция предприятия имеет высокое качество и по техническим параметрам не уступает продукции конкурентов;
- производство оцинкованных металлоконструкций для ОАО «ЭМК» ПК ЗМК является перспективным и экономически выгодным.
Суть проекта состояла в замене цинко-никелевого сплава на никелевый порошок цеха горячего цинкования.
Экономическая экспертиза, проведенная по методу факторного анализа устойчивости и чувствительности инновационного проекта, с целью определения "узких мест" показала, что проект не станет убыточным при увеличении покупной стоимости технологической линии на 10% и при снижении объемов реализации на 10%.
Из всего вышесказанного можно сделать вывод, что предложенный нами проект по всем параметрам является весьма эффективным и позволит ОАО «Энергомашкорпорация» ПК ЗМК еще больше укрепиться в качестве лидера отрасли. На основании всего вышеизложенного можно сделать вывод, что цель данной курсовой работы достигнута.
Библиографический список литературы
1.Балабанов И.Г. Инновационный менеджмент: Учебное пособие. – СПб.: Питер, 2000.
2.Инновационный менеджмент: Учебник / Под ред. проф. В.А. Швандара, проф. В.Я. Горфинкеля. – М.: Вузовский учебник, 2005. – 382 с.
3.Медынский В.Г. Реинжиниринг инновационного предпринимательства/ Медынский В.Г., Ильдеменов С.В. – М.: ЮНИТИ, 1999. – 413 с.
4.Основы инновационного менеджмента. Теория и практика: Учебник / Л.С. Барютин и др.; под ред. А.К. Казанцева, Л.Э. Миндели. 2-е изд. перераб. и доп. – М.: ЗАО "Издательство" Экономика", 2004. – 518 с.
5.Управление инновациями: В 3 кн. Кн. 1. Основы организации инновационных процессов: Учеб. пособие / А.А. Харин, И.Л. Коленский; Под ред. Ю.В. Шленова. – М.: Высш. шк., 2003. – 252 с.: ил.
6.Управление инновациями: В 3 кн. Кн. 2. Управление финансами в инновационных процессах: Учеб. пособие / А.А. Харин, И.Л. Коленский, Н.Н. Пущенко, В.А. Старых; Под ред. Ю.В. Шленова. – М.: Высш. шк., 2003. – 295 с.: ил.