| Похожие рефераты | Скачать .docx |
Курсовая работа: Аттестация рабочих мест
Содержание
Введение
Раздел 1. Теоретические проблемы аттестации рабочих мест
1.1 Основные термины и определения аттестации рабочих мест
1.2 Подготовка к проведению аттестации рабочих мест по условиям труда
1.3 Аттестационная комиссия организации
1.4 Порядок проведения аттестации рабочих мест по условиям труда
1.5 Оформление и реализация результатов аттестации рабочих мест по условиям труда
1.6 Разработка плана мероприятий по улучшению и оздоровлению условий труда в организации
Раздел 2. Организация рабочих мест в финансовом отделе Управления экономики Харьковской областной администрации
Выводы
Список использованной литературы
Введение
Темой работы является «Аттестация рабочих мест», на данном этапе развития рыночных и производственных отношений проблема аттестации становится все более и более актуальной. На мотивацию и психологическое состояние работника оказывает большое влияние то, настолько хорошо организовано его рабочее место и доволен ли он той работой, которой занимается.
В работе рассматриваются основные термины и определения аттестации рабочих мест, подготовка к проведению аттестации рабочих мест по условиям труда и другие не менее важные проблемы.
Основные цели аттестации рабочих мест по условиям труда: сертификация работ по охране труда на производственных объектах; установление надбавок или скидок в размере 40% к страховым тарифам; обоснование льгот и компенсаций работникам, занятым на тяжелых работах и работах с вредными и опасными условиями труда; применение административно-экономических санкций к виновным должностным лицам в связи с нарушением законодательства об охране труда; планирование и проведение мероприятий по охране труда и другие.
Современные требования к аттестации рабочих мест по условиям труда во многом определяют: цели и задачи аттестации рабочих мест по условиям труда; стимулирование проведения аттестации рабочих мест; порядок проведения аттестации рабочих мест.
Раздел 1. Теоретические проблемы аттестации рабочих мест
1.1 Основные термины и определения аттестации рабочих мест
Аттестация рабочих мест по условиям труда - система анализа и оценки рабочих мест для проведения оздоровительных мероприятий, ознакомления работающих с условиями труда, сертификации производственных объектов, для подтверждения или отмены права предоставления компенсаций и льгот работникам, занятым на тяжелых работах и работах с вредными и опасными условиями труда.
Безопасность -отсутствие недопустимого риска, связанного с возможностью нанесения ущерба.
Безопасные условия труда - условия труда, при которых воздействие на работающих вредных и опасных производственных факторов исключено или их уровни не превышают гигиенических нормативов.
Безопасность труда - состояние условий труда, при котором исключено воздействие на работающих опасных и вредных производственных факторов.
Вредные условия труда - условия труда, характеризующиеся наличием вредных производственных факторов, превышающих гигиенические нормативы и оказывающих неблагоприятное воздействие на организм работающего и (или) его потомство
Вредный производственный фактор - производственный фактор, воздействие которого на работающего в определенных условиях приводит к заболеванию или снижению работоспособности. В зависимости от уровня и продолжительности воздействия вредный производственный фактор может стать опасным.
Гигиена труда - система обеспечения здоровья работающих в процессе трудовой деятельности, включающая правовые, социально-экономические, организационно-технические, санитарно-гигиенические, лечебно-профилактические, реабилитационные и иные мероприятия.
Гигиенические нормативы условий труда - уровни вредных производственных факторов, которые при ежедневной (кроме выходных дней) работе, но не более 40 часов в неделю в течение всего рабочего стажа, не должны вызывать заболеваний или отклонений в состоянии здоровья, обнаруживаемых современными методами исследований в процессе работы или в отдаленные сроки жизни настоящего и последующего поколений. Соблюдение гигиенических нормативов условий труда не исключает нарушение здоровья у сверхчувствительных лиц.
Допустимые условия труда - условия труда, характеризующиеся такими ровнями факторов среды и трудового процесса, которые не превышают уровней, установленных гигиеническими нормативами для рабочих мест, а возможные изменения функционального состояния организма восстанавливаются во время регламентированного отдыха или к началу следующей смены и не должны оказывать неблагоприятного воздействия в ближайшем и отдаленном периоде на состояние здоровья работающих и их потомство.
Опасные (экстремальные) условия труда - условия труда, характеризующиеся такими уровнями производственных факторов, воздействие которых в течение рабочей смены (или ее части) создает угрозу для жизни, высокий риск возникновения тяжелых форм острых профессиональных поражений.
Опасный производственный фактор - производственный фактор, воздействие которого на работающего в определенных условиях приводит к травме или другому внезапному резкому ухудшению здоровья.
Оптимальные условия труда - такие условия, при которых сохраняется не только здоровье работающих, но и создаются предпосылки для поддержания высокого уровня работоспособности.
Постоянное рабочее место - место, на котором работающий находится большую часть своего рабочего времени (более 50% или более 2 часов непрерывно). Если при этом работа осуществляется в различных пунктах рабочей зоны, постоянным рабочим местом считается вся рабочая зона.
Рабочее место - все места, где работник должен находиться или куда ему необходимо следовать в связи с его работой и которые прямо или косвенно находятся под контролем работодателя (Конвенция 155 Международной организации труда).
Рабочая зона - пространство, ограниченное по высоте 2 м над уровнем пола или площадки, на которых находятся места постоянного или непостоянного (временного) пребывания работающих.
Травмобезопасность - соответствие рабочих мест требованиям безопасности труда, исключающим травмирование работающих в условиях, установленных нормативными правовыми актами по охране труда.
Тяжелые работы - работы, отражающие преимущественную нагрузку на опорно-двигательный аппарат и функциональные системы организма, выполнение которых связано с вовлечением более чем 2/3 мышечной массы человека.
Условия труда - совокупность факторов производственной среды и трудового процесса, оказывающих влияние на здоровье и работоспособность человека в процессе труда.
1.2 Подготовка к проведению аттестации рабочих мест по условиям труда
Одной из основных обязанностей работодателя по обеспечению безопасных условий труда является проведение аттестации рабочих мест по условиям труда с последующей сертификацией работ по охране труда в организации.
Основным нормативным документов регламентирующим организацию и проведение аттестации рабочих мест по условиям труда является Положение о порядке проведения аттестации рабочих мест по условиям труда.
Положение о порядке проведения аттестации рабочих мест по условиям труда устанавливает цели, порядок проведения аттестации рабочих мест по условиям труда, а также порядок оформления и использования результатов аттестации в организациях независимо от их организационно-правовых форм и форм собственности.
Положение предусматривает проведение оценки условий труда инструментальными, лабораторными и эргономическими методами исследований.
Результаты аттестации рабочих мест по условиям труда, проведенной в соответствии с настоящим Положением, используются в таких целях:
планирования и проведения мероприятий по охране и условиям труда в соответствии с действующими нормативными правовыми документами;
сертификации производственных объектов на соответствие требованиям по охране труда;
обоснования предоставления льгот и компенсаций работникам, занятым на тяжелых работах и работах с вредными и опасными условиями труда, в предусмотренном законодательством порядке;
решения вопроса о связи заболевания с профессией при подозрении на профессиональное заболевание, установлении диагноза профзаболевания, в том числе при решении споров, разногласий в судебном порядке;
рассмотрения вопроса о прекращении (приостановлении) эксплуатации цеха, участка, производственного оборудования, изменении технологий, представляющих непосредственную угрозу для жизни и (или) здоровья работников;
включения в трудовой договор (контракт) условий труда работников;
ознакомления работающих с условиями труда на рабочих местах;
составления статистической отчетности о состоянии условий труда, льготах и компенсациях за работу с вредными и опасными условиями труда по форме № 1 - Т (условий труда);
применения административно-экономических санкций (мер воздействия) к виновным должностным лицам в связи с нарушением законодательства об охране труда.
Сроки проведения аттестации устанавливаются организацией исходя из изменения условий и характера труда, но не реже одного раза в 5 лет с момента проведения последних измерений.
Обязательной переаттестации подлежат рабочие места после замены производственного оборудования, изменения технологического процесса, реконструкции средств коллективной защиты и др., а также по требованию органов Государственной экспертизы условий труда Российской Федерации при выявлении нарушений при проведении аттестации рабочих мест по условиям труда.
Измерения параметров опасных и вредных производственных факторов, определение показателей тяжести и напряженности трудового процесса осуществляют лабораторные подразделения организации. При отсутствии у организации необходимых для этого технических средств и нормативно-справочной базы привлекаются центры государственного санитарно-эпидемиологического надзора, лаборатории органов Государственной экспертизы условий труда Российской Федерации и другие лаборатории, аккредитованные (аттестованные) на право проведения указанных измерений.
Оценка травмобезопасности рабочих мест проводится организациями самостоятельно или по их заявкам сторонними организациями, имеющими разрешение органов Государственной экспертизы условий труда Российской Федерации на право проведения указанных работ.
Подготовка к проведению аттестации рабочих мест включает издание приказа, в котором:
определяются общие сроки и график проведения работ по аттестации рабочих мест;
устанавливается состав аттестационной комиссии предприятия и, при необходимости, в структурных подразделениях;
устанавливаются задачи и функции подразделений, привлекаемых к работе по аттестации рабочих мест.
Аттестационная комиссия предприятия должна:
осуществлять методическое руководство и контроль за проведением работ по аттестации;
проводить работу по аттестации рабочих и принимать решения по установлению льготной пенсии и дальнейшему использованию рабочих мест;
разрабатывать предложения по улучшению и оздоровлению условий труда.
Проведение аттестации рабочих мест включает следующие этапы:
определение фактических значений опасных и вредных производственных факторов на рабочих местах;
оценка травмобезопасности рабочих мест;
оценка фактического состояния условий труда на рабочих местах;
оценка обеспеченности работников средствами индивидуальной защиты;
разработка мероприятий по улучшению и оздоровлению условий труда.
1.3 Аттестационная комиссия организации
Аттестационная комиссия организации:
осуществляет методическое руководство и контроль за проведением работы на всех ее этапах;
формирует необходимую нормативно-справочную базу для проведения аттестации рабочих мест и организует ее изучение;
составляет полный перечень рабочих мест организации с выделением аналогичных по характеру выполняемых работ и условиям труда;
выявляет на основе анализа причин производственного травматизма в организации наиболее травмоопасные участки, работы и оборудование;
составляет перечень опасных и вредных факторов производственной среды, показателей тяжести и напряженности трудового процесса, подлежащих оценке на каждом рабочем месте, исходя из характеристик технологического процесса, состава оборудования, применяемых сырья и материалов, данных ранее проводившихся измерений показателей опасных и вредных производственных факторов, тяжести и напряженности трудового процесса, жалоб работников на условия труда;
присваивает коды производствам, цехам, участкам, рабочим местам для проведения автоматизированной обработки результатов аттестации рабочих мест по условиям труда. Каждому рабочему месту рекомендуется присваивать свой порядковый номер, в том числе и рабочим местам одного наименования;
аттестует и принимает решения по дальнейшему использованию рабочих мест;
разрабатывает предложения по улучшению и оздоровлению условий труда;
вносит предложения о готовности подразделений организации (производственных объектов) к их сертификации на соответствие требованиям по охране труда.
При аттестации рабочих мест проводится оценка условий труда, оценка травмобезопасности оборудования и приспособлений. При этом учитывается обеспеченность работников средствами индивидуальной и коллективной защиты, а также эффективность этих средств.
На каждое рабочее место (или группу аналогичных по характеру выполняемых работ и по условиям труда рабочих мест) составляется Карта аттестации рабочих мест по условиям труда. Оценка опасных и вредных производственных факторов на аналогичных по характеру выполняемых работ и по условиям труда рабочих местах производится на основании данных, полученных при аттестации не менее 20% таких рабочих мест.
1.4 Порядок проведения аттестации рабочих мест по условиям труда
При аттестации рабочих мест определяются фактические значения опасных и вредных производственных факторов на рабочих местах. При этом оценке подлежат все имеющиеся на рабочем месте опасные и вредные производственные факторы (физические, химические, биологические), тяжесть и напряженность труда.
Уровни опасных и вредных производственных факторов определяются на основе инструментальных измерений. Инструментальные измерения физических, химических, биологических и психофизиологических факторов, эргономические исследования должны выполняться в процессе работы, то есть при проведении производственных процессов в соответствии с технологическим регламентом, при исправных и эффективно действующих средствах коллективной и индивидуальной защиты.
При проведении измерений необходимо использовать средства измерений, указанные в нормативных документах на методы измерений. Применяемые средства измерений должны быть метрологически аттестованы и проходить государственную поверку в установленные сроки.
Инструментальные измерения уровней производственных факторов оформляются протоколами. Форма протоколов устанавливается нормативными документами, определяющими порядок проведения измерений уровней показателей того или иного фактора. В каждом случае протоколы должны содержать следующие данные:
наименование и код подразделения организации и рабочего места;
дата проведения измерений;
наименование организации (или ее подразделения), привлеченной к выполнению измерений;
наименование измеряемого производственного фактора;
средство измерения (наименование прибора, инструмента, дата поверки и номер свидетельства о поверке);
метод проведения измерений с указанием нормативного документа, на основании которого проводится измерение;
место проведения измерения, эскиз помещения с указанием на нем точки измерения (отбора пробы);
фактическое значение измеряемого параметра;
должность, фамилия, инициалы подписи работника, проводившего измерения, и представителя администрации объекта, на котором проводились измерения;
подпись ответственного лица, печать организации (или ее подразделения), привлеченной к выполнению измерений.
Оценка травмобезопасности рабочих мест.
Основными объектами оценки травмобезопасности рабочих мест являются:
производственное оборудование;
приспособления и инструменты;
обеспеченность средствами обучения и инструктажа.
Оценка производственного оборудования, приспособлений и инструмента производится на основе действующих и распространяющихся на них нормативных правовых актов по охране труда (государственных и отраслевых стандартов, правил по охране труда, типовых инструкций по охране труда и др.). Перед оценкой травмобезопасности рабочих мест проверяется наличие, правильность ведения и соблюдение требований нормативных документов в части обеспечения безопасности труда.
Оценка травмобезопасности проводится путем проверки соответствия производственного оборудования, приспособлений и инструмента, а также средств обучения и инструктажа требованиям нормативных правовых актов. При оценке травмобезопасности проводятся пробные пуски и остановки производственного оборудования с соблюдением требований безопасности.
В случаях, когда производственное оборудование и приспособления на рабочих местах изготовлены до введения в действие распространяющихся на них нормативных правовых актов или когда эти документы не разработаны и не утверждены в установленном порядке, оценка травмобезопасности производственного оборудования и приспособлений проводится на соответствие требованиям, изложенным в общегосударственных нормативных правовых актах, обеспечивающих на рабочих местах безопасные условия труда, в том числе:
наличие средств защиты работников от воздействия движущихся частей оборудования, являющихся источником опасности;
устройство ограждений трубопроводов, гидро-, паро-, пневмосистем, предохранительных клапанов, кабелей и других элементов, повреждение которых может вызвать опасность;
наличие устройств (ручек) для перемещения частей оборудования вручную при ремонтных и монтажных работах;
исключение опасности, вызванной разбрызгиванием обрабатываемых и (или) используемых при эксплуатации производственного оборудования материалов и веществ в рабочую зону, падением или выбрасыванием предметов (например инструмента, заготовок);
исключение опасности, вызванной разрушением конструкций, элементов зданий, обрушением пород и других элементов в карьерах, шахтах и т.п.;
наличие и соответствие нормативным требованиям сигнальной окраски и знаков безопасности;
наличие в ограждениях фиксаторов, блокировок, элементов, обеспечивающих прочность и жесткость, герметизирующих элементов;
обеспечение функционирования средств защиты в течение действия соответствующего опасного или вредного производственного фактора;
наличие на пульте управления сигнализаторов нарушения нормального функционирования производственного оборудования, а также средств аварийной остановки;
исключение возникновения опасных ситуаций при полном или частичном прекращении энергоснабжения и последующем его восстановлении, а также повреждении цепи управления энергоснабжением (самопроизвольного пуска при восстановлении энергоснабжения, невыполнение уже выданной команды на остановку, падение и выбрасывание подвижных частей производственного оборудования и закрепленных на нем предметов);
осуществление защиты электрооборудования, электропроводки (в том числе заземления) от механических воздействий, грызунов и насекомых, проникновения растворителей, выполнение соединений проводов и кабелей в соединительных коробках, внутри корпусов электротехнических изделий, аппаратов, машин;
исключение контакта горячих частей оборудования с открытыми частями кожных покровов работающих, с пожаровзрывоопасными веществами, если контакт может явиться причиной ожога, пожара или взрыва;
соответствие размеров проходов и проездов нормативным требованиям;
соответствующее расположение и исполнение средств управления (в т.ч. средств аварийной установки) для транспортных средств;
безопасность трасс транспортных средств, оснащение их средствами защиты и знаками безопасности;
наличие инструкций по охране труда и соответствие их нормативным документам;
наличие и соответствие нормативным требованиям ручного инструмента и приспособлений.
Оценка травмобезопасности рабочего места оформляется соответствующим протоколом. Краткие выводы результатов оценки травмобезопасности рабочего места вносятся и в Карту аттестации рабочих мест по условиям труда.
Оценка обеспеченности работников средствами индивидуальной защиты
По каждому рабочему месту определяется обеспеченность работников средствами индивидуальной защиты, а также эффективность этих средств. Оценка обеспеченности работников средствами индивидуальной защиты осуществляется посредством сопоставления фактически выданных средств с Типовыми отраслевыми нормами бесплатной выдачи рабочим и служащим специальной одежды, специальной обуви и других средств индивидуальной защиты и другими нормативными документами.
При оценке обеспеченности работников средствами индивидуальной защиты одновременно производится оценка соответствия выданных средств индивидуальной защиты фактическому состоянию условий труда на рабочем месте, а также производится контроль их качества. Эффективность средств индивидуальной защиты должна подтверждаться сертификатами соответствия.
Оценка обеспечения работников средствами индивидуальной защиты оформляется протоколом.
Оценка фактического состояния условий труда на рабочих местах.
Оценка фактического состояния условий труда на рабочем месте состоит из оценок:
по степени вредности и опасности;
по степени травмобезопасности;
обеспеченности работников средствами индивидуальной защиты, а также эффективности этих средств.
Оценка фактического состояния условий труда по степени вредности и опасности производится в соответствии с Гигиеническими критериями оценки условий труда по показателям вредности и опасности факторов производственной среды, тяжести и напряженности трудового процесса на основе сопоставления результатов измерений всех опасных и вредных факторов производственной среды, тяжести и напряженности трудового процесса с установленными для них гигиеническими нормативами. На базе таких сопоставлений определяется класс условий труда как для каждого фактора, так и для их комбинации и сочетания, а также для рабочего места в целом.
Отдельно по результатам оценки травмобезопасности рабочего места в соответствии с классификацией условий труда по травмобезопасности устанавливается класс опасности или дается заключение о полном соответствии рабочего места требованиям безопасности. Результаты оценки фактического состояния условий труда на рабочем месте заносятся в Карту аттестации рабочих мест по условиям труда, в которой аттестационной комиссией организации дается заключение о результатах аттестации.
В случаях, когда на рабочем месте фактические значения опасных и вредных производственных факторов превышают существующие нормы или требования по травмобезопасности и обеспеченности работников средствами индивидуальной защиты не соответствуют существующим нормам, условия труда на таком рабочем месте относятся к вредным и (или) опасным.
1.5 Оформление и реализация результатов аттестации рабочих мест по условиям труда
По результатам аттестации рабочих мест по условиям труда заполняются:
Ведомость рабочих мест и результатов их аттестации по условиям труда в подразделении, в которую включаются сведения об аттестуемых рабочих местах и условиях труда на них, количестве занятых в этих условиях работниках, обеспеченности их средствами индивидуальной защиты.
Сводная ведомость рабочих мест и результатов их аттестации по условиям труда в организации, где указывается количество рабочих мест по структурным подразделениям и в целом по организации, количество рабочих мест, на которых проведена аттестация с распределением их по классам условий труда, количество работников, занятых на рабочих местах, на которых проведена аттестация, сведения об обеспечении работников средствами индивидуальной защиты.
Результаты работы аттестационной комиссии организации оформляются протоколом аттестации рабочих мест по условиям труда.
К протоколу должны прилагаться:
карты аттестации рабочих мест по условиям труда;
ведомости рабочих мест и результатов их аттестации по условиям труда в подразделениях;
сводная ведомость рабочих мест и результатов их аттестации по условиям труда в организации;
план мероприятий по улучшению и оздоровлению условий труда в организации.
1.6 Разработка плана мероприятий по улучшению и оздоровлению условий труда в организации
По результатам аттестации рабочих мест по условиям труда аттестационной комиссией с учетом предложений, поступивших от подразделений организации, отдельных работников, разрабатывается план мероприятий по улучшению и оздоровлению условий труда в организации.
План должен предусматривать мероприятия по улучшению техники и технологии, применению средств индивидуальной и коллективной защиты, оздоровительные мероприятия, а также мероприятия по охране и организации труда.
В Плане указываются источники финансирования мероприятий, сроки их исполнения и исполнители. План должен предусматривать приведение всех рабочих мест в соответствие с требованиями по охране труда.
План подписывается председателем аттестационной комиссии, и после согласования с совместным комитетом (комиссией) по охране труда, профессиональными союзами утверждается руководителем организации и включается в коллективный договор.
По завершении работы по аттестации рабочих мест по условиям труда руководитель организации издает приказ, в котором дается оценка проведенной работы и утверждаются ее результаты. С учетом результатов аттестации рабочих мест по условиям труда аттестационная комиссия разрабатывает предложения о порядке подготовки подразделений организации к их сертификации на соответствие требованиям по охране труда и намечает мероприятия, конкретизирующие содержание такой подготовки.
Результаты аттестации рабочих мест по условиям труда являются основой для создания банка данных существующих условий труда на уровне организации, района, города, региона, республики. Информация о результатах аттестации рабочих мест доводится до сведения работников организации. Документы аттестации рабочих мест по условиям труда являются материалами строгой отчетности и подлежат хранению в течение 45 лет.
Контроль за условиями и охраной труда, качеством проведения аттестации рабочих мест по условиям труда, правильностью предоставления компенсаций за тяжелую работу и работу с вредными или опасными условиями труда, а также подготовка предложений об отнесении организаций к классу профессионального риска в соответствии с результатами сертификации работ по охране труда в организациях осуществляется государственной экспертизой условий труда и государственными экспертизами условий труда.
Раздел 2. Организация рабочих мест в финансовом отделе Управления экономики Харьковской областной администрации
Таблица 1
Фактически исполняемые обязанности начальника экономического отдела
| № п/п | Содержание исполняемых обязанностей | Экспертная оценка затрат рабочего времени в месяц, % |
| 1 | Должностные обязанности или виды деятельности, предусмотренные должностной инструкцией рабочего | 70 |
| 1.1 | Анализ деятельности предприятий всех форм собственности | 17,8 |
| 1.2 | Разработка основных направлений текущего социально-экономического развития территории района | 17,2 |
| 1.3 | Разработка основных направлений перспективного развития территории района | 15,1 |
| 1.4 | Контроль использования территории района | 19,9 |
| 2 | Другие обязанности, не предусмотренные должностной инструкцией | 30 |
| 2.1 | Помощь в рассмотрении и обобщении проектов и планов предприятий, связанных с перспективным развитием района | 13,7 |
| 2.2 | Анализ поступивших заявлений от населения | 6,3 |
| 2.3 | Подготовка планов работ отдела | 10,0 |
| Итого | 100 |
Проанализировав таблицу 1 можно сделать вывод, что начальник экономического отдела наиболее рационально использует свой труд, ответственно относится к исполнению своих обязанностей, поддерживает своих подчиненных дельными советами и помогает им в исполнении их обязанностей.
Таблица 2
Анализ распределения функциональных обязанностей в экономическом отделе
| Наименование функций, процедур, операций, которые исполняются в подразделении | Исполнители | ||||
| А | Б | В | Г | ||
| 1 | Анализ деятельности предприятий всех форм собственности | 28 | 60 | ||
| 2 | Разработка основных направлений текущего экономического развития территории района | 37 | 25 | ||
| 3 | Разработка основных направлений перспективного развития территории района | 37 | 77 | ||
| 4 | Привлечение субъектов предпринимательской деятельности к участию в социально-экономическом развитии района | 52 | 50 | ||
| 5 | Анализ использования территории района | 18 | |||
| 6 | Контроль использования территории района | 13 | |||
| 7 | Рассмотрение и обобщение проектов и планов предприятий, связанных с перспективным развитием района | 17 | |||
| 8 | Принятие и рассмотрение заявлений от населения | 45 | |||
| 9 | Построение планов работ отдела | 18 | |||
| 10 | Компьютерный набор текстов, заявлений, откликов | 67 | |||
| 11 | Разработка электронных таблиц | 75 | |||
| 10 | Итого, часов в месяц | 167 | 155 | 155 | 137 |
где, А – начальник отдела, Б – заместитель начальника отдела, В – главный специалист, Г – оператор компьютерного набора.
Проанализировав данную таблицу можно сделать выводы, что наибольшую часть обязанностей в этом отделе выполняет начальник отдела А. А наименьшую - главный специалист В.
Таблица 3
Карточка обработки фотографии рабочего дня (фактический и проектный баланс рабочего времени)
№п/п |
Наименование затрат времени | Усл. обозначения | Факт | План | Увеличение(+) сокращение(-), мин | ||
| мин | % | мин | % | ||||
| 1 | Подготовительно-завершальный | Тпз | 43,2 | 9 | 24 | 5 | +19,2 |
| 2 | Оперативная работа | Топ | 345,6 | 72 | 427,2 | 89 | - 81,6 |
| 3 | Непродуктивный труд | Тнп | 14,4 | 3 | 0 | 0 | +14,4 |
| 4 | Обслуживание рабочего места | Тобс | 24 | 5 | 19,2 | 4 | +4,8 |
| 5 | Перерывы, обусловленные недостатками в организации | Тпнт | 14,4 | 3 | 0 | 0 | +14,4 |
| 6 | Перерывы, связанные с нарушениями трудовой дисциплины | Тппд | 9,6 | 2 | 0 | 0 | +9,6 |
| 7 | Отдых и собственные потребности | Тво | 28,8 | 6 | 9,6 | 2 | +19,2 |
| Итого | 480 | 100 | 480 | 100 | |||
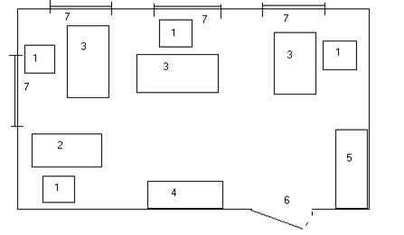
Планирование рабочих мест

Рис. 1 Существующее планирование рабочих мест
Условные обозначения:
1 – кресло; 2 – стол оператора компьютерного набора; 3 – письменный стол; 4 – шкаф для одежды; 5 – шкаф для документов; 6 – входная дверь; 7 – окно.
Обстановка кабинета играет очень важную роль для психологического состояния работника. В кабинете должно быть достаточно свободного места как для свободного доступа к шкафам, столам, сейфу так и для осуществления беспрепятственного движения по кабинету.
В данном подразделении обстановка кабинета соответствует стандартам, естественное освещение попадает в кабинет для достаточного освещения, также в кабинете присутствуют источники искусственного освещения.
Для государственных служащих также очень важен интерьер кабинета, температура воздуха, качество освещения как естественного, так и искусственного.
Таблица 4
Рекомендованные параметры при рабочей позе «сидя»
| № п/п | Наименование параметра | Значение, мм |
| 1. | Наибольшая высота рабочей поверхности | 1200 |
| 2. | Высота обычного рабочего столу | 700-750 |
| 3. | Наименьшая высота стола | 680 |
| 4. | Высота стула | 400-430 |
| Ь. | Высота пространства для ног (от пола до нижней поверхности стола) | 600 |
| 6. | Ширина зоны для ног | 530 |
| 7. | Нормальная рабочая зона в горизонтальной площади движения руками (от центра стула) | 550 |
| 8. | Угол зрения по вертикали | 38° ±6° |
Рабочее место делится на рабочую зону (зону досягаемости) и вспомогательный простор.
Зона досягаемости – это расстояние в трехмерном пространстве, в рамках которого работник может делать работу не перемещаясь. Нормативные размерные соотношения при позе "сидя" показаны в таблице 4.
Техническое оснащение рабочих мест в подразделении
Для эффективной работы также важно техническое оснащение рабочего места.
В таблице 5 показан уровень оснащения рабочих мест экономического отдела.
Таблица 5
Оснащение рабочих мест финансового отдела
| № п/п | Наименование оборудования | Количество |
| 1 | Оснащение рабочего места оператора компьютерного набора: | |
1.1 1.2 1.3 1.4 1.5 1.6 |
компьютер принтер сканер калькулятор настольная лампа телефон |
1 1 1 1 1 1 |
| 2 | Оснащение рабочего места начальника отдела: | |
2.1 2.2 2.3 2.4 2.5 |
телефон внутренний телефон-факс настольная лампа калькулятор приемник |
1 1 1 1 1 |
| 3 | Оснащение рабочего места заместителя начальника | |
| 3.1 | телефон | 1 |
| 3.2 | калькулятор | 1 |
| 3.3 | настольная лампа | 1 |
| 4 | Оснащение рабочего места главного специалиста | |
| 4.1 | калькулятор | 1 |
| 4.2 | настольная лампа | 1 |
С таблицы можно сделать вывод, что уровень технического оснащения данного подразделения является достаточным для эффективной работы и главного специалиста и оператора компьютерного набора.
Интерьер рабочего помещения
Интерьер – архитектурное и художественное оформление внутренних помещений сооружения. Главное требование к оформлению интерьера рабочего места менеджера – это объемно-пространственное объединение всех его составляющих: планирования и архитектурно-строительного оформления комнаты, рабочей мебели, другого оснащения.
Особенное значение имеют характеристики и цветовая гамма облицовочных материалов служебного помещения, которые обязаны выполнять физиологическую, психологическую и эстетическую функции.
В данном подразделении имеют место бежевые тона облицовочных материалов и успокаивающая цветовая гамма, которая приятна для глаз и расслабляет психологически. Данная обстановка располагает служащих к работе.
Климатические условия труда
характеристика освещения: в отделе имеется 3 окна площадью по 1,5 м2 и 1 окно 2,5 м2 , 4 настольные лампы. Такого освещения достаточно для плодотворной работы всех работников отдела;
уровень шума: в отделе стоят окна из шумопоглощающего материала, основной источник шума – автотранспорт, так как здание находится в центре города;
организация воздухообмена: помещения проветриваются регулярно, существует вытяжная вентиляция, помещение изолированно от источников загрязнения;
режим температуры в отделе – 22-23°С, влажность – 40-60%, это наиболее лучшая температура и влажность в административных помещениях.
Выводы
С рассмотренной работы видно что:
подготовка к аттестации рабочих мест заключается в составлении перечня всех рабочих мест и выявления опасных и вредных факторов производственной среды, подлежащих инструментальной оценке, с целью определения фактических значений их параметров;
для проведения аттестации издается приказ, в соответствии с которым создается в организации аттестационная комиссия, назначаются председатель и члены комиссии, а также ответственный за составление, ведение и хранение документации по аттестации рабочих мест, определяются сроки и графики проведения работ;
при аттестации рабочего места оценке подлежат все имеющиеся на рабочем месте опасные и вредные производственные факторы (физические, химические, биологические), тяжесть и напряженность трудового процесса. Уровни опасных и вредных производственных факторов определяются на основе инструментальных измерений, аккредитованными в установленном порядке специализированными лабораториями. Применяемые средства измерений должны быть метрологически аттестованы и проходить государственную поверку в установленные сроки. Инструментальные измерения оформляются протоколами, форма которых устанавливается нормативными документами, определяющими порядок проведения измерений уровней показателей того или иного фактора. Аналогичными протоколами оформляются тяжесть и напряженность трудового процесса.
Установлено четыре класса условий труда: 1-й класс – оптимальные условия труда, 2-й – допустимые, 3-й – вредные и 4-й – опасные. При отнесении условий труда к 1-му и 2-му классу рабочее место признается аттестованным, при отнесении к 3-му классу (вредному) рабочее место признается условно аттестованным, а при отнесении условий труда к 4-му классу (опасному) рабочее место признается неаттестованным и подлежит незамедлительному переоснащению или ликвидации.
По результатам аттестации заполняется ведомость рабочих мест по подразделениям и сводная ведомость рабочих мест и результатов их аттестации по условиям труда по организации. Итоги аттестации оформляются протоколом, к которому прилагаются карты аттестации рабочих мест, ведомости и план мероприятий по улучшению и оздоровлению условий труда в организации.
Список использованной литературы
1. Колот А.М. Мотивація, стимулювання й оцінка персоналу. – К.: КНЕУ, 1998.
2. Маскон М.Х., Альберт М., Хедоури Ф. Основы менеджмента. – М.: Дело, 1992.
3. Сладкевич В.П. Мотивационный менеджмент: Курс лекций. – К.: МАУП, 2001.
4. Подоровская М.М. Организация труда: Конспект лекций. – К.: МАУП, 2001.
5. Дячун О.В. Організація, нормування та оплата праці: Навч. посібник. – Львів, 2001.
6. Любимов Л.Л., Раннева Н.А. Основы экономических знаний. М.: Вита-Пресс, 1997.
7. Фишер С., Дорнбуш Р., Шмалензи Р. Экономика. М.: Дело. 1998.
8. Официальный сайт облгосадминистрации: www.kharkivoda.gov.ua
9. www. rumbler.ru
10. www. ukr.net
Похожие рефераты:
Литература - Социальная медицина (основы социальной медицины и управления)
Основы безопасности жизнедеятельности
Повышение эффективности работы предприятия путем его реорганизации (на примере ОАО "Горизонт")
Аттестация рабочих мест по условиям труда
Анализ деятельности топливно-энергетического комплекса
Организация брокерской деятельности на рынке недвижимости г. Тюмени
Социально-культурная деятельность
Организация, управление, надзор и контроль в области охраны труда
Охрана труда по Российскому трудовому праву
Правовые основы охраны труда в Российской Федерации
Аттестация в трудовом праве России
Роль социального партнерства в решении проблем охраны труда»
Основы стандартизации, метрологии и сертификации
Детерминация и предупреждение преступности среди персонала органов внутренних дел Украины