| Скачать .docx | Скачать .pdf |
Реферат: Организация кафе на 75 мест
ВВЕДЕНИЕ
Массовое питание играет важную роль в жизни общества. Оно наиболее полно удовлетворяет потребности людей в питании. Предприятия питания выполняют такие функции, как производство, реализация и организация потребления кулинарной продукции населением в специально организованных местах. Предприятия питания осуществляют самостоятельную хозяйственную деятельность и в этом отношении ни отличаются от других предприятий. Питание населения организуется в основном небольшими частными предприятиями.
Питание является необходимой жизненной потребностью большинства рабочих, служащих, учащихся и значительного количества других групп населения страны.
Индустрия массового питания находится в процессе развития - растет как число заведений, так и качество обслуживания.
С каждым годом массовое питание все больше внедряется в быт широких масс населения, способствует решению многих социально-экономических проблем; помогает лучше использовать продовольственные ресурсы страны, своевременно предоставляет населению качественное питание, имеющего решающего значения для сохранения здоровья, роста производительности труда, повышению качества учебы; позволяет более эффективно использовать свободное время, что в наши дни является немало важным фактором для населения. Сеть предприятий питания, которой используется население, представлена различными типами: столовыми, ресторанами, кафе, закусочными, барами и др. необходимость различных типов определяется: разнохарактерностью спроса населения на различные виды питания (завтраки, обеды, ужины, промежуточные приемы пищи, бизнес - ленчи); спецификой обслуживания людей и во время коротких обеденных перерывов, и во время отдыха; необходимостью обслуживания взрослого населения и детей, здоровых и нуждающихся в лечебном питании. Спрос на продукцию и услуги массового питания непрерывно изменяется и растет.
В своей курсовой работе я рассмотрю организацию работы кафе «Встреча» на 100 посадочных мест, проанализирую организацию производства готовой продукции, сделаю выводы и предположения по организации работы кафе.
Сводная продуктовая ведомость
| Наименование продуктов |
Итого продуктов, кг. |
Нормативные документы |
| 1. Мясо-рыбные |
||
| Говядина |
36,0 |
ГОСТ 779-55 |
| Баранина |
3,49 |
ГОСТ 7724-77 |
| Печень говяжья |
0,51 |
ГОСТ 4954-73 |
| Судак |
18,18 |
ГОСТ 1368 |
| Сельдь |
1,1 |
ГОСТ 814-96 |
| Севрюга |
0,795 |
ДСТУ 7449 - 96 |
| Окунь морской |
1,12 |
ГОСТ 1 8173 -72Е |
| Курица |
19,1 |
ГОСТ 77022.0 - 95 |
| Головизна |
1,36 |
ТУ10.02.01-75-88 |
| Свинина |
15,4 |
ГОСТ7724-77 |
| 2.Молочно - жировое и гастрономия |
||
| Сметана |
1,58 |
ТУ 10.02.789.09-89 |
| Сливки 35% жирности |
10,85 |
ГОСТ 1901-90 |
| Молоко цельное сгущенное |
4,31 |
ДСТУ 2450 - 94 |
| Молоко |
14,81 |
ДСТУ 266 1-94 |
| Мороженое плодово-ягодное |
4,0 |
ТУУ- 46.41. 096 -96 |
| Маргарин столовый |
2,6 |
ГОСТ 240 -85 |
| Масло растительное |
1,18 |
ГОСТ 18848-73 |
| Масло сливочное |
9,57 |
ГОСТ 6857 - 82 |
| Творог |
4,077 |
ГОСТ 814-96 |
| Сыр российский |
0,98 |
ДСТУ 3234 -95 |
| Майонез |
2,25 |
ГОСТ 30004.1 -9 |
| Яйца |
5,68 |
ГОСТ 27583 - 88 |
| Сосиски |
3,85 |
ГОСТ 125 1-89 |
| Шпик |
0,052 |
ГОСТ 16594-85 |
| Жир животный топленый пищевой |
1,1 |
ГОСТ 25292 - 82 |
| Кулинарный жир |
3,8 |
ГОСТ25292-82Е |
| 3. Овощи, зелень |
||
| Картофель |
13,76 |
ГОСТ 26545-85 |
| Салат |
0,42 |
ТУ 305-89 |
| Свекла |
3,58 |
ГОСТ 26766-85 |
| Лук зеленый |
0,37 |
ГОСТ 295 - 89 |
| Лук репчатый |
16 |
ДСТУ 3234 -95 |
| Лук порей |
0,4 |
ТУ295-89 |
| Грибы белые свежие |
0,67 |
ТУУ61.907-97 |
| Каперсы |
0,16 |
Сертификат |
| Маслины |
0,53 |
ГОСТ7180-73 |
| Фасоль овощная свежая |
0,85 |
ДСТУ-29.2-91 |
| Петрушка (зелень) |
1,43 |
РСТ 370-77 |
| Петрушка (корень) |
0,64 |
ДСТУ 32-89 |
| Помидоры свежие |
0,58 |
ДСТУ 3246 - 95 |
| Морковь |
5,37 |
ДСТУ 286-91 |
| Огурцы свежие |
1,5 |
ДСТУ 3247-95 |
| Сельдерей (корень) |
0,18 |
ДСТУ 303-89 |
| Капуста белокачанная |
20,84 |
ГОСТ 26768-85 |
| Капуста квашенная |
0,41 |
Сертификат |
| Огурцы соленые |
3,67 |
ГОСТ 7 180 -73 |
| Горох |
1,89 |
ГОСТ 4426 -6 |
| Зеленый горошек консервированный |
0,3 |
ДСТУ 15842-90Е |
| 4. Фрукты, напитки |
||
| Лимон |
0,75 |
ГОСТ4429-82 |
| Персики |
0,6 |
ГОСТ 16450 -70 |
| Яблоки |
7,26 |
ГОСТ 16270 -70 |
| Миндаль очищенный |
0,24 |
ТУУ 01. 1-19043940-001-2001 |
| Бананы |
6,75 |
ГОСТ 2 1833-76 |
| Арбуз |
6,75 |
ГОСТ 16831-71 |
| Клюква |
0,31 |
ГОСТ 2 1920-76 |
| Вишня |
0,18 |
ГОСТ 21921-76 |
| Изюм |
0,2 |
ГОСТ 6828 -89 |
| Варенье |
1,8 |
ГОСТ 28402 - 89 |
| Вино виноградное десертное |
1 |
ГОСТ 26766 - 85 |
| 5. Сухое и сыпучие |
||
| Ванилин |
0,00273 |
ДСТУ 19342-90 |
| Рафинадная пудра |
1,1 |
ДСТУ 3233 - 95 |
| Лимонная кислота |
0,0018 |
ГОСТ 908 - 79Е |
| Сахар |
12,74 |
ДСТУ 23 16 -93 |
| Сахарная пудра |
1,4 |
ДСТУ 2316 -93 |
| Кофе натуральный |
3,49 |
ГОСТ 6805 - 88 |
| Какао-порошок |
0,17 |
ГОСТ 1822 -97 |
| Шоколад |
0,95 |
ГОСТ 243 92 -89 |
| Чай высшего сорта |
0,67 |
ГОСТ 1938 -90 |
| Мука пшеничная |
3,61 |
ГСТУ46. 004-99 |
| Желатин |
0,45 |
ГОСТ 1 1293 - 89 |
| Соль |
0,025 |
ГОСТ 17594 -81 |
| Дрожжи (прессованные) |
0,072 |
ДСТУ 28649 - 90 |
| Хлеб пшеничный |
2,45 |
ГОСТ 28808 -90 |
| Томат-пюре |
4,35 |
ДСТУ 2418-94 |
| Уксус 3%-ный |
0,55 |
ДСТУ 2450-94 |
| Крупа рисовая |
0,28 |
ГОСТ 6292-93 |
| Сухари панировочные |
0,13 |
ГОСТ 8494-96 |
| Макаронные изделия |
6,36 |
ДСТУ 42.22.075 - 95 |
| Крупа манная |
0,68 |
ГОСТ70.22-54 |
2.2 Характеристика предприятия
Кафе «Встреча» это предприятие реализующее горячие и холодные блюда и напитки, кисломолочные продукты, хлебобулочные и мучные кондитерские изделия, блюда несложного приготовления в ограниченном ассортименте. Я выбрал данный тип предприятия т.к. предприятие находится в здании освободившемся после капитального ремонта, а напротив находится новый торговый комплекс. В данном месте нет предприятий подобного типа и за счёт небольших цен блюд быстрого приготовления учитывая большую проходимость т.к. наше кафе находится на оживлённой улице из чего мы следуем что наше кафе будет рентабельным.
Прежде всего, кафе должно иметь в своем арсенале отличное меню, в котором имеется разнообразный выбор вкусных, аппетитных и довольно интересных, оригинальных блюд. В не зависимости от того, какую кухню предлагает кафе, еда должна отвечать требованиям, которые установлены стандартами качества. И что не маловажно, оформлены блюда, должны быть симпатично и при этом, поданы посетителю как можно экстравагантней. Поначалу, привлечь клиентов можно именно ассортиментом напитков и блюд.
По характеру организации производства кафе относится к предприятиям с полным технологическим процессом, то есть обработку продуктов начинают с приёма и хранения сырья и заканчивают реализацией готовой продукции.
Для этого в кафе имеются соответствующие цеха: овощной, мясо - рыбный, горячий, холодный, кондитерский.
Так же, людей очень привлекает вежливость и комфорт. Как показывает статистика, большинство людей, постоянно посещающих кафе, рестораны, бары останавливают свой выбор не на том предприятии, где кухня лучше, а на том, в котором лучше общая атмосфера и выше уровень сервиса.
Даже самому угрюмому посетителю понравится приятное обхождение работников. Внимательность, скорость обслуживания и предупредительность обслуживающего персонала, могут привлечь большое количество посетителей, даже в период начала работы предприятия.
А почувствовав атмосферу комфорта и уюта, пришедшие первый раз посетители, невольно захотят прийти в мое кафе еще раз и возможно даже сделают его своим излюбленным местом для проведения своего досуга.
Так как, люди приходят в кафе не только поесть, но и приятно провести свободное время, то наличие в нем культурно-развлекательных программ, всегда будет притягивать посетителей.
Конкурентное преимущество кафе заключается в оригинальном оформлении помещения и предоставлении дополнительных услуг.
Режим работы предприятия с 9-00 до 22-00. При разработке режима работы кафе учитывался его тип, месторасположение и состав потенциального контингента потребителей.
Организация продовольственного снабжения
Рациональная организация снабжения предприятия общественного питания сырьем, полуфабрикатами, продуктами и материально-техническими средствами является важнейшей предпосылкой эффективной и ритмичной работы производства.
К организации и продовольственному снабжению предприятия предъявляются следующие требования: обеспечение широкого ассортимента товаров в достаточном количестве и надлежащего качества в течении года; своевременность и ритмичность завоза товаров; оптимальный выбор поставщиков и своевременное заключение с ними договоров на поставку товаров.
Для эффективной и ритмичной работы предприятия необходимо организовать завоз товаров из разных источников.
Часто экспедиторы закупают продукцию на рынках, оптовых рынках, в магазинах
Многие виды продуктов поступают в предприятия через посредников – оптовые базы:
·Оптовые базы и холодильники, снабжающие мясом, маслом, рыбными и гастрономическими продуктами;
·Оптовые базы, снабжающие бакалейной продукцией;
·Оптовые плодоовощные базы.
Оптовые базы закупают товары у предприятий-изготовителей для последующей продажи розничным торговым предприятиям и предприятиям общественного питания.
Выходные базы размещаются непосредственно на предприятии-изготовителе. Их функция – организация процесса товародвижения из пунктов производства в пункты потребления.
Торгово-закупочные базы располагаются в районах, где много предприятий-изготовителей накапливают товары для продажи их в места потребления.
Торговые базы находятся в местах потребления. Они закупают товары у изготовителей, выходных и торгово-закупочных баз и других посредников и продают их розничным предприятиям и предприятиям питания.
Способы поставок:
1.Централизованный (транспорт поставщика).
2.Децентрализованный (транспорт заказчика).
Со способами доставки тесно связаны и маршруты завоза продуктов. При децентрализованной доставке продукты завозятся на предприятие только линейными (маятниковыми) маршрутами, а при централизованной завоз продуктов осуществляется преимущественно по кольцевым маршрутам, т.е. на одной машине товар доставляется на несколько предприятий по кольцу в соответствии с графиком и разработанным маршрутом. Для крупных предприятий при этом применяются и маятниковые рейсы. Кольцевой маршрут позволяет более полно использовать грузоподъемность транспорта, сократить транспортные расходы, ускорить возврат тары.
Важную роль в товародвижении выполняет транспорт. Транспортные организации в процессе передвижения товаров должны обеспечить:
1. Сохранность груза при транспортировке.
2. Своевременность доставки груза.
3. Соблюдение правил загрузки и транспортирование груза.
4. Эффективное использование транспортных средств.
Приемка товаров в предприятии питания является важной составной частью технологического процесса. Приемку проводят в два этапа.
Продукты получают по количеству и по качеству. Первый этап – предварительный. Приемка продуктов по количеству производится по товарно-транспортным накладным, счетам-фактурам, путем пересчета тарных мест, взвешивании. Если товар поступил в исправной таре, кроме проверки веса брутто предприятие имеет право потребовать вскрытия тары и проверки веса нетто. Второй этап – окончательная приемка. Масса нетто и количество товарных единиц проверяют одновременно со вскрытием тары. Масса тары проверяется одновременно с приемкой товара.
При обнаружении недостачи составляется односторонний акт о выявленной недостаче, этот товар хранится отдельно, обеспечивается его сохранность и вызывается поставщик. После окончательной приемки составляется акт в 3 экземплярах.
Одновременно с приемкой товаров по количеству товар принимается также и по качеству.
Приемка товаров по качеству производится органолептическим свойствам (по виду, цвету, запаху, вкусу). При этом проверяют соответствие стандартам, ТУ. К транспортным документам прикладываются сертификаты или удостоверения качества.
В соответствии с законом «О защите прав потребителей» и санитарными нормами и правилами товар должен быть безопасным для здоровья потребителей.
3.3 Оперативное планирование
Сущность оперативного планирования заключается в составлении программы предприятия. Вопросами планирования производственной программы занимаются заведующий производством, бухгалтер.
Оперативное планирование работы производства включает в себя следующие элементы: составление планового меню на декаду (цикличное меню), на его основе разработка плана-меню, отражающего производственную программу предприятия; составление и утверждение меню; расчет потребности в продуктах для приготовления блюд, предусмотренных планом меню, и составления требования на сырье; оформление требования-накладной на отпуск продуктов из кладовой на производстве и получение сырья; распределение сырья между цехами и определение заданий поварам в соответствии с планом-меню.
Первым этапом оперативного планирования является составление планового меню.
В плановом меню указывается ассортимент и количество блюд каждого наименования, которые могут быть приготовлены на данном предприятии по дням декады. При составлении плана-меню необходимо учитывать наличие сырья в кладовых. Блюда и закуски, включаемые в меню, должны быть разнообразными как по видам сырья, так и по способам тепловой обработки; учитываются также квалификационный состав работников, мощность производства и оснащенность его торгово-технологическим оборудованием, а также трудоёмкость блюд, т.е. затраты времени на приготовление единицы продукции. Утверждая план-меню, директор и заведующий производством несут ответственность за то, чтобы блюда, включаемые в меню, были в продаже в течение всего дня торговли предприятия.
Меню
Меню – это перечень блюд, закусок, кулинарных изделий, напитков
расположенных в определенном порядке.
Типы меню отличаются друг от друга вариантами подбора предлагаемых блюд и структурой цен. Данный ресторан использует такие виды меню, как:
Меню «а ля карт». Этот тип меню предлагает выбор в каждом виде блюд, причем каждое блюдо оценивается отдельно. Блюда из такого меню, выбранные посетителями, готовятся на заказ.
Меню «Табльдот». Этот тип меню предлагает небольшой ассортимент блюд и оценивается общей суммой в расчете на одного человека за все меню.
Типичный пример такого меню – «деловой завтрак» (бизнес-ланч). Посетитель платит установленную цену за весь обед или завтрак.
Меню типа табльдот очень популярны в праздничные дни (Новый год).
Банкетное меню. Меню банкета составляется по желанию заказчиков и оговаривается заранее. Оно зависит от традиций, финансовой возможности заказчика, возможностей предприятия. Меню составляется заведующим производством, метрдотелем и передается калькулятору для определения продажных цен блюд. Утверждается меню директором предприятия.
Меню составляют в зависимости от характера банкета заранее за 10 – 12 дней до торжества в соответствии с пожеланиями заказчика.
Детское меню разрабатывается с учетом возрастных особенностей и вкусовых предпочтений детей, блюда отличаются оригинальностью оформления и необычными названиями.
Характеристика холодного цеха.
Холодные цехи организуются на предприятиях с цеховой структурой производства.
Холодные цехи предназначены для приготовления, порционирования и оформления холодных блюд и закусок. Ассортимент холодных блюд зависит от типа предприятия, его класса. В ассортимент продукции холодного цеха входят холодные закуски, гастрономические изделия (мясные, рыбные), холодные блюда (отварные, жареные, фаршированные, заливные и др.), молочнокислая продукция, а также холодные сладкие блюда (желе, муссы, самбуки, кисели, компоты и др.), холодные напитки, холодные супы.
Производственная программа холодного цеха составляется на основании ассортимента блюд, реализуемых через торговый зал, магазины кулинарии, а также отправляемых в буфеты и другие филиалы.
Холодный цех располагается, как правило, в одном из наиболее светлых помещений с окнами, выходящими на север или на северо-запад. При планировке цеха необходимо предусматривать удобную связь с горячим цехом, где производится тепловая обработка продуктов, необходимых для приготовления холодных блюд, а также с раздачей и моечной столовой посуды.
При организации холодного цеха необходимо учитывать его особенности: продукция цеха после изготовления и порционирования не подвергается вторично тепловой обработке, поэтому необходимо строго соблюдать санитарные правила при организации производственного процесса, а поварам - правила личной гигиены; холодные блюда должны изготовляться в таком количестве, которое может быть реализовано в короткий срок. Салаты и винегреты в незаправленном виде хранят в холодильных шкафах при температуре 2-6о С не более 6 часов. Заправлять салаты и винегреты следует непосредственно перед отпуском, не допускаются к реализации изделия, оставшиеся от предыдущего дня: салаты, винегреты, студни, заливные блюда и другие особо скоропортящиеся холодные блюда, а также компоты и напитки собственного производства.
Холодные блюда отпускаются после охлаждения в холодильных шкафах и должны иметь температуру 10-14о С, поэтому в цехе предусмотрено достаточное количество холодильного оборудования.
Учитывая, что в холодном цехе изготовляется продукция из продуктов, прошедших тепловую обработку, и из продуктов без дополнительной обработки, необходимо четко разграничивать производство блюд из сырых и вареных овощей, из рыбы и мяса. В небольших предприятиях организуются универсальные рабочие места, на которых последовательно готовят холодные блюда в соответствии с производственной программой, в крупных холодных цехах организуются специализированные рабочие места.
Организация труда. Режим работы холодного цеха устанавливается в зависимости от типа предприятия и режима его работы. При продолжительности работы предприятия 11 и более часов работники цеха работают по ступенчатому, двухбригадному или комбинированному графику. Общее руководство цехом осуществляет бригадир или ответственный работник из поваров IV или V разряда.
Бригадир организует работу по выполнению производственной программы в соответствии с планом-меню. С вечера приготавливают трудоемкие блюда: студни, заливные блюда, кисели, компоты и др.
Время на подготовку работы в начале рабочего дня используется для подбора посуды, инвентаря, получения продуктов в соответствии с производственным заданием. При хорошей организации производства время на подготовку работы должно составлять не более 20 минут. Повара получают задания в соответствии с их квалификацией. Бригадир следит за соблюдением правит технологии приготовления холодных и сладких блюд, графиком их выпуска, чтобы исключить перебои в обслуживании посетителей.
В холодных цехах с большим объемом работы осуществляется пооперационное разделение труда с учетом квалификации поваров.
Повара III разряда занимаются подготовкой продуктов, входящих в состав блюд (варкой овощей, варкой или жареньем мясных и рыбных полуфабрикатов, нарезкой овощей обработкой сельди).
Повара IV разряда осуществляют приготовление и оформлением холодных блюд массового спроса (салаты, овощные, рыбные, мясные, винегреты, студни, рыба под маринадом и др.), сладких блюд.
Повара V разряда осуществляют приготовление и оформление сложных блюд (заливных, фаршированной рыбы, галантина, ассорти рыбного и мясного желе, муссов и др.).
По окончании рабочей смены повара отчитываются за проделанную работу, а бригадир или ответственный повар составляет отчет о реализации блюд за день в торговый зал, буфеты и филиалы.
Производственная программа холодного цеха
Производственная программа холодного цеха определяется количеством и ассортиментом реализуемых холодных блюд и закусок, холодных сладких блюд и холодных супов по сезону.
В холодном цеху выделяются следующие технологические линии.
Линии:
1. по приготовлению холодных блюд и закусок;
2. приготовлению холодных сладких блюд.
Участки:
1. по приготовлению холодных сладких блюд, желированных и не желированных сладких супов по сезону;
2. по приготовлению холодных закусок из мясных гастрономических продуктов;
3. по приготовлению салатов, винегретов, бутербродов.
Рабочее место поваров в цехе располагается по ходу технологического процесса.
На рабочем месте для приготовления салатов и винегретов используются ванны или стол со встроенной ванной для приготовления свежих огурцов, помидоров, зелени. Нарезают сырые и вареные овощи на разных производственных столах, применяя разделочные доски с маркировкой «ОС» или «ОВ» и ножи поварской тройки. Соединяют компоненты, заправляют и перемешивают салат в лотках, использую деревянные веселки или металлические лопатки. При приготовлении больших партий салата эти операции осуществляются в наплитных котлах или с помощью механизма к универсальному приводу для перемешивания салатов и винегретов.
Нарезка гастрономических продуктов. Рабочее место для порционирования и оформления блюд из мясных рыбных продуктов организуют т.ж., как и для оформления салатов. На рабочем месте должны быть производственные столы со средствами малых механизаций, разделочные дочки, гастрономические ножи. Для контроля за массой порций гастрономических продуктов предусматривают весы.
Приготовление заливных блюд. Нарезанные отварные мясные или рыбные продукты на производственных столах, оборудованных весами для взвешивания порций продуктов, ножами поварской тройки, разделочными досками с маркировкой «МВ» или «РВ», лотками для укладки взвешенных продуктов. Перед оформлением заливных блюд подготавливают продукты и украшают их, использую следующий инвентарь: ножи для карбования и фигурной нарезки овощей, выемки различной формы и др. Порции мяса или рыбы укладывают в подготовленные лотки, блюда или формы; украшают продуктами, находящимися в охлаждаемой горке; заливают ланспигом, используя разливательную ложку, и помещают в охлаждаемые емкости стола или холодильные шкаф. Если заливные блюда приготавливают в лотках, то при отпуске их перекладывают в овальные блюда с помощью специальных лоток.
Приготовление бутербродов. Для нарезки хлеба и гастрономических продуктов на порции используется электрическая хлеборезка и машина для нарезки гастрономических продуктов, которые устанавливаются на секционный модулированный стол. При небольшом количестве реализуемых бутербродов хлеб и гастрономические продукты нарезают вручную хлебными, гастрономическими и сырными ножами, используют приспособления для резки яиц. Продукты нарезают на порции для бутербродов не ранее, чем за 30 - 40 мин до реализации и хранят в холодильных шкафах. Для придания сливочному маслу особого украшения в виде розочек, шариков, лепестков используют специальный формовочный скребок.
На рабочем месте повара для приготовления сладких блюд устанавливают ванну, производственный стол с охлаждаемым шкафом, весы и используют различную посуду и инвентарь.
Для притирания фруктов, ягод, взбивания муссов, кремов, самбуков используют универсальный привод или кухонный процессор.
В холодном цеху используют различные виды оборудования:
- механическое - привод универсальный, слайсеры, кухонные процессоры;
- холодильное - холодильные шкафы, низкотемпературные прилавки, морозильные прилавки, производственные столы с охлаждаемыми шкафами;
- немеханическое - производственные столы, производственные стеллажи, моечные ванны.
Инструмент, инвентарь:
- ножи гастрономические;
- ножи для фигурной нарезки масла;
- томаторезки ручные;
- яйцерезки;
- приспособления для нарезки сыра;
- ручной делитель масла;
- доски разделочные;
- соковыжималки ручные;
- горка для гарниров;
- лопатка для раскладывания порционных блюд;
- лопатка-нож для раскладывания заливных блюд;
- вилки производственные для раскладывания заливных блюд.
График загрузки торгового зала
Согласно учебнику Никуленковой «Проектирование предприятий общественного питания» приложению 2 таблице 1 оборачиваемость места за расчет количества посетителей торгового зала рассчитаем число посетителей, обслуживаемых за каждый час работы зала по формуле:
Nчас = Р * n * d / 100,
где Р - число мест в зале, n- оборачиваемость мест за 1 час, d -коэффициент загрузки зала за данный час.
N 8-9 = 80*3*30/100 = 72
N 9-10 = 80*3*20/100 = 48
N 10-11 = 80*3*20/100 = 48
N 11-12 = 80*2*40/100 = 64
N 12-13 = 80*2*70/100 = 112
N 13-14 = 80*2*90/100 = 144
N 14-15 = 80*2*80/100 = 128
N 15-16 = 80*2*40/100 = 64
N 17-18 = 80*2*30/100 = 48
N 18-19 = 80*2*40/100 = 64
N 19-20 = 80*2*20/100 = 32,
Итого: 824 человека.
Число посетителей за день N определяют как сумму числа посетителей за каждый час работы обеденного зала.
| Часы работы |
Оборачиваемость места за час, раз |
Средний % загрузки зала |
Количество питающихся человек, чел. |
| 9-10 10-11 11-12 12-13 13-14 14-15 15-16 16-17 17-18 18-19 19-20 20-21 21-22 |
1,5 1,5 1,5 1,5 1,5 1,5 1,5 1,5 1,5 0,5 0,5 0,5 0,5 |
30 30 40 80 90 80 50 40 30 60 80 80 90 |
27 27 36 72 81 72 45 36 27 18 24 24 27 |
| Итого за день: |
516 |
Подбор инструментов и инвентаря
Соответственно приказу Министерства торговли СССР от 9.11.73 № 38 «Нормы оснащения предприятий общественного питания посудой, столовыми приборами, мебелью и кухонным инвентарем» подбираем следующее немеханическое оборудование:
| № пп |
Наименование |
Кол-во Шт. |
| 1 |
Нож филейный |
2 |
| 2 |
Нож гастрономический (колбасный) |
2 |
| 3 |
Нож для нарезки ветчины |
1 |
| 4 |
Нож с двумя ручками для нарезки масла и сыра |
1 |
| 5 |
Нож кухонный |
5 |
| 6 |
Нож с одной ручкой для нарезки сыра и масла |
1 |
| 7 |
Нож для фигурной нарезки масла |
1 |
| 8 |
Нож- вилка |
1 |
| 9 |
Томаторезка ручная |
1 |
| 10 |
Яйцерезка |
1 |
| 11 |
Скребок для сливочного масла |
1 |
| 12 |
Доска разделочная |
6 |
| 13 |
Соковыжималка ручная |
1 |
| 14 |
Лопатка- нож для заливных блюд |
1 |
| 15 |
Горка для гарниров |
2 |
| 16 |
Лотки для заливных блюд |
10 |
| 17 |
Формы для паштетов, заливных и сладких блюд |
80 |
| 18 |
Лопатки для раскладывания порционных блюд |
3 |
| 19 |
Лопатки-ножи для раскладывания заливных блюд |
3 |
| Приборы для раскладывания блюд: |
||
| 20 |
Приборы салатные |
3 |
| 21 |
Прибор для консервированных фруктов |
3 |
| 22 |
Щипцы для раскладывания порционных блюд |
3 |
| 23 |
Тарелки |
600 |
| 24 |
Кастрюли разных объемов |
9 |
| 25 |
Салатницы |
600 |
Подбор рабочей силы и составление графика выхода на работу
Важнейшей задачей нормирования труда является определение численности работников. Различают следующие основные методы определения необходимого количества работников: по нормам выработки, нормам времени; рабочим местам на основании норм обслуживания.
Количество работников предприятий общественного питания непосредственно зависит от объема выпуска продукции.
Режим работы холодного цеха устанавливается в зависимости от типа предприятия и режима его работы. При продолжительности работы предприятия 11 и более часов работники цеха работают по ступенчатому, двухбригадному или комбинированному графику. Общее руководство цехом осуществляет бригадир или ответственный работник из поваров IV или V разряда.
Бригадир организует работу по выполнению производственной программы в соответствии с планом-меню. С вечера приготавливают трудоемкие блюда: студни, заливные блюда, кисели, компоты и др.
Время на подготовку работы в начале рабочего дня используется для подбора посуды, инвентаря, получения продуктов в соответствии с производственным заданием. При хорошей организации производства время на подготовку работы должно составлять не более 20 минут. В холодных цехах с большим объемом работы осуществляется пооперационное разделение труда с учетом квалификации поваров.
Повара III разряда занимаются подготовкой продуктов, входящих в состав блюд (варкой овощей, варкой или жареньем мясных и рыбных полуфабрикатов, нарезкой овощей, обработкой сельди).
Повара IV разряда осуществляют приготовление и оформлением холодных блюд массового спроса (салаты, овощные, рыбные, мясные, винегреты, студни, рыба под маринадом и др.), сладких блюд.
По окончании рабочей смены повара отчитываются за проделанную работу, а бригадир или ответственный повар составляет отчет о реализации блюд за день в торговый зал.
Расчет рабочей силы производится на основании плана-меню и норм времени для приготовления блюд каждого вида по формуле (согласно учебнику Л.А.Радченко «Организация производства на предприятиях общественного питания», приложение 6):
N=n*t/3600*Т*л,
где n - величина трудозатрат, чел-сек;
t - норма времени на приготовление 1 блюда,
л- коэффициент производительности труда = 1,14;
Т - продолжительность рабочего дня повара, ч.
Расчет холодильного оборудования.
Холодильное оборудование рассчитывается по массе хранящихся в нем продуктов с учетом посуды или тары, в которой они находятся. Расчет производится по формуле:
Qобщ
=Qгб
+Qп\ф
+Qсп
(кг),
где Qобщ
– масса продуктов, хранящихся в холодильных емкостях (общая), кг.
Qгб
– масса готовых блюд в кг.
Qп\ф
– масса п\ф в кг.
Qсп
– масса сырых продуктов, кг.
Масса готовых блюд рассчитывается по формуле:
Qгб
=Σ (qр *
nпик
)\φ (кг),
где Qгб
– масса готовых блюд, кг.
qр
– масса одной порции блюда по Сборнику рецептур блюд и кулинарных
изделий, кг.
nпик
- количество блюд, данного вида за час «пик».
φ – коэффициент, учитывающий массу посуды (φ = 0.8).
Масса п\ф сырых продуктов рассчитывается по формуле:
Qп\ф+сп
= Σ (qр *
n1\2 смены
)\ φ (кг).
где Qп\ф+сп
– масса п\ф и сырых продуктов, кг
n1\2 смены
– количество блюд за половину смены.
qр
– масса одной порции блюда по Сборнику рецептур блюд и кулинарных
изделий, кг.
φ – коэффициент, учитывающий массу посуды (φ = 0.8).
Расчеты массы готовых блюд, реализуемых в час «пик»:
Qгб
3=(0,1*250)\0,8=31,25 кг.
Qгб
4=(0,1*250)\0,8=31,25 кг.
Qгб
5=(0,2*250)\0,8=62,5 кг.
Qгб
6=(0,2*250)\0,8=62,5 кг.
Расчеты массы полуфабрикатов и сырых продуктов:
Qп\ф + сп
1=(0,1*132)\0,8=16,5 кг.
Qп\ф + сп
2=(0,1*132)\0,8=16,5 кг.
Qп\ф + сп
3=(0,1*250)\0,8=31,25 кг.
Qп\ф + сп
4=(0,1*250)\0,8=31,25 кг.
Qп\ф + сп
5=(0,2*250)\0,8=62,5 кг.
Qп\ф + сп
6=(0,2*250)\0,8=62,5 кг.
Qп\ф + сп
7=(0,2*119)\0,8=29,75 кг.
Qп\ф + сп
8=(0,2*119)\0,8=29,75 кг.
Расчет холодильного оборудования холодного цеха столовой при промышленном предприятии (250 мест).
Таблица 8.
| № пп |
Наименование блюд. |
Кол-во блюд |
Масса одной порции |
Общая масса |
|||
| Кол-во блюд за день nдень |
Кол-во блюд за час «пик» |
Кол-во блюд за 1\2 смены |
Qгб (готовой продукции) |
Qп\ф+сп
|
|||
| 1 |
2 |
3 |
4 |
5 |
6 |
7 |
8 |
| 1 |
Холодные закуски
|
263 |
- |
132 |
0,1 |
- |
16,5 |
| Итого: |
187,5 |
280 |
|||||
По общей масса готовых блюд 187,5 кг подбираю по справочнику оборудования холодильный шкаф ШХ – 0,6 - 2 шт.
По массе п\ф и сырья 280 кг подбираю по справочнику оборудования холодильный шкаф ШХ – 1,4 - 1 шт.
Привожу техническую характеристику оборудования принятого к установлению:
Составление графика выхода на работу
График выхода на работу определяет порядок выхода на работу производственного персонала в течение месяца. График составляется на первое число каждого месяца зав. производством. В графике указывают месяц, год, фамилии членов бригады, должность, начало рабочей смены и окончание, выходные дни.
Для составления графика рассчитываем рабочее время и норму времени поваров на октябрь месяц. По трудовому законодательству рабочая неделя составляет 40часов. При 5 дневной неделе продолжительность рабочего дня составит:
40час. :5=8 час.
Определяем норму времени, т.е. сколько часов должен выработать повар за месяц.
В октябре 31 день
Выходных 9 дней
Рабочих 22 дня
22дня*8=176час.
Время обеденного перерыва установлен 1 час. Тогда продолжительность смены составит 9 часов. На основании графика выхода на работу в конце месяца составляем табель учета рабочего времени, который является основанием для выплаты заработной платы. Составляем график выхода на работу для поваров холодного цеха на октябрь месяц (приложение№7).
Вывод:
Самым оптимальным графиком выхода на работу является скользящий график, когда работники выходят на работу в разное время и в разное время уходят.
ЗАКЛЮЧЕНИЕ
Кафе «Встреча» рассчитано на 75 мест. Имеет большую пропускную способность, что позволяет обеспечить широким ассортиментом блюд жителей города. Предприятия с полным циклом производства, работает на сырье и полуфабрикатах.
В настоящее время бизнес сферы общественного питания развивается достаточно высокими темпами (более 10% в год в целом по РФ). Кафе, как одно из направлений этого бизнеса, пользуются популярностью, т.к. представляют собой не только предприятия общественного питания, но и места для индивидуального и коллективного отдыха.
Главной целью проектируемого предприятия является создание эффективного бизнеса в сфере общественного питания в городе Саратове.
Основными преимуществами проектируемого кафе являются: предоставление основных и дополнительных услуг питания с высоким уровнем качества; расположение предприятия в центре города; широкий ассортимент товаров; предложение сопутствующих услуг.
В данной работе обоснована производственная эффективность создания
предприятия общественного питания, предоставляющего услуги питания высокого качества, сориентированное на население с доходами на уровне среднего и ниже среднего.
В работе представлена общая характеристика предприятия и производственного процесса, возможности рекламы и реализации произведенной продукции, рассмотрены санитарно-гигиенические аспекты для кафе «Встреча»
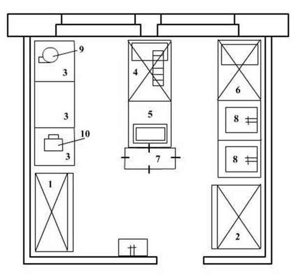
Подбор технологического оборудования и расчет площади холодного цеха
Подбор технологического оборудования для холодного цеха осуществляется по «Нормам оснащения предприятий общественного питания оборудованием». Оборудование классифицируем по группам и оформляем в виде таблицы №6.
Таблица 6 - Спецификация оборудования холодного цеха
| № |
Наименование оборудования |
Кол-во |
Марка |
Габариты |
S единицы оборуд-я |
Sобщ. занятая под оборуд-е |
|
| длина |
ширина |
||||||
| Немеханическое оборудование |
|||||||
| 1 |
Стол производственный |
2 |
СПСМ-1 |
1,05 |
0,84 |
0,88 |
1,76 |
| 2 |
Стол производственный |
1 |
СПСМ-3 |
1,26 |
0,84 |
1,06 |
1,06 |
| 3 |
Стол с холодильным шкафом |
1 |
СОЭСМ-3 |
1,68 |
0,84 |
1,41 |
1,41 |
| 4 |
Стеллаж передвижной |
1 |
СП-125 |
0,68 |
0,4 |
0,27 |
0,27 |
| 5 |
Ванна моечная 2-х секционная |
1 |
ВМСМ-2 |
1,26 |
0,63 |
0,79 |
0,79 |
| Механическое оборудование |
|||||||
| 6 |
Привод |
1 |
ПХ-0,6 |
0,52 |
0,28 |
0,15 |
0,15 |
| 7 |
Универсальная овощерезка |
1 |
МРОВ-250 |
0,61 |
0,37 |
0,23 |
0,23 |
| 8 |
Весы |
2 |
ВНЦ-2 |
- |
- |
||
| 9 |
Весы электронные |
1 |
ТВЕ |
- |
- |
||
| Холодильное оборудование |
|||||||
| 10 |
Шкаф холодильный |
2 |
ШХ-0,7 |
0,7 |
0,85 |
0,6 |
1,2 |
| ИТОГО S полезное |
6,87 |
||||||
Рассчитываем общую площадь холодного цеха по формуле:
Sобщ
=Sпол
/К
Sобщ
–общая площадь цеха, м2
;
Sпол
–площадь, занятая под оборудованием, м2
;
К–коэффициент использования площади(для холодного цеха К=0,35- 0,4).
Sобщ
= 6,87\0,4=17,18 м2
.
ИСПОЛЬЗУЕМАЯ ЛИТЕРАТУРА
1. «О защите прав потребителей» / от 07.02.92 №2300-1, с доп. и измен. От 09.01.99, №2-ФЗ
2. ФЗ «О качестве и безопасности пищевых продуктов» / от 02.01.00 №29-ФЗ
3. ГОСТ Р 50762-95 "Общественное питание. Классификация предприятий"
4. ГОСТ Р 50647-94 „Общественное питание. Термины и определения“
5. СП 2.3.6.1079-01 «Санитарно-эпидемиологические требования к организациям общественного питания, изготовлению и оборотоспособности в них продовольственного сырья и пищевых продуктов»
6. Санитарные правила. "Условия и сроки хранения особоскоропортящихся продуктов" СанПиН 42-123-4117-86
7. Радченко Л.А. Организация производства на предприятиях общественного питания", - Р ; Феникс, 2008
8. Сборник рецептур блюд и кулинарных изделий для предприятий общественного питания. - М.: Xлебпродинформ, 1996, 1997
9. Справочник руководителя предприятий общественного питания. -
М: Легкая промышленность и бытовое обслуживание, 2000
10. Постановление Министерства труда н социального развития РФ от
14.03,97 № 12
11. Бутейкис Н.Г. Организация производства предприятий общественного питания. - М.; Высшая школа. 1990
12. Шаповалов Н.Н. и др. Организация работы предприятий общественного питания. — М.. Экономика, 1990
13. Усов В.В. Организация производства и обслуживания на предприятиях общественного питания. Учебник- МИРПО Профтеобразование .Издат. 2002. – 416 с.
ПРИЛОЖЕНИЕ
«Приложение 1»
Меню кафе «Встреча»
|
| Цезарь с курицей Лист салата, филе куриное, крутоны, сыр Пармезан, соус «Цезарь» |
150 гр |
125 PУБ. |
| Цезарь с жареным гребешком Лист салата, гребешок жареный, крутоны, сыр Пармезан, соус «Цезарь» |
150 гр |
185 PУБ. |
| Цезарь с креветками Лист салата, креветки, крутоны, cыр Пармезан, соус «Цезарь» |
150 гр |
155 PУБ. |
| Цезарь с копченым угрем Лист салата, копченый угорь, крутоны, сыр Пармезан, соус «Цезарь» |
150 гр |
325 PУБ. |
| Греческий Лист салата, помидоры, брынза, оливки, оливковое масло |
150 гр |
135 PУБ. |
| Салат с грибами и рукколой Вешенка, руккола, помидоры, сыр Пармезан, бальзамический соус |
150 гр |
180 PУБ. |
| Сельдь с отварным картофелем Отварной картофель, сельдь, лук маринованный, растительное масло, зелень |
150 гр |
85 PУБ. |
| Салат с жареным тунцом Лист салата, рукола, тунец, помидоры, соевый соус, лимонный сок |
150 гр |
195 PУБ. |
| Салат с жареным гребешком Салатный микс, морской гребешок, креветки, мидии, лосось, соус. |
150 гр |
350 PУБ. |
| Карпаччо из лосося Лосось, лимон, оливки |
150 гр |
210 PУБ. |
| Салат с жареным сыром Салатный микс, помидоры, болгарский перец, сыр Моцарелла |
150 гр |
120 PУБ. |
| Салат с авокадо и курицей Авокадо, куриное филе, сыр Пармезан, майонез, сметана |
150 гр |
135 PУБ. |
| Салат с говядиной и помидорами Говядина, помидоры, редис, майонез |
150 гр |
135 PУБ. |
| Салат овощной с беконом Помидоры, перец болгарский, сыр голландский, кукуруза консервированная, майонез |
150 гр |
125 PУБ. |
| Салат Панзанелла Огурцы, помидоры, сельдерей, перец болгарский, базилик, соус Песто, масло растительное |
150 гр |
125 PУБ. |
| Салат из курицы с красной фасолью Куриное филе, фасоль красная, чеснок, майонез, зелень |
150 гр |
135 PУБ. |
| Салат Тайский с курицей Куриное филе, сельдерей, помидоры, лук, соус Чили, рыбный соус, чеснок, лимон |
150 гр |
125 PУБ. |
| Капрезе Помидоры, сыр Моцарелла, соус Песто, базилик |
150 гр |
135 PУБ. |
| Сырное ассорти |
260 гр |
360 PУБ. |
| Фруктовая тарелка |
400 гр |
175 PУБ. |
| Вяленое острое мясо к пиву с чесночным соусом |
60 гр |
190 PУБ. |
| Креветки Темпура |
150 гр |
180 PУБ. |
Супы
| Окрошка Говядина, картофель, огурцы, яйца, зелень, квас, майонез |
250 гр |
125 PУБ. |
| Гаспачо (испанский холодный суп) Перец сладкий, огурец, помидоры, томатный сок, специи, сыр Дор Блю |
250 гр |
140 PУБ. |
| Суп рыбный Семга, масляная рыба, картофель, лук |
250 гр |
150 PУБ. |
| Крем-суп куриный Курица, картофель, лук, сливки, сыр, зелень |
250 гр |
135 PУБ. |
| Солянка мясная Мясное ассорти, лук, помидоры, оливки, корнишоны, лимон |
250 гр |
180 PУБ. |
| Лагман |
250 гр |
135 PУБ. |
| Куриный бульон |
250 гр |
80 PУБ. |
Горячее
| Форель речная, запеченная в сливочно-грибном соусе |
300 гр |
225 PУБ. |
| Стейк из свинины |
100 гр |
180 PУБ. |
| Стейк из масляной рыбы в сливочно-грибном соусе |
100 гр |
165 PУБ. |
| Курица в сливочном соусе с грибами и овощами |
100 гр |
125 PУБ. |
| Говядина с овощами под сыром |
150 гр |
225 PУБ. |
| Помидоры фаршированные куриным филе и овощами |
180 гр |
135 PУБ. |
| Фаршированный перец с баклажанами |
100 гр |
120 PУБ. |
| Фаршированный перец с мясом |
100 гр |
135 PУБ. |
| Куриные кусочки в сырной корочке |
100 гр |
120 PУБ. |
| Рулет из свинины Свинина, грибы, сыр, специи |
150 гр |
210 PУБ. |
| Суфле из курицы с соусом Песто и Моццареллой |
160 гр |
135 PУБ. |
| Пельмени, запеченные с грибами под сыром |
200 гр |
160 PУБ. |
Гарниры/Паста/Соусы
Гарниры
| Отварной картофель обжаренный |
100 гр |
50 PУБ. |
| Овощи, приготовленные на пару |
100 гр |
75 PУБ. |
| Рис с кунжутом и яйцом |
150 гр |
50 PУБ. |
| Микс дикого и бурого риса |
150 гр |
50 PУБ. |
| Овощи-гриль |
150 гр |
75 PУБ. |
Паста
| Канелоне с фаршем (свинина, говядина) и соусом Бешамель |
250 гр |
165 PУБ. |
| Фарфалле с помидорами и зеленью |
150 гр |
135 PУБ. |
| Зити в соусе Песто со свининой |
150 гр |
165 PУБ. |
| Пенне в соусе Карбонаре с беконом |
150гр |
160 PУБ. |
| Фузилли с курицей в сливочно-грибном соусе |
150 гр |
165 PУБ. |
| Феттуччини в соусе Болоньезе |
150 гр |
165 PУБ. |
Соусы
| Соус кунжутный |
50 гр |
50 PУБ. |
| Соус с вином |
50 гр |
20 PУБ. |
| Соус с грибами |
50 гр |
35 PУБ. |
| Соус томатный острый |
50 гр |
15 PУБ. |
| Соус горчичный |
50 гр |
15 PУБ. |
| Майонез |
50 гр |
15 PУБ. |
| Сметана |
50 гр |
15 PУБ. |
Десерты/Мороженое
Десерты
| Шоколадный ролл |
150 гр |
140 PУБ. |
| Пьяная груша |
150 гр |
135 PУБ. |
| Мороженое, жаренное в миндальных лепестках |
120 гр |
120 PУБ. |
| Мороженое «Баунти» |
100 гр |
120 PУБ. |
| Чак-чак с шоколадом |
100 гр |
120 PУБ. |
| Пирожное «Бархат» |
110 гр |
100 PУБ. |
| Штрудель яблочный с мороженым |
140 гр |
120 PУБ. |
Мороженое
| Мороженое с шоколадом и орехами |
150 гр |
75 PУБ. |
| Мороженое с фруктами |
150 гр |
90 PУБ. |
| Мороженое с вишневым соусом |
150 гр |
90 PУБ. |
| Мороженое с мятным сиропом |
150 гр |
90 PУБ. |
| Мороженое с сиропом «Дыня» |
150 гр |
90 PУБ. |
| Мороженое с ликёром «Бейлиз» |
150 гр |
180 PУБ. |
Чай
| Ассам. Плантационный чёрный чай из Индии с терпким, чуть вяжущим кусом и тонким ароматом. |
500 мл |
130 PУБ. |
| Дикая вишня. Экстравагантный вкус чая с ароматом дикой вишни. |
500 мл |
130 PУБ. |
| Итальянский флёр. Неповторимый вкус пряностей в сочетании с чёрным чаем, кусочками миндаля, корочками апельсина и кусочками яблок. |
500 мл |
130 PУБ. |
| Кантри Берри. Чёрный чай с добавлением листьев клубники, черники, кусочками малины и цветами бузины. |
500 мл |
130 PУБ. |
| Зелёный восточный чай. Зелёный китайский чай с насыщенным ароматом. |
500 мл |
70 PУБ. |
| Жасмин голд. Свежесобранные бутоны жасмина придают чаю характерный, необыкновенно мягкий цветочный аромат |
500 мл |
130 PУБ. |
| Молочный Улун. Высококачественный Улун из провинции Фуцзянь для истинных ценителей чая. При заваривании получается настой оранжево-красного цвета с тонким сливочным ароматом и вкусом, который оставляет долгое сладкое послевкусие. |
500 мл |
130 PУБ. |
| Мечта любовника. Зелёный чай с корнем женьшеня, кусочками рабабы, перечной мятой, цедрой лимона, кардамоном, зелёным перцем, лепестками подсолнечника и василька. |
500 мл |
130 P |
Кофе
| Кофе Эспрессо |
40 мл |
50 PУБ. |
| Капучино |
80 мл |
75 PУБ. |
| Кофе Латте |
100 мл |
85 PУБ. |
| Кофе Глясе Кофе, мороженое, взбитые сливки |
100 мл |
90 PУБ. |
| Кофе Мокко Кофе, горячий шоколад, молоко |
100 мл |
90 PУБ. |
| Кофе по-венски Кофе, взбитые сливки |
80 мл |
75 PУБ. |
| Кофе по-французски Кофе, коньяк |
80 мл |
100 PУБ. |
| Кофе по-ирландски Кофе, ирландский виски |
80 мл |
150 PУБ. |
| Кофе по-итальянски Кофе, лимон, взбитые сливки |
80 мл |
90 PУБ. |
| Горячий шоколад с молоком Молоко, шоколад, корица |
155 мл |
170 PУБ. |
| Фрапучино Холодный кофе с молоком и колотым льдом |
120 мл |
95 PУБ. |
Напитки
Напитки
| Сок в ассортименте |
0,2 л |
30 PУБ. |
| Сок в ассортименте |
1 л |
150 PУБ. |
| Кола от Red Bull |
0,25 л |
70 PУБ. |
| Пепси, Миринда, 7up |
0,25 л |
70 PУБ. |
| Аква Минерале (с газом, без газа) |
0,25 л |
45 PУБ. |
| Перье |
0,33 л |
150 PУБ. |
| Эвиан |
0,33 л |
110 PУБ. |
| Нарзан |
0,33 л |
70 PУБ. |
| Ред Булл |
0,25 л |
125 PУБ. |
Свежевыжатые соки
| Грейпфрутовый |
0,2 л |
120 PУБ. |
| Апельсиновый |
0,2 л |
120 PУБ. |
| Морковный |
0,2 л |
100 PУБ. |
| Яблочный |
0,2 л |
120 PУБ. |
| Яблочно-морковный |
0,2 л |
110 PУБ. |
| Лимонный |
0,2 л |
120 PУБ. |
| Грушевый |
0,2 л |
120 PУБ. |
Молочные коктейли
| Молочный коктейль с шоколадом и бананом |
150 гр |
100 PУБ. |
| Молочный коктейль клубничный |
150 гр |
90 PУБ. |
| Молочный коктейль «Луна» |
150 гр |
135 PУБ. |

1- холодный шкаф ШХ-0.8; 2- холодный шкаф ШХ –0.6 3- стол производственный. 4- секция-стол с охлаждаемым шкафом и горкой СОЭСМ-3 5- низкотемпературный прилавок СН-0,15. 6- секция-стол с охлаждаемым шкафом СОЭСМ-2; 7- передвижной стеллаж. 8- моечная ванна ВМ-2СМ 9- машина для нарезки вареных овощей 10 – маслоделитель ручной