| Похожие рефераты | Скачать .zip |
Реферат: Кондиционирование универсама
Содержание
1. Исходные данные. 2
2. Определение количества выделяющихся вредностей и расчет необходимых воздухообменов 3
2.1. Воздухообмен по избыткам явной теплоты 3
2.2. Воздухообмен по ассимиляции выделяющейся влаги 3
2.3. Воздухообмен по вредным выделениям 4
2.4. Количество рециркуляционного воздуха 4
3. Построение процессов обработки воздуха на ID диаграмме 5
4. Расчет основных рабочих элементов кондиционера и подбор оборудования 6
4.1. Расчет фильтра 6
4.2. Камера орошения 7
4.3. Воздухонагреватели 8
4.4. Холодильные установки 9
4.5. Вентиляторные агрегаты 10
Список литературы. 10
Схема компоновки кондиционера 11
1. Исходные данные
Схема СКВ - 1
Место строительства г.ЯЛТА.
Помещение – УНИВЕРСАМ
Размеры помещения 38х20х5 м.
Число людей – n = 400 чел.
Теплопоступления
от солнечной радиации Qср = 14,5 кВт,
от освещения Qосв =12,6 кВт,
от оборудования Qоб = 0
Влаговыделения от оборудования Wоб = 0
Теплоноситель – горячая вода для ХПГ 1=150 оС, 2=70 оС, для ТПГ `1=70 оС, `2=50 оС.
табл. 1
|
период года |
холодный и п.у. |
теплый |
|
расчетные параметры наружного воздуха |
||
|
температура text, оС |
tБext = -6 |
tБext = 30,5 |
|
энтальпия Iext, кДж/кг |
IБext = -2,5 |
IБext = 64,5 |
|
скорость ветра ext, м/с |
8,7 |
1 |
|
барометрич. давление Pext , ГПа |
1010 |
1010 |
|
расчетные параметры внутреннего воздуха. |
||
|
температура воздуха, tв оС |
20 |
24 |
|
относительная влажность, в, % |
60 |
60 |
|
влагосодержание dв, г/кг |
8,7 |
11,2 |
Выбор параметров наружного воздуха производен по параметрам Б (прил. 8 [1]).
2. Определение количества выделяющихся вредных веществ
и расчет необходимых воздухообменов
2.1. Воздухообмен по избыткам явной теплоты
Теплопоступления от людей для ТПГ:
QляТ = qя • n = 0,075 • 400 = 30 кВт,
где qя – поток теплоты, выделяемый одним человеком,
qя=0,075 кВт – при легкой работе и t=24оС.
Теплопоступления от людей для ХПГ:
QляХ = qя • n = 0,1 • 400 = 40 кВт,
где qя = 0,1 кВт – при легкой работе и t=20оС.
Теплоизбытки помещения для ТПГ:
QяТ = Qля + Qср + Qосв + Qоб = 30 + 14,5 + 12,6 + 0 = 57,1 кВт
Теплоизбытки помещения для ХПГ:
QяХ = Qля + Qосв + Qоб = 40 + 12,6 + 0 = 52,6 кВт
Температура приточного воздуха для ТПГ:
tп = tв - t = 24 – 6 = 18 оС,
где t – температурный перепад в зависимости от помещения и подачи воздуха
t = 6 оС – для общественных зданий при высоте притока 5 м.
Температура приточного воздуха для ХПГ:
tп = tв - t = 20 – 6 = 14 оС,
Воздухообмен по избыткам явной теплоты для ТПГ:
G1Т = 3600 • Qя / св (tв – tп) = 3600 • 57,1 / 1 • (24-18) = 34 260 кг/ч
где св – удельная теплоемкость воздуха св = 1 кДж/(кг оС)
Воздухообмен по избыткам явной теплоты для ХПГ:
G1Х = 3600 • Qя / св (tв – tп) = 3600 • 52,6 / 1 • (20-14) = 31 560 кг/ч
2.2. Воздухообмен по ассимиляции выделяющейся влаги
Избыточные влаговыделения в помещении для ТПГ:
WТ = gw • n + 1000 • Wоб = 105 • 400 + 1000 • 0 = 42 000 г/ч
где gw – влаговыделения одним человеком
gw = 105 г/ч – при легкой работе и t=24оС.
Избыточные влаговыделения в помещении для ХПГ:
WХ = gw • n + 1000 • Wоб = 75 • 400 + 1000 • 0 = 30 000 г/ч
где gw = 75 г/ч – при легкой работе и t=20оС.
Воздухообмен по ассимиляции выделяющейся влаги для ТПГ:
G2Т = WТ / (dв – dп) = 42 000 / (11,2-6,2) = 8 400 кг/ч
Воздухообмен по ассимиляции выделяющейся влаги для ХПГ:
G2Х = WХ / (dв – dп) = 30 000 / (11,2-1) = 2 940 кг/ч
2.3. Воздухообмен по вредным выделениям
Количество вредных веществ поступающих в воздух:
Z = n • z` = 400 • 60 = 24000 г/ч
где z` - выделения 1 человеком СО2 при легкой работе z` = 45 г/ч
Воздухообмен по вредным выделениям:
G3 = • Z / (zв – zп) = 1,2 • 24000 / (3,2 – 0,6) = 11 000 кг/ч
где zв – ПДК СО2 в удаляемом воздухе для помещений с кратковременным
пребыванием людей zв =3,2 г/м3
zп - концентрация СО2 в приточном воздухе для малых городов zп =0,6 г/м3
К расчету принимается наибольший воздухообмен по избыткам явной теплоты для теплого периода.
G = G1Т = 34 260 кг/ч
L = G/ =34260/1,2 = 28 550 м3/ч
2.4. Количество рециркуляционного воздуха
Минимально необходимое количество наружного воздуха:
Gнmin = • n • l = 1,2 • 400 • 20 = 9600 кг/ч
где l – количество наружного воздуха на 1 чел,
при кратковременном пребывании l = 20 м3/ч
Сравнение минимально необходимого количества наружного воздуха и воздухообмена по ассимиляции выделяющейся влаги:
Gнmin < G3 принимаем Gн = G3= 11 000 кг/ч
Количество рециркуляционного воздуха
Gр = G – Gн = 34 260 – 11 000 = 23 260 кг/ч
3. Построение процессов обработки воздуха на ID диаграмме
Избыточный поток скрытой теплоты от людей для ТПГ:
QсТ
=
= qс • n
= 0,08 • 400 = 32 кВт,
где qя – поток теплоты, выделяемый одним человеком,
qс=0,08 кВт – при легкой работе и t=24оС.
Теплопоступления от людей для ХПГ:
QсХ = qс • n = 0,05 • 400 = 20 кВт,
где qс = 0,05 кВт – при легкой работе и t=20оС.
Угловой коэффициент угла процесса для ТПГ:
EТ = 3600 • (QяТ + QсТ) / WТ = 3600 • (57,1 + 32) / 42 = 7600 кДж/кг влаги
Угловой коэффициент угла процесса для ХПГ:
EХ = 3600 • (QяХ + QсТ) / WХ = 3600 • (52,6 + 20) / 30 = 8700 кДж/кг влаги
Влагосодержание смеси наружного и рециркуляционного воздуха для ТПГ
dс = (Gн • dн + Gр • dв) / G = (11 000 • 13,2 + 23260 • 11,2) / 34260 = 12 г/кг
Влагосодержание смеси наружного и рециркуляционного воздуха для ХПГ
dс = (Gн • dн + Gр • dв) / G = (11 000 • 2,4 + 23260 • 8,7) / 34260 = 6,8 г/кг
После построения I-d диаграммы полученные данные сведены в табл.2
табл.2
|
воздух |
обозн. |
t, оС |
I, кДж/кг |
|
ТПГ |
|||
|
наружный |
НТ |
30,5 |
64,5 |
|
смесь |
СТ |
28,2 |
59 |
|
камера орошения |
ОТ |
14,8 |
39,5 |
|
приточный |
ПТ |
18 |
43 |
|
внутренний |
ВТ |
24 |
52,5 |
|
удаляемый |
В`Т |
27 |
55,8 |
|
ХПГ |
|||
|
наружный |
НХ |
-6 |
-2,5 |
|
смесь |
СХ |
11 |
25,8 |
|
первый подогреватель |
КХ |
16,3 |
31 |
|
камера орошения |
ОХ |
11 |
31 |
|
приточный |
ПХ |
14 |
33,8 |
|
внутренний |
ВХ |
20 |
42 |
|
удаляемый |
В`Т |
23 |
45 |
4. Расчет основных рабочих элементов кондиционера и подбор оборудования
Подбор оборудования выполнен на основании [2].
К установке принимаем центральный кондиционер КТЦЗ-31,5 с номинальной производительностью L=31 500 м3/ч.
4.1. Расчет фильтра.
Для проектируемой системы центрального кондиционирования воздуха, выбираем рулонный фильтр, расположенный за смесительной секцией.
Максимальная концентрация пыли в рабочей зоне общественных зданий zwz = 0,5 мг/м3
Содержание пыли в наружном воздухе непромышленного города zext = 0,6 мг/м3
Степень очистки приточного воздуха
тр= 100% • (zext - zwz) / zext = 100 • (0,6- 0,5)/0,6 = 17%
класс фильтра – III (предел эффективности 60%)
Фильтр подобран по табл. 4.2 [2]:
тип фильтра: волокнистый, замасляный ячейковый ФяУБ
фильтрующий материал - ФСВУ
номинальная воздушная нагрузка на входное сечение q = 7000 м3/(ч•м2)
площадь ячейки fя = 0,22 м2
начальное сопротивление Pф.н =40 Па
конечное сопротивление Pф.к = 150 Па
удельная пылемкость П = 570 г/м2
способ регенерации – замена фильтрующего материала.
Требуемая площадь фильтрации:
Fфтр = L / q = 28550/7000=4,01 м2,
Необходимое количество ячеек:
nя = Fфтр / fя = 4,01 / 0,22 = 18,23
к установке принимаем 18 ячеек
Действительная степень очистки
по номограмме 4.4 [2] 1-Е = 18% => д=82%
д > тр
Количество пыли, осаждаемой на 1 м2 площади фильтрации в течении 1 часа.
mуд = L • zext • n / Fф = 28550 • 0,6•10-3 • 0,82 / 4,01 = 3,4 г/м2ч
Периодичность замены фильтрующей поверхности:
рег = П / mуд=570 / 3,4 = 167 ч = 7 сут.
4.2. Камера орошения.
К установке принимается форсуночная камера орошения ОКФ-3 03.01304 исп.1
всего форсунок 63 шт., всего стояков – 7 шт.
4.2.1. ХПГ
процесс обработки воздуха – адиабатный
Коэффициент адиабатной эффективности:
ЕА
=
=
=0,96
где tвк – температура воздуха конечная (после камеры орошения) tвк =11 оС
tвн – температура воздуха начальная (до камеры орошения) tвк =16,3 оС
tмвн – температура по мокрому термометру tмвн =10,8 оС
Коэффициент орошения =2,0 – по графику на рис. 15.27 [2].
Расход воды на орошение:
Gж = • G = 2,0 • 34260 = 68 520 кг/с
Давление воды перед форсункой:
pж = 80 кПа – по графику на рис. 15.32 [2].
4.2.2. ТПГ
процесс обработки воздуха – политропный – охлаждение и осушение.
Коэффициент адиабатной эффективности:
ЕА
=
=
=0,38
где Iвк – энтальпия воздуха конечная (после камеры орошения) Iвк =39,5 кДж/кг
tвн – энтальпия воздуха начальная (до камеры орошения) Iвк =59 кДж/кг
Iпрв – предельная энтальпия для данного процесса Iпрв =38,5 кДж/кг
Iпрвн – предельная энтальпия для начального состояния Iпрвн =90 кДж/кг
Коэффициент орошения =0,7 – по графику на рис. 15.27 [2].
Коэффициент политропной эффективности ЕП = 0,25 – по номограмме на рис. 15.27 [2].
Расход воды на орошение:
Gж = • G = 0,7 • 34260 = 23980 кг/с
Относительная разность температур воздуха:
= b • c • • (1/ЕП – 1/ЕА) = 0,33 • 4,19 • 0,7 • (1/0,25 – 1/0,38) = 1,32 оС
где b – коэффициент аппроксимации b=0,33 (кг•оС)/кДж;
сж – удельная теплоемкость воды с=4,19 кДж/(кг•оС)
Температура воды начальная:
tжн
=
=
= 6 оС
где tпрв – предельная температура для данного процесса tпрв =13,8 оС
Температура воды конечная:
tжн
=
=
= 11,6 оС
Давление воды перед форсункой:
pж = 30 кПа – по графику на рис. 15.34 [2].
4.3. Воздухонагреватели.
Первый воздухонагреватель подбирается для ХПГ, второй – для ТПГ.
К установке принимается воздухонагреватели 03.10114
площадь фасадного сечения Fф = 3,31 м2.
Относительный перепад температур:
В1 = (tвн - tвк) / (tвн - tжн) = (11-16,3) / (11-95) = 0,06– для 1-го подогревателя
где tжн – начальная температура теплоносителя tжн =95 оС
tвн , tвк – начальная и конечная температура обрабатываемого воздуха
В2 = (14,8-18) / (14,8-95) = 0,04– для 2-го подогревателя
Относительный расход воздуха:
G` = G / Gном = 34260 / 37800 = 0,9
где Gном – номинальный расход воздуха для данного кондиционера
По табл.15.18 [2] принимаем тип и схему обвязки базовых теплообменников:
6, параллельно.
По номограмме рис.15.41а [2] определяем:
Ж1 = 0,75 при количестве рядов n=1. – для 1-го подогревателя
Ж1 = 0,8 при количестве рядов n=1. – для 2-го подогревателя
Б = 0,623 – коэф. гидравлического сопротивления нагревателя.
Расход теплоносителя
GЖ1 = G•св•В1/сж•Ж1 = 34260 • 1,005 •0,06 / 4,19 •0,75 = 687 кг/ч– для 1-го подогревателя
GЖ2 = 34260 • 1,005 •0,04 / 4,19 •0,8 = 411 кг/ч– для 2-го подогревателя
Конечная температура теплоносителя:
tжк1 = tжн + Ж1 • (tвн – tжн) = 95 + 0,75 (11 – 95) = 32 оС
tжк2 = 95 + 0,8 (14,8 – 95) = 31 оС
Массовая скорость воздуха в фасадном сечении установки:
V) = G / 3600 • Fф = 34260 / 3600 • 3,31 = 2,9 кг/(м2с)
Потери давления по воздуху:
PВ = 25 Па – по номограмме рис. 15.43 [2].
Потери давления по воде:
PЖ1 = Б • (В1 / Ж1)2 • G`2 •98,1 = 0,623 • (0,06 / 0,75)2 • 0,92 • 98,1 = 0,32 кПа.
PЖ2 = 0,623 • (0,04 / 0,75)2 • 0,92 • 98,1 = 0,14 кПа.
4.4. Холодильные установки.
Холодопроизводительность установки в рабочем режиме:
Qхр = Ах • G • (Iн – Iк) / 3600 = 1,2 • 34260 • (59-39,5) / 3600 = 213 кВт
где: Ах – коэффициент запаса, учитывающий потери холода на тракте хладагента,
холодоносителя и вследствие нагревании воды в насосах, Ах = 1,12 ч 1,15;
Iн , Iк – энтальпия воздуха на входе в камеру орошения и выходе из неё.
Температура кипения хладагента:
tих = (tжк + tжн)/2-(4ч6) = (6+11,6) / 2 - 5 = 3,3 °С
температура конденсации хладагента:
tконд = tк.к + (3ч4) = 24 + 4 = 28 °С
температура
переохлаждения
холодильного
агента
tп.х = tк.н + (1ч2) = 20 + 2 = 22 °С
где: tк.н – температура охлаждающей воды перед конденсатором,
ориентировочно принимаемая tк.н = 20°С;
tк.к – температура воды на выходе из конденсатора,
принимаемая на 3ч4°С больше tк.н ,°С.
Температуру кипения хладагента в испарителе следует принимать не ниже 2°С, причем температура воды, выходящей из испарителя, не должна быть ниже 6 °С.
Объемная холодопроизводительность при рабочих условиях:
qvр =(iих – iпх) / Vих = (574,6-420,6)/0,053 = 2905 кДж/м3
где: iи.х – энтальпия паровой фазы хладагента при tи.х , кДж/кг;
iп.х – энтальпия жидкой фазы хладагента при tп.х , кДж/кг;
vи.х – удельный объем паров хладагента при tи.х , кг/м3.
Холодопроизводительность холодильной машины в стандартном режиме
(tн.х =5°C, tконд=35°С, tп.х =30°С):
=
= 190 кВт
где: λс – коэффициенты подачи компрессора при стандартном режиме λс=0,76
λр – коэффициенты подачи компрессора при рабочем режиме по табл. 4.6 [3].
qvc – объемная холодопроизводительность при стандартном режиме,
qvc=2630 кДж/м3.
К установке принимаются холодильные машины ХМ-ФУ40/1РЭ холодопроизводительностью 94,7 кВт, в количестве 2 шт.
4.5. Вентиляторные агрегаты.
Аэродинамическое сопротивление:
Р = Рмаг + Рк + Рф + Рко +2 • Рвн = 100 + 50 + 150 + 50 + 2• 25 = 400 Па
где Рмаг –сопротивление магистрального воздуховода принимаем 100 Па
Рк – сопротивление приемного клапана принимаем 50 Па
Рф – сопротивление с фильтра Рф =150 Па
Рко – сопротивление камеры орошения принимаем 50 Па
Рвн – сопротивление воздухонагревателя Рвн = 25 Па
Принимаем вентилятор ВЦ4-75 № 10 Е10.095-1 ГОСТ 5976-90
частота n=720 об/мин;
КПД =0,7;
Потребляемая мощность N = 5,5 кВт
D = 0,95 Dном
Двигатель 4А132М8; m=438 кг
Литература
1. СНиП 2.04.05-91* Отопление, вентиляция и кондиционирование. М.: ГУП ЦПП, 2001. 74с.
2. Справочник проектировщика. Под ред. Павлова Н.Н. Внутренние санитарно-технические устройства. Часть 3. Вентиляция и кондиционирование воздуха. М.: Стройиздат. 1985.
3. Иванов Ю.А., Комаров Е.А., Макаров С.П. Методические указания по выполнению курсовой работы "Проектирование кондиционирования воздуха и холодоснабжение". Свердловск: УПИ, 1984. 32 с.

Министерство образования РФ
Уральский государственный технический университет
кафедра "Теплогазоснабжение и вентиляция"
КОНДИЦИОНИРОВАНИЕ ВОЗДУХА
И ХОЛОДОСНАБЖЕНИЕ
КУРСОВАЯ РАБОТА
ПОЯСНИТЕЛЬНАЯ ЗАПИСКА
преподаватель: Н.П.
студент: С.Ю.
1851929
группа: ТГВ-6 (Екатеринбург)
Екатеринбург
2
004
Министерство образования Российской Федерации
Уральский государственный технический университет - УПИ
кафедра "Теплогазоснабжение и вентиляция"
Оценка_____________
КОНДИЦИОНИРОВАНИЕ ПРОДОВОЛЬСТВЕННОГО МАГАЗИНА
в г.Саратове
Курсовая работа
2907.61127.005 ПЗ
Руководитель: Н.П.
Студент Т.А.
ТГВ-6
Екатеринбург
Екатеринбург 2004
СОДЕРЖАНИЕ
Исходные данные…………………………………………………….……………………3
Определение количества выделяющихся вредных веществ и расчет необходимых воздухообменов
Необходимая величина воздухообмена при расчете по избыткам явной теплоты……………………………………………………………………………….4
Воздухообмен по ассимиляции выделяющейся влаги….………………….…..5
Воздухообмен по борьбе с выделяющимися в помещении вредными газами и парами……………………………………………….……………………...5
Определение расчетного воздухообмена……………………………………….6
Определение количества рециркуляционного воздуха……………………….6
Построение процессов обработки воздуха на I-d диаграмме
Определение величины углового коэффициента луча процесса.…..…...…7
Построение на I-d диаграмме процессов обработки воздуха в кондиционере с первой рециркуляцией для теплого периода года ……….8
Построение на I-d диаграмме процессов обработки воздуха в кондиционере с первой рециркуляцией для холодного периода года…..….8
Расчет основных рабочих элементов установки кондиционирования воздуха и подбор оборудования
Фильтр………………………………………………………………………………..10
Камера орошения……………………………………………………………………10
Воздухонагреватели и воздухоохладители…………………………………...12
Холодильные установки…………………………………………………………..18
Вентиляторные агрегаты……………………………………………………… 19
Компоновка и теплохолодоснабжение центральных кондиционеров…………20
Библиографический список…………………………………………………………….…..23
ИСХОДНЫЕ ДАННЫЕ
В данной работе расчетным объектом является помещение продовольственного магазина, расположенного в городе Саратове.
Размеры помещения – 42х12х4 м.
Число людей – 200.
Теплопоступления:
- от солнечной радиации Qс.р.=8,4 кВт;
- от освещения Qосв.=10,5 кВт;
- от оборудования Qоб=12,1 кВт.
Влаговыделения от оборудования Wоб =3,9 кг/ч.
Расчетный теплоносителя – вода, с параметрами:
для теплого периода – 70/50 °С;
для холодного периода – 150/70 °С.
Расчетные климатические параметры для г.Саратова при разработке системы кондиционирования приняты:
для теплого периода года (Приложение 8 [1]):
tБext=30,5°С; IБext=53,6 кДж/кг;
для холодного периода года (Приложение 8 [1]:)
tБext= -27°С; IБext= -26,3 кДж/кг.
Барометрическое давление 990 ГПа.
Расчетные параметры внутреннего воздуха помещения продовольственного магазина приняты:
для теплого периода года:
tв=24°С; Iв=43 кДж/кг; φ=40%;
для холодного периода года:
tв= 22°С; Iв= 39 кДж/кг; φ=40%.
ОПРЕДЕЛЕНИЕ КОЛИЧЕСТВА ВЫДЕЛЯЮЩИХСЯ ВРЕДНЫХ ВЕЩЕСТВ И РАСЧЕТ НЕОБХОДИМЫХ ВОЗДУХООБМЕНОВ.
Необходимая величина воздухообмена при расчете
по избыткам явной теплоты.
,
кг/ч,
(2.1)
где: Qя – избыточный поток явной теплоты в помещение, кВт;
tв – температура в рабочей зоне, °С;
tп – температура приточного воздуха, °С;
св – удельная теплоемкость воздуха, св=1 кДж/(кг°С).
Температура приточного воздуха tп определяется по формуле:
tп = tв – Δt , °С (2.2)
где: Δt – температурный перепад, согласно [2] принимаем Δt = 3°С.
Расчет теплоизбытков производится следующим образом.
Т е п л ы й п е р и о д
Qя = Qял + Qс.р. + Qосв + Qоб , кВт, (2.3)
где: Qял – теплопоступления от людей, кВт;
Qял = qяn, (2.4)
qя – поток явной теплоты, выделяемой одним человеком, кВт.
Qял = 0,071х200=14,2 кВт
Qя = 14,2+8,4+10,5+12,1=45,2 кВт
tп = 24-3=21°С
кг/ч
Х о л о н ы й п е р и о д
Qя = Qял + Qосв + Qоб , кВт (2.5)
Qял = 0,085х200=17,0 кВт
Qя = 17,0+10,5+12,1=39,6 кВт
tп = 22-3=19°С
кг/ч
Воздухообмен по ассимиляции выделяющейся влаги.
,
кг/ч,
(2.6)
где: dв – влагосодержание удаляемого воздуха, г/кг;
dп – влагосодержание приточного воздуха, г/кг;
W – избыточные влаговыделения в помещении, г/ч
W = gwn + 1000Wоб , (2.7)
где: dw – влаговыделение одним человеком, г/ч
Т е п л ы й п е р и о д
W =107х200 + 1000х3,9 = 25300 г/ч
кг/ч
Х о л о н ы й п е р и о д
W =91х200 + 1000х3,9 = 22100 г/ч
кг/ч
2.3 Воздухообмен по борьбе с выделяющимися в помещении
вредными газами и парами.
,
кг/ч,
(2.8)
где: ρв – плотность воздуха, ρв = 1,2 кг/м3;
zп – предельно допустимая концентрация вредных веществ в воздухе, удаляемом из помещения, г/м3;
zв – концентрация вредных веществ в приточном воздухе, г/м3;
Z – количество вредных веществ, поступающих в воздух помещения, г/ч.
,
кг/ч
Результаты расчета воздухообменов сведены в таблицу 2.1.
Таблица2.1.
Воздухообмен для расчетного помещения.
-
Период года
Расход приточного воздуха, кг/ч
По
избыткам явной теплоты
G1
По
избыткам влаги
G2
По
избыткам вредных газов и паров
G3
Теплый период
54240
16867
6000
Холодный период
47520
17000
6000
2.4. Определение расчетного воздухообмена.
В качестве расчетного воздухообмена принимается максимальное значение из G1, G2 , G3.
G = 54240 кг/ч
2.5. Определение количества рециркуляционного воздуха
Gр = G – Gн , кг/ч (2.9)
где: Gн – количество наружного воздуха.
Для нахождения Gн определяется минимальное количество наружного воздуха, подаваемого в помещение:
Gminн =ρвnl, кг/ч, (2.10)
где: l – количество наружного воздуха на 1 человека, м3/ч.
Gminн =1,2х200х20 = 4800 кг/ч
Полученное значение Gminн сравнивается с величиной расчетного воздухообмена по борьбе с выделяющимися газами и парами G3:
Gminн < G3
4800 < 6000
Принимаем Gн = 6000 кг/ч
Gр = 54240 – 6000 =48240 кг/ч
ПОСТРОЕНИЕ ПРОЦЕССОВ ОБРАБОТКИ ВОЗДУХА
НА I-d ДИАГРАММЕ.
Исходными данными для построения процесса тепловлажностной обработки воздуха являются расчетные параметры наружного воздуха – tн и Iн (точка Н), заданные параметры внутреннего воздуха – tв и Iв (точка В).
3.1. Определение величины углового коэффициента луча процесса.
,
кДж/кг влаги,
(3.1)
где: Qп – избыточный поток полной теплоты в помещении, кВт;
Qс – избыточный поток скрытой теплоты в помещении, кВт
,
кВт,
(3.2)
где: Iв.п – энтальпия водяного пара при температуре tв ,кДж/кг,
Iв.п =2500 + 1,8 tв , кДж/кг, (3.3)
qс – поток скрытой теплоты, выделяемой 1 человеком, кВт.
Т е п л ы й п е р и о д
Iв.п =2500 + 1,8 х 24 = 2543,2 кДж/кг
,кВт
кДж/кг
влаги
Х о л о н ы й п е р и о д
Iв.п =2500 + 1,8 х 22 = 2539,6 кДж/кг
,кВт
кДж/кг
влаги
Процесс обработки воздуха в кондиционере осуществляется по схеме с первой рециркуляцией.
3.2. Построение на I-d диаграмме процессов обработки воздуха в кондиционере с первой рециркуляцией для теплого периода года.
Исходными
данными для
построения
процесса
тепловлажностной
обработки
воздуха являются
расчетные
параметры
наружного
воздуха – tн
и Iн
(точка Н); заданные
параметры
внутреннего
воздуха – tв
и Iв
(точка В); расчетный
воздухообмен
– G;
количество
рециркуляционного
воздуха - Gр;
количество
наружного
воздуха – Gн;
величина углового
коэффициента
–
.
Через
точку В проводится
луч процесса
до
пересечения
с изотермой
температуры
приточного
воздуха tп
. Из точки П
проводится
линия dп=Сonst
до пересечения
с кривой I=95%
в точке О, параметры
которой соответствуют
состоянию
обрабатываемого
воздуха на
выходе из камеры
орошения. Отрезок
ОП' характеризует
процесс нагревания
воздуха в
воздухонагревателе
второго подогрева,
П'П – подогрев
воздуха на
1ч1,5°С в вентиляторе
и приточных
воздуховодах.
Из точки В вверх по линии dв=Сonst откладывается отрезок ВВ', соответствующий нагреванию воздуха, удаляемого из помещения рециркуляционной системой, в вентиляторе и воздуховоде. Отрезок В'Н характеризует процесс смешения наружного и рециркуляционного воздуха. Влагосодержание смеси находится из выражения:
,
г/ч (3.4)
г/ч
Пересечение линий В'Н и dс=Сonst определяет положение точки С, характеризующей параметры воздуха на входе в камеру орошения.
3.3. Построение на I-d диаграмме процессов обработки воздуха в кондиционере с первой рециркуляцией для холодного периода года.
Исходными
данными для
построения
процесса
тепловлажностной
обработки
воздуха являются
расчетные
параметры
наружного
воздуха – tн
и Iн
(точка Н); заданные
параметры
внутреннего
воздуха – tв
и Iв
(точка В); расчетный
воздухообмен
– G;
величина углового
коэффициента
–
.
9Для определения параметров приточного воздуха находится его ассимилирущая способность по влаге:
,г/кг
(3.5)
и вычисляется влагосодержание приточного воздуха:
dп = dв – Δd ,г/кг (3.6)
г/кг
dп = 6,8 – 0,4 =6,4,г/кг
Через
точку В проводится
луч процесса
до
пересечения
с линией dп=Сonst
в точке П, которая
характеризует
состояние
приточного
воздуха при
условии сохранения
в холодный
период года
расчетного
воздухообмена.
Пересечение
линии dп=Сonst
с кривой I
= 95% определяет
точку О, соответствующую
параметрам
воздуха на
выходе из камеры
орошения. Отрезок
ОП характеризует
процесс в
воздухонагревателе
второго подогрева.
По аналогии
с п.3.2 строится
процесс смешения
наружного и
рециркуляционого
воздуха (отрезок
НВ) и определяются
параметры
смеси:
г/ч
Из точки С проводится луч процесса нагревания воздуха в воздухонагревателе первого подогрева до пересечения с адиабатой Iо=Const в точке К, соответствующей параметрам воздуха на входе в камеру орошения.
РАСЧЕТ ОСНОВНЫХ РАБОЧИХ ЭЛЕМЕНТОВ УСТАНОВКИ КОНДИЦИОНИРОВАНИЯ ВОЗДУХА И ПОДБОР ОБОРУДОВАНИЯ.
4.1. Фильтр.
Для проектируемой системы центрального кондиционирования воздуха, с расходом 54240 кг/ч, выбираем кондиционер КТЦ60, с масляным самоочищающимся фильтром.
Характеристики фильтра:
площадь рабочего сечения - 6,31 м2
удельная воздушная нагрузка – 10000 м3 ч на 1м2
максимальное сопротивление по воздуху ~10 кгс/м2
количество заливаемого масла – 585 кг
электродвигатель АОЛ2-21-4, N=1,1 кВт, n=1400 об/мин
4.2. Камера орошения.
Расчет:
1. Выбор камеры орошения по производительности воздуха:
м3/ч
(4.1)
Принимаем форсуночную двухрядную камеру орошения типа Кт длинной 1800мм.
Конструктивные характеристики:
номинальная производительность по воздуху 60 тыс. м3/ч
высота и ширина сечения для прохода воздуха 2003х3405 мм
площадь поперечного сечения 6,81 м2
номинальная весовая скорость воздуха в поперечном сечении 2,94 кгс/(м2 °С)
общее число форсунок при плотности ряда 24шт/м2 ряд) – 312 шт./м2
2. Определяем массовую скорость воздуха в поперечном сечении камеры орошения:
,
кг/(м2с)
(4.2)
3. Определяем универсальный коэффициент эффективности:
(4.3)
Согласно [3] выбираем коэффициент орошения В, коэффициент полного орошения Е и диаметр выпускного отверстия форсунок:
В=1,8
Е=0,95
Ш=3,5 мм
Так как (pv) < 3 кг/(м2 с), то для Еґ вводим поправочный коэффициент 0,96:
Е=0,96х0,95=0,91
5. Вычисляем начальную и конечную температуру воды twн twк , совместно решая систему уравнений:

twн = 6,1°С
twк = 8,5°С
6. Вычисляем массовый расход воды:
Gw = BxG = 1,8х54240 = 97632 кг/ч (4.4)
7. Определяем пропускную способность одной форсунки:
кг/ч
(4.5)
8. По диаметру выпускного отверстия и пропускной способности форсунки определяем давление воды перед форсункой, согласно [3]:
Рф = 2,1 кгс/см2
9. Определяем аэродинамическое сопротивление форсуночной камеры орошения:
ΔР = 1,14 (pv)1,81 = 1,14 х 1,841,81 = 3,43 кгс/м2 (4.6)
4.3. Воздухонагреватели и воздухоохладители.
Воздухонагревательные и воздухоохладительные установки собираются из одних и тех же базовых унифицированных теплообменников, конструктивные характеристики представлены в [2]. Число и размеры теплообменников, размещаемых во фронтальном сечении установки, однозначно определяются производительностью кондиционера.
Базовые теплообменники могут присоединятся к трубопроводам тепло-холодоносителя по различным схемам согласно [2].
Расчет воздухонагревательных и воздухоохладительных установок состоит из следующих операций:
По известной величине расчетного воздухообмена G, согласно [2], выбирается марка кондиционера и определяется площадь фасадного сечения Fф ,м2.
Вычисляется массовая скорость воздуха в фасадном сечении установки:
,
кг/(м2с)
(4.7)
Определяются температурные критерии:
при нагревании воздуха
,
(4.8)
,
(4.9)
расход теплоносителя
,
кг/ч
(4.10)
где: tн , tк – начальная и конечная температура обрабатываемого воздуха, °С, tг,tо–температура теплоносителя на входе и выходе из воздухонагревателя,°С,
twг,twо–температура охлажденной воды на входе и выходе из воздухоохладителя, °С.
Согласно [2] находятся все возможные схемы компоновки и присоединения, базовых теплообменников к трубопроводам тепло-холодоносителя, соответствующие производительности принятой марки кондиционера. Для каждой схемы определяется величина компоновочного фактора
.
Для каждой выбранной схемы определяется общее число рядов теплообменников по глубине установки:
(4.11)
При этом для воздухонагревателей принимается D=7,08; для воздухоохладителей – D=8,85.
Полученные значения Zу округляются до ближайших больших Z'у .
Для каждого компоновочного варианта установки находится общая площадь поверхности теплообмена:
Fу = Fр Z'у ,м2 (4.12)
и вычисляется запас в площади по сравнению с её расчетным значением:
,
(4.13)
Для всех принятых схем определяется величина площади живого сечения для прохода тепло-холодоносителя:
,
м2
, (4.14)
и находится скорость воды в трубках хода и присоединительных патрубках:
,
м/с, (4.15)
,
м/с, (4.16)
где:
– значение
компоновочного
фактора для
выбранной
схемы, уточненное
для фактического
числа рядов
труб Z'у
;
ρw – средняя плотность воды в теплообменнике, принимаемая для воздухонагревателей первого и второго подогрева соответственно951 и 988 кг/м3 и для воздухоохладителей ρw = 998 кг/м3;
dп.п – внутренний диаметр присоединительных патрубков, равный для всех типов теплообменников dп.п = 0,041 м;
Х – число параллельно присоединенных входящих патрубков в ряду.
Последующие расчеты производятся для схемы компоновки базовых теплообменников с наибольшим запасом площади теплообмена. Но если при этом скорость воды в трубках или в присоединительных патрубках будет превышать 2ч2,5 м/с, то в качестве расчетной следует принять схему с меньшим значением компоновочного фактора.
Находится гидродинамическое сопротивление теплообменной установки (без соединительных и подводящих патрубков):
ΔНу = Аω2 , кПа, (4.17)
где: А – коэффициент, зависящий от количества труб в теплообменнике и его высоте и принимаемый согласно [2].
Определяется аэродинамическое сопротивление установки:
с однорядными теплообменниками
ΔРу = 7,5(ρν)ф1,97R2 Z'у ,Па, (4.18)
с двухрядными теплообменниками
ΔРу = 11,7(ρν)ф1,15R2 Z'у ,Па, (4.19)
Значение R определяется по [2] в зависимости от среднеарифметической температуры воздуха.
Расчет водухонагревателя.
Fф = 6,63 м2
кг/(м2с)

Выбираем:
Схема
1:
Схема
2:
Схема
4:
Схема 1:
Zу = 0,59 ; Z'у = 1
Схема 2:
Zу = 0,63 ; Z'у = 1
Схема 4:
Zу = 0,54 ; Z'у = 1
Fу = 113 х 1 =113 м2
Схема
1:
Схема
2:
Схема
4:
Схема 1:
![]()
м2
м/с
м/с
Схема
2:
![]()
м2
м/с
м/с
Схема
4:
![]()
м2
м/с
м/с
Для дальнейших расчетов выбираем схему 4.
ΔНу = 26,683 х 0,372 =3,65 кПа,
ΔРу = 7,5 х 2,271,97 х 0,982 х 1 = 36,2,Па
4.4. Холодильные установки.
В центральных и местных системах кондиционирования воздуха для получения холода широко применяются агрегатированные фреоновые холодильные машины, объединяющие компрессор, испаритель, конденсатор, внутренние коммуникации, арматуру, электрооборудование и автоматику. Их технические характеристики приведены [2]. Расчет холодильной установки сводится к определению её холодопроизводительности и подбору соответствующей ей марки машины.
Расчет производится в следующем порядке:
Вычисляется холодопроизводительность установки в рабочем режиме:
,
кВт,
(4.20)
где: Ах – коэффициент запаса, учитывающий потери холода на тракте хладагента, холодоносителя и вследствие нагревании воды в насосах и и принимаемый для машин с холодопроизводительностью до 200 кВт Ах = 1,15 ч 1,2 , более 200 кВт Ах = 1,12 ч 1,15;
Iн , Iк – энтальпия воздуха на входе в камеру орошения и выходе из неё.
Определяются основные температуры, характеризующие режим работы холодильной установки:
температура кипения холодильного агента
,
°С,
(4.21)
температура конденсации холодильного агента
tконд = tк.к + (3ч4) , °С, (4.22)
температура переохлаждения холодильного агента
tп.х = tк.н + (1ч2) , °С, (4.23)
где: tн.х – температура воды на входе в испаритель и на выходе из него, °С;
tк.н – температура охлаждающей воды перед конденсатором, ориентировочно принимаемая tк.н = 20°С;
tк.к – температура воды на выходе из конденсатора, принимаемая на 3ч4°С больше tк.н ,°С.
Температуру кипения хладагента в испарителе следует принимать не ниже 2°С, причем температура воды, выходящей из испарителя, не должна быть ниже 6 °С.
Хоодопроизводительность установки, требуемая в рабочем режиме, приводится к стандартным условиям (tн.х =5°C, tконд=35°С, tп.х =30°С):
,
кВт,
(4.24)
где: Qх.с – холодопроизводительность холодильной машины в стандартном режиме, кВт;
λс , λр – коэффициенты подачи компрессора при стандартном и рабочем режимах;
qvc , qvp – объемная холодопроизводительность при стандартном и рабочем режимах, кДж/м3.
Коэффициент λс принимается равным λс=0,76, а величина λр определяется согласно [2].
Объемная холодопроизводительность при стандартных условиях принимается равной qvc=2630 кДж/м3, а величина qvp определяется по формуле:
,
кДж/м3
, (4.25)
где: iи.х – энтальпия паровой фазы хладагента при tи.х , кДж/кг;
iп.х – энтальпия жидкой фазы хладагента при tп.х , кДж/кг;
vи.х – удельный объем паров хладагента при tи.х ,кг/м3.
Согласно [2] подбирается 2 ч 4 однотипных холодильных машины и из них компонуется общая установка. При этом суммарная холодопроизводительность принятого числа машин должна равняться вычесленному по формуле (2.19) значению Qх.с .
Вентиляторные агрегаты.
Для комплектации центральных систем кондиционирования воздуха используют вентиляторные агрегаты одностороннего и двустороннего всасывания.
Принимаем вентилятор ВР-86-77-5:
Диаметр колеса D = Dном;
Потребляемая мощность N = 2,2 кВт;
Число оборотов n = 1420 об./мин;
Двигатель АИР90L4.
КОМПОНОВКА И ТЕПЛОХОЛОДОСНАБЖЕНИЕ
ЦЕНТРАЛЬНЫХ КОНДИЦИОНЕРОВ.
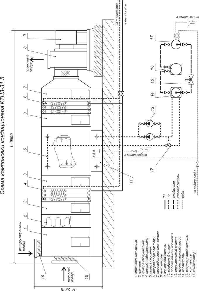
Центральные кондиционеры КД и КТЦ собираются из типовых рабочих и вспомогательных секций. На рис.5.1 показана компоновка кондиционера, работающего с первой рециркуляцией. Наружный воздух через приемный клапан поступает в смесительную секцию, где смешивается с удаляемым из помещения рециркуляционным воздухом. Смесь воздуха очищается от пыли в фильтре и поступает в воздухонагреватель первой ступени. Подогретый воздух подвергается тепловлажностной обработке в секции оросительной камеры и нагревается в секции воздухонагревателя второго подогрева. Обработанный в кондиционере воздух подается в обслуживаемое помещение с помощью вентиляторного агрегата.
Рабочие секции (воздухонагреватели, фильтр, камера орошения) соединяются между собой с помощью секций обслуживания, а вентиляторный агрегат – с помощью присоединительной секции. Рабочие и вспомогательные секции устанавливаются на подставках. Расход рециркуляционного воздуха регулируется воздушным клапаном, а количество наружного – приемным клапаном. Регулирование расхода теплоносителя через секции воздухонагревателей производится регуляторами расхода. Удаление воздуха из системы теплоснабжения осуществляется через воздухосборники.
В теплый период года для охлаждения поступающей в камеру орошения воды используется холодильная установка, в состав которой входят: компрессор, конденсатор, испаритель и регулирующий вентиль. Циркуляция холодоносителя обеспечивается насосной группой. Переключение камеры орошения с политропического режима на диабатический производится трехходовым смесительным клапаном.
Библиографический список
1. СНиП 2.04.05-91* Отопление, вентиляция и кондиционирование. М.: ГУП ЦПП, 2001. 74 с.
2. Иванов Ю.А., Комаров Е.А., Макаров С.П. Методические указания по выполнению курсовой работы "Проектирование кондиционирования воздуха и холодоснабжение". Свердловск: УПИ, 1984. 32 с.
3. Справочник проектировщика. Под ред. Староверова И.Г. Внутренние санитарно-технические устройства. Часть2. Вентиляция и кондиционирование воздуха. М.: Стройиздат. 1978. 502с.
Похожие рефераты:
Проектирование рыбоконсервного завода
Кондиционирование воздуха в гражданских зданиях
Безопасность жизнедеятельности
Вентиляция промышленного здания ООО Буинского комбикормового завода
Организация предприятия общественного питания
Энергоэкономическая эффективность применения авиационных двигателей на ТЭС
Проект реконструкции цеха первичной переработки нефти и получения битума на ОАО «Сургутнефтегаз»
Разработка технологии концентрирования серной кислоты
Реконструкция теплоснабжения ОАО "САРЭКС" с разработкой собственной котельной
Проектирование адиабатной выпарной установки термического обессоливания воды
Разработка автоматизированной системы управления установкой кондиционирования воздуха
Перевод на природный газ котла ДКВР 20/13 котельной Речицкого пивзавода
Проектирование тепловой электрической станции для обеспечения города с населением 190 тысяч жителей